











![]()












Total Living Space: 1,646 sq,ft | Taxes: $3,964.08 for 2025
Welcome to this beautifully updated 2-storey townhome in the highly sought-after Enclaves community, nestled in Burlington’s desirable Maple neighbourhood. Tucked away on a very private cul-de-sac with little traffic, this home offers peace, quiet, and added safety in an unbeatable location just steps to downtown Burlington, Spencer Smith Lakefront Park, the beach, Mapleview Shopping Centre, restaurants, with easy access to the QEW and GO Station.
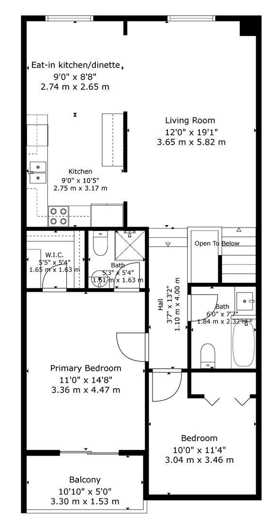
Offering 1,646 sq ft of stylish living space, this 3-bedroom, 3-bath home backs onto a tranquil creek with mature trees, providing exceptional privacy and a serene natural setting. The home features rich hardwood flooring throughout, California shutters, a hardwood staircase, and updated lighting.
The main floor includes a convenient 3-piece bath. A spacious family room with a cozy gas fireplace opens to a private, fenced deck overlooking the creek—perfect for relaxing or entertaining. Garage entry leads to the laundry room for added convenience, and the main-level bedroom offers flexible living options for guests or a home office.
The custom-updated kitchen is designed to impress, complete with quartz countertops, ample cupboards, crown moulding, under-cabinet lighting, pot lights, ceramic tile, stylish backsplash, and KitchenAid stainless steel appliances.
Upstairs, you’ll find two more generous bedrooms with hardwood flooring and beautifully renovated bathrooms. The primary suite offers a walk-in closet, updated 3-piece ensuite, and a private balcony—ideal for enjoying your morning coffee.
Lower level offers a blank slate and has ample storage area. Perfect for those seeking a maintenance-free lifestyle in a prime location, this stunning townhome truly has it all.
Seize the opportunity to make it yours—schedule your private viewing today
x 10’4”
x 23’11”
3-Piece
x 12’11”
Second Level
x 8’8”
x 10’5”
x 12’0”

Inclusions: Stainless Steel fridge, SS stove, SS dishwasher, OTR-BIN microwave, washer, dryer, all electrical light fixtures, ceiling fans, window coverings, California shutters, bathroom mirrors, 2 ring doorbells, Garage Door opener and remote, bench and decorative goose on front porch, exterior ornaments in garden, 3 pc bistro set, stainless steel shelving in basement.



MAIN LEVEL

SECOND LEVEL


• Renovated 2021-2022
• Hardwood flooring throughout.
• New lighting fixtures, pot lights, dimmers
• Updated kitchen with Quartz counters, undercabinet lighting, crown moulding, Kitchen Aid Stainless Steel appliances, ceramic flooring
• Three renovated bathrooms
• Home repainted throughout
• Garage Door replaced 2023, Garage exterior key pad 2025
• Front Door replaced 2022. Phantom front door screen 2024
• Ring doorbell
• Attic Insulation 2022
• Roof 2017
• Windows and sliding door 2012. Additional Ring doorbell in rear
• Gas Fireplace insert with remote 2012
• High Efficiency Furnace with air cleaner 2015 (serviced 2x yearly) Central Air Conditioning 2018 (serviced yearly)
• Washer/Dryer 2015
• Professionally landscaped front lawn 2023, rear fencing 2024, rear decking 2025