李珮甄_大學精選作品集_2408

Page 1


Portfolio

Pei Jhen

Selected Projects

2023 逢 甲 大 學 建 築 專 業 學 系 李 珮 甄

. 樸

.

議題討論 : 空間策畫 :

111-1 大四上設計

台中城鄉競圖 入圍 (作品為競圖後修正版)

111-2 大四下設計 TIME : 李珮甄、林語柔 P. 1

可食地景

少子化與高齡化現象

公共開放空間之效用調配

公共空間複合式使用與分配

連接都市環境藍綠帶

節點、集合式空間設計

資源永續循環

都市農教場育凝聚社區力

議題討論 : 空間策畫 : 配合中區再生計畫發展創 業孵育基地

台中文化舊城區都市衰退 青年族群社會經濟與生活困境

擴大社會住宅情感聯繫促 進社交媒合

托老托幼,安居樂業 微型城市,日式風情

110-2 大三下設計

議題討論 :

台中文化舊城區都市衰退

既有傳統商業式微

空間策畫 : 中區捷運站預定地之交

通門面定位

複合式文創商城帶動社

會發展

空間留白強化都市核心

廣場功能

城市生活博物館

112-1 大五畢業設計初步提案 TIME : 李珮甄、林語柔

都市邊陲與社區復興計畫 常民記憶存留與自主設計 城市與河堤之斷裂 人情與世代之斷裂

議題討論 : 空間策畫 : 節點式社區活化縫合斷裂 系統性社區走讀路徑串聯 增加人情聯繫空間提升人 口族群多樣性

樸式 育農

Urban F arm

台中地形特色具多條河川。早期 農村逐水而居,傍水而生 。昔日 川邊皆可見的田園風景, 然因時 光荏苒,今日受都市化的水泥覆 蓋 。過去農業的記憶逐漸被都市 遺忘。本設計位於台中東區藍綠 帶的界上。加上時代變遷,人口 開始出現高齡少子的議題,並牽 動著我們的生活。此設計將重新 定義校園和公園之間的關係。整 合被分割的綠帶,連結周邊都市 紋脈, 拉近農園和城市的關係 , 打造一個東區新型態都會農園

台灣少子高齡化日益嚴重

當今台灣人口問題少子化及人口高齡化日益嚴重 。 老

年人口已於 2017年超越幼年人口, 預估 2065年則達 幼 年人口的 5倍 。 未來學齡人口也將持續萎縮, 預計 207 0 年,各學級學齡人口將比2022年減少一半。

東區發展前景也難逃少子與高齡化

台中車站計畫雖帶動東區都市前景 , 但也難逃面臨高 齡化少子化的人口問題 。 加上由分析得出人口數高但 出生率卻不高的矛盾 。因此東區人口將呈現青壯年、 老年人口上升,而幼齡人口卻停滯或持續下降問題 。

東峰國中學生 人數

少子化衝擊校園,都市角色將改變

少子化挑戰校園對未來都市的角色扮演 。台中東 、 南區校園分佈密集 。 進而探討少子化的情況,

發現位於東區的東峰國中受少子化衝擊嚴重。

高齡化 、少子化 高齡化 、 少子化造成社會資源供給失衡 社 會福利需求擴大

校園閒置空間增加

歷史紋脈消逝

生產者與消費斷層

少子化影響校園招生不足 ,致使校園多出空 閒空間 無法達成空間的最大效用

台中地形特色多河川 早期農村傍水而生 。 過去 6 70 年代田園風景消逝於城市都市化 。

農業生產與食品消費關係疏遠, 都市人們逐 漸遺忘食物源頭

而由東峰國中歷年人數趨勢推估求得 50年後學生120人 教職人員25人。

友善多元城市 校園角色轉變 農園與城市連結 都市農園

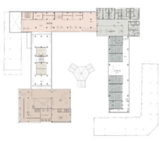
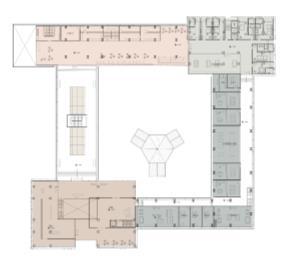
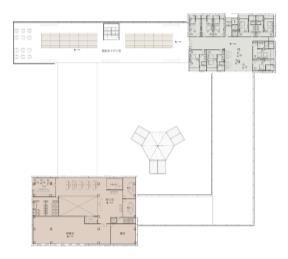
基地受多個單位切割 基地與周邊空間與動線的關係 藉動線從新找出空間定位 將新空間串聯周邊紋理 01 東 、 南區校園分布密集 02 東區車站發展將帶動東區 03 園道串連多個綠色空間 04 旱溪多個支流建立水川意象 台中地勢形成多條溪流串流台中盆地 。早期農村逐水而居 ,傍水而生 。昔日河川邊可見的田園風景 ,今日則受都市水泥叢 林埋藏得不見蹤跡。我們基地正位於台中綠帶( 環形園道) 及藍帶( 旱溪流域) 的交界帶上,周邊校園分布密集。本設計將重新 定義校園和公園之間的關係 。整合被分割的綠帶,連結周邊都市紋脈,拉近農園和城市的關係,打造東區新型態都會農園

農場中心

老人日照中心

國中部

幼兒園

校園停車場

國中校門

日照校門口

公園停車場

貨櫃市集廣場

集會平台

二二八紀念廣場

摘果舞台

親水舞台

親水步道

腳踏車步道

蔓生舞台

花園步道

勞工服務中心

大智公園

養雞場 / 肥料處理

本設計作為台中東區新型態都市農園 。

將引用樸門農藝的精神 , 帶入人本 、 自

然 、 永續循環的教育概念 。 於都市叢 林 裡強化藍綠帶重要性 , 使隨著都市化演 變的城市不要遺忘農業的根本 。

食物鏈循環

廢物處理

雨水收集 作物種植

飼養家禽

農產收成 食品加工

作物販售

問題

廢物處理

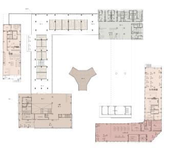
以家為核心概,各個農園為獨立單 元,中間核心提供休息及倉儲使用 將樸門農藝精神帶入,帶領孩子、 老人及社區居民打造農藝教育園區

少子化

高齡化 區域發展 氣候變遷 少子化日趨嚴重,未來教育資源將供過於求

高齡化持續上升,社福資源需求不斷擴大 台中南區舊城區都市成長緩慢沒有特色 氣候變遷氣溫上升,需做都市系統應對策略

都市農園 都市農園實驗基地強化發展南區農工地方特色 兒童教育精簡,小型國小農業實驗所 調節及應變未來都市氣候 地方社區共融

構思

基地 議題 構思

設計

區位 歷史

農工院校中間節點 綠帶園道東南端點 藍帶綠川\旱溪匯集 以住宅區為主 故去來為水田,自民國60 年改建為東峰國中

企圖 樸門

永續 自然

· 分享 資源 · 院校合作 興大分享教育資源 · 可食公園 - 社區作物自給自主 · 分享資源,並提倡社區農業

社會

教育

· 凝聚社區發展 · 社區活動 · 農民市集

· 大自然教育 · 農業教育 · 食物教育 · 永續教育 能源

· 水資源回收再利用 · 雨水儲存再利用 · 農業循環系統 · 太陽能板及省能設備 資源

設計打通校園和公園的界線,讓邊界具視線的穿透,同時公園又能與運動場合併。並整合東峰國中建築使用 ,釋出 多的空間提供兒童、老人及社區居民。置入新的農業及社區活動空間,提供此農園一連貫的生產及銷售需求。

01 / 校園開放空間改造成可食農場,

供學生及老人學習栽種

02 / 於廣場上打造蔓生涼亭, 讓藤蔓可 食植物能攀岩至頂做遮蔭效果

03 / 親水濕地步道 , 連結藍帶水意象 ,

將廢水收集做濕地淨水

04 / 採果舞台 , 於此區適當距離種植多

樣果樹 , 提供採果及分享的平台

城市是文化的容器 , 文化是城 市的靈魂 。 日治時期打造了台 中舊城區的城市紋理並稱正方 形街廓為町 。 而近年政府希望 保留這些舊城區的文化特色資 產並提出文化城中城計畫 。 而 為了活化此藝文歷史豐厚的舊 城區 。 我們將配合計畫將社會 住宅錨定復甦台中舊城區經濟 狀況 。 希望以社宅特色留住更 多青壯年人口回流 , 並且重新 找回舊城區的生活樣貌 。

西區民生里 255 5人

人口密度低

人口密度中

人口密度中高

人口密度高

台中市區人口密度分布圖

捷運路網計畫

台中市區人口成長圖

舊城區曾為台中政治 、經濟及娛樂的核心區 。隨都市開發限制最終走向沒落。由 於 中區文化歷史的積累,政府希望文化結合青年創意產業,帶入新商業活絡中區。

沒落使生活機能消失

本區位於舊台中機關、學校、銀行等公共設施密集的區域。介於自由路、林森路、建國路主要道路上,故其 上下班尖峰時段人流甚多。然因加上缺少生活機能 ,過了下班時段時則成了無人駐留的空城。

希冀本社宅成為機關 學校與住宅的膠 合點,於此成為城市客廳

每人都有明確目的性前往此地,較少 在基地周圍停留

此區住宅區相對少,而皆呈現封閉型,與 公共設施無交集

舊城區沒落

舊城區沒落

中西區青創產業政策

沒落致使生活機能流失 就業結合 建立生活

基地議題 人口外移,駐留稀少

創業 生活 基地

不單單只是基地上的人 們位於交通節點的社宅 更應該提供更全面完善 的服務 ,服務更多使用 者擴大年輕人對此社宅 的情感連結 。 年輕人使 用社宅時除了感受良好 的服務設施外下班時間

也可以在社宅內展開出

其不意的社交互動 。 跳 脫一成不變的下班生活

給年輕人安心就業環境 愛的新生活 滿足一系列生活與社交需求 食 醫 住 行 育 樂

給年輕人安心就業環境

串 聯中西區文創產業 建立地區生活機能

打破單點式文化場域

打破單點式文化場域 串聯中西區文創產業 建立地區生活機能

滿足一系列生活與社交需求 食 醫 住 行 育 樂

1 F p l a n S1 : 7 0 0

01 / 九樓工作室平面圖 03 / 社宅 標準層第二層 02 / 社宅 標準層第一層

微型城市

以舊城區日治時期市

區改正計畫的紋理 ,

重組堆疊 ,打造一縮

小版城區 。同時藉由

日治官舍建築群為發

想,以單位模矩的配

置轉化成不同單元的

工作類型 ,組成一個

小型的創業城市 。

01 / 異質木構回應歷史及突顯都市 裡自明性

04 / 一樓延續面前道路沿街面尊重街道 紋理

02 / 延續一樓老樹小徑 , 沉浸酒香 之間

05 / 放入不同種工作空間及休閒空 間提供更多互動交流

03 / 空間讓使用者穿梭走進町之城

06 / 供九樓轉向的辦公室開闊的都市景

新 心

NEW HEA R T

https ://youtu be /DVSb 6 Ggqltk

台中市中區過去為商業 、 政治 金融與娛樂中心 , 繁華一時 。 在這塊土地上沉積了豐厚的生 活記憶 。 然而隨著生活型態改 變 , 都市發展趨向屯區 , 中區 走入衰退 。 本計畫 《 新心 》 為 台中市中區第二市場改造商城 計畫 , 其置入新商業機能 , 結 合傳統與文創於新舊建築之間 , 並繼承舊市區過去的商業 , 延續人們過去的記憶與生活體 驗 , 希冀藉由重新在中區內建 立商業重心 , 復興中區周邊環 境 , 給都市更新新的契機 。

《優勢Strengths》

中區 : 第二市場 :

舊建築、特色商圈、發展步行城市潛力 、交通樞紐區 舊建築、傳統美食、中區之交通據點 、5min 台中公園 綠川 台中州廳

《機會Opportunities》

上位計劃復興中區 : 休閒城區綠色川廊計畫、台中火車站計畫 、捷運 藍線(轉運站設點)、綠川及柳川修整綠川、柳川及火車站節慶活動

中區 : 第二市場 : 《劣勢Weaknesses 》

交通壅塞、停車場缺乏 、開放空間不足、多小型商店、商 店沒落、環境髒亂移工街友聚集

舊式商品 違建加蓋 空攤率高 營收低 上午營業

《威脅Threats 》

店面租商凝聚不易 、土地所有權複雜、對移工刻板印象

中區為高度開發與歷史悠久的城市,周邊停車場及轉運站形成入口,並在台中車站銜接台灣大道的軸線上與三民路交 會適合發展步行城市。上位計畫中,提出一街一特色、柳川整治及台中車站計畫促使復興舊市區,基地成為中區重要 節點,也是市府易介入的一塊空間

傳統 + 新創

傳統+新創

傳統美食街

傳統美食街

新進流行服飾精品

新進流行服飾精品

商業青旅

商業青旅

可配合藝術家租任

可配合藝術家租任

藝文展覽

藝文展覽

美食活動

美食活動

傳統 DIY 烘焙坊

傳統DIY烘焙坊

食 衣 住 樂

食 衣 住 樂

PROGARM

商業轉型

商業轉型

文創藝術

文創藝術

複合商場

複合商場

都市熱點

都市熱點

城市客廳

城市客廳

現況

現況

高度開發

高度開發

經 濟

經 濟

環 境

環 境

城市緊湊

城市緊湊

上位計畫

上位計畫

空間留白

空間留白

步行城市

步行城市

計畫整合

計畫整合

把部份空間留給廣 場打造城市客廳

把部份空間留給廣 場打造城市客廳

打造步行城市門面 增加停車空間

打造步行城市門面 增加停車空間

與計畫整合成複合性 商場達成步行城市

與計畫整合成複合性 商場達成步行城市

婚紗照相博物館 文創藝術工坊

婚紗照相博物館 文創藝術工坊

商業沒落

商業沒落

傳產保留

傳產保留

商業轉型

商業轉型

時空記憶

時空記憶

城市場景

地方關係

城市場景 地方關係

傳統 產業

傳統 產業

歷史 遺址

歷史 遺址

生 活 博 物 館

生 活 博 物 館

New heart

N e w hear t

居民

居民

文化遺產 使用者

多 元 化

多 元 化

遊客

遊客 業者

業者

藝術創作者

東南亞移工

非排他 接納任何人 並制定規範維護環境

藝術創作者

東南亞移工

非排他 接納任何人 並制定規範維護環境

( 可招攬藝術家 學生 青創者 )

(可招攬藝術家、學生、青創者)

(接納而非排他)

( 接納而非排他 )

將於第二市場整理新興商城 ,帶動舊市區商業轉型,結合傳統與創新文化展覽活動及複合性商旅空間 , 成為一都市熱點。利用 新建築的介入,展示舊城區舊建築市景,並以「新心」的面貌帶來磁吸效應改變周邊環境的產業結構和空間序列。

第二市場歷史悠久 , 空間不斷的在時間與空 間交替沉積了所有的記憶 , 探究需以層層 剝 開看到最初的面貌 。 市場是個匯集所有人事 物的場所,不僅是單純交易,是交換與展示 生活資訊的地方, 可謂為「 生活博物館 」。

因此新建築是以半透明皮層方式 , 讓視覺可 以穿透解讀內部的訊息 ,營造層層的空間層 次,展示著舊城區與建築內的生活

商場 文化遺產

01 / 展場空間可配合周邊產 業歷史及活動

02 / 結合地方產業開創 DIY

傳統麵包坊及藝術工坊

03 / 商店美食街為傳統美食和

招進新餐飲

04 / 於高度開發城市內置入廣

場成為城市客廳

失憶台北

詩意城南

水城的文學記憶庇護

過去台北市水鄉澤國,水渠密佈。人們行路,常沿著河或溝。每個 台北人都受到水的籠罩。舒國治提到 : 台北市,偉大的記憶之城, 行色匆匆,不做停留。在平面上,台北與河水的關係曾緊密相依。

面對水岸的威脅,城市卻以最直接的方式解決安全需求,基礎設施 的「單一性」與「凋敝化」現象,使得河岸出現了斷裂的城市地景 。高聳的堤防、快速道路截斷了人們對河岸空間的想像。在都市邊 陲帶的環境中,社會問題油然而生。在堤防築起後,河邊荒煙漫草 ,有異於「休閒」生活的另一面,是窮途末路的荒疏野氣。而河流 則被賦予災害形象而益顯疏離,遂成為受擠壓的底層社會的聚集地 ,成了在城市當中被遺棄的負面空間。

《舒國治_水城台北》: 路 的一旁使醜陋的堤防,我有時會想,這堤防不是為了要阻止淹水, 而是好像有人蓄意讓這個城市的人看不到而蓋的。

在防災意識抬頭 與環境變遷促使下,樹立了一道道高聳的堤防,1973年政府啟動快 速道路建設計畫,構築起快速道路路網,並加高堤防達二百年洪水 頻率位置。每個年代的選擇造就了都市的推進,使得城南這塊詩意 的土地,失去了定位,失去了原貌。人們面對河岸的視野被高架橋 遮擋,越發城南深刻的落寞情懷。城南的故事在斷裂中深沉,成為 一片被遺忘的土地,蘊含著失憶的詩意。

快速道路與聳立的大樓將城南孤立於河岸的荒疏野氣,人們逐漸脫離並遺忘,如同都市失 落的邊角。而裡頭則集聚著社會底層於此相濡以沫,殊不知於此過往曾有如江戶時期河岸 休憩飲宴的光景,以及一群文人的夢鄉。因此我們希望扭轉河堤的邊界定義,以其滲透方 式與紀州庵文學生活相融,為台北帶來一處喘息、幻想、更生的一隅。

都市邊陲

二手產業凋零

堤防隔絕城市與河 歷史記憶消逝

文學館空間侷限

Historical Analysis

新店溪堤防

堤防切斷人與水之間的可及性,失去了原有 的親水性與水岸活動。如今隨著大眾運輸發 展,捷運與步行空間的整合將會是未來台北 城市首要願景,我們將以步行動線連接捷運 站縫合水岸與人的關係

產業

同安街主要以小吃為名 ,廈門街過去光復時期 曾為皮鞋街,熱鬧一時 後期為二手家具業

樓層

大馬路邊言高樓林立, 進入前端卻有許多低矮 的房子聚集,與一旁的 高樓形成強烈的不協調

車流

三條主要道路與一條水 源快速道路包圍。在高 速車流下引響行人道路 權益,也加深城市邊陲

文學

台大、師範大學等地緣 關係,曾經為戰後台灣 文學作家的故居,亦是 戰後文學沙龍聚集地

人流

除了羅斯福路與和平西 路人流車流密集外,還 透過收集大眾運輸站點 分布來確認未來基地人 流來源的可能性

老屋

在同安街前端保留了舊 時水路切割出的巷弄紋 理。狹小擁擠的巷弄內

,仍藏著許多木構老屋

城南文學散步策 空間定位

交通計畫

城南文學 館

步行空間規劃 規劃為禁行汽機車,確保完善的步行體驗 快速道路解決 快速道路引入地層,而維持南下通車 停車空間設置 停車場結合水岸地下化,並與快速道路連接

營運模 式

文學之 家

培育人 才

多元融 合

節點計畫 步行時間不超過3分鐘設置一節點為原則

動線引導

為了翻轉都市邊緣局面,藉由同安街動線將古 亭捷運站人流引導至水岸

Operation System

國際沙龍、專業研究、典藏收集、藝文展覽、藝文活 動

教育 : 大專院校研究合作、國中小教育課程\活 動 支持 : 作家駐館、服務平台、文藝工作 坊

邀請不同專業領域專家 (藝術、音樂、電影、科技 )

推廣在地文化、促進當地產業轉 型 在地活 化

活動規 劃 作 家

文學推 廣

舊貨零件供應 商

舊貨轉 型

舊貨再生 化

設計師活 化

文學作 品

藝文商 品 創作 者

舊物新 生

藝術家\作家座談會、文學音樂節、玩字節、研討會、讀書會、文學散步策、舊書市集、國際書展、劇讀、藝文表演、電影放 映

科技應 用

在地融 合

步行路徑 上 AI行為分 析

AI 客製化故事前 導 AI 客製化虛擬實 境 提供快 速 取得需 求 透過故事帶入與 情 境氛圍銷售商 品 銷故事 售 AI 智能空間運 轉

用文學說舊物的故事,用舊物說城南的故事,用A I 創造個人化獨特記 憶

減少舊貨供應商數量降低同業競 爭

城南文學 館 營運模 式

舊貨市 集

里民手作工 坊

銷售模 式

參與 者

1 定位出不同類型風格的概念店與商品設 計 2 依照訂單需求至舊物零件供應商採 購 3 藉由作業員依照設計重新組 構

1 體驗店 於節點設置家具讓人體驗家 具

2 概念店 以空間氛圍和說故事方式銷 售 3 配送物流 當確認選購後,藉由網路下單,並於期限內宅配至 府

規劃與設計 專業領域者,藝術家、技師、設計 師 整理 / 重組 / 運送 無業者、就業輔導 者

銷售者 / 說故事 原舊貨老闆、居 民

Qualitative & Quantitative

訪 客

文學 家

創作 者

在地 人

工作 者

活動 \ 展 覽 體 驗 P o r po s e

朝 聖

購 物

研 究

舊物再 生

P e r fe r enc e

在地文 化

城南記 憶

舊物家 具

里民互 動

文學活 動

藝文特 展

研究典 藏

Func ti o n U s e r

活動廣 場

舊物交換平 台

里民活動中 心

工藝 坊

咖啡 廳

戶外閱讀 區

演藝 廳

城南故事(常設展區 )

藝文特展 區

辦公 室

典藏 庫

創 研

駐館宿 舍

舊物再生 廠

遇 見

抽 取 交 換

沉 澱

再 生 Si t e

立體廣場

舊物交換平台

里民活動中

里民咖啡廳、里民手作工坊

文學館、特色概念店、停車場 酒吧、輕食餐廳、活動廣場、市集 兒童遊戲場、藏匿空間、療育空間

讀書角落

城南文學館

角落星點

Scenarios In Design

神秘巷弄

房子雞犬相聞,互通 聲氣,在城市的精華

地段,挨著高樓大廈 的邊沿,隱隱存留著

舊鄉- 房慧珍

光,在夜裡的彎曲巷弄 裡,隱晦地於巷弄中閃 爍,在狹小的空間中, 但也可以很溫馨安逸。

舊物交換平台

酒吧、輕食餐廳、活動廣場

藏匿空間

公園有如生活中喘息的幸 福縫隙。- 王聖宏 藏,這裡任何人都能在都 市中找到短暫逃離的角落

工作坊、戶外讀書區、 舊書交換站

時空交匯

匯,大河的匯集,隨著時間的流 轉,人的相聚與離散、都市的變 遷何嘗不如此?一個匯聚的場所 ,也預示著聚合和分離的循環

里民活動中心、共饗食堂

河岸空間

隱或顯,潛入與浮出, 看得見與看不見的,河 流恆常被阻絕於堤防外 - 房慧珍

故事選物館、概念店

故事軸線 文化融合 人情聯繫

整個故事軸線是以設計中的人

流分析劃定出軸線,透過一連 串故事節點來串聯,使人們一 路沿著同安街至紀州庵及水岸

在路徑與節點之間,穿插著在

地的文化元素 - 文學與舊貨。

透過這兩者的融合引領外來訪 客可以更深入了解在地

每一個節點的安排,皆位在人

口流動的地方,希望除了讓路 徑上的人歇腳外,也是讓訪客 與在地居民交流互動

節點一一層平面圖
節點四一層平面圖
節點四二層平面圖

ARCHITECTURAL DRAWING

節點五A-A’剖面圖 S : 1: 800

節點五B-B’剖面圖 S : 1: 800

節點五C-C’剖面圖 S : 1: 800

影片連結 : https://www.youtube.com/watch?v=dZ4sEYA6XZQ

01 / 新聞學館空間透過開窗及動線與紀州庵對話

02 / 滲透型堤防,碎化以往厚實的堤防並與鄰房互動 03 / 以曲折的地景造景回應歷史的地景變化

04 / 於河濱處重塑台灣光復初期螢橋游泳場的風景

08 / 並於此寧靜的森林裡,尋找提供休憩、喘息的都市角落 05 / 於路近的最源頭,於鬧區內格外寧靜水景吸引並拉近人們 06 / 以曲線沿著河岸成高低起伏的繞行回應水岸地形與人的視角 07 / 城市裡的喘息空間,人們循著彎曲如溪的路徑穿梭林間

Turn static files into dynamic content formats.

Create a flipbook
Issuu converts static files into: digital portfolios, online yearbooks, online catalogs, digital photo albums and more. Sign up and create your flipbook.