

REDI CRISTIANDY



![]()









Saya lulusan Sarjana Teknik Arsitektur dan saat ini menempuh pendidikan profesi arsitektur. Saya memiliki pengalaman pernah bekerja di biro arsitektur sebagaiArsitek Perancang Junior stetelah menyelesaikan studi. Hingga saat ini, saya sempat memiliki pengalaman bekerja pada sebuah perusahaankontraktordalamproyekpengerjaankonstruksi.
Saya percaya bahwa ilmu bisa didapat dari mana saja, hal ini yang menjadi dasar motivasi saya dalam berkarir sehingga dapat terus berkembang. Motivasi ini menjadikan saya selalu ingin belajar hal baru sehingga membentuk saya menjadi terorganisir, terus berpikir kreatif, mampu beradaptasi dan memilikitanggungjawab.







Redy Cristiandy pussaraangga@gmail.com
Redy Cristiandy
redycristiandy
Bahasa Indonesia
A English (TOEFL : 553/677)
Asal
Soreang, Kota Parepare, Sulawesi Selatan Domisili
Bontomarannu, Kabupaten Gowa, Sulawesi Selatan
Building Information Modeling (BIM) (LOD ~ 350)
INTERMEDIATE
Ÿ AutoCAD
Ÿ Premiere Pro
Ÿ CorelDRAW
Ÿ Microsoft Office
Ÿ Twinmotion
ADVANCED
Ÿ Revit
Ÿ SketchUp
Ÿ Lumion
Ÿ (2014-2018) IPK 3.5/4.0 SARJANA TEKNIK
Jurusan Arsitektur, Fakultas Teknik, Universitas Atma JayaYogyakarta
Ÿ (2024-sekarang)
Pendidikan Profesi Arsitek
PPAr, Departemen Arsitektur, Fakultas Teknik, Universitas Hasanuddun
Pillar Architect 2017,Arsitek Perancang Magang Junior
Ÿ Ikut serta dalam perancangan bangunan residensial dan komersial
Lare Studio 2018 - 2020, Arsitek Perancang Junior
Ÿ Bertugas dalam proyek perancangan bangunan residensial, komersial, dan interior
Ÿ Ikut serta dalam perencanaan perancangan proyek hotel, proyek kebudayaan, dan proyek penataan wilayah komersial
PT. Lumpue Indah 2021 - 2023, Pelaksana Teknis
Ÿ Bertugas dalam proyek konstruksi kategori bangunan gedung
Ÿ Ikut serta dalam penyusunan persiapan pekerjaan bangunan gedung
Ÿ Pengawasan pelaksanaan pekerjaan, hingga evaluasi dan manintenance hasil kerja
- Mandiri 2020 - 2023, Perancang Arsitektur
Ÿ Melakukan perencanaan proyek pekerjaan arsitektural
Ÿ Melalukan kerjasama proyek perencanaan arsitektur secara parsial
DATA PERSONAL PENDIDIKAN PENCAPAIAN
Ÿ Juara 1 Lomba Desain ‘Lapangan Lilin’, Jurusan Arsitektur, UAJY 2015
Ÿ Juara 3 Lomba Desain ‘Penataan Kawasan Lingkunan Pemukiman’, PIP2BYogyakarta 2018
Ÿ 5 Besar Lomba Desain ‘ARZEN:Net Zero Energy Building in Bali’, Bali 2024






Juara 3 Lomba Desain ‘Penataan
Kawasan Lingkunan Pemukiman’, PIP2BYogyakarta
Yogyakarta, DIY


2024
Studio Proffesional 1, Pendidikan Profesi Arsitek, Universitas Hasanuddin
Makassar, Sulawesi Selatan












pekerjaan Lomba Desain Penataan Kawasan Lingkungan Pemukiman PIPB 2
tipe Ruang Publik & Kawasan Pertanian status Juara 3 tingkat provinsi
tahun 2018
lokasi Ngaglik, Sleman, DIYogyakarta lingkup kerja Konseptual, Modeling 3D
DIYogyakarta

Melalui konsep utama 'Sosial Mutualime' desain ini memadukan nilai-nilai lokal wilayah site kedalam wujud ruang sosial dan pertanian yang terintegrasi dan saling memiliki manfaat. Desain ini memanfaatkan ruang KAS desa yang sebelumnya belum difungsikan secara maksimal agar memiliki manfaat baik bagi sekitarnya. Konsep yang diaplikasikan dibentuk dari nilai-nilai sosial, budaya, ekonomi, dan hal-hal lain seperti kebutuhan fasilitas publik yang ada di wilayah Dusun Nglaban, Sleman.
Wujud dari desain ini berupa area komunal, aula , dan taman sungai yang akan berfungsi sebagai wujud ruang sosial. Area pertanian, pasar tani, hingga penampungan hasil tani dibuat juga agar lahan KAS desa dapat memiliki fungsi ekonomi bagi masyarakat sekitarnya. Pengolahan air ekologis secara alami diterapkan pada desain ini akan sangat berguna bagi sistem irigasi pertanian yang dibuat. Wujud ruang ini menekankan integrasi kegiatan di dalam area tersebut agar memiliki hubungan timbal-balik yang saling bermanfaat. Tujuan akhir dari desain ini agar dapat meningkatkan nilai-nilai lokal wilayah khususnya di dusun Nglaban ini.




Perspektif mata burung visualisasi kawasan desain ruang publik dan taman tani

Secara garis besar wilayah site dan sekitarnya merupakan lahan pertanian. Pada proses pengembangannya akan tetap mempertahankan area pertanian tersebut sesuai dengan fungsi pertuntukan lahan di RTRW

Perumahan tersebar merata pada seluruh penjuru yang disebabkan sebagian besar masyarakat masih bermatapencarian sebagai petani. Rata-rata posisi rumah masyarakat berada dekat dengan lahan pertanian di area tersebut.

Fasilitas publik seperti kantor pemerintah, masjid, sekolah dsb tersebar cukup merata. Namun penyebarannya memiliki jarak yang berjauhan sehingga akan sangat minim terciptanya kegiatan komunal sesuai nilai budaya setempat.

Bangunan komersil terkonsentrasi di beberapa titik terutama di sepanjang jalan provinsi (Jl. Kaliurang). Hal ini membuat sulitnya terjadi kegiatan ekonomi pada masyarakat yang berada jauh dari titik persebaran komersi tersebut.


Pemanfaatan tanah khas desa yang belum optimal menghasilkan ruang-ruang negatif temporer, terutama di musim kemarau

Perkembangan urban mempengaruhi waktu, kegiatan dan tempat untuk masyarakat berinteraksi secara produktif

Ketersediaan air dalam lahan hanya mengandalkan faktor alam, sehingga lahan hanya dimanfaatkan pada musim hujan, sehingga teknologi pengolahan air terintegrasi dibutuhkan untuk menunjang fungsi pemanfaatan lahan sebagai ruang terbuka yang produktif




Pertumbuhan ekonomi
Aktivitas sosial
Akses
Budaya


Wilayah jauh / terpencil
Tidak tersedia Fasilitas
Kesehatan




Topografi dengan kontur menurun landai
Area terbuka hijau dari tanah khas desa
Pemandangan
Saluran irigasi terstruktur


Kekeringan
Sektor pertanian konvensional terkikis budaya konsumtif yang instan
Peralihan fungsi lahan untuk kepentingan privat

Terdapat menara PLN bertegangan tinggi

Memasarkan dan mengolah produk pertanian dari produksi site
Mewadahi interaksi masyarakat dalam taman sosial

Sirkulasi dan ruang berbasis aksesibilitas
Fasilitas kesehatan sebagai fungsi penunjang
Tata ruang luar terintegrasi dengan massa dan fungsi bangunan



Area rekreasi edukatif terintegrasi dengan sistem pertanian lokal
Mengembangkan orientasi bangunan melalui kaidah budaya setempat
Integrasi sistem irigasi lokal dengan sistem ecodrainase

Generator Budaya Lokal
Melestarikan nilai-nilai budaya ditengah laju perkembangan urban melalui ruang rekreasi edukatif berbasis pertanian
Pelestarian HasilAlam
Hasil alam merupakan salah satu aset budaya yang akrab dengan masyarakat didukung oleh kegiatan matapencaharian lokal sebagai bentuk keberlanjutan budaya setempat
Ruang Rekreasi Edukatif Berbasis Pertanian
Kebutuhan ruang publik untuk rekreasi yang mendidik berbasis pertanian setempat sebagai bentuk pelestarikan pengetahuan lokal
Sistem PengolahanAir Berbasis Ecodrainase
Memanfaatkan sumber air alami (hujan) untuk menanggulangi musim kemarau dengan pengolahan dan penyimpanan air dalam lahan


WARUNG MAKAN EKSISTING
PENGOLAHAN AIR
PENDUKUNG JAGUNG PADI TOILETGUDANGKOLAM BIO-FILTERKOLAM PENAMPUNGANGUDANG PENGOLAHANPOMPA AIR-
ZONASI RUANG BAMBU BAMBU CABAI WATER FEATURES TAMAN SUNGAI


































youtu.be/1uR7J1fYoxw

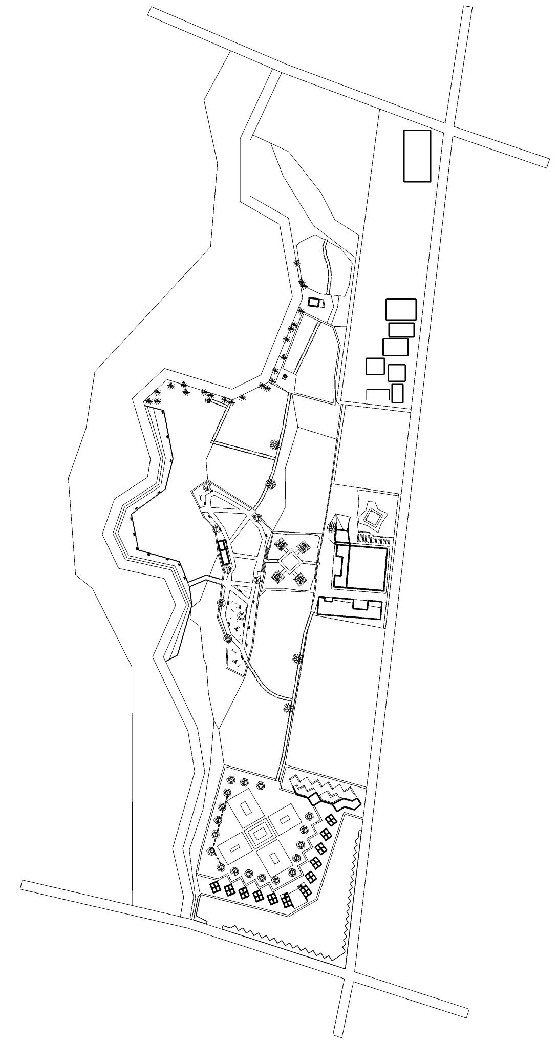
Lokasi Site
Sulawesi Selatan
pekerjaan Studio proffesional 1 PPAr
tipe Hunian
status Konsep
tahun 2024
lokasi Mariso, Makassar, Sulawesi Selatan
lingkup kerja Project management, konseptual
Berawal dari keresahan akan munculnya permasalahan pemukiman di hampir seluruh wilayah kota di Indonesia, perlu dilakukan sebuah gagasan hunian yang ramah lingkungan dengan orientasi terhadap peningkatan kesejahteraan penghuni dan masyarakat. Muncul sebagai respon dari permasalahan tersebut, proyek ini diharapkan dapat menjadi solusi dari permasaan tersebut seperti keadaan yang padat dan kuranya ruang terbuka, kawasan yang kumuh, hingga kesejahteraan masyarakatnya.
Dengan lokasi yang berada di kawasan padat penduduk Kota Makassar dan dengan ketentuan batasan area terbangun, desain akan memfasilitasi 4 keluarga dengan lahan terbatas. Ditambah lagi, desain ini akan tetap mempertahankan fungsi tambahan yang sudah ada sebelumnya seperti warung dan rumah sewa. Selanjutnya juga akan ditambahkan fungsi penunjang seperi area publik luas yang sekiranya dapat berpengaruh ke lingkungan sekitarnya. Sehingga diharapkan desain ini tidak hanya memperbaiki keadaan lingkungannya, tapi juga dapat meningkatkan kesejahteraan penghuni hingga masyarakatnya.



Lokasi site eksisting di wilayah padat penduk pada sebuah wilayah di Kec. Mariso, Makassar

Visual desain rumah tinggal dari arah jalan masuk. Sebagai wujud respon permasalahan pemukiman padat penduduk kota yang meningkatkan nilai kesejahteraan penghuni dan masyarakatnya.

RENDAHNYA SOSIAL - EKONOMI
KEPADATAN PENDUDUK
BANGUNAN TAK LAYAK HUNI

RUANG TERBUKA SANGAT MINIM

DESAIN PERMEABLE
Kemudahan lingkungan yang dapat dijangkau oleh masyarakat luas secara ekonomi dan sosial.
PENINGKATAN AKTIVITAS EKONOMI
HUNIAN YANG LAYAK
TERCIPTA AREA TERBUKA ALAM DAN SOSIAL
ARSITEKTUR TROPIS
Respin atas lingkungan iklim tropis dengan prinsip-prinsip desain yang merespon keadaan tersebut.


KESEJAHTERAAN HIDUP DAN LINGKUNGAN

FLEKSIBEL
Ruang-ruang fleksibel yang dapat menyesuaikan kebutuhan pengguna. Rp
RUANG KEGIATAN EKONOMI
Meningkatkan ruang-ruang yang memiliki fungsi untuk meningkatkan ekonomi penduduk.
RUANG SOSIAL
Menciptakan wadah untuk berkumpul / berinteraksi sebagai respon kebudayaan.
DESAIN PASIF
Mengoptimalkan perencanaan dan orientasi spasial untuk memaksimalkan pencahayaan matahari dan penghawaan alami.



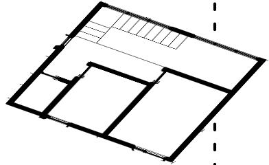
Menentukan bentuk dasar bangunan. penentuan bentuk dasar mengikuti bentukan site dengan mempertimbangkan peraturan daerah bangunan.
Bentuk dasar di transformasi keatas hingga terbentuk volume ruang agar menjadi vocal point dari luar tapak, dengan batasan maksimal 15m sesuai peraturan
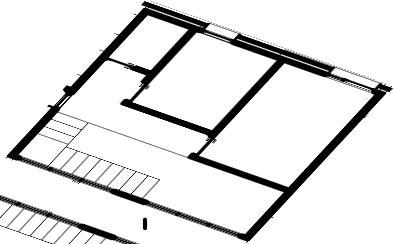
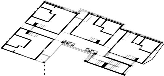
Massa dibagi menjadi 3 level dengan pembagian zonasi area ruang. Level 1 didominasi zona publik, level 2 dan 3 didominasi oleh zona privat. Area servis di tiap level untuk mendukung aksebilitas
Subtraktif dan aditif bentuk pada massa untuk merespon penghawaan pada site sebagai pertimbangan penghawaan bangunan serta penambahan vegetasi sebagai penyejuk udara
Gubahan terakhir ini merespon iklim setempat. Penambahan elemen atap dan transformasi bentuk massa untuk merespon sinar matahari sebagai pembayang dan sekaligus merespon hujan












Atap Aspal / Bitumen
Penggunaan atap denga bentuk plana dengan material aspal / bitumen dapat merespon keadaan ilklim dengan betuknya yang miring serta material yang tahan cuaca dan tidak bising
Green Roof
Area terbuka pada area komunal dirancang dengan memakai permukaan vegetasi selain sebagai tambahan area hijau, juga dapat berfungsi untuk mendinginkan area ruang di sekitarnya
Tanaman Gantung
Tanaman gantug ditempatkan utamanya pada elemen vertikal seperti railing berguna sebagai penyaring udara yang masuk ke dalam bangunan yang melalui koridor
Screen Angin
Penambahan elemen vertikal pada bagian depan berfungsi sebagai pengarah angin untuk masuk ke sela-sela massa bangunan serta sebagai buffer dari keadaan site yang berada di ujung jalan besar
Roster
Penempatan roster pada sisi tangga yang menghadap ke jalan utama berguna sebagai penghalang pandangan terbuka ke tangga sebagai privasi penghuni juga tetap membuka sirkulasi udara
Vegetasi
Peletakan taman dengan tambahan jenis vegetasi kasar yang menyebar juga berfungsi sebgai penyaring udara yang panas agar lebih sejuk untuk masuk ke dalam
Dinding Kaca
Elemen kaca pada dinding di area kios berguna untuk meghilangkan kesan tertutup namun tetap mempertimbangkan keamanan, elemen ini nantinya akan dilengkapi dengan ventilasi untuk penghawaan
Lantai Panggung
Perkerasan pada lantai dasar diangkat dari permukaan tanah yang berguna untuk menciptakan ruang resapan air yang luas di bawah lantainya
Grass Blok
Perkerasan pada area parkir dan komunal didominasi dengan perkerasan grass blok yang dapat memaksimalkan peresapan air ke tanah dan disertai penghijauan pada area lantai perkerasan







Visual area kios sebagai daya tarik bagi masyarakat dan pengunjung luar sekaligus menjadi sumber kebutuhan yang hasilnya menjadi pemasukan bagi pemilik rumah tinggal



Pada lantai 2 disedian ruang terbuka yang dapat berfungsi sebagai ruang komunal




Rumah sewa dengan fasilitas setara apartemen dapat memiliki dampak ekonomi dengan nilai yang tinggi
Area di depan pintu masuk setiap rumah ditempatkan teras semi privat


















kenyamanan selasar didesain dapat dilalui 2 orang






beranda yang dibatasi dengan vegetasi memisahkan ruang kendaraan dan ruang aktivitas masyarakat






pekerjaan Lomba Desain ‘ARZEN:Net Zero Energy Building in Bali’
tipe Pariwisata - komersial
status Juara 4 tingkat nasional tahun 2024
lokasi Gianyar, Gianyar, Bali lingkup kerja Konseptual, Modeling 3D
Merupakan desain sebuah pusat cinderamata pada salah satu tempat wisata di Provinsi Bali. Dengan tema net zero energy building, konsep yang diangkat adalah sustainable yang diwujudkan melalui desain modular dan strategi desain dalam mencapai net zero energy.
Berada pada tempat wisata air terjun di Gianyar, desain ini diwujudkan agar dapat meningkatkan pariwisata lokal serta ekonomi masyarakat sekitarnya. Hal ini dilakukan sebagai respon dari kondisi eksisting tempat cinderamata yang ada hanya sesuai kebutuhan tempat wisata tersebut. Pada desain ini mengusung konsep modular dengan material lokal yang mudah didapatkan, serta menggunakan penghasil energi listrik sendiri dari lokasi air terjun dengan kincir air Harapannya masyarakat dapat dengan mudah dilibatkan pada setiap proses proyek mulai dari pra-konstruksi hingga saat operasionalnya. Serta energi yang dihasilkan dapat dimanfaatkan bagi bangunan pada tempat wisata tersebut selain pada pusat cinderamata ini.

youtu.be/tV0c-KpsEKc

MASYARAKAT
Dampak ekonomi
BUDAYA ALAM
Bali dikenal dengan museum hidup budaya dengan adat istiadatnya yang kental
Bentang alam Bali yang menarik dan khas dengan iklim tropis basah
AIR TERJUN
Pengaruh dalam arsitektur
ADAPTIF
Desain dapat menyesuaikan kondisi lingkungan dan zaman
PUSAT CINDERAMATA

NET ZERO ENERGY BUILDING
Penerapan proses konstruksi hingga operasional bangunan yang impas energi
OFF - GRID PASSIVE DESIGN LOW EMISION MATERIAL
Sistem bangunan yang memiliki sumber daya sendiri untuk penggunaannya Penggunaan material lokal dan bahan yang dapat diperbaharui
penerapan desain pasif dengan pemanfaatan pencahayaan dan penghawaan alami




Struktur yang sederhana serta material dari sekitar lingkungan akan mengurangi emisi pada konstruksinya. Bambu dipilih sebagai material dominan karena keunikannya yang tahan kondisi lembab dan tersebar di seluruh wilayah.





Pemanfaatan modular sebagai konsep konstruksi dapat memanfaatkan para pengrajin hingga masyarakat selain dapat mengurangi dampak emisi secara signifikan yang minim buangan.
Desain pasif memanfaatkan pencahayaan dan penghawaan alami dengan bukaan yang leluasa serta material tidak menghatar panas yang menghasilkan keadaan termal nyaman sesuai kondisi.


Konsep arsitektur tradisional bali diterapkan pada desan dengan konsep asta kosala kosali yang dikenal dengan sistem pengukurannya, selain dengan konsep tri-angga.
Salah kegiatan wisatawan pada pusat cinderamata dapat meningkatkan ekonomi masyarakat sebagai pelaku usaha yang menjajakan cinderamata lokal.


pekerjaan Sayembara warmadewa architecture week
tipe Pariwisata - Publik
status Konsep
tahun 2018
lokasi Denpasar Selatan, Denpasar, Bali lingkup kerja Konseptual, Modeling 3D

Merupakan proyek desain ruang publik yang berada di kawasan wisata pantai membuat desain mendapatkan tantangan tersendiri. Kawasan tersebut merupakan wisata populer untuk menyaksikan matahari terbit. Selain itu, tempat ini juga dijadikan sebagai persinggahan kapal-kapal penyebrangan pulau sekitar. Hal ini membuat area tersebut sebagai tempat mata pencaharian masyarakat sekitar. Namun keadaan dapat berubah ketika ombak pasang tinggi hingga merendam area tersebut seperti yang pernah terjadi beberapa tahun silam. Mempertimbangkan hal-hal tersebut, desain dibuat dengan material yang kokoh, ruang-ruang yang memadai keadaan sekitar, area yang sejuk dan estetis, hingga adanya sistem pengolahan sampah yang baik.





1.Area dagang warga
2.Area santai
3.Area tunggu
4.Loket kapal
5.Area antrean


santai
2.Area tungu


Proses konstruksi area site dilakukan penataan area berupa perkerasan beton, batu alam, kerikil, dan vegetasi.

Berikutnya penempatan tiang-tiang dengan struktur fondasi yang kuat, membuat bangunan menjadi kokoh ketika terjadi bencana seperti air pasang.

Penambahan struktur dan area lantai 2 merupakan penambahan kapasitas, respon kekurangan kapasitas eksiting


Selanjutnya penambahan area loket dan tambahan shading sisi timur yang berfungsi sebagai pemecah angin.





















pekerjaan Sayembara Wiswakharman Expo UGM
tipe Pariwisata - edukasi
status Konsep
tahun 2018
lokasi Keraton,Yogyakarta, DIYogyakarta lingkup kerja Konseptual, Modeling 3D
Lokasi Site
DIYogyakarta

Yogyakarta menjadi tempat yang sering dilanda bencana seperti gempa bumi, erupsi gunung berapi dan sebagainya. Salah satu tujuan dari proyek ini adalah menjadi wadah tempat belajarnya masyarakat terkait kebencanaan tersebut. Maka wujud dari desain ini adalah berupa pusat pembelajaran kebencanaan.
Desain ini berangkat dari konsep kehidupan masyarakat khususnya di lingkungan yogyakarta yakni kelompok masyarakat tradisional dan masyarakat modern. Masing-masing memiliki nilai yang unik dalam masyarakat. Dari hal ini desian mengangkat konsep setengah-setengah (half and half) yang menggabungkan kedua konsep kehidupan tersebut kedalam desain.
Secara bentuk sendiri diambil dari gunungan pada seni pewayangan yang ditransformasi menjadi bentuk 3 dimensi. Karena tema yang diangkat terkait kebencanaan, maka bentuk disimulasikan terkena suatu bencana. Dari sini identitas modern dimasukkan menanggapi isu kebencanaan tadi menjadi suatu bentuk yang unik.
potensi area yang selalu ramai siang-malam
adanya area mati pada sudut kawasan yang kumuh
identitas tradisional lokal indonesia

budaya masyarakat
wilayah dengan potensi bencana tinggi

identitas masyarakat modern

teknologi terbaru

Gunungan pada pewayangan inspirasi bentuk dasar bangunan dengan filosofi sebagai tempat aktivitas masyarakat

Transformasi bentuk dari gunungan menjadi dasar bentuk bangunan pusat pembelajaran kebencanaan

Bangunan yang terkena bencana menunjukkan identitas wilayah yang merupakan kawasan rawan bencana

Aplikasi teknologi modern menanggulangi kebencanaan sebagai elemen bangunan mewakili peradaban modern yang maju
half n half (setengah-setengah)

sarana pembelajaran berupa area belajar

obyek wisata baru bagi wisatawan

sarana sosial berupa area komunal sistem bangunan dengan desain pasif penerapan green builsing dengan energi terbarukan

menimbulkan daya tarik tersendiri bagi pengunjung

sarana edukatif bagi masyarakat sekitar
Visual interior tempat pembelajaran bencana alam mendisplay berbagai pengetahuan dasar terkait kebencanaan




Panel surya sebagai bagian dari sistem energi terbarukan.

Kaca tempat masuknya cahaya
ke dalam ruangan bagian dari sistem pencahayaan alami bangunan.




Kisi-kisi atas bangunan sebagai penangkap angin dalam sistem penghawaan bangunan

Material sirap kayu menampilkan kebudayaan tradisional lokal.
Penggunaan material baja memiliki ketahanan dan fleksibilitas tinggi terhadap gempa.

Bentuk bangunan juga didasari dengan prinsip desain pasif dengan pemanfaatan pencahayaan dan pengudaraan alami
pekerjaan Perancangan arsitektur proyek pembangunan gedung pastoran gereja
tipe Hunian - publik status Operasional
tahun 2022
lokasi Ujung, Parepare, Sulawesi Selatan lingkup kerja Desain perancangan penuh bangunan

Berangkat dari keadaan pastoran eksisting yang sudah usang dan kurang mencukupi kebutuhan kegiatan pastoran yang terus berkembang, diusulkan dilakukan renovasi penuh bangunan gedung pastoran untuk memenuhi kebutuhan saat itu dan kemungkinan kebutuhan masa depan. Saya diberi kesempatan untuk ikut serta dalam proses perencanaan gedung pastoran dan dipercaya untuk melakukan desain perancangan bangunan gedung yang baru.
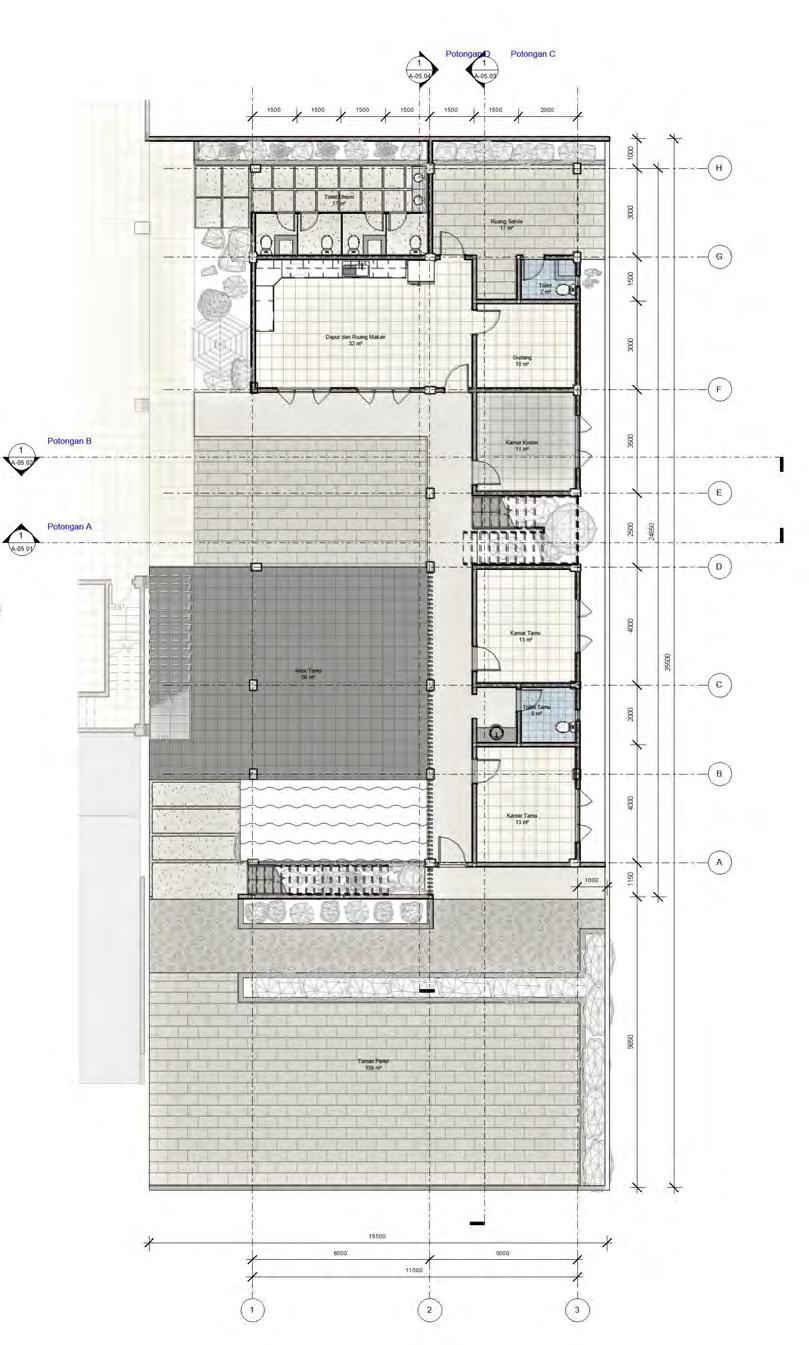
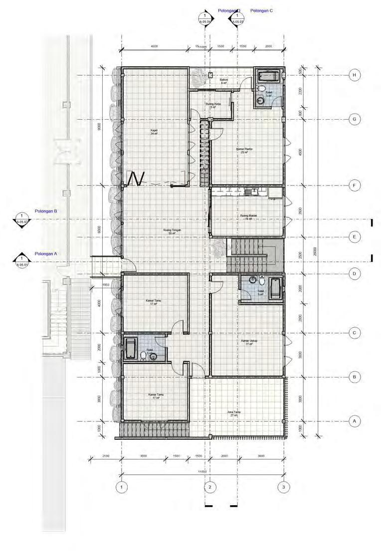
Bangunan gedung yang baru didesain menjawab kebutuhan kegiatan pastoran khususnya khususnya kegiatan non-liturgi serta kegiatan pendukung liturgi. Berdasarkan hal-hal tersebut perlu diciptakan ruang-ruang untuk mewadahi kegiatan tersebut misalnya ruang aula/rapat khusus untuk kegiatan tertutup, kamar tidur untuk menampung tamu penting pastoran, area komunal warga gereja, hingga kebutuhan harian pastoran. Secara khusus, tim pembangunan pastoran saat itu meminta desain bangunan sederhana yang tidak mencolok mengingat focal point area itu adalah bangunan gereja itu sendiri.











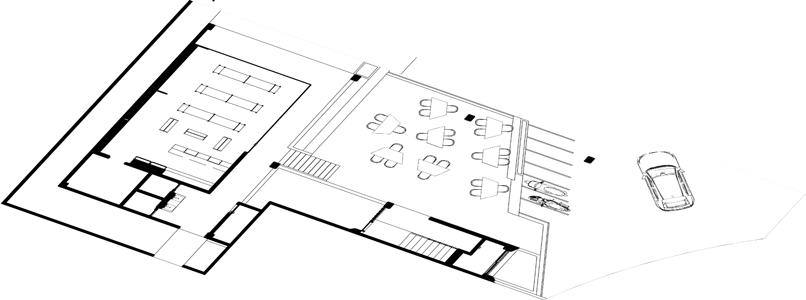
(1) Area komunal lantai dasar pastoran, terhubung langsung dengan lantai dasar bangunan gereja. Dapat berfungsi sebagai area tambahan umat ketika ibadah hari raya.
(2) Desain area tamu terbuka digunakan untuk menyambut tamu umat oleh pastor diluar kegiatan liturgi. Selain itu juga dapat dipakai sebagai wadah kegiatan kecil-kecilan yang biasa dilakukan di gereja.
(3) Letak toilet umum berada jauh di belakang untuk privasi namun tetap mudah dijangkau. Penhawaan pada area ini dibuat terbuka langsung untuk menghindari kelembaban yang ada.
(4) Pada lantai 2 terdapat ruang khusus berupa kapel tempat doa pibadi pastor yang dapat juga difungsikan sebagai aula untuk kegiatan tertutup pastoran.
(4) Visualisasi bagian belakang bangunan bentuk atap split untuk memberikan akses pencahayaan untuk ruang di dalamnya. 1









