Skip to main content

IoArch 122 Mar/Apr 2026

Page 1


ioArch

Anno 21 | 2026 Marzo | Aprile euro 12,00 ISSN 2531-9779

STORIE DI DESIGN

THE PROJECT OF THINGS

ELEMENTS

OUTDOOR LIVING

Scopri di più su: cosentino.com

Collezione Nomak. Serene Beauty.

Continuità visiva. Progettato per durare. Nomak definisce un senso contemporaneo di equilibrio attraverso la tecnologia Dekton. Progettata per portare continuità e calma a uno spazio tramite luce e proporzione, la sua superficie presenta venature sottili — dettagli delicati, linee sobrie e sfumature accuratamente controllate — che aggiungono profondità e carattere senza mai predominare.

Bellezza raffinata.
Continuità visiva. Design che dura nel tempo.
L213 armchairs Project: New Deloitte headquarters at Fiera del Levante Bari, Italy
Architectural project: Esseelle Associati

Salone del Mobile. Milano 21-26 April 2026

Fiera Milano, Rho Hall 24 | Stand D34

|

LAMM Srl Headquarters / Showroom Via Verdi 19/21 San Secondo P.se (PR) T. +39 0521 877511 | info@lamm.it lamm.it

© Nicola Cavallera
Fotografia

SOMMARIO

ioArch 122

DESIGNCAFÈ

12 San Servolo | VID. VENICE INNOVATION DESIGN

16 Leggere architetture #9 | MATTEO PERICOLI

18 Anselm Kiefer. Le Alchimiste | PALAZZO REALE. MILANO

20 Metafisica/Metafisiche | UN SECOLO IN DUEMILA PASSI. MILANO

24 Hit List | L’ARTE DEGLI ANNI ‘80 A TRENTO

28 Gianfranco Frattini | A CENT’ANNI DALLA NASCITA

30 Museo del Design Italiano | TRIENNALE MILANO

32 Ruth Asawa. Retrospettiva | GUGGENHEIM BILBAO

34 Sguardi sull’Africa | PALAZZO GOTICO. PIACENZA

36 Hella Jongerius. Whispering Things | VITRA DESIGN MUSEUM

38 Giovanni Gastel. Oltre la fotografia | PALAZZO CITTERIO. MILANO

40 Serpentine Pavilion 2026 | LANZA ATELIER

42 Nulla di preciso | FONDAZIONE QUERINI STAMPALIA. VENEZIA

46 Frank Gehry | LE STORIE DI LPP

210 Fortunato Depero | CASA MUSEO BAGATTI VALSECCHI. MILANO

116 | 198 Libri

REPORT

di Aldo Norsa

48 Progettare per lo Sport | ARCHEA, STUDIO IN.PRO, POPULOUS SPORTIUM, GAU ARENA, ATI PROJECT

WORK IN PROGRESS

60 Milano | L22. NUOVO CENTRO DI PRODUZIONE RAI

62 Milano | COVIVIO E CARLO RATTI. VITAE

64 Busto Arsizio | GRUPPO RINA. GRANDE OSPEDALE MALPENSA

66 Sud Tirolo | PETER PICHLER. KULTURGÜTERDEPOT

68 Marzabotto | RIGENERAZIONE EX-CARTIERA BURGO

70 Roma | SEDE MINISTERO DELL’AMBIENTE

72 Spoleto | ENZO EUSEBI. RIGENERAZIONE DEL CENTRO STORICO

74 Amburgo | BIG. TEATRO DELL’OPERA

76 Oisterwijk | OMA E CIRCLEWOOD. CENTRO RICHIEDENTI ASILO

78 Doha | FRIDA ESCOBEDO. SEDE MINISTERO DEGLI ESTERI

80 Taichung, Taiwan | MVRDV. TORRE RESIDENZIALE VERDE

82 Busan, Corea del Sud | SNØHETTA. TEATRO DELL’OPERA

FOCUS

84 Mario Cucinella direttore artistico | ESTEL

86 Lo Showroom della Luce | iGUZZINI

88 Ytong per casa Roccamare | XELLA

90 Isotec. Facciata ventilata | BRIANZA PLASTICA

92 Profili a taglio termico per un loft a Monza | EKU

94 Chipperfield. WaltherPark di Bolzano | FORME D’ACQUA

STORIE DI DESIGN

96 The Project of Things

98 Processo, funzione, identità | ODO FIORAVANTI

100 Il progetto come processo aperto | FEDERICO FIERMONTE

102 Quando la foma nasce dalla materia | JORGE PENADÉS

SOMMARIO io Arch 122

LPP ARCHITETTI ITALIANI

I Profili di Luigi Prestinenza Puglisi

104 Dodi Moss

ORGANICO MECCANICO di Carlo Ezechieli

117 Organismi ibridi

118 Biomimicry. La natura come mentore | DAYNA BAUMEISTER

120 Aguahoja. Materiale, processo, dissoluzione | NERI OXMAN

128 Forme secondo natura | ACHIM MENGES

DOSSIER VERDE

134 Il paesaggio come progetto

136 Una domanda ai protagonisti del Verde

141 La trasformazione inizia dalla periferia | STUDIOSPAZIO

142 Verde accessibile | OPENFABRIC

144 Kensington. Sloane Street | JOHN MCASLAN

146 Il giardino del museo Rovati | GREENCURE LANDSCAPING

148 Rigenerazione a Milano Certosa | PARCNOUVEAU E REALSTEP

150 Monterosa 91 | AG&P GREENSCAPE

Direttore editoriale

Antonio Morlacchi

Direttore responsabile

Sonia Politi

Advisor

Giulia Floriani

In copertina Hella Jongerius Angry Animal (Erica) 2025. ©Jongeriuslab.

Contributi

Virginia Bodini, Luisa Castiglioni

Carlo Ezechieli, Isabella Giola

Roberto Malfatti, Giulia Mura

Aldo Norsa, Matteo Pericoli, Mario Pisani, Luigi Prestinenza Puglisi

Elena Riolo, Alessandro Scandurra

Grafica e impaginazione

Alice Ceccherini

Marketing e Pubblicità Elena Riolo elenariolo@ioarch.it

Editore Font Srl Via Siusi 20/a 20132 Milano Tel 02 2847274 redazione@ioarch.it www.ioarch.it

RESIDENZE

152 L’immaginario dell’abitare | ALESSANDRO SCANDURRA

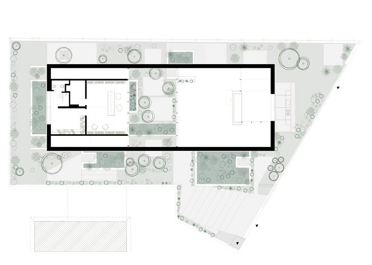
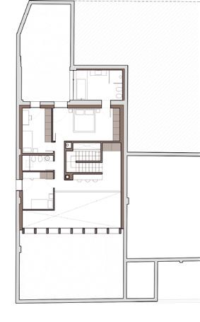
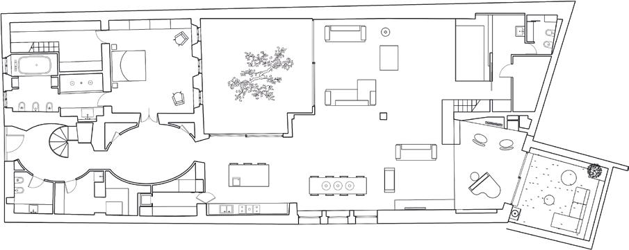
154 Loft A. Lo spazio domestico come campo percettivo | CARLO DONATI

160 Casa in Messico | FERNANDA CANALES

164 Casa Vivaio. Stessa identità nuove funzioni | AMBIENTEVARIO

168 Casa a Lendinara. Un’abitazione aperta alla luce | QB ATELIER

172 Villa Arà. Tra minimalismo e tecnologia | GIOVANNI AQUILA

ARCHIWORKS

176 Un centro integrato nel paesaggio | KUP-ARCH

184 Deloitte. Un nuovo polo di innovazione | ESSEELLE

190 Zurich. Ridisegnati gli interni di un palazzo storico | TÉTRIS

194 Sisal. L’ufficio come progetto sociale | BIA-@RCH

ELEMENTS

a cura di Elena Riolo

199 Outdoor Living

Fotolito e stampa Errestampa

Prezzo di copertina euro 12,00 Arretrati euro 18,00

Abbonamenti (6 numeri) Italia euro 72,00 - Europa euro 112,00 Resto del mondo euro 180,00 abbonamenti@ioarch.it

Reg. Tribunale di Milano n. 822 del 23/12/2004

Pagamento online su www.ioarch.it o bonifico a Font Srl - Unicredit Banca IBAN IT 68H02 008 01642 00000 4685386

Periodico iscritto al ROC

Registro Operatori della Comunicazione n. 34540

Spedizione in abbonamento postale 45% D.L. 353/2003 (convertito in legge 27.02.2004 n.46) art. 1

comma 1 - DCB Milano ISSN 2531-9779

HORIZON BENCH

Il bench Horizon si distingue per il suo design audace e innovativo, che rompe gli schemi delle scrivanie tradizionali. Il sostegno laterale in vetro, posizionato strategicamente, crea un’illusione ottica: la scrivania uttua leggermente, conferendo allo spazio un’eleganza senza pari. Le gambe tradizionali sono eliminate, sostituite da lastre di vetro trasparente, che contribuiscono ulteriormente a questa sensazione di leggerezza e modernità. Questo approccio unico al design rende il bench Horizon un vero e proprio pezzo d’arte funzionale, perfetto per ambienti contemporanei.

SAN SERVOLO, VENEZIA

VID. VENICE INNOVATION DESIGN

SULL’ISOLA AL CENTRO DELLA LAGUNA

IL 23 E 24 MAGGIO SAN SERVOLO INAUGURA LA

NUOVA TERRAZZA SULLA

LAGUNA E OSPITA LA

SETTIMA EDIZIONE DI VID

VENICE INNOVATION DESIGN

CON LA PRESENTAZIONE

DEL PROGETTO PERFECT

TOILETS

Prendendo il vaporetto della linea 20 che parte ogni mezz’ora da San Marco, in pochi minuti (8 o 10, a seconda della marea) si raggiunge San Servolo, nella laguna veneziana, una delle isole più grandi della città.

Dapprima monastero, poi ospedale militare della Serenissima e infine, dall’Ottocento fino alla chiusura nel 1978, sede del manicomio di Veneto, Dalmazia e Tirolo, l’isola rappresenta oggi una realtà interessante e tra le più vitali della città. Attraverso la sua società in-house San Servolo Srl, la Città metropolitana di Vene-

zia, proprietaria dell’isola, ha dato un impulso innovativo al destino del complesso, mantenendolo pubblico e a disposizione della cittadinanza. Quindi non un’isola privata, non un altro albergo, ma un centro culturale, congressuale e di formazione di rilievo internazionale.

La società ha il compito di custodire e valorizzare l’isola e di migliorare le funzionalità del complesso, che dispone di oltre 20 sale congressuali (da 20 a 250 posti), spazi polivalenti in grado di accogliere mostre, esposizioni e banchetti post congress, e di più di 160 camere, disposte in

cinque palazzine distribuite in un meraviglioso parco divenuto parco d’arte grazie alla ricca collezione di opere d’arte contemporanea esposte. Completano l’offerta l’ottimo ristorante Robe da Matti e una accogliente caffetteria, aperti all’utenza dell’isola e angolo di tranquillità per i veneziani.

L’isola di San Servolo ospita ogni anno oltre duecento eventi e congressi e numerose mostre e iniziative culturali. In occasione delle esposizioni della Biennale di Venezia gli spazi dell’isola accolgono esposizioni collaterali e alcuni padiglioni stranieri: quest’anno ad esempio, per la sua prima partecipazione alla 61. Esposizione Internazionale d’Arte, sarà installato qui il padiglione della Guinea.

Nel corso del tempo la società ha investito molte risorse, proprie e in parte del Socio Unico, per ammodernare oltre il 50 per cento delle camere del Centro Soggiorno e migliorare le dotazioni

In alto, una veduta dell’isola e l’auditorium da 240 posti, la più grande delle sale convegni. A sinistra l’anfiteatro progettato da Mario Cucinella e inaugurato nel 2025. Foto courtesy San Servolo Srl.

delle sale congressuali. I vari e numerosi interventi, sostenuti anche da apporti privati, sono stati sempre portati avanti nel rispetto dell’ambiente.

Strumento operativo e sistema relazionale virtuoso creato per sostenere lo sviluppo dell’isola è l’evento Vid - Venice Innovation Design, che quest’anno giunge alla settima edizione, in programma il 23 e il 24 maggio 2026.

Si tratta di un appuntamento all’insegna della sostenibilità che vede protagonisti architetti e imprenditori, designer, accademici, innovatori, rappresentanti delle aziende del settore e del mondo della comunicazione che animano dibattiti e tavole rotonde, in un clima che facilita scambi relazionali. Vid è l’occasione annuale per comprendere l’evoluzione del processo di riqualificazione degli spazi dell’isola che gradualmente si concretizza, come i pannelli solari collocati sulle pensiline, il ‘pavimento fotovol-

taico’ e l’anfiteatro Un Fiore a San Servolo progettato da Mario Cucinella, costruito e inaugurato nel 2025.

In questa edizione, il programma di Vid affronta il tema dell’utilizzo della risorsa idrica, con l’ingresso di San Servolo Srl come case-history nel progetto Interreg UE che coinvolge diverse nazioni dell’area del Mediterraneo orientale. Verrà poi illustrato il progetto nazionale Perfect Toilets – 100 progetti per 100 città, che prevede anche la presentazione di un’installazione pilota sviluppata dall’architetto Massimo Roj (Progetto Cmr) che sarà collocata nel parco dell’isola di San Servolo .

Vid 2026 sarà anche l’occasione per presentare novità significative che arricchiranno l’offerta di San Servolo con l’inaugurazione di ulteriori sei camere del Centro Soggiorno e Studi, riammodernate in chiave sostenibile. Soprattutto, verrà realizzata la nuova terrazza sulla laguna sud di Venezia dove i partecipanti a Vid ceneranno la sera di sabato 23 maggio. Altri relatori presenteranno inoltre i loro punti di vista nel campo del light design e della cura del paesaggio e del verde.

Oltre alla società conduttrice, sull’isola di San Servolo hanno sede anche la Venice International University, la Fondazione Centro Sperimentale di Cinematografia, il Campus Mana Design & Métiers d’Art, la Neuroscience School of Advanced Studies e il Sea Beyond Ocean Literacy Center, co-progettato dalla Commissione Oceanografica Intergovernativa dell’Unesco e da Cra - Carlo Ratti Associati e sostenuto dal Gruppo Prada.

Ciò che lega e valorizza l’azione degli enti che hanno scelto di insediarsi a San Servolo è l’attenzione verso la competenza, intellettuale e pratica, proposta con cura e attenzione al mondo giovanile. Insieme, questi enti saranno chiamati domenica 24 maggio, in un incontro pubblico, a presentare il ‘Futuro Condiviso’ dell’isola, partendo dai loro progetti formativi, iniziative culturali e incontri internazionali.

Al centro del bacino di San Marco, San Servolo è l’isola che mette in rete innovazione e design, arte e professionalità, ospitalità e cultura ■

Leggere architetture

Architetto, autore, disegnatore e insegnante, Matteo Pericoli vive a Torino dove nel 2010 ha fondato il Laboratorio di architettura letteraria, uno strumento in forma di workshop che utilizza il potenziale narrativo dell’architettura per esplorare la struttura delle storie. I risultati sono raccolti nel suo libro Il grande museo vivente dell’immaginazione (Il Saggiatore, 2022). www.lablitarch.com

J.D. Salinger #9

Un giorno ideale per i pescibanana di

Come è fatta l’architettura di un romanzo? Come fanno a stare in piedi le storie? La lettura è un atto creativo e siamo noi, con la nostra sensibilità e la nostra esperienza, a creare quelle strutture che ci permettono di esplorare e abitare liberamente le storie. Ogni struttura quindi non è che una tra le infi nite possibili. In questa puntata, un’interpretazione architettonica del racconto di Salinger, apparso la prima volta sul New Yorker nel 1948.

L’edificio è composto da due volumi, uno dei quali leggermente ruotato rispetto all’altro e posizionato su un’altura a strapiombo sul mare. L’atrio è ampio e trasparente, regolare e luminoso: di giorno è inondato di luce naturale, di notte esplode di luce propria. Tutto appare prepotentemente chiaro, quasi accecante — come la conversazione telefonica tra Muriel e sua madre, dove ogni dettaglio è espresso senza però essere davvero compreso.

Il secondo spazio è invece privo di finestre e si proietta oltre la scogliera, verso il vuoto.

Passato l’atrio, si entra con cautela – quella timorosa cautela che proviamo non appena Seymour incontra la piccola Sybil. Il bagliore dell’ingresso fa sì che ora tutto

sembri più buio e impenetrabile di quanto ci si aspetti. Basta poco, infatti, a far abituare lo sguardo: pian piano i nostri occhi scorgono una sala infinitamente articolata, piena di nicchie, corridoi e stanze illuminate con luce morbida e calda. Un luogo rassicurante, dove il dialogo e il gioco tra Seymour e Sybil trovano spazio per prendere vita e svilupparsi. Il profilo della parte ipogea di questo grande salone sembra espandersi, non corrisponde al profilo dei muri fuori terra.

All’estremità sospesa sul mare si apre l’unica enorme finestra, nel pavimento. Da lì si vede solo il vuoto, l’abisso – il gesto inatteso e mostruoso di Seymour, quel colpo di pistola che nessuno poteva prevedere, il punto in cui tutto precipita.

Un’installazione a Palazzo Reale. Foto Ela Bialkowska.

Anselm Kiefer. Foto Paolo Pellegrin.

ANSELM KIEFER

LE ALCHIMISTE A PALAZZO REALE

Aperta a Palazzo Reale di Milano la mostra Kiefer. Le Alchimiste, un’esposizione site-specific – curata da Gabriella Belli – di 42 imponenti teleri concepiti esattamente per la drammatica bellezza della Sala delle Cariatidi, così chiamata per le figure femminili scolpite che sorreggevano la balconata perimetrale dell’ambiente e gravemente danneggiate dai bombardamenti della seconda guerra mondiale.

I grandi dipinti, concepiti come un’opera unitaria e profondamente simbolica, danno voce a Caterina Sforza, scienziata e condottiera, e con lei a molte altre donne alchimiste per lo più dimenticate dalla storia ufficiale, intrecciando i temi centrali della ricerca dell’artista: mito, storia, memoria collettiva, identità, distruzione e rigenerazione.

La pittura diventa essa stessa linguaggio alchemico. Ogni quadro si offre come atto di resur-

rezione: un volto che emerge, un racconto che affiora, la materia che quasi alchemicamente si trasfigura. Kiefer invita così il visitatore a immergersi in un percorso emotivamente coinvolgente, quasi iniziatico.

L’allestimento è accompagnato da un bel catalogo edito da Marsilio Arte.

Kiefer. Le Alchimiste, prodotta da Comune di Milano-Cultura, Palazzo Reale e Marsilio Arte con il contributo di Gagosian e Galleria Lia Rumma, è sostenuta dai main sponsor Unipol e Banca Ifis ■

Anselm Kiefer

KIEFER. LE ALCHIMISTE

Palazzo Reale, Milano 7 febbraio | 27 settembre 2026

Everybody sits.

A destra, Aldo Rossi. Il gioco della morte, 1973. Cimitero di San Cataldo, Modena, 1971-1978. Con Gianni Braghieri. ©Estate of Aldo Rossi. Bridgeman Images, courtesy Fondazione Aldo Rossi. Sotto, William Kentridge. Videoinstallazione More Sweetly Play The Dance. Courtesy Galleria Lia Rumma Milano/Napoli.

MILANO, METAFISICA/METAFISICHE UN SECOLO IN DUEMILA PASSI

Duemila passi – nota l’assessore alla cultura milanese Tommaso Sacchi – separano le sedi del grande progetto espositivo diffuso Metafisica/Metafisiche, curato da Vincenzo Trione, che propone un’ampia riflessione sul movimento artistico fondato a Ferrara nel 1917 da Giorgio de Chirico, Alberto Savinio, Carlo Carrà e Filippo de Pisis. Cuore del progetto è la grande mostra Metafisica/Metafisiche. Modernità e malinconia a Palazzo Reale, che riunisce oltre 400 opere, docu-

menti e oggetti in un percorso che ricostruisce la nascita e gli sviluppi della pittura metafisica, ma soprattutto indaga la straordinaria diffusione delle sue iconografie e della sua ‘maniera di vedere’, che hanno influenzato artisti e linguaggi diversi nel corso del xx e xxi secolo. Accanto ai protagonisti storici compaiono autori che – in Europa e in America – ne hanno raccolto e reinterpretato l’eredità in molteplici ambiti, dalla pittura alla fotografia, dall’architettura al design, dal cinema alla moda, dal tea-

tro alla musica. «Episodi che sembrano non avere niente in comune – spiega il curatore – nati dall’immaginazione di artisti tra loro distanti dal punto di vista generazionale, culturale e linguistico. E tuttavia, pur se per sentieri segreti, in maniera non sempre del tutto intenzionale, queste voci sono accomunate da una specifica postura. Una sorta di inconfondibile manière de voir, ispirata a un’esperienza poetica laterale, clandestina e forse marginale, maturata più di un secolo fa in una città di provincia, posta fuori

dalla storia». Forse perché, prima che un movimento artistico, la Metafisica è un’attitudine dello sguardo: una maniera di interrogare la realtà capace ancora oggi di generare immagini, pensieri e immaginari.

Il progetto si sviluppa poi in altri tre capitoli. Al vicino Museo del Novecento la mostra Milano Metafisica approfondisce il rapporto di de Chirico, Savinio e Carrà con la città, con un focus dedicato al romanzo di Savinio Ascolto il tuo cuore, città, che Mimmo Paladino reinterpreta in una serie di disegni.

Nel caveau delle Gallerie d’Italia la mostra Gianni Berengo Gardin. Lo studio di Giorgio Morandi presenta un ciclo di fotografie realizzate nel 1993 nell’atelier bolognese del pittore. Infine, a Palazzo Citterio, la Grande Brera ospita una videoinstallazione sonora e una serie di sculture in cartone di William Kentridge che reinterpretano poeticamente gli oggetti quotidiani protagonisti delle nature morte di Morandi, in ideale dialogo con le opere del maestro conservate nel museo.

Metafisica/Metafisiche è promossa dal Ministero della Cultura e dal Comune di Milano e prodotta con Electa ■

METAFISICA/METAFISICHE

Palazzo Reale e Museo del Novecento fino al 21 giugno. Gallerie d’Italia fino al 6 aprile. Palazzo Citterio fino al 5 aprile.

In alto, Arduino Cantàfora Domenica, 2016 Collezione Antonio Colombo. Milano.

A destra. Perugia, Centro Direzionale di Fontivegge (Aldo Rossi, 1982). Foto Archivio Gabriele Basilico, 2007.

HIT LIST 80 A TRENTO L’ARTE DEGLI ANNI OTTANTA

La Galleria Civica di Trento e il Mart presentano Hit List 80, progetto espositivo dedicato alla produzione culturale trentina degli anni Ottanta.

La mostra, a cura del collettivo transdisciplinare Campomarzio con Margherita de Pilati e Gabriele Lorenzoni, è realizzata in collaborazione con l’Archivio di Deposito del Comune di Trento, l’Atlante dell’architettura trentina 1900-2009, il Circolo Trentino per l’Architettura Contemporanea (Citrac) e la Fondazione Museo Storico del Trentino. Prosecuzione ideale della mostra Almanacco 70 (2017), Hit List 80 affronta la complessità del decennio mettendone in luce le ambiguità

In alto. Italian dream to NY Umberto Postal, anni Ottanta. Collezione privata Patrizia Gilli. Trento. Carlton, 1981. Ettore Sottsass junior. Courtesy Memphis Milano.

storiche e sociali. A quarant’anni di distanza emerge con maggiore nitidezza la natura contraddittoria di un periodo segnato da un intenso dialogo interdisciplinare e da una profonda ridefinizione del rapporto tra immagine, oggetto e spazio.

Anche il campo del design riflette il clima culturale del postmodernismo italiano, animato

da figure come Ettore Sottsass, Alessandro Mendini e Andrea Branzi, il cui pensiero ha influenzato il dibattito progettuale diffuso anche nel contesto trentino.

Il decennio riveste un’importanza cruciale anche per il territorio trentino, inevitabilmente attraversato da fenomeni globali e al tempo stesso protagonista della formazione dell’at-

EXTERNO SKUDO | Golden woodco.it

Dall’alto in senso orario.

Senza titolo. Cartella ‘il museo e la sua immagine’. Diego Mazzonelli 1982. Mart. Donazione Gian Leo Salvotti de Bindis. Accanto. Baykal, Marco Zanini 1982. Courtesy Memphis Milano. Edificio commerciale e residenziale a Martignano Gian Leo Salvotti de Bindis maquette, 1982. Mart.

tuale sistema dell’arte contemporanea. Nel 1981, presso Palazzo delle Albere a Rovereto, nasce infatti uno spazio dedicato all’arte moderna che dal 1987 assume il nome di Mart (la nuova sede museale, progettata negli anni Ottanta da Mario Botta in collaborazione con Giulio Andreolli, viene inaugurata solo a fine 2002).

Parallelamente, dal 1989 prendono avvio le attività della Galleria Civica di Trento, inizialmente in forma itinerante e successivamente negli spazi di via Belenzani, dove oggi trovano una ricomposizione le opere e le esperienze che hanno segnato quel decennio.

Tra i protagonisti emerge Umberto Postal, figura centrale della scena trentina e nazionale. Postal concepisce l’opera non come oggetto statico, ma come dispositivo relazionale tra esperienza visiva e tecnologia: mettendo in dialogo immagini e supporti elettronici, anticipa le riflessioni sulla diffusione dei media digitali che diventeranno centrali negli anni successivi.

Nel campo del design si distingue Marco Zanini, mentre sul fronte architettonico emergono

i progetti di Mario Basso, Giulio Cristofolini, Sergio Giovinazzi e Gian Leo Salvotti de Bindis.

Il catalogo della mostra, edito dal Mart, include contributi dei curatori Margherita de Pilati e Gabriele Lorenzoni, affiancati da saggi di studiosi e professionisti del settore. Il programma espositivo è accompagnato da una serie di iniziative collaterali: laboratori per bambini e adulti, incontri di approfondimento e tre passeggiate architettoniche che guideranno il pubblico alla scoperta di alcuni edifici significativi della città di Trento ■

A NEVER ENDING STORY

Per Bene, sostenibilità significa che ogni elemento di arredo può avere una nuova vita, più e più volte. COOMO rende possibile scrivere una nuova storia attraverso le generazioni. La nuova generazione di arredi.

Per l’intero anno

lo Studio/Archivio Gianfranco Frattini

curato dai figli

Emanuela e Marco promuove un programma di mostre eventi, installazioni riedizioni e nuove pubblicazioni che ne ripercorrono l’opera e ne riattivano l’eredità progettuale

GIANFRANCO FRATTINI L’EREDITÀ A CENTO ANNI

DALLA NASCITA

Il 2026 segna il centenario dalla nascita di Gianfranco Frattini, architetto e designer tra i più raffinati e silenziosamente coerenti del secondo Novecento italiano. Per l’intero anno, lo Studio/Archivio Gianfranco Frattini promuove un programma di mostre, eventi, installazioni, riedizioni e nuove pubblicazioni che ne ripercorrono l’opera e ne riattivano l’eredità progettuale, riportando il suo lavoro al centro del dibattito contemporaneo.

Architetto di formazione, laureato al Poli-

tecnico di Milano, Frattini ha attraversato con naturalezza scale, linguaggi e materiali: dall’architettura d’interni al mobile, dal lighting design alla produzione industriale, fino all’artigianato più colto. Figura centrale della scena milanese del dopoguerra, ha contribuito alla nascita di alcune delle istituzioni più rilevanti del design italiano: è tra i fondatori dell’Adi e negli anni Ottanta entra nel comitato direttivo della Triennale di Milano. Come designer collabora con alcune delle

A sinistra. Tavolo Kyoto. Sotto, lo studio. Posate Ricci Argentieri e un ritratto di Gianfranco Frattini. Courtesy Studio Archivio Gianfranco Frattini.

Sotto. Mobile contenitore Serie 500 e tavolo 513 per Bernini. Poltrona Agnese per Cassina, Tacchini.

Courtesy Studio Archivio Gianfranco Frattini.

aziende più significative del settore, tra cui Artemide, Cassina, Fantoni, Knoll e Molteni & C. Nella sua carriera firma inoltre progetti di interior design in contesti molto diversi tra loro, come l’Hotel Hilton di Tokyo e Villa Rossini in Brianza, dimostrando una straordinaria capacità di adattare il proprio linguaggio a culture e scale differenti.

Profondo conoscitore del legno e promotore dell’artigianato di qualità, collabora a lungo con il maestro ebanista Pierluigi Ghianda,

dando vita a oggetti che uniscono rigore progettuale e sapienza manuale.

Tra le iniziative di questo importante anniversario figura anche la pubblicazione del volume Gianfranco Frattini Designer, catalogo ragionato che restituisce una lettura critica e aggiornata del suo lavoro nell’ambito del design. Il libro mette in evidenza un pensiero progettuale capace di tenere insieme industria e bottega, sobrietà e sperimentazione, innovazione tecnica e attenzione al dettaglio.

Il centenario non rappresenta soltanto un momento celebrativo, ma un’occasione per rileggere l’opera di Frattini alla luce delle istanze contemporanee: sostenibilità, durata, qualità dei materiali e centralità dell’artigianato tornano oggi temi urgenti. In questo senso, la sua ricerca – discreta ma rigorosa – si rivela straordinariamente attuale, confermando come il progetto possa essere al tempo stesso misura, cultura e responsabilità ■

La mostra ripercorre la storia del design italiano attraverso una scansione temporale e cinque sezioni di approfondimento completate da installazioni site-specific con cui i visitatori possono interagire.

MUSEO DEL DESIGN ITALIANO

DI TRIENNALE MILANO

Un nuovo percorso espositivo del Museo del design italiano di Triennale Milano – a cura di Marco Sammicheli e Marilia Pederbelli –racconta la storia delle sperimentazioni e delle trasformazioni del design italiano dalla fine degli anni Venti del Novecento all’inizio del Duemila con più di 400 tra oggetti, progetti e documenti, anche grazie a nuove acquisizioni. Lungo il percorso, una linea del tempo che ripercorre i principali eventi politici, economici e sociali accompagna i visitatori.

Il pubblico è invitato a esplorare anche cinque approfondimenti tematici trasversali, che spaziano da questioni estetiche e formali a riflessioni metodologiche sul progetto e sui suoi strumenti di comunicazione, concepite insieme a Mammafotogramma come installazioni site-specific dedicate ai seguenti temi: decorazione, riviste di settore, persona, autoprogettazione e leggerezza.

L’area dedicata alla decorazione propone fram-

menti decorativi tratti da oggetti, disegni e fotografie conservati nelle collezioni e negli archivi di Triennale, presentati in una libera interazione tattile. La sezione dedicata alle riviste, oltre a esporre numerosi esempi di magazine italiani e internazionali, include una videoanimazione che illustra le caratteristiche fondamentali della grafica editoriale.

La zona persona è attraversata da progetti per la moda e gli accessori e ospita un’installazione interattiva che richiama il celebre gioco Gira la moda, diffuso negli anni Ottanta.

L’autoprogettazione viene analizzata dal punto di vista della progettazione non umana, attraverso un algoritmo in grado di attivare un processo generativo che compone automaticamente arredi.

Infine, la sezione leggerezza invita il visitatore a prendere alcuni oggetti e a posarli sul piatto di una bilancia, per confrontarne il peso con quello della Superleggera di Gio Ponti ■

MUSEO DEL DESIGN ITALIANO Triennale Milano Dal 7 febbraio 2026

SALONE DEL MOBILE

PAD 24 - STAND C16-D23

21-26 APRILE 2026

Fiera Milano - Rho

Dall’alto in senso orario.

Senza titolo (AB.029 Forma continua all’interno di una forma) 1956.

Senza titolo (BMC.52 Ballerini), 1948. Foto courtesy Musei Belle Arti di San Francisco.

Senza titolo (S.046a-d, Gruppo di quattro firme a due lobi sospese) 1961. Foto Laurence Cuneo. Ruth Asawa in un ritratto del 1954. Immagine Nat Farbman/The Life Picture Collection/Shutterstock.

Tutte le opere ©2026 Ruth Asawa Lanier Inc. Courtesy David Zwirner.

RUTH ASAWA

RETROSPETTIVA AL GUGGENHEIM DI BILBAO

Fino al 13 settembre il Museo Guggenheim Bilbao dedica un’importante retrospettiva all’artista californiana Ruth Asawa (19262013). Articolato in dieci sezioni, il percorso espositivo ripercorre una carriera iniziata negli anni Cinquanta rivelando ampiezza e profondità di un lavoro che sfida la tradizionale distinzione tra astrazione e rappresentazione e che è sempre stato strettamente connesso con tutti gli aspetti della sua vita di artista («la mia casa era ed è il mio studio», diceva), insegnante e sostenitrice delle arti.

Caratterizzano la ricerca di Asawa le sculture sospese in filo metallico intrecciato, che in mostra dialogano con calchi in argilla e bron-

zo, origami, dipinti, schizzi e stampe. Il linguaggio di Asawa si può riassumere nell’idea di «forma continua all’interno di una forma, una forma al tempo stesso dentro e fuori».

Le opere in filo metallico, che prendono avvio da un nucleo floreale, stellato o geometrico, si sviluppano progressivamente verso l’esterno seguendo «ciò che il filo metallico impone».

Attraverso questa pratica, Asawa indagava i concetti di trasparenza, continuità e relazione con lo spazio, dando vita a composizioni leggere ma strutturalmente complesse, ancor oggi di straordinaria attualità.

Ogni sezione della mostra approfondisce una specifica fase della sua vita, mettendo in luce il

contesto storico e l’ambiente in cui Asawa operava e mostrando come questi elementi abbiano influenzato la sua visione artistica. Realizzata in collaborazione con il museo d’arte moderna di San Francisco e il MoMA di New York, Ruth Asawa: Retrospettiva è curata da Janet Bishop e Cara Manes insieme alla curatrice del Guggenheim Bilbao Geaninne Gutiérrez - Guimarães ■

Ruth Asawa RETROSPETTIVA

Museo Guggenheim. Bilbao. Spagna 19 marzo | 13 settembre 2026

Dall’alto in senso orario. Ibrahim Ballo, Le porteur de masque. Courtesy Trium Gallery, Monza.

Chaïbia Talal, Senza titolo, anni Ottanta Collezione Giglio.

Zanele Muholi

Nomthandazo (Colei che prega) Orani. Courtesy Collezione 54.

SGUARDI SULL’AFRICA

UNA RACCOLTA IN QUATTRO SEZIONI A PIACENZA

Fino al 4 maggio, Palazzo Gotico di Piacenza ospita la mostra Sguardi sull’Africa, un viaggio nella produzione artistica del continente africano nell’ultimo secolo, a cura di Paolo Giglio e Samuele Menin. Promossa dall’Assessorato alla Cultura del Comune di Piacenza, l’esposizione è stata realizzata grazie ai prestiti della Collezione Giglio di Piacenza e della Collezione 54 di Rosario Bifulco.

La rassegna comprende oltre 200 opere e manufatti di diverso genere, suddivisi in quattro sezioni principali: Oggetti e statue rituali, Pittura dal Marocco, Arte contemporanea africana e Giovani voci d’Africa.

La prima sezione nasce dalla passione di un docente dell’Università della Sorbonne di Parigi che durante i suoi viaggi in Congo, Mali, Gabon, Ghana e Nigeria ha collezionato più di 150 oggetti tra maschere, statue e complementi d’arredo, confluiti successivamente nella Collezione Giglio. Pittura dal Marocco, come suggerisce il titolo,

raccoglie la produzione artistica dello Stato nordafricano, concentrandosi su autori attivi dagli anni Cinquanta a oggi.

La Collezione 54, da cui provengono le opere della terza sezione, comprende dipinti e lavori di artisti africani o legati alla diaspora, raccolti nella sede di Milano da oltre trent’anni.

Il percorso espositivo si conclude con Giovani voci d’Africa, sezione dedicata ad artisti emergenti che hanno l’occasione di presentare e far conoscere il proprio lavoro.

L’allestimento è stato curato dallo studio di architettura milanese Fosbury Architecture. L’evento è accompagnato da incontri collaterali, molti dei quali rivolti a scuole e famiglie, realizzati in collaborazione con la Cooperativa sociale Arti e Pensieri ■

SGUARDI SULL’AFRICA

Palazzo Gotico. Piazza Cavalli, Piacenza 1 marzo | 4 maggio 2026

Changing

Perspectives

Ph. Pietro Cocco

HELLA JONGERIUS

WHISPERING THINGS AL VITRA DESIGN MUSEUM

Hella Jongerius (1963) presenta la prima retrospettiva della sua carriera, in programma fino al 6 settembre al Vitra Design Museum di Weil am Rhein. Tra le designer più influenti degli ultimi decenni, l’artista sviluppa da oltre trent’anni una personale interpretazione del design contemporaneo attraverso una produzione al tempo stesso critica e poetica.

La mostra include prodotti di diverso genere – dall’arredo alle ceramiche – comprendendo anche schizzi e prototipi, in un percorso curato da Glenn Adamson e Marcella Hanika che attraversa l’intera carriera di Jongerius.

figura in un’estetica complessa e stratificata, fondata sulla sovrapposizione.

Dall’alto in senso orario.

Falling Vases Paintings, 2008.

Hella Jongerius con le sue opere, fotografia.

Angry Animal (Erica), 2025.

La designer riflette costantemente su oggetti e abitudini della vita quotidiana, dando forma a progetti che mettono in discussione la separazione tra design e arte. Il linguaggio di Jongerius è l’esito delle diverse fasi della sua carriera, iniziata nel gruppo di avanguardia olandese Droog Design negli anni Novanta, e oggi si con-

Oltre a una grande installazione di più di 200 Coloured Vases (2010), il percorso espositivo presenta opere come Pushed Washtub (1996), Inflatable Textiles (1993) e i più recenti Angry Animals (2021), per la maggior parte provenienti dall’archivio personale della designer, acquisito dal Vitra Design Museum nel 2024. Schizzi e prototipi accompagnano le opere in una simbiosi fondamentale: l’abbondanza di materiali evidenzia l’importanza dell’archivio come risorsa primaria di idee, ricerca e sperimentazione ■

Hella Jongerius WHISPERING THINGS

Vitra Design Museum. Weil am Rhein. Germania 14 marzo | 6 settembre 2026

dndhandles.it made in Italy, since 1968

total look® è il sistema che abbina le pregiate finiture disponibili per le maniglie ora anche sul componente serratura invisibile Vertical.

Salone del Mobile.Milano hall 14 - stand A35
maniglia anik design Gabriele & Oscar Buratti serratura vertical design Dnd Handles

A destra. Design

mare Mondo Uomo

1985.

Sotto. Trussardi

1985-86.

GIOVANNI GASTEL OLTRE LA FOTOGRAFIA UNA MOSTRA A MILANO

Palazzo Citterio rende omaggio a un protagonista assoluto della fotografia contemporanea con una mostra monografica aperta al pubblico fino al 26 luglio. Oltre alle 250 immagini che ripercorrono l’intera carriera di Giovanni Gastel (1955-2021), per la prima volta i visitatori potranno conoscere la persona dietro l’autore attraverso oggetti, strumenti di lavoro, scritti e poesie.

A cinque anni dalla sua scomparsa, l’esposizione propone un viaggio emotivo che presenta l’artista da una prospettiva tematica, poetica e profondamente personale.

Tra i pochissimi fotografi italiani ad aver sperimentato la post-produzione digitale fin dagli anni Novanta, Gastel ha saputo unire artigianalità e innovazione, analogico e digitale, tra-

sformando la fotografia in un linguaggio immediatamente riconoscibile.

La rassegna offre inoltre l’occasione per riaffermare il profondo legame che ha unito l’artista a Milano, non solo sfondo ma autentica matrice culturale, familiare, sociale e creativa che ne ha forgiato lo stile e lo sguardo.

Ad accompagnare la mostra, un catalogo edito da Allemandi e curato da Luca Stoppini, con oltre 200 immagini che ripercorrono l’intero percorso artistico di Giovanni Gastel ■

Giovanni Gastel REWIND

Palazzo Citterio. Milano

30 gennaio | 26 luglio 2026

Giovanni Gastel. Foto Giovanni Battista Righetti.

Proudly Made in Italy indoor. outdoor. bespoke.

qu-lighting.com

Render del Serpentine Pavilion 2026 che verrà inaugurato il 6 giugno a Londra. A sinistra gli autori Isabel Abascal e Alessandro Arienzo fondatori dello studio di Città del Messico Lanza Atelier. Foto Pia Riverola.

IL MURO CRINKLE-CRANKLE DEL SERPENTINE PAVILION 2026

Serpentine di nome e di fatto il padiglione estivo delle omonime gallerie progettato quest’anno da Isabel Abascal e Alessandro Arienzo, fondatori dello studio di Città del Messico Lanza Atelier.

In un ingorgo di significati e rimandi il padiglione, che verrà inaugurato il 6 giugno (sarà smantellato dopo la chiusura, il 25 ottobre) presso la South Gallery nei Kensington Gardens, è caratterizzato da un muro di mattoni a curve alternate che corre lungo un lato, allungandosi

come un serpente (messicano?) fino all’edificio della galleria. Una tecnica, di origine egiziana, diffusa nei secoli scorsi in Gran Bretagna da ingegneri olandesi e nota come Crinkle-Crankle, che garantisce sostegno laterale impiegando un minor numero di mattoni. Un secondo muro lavora in armonia con le chiome degli alberi per dare forma al padiglione vero e proprio, protetto da una copertura traslucida poggiata su colonne interne di mattoni, leggera e ariosa, che filtra la luce e le ombre del

bosco a nord. Agli eventi che abitualmente si svolgono nel padiglione quest’anno si aggiunge una collaborazione con la Zaha Hadid Foundation per ricordare l’eredità di Dame Hadid che nel 2000 disegnò il primo padiglione estivo delle Serpentine. Da allora il programma (da dieci anni realizzato con il sostegno di Goldman Sachs) è diventato una piattaforma globale di sperimentazione architettonica che ha dato spazio a grandi nomi e a talenti emergenti come Francis Kéré e Junya Ishigami ■

NULLA DI PRECISO

UNA MOSTRA ALLA FONDAZIONE

QUERINI STAMPALIA PER RIFLETTERE

SULL’ARCHITETTURA

Gli architetti italiani non credono a nulla di preciso. Mi piace pensare che quando Edoardo Persico, nel novembre del 1934, scrive su Domus che gli architetti italiani «debbono affrontare il problema più spinoso della vita italiana: la capacità di credere a ideologie precise», individui, più che una tragica carenza, un carattere. L’architetto italiano fatica a credere. E non per mancanza di intelligenza, di talento o di consapevolezza critica, quanto per una radicale indisponibilità a consegnarsi a un’idea forte di futuro.

In Italia non si crede in nulla di preciso. Non si crede nel progresso, percepito più come minaccia che come promessa. Domani non

è migliore di oggi: è semplicemente più complesso, più pericoloso, più ingovernabile. La tecnologia non emancipa, inquieta. L’innovazione non libera, insospettisce. L’high-tech non affascina, disturba. Si preferirebbe che le cose restassero dove sono, come sono; il tempo rallentasse; il cambiamento fosse solo apparente.

Da qui una postura che potremmo definire reazionaria ma in senso antropologico più che politico. Ha radici profonde: un Paese attraversato, conquistato, dominato; un Paese che ha conosciuto la vertigine dell’impero e la catastrofe della fine; che ha interiorizzato l’idea che ogni grande costruzione sia destinata, prima

Architetture strategie eresie racconti ritrovamenti e genealogie per una felicità immediata evitando l’attesa di tempi migliori. In mostra a Venezia il progetto di concorso per l’ampliamento del Maxxi di Peluffo&Partners Stefano Pujatti e Beniamino Servino. Con la curatela di Luigi Prestinenza Puglisi

o poi, a crollare. La storia, per l’italiano, non è un racconto di avanzamento lineare, ma una lenta polverizzazione delle forme. Un’erosione continua, alla quale si risponde non con l’accelerazione, ma con il restauro.

Questo atteggiamento può portare a un conservatorismo imitativo. Di chi cerca di rifare ciò che si sbriciola e si rovina, negando l’esistenza del tempo. E, così facendo, ricopia il passato e trasforma i centri urbani in presepi e gli edifici in monumenti che giurano di resistere nel tempo. Oppure può portare a strategie commerciali fondate sulla nostalgia dove viene spacciato per antico e artigianale ciò che è nuovo e industriale. Storica locanda, prodotto fatto con la ritrovata ricetta, ritorno alla natura, bosco verticale, rammendo, innovazione e tradizione. Ma restaurare non significa solo conservare fingendo l’antico oppure vendere la sosteniblità come un bene ritrovato: significa evocare, ricomporre, rimettere insieme frammenti dispersi. Si pensi alla ricchezza interpretativa e inventiva di Carlo Scarpa. O ai lavori di Luigi Moretti, nei cui edifici compaiono lacerti di passato e richiami a spazialità perdute dove la storia diventa una zattera per non affogare. Oppure, come nella chiesa dell’Autostrada di Giovanni Michelucci, dove l’architettura, satura di connotazioni, diventa una tenda che accoglie. I frammenti del passato servono in tutti questi casi a capire chi siamo, non dove stiamo andando. È una storia fragile, fatta di corrispondenze più che di strutture, di genealogie più che di sistemi. Ci ricordano che siamo figli dei figli dei figli: non di un’idea, ma di un racconto. Perché con i ricordi non si costruiscono certezze durature: si costruiscono genealogie. Vaghe, deboli, sostituibili. Genealogie che funzionano per illuminazioni improvvise, per riconoscimenti istantanei. Guardiamo Piero della Francesca o Masaccio e, senza sapere bene perché, ci riconosciamo. Non è un sapere razionale, è un corto circuito emotivo. Il naufragio attraversa la nostra cultura. Ci riconosciamo, talvolta con fastidio, nei personaggi della commedia all’italiana: attratti dall’inutile, dal gioco, dall’ironia; diffidenti verso la serietà della tecnica, che resta roba per tedeschi, americani, giapponesi. Siamo indulgenti ver-

OS2 porte e finestre Secco - The Venice Venice Hotel

A Venezia, direttamente sul Canal Grande, l’antico palazzo Ca’ da Mosto diventa The Venice Venice, un hotel cinque stelle che, attraverso un restauro colto e misurato, reinterpreta la storica vocazione all’ospitalità della città in chiave “post-veneziana”. Un luogo di incontro tra arte, artigianato e design, nato dalla stratificazione del passato e pensato come bene prezioso da preservare. Gli infissi OS2 in ottone satinato di Secco Sistemi accompagnano questo dialogo tra passato e presente, trasformando la materia in un’eleganza senza tempo.

seccosistemi.com

credit: Alessandra Chemollo

so l’errore, convinti che la confessione possa cancellare la colpa. Da qui un’arte introspettiva, autoironica, tollerante, anche quando affronta temi tragici o scabrosi. Che oscilla continuamente tra lo stereotipo e la sua messa in discussione.

Penso al Centro Pompidou disegnato da due italiani, Renzo Piano e Gianfranco Franchini, e da un mezzo italiano, Richard Rogers. È un circo caratterizzato da attrazioni colorate più che un omaggio alla tecnologia.

Come lo sono i progetti degli architetti tecnologi Maurizio Sacripanti, Luigi Pellegrin, Carlo Mollino, Giuseppe Perugini e dall’ingegnere Sergio Musmeci. Impianti complessi che rassomigliano a gigantesche macchine inutili, che poco hanno a che vedere con una idea tecnocratica di progresso. Nell’Italia che non crede in nulla di preciso, l’architettura si trova nel piacere del gioco, non nell’efficienza della performance. Nel racconto, non nello standard. È un atteggiamento che ritroviamo in tutte le arti, tragiche o comiche che siano: comporta un lavoro costante sulla realtà e, insieme, sulla sua interpretazione. Sul linguaggio e sul metalinguaggio. Con una voce narrante che resta sempre un passo indietro, fuori campo. Può essere Luigi Pirandello o Ennio Flaiano, Giovannino Guareschi o Paolo Villaggio. In architettura questa voce si traduce in un sistema di citazioni disincantate, mai ossessive. Molto diverso, per esempio, dal manierismo di Rem Koolhaas, dove la citazione diventa strumento sistematico e intellettualizzato.

La migliore architettura italiana diffida di ciò che è cerebrale. Studia ma senza troppo metodo, guarda più di quanto legga. Tanto che l’americano Peter Eisenman, così attento alla sintassi e alle regole della logica, non capisce l’italiano Giuseppe Terragni, orientato verso la poesia. Così come per gli stessi motivi non capisce Leon Battista Alberti, ridotto a pure leggi grammaticali. E scrive due libri che ci raccontano quanto i nostri orizzonti culturali siano diversi.

L’architettura di chi non crede in nulla di preciso cerca di evitare i teoremi e si strugge di poesia e nostalgia. È tiepido verso l’esoterismo linguistico, lo snobismo intellettuale, e soprattutto l’astrazione pura. Ama la chiarezza della forma. Non celebra la società dei consumi né il mito del futuro. Cerca simboli che entrano in sintonia con la storia, e per farlo costruisce racconti. I migliori progetti italiani non sono né teoremi né manifesti: sono storie.

Storie neorealiste, non realistiche. Il realismo è fiducia nell’oggettività. Il neorealismo è consapevolezza della soggettività. È un racconto sul reale, non la sua riproduzione. Non si lascia incapsulare in uno stile. Ha aperture fantastiche, come nei film di Federico Fellini; mescola ingredienti esotici, come nelle canzoni di Franco Battiato; rilegge il passato, come nell’opera di Pier Paolo Pasolini; tortura i ricordi e rimpiange la bellezza, come nei film di Ludovico Visconti; inventa città scomparse,

come nel cimitero di Modena di Aldo Rossi; ridicolizza l’immaginario anglosassone, come nelle canzoni di Adriano Celentano; evoca ambienti, odori, sapori, come nelle composizioni di Paolo Conte; lavora sulla forma della voce come in Lucio Dalla. Il nostro vero inno nazionale dovrebbe essere Azzurro con il treno che va all’incontrario. E il critico di architettura più ascoltato Edoardo Persico, da cui ho tratto spunto per questo scritto. Quel Persico che, insieme a Lionello Venturi, trova nell’impressionismo possibilista, e non nel cubismo oggettivista, le radici del Movimento Moderno. Persico che con Marcello Nizzoli lavora sulla limpida trasparenza del Negozio Parker a Milano e che sostiene la Casabella di Pagano nella sua battaglia etica. Che, con Marcello Nizzoli e Giancarlo Palanti realizza un’opera, il Salone della Vittoria, che mette insieme l’antica Roma imperiale e la Nike alata di Lucio Fontana. Allestimento di infinito valore poetico che più che celebrare il mito dell’antico e le vittorie del fascismo è un inno alla precarietà della storia, una zattera che non riuscirà ad evitargli di annegare. Persico morirà tragicamente, forse per mano del regime, a ridosso dell’inaugurazione. Se esiste una linea di particolare interesse nell’architettura italiana, va cercata dunque lungo alcune direttrici: l’effimero, inteso come consapevolezza di una temporalità vaga e precaria e come contrappunto alla ansia di monu-

mentalità e permanenza; la genealogia, come riferimento a una storia che c’è ma non è mai del tutto afferrabile; la forma chiara, che rifiuta l’astrazione; l’ironia, l’autoanalisi, la confessione; il carattere popolare, non esoterico; e infine l’autorialità, cioè una ricerca che passa attraverso la storia individuale del progettista più che attraverso un’ideologia condivisa. Forse è poco, forse non basta per affrontare le sfide globali. Ma è ciò che abbiamo. E smettendo di rimpiangere ciò che non siamo, potremmo finalmente capire cosa possiamo essere: narratori ostinati. Perché in un mondo che punta sugli algoritmi e su un progresso che non fa progredire e non ci libera, l’Italia continua a rispondere con racconti che creano nella coscienza zone franche di libertà.

Luigi Prestinenza Puglisi

NULLA DI PRECISO

Fondazione Querini Stampalia 26 Febbraio | 12 Aprile 2026

Curatela Luigi Prestinenza Puglisi Opere Peluffo&Partners, Stefano Pujatti Beniamino Servino, Ernesta Caviola Allestimento Peluffo&Partners, Stefano Pujatti Elastico Farm e Beniamino Servino Immagine grafica Superficial Studio

Frank Gehry il decostruttivista che ha abolito i confini tra architettura e scultura

Con il museo

Guggenheim di Bilbao l’architettura smette di comportarsi da architettura. Gehry ha dimostrato che si possono costruire con rigore, tempi certi e costi controllati anche le forme più estreme

Frank Gehry è morto il 5 dicembre 2025, a novantasei anni, quando ancora nessuno aveva davvero archiviato la sua stagione creativa. Anzi, l’impressione diffusa era opposta: che ci fosse ancora qualcosa in arrivo, qualche possibile sorpresa. La sua produzione recente smentiva qualsiasi idea di stanchezza senile. La Fondation Louis Vuitton a Parigi era stata inaugurata nel 2014; poi erano arrivati la Luma Tower ad Arles, il museo di Taiwan, il negoziomonumento per Louis Vuitton a Beverly Hills, fino al Guggenheim di Abu Dhabi, annunciato

per il 2026. Un’agenda con opere ancora sorprendenti e di altissima qualità che molti farebbero fatica a sostenere.

C’è una frase, attribuita ora a Gehry ora a Claes Oldenburg, che racconta bene il personaggio e il suo modo di pensare. Dice più o meno che l’unica vera differenza tra una scultura e un edificio è la presenza dei bagni. Battuta fulminante, ma non solo. In quelle poche parole è condensata una visione che ha messo in crisi l’idea stessa di architettura così come l’abbiamo conosciuta per secoli.

Tentativi di abolire i confini tra arte e architettura, tra scultura e involucro edilizio c’erano già stati. Negli anni Sessanta, alcuni sperimentatori, da Frederick Kiesler a John Johansen, passando per Vittorio Giorgini, avevano provato a liberare la forma architettonica dalla sua grammatica consolidata. Ma i mezzi tecnici erano ancora acerbi e quelle intuizioni rimasero episodi isolati, più profetici che realmente operativi. Giorgini, addirittura, è stato per almeno un trentennio dimenticato dalla critica ufficiale.

Il percorso di Gehry, invece, si articola con chiarezza e crescenti riconoscimenti in almeno due grandi fasi. La prima, che potremmo definire decostruttiva, esplode tra la fine degli anni Settanta e l’inizio degli Ottanta. Il manifesto è l’ampliamento della sua casa a Santa Monica: materiali poveri, assemblaggi spigolosi, un’estetica del provvisorio che sembra sfidare l’equilibrio stesso dell’edificio. È un’architettura

che ostenta instabilità, come se fosse sempre sul punto di collassare. E che evita di fare tabula rasa della preesistenza, per integrarla in un processo che oggi si direbbe di post-produzione.

La svolta arriva con la casa Winton in Minnesota. Le tensioni decostruttiviste si attenuano e il problema cambia radicalmente: non più smontare l’architettura, ma dissolverla nella

scultura. Porte, finestre, tetti diventano fastidi da neutralizzare.

L’episodio del binocolo gigante per gli uffici Chiat/Day, progettato con Oldenburg, è una ulteriore tappa simbolica di questo passaggio. Il punto di equilibrio, però, si raggiunge con il Vitra Design Museum, dove la libertà formale comincia a misurarsi seriamente con la costruzione. Ma è solo con la Disney Concert Hall e soprattutto con il Guggenheim di Bilbao che l’operazione riesce fino in fondo. Qui Gehry introduce strumenti inediti per l’architettura, come il software Catia, preso in prestito dall’industria aeronautica, e dimostra che anche le forme più estreme possono essere costruite con rigore, tempi certi e costi controllati. Bilbao segna un prima e un dopo. Il successo planetario dell’edificio certifica la legittimità di quella ricerca e inaugura una dimensione nuova: un’architettura che smette definitivamente di comportarsi da architettura. Dopo Gehry, tornare indietro diventa semplicemente impossibile ■

Qui accanto la Fondation Louis Vuitton (2014) a Parigi. In alto il Guggenheim di Bilbao (1997).

La progettazione per lo Sport e il suo impatto in termini di rigenerazione urbana

Aldo Norsa

Con una lunga carriera di docenza universitaria in Italia e all’estero dal 2010 il professor Aldo Norsa, direttore scientifico della società di ricerca Guamari, cura il Report on the Italian Architecture Engineering and Construction Industry, il Rapporto Classifiche Le prime 70 imprese dell’edilizia privata e organizza la conferenza annuale Tall Buildings. Dal 2023 è membro della giuria dei Premi Oice e dal 2025 è nell’advisory board della Jrp Costruzioni del Politecnico di Milano. www.guamari.it

Concluse con grande visibilità mediatica le Olimpiadi Milano-Cortina (le quarte nel nostro Paese dopo quelle invernali del 1956 a Cortina e del 2006 a Torino, nonché quelle generali ospitate a Roma nel 1960) i record ottenuti dagli atleti italiani dimostrano quanto lo sport interessi, coinvolga e mobiliti l’opinione pubblica nazionale. Questo conta non solo a livello agonistico ma ha precise ricadute economiche: per esempio nella capacità industriale di produrre (ed esportare) le relative attrezzature. Per quanto riguarda l’architettura, la progettazione di impianti sportivi – che purtroppo, a differenza della produzione, ha una più limitata componente di esportazione – non solo ha un bel futuro ma diventa sempre più specialistica dal punto di vista disciplinare, oltre a comportare un forte impatto in termini di rigenerazione e di vivibilità urbana. Attualmente le statistiche dicono che nel nostro Paese il settore dello sport vale 32 miliardi di euro e coinvolge una popolazione attiva di 38 milioni di persone (rispettivamente 1,4 per cento del Pil in termini economici, ma riguardante i due terzi della popolazione). Bastano questi numeri per cogliere quanto, sul territorio nazionale, la dotazione di impianti sportivi sia ancora inadeguata rispetto alla domanda potenziale, sia professionale che amatoriale. Per non parlare dell’aspetto più preoccupante: l’obsolescenza degli impianti sportivi a fronte di tecnologie in continuo sviluppo e nella prospettiva di traguardi agonistici ancora più ambiziosi.

A oggi sono infatti 78mila le strutture censite e 144mila le aree sportive, con una media di 1,38 impianti e 2,54 spazi per mille abitanti.

In particolare la maggioranza degli stadi, sette su dieci, sono di proprietà pubblica (il 91 per cento dei quali comunale) e quattro su dieci risalgono agli anni ’70 e ’80. Come sempre è ampio il divario tra Nord e Sud sia a livello di impianti inattivi (15 per cento nel Meridione rispetto all’8 per cento nazionale)

sia, soprattutto, di investimenti: nel 2024 infatti, terzo anno consecutivo di crescita, il volume raggiunge i 500 milioni (più 39 per cento rispetto al 2023), ma è ampiamente trainato dai Comuni del Nord Italia che nell’ultimo anno hanno attivato 254 progetti, contro i 160 del Sud e i 176 del Centro.

Il 70 per cento degli interventi di edilizia sportiva realizzati tra il 2019 e il 2024 è di medio-piccola dimensione (inferiori ai 500mila euro) mentre solo l’uno per cento degli investimenti riguarda grandi progetti. Si prevede però che essi avranno una maggior incidenza con l’avvicinarsi dei campionati europei di calcio 2032, evento per il quale l’Italia dovrà fornire alla Uefa entro l’1 ottobre di quest’anno una lista di cinque stadi immediatamente cantierabili (a oggi l’unico a non necessitare interventi di ammodernamenti o ristrutturazioni è l’Allianz Stadium di Torino). Tutto ciò premesso abbiamo intervistato sei società che si distinguono particolarmente nella progettazione (anche ingegneristica) di impianti sportivi per capire le specifiche competenze che questa richiede e chiedendo loro di citare nello specifico un intervento che ritengono particolarmente riuscito.

3 DOMANDE a 6 architetti

1 A cosa si deve la scelta di affrontare un settore sfidante come quello degli impianti sportivi e quali sono le competenze necessarie per operarvi?

2 In quale genere di impianti sportivi la sua società ha maturato più esperienze?

3 Qual è l’intervento in questo settore che meglio rappresenta le vostre potenzialità progettuali?

Marco Casamonti

1 _ L’interesse per il tema degli stadi nasce in ambito accademico nei miei corsi all’Università di Genova. Da anni conduco attività di ricerca sugli impianti sportivi, in particolare sul calcio, un settore che in Italia presenta evidenti criticità di obsolescenza e degrado. L’approfondimento teorico si intreccia con l’esperienza come direttore della rivista Area attraverso numeri monografici sugli impianti sportivi e gli stadi. La ricerca ha così assunto una dimensione culturale e operativa favorendo il dialogo con istituzioni e committenze interessate alle nuove progettualità. Il passaggio alla pratica professionale è avvenuto in modo naturale: tra i primi interventi realizzati vi è lo stadio di Udine (2014-2017), seguito da concorsi nazionali e internazionali fino alla vittoria per lo stadio nazionale d’Albania, costruito tra il 2016 e il 2019. Successivamente, la Fiorentina ci ha affidato

la progettazione del nuovo centro sportivo denominato Viola Park (2021–2023). Operare in questo settore richiede competenze integrate: capacità di lettura urbana e territoriale, conoscenza delle normative sportive e di sicurezza, attenzione alla sostenibilità economica, gestione di programmi funzionali complessi e infine visione degli impianti come infrastrutture multifunzionali.

2 _ Abbiamo maturato un’esperienza significativa soprattutto nel settore calcistico e tennistico. Nel primo abbiamo già citato le opere realizzate e partecipato a numerosi concorsi, tra cui quelli per gli stadi di Firenze e di Lugano. Attualmente stiamo lavorando a due progetti strategici: il nuovo stadio del Pisa e il recupero e la trasformazione dello stadio Flaminio di Roma. Oltre ad aver sviluppato progetti per palestre e altre strutture sporti -

ve, nel settore del tennis seguiamo il Tennis Club Match Ball di Firenze, uno dei centri più rilevanti a livello nazionale, consolidando una competenza specifica nella progettazione e nell’aggiornamento di impianti dedicati a questa disciplina.

3 _ Tra le opere realizzate lo stadio nazionale di Tirana rappresenta l’intervento più emblematico. Non solo perché è un impianto sportivo nuovo e ambizioso ma perché è una tipologia ibrida che integra nello stesso organismo architettonico una torre multifunzionale con funzioni ricettive e congressuali oltre a negozi e ristoranti. Il progetto interpreta lo stadio come dispositivo urbano attivo tutto l’anno superando la logica dell’utilizzo per il solo evento sportivo. L’intervento ha inoltre generato un significativo processo di rigenerazione urbana ridefinendo un’intera porzione della città.

Archea Associati, lo stadio nazionale di Tirana in Albania.

3 DOMANDE a 6 architetti

1 A cosa si deve la scelta di affrontare un settore sfidante come quello degli impianti sportivi e quali sono le competenze necessarie per operarvi?

2 In quale genere di impianti sportivi la sua società ha maturato più esperienze?

3 Qual è l’intervento in questo settore che meglio rappresenta le vostre potenzialità progettuali?

Claudio Guido

Studio In.PRO

1 _ Il fascino dei luoghi della pratica sportiva nasce dall’antico spettacolo e arriva alla moderna fruizione di massa. Nel tempo questi spazi sono divenuti iconici per le comunità e per le discipline ospitate. La progettazione di grandi impianti sportivi richiede non solo un approccio multidisciplinare ma una notevole capacità di coordinamento tra professionalità specializzate, per coniugare le esigenze di atleti e pubblico, garantendo sicurezza, funzionalità ed esperienze di intrattenimento oltre l’evento sportivo stesso.

2 _ In 35 anni di attività dalla fondazione, lo studio In.Pro si è occupato di progettazione, ma soprattutto di project management e direzione lavori nell’ambito di impianti sportivi. Tra gli interventi più significativi si segnalano la rifunzionalizzazione del Velodromo Vigorelli di Milano (realizzato nel 1935), trasformato in impianto multifunzionale nell’ambito dell’intervento CityLife, e del Palavela di Torino, costruito nel 1961 e ristrutturato per le Olimpiadi Invernali 2006, oggi destinato a diverse discipline. Sono inoltre in fase di realizzazione il restyling dello Stadio Artemio Franchi di Firenze (1931) e, appena completata, l’Arena Milano Santa Giulia (con lo studio Chipperfield) de -

stinata all’ice hockey per le Olimpiadi Milano Cortina 2026.

3 _ Il progetto per lo stadio calcistico di Firenze (tra le opere più famose di Pier Luigi Nervi) ci ha consentito di partecipare, in associazione temporanea con Arup Italia e Studio Cupelloni, in qualità di direzione lavori generale e coordinamento per la sicurezza sia in fase di progettazione che di esecuzione, alla trasformazione del complesso ottemperando alle regole imposte dalla Soprintendenza. Il cantiere per il primo lotto funzionale aperto nel 2024 prevede, in un catino che continua a ospitare le partite della Fiorentina con circa 25 mila posti, la realizzazione della nuova curva Fiesole, la riprofilatura della tribuna Maratona, compresi i nuovi skybox, e la copertura di tutta la porzione nord dello stadio oltre al restauro della torre Maratona, della pensilina centrale e delle strutture. Il completamento delle lavorazioni, per un moderno stadio da 40 mila posti, prevede un secondo lotto funzionale da attivare nel 2027, che interesserà la nuova curva Ferrovia, la copertura della porzione sud e il restauro della tribuna d’onore.

Lavori in corso allo stadio Artemio Franchi di Firenze.
Foto Andrea
Cherchi

DEDICHIAMO AI PROGETTI L’ECCELLENZA CHE MERITANO.

Giffoni Multimedia Valley è il centro dove cultura, creatività e tecnologia si fondono. Sede operativa del rinomato Festival Internazionale del Cinema per Ragazzi, è oggi un polo dedicato all’innovazione e alla formazione dei giovani talenti.

Mitsubishi Electric contribuisce realizzando sistemi per il riscaldamento e raffrescamento dell’aria che rendono gli spazi accoglienti e dinamici, ideali per la collaborazione e lo scambio di nuove idee.

Giffoni Multimedia Valley (Salerno)

Ogni progetto richiede eccellenza.

LA SOLUZIONE ADOTTATA

• Impianto VRF personalizzato con termoregolazione a zone

• Integrazione nell’architettura multifunzionale della struttura

• Gestione intelligente dei consumi

Mitsubishi Electric risponde con soluzioni innovative e versatili, capaci di adattarsi a contesti diversi e alle esigenze di chi li vive. Dalla progettazione alla realizzazione, offriamo sempre la soluzione migliore per garantire il massimo comfort, trasformando ogni ambiente in un’esperienza ideale di benessere.

Mitsubishi Electric, il piacere del clima ideale.

mitsubishielectric.it

3 DOMANDE a 6 architetti

1 A cosa si deve la scelta di affrontare un settore sfi dante come quello degli impianti sportivi e quali sono le competenze necessarie per operarvi?

2 In quale genere di impianti sportivi la sua società ha maturato più esperienze?

3 Qual è l’intervento in questo settore che meglio rappresenta le vostre potenzialità progettuali?

1 _ È vero, l’universo degli impianti sportivi è complesso e richiede di concentrare in un unico progetto molti temi e competenze. D’altra parte, i grandi eventi sono da sempre il nostro focus. La sfida consiste proprio nel considerare questi aspetti singolarmente e trasformarli in un’architettura unitaria, riconoscibile. I nostri professionisti, altamente specializzati, lavorano in modo integrato: dalla progettazione del catino all’acustica, dalla gestione dei flussi all’accoglienza, ogni aspetto concorre a una visione olistica, con l’obiettivo di offrire ai tifosi un’esperienza memorabile. In questo lavoro è fondamentale coniugare precisione tecnica e visione culturale, per progettare strutture identitarie, pienamente vissute.

2 _ Populous è una gruppo multinazionale con filiali in 15 Paesi, compresa dal 2021 l’Italia, che ha firmato oltre 3.500 impianti nel mondo, tra cui Wembley e il Tottenham Hotspur Stadium, oltre a impianti olimpici e arene per la musica dal vivo. La scelta di mettere persone sul campo, con una conoscenza profonda del territorio, ci ha permesso di confrontarci con contesti diversi. A Strasburgo stiamo ultimando la ristrutturazione dello storico Stadio della Meinau, integrando soluzioni innovative di riuso dei materiali reperibili in prossimità del

sito, secondo i princìpi dell’economia circolare. Su una scala completamente diversa a Hong Kong Populous ha trasformato i 28 ettari dell’ex-aeroporto di Kai Tak in un grande polo sportivo e comunitario al servizio dei 7,5 milioni di abitanti della città.

3 _ Il nuovo Riverside Stand del Fulham FC, completato recentemente a Londra, rappresenta efficacemente le nostre potenzialità progettuali. Localizzato in un contesto unico lungo il Tamigi, l’intervento affronta una sfida importante: ampliare e rinnovare uno stadio storico senza comprometterne l’identità. La tribuna a sbalzo sul fiume genera un nuovo percorso pubblico sul waterfront e spazi per ospitalità e ristorazione che si integrano con aree pubbliche sempre accessibili. È un progetto che dimostra come uno stadio possa diventare architettura urbana, capace di offrire nuove esperienze per tutti, dialogare con il paesaggio e produrre valore duraturo per il territorio.

Populous, il Riverside Stand del Fulham FC a Londra.
Silvia Prandelli Populous

Massimo Roj Sportium

1 _ Operare nel settore degli impianti sportivi nasce dalla convinzione che lo sport è un motore potente di rigenerazione urbana. Queste strutture non sono solo contenitori funzionali ma infrastrutture civili capaci di generare valore ambientale, economico e sociale. La loro progettazione richiede un approccio multidisciplinare capace di integrare architettura, ingegneria e aspetti gestionali in una visione che accompagni il progetto nel tempo e contribuisca a dar vita a luoghi che uniscano funzione, emozione e favoriscano il consolidamento di un’identità forte e di un senso di appartenenza.

no. Studiamo soluzioni che rafforzano il dialogo con il contesto urbano, facendo diventare l’impianto sportivo un generatore di relazioni, un luogo inclusivo che restituisce valore alla comunità e contribuisce alla qualità complessiva della città.

3 DOMANDE a 6 architetti

1 A cosa si deve la scelta di affrontare un settore sfidante come quello degli impianti sportivi e quali sono le competenze necessarie per operarvi?

2 In quale genere di impianti sportivi la sua società ha maturato più esperienze?

3 Qual è l’intervento in questo settore che meglio rappresenta le vostre potenzialità progettuali?

2 _ Sportium, società fondata in seno a Progetto Cmr International nel 2017, ha maturato un’esperienza trasversale che spazia da stadi e grandi arene a impianti natatori, palestre, centri sportivi di quartiere e playground. Questo ci consente di trasferire la cultura dei grandi impianti – gestione dei flussi, qualità degli spazi, integrazione urbana – anche nelle opere di scala minore, mantenendo al tempo stesso attenzione all’uso quotidiano e all’esperienza degli utenti. Ogni intervento deve essere accessibile, efficiente e vivo tutto l’an-

3 _ Il progetto del nuovo stadio del Cagliari Calcio rappresenta in modo emblematico le nostre potenzialità progettuali: per la rilevanza dell’opera e per il metodo adottato, che sviluppa lo stadio come parte della città, sostenibile a livello ambientale ed economico, con funzioni pubbliche, aree verdi e servizi fruibili tutto l’anno. Il progetto coniuga qualità architettonica e fattibilità realizzativa, creando un’infrastruttura destinata a durare e a generare valore per la comunità. Ecco la sintesi del nostro modo di intendere l’impianto sportivo: un motore di trasformazione urbana e sociale, capace di rafforzare identità, inclusione e vitalità del contesto in cui si inserisce.

Sportium, render del nuovo stadio del Cagliari Calcio.

3 DOMANDE a 6 architetti

1 A cosa si deve la scelta di affrontare un settore sfi dante come quello degli impianti sportivi e quali sono le competenze necessarie per operarvi?

2 In quale genere di impianti sportivi la sua società ha maturato più esperienze?

3 Qual è l’intervento in questo settore che meglio rappresenta le vostre potenzialità progettuali?

1 _ La scelta di operare nel settore degli impianti sportivi nasce dalla convinzione che queste architetture rappresentano una delle sfide più complesse e stimolanti per un progettista. Gli impianti sportivi sono infrastrutture strategiche, luoghi identitari, in cui si concentrano aspettative sociali, economiche e simboliche molto elevate. Progettarli significa saper governare la complessità: norme rigorose, sicurezza, gestione dei flussi, integrazione impiantistica, sostenibilità e, allo stesso tempo, qualità architettonica e riconoscibilità formale. È un ambito che richiede visione, esperienza e una forte capacità di coordinamento multidisciplinare, competenze che abbiamo sviluppato in oltre 50 anni di attività.

2 _ Gau Arena ha maturato prevalentemente esperienze nella progettazione di grandi infrastrutture sportive, in particolare stadi e arene multifunzionali. Si tratta di edifici che non possono più essere pensati come oggetti isolati ma vanno considerati come parti integranti del sistema urbano, capaci di vivere oltre l’evento sportivo e di dialogare con il contesto territoriale e sociale in cui si inseriscono.

3 _ Il progetto che meglio rappresenta questo approccio è lo Juventus Stadium (dal 2017 ridenominato Allianz Stadium), perché ha segnato un cambio di paradigma nel modo di concepire lo stadio in Italia. Inaugurato nel 2011 a Torino sulle ceneri del vecchio Delle Alpi, non è solo un impianto sportivo, ma un’infrastruttura contemporanea, efficiente, sostenibile e fortemente identitaria. Un progetto che sintetizza la mia visione e il metodo di Gau Arena: mettere l’architettura al servizio dello sport, della città e delle persone, trasformando l’impianto sportivo in un vero motore urbano. Nello specifico lo stadio ospita gradinate in grado di contenere 42mila spettatori, oltre che servizi tra cui 21 bar e otto ristoranti articolati su sei livelli. La struttura portante della copertura è sospesa attraverso cavi in acciaio tesi tra i due pennoni alti 86 metri eretti sull’asse nord-sud dell’edificio.

Gino Zavanella Gau Arena
Gau Arena. Juventus Stadium Torino.

OLTRE 40 ANNI DI ESPERIENZA E REALIZZAZIONI

POST VENDITA

ASSISTENZA IN CANTIERE

Quello che vedi
Quello che hai
SOLUZIONI SU MISURA
SUPPORTO TECNICO
FORMAZIONE
RICERCA E SVILUPPO

3 DOMANDE a 6 architetti

1 A cosa si deve la scelta di affrontare un settore sfi dante come quello degli impianti sportivi e quali sono le competenze necessarie per operarvi?

2 In quale genere di impianti sportivi la sua società ha maturato più esperienze?

3 Qual è l’intervento in questo settore che meglio rappresenta le vostre potenzialità progettuali?

1 _ La scelta nasce da un ricordo condiviso: la passione che inizia in un cortile e si proietta in uno stadio. Operiamo in questo settore per dare forma a quell’emozione, governando la complessità architettonica per creare spazi capaci di accogliere l’energia dello sport. Per farlo però la passione non basta. Servono competenze trasversali e un approccio estremamente pragmatico: bisogna saper integrare progettazione avanzata in Bim, project management e una gestione rigorosa di fondi pubblici e privati. Operare negli impianti sportivi significa inoltre garantire la sicurezza di migliaia di spettatori, organizzare flussi logistici impeccabili e rispettare tempi di consegna che non ammettono ritardi. Solo coordinando questi aspetti trasformiamo la complessità in spazi che funzionano: dove gli atleti danno il massimo e i fan si sentono a casa.

2 _ Possiamo dire di aver ‘fatto la gavetta’: dalla divisione Eccellenza alla Serie A. Siamo partiti da impianti locali, come il campo da rugby del Cus Pisa, per poi lavorare a palestre di scuole d’avanguardia a livello nazionale. Da qui abbiamo scalato la classifica: palazzetti dello sport, stadi, complessi polifunzionali, fino ad arrivare – non solo metaforicamente –alla serie A con il Pisa Training Center. Il com-

plesso si sviluppa su un’area di oltre 120mila metri quadrati e comprende sette campi da gioco, la sede della società, la foresteria per i giocatori e un rinnovato store per i tifosi della squadra. L’architettura sportiva per noi è una competenza maturata nel tempo, che oggi ci permette di garantire qualità in ogni categoria: conosciamo le regole del gioco a ogni livello. 3 _ La LuccArena, che sarà inaugurata nel 2027, è il progetto che meglio sintetizza il nostro modo di lavorare. Nasce come palasport ma è capace di ospitare fiere, eventi culturali e concerti fino a 6mila persone. È uno spazio vivo e aperto alla città, in grado di cambiare funzione senza perdere la sua identità. Questa natura flessibile si lega al nostro concetto di ‘architettura del benessere’: un approccio progettuale che mette al centro l’esperienza di chi l’edificio lo vive, definendo un equilibrio capace di conciliare le esigenze di ogni protagonista in uno spazio riconoscibile e accogliente, in cui gli utenti abbiano voglia di tornare. L’attenzione verso le persone si riflette anche nel rapporto con il territorio. LuccArena rappresenta una sintesi tra sport e natura: un’infrastruttura che lega le diverse aree verdi della città inserendosi armoniosamente nel tessuto urbano.

Ati Project, render della futura LuccArena.
Branko Zrnić
Ati Project

MILANO

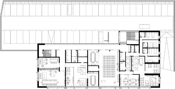
Di Lombardini22 il progetto del nuovo centro di produzione Rai

Avviato, nell’area della ex-Fiera Campionaria, il cantiere per la costruzione del nuovo centro di produzione multimediale Rai di Milano.

Progettato da Lombardini22 e realizzato da Cmb in Rti con Gianni Benvenuto Spa, il centro occuperà una superficie totale di circa 65mila metri quadrati, con un edificio di 15mila mq fuori terra che ospiterà gli uffici e dieci sale di registrazione di dimensioni variabili da 290 a 1.500 mq. Destinato prevalentemente a parcheggi il piano interrato.

Il nuovo centro risponderà agli standard Leed Gold e avrà una struttura ad elevate prestazioni termiche e acustiche. Il progetto nasce da un accordo tra Fondazione Fiera Milano e Rai, siglato nel dicembre 2023, che prevede la locazione del nuovo complesso immobiliare per una durata di 27 anni e che consentirà a Rai di concentrare in un unico polo produttivo le attività attualmente dislocate tra la sede di

Corso Sempione e gli spazi di via Mecenate, alla periferia est della città.

L’intervento di rigenerazione urbana, finanziato con 120 milioni di euro da Fondazione Fiera Milano, prevede come oneri a scomputo anche la riqualificazione degli spazi di Piazza Gramsci e la valorizzazione dell’accessibilità di Piazza Gino Valle.

Per la Rai, insediarsi dove un tempo sorgeva la Fiera Campionaria assume anche un significato storico: proprio all’ingresso di Porta Domodossola nel 1947 venne installata la prima antenna per le trasmissioni sperimentali e dalla sede di Corso Sempione il 3 gennaio 1954 iniziarono le prima trasmissioni televisive nazionali. Negli anni seguenti tre studi di registrazione Rai furono attivi in un padiglione della Fiera Campionaria concesso in affitto permanente ■

Committente Fondazione Fiera Milano

Progettazione Lombardini22

Imprese di costruzione Cmb, Gianni Benvenuto Spa Superficie fuori terra 15.000 mq

Investimento 120 milioni di euro Cronologia 2023-2029

MILANO

Al via i lavori di

Vitae, progetto di Covivio con Carlo Ratti Associati

È un nuovo modello di verde verticale quello di Vitae, l’edificio progettato da Carlo Ratti Associati per Covivio che sarà completato entro la fine del 2027. Un pergolato coltivato a vite che sale a spirale fino alla sommità del nuovo edificio. Ogni piano disporrà di logge e terrazze verdi – per un totale di 2mila metri quadrati, che si aggiungono agli 11mila di Gla su 8 piani del nuovo immobile – dove sostare nel corso della salita e osservare il panorama della città. Vitae sorgerà nel distretto di Symbiosis dove da anni è in corso un vasto piano di rigenerazione urbana, e prende forma su un lotto inutilizzato di 5mila mq in via Serio che il progetto – vincitore negli anni scorsi di un concorso C40 Reinventing Cities –trasforma in una nuova piazza privata a uso

pubblico di 3mila metri quadrati, con un giardino pubblico alberato, aree di sosta per cicli e motocicli, zone d’ombra con arredi urbani di qualità e spazi per piccole iniziative sociali di quartiere. Vitae avrà destinazione mista, in prevalenza a uffici. Nel comunicato diffuso poche settimane fa, Covivio ha annunciato un accordo di pre-letting con Fastweb –già presente in Symbiosis come tenant di Nexxt, l’edificio disegnato da Acpv Architects – per il 75 per cento degli spazi. Costruito con materiali certificati Epd e a elevato contenuto di riciclato, un involucro di colore chiaro per minimizzare l’effetto isola di calore, ampie porzioni destinate alla vegetazione e soluzioni impiantistiche mirate alla riduzione dei consumi elettrici

e idrici e delle emissioni, l’edificio mira alla certificazione Leed BD+C Core and Shell

Platinum. Soluzioni orientate al benessere e alla salubrità degli ambienti contribuiranno inoltre all’ottenimento della certificazione Well Core con il livello Gold ■

Committente Covivio

Progetto architettonico Carlo Ratti Associati in collaborazione con Fondazione Politecnico di Milano

Project manager Saverio Panata

Esperti ambientali Habitech

Consulenti tecnici Tekser; Milano Engineering; Studio Idrogeotecnico; Studio di Ingegneria Rigone; Dsb Landscape Design; Fsc Engineering

Rendering CRA graphic team

Alcuni render del futuro ospedale della Malpensa. ©X Universe courtesy Zaha Hadid Architects.

BUSTO ARSIZIO

Un

gruppo guidato

da Rina per il futuro Grande Ospedale della Malpensa

Avrà anche un percorso panoramico in copertura il futuro Grande Ospedale della Malpensa gestito dall’Asst Valle Olona e destinato a servire quasi un milione di residenti. Il progetto vincitore del concorso internazionale è di un team il cui capofila è Rina, con Zaha Hadid Architects per l’architettura e in associazione con Studio Plicchi di Bologna, Wsp, Sti Engineering e BC Building Consulting. La nuova struttura adotta un sistema costruttivo modulare prefabbricato che consente ampliamenti futuri e riconfigurazioni rapide in caso di emergenze. Le facciate saranno realizzate con pannelli modulari in alluminio a schermatura ventilata, dotati di fioriere integrate e sistemi di ombreggiamento solare.

Compatto e articolato in cinque piani fuori terra più un interrato, l’ospedale occuperà circa 90.000 metri quadrati e sarà organizzato secondo il criterio dell’intensità di cura. Vi troveranno posto i servizi di emergenza, il blocco operatorio e le aree critiche, sale radiologiche, sale interventistiche, aree diagnostiche e di trattamenti terapeutici. La struttura comprenderà inoltre la degenza (600 camere e 1.200 posti letto), ambulatori di primo e secondo livello e spazi dedicati alla riabilitazione, ai laboratori e alla logistica. La gestione dei flussi interni è stata studiata per ridurre interferenze e rischi di contaminazione e prevede anche un sistema automatizzato per la movimentazione interna.

Al piano terra, una main street fungerà

da asse pubblico centrale, collegando la piazza d’ingresso alle aree paesaggistiche, favorendo apertura e orientamento. Gli interni sono studiati per garantire massima illuminazione naturale, comfort acustico e accessibilità universale ■

Committente Regione Lombardia, Asst Valle Olona Team di progettazione Rina (capogruppo, ingegneria civile e strutturale, sicurezza). Zaha Hadid Architects (design architettonico, coordinamento e strategie del benessere, direttore di progetto Paolo Zilli). Studio Plicchi (specialista ospedaliero e local architect). Wsp (ambiente, paesaggio e sostenibilità). Sti Engineering (impiantisitca e antincendio). BC Building Consulting (misure, perizie e manutenzione)

SUD TIROLO

Il Kulturgüterdepot di Peter Pichler Architecture

Potrà conservare più di un milione di opere, prevalentemente in ambienti ipogei che assicurano condizioni controllate di temperatura e umidità, il nuovo deposito progettato da Peter Pichler Architecture nel quale convergeranno opere dei diversi musei della provincia di Bolzano, dal Museion alle collezioni Unterberger e Eccel Kreuzer, consolidando in un unico luogo quanto si trova oggi in depositi sparsi per la provincia. Con criteri già adottati da altre istituzioni museali, come il recente deposito della V&A completato l’anno scorso a Londra da Diller Scofidio + Renfro, il Kulturgüterdepot sarà accessibile al pubblico, che dalla scala

scultorea collocata nel luminoso atrio potrà scendere ai depositi sotterranei dove sono conservate le opere.

I livelli ipogei previsti consentono di mitigare l’impatto volumetrico dell’edificio, che morfologicamente riprende, attualizzati, i tratti della tipica architettura alpina.

All’esterno l’edificio si adagia sulla naturale pendenza del terreno e, nella vista dall’alto, si mimetizza nel paesaggio con un tetto verde. Interamente trasparente la facciata su strada, così come luminosi sono i due livelli di uffici e laboratori fuori terra grazie alle vetrate che affacciano su una corte vegetata centrale ■

Sezioni e render del deposito di beni culturali dei musei della provincia di Bolzano, che sarà accessibile anche dal pubblico. Courtesy Ppa.

Committente Provincia autonoma di Bolzano

Progetto architettonico Peter Pichler Architecture Team di progetto Peter Pichler, Daniele Colombati, Niklas Knap, Simona Alù, Cem Ozbasaran, Filippo Ogliani, Nathalia Rotelli, Rama Masri, Maria Pacchi, Alexander Kellner, Aidin Shamsalghoraei Cronologia 2026 - in corso

Render, masterplan e una foto di cantiere. Inquadrando il QR code si accede al video di concorso.

MARZABOTTO

La rigenerazione della ex-cartiera Burgo

In via di completamento la trasformazione dell’ex Cartiera Burgo a Lama di Reno, frazione di Marzabotto, in polo culturale e nodo strategico della mobilità sostenibile tra la stazione ferroviaria e la ‘Ciclovia del Sole’. Il progetto della Rtp guidata da Baustudio, con March’ingegno e studio Tracce, vincitori nel 2022 di un concorso indetto dalla Città Metropolitana di Bologna, si fonda sulla permeabilità e il riuso oltre che su un percorso di progettazione condiviso con il pubblico. Le nuove funzioni sono distribuite attorno alle tracce del passato, preservando e integrando le pavimentazioni storiche, gli impianti originali, la segnaletica d’epoca, i vecchi infissi recuperati e i graffiti realizzati quando il sito era in abbandono, conservando i segni di una archeologia industriale rivolta al futuro.

Un sistema di piazze coperte di circa 3.000 metri quadrati attraversa il complesso. Tagli strategici nei fronti e un affaccio rinaturalizzato verso est riconnettono gli spazi al paesaggio circostante, mentre il ‘podio’ coperto viene preservato per ospitare spettacoli, eventi e mercati. Nei circa 4.000 mq dell’interno prendono forma spazi dedicati a start-up e coworking, un auditorium, una velostazione e un polo museale attorno all’antico serbatoio dell’acqua.

L’accoglienza è garantita da una struttura di residenze ibride, un ostello con otto camere per 2-4 persone, tutte con bagno privato, collegato a spazi comuni, e a una attività commerciale di bar/ristorazione.

Una strategia di sostenibilità integrata ottimizza le prestazioni energetiche in base all’uso effettivo, con impianti meccanici ed

elettrici alimentati prevalentemente da fonti rinnovabili (fotovoltaico sulle coperture) e pompe di calore ad alta efficienza per la climatizzazione e la produzione di Acs. Prevista anche la messa a dimora di nuove alberature per mitigare l’effetto isola di calore ■

Committente Città Metropolitana di Bologna, comune di Marzabotto

Progettazione Rtp tra Baustudio (capogruppo), Studio Tracce, Marchingegno, Gruppo Eden, Stacab, Daniele Franchini, Enrico Manzi, Davide Guidotti, Matteo Palmieri, Elena Vincenzi, Luca Monti, Carlo Bergonzini

Importo dei lavori 7.023.594,44 euro

Spazi riqualificati 6.000 mq ca edificio ex cartiera (con fondi Pnrr). 13.500 mq ca di spazi aperti (con fondi Stami-strategie per le aree montane e interne) Cronologia 2022-2026

ROMA

La futura sede del Ministero dell’Ambiente

È di un team italo-inglese guidato da Gpa Partners e composto da Plp Architecture, Oblyk, Perillo, Andrea Valentini ed Enser il progetto vincitore del concorso internazionale di progettazione della nuova sede del Ministero dell’Ambiente e della sicurezza Energetica (Mase) che sorgerà nel quartiere razionalista dell’Eur, tra la Nuvola di Fuksas e il lago, sostituendo un edificio esistente.

Nexus Terrae, questo il nome del progetto, è concepito come un organismo che produce più energia di quanta ne impieghi e prevede il massimo riciclo, una volta giunto a fine vita, dei materiali impiegati.

Su una superficie di circa 30mila metri quadrati, due volumi in legno tecnico X-Lam sono organizzati attorno a un grande atrio centrale che attraversa verticalmente l’edificio e intorno al quale spazi sospesi e terrazze interne creano ambienti di lavoro in costante dialogo visivo tra i diversi livelli. In copertura il progetto prevede una terrazza panoramica protetta da una grande pensilina lignea sulla quale sono posati pannelli fotovoltaici. La facciata, che combina vetro e travertino, restituisce una sintesi tra memoria del luogo e contemporaneità. Di giorno, il volume si inserisce con discreta solidità nel contesto monumentale dell’Eur; di notte, si illumina dall’interno diventando una lanterna urbana che anima Viale America ed esprime un’idea

di architettura pubblica aperta e vitale. Al concorso avevano partecipato 31 studi e team di progettazione. L’aggiudicazione è avvenuta secondo il criterio dell’offerta economicamente più vantaggiosa nel suo rapporto qualità/prezzo, senza formulazione di alcun ribasso economico ■

Committente Agenzia del Demanio Team di progettazione in Rti Gpa Partners Plp Architecture, Oblyk, Perillo, Andrea Valentini Architect, Enser Consulenti Aspasia Archeoservice (archeologia); Lorenzo Pelino (acustica); Rita Bosi (agronoma); Fernando Russo (paesaggio); Francesca Storaro (lighiting design) Michele Carone (demolizioni)

La luce crea il luogo. Tadao Ando

Dall’alto in senso orario. Il sistema

Parco Chico Mendes e Campo sportivo.

SPOLETO

Il progetto di rigenerazione di Enzo Eusebi+Partners

Lo studio di Enzo Eusebi guida un importante intervento di rammendo urbano che coinvolge un’area di circa 50.000 mq compresa entro la cinta muraria trecentesca di Spoleto.

Il progetto – finanziato con fondi Pnrr –si sviluppa attorno a due poli principali: l’area dello Stadio Comunale e il Parco Chico Mendes. Il primo ambito prevede la demolizione del Palazzetto dello Sport e la sua ricostruzione secondo criteri contemporanei di funzionalità e sostenibilità. Il nuovo polo sportivo sarà completato dalla copertura della tribuna del campo di calcio, dalla realizzazione di una piazza coperta e dall’inserimento di servizi accessori, tra cui sistemi di accesso integrati e isole dedicate alla mobilità elettrica.

Nelle immediate vicinanze, l’ex bocciodromo verrà trasformato nella nuova

Casa della Musica, ampliando l’offerta culturale della città.

All’interno del parco sono previste nuove dotazioni tecnologiche e sensoriali, insieme al restauro dell’opera di Sol LeWitt presente nell’area verde. L’intervento comprende inoltre un complessivo riassetto del paesaggio e della viabilità, sia carrabile sia pedonale, migliorando l’accessibilità e la continuità degli spazi pubblici.

A completamento delle opere, il progetto propone anche il recupero del giardino di Palazzo Collicola e la riapertura dei collegamenti urbani storici fino all’area dello stadio comunale, ristabilendo relazioni oggi frammentate.

L’obiettivo è ricucire parti del quartiere oggi disconnesse e sottoutilizzate, valorizzando al contempo la memoria storica della città e la sua dimensione contemporanea legata agli impianti sportivi e alla vita collettiva.

Piazze, percorsi, cavee e aree verdi diventano dispositivi urbani di incontro, cultura e socialità.

Le nuove architetture dialogano con il contesto storico attraverso un linguaggio contemporaneo misurato, fondato su permeabilità visiva, articolazione volumetrica e uso consapevole dei materiali. Il progetto non si limita a trasformare gli spazi, ma propone un modello di rigenerazione urbana orientato al benessere, alla sostenibilità e alla coesione sociale ■

Località Spoleto (PG)

Committente Comune di Spoleto

Progetto Architettonico Enzo Eusebi

Progetto Strutturale Enzo Eusebi + Partners

Completamento 2026

L’interno del nuovo palazzetto dello sport. Il sistema di accesso. Render Enzo Eusebi.

www.griesser.it

www.griesser.it

Le schermature solari Griesser nascono per rispettare la salute delle persone e l’ambiente che ci circonda, integrandosi armoniosamente con la natura.

Le schermature solari Griesser nascono per rispettare la salute delle persone e l’ambiente che ci circonda, integrandosi armoniosamente con la natura.

Le schermature solari Griesser nascono per rispettare la salute delle persone e l’ambiente che ci circonda, integrandosi armoniosamente con la natura.

Comfort, sostenibilità e design si incontrano per offrire protezione, bellezza e durata nel tempo. Inspired by the Sun.

Comfort, sostenibilità e design si incontrano per offrire protezione, bellezza e durata nel tempo. Inspired by the Sun.

Comfort, sostenibilità e design si incontrano per offrire protezione, bellezza e durata nel tempo. Inspired by the Sun.

AMBURGO

BIG, il nuovo Teatro dell’opera

Nell’area di HafenCity l’architettura di Big per il nuovo teatro dell’opera di Stato di Amburgo si aggiungerà all’Elbphilarmonie e alla Elbturm, dando un ulteriore contributo alla riqualificazione dell’area portuale della città. Il teatro, che sorgerà sulla lingua di terra chiamata Baakenhöft, si sviluppa come una sequenza di paesaggi terrazzati che si innalzano dal bordo dell’acqua. Vista dall’alto, la copertura disegna una topografia circolare continua con percorsi che attraversano l’edificio, dal molo fino ai giardini sopraelevati, creando spazi di incontro all’aperto e un nuovo collegamento pubblico tra la città e il fiume. Attraversato il Baakenhafenbrücke, l’accesso principale al teatro avverrà dalla ‘strada dell’opera’ pavimentata in pietra che prosegue all’interno del foyer, ma i diversi livelli

dell’edificio saranno accessibili anche dalle terrazze che lo avvolgono. All’interno, la sala principale è definita da balconate curve che garantiscono un’eccellente visibilità verso il palcoscenico. Un rivestimento continuo in fasce di legno disposte a strati orizzontali distribuisce il suono in maniera uniforme. Alle spalle della sala principale una sala e un palco minori, le sale prove e le aree di servizio sono organizzati in modo da garantire un collegamento diretto con il palcoscenico, consentendo agli artisti di muoversi fluidamente tra prove e rappresentazioni e assicurando un flusso di attività efficiente in tutto l’edificio. Il parco circostante, progettato da Big Landscape, è pensato per gestire i ritmi mutevoli dell’Elba attraverso terrazze

degradanti, dune vegetate e giardini umidi che rallentano e assorbono il moto ondoso. Bacini di raccolta trattengono l’acqua piovana, creando habitat per anfibi, piante acquatiche e specie locali ■

Committenti Kühne Foundation, Libera città anseatica di Amburgo rappresentata dal Ministero della Cultura Opera di Stato di Amburgo

Progetto architettonico Big-Bjarke Ingels Group (partnersin-charge Bjarke Ingels, Jakob Sand, David Zahle; design lead Sarkis Sarkisyan, Michael Leef)

Progetto di paesaggio Big Landscape (Giulia Frittoli, Ulla Hornsyld, Gaspard Del Marmol, Lucia Ayala)

Consulenti Theatre Projects; Bollinger + Grohmann Transsolar; K+H; Duschl; Yanis Amasri

Superficie costruita 45.000 mq

Design e praticità in un’unica soluzione

Geometrie semplici e lineari: Alubel Linea permette di rivestire con design il tuo tetto, rendendolo unico e resistente nel tempo.

Bastano 3 veloci passaggi per montare il sistema Linea sulla tua struttura.

Posiziona la lastra, fissa con due viti le staffe alla struttura in legno in modo che sia ben ancorata, installa la seconda lastra semplicemente premendo.

OISTERWIJK, PAESI BASSI

Sistema modulare in legno di Oma e Circlewood per il centro richiedenti asilo

Il centro di accoglienza rifugiati di Oisterwijk, in funzione dal 1990, è il sito scelto per implementare e testare il metodo di progettazione e costruzione evoluta in legno HoutKern, sviluppato da David Gianotten e Michael den Otter di Oma con l’impresa Circlewood. Il sistema, adottato per la prima volta nella costruzione di un padiglione di Floriade World Expo 2022 e l’anno successivo adattato per il programma Innovation Partnership Schools della città di Amsterdam, che ha l’obiettivo di costruire nuove scuole “di elevata qualità, flessibili e sostenibili” entro il 2050, fa uso di travi e colonne di legno lamellare in misure standard, pannelli di legno Clt per

i pavimenti e partizioni bio-based per gli interni, assemblati a secco in cantiere con l’uso di gru elettriche. Gli impianti sono installati sopra i soffitti, massimizzando la flessibilità d’impiego. Le strutture sono interamente smontabili e i loro componenti riusabili come materiali da costruzione. Nel centro di accoglienza rifugiati di Oisterwijk il metodo HoutKern sarà impiegato per costruire entro quest’anno un ufficio su due piani, un activity centre e una scuola (asilo, primaria e secondaria). Ogni edificio, caratterizzato da una diversa palette cromatica che favorisce l’orientamento, generose aperture vetrate e facciate in legno che trasmettono un senso

di calore e protezione, sia per i residenti sia per il vicinato, è progettato per migliorare la vita quotidiana di 450 rifugiati residenti nel centro.

Il sistema HoutKern è implementato da un consorzio di imprese che oltre a Oma e Circlewood comprende Friso, Abt, Hedgehog, Dwa, Lomans, Heko Spanten e Lüning ■

Modello del centro con i diversi edifici previsti (foto Frans Parthesius) e il render della palazzina uffici. Courtesy Oma.

Sistema ferramenta per alzante scorrevole minimale

Legno

Profilo da 50 mm per un minimalismo estremo. Il maniglione, posizionato lateralmente in corrispondenza del nodo centrale, non interferisce con l’impacchettamento delle ante e lascia il montante libero di essere incassato nel telaio.

Un’evoluzione del sistema ferramenta per Alzante Scorrevole in risposta alle tendenze future che mirano ad un’estetica sempre più raffinata e a performance di alto livello.

www.agb.it legno/alluminio

telaio

vetro

DOHA

Frida Escobedo per la

Render della nuova sede del Ministero degli Esteri del Qatar da sud-ovest.

In basso vista dalla baia.

Inquadrando il QR code si accede al video del progetto.

nuova sede del Ministero degli Esteri del Qatar

Per realizzare una sede del Ministero degli Esteri adeguata al crescente peso geopolitico e diplomatico dell’emirato del Golfo guidato dalla famiglia Al Thani, la Qatar Blueprint (think-tank dello sviluppo urbano del Paese presieduto dalla Sheikha Al Mayassa bint Hamad bin Khalifa Al Thani) ha indetto un concorso a inviti – a cui hanno partecipato 40 studi di progettazione internazionali – vinto da Frida Escobedo con il suo studio.

Il complesso di 70.000 metri quadrati, che sorgerà sul lungomare di Doha, ingloba l’edificio modernista del General Post Office, completato nel 1985 su progetto

di Twist and Whiteley e noto per le caratteristiche volte prefabbricate in calcestruzzo ‘a nido di piccione’, il cui piano terra sarà trasformato in uno spazio espositivo pubblico che si apre su un giardino coperto.

Incentrato sulle corti, il progetto di Frida Escobedo si presenta come una ritmica composizione di volumi che si sviluppano uno sull’altro con un delicato andamento terrazzato verso nord, mentre guardando verso sud-ovest, la forma emergente crea terrazze ricche di vegetazione che si aprono su viste panoramiche.

L’involucro esterno è concepito come una

struttura avvolgente composta da pilastri verticali che bilanciano ombreggiatura, privacy e trasparenza, mentre accoglienti spazi interni ospiteranno una serie di patii verdi pensati per la riflessione, l’incontro e l’arte ■

Committente Stato del Qatar. Qatar Blueprint

Progetto architettonico Frida Escobedo Studio Ingegneria Buro Happold

Progetto del paesaggio Studio Zewde

TAICHUNG. TAIWAN

Nuova torre residenziale

verde di Mvrdv

La municipalità di Taichung ha rilasciato il permesso di costruire la torre residenziale The Island, un’architettura organica di 21 piani (oltre a due piani commerciali, dove non manca un locale dedicato all’amato karaoke, al livello della strada) disegnata dallo studio olandese Mvrdv. Fin dal nome, il nuovo edificio – che sostituisce l’attuale torre per uffici costruita prima delle normative antisismiche introdotte recentemente – si presenta come un’isola di verde all’interno dell’area densamente urbanizzata di Beitun: piante e arbusti popolano non solo i 104 balconi privati dei 73 appartamenti previsti ma creano anche 38 punti di verde verticale in facciata. Ricca di verde anche la terrazza pubblica prevista in copertura e cinque terrazze pubbliche alte tre piani ‘scavate’ nel volume dell’edificio che contribuiscono a creare un senso di apertura per i residenti. Pensato per una giovane classe media, The Island si presenta con fronti e balconi

gioiosamente curvi. Il rivestimento di facciata, un mosaico di piccoli elementi di ceramica di forma irregolare, ne segue l’andamento riprendendo una tecnica già adottata all’inizio del Novecento dal genio di Antoni Gaudí a Barcellona.

Dal punto di vista dell’impatto ambientale, in cantiere si prevede di riutilizzare parte del materiale proveniente dalla demolizione dell’edificio esistente, come la pietra che riveste l’involucro esterno e il materiale dei pavimenti, reimpiegato per le finiture delle nuove pavimentazioni.

The Island è un progetto, nelle parole di Jacob van Rijs, socio fondatore di Mvrdv, «che aggiunge un tocco originale a una città piena di rigide scatole. Dettagli come la facciata à la Gaudí e i balconi curvi e vegetati mitigano la necessità di adattarsi ai rigidi standard regolatori e ambientali» ■

SENZ’ALTRO.

ISOLARE SENZA CAPPOTTO

Con i blocchi Ytong, conformi ai nuovi C.A.M., progetti e costruisci murature monostrato omogenee, resistenti, salubri e sostenibili, in grado di garantire un alto efficientamento energetico, senza dover ricorrere ad altri isolanti.

nuovi C.A.M. CONFORME

YTONG
Blocchi in calcestruzzo aerato autoclavato

BUSAN, COREA DEL SUD

Il teatro dell’opera di Snøhetta

Apertura ufficiale agli inizi del 2027 per i 48mila metri quadrati della Busan Opera House, il progetto di Snøhetta che nel 2012 aveva vinto il concorso internazionale di progettazione. Inevitabile, anche per l’età del progetto, il confronto con l’edificio della Norwegian National Opera and Ballet che diede notorietà globale allo studio di Oslo. Anche a Busan l’architettura trasforma un edificio con funzioni elitarie in luogo pubblico e aperto a tutti, con un approccio che migliora la qualità urbana sia dal punto di vista architettonico sia da quello sociale. Percorsi, terrazze e copertura aperti e percorribili, dove passeggiare e incontrarsi, sono un gesto di generosità civica già apprezzato a Oslo.

Le geometria dell’edificio, il cui cantiere sta procedendo rapidamente, è definita da due curve opposte e continue: l’arco del piano inferiore fissa l’edificio al suolo mentre una

seconda superficie si apre verso il cielo: dalla tensione tra i due piani emergono l’edificio e la torre scenica.

I quattro angoli del teatro si estendono verso il mare, collegando fisicamente e visivamente la città al suo margine marittimo. Il tutto è rivestito da una pelle morbida e fluida che sfuma i confini tra interni e esterno. Due i punti di ingresso collegati alla passeggiata pubblica che conducono al foyer principale, orientato verso il mare, dove sono collocate le funzioni di accoglienza e il ristorante e da cui si accede all’auditorium (1.800 posti) e a una sala multifunzione da 300 posti. Un oculus in leggera pendenza dà invece accesso pubblico alla copertura, con vista panoramica sull’acqua e sulle montagne. Pannelli in calcestruzzo fibrorinforzati, alluminio, vetro trasparente e riflettente, granito i materiali impiegati ■

Committente Città di Busan

Progetto architettonico Snøhetta

Local architect Ilshin Architects

Superficie del lotto 29.542 mq

Impronta al suolo 16.217 mq

Superficie edificata 51.629 mq

Cronologia 2012-2026

Render Snøhetta e Tegmark

La collaborazione tra Mario Cucinella ed Estel ha già dato vita a importanti risultati: i nuovi showroom e uffici del polo di Thiene la nuova immagine coordinata e lo sviluppo di un sistema di arredi, Dolomite, che sarà svelato nella sua interezza e modularità in occasione del Salone del Mobile 2026.

A Mario Cucinella Architects la direzione artistica di Estel

Da una visione condivisa sul ruolo e sull’evoluzione degli spazi di lavoro nasce la recente collaborazione tra Estel e Mario Cucinella Architects. Le trasformazioni dell’ufficio contemporaneo hanno spinto l’azienda, fondata nel 1937, a rinnovare la propria immagine attraverso un linguaggio contemporaneo, capace di dialogare con il presente senza perdere coerenza con la lunga storia del brand.

Il coinvolgimento di Mario Cucinella ha

consentito di integrare visione strategica, identità e innovazione. La collaborazione ha già prodotto risultati concreti, tra cui il progetto del nuovo showroom e lo sviluppo di una collezione di arredi per ufficio. Gli uffici del polo di Thiene sono stati concepiti come un ecosistema fluido e adattabile: un open space suddiviso in zone dedicate alla concentrazione, alla socialità e al coworking, secondo una concezione di spazio di lavoro continuo e al tempo stesso

Il nostro lavoro di art direction è teso a far emergere un valore che in azienda esiste già restituendolo attraverso un linguaggio che includa il prodotto ma sappia andare oltre, abbracciando l’intera storia di Estel

Mario Cucinella

attento al benessere del dipendente. Il nuovo sistema di arredo composito Dolomite, primo prodotto nato da questa sinergia e già adottato nei nuovi uffici, è progettato per rispondere alle esigenze del lavoro contemporaneo. Il sistema comprende scrivanie operative, librerie, tavoli meeting e soluzioni per le aree break, distinguendosi per l’elevata flessibilità e capacità di adattamento. Il nome e la silhouette dei pannelli richiamano la celebre catena montuosa alpina, territorio d’origine dell’azienda.

Il valore aggiunto di Dolomite risiede nella particolare attenzione al comfort: una

porzione del piano di lavoro è regolabile in altezza, mentre pannelli fonoassorbenti integrati garantiscono un’elevata qualità acustica.

L’inserimento di elementi verdi, come vaschette per piante e sistemi di microvegetazione, contribuisce inoltre a creare ambienti più naturali e accoglienti, rafforzando la dimensione biofilica del progetto. «Con l’ingresso di Mario Cucinella come direttore artistico, Estel avvia un percorso di evoluzione che coinvolge l’identità del brand, il modo di progettare e il ruolo stesso dell’ufficio contemporaneo. Crediamo che gli

spazi di lavoro saranno sempre più centrali nelle strategie aziendali e dovranno essere progettati per risultare attrattivi, responsabili e capaci di rispondere alle aspettative delle nuove generazioni e dei professionisti» Così il presidente di Estel Group, Alberto Stella, commenta una collaborazione che segna l’inizio di un percorso destinato a generare ulteriori sviluppi e innovazioni.

www.estel.com

Il nuovo showroom de iGuzzini è uno spazio esperenziale che esalta le performance della luce attraverso design del prodotto, ricerca delle ottiche e innovazione tecnologica.

A sinistra. Cristiano Venturini CEO iGuzzini.

Lo Showroom

della Luce nel quartier generale de iGuzzini

Il nuovo Showroom della Luce de iGuzzini, progettato da Alfonso Femia in collaborazione con Artec Studio per il progetto illuminotecnico, esplora le molteplici applicazioni dell’illuminazione, dall’indoor all’outdoor. Lo spazio accoglie oltre 1.200 prodotti luminosi e offre un’esperienza immersiva capace di valorizzare gli effetti visivi degli apparecchi luminosi e delle ottiche e le diverse performance per cui sono progettati. Il foyer introduce il visitatore con un’esposizione dedicata a iGuzzini Echoes, una collezione di lampade firmate dai grandi maestri del design, oggi rieditate e aggiornate per migliorarne l’efficienza. Elemento distintivo del progetto è il Light Theatre: un grande auditorium di 300 mq con 150 posti a sedere, dove è possibile assistere a spettacoli di luci e musica articolati in nove scene luminose. Un’ampia area di 700 mq ospita il cuore

dello spazio esperienziale: attraverso sei aree applicative, i prodotti sono organizzati per evidenziarne al meglio caratteristiche, prestazioni e contesti d’uso, permettendo a ciascuno di esprimere pienamente il proprio potenziale. Lungo il percorso, design, sostenibilità e comfort visivo convergono in soluzioni innovative, tecnologiche e performanti, capaci di adattarsi a ogni esigenza progettuale. L’Outdoor Lab segue la stessa impostazione, con un focus

specifico sugli apparecchi destinati agli spazi esterni e alle aree urbane. Sistemi di illuminazione intelligente modulano la luce in base al contesto e alle necessità, ottimizzando i consumi energetici. Il progetto riesce così a esaltare il concetto di luce, dando forma a uno spazio che apre nuovi orizzonti per la cultura dell’illuminazione e per l’ispirazione di chi progetta.

www.iguzzini.com

Interno ed esterno dialogano costantemente nel progetto grazie alle grandi vetrate che ne eliminano la separazione.

Località Roccamare. Castiglione della Pescaia (GR)

Progettista Giorgio Cerrai NeatStudio Tamponamento Blocchi Ytong di Xella Pavimenti interni Kerakoll

Infissi Schüco

Data di realizzazione 2019 - 2021

Ytong per l’involucro di Casa Roccamare

Efficienza in poco spessore

Nel cuore della Maremma grossetana, il progetto della Villa a Roccamare, firmato dall’architetto Giorgio Cerrai, si inserisce con consapevolezza in uno dei contesti paesaggistici più suggestivi della costa toscana. La zona di Roccamare, caratterizzata dalla presenza di opere realizzate da importanti esponenti del panorama progettuale italiano, richiede un approccio attento e rispettoso, capace di instaurare un dialogo autentico tra ambiente naturale e tradizione architettonica. La villa si distingue per un design volutamente essenziale, dove ogni scelta – dalle soluzioni costruttive alla selezione dei materiali – è guidata da un principio di coerenza e intenzionalità. L’architettura rinuncia a gesti eclatanti per privilegiare un linguaggio sobrio, in cui proporzioni, luce e materia diventano strumenti primari di espressione.

La relazione con il contesto costituisce il fulcro del progetto: gli ambienti interni si configurano come un grande patio aperto verso il paesaggio, uno spazio fluido in cui il confine tra interno ed esterno si fa sottile. Ne deriva un equilibrio dinamico tra pieni e vuoti, tra superfici compatte e aperture trasparenti, che amplifica la percezione della pineta e della luce mediterranea. L’intervento ha comportato una trasformazione sostanziale rispetto alla configurazione preesistente. Il passaggio da una struttura in cemento a un organismo architettonico più fluido e plastico ha restituito alla casa una nuova identità. Le forme risultano ora più morbide e integrate nel contesto, in grado di coniugare comfort abitativo e percezione del luogo. Particolare attenzione è stata dedicata alla scelta dei materiali, orientata verso soluzioni capaci di garantire elevate prestazioni

termo-igrometriche a fronte di uno spessore contenuto. Questo approccio ha consentito di preservare la leggerezza visiva dell’edificio e la continuità del disegno architettonico mantenendo pulita la lettura dei volumi. In questo contesto, i prodotti Xella si sono rivelati particolarmente idonei alle esigenze progettuali. Per l’involucro è stato adottato il blocco Ytong Thermo da 20 cm, integrato con uno strato isolante, una controparete interna in cartongesso e un rivestimento esterno in cemento armato faccia a vista, in parte bocciardato. Questa stratigrafia consente di coniugare efficienza energetica, comfort abitativo e qualità estetica, assicurando al contempo durabilità e coerenza espressiva.

www.xella-italia.it

Sistema Isotec Parete Connubio ideale tra design e funzionalità

In una zona semicentrale, dinamica e ben servita di Como è sorto un nuovo complesso residenziale, fi rmato da Roberto Leoni e realizzato da Mazzucchi Costruzioni.

L’intervento si distingue come esempio virtuoso di nuova edilizia urbana, dove estetica, effi cienza energetica e qualità dei materiali convergono.

Per la realizzazione della facciata isolata e ventilata è stato scelto Isotec Parete di Brianza Plastica, per le elevate prestazioni termiche, la rapidità di posa e la perfetta compatibilità con rivestimenti di finitura di pregio. L’intervento ha previsto anche l’installazione di monoblocchi preisolati per la gestione dei fori finestra, facilitando così l’integrazione dell’isolante con i serramenti. L’elevata capacità coibente del Sistema Isotec Parete, caratterizzato da un’anima in poliuretano espanso rigido, ha contribuito al raggiungimento della Classe Energetica A del complesso.

La scelta di una facciata ventilata offre

maggiore protezione dall’irraggiamento solare estivo, grazie alla ventilazione attivata tra isolante e rivestimento (effetto camino), riduzione delle condense invernali e un eccellente comportamento termoigrometrico.

Borghi 8 si sviluppa su quattro piani fuori terra per un totale di 23 unità abitative di diversa tipologia. La progettazione è stata condotta con particolare attenzione all’esposizione alla luce naturale, alla vivibilità e alla fl essibilità degli spazi, offrendo un risultato finale di elevata qualità. Ogni appartamento dispone di terrazze e, al piano terra, di portici e giardini privati, oltre a box auto e cantine.

Elemento caratterizzante dell’intervento è il rivestimento in gres porcellanato effetto pietra di grande formato, con finiture nella variante Ceppo Lombardo e color moka.

www.sistemaisotec.it

Località Como

Progetto architettonico Roberto Leoni

Committente Mazzucchi Costruzioni

Progetto facciate Enzo Montini

Isolamento ventilato Sistema Isotec Parete

Superficie facciate isolate con Isotec Parete 840 mq

COMPOSITI, IN PVC DURO E IN ALLUMINIO

Kömmerling Pannelli

Ampia offerta di soluzioni per edilizia, industria, pubblicità e comunicazione visiva, rivestimenti interni ed esterni per il rivestimento di qualunque tipologia di superficie verticale. Vasta scelta di colorazioni e finiture, per un risultato finale dall’impatto eccellente. kommerling.it/pannelli

A destra, tipici del precedente laboratorio artigianale e conservati gli archi del portone e della finestra superiore dove con un intervento custom sono stati inseriti i nuovi profili in alluminio a taglio termico Eku Perfektion.

A destra, gli spaziosi interni del loft conservano il fascino della struttura storica con porzioni di pareti in mattoni a vista e l’aspetto industriale del soppalco. Nell’altra pagina, il progetto degli interni che trae vantaggio dal grande apporto di luce naturale mescola rigore e vivacità nel contrasto tra il nero dominante e la carta da parati a motivi floreali.

Località Monza

Architettura Umberto Regalia; Giorgio Modica (mdc studio)

Ingegneria Pierpaolo Cicchiello (Cicchiello e Partners)

Sistema Eku Perfektion Hps

Serramentista F.O.R.S.

Foto Andrea Angelucci

Profili a taglio termico Eku Perfektion

per un loft che nasce da una riconversione

A Monza, nei pressi del Duomo, un edificio dei primi dell’Ottocento è stato trasformato in un moderno loft dal design contemporaneo. L’articolata storia dell’edificio contiene le tracce dei diversi cambiamenti di destinazione d’uso che si sono susseguiti nel tempo. L’architetto Umberto Regalia è intervenuto sul piano terra, dove era ancora presente un laboratorio artigianale, valorizzando la struttura di matrice industriale. L’unità residenziale occupa circa 350 mq, a cui si aggiungono 120 mq di soppalchi, 50 di giardino e 40 di sottotetto.

Efficienza energetica e sicurezza hanno guidato l’intero progetto: profili in acciaio montati a gabbia hanno migliorato la risposta antisismica, mentre un cappotto termico e l’impiego di una pompa di calore ad alta efficienza, insieme all’installazione

di un impianto fotovoltaico, ha consentito all’edificio di raggiungere la classe energetica A4 ‘a energia quasi zero’. Ampie vetrate favoriscono il generoso ingresso di luce naturale nell’abitazione. Le aperture esistenti sono state liberate e valorizzate, diventando protagoniste dello spazio. Ripristinata anche la luce zenitale, un tempo oscurata da tegole e da un controsoffitto – ora rimosso – che riduceva sensibilmente l’altezza interna, permettendo ai raggi solari di penetrare in profondità e ampliare la percezione volumetrica. Per i serramenti è stata scelta Eku, apprezzata per le elevate prestazioni e le linee essenziali dei profili. In particolare, la grande vetrata di 3 x 3,5 metri che illumina il soggiorno e incornicia il tramonto appartiene alla collezione Eku Perfektion Hps. Il sistema in alluminio a taglio termico,

adottato anche per le aperture a battente, nasce dall’evoluzione della linea Perfektion e si distingue per l’impiego di barrette isolanti di maggiori dimensioni, capaci di migliorare ulteriormente le performance termiche e di adattarsi a contesti differenti.

La sezione del profilo è ridotta al minimo, massimizzando l’apporto di luce naturale senza rinunciare al comfort termico e acustico.

In questo intervento Eku conferma la propria competenza nella produzione di serramenti di alta qualità, dimostrando come soluzioni tecnologicamente avanzate possano integrarsi con un progetto non convenzionale, lontano dai modelli abitativi standard.

www.eku.it/perfektion/

Al centro del WaltherPark una grande fontana con una superficie di 110 mq e composta da 44 ugelli disposti lungo quattro file separate anima la zona con giochi d’acqua accompagnati da luci colorate durante la notte.

Ogni ugello ha una pompa autonoma in modo da permettere un controllo più mirato e coreografie complesse sincronizzate con le luci.

La fontana dinamica di Forme d’Acqua per il WaltherPark di Bolzano

In un progetto sviluppato nell’arco di oltre dieci anni, David Chipperfield Architects ha ridato vita a un’area di circa 15mila metri quadrati nel centro di Bolzano, situata tra Waltherplatz, la cattedrale e la stazione ferroviaria, una zona gravemente danneggiata durante la Seconda Guerra Mondiale che era stata ricostruita tra gli anni Cinquanta e Settanta. Lo studio di Berlino ha lavorato sul tessuto urbano eterogeneo e frammentato con un progetto che con altezze diverse media tra la scala del centro storico cittadino e quella della grendi strutture del dopoguerra per dare forma all’attuale WaltherPark, complesso che integra funzioni residenziali, uffici, hotel e spazi commerciali. Lo sviluppo, a traffico limitato, si connette agli assi storici e ai margini stradali, ridisegnando anche il Parco Stazione.

L’area verde antistante il complesso è diventata uno spazio dedicato al relax e al tempo libero per cittadini, turisti e famiglie. Al centro l’intervento di Forme d’Acqua: una

grande fontana dinamica, composta da 44 ugelli disposti lungo quattro file parallele da undici getti ciascuna, che copre una superficie complessiva di oltre 110 mq. La particolarità dell’opera risiede nella tecnologia selezionata per l’impianto: ogni ugello è dotato di una pompa autonoma, soluzione che consente un controllo puntuale e indipendente dei singoli getti d’acqua. Questa configurazione garantisce un’elevata dinamicità della composizione acquatica, rendendo possibile la realizzazione di coreografie complesse e sincronizzate con le scenografie luminose. L’indipendenza di movimento di ciascun getto permette inoltre una notevole flessibilità operativa, ottimizzando l’effetto visivo e la risposta dell’impianto in tempo reale, anche in presenza di condizioni ambientali variabili. La sostenibilità è parte integrante del progetto: la fontana evita sprechi idrici riutilizzando la stessa acqua grazie a un sistema di filtrazione e ricircolo.

L’impianto preleva l’acqua dai pozzetti tecnici, la filtra, ne regola automaticamente i valori di pH e Redox (ossidoriduzione) e la reimmette in circolo pulita e sicura. In questo modo vengono preservate sia le componenti meccaniche sia la salute delle persone che entrano in contatto con l’acqua. Prima di ogni eventuale scarico, un impianto di declorazione provvede alla rimozione del cloro residuo, garantendo il rispetto delle normative vigenti e la tutela dell’ambiente. Inoltre, grazie a un anemometro, l’altezza dei getti viene regolata automaticamente in base alla velocità del vento, ottimizzando consumi e comfort.

Forme d’Acqua è stata incaricata da Strabag, aggiudicataria dell’appalto, con direzione lavori affidata allo Studio Ingena, per la progettazione e realizzazione delle parti Mep della fontana e per la programmazione di cinque coreografie di giochi d’acqua e luce.

www.formedacqua.com

Colombo Sanguineti. Sedia CH 1017, anni Cinquanta, telaio in legno, sedile in trafilato di paglia d’India. Linea Gallery, Chiavari. Foto Linea Gallery.

Storie di Design

Possiamo pensare la storia del moderno design come una sequenza di onde lunghe, ciascuna delle quali ha ridefinito il senso stesso del progetto. La prima è una stagione eroica. È il tempo in cui si struttura la moderna concezione del design: il passaggio dall’artigianato all’industria, dalla bottega alla fabbrica, dall’unicum al prototipo. È la stagione del pensiero per standard, della produzione in serie come promessa democratica. L’idea è semplice e radicale: produrre in massa per abbattere i costi e consentire a tutti di accedere a oggetti insieme belli e ben fatti. È la cultura del Bauhaus, dove forma e funzione si tengono in un equilibrio quasi morale. Nascono in quegli anni i mobili puristi di Charlotte Perriand e di Le Corbusier, quelli minimalisti di Mies van der Rohe, le curvature organiche di Alvar Aalto. Oggetti che sembrano teoremi: dimostrazioni materiali di un’idea di mondo. Il passo successivo è un processo di umanizzazione. I prodotti della prima fase erano splendidi ma talvolta dogmatici, convinti di poter risolvere i problemi dell’abitare con la sola forza della razionalità. La seconda fase sposta l’asse: non basta funzionare, bisogna piacere. Il design entra nelle case non come manifesto ma come presenza familiare. Le sedie di Charles e Ray Eames non sono più enunciati astratti: sono oggetti che accolgono, che dialogano con il corpo e con la vita quotidiana. In questa stagione il design italiano prende il sopravvento.

I mobili degli anni Sessanta di Franco Albini, Ignazio Gardella, Gio Ponti, Marco Zanuso, Vico Magistretti fanno scuola: leggeri, intelligenti, eleganti senza ostentazione. Il progetto si fa

The Project of Things

domestico, misura il proprio valore sulla capacità di costruire un paesaggio condiviso.

La terza fase incrina le certezze precedenti. Funzione e produzione in serie non bastano più a definire il senso del design.

Dalla funzione si passa al desiderio. Cambia la cultura, sotto la spinta dei movimenti del Sessantotto e del Settantasette: irrompe il tema dell’identità, dell’espressione individuale. E cambia il mercato, che chiede di andare oltre l’utile. Se compro un oggetto perché mi piace, poco importa se ne ho davvero bisogno. Il consumo diventa linguaggio, il prodotto diventa segno. Il design si avvicina alla moda, alla comunicazione, alla spettacolarità.

A questo punto interviene l’arte ad ampliare ulteriormente il campo del desiderio. Si apre una quarta fase in cui il design riscopre il pezzo unico, la tiratura limitata, l’oggetto come opera. Si manda all’aria l’idea di economicità come valore intrinseco. Se vuoi risparmiare c’è Ikea; se vuoi distinguerti, cerchi l’eccezione. Il progettista è tentato di farsi artista, di inseguire l’aura invece della serie. È qui che si impone una pausa. Forse occorre fare un passo indietro e tornare ai fondamenti. Chiedersi a cosa serva oggi progettare. Se il design è solo produzione di desiderio, perde la propria responsabilità pubblica. Se è solo esercizio formale, dimentica la vita. Preparare una quinta fase significa recuperare una dimensione etica: progettare non per stupire, ma per migliorare; non per escludere, ma per includere. Essere progetto, prima ancora che fare progetto.

Odo Fioravanti

www.fioravanti.eu @odo_fioravanti

Negli ultimi vent’anni anni, o almeno da quando ha aperto il suo studio, Odo Fioravanti – dopo una formazione in Industrial Design presso la Facoltà del Design del Politecnico di Milano – ha costruito un percorso coerente e riconoscibile nel panorama del design italiano, fondato su una combinazione rara di rigore industriale, leggerezza formale e intelligenza produttiva. La sua cifra non è mai gridata: si manifesta piuttosto in un equilibrio sottile tra funzione, processo e identità, in cui ogni oggetto sembra nascere da una riflessione precisa sulle tecnologie e sulle logiche dell’industria contemporanea. Avendo sempre lavorato ‘dall’interno’ del sistema produttivo, per aziende italiane e internazionali – solo per citarne qualcuna: Pedrali, Desalto, da Foscarini a Fontana Arte, da Flou a Alpi, LG Electronics, Toshiba – Fioravanti ha saputo evitare la tentazione dell’oggetto-iconico fine a sé stesso. Il suo approccio creativo parte sempre da un’analisi tecnica: materiali, stampi, cicli di lavorazione, costi. Uno sguardo analitico che però non si traduce mai in freddezza. Al contrario, l’oggetto finale, sia una sedia, una lampada, un accessorio, restituisce una naturalezza quasi inevitabile, come se la forma fosse la conseguenza più semplice e logica di un processo ben risolto. Lo testimoniano i tanti premi e riconoscimenti ricevuti nel corso degli anni. E i temi di ricerca cari al designer: riduzione dello spessore,

Odo Fioravanti

Quell’equilibrio sottile tra processo, funzione e identità

ottimizzazione strutturale, eliminazione del superfluo. Un’attenzione alla sostenibilità intesa in senso pragmatico, con strategie concrete: meno materiale, progettazione per lo smontaggio, efficienza nei trasporti, durata nel tempo. Una sostenibilità che coincide con la buona progettazione industriale, lontana dall’estetica ‘eco’ di maniera. Criticamente, la sua traiettoria può essere letta come una riaffermazione di un certo spirito del design italiano: quello della competenza tecnica unita a una cultura del progetto profondamente radicata nel sistema produttivo. In un’epoca dominata dall’immagine e dalla velocità comunicativa, Fioravanti continua a lavorare su oggetti che resistono nel tempo perché nati da un pensiero strutturato, non da una tendenza. La sua è una pratica che non cerca l’eccezionalità, ma l’evidenza: l’idea che il design migliore sia quello che, una volta visto, sembra non poter essere diverso da così. Ed è proprio in questa apparente semplicità che si riconosce la maturità di un progetto.

A proposito, 2006-2026: come e se pensi sia cambiato il ruolo del designer – inteso come soggetto attivo del cambiamento, portatore di visione, desiderio e responsabilità – e del progetto – inteso come processo in continua evoluzione – in questi ultimi vent’anni? Sinceramente la forza del design in questo momento mi sembra un po’ più spenta. La

Rifare. Ricerca ossessiva per un vaso in metallo. Diemmebi. 2025 Durante il processo progettuale arriva il momento di sperimentare, in un modo simile a un’ibridazione genetica le possibili varianti della forma dell’oggetto che si sta progettando. Qui entrano in gioco cambi di misura, proporzione, inclinazione, allineamento in modo abbastanza empirico, alla ricerca di una forma che sembri quella giusta. Il tema è rifare da capo, mille volte la stessa cosa. Questo progetto di ricerca mostra la campionatura delle varianti di uno di questi percorsi, questa volta per realizzare un vaso in metallo.

disciplina dei maestri si è trasformata in un fenomeno massivo in cui tantissimi giovani si rivolgono allo studio del design con una motivazione un po’ emulsionata, spesso solo perché suona contemporaneo e rappresenta una buona mediazione rispetto a studi artistici. Il mercato invece si è appiattito su un profilo di riduzione dei rischi, con oggetti tutti mol-

Intervista di Giulia Mura
Foto Gaetano de Rosa

Frida. Sedia in legno curvato 3D Pedrali. 2008

Leggera ma resistente, minimale ma non anonima, la sedia Frida (First prize Sedia dell’anno Promosedia, 2008 XXII Compasso d’Oro 2011, German Design Award 2013) è diventata in breve tempo un riferimento nel settore dell’arredo contract.

Perché rappresenta un’importante svolta tecnologica: per la prima volta è stato trovato il modo di fissare una scocca in multistrato tridimensionale di soli tre millimetri di spessore su una struttura in legno massello. Il design degli elementi enfatizza la forma della seduta, rivelandone i profili sottili. Il risultato non è un esercizio stilistico, bensì una sintesi tra ricerca ingegneristica e sensibilità formale.

to simili. Se pensiamo a come erano diverse le automobili trent’anni fa e come sono tutte uguali oggi, appare evidente che qualcosa non sta funzionando. Non so cosa succederà, ma questo design un po’ sfiatato – come quei vini lasciati senza tappo – rischia di essere spazzato via dall’intelligenza artificiale. A meno che non si torni a usare un pensiero critico, trovando risposte al ‘perché fare’, prima del ‘cosa fare’.

Esiste un progetto che senti l’urgenza di dover immaginare, da qui al prossimo futuro? Non ho in mente un progetto preciso, ma una modalità che mi interessa mantenere. Voglio occuparmi di quello che mi interessa davvero e infonderlo di senso. Provare ad evitare le mode del momento. Riportare il design al processo ‘intellettualmente elegante’ che

dovrebbe animarlo, come diceva Massimo Vignelli.

Se dovessi definire il tuo lavoro in tre parole o aggettivi, quali sarebbero?

La prima è ‘intenzionale’ come nel caso degli omicidi più gravi. In un tempo in cui la progettazione si è trasformata in una prassi fatta di colposità più o meno scellerate, mi sforzo di far sì che i miei progetti siano connotati da un senso profondo e siano il risultato di una spiccata premeditazione. La seconda è ‘intenso’. Lo sforzo di rendere gli oggetti intensi cioè significativi senza sovraccaricare la loro parte significante, l’aspetto. Mi interessa anche ‘esattezza’, cioè lo sforzo di tenere intatta l’idea iniziale fino alla fine del processo di industrializzazione.

Groove. Sistema di docce ispezionabili da incasso. Alpi Rubinetterie. 2022 Groove è la linea di docce ispezionabili progettata per Alpi. Un sistema innovativo che permette di verniciare il soffione con la stessa finitura del soffitto, pur restando rimovibile per la manutenzione, e quindi completamente ispezionabile. Le docce Groove si integrano nel controsoffitto senza comprometterne la continuità superficiale, mentre le tre scanalature concentriche nascondono le uscite dell’acqua e le giunzioni.

Groove è realizzato con una schiuma poliuretanica adatta a qualsiasi vernice. La superficie può essere texturizzata e rifinita esattamente come il resto del controsoffitto.

Foto Franco Rossi

Federico Fiermonte

Il progetto come processo aperto

Nato a Roma, Federico Fiermonte inizia il suo percorso accademico nell’ambito dell’Economia, salvo poi compiere una scelta netta: orientare la propria ricerca verso il progetto, iscrivendosi a Design Industriale presso la Libera Università di Bolzano. Una decisione che segna l’inizio di una formazione internazionale e itinerante, sviluppata tra Nord Italia, Regno Unito, Germania, Finlandia e Austria, in un continuo attraversamento di culture progettuali differenti.

Alle esperienze accademiche affianca sin da subito una pratica professionale di respiro europeo, presso studi di primo piano come Läufer+Keichel a Berlino, GamFratesi a Copenaghen ed Eoos a Vienna. Contesti nei quali Fiermonte si confronta con committenze di alto profilo – Hermès, Kristalia, De Padova, Poltrona Frau, Acqua di Parma, Harlan+Holden, Minotti, Ørgreen e la Bill & Melinda Gates Foundation – operando tra arredo di lusso, interior, design decorativo e progetti orientati alla sostenibilità e al design circolare. Un’esperienza trasversale che consolida una visione capace di tenere insieme

rigore industriale, sensibilità artigianale e responsabilità ambientale.

Dal 2021 al 2025 è a Helsinki, dove fonda il suo studio. E dove lavora presso i workshop della Aalto University affiancando studenti e ricercatori nell’ambito delle tecnologie avanzate – come stampa 3D e taglio laser – contribuendo a costruire un ponte tra ricerca e produzione. Parallelamente collabora con la Paimio Sanatorium Foundation nella valorizzazione del celebre complesso modernista e affianca il docente Simo Puintila nel corso principale di design, Product and Form I + II, all’interno di una joint venture universitaria con Genelec, azienda leader nel settore acustico. Un periodo che consolida la sua attitudine al progetto come processo aperto. Oggi, Fiermonte è di base nella vivace, dinamica, cosmopolita Vienna, città in cui prosegue la sua attività professionale nell’offspace collettivo per il design contemporaneo CO__AG, producendo pezzi dal carattere scultoreo: sedute, librerie, vasi, lampade che attingono all’immaginario classico e mettono a sistema il suo background culturale italia -

Federico Fiermonte www.fiermonte.design @fiermonte_federico

no – e il forte legame con la sua città natale, Roma – con l’influenza che il mondo scandinavo ha avuto su di lui, cercando di conciliare nuove tecnologie e un tocco di artigianalità.

La sperimentazione con i materiali gioca infatti un ruolo fondamentale nella sua pratica, portando ill legno (suo materiale d’elezione) la ceramica, il cemento e i metalli ai loro limiti. Il risultato è un linguaggio che oscilla tra archetipo e innovazione, tra memoria e prototipo.

E che ha prodotto progetti che in questi anni sono stati esposti in diverse fiere ed eventi europei, dal Fuorisalone con Isola Design alla Dutch Design Week, dal London Design Festival al SaloneSatellite 2024, 2025 e – spoiler – presto 2026, dalla Fiera Habitare di Helsinki alla Stockholm Creative Edition.

Oltre a ciò Federico Fiermonte tiene sempre aperti i suoi orizzonti nel campo artistico e dei collectibles, con opere ospitate in gallerie a Londra e Helsinki, confermando una pratica che si muove consapevolmente tra industria, autoproduzione e ricerca autoriale.

Echo. Libreria. 2024

Echo è un progetto che riunisce molte ricerche e riflessioni sul tema dell’arredo. La libreria è per Fiermonte un elemento affascinante: può assumere forme e costruzioni diverse, godendo di una libertà espressiva unica. Non è però soltanto un contenitore, ma un ritratto silenzioso del suo proprietario, una finestra sui suoi interessi, sulla sua formazione e sulla sua cultura. La sua struttura laterale, definita da un’elegante forma a V – ispirata

al Brutalismo o al Razionalismo –non è solo un dettaglio estetico. Composta da elementi inclinati di 16 gradi, permette a ciascun modulo di incastrarsi saldamente con quello sottostante grazie a un bordo sporgente. Un sistema a incastro che garantisce stabilità senza l’uso di controventature, evidenziando un equilibrio tra forma e funzione. La ripetizione delle forme nello spazio ha ispirato il nome, come un’eco strutturale che si riflette modulo dopo modulo.

Etrua. Chaise longue e ottamana 2023

Nomen omen. Un progetto che richiama le sedute curule, simbolo di potere e autorità, realizzate oltre tremila anni fa in Etruria, nell’Italia centrale. Le sue iconiche linee a X furono riprese dagli antichi Romani, da Napoleone e, in epoca moderna, da architetti come Mies van der Rohe. La poltrona è realizzata in quercia rossa nordamericana, mentre lo sgabello è in pioppo finlandese, in un chiaro riferimento all’architettura contemporanea del Paese in cui è

stata costruita, la Finlandia, in dialogo ideale con luoghi simbolo degli ultimi anni, come la biblioteca Oodi o il nuovo terminal aeroportuale. Le sue curve morbide si armonizzano con quelle geometriche dell’architettura, mentre la matericità naturale del legno introduce un contrasto organico e scultoreo. Prodotta tramite fresatura Cnc di blocchi di legno massiccio successivamente assemblati e incollati, la seduta, lavorata in parti separate, è unita con perni interni e arricchita da giunzioni laterali a funzione sia strutturale che estetica.

Roman stools. Sgabello. 2025 Questa collezione di sgabelli nasce dal profondo legame con la cultura e la storia di Roma. Linee geometriche regolari e ben definite ne caratterizzano la forma, ispirata a due elementi distintivi dell’architettura antica: gli archi (di origine etrusca) e le strutture interne a scale, presenti in molti monumenti e architetture della Città Eterna. La scalatura, tipicamente romana, in questo progetto diventa estremamente fisica ma viene

connessa al tempo stesso alla seduta, mantenendo una parte superiore accogliente e confortevole, sostenuta da una struttura sottostante rigida e geometrica. La serie è stata realizzata in legno massiccio di quercia rossa nordamericana e in frassino, allineando con cura le venature per ottenere un disegno armonioso capace di valorizzare ulteriormente la struttura e l’importanza del legno nella sua natura robusta e materica.

Jorge Penadés www.penades.xyz @jorgepenades

Nato a Málaga nel 1985 e oggi attivo a Madrid, Jorge Penadés – recentemente indicato da AD Usa tra gli One to Watch 2025 – sviluppa una pratica che attraversa product design, interni, installazioni e ricerca, muovendosi costantemente tra dimensione progettuale e indagine sui sistemi produttivi. La sua relazione con il design, del resto, ha radici precoci. Cresciuto in una famiglia di ebanisti, entra fin da piccolo in contatto con il mondo dell’artigianato e con una logica concreta del fare. Questo rapporto diretto con materiali e tecniche rimane una matrice fondamentale del suo lavoro, che pur muovendosi in ambito contemporaneo, conserva sempre una forte attenzione per la cultura della produzione e la sperimentazione, a cui si sommano consapevolezza ambientale e una sensibilità profondamente radicata nella cultura mediterranea del progetto. Il suo percorso formativo si sviluppa tra Barcellona e Madrid, dove studia interior e product design prima di fondare, nel 2015, il proprio studio. Fin dagli esordi, Penadés si distingue per un approccio che privilegia la ricerca rispetto alla pura definizione formale dell’oggetto. I suoi progetti, infatti, nascono spesso da un processo di osservazione e sperimentazione che coinvolge materiali, scarti industriali o risorse locali, trasformando il design in uno strumento di indagine sulle possibilità della

Jorge Penadés Quando la forma nasce dalla materia

materia. Un’attitudine che lui stesso definisce “reaserch-driven”: Penadés lascia che siano le qualità fisiche e strutturali della materia, i suoi limiti e le opportunità che offre a suggerire direzioni e soluzioni progettuali. Ne deriva un linguaggio sobrio, spesso essenziale, in cui la forma appare come il risultato naturale di un processo di esplorazione.

All’interno di questa prospettiva, il tema della sostenibilità assume un ruolo centrale: per Penadés progettare significa interrogarsi sulla provenienza delle risorse, sui cicli di produzione e sulla possibilità di riattivare materiali marginali o sottoutilizzati. Molti dei suoi lavori nascono infatti dal recupero di residui industriali o agricoli, reinterpretati attraverso nuove tecniche e nuovi contesti d’uso.

Parallelamente alla produzione di oggetti, lo studio lavora anche su progetti di interior design, installazioni e collaborazioni con gallerie, istituzioni culturali e aziende (una su tutte: la Camper, per la quale ha disegnato vari store nel mondo, l’ultimo dei quali a Tokyo). Alcuni dei suoi lavori sono entrati in importanti collezioni museali, come al Vitra, confermando il valore di una ricerca che si colloca a metà tra design, sperimentazione e riflessione critica sui processi produttivi. Più che costruire uno stile riconoscibile, Jorge Penadés sembra interessato a definire un metodo: il suo lavoro

Uprooted. V01 e V02, 2025 e 2026

Uprooted è una ricerca dedicata alle radici degli ulivi provenienti dall’industria olearia spagnola, normalmente destinate alla combustione. Penadés ha studiato il comportamento di questo materiale, e sviluppato arredi che ne valorizzano la struttura organica. Uprooted è composto da due capitoli: il primo, presentato lo scorso anno al Madrid Design Festival, esplora il potenziale della parte dell’albero che cresce sottoterra. Il secondo, appena presentato al Matter of Shape di Parigi, indaga lo sviluppo di nuovi oggetti e di un tappeto, realizzato in collaborazione con cc-tapis, che trasforma le texture e le cromie dell’ulivo in forma tessile, fondendo motivi ispirati alle radici con la palette calda e terrosa dei paesaggi mediterranei.

Intervista di Giulia Mura
Foto Asier Rua

LMNUV. 2025

Look Mum, No UV! è un sistema costruttivo – concepito nel 2018 come parte della mostra ‘Manifesto’ curata da Jana Zielinski e Jiri Macek a Praga – che unisce pannelli di vetro tramite cricchetti metallici e cinghie di cuoio: per l’assemblaggio dell’opera non è stata utilizzata alcuna colla o adesivo. I pannelli sono costituiti da un vetro temperato laminato a tre strati, di cui quello intermedio frantumato, in modo da generare un motivo incontrollato. Queste fratture sono incapsulate in modo sicuro tra gli strati, mantenendo intatte le proprietà strutturali. Oltre al suo impatto

suggerisce che il ruolo del designer contemporaneo non sia soltanto quello di progettare oggetti, ma anche di esplorare le relazioni tra materia, industria e territorio, aprendo nuove possibilità all’interno dei sistemi produttivi esistenti. In questo senso, la sua pratica si inserisce in una generazione di progettisti che vede nel design non solo una disciplina formale, ma uno strumento capace di ridefinire il valore delle risorse e il modo in cui le utilizziamo.

Cosa significa per te Essere Progetto? Per me, ‘Essere Progetto’ significa operare in un continuo stato di ricerca. Non vedo i progetti come entità isolate, ma come capitoli di un’indagine più ampia sui materiali, le loro origini e i sistemi che ne plasmano la produzione.

Piscis x BD Barcelona. 2019

Piscis è una collezione di vasi in edizione limitata per il produttore spagnolo BD Barcelona. Tutti i vasi sono realizzati a partire da uno stock di profili in alluminio estruso provenienti da vecchi prodotti, ritirati dal catalogo diversi anni fa. I profili originali vengono decostruiti tagliandoli longitudinalmente e poi riorganizzati in forme nuove e non convenzionali. Rifiniti con verniciatura a polvere metallica, sono dotati di un cilindro in borosilicato per composizioni floreali bagnate.

visivo, il vetro fratturato introduce un’interazione unica con la luce che si rifrange, si piega e si disperde, creando distorsioni scintillanti, ombre e texture superficiali impossibili da ottenere con il vetro liscio. Il tavolino è tenuto insieme da cricchetti industriali, tipicamente utilizzati per fissare i carichi durante il trasporto. Un sistema di giunzione che crea un netto contrasto con la delicatezza del vetro e si traduce in un pezzo raffinato e robusto al tempo stesso. Il titolo è un giocoso cenno alla frase infantile “Guarda, mamma! Senza mani!” qui riproposta come orgogliosa dichiarazione di un linguaggio costruttivo non sintetico.

Un progetto diventa uno strumento per articolare le relazioni tra industria e artigianato, scarti e valore, patrimonio e cultura. Anche quando un oggetto è completato, la ricerca che lo ha generato rimane attiva. In questo senso, essere progetto significa meno produrre una forma e più costruire una metodologia.

Cosa significa essere un designer oggi e quali le principali responsabilità?

Essere un designer oggi significa essere criticamente consapevoli delle conseguenze delle nostre decisioni. Siamo immersi in catene di approvvigionamento globali, urgenze ambientali e narrazioni culturali che inevitabilmente rafforziamo o mettiamo in discussione. La nostra responsabilità non è solo formale ma

strutturale: mettere in discussione il modo in cui i materiali vengono reperiti, come viene trasmessa la conoscenza e come viene costruito il valore. Il design, quindi, dovrebbe andare oltre la mera produzione di nuovi oggetti e rivelare invece possibilità nascoste, offrendo modi di vivere alternativi.

Secondo te, su quali temi di ricerca dovrebbe concentrarsi il design nei prossimi anni? Il futuro del design non sta nell’inventare di più, ma nel ridefinire il nostro rapporto con ciò che già esiste, passando dall’estrazione alla trasformazione e alla gestione a lungo termine.

Foto Laura San Segundo
Foto Geray Mena

L’intervento sull’edificio del Teatro della Tosse migliora sensibilmente l’impatto urbano della preesistenza e stabilisce un dialogo con il complesso storico di Sant’Agostino.

Dodi Moss

Caratteristica peculiare dello studio fin dalla fondazione nel 2004 è la sua natura di società di liberi professionisti provenienti da ambiti molto differenti: architetti, geologi, agronomi e ingegneri. La collaborazione di professionalità così differenti permette di affrontare interventi molto diversi tra loro. www.dodimoss.eu

DODI MOSS

Fondata nel maggio del 2004 da un gruppo di professionisti con una visione condivisa dell’architettura e dell’ingegneria, Dodi Moss si è occupata un po’ di tutto: dai progetti residenziali, agli edifici pubblici, agli spazi commerciali.

Tuttavia, soprattutto negli ultimi dieci anni di attività, ha concentrato le proprie energie, risorse e scelte strategiche sullo sviluppo di progetti di restauro, rigenerazione urbana e paesaggio. E ha accumulato una specifica esperienza per i lavori dove vi è stretto rapporto tra ambiente costruito e natura, come per esempio il recupero di parchi e aree verdi, in particolare nei luoghi segnati da stratificazioni storiche, fragilità ambientali e conflitti d’uso.

Cinque sono i principi sui quali ha puntato: la sostenibilità, l’innovazione tecnologica, l’umanizzazione, l’interdisciplinarietà, la risposta al contesto. Temi per la verità

condivisi dalla maggior parte degli studi di progettazione operanti in Italia, ma che Dodi Moss applica con notevole intelligenza progettuale. Sono diversi, infatti, coloro che i principi li dichiarano e basta, da chi, già nell’organizzazione, punta su specifiche specializzazioni, per esempio coinvolgendo esperti del verde e agronomi, al fine di integrare e completare il know how progettuale dello studio.

Numerose le realizzazioni, dal Teatro della Tosse agli interventi urbani di Bari Costa Sud, dalla Valletta Carbonara alla riqualificazione della Caserma Rossani, passando per Forte Tenaglia e Piazza Pastene. Possiamo considerarle come tasselli di una ricerca coerente, dove l’etica dello spazio pubblico gioca un ruolo rilevante. Ricerca che dal punto di vista formale ricorda il migliore High Touch italiano, cioè un approccio attento alle tecnologie innovative, ma che evita

La pelle in lamiera stirata anodizzata che avvolge interamente l’edificio della Fondazione Luzzati

Teatro della Tosse.

asprezze ed esibizionismi per orientarsi verso l’umanizzazione della tecnologia e la ricerca della leggerezza. Leggerezza che sembra essere la qualità che in forma più evidente caratterizza e unifica le opere dello studio. Nel Teatro della Tosse, l’ingegneria strutturale e impiantistica non si limita a garantire la funzionalità di uno spazio complesso, ma contribuisce a definirne il carattere: flessibilità, reversibilità, adattabilità. La tecnica diventa infrastruttura della scena, dispositivo invisibile che rende possibile l’evento, evitando di imporsi come gesto spettacolare.

Il progetto di Bari Costa Sud si proietta sul territorio. Non più oggetto, ma sistema. L’ingegneria si confronta con il paesaggio, con le dinamiche ambientali e con le fragilità urbane. Da qui il lavorare per stratificazioni e una struttura aperta, capace di accogliere trasformazioni nel tempo. Un progetto questo dove la scelta di Dodi Moss, di specializzarsi nel campo del recupero del paesaggio, dei parchi, del verde e degli spazi urbani e di optare per l’architettura dello spazio pubblico (e, di riflesso, della sostenibilità ambientale e del benessere dei cittadino) appare irreversibile.

Interventi come Valletta Carbonara e Forte Tenaglia confermano l’attitudine. Il tema è il margine, il vuoto urbano, lo spazio residuale. Per la Caserma Rossani l’obiettivo è la riqualificazione del grande complesso militare dismesso a partire dagli spazi vuoti. Il metodo: evitare sia la tabula rasa sia la conservazione pura.

Infine Piazza Pastene, dove la progettazione è centrata sull’uso, sul comfort, sulla durata nel tempo. Una progettazione che evita l’idealizzazione e guarda all’usura, al conflitto, alla vita reale. E nello stesso tempo si pone interrogativi estetici ■

Teatro della Tosse

Il Teatro di Sant’Agostino, sede della Fondazione Luzzati Teatro della Tosse, è stato oggetto di un importante intervento di riqualificazione volto a migliorare le prestazioni energetiche, la qualità degli spazi e l’identità architettonica del complesso. Un progetto che coniuga sostenibilità, tecnologia e design, restituendo a Genova un luogo di cultura più efficiente e accogliente.

Località Genova

Committente Comune di Genova, Fondazione Luzzati

Progetto architettonico Dodi Moss e Studio Llab

Rivestimento Metalltech

Foto Studio Campo - Anna Positano e Gaia Gambiaggi

L’intervento più rilevante è la nuova pelle architettonica che avvolge l’edificio: una superficie in lamiera forata anodizzata che dialoga con la città, conferendo al teatro un aspetto contemporaneo senza cancellarne la memoria storica. Questo elemento non è solo estetico, ma contribuisce a migliorare il comfort termico degli ambienti interni, proteggendoli dall’irraggiamento diretto durante i mesi più caldi.

L’efficientamento energetico è stato al centro della trasformazione: il vecchio impianto a gas è stato sostituito da pompe di calore elettriche, garantendo la climatizzazione invernale ed estiva in tutte le sale. Anche l’illuminazione è stata completamente rinnovata con tecnologia Led, riducendo consumi e manutenzione.

Il Teatro di Sant’Agostino si presenta oggi come un esempio di architettura sostenibile e innovativa, pronto a ospitare nuove storie e a ispirare le future generazioni.

Genova

Il rivestimento

dall’irraggiamento diretto estivo contribuisce al comfort termico degli ambienti interni.

metallico, firmato Metalltech, non è solo una soluzione estetica. Grazie alla protezione

Il progetto punta alla riqualificazione dell’intero litorale di Torre Carnosa per una maggiore

accessibilità e una fruizione più sostenibile. Visualizzazioni di fbastudio.

Connessioni

Lungomare

est

A marzo 2026 sono stati consegnati i lavori per la riqualificazione dell’intera area di progetto. Illuminazione iGuzzini.

Bari Costa Sud

Il litorale di Torre Carnosa, sulla costa barese, è parte di un progetto di riqualificazione per l’accessibilità e la fruizione sostenibile delle spiagge.

Il lotto si sviluppa sulla piana costiera tra la ferrovia e la bassa costa rocciosa, attualmente affiancata dalla strada carrabile litoranea che si affaccia su uno spazio rurale occupato da orti costieri in stato di abbandono.

Il progetto punta al miglioramento dell’area e della percezione visiva attraverso una riprofilazione della strada e un parziale ridisegno del tracciato, con l’innesto di percorsi misti ciclo-pedonali. L’attuale configurazione frammentata della zona verrà rielaborata in un paesaggio costiero leggibile, basato sulla sequenza naturale di scogliera, gariga, macchia e pineta.

L’implementazione dell’assetto vegetale è strutturata e fondata sui benefici che può offrire in termini di sostenibilità e comfort.

Nuove alberature e arbusti incrementeranno la biodiversità e costituiranno una rete continua di ombreggiamento, oltre a recuperare zone oggi degradate.

La gestione delle acque è inoltre studiata attraverso sistemi di rain garden per la regimazione naturale del deflusso.

I servizi, i chioschi e le aree relax e gioco sono realizzati con elementi prefabbricati in legno basati su sistemi platform frame e piastre di fondazione fuori terra, appositamente progettati per non interferire con la visuale verso la costa, nel rispetto delle richieste della Soprintendenza per la salvaguardia della continuità visiva del fronte mare. L’intervento è impostato sul principio di sostenibilità lungo l’intero ciclo di vita, scelta che ha guidato l’adozione di soluzioni a bassa manutenzione.

Bari
Carrabile
Carrabile ovest
Pineta ovest
Macchia mediterranea
KEYPLAN MACROAREE

La struttura mantenuta delle vecchie serre è stata adattata alle esigenze della fruizione dello spazio pubblico.

HW Style è impegnata nella riqualificazione di Valletta Carbonara contribuendo alla costruzione del nuovo paesaggio attraverso opere di sistemazione, restauro e nuove realizzazioni in un contesto morfologicamente articolato. Il progetto restituisce continuità ai terrazzamenti esistenti e struttura il parco con nuove piantumazioni soluzioni per l’accessibilità universale che favoriscono una fruizione inclusiva degli spazi e pavimentazioni drenanti integrate da sistemi di raccolta delle acque meteoriche, a supporto della resilienza ambientale dell’area.

SCHEMI FUNZIONI E MOBILITÀ

I Ingresso principale

I Biglietteria museo / ristorante

R Ristorante

R1 Terrazza Ristorante

1 Biglietteria e bookshop

2 Spazio museale coperto

ASSONOMETRIA

3 Spazio museale scoperto

4 Servizi igienici museo

5 Aula didattica

6 Percorso museale

A Spazio coworking

B Soppalco coworking

Percorso accesso ristorante

Accesso a biglietteria museo e percorso museale

Valletta Carbonara

Valletta Carbonara, con un’area di 25mila metri quadrati, ha avuto un passato agricolo legato alla struttura storica della città ed è stata successivamente sede delle serre comunali fino agli anni Novanta. Dal 2019 la gestione è tornata all’azienda pubblica di servizi alla persona Emanuele Brignole. Il progetto di riqualificazione punta a migliorare l’accessibilità, creare spazi flessibili e sostenibili e conservare l’aspetto di carattere produttivo che appartiene da sempre all’area.

Il magazzino esistente sarà sostituito da un nuovo edificio su due livelli con funzioni museali, ristorante e biglietteria. La struttura sarà caratterizzata

da ampie superfici finestrate che alleggeriscono il volume, accoppiate a coperture in aggetto e superfici verdi.

Per la grande serra si è optato per il rivestimento dell’intero volume con pannelli in policarbonato, scelta dettata dalla volontà di ottenere elevate prestazioni energetiche e una riduzione dei carichi strutturali, garantendo al contempo ottima luminosità e comfort negli spazi di lavoro. Gli spazi verdi esterni saranno organizzati in aree tematiche e alcune pavimentazioni storiche in cotto verranno rimosse; il materiale recuperato sarà riutilizzato per integrare le lacune dei tratti mantenuti.

Una delle principali sfide affrontate dai progettisti è stata quella di rendere accessibile per tutti ogni sezione dell’area: risultato ottenuto con la progettazione e la costruzione di rampe realizzate in diversi materiali e con soluzioni progettuali alternative. Infine, la gestione delle acque meteoriche è affidata a sistemi di rain garden.

Genova

ASSONOMETRIA COMPLETA

ASSONOMETRIA CON IMPIANTI

Forte Tenaglia

Forte Tenaglia, sulle alture di Sampierdarena, è al centro di un innovativo progetto di riqualificazione che assume un ruolo pilota nell’applicazione della metodologia Bim (Building Information Modeling) al patrimonio storico.

Dodi Moss ha gestito l’intero intervento attraverso processi digitali avanzati che hanno portato alla realizzazione di un digital twin, gemello digitale tridimensionale della fortezza.

Il modello integra in un’unica piattaforma i livelli architettonico, strutturale e impiantistico, restituendo una lettura completa e coordinata del complesso monumentale.

La modellazione dettagliata è stata uno strumento fondamentale per il restauro conservativo,

permettendo un’analisi puntuale dello stato di degrado dei manufatti, la mappatura delle criticità e la simulazione degli interventi prima della loro esecuzione.

In ambito strutturale, il Bim ha supportato le operazioni di consolidamento, consentendo verifiche mirate e una gestione controllata delle fasi di intervento. Sul fronte impiantistico, l’approccio integrato ha permesso di individuare e risolvere preventivamente le interferenze tra i diversi sistemi, razionalizzando i percorsi e riducendo l’impatto sugli elementi storici.

L’impiego del Bim ha inoltre migliorato il coordinamento tra le diverse figure coinvolte, incrementando l’efficienza del cantiere e riducendo il

rischio di errori, varianti in corso d’opera e costi imprevisti.

Forte Tenaglia si afferma così come un caso esemplare di come le tecnologie digitali possano diventare alleate strategiche nella tutela, gestione e valorizzazione del patrimonio architettonico storico, aprendo nuove prospettive per interventi futuri su contesti complessi e vincolati.

Genova

PROSPETTO

Nel recupero di Forte Tenaglia passato e presente si incontrano. L’intero complesso è stato ricostruito attraverso software Bim in modo da avere un controllo puntuale e sempre aggiornato delle caratteristiche della struttura e coordinare al meglio il progetto. Visualizzazioni fbastudio.

La Piazza d’Arti dell’ex-Caserma Rossani

L’ex Caserma Rossani, situata immediatamente a sud della Stazione Centrale, rappresenta uno degli ultimi grandi spazi aperti ancora disponibili nel centro denso della città di Bari. Si tratta di un’area baricentrica all’interno del tessuto consolidato della Contrada San Lorenzo, la parte più antica del quartiere Carrassi, rimasta per lungo tempo vuota e inaccessibile.

Il complesso edilizio della caserma, di rilevante valore storico-documentale, ha attraversato una lunga fase di degrado a seguito della dismissione della funzione militare. Negli ultimi anni, l’amministrazione comunale ha avviato un articolato processo di rigenerazione urbana volto a restituire quest’area strategica alla città. Il percorso di riqualificazione ha già visto la realizzazione del Parco Rossani, dell’Urban Center e del Polo Bi-

bliotecario Regionale, ospitato nell’ex Palazzina del Comando e in uno degli edifici affacciati sul parco, mentre l’Accademia di Belle Arti è attualmente in fase di cantiere. L’obiettivo complessivo è la creazione di un nuovo polo culturale di valenza regionale e di un ampio spazio pubblico a servizio dell’intera collettività, che troverà il suo completamento nella futura Piazza delle Arti. Il progetto di Dodi Moss prevede la trasformazione dell’attuale area della ex Piazza d’Armi, oggi occupata da un parcheggio temporaneo a raso, in una grande piazza alberata.

Il disegno della nuova piazza interpreta le simmetrie storiche della Caserma Rossani, rafforza le connessioni con il contesto urbano e integra un sistema di alberature per migliorare il comfort ambientale e rispondere agli obiettivi del Pnrr.

Nel percorso di rigenerazione dell’excaserma avviato dall’amministrazione comunale, l’intervento di Dodi Moss prevede la trasformazione della Piazza d’Armi in Piazza delle Arti. Visualizzazioni fbastudio.

Nei lati dove non è possibile la messa a dimora di alberi, una fontana lineare contribuisce al miglioramento del microclima, offrendo al contempo uno spazio ludico per i bambini e un fondale scenografico.

Le aree adiacenti, caratterizzate dalla presenza di piccoli volumi sottoposti a vincolo architettonico, saranno trasformate in verde attrezzato per la socialità, con funzioni pubbliche insediate all’interno degli edifici restaurati.

Una fascia marginale, in prossimità della viabilità carrabile, accoglierà limitati posti auto di servizio. Al di sotto della Piazza delle Arti è infine previsto un parcheggio interrato a due livelli, con accesso da corso Benedetto Croce e uscita su via Giulio Petroni.

Bari

NUOVE ALBERATURE

Celtis australis

Bagolaro

Ceratonia siliqua

Carrubo

Fraxinus ornus

Orniello

Quercus coccifera

Quercia spinosa

Olea europea

Ulivo

Arbutus unedo

Corbezzolo

Koelreuteria

paniculata

Albizia julibrissin

Jacaranda mimosifolia

LA FUTURA PIAZZA DELLE ARTI
A Corpi scala a giorno senza ascensore
B Corpo scala a giorno con ascensori
1. Fontana lineare a zampilli
2. Spazio relax con panchine monolitiche e sedute ergonomiche.
3. Gradonata

ARCHITETTURE

TRA REALE, VEROSIMILE E IMMAGINARIO

Il sesto volume della collana pensata da Antonino Saggio è la monografia dedicata a Cherubino Gambardella, le cui architetture Saggio definisce, come già Bruno Zevi, bricolage. Nella controcopertina del volume Napoli, la città di Gambardella, è descritta “come un anfiteatro di centomila balconi” che “ti accoglie, ti abbraccia ed è come un presepe”, e il modo di progettare di Gambardella capace di intrecciare l’architettura con l’arte e la narrazione e di “reinterpretare l’esistente grazie al rigore concettuale e ai rimedi formali delle sue opere” Il volume ci accompagna in un percorso stimolante dove appaiono – insieme a numerosi disegni e composizioni ricche di afflato poetico come la Torre dei venti e la Torre dello Ziro – testi e riflessioni critiche che pongono in primo piano l’eco della cultura del Mediterraneo. In particolare, quella espressa da personaggi come Bernard Rudofsky, l’autore di Architettura senza architetti, e di Luigi Cosenza. Compaiono quindi figure, modelli, modi di porsi e interessi verso i luoghi in grado di stimolare una capacità di intervento espressa nelle numerose realizzazioni. Penso ad esempio alla stazione Loreto della metropolitana milanese o a quella per Scampia a Napoli. Si tratta di opere attente al contesto e al sensibile riuso, più che alla predisposizione al nuovo per il nuovo. Soprattutto negli interni, definiti tappezzerie d’autore, con echi capaci di evocare aspetti del realismo magico. Curatore del volume è Luigi Arcopinto, redattore del periodico e sito web di architettura Dromos, architetto che si è laureato all’università Luigi Vanvitelli di Aversa e ha conseguito il dottorato in architettura alla Sapienza di Roma nel 2023.

Mario Pisani

NON CHIAMATELI ARCHISTAR

A meno di non essere assidui archivisti, la natura effimera dei quotidiani ci impedisce di recuperare a mesi di distanza quanto di interessante – come le 34 interviste raccolte in questo libro, apparse tra il 2004 e il 2023 sul Corriere della Sera e sul suo supplemento culturale La Lettura – viene via via pubblicato. L’autore, Stefano Bucci, è un giornalista che da quarant’anni si occupa di architettura ed è proprio la curiosità e il taglio divulgativo che rende queste conversazioni più godibili di un trattato tecnico e anche un buon punto di partenza per un possibile saggio di storiografia critica che non potrebbe non partire dalle personalità, dai desideri e dalle convinzioni dei singoli autori. È pur vero che di fronte alla tumultuosa velocità dei cambiamenti alcuni ragionamenti oggi appaiono superati, ma

da ogni intervista traspare comunque la personalità dell’architetto. All’inattualità di altre conversazioni pongono rimedio i sintetici profili aggiornati che precedono ogni intervista. Da Fuksas a Niemeyer, da Frank Gehry a Cino Zucchi, un’eccellente rassegna di figure che hanno animato l’architettura in questo primo quarto di secolo.

L’architettura ha tante anime. Conversazioni Stefano Bucci Allemandi. Torino, 2023 208 pp. 30 euro ISBN 978-88-422-2597-3

IL VERDE CHE NON NASCONDE GLI ERRORI

Oggi è il riconosciuto precursore della green architecture ma nel 1995 la sua Fukuoka Prefectural Hall, che trasferiva sulle terrazze-giardino il verde che l’impronta dell’edificio aveva sottratto al suolo, venne accolta con scetticismo. Malgrado l’attualità dell’approccio, solo di recente il lavoro di Emilio Ambasz (1943) è stato riabilitato, come fa oggi in questo bel volume Fulvio Irace, professore emerito di Storia dell’architettura e del design del Politecnico di Milano, che in otto capitoli documenta l’impegno dell’architetto argentino nel ristabilire il giusto equilibrio tra naturale e artificiale e l’ingegnosità di soluzioni in grado di rendere la vegetazione parte integrante dell’architettura. Oltre ai progetti più noti (Lucille Hansel Conservatory,

REDUCE, RECYCLE, REUSE

Casa de Retiro Espiritual, Fukuoka Hall, Ospedale di Mestre, Banca dell’Occhio) Irace seleziona una serie di progetti irrealizzati che risalgono agli anni Settanta e Ottanta, che stupiscono per la freschezza di brillanti intuizioni, offrendo nell’insieme una inedita chiave di lettura sulla ‘visione di Ambasz’.

Natura & architettura. La visione di Ambasz Fulvio Irace Electa. Milano, 2025 248 pagine. ill. 49 euro SBN 978-88-928-2835-3

Cherubino Gambardella Luigi Arcopinto LetteraVentidue, Siracusa, 2026 144 pagine, Ill, 20 euro - ISBN 979-12-5644-150-1

Con gli scarti dell’industria agroalimentare l’azienda siciliana Orange Fiber produce fibre tessili che Salvatore Ferragamo ha impiegato in una capsule collection disegnata da Marco Trimarchi. È solo uno dei cinquanta esempi che l’architetto britannico Joe Gibbs ha raccolto in Circular Materials. Ancor oggi spesso l’attenzione nei confronti dell’ambiente, specie nel campo delle costruzioni, si limita a strategie che riducono il consumo di energia e trascura l’impatto dell’intero ciclo di vita dei materiali, dall’estrazione al fine vita, ma sebbene ancora in via sperimentale e ostacolato – ad esempio nel caso dell’urban mining – dall’assenza

di un mercato dove domanda e offerta si possano incontrare in modo stabile, il design circolare è la strada più promettente per affrontare le urgenze climatiche e ambientali che incombono sull’attuale modello di sviluppo.

Joe Gibbs Circular Materials Gestalten. Berlino, 2025 256 pp. En, ill. 40 euro ISBN 978-3-96704-175-0

ORGANISMI IBRIDI

a cura di Carlo Ezechieli

L’architettura nella nuova convergenza tra capacità di calcolo design parametrico e biomimetica

Neri Oxman, progetto Aguahoja, dettaglio, foto courtesy The Mediated Matter Group.

Convergenza creativa

Negli ultimi anni in architettura tre ambiti di conoscenza stanno trovando un significativo punto di convergenza. Il primo è la biomimetica, disciplina che fino a pochi decenni fa era marginale ma che grazie al contributo di autori come Janine Benyus, Steven Vogel e Julian Vincent, si è profondamente ridefinita. Oggi non si limita più all’emulazione formale della natura o a suggestioni stilistiche, ma assume come riferimento processi, principi di funzionamento e strategie di integrazione ambientale sviluppate dalle forme di vita nel corso di milioni di anni. Il secondo ambito è rappresentato dalla crescente capacità dei sistemi computazionali di modellizzare comportamenti fisici e proprietà della materia. Questo sviluppo trova espressione nel parametric design oggi amplificato dalle applicazioni dell’intelligenza artificiale. Diventa così possibile tradurre in progetto non solo configurazioni naturali, dal Dna a scheletri e gusci, ma soprattutto logiche generative e criteri di ottimizzazione prima inaccessibili. La convergenza si manifesta nell’integrazione tra design e ricerca sui materiali. I software Soft Kill Option (Sko) sviluppati dall’ingegnere Klaus Mattheck a partire dallo studio della morfologia degli alberi, consentono di generare strutture estremamente efficienti in termini di leggerezza e resistenza, spesso realizzabili solo attraverso tecniche di fabbricazione additiva. Come i sistemi produttivi industriali hanno segnato l’architettura moderna, così questa alleanza tra calcolo e principi naturali potrebbe aprire una nuova fase disciplinare: un’architettura in cui complessità, efficienza e adattamento coincidano e in cui la costruzione lasci spazio a un’idea di crescita programmata, ispirata ai processi evolutivi che si sono affinati in 3,8 miliardi di anni.

Dayna Baumeister

Biologa marina con un dottorato in Ecologia, è una pioniera della biomimesi e co-fondatrice nel 1998 della Biomimicry Guild con Janine Benyus. Attraverso laboratori e seminari, ha introdotto migliaia di professionisti e aziende (come Nike e Boeing) all’idea di natura come modello, misura e mentore. Leader della società di consulenza e formazione professionale in nature-based solutions Biomimicry 3.8, Baumeister ha progettato i primi percorsi accademici mondiali nel settore presso l’Arizona State University. La sua missione è coniugare l’esplorazione naturale con il design sostenibile per risolvere le sfide globali.

Biomimicry la natura come mentore

Intervista a Dayna Baumeister

La Biomimicry, traducibile in italiano come biomimesi (che imita la vita) è, secondo la sua caposcuola Janine Benyus “una nuova scienza che studia le migliori idee della natura e ne imita i processi per rispondere ai problemi del genere umano. Studiare una foglia per inventare una cellula solare più efficiente è un esempio di innovazione ispirata alla natura”. Se in passato molte invenzioni, come il velcro progettato nel 1957 da un ingegnere svizzero, derivavano dall’osservazione dei disegni della natura, Benyus e Baumeister hanno formulato principi sostanzialmente inediti, compresi in una chiara teoria fondata su ampie considerazioni di tipo ecosistemico.

Mai, nella storia recente, termini come tecnologia e natura sono stati così vicini. È un cambiamento importante che, come evidenzia Dayna Baumeister in questa intervista, ha notevoli ricadute, sia effettive che potenziali, sulla pratica dell’architettura e sul modo in cui gli architetti pensano e progettano gli edifici e le trasformazioni del paesaggio.

Come spiegare la biomimicry agli architetti in 30 secondi?

La consapevole emulazione del genio della natura è una disciplina emergente che guarda alla natura per scoprire soluzioni a necessità

progettuali, innovative e sostenibili. Mentre gli esempi in molti campi industriali sono abbondanti, la pratica della biomimicry in architettura va da prodotti specifici per l’architettura come il Lotusan, una vernice autopulente che riproduce la composizione delle foglie di loto, al disegno di interi edifici come l’Eastgate Building di Harare, in Zimbabwe, che emulando le torri delle termiti mantiene una confortevole temperatura interna di 24°C senza impiego di aria condizionata.

Qual è il rapporto con l’architettura?

In architettura la mimesi delle forme è tanto antica quanto l’architettura stessa. Si tratta di solito di un disegno biomorfico. Quando questa forma viene replicata per la sua funzione, e non solo per la sua estetica, la chiamiamo biomimicry. Per esempio, la sede di Swiss Re a Londra incorpora sia i principi morfologici della spugna di mare, sia quelli di funzionamento, con un flusso passivo di aria attraverso la torre che riproduce il passaggio di acqua nella spugna. A livello di processi, sono state fabbricate barriere al vapore che imitano i processi di autoregolazione delle membrane biologiche (MemBrain) e colle prive di formaldeide che imitano le proprietà adesive delle cozze marine (PureBond della Columbia Forest Products). A livello dell’ecosistema, il piano per uno sviluppo insedia-

tivo a Portland, Oregon (Lloyd Crossing) imita il modo in cui l’ecosistema forestale del luogo funzionava prima degli insediamenti umani. Allo stesso modo le John Todd’s Ecological Machines replicano il modo in cui gli ecosistemi fluviali purificano l’acqua.

Nonostante i molti importanti casi di studio, credo che gli architetti abbiano a malapena scalfito la superficie dello sconfinato pianeta delle possibili applicazioni della biomimicry in architettura. Penso che il vero potere di questa disciplina si rivelerà quando gli architetti incominceranno a pensare edifici che non abbiano la semplice apparenza di forme naturali, ma funzionino come entità viventi, inserite in un più ampio ordine ecosistemico.

Avete mai lavorato in stretto contatto con architetti? Quali sono le difficoltà, quali le sfide?

Penso che un aspetto critico sia rappresentato dall’alta domanda di strumenti analitici e di misurazione per aiutare i progettisti e gli utenti a prendere decisioni tra la soluzione ‘verde’ di tipo A e la soluzione ‘verde’ di tipo B. Riconosco pienamente il valore di strumenti di questo tipo, e sistemi di certificazione come Leed hanno contribuito a un passo importante verso la costruzione di edifici sostenibili. Tuttavia, ho un atteggiamento critico nei confronti di questi strumenti quando vengono considerati un punto di arrivo o un punto univoco di riferimento. Credo invece che prima di investire tempo ed energie in calcoli e misurazioni dovremmo tutti porci una questione molto più semplice: “Ci abiterei? Voglio davvero che i miei figli crescano lì? Pianterei un orto intorno all’edificio? Irrigherei il giardino con le acque di scarico?”. In breve, noi come progettisti di ecosistemi dovremmo chiederci: “Il mio edificio migliora la mia vita? ”, invece della domanda più comune: “Come posso minimizzare il danno?”. Penso che le risposte a queste domande abbiano un’influenza sostanziale nella realizzazione di edifici life-friendly, più che una tipica comparazione punto per punto tra le centinaia di punti che qualificano un edificio Lca o Leed.

Esiste qualche realizzazione nel campo dell’architettura, del paesaggio o dell’edilizia dove avete avuto occasione di lavorare direttamente?

I progetti in cui siamo stati coinvolti direttamente, sfortunatamente, sono rimasti sulla carta per differenti ragioni o sono ancora in fase di progettazione. Comunque, indirettamente attraverso le migliaia di architetti che hanno partecipato ai nostri seminari, conferenze, corsi, abbiamo molti resoconti di come siano state introdotte considerazioni relative alla biologia nel processo di progettazione. Abbiamo incontrato dozzine di biologi che lavorano in studi di architettura, sentito di architetti che incominciano ad accamparsi nel luogo dove costruiranno per comprenderne le logiche, e letto frasi come “costruire secondo gli schemi di funzionamento

Atrio dell’Eastgate Centre, complesso commerciale e direzionale nel centro di Harare completato nel 1996 su progetto dell’architetto Mick Pearce con la consulenza ingegneristica di Arup. Il grande spazio centrale, attraversato da passerelle sospese e torri impiantistiche, è parte di un sistema di ventilazione passiva ispirato ai termitai africani, che sfrutta masse termiche e camini di estrazione per regolare naturalmente temperatura e ricambio d’aria riducendo il fabbisogno di climatizzazione meccanica. Foto courtesy Eastgate Centre / Mick Pearce.

della vita” nelle proposte di gara per il ridisegno di parchi, strutture universitarie, complessi residenziali e nuovi disegni urbani. La biomimicry verrà naturalizzata nell’architettura quando ci sarà un biologo in ogni progetto, e chiedersi “come lo costruirebbe la natura? ” farà parte del lessico comune.

Un consiglio per gli architetti?

Lo stesso che raccomando a chiunque pratichi la biomimicry. Fate grandi camminate all’aria aperta e chiedetevi: “Come lo farebbe la natura qui?” Il qui è molto importante in l’architettura. Abbiamo incominciato a condurre studi nei quali portiamo gli architetti e i loro clienti negli habitat dell’area di intervento e domandiamo loro come i nativi (vale a dire le piante locali, gli animali, i funghi) vivono in quel luogo preciso. Cosa si può imparare da come crescono, raccolgono l’acqua, incamerano energia? Quali forme e processi funzionano meglio in quel particolare luogo? E, cosa più importante, come interagiscono? La vita crea le condizioni che portano alla vita creando interconnessioni. I nostri edifici sono costruiti e funzionano in isolamento, ignorando completamente le possibilità di connessione sia con altri edifici sia con il paesaggio, senza lasciare la possibilità di migliorare la qualità della vita per tutti.

Quali architetti contemporanei e del passato apprezzi di più?

Ci sono senz’altro molti individui che hanno realizzato un incredibile gamma di costruzioni ispirate dalla natura, ma il mio apprezzamento va principalmente a specie non umane e a malapena riconosciute. Come la sequoia californiana (California redwood), che cresce fino ad altezze superiori a 90 metri pompando senza alcun rumore centinaia e centinaia di litri d’acqua con il solo utilizzo del sole, o la Hexactinellida (Glass sea sponge), che cresce a profondità di centinaia di metri sotto la superficie dell’oceano e che produce strutture a base di silicio, forti e stupendamente delicate, dimostrando tutti i principi di ingegneria strutturale rintracciabili nei grattacieli odierni. Alcuni gruppi di palme costiere si dimostrano resilienti agli uragani e a inondazioni ricorrenti. Come i manglares, le specie di mangrovie capaci di costruire isole, filtrare l’acqua, fissare il carbonio e distillare acqua dolce. Già che ci sono, citerei anche i cespugli di Kochia (Kochia scoparia), che resistono al fuoco, o gli uccelli nidificatori, come il bowerbird (originario dell’Australia/Nuova Guinea). È l’arredatore della natura, costruisce pergole per attirare le compagne. Ci sono oltre 30 milioni di specie, e solo 1,8 milioni hanno un nome. Quanto spazio ho ancora per questa intervista?... ■

Aguahoja materiale, processo, dissoluzione

Biopolimeri, fabbricazione digitale e crisi del paradigma della permanenza nel progetto di Neri Oxman con il Mediated Matter Group del MIT Media Lab

Aguahoja è probabilmente il progetto più convincente di Neri Oxman se letto non come architettura compiuta, ma come piattaforma materiale capace di mettere in crisi l’idea stessa di costruzione permanente. Sviluppato all’interno del Mediated Matter Group del MIT Media Lab, il progetto esplora un paradigma radicale: materiali progettati non solo per nascere e performare, ma anche per degradarsi intenzionalmente, rientrando nei cicli ecologici che li hanno generati.

Aguahoja si fonda sull’uso di biopolimeri naturali – cellulosa, chitina, pectina e acqua – derivati da scarti organici come gusci di crostacei e foglie morte. Questi materiali vengono combinati e depositati attraverso una piattaforma di fabbricazione digitale a base acquosa, che

consente di modulare localmente proprietà meccaniche, ottiche e ambientali. Rigidezza, flessibilità, trasparenza e tasso di dissoluzione non sono parametri secondari, ma variabili progettuali incorporate direttamente nella materia.

Aguahoja I si manifesta come un padiglione alto circa cinque metri, concepito come una pelle continua piuttosto che come un assemblaggio di componenti. La struttura non distingue rigidamente tra facciata, finestra ed elemento portante: la superficie assume ruoli diversi in funzione della composizione chimica e dello spessore del materiale. L’architettura non viene montata, ma cresce attraverso una deposizione stratificata che richiama processi biologici più che logiche edilizie tradizionali.

Neri Oxman

Neri Oxman è designer, inventrice e ricercatrice. Il suo approccio, denominato Material Ecology, si colloca all’intersezione tra cultura e natura e propone l’integrazione tra ciò che è progettato e ciò che è coltivato, attraverso scale e specie differenti. Nel 2010 ha fondato al Mit il Mediated Matter Group, dove ha sviluppato la Material Ecology combinando biologia e tecnologie digitali in una prospettiva di sostenibilità ecologica. È professore ordinario del Mit dal 2017. Formata tra architettura e scienze mediche, ha conseguito un PhD in Design Computation sempre al Mit nel 2010. Autrice di oltre 150 pubblicazioni e invenzioni, il suo lavoro è presente nelle collezioni permanenti di musei internazionali come MoMA e Centre Pompidou. www.oxman.com

È tuttavia sul piano critico che Aguahoja rivela la sua ambiguità più interessante. Il progetto, fortemente concettuale, rappresenta esattamente ciò che l’architettura ordinaria è storicamente progettata per contrastare: il degrado, l’erosione, la dissoluzione della materia. L’edificio comune nasce infatti come dispositivo anti-entropico, concepito per interrompere i cicli naturali di trasformazione e garantire stabilità, durata e controllo. Aguahoja ribalta questa logica accettando e programmando la propria dissoluzione, restituendo la materia ai cicli naturali da cui proviene.

Questo ribaltamento genera un cortocircuito concettuale che, pur aprendo riflessioni rilevanti sul ruolo del progetto e sulla temporalità dell’architettura, ne evidenzia anche il limite

Foto Conor Doherty

frontale del padiglione

Una piccola apertura consente a una persona di immergersi nella leggibilità multilivello delle componenti estetiche e prestazionali del progetto.

principale. Nel momento in cui la dissoluzione diventa il fine dichiarato, l’architettura rinuncia a una delle sue funzioni storiche fondamentali: opporsi all’entropia per rendere abitabile il mondo. Ne deriva una tensione irrisolta tra rappresentazione critica e applicabilità reale, che rende oggi questi principi difficilmente trasferibili all’edilizia ordinaria. Aguahoja non propone una soluzione costruttiva alternativa, ma una messa in crisi simbolica del paradigma della permanenza, più efficace come strumento teorico che come modello operativo.

Sopra. Una rassegna degli elementi che compongono il progetto Aguahoja.

A sinistra, elementi rigidi a base di cellulosa stampati su una pelle flessibile.

Foto courtesy The Mediated Matter Group.

Vista
Aguahoja.

AGUAHOJA I & II

Progetto The Mediated Matter Group (Jorge DuroRoyo, Joshua Van Zak, Yen-Ju (Tim) Tai, Andrea Ling, Nic Hogan, Barrak Darweesh, Laia Mogas-Soldevilla, Daniel Lizardo, Christoph Bader, João Costa, Sunanda Sharma, James Weaver e Neri Oxman. Nic Hogan, Joshua Van Zak, Ramon Elias Weber, Joseph Henry Kennedy, Jorge Duro-Royo, Christoph Bader, João Costa, Sunanda Sharma, James Weaverm, Neri Oxman Collaboratori di ricerca Joseph Faraguna, Matthew Bradford, Loewen Cavill, Emily Ryeom, Aury Hay, Yi Gong, Brian Huang, Tzu-Chieh Tang, Shaymus Hudson, Prof. Pam Silver, Prof. Tim Lu

Riconoscimenti MIT Media Lab, Noe. Llc, Stratasys Ltd, MIT Research Laboratory of Electronics, Wyss Institute at Harvard, Department of Systems Biology at Harvard, Gettylab, Robert Wood Johnson Foundation, Autodesk Build Space, TBA-21 Academy, Thyssen-Bornemisza Art Contemporary, Stratasys Direct Manufacturing, National Academy of Sciences, San Francisco Museum of Modern Art, Esquel Group

Immagini The Mediated Matter Group. Courtesy of The Mediated Matter Group

A destra. Una sezione retroilluminata del padiglione Aguahoja.
DIAGRAMMI COSTRUTTIVI

Glass I

Stampare processi

Il Mediated Matter Group fondato da Neri Oxman ripensa le procedure di realizzazione dei manufatti spostandone i limiti produttivi

GLASS I

Progetto Mediated Matter Group del MIT Media Lab, Mechanical Engineering Department, MIT

Glass Lab e Wyss Institute

Ricercatori John Klein, Michael Stern, Markus Kayser, Chikara Inamura, Giorgia Franchin, Shreya

Dave, James Weaver, Peter Houk e Neri Oxman

Foto Chikara Inamura; Andy Ryan; John Werner

Glass I è uno dei progetti più emblematici di Neri Oxman nel dichiarare un deciso spostamento dell’architettura dal dominio della forma a quello del processo di fabbricazione.

Sviluppato dal Mediated Matter Group del MIT Media Lab in collaborazione con il MIT Glass Lab, il progetto introduce G3DP (Glass 3D Printing), una piattaforma sperimentale di manifattura additiva in grado di stampare vetro strutturalmente continuo e otticamente trasparente.

Glass I si colloca consapevolmente all’interno di una genealogia storica in cui le qualità architettoniche del vetro sono sempre state inseparabili dai suoi metodi produttivi. Come la soffiatura o il processo Pilkington hanno determinato nuove tipologie e nuovi immaginari, la stampa 3D del vetro propone un’ulteriore mutazione del rapporto tra tecnica e forma. Tuttavia, a differenza delle precedenti rivoluzioni, Glass I non genera ancora uno spazio, ma si arresta alla soglia dell’oggetto dimostrativo. La piattaforma G3DP utilizza un sistema a doppia camera termica: un crogiolo superiore che mantiene il vetro fuso a temperature superiori ai 1000°C e una camera inferiore di ricottura che accompagna il raffreddamento controllato del pezzo. Il materiale viene estruso

attraverso un ugello ceramico, permettendo variazioni di spessore, colore e densità ottica. La forma non è progettata come esito compositivo, ma emerge dalla relazione tra viscosità del vetro, traiettoria di deposizione e parametri di processo.

È proprio qui che risiede il valore, ma anche il limite del progetto. Glass I non è un progetto architettonico, bensì un’infrastruttura di produzione che rivendica per sé lo statuto di progetto. Il passaggio dalla fabbrica all’architettura viene però solo evocato, non affrontato. La scala rimane quella del prototipo, mentre la complessità costruttiva, strutturale e normativa dell’edificio viene sospesa.

In questo senso, Glass I produce un ulteriore cortocircuito disciplinare: mentre afferma che il futuro dell’architettura risiede nella reinvenzione dei processi materiali, rinuncia a misurarsi con il compito tradizionale dell’architettura stessa, ovvero trasformare una tecnica in spazio abitabile.

Il progetto non offre soluzioni, ma sposta il terreno del problema, lasciando aperta la domanda fondamentale: quando l’innovazione del processo diventa architettura, e quando rimane ricerca sui materiali

Nelle immagini, trame luminose (in ottica chiamate figure caustiche) generate dalla rifrazione di una struttura in vetro stampata in 3D. Le strutture in vetro stampato evidenziano

le trame di deposizione e le figure luminose generate dalla rifrazione del materiale, rendendo visibile il processo stesso di fabbricazione. I prototipi sono realizzati con la piattaforma G3DP

(Glass 3D Printing) sviluppata dal Mediated Matter Group del MIT Media Lab in collaborazione con il MIT Glass Lab. In Glass I la forma non è composizione ma risultato della viscosità

del vetro fuso, della traiettoria di estrusione e dei parametri termici, segnando lo spostamento del progetto dal dominio dell’oggetto a quello dell’infrastruttura produttiva.

Il Silk Pavilion con l’esposizione dedicata alla ricerca sugli studi di distribuzione della densità delle fibre.

Silk Pavilion Convergenza costruttiva

Anche nel Silk Pavilion il progetto diventa co-fabbricazione tra architettura biologia, biomimesi e progettazione parametrica

SILK PAVILION

Progetto Mediated Matter Group, MIT Media Lab

Team di progetto Jared Laucks, Carlos David Gonzalez Uribe, Jorge Duro-Royo. Neerja Aggarwal, Zachary Tribbett, Trevor Walker Urop

Spazio di stoccaggio dei bachi da seta Hugh Herr (Biomechatronics Group); Ed Boyden, Synthetic Neurobiology Group). MIT Media Lab

Video e fotografia Steven Keating, Andy Ryan. Michail Bletsas. Harlan Reiniger

Silk Pavilion rappresenta uno dei tentativi più articolati di Neri Oxman di costruire una convergenza operativa tra architettura, biologia, biomimesi e progettazione parametrica.

Sviluppato dal Mediated Matter Group del MIT Media Lab, il progetto non si limita a imitare la natura, ma ne integra direttamente i processi all’interno della catena di fabbricazione, ridefinendo il ruolo dell’autore e del progetto stesso.

Il padiglione è costituito da una struttura primaria composta da 26 pannelli poligonali, realizzati mediante deposizione Cnc di fili di seta secondo una logica di filo continuo, ispirata alla capacità del baco da seta di produrre un bozzolo tridimensionale a partire da un unico filamento multifunzionale. La geometria complessiva non nasce da una composizione formale tradizionale, ma da un algoritmo parametrico che distribuisce densità variabili di materiale in funzione di requisiti ambientali e prestazionali.

Su questa impalcatura artificiale interviene una seconda fase di fabbricazione biologica: circa 6.500 bachi da seta vengono rilasciati sulla struttura e agiscono come agenti di stampa biologica, depositando fibre non tessute nei punti di maggiore densità e minore luminosità. Il comportamento degli insetti – sensibile

a luce, calore e geometria – diventa così parte integrante del processo progettuale, trasformando l’organismo vivente in un sistema computazionale distribuito capace di ottimizzare localmente la materia.

Il progetto assume in questo modo i principi della biomimesi non come repertorio formale, ma come modello operativo: non si imita l’oggetto naturale, bensì il suo comportamento generativo. Il parametric design non controlla completamente il risultato, ma definisce un campo di possibilità entro cui la biologia opera. L’architettura emerge dalla negoziazione tra codice digitale e intelligenza biologica, tra controllo e indeterminazione.

Silk Pavilion non risolve il problema dell’architettura in senso tradizionale: non affronta temi di scala, durata o abitabilità. Tuttavia, mette radicalmente in discussione il concetto stesso di costruzione, proponendo un’idea di progetto come processo condiviso tra umano, macchina e organismo vivente. In questo slittamento, l’architettura non è più un oggetto finito, ma un evento materiale che accade nel tempo, rendendo visibile una possibile, e ancora sperimentale, convergenza tra natura e artificio ■

Attraverso le aperture del padiglione si possono vedere i bachi da seta mentre rivestono la struttura.

Sopra. Processo digitale di formfinding e strumenti computazionali. Da sinistra. Mappatura solare, mappatura della distribuzione delle aperture, logica di generazione delle aperture, calcolo del raggio di filatura distribuzione complessiva, pannelli sviluppati per la fabbricazione.

A destra. Vista dall’alto del Silk Pavilion mentre circa 1.500 bachi da seta costruiscono il composito fibroso.

Achim Menges

Architetto e professore all’Università di Stoccarda, dove dirige l’Institute for Computational Design and Construction (ICD) e il Cluster of Excellence IntCDC, primo cluster tedesco dedicato all’architettura, Menges si è formato all’Architectural Association di Londra e ha insegnato alla Harvard GSD. La sua ricerca integra progettazione computazionale fabbricazione robotica e sistemi costruttivi avanzati, in collaborazione con ingegneria, scienza dei materiali e informatica. Nel 2023 ha ricevuto il Premio Leibniz. I suoi progetti e le sue ricerche sono stati esposti in sedi internazionali, tra cui la Biennale di Venezia, e fanno parte di importanti collezioni museali. www.achimmenges.net

Due padiglioni in legno e fibre composite che esplorano nuove forme di architettura leggera nel progetto di Achim Menges

BUGA WOOD PAVILION

Progetto architettonico Icd, Institute for Computational Design and Construction. Itke, Institute of Building Structures and Structural Design. Università di Stoccarda Dimensioni 32×25×7 m. Superficie coperta 500 mq. Superficie della shell 600 mq. Peso della struttura lignea portante 36 kg/m²

Sistema costruttivo Shell strutturale: elementi cavi poligonali in legno di abete lamellare Lvl, fabbricati roboticamente e dotati di rivestimento protettivo Uv Rivestimento impermeabilizzazione in Epdm Finitura pannelli in legno naturale di larice 3 strati, tagliati con robot Cnc a 3 assi

I due padiglioni sperimentali progettati dall’Università di Stoccarda per l’edizione 2019 della mostra di giardinaggio e architettura del paesaggio tedesca Buga a Heilbronn esplorano nuove forme di architettura leggera ispirate a principi biomimetici e realizzate attraverso processi computazionali e fabbricazione robotica avanzata. Il Wood Pavilion (in primo piano) reinterpreta la costruzione lignea digitale con una copertura segmentata ispirata allo scheletro dei ricci di mare mentre il Fibre Pavilion sviluppa una struttura in compositi fibrorinforzati ad alta efficienza, interamente prodotta mediante sistemi robotici. Foto Nikolai Benner.

Forme secondo natura ispirate a

principi di biomimesi

In occasione dell’edizione 2019 della mostra tedesca di giardinaggio e architettura del paesaggio Buga a Heilbronn, l’Università di Stoccarda ha realizzato due padiglioni sperimentali che rappresentano un punto di riferimento nella ricerca sull’architettura biomimetica e sulla costruzione digitale: il Buga Wood Pavilion e il Buga Fibre Pavilion. Sviluppati dall’Institute for Computational Design and Construction e dall’Institute for Building Structures and Structural Design dell’università, i due edifici esplorano modalità radicalmente innovative di progettare e costruire, attraverso l’impiego di materiali leggeri e processi di fabbricazione robotica avanzata.

Entrambi i padiglioni sono collocati in posizione centrale sull’isola estiva dell’esposizione e incarnano la tradizione del Baden-Württem -

berg nei campi delle strutture leggere, della biomimetica e delle tecnologie digitali applicate all’architettura.

Pur condividendo un approccio computazionale e sperimentale, i due progetti si distinguono per materiali e principi costruttivi, offrendo una visione complementare del futuro dell’edilizia.

Il Buga Wood Pavilion propone una nuova interpretazione della costruzione lignea digitale. La sua ampia copertura è costituita da una struttura segmentata ispirata al sistema scheletrico delle conchiglie di riccio di mare, un principio biologico studiato per anni dai due istituti. La superficie lignea, composta da 376 elementi cavi unici, è stata assemblata e fresata tramite una piattaforma robotica appositamente sviluppata, raggiungendo una

Sotto, il Wood Pavilion reinterpreta la costruzione lignea attraverso un sistema segmentato ispirato allo scheletro dei ricci di mare. La copertura autoportante, composta da 376 elementi cavi unici

fresati e assemblati roboticamente con precisione submillimetrica, copre una luce di circa 30 metri con un impiego minimo di materiale dimostrando come biomimetica progettazione

computazionale e fabbricazione digitale possano convergere in un’architettura strutturalmente efficiente e spazialmente significativa. Foto Icd/Itke Università di Stoccarda.

precisione sub-millimetrica. Il risultato è una copertura di 30 metri di luce che utilizza una quantità minima di materiale, generando al contempo uno spazio architettonico di grande intensità.

Inserito nel paesaggio ondulato del parco, il Buga Fibre Pavilion esplora invece le potenzialità dei compositi fibrorinforzati. La struttura portante, interamente realizzata mediante processi robotici, è estremamente leggera ed efficiente e rappresenta un unicum a livello globale. Basato su principi costruttivi derivati dalla natura, il padiglione dimostra come l’integrazione tra biomimetica e tecnologie computazionali possa dare origine a sistemi edilizi autenticamente digitali, capaci di ridefinire l’espressione architettonica e l’esperienza spaziale.

La pelle in compensato di HygroSkin integra oltre 1.100 aperture igroscopiche che si aprono e si chiudono in base all’umidità, senza sensori né energia esterna. Foto Icd/Itke. Università di Stoccarda.

Progettazione parametrica e principi di biomimesi applicati al progetto di architettura

HYGROSKIN METEOROSENSITIVE PAVILION

Progetto architettonico Achim Menges Architect (Achim Menges, Steffen Reichert, Boyan Mihaylov)

Team Institute for Computational Design Università di Stoccarda (Achim Menges, Oliver David Krieg, Steffen Reichert, Nicola Burggraf, Zachary Christian, David Correa, Katja Rinderspacher, Tobias Schwinn with Yordan Domuzov, Tobias Finkh, Gergana Hadzhimladenova, Michael Herrick, Vanessa Mayer, Henning Otte, Ivaylo Perianov, Sara Petrova, Philipp Siedler, Xenia Tiefensee, Sascha Vallon, Leyla Yunis)

HygroSkin

Meteorosensitive Pavilion Materiali programmati

HygroSkin Meteorosensitive Pavilion indaga una concezione radicalmente alternativa di architettura climaticamente responsiva, nella quale l’adattamento all’ambiente non è affidato a sistemi tecnologici aggiuntivi, ma è intrinseco alla materia stessa. Il progetto, sviluppato da Achim Menges in collaborazione con Oliver David Krieg e Steffen Reichert, utilizza il legno come materiale attivo, capace di reagire autonomamente alle variazioni climatiche senza l’impiego di energia, sensori o dispositivi meccanici. Il padiglione è avvolto da una pelle lignea

modulare realizzata in compensato, progettata per sfruttare l’instabilità dimensionale del legno in relazione all’umidità atmosferica. Ogni modulo ospita aperture sensibili che si aprono e si chiudono in risposta diretta ai cambiamenti del microclima, regolando porosità, illuminazione e permeabilità visiva. Le variazioni di umidità relativa – comprese tra il 30 e il 90 per cento, corrispondenti alle condizioni di un clima temperato – attivano oltre 1.100 elementi reattivi, trasformando il padiglione in un organismo architettonico in costante dialogo con l’ambiente.

Sotto. Dettaglio delle aperture igroscopiche e viste interne di HygroSkin Meteosensitive Pavilion. Gli elementi

in compensato programmati materialmente reagiscono alle variazioni di umidità modificando la propria geometria.

Il principio biomimetico alla base del progetto trae ispirazione dal comportamento delle pigne degli abeti, che reagiscono passivamente all’umidità grazie alla struttura anisotropa del loro tessuto. Analogamente, HygroSkin impiega compositi lignei programmati materialmente per trasformarsi nel tempo, senza necessità di controllo esterno. Il materiale diventa così sensore, attuatore e regolatore, incarnando un’idea di architettura in cui la forma è il risultato diretto dell’interazione tra materia e clima. Dal punto di vista costruttivo, il padiglione nasce da un avanzato processo di progettazione

computazionale e fabbricazione robotica. I moduli, geometricamente unici, sfruttano la capacità autoformante del legno e vengono realizzati con robot industriali a 7 assi, raggiungendo elevati livelli di precisione e leggerezza strutturale. Parte della collezione permanente del Frac Centre di Orléans, HygroSkin rappresenta una sintesi significativa tra ricerca scientifica, sperimentazione progettuale e riflessione sul futuro di un’architettura profondamente integrata nei processi naturali.

Ispirato al comportamento delle pigne, il sistema integra biomimesi progettazione computazionale e fabbricazione robotica trasformando il legno in attuatore climatico passivo. Foto Icd/Itke.

SEZIONE TRASVERSALE

Urbach Tower Self-building buildings

La Urbach Tower e l’idea di un’architettura

autoformante in cui il progetto si inscrive nel comportamento programmato della materia

La Urbach Tower rappresenta un passaggio decisivo nel modo in cui l’architettura può essere concepita come apparato operativo, in cui la forma non viene imposta al materiale ma emerge dal suo comportamento intrinseco. Realizzata per la Remstal Gartenschau 2019 a Urbach, in Germania, la torre è il primo edificio al mondo costruito con componenti lignei autoformanti su scala edilizia, capaci di trasformarsi autonomamente durante il processo produttivo. Alta 14 metri e composta da dodici elementi curvi in legno lamellare incrociato, la struttura nasce da un principio tanto semplice quanto radicale: sfruttare il ritiro igroscopico del legno durante l’essiccazione come forza progettuale. I pannelli vengono inizialmente prodotti in forma piana e, grazie a una precisa ‘programmazione’ del materiale, orientamento delle fibre, stratigrafia e contenuto di umidità assumono

spontaneamente la curvatura finale durante l’asciugatura industriale. In questo processo non intervengono né stampi né piegature meccaniche energivore: è il materiale stesso a generare la forma. Questo approccio ribalta una tradizione costruttiva che ha sempre considerato l’umidità come un problema da controllare. Qui, al contrario, la deformazione diventa motore progettuale, consentendo la realizzazione di una struttura a guscio estremamente sottile (90 mm) e leggera, con un rapporto luce-spessore di circa 160:1. La torre lavora come struttura di superficie attiva, in cui la curvatura garantisce stabilità, efficienza materiale e continuità strutturale.

Dal punto di vista architettonico, la Urbach Tower non è solo una dimostrazione tecnologica. La sua forma elicoidale e ascendente costruisce un’esperienza spaziale

ASSONOMETRIA DALL’ALTO
PIANTA PIANO TERRA

Realizzata con elementi lignei autoformanti e alta 14 metri, la Urbach Tower sfrutta il ritiro igroscopico del legno per generare la propria curvatura senza stampi né piegature meccaniche trasformando il comportamento del materiale in principio strutturale e spaziale. Foto Icd. Università di Stoccarda.

Sotto. La terrazza interna ricavata dal sistema di deformazioni programmate della struttura. Foto Roland Halbe.

URBACH TOWER

che alterna compressione e apertura, opacità e luce, offrendo al visitatore un punto di osservazione privilegiato sul paesaggio della Remstal. All’esterno, il rivestimento in larice trattato conferisce alla torre una presenza netta e mutevole; all’interno, la curvatura convessa del legno genera una percezione quasi tessile della materia.

La Urbach Tower dimostra come l’automazione architettonica possa essere incorporata nel materiale stesso, senza ricorrere a sensori, attuatori o controllo digitale in tempo reale. In questo senso, non è un edificio ‘intelligente’ perché reagisce, ma perché è stato progettato per comportarsi così. Un esempio emblematico di architettura come organon: non rappresentazione, ma processo ■

Località Urbach (Baden-Württemberg)

Team di progetto Icd. Institute for Computational Design and Construction, Università di Stoccarda (Achim Menges, Dylan Wood). Itke. Institute of Building Structures and Structural Design, Università di Stoccarda (Jan Knippers, Lotte Aldinger, Simon Bechert)

Collaborazione scientifica Laboratory of Cellulose and Wood Materials, Empa, e Wood Materials Science, ETH Zurigo (Philippe Grönquist, Prof. Ingo Burgert)

Sostegno al progetto Comune di Urbach; Remstal Gartenschau 2019; Fondazione Federale Tedesca per l’Ambiente; Innosuisse; Carlisle Construction Materials; Scanntronik Mugrauer

Struttura in legno alta 14,20 m

Raggio di 4,0 m alla base, 3,0 in sommità, 1,6 m nella parte centrale

Legno di abete in Clt con stratigrafia 10–30–10–30–10 Facciata legno di larice, trattamento all’ossido di titanio

Componenti 12 prefabbricati individuali, preassemblati in gruppi da 3

Dettaglio di connessione con viti incrociate e blocchi di allineamento in legno

Sensori 8 per il monitoraggio del contenuto di umidità interna della struttura

Copertura curva in policarbonato con struttura di supporto in acciaio

John McAslan + Partners. Sloane Street. Foto Hufton+Crow.

Il paesaggio come progetto

Nelle società post-industriali, il progetto del paesaggio è probabilmente il grande tema dell’architettura dei prossimi decenni. In un contesto in cui quasi tutto è già costruito e consolidato, ciò che si trova all’esterno del perimetro degli edifici – lo spazio tra i volumi costruiti, le strade, i parchi, i grandi vuoti della città diffusa – assume una straordinaria rilevanza progettuale. Il paesaggio urbano, in tutta la sua complessità, merita oggi una considerazione che va ben oltre la tradizionale distinzione tra edificato e non edificato, con ricadute decisive sulla pratica teorica e operativa dell’architettura nel suo insieme.

Eppure, fino a non molto tempo fa, questo tema era sostanzialmente estraneo alla cultura del progetto architettonico italiano. Almeno fino alla fine degli anni Novanta, il paesaggio restava ai margini del dibattito disciplinare, percepito come ambito specialistico separato, lontano dalle logiche della progettazione edilizia. Solo negli ultimi due decenni, anche sulla spinta di un crescente interesse per le questioni ambientali, il tema ha guadagnato progressivamente centralità nel confronto culturale e professionale.

Questa presenza nel dibattito, tuttavia, non trova ancora un riscontro adeguato nella pratica. A sud delle Alpi, il progetto del verde tende ancora troppo spesso a essere considerato un elemento accessorio, quasi decorativo: qualcosa che si aggiunge a margine di un progetto edilizio già definito, piuttosto che parte integrante del

processo fin dalle sue fasi iniziali. Malgrado la sempre più diffusa popolarità di termini come ambiente, natura e paesaggio, il verde viene ancora alla fine della complessa catena di ragionamenti coinvolti dal progetto.

Stanno però emergendo autori di indubbio interesse e realtà professionali capaci di confrontarsi con questi temi a livello genuinamente progettuale. Esempi ancora isolati, ma che segnalano con chiarezza una maturazione in corso. E questo malgrado una cultura del verde urbano dove l’Italia sconta un ritardo strutturale rispetto alla gran parte dei paesi europei.

È a partire da questa lettura, consapevoli delle contraddizioni, ma attenti ai segnali positivi, che abbiamo costruito questo dossier, cercando il contributo di autori eterogenei per formazione e approccio: architetti, paesaggisti, agronomi, ricercatori. Il progetto del paesaggio è per sua natura una disciplina di confine, e solo attraverso il dialogo tra competenze diverse è possibile restituirne la complessità reale.

Una domanda ai protagonisti del Verde

Stefano Assogna

Osservando l’attuale panorama dell’architettura del paesaggio, colgo un limite strutturale nell’approccio al mondo vegetale: un vuoto critico in cui la scelta e la gestione delle diverse specie risultano ancor oggi fortemente deficitarie. È proprio in questa profonda mancanza che individuo le massime potenzialità inespresse, colmabili unicamente attraverso il pieno riconoscimento del Planting Design come disciplina fondante e autonoma. Questa pratica, capace di unire le dinamiche dell’ecologia alla visione del design, deve finalmente trovare una sua dimensione compiuta integrandosi al rigore e alla struttura della progettazione architettonica.

La vera evoluzione si compirà portando questa materia nei percorsi universitari, definendo una figura professionale specializzata: un progettista in grado di orchestrare ecosistemi complessi. Solo garantendo al Planting Design pari dignità progettuale potremo generare sistemi efficaci e resilienti, capaci di evolvere nel tempo secondo dinamiche naturali.

Marilena Baggio Greencure landscaping

In Italia l’architettura del paesaggio sta vivendo una fase di crescente attenzione culturale, ma resta ancora poco valorizzata sul piano operativo e professionale. La figura del paesaggista fatica a essere riconosciuta nella sua piena titolarità, nonostante richieda una formazione specifica e multidisciplinare che integra competenze botaniche, agronomiche, pedologiche, urbanistiche e architettoniche. Il paesaggio non è un ambito affrontabile per approssimazione, ma necessita di una lettura profonda, critica e consapevole dei luoghi.

Le sue potenzialità inespresse risiedono soprattutto nel ruolo del paesaggista come figura di coordinamento tra saperi scientifici e umanistici. Il progetto di paesaggio opera su scale diverse e coinvolge tutto ciò che definisce lo spazio aperto: dal suolo alla flora e alla fauna, dall’acqua ai materiali, in dialogo costante con l’architettura. È necessario un cambio di paradigma: il paesaggio non è un oggetto, ma un soggetto vivo, in continua evoluzione. Riconoscerlo significa progettare spazi capaci di adattarsi nel tempo, generare relazioni e rispondere alle trasformazioni ambientali e sociali.

Greta Bianchi, Marco Togni e Michele Pezzoni

Negli ultimi anni in Italia l’attenzione verso l’Architettura del Paesaggio è progressivamente aumentata, sia nel dibattito istituzionale sia nella pratica professionale. Nonostante ciò, il settore presenta ancora un notevole potenziale inespresso. Molti territori richiedono interventi capaci di mitigare gli effetti dei fenomeni meteorologici estremi, sempre più frequenti a causa del cambiamento climatico.

Al riguardo, l’Architettura del Paesaggio può assumere un ruolo decisivo nella progettazione di infrastrutture verdi, sistemi di drenaggio urbano, corridoi ecologici e spazi aperti resilienti. La sfida principale consiste nell’adottare con continuità il principio del ‘progettare con la natura’, integrando processi ecologici e dinamiche ambientali nelle strategie di trasformazione territoriale. È necessaria una visione politica e culturale più consapevole, che riconosca il valore del paesaggio e investa nella qualità degli spazi pubblici come infrastrutture strategiche per il futuro.

Garden Designer, docente e specialista di Planting Design. Partendo come giardiniere, Stefano Assogna ho approfondito negli anni lo studio del paesaggio e del verde. Oggi il suo focus è la progettazione di veri ecosistemi e comunità di piante, con una visione prettamente plant-oriented.

Architetto e paesaggista, Marilena Baggio indaga da sempre il rapporto tra spazio, natura e benessere. Nel 2014 fonda a Milano Greencure landscaping. Opera su scenari internazionali e in contesti complessi, pubblici e privati, integrando progettazione, ricerca e divulgazione. Il suo lavoro interpreta il paesaggio come soggetto vivo, capace di incidere sulla salute e sulla qualità della vita.

Greta Bianchi, Marco Togni e Michele Pezzoni sono paesaggisti uniti dalla passione per la progettazione del paesaggio e l’interazione uomo-natura. Curatori nel 2024-2025 degli allestimenti all’Antico Lavatoio per il Landscape Festival di Bergamo, indagano cambiamenti climatici e nuovi ecosistemi urbani.

Abbiamo chiesto a 15 progettistii del paesaggio qual è lo stato dell’architettura del verde in Italia e quali sono le potenzialità ancora inespresse

Ecco le loro risposte.

Francesco Garofalo

Openfabric

Oggi l’architettura del paesaggio è chiamata a una responsabilità primaria: riparare un territorio fragile. Mitigazione e adattamento al cambiamento climatico, gestione dell’acqua, risposta alla siccità e all’instabilità idrogeologica non sono temi settoriali, ma il campo stesso del progetto. Tuttavia, questa urgenza non può tradursi in un paesaggio ridotto a dispositivo tecnico o a semplice misura compensativa. Al contrario, la riparazione deve andare di pari passo con la costruzione di bellezza e desiderio, attingendo alla tradizione italiana fatta di proporzioni, materia e qualità dello spazio vissuto.

Il paesaggista, quindi, non può limitarsi allo spazio pubblico inteso in modo convenzionale, ma deve assumere una responsabilità più ampia sull’intero ecosistema urbano: infrastrutture, margini, sistemi ambientali e produttivi. In questa prospettiva, il paesaggio diventa struttura portante della città contemporanea e strumento politico di trasformazione.

Parcnouveau

Margherita Brianza

Le tracce di memoria storica stratificata degli impianti romani mostrano come l’Italia sia sempre stata un volano della promozione di una cultura del paesaggio inteso come luogo dell’abitare. La costruzione del paesaggio era un atto compositivo che si poneva in netta contrapposizione all’andamento naturale della vegetazione spontanea, fino a quasi annullarne i portamenti più aspri e selvatici.

Il paesaggio che disegniamo si concentra sull’ascolto diretto delle piante autoctone, spontanee e dinamiche, generando spazi assimilabili a organismi mutevoli ed evolutivi; abbandonando l’uso decorativo delle piante, diamo spazio a paesaggi adattivi, resilienti e biodiversi. Il futuro del paesaggio è l’ascolto sensibile degli echi naturali dei luoghi, in Italia come altrove, con il solo scopo di generare spazi capaci di anticipare le esigenze comunitarie e le loro evoluzioni.

Mariella Zoppi

Negli ultimi trent’anni, in Italia sono stati fatti passi da gigante nel campo della formazione universitaria e professionale, ma dobbiamo constatare come l’ormai diffusa preparazione disciplinare non sia riuscita a riverberare una cultura paesaggistica nel Paese, né nelle amministrazioni pubbliche né nella gran parte dei committenti privati.

L’architettura – o forse dovremmo dire, più in generale, l’edilizia – è dominante e il verde resta un campo marginale da affrontare in seconda battuta. Certo ci sono esempi eccellenti, ma raramente il paesaggio è visto come l’occasione per definire il terreno comune (di e per tutti) da progettare prima di realizzare qualsiasi volume.

I sistemi di verde compongono ambiti di libertà e di bellezza, accoglienti e utili, in grado di contribuire alla costruzione di una città vivibile e di una società più giusta e meno aggressiva. Un’ottica ribaltata, dunque, che parte dai vuoti e dallo spazio aperto per riprogettare e dare forma alle città del XXI secolo.

Fondato nel 2011 da Francesco Garofalo e con sedi a Rotterdam, Milano e Genova, Openfabric esplora le implicazioni spaziali dell’urbanizzazione planetaria trasformando la ricerca critica in progetto e visioni, dalle grandi strategie territoriali agli spazi pubblici urbani. Esempi del suo operato il Parco della Reggia di Rivalta a Reggio Emilia, Into the Wild all’Aia e Faith Park a Tirana.

Fondato nel 2008 da Margherita Brianza che oggi lo guida insieme a Luca Mazzocchi e Carolina Pelosato, con un team di 20 collaboratori Parcnouveau copre ogni aspetto del progetto di paesaggio, dalla pianificazione strategica su larga scala a spazi urbani come piazze e giardini, dagli ambienti di lavoro all’ospitalità fino ai centri logistici e agli ospedali.

Mariella Zoppi, architetto, urbanista, professore emerito dell’Università di Firenze, autore di numerose pubblicazioni, ha insegnato alla California Berkeley University e alla Zhejiang Normal University di Jinhua. Ha progettato piani urbanistici, parchi e giardini in Italia e all’estero.

Una domanda ai protagonisti del Verde

Gheo

L’architettura del paesaggio in Italia mi sembra stia vivendo oggi un momento di grande fermento, credo alimentato anche dalla maggiore sensibilità verso il tema dell’ambiente; oggi il verde è percepito come un elemento importante del vivere quotidiano, non più un semplice abbellimento. E questo secondo me segna un cambio di passo importante.

Anche nel verde privato, ambito in cui opero, noto un cambiamento significativo: l’attenzione, che prima si focalizzava solo sulla qualità estetica o la bassa manutenzione, oggi si dirige anche verso l’impatto del progetto sul contesto e la sua capacità di integrarsi nel paesaggio.

Tra le potenzialità ancora poco esplorate trovo molto interessante il tema degli healing gardens, spazi in cui piante, luce, stagioni e materiali naturali diventano parte di un processo di cura. Giardini terapeutici che possono essere pensati non solo negli ospedali o nei centri di recupero da dipendenze, ma anche negli spazi pubblici dove potrebbero contribuire a ridurre stress e isolamento sociale.

Andreas Kipar

Land

L’architettura del paesaggio in Italia è una disciplina dinamica e vivace, anche grazie all’instancabile attività dell’Aiapp. Il Paesaggio, riconosciuto dalla Convenzione Europea del 2000, è ora la base della nuova urbanistica, della transizione ecologica nelle nostre città, e il passe-partout di ogni nuova generazione sul territorio. Il paesaggio è vita, cultura, un’infrastruttura capace di rigenerare luoghi e città, connettere le persone e far riscoprire l’identità dei territori. Superando i limiti dei quadri normativi, i paesaggisti diventano mediatori sociali: progettano in modo multidisciplinare e olistico, ascoltando cittadini, comunità e stakeholder. Nelle città, il paesaggio è organismo, driver di inclusione, benessere e resilienza climatica. Serve un approccio sistemico e Nature-Positive che unisca innovazione digitale e crescita economica, trasformando il paesaggio da contorno a preludio della progettazione. La sfida è attuare, con governi, aziende e amministrazioni, una ‘conservazione conviviale’ della Natura: un’esperienza collettiva che guidi il futuro di città e territori nel segno del Capitale Naturale.

AG&P greenscape

In Italia solo dopo il 2000, a seguito dell’emanazione della Convenzione Europea del Paesaggio che sancisce la figura del ‘Paesaggista’ come professione fondamentale e strategica, si ampliano e si diversificano gli ambiti di intervento per l’architetto del paesaggio. Anche la scala progettuale inizia ad abbracciare, oltre al giardino e al parco, l’intero territorio. La progettazione paesaggistica non è più solo uno degli accessori che completano e valorizzano l’architettura o minimizzano l’impatto delle infrastrutture, ma un’azione trasversale capace di favorire il recupero del rapporto tra individuo e natura e migliorare la qualità della vita. Il paesaggista appare forse l’unico, attraverso un approccio multidisciplinare, in grado di maturare una visione di sintesi capace di mediare tra i valori paesaggistici e la complessità del mondo in evoluzione con i suoi bisogni sociali, culturali, ambientali ed economici. Pandemia ed emergenza ambientale, con l’affermarsi di nuovi parametri, hanno reso più che mai urgente tale ruolo. La nuova scommessa del paesaggista non è quindi quella di divenire ‘land o garden star’ ma di riuscire a porsi come il regista indispensabile di questi nuovi processi.

Gheo Clavarino è titolare di uno studio a Milano specializzato nella progettazione di giardini e terrazzi privati. Il suo lavoro è incentrato sulla progettazione e su un’attenta ricerca botanica, con particolare attenzione alla scelta delle piante e all’equilibrio tra estetica, contesto e sviluppo nel tempo.

Architetto, paesaggista e urbanista, Andreas Kipar è Ceo e co-fondatore di LAND. Dal 2009 insegna Public Space Design al Politecnico di Milano. È membro della Dasl, della Bdla, dell’Aiapp e dell’Inu. Fa parte della task force globale di esperti per Nature-positive cities del World Economic Forum. La sua attività è stata riconosciuta da oltre 20 premi internazionali.

AG&P greenscape, laboratorio multidisciplinare di architetti del paesaggio con sedi a Milano e Torino, da 40 anni opera nel master planning, urban landscape e garden design in Italia e all’estero. I partner Emanuele Bortolotti e Paolo Palmulli, uniti da una visione che esplora il rapporto uomonatura, coordinano un team di oltre cinquanta professionisti, cuore creativo, tecnico e interdisciplinare dello studio.

Abbiamo chiesto a 15 progettistii del paesaggio qual è lo stato dell’architettura del verde in Italia e quali sono le potenzialità ancora inespresse

Ecco le loro risposte.

Angelo Vecchio

Scau Studio

Domanda enorme e bellissima. Provo a rispondere con uno sguardo critico e un filo di fiducia. Lo stato dell’architettura del paesaggio in Italia è quello di una disciplina ricca di competenze, ancora poco riconosciuta, che sa fare molto più di quanto le venga chiesto. Nella pratica ciò produce interventi frammentari, legati a singole opere più che a visioni di lungo periodo, una debole integrazione con pianificazione e progetto urbano e una committenza pubblica timorosa, che privilegia soluzioni standard e culturalmente povere.

Oggi il calo della popolazione e l’eccesso di costruito ereditato dal boom economico rendono matura l’idea di un restauro del paesaggio che includa anche la demolizione selettiva. Non è distruzione, ma progetto: disfare ciò che ha perso funzione e senso per restituire spazio a sistemi ecologici e modi di vita più sostenibili e condivisi. Servono strumenti legali e risorse dedicate: un Paese che pensa il futuro deve riconoscere il diritto a demolire come parte della cura del territorio.

Bepi Povia

Bpi&G Partners

Malgrado sia una disciplina fondamentale nella pianificazione del territorio, in Italia l’architettura del paesaggio è ancora in evoluzione: un settore ricco di potenzialità ma anche di forti contraddizioni. Ancor oggi numerose amministrazioni pubbliche non hanno investito in Piani Paesaggistici Particolareggiati, e in alcuni casi ancora non si fa distinzione tra paesaggio naturale e paesaggio costruito.

Il paesaggio italiano è riconosciuto come patrimonio culturale e identitario, ma ogni intervento deve fare i conti con una storia millenaria di stratificazioni estetiche, agricole, urbane, botanico/vegetazionali: queste ultime estremamente differenti pur se insistenti su territori contigui. E nonostante ciò, il ruolo del paesaggista è ancora troppo marginale.

Esistono comunque esempi eccellenti – parchi urbani rigenerati, interventi di rinaturazione fluviale, agricoltura urbana – ma si tratta di casi isolati e non parte di una visione sistemica nazionale. Molto spesso inoltre la pianificazione del territorio agisce per compartimenti stagni: l’architetto paesaggista entra quasi sempre tardi nel processo decisionale, spesso chiamato solo per decorare l’ambiente costruito.

Antonio Perazzi

Qualunque forma di progettazione paesaggistica viene inevitabilmente a contatto con la natura spontanea dei luoghi. È quindi fondamentale per un progettista studiare le ecologie locali. Preconcetti e convenzioni ornamentali sono banalizzazioni con scarsa longevità funzionale. Per me, l’intenzione centrale ancora inespressa è esplorare come la vegetazione spontanea possa condizionare la progettazione. Ho progettato giardini e paesaggio su varie scale, nel privato e nel pubblico, con limiti di budget e di tempo, in Italia e all’estero. Ho avuto la fortuna di studiare moltissime piante e testare suoli diversi: ma è dalla concretezza di giardinieri curiosi e intelligenti che ho imparato ad affrontare il progetto. In Italia mancano i giardinieri, intendo coloro che aiutano il progettista a ideare, oltre che a realizzare, il paesaggismo come l’espressione più elevata dell’artigianato, della creatività e della genialità di cui ci ha lasciato troppo a lungo orfani Pietro Porcinai. I progetti paesaggistici non sono statici, sono altresì l’innesco di un dialogo tra l’ambiente e l’uomo basato sullo studio, l’arte, l’umiltà e il prendersi cura: solo in questo modo si possono realizzare soluzioni capaci di conciliare natura e artificio.

Angelo Vecchio, architetto e ingegnere, è fondatore di Scau Studio. Opera nell’architettura e nel paesaggio con numerosi progetti pubblici e privati. La sua ricerca unisce innovazione e sperimentazione, ridefinendo il rapporto tra tecnologia, funzionalità ed estetica, con attenzione all’integrazione tra architettura, giardino e paesaggio.

Designer del paesaggio appassionato di agricoltura e viticoltura, Bepi Povia è project manager di progetti di architettura e di paesaggio rivolti prevalentemente all’ambito dell’ospitalità. Dal 2009 con la sua società Bpi&G Partners cura interventi di restauro e riconversione di strutture rurali in Puglia.

Antonio Perazzi è paesaggista e scrittore, abita a Milano e appena può si tuffa in una crepa del marciapiede insieme a erigeron e linarie o nei giardini che progetta in giro per l’Italia e all’estero. Se non è in un giardino a progettare ne scrive, in una felice sintesi di estetica progettuale, scienza botanica e abilità letteraria.

Abbiamo chiesto a 15 progettistii del paesaggio qual è lo stato dell’architettura del verde in Italia e quali sono le potenzialità ancora inespresse

Ecco le loro risposte.

Patrizia Pozzi

Landscape Design

Fin da giovanissima, come un fiume che segue la sua natura, accompagno il mondo dell’architettura del paesaggio, guardando sempre avanti verso nuove tendenze e orizzonti. Lungo il mio percorso professionale ho osservato lo svilupparsi e il susseguirsi di nuove visioni. Oggi gli scenari sono più ampi e diversificati e affiancano il nostro quotidiano in forme sempre più trasversali e interdisciplinari. La Natura, intendendo per essa tutti gli elementi che la compongono, offre a noi progettisti la possibilità di spaziare a 360° senza limitazioni. Chi vuole osare può accostarsi, come le anse di un fiume, a nuovi punti di vista. La nostra disciplina corre come un fiume in piena e sta recuperando il naturale contatto con i luoghi della nostra quotidianità e con il mondo dell’architettura dal quale si era sensibilmente scollata. Molto spesso però si tende a guardare al passato più che al futuro. Forse dovremmo ascoltare ed osservare la Natura e seguire i suoi ritmi guardando avanti, come il fiume che scorre naturalmente a valle.

Vittorio Peretto

Hortensia

Recentemente sono stato chiamato a tenere una lezione ad un corso di Giardiniere per Parchi Storici. Ho esordito dicendo che il tema è bellissimo ma che andrebbe posto l’accento su un aspetto fondamentale: si può essere giardiniere storico? E’ un aneddoto per dire che, a più vario titolo, coinvolgendo tutti coloro che operano nella filiera dell’architettura del paesaggio, penso sia ora di recuperare delle storiche capacità ed attitudini. Sembra un paradosso, ne sono conscio. Parlare di frequentazioni che reputo sopite, quelle con la natura e con le tecniche di un tempo, oggi, nel momento in cui il progresso ci mette in condizione di fare giardini dove parrebbe impossibile e di abbattere limiti che sembrerebbero invalicabili, davanti ad un’intelligenza artificiale che in maniera pervasiva ci illude di risolvere ogni cosa. Eppure, in questo miracolo, io vedo il rischio di perdere il pezzo più importante del nostro bagaglio: il filo rosso che ci lega alla Natura.

Gaetano Selleri PAN Associati

Non saprei commentare lo stato della disciplina. Posso forse dire qualcosa su quello che mi sembra sia necessario oggi e che vorrei fare come progettista. 1- occuparci (finalmente) di paesaggio delle infrastrutture: strade, ferrovie, industrie, logistica, è cosa ancora molto rara in Italia almeno come elemento fondante e irrinunciabile;

2 - occuparci del paesaggio della protezione cambiando il territorio a beneficio della collettività accettando la sfida della sua reale trasformazione utilizzando la natura e non contro di essa; 3 - pensare al paesaggio della riconversione: demolire quanto non serve più e porre le basi per la deurbanizzazione di aree costruite abusivamente in contesti errati. Riportare alla natura tutto questo; 4 - portare la natura nella città: acquisire, ovunque possibile, aree per la forestazione urbana mettendo a regime questa ormai necessaria dotazione infrastrutturale della città moderna.

5 - Vista la portata dei temi, coinvolgere e motivare l’intera collettività in questi progetti che possono dare un orizzonte nuovo alla vita sociale e politica: penso ce ne sia un gran bisogno.

Patrizia Pozzi, appassionata di Natura e Architettura, esprime la sua vocazione nella professione di architetto del paesaggio proiettandosi verso le forme più trasversali del paesaggio e dell’architettura contemporanea. Le sue realizzazioni sono state selezionate ed esposte in tre edizioni della Biennale Europea del Paesaggio di Barcellona e alla Biennale di Venezia.

Botanico paesaggista, Vittorio Peretto, fondatore di Hortensia, ha progettato dal Portogallo alla Cina, unendo competenze tecniche e poesia. È membro dell’Advisory Board di Manifesto dell’Abitare, del Comitato Scientifico dell’Oasi Zegna e Maestro d’Arte e Mestiere.

Gaetano Selleri è socio fondatore e direttore tecnico di Pan Associati, dove coordina progetti di paesaggio e architettura, e socio Aiapp. Tra i numerosi lavori dello studio, le sistemazioni esterne di Expo 2015, il Parco della Pace di Vicenza, il depuratore di Trento. All’attività professionale lo studio ha sempre affiancato la partecipazione a concorsi di architettura.

STUDIOSPAZIO

Gli 850 metri di rettilineo sono stati spezzati in tratti collegati da chicane. La posa di essenze vegetali analoghe a quelle dei giardini privati sfuma i confini tra pubblico e privato e trasforma la strada in un unico giardino pubblico percorribile a 30 Km/h. Foto Stefano Graziani.

VIA AMADEI. MANTOVA

Committente Comune di Mantova

Progetto e DL Studiospazio (Eugenio e Samuele Squassabia)

Paesaggio Openfabric

Imprese Mantova Ambiente; Reggiani

Superficie 12.239 mq

Cronologia 2022-2025

Via Amadei, la trasformazione comincia dalla periferia

Da rettilineo a percorso sinuoso, con il verde pubblico che diventa la prosecuzione di quello privato. L’intervento di Studiospazio ha trasformato via Amadei, una strada degli anni Trenta del Novecento caratterizzata da abitazioni individuali e piccoli condomini nel quartiere Te Brunetti, in un giardino che i veicoli possono percorrere a 30 Km/h. Si tratta di una delle prime applicazioni del piano del verde elaborato da Open Fabric per la città di Mantova. La carreggiata è stata dimezzata, depavimentandone ora una corsia ora l’altra per spezzare in segmenti – collegati tra loro da chicane – la linea retta della strada.

Il carattere di via Amadei è l’assenza di una cortina stradale continua tipico di molte strade suburbane: le abitazioni si affacciano sulla via con piccoli giardini recintati. Studiospazio ha trasformato quello che di solito è un limite della qualità dello spazio urbano in una risorsa: piantumando le aree liberate dall’asfalto con le stesse specie vegetali, sorprendentemente Mantova, via Amadei dopo la trasformazione.

varie, dei giardini privati, l’intervento sfuma il tradizionale confine tra pubblico e privato, riducendo la percezione delle recinzioni e trasformando di fatto l’intera strada in un solo, variegato giardino pubblico, vissuto quotidianamente dai circa mille residenti.

Un intervento misurato nella scala ma ambizioso nelle intenzioni perché capace di rafforzare il senso di comunità e di incidere concretamente sulla qualità di vita senza ricorrere a provvedimenti coercitivi (il limite dei 30 Km/h è spesso percepito come incongruo e i dossi che di solito vengono posati come fastidiosi e punitivi).

La riduzione del 45 per cento di asfalto, l’elevata densità vegetale e la biodiversità delle oltre 50 specie impiegate contribuiscono inoltre a migliorare il comfort climatico, trasformando via Amadei in un vero e proprio corridoio ecologico.

www.studiospazio.net

Disegno generale del Piano del Verde di Mantova. Fulcro dell’intervento di forestazione sono i 115 ettari del Parco Periurbano Sud, ampio sistema ecologico che collega il Lago Superiore e la Vallazza

attraverso il recupero del bacino del ‘quarto lago’.

A destra, vista aerea di Mantova e del Lago Superiore (foto Comune di Mantova) e sintesi delle strategie messe a punto da Openfabric.

OPENFABRIC

Verde accessibile in cinque minuti a piedi per tutti gli abitanti di Mantova

Il Comune di Mantova ha presentato il Piano del Verde, strumento strategico-operativo elaborato da Openfabric, studio specializzato in architettura del paesaggio con sedi a Rotterdam, Milano e Genova, per guidare la trasformazione ecologica della città e adeguarla alle sfide climatiche e ambientali contemporanee, migliorando la qualità di vita degli abitanti e potenziando il ruolo di corridoio ecologico di rilevanza nazionale che la città lombarda esercita lungo il fiume Mincio.

In continuità con il Piano di Governo del Territorio del 2012, il Piano del Verde affronta la questione ambientale come parte integrante di una strategia più ampia e di lungo periodo per

il futuro urbano. Frutto di un lavoro interdisciplinare che combina analisi ecologiche, territoriali e sociali, il Piano definisce un’infrastruttura ambientale complessa, capace di influire significativamente sulle scelte urbanistiche e di orientare lo sviluppo territoriale.

La rete viaria, tradizionalmente associata a impermeabilizzazione del suolo e frammentazione degli habitat, viene completamente ripensata e trasformata in una risorsa attiva per la riduzione delle isole di calore, l’assorbimento delle acque meteoriche e il miglioramento complessivo della qualità degli spazi pubblici. Gli oltre 100 km di intervento prevedono filari continui, profili stradali climaticamente perfor-

IL PIANO DEL VERDE DI MANTOVA manti, pavimentazioni drenanti e l’impiego di materiali di colore chiaro per limitare l’assorbimento di calore.

La forestazione urbana, estesa su una superficie di 274 ettari, distribuisce nuovo verde tra bordi agricoli, spazi periurbani e ambiti urbani strategici. Il Parco Periurbano Sud, composto dal Parco Paiolo e dal Corridoio Sud, rappresenta il fulcro dell’intervento, collegando il Lago Superiore e la Vallazza attraverso un ampio sistema ecologico e paesaggistico che restituisce continuità e identità al territorio. Questo spazio pubblico diffuso si estende su oltre 115 ettari e integra biodiversità, ricerca, arte e fruizione quotidiana.

La prossimità al cittadino è un altro tema centrale del progetto: ogni abitante di Mantova può raggiungere uno spazio verde in meno di cinque minuti a piedi.

Anche la gestione dell’acqua assume un ruolo fondamentale. Il piano integra bacini di laminazione e soluzioni nature-based che aumentano la capacità del suolo di assorbire e regolare naturalmente le acque. Infine, il sistema di illuminazione è pensato per ridurre l’inquinamento luminoso, grazie a sensori e orientamenti calibrati, garantendo al contempo adeguati livelli di sicurezza nelle ore notturne.

www.openfabric.eu

Committente Comune di Mantova

Progetto Openfabric

Team di progetto Francesco Garofalo, Ludovica Barcucci, Konstantinos Venis, Jacopo Gennari

Feslikenian, Laura Parra, Edoardo Bracchi Ishaani Shah

Estensione territoriale 63,97 kmq

Nuove aree forestate 274 ettari

Parco Periurbano Sud 115 ettari

Corridoi ecologici urbani 100 km

Bacini di laminazione 29 ettari

Cittadini con accesso al verde pubblico entro 5 minuti a piedi dalla propria abitazione 100%

SLOANE STREET. LONDRA

Committente Cadogan Estate

Masterplan e progetto del paesaggio John McAslan and Partners (Andy Harris e Kit Bullas)

Progetto botanico Space Syntax

Ingegneria Wsp

Light consultant Lapd Lighting

Superficie dell’intervento 30.000 mq

Anno 2024

JOHN MCASLAN + PARTNERS

Kensington, spazio al verde e alle persone in Sloane Street

In primavera, con il festival Chelsea in Bloom, Sloane Street, King’s Road e le strade vicine si riempiono di spettacolari installazioni floreali. Quest’anno in Sloane Street avranno il 20 per cento di spazio in più, dopo l’intervento di John McAslan + Partners, vincitori di un concorso internazionale indetto da Cadogan Estate (in accordo con il Royal Borough of Kensington and Chelsea) per riqualificare il chilometro di lunghezza della strada londinese sulla quale si affacciano ricche mansions, alberghi di lusso, ambasciate e brand della moda, aperta nel XVIII secolo dal primo conte di Cadogan. L’intervento, che amplia del 20 per cento la superficie dei marciapiedi (riducendo del 15 per cento il traffico veicolare, secondo uno studio della società di ingegneria Wsp, che ha partecipato al progetto, senza impattare in maniera significativa sulla fluidità), conferisce a Sloane Street una nuova identità, incentiva l’affluenza del pubblico, prolunga il tempo di permanen-

za e migliora in modo significativo l’esperienza pedonale.

Rifacendosi alla tradizione floricolturale dei contigui Cadogan Gardens e del vicino Chelsea Physic Garden, il progetto ha previsto la piantumazione di oltre 100 esemplari di tiglio e amelanchier a bacche rosse e 60 fioriere con specie vegetali selezionate tra arbusti, fiori e piante ornamentali in una palette di colori ‘reale’ fatta di marroni, rossi, porpora e blu. La scelta ha tenuto conto anche di esigenze di manutenzione ridotte e del clima sempre più caldo della capitale inglese.

Pur se in forme contemporanee, i materiali selezionati si rifanno alla tradizione. Colonne di illuminazione in ghisa a doppia altezza sono state realizzate da fabbri artigiani locali e sono direttamente ispirate alla Holy Trinity Church, mentre la pavimentazione è in pietra di York con tombini in ottone realizzati su misura. Il granito delimita le (poche) aree di parcheggio e le robuste fiorie-

re che integrano sedute informali e una separazione funzionale tra pedoni e traffico veicolare. L’impiego di materiali locali rientra nel più ampio programma di sostenibilità del progetto, che comprende anche l’adozione di sistemi di illuminazione a Led per la riduzione dei consumi, senza compromettere la sicurezza notturna. La riduzione di emissioni di CO2 è stimata intorno al 13 per cento.

Una parte significativa del budget di 46 milioni

di sterline è stata inoltre destinata a interventi meno visibili ma fondamentali per il miglioramento complessivo della fruizione dell’area. Oltre al potenziamento della rete internet, sono stati eseguiti lavori di razionalizzazione dei sottoservizi e della rete fognaria, a testimonianza di un approccio attento e sistemico alla trasformazione dello spazio urbano.

www.mcaslan.co.uk

Nella pagina di sinistra una vista dall’alto di Sloane Street (©S2A Media) e qui alcune immagini della strada riqualificata. Pavimentazione, cordoli e sedute sono in granito di York. Foto Hufton + Crow.

GREENCURE LANDSCAPING

Il giardino del Museo Rovati tra memorie etrusche e paesaggio milanese

Semplice e raffinato pocket garden, il giardino del Museo Rovati a Milano è un dispositivo spaziale le cui ondulazioni rendono leggibile in superficie la complessità dell’intervento ipogeo sviluppato dallo studio di Mario Cucinella per ospitare la collezione etrusca. Il progetto di riqualificazione dell’area verde, firmato da Greencure landscaping, assume come primo gesto la salvaguardia delle specie arboree esistenti, in continuità con la tradizione dei giardini milanesi riconducibile a Giuseppe Piermarini e Leopoldo Pollack. Il progetto non ricerca un’immagine spettacolare, ma lavora per accordi sottili tra vegetazione, suolo e architettura. Sono stati studiati il rapporto tra il verde e l’urbanità della città, la definizione dei confini, l’assialità con l’ingresso

del palazzo e l’asimmetria compositiva. Tre ondulazioni verdi emergono dal prato amplificando la profondità prospettica: non si tratta di episodi formali ma della traduzione in superficie delle sottostanti cupole ipogee, celando con segni misurati la complessità tecnica dell’intervento. La presenza dell’architettura interrata che accoglie il museo etrusco ha richiesto uno studio accurato del sistema di drenaggio, risolto con un massetto inclinato a più falde in grado di convogliare le acque meteoriche fuori dal solaio. La copertura è completata da un sistema certificato di verde pensile. Quanto alla vegetazione, due tigli (Tilia platyphyllos) sostituiscono dei tassi ammalorati. Bagolari (Celtis australis) e quattro Fagus sylvatica ‘Dawyck’ a portamento fastigiato scher-

mano l’edificio confinante senza chiudere lo spazio. Nuovi esemplari di Magnolia campbellii completano il boschetto di magnolie esistente. La vegetazione di sottobosco privilegia i rossi in autunno-inverno e il bianco in primaveraestate. Specie adatte alle condizioni di ombra e ai cambiamenti climatici, come Helleborus niger e Helleborus guttatus (Vinca minor ‘Alba’ ) definiscono un piano erbaceo coerente con la presenza delle acidofile.

La fruizione è affidata a una promenade perimetrale in ghiaino bianco che corre lungo il muro di cinta, ripristinato a intonaco in pasta di calce nel tradizionale ‘giallo Milano’, e si raccorda alla pavimentazione in pietra a mosaico bianco e grigio quale proscenio dell’edificio. Il percorso, con leggere variazioni altimetriche, accentua la

profondità prospettica del giardino e dà vita a una sequenza di scorci: dietro i faggi, attraverso il boschetto di magnolie, fino alla caffetteria. Una piccola serra, utilizzabile nella stagione fredda come stanza di lettura o spazio per la sosta, contribuisce a definire il giardino come ambiente abitabile che mitiga l’austerità del palazzo con una natura misurata e accogliente. Il lavoro dimostra come anche in un lotto nascosto e di dimensioni contenute, il disegno del suolo e della vegetazione possa assumere un ruolo centrale nella costruzione dell’identità architettonica complessiva.

www.greencure.it

L’aspetto naturale del giardino, che traduce in superficie la complessità dell’intervento architettonico e ingegneristico del museo etrusco ipogeo. Nella pagina di sinistra la piccola serra e sotto, il percorso in ghiaino bianco. Foto ©Greencure.

Committente Fondazione Rovati

Progetto architettonico Mario Cucinella

Architects

Progetto del paesaggio Greencure Landscaping

Impresa del verde Green Design Soc Coop

Superficie 1.200 mq

Anno 2022

GIARDINO DEL MUSEO ROVATI. MILANO

Due le linee-guida adottate per la cortegiardino di 800 mq: depavimentazione e reimpiego di materiali presenti sul sito e nelle vicinanze – cubetti di porfido, autobloccanti pezzi di acciaio traversine ferroviarie – usati per realizzare i percorsi. Foto ©Alireza Miraghaei.

PARCNOUVEAU E REALSTEP

Rigenerazione nel quartiere di Milano Certosa

Nel quartiere milanese di Certosa, in un’area in precedenza occupata dal gruppo automobilistico Koelliker, Parcnouveau e Realstep hanno trasformato uno spazio completamente pavimentato in un luogo di incontro. L’intervento si inserisce nel più ampio processo di rigenerazione promosso dalla società di sviluppo immobiliare e consolida la vocazione dell’area come polo urbano di creatività, musica e socialità. Il progetto, concluso nell’estate 2025, interessa un lotto di circa 1.600 mq, di cui 800 destinati a nuove superfici verdi.

Gli spazi aperti mettono in relazione tre edifici: CoFactory Designtech, laboratorio di fabbricazione digitale progettato da Pininfarina Architecture, un club e un bistrot.

L’impianto paesaggistico rigenera l’identità del sito partendo dal suo passato produttivo. In un’ottica di sostenibilità, il progetto è stato guidato dalla volontà di rimuovere la pavimentazione impermeabile e di riutilizzare materiali di recupero. Cubetti di porfido e autobloccan-

ti provenienti dal lotto adiacente trovano così nuova vita, mentre traversine ferroviarie rigenerate sono impiegate come cordoli e percorsi. Superfici in ghiaia e acciaio evocano inoltre la memoria industriale e operaia della zona. All’interno della corte si alternano erbacee, arbusti e graminacee. Le aree di rain garden favoriscono il drenaggio naturale delle acque meteoriche e contribuiscono alla mitigazione del microclima urbano. Il verde diventa così un’infrastruttura attiva per il benessere ambientale e sociale, e non un semplice elemento ornamentale. La corte è concepita come un’estensione dello spazio pubblico, con un paesaggio dinamico che muta nel corso delle ore e delle stagioni.

L’intero progetto si inserisce nella filosofia progettuale di Parcnouveau landscapes for people, che pone al centro la dimensione umana dello spazio. Ne derivano ambienti in cui luce, materia e vegetazione si intrecciano per generare identità e qualità dell’abitare.

La collaborazione con Realstep è stata determinante per la rigenerazione del patrimonio industriale dismesso del lotto, ambito in cui la società opera in modo specialistico. L’intervento dimostra come la rigenerazione urbana possa partire da gesti misurati ma incisivi, capaci di trasformare superfici residuali in spazi relazionali e resilienti. Un progetto che attraverso il verde e il reimpiego di materiali di recupero restituisce valore all’intero quartiere.

www.parcnouveau.com

La piazza del complesso Monte Rosa 91. Sotto, la passerella che sale alla collina del ‘parco della luce’. Foto courtesy AG&P.

Località Milano

Committente Axa IM Alts (ora BNP Paribas Asset Management Alts)

Landscape design AG&P Greenscape. Emanuele

Bortolotti e Paolo Palmulli

Landscape team Emanuele Bortolotti, Paolo Palmulli, Pierpaolo Tagliola, Mariagiusi Troisi, Georgia Karsioti, Igino Marchesin

Progetto architettonico Rpbw. Renzo Piano Building Workshop

Realizzazione paesaggio e aree verdi HW Style

Alberi 135 (93 esistenti e recuperati, 42 nuovi messi a dimora)

Grandi arbusti 60

Piccoli arbusti e piante perenni 13.800

Superficie 10.000 mq

Cronologia 2020-2024

AG&P GREENSCAPE

Monte

Rosa 91, la piazza, il bosco, la città

All’ingresso del civico 91 di via Monte Rosa, le vetrate e la grande scalinata – se non sei il collaboratore di uno dei 17 tenant che qui hanno sede – ti invitano subito a uscire all’aperto, all’aria della grande piazza-agorà e, passando dalle forme geometriche della città a quelle morbide degli alberi, su per la ‘collina’ boscosa che è il cuore paesaggistico del complesso. Progettato da AG&P Greenscape e realizzato da HW Style nell’ambito della recente riqualificazione dell’edificio progettato dallo studio di Renzo Piano, nato come sede unica aziendale e trasformato in un luogo aperto alla città, con spazi e servizi commerciali, il progetto si sviluppa su 10mila degli 80mila metri quadrati dell’intero campus e comprende la piazza, il tetto verde e la collina del Parco della luce, popolata anche di sculture luminose (da qui il nome), che cela il parcheggio sotterraneo.

Il progetto di paesaggio ha previsto il recupero di 93 alberi esistenti, la messa a dimora di 42 nuove alberature, oltre a 60 grandi arbusti e 13.800 tra piccoli arbusti e piante perenni che costruiscono microclimi, continuità ecologica e qualità spaziale.

La piazza centrale è concepita come spazio di ritrovo e attraversamento per lavoratori e visitatori, definita da un impianto aperto e permeabile, fortemente integrato con i boschetti urbani che si sviluppano ai lati, integrati con nuove alberature di dimensioni contenute. Questi sistemi vegetali contribuiscono a creare un microclima favorevole, migliorano la qualità dell’aria e riducono l’effetto isola di calore urbano, offrendo ombreggiamento e comfort ambientale.

La piazza è caratterizzata anche da vasche rialzate che ospitano alberature, erbacee peren-

MONTE ROSA 91. MILANO

ni, tappezzanti e specie ricadenti, rafforzando il dialogo tra spazio pubblico e paesaggio. Al centro del complesso, il tetto verde intensivo è elemento di mediazione tra il sistema urbano della piazza e quello più naturale del bosco. Centrale nella composizione architettonica e visibile dagli uffici circostanti, il tetto assume una forte valenza paesaggistica e scenografica. Arbusti, erbacee perenni e tappezzanti offrono allo sguardo variazioni cromatiche e fioriture stagionali, oltre a contribuire all’incremento della biodiversità. Dal punto di vista delle strategie passive, il tetto pensile svolge un ruolo significativo in termini di isolamento termico, riduzione dei consumi energetici e gestione delle acque meteoriche, grazie alla capacità di assorbimento e rallentamento del deflusso.

Il Parco della Luce è un vasto bosco-giardino

ridisegnato attraverso nuove piantumazioni, sistemi di terrazze e passerelle, che integra spazi per il lavoro all’aperto e il tempo libero in un contesto fortemente naturalizzato.

Sotto le chiome di querce, liquidambar e carpini è stato realizzato un sottobosco strutturato, composto da essenze adatte alla luce filtrata e organizzato in ampie distese vegetali, che rafforzano il carattere paesaggistico e la continuità ecologica dell’area.

www.agep.it www.hw-style.it

Scorcio del Parco della luce e, in alto l’insieme della collina che lo accoglie. Il tetto verde intensivo funge da elemento di mediazione tra il sistema urbano della piazza e quello più naturale del bosco. Foto courtesy AG&P greenscape.

Luis Barragán (1902–1988), Barragán House, Mexico City, 1948. Central hall (undated photograph, ca. late 1960s). Photographer Armando Salas Portugal.

L’immaginario dell’abitare

La casa standard contemporanea è diventata una formula ripetuta. Zona giorno, zona notte, disimpegno, cucina, bagno: una sequenza di stanze che si replica quasi identica in ogni appartamento. Questo schema, consolidato nel corso del Novecento, nasce come risposta razionale alle esigenze minime dell’abitare moderno, ma oggi si è trasformato in una gabbia tipologica mescola semplificazioni del mercato e dell’immaginario dei consumatori/abitanti.

Eppure la casa non è mai stata soltanto un rifugio. È un dispositivo culturale, un’infrastruttura di relazioni, un paesaggio domestico capace di generare comportamenti, percezioni e forme di socialità. Ripensare l’abitare significa quindi costruire un nuovo immaginario positivo della casa: non più un contenitore di stanze, ma un sistema di possibilità.

Il primo gesto radicale (non è una parola a caso) è liberare lo spazio dalla tirannia delle funzioni. Dormire, lavorare, cucinare, incontrarsi, concentrarsi, riposare: sono azioni che attraversano il tempo della giornata e non coincidono necessariamente con stanze predefinite. Ripartire dai comportamenti, dalle sensazioni e dalle qualità dello spazio significa immaginare case più fluide, trasformabili, capaci di adattarsi alle diverse intensità della vita quotidiana.

Ma la vera rivoluzione dell’abitare si gioca fuori dall’appartamento. La casa deve tornare a essere parte di un’ecologia collettiva. Il cohousing è un’utopia che sta diventando reale: è un modello concreto che redistribuisce funzioni e opportunità. Cucine comuni, spazi di lavoro condivisi, lavanderie, serre, biblioteche

Progettare Residenze

domestiche e giardini collettivi trasformano l’edificio in un organismo vivo. Riducendo la superficie privata e ampliando quella condivisa, la qualità dell’abitare aumenta invece di diminuire. Esperienze come il Kraftwerk di Zurigo, lo Spreefeld a Berlino, La Borda a Barcellona o i progetti cooperativi delle Baugruppen dimostrano che un altro modo di abitare è possibile: più cooperativo, più accessibile, più urbano.Questi sono fatti che rivelano le potenzialità concrete dell’intergenerazionalità. Studenti, famiglie e anziani sono parti di una stessa comunità domestica. La vicinanza tra generazioni produce un welfare spontaneo: chi studia aiuta chi ha bisogno di supporto digitale, chi è in pensione offre tempo e cura, chi lavora condivide competenze. L’architettura diventa così un dispositivo di solidarietà quotidiana. Questo modello è anche più conveniente. La condivisione di servizi, spazi e infrastrutture riduce i costi individuali e amplia l’accesso alla casa. L’housing sociale può smettere di essere architettura della scarsità e diventare architettura dell’opportunità.

La casa in futuro sarà più efficiente, più tecnologica, ma soprattutto più generosa. Un sistema aperto capace di ospitare identità diverse, tempi diversi, relazioni diverse. Costruire questo nuovo immaginario significa restituire alla casa la sua dimensione più profonda: da rifugio isolato dal mondo a infrastruttura di vita condivisa. Un luogo dove abitare, finalmente, torna a significare vivere insieme. La casa è un laboratorio di confronto e di trasformazione collettiva.

MILANO

Il Loft A di Carlo Donati

Lo spazio domestico come campo percettivo attraversabile

Entrare nel Loft A significa innanzitutto mettersi in cammino. L’architettura di Carlo Donati non si offre mai in un colpo solo, in una visione d’insieme immediata, ma chiede di essere percorsa, attraversata, esperita nel tempo. Lo spazio domestico si costruisce come una sequenza narrativa continua, in cui il corpo si qualifica strumento di lettura e la percezione il vero fulcro di progetto. La casa non è concepita come una somma di ambienti distinti, ma come un campo spaziale unitario, luminoso e fluido, articolato attraverso lievi dislivelli, cambi di quota, rientranze che modulano l’esperienza senza interromperla.

Il gesto iniziale è emblematico: quello che un tempo era un lungo corridoio cieco

d’ingresso viene trasformato in un doppio volume ovoidale fluido e continuo. Qui l’intervento compie una scelta radicale. Le superfici curve, il pavimento in resina rossa lucida, il riflesso calibrato che scivola sulle pareti generano un ambiente avvolgente che rompe deliberatamente l’idea di ingresso come ambito neutro o di servizio. Il colore agisce come vero e proprio strumento spaziale: il rosso plasma un campo sensibile che ingloba il corpo, ne accompagna il movimento, altera la consapevolezza delle distanze e amplifica la connessione delle curvature.

In questi termini, il cromatismo diventa architettura, contribuendo a definire la configurazione spaziale tanto quanto le

A destra e nei disegni, lo spazio ovale dell’ingresso in resina rossa lucida e sopra la scala elicoidale. Sotto sedie Ant di Fritz Hansen e due Sunset Chair di Cappellini, design Christophe Pillet.

di Isabella Giola

Laureato in architettura al Politecnico di Milano, dopo la collaborazione con gli studi Belgiojoso-Bbpr e Gregotti Associati, nel 1996 Carlo Donati fonda la Farnese Contract e nel 1999 Carlo Donati Studio, focalizzato sulla progettazione di ville e abitazioni esclusive, negozi e resort in Italia e nel mondo. Ha seguito come consulente per l’architettura a New York il marchio Gianni Versace e in Italia i brand Aldo Coppola, Colefax & Fowler, Linea più. Dal 2009 si occupa della direzione artistica e dello sviluppo retail del gruppo Slowear. www.carlodonati.it

Il linguaggio della casa nasce dall’immaginario cinematografico di A Space Odyssey di Stanley Kubrick. La sua colonna sonora sarebbe certamente Walking on the Moon dei Police con le tre note del basso di Sting che introducono un universo straniante rispetto al contesto

Carlo Donati

geometrie e le composizioni materiche. L’ingresso si configura così come una soglia esperienziale, un momento di disorientamento controllato che segna il passaggio tra quello che sta fuori e un universo interno autonomo. Da questo primo ambiente si diramano i percorsi principali dell’abitazione. La scala elicoidale, innestata come un elemento plastico all’interno della volumetria ellittica, asseconda il passaggio verso la zona notte dei figli, mentre un secondo ovale introduce

all’ambito padronale. Le connessioni verticali non sono mai risolte come semplici dispositivi funzionali, ma assumono una forte valenza spaziale e narrativa: il movimento diventa parte integrante dell’abitare, scandendo i ritmi, prospetti e cambi di intensità percettiva. Il colore, concentrato e rarefatto in punti strategici, funziona quindi come una punteggiatura spaziale, segnala soglie e passaggi, rende leggibile la sequenza degli ambienti senza ricorrere a partizioni fisiche.

Il grande living si apre come un campo continuo dominato dal bianco e dalla luce naturale che filtra dalle aperture zenitali e dalle ampie vetrate. Qui l’ambiente si distende orizzontalmente e ritrova una dimensione di equilibrio e di quiete. Le tonalità e atmosfere proposte non agiscono come semplice sfondo neutro, ma come elementi quasi strutturali della composizione: amplificano la continuità visiva, dissolvono i confini, rafforzano la relazione tra interno ed esterno. I diversi

Loft A nasce dalla preesistenza fortemente caratterizzata delle case di ringhiera del quartiere milanese di Brera, unendo quattro diversi spazi: una ex-galleria d’arte e tre appartamenti su due livelli.

momenti della vita quotidiana – pranzo, home theatre, camino, conversazione – si susseguono senza separazioni rigide, definite piuttosto da ribassamenti, quinte e tagli prospettici secondo una costruzione per piani e sovrapposizioni che richiama quella della migliore architettura di interni italiana del Novecento.

Gli arredi e gli oggetti – il pianoforte, le librerie a tutt’altezza, le opere d’arte ma anche gli elementi vegetali – partecipano attivamente alla costruzione dello spazio,

suggerendo usi e modalità dell’atto abitativo. Nel soggiorno quindi il controllo cromatico appare più misurato: i toni sobri, le finiture naturali e gli involucri opachi stabiliscono una domesticità più intima e raccolta, in cui il colore si ritrae senza scomparire, lasciando ampio respiro alla materia e all’arredo. La relazione con la dimensione esterna viene ulteriormente rafforzata dalla presenza dei nuovi patii, che permettono agli ambienti (la dimora è il risultato dell’unione degli spazi di una galleria d’arte con tre differenti

Sopra, l’area conversazione del living affacciata sul patio (a sinistra) con due grandi tele pop di Debora Hirsch e il box vetrato senza telai a vista che avvolge lo specchio d’acqua della piccola piscina. Foto courtesy Carlo Donati Studio.

1. Ovale ingresso

2. Bagno ospiti

3. Locale di servizio

4. Dispensa

5. Camera padronale

6. Antibagno padronale

7. Bagno padronale

8. Guardaroba

9. Giardino

10. Ovale disimpegno

11. Cucina passante

12. Zona pranzo

13. Zona plasma

14. Zona living

15. Piscina

16. Bagno piscina

17. Sauna

18. Zona camino

Il patio visto dal living e dalla piscina. A destra l’area rialzata con il pianoforte e, sotto, l’isola snack della cucina.

appartamenti) di aprirsi e respirare. La relazione visiva ininterrotta e la leggerezza delle superfici vetrate contribuiscono a rendere lo scenario interno dinamico e mai definitivo, trasformato costantemente dalla modulazione della luce che varia durante il giorno.

L’illuminazione artificiale, morbida e diffusa, accompagna le sinuosità delle linee e ne sottolinea l’andamento permeabile, evocando un’affezione verso le fonti luminose e le trasparenze che rimanda in parte alle sperimentazioni di architetti come Nanda Vigo.

L’itinerario prosegue fino alla piscina relax, concepita come un volume astratto in vetro extrachiaro: l’acqua stabilisce una continuità materica con la pavimentazione che contribuisce ad attenuare i confini tra elemento architettonico e presenza scenica, diventando elemento integrante della vita quotidiana del loft. Il soppalcostudio che si affaccia sulla piscina rafforza questa relazione, sovrapponendo lavoro, contemplazione e abitare in un unico campo visivo, dove le funzioni si mescolano e la rigida classificazione degli spazi domestici viene definitivamente superata.

Nell’appartamento milanese ogni scelta progettuale concorre alla costruzione di un’esperienza spaziale complessa ma consapevole. La dimora progettata da Carlo Donati non si esaurisce dunque in un’immagine immediata, ma si manifesta come realtà da attraversare: texture, materiali e cromie operano congiuntamente per attivare una stratificazione sensoriale che si compie solo attraverso una fruizione lenta, corporea, ma soprattutto umana ■

PIANTA PIANO TERRA

19. Camera

20. Bagno

21. Camera

22. Camera

23. Cabina armadio

24. Bagno

25. Living con accesso a terrazzo

Camera

Cabina armadio 28. Studio 29. Cabina armadio 30. Zona di servizio

CREDITI

Località Milano

Progetto architettonico e interni Carlo Donati Studio

Illuminazione Hi Lite, Flos

Arredi su misura e serramenti Ambrogio Galbiati

Pavimentazione in resina Gobbetto

Cucina Strato Italy

Sedie Fritz Hansen

Poltrone Cappellini

Verde Hortensia

Piscina Piscine Castiglione

Superficie 700 mq

Completamento 2025

Foto Franco Chimenti, Matteo Piazza

PIANTA PIANO PRIMO

Due circonferenze concentriche del colore della terra per un’abitazione completamente autonoma

L’approccio è nel nome: Casa 720°. Se la dimensione della circonferenza è di 360 gradi, moltiplicarla per due sottolinea l’intento progettuale: dal corridoio di distribuzione circolare lo sguardo è verso la corte centrale. Da lì e dal tetto, la vista si apre invece sul paesaggio aspro dell’intorno remoto (così remoto che l’abitazione, pur di notevoli dimensioni, è completamente autonoma). Anche le condizioni climatiche sono estreme, con escursioni termiche di 30 gradi centigradi tra il giorno e la notte e con una stagione piovosa per la metà dell’anno.

Così, come dagli albori dell’umanità, l’architettura nasce per proteggere, permettendo però di sentirsi al centro della bellezza ancestrale e quasi inviolata di questo luogo.

L’intonaco di terra impastata con il cemento che si confonde con il colore del terreno della corte circolare interna, conferma questo carattere primordiale: la casa appare radicata nel suolo dal quale sembra emergere come un disco. Quando sono aperte, impacchettate, le vetrate che si aprono sul cortile mettono gli ambienti di soggiorno e di vita a diretto

A tre ore di macchina da Città del Messico questa residenza disegnata da Fernanda Canales si confronta con i boschi e il paesaggio che la sovrasta integrandosi con l’ambiente e difendendosi da esso

GROUND FLOOR

Seppur di notevoli dimensioni, la residenza si inserisce nel profilo del paesaggio integrandosi con il contesto anche grazie a un rivestimento in terra e cemento.

A-A’

B-B’

SECTION
SECTION

Fernanda Canales

Fernanda Canales (Città del Messico, 1974) ha studiato architettura all’Università IberoAmericana di Città del Messico, ha conseguito un master in Teoria e critica dell’architettura alla Etsab di Barcellona e un PhD alla Scuola di Architettura di Madrid. Il suo lavoro ha ottenuto riconoscimenti internazionali ed è stato esposto tra gli altri, alla Royal Academy di Londra, alla Ifa Galerie di Stoccarda e alla Biennale di Venezia. Autrice di saggi e libri, ha insegnato architettura e pianificazione urbana alla Yale e alla Princeton School of Architecture, alla Harvard Gsd e al Politecnico di Milano. https://fernandacanales.com

Aperture lungo il profilo circolare sfruttano al meglio l’illuminazione naturale e fronteggiano le forti escursioni termiche trattenendo il calore accumulato durante il giorno.

contatto con l’aria e i suoni del paesaggio. Nonostante la forma circolare, le partizioni degli ambienti interni, in legno, danno luogo a locali perfettamente rettangolari. Molti arredi, elementi decorativi e lampade sono stati realizzati sul posto, con materiali e manodopera locale.

All’abitazione circolare, con spazi di soggiorno e riposo per due famiglie e i relativi parenti, si aggiungono – distribuiti nel lotto di 8mila metri quadrati – altri due volumi: uno studio/residenza per gli ospiti

e un volume rettangolare con un patio che contiene altre camere per ospiti oltre a depositi e ambienti di servizio. In generale, tutto è stato progettato sia per assicurare la completa autonomia della residenza sia per durare a lungo e resistere alle condizioni climatiche del luogo. La stessa intonacatura in terra e cemento è fatta anche per allungarne il tempo di vita e minimizzare gli interventi di manutenzione. Con il tempo, l’opera diventerà via via parte dell’ambiente naturale nel quale sorge ■

Località La Reserva Peñitas. Messico

Progetto architettonico Fernanda Canales Arquitectura

Lighting design Lucas Salas

Decorazione d’interni Camilla Pallares

Serramenti Schüco

General contractor Felipe Nieto

Superficie del lotto 8.000 mq

Superficie costruita 1.115 mq

Completamento 2024

Foto Rafael Gamo, Camila Cossio

FORMIGINE. MODENA

Casa Vivaio stessa identità nuove funzioni per una ex laboratorio di carpenteria metallica

La buona architettura è un atto di responsabilità – verso il luogo e la comunità – e il risultato di una mediazione, tra il programma e gli obiettivi del committente da un lato e l’impatto sul paesaggio urbano nel quale è inserita dall’altro. In questo caso si volevano preservare il carattere, la forma e i volumi di un laboratorio di carpenteria metallica costruito negli anni Settanta adeguandolo alle nuove esigenze abitative, che nel progetto di Ambientevario si confondono con gli aspetti legati alla precedente funzione artigianale, proponendo un modo di abitare dove gli spazi sono interconnessi e meno rigidi.

Fulcro dell’intervento lo svuotamento della porzione centrale di copertura, trasformata

in un giardino interno (il ‘vivaio’ che dà il nome alla casa) che diventa punto di pausa tra la zona giorno e la zona notte. Ma la presenza del verde è preponderante anche in altri punti dell’abitazione: piccoli patii riservati portano luce e contatto diretto con la natura ai bagni privati delle camere, al contempo preservandone la privacy; giardini pensili vegetano sui piccoli innesti in cemento a vista che, accanto al fabbricato principale, ricostruiscono vecchie superfetazioni per svolgere funzioni abitative di servizio (cucina, cellar, bagni).

Oltre al cemento a vista, all’esterno i materiali prevalenti sono il mattone faccia a vista di colore scuro, il rivestimento in alluminio di Prefa anch’esso scuro che,

aggraffato, si stende sulla forma originale della copertura. Per l’interno, cemento, mattoni e ferro a vista sono in equilibrata sinergia con le ampie vetrate dai profili sottili.

La casa si sviluppa interamente sull’unico livello del precedente laboratorio artigianale. Nella porzione occupata dalla zona notte, le generose altezze hanno permesso di creare anche un livello superiore con ambienti di disimpegno e di servizio.

Dallo svuotamento della porzione centrale della copertura nasce un giardino interno, punto di collegamento tra la zona giorno e la zona notte.

ESPLOSO ASSONOMETRICO

1.

2.

3.

4.

5.

6. Loggia

7. Ripostiglio

8. Disimpegno

9.

10. Corridoio

11. Pergola

Il progetto di Ambientevario trasforma in residenza un laboratorio artigianale preservandone l’identità ma svuotandolo al centro per inserire elementi vegetali che assumono carattere architettonico e funzionale

PIANTA PIANO TERRA
La zona giorno si apre con un ambiente a doppia altezza affacciato sulla vetrata del patio.
Soggiorno
Cucina
Camera da letto
Bagno
Cantina
Vano tecnico

Ambientevario

Fondato nel 2010 da Duccio Randazzo e Francesca Cibelli, cui in seguito si è aggiunta l’associata Elisa Gozzi, lo studio di Formigine conta oggi dieci professionisti. Ogni progetto nasce con l’obiettivo di mantenere forte il legame con il territorio e la comunità che lo abita. Il linguaggio architettonico trova forza in tecniche costruttive attente alla sostenibilità. Ogni progetto viene seguito dall’ideazione alla realizzazione. www.ambientevario.it

Le parti opache sono realizzate tramite un cappotto esterno rivestito di mattoni faccia a vista che assicura l’isolamento termico senza rinunciare alla matericità del laterizio.

La zona giorno si apre con un ambiente a doppia altezza affacciato sulla vetrata del patio, mentre le camere da letto sono concepite secondo il principio della ‘scatola nella scatola’, con una struttura metallica che ospita i singoli ambienti – dotati di bagni privati e piccoli patii riservati – in modo simmetrico.

Le scelte progettuali hanno riguardato anche un attento studio delle stratigrafie delle pareti e dei solai al fine di migliorare le prestazioni energetiche. Le parti opache sono realizzate tramite un cappotto esterno rivestito di mattoni, in modo da garantire l’isolamento termico senza rinunciare alla matericità del laterizio.

Casa Vivaio è un esempio di riutilizzo di un edificio industriale che valorizza forme e strutture originarie con un esito capace di coniugare funzionalità, qualità spaziale e sostenibilità ■

Per la nuova copertura di Casa Vivaio è stato scelto Prefalz, il sistema aggraffato in alluminio di Prefa, selezionato per la l’eccezionale malleabilità e capacità di adattarsi a geometrie complesse senza compromettere la qualità estetica del risultato. Grazie al peso estremamente ridotto, Prefalz si presta sia alle ristrutturazioni sia alle nuove costruzioni, garantendo un’elevata facilità

di posa anche su strutture esistenti. La possibilità di seguire curvature, superfici inclinate o volumi articolati permette al materiale di integrarsi perfettamente con l’eredità formale del precedente capannone artigianale. Prefalz è disponibile in numerosi colori e finiture. www.prefa.it

PIANTA PIANO PRIMO
1. Disimpegno 2. Armadi 3. Vano tecnico 4. Bagno 5. Doppio volume
PREFA

L’illuminazione outdoor

è affidata a Platek. Nella foto Chiodo, una famiglia di paletti in tre altezze.

La presenza del verde, realizzato con Hydroplants

è preponderante nel progetto di trasformazione.

CREDITI

Località Formigine, Modena

Progetto architettonico Ambientevario

Team di progettazione Duccio Randazzo, Francesca Cibelli

Elisa Gozzi

Copertura in alluminio aggraffato Prefalz di Prefa commercializzata in Italia da Alpewa. Installatore Gal Infissi Metra

Verde Hydroplants

Corpi illuminanti esterni Platek

Superficie 260 mq

Cronologia (progetto/consegna) 2019-2024

Foto Fabio Bascetta

I serramenti Metra Building contribuiscono in modo determinante alla definizione dell’involucro e alla qualità percettiva degli spazi. Le finestre e portefinestre a battente Nc 65 Hes Slim Linea Minimale, caratterizzate da profili sottili e ridotto impatto visivo, consentono di massimizzare l’apporto di luce naturale mantenendo coerenza con il linguaggio essenziale dell’intervento. Le ampie aperture Nc-S 150 Hes con scorrevoli alzanti di grandi dimensioni, permettono di gestire

luci importanti e garantire continuità tra gli interni e il patio centrale. Le soluzioni adottate assicurano stabilità strutturale, isolamento termo-acustico e precisione esecutiva, contribuendo al comfort abitativo. L’alluminio, per durabilità e resistenza nel tempo, si integra con la matericità di cemento, mattone e ferro a vista, rafforzando l’equilibrio tra memoria industriale e nuova funzione residenziale. www.metrabuilding.com

METRA
Le finiture e gli arredi di questa abitazione sono stati realizzati da Zadra Interni.

Oltre la soglia di ingresso un’abitazione aperta alla luce e un giardino segreto

Due i temi – entrambi condizioni necessarie dell’architettura contemporanea – che questo progetto residenziale di Qb Atelier affronta in maniera inattesa: il recupero dell’esistente e l’abitare in stretta relazione con l’ambiente naturale.

Del precedente edificio industriale il progetto di trasformazione in residenza conserva la forma, caratterizzata da una doppia copertura a due falde, le colonne portanti in calcestruzzo armato e il perimetro, muto verso l’esterno, che è stato rinforzato strutturalmente.

Quanto alla relazione con l’ambiente naturale, nelle abitazioni unifamiliari questa generalmente assume la forma convenzionale del giardino, che tuttavia solo

patii o verande talvolta collegano agli interni. In questo caso invece, varcata la soglia di ingresso – una piccola porta in ferro dipinta di nero ritagliata nella cortina continua e silenziosa del fabbricato – appare la sorpresa di una grande stanza verde a cielo aperto, un giardino segreto sul quale affacciano i due livelli dell’abitazione che il progetto ha ricavato all’interno.

Un lato del giardino è attraversato da un percorso coperto, pavimentato in legno, che conduce all’ingresso; altre due pareti che lo delimitano sono rivestite da piante di gelsomini rampicanti; la quarta è una parete vetrata, realizzata con profili Schüco inseriti in grandi portali di legno di larice lamellare, che si estende fino alla struttura del tetto,

riprendendone l’andamento delle due doppie falde, e che rispecchia esattamente altezza e profilo della muratura esterna.

Tanto chiusa verso l’esterno quanto aperta alla luce e all’aria all’interno, l’abitazione si sviluppa su due piani con un living openspace a doppia altezza che arriva fino al patio coperto e al piccolo cortile posteriore.

La soglia d’ingresso è una piccola porta in ferro dipinta di nero ritagliata nella cortina continua e silenziosa del fabbricato.

Qb Atelier

Fondato a Ferrara nel 2010 da Filippo Govoni e Federico Orsini, esprime già nel nome (Qb, quanto basta) il senso della misura che guida lo studio, sia nella gestione del lavoro sia nella progettazione, che considera risorse e limiti come elementi necessari e strategici per raggiungere un equilibrio tra funzionalità e innovazione. Tra i concorsi vinti di recente dallo studio il progetto per 36 abitazioni accessibili a Rimini, la rigenerazione del Parco delle Mura di San Benedetto a Padova e la trasformazione di piazza del Travaglio a Ferrara. www.qbatelier.it

PROSPETTO 1

PROSPETTO 2

Al centro, il corpo scale conduce al piano superiore, con la zona notte e un secondo studiolo che riceve luce dalla balaustra che delimita la doppia altezza del soggiorno. Qb Atelier ha disegnato anche il progetto degli interni, realizzato su misura dalla trentina Zadra Interni. Lineari e funzionali, gli arredi agiscono anche da partizioni formando un tutt’uno con l’architettura, in dialogo con pavimenti e rivestimenti ■

CREDITI

Località Lendinara, Rovigo

Committente Mainardi Nicola

Progetto architettonico e degli interni QB Atelier

Progetto strutture Elisa Maniezzo

Impresa di costruzioni Lavori Industriali

Strutture in legno Segheria Lombardi

Profili porte e finestre Schüco

Serramentista Fraccarollo Primo & C.

Arredi custom Zadra Interni

Cerniere a scomparsa Simonswerk

Serrature AGB

Superficie 300 mq + 100 mq giardino interno

Costo 1.000.000 di euro

Cronologia 2019-2024

Foto Pietro Savorelli

SCHÜCO ITALIA

Per questa abitazione Qb Atelier ha scelto di installare serramenti Schüco in alluminio. In particolare il sistema per portefinestre AWS 75 BS.SI, oscurante scorrevole con pannello cieco a incasso per la zona notte. ASE 80.HI su monorotaia con anta scorrevole in cucina e nella zona giorno. Per la vetrata principale è stato utilizzato un sistema al ‘rovescio’ sulla struttura in legno installando

all’interno Schüco AWS 75 BS.SI nella parte inferiore, ADS 75.SI per la porta d’ingresso vetrata, mentre tutte le parti fisse sagomate a trapezio nella parte superiore sono state realizzate ancora con il sistema Schüco a telaio fisso AWS 75.SI. www.schueco.it

Foto Valentina Sommariva

1. Giardino segreto

2. Soggiorno

3. Cucina

4. Sala da pranzo

5. Loggia

6. Corte esclusiva

7. Centrale termica

8. Studio

9. Antibagno

10. Bagno

11. Lavanderia

12. Studiolo

13. Camera singola

14. Bagno

15. Camera singola

16. Camera doppia

17. Bagno

A Lendinara nella valle del Po Qb Atelier trasforma in abitazione un ex edificio industriale. Grandi portali di legno lamellare scandiscono una parete vetrata a tutt’altezza che porta aria e luce in tutti gli ambienti

ZADRAinterni

Lineari e funzionali gli arredi agiscono anche da partizioni formando un tutt’uno con l’architettura, in dialogo con pavimenti e rivestimenti.

Per rendere abitabili e accoglienti i grandi e luminosi ambienti di questa residenza, lo studio Qb Atelier ha coinvolto ZADRAinterni che si è occupata della realizzazione di tutte le finiture e degli arredi custom, controsoffitti, rivestimenti, vernici sia della zona giorno, sia della zona notte. Particolare cura e competenza ha richiesto la realizzazione dei grandi elementi d’arredo. Oltre al mobile Tv del soggiorno, con ante e

cassetti in rovere e scocche in lamiera cerata color canna di fucile, sono stati realizzati e messi in opera il letto e la testiera della camera matrimoniale in larice vecchio proprio come i mobili del bagno, sia i sospesi con cassetti e ante, sia il rivestimento della vasca da bagno con nicchie a giorno. www.zadrainterni.it

PIANTA PIANO TERRA
PIANTA PRIMO PIANO

MODICA

Villa Arà trova nuova vita grazie a un progetto tra minimalismo e tecnologia

L’interior designer Giovanni Aquila firma il progetto di interni di Villa Arà a Modica, un intervento di rigenerazione della struttura preesistente che trasforma l’abitazione in un volume fluido e luminoso, dove architettura, tecnologia e design dialogano in un equilibrio misurato e contemporaneo. Il progetto nasce dalla volontà di ridefinire gli spazi esistenti attraverso una rilettura coerente e calibrata, capace di valorizzare le potenzialità dell’edificio originario senza alterarne l’identità.

L’approccio progettuale si fonda su una ricerca di essenzialità e comfort, con ambienti pensati per una fruizione quotidiana flessibile, funzionale e aperta al paesaggio circostante, in cui ogni scelta

formale risponde a una precisa esigenza abitativa.

Villa Arà si sviluppa su due livelli per una superficie complessiva di 220 mq, organizzati secondo una distribuzione chiara e razionale. Il piano terra accoglie la zona giorno open space, concepita come un unico grande ambiente articolato, in cui living, sala da pranzo e cucina si susseguono in continuità, favorendo la permeabilità visiva e la diffusione della luce naturale.

Le ampie aperture verso l’esterno rafforzano il rapporto con il giardino e con il contesto naturale, rendendo il verde parte integrante dell’esperienza abitativa e contribuendo a creare una costante relazione tra interno ed esterno.

Sullo stesso livello trovano posto anche lo studio e la suite padronale, concepita come un sistema articolato che include bagno privato, cabina armadio e accesso diretto agli spazi esterni, configurandosi come un ambiente riservato e completo, capace di garantire privacy, comfort e autonomia

Per le ampie aperture di questa villa sono stati scelti i sistemi scorrevoli in alluminio Schüco, elementi che garantiscono benessere abitativo e durabilità nel tempo.

Al piano terra una zona giorno fluida e continua ospita salotto, cucina e sala da pranzo senza interruzioni. L’ambiente presenta ampie finestre in grado di creare una connessione diretta con lo spazio esterno e offrire grande quantità di luce naturale durante tutta la giornata.

Giovanni Aquila

Interior designer con una visione progettuale che mette in dialogo passato e presente. I progetti dello studio, con sede a Ragusa, sono ricchi di riferimenti ma liberi da rigide regole stilistiche. Il portfolio comprende interni ricercati e discreti, dove al design dei grandi autori si affiancano dettagli contemporanei e il valore dell’artigianato, per creare spazi equilibrati e con carattere. www.studioaquila.it

funzionale all’interno dell’abitazione. Il primo piano ospita due camere da letto, entrambe progettate come vere e proprie suite. Ciascuna dispone di servizi dedicati e soluzioni su misura che assicurano funzionalità e qualità spaziale, mantenendo coerenza linguistica e continuità materica con il resto della casa. Gli ambienti sono organizzati in modo da ottimizzare le superfici e offrire un’esperienza abitativa equilibrata, in cui proporzioni, luce e arredi concorrono a definire spazi accoglienti e ben strutturati. Una dépendance e una taverna immerse nel verde completano la proprietà, ampliando le possibilità di utilizzo della casa e offrendo ulteriori ambienti destinati alla convivialità, al tempo libero e all’ospitalità, rafforzando al contempo il contatto diretto con la natura.

L’arredamento è curato nel minimo dettaglio e combina pezzi di design italiano e internazionale con soluzioni custom made, progettate specificamente per rispondere alle esigenze funzionali e compositive degli ambienti. Ogni elemento è selezionato e integrato secondo una logica di coerenza formale e materica, contribuendo a costruire un linguaggio unitario e contemporaneo.

La tecnologia gioca un ruolo chiave nel progetto: un impianto domotico integrato, alimentato da pannelli fotovoltaici, consente la gestione efficiente dell’illuminazione, della climatizzazione e del comfort abitativo, con particolare attenzione alla sostenibilità e al controllo dei consumi. A completare la composizione, un parquet color canapa definisce un linguaggio materico neutro e raffinato, capace di conferire continuità visiva, uniformità percettiva e una sensazione diffusa di calore agli interni, rafforzando l’identità complessiva dell’intervento ■

Località Modica

Committente Privato

Progetto interior design Giovanni Aquila

Direzione lavori Studio Tecnoprogetti

Superficie 220 mq

Parquet Woodco

Serramenti Schüco con Schüco Premium Partner SicilCima

Porte interne e pareti in vetro Rimadesio

Illuminazione Flos, Leds C4, Tooy Lighting, Vibia

Forniture Arper, B&B Italia, Cappellini, Cassina, Flexform

Lago, Poliform, Rimadesio, Vitra

Foto Paolo Riolzi

PIANO TERRA
CREDITI

Colori neutri e linee pulite sono state scelte da Giovanni Aquila per la rigenerazione di Villa Arà. Spazi interconnessi rendono questa residenza un ambiente fluido e luminoso dove la tecnologia è inserita in un impianto domotico all’avanguardia

L’arredamento neutro e contemporaneo vuole offrire un aspetto d’insieme equilibrato in cui colore, luce e proporzioni si bilanciano a vicenda.

Il parquet color Rovere Canapa della collezione Dream di Woodco dona calore ed eleganza agli interni di questa abitazione. Grazie a una soluzione custom è stato possibile utilizzare tavole multiformato dalle dimensioni generose, con larghezza fino a 350 mm, tutte controbilanciate in essenza, per garantire maggiore stabilità e resistenza. La tonalità scelta si integra con naturalezza nel linguaggio neutro dell’interior

design, sostenendo la narrazione della luce e creando un equilibrio cromatico. La texture del rovere e le diverse dimensioni imprimono ritmo agli ambienti e valorizzano la transizione fluida tra i vari spazi. L’uniformità materica del parquet trasforma la pavimentazione in una vera e propria infrastruttura estetica del progetto. www.woodco.it

PIANO PRIMO
WOODCO

L’edificio si sviluppa con un piano terra parzialmente interrato in modo da integrarsi al meglio con il paesaggio e con il profilo del terreno. Il rivestimento è costituito da una facciata ventilata con una pelle metallica che riprende nei colori il porfido sarentinese.

SEZIONE TRASVERSALE

Il progetto di Kup-Arch per un edificio dove convergono le funzioni di Vigili del Fuoco, Croce Bianca, Protezione Civile e Soccorso Alpino promuove la collaborazione per rispondere tempestivamente a qualsiasi emergenza

SARENTINO, BOLZANO

UN CENTRO EFFICIENTE, RAZIONALE E INTEGRATO NEL PAESAGGIO

Inaugurato da pochi mesi, il nuovo Centro della Protezione Civile di Sarentino progettato da Kup-Arch riunisce sotto lo stesso tetto le basi dei Vigili del Fuoco, della Croce Bianca, del Soccorso Alpino e della Protezione Civile della zona. In stretto legame formale e morfologico con l’ambiente in cui è inserito, l’edificio sfrutta la pendenza del terreno con un piano terra, destinato ai servizi e ai mezzi di emergenza, parzialmente interrato che fa da base al livello superiore, occupato dagli uffici delle diverse funzioni operative e da aree comuni. La collaborazione tra le quattro istituzioni è un elemen-

to chiave del progetto e viene promossa anche con una sala polifunzionale condivisa, attrezzata con pareti mobili che consentono di adattare lo spazio a differenti esigenze operative.

I flussi sono stati studiati nel dettaglio per garantire la massima efficienza in caso di emergenza. L’accesso avviene direttamente dalla strada provinciale, con una netta separazione tra veicoli di servizio e traffico privato, mentre una rampa sul lato sud conduce a un parcheggio dedicato al personale.

Lo studio Kup-Arch ha curato attentamente la scelta dei materiali, perseguendo la coerenza

tra funzionalità, estetica e sostenibilità.

La struttura portante è realizzata in cemento armato con platea continua a vasca bianca, mentre tutte le tamponature sono eseguite con sistemi a secco, favorendo la reversibilità dell’intervento. All’interno, i materiali rispondono a esigenze di massima funzionalità: dalle piastrelle carrabili nelle autorimesse ai pavimenti in gomma e alla pavimentazione del piano superiore, l’obiettivo è garantire efficienza operativa senza rinunciare a una qualità spaziale percepibile.

All’esterno, l’elemento distintivo è la facciata ventilata in metallo. Oltre ai benefici energetici, la pelle metallica, interamente riciclabile, nella cromia grigio-verde richiama il porfido sarentinese, rafforzando il legame con il territorio. La pietra locale non rimane solo un riferimento visivo, ma è impiegata anche nella pavimentazione di scale e corridoi.

Lo studio di architettura di Bressanone ha progettato inoltre il particolare sistema di schermatura solare applicato alle facciate vetrate dell’edificio. Elementi scorrevoli con movimento pantografo integrano innovazione ed estetica: telaio in alluminio, meccanismo in acciaio inox e pannelli interamente personalizzabili. Il loro movimento e il design generano interessanti giochi di luce negli ambienti interni e contribuiscono al miglioramento delle prestazioni energetiche, riducendo l’irraggiamento solare diretto e il fabbisogno di raffrescamento estivo. Inoltre, l’elevata resistenza al vento rende questi dispositivi particolarmente adatti a un contesto esposto come quello della Val Sarentino.

La copertura a tetto verde è un ulteriore elemento che, partecipe delle strategie passive adottate, integra l’edifico con il paesaggio della valle ■

ASSONOMETRIA
PROSPETTO EST
PROSPETTO OVEST

Kup-Arch

Lo studio, con sede a Bressanone, è stato fondato nel 1989 da Karl Kerschbaumer e Harald Pichler ai quali nel 2020 si sono aggiunti i partner Matylda Gosciniak, Gabriel Kerschbaumer e Anton Treyer. Il team opera in ambito pubblico e privato seguendo i progetti dalla fase di concept a quella esecutiva, incluso il disegno degli interni e degli arredi. www.kup-arch.it

A sinistra. Al piano terra si trovano le autorimesse, gli spogliatoi e i locali accessori di tutte le organizzazioni. Il piano superiore ospita uffici e aree comuni. La struttura portante è realizzata in cemento armato mentre tutte le tamponature sono eseguite con sistemi a secco.

Il progetto ha vinto il Premio The New Envelope Südtirol grazie all’efficienza della facciata e delle coperture realizzate in Rheinzink Prepatina di Alpewa. La pelle metallica garantisce elevate prestazioni sia dal punto di vista estetico, sia da quello energetico. Le tonalità blu-grigie e grigio ardesia assicurano un piacevole risultato visivo senza la necessità di ulteriori finiture. Il materiale richiede una manutenzione minima e presenta una durabilità eccezionale, superiore agli 80

anni, al termine dei quali può essere interamente riciclato. Inoltre Rheinzink Prepatina offre un’elevata lavorabilità che consente di adattarsi a geometrie complesse ed essere impiegato per diversi elementi in opera, come in questo caso per la facciata ventilata, la copertura e i frangisole mobili con apertura a libro. www.alpewa.com

ALPEWA

1. Croce Bianca

2. Officina

3. Magazzino/collegamento

4. Sala disinfezione

5. Spogliatoi

6. Magazzino

7. Vano tecnico

8. Vigili del fuoco

9. Officina

10. Sala di comando

11. Spogliatoi

12. Magazzino

13. Officina

14. Soccorso alpino

15. Spogliatoi

16. Protezione civile

17. Magazzino

18. Cucina

19. Autolavaggio

20. Magazzino e vano tecnico

GRIESSER

L’elemento che caratterizza le facciate è sicuramente la persiana a pantografo Griesser, un sistema brevettato e specificamente studiato per grandi superfici vetrate. Le ante sono motorizzate e permettono di modulare l’ingresso della luce; la trama degli intagli, inoltre, consente di creare suggestivi giochi di luce e ombra negli ambienti interni. Particolarmente adatte a un ambiente come

quello del progetto, le persiane sono in grado di resistere a una velocità del vento fino a 120 km/h, garantendo performance stabili anche in condizioni atmosferiche difficili.

La personalizzazione di colore e intagli rende il prodotto adattabile ad ogni tipo di progetto. www.griesser.it

PIANO TERRA

1. Direzione

2. Gruppo giovani

3. Lounge Croce Bianca

4. Terrazza

5. Stanza Croce Bianca

6. Infermeria Croce Bianca

7. Lavanderia

8. Aula assemblee-formazione

9. Locale pulizie

10. Lounge Vigili del fuoco

11. Ufficio Vigili del fuoco

12. Ripostiglio

13. Lounge Soccorso alpino

14. Ufficio Protezione civile

L’aula per le assemblee formative e le riunioni di emergenza che coinvolgono differenti organizzazioni è una della caratteristiche del progetto. L’insonorizzazione è assicurata da un controsoffitto in pannelli fonoassorbenti in lana di legno e cemento Celenit e da una boiserie in legno.

L’architettura del Centro Protezione Civile di Sarentino definisce un nuovo standard per gli edifici operativi, dove la funzionalità si sposa con un’estetica ricercata. Protagonisti degli spazi interni sono i controsoffitti realizzati con i pannelli fonoassorbenti Celenit in lana di legno mineralizzata, a texture extra-sottile. L’installazione è stata eseguita mediante avvitamento diretto su una sottostruttura

metallica, utilizzando pannelli Celenit ABE a bordo dritto che garantiscono una superficie planare e continua. La scelta di questo materiale risponde alla duplice esigenza di garantire un elevato comfort acustico interno e, al contempo, di rispettare i requisiti di reazione al fuoco, parametri essenziali in aule o ambienti di lavoro. www.celenit.com

CELENIT
PIANO PRIMO

CREDITI

Località Sarentino (Bolzano)

Committente Provincia autonoma di Bolzano

Progetto architettonico Kup-Arch

Impresa di costruzioni Volcan

Arredi Pedrali, Fantin

Pavimentazioni Nora Interface, Mombrini (piano terra) Kröss (porfido)

Controsoffitti fonoassorbenti aule Celenit

Illuminazione Planlicht

Rivestimento facciate Alpewa

Frangisole scorrevoli con movimento pantografo Griesser

Facciate vetrate Vitralux

Pareti mobili Estfeller

Superficie 3.070 mq

Cronologia 2019-2025

I rivestimenti sono scelti in modo da richiamare il contesto nei colori e nei materiali. Per i pavimenti degli interni è stato scelto il Porfido sarentinese, accoppiato a un calcestruzzo a vista per le pareti, che riesce a integrarsi con la cromia della pietra con un design semplice.

Gli spazi destinati alla vita quotidiana del corpo operativo sono pensati per favorire funzionalità, comfort e momenti di condivisione. In questo contesto si inseriscono gli arredi Pedrali, scelti per accompagnare le diverse attività che scandiscono la giornata all’interno della struttura. Per i piani di lavoro e convivialità troviamo gli Arki-Table, caratterizzati da piani ultrasottili con struttura in estruso di alluminio e gambe a cavalletto leggere che consentono ampia libertà distributiva e massima stabilità.

Questo sistema si presta tanto alle esigenze di breakout quanto a quelle di riunione o refezione, grazie alla sua modularità e alla possibilità di vari finishes. Nelle aree lounge trovano spazio le collezioni Buddy e Buddy Oasi, disegnate da Busetti Garuti Redaelli: sedute e pouf imbottiti in schiumato poliuretanico con struttura in alluminio, dai volumi generosi ma visivamente leggeri, dove schienali mobili consentono differenti configurazioni. Completano l’allestimento le sedute della collezione

Stiel, progettate da Sebastian Herkner, contraddistinte da forme morbide e arrotondate, con telaio in tubo d’acciaio curvato e imbottitura in poliuretano flessibile che garantisce comfort e eleganza, adatti ai momenti di pausa o relazione informale tra gli operatori.

www.pedrali.com

PEDRALI

In questo progetto l’intervento verde di HW Style contribuisce a definire identità e percezione degli spazi. Le pareti di verde stabilizzato introducono profondità e ritmo

mentre le piante tropicali suddividono naturalmente gli spazi di lavoro tra le postazioni in open space, migliorando qualità dell’aria e vivibilità degli ambienti.

Dvo firma il progetto di arredo. In particolare la reception è stata oggetto di un design custom che la caratterizza come elemento centrale di questo intervento.

BARI

IL NUOVO POLO DI DELOITTE PROMUOVE L’INNOVAZIONE

Esseelle Associati trasforma due padiglioni della Fiera del Levante in un polo che invita a Bari, per affrontare le sfide del futuro, le intelligenze che oggi abbandonano il nostro Paese

Adiacente all’ingresso monumentale inaugurato nel 1929 su progetto dell’architetto Cesare Augusto Corradini, una manica del complesso storico della Fiera del Levante di Bari accoglie oggi il nuovo NextHub di Deloitte di Bari. Il progetto, che ha trasformato in moderni spazi polifunzionali ambienti in disuso e che per dimensioni e per la concomitante riqualificazione degli spazi esterni si può bensì definire di rigenerazione urbana, è dello studio di Bari

Esseelle Associati.

L’identità storica dell’edificio oggetto di in-

tervento, con le grandi volte in muratura, è stata conservata ed anzi da essa trae vantaggio la nuova distribuzione degli spazi, che sfruttando le aperture ad arco e le bifore delle facciate storiche ricevono copiosa luce naturale.

Il vasto spazio a doppia altezza degli ex-padiglioni 2 e 4 è stato quasi raddoppiato grazie all’inserimento a soppalco di una struttura leggera in acciaio e legno e ora raggiunge una superficie utile di più di 9.000 metri quadrati, sufficiente ad accogliere circa 1.200 postazio -

PROSPETTO NORD
PROSPETTO NORD-OVEST

Esseelle Associati

Fondato nel 2003 da Giampaolo Bianco, Antonio De Palma, Maria Teresa La Notte e Mauro La Notte, oggi lo studio riunisce un team di 16 professionsti e, integrando competenze diverse in un processo unitario e coerente, affronta con approccio multidisciplinare tutte le scale del progetto, dalla pianificazione urbana fino al dettaglio di interior design. www.esseelleassociati.it

A

ni di lavoro per i professionisti di Deloitte che fanno capo al nuovo centro.

Lavorare in una delle postazioni aperte o uno degli uffici dedicati dell’ammezzato porta con sé l’indiscutibile vantaggio della vista sul mare, che a piano terra proprio l’altezza delle bucature originali rende invece difficile. L’acqua è visibile anche dalle sale poste ai due lati del nuovo auditorium attrezzato con poltrone di Lamm.

In questo progetto l’inserimento del verde di HW Style contribuisce a definire identità e percezione degli spazi. Le pareti di verde stabilizzato introducono profondità e ritmo mentre le piante tropicali suddividono natu-

ralmente gli spazi di lavoro tra le postazioni in open space, migliorando qualità dell’aria e vivibilità degli ambienti.

Sfruttare la geometria modulare dei padiglioni, la flessibilità degli ambienti e la possibilità di diversificarne l’uso è una delle caratteristiche del progetto, che prevede anche la destinazione di una parte degli spazi a un incubatore d’impresa che avrà l’obiettivo di far nascere e crescere nuove start-up del territorio. L’investimento di 75 milioni di euro è stato per un terzo destinato alla realizzazione di GenAI, un centro che radunerà decine di esperti nello sviluppo di applicazioni di Intelligenza Artificiale.

Il progetto ha riguardato infine gli spazi esterni: sul retro dell’edificio un sistema di aree di sosta, percorsi pedonali, verde attrezzato e pavimentazioni con superfici drenanti migliorano la gestione delle acque piovane e ridefiniscono il fronte interno della Fiera. Conforme, per i criteri di efficienza energetica adottati, il comfort ambientale e l’impiego di materiali a ridotto impatto ambientale, ai protocolli Leed e Well, il progetto restituisce alla città un edificio rigenerato che oltre a rispondere alle esigenze funzionali di Deloitte contribuisce attivamente alla trasformazione urbana e allo sviluppo economico del territorio ■

La scala in acciaio che conduce all’ammezzato.
destra una vista d’insieme dello spazio interno.

Nel dialogo tra storicità e moderne esigenze lavorative ha trovato massima espressione la consulenza e l’artigianalità di Liuni. Il valore aggiunto dell’intervento risiede nell’integrazione di soluzioni diverse. Il pavimento sopraelevato JVP e finiture selezionate quali: moquette Modulyss vinilico tessuto Bolon Tatami e pavimentazione in legno Parky in un gioco di texture valorizzato da una posa a regola d’arte.

Dvo ha curato il progetto di arredo con un approccio integrato, traducendo l’identità di Deloitte in uno spazio di lavoro contemporaneo, funzionale e riconoscibile. L’intervento ha coinvolto diverse aree, valorizzate con soluzioni coerenti sul piano estetico e organizzativo. Fin dall’area di accoglienza, il progetto esprime con chiarezza i valori aziendali: la reception su misura si configura come elemento architettonico distintivo che funge da primo punto di incontro con collaboratori e visitatori. Le aree operative e meeting sono state sviluppate privilegiando

flessibilità, ergonomia e qualità percettiva. Le postazioni sono organizzate con bench e tavoli alti della collezione Pag in finitura bianca e scrivanie Toledo elevabili in altezza; le librerie Kyn introducono un segno verticale che struttura e separa gli spazi migliorandone la funzionalità. L’inserimento delle fioriere nei sistemi di contenimento contribuisce al benessere visivo e ambientale, migliorando la percezione degli spazi.

www.dvo.it

DVO

SEZIONE TRASVERSALE

Sotto. L’auditorium è una delle parti distintive di questo progetto. La sala a gradoni è circondata dagli uffici dell’ammezzato separabili in caso di conferenze e eventi.

Nella pagina accanto. All’esterno sono stati inseriti arbusti ed essenze mediterranee selezionate da HW Style con l’obiettivo

di strutturare lo spazio e accompagnare l’edificio definendone il rapporto con il contesto. I corpi illuminanti sono de iGuzzini.

LAMM

L’arredamento dell’auditorium è stato curato da Lamm, che ha fornito 200 sedute L213 (design centro R&D). Il modello selezionato presenta una fiancata dritta e tavoletta antipanico in un design pulito ed elegante. Caratterizzate da sedile e schienale con inclinazione coordinata che consente usi prolungati, le sedute sono installate nell’auditorium in file dritte su gradinate. Il colore del rivestimento è l’elemento più caratterizzante: la similpelle verde acceso spicca integrandosi allo stesso tempo con le tonalità del legno della sala. www.lamm.it

SEZIONE LONGITUDINALE

CREDITI

Località Bari

Committente Deloitte

Progetto architettonico e degli interni Esseelle Associati

Strutture Studio tecnico Cnc

General contractor Neos Restauri Altamura

Carpenterie metalliche Officine Natale

Illuminazione iGuzzini

Pavimenti Liuni

Partizioni vetrate interne Mangini

Acustica Fantoni, Slalom

Arredi DVO

Poltrone auditorium Lamm

Verde indoor e outdoor HW Style

Sistemi divisori scorrevoli Dooor

Superficie 9.500 mq - Cronologia 2023-2025

Fotografie Nicola Cavallera

iGUZZINI

iGuzzini ha fornito soluzioni per l’illuminazione di interni ed esterni. Negli uffici sono stati installati Light Shed in versione fonoassorbente con finiture coordinate alle cromie del progetto. Nelle aree operative trovano posto gli apparecchi IN60, con diverse ottiche per garantire prestazioni adeguate alle attività lavorative. Motus integra le funzioni di sicurezza e coerenza con gli ambienti, mentre il sistema di controllo della luce assicura una gestione intelligente e monitoraggio dei consumi. Per gli spazi esterni (foto sopra), applique e bollard Lander e Walky illuminano i percorsi, mentre Agorà valorizza le facciate con una luce uniforme e controllata. www.iguzzini.com

Tétris

Società del Gruppo JLL, guidata in Italia da Jose Maria Casanova (nella foto), Tétris progetta spazi dinamici che ispirano le persone a pensare, lavorare e vivere meglio. Offre una gamma completa di servizi per soddisfare le esigenze della committenza, dalla progettazione alla costruzione fino alla selezione degli arredi. A livello globale, dalla sua creazione nel 2003, Tétris si è affermata in 15 Paesi e tre continenti, con un team di oltre 850 persone dislocate in 31 sedi. www.tetris-db.com

Il primo piano ospita uno spazio per incontri informali. Elemento distintivo dell’area è il giardino interno, che

crea un’oasi verde nel centro di Milano e promuove il benessere psicofisico dei dipendenti.

Per la sua sede di rappresentanza il gruppo bancario e assicurativo svizzero sceglie un palazzo storico a pochi passi da piazza della Scala e affida il progetto degli interni, dal concept all’allestimento finale a Tétris Italia

ZURICH ITALIA TÉTRIS RIDISEGNA GLI INTERNI

DI UN PALAZZO STORICO

Era un incarico particolarmente impegnativo quello completato con successo – dal concept all’allestimento finale, dall’arredamento su misura ai dettagli esecutivi – da Tétris Italia per la nuova sede di Zurich Italia a Milano: per il valore simbolico dell’operazione, ovvero il reinsediamento del gruppo bancario e assicurativo svizzero nel cuore del centro finanziario milanese; per il carattere dell’edificio storico, Casa Oldrati, con le complessità per l’adeguamento dei piani al rustico e gli interventi per realizzare un Cat A fit-out; per le dimensioni (7.000 metri quadrati su sei piani fuori terra più un ammezzato e tre livelli interrati); per l’esigenza di conciliare alta rappresentanza e funzionalità; e infine per la volontà di creare un ecosistema flessibile e adattabile alle attuali modalità del lavoro agile.

La strategia architettonica adottata è leggibile già dallo spazioso piano terra, con la reception, un digital corner e la zona lounge centrale della Client Hub di Zurich, ma soprattutto nella Zurich Lounge al quinto piano, trasformato in un elegante spazio per incontri di alto profilo, con una terrazza vetrata che si apre con una vista panoramica privilegiata sullo skyline di Milano, creando un legame tra l’interno dell’edificio e l’eredità storica e architettonica della città. I livelli operativi sono collocati tra il primo e il terzo piano, il quarto è dedicato agli uffici dirigenziali e alle sale per le riunioni di vertice, mentre l’interrato è stato trasformato in Conference Center, con aree modulari dedicate a eventi, workshop e formazione.

Linea guida del progetto la versatilità funzionale degli spazi interni, per ottenere la massi-

MILANO

I piani dal terzo al quinto ospitano gli uffici dotati di tutti gli spazi necessari e con configurazioni per il lavoro singolo e quello collettivo. Nella pagina di destra una vista dell’ammezzato.

ma flessibilità organizzativa. Esigenza risolta in tutti i piani dell’edificio con pavimentazioni dalle geometrie fluide, pareti con angoli stondati, soffitti curvilinei, boiserie su misura e corpi illuminanti scenografici, in un approccio organico che ricerca fin nel dettaglio un equilibrio tra funzionalità e bellezza.

Secondo tratto distintivo, l’integrazione di elementi biofilici come componenti attive del progetto. Il cortile interno, incorniciato da pareti finestrate, diventa un’oasi verde urbana che favorisce il benessere psicofisico degli occupanti.

La luce unisce e valorizza gli spazi interni. Quella naturale penetra in profondità gli ambienti, con le pareti vetrate che garantiscono trasparenza spaziale e permeabilità visiva tra i diversi ambienti.

Il progetto e la realizzazione degli interni rispettano rigorosamente i requisiti dell’edificio – che vanta le certificazioni internazionali

Leed Platinum, Breeam Very Good e Well Bronze – in termini di sostenibilità e comfort, con particolare attenzione alla qualità dell’aria, alle soluzioni acustiche e all’uso strategico della biofilia in tutto lo spazio ■

CREDITI

Località Milano

Committente Zurich Italia

Interior design e fit-out Tétris Italia

Pavimenti Liuni

Arredi Mara, Moroso, Pedrali, True Design, Sedus

Framery, Viccarbe, Caimi, Estel, Steelcase

Humanscale

Luci Xal, Zumtobel, Vibia, Linea Light

Falegnamerie GR Arredamenti

Controsoffitti Gyproc

Verde HW Style

Foto Davide Galli

HW Style ha curato l’allestimento di vasi e vasche integrate nell’arredo, inserendo specie tropicali di grande sviluppo in sintonia con il linguaggio materico dello spazio. I volumi vegetali introducono verticalità e

dinamismo, definendo una presenza naturale che dialoga con superfici, luce e geometrie. Il richiamo alla natura è visibile in elementi biofilici e forme sinuose che evocano il movimento dell’acqua.

Liuni ha collaborato in modo stretto con il team progettuale per definire una distribuzione delle superfici dove il pavimento diventa il vero protagonista dello storytelling dell’opera. La scelta è ricaduta sulla collezione Botanic di Bolon Tatami, un tessuto vinilico in quadrotte autoposanti. La colorazione scelta vuole richiamare la natura con texture della pietra,

le sfumature del mare e i movimenti sinuosi delle dune di sabbia. L’esperienza dell’azienda è evidente nell’installazione eseguita con tagli manuali di altissima precisione, per ricreare armoniose onde e per offrire una pavimentazione visivamente continua. www.liuni.com

LIUNI

Gli uffici sono caratterizzati da un intenso uso del colore e da grafismi che si estendono anche alle partizioni vetrate.

Grado di apertura densità delle postazioni e livelli di privacy sono scelte etiche che coinvolgono le relazioni tra le persone. Con questa convinzione lo studio Bia-@rch Engineering ha operato il restyling degli uffici della sede produttiva Sisal

SEZIONE AA PIANO PRIMO - PROGETTO

L’UFFICIO COME PROGETTO SOCIALE E BENE COMUNE

Da un decennio la società di progettazione specializzata in uffici Bia-@rch Engineering collabora tra gli altri clienti con Sisal, azienda italiana (venne fondata nel 1945 dal giornalista sportivo Massimo Della Pergola, l’inventore del Totocalcio) concessionaria di giochi come il Lotto e il SuperEnalotto, dal 2025 parte del gruppo internazionale Flutter. L’intervento più recente riguarda i rinnovati interni della palazzina uffici, collegata ai 3.500 metri quadrati dell’area produttiva.

L’edificio, che si sviluppa su due piani, comprende, al piano terra, la reception, un primo

spazio ufficio e le aree break e svago. Gli uffici open space (42 le postazioni), insieme a salottini per riunioni brevi, delimitati da partizioni vetrate che contribuiscono alla luminosità complessiva degli spazi e una grande sala riunioni, si trovano al primo piano.

A un livello intermedio tra i due piani si trova un’area relax polivalente: normalmente utilizzata durante le pause lavorative, è un luogo di incontro informale in cui la conversazione libera entra a far parte dell’organizzazione quotidiana, e può anche trasformarsi in un ambiente in cui svolgere riunioni informali.

Dell’intervento colpiscono in primo luogo le scelte cromatiche, con il verde e il rosso dominanti, che alle pareti si traducono in grafismi circolari e lineari: una scelta che certamente, come è d’uso, interpreta e comunica l’identità aziendale, ma che contribuisce a trasmettere un’impressione di benessere – il verde – e di vitalità, animando lo spazio che in questo modo appare meno rigidamente studiato a tavolino e di conseguenza meglio ‘abitabile’ dall’individualità di ciascun collaboratore. Grande attenzione è stata dedicata all’equilibrio acustico dell’ambiente, con baffle fonoas-

SEZIONE BB PIANO PRIMO - PROGETTO
SEZIONE CC PIANO PRIMO - PROGETTO

Bianca Giovene di Girasole

Studio Bia-@rch Engineering www.studio-bia-arch.com

Pavimenti Lvt Expona Simplay di Liuni nelle aree di accoglienza e negli spazi ufficio. Combinando le prestazioni tecniche di un pavimento vinilico con l’effetto naturale del legno, questo materiale apporta un eccellente impatto estetico e contribuisce a rendere l’ambiente più accogliente conferendo al contempo un senso di eleganza.

CREDITI

Progetto degli interni Bia-@rch Engineering

Bianca Giovene di Girasole

Pannelli acustici Caimi

Pavimenti Liuni

Arredi Fantoni, Sedus, Plust

Illuminazione Artemide, Muuto

Superficie 750 mq

Postazioni di lavoro 42

Foto courtesy Sisal

sorbenti Snowsound di Caimi e controsoffitti tecnicamente attrezzati per ridurre il riverbero. Anche le postazioni di lavoro sono divise da schermi fonoassorbenti che contribuiscono a contenere la dispersione sonora. Oltre che dal disegno degli spazi, il comfort complessivo è dato dalla scelta dei materiali, con pavimenti in Lvt di Liuni che riproducono l’effetto del legno, e dagli arredi (Fantoni, Sedus, Plust) orientati all’ergonomia, con piani di lavoro in laminato opaco (più adatto al lavoro digitale), tavoli alti che promuovono cambi di postura e i tessuti morbidi dei divani.

Il progetto affronta anche il tema della sostenibilità con l’impiego di materiali a basso impatto e facilmente riciclabili, sistemi illuminotecnici a basso consumo e arredi modulari che si prestano a eventuali riconfigurazioni future.

L’inserimento di verde vivo migliora la qualità dell’aria e contribuisce al microclima interno. In definitiva, il carattere dell’intervento risiede nella semplicità esecutiva, nella cura delle proporzioni e nella vivacità cromatica, che genera una sequenza percettiva e narrativa attraverso pause e momenti di energia ■

PIANTA PIANO TERRA

1. Sala riunioni

2. Area operativa

3. Salottino

4. Copy room

5. Salottini acustici

6. Locale tecnico

7. Locale pulizie

8. Sala relax

9. Servizi igienici

10. Uffici open space

11. Sala meeting

12. Phone booth

13. Reception

14. Uffici

15. Area svago

16. Mensa

Colori caldi e naturali nell’open space operativo. Alla qualità degli ambienti contribuisce il verde vivo e l’insonorizzazione, con pannelli Snowsound di Caimi disposti in baffle a soffitto.

L’equilibrio acustico dell’ambiente è ottenuto con pannelli fonoassorbenti Snowsound di Caimi, in fibre di poliestere a densità variabile rivestiti in tessuto Snowsound_Fiber e riciclabili al 100%.

I pannelli sono sospesi a soffitto con il sistema Baffle (design Marc Sadler) che ne esalta le caratteristiche di eleganza e leggerezza. Il sistema brevettato di unione del pannello ai cavi,

regolabile in altezza, è totalmente a scomparsa: un piccolo giunto cilindrico nasconde al suo interno il sistema di fissaggio. Gli agganci Baffle sono posizionabili lungo il bordo superiore del pannello, senza particolari vincoli di interasse tra i cavi, in modo da semplificare l’installazione a soffitto. www.caimi.com

CAIMI
PIANTA PRIMO PIANO

Progettista di edifici, allestimenti, interni e arredi, teorico, fondatore e direttore di riviste, docente e preside, dal 1965 al 1968, della facoltà di Architettura del Politecnico di Milano, Carlo De Carli (1910-1999) negli anni Cinquanta è con Gio Ponti uno dei due padri nobili del design quando il termine, non ancora in uso, voleva dire Milano e la Brianza. Nel 1954 con Cassina vince il primo Compasso d’Oro, con la Tecno di Borsani il Gran Premio alla XI Triennale del 1957. Collabora con Sormani, Longhi, Cinova e aziende artigiane per dare vita a mobili che non sono creazioni ma “creature dotate di vita propria”, concretizzate in uno specifico materiale che continua a vibrare del proprio principio di vitalità come il legno nell’albero, ricorda Roberto Rizzi, uno dei curatori della bella mostra che si è tenuta lo scorso anno presso lo spazio Guido Nardi del Politecnico di Milano, ora accompagnata da questo libro che definire ‘catalogo’ sarebbe riduttivo. L’attualità e la poetica di De Carli sono condensate nel suo saggio Architettura. Spazio Primario (Hoepli), inteso come spazio di qualificazione generato dal gesto dell’uomo dal quale prende forma e che lo abita, come scrivono Marta Averna e Roberto Rizzi, che mette in gioco il concetto di ‘geometrie di moto’ oggi esplorate dalle neuroscienze applicate all’architettura. Un contributo prezioso per (ri)conoscere l’opera e il pensiero di De Carlo in un’epoca in cui la dimensione poetica del linguaggio, in lui sempre presente, sembra avere perso la sua forza, estenuata da un’informazione pervasiva e superficiale che perde di vista ciò che è originale. E primario.

IL DESIGNER SENZA QUALITÀ

Usando l’ironia fin dal titolo – che contraddice la piattaforma olandese What Design Can Do e la sua promettente ‘mission’ – con questo libro Silvio Lorusso indaga la disillusione che permea oggi il design, a cominciare dal canto delle sirene delle ‘scuole’ interessate ad acchiappare le laute rette che i genitori sono disposti a spendere per conseguire specializzazioni che si scontrano comunque con la dequalificazione provocata dalla semi-automazione digitale e dalle forme di politica ornamentale concepite per compiacere il complesso museale-educativo. Alle conferenze il designer impara che ‘da un grande potere derivano grandi responsabilità’ ma alla fine il cliente chiede solo di rendere il logo più grande. Se un tempo prometteva di risolvere i problemi, oggi il design è esso stesso un problema. Il bagaglio di competenze dei designer appare fragile e inconsistente: la loro expertise viene accolta con indifferenza, il loro sapere viene banalizzato dai servizi online, il loro lavoro è compromesso da una serie di fattori esterni e le royalties non sono

PARADIGMA LINEARE URBANO PER UNA NUOVA CIVILTÀ

più quelle di una volta. PhD in Design Sciences all’università Iuav di Venezia, l’autore è assistente all’università Lusófona di Lisbona e tutor nel dipartimento di Information Design della Design Academy Eindhoven.

What Design Can’t Do Silvio Lorusso Set Margins, Eindhoven, 2023 340 pp, En, 25 euro

ISBN 978-90-833501-3-4

universitari di progettazione guidati da Felici (Arcosanti_Venice, 2003 e 2004; Su_Roma, 2005; In_Napoli, 2006) trasporta la teoria – il libro è pubblicato in una collana di filosofia – in realtà concrete, portando alla consapevolezza che uno sviluppo ipersostenibile debba necessariamente essere perseguito sia su scala architettonica che urbana attraverso un modello di Città Lineare Tridimensionale (3dlc).

Carlo De Carli Corollario

Marta Averna e Lola Ottolini (a cura di)

Araba Fenice, Cuneo, 2025 160 pp, Ita/En, ill. 32 euro

ISBN 978-88-6617-999-3

Se la tesi è la città a misura d’uomo (ovvero antropocentrica) e l’antitesi, nella parole di Paolo Soleri, lo sprawling, cioè la città che perde la forma di città, la sintesi che ne ricava Marco Felici in questo denso trattato è un’infrastruttura urbana decentrata, capace di dislocare potere decisionale a cellule di reti distribuite orizzontalmente, come gli alberi descritti da Stefano Mancuso (il paradigma ipervegetale, come lo chiama l’autore) o come Wikipedia, rete orizzontale aperta, incrementale e condivisa esente però dall’anarchia dei social media popolati di fake news. Sgombrato il campo dalle mirabolanti promesse della tecnologia, che possono essere vanificate con la semplice apertura di una finestra, e dalle illusioni di città green o ancora ‘dei 15 minuti’, con un approccio insieme sociologico, architettonico e di pianificazione urbana il saggio procede con l’analisi di modelli urbani lineari tridimensionali del Novecento per comprenderne le potenzialità, dalla Ville Spatiale di Yona Friedman (1958) alla Plug-In City degli Archigram (1964) alla Lean Linear Arcology di Paolo Soleri (con cui l’autore ha collaborato a lungo) alle concrete utopie di Luigi Pellegrin. L’illustrazione di tre workshop

Città ipersostenibili

Marco Felici

Rosenberg & Sellier, Torino, 2025 88 pagine, 14 euro

ISBN 979-12-599-3387-4

elements

Outdoor Living

L’outdoor evolve da semplice estensione dell’interno a progetto integrato, dove arredi, superfici e lighting concorrono a definire comfort, durata e identità. Materiali performanti sistemi modulari e luce calibrata ridisegnano terrazze, giardini e rooftop. Le interviste ai designer confermano questo orientamento, evidenziando come ricerca formale, innovazione tecnica e visione sistemica guidino le nuove tipologie per l’abitare all’aperto a cura di Elena Riolo

Roberto Burle Marx, Design for the Ministry of Education and Health roof garden, Rio de Janeiro, 1938 © Burle Marx Institute Archive.

EMBRACE OUTDOOR LOUNGE.

Disegnata da Eoos, la seduta combina una struttura in teak non trattato certificato Fsc, levigato e assemblato a mano, con cuscini idrorepellenti dalle proporzioni generose, disponibili in tre tonalità naturali. Impilabile e utilizzabile anche senza imbottitura, è completata da un tavolo rotondo con 37 doghe in teak lavorate a mano. Il legno sviluppa nel tempo una piacevole patina grigio-argento. www.carlhansen.com

ARPER

ONEMM. Disegnato da Peter Kunz, il tavolo di distingue per il sottilissimo piano, nato dalla piegtura di un unico foglio di acciaio inox da 1 mm, soluzione che combina leggerezza e solidità. La collezione include anche panche con cuscini removibili, che mantengono la cifra di totale disassemblabilità degli arredi, in ottica di corretto riciclo e sostenibilità.

Nella foto il tavolo Onemm e sedie Catifa (RE) 46

www.arper.com

DESIREE

EBEN OUTDOOR. La poltrona disegnata da Matteo Thun e Antonio Rodriguez combina struttura in iroko naturale e intreccio di corda di poliestere realizzato a mano. Lo schienale avvolgente definisce una seduta leggera ma strutturata. Il cuscino, con imbottitura e tela idrorepellente in fibra di poliestere ottimizza comfort, protezione e durata. www.desiree.com

VERMOBIL

NÉA. Il sistema modulare di sedute per esterni progettato da Andrea Radice unisce una struttura in acciaio zincato e verniciato a polvere con elementi in tessuto e corda. Poltrona, moduli centrali e angolari, pouf e tavolo basso con piano in Hpl permettono configurazioni flessibili, arricchite da cuscini impermeabili e resistenti ai raggi Uv abbinati a imbottiture in poliuretano espanso. www.vermobil.it

Foto Fotostudio Mauro Mattioli

elements Outdoor Living

Un’eco di Coney Island nello spazio pubblico

Mandelli Pagliarulo

è lo studio fondato da Simone Mandelli e Antonio Pagliarulo. Attivo tra design di prodotto e ricerca formale, collabora con aziende internazionali sviluppando progetti che coniugano precisione tecnica, identità grafica e attenzione all’uso. www.cmp-design.com

Coney bilancia identità e funzione attraverso una struttura monomaterica in acciaio che unisce solidità strutturale a un forte impatto grafico. Il telaio in tubo curvato garantisce resistenza meccanica per l’uso contract, mentre la scocca in lamiera stampata tridimensionalmente assicura ergonomia e comfort. Ci interessava lavorare su una carpenteria nitida, un oggetto essenziale, leggibile, che potesse apparire come un reperto del futuro. Il nome della collezione richiama Coney Island e le sue spiagge, i Luna Park, l’idea di festa popolare. Questo immaginario ha un peso preciso:

PARÀ

OUT OF VELVET TAORMINA. Il velluto pensato per l’esterno mantiene la morbidezza e la profondità cromatica tipiche dei tessuti indoor, aggiungendo resistenza a intemperie e raggi Uv. Idrorepellente e Pfas free, la collezione è proposta in 24 colori certificati Oeko-Tex, per imbottiti e complementi che uniscono performance ed estetica. www.para.it

volevamo un arredo capace di fare da sfondo a momenti di svago e convivialità.

L’uniformità cromatica e la struttura possente rimandano infatti a un oggetto urbano, pensato per durare nel tempo e attraversare contesti diversi. Per noi la durata non è solo tecnica, ma culturale: significa progettare una seduta capace di abitare luoghi accoglienti, egualitari e inclusivi, mantenendo coerenza formale e resistenza.

Simone Mandelli e Antonio Pagliarulo

PEDRALI

CONEY. La collezione outdoor in acciaio composta da sedia, poltrona e lounge disegnata da Mandelli Pagliarulo, è definita da una struttura monomaterica in tubo curvato e da uno schienale in lamiera stampata con doghe verticali. Il ritmo tra elementi verticali e orizzontali costruisce un segno grafico riconoscibile; impilabile e verniciata per esterno, è adatta a spazi pubblici e contesti contract. www.pedrali.com

iGUZZINI

LANDER. Nato dal progetto di Renzo Piano per il parco della Fondazione Stavros Niarchos di Atene, Lander è un sistema di illuminazione che dialoga con l’architettura del paesaggio. Linee pulite, proporzioni equilibrate e una robusta struttura antivandalismo definiscono un prodotto facile nella manutenzione e che offre una luce precisa e confortevole. Le ottiche Opti Smart Lens lo rendono ideale per percorsi urbani, parchi, piste ciclabili e contesti residenziali e hospitality. Il sistema è disponibile nelle versioni palo, bollard e parete, con emissione luminosa diretta o indiretta. www.iguzzini.com

CERAMICA SANT’AGOSTINO

BERGSTONE. La collezione di piastrelle in gres porcellanato effetto pietra per pavimenti e rivestimenti trasferisce all’outdoor la compattezza e le vibrazioni cromatiche della roccia alpina. Il tono scuro rafforza la continuità tra interno ed esterno, adattandosi a terrazze, camminamenti e spazi living all’aperto in diversi formati e superfici.

www.ceramicasantagostino.it

VÈU CHAISE LOUNGE. Il progettista brasiliano Zanini de Zanine ha disegnato una chaise longue outdoor con struttura portante in alluminio verniciato e intreccio sintetico ad alta resistenza dalla texture simile alla pelle, che conferisce calore e tattilità. Il telaio disegna una linea continua e scolpita che sostiene la seduta ergonomica, coniugando leggerezza visiva e solidità costruttiva. www.snoc-eu.com

Per Form Us With Love, studio fondato nel 2005 a Stoccolma, il design è il modo di forgiare un cambiamento reale e sistemico che ha implicazioni in tutti i settori della vita. www.formuswithlove.se

Design come metodo tra industria, cultura e cambiamento

Il design è per noi uno strumento per migliorare la vita. Lavoriamo su problemi complessi cercando soluzioni che rimangano sempre a misura d’uomo. Questo significa considerare contemporaneamente persone, pianeta e impresa, e capire come questi ambiti si influenzano tra loro nel tempo. Ogni progetto aggiunge conoscenza al nostro modo di operare: sostenibilità, processi industriali e cultura diventano parti

di un sistema più ampio. Il nostro obiettivo è individuare opportunità concrete in grado di rispondere a bisogni reali, sviluppando prodotti utili e duraturi che usano le risorse in modo equilibrato e generano valore nel lungo periodo. È il medesimo approccio con cui abbiamo studiato Coomo: una dichiarazione di arredo slow, di qualità rispetto alle tendenze effimere, di responsabilità rispetto a una mentalità usa e getta.

BENE

COOMO. Progettato da Form Us With Love, il sistema di divani modulari si basa su una struttura interna completamente disassemblabile. Rivestimenti, imbottiture, telai e sottostruttura in Epp riciclabile possono essere sostituiti singolarmente, favorendo riparazione e rinnovo nel tempo. Componibile con modulo singolo, angolo e pouf, il sistema è disponibile anche in versione outdoor resistente agli agenti atmosferici. www.bene.com

SNOC

Alessandro Stabile è un designer industriale che esplora nuovi equilibri tra innovazione tecnica, tipologica e formale. Con il suo studio fondato nel 2011 sviluppa prodotti che coniugano essenzialità eleganza e responsabilità etica, lavorando su processi progettuali orientati all’uomo e all’ambiente. www.alessandrostabile.com

Un comfort dinamico tra relax, convivialità e sistema modulare

Spesso le sedute lounge per l’outdoor sono estremamente morbide, tanto da catturare chi è seduto e rendere difficile rialzarsi. Con Brezza Relax volevo invece un comfort che permettesse il relax ma anche di godersi un aperitivo o perfino un momento di lavoro informale. Per questo, come in tutta la collezione, ho lavorato sul rapporto tra imbottiture e telaio metallico: nella versione Relax il telaio scompare alla vista, ma sostiene lo schienale e distanzia la poltrona di qualche centimetro dal suolo. Il telaio consente inoltre di collegare le singole poltrone tra loro per formare un divano potenzialmente infinito. La circolarità è alla base dell’intera collezione: nella poltroncina, nella

lounge e nel divanetto i telai sono impilabili e viaggiano separati dalle cuscinature, sono state eliminate colle, bottoni e velcro. Nella Relax è stato semplificato e ottimizzato il taglio del tessuto, ora perfettamente rettangolare, una caratteristica che permette anche di utilizzare con facilità i tessuti rigati che connotano esteticamente il prodotto. Al Salone del Mobile 2026 la collezione crescerà nel rispetto di questi principi, trasformandosi in sistema grazie alla possibilità di aggregare un bracciolo, un pouf o un piccolo tavolino di appoggio. Arriverà anche la versione lettino e una declinazione indoor con tessuti e certificazioni dedicate.

Alessandro Stabile

S CAB

BREZZA RELAX. La generosa lounge chair imbottita è progettata da Alessandro Stabile unendo due grandi volumi imbottiti, che vicini formano seduta e schienale. Sono sostenuti da un telaio metallico nascosto che solleva la seduta da terra, mantenendola asciutta e pulita. Il sistema consente di collegare più moduli per creare composizioni continue; i tessuti sono sfoderabili e disponibili in varianti tinta unita e tramate. www.s-cab.it

LINEA LIGHT GROUP ROLLING SKY. La collezione di lampade da esterno con diffusori in Pmma dalle forme organiche, sferici o ad anfora, è progettata per distribuire la luce in modo omogeneo e garantire comfort visivo. Le unità componibili consentono di modulare l’effetto luminoso e personalizzarlo in base alle esigenze. www.linealight.com

ANTOLINI

SILVER GREY. Il granito naturale per pavimentazioni e rivestimenti outdoor è definito da un fondo nero profondo attraversato da una trama organica di sfumature grigie che generano movimento e profondità. La struttura garantisce stabilità e resistenza agli agenti atmosferici permettendo di costruire continuità materica tra interno ed esterno in ambito residenziale e hospitality. www.antolini.com

Foto
Stefania Zanetti

FIAM

MYA. La poltrona lounge da esterno disegnata da Ennio Favagrossa reinterpreta le forme arrotondate degli anni Sessanta attraverso la struttura in tubo di alluminio ad alta resistenza verniciato e l’intreccio manuale in tondino di Pvc ‘spaghetti’. Impilabile e leggera nonostante le proporzioni generose, è abbinabile a un poggiapiedi coordinato. Interamente realizzata e intrecciata a mano in Italia. www.fiam.it

Tra leggerezza grafica e comfort generoso

La designer franco-svizzera

Julie Richoz si muove tra pezzi unici artigianali e scala industriale, dall’oggetto all’arredo dall’illuminazione al tessile, con un’attenzione particolare per il savoirfaire e per la precisione nella lavorazione dei materiali. www.julierichoz.com

Con Cicala ho cercato di costruire un dialogo sottile tra teak e acciaio inox. Il teak è un legno magnifico, ma spesso associato a forme piuttosto massicce; l’acciaio mi ha permesso di introdurre una struttura più sottile, quasi grafica, capace di alleggerire visivamente l’insieme. I cuscini sono semplicemente appoggiati su questa ossatura leggibile, una scelta che rafforza la sensazione di leggerezza e chiarezza costruttiva. L’equilibrio del progetto nasce soprattutto dal lavoro sulle proporzioni: linee aperte, curve morbide e una certa disciplina nella ripetizione delle doghe in legno. Allo stesso tempo il comfort è stato studiato con attenzione attraverso sedute generose e braccioli appena aperti,

BROSS

SIT. Marco Zito firma una collezione di sedute lounge per esterni composta da poltrona, chaise longue e pouf, definita da volumi imbottiti avvolgenti sostenuti da una sottile struttura in tondino metallico personalizzabile. I rivestimenti, completamente sfoderabili anche in tessuti outdoor, assicurano durata e facilità di manutenzione.

www.bross-italy.com

che accolgono il corpo in modo naturale. L’idea di fondo è quella di un outdoor vissuto come un vero momento di pausa. Le sedute sono volutamente profonde e leggermente inclinate, così da invitare al relax. La collezione è pensata per contesti molto diversi – terrazze urbane, giardini alberati o spazi alberghieri – e anche per una gestione pratica dello spazio. L’impilabilità dei divani, piuttosto rara per arredi di questo formato, permette di riporre i mobili in inverno o modularne facilmente la configurazione. Questa dimensione pratica fa parte di una visione contemporanea della vita all’aperto: libera, confortevole e adattabile alle stagioni e agli usi.

Julie Richoz

TECTONA

CICALA. La collezione outdoor firmata da Julie Richoz unisce teak e acciaio inox lucido in una struttura leggera e fluida. Le doghe in teak lavorate secondo tecniche di ebanisteria, definiscono sedute generose e schienali accoglienti, mentre il sottile telaio metallico introduce un segno grafico che alleggerisce visivamente l’insieme. Curve morbide e proporzioni misurate costruiscono un equilibrio tra comfort e precisione formale. www.tectona.it

Ridurre la forma ampliare l’esperienza della luce

Lo studio di Aldo Parisotto e Massimo Formenton opera tra architettura, interior e product design, sviluppando progetti per retail, hospitality e design industriale, affiancando attività di art direction.

www.parisottoformenton.it

Brillina nasce da un gesto semplice: portarsi la luce dietro, appesa a un dito, passando dalla casa al giardino o da un tavolo all’altro. Ci interessava lavorare su un oggetto compatto, essenziale, con una linea quasi grafica, capace di esprimere leggerezza senza rinunciare alla qualità luminosa. La dimensione ridotta e la pulizia delle linee sono scelte deliberate: togliere il superfluo per lasciare spazio alla funzione e alla relazione con lo spazio. Dal punto di vista progettuale abbiamo lavorato sull’equilibrio tra materia e tecnologia. L’alluminio definisce la struttura con precisione, il vetro – trasparente o opale

– modula la diffusione della luce, mentre il comando touch consente un’interazione intuitiva. La fibbia in cuoio è un dispositivo che amplia le modalità d’uso, permettendo di appendere la lampada e trasformare l’oggetto in presenza mobile. Per noi era fondamentale che potesse vivere in contesti diversi, dall’abitazione all’hospitality, in spazi interni ed esterni. La versatilità non è un tema stilistico ma progettuale: significa disegnare un oggetto capace di adattarsi, di costruire atmosfera senza imporsi, mantenendo una forte identità.

WOODCO

EXTERNO SKUDO. La collezione di pavimenti per l’outdoor Externo integra il nuovo sistema di schermatura in polimero con stabilizzatori Uv e antiossidanti capace di proteggere ogni doga su tutti e quattro i lati: il sistema Skudo Il pavimento, già antiscivolo e anti-scheggiatura, si riveste così di un’extra protezione per resistere a macchie, muffe, raggi Uv, cloro, salsedine, funghi e microrganismi marini senza necessità di trattamenti successivi.

www.woodco.it

QU

BRILLINA. La prima lampada portatile ricaricabile dell’azienda è sviluppata da Parisotto + Formenton Architetti attraverso una struttura in alluminio e guidaluce in vetro trasparente extrachiaro o acidato opale con riflettore a specchio integrato. Alimentata da batterie con autonomia superiore a 8 ore e comando touch sulla base, integra una fibbia in cuoio naturale che ne amplia le modalità d’uso.

www.qu-lighting.com

COSENTINO

DEKTON NARA. Superficie in pietra ultracompatta dal fondo beige attraversato da venature sottili che evocano l’estetica della quarzite Taj Mahal in chiave contemporanea. La finitura opaca Velvet di Dekton Nara amplifica la resa materica della lastra. La resistenza a raggi Uv, macchie e shock termici la rende adatta a pavimenti, rivestimenti e facciate indoor e outdoor. www.cosentino.com

Aldo Parisotto e Massimo Formenton

WARLI

SCILLA. Progettata da Paolo Zani, Scilla è la lampada portatile per interni ed esterni realizzata in vetro soffiato satinato inciso a mano secondo tecniche tradizionali, con base e maniglia in acciaio inox spazzolato o verniciato a polvere. Grazie alla base da terra trasportabile si inserisce in ogni ambiente, dentro e fuori casa. La superficie lavorata diffonde una luce morbida e avvolgente.

www.warli.it

CALCHÈRA

SAN GIORGIO

TONACHINO COCCIOPESTO. La finitura minerale pensata per valorizzare la matericità della superficie attraverso il colore naturale della materia conferisce alle superfici un aspetto caldo e vibrante, caratterizzato dalle tonalità rosate del cocciopesto. Realizzata con Calce Pozzolanica Pantheon, aggregati calcareo-silicei selezionati e cocciopesto, assicura elevata traspirabilità, buona elasticità e resistenza agli agenti chimici e biologici. www.calcherasangiorgio.com

FERMOB

SIXTIES CHAIR. Poltroncina da esterno disegnata da Frédéric Sofia, con una struttura in tubolare di alluminio, seduta e schienale intrecciati in fibra sintetica di polietilene. La trama avvolgente e le linee arrotondate richiamano l’estetica anni Sessanta, offrendo comfort e leggerezza per terrazze, giardini e spazi hospitality. Disponibile in diverse varianti colore. www.fermob.com

NEOLITH

WHITESANDS. Ispirata alle dune del deserto del New Mexico, la superficie in pietra sinterizzata sviluppata da Neolith presenta una trama morbida e un tono sabbia chiaro pensato per portare luminosità agli ambienti. Disponibile in lastre di grande formato negli spessori 6, 12 e 20 mm, può essere lavorata per pavimenti, pareti, top, piatti doccia e lavabi su misura, con elevata resistenza a graffi, macchie e acqua. www.neolith.com

Foto Nicolas Mathéus
Foto Sara Magni

Basaglia + Rota Nodari è lo studio fondato da Natalia Rota Nodari e Alberto Basaglia, attivo tra prodotto e direzione artistica. Collabora con aziende internazionali sviluppando sistemi coerenti tra funzione, identità e linguaggio formale. www.basagliarotanodari.com

Restituire al gioco una dignità progettuale contemporanea

Con Fas Pendezza, dal 2018, abbiamo lavorato per costruire un’identità solida e riconoscibile, capace di interpretare la storia di un marchio con oltre sessant’anni di esperienza e di proiettarla nel presente. Il nostro ruolo di art director è stato quello di definire un linguaggio unitario che si esprime attraverso i prodotti: oggetti coerenti tra loro, immediatamente identificabili e rappresentativi del brand. Intervenire nel mondo del gioco significa attribuirgli una reale dignità progettuale. Il gioco è un dispositivo sociale potente: genera relazione, crea comunità, attiva lo spazio. Portarlo dentro una cultura del progetto consapevole

vuol dire lavorare su proporzioni, materiali e dettagli con la stessa attenzione che si riserva all’arredo o all’architettura, superando una visione puramente tecnica o nostalgica. Con Boss abbiamo scelto di togliere il superfluo e concentrarci su equilibrio formale, robustezza e qualità. La ricerca sui materiali e l’ingegnerizzazione sono state centrali: volevamo uno strumento autentico pensato per uso intensivo, capace di resistere nel tempo anche outdoor. Perché per noi il design è durata, funzione e identità, non abbellimento.

MARGRAF

SANTAFIORA. Pietra naturale di origine toscana estratta a cielo aperto nelle colline della Maremma, si distingue per struttura compatta e bassa porosità che assicurano durabilità e stabilità cromatica nel tempo. Le tonalità calde, dal marrone intenso a sfumature più chiare, valorizzano facciate, pavimentazioni e spazi a contatto con acqua, grazie alla resistenza a gelo, fuoco, raggi Uv e corrosione salina. www.margraf.it

FAS PENDEZZA

BOSS. Basaglia + Rota Nodari firmano un calciobalilla da competizione realizzato secondo standard regolamentari, con struttura in metallo verniciato per esterno e componenti, come ometti, segnapunti e manopole, in legno Iroko. Il campo in solid core nero serigrafato e le aste telescopiche in acciaio definiscono un oggetto pensato per uso intensivo anche in outdoor. Possibilità di personalizzazione su richiesta del cliente. www.faspendezza.it

NARDI

PIAVE HIGH + CASSIA STOOL. II set contract per esterni disegnato da Raffaello Galiotto si compone di tavolo alto in alluminio verniciato con piano in laminato Hpl Materia da 6 mm e sgabello in resina fiberglass, disponibile anche rigenerata. Il sistema di fissaggio invisibile del piano, le doghe orizzontali della seduta e la palette dello sgabello, che va dall’antracite al tabacco fino a maya e cactus, mettono in risalto la pulizia formale degli arredi. Il tavolo è disponibile nei colori antracite, tabacco, tortora e corda. www.nardioutdoor.com

MURMURATION. Ispirato alla coreografia aerea degli uccelli migratori, Murmuration dispiega un disegno continuo che evoca uno stormo in movimento. Questo jacquard reversibile, adatto per interni ed esterni, offre due letture, una più luminosa, l’altra più ombreggiata grazie alla combinazione di ciniglia vellutata e raso luminoso. La palette unisce toni naturali ad accenti più brillanti, come un cielo attraversato da silhouette in volo.

www.metaphores.com

CERAMICHE REFIN

OSMOS. La collezione in gres porcellanato rielabora il cemento in chiave materica con inclusioni minerali, venature marmoree, microgranuli e piccole fratture che restituiscono profondità e movimento dialogando con la luce negli spazi outdoor. Disponibile nelle tonalità Calce, Cenere, Nebbia, Tortora e Ruggine, anche in finitura C2 Grip, nella struttura tridimensionale Ribbed e nel decoro Trame.

www.refin.it

VIBIA

MERIDIANO. Progettata da Jordi Vilardell e Meritxell Vidal, la lampada da esterno combina una piastra convessa e sottili raggi metallici per generare una luce indiretta che modella superfici e percorsi outdoor con un delicato gioco di chiaroscuro. Disponibile in versione applique e da terra con funzione seduta o piano d’appoggio, definisce giardini e patii con un’illuminazione discreta e calibrata.

www.vibia.com

FIM

UMBRELLAS PLANT. Riccardo Giovanetti reinterpreta l’archetipo dell’ombrellone per estenderne l’uso anche dopo il tramonto. La struttura in alluminio sostiene un doppio telo nel quale è inserito un sistema Led che trasforma il parasole in elemento luminoso. Una nuova interpretazione grafica di Plant, disegnata da 967arch, art director di Fim, sarà presentata alla Milano Design Week, nell’installazione La Fabbrica dell’ombra presso la Biblioteca Umanistica dell’Incoronata.

www.fim-umbrellas.com

Foto Fausto Mazza
Foto Gaëlle Le Boulicaut MÉTAPHORES

Marcello Ziliani è designer e art director attivo tra arredo, illuminazione e outdoor. Il suo lavoro coniuga ricerca formale innovazione tecnica e attenzione al processo produttivo, sviluppando prodotti che integrano funzione, identità e qualità costruttiva. www.marcelloziliani.com

Forma e funzione sono inscindibili anche nell’outdoor

Progettare per l’outdoor significa confrontarsi con condizioni ambientali severe, ma per me forma e funzione sono inscindibili: se un apparecchio nasce per l’esterno lo si pensa fin dall’inizio per quel contesto, lasciando che elementi formali e funzionali scaturiscano naturalmente dai vincoli tecnici.

Con Thaïs la sfida è stata prima di tutto culturale, perché per Platek si trattava di una tipologia e di un linguaggio non abituali, poi tecnica dato che la ‘testa illuminante’ doveva contenere cluster Led, scheda elettronica, batterie, comando di regolazione e presa Usb in un unico elemento compatto. L’obiettivo era mantenere dimensioni ridottissime in sezione, quasi immaginando “un buco con la

luce intorno”, integrando tutto all’interno di un disco elegante senza che si percepisse alcun elemento tecnico. La possibilità di far scorrere e bloccare il corpo illuminante lungo l’asta è stata una sfida di engineering importante, soprattutto considerando il peso dell’ottone lavorato dal pieno.

Proprio l’ottone, materiale antico e carico di memoria, ha stimolato soluzioni inedite: la finitura stone washed e la scelta di lasciarlo senza protezione permettono alla superficie di invecchiare e trasformarsi, depositando nel tempo una patina che racconta la vita dell’oggetto.

GANDIABLASCO

CORD. Groundwork Studio modella la tradizione scandinava della corda intrecciata fondendola con il vimini in una linea outdoor caratterizzata da strutture sottili in acciaio inox satinato da 12 mm e superfici intrecciate in corda di polipropilene fibrillato. Il dialogo tra essenzialità minimalista e comfort si traduce in sedute ariose ed ergonomiche: chaise longue, lounge chair, sedia a cui si affianca il tavolo da pranzo con piano in porcellana. www.gandiablasco.com

PLATEK

THAÏS. Marcello Ziliani progetta una lampada da tavola outdoor in ottone, composta da un disco luminoso regolabile in altezza lungo un’asta sottile e utilizzabile anche come sospensione o da appoggio. La testa integra Led, batterie ricaricabili, comando touch e presa Usb, con finitura stone washed destinata a ossidarsi e a maturare una patina naturale nel tempo. www.platek.eu

HAY

DEVILLE. Julien Renault reinterpreta l’archetipo della sedia da bistrot con la collezione outdoor composta da sedie, poltroncine e tavoli rotondi e quadrati con piano ribaltabile in alluminio con almeno il 60% di materiale riciclato post-consumo. Le strutture, ottenute tramite fusione e piegatura e assemblate a vite, facilitano smontaggio, riparazione e riciclo. www.hay.com

Fortunato Depero. Simultaneità metropolitane 1946.

FORTUNATO DEPERO A MILANO

Dopo la sua ultima retrospettiva in città, Fortunato Depero ritorna dopo 35 anni a Milano in una mostra monografica curata da Nicoletta Boschiero e Antonio D’Amico al Museo Bagatti Valsecchi. Dalla collaborazione dell’istituzione milanese con il Mart - Museo di Arte Moderna e Contemporanea di Trento e Rovereto nasce la mostra Depero Space to Space. La creazione della memoria, che rimarrà aperta al pubblico fino al 2 agosto.

La scelta della casa-museo è stata guidata anche dal parallelismo tra i Bagatti Valsecchi e Depero, accomunati dal desiderio di abitare spazi a cavallo tra antico e contemporaneo come la dimora tardo-rinascimentale che i fratelli Fausto e Giuseppe Bagatti Valsecchi

scelsero di costruire alla fine dell’Ottocento, popolata di dipinti e manufatti di arte applicata, realizzando quella che ancor oggi è considerata una ‘casa delle collezioni’.

La raccolta di oltre quaranta opere, datate dagli anni Trenta agli anni Cinquanta, proviene – oltre che dal Mart – anche dalla Casa d’Arte Futurista Depero.

L’allestimento, realizzato dallo studio A-Fact, esalta la collocazione spazio-temporale delle opere in un contesto abitativo dall’identità ben definita. Il percorso espositivo rende omaggio alla versatilità dell’artista trentino, egli stesso progettista, negli anni Venti del Novecento, di allestimenti di mostre di arti applicate. La presenza di Depero a Milano richiama an-

che il rapporto cruciale dell’artista con la sua città di elezione, dove nel 1946 presentò una personale alla Galleria Il Camino Completano il programma della mostra una serie di ‘aperitivi futuristi’, con jazz dal vivo e visite guidate, che rievocano l’atmosfera del ViBiBar, leggendario locale di Bolzano progettato da Fortunato Depero nel 1937 per le Cantine Cavazzani ■

Fortunato Depero

SPACE TO SPACE. LA CREAZIONE DELLA

MEMORIA

Casa Museo Bagatti Valsecchi. Milano 13 febbraio | 2 agosto 2026

Eni è al fianco della Fabbrica di San Pietro in un’opera di monitoraggio strutturale della Basilica, supportandone la conservazione grazie alla propria esperienza e all’uso di tecnologie innovative. Scopri di più su eni.com

Turn static files into dynamic content formats.

Create a flipbook