Skip to main content

Junior Studio Portfolio

Page 1


Portfolio

Rebekah Barnett

Undergraduate Portfolio

Selected Works 2025-2026

Milford, Michigan: Companian Sites

Design Studio I

Missing Middle Housing Design Studio I

Chapel at Cranbrook Design Studio II

ASCA Steel Competition Design Studio II 01 02 03 04 PAGE 3 PAGE 5

PAGE 7 PAGE 9

01 Milford, Michigan: Companion Sites

A small town with a rich history, Milford, Michigan was home to one of Henry Ford’s Village Industries, providing local jobs and a gateway to the industrial future. Today, the Pettibone Powerhouse remains after the Carbonator Plant was demolished in 2002. To reconnect the site, a new restaurant, event space, and extended trail are proposed. The northern building echoes the Powerhouse and former plant, using matching brick and vertical pilasters inspired by Art Deco designs.

Upper Event Space
Bar Area

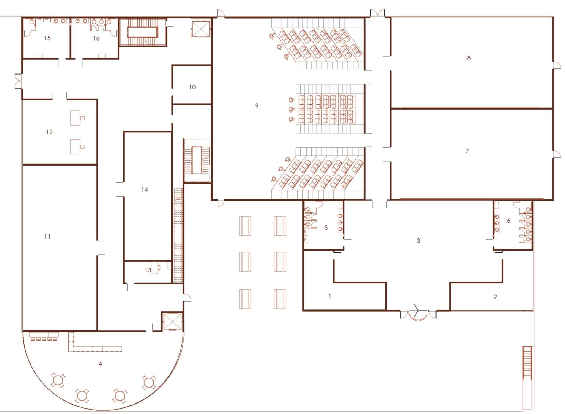
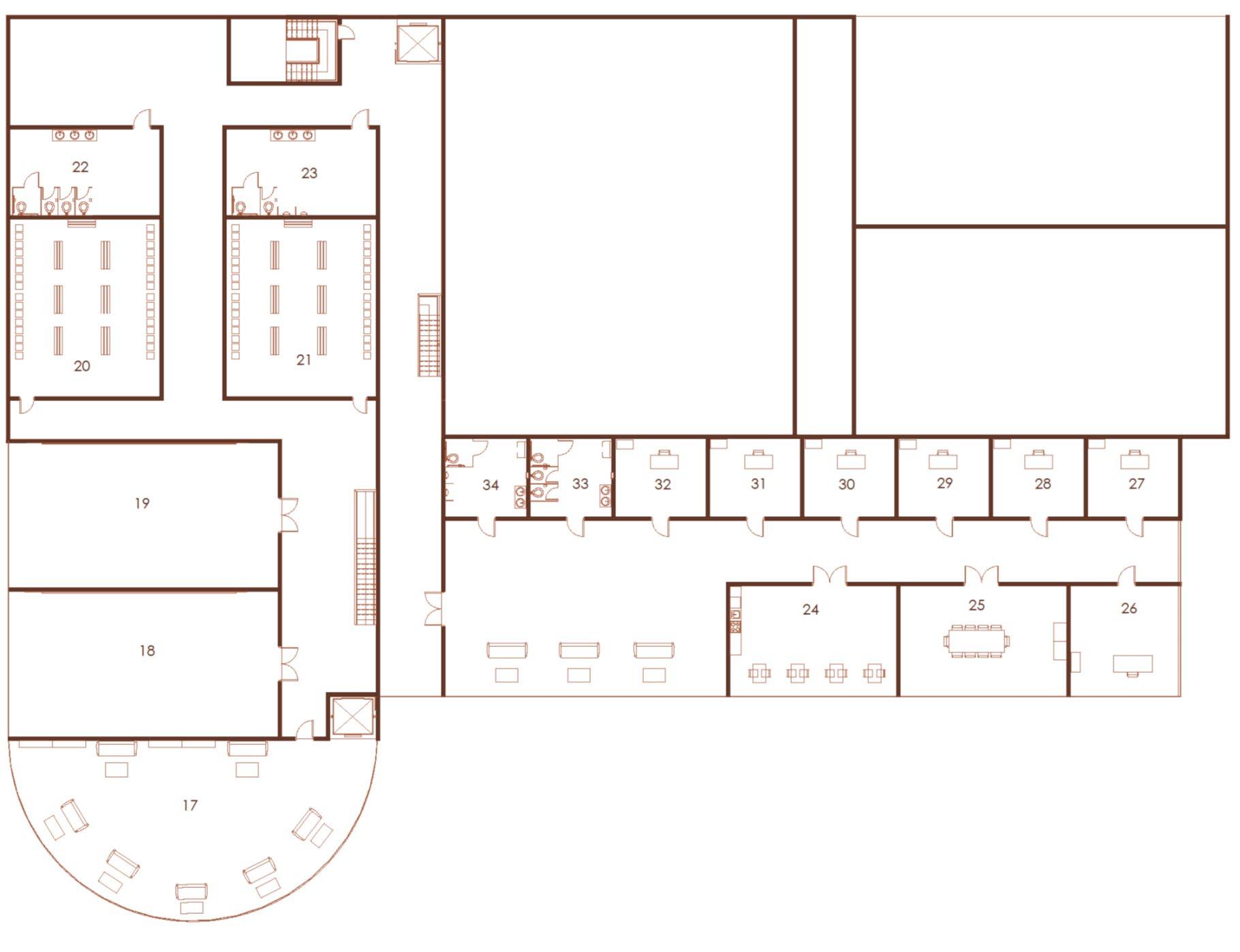
02 Missing Middle Housing

Social wealth is as important as financial wealth, yet about 20% of U.S. adults experience loneliness and 29% of households are single-occupant. This project addresses both loneliness and the housing crisis by introducing “middle housing” (which consists of only ~7% of U.S. housing), such as duplexes, fourplexes, cottage courts, and townhouses offering more density than single-family homes without the scale of high-rises.

On the north side, a live-work building includes a food pantry, laundromat, and leasing office space on the ground floor, with studio apartments above that share kitchens and lounges. To the south, a cottage court features two duplex types: standard two-story units and mixed oneand two-story units designed for multigenerational living with both proximity and privacy.

Outdoor Court Area
Duplex 2 Living Room
Kitchen & Dining
Outdoor Court Area
Outdoor Live-Work Area
Food Pantry
Laundromat
Studio Apartment
Studio Apartment

03 Chapel at Cranbrook

This chapel is to be symbolism of the individual's path to holiness. We are called to be holy. When born, we are lost and can be wondering in the woods without a purpose in life. Then from the woods, the entrance of the structure can be seen. The extended wall on the west elevation acts as an axis to guide the individual to the building. The beginning seems small, claustrophobic even. One might think to turn away. But just through the doors, and the individual will emerge from the woods into an open space of glass, letting in natural light, a juxtaposition to the previous space. The individual is not lost anymore, and can take the time observe nature, God’s creation, in a safe environment. The building’s sloped roof and east wall extends past the original build’s shape as if reaching for heaven, trying to figure out which direction is right. It is up to the individual to decide where they want to go.

Ariel View Back View
Main Floor
Basement Floor
Sanctuary Views
Physical Model
Basement

04 ASCA Steel Competition

For the 2026 ACSA Steel Design Competition, this project proposes a community dance center on a professor-assigned site, using steel particularly long-span systems as the primary structure to showcase advances in modern steel design.

Set in Chicago, the birthplace of the steel -frame skyscraper, the project engages the Chicago River as a cultural gateway linking performing arts with the city. An adjacent park contrasts urban density, while a café and elevated public lounge provide social space and framed river views.

The form draws inspiration from dancers’ bodies twisting and converging into a unified whole abstracted into program and spatial organization. Glass-walled studios and classrooms invite natural light and visual connection, while exposed workshops reveal behind-the-scenes production. Together, the building serves as both a performance venue and an educational tool, celebrating the craft of dance.

Chicago Figure Ground

Exploded Axonometric Axonometric

Longitudinal Section

Transverse Section

Lawn View
Public Lounge View

Turn static files into dynamic content formats.

Create a flipbook
Junior Studio Portfolio by Rebekah Barnett - Issuu