

Situated in the c premier entertai the finest restaur
Location: Airport Proximity.

GASTRONOMY.
Four distinctive concept restaura
Factory Steak & Lobster (Steakho (Customizable Dishes), Tanoshii J Japanese Cuisine), Circo (Pizza a
ENTERTAINMENT.
Located just steps from Bogotá's est (Zona G) and a short distance from t which many shops, restaurants, and a away from Bogotá's Zona Rosa neigh
WELLNESS
VIP LOUNGE
Presence Spa & Wellness Center p organic, locally sourced products
We also possess a fully equipped
Our exclusive VIP Lounge provide meetings, offering complimentar beverages.
Business center featuring compu reservable meeting rooms.
FACILITIES
BENEFITS OF THE EVENT
Fitness center, wellness spa, indo whirlpool, conference room
For your corporate and personal rooms accommodating up to 400 offer a delectable customized me team.










W E D D I N G S A N D
S O C I A L E V E N T S
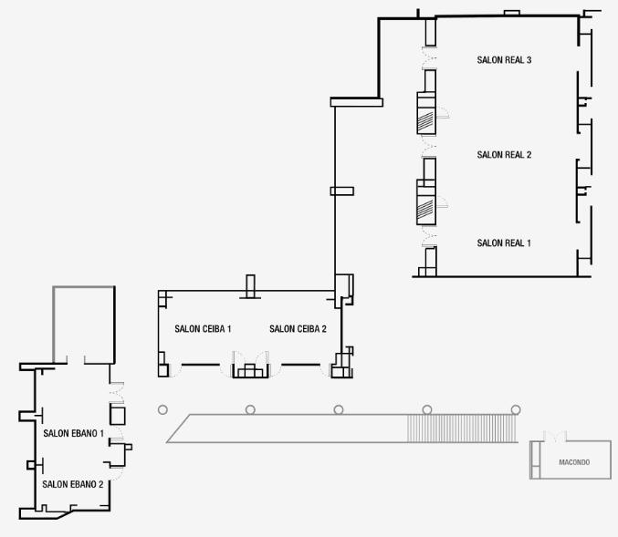
The JW Marriott Bogotá Hotel offers an extensive selection of venues tailored to accommodate every wedding style. Real meeting Room, characterized by their grandeur and sophistication, are perfect for opulent, large-scale celebrations. For those desiring a more intimate, natural ambiance.
Ceiba Rooms 1 and 2 are inviting and sophisticated venues, wellsuited for more intimate gatherings. Additionally, we offer other adaptable spaces, perfect for symbolic or religious ceremonies in private environments.
Our events team will support you at every stage, meticulously managing each detail and partnering with top florists, decorators, photographers, musicians, and chefs to craft a genuinely distinctive celebration.




