
Prepared
by:
RWC Northern Corridor Group
![]()

Prepared
by:
RWC Northern Corridor Group


EVANS DRIVE CABOOLTURE [ 5/56 ]
Situated in the heart of Corporate Park East
Ray White Commercial Northern Corridor Group are pleased to present to the market unit 5 of 56 Evans Drive, Caboolture for Lease.
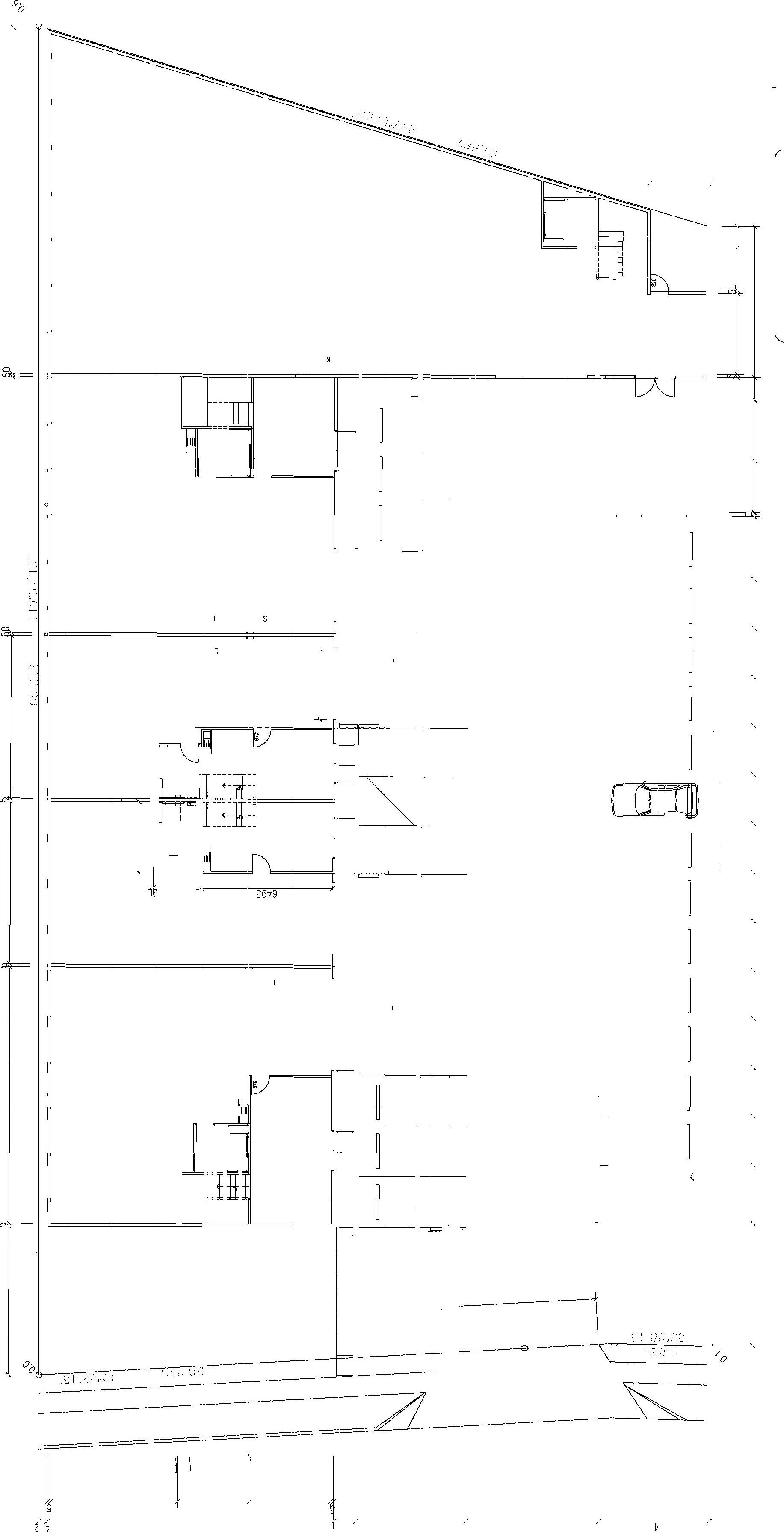
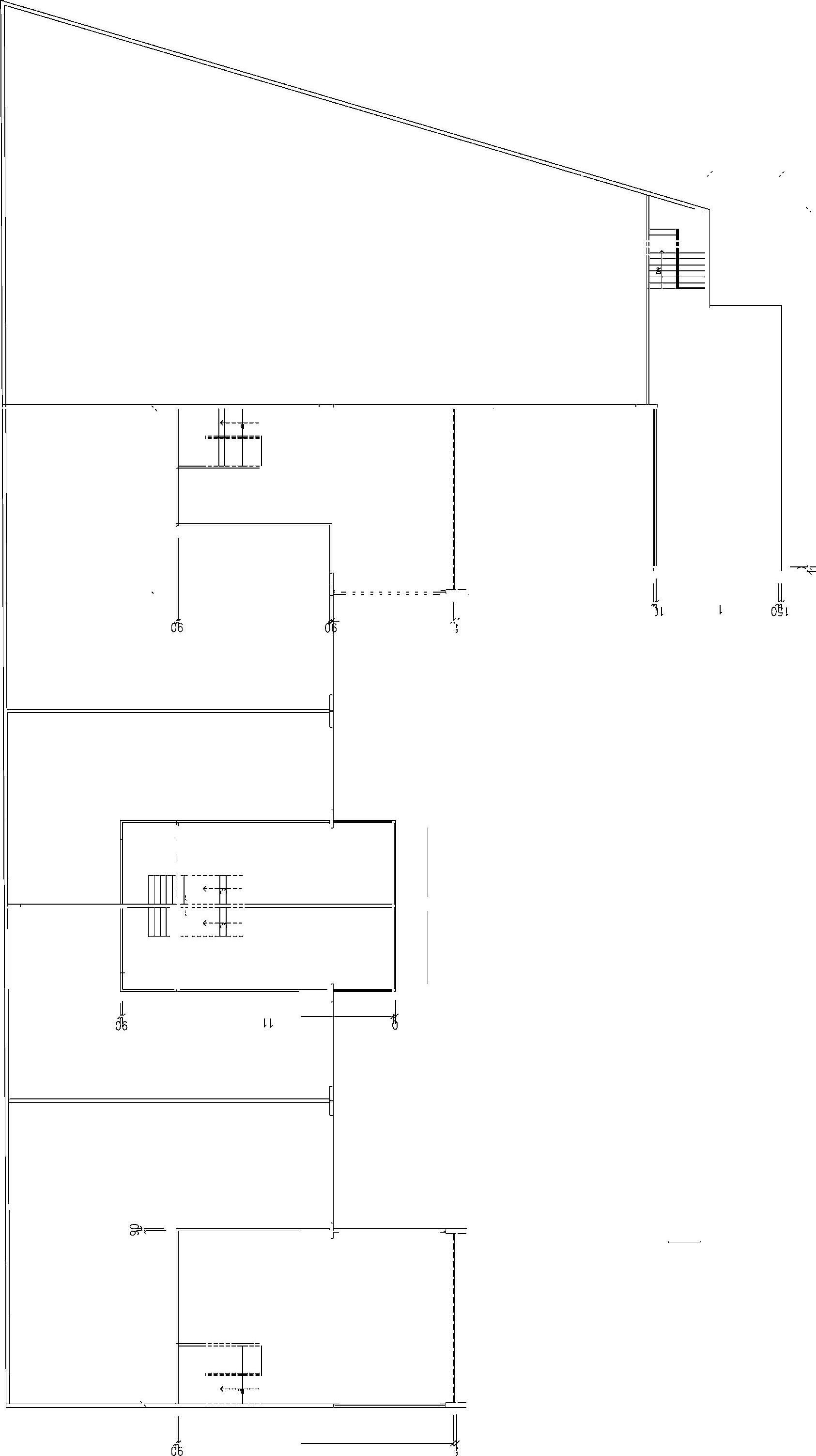
Brand new 466m²* tilt slab warehouse
Last unit remaining in this complex
Unit 5 - 466m²* with 5 allocated car parks
Ground floor warehouse & mezzanine
Container height roller doors
24 hour general industry zoning
On site parking
High speed NBN connection
Internal amenities
Highly sought after location
Easy access to Bruce Highway and major arterial roads




5/56 ]
Street Address5/56 Evans Drive, Caboolture, QLD 4510
Legal DescriptionLot 5 on SP338725
Total Unit AreaUnit 5 | 466m2*
Location
Corporate Park East is located 61.6km* north of Brisbane’s CBD and 60.7km* South of the Sunshine Coast. The locality is highly sought after due to its easy access to Bruce Highway and major arterial roads.
Local AuthorityMoreton Bay City Council
Services
The units are connected to water, stormwater, electricity and high speed NBN connection and both have internal amenities
Zoning General Industry (24 hour)
Car ParkingUnit 5 | 5 allocated car parks (lease only)
Lease Price $5,999.00 P/M + GST + Outgoings
Outgoings $690.30 P/M + GST







Corporate Park East is uniquely positioned to service one of the fastest growing corridors in the country.


The mega council region of Moreton Bay north of Brisbane is required to build another 88,300 homes over the next 22 years, according to the South East Queensland Regional Plan.
During that time the council, which is already the third largest in Australia, is expected to grow from 459,600 to 690,000 residents – more than the state of Tasmania.
“There are few regions in the country more unanimously exciting than the Northern Corridor between Brisbane and the Sunshine Coast.”

Ashley Rees Senior Analyst
0411 707 410
6 mins to the Bruce Highway
47 mins to Brisbane Airport
43 mins to Sunshine Coast
60 mins to the Port of Brisbane



Forming part of the new Corporate Park East industrial estate near the Bribie Island Road interchange of the Bruce Highway at Caboolture. Corporate Park East comprises of 45ha of fully serviced General Industrial land across multiple stages in one of the fastest growing regions in the country.
Northern Corridor supply vacuum
CPE represents one of the few industrial estates capable of meeting the growing demand from larger footprint manufacturing and logistics businesses between Brisbane and the Sunshine Coast. With the adjoining Corporate Park estate consistently at over 95% occupancy, the pent-up demand from existing businesses continues to provide an unquenchable appetite for new construction. Contact us for a more detailed assessment of existing and future opportunities industrial in our region.
Location & connectivity
CPE location at the northern distribution node of Bribie Island Rd & D’aguilar Highway interchanges provides last mile delivery solutions for one of the fastest growing catchments in the country. Manufacturing businesses are identifying the prime access to skilled labour as a major attraction factor to the region, especially with the lifestyle offered by the Sunshine Coast only 30 mins away.
Recent elections have produced an invigorated local council with a clear mandate to facilitate the creation of employment and lifestyle opportunities within the Moreton Bay region. Investment in key infrastructure projects at a local, state and national level, combined with the multiple master planned residential communities in the region is creating clear opportunity for industrial development to capitalise.



The information contained in this Information Memorandum and any other verbal or written information given in respect of the property (“Information”) is provided to the recipient (“you”) on the following conditions:
1. North Coast Commercial Properties Pty Ltd trading as Ray White Northern Corridor Group and or any of its officers, employees or consultants (“we, us”) make no representation, warranty or guarantee, that the Information, whether or not in writing, is complete, accurate or balanced. Some information has been obtained from third parties and has not been independently verified. Accordingly, no warranty, representation or undertaking, whether express or implied, is made and no responsibility is accepted by us as to the accuracy of any part of this, or any further information supplied b y or on our behalf, whether orally or in writing.
2. All visual images (including but not limited to plans, photographs, specifications, artist impressions) are indicative only and are subject t o change. Any measurement noted is indicative and not to scale. All outlines on photographs are indicative only.
3. The Information does not constitute, and should not be considered as, a recommendation in relation to the purchase of the property or a solicitation or offer to sell the property or a contract of sale for the property.
4. You should satisfy yourself as t o the accuracy and completeness of the Information through your own inspections, surveys, enquiries, and searches by your own independent consultants, and we recommend that you obtain independent legal, financial and taxation advice. This includes as t o whether any listing price is inclusive or exclusive of GST.
5. We are not valuers and make no comment as to value. “S old/ leased” designations show only that stock is “currently not available” – no t that the property is contracted/ settled. If you require a valuation we recommend that you obtain advice from a registered valuer.

6. The Information does not and will not form part of any contract of sale for the property. If an interested party makes an offer or signs a contract for the property, the only information, representations and warranties upon which you will be entitled to rely will be as expressly set out in such a contract.
7. Interested parties will be responsible for meeting their own costs of participating in the sale process for the property. We will not be liable to compensate any intending purchasers for any costs or expenses incurred in reviewing, investigating or analysing any Information.
8. We will not be liable to you (to the full extent permitted by law) for any liabilities, costs or expenses incurred in connection with the Information or subsequent sale of the property whatsoever, whether the loss or damage arises in connection with any negligence, default or lack of care on our part.
9. No person is authorised to give information other than the Information in this Information Memorandum or in another brochure or document authorised by us. Any
statement or representation by an officer, agent, supplier, customer, relative or employee of the vendor will not be binding on the vendor or us.
10. To the extent that any of the above paragraphs may be construed as being a contravention of any law of the State or the Commonwealth, such paragraphs should be read down, severed or both as the case may require and the remaining paragraphs shall continue to have full force and effect.
11. You may not discuss the Information or the proposed sale of the property with the vendors or with any agent, friend, associate or relative of the vendor or any other person connected with the vendor without our prior written consent. We accept no responsibility or liability to any other party who might use or rely upon this report in whole or part of its contents.
12. The Information must not be reproduced, transmitted or otherwise made available to any other person without our prior written consent.


