Skip to main content

Information Memorandum | 3/23-25 Kabi Circuit, Deception Bay | Ray White NCG

Page 1

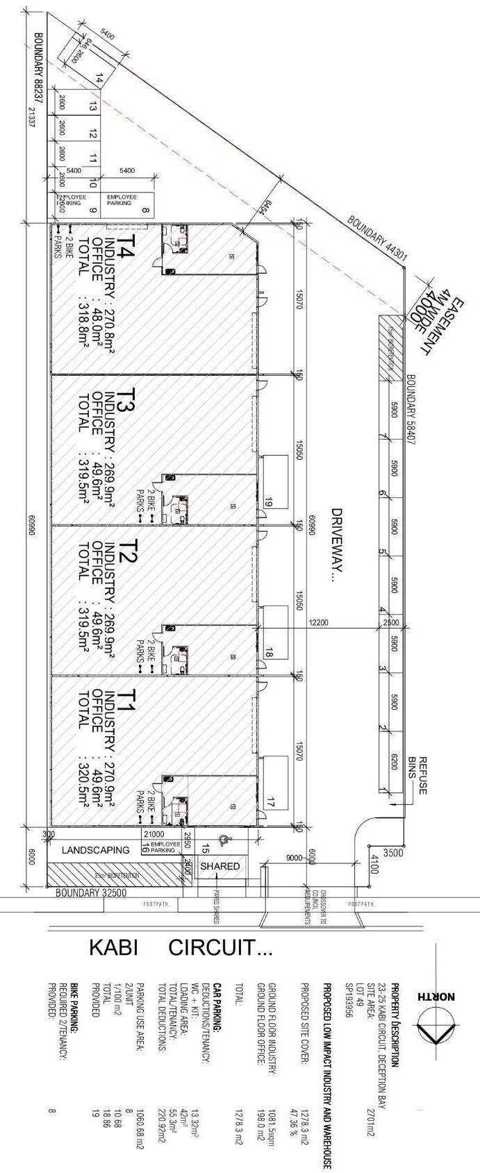
3/23-25 KABI CIRCUIT, DECEPTION BAY QLD 4508

Prepared by: Ray White Commercial Northern Corridor Group
INFORMATION MEMORANDUM

THE OPPORTUNITY

Ray White Commercial Northern Corridor Group are pleased to offer 3/23-25 Kabi Circuit, Deception Bay for Lease.

FEATURES:

- 320m2* total building area

- 270m2* warehouse area

- Quality 50m2* office

- 50m2* mezzanine floor designed to carry a load of up to 250kg/m2

- Container height roller door (5mx5m)

- Painted floors

- Internal amenities

- On site car parking

- High bay lighting

For more information please contact Troy Sturgess or Aaron Canavan.

*Approximate

EXECUTIVE SUMMARY

ADDRESS 3/23-25 Kabi Circuit, Deception Bay

PROPERTYDETAILS L3 SP305964

BUILDINGAREA 320m2* (270m2 warehouse & 50m2 office)

LOCALAUTHORITY Moreton Bay Regional Council

ZONING Light Industry

FOR LEASE $3,700 P/M Net

OUTGOINGS $1,029.35 P/M Net

* Approximately
* Approximately PLAN

The information contained in this Information Memorandum and any other verbal or written information given in respect of the property (“Information”) is provided to the recipient (“you”) on the following conditions:

1. North Coast Commercial Properties Pty Ltd trading as Ray White Northern Corridor Group and or any of its officers, employees or consultants (“we, us”) make no representation, warranty or guarantee, that the Information, whether or not in writing, is complete, accurate or balanced. Some information has been obtained from third parties and has not been independently verified. Accordingly, no warranty, representation or undertaking, whether express or implied, is made and no responsibility is accepted by us as to the accuracy of any part of this, or any further information supplied b y or on our behalf, whether orally or in writing.

2. All visual images (including but not limited to plans, photographs, specifications, artist impressions) are indicative only and are subject t o change. Any measurement noted is indicative and not to scale. All outlines on photographs are indicative only.

3. The Information does not constitute, and should not be considered as, a recommendation in relation to the purchase of the property or a solicitation or offer to sell the property or a contract of sale for the property.

4. You should satisfy yourself as t o the accuracy and completeness of the Information through your own inspections, surveys, enquiries, and searches by your own independent consultants, and we recommend that you obtain independent legal, financial and taxation advice. This includes as t o whether any listing price is inclusive or exclusive of GST.

5. We are not valuers and make no comment as to value. “S old/ leased” designations show only that stock is “currently not available” – no t that the property is contracted/ settled. If you require a valuation we recommend that you obtain advice from a registered valuer.

6. The Information does not and will not form part of any contract of sale for the property. If an interested party makes an offer or signs a contract for the property, the only information, representations and warranties upon which you will be entitled to rely will be as expressly set out in such a contract.

7. Interested parties will be responsible for meeting their own costs of participating in the sale process for the property. We will not be liable to compensate any intending purchasers for any costs or expenses incurred in reviewing, investigating or analysing any Information.

8. We will not be liable to you (to the full extent permitted by law) for any liabilities, costs or expenses incurred in connection with the Information or subsequent sale of the property whatsoever, whether the loss or damage arises in connection with any negligence, default or lack of care on our part.

9. No person is authorised to give information other than the Information in this Information Memorandum or in another brochure or document authorised by us. Any statement or representation by an officer, agent, supplier, customer, relative or employee of the vendor will not be binding on the vendor or us.

10. To the extent that any of the above paragraphs may be construed as being a contravention of any law of the State or the Commonwealth, such paragraphs should be read down, severed or both as the case may require and the remaining paragraphs shall continue to have full force and effect.

11. You may not discuss the Information or the proposed sale of the property with the vendors or with any agent, friend, associate or relative of the vendor or any other person connected with the vendor without our prior written consent. We accept no responsibility or liability to any other party who might use or rely upon this report in whole or part of its contents.

12. The Information must not be reproduced, transmitted or otherwise made available to any other person without our prior written consent.

DISCLAIMER

0447 744 948

aaron.canavan@raywhite.com

0432 701 600

troy.sturgess@raywhite.com

2/2-12 Alta Road, Caboolture QLD 4510

raywhitecommercialnortherncorridorgroup.com.au Aaron Canavan
* Outline and location indicative
Troy Sturgess

Turn static files into dynamic content formats.

Create a flipbook
Information Memorandum | 3/23-25 Kabi Circuit, Deception Bay | Ray White NCG by Ray White Commercial Northern Corridor Group - Issuu