Information Memorandum | 4&5/30 Main Street, Narangba | Ray White NCG

Page 1

4&5/30 Main Street, Narangba QLD 4504

I N F O R M A T I O N M E M O R A N D U M
Ray White Commercial Northern Corridor Group

T H E O P P O R T U N I TY

Ray White Commercial Northern Corridor Group are pleased to present 4 & 5/30 Main Street, Narangba for both lease & sale.

FEATURES:

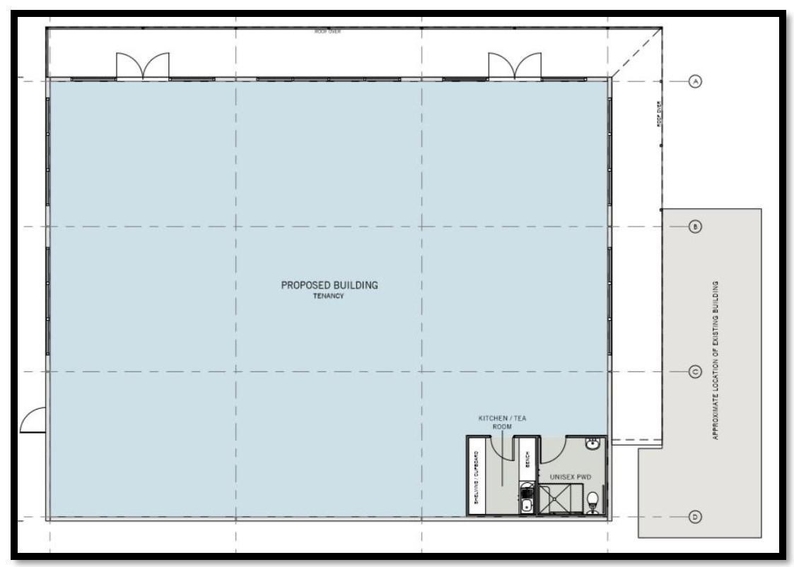
• 317m² of retail/office space

• Open plan area with the ability to be sold or leased separately

• Kitchenette

• Internal amenities

• 2 year leaseback to commence upon settlement of sale

• Located in Narangba Health Centre adjoining the Narangba Village Shopping Centre and directly opposite the Narangba Train Station

• Neighbouring businesses include Narangba Family Medical Practice and Pathology

• Surrounded by residential development with significant growth expected in this precinct

ADDRESS 4&5/30 Main Street, Narangba QLD 4504

PROPERTY DETAILS Lot 4 & 5 on proposed SP316098

BUILDING AREA Unit 4 - 159m² Unit 5 - 158m²

LOCAL AUTHORITY Moreton Bay Regional Council.

ZONING Urban Neighbourhood

OUTGOINGS $974.17 P/M (both units)

FOR LEASE Unit 4 $6,958.33 P/M Net Unit 5 $6,958.33 P/M Net

FOR SALE Contact Agent

E X E C U T I V E S U M M A R Y
F L O O R P L A N

D I S C L A I M E R

The information contained in this Information Memorandum and any other verbal or written information given in respect of the property (“Information”) is provided to the recipient (“you”) on the following conditions:

1. North Coast Commercial Properties Pty Ltd trading as Ray White Northern Corridor Group and or any of its officers, employees or consultants (“we, us”) make no representation, warranty or guarantee, that the Information, whether or not in writing, is complete, accurate or balanced. Some information has been obtained from third parties and has not been independently verified. Accordingly, no warranty, representation or undertaking, whether express or implied, is made and no responsibility is accepted by us as to the accuracy of any part of this, or any further information supplied b y or on our behalf, whether orally or in writing.

2. All visual images (including but not limited to plans, photographs, specifications, artist impressions) are indicative only and are subject t o change. Any measurement noted is indicative and not to scale. All outlines on photographs are indicative only.

3. The Information does not constitute, and should not be considered as, a recommendation in relation to the purchase of the property or a solicitation or offer to sell the property or a contract of sale for the property.

4. You should satisfy yourself as t o the accuracy and completeness of the Information through your own inspections, surveys, enquiries, and searches by your own independent consultants, and we recommend that you obtain independent legal, financial and taxation advice. This includes as t o whether any listing price is inclusive or exclusive of GST.

5. We are not valuers and make no comment as to value. “S old/ leased” designations show only that stock is “currently not available” – no t that the property is contracted/ settled. If you require a valuation we recommend that you obtain advice from a registered valuer.

6. The Information does not and will not form part of any contract of sale for the property. If an interested party makes an offer or signs a contract for the property, the only information, representations and warranties upon which you will be entitled to rely will be as expressly set out in such a contract.

7. Interested parties will be responsible for meeting their own costs of participating in the sale process for the property. We will not be liable to compensate any intending purchasers for any costs or expenses incurred in reviewing, investigating or analysing any Information.

8. We will not be liable to you (to the full extent permitted by law) for any liabilities, costs or expenses incurred in connection with the Information or subsequent sale of the property whatsoever, whether the loss or damage arises in connection with any negligence, default or lack of care on our part.

9. No person is authorised to give information other than the Information in this Information Memorandum or in another brochure or document authorised by us. Any statement or representation by an officer, agent, supplier, customer, relative or employee of the vendor will not be binding on the vendor or us.

10. To the extent that any of the above paragraphs may be construed as being a contravention of any law of the State or the Commonwealth, such paragraphs should be read down, severed or both as the case may require and the remaining paragraphs shall continue to have full force and effect.

11. You may not discuss the Information or the proposed sale of the property with the vendors or with any agent, friend, associate or relative of the vendor or any other person connected with the vendor without our prior written consent. We accept no responsibility or liability to any other party who might use or rely upon this report in whole or part of its contents.

12. The Information must not be reproduced, transmitted or otherwise made available to any other person without our prior written consent.

Aaron Canavan Commercial Principal 0447 744 948 aaron.canavan@raywhite.com Troy Sturgess Sales & Leasing Executive 0432 701 600 troy.sturgess@raywhite.com I N F O R M A T I O N M E M O R A N D U M Ray White Commercial Northern Corridor Group

Turn static files into dynamic content formats.

Create a flipbook
Issuu converts static files into: digital portfolios, online yearbooks, online catalogs, digital photo albums and more. Sign up and create your flipbook.