



![]()





Ray White Northern Corridor Group is pleased to offer 44 Alta Road, Caboolture for lease.
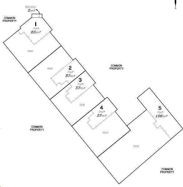
● 3 carefully designed & crafted units with office space remaining
● 24hr general industry zoning
● Internal amenities
● Double height roller doors
● Minutes to Bruce Highway
● Easy access to freeway, airport and public transportation
● Located in Corporate Park Estate
Our dynamic and acclaimed team strategically operates from three well-positioned offices spanning the South East Queensland Northern Corridor, dedicated to serving clients in the Sunshine Coast, Moreton Bay & North Brisbane regions.
For further information on this property please contact our marketing agents.



ADDRESS 44 Alta Road, Caboolture, QLD, 4510
PROPERTY DETAILS L39 SP317203
BUILDING AREA 240m²* to 272m²*
LOCAL AUTHORITY Moreton Bay City Council
ZONING General Industry
OUTGOINGS
LEASE & SALE PRICE
$40/m²* (approximately/estimate only)
See page 4 for availability & pricing
VIDEO Click here to view the video walk through










Corporate Park East is uniquely positioned to service one of the fastest growing corridors in the country.
The mega council region of Moreton Bay north of Brisbane is required to build another 88,300 homes over the next 22 years, according to the South East Queensland Regional Plan 2017.
During that time the council, which is already the third largest in Australia, is expected to grow from 459,600 to 690,000 residents – more than the state of Tasmania.
“There are few regions in the country more unanimously exciting than the Northern Corridor between Brisbane and the Sunshine Coast.”
- Ashley Rees, Senior Analyst Northern
Corridor Group






The information contained in this Information Memorandum and any other verbal or written information given in respect of the property (“Information”) is provided to the recipient (“you”) on the following conditions:
1. North Coast Commercial Properties Pty Ltd trading as Ray White Northern Corridor Group and or any of its officers, employees or consultants (“we, us”) make no representation, warranty or guarantee, that the Information, whether or not in writing, is complete, accurate or balanced. Some information has been obtained from third parties and has not been independently verified. Accordingly, no warranty, representation or undertaking, whether express or implied, is made and no responsibility is accepted by us as to the accuracy of any part of this, or any further information supplied b y or on our behalf, whether orally or in writing.
2. All visual images (including but not limited to plans, photographs, specifications, artist impressions) are indicative only and are subject t o change. Any measurement noted is indicative and not to scale. All outlines on photographs are indicative only.
3. The Information does not constitute, and should not be considered as, a recommendation in relation to the purchase of the property or a solicitation or offer to sell the property or a contract of sale for the property.
4. You should satisfy yourself as t o the accuracy and completeness of the Information through your own inspections, surveys, enquiries, and searches by your own independent consultants, and we recommend that you obtain independent legal, financial and taxation advice. This includes as t o whether any listing price is inclusive or exclusive of GST.
5. We are not valuers and make no comment as to value. “S old/ leased” designations show only that stock is “currently not available” – no t that the property is contracted/ settled. If you require a valuation we recommend that you obtain advice from a registered valuer.
6. The Information does not and will not form part of any contract of sale for the property. If an interested party makes an offer or signs a contract for the property, the only information, representations and warranties upon which you will be entitled to rely will be as expressly set out in such a contract.
7. Interested parties will be responsible for meeting their own costs of participating in the sale process for the property. We will not be liable to compensate any intending purchasers for any costs or expenses incurred in reviewing, investigating or analysing any Information.
8. We will not be liable to you (to the full extent permitted by law) for any liabilities, costs or expenses incurred in connection with the Information or subsequent sale of the property whatsoever, whether the loss or damage arises in connection with any negligence, default or lack of care on our part.
9. No person is authorised to give information other than the Information in this Information Memorandum or in another brochure or document authorised by us. Any statement or representation by an officer, agent, supplier, customer, relative or employee of the vendor will not be binding on the vendor or us.
10. To the extent that any of the above paragraphs may be construed as being a contravention of any law of the State or the Commonwealth, such paragraphs should be read down, severed or both as the case may require and the remaining paragraphs shall continue to have full force and effect.
11. You may not discuss the Information or the proposed sale of the property with the vendors or with any agent, friend, associate or relative of the vendor or any other person connected with the vendor without our prior written consent. We accept no responsibility or liability to any other party who might use or rely upon this report in whole or part of its contents.
12. The Information must not be reproduced, transmitted or otherwise made available to any other person without our prior written consent.






Chris Massie Director 0412 490 840 chris.massie@raywhite.com

Michael Nides
Sales & Leasing Associate 0468 517 956 michael.nides@raywhite.com
Troy Sturgess
Sales & Leasing Executive 0432 701 600 troy.sturgess@raywhite.com
Michaela Webb Senior Administrator 0409 202 066 michaela,webb@raywhite.com

James Garnett
Sales & Leasing Associate 0422 087 745
james.garnett@raywhite.com

Keegan Geary Administration Assistant 0432 676 889
keegan.geary@raywhite.com