1544 3rd Street South

Page 1


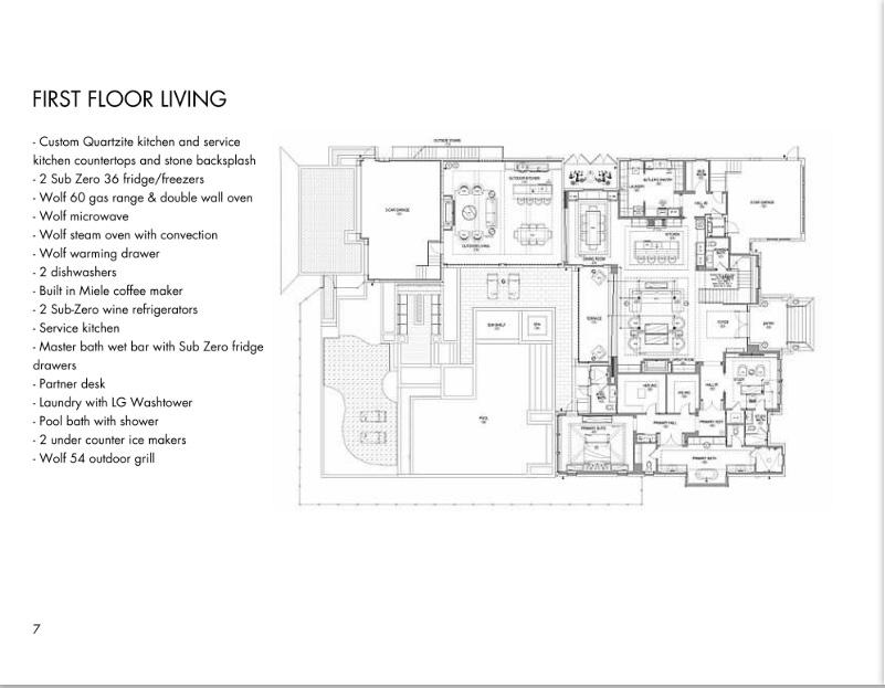
OUTDOOR KITCHEN
x

#6 14'-0" x 11'-11"

#3 14'-0" x 12'-11" UTILITY

x 9'-7"

BONUS/BED
BEDROOM
BEDROOM #5
BEDROOM #4

Turn static files into dynamic content formats.

CreateΒ aΒ flipbook
Issuu converts static files into: digital portfolios, online yearbooks, online catalogs, digital photo albums and more. Sign up and create your flipbook.