Documento Normativo - Arruamentos Urbanos 2022 IMT

Page 1

Documento normativo para aplicação a arruamentos urbanos FASCÍCULO II

Características geométricas para rodovias para tráfego motorizado Lisboa●junhode2020

DOCUMENTO NORMATIVO PARA APLICAÇÃO A ARRUAMENTOS URBANOS

DOCUMENTO NORMATIVO PARA APLICAÇÃO A ARRUAMENTOS URBANOS FASCÍCULO II –Características geométricas para rodoviascom tráfegomotorizado

Autoria

LABORATÓRIONACIONAL DE ENGENHARIA CIVIL DEPARTAMENTO DE TRANSPORTES

SandraVieira Gomes InvestigadoraAuxiliar, Núcleo dePlaneamento, Tráfego eSegurança

Carlos Roque

Bolseiro de Pós-Doutoramento, Núcleo dePlaneamento, Tráfego eSegurança

Elisabete Arsénio InvestigadoraAuxiliar, Núcleo dePlaneamento, Tráfego eSegurança

João Manuel SerraGarciaFerreira Bolseiro de Investigação, Núcleode Planeamento, Tráfego eSegurança

João Lourenço Cardoso InvestigadorPrincipal com Habilitação, Núcleo dePlaneamento, Tráfego e Segurança

Colaboração

LABORATÓRIONACIONAL DE ENGENHARIA CIVIL DEPARTAMENTO DE TRANSPORTES

CristinaSousa TécnicaSuperior

José Pereira Gil TécnicoSuperior

Cristina Cabral Assistente Técnica

PauloMiranda Assistente Técnico

Os direitos de propriedade intelectual incidentes sobre a integralidade da informação e resultados emergentes da execução do presente documento pertencem aoIMT, I. P, não podendo, quaisquer elementos ser utilizados para outros fins, sem prévia declaraçãoexpressa deste.

DOCUMENTO NORMATIVO PARA APLICAÇÃO A ARRUAMENTOS URBANOS

Fascículo II – Caraterísticas geométricas pararodovias com tráfegomotorizado

DOCUMENTONORMATIVOPARAPARAAPLICAÇÃOAARRUAMENTOS URBANOS

Fascículo II – Caraterísticas geométricas pararodovias com tráfegomotorizado

Resumo

O presente trabalho insere-se no âmbito de um protocolo entre o IMT - Instituto da Mobilidade e dos Transportes,I.P.(IMT)eoLaboratórioNacionaldeEngenhariaCivil(LNEC)edestina-seadarresposta à medida 25.92 do objetivo estratégico “Infraestruturas Mais Seguras” da Estratégia Nacional de SegurançaRodoviária–PENSE2020,consistindonaelaboraçãodeumanormatécnicaparaaplicação aarruamentosurbanos,quepossacontribuirparapromoveramelhoriadaseguranadarederodoviária municipal,designadamenteatravésdaadoção,no País,decritériosuniformesnodimensionamentodo traçado e no ordenamento da envolvente dos arruamentos urbanos, aspetos importantes para a obtenção de rodovias autoexplicativas necessárias para a pretendida abordagem do Sistema Seguro.

Anormatécnicaestáorganizadaem quatrofascículos,destinadosacontemplarosfundamentossobre utentes e rede rodoviária, as características geométricas para rodovias com tráfego motorizado e não motorizado e as medidas de acalmia de tráfego aplicáveis a cada tipo de arruamento.

Neste Fascículo II, relativo às caraterísticas geométricas para rodovias com tráfego motorizado, incluem-se considerações sobre as características dos diferentes tipos de vias, consoante o nível hierárquico, inclusive para atravessamentos de povoação e zonas de 30km/h. São também apresentados os elementos específicos para o transporte público (autocarros, elétricos e táxis) e para o estacionamento, relevantes para o adequado desenho da envolvente urbana.

Palavras-chave: Norma de traçado / Arruamentos urbanos / Ambiente rodoviário

DESIGNSTANDARDSFORURBANROADS

I

DOCUMENTO NORMATIVO PARA APLICAÇÃO A ARRUAMENTOS URBANOS

Fascículo II – Caraterísticas geométricas pararodovias com tráfegomotorizado

Booklet II –Geometric characteristicsfor roads with motorized vehicles

Abstract

This work refers tothe studyrequested totheNational CivilEngineering Laboratory, IP(LNEC) by IMT - Instituto da Mobilidade e dos Transportes, I.P. (the Portuguese Institute for Mobility and Transport), aiming at responding to the measure 25.92 of the strategic objective “Safer Infrastructures” of the NationalRoad Safety Strategy – PENSE2020, and falls within the scope of the protocol between these two institutions.

Thepurposeofthestudyistoelaborateatechnicalstandardforapplicationtourbanstreets,whichmay contribute to promote the improvement of the municipal road network, namely through the adoption of uniform criteriainthe dimensioning oftheroute and the planning oftheurbanstreet environment,atthe national level. These are essential aspects to obtain self-explanatory roads necessary for the intended Safe System approach.

Thetechnicalstandardisorganisedintofourvolumes,designedtocoverthefundamentalsofroadusers and the road network, the geometric characteristics for motorized and non-motorized roads, and traffic calming measures applicable to each street type.

In Volume II, about the geometric characteristics for roads with motorized vehicles, considerations are drawn on the characteristics of the different types of roads, depending on their hierarchical level, includingalsocross-townlinks(throughroads)and30km/hzones.Specificelementsforpublictransport (buses,tramsandtaxis)andforparking,relevantforthedesignoftheurbanroadenvironment,arealso presented.

Keywords: Design standard / Urban roads / Streets / Road environment

II

DOCUMENTO NORMATIVO PARA APLICAÇÃO A ARRUAMENTOS URBANOS

Fascículo II – Caraterísticas geométricas pararodovias com tráfegomotorizado

Lista de Abreviaturas

AASHTO – American Association of State Highway and Transportation Officials

ACAPO - Associação dos Cegos e Amblíopes de Portugal

acp - Aceleração Centrípeta

AIPCR – Association Mondiale de la Route

ANSR – Autoridade Nacional de Segurança Rodoviária

APA – Agência Portuguesa do Ambiente

ASVV – Recommendations for Traffic Provisions in Built up Areas

Austroads – Organisation of Road Transport and Traffic Agencies in Australia and NewZealand

BRT - Bus Rapid Transit

CCDR - Comissão de Coordenação e Desenvolvimento Regional

CE - Código da Estrada

CEREMA – Cerema Climat & Territoires de Demain

CERTU –Centred'Études sur les Réseaux,les Transports,l'Urbanismeet les Constructions Publiques

CRR - Centre de Recherches Routières

DF - Delimitação de Fronteira

DfT – Department for Transport

DGT – Direção Geralde Transportes de Genéve

DGV – Direção-Geralde Viação

DOT - Ordenamento do Tráfego

DV – Distância de visibilidade

DVC - Distância de Visibilidade para Manobra de Contorno

DVD - Distância de Visibilidade de Decisão

DVP – Distância de visibilidade de paragem

DVU - Distância de Visibilidade de Ultrapassagem

ECC - Estações Centrais de Camionagem

F – Força de Reação Centrífuga

Fat - Superfície do Pavimento

Fcp - Força Centrípeta

FHWA – FederalHighway Administration

FPH - Fator de Ponta Horário

ft - Coeficiente de Atrito Transversal

ftmax - Coeficiente de Atrito Transversal

g - Aceleração da Gravidade

HCM – Highway Capacity Manual (Manualde Capacidade de Estradas)

III

DOCUMENTO NORMATIVO PARA APLICAÇÃO A ARRUAMENTOS URBANOS

Fascículo II – Caraterísticas geométricas pararodovias com tráfegomotorizado

HMSO – Institution of Highways and Transportation

IC – Itinerário Complementar

IHIE – Institute of Highway Incorporated Engineers

IMT – Instituto da Mobilidade e dos Transportes, I.P

IMTT, I.P - Instituto de Mobilidade e Transportes Terrestres, I.P

InIR – Instituto das Infraestruturas Rodoviárias

IP – Itinerário Principal

ISA – Intelligent Speed Adaptation

ITE – Institute of Transportation Engineers

ITF – International Transport Forum

ITS – Inteligent Transport Systems (Sistemas Inteligentes de Transporte)

JAE – Junta Autónoma de Estradas

LNEC - Laboratório Nacional de Engenharia Civil, I.P

LRmáx – Comprimentomáximo do alinhamento reto

LRmín – Comprimento mínimo do alinhamento reto

LRV – Lombas Redutoras de Velocidade

LV – Limitação de Velocidades

M – Massa

MOP – Ministério das Obras Públicas

OE – Outras Estradas

OECD – Organization of Economic Cooperation and Development

ONU – United Nations Organization

P – Peso do Corpo

PDU – Plano de Deslocações Urbanas

PENSE – Plano Estratégico Nacional de Segurança Rodoviária

PIARC –Word Road Association

PMOT – Planos Municipais de Ordenamento do Território

PRP – Prevenção Rodoviária Portuguesa

PUV - Dispositivos para Passagens para Peões ou Ciclistas

R – Raio de Curvatura

RRN – Rede RodoviáriaNacional

RST – Regulamento de Sinalização e Trânsito

RT-SCIE - Regulamento Técnico de Segurança contra Incêndios

SA – Standards Australia

SAE – Societyof Automotive Engineers

Se – Sobrelevação

IV

DOCUMENTO NORMATIVO PARA APLICAÇÃO A ARRUAMENTOS URBANOS

Fascículo II – Caraterísticas geométricas pararodovias com tráfegomotorizado

SL – Sobrelargura

SMTC Tisséo – Tisséo Voyageurs, Tisséo Collectivités, Tisséo Ingenieire

SNRIPD - Secretariado Nacionalde Reabilitação e Integração das Pessoas com Deficiência

SWOV – Institute for Road Safety Research

TM - Tráfego Misto

TMD - Tráfego Médio Diário

TMDA - Tráfego Médio Diário Anual

TP - Transporte Público

TRB – Transportation Research Board

UITP – The International Association of Public Transport

V - Velocidade do Veículo

V85 - Percentil 85 da distribuição de velocidades

VB - Velocidade Base

VHP - Volume Horário de Projeto

VI - Velocípedes em Intersecções

VLE - Veículos Ligeiros Equivalentes

VSC - Velocípedes em Secção Corrente

VT – Velocidade não impedida

ZDC – Zonas de Coexistência

ZEDL – Zonas de Estacionamento de Duração Limitada

V
DOCUMENTO NORMATIVO PARA APLICAÇÃO A ARRUAMENTOS URBANOS Fascículo II – Caraterísticas geométricas pararodovias com tráfegomotorizado VI Índice 1 | Introdução .......................................................................................................................................1 2 | Características dos diferentes tipos de vias, consoante o nível hierárquico..................................4 2.1 Perfil transversal-tipo............................................................................................................4 2.1.1 Largura das vias de trânsito.....................................................................................6 2.1.2 Largura das vias cicláveis........................................................................................7 2.1.3 Largura dos passeios............................................................................................ 11 2.1.4 Estacionamento....................................................................................................13 2.1.5 Inclinações transversais........................................................................................ 14 2.1.6 Sobrelarguras ....................................................................................................... 14 2.1.7 Separadores .........................................................................................................15 2.1.8 Refúgios................................................................................................................ 17 2.1.9 Bermas e Lancis................................................................................................... 18 2.2 Traçado em planta............................................................................................................. 20 2.2.1 Alinhamentos retos............................................................................................... 20 2.2.2 Alinhamentos curvos............................................................................................. 21 2.2.3 Homogeneidade....................................................................................................21 2.3 Traçado em perfil longitudinal............................................................................................21 2.3.1 Trainéis.................................................................................................................22 2.3.2 Concordâncias verticais........................................................................................23 2.4 Cruzamentos...................................................................................................................... 24 2.4.1 Tipos de cruzamentos...........................................................................................25 2.4.2 Seleção, conceção e dimensionamento...............................................................28 3 | Atravessamentos de povoação....................................................................................................33 3.1 Enquadramento .................................................................................................................33 3.2 Soluções aplicáveis ........................................................................................................... 35 3.3 Seccionamento de um atravessamento urbano................................................................37 3.3.1 Zona de transição................................................................................................. 41 3.3.2 Portões..................................................................................................................45 3.3.3 Arruamento na zona urbana.................................................................................47 4 | Zonas 30 ...................................................................................................................................... 55 4.1 Conceito............................................................................................................................. 55 4.2 Bases e princípios para implementação............................................................................56 4.3 Medidas de Acalmia de Tráfego passíveis de aplicação................................................... 61 5 | Elementos específicos para transporte público........................................................................... 66 5.1 Paragem de transporte coletivo em zonas urbanas.......................................................... 67 5.1.1 Acessibilidade universal........................................................................................ 67 5.1.2 Tipologias das paragens....................................................................................... 69 5.1.3 Critérios para a configuração de uma paragem...................................................69 5.1.4 Paragem de autocarro em linha num sentido de circulação (Tipo A-1)............... 70 5.1.5 Paragem de autocarro em linha em ambos os sentidos de circulação (tipo A-2) 70
NORMATIVO PARA APLICAÇÃO A ARRUAMENTOS URBANOS Fascículo II – Caraterísticas geométricas pararodovias com tráfegomotorizado VII 5.1.6 Paragem de autocarro avançada com alargamento de passeio, estacionamento adjacente (Tipo B).................................................................................................71 5.1.7 Paragem de autocarro encaixada (Tipo C)........................................................... 71 5.1.8 Paragem de autocarro na proximidade de rotunda.............................................. 72 5.1.9 Paragem de autocarro na proximidade de intersecção........................................ 73 5.1.10 Paragens de autocarros na proximidade de passagem para peões....................74 5.1.11 Paragens de autocarros na proximidade de pistas cicláveis................................74 5.1.12 Medidas de prevenção do estacionamento ilegal em paragens de autocarro..... 75 5.2 Praças de táxis .................................................................................................................. 76 5.3 Abrigos para passageiros.................................................................................................. 76 5.4 Interfaces........................................................................................................................... 77 6 | Estacionamento............................................................................................................................ 80 6.1 Princípios gerais ................................................................................................................80 6.2 Tipos de Estacionamento.................................................................................................. 81 6.3 Características Físicas dos Lugares de Estacionamento.................................................. 88 6.3.1 Estacionamento de veículos ligeiros de passageiros........................................... 88 6.3.2 Estacionamento adaptado a pessoas com mobilidade condicionada..................91 6.3.3 Estacionamento de veículos motorizados de duas rodas.................................... 92 6.3.4 Estacionamento para carga e descarga de veículos pesados de mercadorias... 93 6.3.5 Zonas de paragem para tomada e largada de passageiros.................................97 Referências bibliográficas...................................................................................................................100
DOCUMENTO

DOCUMENTO NORMATIVO

PARA APLICAÇÃO A ARRUAMENTOS URBANOS

Fascículo II – Caraterísticas geométricas pararodovias com tráfegomotorizado

Índice defiguras

Figura 2.1 – Perfiltransversal tipo de faixas cicláveis (adaptado de AASHTO, 2012)............................8

Figura 2.2 – Perfiltransversal tipo de pistas cicláveis bidirecionais (adaptado de AASHTO, 2012).... 10

Figura 2.3 – Exemplo de distâncias de reserva e larguras efetivas de obstáculos (adaptado de TRB, 2010)..................................................................................................................................

Figura 2.4 – Exemplo de separador central com lancil (adaptado de AASHTO, 2012)

Figura 2.5 – Dimensões de refúgio para peões (adaptado de SNRIPD, 2006 e Seco, et al., 2008b). 18

Figura 2.6 – Velocidades de circulação, em função da largura da rua e da distância de visibilidade para a frente (Adaptado de York et al., 2007).

Figura 2.7

VIII
12
.......................
16
.................................................................. 20
30
3.1 – Seccionamento de um atravessamento urbano em zonas de intervenção distintas........ 39
3.2 – Localização de portão de entrada em trecho de atravessamento de espaço urbano (Silva et al., 2011a)......................................................................................................................41
3.3 – Entrada em ambiente urbano, com presença de uma rotunda (adaptado de Silva, et al., 2011b)................................................................................................................................ 42 Figura 3.4 – Disposição recomendada dos elementos verticais na aproximação do portão de entradas da zona urbana (adaptado de Silva, et al., 2011b)............................................................ 43 Figura 3.5 – Domínio de aplicação privilegiado das intersecções prioritárias (Department for Transport, 1995, referido em Silva, et al., 2011b).............................................................45 Figura 3.6 – Solução para limites de Zonas 30 com construção destacada da saída (CROW, 1998).51 Figura 3.7 – Solução simples para limites de Zonas 30 (CROW, 1998) ..............................................52 Figura 3.8 – Solução para limites de Zonas 30 com arcos ou edificações (CROW,1998).................. 52 Figura 3.9 – Solução para limites de Zonas 30 em secção corrente (CROW, 1998)...........................53 Figura 4.1 – Sinais de início e fim de Zona 30 (G4a e G10, respetivamente)...................................... 61 Figura 4.2 – Perfilde velocidades desejado numa Zona 30................................................................. 65 Figura 5.1 – Largura de vias bidirecionais (a) e unidirecionais (b) reservadas ao TC de passageiros (adaptado de CEREMA, 2016).......................................................................................... 66 Figura 5.2 – Largura do elétrico (CEREMA, 2016)............................................................................... 67 Figura 5.3 – Configuração de paragem de autocarro acessível........................................................... 68 Figura 5.4 – Configuração do cais acessível da paragem de autocarro (CEREMA, 2018).................. 68 Figura 5.5 – Configuração de uma paragem em linha sem estacionamento adjacente - Tipo A-1 (SMTC Tisséo, 2016).........................................................................................................70 Figura 5.6 – Configuração de paragens em linha em arruamento sem estacionamento de veículos na área adjacente – Tipo A-2 (adaptado de CEREMA, 2016)...............................................70 Figura 5.7 – Configuração de uma paragem sem estacionamento de veículos na área adjacente –Tipo B (adaptado de CEREMA, 2016)............................................................................... 71 Figura 5.8 – Configuração de uma paragem de fim de linha encaixada - Tipo C (adaptado de CEREMA, 2016) ................................................................................................................ 72 Figura 5.9 – Configuração de paragem de autocarro junto a rotunda (STIF, 2011))........................... 73 Figura 5.10 – Configuração de paragem de autocarro junto a interseção (CEREMA, 2018)............... 73 Figura 5.11 – Configuração de paragem com estacionamento alternado (SMTC Tisséo, 2016).........74 Figura 5.12 – Localização da paragem na proximidade de passagem para peões (CEREMA, 2018) 74
– Tipologia de cruzamentos admissíveis e sua capacidade potencial (adaptado de Seco et al., 2008c)..........................................................................................................................
Figura
Figura
Figura
Caraterísticas geométricas
tráfego
IX
DOCUMENTO NORMATIVO PARA APLICAÇÃO A ARRUAMENTOS URBANOS Fascículo II –
pararodovias com
motorizado
(CEREMA, 2018)...75
avançada de autocarro (Seco, A. et al., 2008)........................................................................................................75 Figura 5.15 – Paragem de autocarro acessível com abrigo (adaptado de CEREMA, 2018)............... 77 Figura 5.16 – Configuração geométrica de uma estação terminal de autocarros (SMTC Tisséo, 2016).................................................................................................................................. 79 Figura 6.1 – Configuração dos lugares de estacionamento e das vias de acesso em parque (Seco, A. et. al., 2008).......................................................................................................................86 Figura 6.2 – Parâmetros geométricos para a definição de lugares de estacionamento adjacentes à via pública (Seco, A. et. al., 2008)........................................................................................... 87 Figura 6.3 – Estacionamento longitudinal (adaptado de CEREMA, 2016)........................................... 88 Figura 6.4 – Estacionamento perpendicular (adaptado de CEREMA, 2016).......................................89 Figura 6.5 – Estacionamento oblíquo (adaptado de CEREMA; 2016) .................................................89 Figura 6.6 – Dimensões dos lugares acessíveis contíguos (SNRIPD, 2006).......................................92 Figura 6.7 – Estacionamento oblíquo de motos (adaptado de CEREMA, 2016)..................................92 Figura 6.8 – Estacionamento longitudinal de motos (adaptado de CEREMA, 2016)........................... 93 Figura 6.9 – Estacionamento de veículos pesados de mercadorias (INRS, 2010).............................. 94 Figura 6.10 – Estacionamento perpendicular de veículos pesados de mercadorias de grande dimensão considerando a área de varredura (adaptado de Littlefield, D., 2011)............. 95 Figura 6.11 – Estacionamento oblíquo de veículos pesados de mercadorias de grande dimensão (adaptado de Littlefield, D., 2011)...................................................................................... 96 Figura 6.12 – Exemplo de sinalização de zona de paragem para tomada ou largada de passageiros........................................................................................................................ 97
Figura 5.13 – Localização da paragem na proximidade de pistas para bicicletas
Figura 5.14 – Medida para prevenir o estacionamento ilegal em paragem

DOCUMENTO NORMATIVO

PARA APLICAÇÃO A ARRUAMENTOS URBANOS

Fascículo II – Caraterísticas geométricas pararodovias com tráfegomotorizado

Índice de quadros

Quadro 2.1 – Parâmetros de dimensionamento do perfil transversal tipo (adaptado de Portaria n.º 216-B/2008, de 3 de Março).................................................................................................5

Quadro 2.2 – Categorização funcional para as vias urbanas..................................................................5

Quadro 2.3 – Largura mínima das vias – vias reservadas a automóveis e motociclos (adaptado de CROW, 1998)........................................................................................................................6

Quadro 2.4 – Largura efetiva de obstáculos (TRB, 2010).

Quadro 2.5 – Distância de reserva de elementos da envolvente dos passeios (TRB, 2010)

Quadro 2.6 – Largura bruta de passeios em função do tipo de obstáculo (Seco, Macedo, Pires da Costa, 2008).......................................................................................................................

Quadro 2.7 – Largura bruta mínima de passeios em requalificação condicionada (Seco, Macedo, Pires da Costa, 2008)........................................................................................................

Quadro 2.8 – Largura mínima de separadores centrais em zonas urbanas (Austroads, 2017b).........

Quadro 2.9 – Afastamento entre a linha do lancile a via de trânsito (Austroads, 2017b)....................

Quadro 2.10 – Inclinação máxima desejável dos trainéis consoante o nível hierárquico.

Quadro 2.11 – Desenvolvimentomínimo

Quadro 2.14 – Rotunda (adaptado de Silva e Seco, 2008; Silva e Seco, 2012; Seco et al., 2008c; Austroads, 2017d)..............................................................................................................

Quadro 2.15 – Intersecção com sinalização luminosa (adaptado de Seco et al., 2008c, Pires da Costa et al., 2008; Austroads, 2017d)..........................................................................................

Quadro 2.16 – Intersecção com sinalização de cedência de prioridade ou “stop” (adaptado de Seco, Pais Antunes e Pires da Costa, 2008; Silva, Seco, Macedo, 2008, Austroads, 2017d)... 27

Quadro 2.17 – Intersecção com prioridade à direita (adaptado de Seco et al., 2008c; Silva, Seco, Macedo, 2008; Austroads, 2017d).....................................................................................

Quadro 2.18 – Tipologias possíveis para os cruzamentos admissíveis (adaptado de IMTT, I.P., 2011a)................................................................................................................................

Quadro 3.1 – Aplicabilidade recomendada por Silva, et al., 2001 para a adoção de variantes........... 37

Quadro 3.2 – Distâncias entre sinais de limitação de velocidade, para degradações de 20 km/h....... 39

Quadro 3.3 – Domínio de aplicabilidade de diversas medidas de acalmia de tráfego (Silva e Santos, 2011).................................................................................................................................. 49

Quadro 5.1 – Tipologia de paragem de transporte coletivo rodoviário (adaptado de CEREMA, 2018)72

Quadro 6.1 – Tipologia da oferta de estacionamento (Seco et al. , 2008)........................................... 82

Quadro 6.2 – Dimensionamento do número de lugares de estacionamento em função do tipo de ocupação (Portaria n.º 216-B/2008).................................................................................. 84

Quadro 6.3 – Parâmetros geométricos para dimensionamento dos lugares de estacionamento adjacentes à via pública (Seco, A. et. al., 2008)................................................................ 87

Quadro 6.4 – Dimensões do estacionamento segundo a tipologia (adaptado de IMTT, I.P., 2011e).90

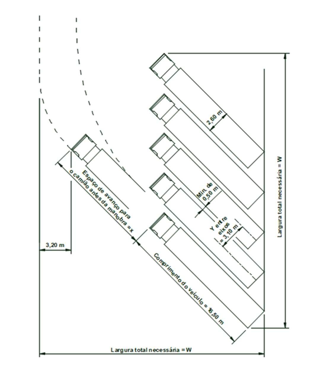
Quadro 6.5 – Espaço necessário para o estacionamento perpendicular de cinco veículos de transporte de mercadorias não refrigerado com 15 m de comprimento (Austroads, 2017d)................................................................................................................................

X
................................................................... 12
.............. 13
13
13
16
20
...................22
óptico) consoante o nível hierárquico.........................................................................................................................23 Quadro
aceleração vertical) consoante o nível hierárquico............................................................................................ 23
25
das concordâncias (conforto
2.12 – Raio equivalente mínimo das concordâncias (variação da
Quadro 2.13 – Desnivelamento (adaptado de Seco et al., 2008c, Austroads, 2017d).........................
26
27
28
29
95

DOCUMENTO NORMATIVO PARA APLICAÇÃO A ARRUAMENTOS URBANOS

Fascículo II – Caraterísticas geométricas pararodovias com tráfegomotorizado

Quadro 6.6 – Espaço necessário para o estacionamento oblíquo de cinco veículos de transporte de mercadorias não refrigerado com 15m de comprimento (Littlefield, D. , 2011)............... 96

XI

DOCUMENTO NORMATIVO PARA APLICAÇÃO A ARRUAMENTOS URBANOS

Fascículo II – Caraterísticas geométricas pararodovias com tráfegomotorizado

1| Introdução

O presente documento normativo insere-se no âmbito de um protocolo entre o Instituto da Mobilidade e dos Transportes, I.P. (IMT) e o Laboratório Nacional de Engenharia Civil (LNEC), tendo por objetivo a elaboração de uma norma técnica para aplicação a arruamentos urbanos, que possa contribuir para promover a melhoria da segurança da rede rodoviária municipal urbana, designadamente através da adoção, no País, de critérios uniformes no dimensionamento do traçado e no ordenamento da envolvente dos arruamentos urbanos, aspetos importantes para a obtenção de rodovias autoexplicativas e tolerantes, condição necessária para a obtenção do Sistema Seguro visado com a EstratégiaNacionaldeSegurançaRodoviária–PENSE2020.Otrabalhoinsere-senamedida25.92do objetivo estratégico Infraestruturas Mais Seguras desta estratégia.

A consecução de um Sistema Seguro baseia-se na aderência a um conjunto de quatro preceitos bem conhecidos: os seres humanos podem cometer erros que originem acidentes de viação; o corpo humanotem umacapacidade limitada para suportar as forças geradas num impacto sem sofrer lesões irreversíveis; é uma responsabilidade partilhada entre quem projeta, constrói, gere e usa as redes viáriaseosveículos,bemcomodequemprestaassistênciapós-acidente,prevenirquepossamocorrer acidentes que provoquem lesões graves ou mortais; todos os elementos do sistema devem ser reforçados para aumentar os seus efeitos, para que, se um elemento falhar, os utentes rodoviários continuem a estar protegidos (ITF, 2008 e ITF, 2016).

Na Holanda, por exemplo, estes preceitos têm correspondência prática em cinco princípios: monofuncionalidade das rodovias, numa rede estruturalmente hierarquizada; homogeneidade de massa, velocidade e direção para velocidades moderadas ou altas; traçados autoexplicativos, para gerarem previsibilidade dos trajetos rodoviários e do comportamento dos utentes; limitação da gravidadedaslesões,atravésdeenvolventerodoviáriatoleranteedaantecipaçãodoscomportamentos de condução; e autoconhecimento do estado dos condutores, dispondo estes da capacidade para avaliar em cada momento as suas capacidades para realizar a tarefa de condução (Wegman e Aarts, 2006).

Os quatro primeiros princípios referidos são relevantes para o projeto das rodovias urbanas e deles decorreumarecomendaçãoquantoàsvelocidadesmáximas(seguras)em situaçõesdetráfegotípicas (Cardoso, 2010): 30 km/h em redes viárias suscetíveis de ocorrerem conflitos entre veículos motorizados e utentes desprotegidos; 50 km/h, em interseções onde possam verificar-se conflitos laterais entre veículos ligeiros;70 km/h onde possam ocorrer conflitos frontais entreveículos ligeiros;e 100 km/h ou mais, quando não forem possíveis conflitos laterais ou frontais entre utentes rodoviários.

1

DOCUMENTO

NORMATIVO PARA APLICAÇÃO A ARRUAMENTOS URBANOS

Fascículo II – Caraterísticas geométricas pararodovias com tráfegomotorizado

Os mencionados preceitos e princípios são aplicados na abordagem do traçado de rodovias urbanas adotada na elaboração do presente documento normativo, em consonância com o PENSE 2020.

Esta norma técnica está organizada em quatro fascículos, em que se abordam os fundamentos sobre utentes e rede rodoviária, as características geométricas para rodovias com tráfego motorizado e não motorizado e as medidas de acalmia de tráfego e outros dispositivos rodoviários aplicáveis a cada tipo de arruamento.

NoFascículoIIapresentam-seoselementosrelativosàscaraterísticasgeométricaspararodoviascom tráfego motorizado, onde se incluem considerações sobre as características dos diferentes tipos de vias, consoante o nível hierárquico, incluindo os atravessamentos de povoação por estradas interurbanas, as zonas de 30 km/h e as zonas de coexistência. São também apresentados os elementos complementares, específicos para o transporte público (autocarros, elétricos e táxis) e para o estacionamento, igualmente relevantes para a conceção das envolventes rodoviárias urbanas. OselementosdisponibilizadosnesteFascículoIIdestinam-seapermitiraosutilizadoresdoDocumento Normativo incluir de forma integrada os tráfegos de peões, bicicletas, transportes públicos e outros veículos motorizados no projeto das rodovias urbanas, conciliando as respetivas visões e propiciando um Sistema Seguro, cuja circulação seja eficiente e sem prejuízo para a qualidade e a legibilidade do ambiente construído.

Neste sentido, para facilitar a obtenção de um sistema que sirva todos os utentes de uma forma equilibrada, é recomendável que o projeto de arruamentos urbanos se inicie pela consideração, sucessiva, dos elementos relativos aos peões, ciclistas, utentes de transportes públicos, veículos de emergência e serviços, terminando com os relacionados com os veículos automóveis (DfT, 2007). Destaformaassegura-sequeainfraestruturaprojetadairásatisfazerosrequisitosfuncionaisdepeões, ciclistas e utentes veículos de transporte público, para além dos associados aos ocupantes dos outros veículos motorizados (CROW,1998).

Na elaboração do presente documento foram consultadas diversas referências internacionais e nacionais relevantes, conforme lista bibliográfica. Os critérios e metodologias de abordagem dos documentosnacionaisnãosãosempreintegralmentecongruentes,oqueobrigou,porvezes,aacolher apenas as recomendações de um deles. A aderência aos preceitos e princípios do Sistema Seguro acima referidos foi o critério privilegiado para a escolha de parâmetros e metodologias de abordagem recomendados, obrigando, por vezes, a adotar recomendações de documentos internacionais correspondentes, casos que são devidamente assinalados.

NoCapítulo 2 deste FascículoIIabordam-se as características geométricas para rodovias com tráfego motorizado,designadamentequantoaoperfiltransversaltipo,traçadoemplantaeemperfillongitudinal, bem como a seleção e conceção de interseções. No Capítulo 3 são tratados os atravessamentos de

2

DOCUMENTO NORMATIVO PARA APLICAÇÃO A ARRUAMENTOS URBANOS

Fascículo II – Caraterísticas geométricas pararodovias com tráfegomotorizado

localidades por estradas interurbanas, incluindo as opções de abordagem do problema ao nível do planeamento e os aspetos de projeto das respetivas zonas terminais bem como do tratamento em secçãocorrente edas ligações à restante malha urbana.No Capítulo 4é abordadoo projeto de Zonas de 30 km/h, em secção corrente e nas transições para outras categorias de arruamentos. No Capítulo 5 são apresentados os elementos de projeto específicos para a integração do transporte público (autocarros e elétricos) na malha urbana e, finalmente, no Capítulo 6 são abordados os aspetos relacionados com o estacionamento e as zonas de paragem.

3

DOCUMENTO NORMATIVO PARA APLICAÇÃO A ARRUAMENTOS URBANOS

Fascículo II – Caraterísticas geométricas pararodovias com tráfegomotorizado

2| Características dos diferentestiposde vias, consoanteo nível hierárquico

2.1 Perfiltransversal-tipo

O perfiltransversal de umaestrada abrangetoda a largurada banda ocupada pela mesma(designada por zona da estrada), que foi expropriada ou afetada para esse fim, compreendendo uma zona destinada à circulação do tráfego – faixa de rodagem e passeios – ou ao apoio a essa circulação (bermas), euma zonanecessáriaparagarantir as condições deconstrução, conservação ouoperação da infraestrutura (separador, valetas, taludes e vedações).

Conforme referido no Fascículo I (capítulo 5.6), na definição de valores para a largura e inclinação transversal da faixa de rodagem, bermas e separador central atende-se, sobretudo, a critérios de segurança, de capacidade e de drenagem superficial. Na definição da configuração dos restantes elementos do perfil transversal de uma estrada são atendidos, para além dos critérios relacionados com a segurança rodoviária, requisitos construtivos (decorrentes dos solos escavados e dos materiais utilizados nos aterros) e de drenagem, a necessidade de proteção da natureza e dos terrenos circundantes, bem como as decisões ao nível do planeamento (relativamente à importância da ligação que a rodovia estabelece). O equilíbrio entre critérios adotado em cada caso atende, também, a preocupações económicas.

Por vezes, o somatório ideal das larguras dos elementos do perfil transversal excederá a largura disponível,seguindo-seum processoiterativodeotimizaçãodasoluçãotendo em contaos aspectosjá aludidos: a função, a segurança, o impacto ambiental, a economia e a estética (Austroads, 2017b).

De acordo com a Portaria n.º 1136/2011, de 25 de setembro, que fixa os parâmetros para o dimensionamento das áreas destinadas a espaços verdes e de utilização coletiva, infraestruturas viárias e equipamentos de utilização, são definidos três categorias de perfis transversais tipo com o critério básico diferenciador a depender da ocupação da envolvente: habitação (mais de 80%); habitação (menos de80%), comércioeou serviços;existência de indústria eou armazéns.NoQuadro 2.1apresentam-seosvaloreslimitesdosparâmetrosdedimensionamentodefinidosnareferidaportaria para cada tipo de ocupação.

4

DOCUMENTO NORMATIVO PARA APLICAÇÃO A ARRUAMENTOS URBANOS

Fascículo II – Caraterísticas geométricas pararodovias com tráfegomotorizado

* Para facilitar manobras de acesso de veículos articulados.

Importa referir que a dimensão exigida para os espaços de estacionamento corresponde apenas ao estacionamento longitudinal e os valores do dimensionamento de áreas destinadas a arruamentos podem não ser aplicáveis em áreas urbanas consolidadas ou com alinhamentos definidos. É de salientar que, conforme referido em 2.1.1, larguras de via superiores a 3,0 m só devem ser usadas se o limite de velocidade for superior a 50 km/h.

No Quadro 2.2 apresentam-se as principais características das diferentes categorias de vias urbanas, de acordo com o definido no capítulo 2.3 do Fascículo I.

Quadro 2.2 – Categorização funcional para as vias urbanas

(*) Nota: em diversos países não é preconizado um valor para a velocidade máxima nesta categoria de arruamentos, que é estabelecida apenas deforma qualitativa,como acompatível com acorrespondente à caminhada a passo.

5
Tipo de ocupação Perfil tipo (m) Faixa de rodagem (m) Passeios (m) Estacionamento (m) Caldeiras para árvores (m) Habitação(maisde 80%) ≥9,7 6,5 1,6(x2) 2,25(x2) (opcional) 1,0(x2) (opcional) Habitação(menosde 80%),comércioeou serviços ≥12 7,5 2,25(x2) 2,25(x2) (opcional) 1,0(x2) (opcional) Existênciadeindústria eouarmazéns ≥12,2 9* 1,6(x2) 2,5(x2) (opcional) 1,0(x2) (opcional)
Quadro 2.1 – Parâmetros de dimensionamento do perfil transversal tipo (adaptado de Portaria n.º 216-B/2008, de 3 de Março)
Categoria Subcategoria Função principal Tipo de separador Plataforma típica Número usual de faixas Controlo de acessos Velocidade máxima (km/h) Rodovia UrbanaNívelI Mobilidade Não atravessável nx2 2 Sim 80 Arruamento NívelII Distribuição Sem separador n+n 1 Não 50 Arruamento NívelIII Acesso Sem separador n+n 1 Não 50 Arruamento residencial NívelIV RuaemZona 30 Sem separador 1+1 1 Não 30 Ruade Coexistência Sem separador 1+1 1 Não 20*

DOCUMENTO NORMATIVO PARA APLICAÇÃO A ARRUAMENTOS URBANOS

Fascículo II – Caraterísticas geométricas pararodovias com tráfegomotorizado

De seguida, são descritas as características dos diferentes elementos que podem constituir o perfil transversal-tipo.

2.1.1 Larguradasviasdetrânsito

Em geral, quanto maiores forem as larguras das vias de trânsito, maior será a velocidade praticada pelos condutores, pelo que este parâmetro constitui um dos instrumentos possíveis de controlo da velocidade, pese ainda a relevância da composição do tráfego. Larguras de via superiores a 3,50 m contribuem para que os condutores escolham velocidades elevadas, uma vez que se sentem menos constrangidos, pelo que não devem ser adotadas em arruamentos urbanos. Larguras menores (3,00 m) podem ser usadas em arruamentos e estradas com baixo volume de tráfego ou velocidade de circulação.

Larguras de viaaté2,75m poderãoser usadas nos atravessamentosurbanos por estradasdefaixade rodagem única e duas vias, desde que estes sejam dotados de passeios, como forma de limitar a liberdade de escolha da trajetória dos veículos (Macedo, Cardoso e Roque, 2011) e de condicionar a escolha de velocidades pelos condutores de veículos ligeiros ou pesados.

Em estradas de dupla faixa de rodagem, sujeitas a fortes condicionamentos de implantação, a via esquerda das faixas com três ou mais vias pode ter largura ligeiramente inferior à das restantes vias.

Em redes viárias existentes, a diminuição da largura das vias pode ser obtida mediante alargamento dos passeios ou das bermas ou, no caso de faixa de rodagem única, preferencialmente através da criação de uma banda central só utilizávelem manobras de viragem à esquerda ou de ultrapassagem. Alternativamente, também pode ser obtida mediante afetação do espaço libertado para instalação de faixas cicláveis.

No Quadro 2.3 são apresentadas as larguras mínimas de vias reservadas a automóveis e motociclos consoante a categoria hierárquica da via. É de referir que o valor usado como referência na Holanda (CROW, 1998) em arruamentos de nível II e III é de 3.10 m.

Quadro 2.3 – Largura mínima das vias – vias reservadas a automóveis e motociclos (adaptado de CROW, 1998)

6
Categoria Velocidade base (km/h)* Largura (m) RodoviaUrbanaNívelI 70 3,25 ArruamentoNívelII 50 3,00 ArruamentoNívelIII 50 3,00

DOCUMENTO NORMATIVO PARA APLICAÇÃO A ARRUAMENTOS URBANOS

Fascículo II – Caraterísticas geométricas pararodovias com tráfegomotorizado

2.1.2 Larguradasviascicláveis

Conforme mencionado no capítulo 5 do Fasciculo I, são habitualmente consideradas três tipologias de percursos para ciclistas: via banalizada, faixa ciclável e pista ciclável.

A escolha da tipologia aplicável está associada à forma como se pretende resolver os conflitos entre veículos motorizados e bicicletas, a qual depende da relevância da função do tráfego motorizado e da função da bicicleta (CROW, 1998).

No caso das vias banalizadas, as bicicletas circulam no mesmo espaço que os veículos motorizados, não havendo reserva de espaço mediante marcação rodoviária.

Nocasodasfaixascicláveis,existeum espaçodestinado àcirculação(unidirecional)de bicicletas,que faz parte da faixa de rodagem e é delimitado através de marcas rodoviárias. As larguras das faixas cicláveis devem ser determinadas pelo contexto e pelo uso do solo previsto para a envolvente (AASHTO. 2012). O volume de tráfego, a sua composição (designadamente em termos de veículos pesados), as velocidades de circulação previstas e a função principal da via afetam significativamente o conforto dos ciclistas e a necessidade de afastamento lateral face a outros veículos. A largura adequada das faixas cicláveis deve levar em conta as características de desenho urbano a partir do seu limite direito, tais como a presença de passeio, lancil, estacionamento ou guarda-corpos. A Figura 2.1 ilustra dois locais típicos para as faixas cicláveis em relação ao resto da faixa de rodagem, e as larguras associadas a esta tipologia de percurso.

7

DOCUMENTO NORMATIVO PARA APLICAÇÃO A

ARRUAMENTOS URBANOS

Fascículo II – Caraterísticas geométricas pararodovias com tráfegomotorizado

Conforme mencionado em 3.3.1 do Fascículo I, a largura operacional recomendável para acomodar a deslocação da maioria dos ciclistas é de 1,5 m. Assim, na maioria das circunstâncias, a largura recomendada para as faixas cicláveis é de 1,5 m. Faixas cicláveis mais largas podem ser desejáveis nas seguintes condições (AASHTO, 2012):

 Junto a estacionamento longitudinal com elevada rotatividade (e.g., na proximidade de restaurantes,lojas ou locais deentretenimento).Nesta situação recomenda-se uma largurada faixa ciclável de 2,5 m, a qual proporciona mais espaço para os ciclistas (1,0 m de zona de proteção), evitando a circulação na área de abertura das portas dos veículos.

 Em áreascom elevadotráfegodebicicletasesem apresençadeestacionamento.Nestecaso, preconiza-se uma largura da faixa ciclável entre 1,8 m e 2,4 m, para possibilitar que dois ciclistas andem lado a lado sem sair da faixa.

 Em rodovias urbanas de Nível I com limite de velocidade não superior a 50 km/h e elevado volume detráfegomotorizado (em particular deveículos pesados),faixas cicláveismais largas proporcionam separação lateral adicional entre veículos motorizados e bicicletas, para

8
Figura 2.1 – Perfil transversal tipo de faixas cicláveis (adaptado de AASHTO, 2012).

DOCUMENTO NORMATIVO PARA APLICAÇÃO A ARRUAMENTOS URBANOS

Fascículo II – Caraterísticas geométricas pararodovias com tráfegomotorizado

minimizar o efeito, e.g., da deslocação do ar provocada pelos veículos motorizados ou por rajadas de vento.

Para arruamentos com limite de velocidade não superior a 50 km/h, sem lancis ou valetas e sem presença de estacionamento, a largura mínima de uma faixa ciclável é de 1,2 m.

Paraarruamentos ondeafaixacicláveléimediatamenteadjacentea um lancil,guarda-corpos ououtra superfície vertical, a largura mínima da ciclovia é de 1,5 m (ver Figura 2.1). Existem duas exceções a esta largura mínima (AASHTO, 2012):

 Em locais com velocidades de circulação elevadas, onde é utilizada uma valeta (com pano interior de pequena inclinação) de 0,6 m de largura, a largura recomendável da faixa é de 1,8 m, incluindo a valeta.

 Em arruamentos de largura bastante reduzida e com baixas velocidades de circulação, com lancil mas sem valeta, sempre que a largura recomendável da faixa ciclável não possa ser atingida,etodasasviasdetrânsitotenhamalarguramínima,podeserusadaumafaixaciclável com 1,2 m de largura.

Em arruamentos onde o estacionamento longitudinal é permitido, a faixa ciclável deve ser colocada entre o estacionamento e a via de trânsito (ver Figura 2.1). A largura operacional mínima na presença de estacionamento longitudinal é de 2,2 m e a recomendável é de 2,5 m.

Finalmente, as pistas cicláveis constituem um canal de circulação segregado relativamente ao tráfego motorizado (com separação física do espaço rodoviário), podendo a circulação ser uni ou bidirecional.

A largura pavimentada apropriada para uma pista ciclável depende do contexto, do volume de tráfego e da composição dos seus utilizadores. A largura mínima pavimentada para uma pista ciclável bidirecional é de 3,0 m (CROW, 1998; AASHTO, 2012). Normalmente, esta largura pode variar entre 3,0 e 4,3 m, sendo os valores mais elevados aplicáveis a áreas com elevada utilização ou maior variedade de grupos de utilizadores (com velocidades de circulação diferentes). A Figura 2.2 mostra uma secção transversal típica de pista ciclável bidirecional.

9

DOCUMENTO NORMATIVO PARA APLICAÇÃO A ARRUAMENTOS URBANOS

Fascículo II – Caraterísticas geométricas pararodovias com tráfegomotorizado

A largura de uma pista ciclável bidirecional pode ser reduzida para 2,4 m quando estiverem reunidas as seguintes condições:

 O tráfego de bicicletas é previsivelmente baixo, mesmo em dias de maior procura ou durante as horas de ponta.

 Não é expectável a utilização da pista por peões.

 Osalinhamentoshorizontaleverticalproporcionamoportunidadesdeultrapassagemeexistem zonas de descanso frequentes e bem dimensionadas.

 Apistanãoserásubmetidaregularmenteàpassagem deveículosdemanutençãoquepossam causar danos no pavimento, em particular junto aos seus limites.

Alargurade2,4m numapistaciclávelbidirecionaléaceitávelnumadistânciacurta,devidoarestrições físicas pontuais (e.g., o pilar de ponte ou uma árvore).

Conforme referido no capítulo 3.3.1 do Fascículo I, as larguras operacionais mínima e recomendável para acomodar a deslocação de um ciclista são de 1,2 m e 1,5 m, respetivamente. Dada a elevada probabilidade da presença de obstáculos (contínuos ou pontuais) na envolvente das pistas cicláveis (postes, muros, árvores, sinalização vertical, etc.), a largura mínima pavimentada de pistas unidirecionais é de 1,75 m, sendo recomendáveluma largura de 2,0 m (CROW,1998).

10
Figura 2.2 – Perfil transversal tipo de pistas cicláveis bidirecionais (adaptado de AASHTO, 2012).

DOCUMENTO NORMATIVO PARA APLICAÇÃO A ARRUAMENTOS URBANOS

Fascículo II – Caraterísticas geométricas pararodovias com tráfegomotorizado

2.1.3 Larguradospasseios

Na conceção de qualquer espaço pedonal há que adequar a área disponível às suas diferentes utilizações, sejam elas de circulação ou espera, mas também (usufruto) para visualização de montras ou conversas em grupo (Seco et. al, 2008).

Nos passeios, a presença de diversos obstáculos, tais como mobiliário urbano e vegetação, impede a utilização pelos peões de todo o espaço disponível. Também os limites do passeio junto à faixa de rodagem e às fachadas dos edifícios constituem obstáculos, pelo que os peões normalmente tendem a evitar circular muito próximo deles.

Assim, justifica-se a necessidade do conceito de largura útil de um passeio. Esta largura corresponde ao espaço efetivamente disponível para a deslocação e realização de atividades dos peões, ao qual acrescem as larguras perdidas, para se poder calcular a largura bruta, correspondente à largura total do passeio (TRB, 2010; IMTT, I.P., 2011c).

A frequência com que os obstáculos estão presentes no passeio influencia a largura útil deste. A presença de um obstáculo isolado, e.g., um quiosque, tem uma influência localizada, não afetando significativamenteofuncionamentoglobaldeumpasseio.Pelocontrário,umobstáculocontínuoouque se repita de forma periódica, como por exemplo, muretes, árvores ou candeeiros, afeta globalmente o seu funcionamento.

De acordo com o Decreto-Lei n.º 163/2006, de 8 de Agosto (alterado pelo Decreto-Lei n.º 136/2014 de 7 de janeiro de 2015, pelo Decreto-Lei n.º 125/2017 de 4 de outubro e pelo Decreto-Lei n.º 95/2019 de 18 de junho), os passeios que se encontrem adjacentes a vias principais e vias distribuidoras devem terumalarguralivre(correspondenteàlarguraútil)nãoinferiora1,5m,enquantoospequenosacessos pedonais no interior de áreas plantadas, cujo comprimento total não seja superior a 7,0 m, podem ter uma largura livre não inferior a 0,9 m.

Conforme referido em 2.1, e de acordo com os parâmetros estabelecidos na Portaria n.º 216-B/2008 de 3 de abril, o valor mínimo a considerar na largura dos passeios é de 1,6 metros. Sempre que o passeio inclua um espaço permeável para caldeiras para árvores, deve aumentar-se 1,0 m à largura do passeio.

Para o cálculo da largura dos passeios é relevante o conhecimento da largura efetiva dos vários tipos deobstáculos,aqualinclui,paraalém dalargurafísicadoobstáculo,umadistânciacorrespondenteao espaçoquenãoéusadopelospeões em condições normais(distânciadereserva) -ver Figura2.3.Na ausência de valores definidos no contexto nacional, apresentam-se no Quadro 2.4 e, valores de referência americanos para a largura efetiva de diversos obstáculos. No Quadro 2.5 é apresentada a

11

DOCUMENTO NORMATIVO PARA APLICAÇÃO A ARRUAMENTOS URBANOS

Fascículo II – Caraterísticas geométricas pararodovias com tráfegomotorizado

distância de reserva para elementos da envolvente dos passeios, que apesar de não constituírem obstáculos no interior do canal, influem no espaço de circulação pedonal.

12
Figura 2.3 – Exemplo de distâncias de reserva e larguras efetivas de obstáculos (adaptado de TRB, 2010)
Obstáculo Largura efetiva (m) Mobiliário urbano Postedeiluminação 0,75–1,00 Postedesemáforo 0,90–1,20 Sinalizaçãovertical 0,60–0,75 Parquímetro 0,60 Cabinatelefónica 1,2 Caixotedolixo 0,90 Marcodeincêndio 0,75–1,00 Marcodocorreio 1,00–1,10 Pilarete 0,55–0,80* Sistemas de transporte subterrâneos Grelhasdeventilaçãodometropolitano 1,80+ Vegetação Árvores 0,90–1,20 Canteiro 1,5 Usos comerciais Quiosques 1,2–4,0 Esplanadasdecafés(2filasdemesas) 2,1 * Estimativa LNEC
Quadro 2.4 – Largura efetiva de obstáculos (TRB, 2010).

DOCUMENTO NORMATIVO PARA APLICAÇÃO A ARRUAMENTOS URBANOS

Fascículo II – Caraterísticas geométricas pararodovias com tráfegomotorizado

Quadro 2.5 – Distância de reserva de elementos da envolvente dos passeios (TRB, 2010)

Tendoemcontaaocupaçãoespacialdopeão(FascículoI,capítulo3.2.2),sãoapresentadosnoQuadro 2.6 valores de referência para a largura bruta de passeios aplicáveis em diversos tipos de passeios.

Quadro 2.6 – Largura bruta de passeios em função do tipo de obstáculo (Seco, Macedo, Pires da Costa, 2008).

Sempre que tais valores não sejam fisicamente viáveis, nomeadamente na requalificação de espaços urbanosmenosordenados masjáconsolidados, aslargurasmínimasaadotarsãoasapresentadasno Quadro 2.7.

Quadro 2.7 – Largura bruta mínima de passeios em requalificação condicionada (Seco, Macedo, Pires da Costa, 2008).

2.1.4 Estacionamento

O dimensionamento dos lugares de estacionamento para veículos ligeiros na via pública é tratado no capítulo 6 do presente fascículo. A largura dos lugares de estacionamento deve atender ao uso e

13
Elemento Distância de reserva (m) Lancilsobrelevado 0,50 Muro,sebe 0,50 Fachadadeedifíciocommontra 0,60
Tipo de passeio Largura desejável (m) Largura aceitável (m) Passeiosemmobiliáriourbano,árvoresoumontras 2,0 1,5 Passeiocomfiladeárvoresoudemontras 3,0 2,5 Passeiocomfilasdeárvoresemontras 4,0 3,5
Tipo de passeio Largura desejável (m) Largura aceitável (m) Passeiosemobstruções 1,2 1,0 Trechodecomprimentoinferiora10mjuntoaumaobstrução
0,8
-

DOCUMENTO NORMATIVO PARA APLICAÇÃO A ARRUAMENTOS URBANOS

Fascículo II – Caraterísticas geométricas pararodovias com tráfegomotorizado

ocupação do solo, tipos de utilizadores, considerando os parâmetros geométricos que constam na Figura 6.2 e os valores mínimos e máximos respetivos que constam no Quadro 6.3 (ver capítulo 6.3).

2.1.5 Inclinaçõestransversais

Conforme referido no capítulo 5.6.3do Fascículo I, a inclinaçãotransversaldasuperfíciedo pavimento da faixa de rodagem e das bermas destina-se a assegurar a conveniente drenagem superficial e, no caso de curvas em planta, também para disponibilizar sobrelevação que contribua para gerar a aceleração centrípeta associada à trajectória curvilínea imposta nessas curvas (Macedo, Cardoso e Roque, 2011).

Nos alinhamentos retos os requisitos de drenagem determinam a inclinação transversal a adoptar, verificando-se que aqueles dependem sobretudo do tipo de pavimento e das suas características superficiais. A inclinação transversal deve ser de 2,5% nos pavimentos betuminosos e de 2,0 % nos pavimentos de betão de cimento.

Nos arruamentos com duas vias a superfície do pavimento é normalmente inclinada para ambos os lados a partir do eixo (perfil em “V” invertido), o que permite diminuir o comprimento de drenagem.

Nas estradas com faixas de rodagem unidireccionais o pavimento de cada faixa de rodagem é, em princípio, inclinado para o exterior. Esta solução, apesar de estar associada a maior comprimento de drenagem do que a configuração com duas superfícies de drenagem, tem a vantagem de não impor variações na aceleração transversal aos veículos que mudam de via e o consequente perigo de instabilização das viaturas por rolamento excessivo – designadamente em manobras de ultrapassagem,muito frequentes em estradas com dupla faixa de rodagem (Macedo et al., 2011).

Amelhoriadadrenagemsuperficialpodeserobtidamedianteaadopçãodeinclinaçõesmaioresdoque 2,5% (até ao máximo de 4%) nas vias mais a jusante do caminho de drenagem, da colocação de pavimentos porosos ou da instalação de drenos superficiais ou sub-superficiais.

A inclinação transversal dos passeios é tratada no Fasciculo III (capítulo 2.3).

2.1.6 Sobrelarguras

Conforme referido no capítulo 5.3.5 do Fascículo I, os veículos ao descreverem uma curva ocupam uma maior largura de faixa de rodagem do que quando circulam em reta. Este aumento da largura ocupada depende basicamente do raio da curva e do comprimento e distância entre eixos do veículo. Em curvas de raio corrente, este aumento de largura é desprezável para veículos ligeiros; no entanto, ésignificativoparaosveículospesados,especialmentesearticuladosoucom reboques,peloquedeve ser considerado.

14

DOCUMENTO NORMATIVO PARA APLICAÇÃO A ARRUAMENTOS URBANOS

Fascículo II – Caraterísticas geométricas pararodovias com tráfegomotorizado

A sobrelargura total (SL, expressa em metros), para estradas com duas vias, pode ser calculada pela expressão empírica:

SL = 80 / R (2-1) em que o R é o raio da curva, em metros.

A sobrelargura é normalmente introduzida no intradorso da curva, sendo o seu desenvolvimento efectuado ao longo das curvas de transição.

Não é de considerar sobrelargura nas curvas com raio superior a 200 m.

Os aspectos relacionados com a sobrelargura são especialmente importantes em intersecções e nós de ligação, onde os raios de curvatura são, por vezes muito pequenos (Macedo et al., 2011). Nesses casos, é conveniente que a sobrelargura seja dimensionada mediante cálculo das zonas de varredura dos veículos-tipo relevantes, recorrendo às cérceas disponibilizadas no Fascículo I ou a aplicações de desenho específicas.

2.1.7 Separadores

Conformereferidonocapítulo5.6.5doFascículoI, oseparadordestina-seagarantiraseparaçãofísica entre os dois sentidos de tráfego. Preferencialmente, o separador deve ser desprovido de obstáculos perigosos mas, sob determinadas condições, pode ser usado para impantação de equipamentos rodoviários, como suportes de sinalização e pilares de viadutos.

O separador não inclui as bermas pavimentadas, pelo que a sua largura só abrange as zonas laterais às bermas esquerdas ou seja, as ligações entre essas bermas e os taludes ou valetas, bem como o espaço intermédio.

Nocasodeobrasdearteindividualizadasparacadafaixaderodagem,mascompequenoafastamento transversal, deve ser previsto o fecho das aberturas com rede (“rede de segurança”) com capacidade resistente e malha adequadas à função de limitar o perigo de queda de pessoas e objectos.

As larguras mínimas recomendadas, medidas entre os limites de lancis, na ausência de critérios prédefinidos(verRoqueeCardoso,2011),sãoapresentadasnoQuadro2.8.Pararestringirosmovimentos transversais nas principais vias urbanas, recomenda-se o uso de separador central com lancil, conformemostrado na Figura 2.4 (Austroads, 2017b).

15

DOCUMENTO NORMATIVO PARA APLICAÇÃO A ARRUAMENTOS URBANOS

Fascículo II – Caraterísticas geométricas pararodovias com tráfegomotorizado

1 Largura medida até ao limite da faixa de rodagem.

2 Apenas adequado em alinhamento reto para locais com limitações de espaço, baixa velocidade de circulação. A barreira deve ter aparência urbana.

16
do
Largura mínima (m) Adjacenteaviadeesperadeviragemàesquerda 0,5 Separaçãodefluxosdetráfegocomumabarreiradetráfegorígida1 0,82 Instalaçãodesinalizaçãoverticaldepequenadimensão 1,2 Instalaçãodepostesdeiluminação 2,0 Refúgioparapeõesesinaisdetrânsito 2,5 Refúgioparapeões,passagempedonaldenívelcomumaplacacentralderefúgiodos peões 4,0 Refúgioparaviragemdeveículosesinaisdetrânsito 6,0 Refúgioparaveículosquecruzamoseparador 7,0 Plantaçãoedrenagem 10,0 Áreaderecuperaçãodocontrolodeviaturasdespistadas 20,0
Quadro 2.8 – Largura mínima de separadores centrais em zonas urbanas (Austroads, 2017b).
Função
separador central
Figura 2.4 – Exemplo de separador central com lancil (adaptado de AASHTO, 2012)

DOCUMENTO NORMATIVO PARA APLICAÇÃO A ARRUAMENTOS URBANOS

Fascículo II – Caraterísticas geométricas pararodovias com tráfegomotorizado

Noquedizrespeitoarodovias urbanas deNívelI,em zonas nãoiluminadas e com lancil,é necessário um espaçamento lateral de 0,5 m até ao separador central.

2.1.8 Refúgios

A implantação de uma placa central de refúgio para peões permite que um atravessamento possa ser feito em duas fases, aumentando as condições de segurança ao diminuir a necessidade de avaliar as condiçõesdecirculaçãoemambosossentidos(Seco etal.,2008c).Estasoluçãodeveserconsiderada nas seguintes situações:

 Em arruamentos com quatro ou mais vias;

 Em arruamentos em que a velocidade do tráfego motorizado seja elevada (não inferior a 50 km/h) e em que o volume de peões seja significativo;

 Nos casos em que exista elevado volume de peões com requisitos especiais.

Os refúgios também permitem simplificar e tornar mais seguros os atravessamentos, através da redução da largura da via e do respetivo efeito visual, que contribuem para a redução de velocidade dos veículos motorizados, e colocam à disposição do peão áreas de espera que os tornam mais visíveis, melhorando as suas condições de conspicuidade (IMTT, I.P., 2011c).

Os refúgios de peões devem ser instalados respeitando as seguintes condições (Seco et al., 2008b):

 Colocação de sinais verticais de contorno de obstáculo;

 Existência de boa iluminação do local;

 Satisfaçãodasnecessidadesdemanobradosveículospesados(larguradasfaixasderodagem não inferior a 3,0 m; quando junto a cruzamentos, com afastamento não inferior a 3,0 m da linha de cedência de passagem);

 Preferencialmente associados à proibição de estacionamento na zona;

 Osrefúgiospodem serinstaladosisoladamenteouem associadosa passagensparapeõesou a semáforos.

De acordo com o Decreto-Lei n.º 163/2006, de 8 de agosto, a altura do lancil em toda a largura das passagens de peões não deve ser superior a 0,02 m. Por outro lado, o pavimento do passeio na zona imediatamente adjacente à passagem de peões deve ser rampeado, com uma inclinação não superior a 8% na direção da passagem de peões e não superior a 10% na direção do lancil do passeio ou caminho de peões, quando este tiver uma orientação diversa da passagem de peões, de forma a

17

DOCUMENTO NORMATIVO PARA APLICAÇÃO A ARRUAMENTOS URBANOS

Fascículo II – Caraterísticas geométricas pararodovias com tráfegomotorizado

estabelecer uma concordância entre o nível do pavimento do passeio e o nível do pavimento da faixa de rodagem (ver Figura 2.5).

As dimensões recomendáveis para um refúgio de peões são as seguintes (Seco et al., 2008b; IMTT, I.P., 2011c):

 Comprimento desejável entre 5,0 m e 7,0 m, com mínimo de 3,0 m;

 Larguradesejável2,0m emínimade 1,5m demodoagarantirproteção adequadaaos peões;

2.1.9 BermaseLancis

Em arruamentos com velocidade de circulação menor que 80 km/h não devem ser previstas bermas, mas sim passeios com lancil.

18
Figura 2.5 – Dimensões de refúgio para peões (adaptado de SNRIPD, 2006 e Seco, et al., 2008b).

DOCUMENTO NORMATIVO PARA APLICAÇÃO A ARRUAMENTOS URBANOS

Fascículo II – Caraterísticas geométricas pararodovias com tráfegomotorizado

Nas estradas com velocidade decirculação superior a 80 km/h, as bermas constituem um refúgio para imobilização de veículos avariados, permitem a circulação de veículos de socorro e asseguram o suporteestruturallateraldopavimentodafaixaderodagem.Asbermastambém disponibilizam espaço para recuperação do controlo de veículos desgovernados, evitando acidentes iminentes ou reduzindo a gravidade dos despistes. Também contribuem para aumentar a capacidade de tráfego da estrada (Macedo et al., 2011).

As bermas também concorrem para a obtenção de distâncias de visibilidade no intradorso das curvas em planta, ao disponibilizarem um espaço isento de obstráculos.

Em estradas de dupla faixa de rodagem as bermas esquerdas devem ser pavimentadas e ter largura mínima de 1,0 m.

Em estradas com bermas direitas com largura inferior a 1,0 m os condutores tendem a circular mais próximos do eixo da estrada. Larguras de berma superiores a 2,0 m asseguram que a capacidade da estrada não é afectada por obstruções fora da berma; valores superiores a 2,60 m permitem o estacionamento de veículos pesados sem invasão da faixa de rodagem.

Para a segurança da circulação é indispensável que as bermas não sejam usadas, de modo informal, para circulação do tráfego; por esse motivo, deve haver uma distinção nítida entre elas e a faixa de rodagem, o que pode ser conseguido dotando-as com cor e textura contrastantes com as da faixa de rodagem. Em casos particulares, pode haver vantagem em equipar as bermas com dispositivos que desencoragem ativamenteacirculaçãonasbermas,porexemplocom instalaçãodeguiasdentadasou bandas sonoras, moldadas ou escavadas no respectivo pavimento. Quando abrangendo só parcialmente a largura da berma, as bandas sonoras têm a vantajem adicional de induzirem a circulação de ciclistas na zona da berma mais afastada da faixa de rodagem. Sobre uma obra de arte deve ser mantida a largura da faixa, ou faixas de rodagem, assim como das bermas pavimentadas, esquerda e direita, existentes em secção corrente; idêntica situação deve ser verificada quando a rodovia passa sob uma obra de arte ou se desenvolve em túnel.

Os lancis delimitam a linha de água de drenagem longitudinal (sendo a escorrência drenada para condutas através de sarjetas laterais ou de sumidouros convenientemente espaçados), delimitam os limites da faixa de rodagem, separam as faixas de rodagem das áreas utilizadas por outros modos de transporte,em particulardospeões,separam asfaixasderodagem dasáreasdedicadasaoutrosusos (e.g., paisagismo), e asseguram o suporte lateral do pavimento da faixa de rodagem (Austroads, 2017b).

O lancile a valeta devem ser colocados com um afastamento entre a face do lancile o limite da via de trânsito de acordo com o definido no Quadro 2.9.

19

DOCUMENTO NORMATIVO PARA APLICAÇÃO A ARRUAMENTOS URBANOS

Fascículo II – Caraterísticas geométricas pararodovias com tráfegomotorizado

Quadro 2.9 – Afastamento entre a linha do lancil e a via de trânsito (Austroads, 2017b).

2.2 Traçadoemplanta

2.2.1 Alinhamentosretos

Como elemento geométrico do traçado em planta de alinhamentos retos há a considerar o respetivo comprimento.

Nas rodovias urbanas de Nível I, a velocidade máxima a considerar no alinhamento reto será de 80 km/h, conforme recomendado em 2.3 do Fascículo I (ver respetivo Quadro 2.2). Assim, o comprimento dos alinhamentos retos das rodovias urbanas de Nível I, deve estar limitado a um valor que induza uma velocidade desejada próxima do limite pretendido. Na Figura 2.6 apresentam-se as relaçõesentreavisibilidadefrontaleavelocidademédiaeopercentil85dadistribuiçãodevelocidades em arruamentos urbanos do Reino Unido, para várias larguras de faixa de rodagem. Estas figuras podem ser usadas para estimar o comprimento máximo de reta.

Figura 2.6 – Velocidades de circulação, em função da largura da rua e da distância de visibilidade para a frente (Adaptado de York et al., 2007).

Oselementosretos extensoseconferindolinhasdevisãodesimpedidalongas,propiciam aescolhade velocidadeselevadas,oqueéindesejávelnosarruamentosdeNívelIIeIII,bemcomonosarruamentos

20
Velocidade de operação (km/h) Tipo de lancil Afastamento mínimo (m) 0-60 Lancilelevado 0,3 0-79 Lancilnormal 0 Lancilsemi-galgável 0
0 5 10 15 20 25 30 020406080100120 Velocidade média (km/h) Visibilidadefrontal(m) 10m9m8m 7m6m5m Larguradafaixaderodagem: 0 5 10 15 20 25 30 35 40 020406080100120 Percentil 85 da velocidade (km/h) Visibilidadefrontal(m)

DOCUMENTO NORMATIVO PARA APLICAÇÃO A ARRUAMENTOS URBANOS

Fascículo II – Caraterísticas geométricas pararodovias com tráfegomotorizado

residenciais de Nível IV, onde, como se referiu no Fascículo I, a velocidade de circulação deve ser baixa. Nas rodovias destes níveis hierárquicos, os elementos retos devem ter comprimento limitado e ser dotados de outros elementos que encorajem a escolha de velocidades de circulação baixas –próximas da velocidade pretendida (conforme definida no Quadro 2.1 do Fascículo I).

2.2.2 Alinhamentoscurvos

Ascaracterísticasaobedecernoquedizrespeitoaraiosdecurvascirculareserespetivasobrelevação, e nas curvas de transição encontra-se descrito no capítulo 5.3 do Fascículo I, onde o valor das sobrelevações a usar nas rodovias de Nível I é indicado no Quadro 5.4 e o valor a adotar nas vias de outros níveis no Quadro 5.5.

2.2.3 Homogeneidade

Para efeitos da avaliação da homogeneidade do traçado, aspeto importante nas rodovias urbanas de Nível I, a velocidade a considerar no alinhamento reto será a “velocidade desejada”, ou seja, a velocidadenãoimpedidanessetrechoreto,conformedefinidaem4.1.2doFascículoI.Salienta-seque, tambémdeacordocomoexpressonomesmocapítulo,deveráprocurar-seque,nessenívelhierárquico da rede, a velocidade base adotada no projeto da estrada corresponda simultaneamente à velocidade desejada e à velocidade alvo definida em 4.1.2.3 do Fascículo I, o que nem sempre é possível unicamente através de elementos de traçado.

2.3 Traçadoemperfillongitudinal

O traçado do perfil longitudinal consiste numa sucessão de segmentos com inclinação constante (trainéis1) ligados por curvas de concordância verticais. Estas, para além de suavizarem a passagem de um trainel para o outro, condicionando as acelerações verticais a que os veículos são submetidos, permitem,no caso das concordâncias convexas,garantir que a distância de visibilidade semantém na passagemdazonaondesesituamosvérticesgeométricosdejunçãodostrainéis(Macedo etal.,2011), bem como a inscrição sem problemas de veículos com grande distância entre eixos ou pequena distânciaao solo.

Em situaçõespontuais,éadmissívelqueem algunslocaisdemuitobaixavelocidadedecirculação(por exemplo em parques de estacionamento) se efectuem ligações sem curva de concordância entre trainéis, desde que a diferença angular entre eles não seja superior a 0.14⁰, conforme referido no Fascículo 1.

1 Aclives, também designadospor subidas, e declives (descidas).

21

DOCUMENTO NORMATIVO PARA APLICAÇÃO A

ARRUAMENTOS URBANOS

Fascículo II – Caraterísticas geométricas pararodovias com tráfegomotorizado

2.3.1 Trainéis

A inclinação máxima dos trainéis depende da velocidade base da estrada, sendo os valores máximos desejáveis em função da categoria hierárquica da via os indicados no Quadro 2.10.

Quadro 2.10 – Inclinação máxima desejável dos trainéis consoante o nível hierárquico.

* Nas zonas de coexistência a inclinação máxima é definida em função dos requisitos do peão.

No caso de terrenos montanhosos, a adoção de inclinações longitudinais superiores aos valores desejáveis pode permitir reduções significativas nos custos de construção ou ambientais, apesar de resultarem custos de utilização – consumo de combustível, requisitos de manutenção, tempos de percurso e níveis de sinistralidade – mais elevados.

Podem ser adotados valores superiores aos referidos no Quadro 2.10 (até ao limite do patamar da velocidade base imediatamente anterior), desde que justificado por estudo económico específico (Macedo et al., 2011).

Em estradas com muito baixo volume de tráfego e reduzida percentagem de veículos pesados, com velocidades de projetos não superiores a 50 km/h, podem ser adotadas inclinações superiores em 2% aos valores referidos no Quadro 2.10, desde que justificado por estudo económico e que os comprimentos envolvidos sejam inferiores a 150 m.

É desejável que os trainéis tenham uma inclinação longitudinal mínima de 0,5%. Este critério destinaseaassegurarumadrenagemsatisfatóriadaságuassuperficiais.Poder-se-ádispensarocumprimento deste requisito mínimo nos casos em que esteja assegurado, por dispositivos adequados, o escoamento superficial transversal e longitudinal da água, para fora da faixa de rodagem e da berma pavimentada (ou passeio).

Nazonadeinfluênciadasintersecçõesérecomendávelqueainclinaçãolongitudinaldetodososramos do cruzamento esteja limitada ao valor máximo de 4%.

22
Categoria Subcategoria Velocidade base (km/h) Inclinação máxima (%) RodoviaUrbanaNívelI 80 6 ArruamentoNívelII 50 8 ArruamentoNívelIII 50 8 ArruamentoresidencialNívelIV RuaemZona30 30 8 RuaemZonade Coexistência* 20 5

DOCUMENTO NORMATIVO PARA APLICAÇÃO A ARRUAMENTOS URBANOS

Fascículo II – Caraterísticas geométricas pararodovias com tráfegomotorizado

2.3.2 Concordânciasverticais

Asconcordânciasentretrainéissãoasseguradasmediantecurvasparabólicas.Naseleçãodosvalores dosparâmetrosrelevantesdasconcordâncias(comprimentoecurvaturamáxima)éhabitualconsiderar critérios de visibilidade, de aparência (conforto óptico) e de aceleração vertical (comodidade).

NoQuadro2.11 sãoapresentados comprimentos mínimos parao desenvolvimento das concordâncias em função da categoria hierárquica da via. Tratando-se de características subjetivas, são recomendados intervalos de valores e não valores numéricos exatos.

Quadro 2.11 – Desenvolvimento mínimo das concordâncias (conforto óptico) consoante o nível hierárquico.

De igual forma, no Quadro 2.12, são definidos valores mínimos para o raio equivalente das concordâncias em função da categoria hierárquica da via.

Quadro 2.12 – Raio equivalente mínimo das concordâncias (variação da aceleração vertical) consoante o nível hierárquico.

23
Categoria Subcategoria Velocidade base (km/h) Desenvolvimento mínimo (m) RodoviaUrbanaNívelI 80 80–120 70 70–120 ArruamentoNívelII 50 50–60 ArruamentoNívelIII 50 50–60 ArruamentoresidencialNívelIV RuaemZona30 30 50–60 RuaemZonade Coexistência 20 50–60
Categoria Subcategoria Velocidade base (km/h) Raio equivalente mínimo (m) RodoviaUrbanaNívelI 80 1980 70 1520 ArruamentoNívelII 50 780 ArruamentoNívelIII 50 780 ArruamentoresidencialNívelIV RuaemZona30 30 500 RuaemZonade Coexistência 20 500

DOCUMENTO NORMATIVO PARA APLICAÇÃO A ARRUAMENTOS URBANOS

Fascículo II – Caraterísticas geométricas pararodovias com tráfegomotorizado

TalcomoreferidonoFascículoI,aescolhadosparâmetrosdasconcordânciastambém écondicionada pela necessidade de assegurar as distâncias de visibilidade relevantes em cada secção da rodovia. Consoante o caso, o valor crítico pode corresponder à distância de visibilidade de paragem (DVP), à distância de visibilidade de ultrapassagem (DVU) ou à distância de visibilidade de decisão (DVD), conforme referido no capítulo 4.4 do Fascículo I.

Anota-se que, habitualmente, os critérios de visibilidade são determinantes na escolha do raio de curvatura das concordâncias convexas e, frequentemente, das concordâncias côncavas junto a obstáculos acima do gabarito vertical.

2.4 Cruzamentos

Os cruzamentos são elementos da rede viária onde duas ou mais correntes de tráfego se cruzam, separamoujuntamgerandoconflitosquesãoreguladoseresolvidosdeacordocomregraspredefinidas eespecíficasdefuncionamento(Seco etal.,2008c).Estessãopontoscríticosdaredeviária,emtermos decapacidadeedesegurança.Sãoigualmenteespaçosondeosconflitosdeinteressesentreasredes rodoviáriasmotorizadaseasredespedonaisoudecicloviassãomaisevidentes.Essesconflitospodem ainda incluir sistemas ferroviários ligeiros.

A conceção de um cruzamento será influenciada por diversos fatores, incluindo o alinhamento e inclinação das estradas de aproximação, requisitos de drenagem, presença de serviços públicos, acesso à propriedade e a presença de características locais, tanto naturais como artificiais. Existem outros fatores a considerar no desenvolvimento do projeto de um cruzamento, nomeadamente (Austroads, 2017d):

 Características dos utentes da rodovia(ocupantes de automóveis,peões,ciclistas, condutores de veículos pesados de mercadorias, condutores e passageiros de autocarros e de elétricos);

 Exigências de veículos especiais ou de grandes dimensões;

 Topografia e disponibilidade de solo;

 Ambiente e património;

 Condicionantes físicas;

 Segurança e saúde no trabalho;

 Outros fatores.

Conforme mencionado no capítulo 2.4 do Fascículo I, os cruzamentos entre vias urbanas, da mesma categoria ou de categorias diferentes, constituem pontos críticos da rede, que condicionam o seu funcionamento, em termos de fluidez e segurança. O processo de hierarquização viária pressupõe, pois, o estabelecimento de regras precisas, primeiramente sobre a permissão ou negação de

24

DOCUMENTO NORMATIVO PARA APLICAÇÃO A ARRUAMENTOS URBANOS

Fascículo II – Caraterísticas geométricas pararodovias com tráfegomotorizado

transferência do tráfego motorizado entre as vias que se cruzam, consoante a sua categoria, e seguidamente sobre as tipologias mais adequadas a que devem obedecer esses cruzamentos.

Deacordocom aBrochuraTécnica–“RedeViária–Princípiosdeplaneamentoedesenho”(IMTT,I.P., 2011a) e em Seco et al. (2008), para os cruzamentos consideram-se basicamente as seguintes tipologias:

 Nó de ligação (D)

 Interseção (N)

o prioridade à direita, ou sinalização de cedência de prioridade ou “stop” (N1)

o com sinalização luminosa (N2)

 Cruzamento giratório (R)

o sem sinalização luminosa (R1)

o com sinalização luminosa (R2)

No primeiro caso o cruzamento é desnivelado, havendo apenas conflitos por intersecção de trajetórias nas zonasdeconvergênciadosramosecom ângulosrelativamentepequenos,em condiçõesnormais.

2.4.1 Tiposdecruzamentos

É possível distinguir cada uma das possíveis soluções pelo seu princípio de regulação, potencial de desempenho, tipo de hierarquização dos eixos afluentes ou pelo grau de impacto sobre a envolvente. Tendo como referência os princípios de regulação das prioridades relativas entre as diferentes correntesdetráfegoeaestruturageométricafundamental,épossíveldistinguiroconjuntodetipologias descritas acima. A cada uma destas tipologias correspondem diversas soluções, com condições de aplicabilidade e níveis de segurança bastante variados.

No Quadro 2.13 são apresentadas as características, campo de aplicação, vantagens e desvantagens dos diferentes tipos de cruzamentos.

Quadro 2.13 – Desnivelamento (adaptado de Seco et al., 2008c, Austroads, 2017d).

Características Campodeaplicação Vantagens Desvantagens

 Eliminaçãototalouparcialdos conflitosentremovimentos direcionaisquesecruzamatravés dasuasegregaçãoespacial

 Cruzamentoparcialmente desnivelado:umoumaisconflitos detráfegosãoreguladosdenível atravésdorecursoasoluçõesdo tipoprioritário,sinaisluminososou rotunda

 Soluçãoaadotarquando todasassoluçõesdenível serevelamincapazesde resolveroproblema

 Situaçõesdeconfluência deviasdeimportância semelhante (desnivelamentototal)

 Situaçõesondeumdos eixosédominante (desnivelamentoparcial)

 Níveismuitoelevadosde capacidade, particularmentenos movimentosprincipais

 Níveisreduzidosde sinistralidade

 Custodeinvestimentoe espaçoocupadomuito elevados.

 Circuitospedonais extensos

25

DOCUMENTO NORMATIVO PARA APLICAÇÃO A ARRUAMENTOS URBANOS

Fascículo II – Caraterísticas geométricas pararodovias com tráfegomotorizado

As rotundas podem ser agrupadas de acordo com os seguintes subtipos: rotundas normais, minirotundas, rotundas desniveladas, rotundas duplas e rotundas com sinalização luminosa. No Quadro 2.14 são apresentadas as características, campo de aplicação, vantagens e desvantagens das rotundas.

Quadro 2.14 – Rotunda (adaptado de Silva e Seco, 2008; Silva e Seco, 2012; Seco et al., 2008c; Austroads, 2017d).

Características Campodeaplicação Vantagens Desvantagens

 Circulaçãodentrodo cruzamentoemsentido obrigatóriocontrárioao ponteirodosrelógios, utilizandoumafaixade rodagemquese desenvolveemvoltade umaplacacentral curvilíneacomraio aproximadamente constante

 Prioridadeaosveículos queseencontremno interiordarotunda

 Elevadacapacidadede controlodo comportamentodos condutores,quesereflete nomeadamentena reduçãodevelocidade que,deumaformafísica, impõeatodososveículos queacedemecirculamno cruzamento

 Cruzamentosdeviascom característicafuncionalefluxosde tráfegosemelhantes

 Rotundasnãosemaforizadasnão sãointegráveisemredescom controloporsinalizaçãoluminosa

 Níveisglobaisdetráfegomuito diferenteseníveisdefluxosde viragemàesquerdasignificativos

 Acomodacomfacilidadeinversões demarcha

 Zonasdetransiçãode característicasgeométricasoude condiçõesdecirculação.

 Zonassuburbanas,semrestrições deespaçosignificativaseondese registemvolumesdetráfego pedonalreduzido.

 Soluçãodeacalmiadetráfego, nomeadamenteemáreas residenciais

 Interligaçãodeeixosviárioscom tráfegossignificativos,masde níveishierárquicosdiferentes, privilegiandoosmovimentos principais(rotundasdesniveladas)

 Maiorcapacidadedoque intersecçõescom prioridadeàdireitaou intersecçõesprioritárias.

 Custodeinvestimento moderado(soluçõesde nível)

 Níveiselevadosde capacidade, genericamente equivalentesaosdos cruzamentosregulados porsinaisluminosos

 Soluçãobastantesegura paraveículosmotorizados

 Exigentequantoaespaço ocupado(dimensão, forma),quando comparadacomas restantestipologiasde (excetominirotundas).

 Tipologiaemqueaforma deregulaçãoe funcionamentodo cruzamentosemantém inalteradaaolongodo tempo

 Problemasde sinistralidadeassociadosa ciclistas.

 Circuitospedonais extensos

As interseções com sinalização luminosa podem ser classificadas de acordo com o tipo de funcionamento adotado, divididas em interseções com comando de tempo fixo (com base em planos de regulação pré-definidos) ou com comando atuado (com ajustamentos em resposta a alterações verificadas na procura).

Da mesma forma, estas interseções podem ser divididas em interseções com comando independente (em que o plano de regulação apenas tende a otimizar o funcionamento de um cruzamento) ou com comando coordenado (em que existe coordenação do funcionamento de vários cruzamentos adjacentes).

26

DOCUMENTO NORMATIVO PARA APLICAÇÃO A ARRUAMENTOS URBANOS

Fascículo II – Caraterísticas geométricas pararodovias com tráfegomotorizado

No Quadro 2.15 são apresentadas as características, campo de aplicação, vantagens e desvantagens das interseções com sinalização luminosa.

Quadro 2.15 – Intersecção com sinalização luminosa (adaptado de Seco et al., 2008c, Pires da Costa et al., 2008; Austroads, 2017d).

Características Campodeaplicação Vantagens Desvantagens

 Atribuiçãoemdiferentes períodosdetempoe atravésdesinalização luminosa,dedireito absolutoouparcialde passagem aosdiferentes movimentosdirecionaisde tráfegoquetêmtrajetos conflituantes

 Alternativaarotundasseos níveisdetráfegonasvárias entradasforemmuito desequilibradosoucom grandesvariaçõesrelativas aolongodotempo

 Tipologiaadequadaaum funcionamentocoordenado entrecruzamentos.

 Zonasurbanascom restriçõesdeespaço,nível deconflitosignificativocomo sistemapedonal,maior densidadedecruzamentos, oumaiorvariabilidadede volumesdetráfego

 Custodeinvestimentoe exigênciadeespaçomoderados

 Níveiselevadosdecapacidade, globalmentesemelhantesaos atingíveisporrotunda

 Tipologiaemqueaformade regulaçãoefuncionamentoda intersecçãopodeseralteradaao longodotempo

 Soluçãocomapossibilidadede serematribuídosdiferentes níveisdeprioridadeadiferentes modosouutilizadores(por exemplo,autocarros)

 Maiorescustosde manutençãoeexploração, doqueasrestantes tipologiasdeintersecção

 Dificuldadeemacomodar níveissignificativosde viragensàesquerda.

 Extremadificuldadeem acomodarinversõesde marcha

Nos quadros seguintes são apresentadas as características, campo de aplicação, vantagens e desvantagens das interseções com sinalização de cedência de prioridade ou “stop” (Quadro 2.16) e com prioridade à direita (Quadro 2.17).

Quadro 2.16 – Intersecção com sinalização de cedência de prioridade ou “stop” (adaptado de Seco, Pais Antunes e Pires da Costa, 2008; Silva, Seco, Macedo, 2008, Austroads, 2017d).

Características Campodeaplicação Vantagens Desvantagens

 Atribuiçãodediferentesníveisde prioridadeadiferentesmovimentos direcionaisdetráfegoouramosde acesso

 Soluçãohierárquica,emquea atribuiçãodeprioridadedeacessoa umoumaisramosoumovimentos direcionaiscorrespondeàatribuiçãoa estesdemaiorimportânciafuncional

 Regulaçãoporcolocaçãode sinalizaçãovertical(stopoucedência deprioridade),acompanhadada correspondentesinalizaçãohorizontal

 Utilizaçãoemcruzamento comníveismoderadosde tráfegoeondeexistaum eixodominante

 Simplicidadeebaixo custo(maiselevadono casodesoluçõescom significativosgrausde canalizaçãoe segregaçãodotráfego)

 Podemocorrersituações deincorretaperceçãoe correspondentemá aplicaçãodasregrasde cedênciadepassagemem vigornolocal

 Níveisdesegurança inferioresaosdas tipologiasalternativascom exceçãodaprioridadeà direita,emboraos subtiposcomcanalização detráfegopermitam melhoresresultados

27

DOCUMENTO NORMATIVO PARA APLICAÇÃO A ARRUAMENTOS URBANOS

Fascículo II – Caraterísticas geométricas pararodovias com tráfegomotorizado

Características Campodeaplicação Vantagens Desvantagens

 Nãodeveseraplicadoemsituações ondenãoexistaumcomaaparência dearruamentoprioritáriooudominante

 Níveismédio/baixosdecapacidade (até15000veículos/diarecorrendoa canalizaçãoesegregaçãodos movimentos)

Quadro 2.17 – Intersecção com prioridade à direita (adaptado de Seco et al., 2008c; Silva, Seco, Macedo, 2008; Austroads, 2017d).

Características Campodeaplicação Vantagens Desvantagens

 Inexistênciadequalquer sinalizaçãodeatribuição deprioridades

 Prioridadeaosveículos queseapresentempela direitarelativamentea quaisqueroutrosquese aproximemdocruzamento

 Níveisdetráfegobaixose, tendencialmente,equilibradosentre asdiferentesentradas

 Semprequeadisposiçãoda interseçãonãoindiciauma hierarquiaentreasentradas.(Em casocontrário,podeinduzir perceçãoerradadaregravigente, surpreendendocondutoresnão habituais

 Velocidadesdeaproximação reduzidas

 ViasurbanasdeNívelIIIeIV

2.4.2 Seleção,conceçãoedimensionamento

 Simplicidadeebaixocusto

 Dificuldadede interpretaçãodaprioridade relativaemintersecções com4oumaisramos

 Incapacidadepararegular aprioridaderelativade acesso

 Níveldecapacidadebaixo

A seleção da tipologia genérica e das características específicas da solução adequadas a uma determinada situação, passará pela análise integrada do potencial de desempenho, ao longo da vida útildocruzamento,decadahipótesealternativa,relativamenteaumamploconjuntodevalências,umas ligadas à qualidade intrínseca da solução, e outras mais ligadas à sua capacidade de integração ao nível da rede e do espaço envolvente.

Para cada uma das tipologias de cruzamentos admissíveis, ficaram definidas no Fascículo I (capítulo 2.4)quaisastipologias queseconsideram passíveisdeseradotadas paraosmesmos,deacordocom o representado no Quadro 2.18.

28

1)

DOCUMENTO NORMATIVO PARA APLICAÇÃO A ARRUAMENTOS URBANOS

Fascículo II – Caraterísticas geométricas pararodovias com tráfegomotorizado

2)

Conforme mencionado no referido capítulo do Fascículo I, diversos fatores devem ser tidos em conta na análise e decisão sobre a tipologia de cruzamento a adotar, uma vez conhecida a categorização funcionaldas vias que se cruzam, designadamente:

 Volumes de tráfego em presença;

 Capacidade a instalar;

 Contexto urbano e espaço disponível para implantação;

 Funções acessórias atribuídas à interseção;

 Prioridades especiais;

 Segurança rodoviária de todos os utentes.

Nocaso decruzamentos paraacesso às zonas de 30 ede coexistência ou sua ligação com oresto da rede viária deverá ser previsto o recurso a portões.

Um dos fatores fundamentais para a decisão sobre a tipologia de cruzamento a adotar é o da capacidade a instalar para fazer face à procura estimada de transporte rodoviário. Nalgumas zonas urbanas existe uma condicionante adicional, em alguns cruzamentos, devida à circulação de elétricos, que coloca problemas específicos de regulação do tráfego de superfície.

A sequência de tipologias de cruzamentos apresentada no Quadro 2.18, corresponde a um ordenamento decrescente da capacidade potencial das interseções. É de salientar que os níveis de capacidade potencial oferecidos pelas soluções com regulação por sinais luminosos e as do tipo rotunda são semelhantes (Seco et al., 2008c).

AFigura2.7ilustraocampodeaplicaçãodasprincipaistipologiasacimadescritasemfunçãodosníveis de tráfego conflituantes entre a estrada principal e a estrada secundária.

29
Tipologiadeinterseção Tipologiadeexploração deintersecção 1/1 1/2 1/3 2/2 2/3 2/4 3/3 3/4 4/4 Desnivelamento X X X Rotundacomsinalização luminosa X X Rotunda X X X X X X Sinalizaçãoluminosa X X X1) X Cedênciadeprioridade ouSTOP X2) X X X
Quadro 2.18 – Tipologias possíveis para os cruzamentos admissíveis (adaptado de IMTT, I.P., 2011a).
Obrigatoriedadedeviragemàdireita
STOPcomobrigatoriedadedeviragemàdireita

DOCUMENTO NORMATIVO PARA APLICAÇÃO A ARRUAMENTOS URBANOS

Fascículo II – Caraterísticas geométricas pararodovias com tráfegomotorizado

Édesalientaraexistênciadezonasdesobreposiçãodoscamposdeaplicaçãodassoluçõesprioritárias em relação às do tipo rotunda ou semafórica, e destas em relação aos desnivelamentos. Tal situação fica a dever-se à existência de outros fatores determinantes para a decisão sobre a tipologia de cruzamento a adotar, previamente enumerados e descritos na coluna “Campo de aplicação” dos Quadro 2.13, Quadro 2.14, Quadro 2.15, Quadro 2.16 e Quadro 2.17.

A seleção da tipologia a aplicar em cada caso dependerá ainda de uma análise económica, que, no caso de análise custo-benefício, permita comparar custos e benefícios generalizados associados a cadaalternativa(custostemporaisassociadosaosatrasos,desinistralidade,deoperaçãodosveículos, económicos ou ambientais, de investimento, manutenção e operação) ou, no caso de análise multicritério, éavaliadaaqualidadedassoluçõesalternativasfaceaum conjuntoalargado deobjetivos (Seco et al., 2008c).

O dimensionamento dos cruzamentos deve conciliar os aspetos relativos às condições de segurança paratodososmodosdedeslocação,emparticularparaosmodosativos,eanecessidadedeassegurar a capacidade de escoamento de tráfego.

Deacordocom aBrochuraTécnica–“RedeViária–Princípiosdeplaneamentoedesenho”(IMTT,I.P., 2011a) e em Seco et al. (2008), para os cruzamentos, independentemente da tipologia adotada, consideram-se basicamente os seguintes critérios:

30
Figura 2.7 – Tipologia de cruzamentos admissíveis e sua capacidade potencial (adaptado de Seco et al., 2008c).

DOCUMENTO NORMATIVO PARA APLICAÇÃO A ARRUAMENTOS URBANOS

Fascículo II – Caraterísticas geométricas pararodovias com tráfegomotorizado

 Padronização: a adoção de soluções padronizadas permite que os condutores reconheçam de imediato o tipo de cruzamento e o modo como nele se deverão comportar. A simplicidade de compreensão e utilização é essencial para que a tarefa de condução nos cruzamentos seja o mais simples possível, de modo a minimizar o risco de erro por parte dos condutores. A facilidade de reconhecimento e utilização do cruzamento não impede que o mesmo possa ser espacial e geometricamente complexo (por exemplo, dotado de canalização ou de restrição de movimentos direcionais).

 Legibilidade: um cruzamento é legível quando a sua localização e modo de funcionamento são facilmente percetíveis a uma distância suficiente para que os condutores adaptem a sua condução à situação de tráfego que vão encontrar e aos movimentos que pretendam executar. No critério de legibilidade há que considerar a legibilidade de aproximação ao cruzamento e a legibilidade interna do mesmo. A primeira consiste na identificação da presença de um cruzamento por parte do condutor e deve promover a adequação do seu comportamento. A legibilidade de aproximação pode assegurar-se pela rutura da continuidade do fluxo visualdo traçado da via. A legibilidade interna do cruzamento corresponde à compreensão clara e imediata da geometria e do modo de funcionamento da mesma. A legibilidade interna pode ser promovida através de uma organização simples dos movimentos autorizados e de sinalização compreensível, credível e coerente com a envolvente em que se integra.

 Visibilidade: num cruzamento deve ser assegurado um campo de visão suficientemente alargado para permitir visualizar e percecionar corretamente o cruzamento e a sua sinalização, os restantes utilizadores e os espaços envolventes. Para tal:

o a velocidade de aproximação dos veículos ao cruzamento deve ser reduzida, de forma a aumentar a visão periférica;

o a disposição do mobiliário urbano e o estacionamento não devem impedir linhas de visada dentro do triângulo de visibilidade entre 0,90 m e 2,40 metros de altura;

o não deve existir estacionamento na envolvente imediata dos cruzamentos, assegurando as características do triângulo de visibilidade relevante (ver capítulo 4.4.3 do Fascículo I);

o preferencialmente os eixos das rodovias intercetantes devem fazer um ângulo de 90º.

 Minimização do espaço afeto à circulação: os cruzamentos sobredimensionados podem apresentar diversas desvantagens, nomeadamente:

31

DOCUMENTO NORMATIVO PARA APLICAÇÃO A ARRUAMENTOS URBANOS

Fascículo II – Caraterísticas geométricas pararodovias com tráfegomotorizado

o trajetórias dos veículos mal definidas que tendem a distanciar desconcentrar os pontos de conflito;

o velocidades de entrada no cruzamento muito elevadas;

o aumento das distâncias de atravessamento do cruzamento (sobreposição de trajetórias conflituantes), diminuindo a capacidade deste;

o aumento das distâncias de atravessamento dos peões, potenciando situações de insegurança;

o presença indesejada de veículos no interior do cruzamento. Um aspeto fundamental para a minimização do espaço afeto à circulação dos veículos motorizados consiste na redução dos potenciais pontos de conflitos e dos raios de curvatura para os movimentos de viragem à direita, de forma a reforçar o carácter urbano e induzir uma redução de velocidade.

 Flexibilidade: a flexibilidade de implementação e adaptabilidade das soluções pode revelar-se importante para permitir eventuais faseamentos, no tempo, da implementação da solução, ou para que seja possível proceder a adaptações no seu funcionamento, de modo a dar resposta a alterações significativas das características da procura, minimizando os seus custos. Neste sentido, é desejável fazer uma análise de sensibilidade em torno do cenário de referência.

No Fascículo IV apresentam-se exemplos de soluções para intersecções em arruamentos de nível II, III ou IV.

32

NORMATIVO PARA APLICAÇÃO A ARRUAMENTOS URBANOS

Fascículo II – Caraterísticas geométricas pararodovias com tráfegomotorizado

3| Atravessamentos depovoação

3.1 Enquadramento

Os atravessamentos urbanos resultam de antigas ligações entre cidades e vilas que, ao inserirem-se em zonas urbanas, serviam tanto para as deslocações locais como para as deslocaçõesmaislongas.Emdiversassituações,osatuaisatravessamentosurbanosresultaram da progressiva urbanização do solo marginal a estradas interurbanas (tornado facilmente acessível por estas), frequentemente sem cuidado de preferência por ocupação unilateral nem de reserva de espaço para rodovias de serviço. Com a evolução da taxa de motorização, foi sendo dada primazia ao tráfego de veículos motorizados, através de alargamentos do espaço dedicado à circulação de veículos, para permitir manter níveis de serviço adequados ao tráfego de longo curso (Silva e Santos, 2011).

Nos atravessamentos urbanos ocorrem funções conflituantes: a função mobilidade relativa ao tráfego de atravessamento, para a qual são necessárias condições compatíveis com níveis de serviço elevados (velocidades, tempos de percurso e densidades); e as funções acessibilidade e usufruto do espaço, associadas às atividades locais do aglomerado, que são incompatíveis com osníveis deserviçoatrásreferidos.Esta incompatibilidadetraduz-sena perdadequalidade devidaparaoshabitanteseutentesvulneráveis,umavezquesãopotenciadasquerafrequência queragravidadedosconflitosdo tipo veículo-veículoepeão-veículo,que estãonageneralidade dos casos associados a sinistralidade grave. Os problemas de congestionamento afetam negativamente o ambiente do aglomerado urbano, através de poluição atmosférica e sonora, vibração eintrusãovisual,entreoutros.Socialmentehátambém induçãodeimpactesnegativos, como o efeito barreira, a má qualidade do espaço público (por exemplo pela ausência de passeios, passagens de peões ou separadores centrais), e o sentimento de insegurança (Silva, et al., 2011a).

Diversostrechosdeatravessamentourbanoapresentam traçadosretilíneoseperfistransversais tipo com duas ou mais vias e bermas largas, que promovem, no seu conjunto e de uma forma geral, a prática de velocidades elevadas, não compatíveis com a circulação de peões em segurança.

Como forma de resolução deste problema têm sido promovidas soluções que criam condições maisfavoráveis àvivênciaurbana, diminuindo o efeito debarreira, sem preterirasnecessidades

DOCUMENTO
33

DOCUMENTO NORMATIVO PARA APLICAÇÃO A ARRUAMENTOS URBANOS

Fascículo II – Caraterísticas geométricas pararodovias com tráfegomotorizado

de fluidezdo tráfego de atravessamento e cujos princípios gerais são basicamente os seguintes (Silva e Santos, 2011):

• “Reorganização funcional da rede viária envolvente e reestruturação dos sentidos de trânsito de modo a reduzir o número de acessos diretos e/ou de conflitos;

• Redução da velocidade de circulação por recurso a medidas físicas restritivas;

• Redução da largura da faixa de rodagem e eliminação/redução da largura das bermas;

• Reafectação do espaço sobrante a outros utilizadores e atividades urbanas (passeios, ciclovias e praças);

• Formalização de passagens de peões em locais adequados e criação de espaços de circulação para peões e velocípedes”.

Uma forma de resolver o problema destes atravessamentos urbanos consiste na construção de variantes ao centro das localidades, que visam retirar integralmente da povoação afectada o tráfego de atravessamento, com benefícios tanto para o nível de serviço associado a esses movimentos,comoparaa qualidade da vivência urbana.Genericamente, é recomendável quea ligação das novas variantes à restante rede de estradas cumpra um conjunto de requisitos (Cardoso, 1999):

 Planear a variante para que não seja confundida com uma estrada de circunvalação (urbana de Nível I) integrada na rede urbana;

 Minorar o número de ligações à variante;

 Desnivelar as ligações à variante;

 Evitar o atravessamento (interseções em X) da variante;

 Impedir que a variante possa ser atrativa para o tráfego local (que se deve manter na rede do aglomerado urbano).

Na generalidade dos casos, as variantes apresentam menos acidentes não corporais e menos acidentes corporais (mas com reduçãoinferior à dos acidentes não corporais) do queos trechos que substituem.

Habitualmente, a construção de uma variante não permite resolver os problemas de sinistralidadeassociados aostrechos desclassificados2,quesubstituem,aqualestárelacionada maioritariamente com a prática de velocidades excessivas face às atividades que se

2 Estrada desclassificada - a estrada que nos termos da legislação em vigor já não integra a rede rodoviária nacional (Lei n.º 34/2015, de 27 de Abril - Estatuto das estradas da rede rodoviária nacional).

34

DOCUMENTO NORMATIVO PARA APLICAÇÃO A ARRUAMENTOS URBANOS

Fascículo II – Caraterísticas geométricas pararodovias com tráfegomotorizado

desenvolvem nas imediações da rua (antiga estrada). Pode verificar-se um aumento do número e gravidade de acidentes com peões e bicicletas na antiga estrada de atravessamento, se não houver remodelação da mesma, adaptando-a às pretendidas características urbanas. A experiênciainternacionaldemonstraqueopotencialdemelhoriadasegurançarodováriadeuma variante só é completamente obtido, se a construção da variante for acompanhada pelo tratamento do trecho desclassificado, integrando-o na rede urbana e conferindo-lhe características compatíveis com a sua função nessa rede (Nilsson, 1994; Elvik e Vaa, 2004).

A construção de variantes nem sempre se revela viável, em especial por razões económicas, designadamente quando o volume de tráfego de atravessamento não o justifica. Nesses casos, os atravessamentos devem ser objecto de intervenção, a qual deve privilegiar a função acessibilidade.

3.2 Soluçõesaplicáveis

No tratamento dos problemas associados aos atravessamentos de localidades, têm sido preconizadas três abordagens alternativas (Djurhuus et al., 1991 e Marques, 2005, referidos em Silva et al., 2011a):

a) Construçãodeumavarianteaoaglomeradourbanoeremodelaçãodoatravessamentopara função acessibilidade;

b) Reordenamento do trecho de atravessamento beneficiando o tráfego de atravessamento (privilegiando a função mobilidade ou distribuição);

c) Remodelação do trecho, de modo a prevalecer a função acessibilidade e favorecendo as atividades urbanas.

A decisão de construção de uma variante assenta essencialmente na incompatibilidade dos tráfegos de atravessamento e local, que penaliza tanto o nível de serviço, como a qualidade de vida da população local, bem como na relevância do tráfego de atravessamento. Este tipo de intervenções é habitualmente mais exigente do ponto de vista económico, com investimentos cerca de 2 a 3 vezes maiores do que os associados ao reordenamento do eixo (Djurhuus, et al., 1991). Como já referido, a construção da variante deve ser acompanhada da remodelação do trechourbanodesclassificado,conformando-oàfunçãoacessibilidadepretendida(Nilsson,1994 e Cardoso, 1999).

Para que esta solução seja eficaz, o tráfego de atravessamento deve ser induzido a procurar a variante, através da reabilitação do espaço canal que atravessa o aglomerado, focado na conformidade à função acessibilidade pretendida e na melhoria da vivência urbana, o que

35

DOCUMENTO NORMATIVO PARA APLICAÇÃO A ARRUAMENTOS URBANOS

Fascículo II – Caraterísticas geométricas pararodovias com tráfegomotorizado

normalmente corresponde a baixas velocidades de circulação dos veículos motorizados. Sendo bem concebida, a variante permitirá sempre deslocações mais rápidas e fluídas do que o atravessamento reabilitado, pelo que a requalificação da rodovia de atravessamento se destina a garantir que o tráfego local não aumenta de velocidade, hipotecando os benefícios do menor volume de circulação.

As soluções de reordenamento do trecho de atravessamento que beneficiam o tráfego de atravessamento estão direcionadas para tentar assegurar níveis elevados de fluidez do tráfego motorizado, secundarizando as necessidades do tráfego local e da população. A obtenção de níveis de serviço viáveis é apenas possível através da aplicação de medidas de segregação modal, para proteção dos utentes mais vulneráveis. Tais soluções originam efeitos de barreira dificilmente aceites pelas populações afectadas. Acresce que numa óptica de Sistema Seguro, não épossívelcompatibilizar as exigências dotráfego deatravessamento com as necessidades do tráfego local.

Finalmente,tem-seasoluçãoderemodelaçãodotrechoquedáprimaziaàfunçãoacessibilidade e às atividades urbanas. Uma vez que se pretende diminuir o efeito de barreira da estrada na povoação, as medidas aplicadas são vocacionadas para a diminuição da qualidade do serviço da circulação dos veículos motorizados, tanto no que se refere à velocidade quanto ao espaço disponível na faixa de rodagem.

A escolha da abordagem mais adequada não é, em regra, evidente, dependendo do volume e características do tráfego motorizado, da importância da componente do tráfego de atravessamento, da dimensão do aglomerado urbano, da demora associada à manutenção do atravessamento e da aceitabilidade social dos inconvenientes do efeito de barreira associado à solução escolhida.

Segundo Silva, et al. (2011c), é relativamente comum o uso de critérios baseados na dimensão do aglomerado ou no Tráfego Médio Diário Anual (TMDA) para fundamentar a escolha da abordagem mais adequada.

No documento elaborado por Silva, et al. (2011c), foi proposto o TMDA como fator primordial para selecção das soluções padrão, tendo sido definidas três categorias correspondentes a tráfegoelevado,moderadoebaixo.Sãoaindaconsideradosoutrosdoisfatorescomplementares aatendernaescolha:ascondicionantesdeespaçocanaleaextensãodalocalidade.NoQuadro 3.1 apresentam-se as recomendações quanto à abordagem a seguir em cada caso.

36

DOCUMENTO NORMATIVO PARA APLICAÇÃO A ARRUAMENTOS URBANOS

Fascículo II – Caraterísticas geométricas pararodovias com tráfegomotorizado

Congestionamentos acentuados

Tempodepercurso>10min

12000>TMDA>20000

Congestionamentos moderados

Nodocumentoérecomendadoqueaconstruçãodeumavarianteaaglomeradourbanodevaser escolhida nos casos em que o TMDA seja superior a 20000 veículos, o congestionamento seja elevadoouaextensãodoaglomeradoimponhatemposdepercursosuperioresa10minutos.No entanto, segundo Nilsson (1994), o TMDA na via de atravessamento não deve ser superior a 8000 veículos.

No referido documento, para TMDA superiores a 12000 veículos atravessando localidades com menos de 5000 habitantes é preconizado o reordenamento do trecho de atravessamento beneficiando o tráfego de longo curso, abordagem que não é compatível com a do Sistema Seguro, como já referido.

3.3 Seccionamentode umatravessamentourbano

O atravessamento de uma localidade por estradas principais abrange, na generalidade dos casos,váriostiposdeenvolventerodoviária,desdeaaparênciavincadamenteruralatéaoaspeto eminentemente urbano, correspondendo a diferenciações nas atividades que se realizam nos terrenos marginais à estrada. Em consequência, é justificada a afixação de diferentes velocidades máximas, acompanhada por uma correspondente diferenciação na conceção da estrada e da sua envolvente imediata. Esta conceção deve induzir o condutor a alterar de forma natural o seu comportamento de condução, o qual na zona urbana (rua) deve ser consideravelmente diferente do seguido no espaço rural (estrada). Numa óptica de estrada autoexplicativa (ver Fascículo 1) o número de envolventes apresentadas aos condutores deve ser pequeno e fortemente diferenciado, para poder ser facilmente reconhecido. Neste sentido, o

37
TIPODESOLUÇÕES COMVARIANTE SEMVARIANTE Valorizaçãodotráfegode atravessamento Compatibilizaçãocomasatividadeslocais TMDAmoderado TMDAbaixo
Quadro 3.1 – Aplicabilidade recomendada por Silva, et al., 2001 para a adoção de variantes TMDA>20000
Semcongestionamentos
Aglomeradourbanocom menosde5000habitantes 5000>TMDA>12000
Semcongestionamentos
TMDA<5000

DOCUMENTO NORMATIVO PARA APLICAÇÃO A ARRUAMENTOS URBANOS

Fascículo II – Caraterísticas geométricas pararodovias com tráfegomotorizado

nível de restrições físicas deve ser menor na zona rural do que na proximidade da zona urbana e nesta menor do que no interior da localidade.

A envolvente rodoviária na zona urbana deve ser dotada de elementos diferenciadores relativamente ao trecho interurbano, designadamente sendo disponibilizado passeio para a caminhada dos peões, preferencialmente sobrelevado, previstas iluminação noturna, vias de circulação estreitas e substituição das guias por lancis, bem como instalados refúgios para facilitar o atravessamento da rodovia pelos peões.

Para facilitar o reconhecimento pelos condutores e demais utentes rodoviários, a fronteira entre estrada e rua deve ser bem vincada, mediante a instalação de “portões” concebidos para constituírem pontos singulares conspícuos na envolvente rodoviária.

A edificação de uma zona de aproximação, a montante do trecho de transição, conforme preconizado por Silva, et al. (2011c) revela-se extremamente difícil na prática, por falta de elementos suficientemente diferenciadores, que permitam aos condutores identificarem corretamente esse espaço como uma categoria individual. O próprio carácter transiente do comportamento de condução pretendido concorre para a dificuldade de modelação física (pelo projetista) e de identificação (pelos utentes rodoviários) da pretendida categoria de estrada. Acresce que, na eventualidade de ter sido possível obter a transição em contínuo de um comportamento de condução interurbano para outro de condução urbana, não seria necessário um portão para assinalar a nova categoria de estrada. Assim, no presente documento não se recomenda a criação de zonas de aproximação.

Nestaóptica,nosentidoemquedeveocorrerdiminuiçãodavelocidadedecirculação,consideraserecomendávelaexistênciadeumazonadetransiçãoapenasdotadadesinalizaçãodelimites de velocidade degressivos e alertando para a aproximação ao portão de entrada no trecho remodelado para zona urbana. Já no sentido contrário, o trecho remodelado da zona urbana deve terminar abruptamente no portão.

A zona de transição deve ter o comprimento necessário para realizar o disfarce da variação das características de traçado (por exemplo, início de passeios, variação da largura das vias, terminais de guardas de segurança – ver detalhes no Fascículo IV) e para colocar a sinalização dos limites de velocidade máxima, de forma a garantir não só a respetiva visibilidade atempada mas também uma desaceleração aceitavelmente suave.

38

Fascículo II – Caraterísticas geométricas pararodovias com tráfegomotorizado

A sinalização do limite de velocidade à entrada na zona urbana atravessada pode ser feita mediante um conjunto de sinais C13 com valor degressivo em degraus de 20 km/h, o que tem, ainda, a vantagem de chamar a atenção dos condutores para a existência da sinalização e aumentar as oportunidades para percepção da mesma (Cardoso, 2010). No Quadro 3.2 apresentam-seosvaloresdasdistânciasentresinaisconsideradosem publicaçãodaPrevenção Rodoviária Portuguesa, admitindo uma desaceleração de 0,18 ms-2 (Almeida Roque, 2005). Estes são, também, os valores que têm sido habitualmente usados no nosso País.

Quadro 3.2 – Distâncias entre sinais de limitação de velocidade, para degradações de 20 km/h

Uma dificuldade adicional para a edificação de eventuais zonas de aproximação consiste na existência sucessiva de aglomerados urbanos num mesmo itinerário, com a quase eliminação do trecho rural, o que obriga a ter cuidados especiais nas zonas intermédias, para garantir a adequada variação da velocidade e comprimento mínimo de estrada sob regime específico de limite de velocidade.

Excetuando-se os trechos de variação do limite de velocidade referidos no Quadro 3.2, um determinado limitedevelocidadedeveseraplicadoao longodeum comprimentomínimode300 m (Cardoso, 2010).

Seguindo os princípios de estrada autoexplicativa e tolerante do Sistema Seguro, a localização do portão deve coincidir com o início da zona urbana do atravessamento, onde a configuração

DOCUMENTO NORMATIVO PARA APLICAÇÃO A ARRUAMENTOS URBANOS
39
Figura 3.1 – Seccionamento de um atravessamento urbano em zonas de intervenção distintas
Velocidade inicial (km/h) Velocidade final (km/h) Distância de desaceleração (m) 50 30 35 60 40 40 70 50 50 80 60 60 90 70 65

DOCUMENTO NORMATIVO PARA APLICAÇÃO A ARRUAMENTOS URBANOS

Fascículo II – Caraterísticas geométricas pararodovias com tráfegomotorizado

da envolvente rodoviária deve evidenciar a diferenciação do ambiente rodoviário por forma a induzir nos utentes o comportamento pretendido.

Na escolha da configuração da rodovia no atravessamento deve atender-se à probabilidade de conflito entre peões (e ciclistas) e veículos motorizados, a qualnão é idêntica em todo o espaço classificado como dentro de localidade, pelo que se justificam ponderações eventualmente diferenciadas dos critérios de resistênciaao choquedo ser humano(ver FascículoI), em função da importância dessa probabilidade (Cardoso, 2010).

Por exemplo, em diversos atravessamentos de pequenas localidades por estradas interurbanas os sinais regulamentares de início de localidade são usados para demarcar os limites de expansãourbana(masqueaindanãoocorreu),podendonãosejustificarocorrespondentelimite de 50 km/h, por ausência de elevado perigo de conflito peão-veículo. Simultaneamente, em diversos atravessamentos este limite pode ser excessivamente elevado, face à envolvente rodoviária e à dimensão da atividade urbana na localidade atravessada.

Por outro lado, o regime de circulação dentro de localidades não contempla as soluções de modelação do espaço urbano, adotadas em diversos países europeus, caracterizadas por ausência de atribuição de canais preferencialmente dedicados aos veículos motorizados, resultando na partilha do espaço pelos diferentes tipos utentes autorizados.

Faceao exposto, seria desejável arestrição do uso dos sinaisde indicação de localidade ao fim rodoviário a que se destinam, que é o de indicar a zona de aplicabilidade de um regime de circulação, e não para demarcar limites administrativos.

No atual enquadramento legal, justifica-se a categorização das localidades população não superior a 5000 habitantes atravessadas por rodovias interurbanas em função das respectivas características de ocupação do solo, consoante sejam povoações compactas ou povoações dispersas e a configuração diferenciada da respetiva envolvente rodoviária bem como dos correspondentes limites de velocidade locais, conforme definido em documento específico (Cardoso, 2010).

Nesse documento, uma povoação compacta é toda a localidade cumprindo cumulativamente as seguintes condições:

 20 ou mais edifícios em cada 300 m;

 3 ou mais edifícios em cada 100 m;

 distância entre edifícios inferior a 200 m.

Nos restantes casos consideram-se os aglomerados populacionais como povoações dispersas.

40

DOCUMENTO NORMATIVO PARA APLICAÇÃO A ARRUAMENTOS URBANOS

Fascículo II – Caraterísticas geométricas pararodovias com tráfegomotorizado

Umatravessamentodepovoaçãocaracteriza-seporumportãoemcadaextremidadeepelazona urbana dentro da localidade.

O portãodeveser posicionado no inicioda zona urbana. No entanto, a dispersão de edificações que muitas vezes caraterizam estes aglomerados urbanos complicam a aplicação deste critério. Segundo Cardoso (2010), o espaço urbano central é habitualmente caracterizado por uma densidadedeedificações elevada epor um númeroelevadodeacessosdiretosàs propriedades (maior que 40 acessos/km). Também a presença mais acentuada de tráfego não motorizado (peõeseciclistas)eexigênciasligadasàprocuradeestacionamentorelacionadacom atividades de serviços ou comércio local contribuem decisivamente para a identificação desta fronteira. Outro aspeto a ter em conta é a distância entre as fachadas dos edifícios fronteiros à faixa de rodagem, inferior a 17 m, e o valor das distâncias mínimas entre essas edificações e a faixa de rodagem (se inferior a 5 m). A conjugação destas condições justifica a afixação de limites de velocidade máxima de 50 km/h (regime de circulação urbano), balizando assim a entrada no espaço urbano compacto.

Na Figura 3.2 apresentam-se os indicadores que caracterizam a alteração ao ambiente rodoviárioequefundamentam ainstalaçãodeum portão.Silva et al. (2011a)propõem que,para além do critério associado ao número de acessos mínimos devem ainda ser verificados pelo menos 3 dos restantes 5 critérios estabelecidos para o trecho urbano:

Nos pontos seguintes apresentam-se recomendações para a configuração de cada um destes elementos.

3.3.1 Zonadetransição

Azonadetransiçãocorrespondeaoespaçonecessárioparainformarocondutordaaproximação a portão de entrada em zona urbana. O ambiente em que se insere pode ser do tipo rural ou do tipo suburbano, sem edificações e sem presença de peões e ciclistas.

41
Figura 3.2 – Localização de portão de entrada em trecho de atravessamento de espaço urbano (Silva et al., 2011a)

DOCUMENTO NORMATIVO PARA APLICAÇÃO A ARRUAMENTOS URBANOS

Fascículo II – Caraterísticas geométricas pararodovias com tráfegomotorizado

O maior condicionamento da velocidade nesta zona deve ser conseguido através de uma intensificação da utilização de elementos verticais, que diminuem a sensação de liberdade do condutor. É importante assegurar, no entanto, que a sua disposição não põe em causa as distâncias de visibilidade.Nesta zona devetambém proceder-se àtransiçãodalarguradas vias. Os elementos verticais habitualmente utilizados são cortinas de arbustos de pequeno porte, conjugados com postes de iluminação pública, dispostos entre os dois portões, que permitem enfatizar a existênciada singularidadeaomesmo tempo que sedestaca a entrada em ambiente urbano (ver Figura 3.3).

A dimensão e disposição destes elementos devem provocar uma diminuição da largura óptica, de forma a constranger cada vez mais o condutor. Este efeito é conseguido através de um aumento de volumetria, através da plantação de mais arbustos ou da aproximação da sua disposição (ver Figura 3.4).

42
Figura 3.3 – Entrada em ambiente urbano, com presença de uma rotunda (adaptado de Silva, et al., 2011b)

DOCUMENTO NORMATIVO PARA APLICAÇÃO A ARRUAMENTOS URBANOS

Fascículo II – Caraterísticas geométricas pararodovias com tráfegomotorizado

De forma a não degradar as condições de segurança é recomendável a não colocação de qualquertipodeelementorígidonazonalivre,aqualdevesercaraterizadaporterumasuperfície desempenada e com inclinação transversal inferior a 1:3 (v:h) (Silva et al., 2011b). De acordo com Roque e Cardoso (2011), a largura da zona livre depende da velocidade de circulação, sendo que para 50 km/h ela deve ser 2,5 m e para 90 km/h deve ser 8,0 m. Para considerações adicionais sobre a adequada conceção da área adjacente à faixa de rodagem, recomenda-se a consulta do documento anteriormente referido (Roque e Cardoso, 2011).

A iluminação pública é nesta zona de extrema relevância, pois contribui de forma significativa paraa diferenciação das envolventes rodoviárias noperíodo noturno. Deveser colocada a partir do portão de entrada e continuar por toda a zona urbana.

Em termos de aplicação, considera-se que a iluminação pública, é (adaptado de LTSA, 2002):

 Obrigatória, sempre que existam passeios ou sempre que a presença de peões o justifique;

 Obrigatória, quando o trecho integre elementos físicos, como separadores centrais (contínuos ou localizados);

 Obrigatória, sempre que existam elementos físicos verticais nas proximidades da faixa de rodagem;

 Recomendável, quando a canalização for marcada no pavimento e não se verificar nenhuma das condições anteriores.

Importa ainda salvaguardar as seguintes regras de aplicação:

 A iluminação deve ser prevista de forma contínua, evitando-se a existência de trechos nãoiluminados,sobriscodepoderoriginarsituaçõesdedespistenosperíodosnoturnos;

 As lâmpadas deverão ser dirigidas para o solo, evitando-se a geração de encandeamentos;

43
Figura 3.4 – Disposição recomendada dos elementos verticais na aproximação do portão de entradas da zona urbana (adaptado de Silva, et al., 2011b)

DOCUMENTO NORMATIVO PARA APLICAÇÃO A ARRUAMENTOS URBANOS

Fascículo II – Caraterísticas geométricas pararodovias com tráfegomotorizado

 A iluminação deve sempre realçar a localização de pontos críticos (intersecções, zonas comseparadorescentrais,atravessamentospedonaisecicláveis,etc.),designadamente através do aumento da intensidade da iluminação nessas zonas.

Os postes de suporte da iluminação devem ser preferencialmente do tipo frágil, de modo a derrubaremfacilmentenasequênciadeumeventualimpacto.Nessecaso,asuacolocaçãodeve aindasalvaguardarumadistânciamínimadepelomenos0,5memrelaçãoàdelimitaçãodafaixa de rodagem, devendo preferencialmente localizar-se fora da berma ou na extremidade oposta do passeio, relativamente à faixa de rodagem.

Recomenda-se que o perfil transversal tipo da zona urbana seja igual ao do portão de entrada no mesmo. É recomendável a beneficiação e eventualmente o alargamento das bermas, sendo a construção de passeios aconselhável em locais onde a presença do peão e/ou ciclista (com a devida construção de ciclovia) seja sentida. A proteção destes utentes é particularmente relevante nos casos em que os volumes de tráfego sejam elevados (TMDA de 15000 veículos oumaisou V85 >65km/h)com particular incidênciadeveículos pesados(>15% do TMDA)(Silva et al., 2011b). Note-se que não são admissíveis condições de visibilidade deficientes. Nesses casos o limite de velocidade dever ser compatível com a Distânciade Visibilidade de Paragem.

No portão de entrada, a transição da berma para o passeio deve ser suave, procurando evitar constituir um obstáculo que surge de forma inesperada, pelo que este deve ser sinalizado pela marcação de raias oblíquas (ver detalhes no Fascículo IV).

Nas zonas de transição, sendo locais de descontinuidade, exigindo elevada carga mental de condução não devem ser instalados elementos que aumentem as exigências da condução, como, por exemplo, paragens de transportes coletivos e estacionamentos.

As intersecções que tenham de existir numa zona deste tipo devem ser do tipo prioritário com canalização dos movimentos. De acordo com Silva, et al. (2011b), a materialização dessa canalização pode ser conseguida de várias formas, conforme apresentado na Figura 3.5.

44

DOCUMENTO NORMATIVO PARA APLICAÇÃO A ARRUAMENTOS URBANOS

Fascículo II – Caraterísticas geométricas pararodovias com tráfegomotorizado

Nas zonas de transição o número de acessos à faixa de rodagem deve ser mínimo, devendo procurar-se locais alternativos para efetuar esses acessos.

3.3.2 Portões

Como já referido, um portão tem como objetivo alertar o condutor para a entrada numa zona diferenciada, quer em termosdeexigênciasdosistemadetráfegoquernoqueserefereaorisco de acidente, assinalando, no caso dos atravessamentos urbanos, a separação entre a envolvente interurbana e o meio urbano.

Seguindo os conceitos de estrada autoexplicativa e tolerante do Sistema Seguro, a localização do portão, cuja função é alertar o condutor para a mudança de regime de circulação, deve coincidir com o início da zona urbana do atravessamento.

É recomendável a colocação de sinalização em secções anteriores ao portão, como forma de alertar o condutor relativamente à necessidade de alterar as condições de circulação devido à aproximação de um aglomerado urbano.

Uma vez que demarca a alteração da velocidade máxima, são recomendadas soluções visualmente impactantes, sem serem muito restritivas ao comportamento do condutor (National Roads Authority, 2005).

Énoportãoquedevesercolocadoosinalde“iníciodelocalidade”(N1aouN1bdoRST),apartir doqualéimpostooregimedecirculaçãodentrodelocalidade,conformedeterminadonoCódigo

45
Figura 3.5 – Domínio de aplicação privilegiado das intersecções prioritárias (Department for Transport, 1995, referido em Silva, et al., 2011b)

DOCUMENTO NORMATIVO PARA APLICAÇÃO A ARRUAMENTOS URBANOS

Fascículo II – Caraterísticas geométricas pararodovias com tráfegomotorizado

da Estradae no RS.Assim,o referidosinal não deveser colocadopor questões administrativas, em trechos onde não se justifique o referido regime de circulação, na medida em que a envolvente rodoviária ainda tenha um carater rural, sem presença de utilizadores vulneráveis, e sem função de acesso ou de fruição do espaço. A localização do portão e do correspondente sinal a montante do local onde é efetivamente necessário, pode criar restrições exageradas ao nível de serviço oferecido pelo itinerário e viola as expectativas do condutor, inviabilizando a criação de uma rede de estradas e ruas autoexplicativas e tolerantes.

O portão de entrada deve marcar oinício oureforçodainstalação de passeios, dacolocação de iluminação pública, ciclovias, atravessamentos pedonais, gares destinadas ao estacionamento, paragens de transportes coletivos, entre outros.

Étambémnoportãoquedevemserinstaladosossinaisdelimitedevelocidademáximaacumprir no atravessamento. Os valores a afixar devem ser determinados de acordo com a categoria da povoação atravessada, conforme critérios estabelecidos em Cardoso (2010):

 Atravessamento de povoação compacta com limite de 40 km/h;

 Atravessamento de povoação dispersa com limite superior a 50 km/h3;

 Atravessamento de povoação compacta ou dispersa, com limite geral de 50 km/h (caso em que não é necessário o sinal C13.

A materialização do portão deve ser conseguida por uma combinação de medidas físicas de controlo de velocidade, complementadas por soluções arquitetónicas e de integração paisagística. São aceitáveis as seguintes soluções:

 Rotunda de nível;

 Gincana com estrangulamento da via;

 Semáforos de controlo de velocidade.

Arotundadeníveléasoluçãopreferencial,principalmentequandoassociadaaumaintersecção com outras rodovias, porque permite acumular os efeitos da acalmia de tráfego e da regulação dotrânsito.Noentanto,mesmoquenãoexistaumaintersecção,podeserigualmenteimplantada uma rotunda, uma vez que a deflexão que impõe é extremamente eficaz tanto na redução de velocidades como na diferenciação das envolventes.

Érecomendável autilização de materiais granulares nailha central e de vegetaçãorasteira e de médio porte, permitindo induzir uma sensação de afunilamento visual, ao mesmo tempo que reduz a energia cinética de veículos descontrolados que a invadam.

46
3 Nota: Nestes casos,a afixação delimitesuperiora 50 km/hé feita por despachodo Presidente da ANSR.

DOCUMENTO NORMATIVO PARA APLICAÇÃO A ARRUAMENTOS URBANOS

Fascículo II – Caraterísticas geométricas pararodovias com tráfegomotorizado

Caso não exista espaço suficiente para a implantação de uma rotunda, deve pelo menos ser criada uma gincana, que também impõe deflexões às trajetórias. Recomenda-se que esta solução seja acompanhada por uma redução da largura da via e uma alteração do pavimento (Silva et al., 2011c).

Casonãoexistaespaçosuficienteparaainstalaçãodeumagincanaeseverifiquemvelocidades superiores ao desejado, recomenda-se a adoção de uma solução simplificada que consiste na colocação de sinalização luminosa para controlo de velocidade.

3.3.3 Arruamentonazonaurbana

A zona urbana é caracterizada pela existência de edificações e atividades marginais de outros utilizadores como peões e ciclistas, onde, para além do tráfego de atravessamento, existe o tráfego local que, frequentemente, acede a propriedades e realiza inversões de marcha, manobras de estacionamento, etc. (Silva, et al., 2011a).

Deste modo, a velocidade máxima a considerar deve ser de 50 km/h, podendo, no entanto, justificar-se o recurso a limites diferentes em casos específicos (Silva et al., 2011c). Detalhes sobre a escolha do limite de velocidade adequado devem ser consultados no manual sobre recomendações para definição e sinalização de limites de velocidade máxima (Cardoso, 2010), a qual depende fundamentalmente de três aspectos:

 Categoria da povoação (compacta ou dispersa),

 Largura do espaço canal disponível, medida pela distância entre fachadas dos edifícios fronteiros à estrada,

 Proteçãoconferidapelainfraestruturaaosutentesvulneráveis,sobaformaderegulação por sinais luminosos do atravessamento de peões, existência de pistas para ciclistas e paragens de autocarros em gare.

As soluções globais a considerar para tratamento do trecho urbano de atravessamento devem ser concebidas de forma a contribuir para uma uniformização do ambiente rodoviário, ainda que atendendo às especificidades locais.

As características do traçado devem ser adequadas ao limite de velocidade máxima recomendado(vercapítulo 2),designadamentenoqueserefereàlarguradas vias quedeveser de 3,00 m, exceto nos casos dos arruamentos de atravessamento de povoações dispersas com limite de velocidade máxima de 70 km/h, em que a largura de via é de 3,25 m.

Os elementos fundamentais do perfil transversal tipo aplicáveis àz zonas urbanas dos atravessamentos são apresentados no capítulo 2 deste fascículo.

47

DOCUMENTO NORMATIVO PARA APLICAÇÃO A ARRUAMENTOS URBANOS

Fascículo II – Caraterísticas geométricas pararodovias com tráfegomotorizado

Para atender às especificidades locais, Silva et al. (2011c) elaboraram um conjunto de recomendaçõesparaaconceçãodearruamentosdeatravessamentodepovoaçõesestruturadas de acordo com três parâmetros: os níveis de procura de tráfego, o espaço canal disponível e a extensão do trecho de atravessamento.

Com este último parâmetro pretende atender-se à demora imposta ao condutor no atravessamentodalocalidade,frutodolimitedevelocidadeedeperturbaçõesnofluxodetráfego. O segundo parâmetro reflete a disponibilidade de espaço físico para edificação de soluções –por exemplo de ciclovias ou para segregação do tráfego local.

Relativamente ao tráfego aqueles autores consideraram três níveis:

 tráfego elevado, correspondendo a TMDA entre 12000 e 20000 veículos;

 tráfego moderado, com TMDA entre 5000 e 12000 veículos;

 tráfego baixo, para TMDA inferior a 5000 veículos.

No primeiro caso é preconizada por Silva et al. (2011c) uma abordagem que valoriza mais a fluidez e a capacidade, comparativamente à vivência urbana; no segundo é preconizada uma abordagem com preocupações idênticas ao nível da vivência urbana e da fluidez do tráfego motorizado; e no terceiro é recomendada a valorização das condições de vivência urbana e de qualidade de vida local.

Detalhes sobre as soluções específicas propostas para cada um dos níveis de tráfego podem ser consultados em Silva et al. (2011c). A aplicação das mesmas, deve, no entanto, ser condicionada por critérios de segurança rodoviária, para se adequar aos princípios os Sistema Seguro referidos no Fascículo I.

Para garantir que a velocidade do tráfego estará de acordo com o limite máximo pretendido, devem ser adotadas medidas de acalmia de tráfego, que consistem genericamente em combinações de dispositivos (ver Fascículo IV), cujo grau de restrição imposta à liberdade dos condutores depende dos objetivos.

Na generalidade dos casos, o tratamento dos atravessamentos de localidades envolve medidas para o controlo da velocidade de circulação, que se caracterizam por marcação vincada das fronteiras da povoação, mediante construção de portões, e por alterações nos alinhamentos horizontaisenosalinhamentosverticais,complementadasporintervençõestendentesadiminuir a sensação de desafogo lateral, como estreitamento de vias e construção de passeios sobrelevados.

As alterações dos alinhamentos horizontais incluem medidas que impõem aos condutores a inscrição em trajetórias curvilíneas em planta,asensaçãode constrangimento laterale, mesmo,

48

DOCUMENTO NORMATIVO PARA APLICAÇÃO A ARRUAMENTOS URBANOS

Fascículo II – Caraterísticas geométricas pararodovias com tráfegomotorizado

a obrigatoriedade de partilha do direito de passagem com o sentido contrário, normalmente conjugandosoluçõesdegincanaseestrangulamentos.Asalteraçõesaosalinhamentosverticais englobam as medidas que alteram a cota do pavimento, que ao criarem um grande desconforto ao condutor, o induzem à prática de velocidades baixas. Nos dispositivos indutores de velocidades de circulação baixas, incluem-se ainda medidas complementares, normalmente aplicadas de forma integrada com as medidas anteriormente referidas, contribuindo para a funcionalidade global do espaço e respetiva qualidade paisagística.

Quadro 3.3 – Domínio de aplicabilidade de diversas medidas de acalmia de tráfego (Silva e Santos, 2011)

Alteraçõesnoalinhamentohorizontal

Gincana

Estrangulamento

Estreitamentojunto àentradade interseção

Rotunda (comumaviano aneldecirculação)

Até50km/h; Gincanascomreduçãodo númerodevias:até40km/h

Até50km/h; Estrangulamentoscom reduçãodonúmerodevias: até40km/h

Até50km/h; Estrangulamentoscom reduçãodonúmerodevias: até40km/h

Até70km/hpararotundas normaise25a30km/hpara mini-rotundas

Gincanasmaissuaves:TMDAaté 20000veículos

Gincanascomreduçãodonúmerode vias:TMDA até3000veículos

TMDAaté20000veículos Estrangulamentoscomreduçãodo númerodevias:TMDAaté3000 veículos

TMDAaté20000veículos

ReajustedasinterseçõesemT: TMDAaté5000veículos

TMDAaté20000veículospara rotundasnormaiseaté5000veículos paramini-rotundas

Alteraçõesnoalinhamentovertical M20-Bandas cromáticas

Viaslocais

Todosostiposdevias Desaconselhadoemruacom ciclovias

Qualquertipoderua Desaconselhadoemruacom cíclovias

Zonasurbanaseinter-urbanas Mini-rotundasapenasemruas deacessolocal

Afastardelocaisaprotegerdo ruído

Emviasdeacessolocalem zonasresidenciaisecomerciais. Nãorecomendadasparatrajetos comintensotráfegodepesados eveículosdeemergência.

Zonasresidenciais,comerciaise centrais

Viadenívelcom passeios Velocidadedecaminhada

TMDAaté1000veículos(residencial) ou3000veículos(comercial)

Zonasdecoexistência

49
Dispositivode controlode velocidade Domíniodeaplicaçãoe Velocidademáxima Volumedetráfego Tipodevia
Lomba Até40km/h TMDAaté5000veículos
Plataformaelevada Até50km/h TMDAaté10000veículos
Intersecção sobrelevada Até50km/h TMDAaté10000veículos
Zonasresidenciais,comerciaise centrais
Sinalização luminosa Vários Vários Vários Portãodeentrada Vários Vários Vários
Outrosdispositivos

DOCUMENTO NORMATIVO PARA APLICAÇÃO A ARRUAMENTOS URBANOS

Fascículo II – Caraterísticas geométricas pararodovias com tráfegomotorizado

Fechostotais:TMDAaté3000

Fechosparciais:TMDAaté5000 veículos

Ruastransversaisao atravessamento,emzonas residenciais,comerciaise centrais

Barreiraem

Barreirasdiagonais:ruaslocais; Barreirascentraiseilhéus deflectores:intersecçõesderuas locaiscomruasdehierarquia superior

Adefiniçãodoespaçamentoentremedidasdeacalmiadependedascaracterísticasdolocal,das características de cada dispositivo aplicado (isoladamente e em conjunto) e da velocidade que se pretende praticada. Segundo Silva e Santos (2011) este aspeto foi analisado por alguns autores, que sugerem:

• Espaçamentos não superiores a 50 m de forma a garantir a manutenção da velocidade (CROW, 1998).

• Um espaçamento que não permita aos veículos circular mais de 8 km/h acima do limite de velocidade máxima (MATD, 2001);

• Espaçamentos compreendidos entre os 80 e os 100 m destinadas a obter velocidades de 20 a 25 km/h no ponto de aplicação da medida e 40 km/h entre medidas (Zaidel, et al., 1992).

Uma outra forma de analisar o problema consiste na aplicação da expressão abaixo indicada, ondeseconsideraqueocondutoraplicaumaaceleraçãode1ms-2 apósatravessarodispositivo e imprime uma desaceleração de -1 ms-2 na aproximação ao dispositivo seguinte:

Em que:

d – Distância entre dispositivos (m),

Vl2 – Limite de velocidade máxima no trecho de estrada (km/h),

Vdaa2 – Velocidade à passagem no dispositivo de acalmia de tráfego anterior (km/h),

Vdap2 – Velocidade à passagem no dispositivo de acalmia de tráfego posterior (km/h).

No caso especial de aglomerados urbanos de pequena dimensão pode ser justificada a adoção de soluções mais restritivas, para aumentar o efeito perturbador do atravessamento da povoação, induzindo a prática de velocidades mais baixas. Em Silva et al., (2011c) são apresentadasrecomendaçõesparaestassituaçõesespeciais,juntamentecom oscasosem que ocentrourbanonãoexiste(edificaçõesdispersas)ouquandoazonaurbanasedesenvolvesem

50
controlode velocidade Domíniodeaplicaçãoe Velocidademáxima Volumedetráfego Tipodevia
trânsito ----
Dispositivode
Ruasfechadasao
veículos
interseção Até30km/h TMDAaté5000veículos
��= �� �� �� 2×3.6 (3-1)

DOCUMENTO NORMATIVO PARA APLICAÇÃO A ARRUAMENTOS URBANOS

Fascículo II – Caraterísticas geométricas pararodovias com tráfegomotorizado

interação significativa com a estrada. As soluções carecem de adaptação aos princípios do Sistema Seguro.

Intersecções

A ligação da restante malha urbana à estrada principal do atravessamento carece também de preocupações ao nível da conceção, para que seja praticada uma transição gradual da velocidade entre os dois contextos distintos. Os locais de acesso a uma zona de coexistência não devem ser realizados na estrada principal de atravessamento; quando, excecionalmente, não haja alternativa, devem ser identificados com sinalização devidamenteregulamentadaeser dotados das caraterísticas descritas no capítulo 5 do Fascículo III, designadamente através da alteração do desenho do espaço (cores, textura, contraste, etc.) de forma a serem facilmente identificados como tal pelos utilizadores (IMTT, I.P., 2011d).

Os detalhes da tipologia de intersecções recomendada por Silva et al., 2011c para as medidas de acalmia de tráfego também é função dos níveis de volume de tráfego, devendo ser compatibilizados com os princípios do Sistema Seguro.

Exemplos dessa compatibilização são apresentados no manual holandês (CROW, 1998), onde as interseções de entrada e saída de Zonas 30 e de Zonas de Coexistência são objeto de conceção cuidada, para garantir a promoção de velocidades adequada. São recomendadas diversas configurações adaptadas a transições deste este tipo, conforme se apresenta nas figuras 1.7 a 1.10.

51
Figura 3.6 – Solução para limites de Zonas 30 com construção destacada da saída (CROW, 1998)

DOCUMENTO NORMATIVO PARA APLICAÇÃO A ARRUAMENTOS URBANOS

Fascículo II – Caraterísticas geométricas pararodovias com tráfegomotorizado

52
Figura 3.7 – Solução simples para limites de Zonas 30 (CROW, 1998) Figura 3.8 – Solução para limites de Zonas 30 com arcos ou edificações (CROW, 1998)

DOCUMENTO NORMATIVO PARA APLICAÇÃO A ARRUAMENTOS URBANOS

Fascículo II – Caraterísticas geométricas pararodovias com tráfegomotorizado

Passagens para peões e ciclistas

As passagens para peões e para ciclistas são zonas de elevado risco para estes utentes vulneráveis, dados os conflitos que aí podem ocorrer, que são tanto mais numerosos quanto mais elevado for o TMDA de veículos motorizados que circula na rodovia a atravessar. Numa redepedonalouciclávelbemconcebida,aspassagensparapeõeseaspassagensparaciclistas constituem as zonas de maior perigo de ferimentos destes utentes por colisão com veículos motorizados.

A mitigação do risco deve ser primordialmente conseguida através de intervenções para moderação das velocidades, que deverão ser mais restritivas se houver volumes de tráfego de veículos pesados significativos ou distribuições de velocidades menos favoráveis, traçados retilíneos, bem como na proximidade de escolas, hospitais, lares de idosos, etc.

O recurso a sinais luminosos pode constituir uma solução bastante eficaz na proteção dos utentes vulneráveis, sendo necessária caso o limite de velocidade na estrada a atravessar seja

53
Figura 3.9 – Solução para limites de Zonas 30 em secção corrente (CROW, 1998)

DOCUMENTO NORMATIVO PARA APLICAÇÃO A ARRUAMENTOS URBANOS

Fascículo II – Caraterísticas geométricas pararodovias com tráfegomotorizado

superior a 50 km/h. É recomendável que os sinais luminosos a instalar sejam atuados com botoneira, de forma a minimizar a interferência na fluidez do tráfego. As particularidades da implementaçãodestetipodecontrolodotráfegonaszonasurbanasdeatravessamentosurbanos são também apresentadas em Silva et al., 2011c.

NosCapítulos2e3doFascículoIIIsãoapresentadassoluçõespara,respetivamente,passagens para peões e passagens para ciclistas.

Estacionamento ao longo da rodovia

Relativamente ao estacionamento, recomenda-se a disponibilização de lugares de estacionamento ao longo da rodovia, paralelamente à faixa de rodagem, formalmente definidos e devidamente interrompidos na aproximação das intersecções e de passagens para peões e ciclistas.Asparagensdostransportescoletivostambémdevemserprevistasaolongodarodovia edevidamente interligadas com arede pedonal. Os aspetos dimensionais da implementação do estacionamento e das paragens de autocarros na zona urbana são apresentadas nos capítulos 6 e 5, respetivamente.

As dimensões transversais do canal de circulação disponível (distância entre as fachadas dos edifícios fronteiros) e a compatibilização entre cotas dos arruamentos, dos passeios e de outras zonas da envolvente urbana impõem restrições diretas ao perfil transversal tipo e, portanto, às soluções globais suscetíveis de serem escolhidas. Silva et al., 2011c preconizam um conjunto de recomendações para os trechos sujeitos a este tipo de constrangimentos transversais do espaço canal, que devem ser compatibilizados com os princípios do Sistema Seguro.

54

NORMATIVO PARA APLICAÇÃO A ARRUAMENTOS URBANOS

Fascículo II – Caraterísticas geométricas pararodovias com tráfegomotorizado

4| Zonas30

4.1 Conceito

UmaZona30correspondeaum conjuntodetrechosderodoviadispostosem redenumaáreacontínua e configurados para assegurar o movimento e circulação de todos os utentes, e onde o limite de velocidadedosveículoséde30km/heestáassinaladoapenasnafronteiradaárea,medianteossinais

G4a-Zona 30 km/h (na entrada) e G10-Fim de Zona 30 km/h (na saída) colocados nos respectivos portões.

Com alimitação da velocidade dos veículos a 30 km/hpretende-se induzir a práticade umacirculação segura e pouco ruidosa e poluente (IMTT, I.P., 2011d). Nesse espaço público procura-se estabelecer um equilíbrioentreaspráticasdavidalocaleafunçãodecirculaçãoatravésdalimitaçãodavelocidade máxima permitida aos veículos a um valor compatível com a resistência biomecânica dos peões e ciclistas (ver Fascículo I). Promove-se a caminhada, facilitando as passagens pedonais em qualquer pontodaZona30eousodebicicletas,permitindoasuacirculaçãopartilhadacomveículosmotorizados (Certu-Le zone 30, 2008).

O conceito de Zona 30 está em consonância com os desígnios da “acalmia de tráfego”, a qualse rege pelo objectivo de redução dos impactes negativos do tráfego motorizado e a melhoria das condições de circulação dos modos suaves bem comodoambienteurbano,estabelecendo umaefectivaredução dos volumes de tráfego e da sua velocidade em espaços urbanos qualificados para o efeito (Silva e Custódio, 2013).

Aorestringirapráticadevelocidades excessivascontribui-setambém paraareduçãodaocorrênciade acidentes e das suas consequências e simultaneamente para o aumento da qualidade de vida nessas zonas. Este conceito, inicialmente desenvolvido nos Países Baixos (ver também Fascículo III), começou por ser estabelecido em áreas residenciais, para protecção de crianças. No Reino Unido, onde também foi implementado, foram obtidas reduções de 2/3 na frequência de envolvimento de crianças em acidentes (DETR, 1999). Posteriormente, foi alargado a outro tipo de áreas, designadamentecomerciaisenonúcleourbanodecidades.São locaisondesepretendesalvaguardar a segurança dos utentes vulneráveis, particularmente as crianças e os idosos.

O dimensionamento de uma Zona 30 deve orientar-se pelo princípio de segregação do espaço destinado à circulação dos veículos (motorizados e não motorizados) do destinado à caminhada dos peões. No primeiro caso, os peões devem ceder o direito de passagem aos veículos, excepto onde sinalizado de outra forma (ANSR, 2019).

DOCUMENTO
55

DOCUMENTO NORMATIVO PARA APLICAÇÃO A ARRUAMENTOS URBANOS

Fascículo II – Caraterísticas geométricas pararodovias com tráfegomotorizado

Aenvolventerodoviária de umaZona 30garante oacessosegurodos veículosmotorizados ao interior deáreassensíveisdaszonasurbanas.Asvelocidadesbaixasquesepretendesejampraticadasnesses locais são conseguidas, por um lado, através da construção de medidas de engenharia que limitam fisicamenteapossibilidadedeaceleraçãodosveículose,poroutro,atravésdoefeitodapressãosocial dos utentes e habitantes desses locais. Salienta-se que a aplicação de medidas de acalmia de tráfego é essencial, uma vez que recorrer apenas a sinalização e outras medidas psicológicas não é eficaz quandose pretendediminuiras velocidades (Cardoso, 2010),conforme demonstrado pelaexperiência inglesa(Atkins,2018). São apresentadas noFascículo IVdiversassoluções especificascom aplicação em Zonas 30.

4.2 Baseseprincípios paraimplementação

Para implementar uma Zona 30 é necessário previamente começar por definir a hierarquia viária (conforme descrito no capítulo 2 do Fascículo I), pois todas as rodovias que não constituem eixos estruturantes para acirculaçãomotorizadana cidadepodem vir aser integradas em Zonas 30. As vias em Zona 30 só têm razão de ser por estarem numa área tratada como tal (em alternativa a um tratamento de corredor). A sua implementação, preferencialmente em área, será vantajosa em locais de actividade intensa como, por exemplo, em áreas urbanas residenciais ou multifuncionais, na envolvente de equipamentos escolares e em setores em que o tráfego de atravessamento não seja adequado.

Note-sequeareduçãoda velocidade, medianteacriação de descontinuidades no traçado, obtidacom aintegraçãodeumaruanumaZona30 tem como consequênciaum aumentodo tempode percurso,o quetendeadissuadir autilizaçãodestas zonasporpartedotráfego deatravessamento(ANSR, 2019). Após a definição da hierarquia viária, há que proceder à delimitação dos locais potenciais para a implementação (IMTT, I.P., 2011d). Assim, será necessário diferenciar a zona em causa da área circundante, o que poderá ser feito promovendo um esquema de circulação que impeça o tráfego de atravessamento no interior da Zona 30 e assinalando as entradas e saídas, vincando-as mediante portões de acesso, que levem os condutores a mudarem o seu comportamento quando entram nessa área.

No interior da Zona 30 o desenho urbano deve ser orientado para maximizar o espaço para os peões eminimizaroespaçoparaacirculaçãodeveículos,aomesmotempoquedevemserprevistasmedidas de acalmia de tráfego que induzam ao cumprimento do limite de velocidade estipulado de 30 km/h (Silva e Custódio, 2013).

A avaliação da elegibilidade de uma área para Zona 30 deve atender aos seguintes aspetos (Silva e Seco, 2016):

56

DOCUMENTO NORMATIVO PARA APLICAÇÃO A ARRUAMENTOS URBANOS

Fascículo II – Caraterísticas geométricas pararodovias com tráfegomotorizado

1) O uso do solo servido e afectado;

2) As funções asseguradas ou a assegurar pelas ruas, face à sua categoria na hierarquia viária;

3) A dimensão da área a intervencionar;

4) Os volumes de tráfego admissíveis em cada rua.

No que se refere aos usos do solo afetados, é recomendável que as Zonas 30 sejam implementadas preferencialmenteem locaisdeusoresidencial,podendotambém seraplicadasemlocaisdeusomisto (residencial, comercial e equipamentos) e em zonas centrais, comerciais ou de serviços. Assim este tipo de intervenção também pode ser visto como umaoportunidade para requalificar o espaço urbano, atravésdeumadequadodesenhourbano.Estetipodetratamentotambémpodeseraplicadoemzonas urbanas onde a densidade de construção é mais baixa, característica de povoações de menor dimensão, desde que o volume de tráfego motorizado possa ser baixo a moderado.

Locais onde seja necessário assegurar a acessibilidade local com velocidades superiores a 30 km/h não são elegíveis para a implementação deste conceito. É o caso de áreas atravessadas por arruamentos de acesso a hospitais, quartéis de bombeiros e outros equipamentos similares.

Relativamente à hierarquia viária, refere-se que nas Zonas 30 a função acessibilidade prevalece em detrimento da função mobilidade. São zonas desenvolvidas à escala do “bairro” ou da “unidade de vizinhança”.

Deacordocom oreferidonocapitulo2do Fascículo I os arruamentos pertencentes aZonas 30devem ser classificados como “Vias urbanas de Nível IV as quais correspondem aos arruamentos em zona residencial, com funções de acessibilidade e de fruição do espaço público, com limite de velocidade máxima igual ou inferior a 30 km/h, e prevalência do peão”.

A dimensão da área a intervencionar é outro dos aspetos relevantes na elegibilidade para a implementaçãodeumaZona30.AsZonas30têmdemonstradoasuaversatilidadeeeficiênciaquando aplicadas a espaços com diferentes dimensões e exigências. De facto, os resultados têm sido muito positivos, quer se implemente num bairro ou num espaço mais vasto (Traffic Advisory LeafletDfT,1999, referido em Silva e Seco, 2016).

O valor de referência para a extensão máxima das ruas dentro de uma Zona 30 é da ordem de um quilómetro (Traffic Advisory Leaflet - DfT, 1991, referido em Silva e Seco, 2016). Com este valor, a práticapedonaleacirculaçãode veículos avelocidades baixas amoderadas podem ser asseguradas. Nos arruamentos com praças de retorno, é recomendável que esse comprimento seja no máximo de 200metros.DeacordocomSilvaeSeco(2016),aáreaglobaldeintervençãodeveestarcompreendida entre 0,2 e 2 km2, justificada pelos menores níveis de sinistralidade nas zonas de menor dimensão.

Finalmente, referem-se os níveis de tráfego como fator de análise. Nos locais onde se prevê o estabelecimento de Zonas 30 é importante ponderar a exclusão das ruas que apresentem perfis e

57

DOCUMENTO NORMATIVO PARA APLICAÇÃO A ARRUAMENTOS URBANOS

Fascículo II – Caraterísticas geométricas pararodovias com tráfegomotorizado

volumes de tráfego que não correspondem à sua função principal (acesso), nem às necessidades dos residentes. O volume de tráfego máximo recomendado nas Zonas 30 é de 150 veículos/hora/sentido (Silva e Seco, 2016). Desta forma assegura-se que os níveis de tráfego nos arruamentos não entram em conflito com as funções asseguradas pela rua, ao mesmo tempo que promovem a reafetação de espaço à circulação pedonal e ciclável, bem como à socialização no espaço urbano.

São vários os fatores que influenciam o volume de tráfego gerado: a dimensão da zona, o tipo de uso do solo, o número de habitações servidas e os níveis de atratividade da zona, quer em termos de tráfego de atravessamento quer de oferta de estacionamento.

Por outro lado, não é aconselhável aimplementação de Zonas 30 em zonas residenciais com volumes de tráfego na hora de ponta superiores a 100 veíc./ em zonas centrais cujos valores sejam superiores a 300 veíc./h na hora de ponta (Seco et al., 2008c).

A conceção de uma Zona 30 deve ser vista como uma solução global que tem em conta as características gerais e especificas da zona de intervenção. No entanto, é conveniente definir um conjunto de princípios orientadores do planeamento e implementação de uma Zona 30 (IMTT, I.P., 2011d):

 Simplicidade, para que seja facilmente compreendido pelos destinatários;

 Adequação com a estrutura urbana;

 Coerência entre todas as medidas e regras a implementar;

 Evitar excessos de condicionamentos;

 Evitar exceções à regra;

 Monitorização e avaliação, a fim de verificar se os objetivos iniciais foram alcançados e se haverá necessidade de adaptações posteriores;

 Participação activa da população no início, durante a fase de planeamento e durante a implementação.

ImportaterpresentequeaconceçãodeumaZona30deveserdevidamentecoordenadacomoespaço envolvente, dando continuidade às redes pedonal e ciclável, e às ligações físicas do espaço às zonas de interesse adjacentes (ANSR, 2019).

Destacam-se seguidamente as particularidades de conceção das Zonas 30 propriamente dita, bem como das zonas de fronteira (entrada e saída).

No interior

O funcionamento das Zonas 30 deve obedecer aos seguintes princípios estruturantes (IMTT, I.P., 2011d):

 Regulamentares

- A velocidade máxima permitida é 30 km/h.

58

DOCUMENTO NORMATIVO PARA APLICAÇÃO A ARRUAMENTOS URBANOS

Fascículo II – Caraterísticas geométricas pararodovias com tráfegomotorizado

- O espaço para uso dos peões está separado do reservado para os veículos.

 Gestão da circulação motorizada

- As rodovias inseridas numa Zona 30 devem pertencer à mesma categoria hierárquica e desempenhar apenas funções locais, ou seja, vias urbanas com função principal de acesso, correspondente à categoria de arruamento residencial nível IV, tal como referido no capítulo 2 do Fascículo I. Assim, nestes locais, deve ser reduzida ou mesmo inibida a presença de tráfego não tendo como origem ou destino a Zona 30.

- Nas interseções aplica-se o princípio de prioridade à direita, o que permite condicionar a velocidade nesses pontos singulares, pelo que não deverão ser colocados sinais verticais ou luminosos. É desejável que as intersecções sejam giratórias (rotundas ou minirotundas).

- As medidas físicas de acalmia de tráfego devem ser adequadas a cada eixo viário, permitindo a limitação da velocidade desejada a 30 km/h.

 Circulação dos modos suaves

- Os espaços partilhados exigem velocidades mais baixas (a passo, mesmo para bicicletas) e configuração imediatamente reconhecível, para serem compatíveis com os princípios do Sistema Seguro. Exigem por isso outra modelação física, para serem reconhecidos imediatamente pelos condutores.

- As baixas velocidades praticadas pelos veículos motorizados permitem a partilha do espaço de circulação com os ciclistas que circulem no mesmo sentido (vias banalizadas). Em arruamentos de sentido único, a permissão de circulação de velocípedes em sentido contrário obriga à marcação de uma faixa ciclável (ver Capítulo 3 do Fascículo III).

 Transporte público

-Deum modogeralnasZonas30nãodevem circulartransportescoletivos.No entanto,nas zonas de maior dimensão pode admitir-se o acesso de autocarros.

Nessecaso,osautocarrospodemcircularemalgumasvias,sujeitosaomesmolimitedevelocidade de 30 km/h. O desenho urbano deve assegurar o nível de conforto necessário aos utentes dos autocarros, podendo ser previstos atalhos na circulação destes e das bicicletas que permitam não penalizar tanto os respectivos tempos de trajecto.

 Estacionamento

-Sejaqualforaconfiguração,deveserdesincentivadaainvasãodosespaçosdestinadosapeões e ciclistas por parte dos veículos estacionados (Silva e Seco, 2016). Sempre que possível, o

59

DOCUMENTO NORMATIVO PARA APLICAÇÃO A ARRUAMENTOS URBANOS

Fascículo II – Caraterísticas geométricas pararodovias com tráfegomotorizado

estacionamento para residentes deverá ser remetido para os logradouros privados e os lugares de estacionamento oferecidos na via pública deverão ser em número limitado.

- A localização dos lugares de estacionamento ao longo de um arruamento pode ser fator de acalmia de tráfego, uma vez que contribui para a sensação de confinamento lateral e permite apresentardeformanaturalalteraçõesdetrajectóriaem planta,comogincanas.Deve,noentanto, ser garantida a largura mínima da via de circulação.

- Na proximidade de escolas e outros equipamentos públicos ou serviços em que se verifica um aumento de fluxo de pessoas em determinados horários, devem estar previstos estacionamentos de elevada rotação e percursos alternativos para transporte individual.

 Cargas e Descargas

- Devem existir espaços e horários definidos para a realização de operações de cargas e descargas.

 Desenho urbano

- Tanto as zonas de circulação dos peões como a dos veículos não motorizados devem ser dotadas de uma largura útil mínima adequada, de modo a satisfazer as necessidades de todos, em especial dos utentes com mobilidade condicionada.

- Nas Zonas 30 dever-se-ão adotar faixas de rodagem entre 5,0 m e 6,0 m (com mínimo absoluto de 4,5 m), no caso de dois sentidos de trânsito e entre 3,0 m e 3,25 m no caso de sentido único (mínimo de 3,0 m) e em relação aos caminhos/ espaços pedonais deve ser salvaguardada uma faixa contínua mínima livre de 1,5 m de largura (mínimo desejável de 1,8 m) (Silva e Seco, 2016).

- As larguras da faixa de rodagem para circulação de veículos motorizados devem ser tão pequenas quanto possível mas com as dimensões adequadas à circulação do volume de tráfego e tipologia de veículos prevista.

- No caso de novas urbanizações ou de grandes ações de reabilitação do espaço, o desenho urbano deve condicionar os condutores de veículos motorizados a circularem a velocidades não superiores a 30 km/h, de forma a salvaguardar a segurança dos peões e dos ciclistas.

- Nas Zonas 30 devem ser utilizados pavimentos diferenciados, recorrendo a diferentes cores ou materiais e vários elementos de mobiliário urbano, de forma a diferenciar os vários espaços e a evidenciar os elementos de acalmia tráfego.

 Controles e sanções

60

DOCUMENTO NORMATIVO PARA APLICAÇÃO A ARRUAMENTOS URBANOS

Fascículo II – Caraterísticas geométricas pararodovias com tráfegomotorizado

Após a implementação da Zona 30 será necessário efectuar um controlo a fim de aferir a eficácia desta medida, verificando se a velocidade limite é respeitada, se a ocupação dos lugares de estacionamento é adequada e se as regras nas interseções são observadas.

Zonas de fronteira

A entrada numa Zona 30 deverá ser preferencialmente, associada a um cruzamento (ou idealmente a um entroncamento numa rua principal), de modo a garantir que os movimentos de entrada sejam realizadosabaixavelocidade.Complementarmente,estetipodeconfiguraçãoencaminhanaturalmente os condutores que não tenham como destino a área da Zona 30 para o trajeto alternativo preferencial assegurado pelarede envolvente (ANSR, 2019).

As Zonas 30 devem ser assinaladas à entrada e à saída, para que os condutores as reconheçam e adequem o seu comportamento quando entram nessas zonas, praticando velocidades reduzidas. Assim, as entradas e saídas devem ser sinalizadas com os sinais regulamentares (sinais G4a-Zona 30 km/h, na entrada, e G10-Fim de Zona 30 km/h, na saída – ver Figura 4.1), os quais devem ser complementados com a disposição de elementos diferenciadores destas secções.

Para tal devem ser construídos elementos de referência, designados de portões, mediante aplicação de texturas ou cores diferentes na superfície do pavimento, marcas rodoviárias para evidenciar a existência de dispositivos de redução de velocidade, para além de princípios de desenho urbano que transmitam de forma clara a informação de entrada ou saída de uma zona diferenciada (IMTT, I.P., 2011d).

4.3 Medidasde AcalmiadeTráfegopassíveisde aplicação

Tal como tem vindo a ser referido o limite de velocidade para os veículos motorizados no interior de uma Zona 30 é 30 Km/h.

61
Figura 4.1 – Sinais de início e fim de Zona 30 (G4a e G10, respetivamente)

DOCUMENTO NORMATIVO PARA APLICAÇÃO A ARRUAMENTOS URBANOS

Fascículo II – Caraterísticas geométricas pararodovias com tráfegomotorizado

Neste sentido, com vista a condicionar a velocidade dos veículos motorizados e a promover a segurança nesses espaços, há que combinar a gestão do tráfego com o desenho urbano e o traçado dos arruamentos, estabelecendo um ordenamento interior e as configurações geométricas individuais compatíveis e coerentes com a velocidade máxima pretendida.

No interior da Zona 30 as intervenções devem evidenciar o carácter urbano local, promovendo a escolha de velocidades moderadas e o respeito mútuo entre todos os utentes desse espaço sejam constantes.

Numa Zona 30 devem ser aplicadas medidas físicas de acalmia de tráfego e, como já referido, o ordenamentodeveserassentenoprincípiogeraldasegregaçãomodaldos espaços.Apesardedispor de um canal próprio de circulação e de dever ceder o direito de passagem aos veículos motorizados circulantes na faixa de rodagem, o peão deverá poder efetuar atravessamentos em qualquer ponto da rede, em segurança.

A configuração dos arruamentos deve permitir que os utilizadores mais vulneráveis circulem em segurança, pelo que, a fim de controlar o volume de tráfego, em cada arruamento não deverá existir um número superior a 200 habitações e os arruamentos deverão ter uma extensão máxima de 200 metros, sempre que terminem em praças de retorno.

Para controlar os volumes de tráfego e dissuadir o tráfego de atravessamento devem ser aplicadas medidas físicas restritivas tais como (ANSR, 2019):

 fecho total ou parcial de ruas ou de movimentos em cuzamentos,

 imposição de sentidos únicos,

 estreitamento da faixa de rodagem na entrada ou ao longo da rua

Nos casos derequalificaçãodo espaço urbano, em queodesenhourbano eos aspectos paisagísticos desempenham umaimportantefunçãonoordenamento,deveráhaverapreocupaçãodecriarruasque sejam esteticamente atrativas e funcionais e que, ao mesmo tempo, facilitem a legibilidade da zona, identificando e delimitando os espaços afetos a cada uma das diferentes funcionalidades previstas.

Apesar de, tal como já referido, os peões terem o dever de ceder direito de passagem aos veículos motorizadosforadaspassagensparapeões,devemseraplicadasmedidasquecondicionemaescolha da velocidade pelos condutores, adequando-a aos valores biomecanicamente aceitáveis. Segundo York et al. (2007), referido por Silva, et al. (2019) os seguintes aspetos contribuem para aumentar a perceção de risco e induzir o condutor a optar por velocidades baixas:

 Prevenção de linhas de visada superiores à distância de visibilidade necessária;

 Quebra de continuidade aos alinhamentos retos;

 Aumento da atividade na rua.

62

DOCUMENTO NORMATIVO PARA APLICAÇÃO A ARRUAMENTOS URBANOS

Fascículo II – Caraterísticas geométricas pararodovias com tráfegomotorizado

O princípio de segregação modal aplica-se em Zonas 30, onde o veículo motorizado tem a primazia, havendo a necessidade de implementar a segregação do uso do espaço canal da infraestrutura em função do modo de transporte. Para esse efeito devem ser criados diferentes espaços, bem delimitados, para cada tipo de utilizador, vincando a pretendidasegregação espacial, designadamente através de lancis e passeios sobrelevados e de pavimentos que identifiquem cada espaço.

Nos arruamentos haverá a necessidade de assegurar o acesso e o estacionamento. No entanto mantém-se a necessidade de manter a segregação espacial, pelo que deverá ser evidenciada a diferenciação entre as faixas de rodagem e os espaços destinados a estacionamento, recorrendo à aplicaçãodemateriaisdecoretexturadistintos,marcaçãorodoviáriae,eventualmentealgummobiliário urbano, entre outras soluções possíveis que conduzam ao efeito pretendido.

Relativamente à entrada em Zonas 30, caso esta seja contígua a uma via com volume de tráfego elevado e velocidades na ordem dos 50 Km/h, deverá ser recuada.

AlgumasmedidaspoderãoseraplicadasafimderealçaraentradanumaZona30eanecessidadedos condutores assumirem uma condução mais cautelosa, tais como (ANSR, 2019):

 o estreitamento na secção de entrada, alargando os passeios na entrada, ou introduzindo um separador central a partir da entrada, solução adequada quando a entrada na Zona 30 é feita em continuidade de uma secção da estrada

 a elevação da cota da faixa de rodagem de modo a atingir a dos passeios laterais, existindo dois tipos de soluções possíveis, cuja aplicação dependerá da importância hierárquica da via principal:

- colocação de uma rampa para vencer o desnível entre a cota da faixa principal e a cota dos passeios adjacentes na delimitação da faixa de rodagem,

- colocação de uma rampa recuada relativamente à secção de interseção.

A primeira configuração permite que se mantenha a continuidade dos percursos pedonais que se manterão à mesma cota. É a solução mais adequada a portões em ruas locais de nível III.

A segunda configuração é aplicável a portões em vias estruturantes de nível II (como distribuidoras principais).

Comomedidas complementares que permitem a identificar a entrada numa Zonas 30, pode indicar-se (ANSR, 2019):

 colocação de pavimentos com cores e texturas diferenciadas, que atribuem uma identidade própria à Zona 30;

 colocação de pórticos arquitetónicos e outros elementos verticais tais como painéis com identificação de entrada em Zona 30;

 plantação de arbustos ou outro tipo de arranjo natural que destaque a entrada.

63

DOCUMENTO NORMATIVO PARA APLICAÇÃO A ARRUAMENTOS URBANOS

Fascículo II – Caraterísticas geométricas pararodovias com tráfegomotorizado

O reconhecimento da entrada numa Zona 30 deve ser possível a qualquer hora do dia, pelo o portão deve ser dotado de iluminação noturna diferenciada das áreas circundantes.

No interior das Zonas 30, bem como na sua envolvente, deve ser incentivado o uso de velocípedes, para o que se devem prever locais de estacionamento e de repouso (ANSR, 2019).

NãoestãoprevistoscorredoresparatransportespúblicosdentrodeZonas30,umavezqueesteespaço não deverá integrar rotas deste modo de transporte.

Nestas zonas os transportes públicos colectivos devem ser acedidos através de paragens situadas, maioritariamente, na rede viária envolvente e, quando se trate de zonas de maior dimensão, apenas algumas no interior, especialmente se rodoviárias. As paragens de transportes colectivos devem estar integradas na rede pedonal.

Em Zonas 30 é recomendável dispor de diretrizes com alinhamentos retos curtos de modo a controlar o comprimento das linhas de visada e, por conseguinte, restringir a escolha das velocidades a valores baixos.Paratal,podem serintroduzidasnasviascurvasecontracurvaseosalinhamentosrectosterão um comprimento máximo de 50 metros. A quebra de continuidade visual pode ser conseguida não só pela quebra dos alinhamentos retos mas também através da colocação estratégica de elementos verticais, tais como arbustos, mobiliário urbano, entre outras soluções, que condicionam a dimensão das linhas de visada. No entanto, as distâncias mínimas de visibilidade para 30 km/h devem ser respeitadas, para permitir aos condutores identificar os perigos e parar atempadamente, quando necessário. Como referido no Quadro 4.5 do Fascículo I, o valor recomendado em trainelé de 23 m. Existem diversos tipos de dispositivos de controlo de velocidade de circulação suscetíveis de serem empregues em arruamentos de Zonas 30. Fundamentalmente, tais dispositivos estão dispostos em conjuntos sequenciais e destinam-se a diminuir localmente a velocidade no seu atravessamento para um valor que impeça que os condutores atinjam velocidades superiores aos 30 km/h, no trecho a montante(naaproximaçãoaosmesmos)enotrechoajusante(umavezultrapassadososdispositivos). Genericamente, o efeito no perfil de velocidades de um arruamento assim tratado é o representado esquematicamente na Figura 4.2. Verifica-se, pois, que a velocidade expectável nos dispositivos e a sua interdistância devem ser criteriosamente dimensionadas no projeto dos arruamentos das Zonas 30.

64

DOCUMENTO NORMATIVO PARA APLICAÇÃO A ARRUAMENTOS URBANOS

Fascículo II – Caraterísticas geométricas pararodovias com tráfegomotorizado

O efeito sobre a escolha de velocidades pode ser obtido através de deflexões na trajetória horizontal das trajetórias percorridas pelos veículos, originando desconforto através de acelerações transversais ousensaçãodeconstrangimentolateral.Osdispositivosqueintroduzemdeflexõesnarasanteoriginam aceleraçõesverticaisqueprovocam desconfortonosocupantes,sendodesaconselhadas em zonas de passagem de veículos de emergência ou de autocarros.

Os dispositivos de controlo local da velocidade constituem elementos coadjuvantes de uma configuração apropriada da rede, não se substituindo à mesma. Estes dispositivos devem ser bem visíveis, de dia e de noite, pelo que deverão ser acompanhados de iluminação noturna apropriada. No Fascículo IV apresentam-se as características dimensionais destes dispositivos.

65
Figura 4.2 – Perfil de velocidades desejado numa Zona 30

DOCUMENTO NORMATIVO PARA APLICAÇÃO A ARRUAMENTOS URBANOS

Fascículo II – Caraterísticas geométricas pararodovias com tráfegomotorizado

5| Elementosespecíficosparatransportepúblico

De acordo com as dimensões dos veículos de transporte público apresentadas no Fascículo I, apresentam-se neste subcapítulo as caraterísticas da infraestrutura adaquadas a essas dimensões.

A largura total típica de vias bidirecionais reservadas ao transporte coletivo rodoviário de passageiros varia entre 6,30 m e 7,00 m e está representada na Figura 5.1(b). Os valores mínimos indicados na Figurarepresentamvaloresautilizaremsituaçõesexcecionais,sendoquenocasodeviasbidirecionais dedicadas ao transporte coletivo, a largura total mínima é de 6,00 m.

Nocasodeaviareservadaaotransportecoletivoserunidirecional,alargurafrequenteemFrançavaria entre 3,20m a 3,50m,sendoo valor mínimo admissívelde 3,0 m,conforme seilustrana Figura 5.1 (a).

Larguras em perfil transversal para o transporte coletivo ferroviário de passageiros

Oelétricoéummododetransportecoletivoferroviário,cujasdimensõessãoapresentadasnoFasciculo I. A largura da plataforma é determinada a partir do “Gabarito de obstáculo limite”, que tem em consideração o “Gabarito dinâmico” do material circulante (específico de cada construtor) e uma margemdesegurançasuplementardecercade0,15m(lâminadeardeterminadaapartirdeumveículo em movimento), conforme se ilustra na Figura 5.2.

66
Figura 5.1 – Largura de vias bidirecionais (a) e unidirecionais (b) reservadas ao TC de passageiros (adaptado de CEREMA, 2016)

DOCUMENTO NORMATIVO PARA APLICAÇÃO A ARRUAMENTOS URBANOS

Fascículo II – Caraterísticas geométricas pararodovias com tráfegomotorizado

5.1 Paragemdetransportecoletivo emzonasurbanas

5.1.1 Acessibilidadeuniversal

Umaparagemdetransportecoletivorodoviárioconstituiumimportanteinterfaceentreoespaçopúblico destinado à circulação de peões e o embarque ou desembarque de passageiros. No projeto de paragens de transporte coletivo, há que garantir a acessibilidade universal de forma a não excluir utilizadores de mobilidade condicionada, designadamente em cadeiras de rodas. Na Figura 5.3 ilustram-seasdimensõesmínimasaassegurarnodesenhodeumaparagem detransportecoletivoem que a entrada dos passageiros não necessita de rampa de acesso. A largura mínima no passeio referente à largura livre entre a paragem e a entrada do autocarro deve ser 1,40 m (frente), sendo recomendável 1,50 m; no tardoz da paragem a largura mínima deve ser de 1,80 m para permitir a circulação de peões.

67
Figura 5.2 – Largura do elétrico (CEREMA, 2016)

DOCUMENTO NORMATIVO PARA APLICAÇÃO A ARRUAMENTOS URBANOS

Fascículo II – Caraterísticas geométricas pararodovias com tráfegomotorizado

A configuração da paragem desempenha um papel importante para garantir a sua acessibilidade e segurança. Os autocarros devem ter um encaixe (distância entre a zona exterior do veículo e a plataforma) o mais próximo do cais, de forma a facilitar a entrada e saída de passageiros. O espaço horizontalentreo veículoe aplataforma deve ser inferior a 5cm conformerepresentadonaFigura 5.4, Assim, oprojeto dos cais deembarque/desembarque de passageiros tem deconsiderar as dimensões dos veículos esperados.

Na Figura 5.4 ilustra-se o exemplo de uma paragem de autocarro acessível a utilizadores em cadeira de rodas, em que o cais tem uma bordadura para facilitar a entrada e saída de passageiros com mobilidade condicionada, quer diretamente, quer através da projeção uma rampa, autotransportada pelo autocarro.

68
Figura 5.3 – Configuração de paragem de autocarro acessível. Figura 5.4 – Configuração do cais acessível da paragem de autocarro (CEREMA, 2018) <5cm <5cm Pneumáticodoautocarro Carroçaria doautocarro Caisde embarque/desembarque

Fascículo II – Caraterísticas geométricas pararodovias com tráfegomotorizado

5.1.2 Tipologiasdasparagens

A tipologia das paragens pode ser classificada de várias formas, designadamente

1. Em função do número de carreiras servidas (CEREMA; 2016):

 Paragem simples:paragem reservadaaosveículosdeumaúnicalinha/carreira,sendoque os equipamentos são função do tipo de veículos e da procura.

 Paragem múltipla: paragem comum a várias linhas/carreiras.

2. Em função do seu posicionamento numa determinada carreira ou linha:

 Terminal: paragem situada no final de uma linha/carreira mas que pode funcionar como umaparagem simplesparaumadeterminadalinha/carreira.Odimensionamentodestetipo deparagem necessitadeterem consideração,designadamenteasmanobrasdemudança dedireção(retorno)dosveículos,estacionamentodoveículoeequipamentoparaopessoal e utilizadores.

 Interfaces: paragens situadas numa linha ou carreira que estabelecem correspondências multimodais entre vários modos de transporte coletivos ou individuais.

As paragens podem também ser classificadas de acordo a configuração do cais de embarque/desembarque de passageiros (ver subcapítulo 5.1.3)

5.1.3 Critériosparaaconfiguraçãodeumaparagem

De acordo com CEREMA (2018), na escolha da configuração de uma paragem de transporte coletivo rodoviário devem considerar-se os seguintes critérios:

 Condições em termos de fluxos de tráfego e segurança;

 Largura disponível de faixa de rodagem e do espaço público;

 Existência ou não de vias reservadas (por exemplo, “Bus”);

 Posicionamento dos acessos e cruzamentos;

 Requisitos de estacionamento;

 Requisitos de operação.

Com estes critérios podem ser definidas três categorias de cais de acesso a autocarros:

Tipo A – Paragem em linha em um sentido de circulação (A-1) ou em ambos (A-2): se a paragem dos veículos de transporte coletivo é efetuada na via sem alteração do passeio adjacente. Pode ter ou não estacionamento na proximidade para veículos motorizados;

Tipo B – Paragem avançada: se o passeio adjacente à paragem em linha for alargado para conferir maior conforto ao embarque/desembarque de passageiros.

DOCUMENTO
NORMATIVO PARA APLICAÇÃO A ARRUAMENTOS URBANOS
69

DOCUMENTO NORMATIVO PARA APLICAÇÃO A ARRUAMENTOS URBANOS

Fascículo II – Caraterísticas geométricas pararodovias com tráfegomotorizado

Tipo C – Paragem encaixada: se o veículo de transporte coletivo é desviado para fora da via de circulação do tráfego motorizado.

Nos pontos seguintes pormenoriza-se a configuração recomendada de cada categoria de paragens.

5.1.4 Paragemdeautocarroemlinhanumsentidodecirculação(TipoA-1)

Conforme referido na seção 5.1.3, uma paragem de autocarro em linha é aquela cuja paragem dos veículos de transporte coletivo é efetuada na via sem alteração do passeio adjacente. A configuração deumaparagememlinhasemestacionamentoadjacenteestárepresentadanaFigura5.5.Adimensão mínima da marcação no pavimento (cais de embarque/desembarque) é de 15,0 metros, para permitir a paragem de veículos de comprimento “standard” (13,5 m) ou de 20 m se forem veículos articulados. Na Figura 5.5 a largura do passeio (cais) deve ser de, pelo menos, 2,5 m.

5.1.5

Paragemdeautocarroemlinhaemambosossentidosdecirculação(tipoA2)

A configuração geométrica de uma paragem em linha sem estacionamento de veículos na área adjacente está representada na Figura 5.6. O comprimento da linha em ziguezague é, pelo menos, o do veículo de comprimento máximo que usa esta paragem, sendo recomendado existir no mínimo 1 metro adicional antes e depois do veículo parado.

70
Figura 5.5 – Configuração de uma paragem em linha sem estacionamento adjacente - Tipo A-1 (SMTC Tisséo, 2016) Figura 5.6 – Configuração de paragens em linha em arruamento sem estacionamento de veículos na área adjacente – Tipo A-2 (adaptado de CEREMA, 2016)

PARA APLICAÇÃO A ARRUAMENTOS URBANOS

Fascículo II – Caraterísticas geométricas pararodovias com tráfegomotorizado

5.1.6 Paragemdeautocarroavançadacomalargamentodepasseio, estacionamentoadjacente(TipoB)

NaFigura 5.7ilustra-seocasodeumaparagem dotipo avançada4 naproximidade deestacionamento adjacente, com uma configuração de passeio alargado para zona de embarque e desembarque de passageiros. Permite uma boa visibilidade dos passageiros que esperam o autocarro e do condutor deste.Estaconfiguraçãotambémpermiteserdissuasoradoestacionamentoilegalnaáreadaparagem do transporte coletivo.

5.1.7 Paragemdeautocarroencaixada(TipoC)

No caso de uma paragem de fim de linha5 (terminal), que implique um tempo de espera maior (regulamentar) ou na impossibilidade técnica de instalar uma das paragens anteriormente referidasparagens em linha (tipo A) ou paragens avançadas (tipo B) - pode ser desejável optar por uma configuraçãodistinta,conformeseilustranaFigura5.8.Nestaconfiguraçãooveículopodeserdesviado para fora da viade circulação do tráfego automóvel através de refúgio recortado no passeio, facto que permite manter a fluidez do tráfego de veículos na via adjacente ao refúgio. O comprimento do cais recomendadoatéaorecorteestáilustradonaFigura5.8,sendode15mnocasodeveículos“standard” e de 20 m no caso de veículos articulados.

4 Na terminologia técnica em França a designação para este tipo de paragem é “En avancée”, que aqui se traduz para “avançada”.

5 Na terminologia técnicaem França, este tipo de paragem designa-se de “En encoche”.

DOCUMENTO
NORMATIVO
71
Figura 5.7 – Configuração de uma paragem sem estacionamento de veículos na área adjacente – Tipo B (adaptado de CEREMA, 2016)

DOCUMENTO NORMATIVO PARA APLICAÇÃO A ARRUAMENTOS URBANOS

Fascículo II – Caraterísticas geométricas pararodovias com tráfegomotorizado

No Quadro 5.1 resumem-se as recomendações para cada tipo de paragem em zona urbana. É de relevar que as configurações dos tipos A (paragem em linha) e B (paragem avançada) já ilustradas anteriormente, respetivamente nas Figura 5.6 e Figura 5.7 são obrigatórias para áreas urbanas em Françadesde15dejaneirode2007,queéumdospaíseseuropeuscommaiorregulamentaçãotécnica namatéria.Aconfiguraçãodasreferidasparagenspossibilitaoconfortodaconduçãoedospassageiros (pelafacilidadedasmanobrasrequeridasparaembarqueoudesembarquedepassageiros),permitindo que o veículo retome a circulação de forma eficiente. Numa paragem que não é de término, a configuração do tipo C (encaixada) ilustrada na Figura 5.8 só deve ser implementada se as paragens do tipo A (em linha) ou B (avançadas) tiverem alguma impossibilidade técnica no contexto. A designação de “proibida” significa que se encontra impedida por lei em França.

Quadro 5.1 – Tipologia de paragem de transporte coletivo rodoviário (adaptado de CEREMA, 2018) Tipo

5.1.8 Paragemdeautocarronaproximidadederotunda

A configuração de paragem de autocarro junto a uma rotunda está representada na Figura 5.9. A paragem deve localizar-se no ramo/alinhamento reto (e não no interior da rotunda) sendo que a

72
Figura 5.8 – Configuração de uma paragem de fim de linha encaixada - Tipo C (adaptado de CEREMA, 2016)
de Paragem de TC Rodoviário Zona Urbana A Recomendada B Recomendada C Apenasemcasoda impossibilidadetécnicade realizarAouB

DOCUMENTO NORMATIVO PARA APLICAÇÃO A ARRUAMENTOS URBANOS

Fascículo II – Caraterísticas geométricas pararodovias com tráfegomotorizado

paragem deve estar a uma distância mínima de 10 metros da passagem para peões, conforme se ilustra.

5.1.9 Paragemdeautocarronaproximidadedeintersecção

De acordo com o CEREMA (2018), na proximidade de interseção e de pólo gerador de deslocações (por exemplo, comércio local), recomenda-se que a paragem do autocarro se situe a montante, a uma distânciade pelo 15 metros da interseção, conforme se ilustra na Figura 5.10. As paragens devem ser escalonadas em cada sentido do tráfego, conforme ilustrado.

73
Figura 5.9 – Configuração de paragem de autocarro junto a rotunda (STIF, 2011)) Figura 5.10 – Configuração de paragem de autocarro junto a interseção (CEREMA, 2018)

DOCUMENTO NORMATIVO PARA APLICAÇÃO A ARRUAMENTOS URBANOS

Fascículo II – Caraterísticas geométricas pararodovias com tráfegomotorizado

5.1.10 Paragensdeautocarrosnaproximidadedepassagemparapeões

Na localização das paragens de autocarro há que ter em conta vários critérios, designadamente de visibilidade.Deacordocom CEREMA(2016)érecomendávelque olocaldeparagem estejalocalizado a jusante da passagem para peões a uma distância oscilando entre 5 a 10m, conforme se ilustra na Figura 5.11 e na Figura 5.12.

5.1.11 Paragensdeautocarrosnaproximidadedepistascicláveis

Para facilitar o acesso de ciclistas ao autocarro (multimodalidade), devem ser projetadas ciclovias (pistas ou vias cicláveis) e locais de estacionamento de bicicletas na proximidade. De acordo com CEREMA (2018), a ciclovia não deve interromper a circulação do autocarro, devendo ser interrompida a uma distância de 10 a 15 metros da paragem, conforme se ilustra na Figura 5.13, permitindo que o

74
Figura 5.11 – Configuração de paragem com estacionamento alternado (SMTC Tisséo, 2016) Figura 5.12 – Localização da paragem na proximidade de passagem para peões (CEREMA, 2018)

DOCUMENTO NORMATIVO PARA APLICAÇÃO A ARRUAMENTOS URBANOS

Fascículo II – Caraterísticas geométricas pararodovias com tráfegomotorizado

ciclistasereintegrefacilmentenofluxodetráfegoeo autocarroconsigaposicionar-secorretamentena paragem e retomar a circulação em segurança.

Em outros países, como no Reino Unido, é prática a realização de desvio (bypass) em que os ciclistas podem continuar o percurso numa pista ciclável, no tardoz da paragem, sendo esta pista separada do passeio (ver Fascículo IV).

5.1.12 Medidasdeprevençãodoestacionamentoilegalemparagensdeautocarro

Para prevenir o estacionamento ilegal em paragens de autocarros, pode aplicar-se uma paragem do tipo avançada ou um ligeiro estreitamento da via de tráfego em cerca de 1 m em lancil, de modo a tornar visível o estacionamento ilegal e facilitar o embarque de passageiros com o mínimo de interferência no restante tráfego da rua (ver Figura 5.14)

75
Figura 5.13 – Localização da paragem na proximidade de pistas para bicicletas (CEREMA, 2018) Figura 5.14 – Medida para prevenir o estacionamento ilegal em paragem avançada de autocarro (Seco, A. et al., 2008)

DOCUMENTO NORMATIVO PARA APLICAÇÃO A ARRUAMENTOS URBANOS

Fascículo II – Caraterísticas geométricas pararodovias com tráfegomotorizado

5.2 Praças detáxis

As praças de táxis permitem a ligação de peões ou passageiros em transbordo que pretendam utilizar um serviço de transporte direto em automóvel para os transportar até a um determinado local. A praça de táxis deve estar assinalada através de sinalização adequada, de acordo com o DecretoRegulamentar nº 60-A/2019 de 20 de dezembro. Em geral, quando inseridas em sistemas de mobilidade urbana multimodal, devem estar localizadas a uma distância inferior ou igual a 350 metros de uma estação ferroviária, aeroportos, terminais fluviais e outros pólos geradores e atratores de tráfego. De acordo com Seco et al. (2008), as zonas de paragem dos táxis devem ser colocadas ao longo do passeio para fácil entrada/saída de passageiros, sem perturbar o restante tráfego. Noprojetodosacessosaotransporteportáxi,asdimensõesdospasseiosesuascaracterísticasdevem seguir as normas técnicas deacessibilidade(Decreto-Leinº163/2006, 2006; SNRIPD,2006).A largura livre sem obstáculos deve ser, no mínimo, de 1,50 metros, de forma a permitir o movimento de utilizadores em cadeiras de rodas. Conformeestabelecido no Decreto-Leinº 163/2006 de 8 de agosto, os passeios devem ser rebaixados no acesso aotáxi, sendoaalturado lancilnão superior a 0,02m,as dimensões dos lugares de estacionamento é abordado no capítulo respetivo (ver Fascículo IV)..

5.3 Abrigospara passageiros

Os abrigos para passageiros constituem equipamentos importantes para tornar a zona de espera nas paragensmaisconfortável.Osabrigospodem desempenharasseguintesfunções:proteçãoeconforto de passageiros que aguardam o embarque no transporte coletivo, informação (p. ex. tempo até à chegadadopróximoveículo)eoutrosserviçoscomplementares(p.ex.máquinaparaaquisiçãodetítulo de transporte). De acordo com Pires da Costa, A. (2008), a instalação de um abrigo deve atender aos seguintes critérios:

 Exposição do local da paragem à intempérie;

 Tempo de espera pelo veículo;

 Disponibilidade de espaço no passeio;

 Obstrução da visibilidade na circulação;

 Efeito estético.

Em CEREMA(2018)considera-seque oposicionamentode abrigosparapassageirosdeveresultar de um compromissoentrevárioscritériosque incluem adistânciaentreparagensconsecutivas,existência de pólos geradores/atratores de deslocações importantes, percursos pedonais e cruzamentos. Devem ser atendidas as questões de segurança pessoal e pública na construção dos abrigos, pelo que os mesmos devem ser construídos com materiais que garantam boas condições de visibilidade, e iluminados no período noturno. A área do abrigo depende da procura de transporte (número de passageirosprevistosem esperanoabrigo).Em PiresdaCosta,A.(2008)considera-se5m2comoárea

76

DOCUMENTO NORMATIVO PARA APLICAÇÃO A ARRUAMENTOS URBANOS

Fascículo II – Caraterísticas geométricas pararodovias com tráfegomotorizado

mínima do abrigo, sendo a altura de 2,5 metros. De forma a poder acomodar um utilizador em cadeira de rodas, a largura livre mínima do abrigo deve ser de 1,5 m e o comprimento livre mínimo de 1,2 m (parapermir uma rotação de90ºda cadeirasefor necessárioconsultar opainel informativono abrigo).

Na Figura 5.13 representa-se um abrigo de transporte coletivo inserido em zona urbana. Conforme se ilustra, este deve ter um acesso seguro através de passeios acessíveis (com largura mínima de 1,50 m –vertambém FascículoIII).Deveser provida informação pelo operador dotransportecoletivosobre a estação/carreira/horário ao utilizador do abrigo através de painel informativo e ser instalada iluminação noturna adequada para efeitos da segurança pessoal e pública.

Zonadeparagemde veículodeTC

Passeioetravessia depeões

Para algumas carreiras especiais de transporte público rodoviário (por exemplo linhas de BRT), é recomendável que a plataforma do cais seja sobreelevada em relação ao passeio em cerca de 20 cm, casoem que atransiçãoparaaaltura delancil normaldeveterumavariaçãode inclinaçãolongitudinal inferior a 4%.

5.4 Interfaces

Umainterfacepodeser definida comoolocalondese inicia, terminaou dácontinuidadea viagens que têm de ser realizadas em mais do que um modo de transporte entre uma dada origem e destino (por exemplo,metropolitano–autocarroeelétricos)ousefazaconexãoentrediferenteslinhasoucarreiras de viagens num mesmo modo de transporte. Uma interface inclui as paragens do tipo terminal para vários modos de transporte coletivo público ou privados. Nesta definição, inclui-se a respetiva infraestrutura física. As praças de táxis referidas anteriormente representam um caso simples de interface, já que permitem a ligação de modos suaves (por exemplo, deslocações a pé) ao táxi.

77
Figura 5.15 – Paragem de autocarro acessível com abrigo (adaptado de CEREMA, 2018)
Mobiliáriourbano Informaçãoaos passageiros Caisde embarque/desembarque

DOCUMENTO NORMATIVO PARA APLICAÇÃO A ARRUAMENTOS URBANOS

Fascículo II – Caraterísticas geométricas pararodovias com tráfegomotorizado

Em termos deplaneamento urbano, as interfaces sãoalvode caracterização em Planos deMobilidade Urbana e Planos Diretores Municipais, onde se define a respetiva hierarquização em função de vários requisitos, designadamente dos fluxos de passageiros em transbordo (transferência modal ou entre linhas e carreiras) a assegurar em cada caso.

A articulação de cada interface com o contexto urbano deve ser realizada através de boas práticas urbanísticas, considerando, designadamente a sua integração na malha urbana e as várias funções a assegurar à escala local ou regional, incluindo possíveis serviços ou equipamentos de apoio ao passageiro e outros utilizadores do espaço público.

De acordo com CEREMA (2017), o Plano de Deslocações Urbanas (PDU) de Île-de-France apresenta a seguinte categorização de interfaces:

a) Grandes interfaces ou pólos de correspondência – correspondem aos nós principais da rede de transporte coletivo, assegurando a correspondência entre a rede ferroviária e a rede rodoviária estruturante;

b) Interfacesdeserviçonocentrourbano–correspondemàsestaçõesferroviáriasedemetronas centralidades urbanas, com maior densidade urbana;

c) Interfaces deacessoà redeferroviária- situam-seem áreas demenor densidade e integram o acessorodoviárioàsestaçõesferroviáriasatravésdotransporterodoviárioindividualecoletivo. Uma interface de transporte localizado em área urbana central visa facilitar uma ligação rápida, confortável e segura entre os vários modos de transporte, promovendo a multimodalidade e a intermodalidade.

Nas grandes interfaces multimodais de transportes, como a Gare do Oriente, em Lisboa, são estabelecidas conexões entre as plataformas ferroviárias de passageiros e metropolitano e o terminal de autocarros, havendo acessos de nível e em escada para os passageiros.

De acordo com o Regime Jurídico do Serviço Público de Transporte de Passageiros, artigo 26º (Leinº 52/2015, de 9 de junho), “as autoridades de transportes competentes devem privilegiar, por razões de eficiência e eficácia do sistema de mobilidade, uma relação intermodal estruturada e fluida entre serviços públicos de transporte de passageiros afluentes e alimentados”. Assim, a referida autoridade de transportes “pode determinar a criação de determinado serviço de transporte público de passageirosafluente que realize a ligação a determinado serviço de transporte público de passageiros em modo ferroviário pesado e ligeiro, fluvial ou rodoviário em sítio próprio, promovendo a intermodalidade e a eficiência do sistema”.

No projeto de interfaces deve atender-se às normas técnicas de acessibilidade (Decreto-Lei nº163/2006, 2006). De acordo com o artigo 2º das referidas normas, estas aplicam-se também a “Estações ferroviárias e de metropolitano, centrais de camionagem, gares marítimas e fluviais,

78

NORMATIVO PARA APLICAÇÃO A ARRUAMENTOS URBANOS

Fascículo II – Caraterísticas geométricas pararodovias com tráfegomotorizado

aerogares de aeroportos e aeródromos, paragens dos transportes colectivos na via pública, postos de abastecimento de combustível e áreas de serviço”.

De acordo com o Decreto-Lei nº 170/71 de 27 de abril, ainda em vigor, as “Estações Centrais de Camionagem” (ECC) são “estabelecimento em que se concentram os locais terminais ou locais de paragem de todas as carreiras não urbanas de transportes rodoviários de passageiros que servem os aglomerados urbanos” e deverão ser concebidas e equipadas de forma a assegurarem a correspondência dos transportes urbanos com as carreiras fora das zonas urbanas nas melhores condições de comodidade, segurança e salubridade. O artigo 6.º do referido Decreto-Lei respeita ao seu dimensionamento da ECC, estando aí discriminado o seguinte:

 Resultados da previsão de tráfego normal e de ponta, considerando o movimento não apenas dosveículosdecarreirasqueautilizammastambémdetodososoutrosveículosqueaservem, devendo ser apoiados por estudos de mercado à escala local e regional, ponderando as condições atuais e previsíveis de exploração e as necessidades de expansão das carreiras;

 Condições de segurança e comodidade dos utentes das carreiras que a ela afluem;

 Eficiência e qualidade da prestação dos serviços de transporte fornecidos;

 Exigências de mobilidade adequada dos veículos e movimentação de passageiros, bagagens e pequenos volumes.

Na Figura 5.16 apresenta-se uma configuração de interface rodoviário simples, em que cada cais de embarque, em recorte, corresponde a uma carreira. Neste caso existe correspondência entre o modo de transporte coletivo rodoviário e o modo de transporte pedonal.

DOCUMENTO
79
Figura 5.16 – Configuração geométrica de uma estação terminal de autocarros (SMTC Tisséo, 2016)

DOCUMENTO NORMATIVO PARA APLICAÇÃO A ARRUAMENTOS URBANOS

Fascículo II – Caraterísticas geométricas pararodovias com tráfegomotorizado

6| Estacionamento

6.1 Princípiosgerais

O estacionamento é um elemento importante do sistema de transportes. Todavia, o espaço urbano é um recurso escasso e de significativo valor económico e social. Assim, há que proceder à gestão da oferta e da procura de estacionamento e definir as estratégias mais adequadas em cada contexto, designadamenteparaasseguraraqualidadedeserviçonasváriasperspetivasegarantirumautilização maiseficientedosrecursospúblicos.Sendoaofertaexcessivadeestacionamentotãoprejudicialcomo a escassez da mesma, é recomendável que esta seja avaliada no contexto de políticas de gestão da mobilidade urbana visando objetivos de sustentabilidade.

Uma estratégia de gestão das infraestruturas de estacionamento urbano, em articulação com o transporte coletivo público, pode ser relevante para o objetivo da redução da utilização do automóvel6 visando umamobilidade mais sustentável e multimodal nas cidades.

Várias capitais europeias dispõem de regulamentos gerais de estacionamento que relevam o objetivo acima referido. Por exemplo, Lisboa integra Zonas de Estacionamento de Duração Limitada (ZEDL) que, em conjunto, com as tarifas de utilização aplicáveis a cada zona, permitem controlar a pressão sobre o estacionamento e dissuadir o uso do transporte individual, contribuindo também para a sustentabilidade financeira e social do sistema.

Umoutroaspetoprende-secomaexistênciadelugaresparacondutorescomdeficiênciamotora.Tanto os regulamentos de estacionamento dos municípios como o código da estrada abordam este aspeto. Porexemplo,oartigo43ºdoregulamentogeralde estacionamentodacidade deLisboaisentadetarifa estes utilizadores.

No Código da Estrada, vertido na Lei n.º 72/2013 de 3 de setembro, define-se uma zona de estacionamentocomo“umlocaldaviapúblicaespecialmentedestinado,porconstruçãoousinalização, ao estacionamento de veículos” e um parque de estacionamento como “um local exclusivamente destinado ao estacionamento de veículos”. A paragem e estacionamento apresentam as seguintes definições legais:

 Paragem: corresponde à imobilização de um veículo pelo tempo estritamente necessário para a entrada ou saída de passageiros ou para breves operações de carga ou descarga, desde

6 Deacordocom aUITP,areduçãodaofertadeestacionamentode0,5lugaresporempregado(oumais)para0,1 lugarporempregado,podeconduziraoaumentodautilizaçãodotransportepúblicoemcercade30%(IMTT, I.P. et al., 2011f).

80

DOCUMENTO NORMATIVO PARA APLICAÇÃO A ARRUAMENTOS URBANOS

Fascículo II – Caraterísticas geométricas pararodovias com tráfegomotorizado

que o condutor esteja pronto a retomar a marcha e o faça sempre que estiver a impedir ou a dificultar a passagem de outros veículos.

 Estacionamento: refere-seàimobilização de um veículoquenãoconstituaparagem equenão sejamotivada por circunstâncias próprias da circulação.

O artigo 48.º do Código da Estrada apresenta as situações de paragem e de estacionamento dentro das localidades,estabelecendo que se devem fazer nos locais especialmentedestinados aesseefeito e pela forma indicada ou na faixa de rodagem, o mais próximo possível do respetivo limite direito, paralelamente a este e no sentido da marcha.

As necessidades efetivas de estacionamento devem ser consagradas no regulamento dos Planos Municipais de Ordenamento do Território (PMOT). No geral, a avaliação das necessidades de estacionamento de veículos (automóveis ligeiros de passageiros, bicicletas, motociclos, etc.) por parte da população residente, empregados, visitantes e turistas deve considerar os usos do solo, a oferta existente, a evolução temporal da procura (diurna/noturna; duração do período necessário para estacionamento, etc.) e a repartição modal (transporte coletivo público, transporte coletivo privado, transporteindividual,etc.)entreoutrosfatorescomosejam ascaracterísticassocioeconómicasdaárea e o modelo de exploração (público ou privado), visando a otimização do sistema de transportes, que inclui também a minimização de impactes ambientais das soluções preconizadas segundo as várias perspetivas (p. ex. do utilizador e do prestador do serviço), devidamente enquadradas em políticas de planeamento da mobilidade e acessibilidades. A caracterização da procura e da oferta de estacionamento, incluindo mecanismos para a sua gestão, está definida em Seco et al. (2008).

De acordo com IMTT, I.P. et al. (2011f), os estudos de circulação e estacionamento “avaliam o comportamento das infraestruturas rodoviárias, ou seja, determinam as intensidades de tráfego que podem suportar e a reserva de capacidade rodoviária, identificando problemas de congestionamento, de sobreocupação (do espaço público por veículos motorizados) e de carências de estacionamento e desenvolvimento soluções de minimização ou eliminação desses problemas”.

De acordo com Seco, A. et al. (2008), a permissão do estacionamento na via pública dependerá da função que a via desempenha na rede viária. Por exemplo, nas vias urbanas de nível I (vide Fascículo Ipara adefiniçãodahierarquização viária) não deve haver estacionamento. Nas vias locais de nívelIII (distribuidoras ou de acesso) devem existir espaços de estacionamento, cuja definição haverá que articular com outras funções do espaço público..

6.2 Tiposde Estacionamento

O estacionamento pode ser classificado segundo várias tipologias, conforme se exemplifica em seguida.

81

DOCUMENTO NORMATIVO PARA APLICAÇÃO A ARRUAMENTOS URBANOS

Fascículo II – Caraterísticas geométricas pararodovias com tráfegomotorizado

Tipologia da oferta de estacionamento

A oferta de estacionamento recomendável por tipo de zona pode ser descrita em função da sua localização (naviapública, em parque, etc.),duração, condições de acesso (livre, cargas e descargas, etc.) e regime de tarifação recomendável para cada caso, conforme se exemplifica no Quadro 6.1. As áreas centrais constituem áreas onde se localizam os principais pólos geradores e atractores de deslocaçõesdenaturezaeconómico-financeiraeespaçoscomerciais.Asáreasresidenciaisperiféricas localizam-sedominantementenacoroaexterioràsáreascentrais,podendocontertambémimportantes pólos geradores e atractores de deslocações (por exemplo, equipamentos desportivos e escolares) sendo que nas áreas periféricas o preço por m2 é menor do que nas áreas centrais, podendo incluir outros usos (por exemplo, espaços industriais).

Quadro 6.1 – Tipologia da oferta de estacionamento (Seco et al. , 2008)

Áreas residenciais periféricas

Áreas periféricas

emparque

livre

tarifaselevadasecrescentesnotempo (eventualmentegratuítoparaestacionamentos <10minparaincentivarrotatividade) limitadoaoperíodo foradashorasde ponta cargasedescargas gratuito longaduração residentes gratuitos,comtarifa"simbólica"oureduzida

máximode2h livre tarifaselevadasecrescentesnotempo máximode3a4h (zonassemiperiféricas) livre tarifasmoderadasecrescentesnotempo longaduração residentes gratuitosoucomtarifa"simbólica" funcionários tarifaselevadas(sehouveralternativasem termosdeacessibilidade)

navia longaduração residentes(podem serreservados) gratuitos médiaduração visitantes,cargase descargas gratuitos

emparque longaduração residentes gratuitosoucomtarifa"simbólica"

navia média/longa duração livre tarifasbaixas

emparque longaduração livre,mas preferencialmente parafuncionários

tarifabaixa,comdireitoatítulodetransportepara asáreascentrais

NoQuadro 6.1 o estacionamento na via,refere-se ao estacionamento ao longo das vias decirculação, sendo em geral estacionamento de natureza pública e usualmente objeto de regulamentação pelos municípios. O estacionamento em parque refere-se ao estacionamento em parques subterrâneos ou elevados (por exemplo, em edifícios como sejam os autossilos), incluindo os parques com sistemas avançadosdeestacionamentodeveículos(sistemasautomatizadoscom recursoanovastecnologias).

Estes parques de estacionamentopodem ter uma gestão pública ou privada, nesteúltimo casopodem

82
Zona Localizaçãodo estacionamento Duração Acesso Tarifação Áreas Centrais navia
máximode1h

DOCUMENTO NORMATIVO PARA APLICAÇÃO A ARRUAMENTOS URBANOS

Fascículo II – Caraterísticas geométricas pararodovias com tráfegomotorizado

ser destinados a determinados utilizadores (por exemplo, equipamentos desportivos, centros comerciais, etc.).

A localização do estacionamento em cada contexto vai depender das condições de circulação do tráfego eda capacidadedas vias.Assim, aoferta deestacionamentoem termosdo númerodelugares erespetivo tipo deve assegurar que a entrada e saída dos veículos se possa realizar em condições de segurança, com um impacto mínimo na circulação.

Em interfaces de transporte público é conveniente disponibilizar parques de estacionamento que fomentem a transferência modaldos ocupantes deautomóveis para o transporte coletivo(Park&Ride), de forma rápida, segura e confortável. O Park&Ride é um estacionamento de longa duração dependente dos horários laborais.

Tipologia da procura de estacionamento

De acordo com Seco, A. et al. (2008) a tipologia do estacionamento pode ser caracterizada em função das características da procura:

1) Curta duração: inferior a 5 minutos (por exemplo, paragem para os fins de entrada e saída de passageiros);5a30minutos(porexemplo,paraentregademercadorias);30a60minutos(por exemplo, para pagamento de serviços).

2) Média duração: entre 1 a 2 horas (p. ex. consultas); 2 a 4 horas (p. ex. compras).

3) Longa duração: entre 4 a 8 horas (p. ex. emprego); superior a 8 horas (p. ex. residentes).

Tipo de veículos e necessidades de estacionamento

Os vários tipos de veículos, pelas suas dimensões e funcionalidades (acesso às várias atividades localizadas no território,distribuição de mercadorias,etc.) requerem espaços distintos para orespetivo estacionamento, os quais dependem do uso ser privado ou partilhado. Assim, deve distinguir-se o estacionamento para os seguintes tipos de veículos:

 Bicicletas;

 Motociclos;

 Trotinetes (exemplo: scooters elétricas);

 Veículos ligeiros de mercadorias (utilizados na logística urbana,incluindolugares paracarga e descarga de mercadorias);

 Veículos ligeiros de passageiros (incluindo os de condutores com carta de condução para deficiente, táxis, etc.);

 Veículos pesados de mercadorias.

No caso das trotinetes elétricas, que são veículos recentes na mobilidade urbana, o seu estacionamento deve ser realizado em locais identificados para o efeito, incluindo parques de

83

DOCUMENTO NORMATIVO PARA APLICAÇÃO A ARRUAMENTOS URBANOS

Fascículo II – Caraterísticas geométricas pararodovias com tráfegomotorizado

estacionamento. De acordo com o Código da Estrada, n.º 3 do artigo 112º (Lei n.º 72/2013, 2013), os velocípedes com motor, as trotinetas com motor, bem como os dispositivos de circulação com motor elétrico, autoequilibrados e automotores ou outros meios de circulação análogos com motor são equiparados a velocípedes.

Dimensionamento do número de lugares de estacionamento

Em Portugal, de acordo com a Portaria nº216-B/2008, o dimensionamento do número de lugares de estacionamento necessários ao uso habitacional deve ser determinado em função da tipologia dos fogos e, na ausênciadesta indicação, deveser considerado ovalor daáreamédiado fogo. NoQuadro

6.2 apresentam-se exemplos de parâmetros de dimensionamento para o estacionamento em função do tipo de ocupação (vide legislação para obter a totalidade dos parâmetros). Para efeitos de prédimensionamentoaáreadeestacionamentocorrespondentepodesercalculadaconsiderando20m2 por lugar à superfície ou 30m2 por lugar em estrutura edificada, incluindo os caminhos de circulação.

Quadro 6.2 – Dimensionamento do número de lugares de estacionamento em função do tipo de ocupação (Portaria n.º 216-B/2008)

Tipodeocupação Infraestruturas-Estacionamento(a)

Habitaçãoemmoradia unifamiliar

1lugar/fogocoma.c.<120m2 .

2lugares/fogocoma.c.entre120m2 e300m2 3lugares/fogocoma.c.>300m2

Onúmerototaldelugaresresultantedaaplicaçãodoscritériosanterioreséacrescidode20%para estacionamentopúblico.

Habitaçãocomindicaçãodetipologia:

1lugar/fogoT0eT1;

1,5lugares/fogoT2eT3;

2lugares/fogoT4,T5eT6; 3lugares/fogo>T6.

Onúmerototaldelugaresresultantedaaplicaçãodoscritériosanterioreséacrescidode20%para estacionamentopúblico.

Habitaçãocolectiva

Habitaçãosemindicaçãodetipologia:

1lugar/fogoparaa.m.f.<90m2;

1,5lugares/fogoparaa.m.f.entre90m2 e120m2;

2lugares/fogoparaa.m.f.entre120m2 e300m2;

3lugares/fogoparaa.m.f.>300m2

Onúmerototaldelugaresresultantedaaplicaçãodoscritériosanterioreséacrescidode20%para estacionamentopúblico.

Comércio:

1lugar/30m2 a.c.com.paraestabl.<1000m2a.c.;

Comércio

1lugar/25m2 a.c.com.paraestabl.de1000m2a.c.a2500m2 a.c.;

1lugar/15m2 a.c.com.paraestabl.>2500m2a.c.ecumulativamente1lugardepesado/200m2 a.c. com.

3lugares/100m2 a.c.serv.paraestabl.≤500m2

5lugares/100m2 a.c.serv.paraestabl.>500m2

Serviços

Indústriaeouarmazéns

Onúmerototaldelugaresresultantedaaplicaçãodoscritériosanterioreséacrescidode30%para estacionamentopúblico.

1lugar/75m2 a.c.ind./armaz.

Pesados:1lugar/500m2 a.c.ind./armaz.,comummínimode1lugar/lote(alocalizarnointeriordolote).

Onúmerototaldelugaresresultantedaaplicaçãodoscritériosanterioreséacrescidode20%para estacionamentopúblico.

84

DOCUMENTO NORMATIVO PARA APLICAÇÃO A

ARRUAMENTOS URBANOS

Fascículo II – Caraterísticas geométricas pararodovias com tráfegomotorizado

As necessidades de estacionamento devem estar definidas em planos de mobilidade urbana e ser objeto de regulamentação (regulamento municipal de estacionamento).

As Câmaras Municipais aprovam a localização de zonas ou parques de estacionamento. O DecretoLei(DL)n.º81/2006de20deabrildefineoregimedeutilizaçãodosparquesezonasdeestacionamento tal como são definidos no Código da Estrada, incluindo as normas gerais de segurança. Assim, excluem-se os casos de parques de estacionamento não abertos ao uso público. O capítulo II do referido DL é dedicado aos parques de estacionamento de uso público. De acordo com o artigo 7.º, os acessos ao parque não devem situar-se a uma distância inferior a 10 metros de uma interseção. De acordo com o artigo 8.º do mesmo DL, os acessos aos lugares de estacionamento, dentro de parques de estacionamento, devem ser dimensionados por forma a permitir a fácil circulação e execução de manobras dos veículos ou, não sendo isso possível para todos os veículos, ter convenientemente assinaladas, no exterior, as dimensões máximas dos veículos que podem aceder a esses lugares.

Adelimitaçãodos lugares deestacionamento deverespeitar as regras gerais constantes no Códigoda Estrada (vide artigo 70º) não prejudicando a visibilidade nas curvas, cruzamentos ou entroncamentos.

Os acessos aos lugares de estacionamento no interior do parque (artigo 8.º do referido DL) devem ser dimensionados de forma a permitir a fácil execução e circulação de manobras dos veículos e, sempre que houver impossibilidade de satisfazer esse requisito para todos os tipos de veículos, deve ser assinalado no exterior as dimensões máximas dos veículos que podem aceder a estes lugares. As Câmaras Municipais são responsáveis pela aprovação da localização de parques ou zonas de estacionamento.

Em parquesdemédiaagrandedimensão(áreautilizávelsuperiora500m2)asinclinaçõesdasrampas de acesso não devem ultrapassar os 15%. No caso da inclinação das rampas ser superior a 12%, são recomendáveis traineis de transição nas extremidades com metade da inclinação e um comprimento mínimo de 3,5 m. Em pequenas garagens de uso privativo, a inclinação pode chegar a 20% (Seco et al., 2008a).

As vias de acesso a lugares de estacionamento com orientação perpendicular em relação ao seu eixo devem assegurar a circulação de veículos dos dois sentidos, sendo que nas restantes situações se pode implementar vias de sentido único devidamente orientadas. Neste âmbito, a configuração dos lugares de estacionamento e das vias de acesso está representada na Figura 6.1.

85

DOCUMENTO NORMATIVO PARA APLICAÇÃO A ARRUAMENTOS URBANOS

Fascículo II – Caraterísticas geométricas pararodovias com tráfegomotorizado

No dimensionamento dos lugares de estacionamento, das vias de acesso no interior dos parques de estacionamentoedosmeiosdepagamentodevematender-seàsregrasdedimensionamentoimpostas pelosRegulamentodeSegurançacontraIncêndiosparaParquesdeEstacionamentoCobertosoupelo RegulamentoTécnicodeSegurançacontraIncêndios(RT–SCIE)emEdifícios,paraalémdasNormas Técnicas de Acessibilidade (Seco, A. et. al., 2008). Para o dimensionamento de parques de estacionamento e das vias de acesso é utilizado o veículo tipo da classe de veículo de passageiros, devendo ser também considerada a situação do condutor ou passageiro em cadeira de rodas, de acordo com (SNRIPD, 2006). O RT-SCIE obriga a uma largura mínima da via de acesso de 3,5m, um raio de curvatura mínimo de 11 m (medido ao eixo) e uma inclinação máxima de 15%.

De acordo com a Portaria nº 1136/2001 de 25/9, a dimensão transversal (largura) exigida para os espaços de estacionamento, apenas dirigida para o caso do estacionamento longitudinal, varia entre 2,0 m para zonas residenciais, 2,25 m em zonas mistas e 2,5 m em zonas industriais.

O estacionamento na via pública não é autorizado na rede estruturante (nível I). A sua admissibilidade nasoutrassituações(níveisII,IIIeIV)deveráconsiderarcritériosoperacionaisdenaturezaregular(por exemplo,segurança,tipodeactividadenaenvolvente,exigênciasdostransportespúblicosebicicletas, serviços de limpeza urbana e de recolha de lixo, carga/descarga de mercadorias e tomada/largada de passageiros)edenaturezaexcecional(porexemplo,circulaçãodeveículosdeemergência),responder às necessidades de estacionamento, bem comoatender a outros requisitos definidos em instrumentos de planeamento urbanístico ou inseridos no âmbito da política de mobilidade do município.

O dimensionamento dos lugares de estacionamento para veículos ligeiros na via pública deve atender ao uso e ocupação do solo e aos tipos de utilizadores, considerando os parâmetros geométricos que constam na Figura 6.2 e os valores mínimos e máximos respetivos que constam no Quadro 6.3, em que: α: ângulo de inclinação em relação ao eixo da via; A: largura do lugar do estacionamento; C:

86
Figura 6.1 – Configuração dos lugares de estacionamento e das vias de acesso em parque (Seco, A. et. al., 2008)

DOCUMENTO NORMATIVO PARA APLICAÇÃO A ARRUAMENTOS URBANOS

Fascículo II – Caraterísticas geométricas pararodovias com tráfegomotorizado

comprimento de faixa por lugar de estacionamento; E: Comprimento medido perpendicularmente ao eixo da viado lugar de estacionamento; M: espaço de manobrapara o veículo; L: largura total, medida entre o lancil e o eixo da faixa de rodagem; V: via de acesso adjacente ao estacionamento.

Figura 6.2 – Parâmetros geométricos para a definição de lugares de estacionamento adjacentes à via pública (Seco, A. et. al., 2008)

Quadro 6.3 – Parâmetros geométricos para dimensionamento dos lugares de estacionamento adjacentes à via pública (Seco, A. et. al., 2008)

Oânguloα,referidonaFigura6.2enoQuadro6.3nãodevesersuperiora90º,umavezquetaldificulta adeteçãoatempada delugaresvagos eimplicaarealizaçãodeumamanobrade estacionamentocom marcha-atrás, o que origina interrupções mais abruptas do tráfego do que nos casos previstos no Quadro 6.3. Acresce que, ao permitir a saída expedita do lugar directamente para a via de tráfego, os ângulos maiores doque90ºestão associados a riscodecolisões fronto-laterais oblíquas,com riscode lesões graves acrescido relativamente aos das colisões fronto-traseiras dos ângulos inferiores a 90º.

A tipologia do estacionamento é função da classificação hierárquica das vias. Nas vias coletoras (vias urbanas de nível II) não é aceitável a existência de estacionamento. O estacionamento perpendicular (α=90°) só deve ser aplicado em vias distribuidoras locais (nível III) ou de acesso local (nível IV). Nas

87
α A [m] C [m] E [m] M [m] L [m] 0°2,0 a 2,35,0 a 6,02,0 a 2,33,05,5 a 5,8 30°2,3 a 2,54,6 a 5,04,0 a 4,92,97,5 a 8,4 45°2,3 a 2,53,3 a 3,54,5 a 5,63,78,0 a 9,1 60°2,3 a 2,52,7 a 2,95,0 a 6,04,69,5 a 10,5 90°2,3 a 2,52,3 a 2,54,5 a 5,05,810,5 a 11,0

DOCUMENTO NORMATIVO PARA APLICAÇÃO A ARRUAMENTOS URBANOS

Fascículo II – Caraterísticas geométricas pararodovias com tráfegomotorizado

vias distribuidoras principais (nível II), o estacionamento deve ser paralelo ao eixo da via sempre que possível. No Quadro 6.3, os valores máximos devem ser aplicados às vias estruturantes onde exista uma previsão de elevada rotatividade do estacionamento ou se assegura uma qualidade de serviço elevado com o mínimo de impacto sobre o tráfego rodoviário.

De acordo com o artigo 11º do Decreto-Lei nº81/2006 de 20 de abril, se o estacionamento for lateral à faixa de rodagem, a delimitação do mesmo deve respeitar uma distância mínima de 5 m até ao início dapassagem depeões,sendoqueas zonasdeestacionamentodevem deixarlivrealargurasuficiente para a normal circulação de veículos, não devendo essa largura ser inferior a 3 metros. A delimitação doslugaresdeestacionamentonaviapúblicadeverespeitartambém asregrasdedistânciamínimade estacionamento, constantes do Código da Estrada (Lei n.º 72/2013, 2013), sendo proibido parar a menos de 5 metros de um e outro lado das interseções.

6.3 CaracterísticasFísicasdosLugaresde Estacionamento

6.3.1 Estacionamentodeveículosligeirosdepassageiros

Considerando as características dimensionais do estacionamento de veículos ligeiros de passageiros, podemos distinguir as seguintes tipologias principais na via pública:

Estacionamento longitudinal (Figura 6.3): esta configuração de estacionamento permite o estacionamento de 10 veículos em cada 50 metros ao longo da faixa de rodagem, fora das zonas de proibição de estacionamento definidas no Código da Estrada.

Estacionamentoperpendicular(Figura6.4):estaconfiguraçãopermite,emmédia,oestacionamentode 20 veículos por cada 50 metros de arruamento. Todavia esta gera manobras que podem ocupar as duas vias de circulação do tráfego, sendo por isso mais indicada para ruas residenciais ou de

88
Figura 6.3 – Estacionamento longitudinal (adaptado de CEREMA, 2016)

DOCUMENTO NORMATIVO PARA APLICAÇÃO A ARRUAMENTOS URBANOS

Fascículo II – Caraterísticas geométricas pararodovias com tráfegomotorizado

velocidade reduzida. Se não houver condições de visibilidade adequadas, a saída do estacionamento é configurada considerando a marcha atrás dos veículos.

Estacionamento oblíquo (Figura 6.5): nesta configuração, se o ângulo de inclinação (α) em relação ao eixodaviafor de45grausalargurade2,50m anteriormenteapresentada(a)eadistância(b)indicado passam a: a= 2,30 m e b=2,75m ou a=2,50m e b=2,50m; para um ângulo (α) de 60 graus, a = 2,30 m e b= 4,15m ou a=2,50m e b=4,00m.

As normas de projeto e desenho viário em Espanha estão citadas em (IMTT, I.P. et al., 2011e). De acordo com as referidas normas, resumem-se no Quadro 6.4 as dimensões mínimas e recomendadas para cada tipologia de estacionamento (longitudinal, oblíquo – perpendicular 90°, oblíquo - 30°, 45°, 60°).

89
Figura 6.4 – Estacionamento perpendicular (adaptado de CEREMA, 2016) Figura 6.5 – Estacionamento oblíquo (adaptado de CEREMA; 2016)

DOCUMENTO NORMATIVO PARA APLICAÇÃO A ARRUAMENTOS URBANOS

Fascículo II – Caraterísticas geométricas pararodovias com tráfegomotorizado

Tipologiade estacionamento

Larguradolugar(a):

Dimensões

•2,00m:nocasoemquetráfegomotorizadopodeserinterrompidocomaaberturadasportasdos veículosestacionados;

•2,25m:nocasoemquesepretendereduzirasperturbaçõescausadaspelaaberturadasportasdos veiculosestacionados;

•2,40m:quandoexistemobstáculosjuntoaolugardeestacionamentoqueimpeçamasaídadocondutor doveículo.

Longitudinal

Comprimentodolugar(b):

•5,00m

Larguranecessáriaparamanobras(c):

•Mínima:2,50m

•Recomendada:3,00m

Larguradolugar(a):

•mínima:2,25m(sobretudoparaestacionamentodelonga-duração)

•recomendada:2,40m

Comprimentodolugar(b):

•comolancildopasseiocomolimite:4,20m

Oblíquo

Perpendicular

•semolancildopasseiocomolimite:4,70m •máxima5,00m(valorquepodefavoreceroestacionamentoilegalemsegunda fila.

Larguranecessáriaparamanobras(c):

•entre5,00e6,00m

Larguradolugar(a):

•recomendada:2,40m

•2,25m,paraestacionamentoa30˚ecomtaxaderotaçãoreduzida •máxima:2,50m(anãoexceder,poispodeoriginarestacionamentoilegalem segundafila).

Medidatransversaldolugar(b'):

Variável em função da existência ou não de barreira física que impeça o avançodosveículossobreopasseio

30˚,40˚e60˚

90
Quadro 6.4 – Dimensões do estacionamento segundo a tipologia (adaptado de IMTT, I.P., 2011e)
Estacionamentoa
Estacionamento(a) sembarreirafísica(m) combarreirafísica(m) 30˚ 3,60 3,80 45˚ 4,10 4,40 60˚ 4,40 4,80 Larguranecessáriaparamanobras (c): Estacionamento(a) sembarreirafísica(m) combarreirafísica(m) 30˚ 3,00 3,00 45˚ 3,00 3,20 60˚ 3,50 4,00

DOCUMENTO NORMATIVO PARA APLICAÇÃO A ARRUAMENTOS URBANOS

Fascículo II – Caraterísticas geométricas pararodovias com tráfegomotorizado

6.3.2 Estacionamentoadaptadoapessoascommobilidadecondicionada

Em Portugal, o Decreto-Lei nº 163/2006, de 8 de agosto, vertido no “Guia de Acessibilidade e Mobilidade para Todos” (SNRIPD, 2006), aprovou as normas técnicas para a eliminação de barreiras urbanísticas e arquitetónicas nos espaços públicos, incluindo espaços de estacionamento marginal à via pública ou em parques de estacionamento público, equipamentos coletivos e edifícios públicos e habitacionais. De acordo com as referidas normas, o número de lugares reservados para veículos em que um dos ocupantes seja uma pessoa com mobilidade condicionada deve ser pelo menos de:

 Um lugar em espaços de estacionamento com uma lotação não superior a 10 lugares;

 Dois lugares em espaços de estacionamento com uma lotação compreendida entre 11 e 25 lugares;

 Três lugares em espaços de estacionamento com uma lotação compreendida entre 26 e 100 lugares;

 Quatro lugares em espaços de estacionamento com uma lotação compreendida entre 101 e 500 lugares;

 Um lugar por cada 100 lugares em espaços de estacionamento com uma lotação superior a 500 lugares.

Os lugares de estacionamento reservados devem apresentar as seguintes características geométricas (SNRIPD, 2006):

 Ter uma largura útil não inferior a 2,5m;

 Possuir uma faixa de acesso lateral, ligada à rede de percursos acessíveis, com uma largura útil não inferior a 1m;

 Ter um comprimento útil não inferior a 5m;

 Estar localizados ao longo do percurso acessível mais curto até à entrada/saída do espaço de estacionamento ou do equipamento que servem;

 Se existir mais de um local de entrada/saída no espaço de estacionamento, estar dispersos e localizados pertos dos referidos locais;

 Ter os seus limites demarcados por linhas pintadas no piso em cor contrastante com a da referida superfície;

 Ser reservados por um sinal horizontal com o símbolo internacional de acessibilidade, pintado no piso em cor contrastante com a da restantes superfície e com uma dimensão não inferior a 1 m de lado, e por um sinal vertical com o símbolo de acessibilidade, visível mesmo quando o veículo se encontra estacionado.

A faixa de acesso lateral pode ser partilhada por dois lugares de estacionamento reservado contínuos (Figura 6.6).

91

DOCUMENTO NORMATIVO PARA APLICAÇÃO A ARRUAMENTOS URBANOS

Fascículo II – Caraterísticas geométricas pararodovias com tráfegomotorizado

sinalhorizontalcomo símbolointernacional deacessibilidade, pintadonopisoemcor contrastante

faixadeacesso lateral,podeser partilhadapordois lugaresde estacionamento contíguosreservado limitesdemarcados porlinhaspintadas nopisoemcor contrastantecomo darestante superfície

EmFrança,todasasáreasdeestacionamentodevemintegrar,pelomenos,2%doslugaresreservados a utilizadores de mobilidade condicionada, sendo que a inclinação transversal desses lugares inferior a 2% (CEREMA, 2016).

6.3.3 Estacionamentodeveículosmotorizadosdeduasrodas

Estacionamento oblíquo ou em espinha: pode ser perpendicular à direcção de circulação (ângulo de 90º) ou formar um ângulo de 30º, 45º ou 60º (os mais usuais) entre a orientação do estacionamento e adirecçãodecirculação,sendo quenecessitadeumalarguraem profundidadede2,00m (Figura7.6).

Estacionamentoperpendicular:requer umaprofundidadede 2,30 m (CEREMA, 2016),ou sejamais 30 cm do que no caso do estacionamento oblíquo na Figura 6.7.

Estacionamento longitudinal: requer uma largura em profundidade de 1,20m (Figura 6.8).

92
Figura 6.6 – Dimensões dos lugares acessíveis contíguos (SNRIPD, 2006) Figura 6.7 – Estacionamento oblíquo de motos (adaptado de CEREMA, 2016) ≥1,00m ≥2,50m≥2,50m ≥1,00m ≥ 5,00 m

Fascículo II – Caraterísticas geométricas pararodovias com tráfegomotorizado

6.3.4 Estacionamentoparacargaedescargadeveículospesadosdemercadorias Para facilitar a carga e descarga de mercadorias na via existem várias soluções de estacionamento, que em seguida se referem (Seco, A. et al., 2008):

 Lugares reservados na via para cargas e descargas através de sinalização vertical e de marcações no pavimento;

 Lugares reservados na via em certos períodos do tempo por dia, ou em dias de semana;

 Estacionamentoexclusivoparacargasedescargas(proibido paraosoutrostipos de veículos);

 Vias de tráfego que permitem o estacionamento fora das horas de ponta.

De acordo com Seco, A. et al. (2008), o dimensionamento dos lugares de estacionamento em zonas decargaedescargadeveículosligeirosdemercadoriasdeveserconcebidocom8,0mx2,5m,podendo ser aceitável o valor de largura mínimo de 2,15 m, se o lugar de estacionamento se desenvolver na continuidade de espaços de estacionamento com essa dimensão e desde que não coloque em cause a fluidez do tráfego.

Os lugares de estacionamento para camiões normais devem considerar as dimensões do veículo tipo conforme se refere no Fascículo 1, secção 3.4.1. Assim, não devem ter dimensões inferiores a 14m x3,5m. No caso de veículos articulados devem ser, pelo menos, de 18,5m x 3,5m, mas se tiverem reboque exigem um maior comprimento de estacionamento dado que o comprimento total (veículo e reboque) pode atingir cerca de 19 metros. São recomendados lugares com orientação de 90 ou 45 graus, que permitam a entrada e saída no mesmo sentido, e as vias de acesso devem dispor pelo menos de 6,0 m de largura e ser de sentido único. Em parques cobertos há que considerar a altura máxima dos veículos pesados com contentores (4,2 metros, de acordo com Seco, A. et al., 2008).

A configuração do estacionamento de veículos pesados articulados está representada na Figura 6.9. Considerando o estacionamento oblíquo a 60 graus do eixo da via, a largura do espaço livre frontal para manobras é de 9,5 metros, sendo a largura mínima do estacionamento de 4,00 m. Se o

DOCUMENTO NORMATIVO PARA APLICAÇÃO A ARRUAMENTOS URBANOS
93
Figura 6.8 – Estacionamento longitudinal de motos (adaptado de CEREMA, 2016)

DOCUMENTO NORMATIVO PARA APLICAÇÃO A ARRUAMENTOS URBANOS

Fascículo II – Caraterísticas geométricas pararodovias com tráfegomotorizado

estacionamento for perpendicular ao eixo da via (conforme ilustrado na parte esquerda da Figura 6.9), alarguramínimadolugardeestacionamentoéde3,5metrosealarguradoespaçodemanobrafrontal de 13,0 metros.

O Decreto-Lei nº 133/2014 revê o peso máximo de determinados veículos a motor e seus reboques e define as referidas dimensões máximas autorizadas paracirculação. Altera o Regulamento que fixaos pesos e as dimensões máximas autorizados para os veículos em circulação, aprovado pelo DecretoLei99/2005, de 21dejunho,alteradopelos Decretos-Lei131/2006, de11 de julho, 203/2007,de 28 de maioe133/2010,de22dedezembro.Asdimensõesdefinidassãoasmedidasdecomprimento,largura e altura do contorno envolvente de um veículo compreendendo todos os acessórios para os quais não esteja prevista uma exceção. Assim, no artigo 3º são definidos os comprimentos máximos a atender:

 Veículos a motor de 2 ou mais eixos: 12 m;

 Reboques de 1 ou mais eixos: 13,5m;

 Automóveis pesados de passageiros com dois eixos: 13,5m;

 Automóveis pesados de passageiros com três ou mais eixos: 15 m;

 Automóveis pesados de passageiros articulados: 18,75m;

 Conjunto do veículo trator-semirreboque de três ou mais eixos de 16,5 m;

 Conjunto veículo a motor-reboque: 18,75 m;

 Comboios turísticos: 18,75m;

 Máquinas com motor de propulsão ou rebocáveis: 20 m.

Nas dimensões antes referidas estão compreendidas as superestruturas amovíveis e os dispositivos de carga normalizados, como contentores.

94
Figura 6.9 – Estacionamento de veículos pesados de mercadorias (INRS, 2010) 9,5 m

NORMATIVO PARA APLICAÇÃO A ARRUAMENTOS URBANOS

Fascículo II – Caraterísticas geométricas pararodovias com tráfegomotorizado

Na Figura 6.10 e Quadro 6.5 ilustram-se os requisitos para o estacionamento de veículos pesados de mercadorias, tendo em consideração o espaço frontal livre para estacionar de forma ordenada em lugares de estacionamento construídas para carga e descarga de mercadorias (Littlefield, 2011).

Figura 6.10 – Estacionamento perpendicular de veículos pesados de mercadorias de grande dimensão considerando a área de varredura (adaptado de Littlefield, D., 2011)

No Quadro 6.5 representa-se a largura total necessária para estacionar (W), em função dos seguintes parâmetros:comprimentodolugardeestacionamentp(L),distânciamedidatransversalmente,entreos eixos geométricos longitudinais de veículos contíguos (Y) e área por veículo em m2 (S).

Quadro 6.5 – Espaço necessário para o estacionamento perpendicular de cinco veículos de transporte de mercadorias não refrigerado com 15 m de comprimento (Austroads, 2017d)

No caso do estacionamento oblíquo (a 45º) de cinco veículos de mercadorias considerados de grande dimensão (em Portugal, vide dimensões máximas que constam no Decreto-Lei nº 133/2014), a

DOCUMENTO
95
Y(m) L(m) S(m2) W(m) 5,00 22,50 123,00 27,4 4,40 20,10 114,00 28,4 4,00 18,50 109,00 29,4 3,70 17,30 103,00 30,4 3,40 16,10 101,00 31,4 3,00 14,50 94,00 32,4

DOCUMENTO NORMATIVO PARA APLICAÇÃO A ARRUAMENTOS URBANOS

Fascículo II – Caraterísticas geométricas pararodovias com tráfegomotorizado

configuração do estacionamento e largura total necessária para estacionar (W) está representada na Figura 6.11 e Quadro 6.6.

Figura 6.11 – Estacionamento oblíquo de veículos pesados de mercadorias de grande dimensão (adaptado de Littlefield, D., 2011)

Quadro 6.6 – Espaço necessário para o estacionamento oblíquo de cinco veículos de transporte de mercadorias não refrigerado com 15 m de comprimento (Littlefield, D. , 2011)

96
Y L S W(m) 4,80 39,50 145,00 18,40 4,50 37,50 144,00 19,10 4,20 36,10 144,00 19,80 3,90 34,40 141,00 20,50 3,60 32,70 139,00 21,20 3,40 31,60 138,00 21,90

NORMATIVO PARA APLICAÇÃO A ARRUAMENTOS URBANOS

Fascículo II – Caraterísticas geométricas pararodovias com tráfegomotorizado

6.3.5 Zonasdeparagemparatomadaelargadadepassageiros

A disponibilização de zonas de paragem para tomada ou largada de passageiros é importante para prevenir o congestionamento junto a pólos geradores de tráfego pedonal e promover a integração modal (por exemplo Kiss&Ride), neste caso tornando a mobilidade em transporte público mais competitiva e atrativa. No sistema de Kiss&Ride, deve ser assegurado estacionamento de curta duração que permita uma elevada rotatividade de lugares, sem prejudicar a operação dos veículos de transporte coletivo (por exemplo, de autocarros).

As zonas de paragem para tomada e largada de passageiros estão geralmente localizadas pertos de creches,escolas,estaçõesdecomboioouterminaisdepassageiros(Kiss&Ride),sendoospassageiros do veículo automóvel largados/tomados nesse local, de forma rápida.

Aszonasdeparagemsãoindicadasporsinaisdetrânsitoquelimitamaparagemaumperíodotemporal de curta duração (ver Figura 6.12). Em Portugal, a sinalização deve respeitar o Regulamento de Sinalização do Trânsito. Assim, as suas dimensões e restantes características (formas, cores, inscrições, símbolos) devem ter em conta o disposto no Decreto-Regulamentar nº 6/2019, de 22 de outubro, ratificado pela Declaração de Retificação nº 60-A/2019 de 20 de dezembro.

DOCUMENTO
97
Figura 6.12 – Exemplo de sinalização de zona de paragem para tomada ou largada de passageiros

DOCUMENTO NORMATIVO PARA APLICAÇÃO A ARRUAMENTOS

URBANOS

Fascículo II – Caraterísticas geométricas pararodovias com tráfegomotorizado

Ascâmarasmunicipaisfixamporregulamentoosregimesdeestacionamentoparatransportespúblicos de aluguer em veículos automóveis ligeiros de passageiros (transportes por táxi), podendo ser em regime livre, condicionado, fixo e com escalas que assegurem uma prestação sequencial de serviço. No regime condicionado, os táxis podem estacionar em qualquer dos locais reservados para o efeito atéaolimitedelugares.Nocasoderegimefixo,ostáxissãoobrigadosaestacionaremlocaismarcados e constantes da respetiva licença (conforme Decreto-Lei nº 251/98 de 11 de agosto e alterações ocorridas até à Lei nº 35/2016 de 21 de novembro). As atuais características dos táxis em Portugal estão regulamentadas pelas Portarias n.º 277-A/99 de 15 de abril enº 1318/2001, de 29 de novembro. Os parâmetros para a definição de praças de táxi em cada município devem decorrer de instrumentos de planeamento urbanístico e planos de mobilidade que delimitam as zonas necessárias para estacionamentodetáxi.Onúmerodelugaresdeestacionamentodeveráser definidoem regulamentos municipaiseatenderàsregrasdedimensionamentodoslugaresdeestacionamentodeveículosligeiros de passageiros.

98

DOCUMENTO NORMATIVO PARA APLICAÇÃO A ARRUAMENTOS URBANOS

Fascículo II – Caraterísticas geométricas pararodovias com tráfegomotorizado

99

DOCUMENTO NORMATIVO PARA APLICAÇÃO A ARRUAMENTOS URBANOS

Fascículo II – Caraterísticas geométricas pararodovias com tráfegomotorizado

Referências bibliográficas

ANSR, 2019 – Manual de apoio à implementação de zonas 30. Autoridade Nacional de Segurança Rodoviária, Oeiras.

APA-Agência Portuguesa do Ambiente (Eds.), 2010 – Projeto Mobilidade Sustentável.Concepção, Principais Conclusões e Recomendações. Agência Portuguesa do Ambiente, Ministério do Ambiente e do Ordenamento do Território, Amadora. (ISBN 978-972-8577-51-3)

CARDOSO, J.L.,2010–Recomendaçõesparadefiniçãoesinalizaçãodelimitesdevelocidademáxima. Prevenção Rodoviária Portuguesa. Lisboa, ISBN978-972-98080-4-3

CEREMA, 2016 – Voirie urbaine. Guide d'aménagement, Lyon, France.

CEREMA, 2017 – Les pôles d´´echanges au service de l'intermodalité et de la ville durable, Ministère de la Transition Écologique et Solidaire, Lyon.

CEREMA, 2018 – Points d’arrêt de bus et de car accessibles à tous: de la norme au confort, Ministère de la Transition Écologique et Solidaire, Lyon.

CML, 2018 – Lisboa: O Desenho da Rua. Manual de espaço público. 1ª Edição, CML - Departamento de Espaço Público, Departamento de Urbanismo.

DECRETO-LEI N.º 80/2016, 2016 – Alteração ao Código da Estrada. Diário da República n.º 228/2016, Série I de 2016-11-28.

DECRETO-LEI Nº163/2006, 2006 – Normas técnicas de acessibilidade e regras para a sua aplicação às edificações e espaços públicos. Diário da República n.º 152/2006, Série I de 2006-08-08.

DEPARTMENT FOR TRANSPORT, 1995 – Geometric Design of Major/minor Priority Junctions –Department for Transport - TD 42/95 - Volume 6, Section 2, Part 6 of Design Manual for Roads and Bridges - Road Geometry Junctions. U.K.

DfT, 2007 – Manual for Streets. Department for Transport, London, UK.

DJURHUUS, O., 1991 – Trough Traffic in Small Towns. Safety and Environmental Aspects –Routes/Roads 04.03.B. special 1991. 1-44.

ELVIK, R. E VAA, T., 2004 – The Handbook of Road Safety Measures. Pergamon, Oslo.

IMTT, I.P., 2011c – Colecção de Brochuras Técnicas/Temáticas: Rede Pedonal – Princípios de Planeamento e Desenho. Lisboa.

100

DOCUMENTO NORMATIVO PARA APLICAÇÃO A ARRUAMENTOS URBANOS

Fascículo II – Caraterísticas geométricas pararodovias com tráfegomotorizado

IMTT,I.P., 2011d– ColecçãodeBrochuras Técnicas/Temáticas:AcalmiadeTráfego-Zonas 30eZonas Residenciais ou de Coexistência. Lisboa.

IMTT, I.P., 2011e – Colecção de Brochuras Técnicas/Temáticas: Políticas de Estacionamento –Estratégias, conceitos, parâmetros. Lisboa.

IMTT, I.P., 2011f – Colecção de Brochuras Técnicas/Temáticas: Guia para a elaboração de Planos de Mobilidade e Transportes. Lisboa.

LEI N.º 72/2013, 2013 – Código da Estrada. Diário da República n.º 169/2013, Série I de 2013-09-03.

LITTLEFIELD, D., 2011 – Manual do Arquiteto: planejamento, dimensionamento e projeto, Bookman, Porto Alegre, Brazil.

MARQUES, S., 2005 – Engenharia de Segurança Rodoviária em áreas urbanas - Recomendações e Boas Práticas, Edição Prevenção Rodoviária Portuguesa.

MATD, 2001 – Traffic Calming Protocol Manual Municipality of Anchorage Traffic Department, Alaska.

NATIONAL ROADS AUTHORITY, 2005 – Guidelines on Traffic Calming for Towns and Villages on National Roads. St Martin’s House, Waterloo Road, Dublin.

PIRES DA COSTA, A., 2008 – Manual do Planeamento de Acessibilidades e Transportes - Transportes Públicos, CCDR Norte.

ROQUE, C.; CARDOSO, J.L., 2011 – Critérios de segurança para a área adjacente à faixa de rodagem. Estudo realizado por solicitação do Instituto de Infra-estruturas Rodoviárias, I.P. Relatório LNEC, Lisboa.

SECO, A., GONÇALVES, J., PIRES DA COSTA, A., 2008a – Manual do Planeamento de Acessibilidades e Transportes - Estacionamento, CCDR Norte.

SECO, A., MACEDO, J., PIRES DA COSTA, A., 2008b - Manual do Planeamento de Acessibilidades e Transportes - Peões, CCDR Norte.

SECO, A., PAIS ANTUNES, A., PIRES DA COSTA, A., 2008c – Manual do Planeamento de Acessibilidades e Transportes - Princípios Básicos de Organização de Redes Viárias, CCDR Norte.

SECO, A., RIBEIRO, A., MACEDO, J., 2008d– Manual doPlaneamento de Acessibilidades e Transportes - Acalmia de Tráfego, CCDR Norte.

SILVA, A. B. , SECO, A., SANTOS, S., 2011a – Medidas de Acalmia de Tráfego, Volume 2 - Critérios para definição dos Trechos de Intervenção. Instituto de Infra-estruturas Rodoviárias, I. P., Lisboa.

101

DOCUMENTO NORMATIVO PARA APLICAÇÃO A ARRUAMENTOS URBANOS

Fascículo II – Caraterísticas geométricas pararodovias com tráfegomotorizado

SILVA, A. B. , SECO, A., SANTOS, S., 2011c – Medidas de Acalmia de Tráfego, Volume 4 - Tratamento do Trecho urbano em atravessamento de Localidades. Instituto de Infra-estruturas Rodoviárias, I. P., Lisboa.

SILVA, A. B. E SANTOS, S., 2011 – Medidas de Acalmia de Tráfego, Volume 1 - Medidas Individuais aplicadas em Atravessamento de Localidades. Instituto de Infra-estruturas Rodoviárias, I. P., Lisboa.

SILVA, A. B. E SECO, A., 2012 – Dimensionamento de Rotundas – Documento Síntese - Disposições Normativas. Instituto de Infra-estruturas Rodoviárias, I. P. Lisboa.

SILVA, A. B., SECO, A., SANTOS, S., 2011b – Medidas de Acalmia de Tráfego, Volume 3 - Tratamento de zonas de Aproximação e Transição. Instituto de Infra-estruturas Rodoviárias, I. P., Lisboa.

SILVA, F. E CUSTÓDIO,R., 2013 – Zonas 30 - Segurança rodoviária, visa e vitalidade para os bairros da cidade de Lisboa, Lisboa

SNRIPD, 2006 – Guia Acessibilidade e Mobilidade para Todos. Apontamentos para uma melhor interpretação do DL 163/2006 de 8 de Agosto. Edição do Secretariado Nacional de Reabilitação e Integração das Pessoas com Deficiência.

STIF, 2011 – Aménagement points d'arrêt. Cahier de référence, France.

TRB, 2010 – Highway Capacity Manual 2010. Transportation Research Board, Washington, D.C.

YORK, I.; BRADBURY, A.; REID, S.; EWINGS, T.; PARADISE, R., 2007 –TheManualfor Streets:Redefining Residential Street Design. TRL Report No. 661. Crowthorne: TRL.

ZAIDEL, D., A. S. HAKKERT, ET AL., 1992 – The use of road humps for moderating speeds on Urban streets. Accident Analysis & Prevention 24(1): 45-56.

102

Turn static files into dynamic content formats.

Create a flipbook

Articles inside

DOCUMENTO NORMATIVO PARA APLICAÇÃO A ARRUAMENTOS URBANOS

1min
page 117

DOCUMENTO NORMATIVO PARA APLICAÇÃO A ARRUAMENTOS URBANOS

1min
pages 115-116

DOCUMENTO NORMATIVO PARA APLICAÇÃO A ARRUAMENTOS

1min
page 114

NORMATIVO PARA APLICAÇÃO A ARRUAMENTOS URBANOS

1min
page 113

NORMATIVO PARA APLICAÇÃO A ARRUAMENTOS URBANOS

1min
page 111

DOCUMENTO NORMATIVO PARA APLICAÇÃO A ARRUAMENTOS URBANOS

1min
page 110

DOCUMENTO NORMATIVO PARA APLICAÇÃO A ARRUAMENTOS URBANOS

1min
pages 108-109

DOCUMENTO NORMATIVO PARA APLICAÇÃO A ARRUAMENTOS URBANOS

1min
page 107

DOCUMENTO NORMATIVO PARA APLICAÇÃO A ARRUAMENTOS URBANOS

1min
page 105

DOCUMENTO NORMATIVO PARA APLICAÇÃO A ARRUAMENTOS URBANOS

1min
page 104

DOCUMENTO NORMATIVO PARA APLICAÇÃO A ARRUAMENTOS URBANOS

1min
page 103

DOCUMENTO NORMATIVO PARA APLICAÇÃO A

2min
pages 101-102

DOCUMENTO NORMATIVO PARA APLICAÇÃO A ARRUAMENTOS URBANOS

1min
page 99

DOCUMENTO NORMATIVO PARA APLICAÇÃO A ARRUAMENTOS URBANOS

1min
page 98

DOCUMENTO NORMATIVO PARA APLICAÇÃO A ARRUAMENTOS URBANOS

1min
page 97

DOCUMENTO NORMATIVO PARA APLICAÇÃO A ARRUAMENTOS URBANOS

1min
page 96

NORMATIVO PARA APLICAÇÃO A ARRUAMENTOS URBANOS

1min
page 95

DOCUMENTO NORMATIVO PARA APLICAÇÃO A ARRUAMENTOS URBANOS

1min
page 94

DOCUMENTO NORMATIVO PARA APLICAÇÃO A ARRUAMENTOS URBANOS

1min
page 93

DOCUMENTO NORMATIVO PARA APLICAÇÃO A ARRUAMENTOS URBANOS

1min
page 92

DOCUMENTO NORMATIVO PARA APLICAÇÃO A ARRUAMENTOS URBANOS

1min
page 91

DOCUMENTO NORMATIVO PARA APLICAÇÃO A ARRUAMENTOS URBANOS

1min
page 90

DOCUMENTO NORMATIVO PARA APLICAÇÃO A ARRUAMENTOS URBANOS

1min
page 88

DOCUMENTO NORMATIVO PARA APLICAÇÃO A ARRUAMENTOS URBANOS

1min
pages 86-87

DOCUMENTO NORMATIVO PARA APLICAÇÃO A ARRUAMENTOS URBANOS

1min
pages 84-85

DOCUMENTO NORMATIVO PARA APLICAÇÃO A ARRUAMENTOS URBANOS

1min
page 83

DOCUMENTO NORMATIVO PARA APLICAÇÃO A ARRUAMENTOS URBANOS

1min
page 82

DOCUMENTO NORMATIVO PARA APLICAÇÃO A ARRUAMENTOS URBANOS

1min
page 81

DOCUMENTO NORMATIVO PARA APLICAÇÃO A ARRUAMENTOS URBANOS

1min
page 80

DOCUMENTO NORMATIVO PARA APLICAÇÃO A ARRUAMENTOS URBANOS

1min
page 79

DOCUMENTO NORMATIVO PARA APLICAÇÃO A ARRUAMENTOS URBANOS

1min
page 78

DOCUMENTO NORMATIVO PARA APLICAÇÃO A ARRUAMENTOS URBANOS

1min
page 77

DOCUMENTO NORMATIVO PARA APLICAÇÃO A ARRUAMENTOS URBANOS

1min
page 76

DOCUMENTO NORMATIVO PARA APLICAÇÃO A ARRUAMENTOS URBANOS

1min
page 75

DOCUMENTO NORMATIVO PARA APLICAÇÃO A ARRUAMENTOS URBANOS

1min
page 74

DOCUMENTO NORMATIVO PARA APLICAÇÃO A ARRUAMENTOS URBANOS

1min
page 73

DOCUMENTO NORMATIVO PARA APLICAÇÃO A ARRUAMENTOS URBANOS

1min
page 72

NORMATIVO PARA APLICAÇÃO A ARRUAMENTOS URBANOS

1min
page 71

DOCUMENTO NORMATIVO PARA APLICAÇÃO A ARRUAMENTOS URBANOS

1min
page 70

DOCUMENTO NORMATIVO PARA APLICAÇÃO A ARRUAMENTOS URBANOS

1min
page 69

DOCUMENTO NORMATIVO PARA APLICAÇÃO A ARRUAMENTOS URBANOS

1min
page 67

DOCUMENTO NORMATIVO PARA APLICAÇÃO A ARRUAMENTOS URBANOS

1min
page 66

DOCUMENTO NORMATIVO PARA APLICAÇÃO A ARRUAMENTOS URBANOS

1min
page 64

DOCUMENTO NORMATIVO PARA APLICAÇÃO A ARRUAMENTOS URBANOS

1min
page 63

DOCUMENTO NORMATIVO PARA APLICAÇÃO A ARRUAMENTOS URBANOS

1min
page 62

DOCUMENTO NORMATIVO PARA APLICAÇÃO A ARRUAMENTOS URBANOS

1min
page 61

DOCUMENTO NORMATIVO PARA APLICAÇÃO A ARRUAMENTOS URBANOS

1min
page 60

DOCUMENTO NORMATIVO PARA APLICAÇÃO A ARRUAMENTOS URBANOS

1min
page 59

DOCUMENTO NORMATIVO PARA APLICAÇÃO A ARRUAMENTOS URBANOS

1min
page 58

DOCUMENTO NORMATIVO PARA APLICAÇÃO A ARRUAMENTOS URBANOS

1min
page 57

DOCUMENTO NORMATIVO PARA APLICAÇÃO A ARRUAMENTOS URBANOS

1min
page 56

DOCUMENTO NORMATIVO PARA APLICAÇÃO A ARRUAMENTOS URBANOS

2min
pages 54-55

DOCUMENTO NORMATIVO PARA APLICAÇÃO A ARRUAMENTOS URBANOS

1min
page 53

DOCUMENTO NORMATIVO PARA APLICAÇÃO A ARRUAMENTOS URBANOS

1min
page 52

DOCUMENTO NORMATIVO PARA APLICAÇÃO A ARRUAMENTOS URBANOS

1min
page 51

DOCUMENTO NORMATIVO PARA APLICAÇÃO A ARRUAMENTOS URBANOS

1min
page 50

NORMATIVO PARA APLICAÇÃO A ARRUAMENTOS URBANOS

1min
page 49

DOCUMENTO NORMATIVO PARA APLICAÇÃO A ARRUAMENTOS URBANOS

1min
page 48

DOCUMENTO NORMATIVO PARA APLICAÇÃO A ARRUAMENTOS URBANOS

1min
page 47

DOCUMENTO NORMATIVO PARA APLICAÇÃO A ARRUAMENTOS URBANOS

1min
pages 45-46

DOCUMENTO NORMATIVO PARA APLICAÇÃO A ARRUAMENTOS URBANOS

1min
page 42

DOCUMENTO NORMATIVO PARA APLICAÇÃO A ARRUAMENTOS URBANOS

1min
page 41

DOCUMENTO NORMATIVO PARA APLICAÇÃO A ARRUAMENTOS URBANOS

1min
pages 39-40

DOCUMENTO NORMATIVO PARA APLICAÇÃO A

1min
page 38

DOCUMENTO NORMATIVO PARA APLICAÇÃO A ARRUAMENTOS URBANOS

1min
page 37

DOCUMENTO NORMATIVO PARA APLICAÇÃO A ARRUAMENTOS URBANOS

1min
page 36

DOCUMENTO NORMATIVO PARA APLICAÇÃO A ARRUAMENTOS URBANOS

1min
page 35

DOCUMENTO NORMATIVO PARA APLICAÇÃO A ARRUAMENTOS URBANOS

1min
page 33

DOCUMENTO NORMATIVO PARA APLICAÇÃO A ARRUAMENTOS URBANOS

1min
page 31

DOCUMENTO NORMATIVO PARA APLICAÇÃO A ARRUAMENTOS URBANOS

1min
page 30

DOCUMENTO NORMATIVO PARA APLICAÇÃO A ARRUAMENTOS URBANOS

1min
page 29

DOCUMENTO NORMATIVO PARA APLICAÇÃO A ARRUAMENTOS URBANOS

1min
page 27

DOCUMENTO NORMATIVO PARA APLICAÇÃO A ARRUAMENTOS URBANOS

1min
page 26

DOCUMENTO NORMATIVO PARA APLICAÇÃO A ARRUAMENTOS URBANOS

1min
page 25

DOCUMENTO NORMATIVO PARA APLICAÇÃO A

1min
page 24

DOCUMENTO NORMATIVO PARA APLICAÇÃO A ARRUAMENTOS URBANOS

1min
page 23

DOCUMENTO NORMATIVO PARA APLICAÇÃO A ARRUAMENTOS URBANOS

1min
page 22

DOCUMENTO NORMATIVO PARA APLICAÇÃO A ARRUAMENTOS URBANOS

1min
page 21

DOCUMENTO NORMATIVO PARA APLICAÇÃO A ARRUAMENTOS URBANOS

1min
pages 19-20

DOCUMENTO

1min
page 18

DOCUMENTO NORMATIVO PARA APLICAÇÃO A ARRUAMENTOS URBANOS

1min
pages 15, 17

DOCUMENTO NORMATIVO

1min
page 14

DOCUMENTO NORMATIVO

1min
pages 12-13
Issuu converts static files into: digital portfolios, online yearbooks, online catalogs, digital photo albums and more. Sign up and create your flipbook.