Raechel Hamilton Graduate Portfolio 2022

Page 1

Architecture + Design Portfolio

selected works from 2016 to 2022

Raechel Hamilton

20 Quilt Camp: Organic Housing Design

M1 Indigenous Studio 2020

Low Carbon Living: An Alternative (Sub)urban Housing Framework for a Rapidly Growing City

M.Arch Thesis 2021 to 2022 28

Community Crossroad: Mass Timber Multi-use Housing Complex BAS Studio 7 + 8 2019 to 2020

2
Contents Design Projects 04 Curriculum Vitae 06
3 Design Build Projects 50 BNDR: Ice Warming Station BAS 2016 to 2017 42 Sudbury Art Gallery: Adaptive Reuse BAS Studio 6 2019 56 Plastopia: Market Installation BAS Studio 7 2019

2020 to 2022 2016 to 2020

Raechel Hamilton

Barrie, ON raechelhamilton@gmail.ca (705) 817-0095 issuu.com/raechelhamilton

Welcome to my portfolio! I am a recent Master’s of Architecture graduate from Laurentian University’s McEwen School of Architecture. As my academic and professional career progesses, my architectural interests have grown to emphasize low carbon design and community strategies, as well as placed-based design which are integrated throughout projects with various conceptual frameworks.

Education

Master of Architecture

Laurentian University, McEwen School of Architecture Sudbury, ON

Bachelor of Architectural Studies Cum Laude Honours

Laurentian University, McEwen School of Architecture Sudbury, ON

2014 to 2016

Architectural Technician

Georgian College Barrie, ON Experience

Laurentian University, McEwen School of Architecture Graduate Teaching Assistant | Sudbury, ON Assisted professors with grading, presentation material, leading seminars and tutorials, and providing design feedback during reviews.

VFA Architecture and Design

Architectural Student Intern [Co-op] | Toronto, ON Design lead on a multi cabin project that extended from schematic design to construction documentation and interior design development. Assisted the design team with developing a line of prefabricated accessory dwellings and completed marketing material for the website.

3stones Architecture and Design

Architectural Student Intern [Co-op] | Barrie, ON Assisted the design team with producing digital models for schematic design presentations and renderings, completed ammendments to construction documentation, and produced post-production documentation for the firm’s website.

4 | Curriculum Vitae
2020 to 2022 Jan 2021 to Aug 2021 May 2019 to Aug 2019

Jul 2018 to Aug 2018 and May 2017 to Aug 2017

May 2018

Nudura Inc.

Technical Assistant/Technical Student Intern [Co-op] | Barrie, ON Assisted the technical department in completing technical reports, detail and marketing drawings, and research related to their insulated concrete form products.

Manfred Weihman Architect Work-Study Student | Dinkelsbühl, Germany

A design-build workshop with fellow MSoA students consisting of drawing and construction of adaptive reuse projects in historic 16th century mass timber buildings.

Achievements

2022 2022

CASA Student Work Showcase

Thesis project selected as a finalist for the 2022 student work showcase.

McEwen School of Architecture Graduate Award for Sustainability and Stewardship

This award recognizes a thesis project that demostrates stewardship in sustainable design.

RAIC Foundation Vince Catalli Scholarship for Sustainable Architectural Innovation

The scholarship aims to promote and encourage innovative, practical, scalable, and transferable approaches to sustainable design among the next generation of architects in Canada.

2018 to 2020

Laurentian University In-Course Scholarship For academic excellence.

2018 to 2020

Laurentian University Dean’s List Honours For academic excellence.

2014 to 2016

Georgian College Dean’s List Honours For academic excellence.

Extracurriculars

2021 to present

2022 2020 to 2022

2018 to 2021

2019 and 2020

Digital Skills

Member of BEA-N Supporting graphic designer and member for the Northern chapter of ‘Building Equality in Architecture.’

McEwen School of Archtecture Guest Critic Providing design feedback for students in third year and fourth year studio courses.

Editor of The Telegraph

A student run website and social media showcasing student work at the MSoA. MSoA Nuit Blanche Installation Artist

Analog Skills

Rhino, AutoCAD, ArchiCAD, Revit, SketchUp, Adobe Creative Suite, Microsoft Office, TwinMotion, V-Ray, Grasshopper, Procreate

Hand Drafting, Laser Cutter, Model Making and Wood Working, Hand-built Pottery, Knitting and Crocheting

5

Low Carbon Living

Post-war immigration, along with the Baby Boom dramatically increased metropolitan populations generating a demand for new housing where suburbanization was ultimately the solution. It is in part responsible for the contemporary cities that we live in today, and that are now at the root of the climate crisis. Suburban developments imposed challenges of disconnections between neighbourhoods, services, and amenities within cities that were solved with the implementation of vehicles.

This thesis project explores new housing strategies that emphasize how low carbon architecture and lifestyles can be implemented into growing cities to minimize the impacts on climate change and avoid the

rampant disconnections of the urban fabric. A sustainable urban development framework has been developed to create a denser and more liveable neighbourhood in the context of Barrie, Ontario, a rapidly growing bedroom community outside of Toronto.

The design project is a place based design framework culminating from sustainable urban development strategies that emphasize user well-being and low carbon design which focus on systems and building eficiencies to reduce the overall and individuals carbon footprint.

Year | fall 2021 - winter 2022 - master’s thesis Team | individual [advised by Steven Beites] Location | Barrie, ON

6 | Low
Carbon Living: An Alternative (Sub)urban Housing Framework for a Rapidly Growing City

This

7
project was awarded the RAIC Vince Catalli Scholarship along with the MSoA Graduate Award.

Mapping of the city of Barrie’s development and sprawl over time.

The city of Barrie’s 2051 master planning map. The average Canadian’s carbon footprint broken down into various categories.

8 |
Low Carbon Living: An Alternative (Sub)urban Housing Framework for a Rapidly Growing City

Existing programming within the site’s context.

Mapping the forces that act of the projects site.

9

Quantitative and qualitative site analysis.

Site’s solar shading and the impacts from the context. Site’s solar radiation and the impacts from the context.

Wind speed, direction, and dry bulb temperature.

Qualitative analysis - site access, views and vistas, amenitites, and traffic intensity.

Identifying potential green spaces from quantitative and qualitative analysis.

Identifying commercial ground floor around green spaces.

10 | Low
Carbon Living: An Alternative (Sub)urban Housing Framework for a Rapidly Growing City

Applying 8’ x 40’ mass timber grid to massing.

Unit stacking above the ground floor.

Analyzing the massings through a climate study observing the solar shading.

Analyzing the massing through a climate study observing the solar radiation.

Manipulating the building massings to better react to climate study.

11
12 | Low
Carbon Living: An Alternative (Sub)urban Housing Framework for a Rapidly Growing City

Project isometric in the downtown context.

13

local + recycled materials identity + inclusivity

diversity Architectural Strategies Urban Strategies Low Carbon Strategies

human scale community gardens proximity panelized wood construction solar shading natural ventilation solar collection solar grid connection

density microclimate providing parking alternatives variety of outdoor spaces

Design Strategies

retail daycare daily market

laundry + storage car share car share

co-working fitness retail event space

retail

cafe restaurant

Ground floor plan indicating the commercial programming on site.

Low Carbon Living: An Alternative (Sub)urban Housing Framework for a Rapidly Growing City

14 |

private courtyard pedestrian street

public plaza private courtyard private courtyard

Third floor plan indicating unit types as well as outdoor spaces.

Roof plan indicating mass timber grid and roof top solar panels.

15

Mass timber wall section.

Typical mid-rise residential wall section. Detailed wall section illustrating the envelope strategy.

Perspective of the public plaza surrounded with commercial programming.

16
|
Low Carbon Living: An Alternative (Sub)urban Housing Framework for a Rapidly Growing City

Carbon Reductions: reducing dependency on vehicles.

Co-working Space.

Carbon Reductions: providing access to on-site food production + locally grown food.

Community Roof Garden.

Carbon Reductions: prioritizing on-site energy production through solar collection.

Private Residential Courtyard.

17
18 | Low
Carbon Living: An Alternative (Sub)urban Housing Framework for a Rapidly Growing City

North-south section through residential units and public plaza highlighting the passive strategies implemented.

East-west section highlighting the human scale of the project and maintaining a connection to the ground floor

19

Quilt Camp

Quilt Camp was designed under the guidance of Douglas Cardinal through his graduate studio which focused on applying the principles of Organic Architecture through the lens of Matriculturalism. In order to fully explore the design principles of the course, I collaborated with my grandmother to reimagine our family’s summer home. The multi-generational use of the site, along with the active and creative lifestyle of my grandmother were specific focuses in the design process.

The building is sculpted by the local climate, site conditions, and the unique geographic formations of the Bruce Peninsula. The local topography of the Peninsula slopes gently towards the water on the Lake Huron coast

and is contrasted by the drastic cliff edge of Georgian Bay. This natural condition inspired the building’s unique wall-to-roof transition. Openings were carved out to encourage a flow between outdoor and indoor activity and to allow for important site-specific views to be brought into the spaces. The resulting design provides an architectural intervention that is sensitive to the local geographic history and an empowering space where she can continue to host our family for years to come.

Year | fall 2020 - master’s Team | individual Location | Tobermory, ON

20 | Quilt Camp
21

bunkie shed

main cottage

22 | Quilt Camp

Project isometric in the site’s context.

23

Ground floor plans of the main cottage, bunkie cabin, and storage shed.

24 | Quilt Camp

Multi-purpose craft room designed for the workflow of quilting.

The main living spaces are designed in an open manner to promote gathering and visual connections.

25

East-west section through the living spaces and quilt room.

North-south section through the private spaces of the main cottage including the quilt room and main bedroom.

26 | Quilt Camp

South elevation of the back of the main cottage and the southern gathering space.

Southern deck designed to be protected from the wind off of the water to provide a comfortable outdoor gathering space.

27

Community Crossroad

semiprivate

private private

The design for the mid-rise multi-use timber building complex developed through researching the process in which downtown sudbury was developed and how it evolved over time. The intersections and axis of junction creek and the railway have imposed a divide between the urban downtown and the surrounding suburban neighbourhoods of Sudbury. In order to bridge this divide, the design reinforces the intersections of downtown Sudbury to introduce a sense of community for demographics that is lacking within the downtown neighbourhood. The project aims to integrate the missing demographics of downtown while strengthening what is already existing. is geared towards mixing the demographics of families, young professionals, and students

public

in a design that includes two and three bedroom apartments 3 bedroom lofts as well as programs such as a market, bowling alley, and cafe to stimulate social interactions. The project aims it reintroduce walkability and implementing pedestrian streets from the extensions of the existing roadways informed the buildings configurations, while creating outdoor activity nodes including an exterior market, central outdoor skating rink or splash pad, and a children’s park.

Year | fall 2019 to winter 2020 - undergraduate Team | two [partnered with Ashley Sloot] Location | Downtown Sudbury, ON

28 | Community Crossroad
29

Historical mapping was utilized to observe the changes of downtown in relation to the railway, junction creek and the building formations.

The demographics of Downtown Sudbury and surrounding neighbourhoods were studied to inform programmatic elements to develop a sense of community on site.

30 | Community Crossroad
1886 1913 1950
1884
1958 1973 1991 PRESENT 1884 1886 1913 1950 1958 1973 1991 PRESENT 1884 1958 1886 1973 1913 1991 1950 Present

During site visits it became evident that the streets that intersected the site also framed views of Downtown Sudbury points of interest.

Sectional parti explores the relationship between public and private spaces to ensure there are comfortable spaces for residents and community members to gather.

31
public
private private
semiprivate
32 | Community Crossroad

Site isometric in the context of Downtown Sudbury with site vignettes of market, public spaces, and residential playground.

33
34 | Community Crossroad

Urban design plan including the ground floor plan for the market [2 buildings to the left], cafe [right], and bowling alley [far right].

Site elevation along Elgin Street

35

Two-bedroom apartment

Three-bedroom apartment

Three-bedroom loft - first floor

Three-bedroom loft - second floor

36 | Community Crossroad
2m 4m
.5m 1m

Above is a series of renders throughout the project, including an interior render of a loft unit, bowling alley, the public skating rink, and the permanent market space.

detailed section through the market and apartment units demonstrating the use of mass timber construction.

Roof detail

Balcony detail

Window detail

38 | Community Crossroad

CLT roof structure

HVAC and sprinkler system Interior drop ceiling

CLT loadbearing walls and interior partitions

Infloor radiant heating and floor structure

Isometric of a two bedroom units structure and systems integration.

39
40 | Community Crossroad

Winter passive and active building strategies section, cut through the cafe and loft units.

Summer passive and active building strategies section, cut through the cafe and loft units.

41

Adaptive Reuse Art Gallery

Situated on the edge of Downtown Sudbury, the Northern Breweries building was constructed in the early 1900’s and has now become abandoned. The site analysis and research uncovered the conceptual intentions of the gallery which emphasize the industrial processes of the building, celebrating its history and typology through moments of discovery and transparency. With the use of adaptive reuse strategies, the history of the building is embedded in the design to create a community microcosm with the use of public programming. Due to the inherent grandness of the building, there was opportunity to reveal moments from one gallery to the next, using the horizontal and vertical attributes of the building. From the gathering space on the ground floor,

visitors will get a glimpse of the temporary installation located on the second floor. As visitors circulate up to second floor from the experimental gallery, the permanent galleries reveal themselves and lead to the temporary gallery. The use of light choregraphs the movements between the gallery spaces by adjusting the conditions from direct to diffuse light. To further develop the notion of a community microcosm within the design, the temporary gallery’s and its location on the ground floor activates the other public programming such as the workshop space, cafe, retail, and library.

Year | winter 2019 - undergraduate Team | individual Location | Downtown Sudbury, ON

42 | Adaptive Reuse Gallery
43

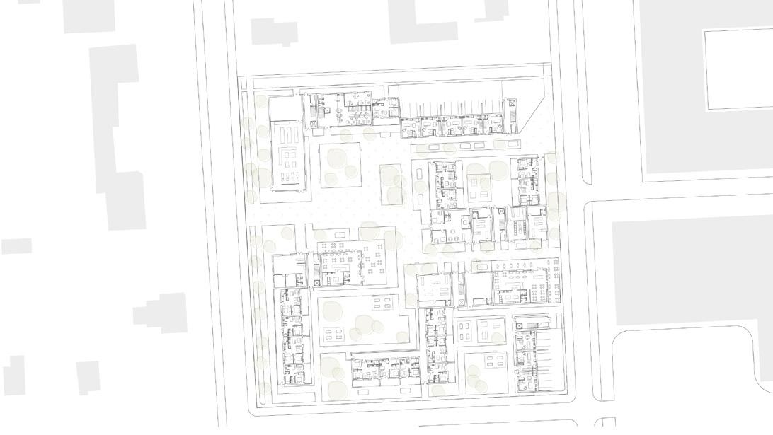
Ground floor plan and site design within the context of Downtown Sudbury.

44 | Adaptive Reuse Gallery

Second floor plan of the permanent and temporary gallery spaces.

45
46 | Adaptive Reuse Gallery

The north-south elevation along Lorne Street.

The north-south section is cut through the threshold between public and semi-public space where visitors ascend to the large scaled permanent gallery displaying Maskull Lasserre’s sculptures.

47

The 1:50 massing model, made of 3mm birch ply, ash wood, and resin, illustrates the buildings scale within its context.

48 | Adaptive Reuse Gallery
The section model is cut through a series of galleries to capture the essence of light and circulation through the design.

The series of vignettes explores light, circulation, scale, and moments of transparency within various galleries and public spaces.

49

BNDR

Ice Station

As the first design project of the undergraduate program, the studio was challenged with designing a series of ice warming stations that would be installed on the Ramsey Lake skating trail in Sudbury. The objective of the ice station was to design a space that provided skaters with a sense of shelter and warmth.As a studio group we decided to investigated the movement of the marks skates leave on the ice and how these forms could be developed into a shelter. To achieve this form, the installation consists of two walls that follow the smooth curves that skates create, manifesting an interior space that shelters skaters from the

winter conditions and provides comfortable seating. To achieve the curves of this form, we explored two methods of wood bending, lamination and steam bending. This allowed us to create curves in both the horizontal and vertical planes of installation. The form of the ice station allows users to flow freely through, around the installation, or sit inside while enjoying the skating path.

Year | fall 2016 to winter 2017 - undergraduate Team | thirteen Location | Sudbury, ON

50 | BNDR Ice Station
51

Due to the more intense curves of the seats ash wood was used as it is more resilient and receptive to steam bending.

52 | BNDR Ice Station
53
The main structure of the ice warming station used spf members to construct glue laminated ribs and tension bent cladding.

photograph

photograph

54 | BNDR Ice
Station
credit: Braeden Martel credit: Braeden Martel

The ice station was sited in the middle of the skating path to all for a central place to rest if needed.

55

Plastopia

When approaching the assignment of creating an inhabitable object located at Sudbury’s farmers market, the team looked at the different meanings around consuming locally grown food and the cultures that surround markets. With the avid discussions about the climate crisis broadening, the push for eating locally has increased, but the use of single-use plastics is still prominent in the market spaces for collecting and transporting goods.

Ultimately, we landed on a contemplative installation that challenges its users to reflect on the repercussions and daily consumption of single-use plastic. The installation consists of three pods of varying sizes to reflect while, standing, sitting, and

laying down. Each of the pods are covered in vintage advertisements and quotes which unveils the perception of single-use plastic culture through history, and begs the question of what it means to society today. This installation will hopefully instill questions about the future of the climate crisis and how market goers will navigate this new landscape we are entering.

Year | fall 2019 - undergraduate Team | nine Location | Downtown Sudbury, ON

56 | Plastopia
57
58 | Plastopia
Located at the Sudbury farmers market, the installation is meant to serve as a reminder to reflect on the consumption of plastic even when shopping locally. photograph credit: Hannah Taylor

Each of the pods play with a different type of single-use plastic to create an immersive experience on the interior with the use of relective mylar.

59

Turn static files into dynamic content formats.

Create a flipbook
Issuu converts static files into: digital portfolios, online yearbooks, online catalogs, digital photo albums and more. Sign up and create your flipbook.
Raechel Hamilton Graduate Portfolio 2022 by Raechel Hamilton - Issuu