Skip to main content

Progettare per la Sanità n. 1/26 febbraio

Page 1


Centro Nazionale per l’Edilizia e la Tecnica Ospedaliera

Organizzazione, tecnologia, architettura

Alta specializzazione clinica e benessere in pediatria / EmPATH Unit : ambienti alternativi per emergenze psichiatriche / L’importanza di una progettazione ospedaliera flessibile / Le sfide della Sanità 4.0 all’ultimo congresso CNETO

L’Hôpital des Enfants di Losanna, Svizzera
CNETO

L’evento che ridisegna il futuro delle costruzioni, che promuove il confronto, l’innovazione e l’aggiornamento in un settore in continua evoluzione!

REGISTRATI GRATUITAMENTE

info@costruirepiu.it www.costruirepiu.it

Fronteggiare le nuove emergenze

Negli ultimi anni l’emergenza psichiatrica è diventata una sfida per i sistemi sanitari, manifestandosi in modo sempre più evidente nei Pronto soccorso. L’aumento degli accessi per crisi psichiatriche è un fenomeno globale, accelerato dalla pandemia, che ha colpito in modo particolare gli adolescenti. Isolamento, solitudine, ansia e incertezza hanno agito come fattori di stress aggiuntivi, aggravando condizioni di fragilità già presenti e facendo emergere nuovi bisogni di cura. In Italia i numeri sono allarmanti: crescono depressione, disturbi d’ansia, autolesionismo, disturbi alimentari e, secondo l’Istituto Superiore di Sanità, il suicidio rappresenta la seconda causa di morte tra i 15 e i 24 anni. Dopo il Covid si è registrato un incremento del 147% dell’intento suicidario, del 110% dei disturbi d’ansia e dell’11% della depressione. Parallelamente, gli accessi ai pronto soccorso per emergenze neuropsichiatriche sono esplosi: in Lombardia sono stati regi -

strati aumenti tra il 15% e il 25% a fronte di risorse territoriali gravemente insufficienti, con una carenza fino al 70% degli assistenti sociali e un numero inadeguato di psichiatri e posti letto. Cinque regioni italiane sono ancora prive di Unità di ricovero di neuropsichiatria infantile. Questo scenario mette in crisi il modello tradizionale di gestione dell’emergenza, basato spesso su lunghe attese in ambienti inadeguati e sulla ricerca di un posto letto come unica risposta possibile. Da questa criticità nascono le EmPATH Unit (Emergency Psychiatric Assessment, Treatment and Healing Unit), un modello innovativo di presa in carico dell’emergenza psichiatrica direttamente in ospedale, come estensione funzionale del pronto soccorso. Le EmPATH Unit offrono spazi aperti, accoglienti e non coercitivi, progettati per ridurre agitazione e stress, con accesso rapido alle cure, osservazione continua e trattamenti tempestivi fino a 24 ore. I risultati registrati

L’Hôpital des Enfants di Losanna, Svizzera

sembrano rilevanti: circa il 75% dei pazienti ad alta complessità viene dimesso senza necessità di ricovero, l’uso della contenzione fisica scende sotto l’1%, si riducono drasticamente i tempi di permanenza in pronto soccorso e migliora la connessione con i follow-up territoriali. Già oltre 50 unità sono operative tra USA, Canada, Messico e Singapore e se ne prevede un rapido incremento. In un contesto come quello italiano, questo modello può rappresentare un’innovazione organizzativa e una svolta culturale.

Margherita Carabillò

Direttore Responsabile

Giorgio Albonetti

Direttore Scientifico

Margherita Carabillò

Responsabile Periodici

Chiara Scelsi - c.scelsi@lswr.it

Tel. +39 349 0099322

Redazione Simone Ciapparelli - s.ciapparelli@lswr.it

Comitato scientifico

S. Brusaferro, S. Capolongo, M. Carabillò,M. Gola, J. Guercini, K. Kob, M. Mauri, F. S. Mennini, C. Nicora, D. Pedrini, G.Polifrone

Comitato di redazione

Architettura: Design LAB, DABC Politecnico di Milano

Impiantistica: Francesco Ruggiero

Information Technoloy: Fabrizio Massimo Ferrara

Innovazione digitale: Paolo Bertini

Organizzazione e management: Federico Lega

Servizi e facility management: Arturo Zenorini

Tecnologie per l’Architettura: Rosa Romano, Maria Chiara Torricelli

Hanno collaborato a questo numero:

Alberto Altieri, Stefano Arruzzoli, Elena Bellini, Margherita Carabillò, Vincenzo Diana, Marco Gola, Federico Lega, Nicolò Luerti, Vincenzo Magnetta, Alessandro Nicali, Isabella Nuvolari-Duodo

Impaginazione LSWR

Immagini Shutterstock

Produzione Antonio Iovene - Tel. 3491811231 a.iovene@lswr.it

Direzione Commerciale dircom.quine@lswr.it

Ufficio Traffico

Iaria Tandoi - i.tandoi@lswr.i Tel. 3452453804

Servizio Abbonamenti www.quine.it - Tel. 02 864105 abbonamenti.quine@lswr.it

Costo copia singola: euro 4,50 abbonamento annuale Italia euro 40,00 abbonamento annuale Europa euro 60,00 Stampa GALLI & C. - Varese

Edra Edizioni

Progettare per la sanità www.progettareperlasanita.it Reg. Trib. Milano n. 767 del 09/11/1998 Iscrizione al ROC n. 12191 del 29.10.2005

A partire dal 1° gennaio 2026, Edra Edizioni Srl ha incorporato le attività di Quine Srl. Edra Edizioni è la società che, dal 2026, riunirà tutte le attività editoriali del Gruppo Edra in Italia. Tale variazione non comporterà alcun cambiamento nei prodotti e nei progetti editoriali di Quine, ad eccezione della nuova ragione sociale.

Tutti gli articoli pubblicati su Progettare per la sanità sono redatti sotto la responsabilità degli Autori. La pubblicazione o la ristampa degli articoli deve essere autorizzata per iscritto dall’editore. Ai sensi dell’art. 13 del Regolamento Europeo per la Protezione dei Dati Personali 679/2016 di seguito GDPR, i dati di tutti i lettori saranno trattati sia manualmente, sia con strumenti informatici e saranno utilizzati per l’invio di questa e di altre pubblicazioni e di materiale informativo e promozionale. Le modalità di trattamento saranno conformi a quanto previsto dagli art. 5-6-7 del GDPR. I dati potranno essere comunicati a soggetti con quali Edra Edizioni srl intrattiene rapporti contrattuali necessari per l’invio delle copie della rivista. Il titolare del trattamento dei dati è Edra Edizioni srl, Viale Enrico Forlanini 21 Milano, al quale il lettore si potrà rivolgere per chiedere l’aggiornamento, l’integrazione, la cancellazione e ogni altra operazionedi cui agli art. 15-21 del GDPR. © Edra Edizioni srl – Milano Testata Associata

Organo ufficiale del C.N.E.T.O.: Centro Nazionale per l’Edilizia e la Tecnica Ospedaliera

Sommario

HÔPITAL DES ENFANTS DI LOSANNA

Il nuovo Hôpital des Enfants del CHUV di Losanna riunisce in un’unica struttura tutte le attività pediatriche, integrando alta specializzazione clinica e attenzione al benessere di bambini e famiglie. Firmato da von Gerkan, Marg and Partners con Ferrari Architectes, il progetto interpreta l’ospedale pediatrico come un’architettura aperta, luminosa e profondamente connessa al contesto urbano e paesaggistico. di

RIDEFINIRE L’ACCOGLIENZA OSPEDALIERA

La riqualificazione dell’atrio del Presidio Ospedaliero

“San Giuseppe Moscati” di Aversa mette al centro spazi conformi alle normative e tecnologicamente evoluti, progettati per umanizzare l’esperienza sanitaria. di Vincenzo Diana, Vincenzo Magnetta

MAISON DE SANTÈ AUDUN-LE-ROMAN

Una struttura all’avanguardia che combina i materiali naturali del telaio leggero, dei rivestimenti in legno e della facciata ventilata in pietra locale, con un impianto distributivo e uno studio dell’involucro che massimizza le prestazioni di comfort indoor. di Elena Bellini

Marco Gola, Stefano Arruzzoli, Isabella Nuvolari-Duodo

PENSARE OSPEDALI FLESSIBILI

La progettazione ospedaliera flessibile passa da scelte strutturali e impiantistiche innovative che permettano di gestire il cambiamento senza interrompere l’attività sanitaria, oltre a migliorare l’efficienza collettiva. di Alberto Altieri, Alessandro Nicali

RUOLO DELLE EMPATH UNIT NEI DIPARTIMENTI DI EMERGENZA

Le EmPATH Unit introducono ambienti alternativi che riducono contenzioni, ricoveri impropri e recidive, ottimizzando l’uso delle risorse sanitarie. Ne abbiamo parlato con il loro inventore, lo psichiatra Scott Zeller. di Margherita Carabillò 28

TURISMO MEDICO E SANITARIO EVIDENZE E PROSPETTIVE

La mobilità sanitaria rimborsata apre nuove opportunità ma pone anche rilevanti criticità applicative. Informazione, prossimità geografica e assetti istituzionali influenzano accesso alle cure e flussi transfrontalieri. di Nicolò Luerti, Federico Lega

LE SFIDE DELLA SANITÀ 4.0

Il confronto emerso durante il convegno “Le nuove sfide dell’ospedale 4.0. I laboratori ospedalieri e di ricerca”, organizzato da CNETO, restituisce una visione articolata del laboratorio come infrastruttura strategica del sistema sanitario di Marco Gola 40

Le aziende presenti in questo numero

Comoli Ferrari III copertina comoliferrari.it

Exposanità 48 exposanità.it Pineapple IV copertina us.pineapplecontracts.com

DATI TECNICI

Luogo Losanna, Svizzera

Superficie lorda

39.200 m2 circa

Inaugurazione maggio 2025

Anni di progettazione 2013-2014

Anni di costruzione 2019-2024

Finanziamento 204 milioni € (costruzione e attrezzature)

Progettisti GMP Architekten, Ferrari Architectes

Posti letto 90 circa

febbraio 2026
di Marco Gola, Stefano Arruzzoli e Isabella Nuvolari-Duodo Foto e materiale tecnico su gentile concessione di GMP Architekten

Hôpital des Enfants di Losanna

IL PROGETTO INTERPRETA IL CONCETTO DI STRUTTURA SANITARIA PEDIATRICA COME UN’ARCHITETTURA APERTA, LUMINOSA E PROFONDAMENTE CONNESSA AL CONTESTO URBANO E PAESAGGISTICO

Inserimento del progetto nel contesto di riferimento

Il nuovo Children’s Hospital del Lausanne University Hospital (CHUV), inaugurato nel 2025, è situato nel cuore della città di Losanna, lungo l’asse della Rue du Bugnon, all’interno del principale campus ospedaliero del Canton Vaud, in Svizzera. Questa collocazione non è marginale né periferica, ma fortemente centrale sia dal punto di vista urbano sia di quello della rete sociosanitaria. Il CHUV rappresenta uno dei cinque ospedali universitari svizzeri e costituisce un nodo strategico per l’intera Svizzera occidentale, con un bacino di utenza che supera ampiamente i confini cantonali. L’ospedale pediatrico si inserisce quindi in una rete sanitaria altamente strutturata, che comprende strutture di cura primaria, ospedali regionali e centri specialistici, e che trova nel CHUV il punto di massima complessità clinica e scientifica. In particolare, la prossimità fisica e funzionale con la Maternité du CHUV consente una gestione integrata del percorso madre-bambino, dalla nascita alle fasi successive della crescita, aspetto cruciale soprattutto nei casi di patologie congenite o di necessità di continuità assistenziale tra neonatologia e pediatria. Dal punto di vista istituzionale, il CHUV e il suo ospedale pediatrico sono strutture pubbliche, di proprietà del Canton Vaud.

© Ferrari Architectes
© Ferrari
Piano interrato
Piano terra
Piano tipo delle degenze

Sezioni trasversali e longitudinali

Il sistema sanitario svizzero, nel quale si inserisce il progetto, è basato sull’assicurazione sanitaria obbligatoria individuale, gestita da assicuratori privati ma regolata dallo Stato. Tutti i residenti sono tenuti a stipulare un’assicurazione di base che copre le prestazioni ospedaliere essenziali; il Cantone finanzia direttamente le infrastrutture e contribuisce ai costi di esercizio, garantendo l’accesso alle cure anche alle fasce più fragili della popolazione. In questo quadro, l’Hôpital des Enfants non è una struttura privata o elitaria, ma un servizio pubblico di alto livello, accessibile secondo i principi di equità del sistema sanitario elvetico.

MODELLO ORGANIZZATIVO

Dal punto di vista sanitario, il nuovo Children’s Hospital nasce con l’obiettivo di centralizzare tutte le attività pediatriche del CHUV, che in precedenza erano distribuite su due sedi distinte (l'Ospedale Pediatrico in Chemin de Montétan 16 e il complesso ospedaliero in Rue du Bugnon 46). Questa frammentazione comportava inefficienze logistiche, duplicazioni di funzioni e un’esperienza complessa per famiglie e personale. Oggi, dalla cardiologia all'oncologia, passando per la chirurgia pediatrica, la medicina d'urgenza, la pneumologia e l'otorinolaringoiatria, le competenze universitarie pediatriche del CHUV sono quindi riunite in un'unica sede, con l'obiettivo di prendersi cura del bambino e dell'adolescente nella loro totalità. In generale, le funzioni sono raggruppate per ambiti clinici e specialistici, ma con una forte attenzione alla prossimità funzionale tra diagnostica, terapia e degenza, riducendo gli spostamenti dei pazienti e favorendo il lavoro multidisciplinare. Il pronto soccorso pediatrico, attivo 24 ore su 24, rappresenta uno degli ingressi principali alla struttura ed è progettato per gestire flussi elevati in sicurezza, separan-

do i percorsi di emergenza da quelli programmati. Invece, le attività chirurgiche comprendono sale operatorie dedicate esclusivamente ai bambini, collegate in modo diretto alle aree di preparazione e risveglio, mentre la diagnostica integra apparecchiature avanzate, tra cui la risonanza magnetica pediatrica, collocata in un contesto architettonico pensato per ridurre l’ansia dei piccoli pazienti. «Oltre agli aspetti medici e tecnologici, l'apertura di questo ospedale riflette un profondo impegno per la salute e il benessere dei bambini», ha sottolineato la Consigliera di Stato Rebecca Ruiz, Capo del Dipartimento della Salute e dell'Azione Sociale, «Simboleggia l'importanza attribuita alla cura dei più vulnerabili, ricordandoci che il futuro di una società dipende dalla sua capacità di proteggere e prendersi cura delle giovani generazioni. Per gli operatori sanitari, l'Ospedale Pediatrico offre l'opportunità di lavorare in un ambiente in cui l'eccellenza è una priorità. Per le famiglie, è una promessa di speranza e tranquillità: sapere che i propri figli possono ricevere le migliori cure possibili in un ambiente progettato appositamente per loro». Un elemento distintivo del modello di cura è l’attenzione alla dimensione familiare. La progettazione degli spazi assume che il bambino non sia mai un paziente isolato, ma parte di un nucleo affettivo che deve essere accolto e supportato. Questo principio si riflette sia nell’organizzazione delle degenze sia nella presenza di spazi comuni, aree di attesa, luoghi di gioco e persino ambienti dedicati alla scuola in ospedale, garantendo una certa continuità con la vita quotidiana.

PROGETTO ARCHITETTONICO

Dal punto di vista tipologico, l’Hôpital des Enfants si configura come un edificio ospedaliero compatto ma articolato, che si integra perfettamente nel paesaggio urbano e ripristina una facciata lun-

Sopra: Il giardino terapeutico in copertura ha un’estensione di circa 3.000 m2

A sinistra: Un divano-letto, sempre presente in ogni camera di degenza

Sotto a sinistra: distribuzione interna, a destra: uno spazio comune nelle aree di distribuzione

© Matthieu Gafsou
© Matthieu Gafsou
© Matthieu Gafsou
© Reto Duriet

go Rue du Bugnon, con una forma di una "L" rovesciata. Il corpo longitudinale ha una lunghezza di circa 180 metri e una superficie lorda complessiva di circa 39.200 m2. L’edificio raggiunge un’altezza massima di sei piani nella porzione urbana più rappresentativa, mentre degrada progressivamente verso est, adattandosi alla morfologia del terreno e al contesto edificato esistente. La struttura portante è pensata per garantire flessibilità nel tempo, un tema centrale nella progettazione ospedaliera contemporanea. I progettisti hanno dichiarano esplicitamente la volontà di realizzare un edificio “future-proof”, capace di adattarsi all’evoluzione delle tecnologie mediche e dei modelli organizzativi. Questo si traduce in piani tecnici generosi, spazi facilmente riconfigurabili e una chiara separazione tra struttura, impianti e partizioni interne.

La distribuzione funzionale segue una logica verticale e orizzontale allo stesso tempo. I livelli inferiori ospitano le funzioni più pubbliche e ad alta intensità di flusso, come l’ingresso principale, il pronto soccorso e le aree diagnostiche. I piani superiori accolgono le degenze e le unità di cura più protette, mentre alcune funzioni di supporto e spazi esterni sono collocate sui livelli intermedi e di copertura, sfruttando la possibilità di creare terrazze e giardini pensili.

PROGETTO FUNZIONALE

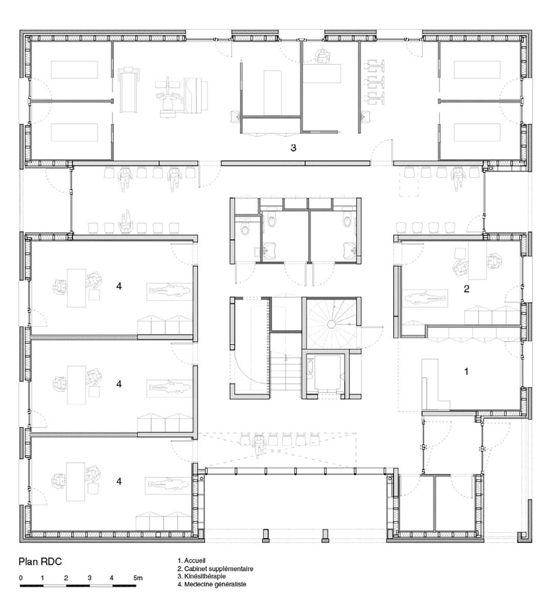
Esso è improntato in maniera molto tradizionale. Le aree complesse sono localizzate ai piani interrati, il PS e le aree diurne sono localizzate ai primi livelli, mentre le degenze sono localizzate negli ultimi

piani. Il parcheggio è stato localizzato al secondo piano interrato. Tra le aree più complesse, si osserva che il PS pediatrico dispone di 8 letti per l’ospedalizzazione di breve durata (UHC) e di una sala di shock room, mentre il blocco operatorio è composto da 6 sale operatorie, di cui 5 ordinarie e una riservata alle emergenze, e con una sala di risveglio dotata di 12 letti.

Gli ambulatori e gli spazi per la diagnostica sono concepiti come ambienti funzionali ma accoglienti, con sale d’attesa integrate e spazi di transizione che aiutano a preparare psicologicamente i bambini alle visite e agli esami. Anche in questo caso, l’architettura ha un ruolo attivo nel processo di cura, contribuendo a ridurre stress e paura.

In generale, il servizio di radiologia comprende 3 sale di radiologia standard e fluoroscopia, di cui una situata all’interno del pronto soccorso, 3 sale di ecografia, una sala di risonanza magnetica e una sala di preparazione simulata per RM. L’area ambulatoriale è caratterizzata da 50 box di consultazione, distribuiti tra ambulatori medici e chirurgici, cardiologia, fisioterapia, ecc.; a questi si aggiunge il day hospital con 18 camere, per un totale di 38 letti, e 6 box di consultazione.

Le camere di degenza rappresentano uno degli elementi più qualificanti del progetto. Le stanze sono progettate per ospitare uno o due bambini e includono sempre uno spazio dedicato ai genitori. Un elemento ricorrente è la presenza di una panca lungo la finestra che può essere trasformata in letto, consentendo la permanenza notturna senza l’aggiunta di arredi mobili o soluzioni provvisorie. L’area di degenza comprende 55 camere di ospedalizzazione, la maggior parte delle quali dotate di divani-letto per i genitori. Complessivamente sono disponibili 83 letti di degenza destinati ai reparti di cure intermedie, ematologia-oncologia, degenza standard e lungodegenza, con una capacità variabile in funzione della stagionalità. Sono inoltre presenti 5 letti di orientamento e crisi per pazienti di pedopsichiatria, 3 spazi educativi per bambini e adolescenti distribuiti su tre livelli, una sala dedicata alla scuola in ospedale e 3 spazi di vita per le famiglie, anch’essi distribuiti su ciascun piano di degenza.

ORIENTAMENTO E UMANIZZAZIONE

Il tema dell’orientamento è affrontato in modo prevalentemente architettonico piuttosto che grafico. La forte riconoscibilità dell’edificio dall’esterno, grazie alla facciata a bande orizzontali colorate, costituisce già un primo livello di wayfinding urbano. All’interno, la chiarezza distributiva, l’uso della luce naturale e la differenziazione degli spazi contribuiscono a rendere i percorsi intuitivi. Particolar-

© Matthieu Gafsou

mente interessante è l’integrazione dell’intervento artistico di Camille Scherrer, vincitrice del concorso per l’arte negli spazi pubblici, i cui elementi grafici e figurativi accompagnano l’orientamento e animano gli ambienti. In questo modo, il wayfinding diventa narrazione, e l’arte assume una funzione comunicativa e rassicurante, soprattutto per i bambini. Gli spazi educativi, la scuola in ospedale e le aree dedicate agli adolescenti rafforzano ulteriormente l’idea di un ospedale che sostiene la continuità della vita quotidiana anche nel corso della malattia. I colori verde e blu, utilizzati in facciata, sono ripresi e reinterpretati negli interni in modo più delicato, creando una continuità visiva e simbolica. Queste scelte cromatiche non hanno solo una funzione estetica, ma sono pensate per evocare calma, natura e fiducia, qualità particolarmente importanti in un contesto pediatrico. In generale la luce naturale gioca un ruolo fondamentale nella definizione dello spazio, con ampie aperture che offrono viste sul paesaggio circostante e contribuiscono a creare un ambiente meno medicalizzato. I materiali, insieme ai colori, sono scelti per trasmettere calore e familiarità, evitando l’estetica ospedaliera tradizionale basata su superfici fredde e neutre.

SOLUZIONI TECNOLOGICHE

La facciata del Children’s Hospital è uno degli elementi più iconici del progetto. Le bande orizzontali creano un ritmo che dialoga con l’andamento del terreno e con la scala urbana, riducendo l’impatto visivo di un edificio di grandi dimensioni. La composizione orizzontale contrasta volutamente con la verticalità del pendio, stabilendo un equilibrio visivo tra architettura e paesaggio. La copertura assume un ruolo funzionale e simbolico attraverso la realizzazione di un ampio giardino terapeutico, che trasforma il tetto in uno spazio vissuto e accessibile, superando l’idea tradizionale di copertura tecnica.

GIARDINI TERAPEUTICI E SPAZI ESTERNI

Il giardino terapeutico in copertura è uno degli elementi più innovativi e significativi del progetto, con un’estensione di circa 3.000 m2. Pensato come uno spazio di terapia, riabilitazione e svago, favorisce, grazie alla presenza di vegetazione, percorsi e spazi di sosta, attività

© Reto
Duriet
■ Vista di una corte interna

motorie leggere, momenti di gioco e interazione sociale. La vista sul Lago di Ginevra e sulle Alpi rafforza la relazione con il paesaggio, offrendo un’esperienza sensoriale che va oltre la dimensione clinica e contribuisce al benessere psicologico.

SOSTENIBILITÀ AMBIENTALE

E STRATEGIE IMPIANTISTICHE

Come segnalano i progettisti, la sostenibilità dell’edificio non è stata affidata a singoli dispositivi, ma a una logica di sistema. L’Hôpital des Enfants è certificato secondo lo standard Minergie-P-ECO, uno dei più severi in Svizzera per gli edifici pubblici, e si inserisce in una rete energetica più ampia che comprende il teleriscaldamento urbano, la produzione centralizzata di freddo e la mutualizzazione di alcune reti tecniche con gli altri edifici del campus CHUV. La ventilazione a doppio flusso con recupero di calore, l’uso di pannelli fotovoltaici in copertura e la gestione coordinata di impianti ad alta intensità energetica - come le sale operatorie, la farmacia e le apparecchiature di diagnostica - mostrano come l’ospedale sia concepito come un’infrastruttura complessa, capace di compensare in parte il proprio fabbisogno energetico e di ridurre l’impatto ambientale senza compromettere i requisiti sanitari. In questo senso, la sostenibilità non è presentata come un valore aggiunto, ma come una condizione necessaria per la gestione responsabile di un edificio sanitario contemporaneo.

GESTIONE DEL CANTIERE

Un aspetto rilevante del progetto è rappresentato anche dalle molte criticità che si sono dovute affrontare in cantiere. Infatti, la costruzione dell’Hôpital des Enfants si è svolta in un contesto eccezionalmente complesso: un sito ospedaliero pienamente operativo, attraversato quotidianamente da flussi di pazienti, personale, mezzi di emergenza e trasporto pubblico, con la presenza della linea metropolitana M2 direttamente sotto l’area di intervento. A questa complessità logistica si sono sovrapposte due crisi globali consecutive - la pandemia di Covid-19 e la crisi energetica legata al conflitto in Ucraina - che hanno inciso profondamente sulla disponibilità dei materiali, sui costi di costruzione e sulla gestione dei tempi.

In aggiunta, le operazioni di scavo, con oltre 100.000 m³ di terreno rimosso e una profondità di circa 18 metri, la realizzazione di fondazioni speciali con centinaia di pali e tiranti, e la costruzione sopra la stazione della metropolitana testimoniano una gestione ingegneristica di estrema precisione. In questo senso, il cantiere diventa parte integrante del racconto architettonico dell’ospedale, rivelando la dimensione infrastrutturale nascosta che sostiene la qualità spaziale e funzionale dell’edificio finito.

CONCLUSIONI

Il progetto ha vinto il concorso nel 2014 e ha ricevuto nel 2025 il Prix de l’immobilier Romand per gli edifici pubblici. Secondo GMP Architekten, l’ospedale pediatrico del CHUV rappresenta un punto di svolta, applicando principi di flessibilità, chiarezza spaziale e dialogo urbano già sperimentati in altri grandi progetti pubblici, ma adattandoli alle specificità dell’architettura sanitaria pediatrica. Le informazioni utili per la scrittura dell’articolo sono state tratte da descrizioni del progetto fornite dai progettisti di GMP Architekten, disamina tecnica dei disegni di progetto, portali di architettura accessibili dal web.

RINGRAZIAMENTI

Gli autori dell’articolo ci tengono a ringraziare Britt Blohm di GMP Architekten per la condivisione del materiale e il supporto tecnico per la scrittura dell’articolo.

GLI AUTORI

MARCO GOLA

Design & Health Lab, DABC, Politecnico di Milano e Segretario Generale CNETO

STEFANO ARRUZZOLI

Design & Health Lab, DABC, Politecnico di Milano

ISABELLA NUVOLARI-DUODO

Design & Health Lab, DABC, Politecnico di Milano

DATI TECNICI

Superficie lorda

530 m2

Tempi di realizzazione

150 giorni (cronoprogramma)

Progettisti  Ottaviani Associati, Roma

Costo complessivo

504.487 € (importo lavori da Quadro Economico)

di Vincenzo Diana, Vincenzo Magnetta

Ridefinire l’accoglienza ospedaliera

LA RIQUALIFICAZIONE DELL’ATRIO DELL’OSPEDALE

“SAN GIUSEPPE MOSCATI” DI AVERSA METTE

AL CENTRO SPAZI CONFORMI ALLE NORMATIVE

E TECNOLOGICAMENTE EVOLUTI, PROGETTATI

PER UMANIZZARE L’ESPERIENZA SANITARIA

■ Le scelte progettuali effettuate rispondono a criteri di sostenibilità energetica e qualità ambientale, con impianti tecnologicamente avanzati e materiali durevoli in grado di assicurare igiene, sicurezza e riduzione dei costi di manutenzione

ARCH. VINCENZO DIANA

Collaboratore Tecnico - RUP

ARCH. ING. VINCENZO MAGNETTA

Direttore UOC Edilizia Ospedaliera Programmazione e Progetti d’Investimento ASL Caserta

GLI AUTORI
febbraio

L’UOC Edilizia Ospedaliera, Programmazione e Progetti d’Investimento dell’ASL di Caserta ha avviato negli ultimi anni un piano strategico di riqualificazione delle strutture sanitarie, finalizzato alla creazione di ambienti ad alta efficienza funzionale e tecnologica, senza trascurare i principi di umanizzazione. L’architettura ospedaliera, infatti, non è più concepita come semplice contenitore di attività cliniche, ma come elemento determinante per il benessere psicologico del paziente e per l’ottimizzazione dei flussi operativi. In questo contesto si colloca l’intervento sul Presidio Ospedaliero “San Giuseppe Moscati” di Aversa, dotato di circa 200 posti letto, che ha interessato la completa riorganizzazione dell’ingresso principale. Nel 2024 l’ASL ha indetto un concorso di idee per acquisire una proposta progettuale in grado di coniugare estetica, funzionalità e sostenibilità, prevedendo la realizzazione del CUP, spazi di attesa e un punto informativo. La procedura ha coinvolto professionisti qualificati dell’intero territorio italiano, aprendo alla creatività progettuale, con linee guida orientate a comfort, accessibilità e qualità architettonica. Lo studio vincitore, Ottaviani Associati di Roma, ha firmato concept e progetto esecutivo, rispondendo alle esigenze di fruibilità, abbattimento delle barriere architettoniche e manutenibilità nel tempo. La fase esecutiva ha garantito la conformità normativa e la qualità dell’opera.

LA REALIZZAZIONE

L’intervento, eseguito dal Consorzio Stabile Spark (Napoli), esteso su circa 500 m2, è stato coordinato dall’ufficio Direzione Lavori composto dai tecnici interni all’azienda: il Direttore dei Lavori Arch. Ciro Di Biase e il Coordinatore della Sicurezza Geom. Giorgio Raffaele Gallucci. La fase di cantiere è stata gestita in stretta sinergia con la Direzione Sanitaria del Presidio Ospedaliero, guidata dalla Dott.ssa Stefania Fornasier, il cui apporto è stato fondamentale per pianificare i tempi e ridurre al minimo le interferenze con le attività cliniche. L'intervento è stato pianificato per tempi di realizzazione inferiori a un anno, riducendo al minimo le interferenze con le attività ospedaliere. Le demolizioni sono state limitate, privilegiando sistemi costruttivi a secco per assicurare rapidità, flessibilità e semplicità di manutenzione. Tra le soluzioni adottate spiccano elementi multifunzionali integrati alle pareti esistenti, concepiti per ospitare impianti di climatizzazione e garantire accessibilità tramite sportelli a tutt’altezza, trasformati in totem informativi. Questa scelta coniuga esigenze impiantistiche e qualità estetica, mantenendo linearità compositiva e ordine visivo.

Il CUP è stato rivestito con listelli in legno ignifugo, materiale naturale che introduce calore e comfort percettivo, contrastando la tipica asetticità degli ambienti ospedalieri e favorendo la riduzione dello stress. La pavimentazione in PVC ad alte prestazioni è stata selezio-

nata per resistenza all’usura, facilità di sanificazione e igiene, con l’impiego di due tonalità cromatiche per migliorare l’orientamento visivo e la leggibilità dei percorsi. Il blocco architettonico che ospita l’infopoint e il CUP è collocato in asse con l’ingresso principale, addossato alla parete del corpo scala, e si distingue per materiali e posizione. Al suo interno trovano posto il banco di accettazione, il CUP, un archivio documenti e un deposito. La progettazione di questo volume ha consentito di ricollocare la rampa per l’accesso ai diversamente abili, ora visibile e integrata, evitando percorsi secondari e poco inclusivi.

Le aree di attesa sono organizzate in due zone: una interna, con sedute semicircolari e pannelli informativi dotati di eliminacode interattivo e display, e una esterna, ottenuta attraverso la demolizione di infissi e l’inclusione del patio nel nuovo atrio. Questo spazio si articola in due ambiti: uno destinato alla sosta e uno a carattere vegetale, concepito come giardino terapeutico. La quota del pavimento esterno è rialzata per garantire continuità con l’interno, mentre la grande seduta circolare raccoglie l’area relax. La vegetazione è studiata per schermare le stanze di degenza e migliorare la qualità ambientale, con essenze aromatiche. Particolare attenzione è stata dedicata al progetto illuminotecnico, che ha previsto la sostituzione dei corpi illuminanti esistenti con un sistema integrato di illuminazione funzionale e d’atmosfera. Sorgenti lineari a LED, nascoste tra le travi del solaio, garantiscono uniformità luminosa, mentre dieci sospensioni circolari dal design essenziale creano punti focali di grande impatto estetico. L’illuminazione diventa così elemento architettonico, capace di influenzare la percezione dello spazio e il benessere psicologico degli utenti.

SOSTENIBILITÀ E DURATA

Il progetto risponde a criteri di sostenibilità energetica e qualità ambientale, con impianti tecnologicamente avanzati e materiali durevoli che assicurano igiene, sicurezza e riduzione dei costi di manutenzione. L’adozione di tecnologie LED e sistemi di climatizzazione integrati contribuisce al miglioramento del bilancio energetico, riducendo consumi e impatto ambientale in analogia con quanto richiesto dai criteri CAM. La progettazione ha inoltre considerato la manutenibilità nel lungo periodo, selezionando finiture ad alte prestazioni e soluzioni ispezionabili per evitare criticità gestionali. Questo intervento non si limita a un miglioramento estetico, ma ridefinisce il concetto di accoglienza ospedaliera, ponendo al centro il paziente e il suo benessere. Il nuovo ingresso diventa un ambiente luminoso, confortevole, funzionale, sereno, contribuendo al percorso di cura. Esso si propone come modello replicabile per la sanità futura: spazi conformi alle normative, tecnologicamente evoluti e progettati per umanizzare l’esperienza sanitaria.

Maison de Santé AudunLe-Roman

UNA STRUTTURA ALL’AVANGUARDIA CHE COMBINA I MATERIALI NATURALI DEL TELAIO LEGGERO, DEI RIVESTIMENTI IN LEGNO E DELLA FACCIATA VENTILATA IN PIETRA LOCALE, CON UN IMPIANTO DISTRIBUTIVO E UNO STUDIO DELL’INVOLUCRO CHE MASSIMIZZA LE PRESTAZIONI DI COMFORT INDOOR

Foto: Ludmilla Cerveny

Dettaglio della facciata sud

Luogo

Audun-Le-Roman, France

Superficie 790 m²

Committente unione dei comuni nel cuore del Pays Haut

Importo complessivo 2,3 milioni di euro

Data del progetto settembre 2019

Progettisti

Studiolada Benoît SINDT

architecte dplg mandataire & Éleonore Nicolas architecte dplg associée

Collaboratori

G. Cecchin & S. Dunand

Uffici progettazione tecnica Barthes Bois, Fluid’Concept, Era

Impresa costruzione legno Lebras Frères

Impresa lavorazione pietra Rocamat (cava), SNBR (posa)

Spazi di attesa

■ Sinistra: schema 3d della facciata ventilata. Destra: schema 3d angolo dell’edificio. Sotto: facciata est dell’edificio, prospetto principale di accesso; l’ingresso avviene dall’angolo sinistro

■ Dettaglio tecnologico della facciata

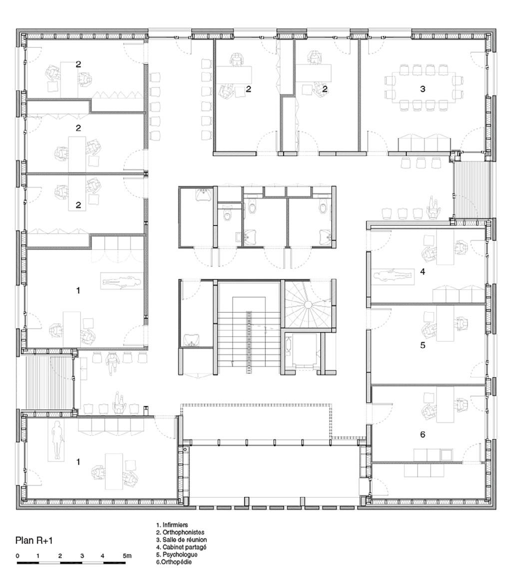
La Maison de Santé (Casa della Salute) di Audun-le Roman è una struttura sanitaria pluridisciplinare intercomunale (unione dei comuni Cœur du Pays-Haut), che mette insieme diverse professionalità per offrire servizi sanitari pubblici di prossimità, in risposta a una crescente domanda di cure, al fine di facilitare e migliorare l'accessibilità e la qualità del percorso di salute della comunità. L'edificio è situato vicino al centro della città, per favorire la prossimità dei servizi e l’accessibilità da parte dei cittadini, anche prevedendo un percorso pedonale di collegamento, un parcheggio di circa 60 posti auto, rastrelliere per le biciclette vicino all’ingresso e una futura stazione di ricarica per i veicoli elettrici. La struttura, composta da tre livelli, permette di ospitare fino a 23 professionisti della salute. Ad

oggi offre i servizi di un osteopata, quattro fisioterapisti, due medici di base, un dietologo, uno psicologo, un'ostetrica, quattro infermieri, cinque logopedisti, un chirurgo ortopedico e un podologo.

IMPIANTO DISTRIBUTIVO

La struttura, a pianta quadrata, si sviluppa intorno ad un nucleo distributivo e di servizi centrale, in modo da lasciare tutte le funzioni sanitarie rivolte verso l’esterno, con aperture dirette in facciata, schermate da un sistema di brise soleil esterno orientabile. Gli ambulatori sono collocati sia al piano terra che al primo piano, dove è presente anche una sala riunioni per l’equipe multidisciplinare, mentre all’ultimo livello vi è un alloggio dedicato al personale e un

PREMI

La Maison de Santé di Audun-le Roman si è classificata come 64esima tra gli edifici di maggiore rilievo del XXI secolo in Francia nel 2023. Si è inoltre distinta nel 2019 con una nomina al premio Facade 2 build Awards nella categoria salute.

Vista di uno degli ambulatori, che mette in evidenza la familiarità degli spazi e l’uso del legno naturale

locale tecnico. L’accesso principale è in angolo, sul lato est, dove si trova subito l’accoglienza sulla destra e uno spazio di attesa a doppio volume centrale sul lato sud, da cui si accede direttamente alle scale e all’ascensore. Questo spazio è illuminato da tre grandi vetrate, che rappresentano le uniche aperture della facciata, protette a livello climatico attraverso una profonda loggia. Il volume della struttura è molto compatto, presentando delle ampie finestre negli ambulatori e venendo svuotato dai volumi delle logge coperte poste in corrispondenza degli spazi di attesa, distribuite in modo uniforme ai diversi angoli della struttura. In questo modo gli spazi di attesa hanno una dimensione abbastanza contenuta, dovendo servire solo pochi ambulatori ciascuno. Essi presentano una grande vetrata che favorisce il rapporto con il contesto esterno e il verde circostante, come una cornice che si apre su tutta la larghezza e l’altezza dello spazio; chi attende si trova in questo modo direttamente proiettato nella natura, secondo i principi dell’healing architecture. Secondo gli stessi principi, l’uso del legno naturale è diffuso in tutto l’edificio, a partire dalla struttura portante, ai solai a vista (negli ambulatori), ai parapetti, ai rivestimenti delle logge esterne, agli infissi (esterni ed interni), tutti elementi in essenza di pino, e agli arredi (bancone di accoglienza, arredi degli ambulatori, sedute di attesa, ecc). I colori delle pareti e del pavimento in linoleum sono molto caldi e neutri, e si coordinano con la colorazione chiara dell’essenza del legno, così come il rivestimento della facciata esterna in pietra naturale.

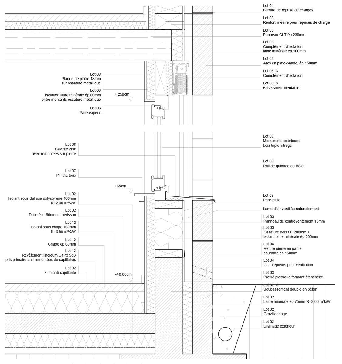
STRUTTURA PORTANTE IN LEGNO

L’edificio presenta un sistema strutturale tipo platform frame con una struttura intelaiata leggera in legno di pino composta da elementi verticali e orizzontali a sezione rettangolare (6 x 20 cm) con un passo di circa 60 cm, e solai in CLT (cross timber laminated) di 23 cm, lasciati a vista, tranne nei corridoi di distribuzione dove sono previsti controsoffitti in fibra di legno (organic mineral pure) che favoriscono anche il comfort acustico.

L’interno del telaio strutturale a parete è riempito con isolante in lana minerale di 20 cm. A questo telaio in legno della struttura di parete è fissato sul lato esterno un pannello OSB di controventamento di 1,5 cm, opportunamente protetto da una membrana impermeabile. Alla parte maggiormente resistente della struttura è fissata poi all’esterno una parete ventilata in pietra (descritta nel prossimo paragrafo), e all’interno una controparete in cartongesso con isolante in lana minerale interposto di 6 cm, a completare l’involucro.

LA FACCIATA IN PIETRA

Quella esterna dell’edificio è una facciata ventilata composta da blocchi massicci di pietra autoportante, dallo spessore di 15 cm, altezza mista di 30 e 60 cm, creando un disegno di prospetto che si integra con le aperture. I blocchi di pietra sono fissati all’intelaiatura

in legno attraverso degli elementi metallici a L, che consentono di supportare i blocchi e trasmettere le forze orizzontali e del vento, oltre a distaccare la pietra di 6 cm dalla struttura e creare un’intercapedine d’aria che permette la ventilazione naturale della facciata. Il disegno della facciata prevede inoltre alcuni fori verticali di 4 cm, creati distanziando alcune delle pietre nelle file di altezza 30 cm, sviluppando un gioco di ombre sul prospetto.

La struttura metallica ad L è avvitata orizzontalmente nello spessore della muratura in blocchi di pietra (fissaggio in verticale previsto solo per l’ultima fila superiore di facciata), connessi tra loro attraverso malta cementizia. Ogni due file di blocchi di pietra è posta inoltre orizzontalmente un’armatura metallica prefabbricata a traliccio che

va a incrementare la resistenza di facciata. Le aperture di finestre e porte sono strutturate con piattabanda. Negli angoli i blocchi sono ammorsati tra di loro. Dietro al rivestimento della facciata sud sono infine nascosti e integrati i pluviali per la discesa e lo smaltimento dell’acqua piovana. Questo sistema di facciata è stato pensato per permettere di mantenere i vantaggi della pietra solida (durevolezza, inerzia termica, sfasamento termico) pur limitando il volume di pietra complessiva, a favore di una riduzione dei costi.

A livello climatico, l’involucro di facciata permette di avere un ottimo comfort indoor, in particolare durante i mesi estivi, pur in assenza di climatizzazione. La facciata sud è ulteriormente protetta attraverso la riduzione delle aperture, che sono rappresentate da piccoli

■ Planimetria del piano terra e del piano primo

triangoli che filtrano i raggi solari ai piani superiori, e una loggia a tutta altezza, profonda circa 2 m, che permette l'ombreggiamento delle vetrate. È stata utilizzata una pietra locale, la Sebastopoli fine, estratta nel comune di Saint-Maximin (Oise), a 300 km dal sito di progetto e 60 km da Parigi, di tipo calcareo, risalente all’Eocene, dalla consistenza liscia e dalla grana fine, di colore beige/giallo dorato. Essa è molto simile alla pietra di Jaumont, utilizzata abitualmente per edifici storici ma oggi quasi introvabile e molto costosa. Il progetto della Maison de santé Audun-Le-Roman rappresenta un sistema innovativo che favorisce l’utilizzo di materiali naturali e un involucro che favorisce il comfort indoor in un “Edificio Sano” in grado di accogliere i cittadini e soprattutto favorire e promuovere la loro salute.

RINGRAZIAMENTI

Si ringrazia lo studio Collectif Studiolada, che ha fornito tutto il materiale per la redazione dell’articolo, e in particolare l’architetto Benoît Sindt.

ELENA BELLINI

Architetto, PhD, PostDoc Research Fellow Università degli Studi di Firenze

L’AUTORE

Progettare secondo criteri di flessibilità, come illustrato nell’articolo “Ripensare gli ospedali” pubblicato sul numero 4/25 di Progettare per la sanità, rappresenta l’obiettivo principale che il progettista deve perseguire per poter rispondere a fabbisogni in continua evoluzione, determinati sia dalle trasformazioni demografiche - in particolare la variazione delle classi di età della popolazione - sia dall’accelerazione tecnologica che interessa il settore sanitario: robotica, ricerca genomica, intelligenza artificiale. Gli ospedali vengono oggi concepiti sulla base di parametri i quali, con elevata probabilità, risulteranno già superati al momento dell’entrata in funzione dell’opera. Ne consegue che la struttura è destinata a subire, fin dalle prime fasi di esercizio, continue pressioni trasformative, che si protrarranno lungo l’intero ciclo di vita dell’edificio. Le funzioni sanitarie, i layout distributivi e gli impianti dovranno quindi essere modificabili senza compromettere la continuità delle prestazioni.

L’OSPEDALE COME ORGANISMO IN EVOLUZIONE

Diventa pertanto necessario ripensare l’ospedale come “organismo vivente”, capace di adattarsi rapidamente alle nuove esigenze. L’obiettivo è rendere possibili modifiche distributive e impiantistiche senza interrompere l’attività sanitaria, e senza intervenire all’interno dei reparti operativi, ma agendo prevalentemente dall’esterno delle

Pensare ospedali flessibili

LA PROGETTAZIONE OSPEDALIERA FLESSIBILE PASSA DA SCELTE STRUTTURALI E IMPIANTISTICHE INNOVATIVE CHE PERMETTANO DI GESTIRE IL CAMBIAMENTO SENZA INTERROMPERE L’ATTIVITÀ SANITARIA, OLTRE A MIGLIORARE L’EFFICIENZA COMPLESSIVA

McMaster Children’s Hospital, Toronto © 2023 McMaster University

A sinistra: Sezione del Cambridge Children's Hospital con evidenziato il piano tecnico intermedio e gli spazi tecnici di interpiano ©2025 White Arkitekter

Sotto: Cambridge Children's Hospital, Cambridge ©2025 White Arkitekter

aree assistenziali. L’esperienza corrente dimostra come una richiesta di riorganizzazione funzionale generi spesso uno stravolgimento dell’intero assetto: per ricavare spazio a un nuovo servizio si rende necessario spostarne un altro, con inevitabili disagi per il personale e per l’utenza. È quindi legittimo chiedersi se sia possibile superare questo modello e creare condizioni che consentano il rinnovamento dell’edificio senza disservizi, senza sospensione delle attività sanitarie e senza ricorrere a edifici provvisori.

INTERPIANI TECNICI COME STRATEGIA DI FLESSIBILITÀ

L’inserimento di interpiani tecnici tra i piani ospedalieri rappresenta una possibile risposta a tali esigenze. Questo approccio non è inedito: l’Ospedale Universitario Mac Master di Toronto ha adottato, già diversi anni fa, un interpiano tecnico-strutturale tra tutti i livelli sanitari, permettendo alla struttura di accogliere nuove esigenze per oltre cinquant’anni senza alterare l’impianto originario. Più recentemente, nuovi progetti ospedalieri hanno introdotto soluzioni analoghe, seppur in modo selettivo: interpiani tecnici in corrispondenza delle aree a più elevata complessità tecnologica (sale operatorie, diagnostiche per immagini, ecc.) o collocazione delle unità per il trattamento dell’aria in copertura. Un esempio significativo è l’ospedale Children’s Hospital di Cambridge che prevede un interpiano tecnico

di 4,5 m di altezza dedicato all’impiantistica delle aree ad alta intensità interventistica, mentre gli altri piani sono dotati di controsoffitti di oltre 1,50 m, nettamente superiori agli standard consueti di 0,70 m.

UN OSPEDALE COMPLETAMENTE ISPEZIONABILE

L’ipotesi di realizzare interpiani tecnici tra ogni piano sanitario si inserisce quindi in una linea evolutiva già avviata, con l’obiettivo di semplificare la manutenzione e il controllo delle reti impiantistiche, ridurre la distanza delle canalizzazioni verticali, in particolare, ad esempio, tra le unità di trattamento aria e le sale operatorie, e garantire un controllo diretto delle installazioni. Estendendo il concetto di interpiano tecnico a tutta la struttura, diventa possibile realizzare un ospedale completamente ispezionabile. L’innovazione non risiede solo nella capacità di modificare in modo diffuso le funzioni dell’edificio, ma anche nel controllo manutentivo di ogni componente impiantistica, non più limitato alle sole aree ad alta specializzazione.

IMPLICAZIONI STRUTTURALI E SOSTENIBILITÀ

L’interpiano tecnico può essere utilizzato, inoltre, come elemento strutturale principale, consentendo l’adozione di maglie strutturali molto ampie, fino a 18-20 metri. Ciò rende possibile un’organizzazione funzionale libera da vincoli strutturali, garantendo una mag-

■ Sinistra: sezione Interpiano Tecnico e Area Sanitaria, concept con focus impianti ©2025 Deerns Italia. Sotto: illustrazione concettuale, separazione Area Tecnica e Aerea Mobilità Interna. ©2025 Arch. Alberto Altieri

giore libertà compositiva dei reparti. Tali luci richiedono l’impiego di strutture in acciaio, con ricadute positive in termini di rapidità costruttiva (intesa come “scatola di montaggio”) e di sostenibilità ambientale. Le strutture in acciaio, integrate con sistemi costruttivi a secco (pareti modulari, pannelli in cartongesso, ecc.), permettono infatti un recupero quasi integrale dei materiali in caso di dismissione o sostituzione, con assenza di polveri, riduzione dei rumori, e tempi di intervento contenuti.

NUOVI MODELLI

IMPIANTISTICI MODULARI

Un ulteriore aspetto positivo di questa configurazione consisterà nel fatto che saranno abbreviati i percorsi delle canalizzazioni tra le unità di trattamento dell’aria e gli ambienti serviti; quindi, si ridurranno le possibilità di contaminazione durante il flusso (cosa peraltro richiesta normativamente per le sale operatorie dalla UNI 11415).

In questo interpiano tecnico le unità impiantistiche potranno essere variate al variare della destinazione del piano servito, ed insieme alle reti distributive potranno essere controllate “a vista” dai tecnici addetti alla manutenzione ed essere oggetto di costante certificazione di un efficace funzionamento dell’intera struttura. Ciò consentirà di inserire automatismi di verifica costante dello stato degli impianti non più confinati in spazi “nascosti” ma oggetto di continua verifica e controllo.

L’interpiano tecnico può infine ospitare percorsi dedicati alla movimentazione rapida di materiali, personale e pazienti. Tali percorsi, rettilinei e privi di interferenze con le attività

■ Sinistra: mobilità del personale ospedaliero e dei pazienti attraverso percorsi rettilinei. Sopra: assistenza robotica sanitaria. I percorsi rettilinei, ampi e privi di ostacoli, permettono ai dispositivi di muoversi agevolmente

sanitarie, consentono collegamenti rapidi tra i nodi verticali mediante l’uso di trattori elettrici, sistemi robotizzati, pattini o biciclette elettriche. Anche il paziente può usufruire di questi assi di collegamento, evitando l’attraversamento di reparti e servizi. Il letto può essere movimentato tramite sistemi elettrici, riducendo così lo sforzo del personale infermieristico e migliorando l’efficienza complessiva dell’organizzazione.

PROGETTAZIONE DEGLI IMPIANTI

In questo scenario, tutte le apparecchiature impiantistiche a servizio di un piano sanitario vengono installate, ispezionate e mantenute nell’interpiano tecnico immediatamente superiore. Dal punto di vista della prevenzione incendi, l’interpiano tecnico deve costituire un unico compartimento con il piano sanitario servito. La riduzione delle distanze tra le unità di trattamento aria e gli ambienti serviti comporta inoltre una diminuzione del rischio di contaminazione lungo i percorsi aeraulici, in coerenza con quanto richiesto dalla normativa vigente (ad esempio UNI 11415 per le sale operatorie).

Questa configurazione facilita l’ottenimento di certificazioni di controllo continuo per la sicurezza delle infezioni, basate su standard internazionali quali quelli dell’OMS (IPCAF - Infection Prevention and Control Assessment Framework) o su certificazioni di enti terzi indi-

pendenti. La certificazione di “Struttura Sanitaria Sicura” garantisce a tutti gli stakeholder - Ministero della Salute, Aziende Sanitarie, pazienti e familiari - l’adozione di un sistema gestionale orientato al miglioramento continuo della prevenzione delle infezioni.

PROGETTARE PER IL FUTURO

La progettazione impiantistica dovrà prevedere adeguati margini di adattabilità futura: centrali termofrigorifere realizzate con unità modulari, spazi riservati per futuri incrementi di potenza, reti e montanti principali sovradimensionati, analogamente a quanto previsto per la distribuzione dell’energia elettrica. Questi accorgimenti consentono all’edificio ospedaliero di evolvere nel tempo senza interventi invasivi, rafforzando il principio di flessibilità come elemento fondante della progettazione sanitaria contemporanea.

ALBERTO ALTIERI Architetto

ALESSANDRO NICALI Ingegnere e Direttore Tecnico di Deerns Italia S.p.A.

Ruolo delle EmPATH Unit nei Dipartimenti di Emergenza

LE EMPATH UNIT INTRODUCONO AMBIENTI ALTERNATIVI CHE RIDUCONO CONTENZIONI, RICOVERI IMPROPRI E RECIDIVE, OTTIMIZZANDO L’USO DELLE RISORSE SANITARIE. NE ABBIAMO PARLATO CON IL LORO IDEATORE, LO PSICHIATRA SCOTT ZELLER

Cortesia Pineapple

Dottor Zeller, ci racconta la sua esperienza come medico che si occupa di pazienti psichiatrici?

Il 2026 rappresenta il mio quarantesimo anno di lavoro nella psichiatria d’emergenza, branca che è diventata la mia passione fin dal primo momento in cui ho messo piede in un servizio di emergenza psichiatrica: l’ho subito percepita come la mia vocazione. In questi 40 anni ho svolto un’intensa attività di ricerca e pubblicazione, tra cui la co-autorialità del principale manuale di riferimento Emergency Psychiatry: Principles and Practice, oggi alla seconda edizione. Ho guidato sia le linee guida statunitensi

Il dottor Scott Zeller è Professore Clinico Associato di Psichiatria alla University of California-Riverside School of Medicine, Vice President for Psychiatry presso Vituity ed ex Presidente della National Coalition on Psychiatric Emergencies e della American Association for Emergency Psychiatry

sia quelle internazionali sulle migliori pratiche per la valutazione e il trattamento dell’agitazione, che hanno contribuito a un cambiamento globale: dall’uso di coercizione e sedazione forzata si è passati allo standard attuale basato sulla de-escalation verbale e sulla collaborazione. Sono stato inoltre co-inventore della telepsichiatria d’emergenza on-demand per i dipartimenti di emergenza ospedalieri: vent’anni fa molti dicevano che non avrebbe mai funzionato, mentre oggi è disponibile in migliaia di ospedali in tutto il mondo. Attualmente sono Vice President for Psychiatry presso Vituity, una grande organizzazione medica multispecialistica, e dedico gran parte del mio tempo ad aiutare ospedali di tutto il mondo a migliorare l’assistenza psichiatrica in emergenza, in particolare attraverso la creazione di EmPATH Unit.

Che cosa sono le EmPATH Unit?

EmPATH è l’acronimo di Emergency Psychiatric Assessment, Treatment and Healing Units (Unità per la valutazione, il trattamento e la cura psichiatrica in emergenza). L’acronimo è ormai un termine generico e accademico, come “Unità di Terapia Intensiva”: non è un marchio registrato e qualsiasi ospedale può aprire una EmPATH Unit senza bisogno di licenze o autorizzazioni specifiche.

Le EmPATH Unit sono estensioni del Pronto Soccorso in ospedale, uno spazio alternativo pensato appositamente per la valutazione e la cura dei pazienti con emergenze comportamentali. È noto da tempo che l’ambiente tradizionale del pronto soccorso non è ottimale per i pazienti psichiatrici: spesso è affollato, claustrofobico, rumoroso e spaventoso.

Le EmPATH Unit, al contrario, sono spazi aperti e rassicuranti, dove i pazienti possono muoversi liberamente, utilizzare poltrone reclinabili invece delle barelle, partecipare ad attività ricreative come giochi da tavolo o gruppi, e servirsi autonomamente di snack, bevande e biancheria senza dover chiedere il permesso. Questo ambiente calmante, unito all’accesso rapido ai professionisti, all’avvio tempestivo del trattamento, all’osservazione costante e alla rivalutazione continua, e fino a 24 ore di assistenza, con l’obiettivo

Cortesia
Pineapple
Cortesia
Pineapple

Planimetria della Empath Unit combinata adulti-adolescenti

durata complessiva di permanenza in PS dei pazienti con problemi di salute mentale

percentuale di pazienti che necessitano comunque di essere ricoverati

Benefici registrati

riduzione dei ritorni in PS entro 30 giorni della partecipazione alla prima visita di follow-up ambulatoriale

Cortesia Pineapple

di evitare il ricovero psichiatrico, ha portato a risultati straordinari. In media, il 75% dei pazienti psichiatrici ad alta complessità può essere dimesso anziché ricoverato; l’uso delle contenzioni fisiche riguarda meno dell’1% dei pazienti. Tutto questo avviene eliminando il fenomeno del “boarding” nel pronto soccorso tradizionale, riducendo in modo significativo le riospedalizzazioni e migliorando l’adesione al follow-up ambulatoriale.

Quante EmPATH Unit sono state aperte finora e dove si trovano? È solo un’esperienza statunitense o esistono unità simili anche in Europa?

Attualmente sono operative circa 50 EmPATH Unit negli Stati Uniti, in Canada, Messico e Singapore, e prevediamo che supereranno quota 100 nei prossimi due anni. Al momento non ce ne sono in Europa, ma stiamo ricevendo grande interesse da Inghilterra, Scozia, Spagna e Irlanda e speriamo che presto si unisca anche l’Italia.

Come è nata l’idea di creare questa soluzione?

Per diversi anni sono stato a capo del Servizio di Emergenza Psichiatrica di Oakland, in California, e in quel periodo siamo riusciti a implementare molte delle strategie per ridurre agitazione e aggressività emerse dagli studi che ho guidato, con risultati molto positivi. Tuttavia, nella maggior parte degli Stati Uniti non esisteva nulla oltre agli ospedali psichiatrici per acuti e alle strutture ambulatoriali: ampie aree del Paese erano prive di una vera assistenza psichiatrica d’emergenza. Continuavo inoltre a leggere sui media storie di pazienti psichiatrici costretti ad attendere per ore, o giorni, nei pronto soccorso in attesa di un posto letto psichiatrico. L’opinione prevalente era che la soluzione fosse costruire più ospedali per ricoveri. Questo mi frustrava, perché significava che le emergenze psichiatriche erano l’unica condizione trattata in pronto soccorso, con un’unica risposta: “trovare un letto”.

Se una persona arriva in pronto soccorso con una crisi asmatica, non la si manda in un ospedale per l’asma: la si cura subito, e la maggior parte dei pazienti migliora e torna a casa. Sapevo che lo stesso poteva valere per i pazienti psichiatrici, se trattati immediatamente sul posto invece che essere inviati altrove. Sapevo però che nessuno mi avrebbe creduto senza prove solide. Così ho progettato, testato e pubblicato uno studio, noto come Alameda Model, che ha dimostrato come, valutando e trattando i pazienti con emergenze comportamentali in un pronto soccorso psichiatrico separato, fosse possibile ridurre i tempi di boarding di oltre l’80% e stabilizzare e dimettere il 76% dei pazienti che in precedenza si ritenevano bisognosi di ricovero.

Questo studio ha suscitato grande interesse e ha portato molti ospedali a chiedermi supporto per creare programmi di emergenza psichiatrica. Partendo da zero, mi sono chiesto come costruire un modello che integrasse i principi dell’Alameda Model con tutto ciò che avevamo imparato sulla riduzione di frustrazione e agitazione, utilizzando l’ambiente stesso come parte del trattamento. Da qui è nata la prima EmPATH Unit, a San Diego, nel 2016.

Quali risultati hanno ottenuto queste unità e dove vengono indirizzati i pazienti dopo il passaggio attraverso di esse?

Sono stati pubblicati numerosi studi peer-reviewed su riviste scientifiche di rilievo, che mostrano risultati molto coerenti nei diversi

Cortesia
Pineapple

contesti. Gli studi confrontano i dati dei sei-dodici mesi successivi all’apertura della EmPATH Unit con quelli precedenti: nello specifico, i dati presentano: riduzione del 70% della durata complessiva di permanenza in pronto soccorso dei pazienti con problemi di salute mentale; riduzione dei ricoveri psichiatrici da +60% a meno del 25% dei pazienti (miglioramento del 59%); riduzione del 25-50% dei ritorni in pronto soccorso entro 30 giorni; aumento del 60-85% della partecipazione alla prima visita di follow-up ambulatoriale; diminuzione degli episodi di aggressione e violenza sul posto di lavoro, con personale che riferisce di sentirsi “molto più sicuro”; riduzione della durata della degenza per i pazienti che necessitano comunque di ricovero dopo la EmPATH Unit. Per quanto riguarda la destinazione dei pazienti, circa il 75-80% viene dimesso dall’ospedale: la maggior parte torna a casa con un follow-up ambulatoriale programmato, altri vengono indirizzati a strutture residenziali o programmi di crisi. Circa il 20% necessita invece di un ricovero psichiatrico per ulteriori cure acute.

Dal punto di vista organizzativo, le EmPATH Unit suddividono spazi e trattamenti per età o per tipologia di crisi?

L’unica distinzione riguarda l’età: gli adulti (≥18 anni) non vengono mai mescolati con i minori. Alcune strutture dispongono di due EmPATH Unit, una per adulti e una per bambini/adolescenti, ma la maggior parte si limita a una sola tipologia. Non esiste invece una suddivisione per tipo di crisi: abbiamo osservato che pazienti con disturbi dell’umo-

re, psicosi, mania, intossicazione o astinenza da sostanze, o disturbi d’ansia traggono tutti beneficio dall’ambiente EmPATH e, nella grande maggioranza dei casi, convivono bene nello stesso spazio.

In che modo la pandemia ha influenzato gli accessi al pronto soccorso e il peggioramento dei problemi di salute mentale?

Abbiamo osservato un aumento globale degli accessi psichiatrici in pronto soccorso attribuibile alla pandemia, in particolare tra gli adolescenti. Il consenso generale è che fattori come isolamento, solitudine e ansia abbiano aggravato condizioni già a rischio, contribuendo a questo incremento.

Si considera soddisfatto dei risultati raggiunti?

Certamente. Le EmPATH Unit sono nate con un obiettivo principale: sottrarre le persone con disturbi psichiatrici acuti ai pronto soccorso tradizionali e offrire loro cure d’emergenza appropriate e rassicuranti. I risultati sono stati straordinari: la maggior parte dei pazienti attendeva a lungo un letto di ricovero che, con cure tempestive, non era nemmeno necessario. Questo libera posti nei pronto soccorso per altri pazienti, con un risparmio di milioni di dollari all’anno per ogni EmPATH Unit. Inoltre, la stessa popolazione ad alta complessità che nei pronto soccorso tradizionali viene sottoposta a contenzione fisica nel 15% dei casi, nelle EmPATH Unit viene contenuta solo in 1-2 casi ogni 1.000 pazienti. In numeri: pronto soccorso tradizionale, 150 pazienti contenuti su 1.000; EmPATH Unit, 1-2 su 1.000.

■ Planimetria 3D della EmPATH Unit

1

2

3

4

5

6

La banca dati

dei prezzari DEI aggiornata mensilmente

Cosa ti offre DEIPLUS PREMIUM:

Tutte le voci dei PREZZARI DEI dal 2018 (più di 88.000)

7 DEI

Tutte le voci dei PREZZARI REGIONALI dal 2023

Normativa tecnica indispensabile al progettista.

Più di 17.000 provvedimenti ricercabili per testo, per classificazione e per estremi (tipologia, numero, data)

Schede merceologiche: per ogni voce di materiale è presente la relativa scheda tecnica delle varie aziende produttrici

Biblioteca digitale: più di 100 volumi sfogliabili del mondo dell’edilizia. Ambiente e bioedilizia, Capitolati, Codici, Consolidamento e restauro, Geotecnica, Progettazione, Sicurezza e tanti altri argomenti

Più di 34.000 pagine per un valore di 4.500 € in libri

18 Check-list: listini precompilati con tutte le voci necessarie per i lavori più frequenti tra cui rifacimento bagno, rifacimento facciata, impianto fotovoltaico, impianto riscaldamento condominio, villino ipo

METRICODEI: il software per creare il computo metrico, completamente integrato con la banca dati DEIPLUS PREMIUM

Turismo medico e sanitario

Evidenze e prospettive

LA MOBILITÀ SANITARIA RIMBORSATA APRE NUOVE OPPORTUNITÀ MA PONE ANCHE CRITICITÀ APPLICATIVE. INFORMAZIONE, PROSSIMITÀ

GEOGRAFICA E ASSETTI ISTITUZIONALI INFLUENZANO ACCESSO ALLE CURE E FLUSSI TRANSFRONTALIERI

In un quadro di crescente globalizzazione, i sistemi sanitari si trovano ad affrontare nuove sfide di governance nell’assistenza ai pazienti. Tra queste potrebbe assumere sempre più interesse la mobilità sanitaria rimborsata, in crescita costante e con nuove opportunità date dalla recente regolamentazione.

Risulta quindi essenziale chiarire come questa sia normata a livello europeo e come si traduca nell’attuazione nazionale, affrontando al contempo tre interrogativi relativi all’accesso effettivo alle cure, alla sostenibilità dei bilanci nazionali e alla regolamentazione dei movimenti transfrontalieri. Accanto alla dimensione normativa, risulta centrale la governance dell’informazione, ovvero chiarezza dei diritti, trasparenza sui tempi e sulle tariffe, ruolo dei Punti di Contatto Nazionali (NCP). Dove l’informazione è più chiara, i percorsi si semplificano e si riducono le rinunce alle cure.

TURISMO SANITARIO E MOBILITÀ RIMBORSATA

La mobilità rimborsata costituisce un sottoinsieme del più ampio macro-fenomeno del turismo sanitario, inteso come viaggio per ricevere cure mediche o di benessere. Possiamo infatti distinguere due rami: la mobilità rimborsata UE, disciplinata dai Regolamenti (CE) 883/2004 e 987/2009 e dalla Direttiva 2011/24/UE; la mobilità non rimborsata, coperta da spese out-of-pocket o da un'assicurazione privata. Per dare un ordine di grandezza, le stime del Parlamento europeo indicano che in UE siano 61 milioni i viaggi alla ricerca della salute, di cui oltre 5 milioni internazionali. All’interno di questi, la mobilità rimborsata rappresenta una frazione del totale, ma in prospettiva sempre più interessante.

Infatti, alcune tendenze, quali l’evoluzione della normativa comunitaria, il calo dei costi di trasporto e la più ampia accessibilità alle informazioni (e quindi maggiori possibilità di scelta e comparazione tra erogatori) inducono a prevedere un aumento della mobilità sanitaria rimborsata. Si aggiungono la digitalizzazione dei referti e delle ricette e la diffusione delle seconde opinioni online, che abbassano le barriere informative e riducono l’incertezza clinica. Ma perché ci si cura all'estero? Per rispondere a questa domanda è possibile basarsi su un sondaggio condotto dallo Special Eurobarometer 425. Tra i cittadini UE disposti a spostarsi all’estero per accedere ad un trattamento, prevale l’indisponibilità dello stesso nel Paese d’origine (71% dei rispondenti in UE, 67% in Italia); seguono la ricerca di qualità del trattamento (53% UE, 55% Italia) e degli specialisti che lo erogano (38% UE, 38% Italia), il costo della prestazione (23% UE, 14% Italia) e la vicinanza del trattamento alla propria residenza (6% UE, 4% Italia). In sintesi, ci si muove soprattutto quando manca l’opzione domestica o si cercano standard/competenze superiori. Il prezzo incide, ma non è il principale driver. La modalità rimborsata non avrebbe un effetto diretto sulla decisione, anche se, in un caso, ha effetti indiretti con implicazioni importanti. Infatti, la mobilità sanitaria rimborsata UE si articola su due binari.

ASSISTENZA DIRETTA

Il primo binario è quello dei regolamenti, che prevedono la fornitura di un’assistenza diretta al paziente, che accede alla prestazione nel Paese di cura, con l’applicazione delle tariffe del Paese ospitante. Il paziente non anticipa il costo (salvo il ticket) e, in alcuni sistemi, può essere richiesto un anticipo con rimborso successivo secondo le regole locali. L’accesso alle cure programmate richiede autorizzazione preventiva (PA) tramite il modulo S2, mentre per le cure necessarie durante i soggiorni temporanei si utilizza la TEAM/EHIC (Tessera Europea di Assicurazione Malattia, in Italia, European Health Insurance Card all’estero), che non richiede autorizzazione preventiva. L’ambito di applicazione comprende UE, SEE (Liechtenstein, Norvegia e Islanda) e Svizzera. I prestatori ammessi sono pubblici o privati accreditati, legalmente operanti nello Stato di cura. La persona è dunque considerata un assicurato sociale, i cui diritti sono garantiti dall’affiliazione al SSN del Paese in cui è iscritto. Sul piano amministrativo, la regolazione economica avviene tra le istituzioni competenti tramite moduli o SED (Structured Electronic Documents). I tempi di liquidazione possono essere lunghi e incidere sulle letture annuali dei flussi.

ASSISTENZA INDIRETTA

Il binario rappresentato dalla Direttiva 2011/24/UE prevede un’assistenza indiretta: il paziente anticipa il costo della prestazione nel Paese di cura e poi chiede il rimborso alla propria ASL fino al livello delle tariffe applicabili in Italia. La prestazione, per essere rimborsata, deve rientrare nei LEA. L’autorizzazione preventiva è l’eccezione, non la regola: può essere richiesta per i ricoveri con pernottamento, per prestazioni che richiedono infrastrutture o tecnologie altamente specializzate e costose, o che comportano un rischio particolare per il paziente o per la collettività.

I prestatori ammessi sono pubblici o privati (accreditati e non) legalmente operanti nello Stato di cura. L’ambito territoriale è quello dell’UE e SEE (Islanda, Liechtenstein, Norvegia). In pratica, il paziente deve presentare documentazione clinica e fattura; il rimborso è “a tariffa italiana” e i costi extra (viaggio, alloggio) restano di norma esclusi. È possibile, negli stati dotati di un sistema di notifica preventiva, richiedere un preventivo o un’attestazione ex ante per ridurre l’incertezza sull’entità del rimborso.

UN "MERCATO" DEL TURISMO SANITARIO

Sul piano concettuale, la Direttiva punta a garantire la libera scelta e l’accesso alle prestazioni e, indirettamente, a generare una pressione competitiva che stimoli qualità ed efficienza. Nella pratica, tuttavia, l’integrazione con le politiche nazionali è stata complessa e l’attuazione tra gli Stati membri disomogenea, con differenze concrete nei tempi, nei documenti richiesti e nell’ampiezza delle liste PA (Autorizzazione Preventiva). Vediamo quindi nello specifico il

caso del recepimento italiano della Direttiva 2011/24/UE, che si fonda su due pilastri. Il primo, il D.Lgs. 38/2014, stabilisce che il rimborso è dovuto se la prestazione rientra nei LEA e si applicano le tariffe regionali. Il secondo, il D.M. 50/2018,individua le prestazioni soggette ad autorizzazione preventiva, includendo, oltre ai ricoveri con pernottamento e ai servizi diagnostico-terapeutici complessi o ad alto costo, anche la chirurgia ambulatoriale.

I flussi rimborsati in Italia ai sensi della Direttiva 2011/24/UE, nel biennio 2022–2023 evidenziano una crescita sia delle prestazioni soggette ad autorizzazione preventiva sia di quelle non soggette, in continuità con il trend di ripresa post-Covid. Gli importi rimborsati ai pazienti italiani passano, per le non-PA (non richiesta un'autorizzazione preventiva), da 102.571 € nel 2022 a 329.937 € nel 2023 (+221,7%) e, per le PA, da 139.975 € a 371.626 € (+165,5%).

La crescita avviene su una base storicamente contenuta e riflette, oltre alla domanda, miglioramenti informativi e amministrativi. Le destinazioni prevalenti restano spesso di prossimità, in particolare Francia, Austria e Germania, a conferma del peso della distanza geografica nelle scelte di cura. I volumi restano tuttavia contenuti, soprattutto se confrontati con i flussi attivati dai Regolamenti. Nel quinquennio 2014-2019 i flussi regolamentari sono nettamente più consistenti e, per l’Italia, presentano un saldo negativo: pagamenti (cap. 4391) pari a 1,25 miliardi di euro, a fronte di incassi (cap. 3620) pari a 793 milioni, per un saldo negativo di 465 milioni. Il fattore prossimità è evidente e testimoniato dalle principali destinazioni creditrici: Francia (388 mln) e Svizzera (240 mln), seguite da Germania (231) e Spagna (178), che insieme coprono la gran parte delle uscite. Se andiamo a vedere nello specifico la distribuzione regionale dei flussi in uscita in materia di Regolamenti (2013-2019), questi risultano concentrati in poche Regioni: Lombardia, Lazio, Piemonte, Sicilia e Campania assorbono oltre la metà del totale nel periodo considerato. Nel Mezzogiorno, una lettura plausibile, in assenza di microdati sulle motivazioni individuali, è che i flussi in uscita siano riconducibili a differenziali di tempi d’accesso e di qualità percepita dei servizi locali, alimentando una direttrice da Sud a Nord. Tale interpretazione è coerente con gli indici di mobilità interregionale, che evidenziano un saldo sistematico a favore delle Regioni del Centro-Nord. Alla luce di ciò, è possibile considerare la mobilità rimborsata (Regolamenti e, in misura minore, Direttiva) come la proiezione sovranazionale di un fenomeno preesistente all’interno, ovvero la mobilità interregionale. Nei territori di confine (soprattutto Lombardia, Piemonte, Liguria, Valle d’Aosta e province autonome), si può ragionevolmente dedurre che il driver principale sia la prossimità geografica, con scelte che si orientano in primis verso Svizzera, Francia e Germania; pesano le differenze di lingua, l’orografia e i tempi di percorrenza verso gli hub oltre confine, oltre alla presenza di accordi operativi.

TRE NODI STRATEGICI

Per concludere l'analisi della situazione corrente, tre nodi strategici sembrano essere quelli fondamentali da sciogliere per l'Europa e, nello specifico, per il SSN italiano, per cogliere appieno e nel modo più corretto le opportunità della mobilità sanitaria. Il primo è rappresentato dal coordinamento normativo. La coesistenza dei due binari (Regolamenti e Direttiva 2011/24/UE) genera confusione per i pazienti e disomogeneità applicative tra gli Stati. Occorre rafforzare l’integrazione operativa, a partire dai NCP (National Contact Points), per offrire informazioni uniformi su diritti, differenze tra i canali e sul funzionamento dei rimborsi.

In parallelo, la digitalizzazione è decisiva: grazie a MyHealth@EU, i dati clinici essenziali (Patient Summary e ricetta elettronica) sono scambiati in modo sicuro e standardizzato, rendendo più continui i percorsi di cura e più agevole il reperimento documentale ai fini del rimborso. Le differenze di copertura digitale tra gli Stati restano, ma il Regolamento EHDS del 2025 ne indirizza il superamento, fissando standard comuni per garantire la piena interoperabilità. Secondo nodo, la sostenibilità finanziaria. Un aumento dei flussi in uscita rischia di lasciare capacità interna inutilizzata. Per governare questi

Mobilità sanitaria in Europa

Regolamenti 883/2004 e 987/2009) e Direttiva 2011/24/UE

effetti, serve una sorveglianza proattiva dei motivi per cui i pazienti si spostano. L’Ecosistema Dati Sanitari (EDS), avviato nel 2024, può consentire l’integrazione di dati clinici e amministrativi in un unico cruscotto. L’EDS nasce con finalità di cura, ricerca e prevenzione e, in prospettiva, consente di incrociare dati clinici e amministrativi per monitorare e intervenire sulle criticità che alimentano i flussi in uscita. In parallelo, delle politiche di attrazione inbound su capacità non satura (centri di eccellenza) possono compensare una parte degli esborsi effettuati.

Infine, il nodo delle disuguaglianze, che si manifestano su tre livelli e vanno affrontate con strumenti diversi. A livello internazionale, recepimenti non uniformi della Direttiva generano accessi disomogenei. Servono paletti minimi comuni a livello UE che riducano le differenze di recepimento e, oggi, in alcuni casi, incidenti sulle libertà di accesso alle cure. A livello interregionale, in Italia, le differenze tariffarie tra le Regioni generano rimborsi non omogenei a parità di prestazione. Un tariffario nazionale di riferimento o una griglia vincolante con minimi e massimi ridurrebbe le asimmetrie. A livello interindividuale, il rimborso ex-post rappresenta una barriera finanziaria che colpisce in modo diseguale. Si possono adottare due rimedi pragmatici: tempi

certi e rapidi di rimborso e un canale garantito per i casi socialmente vulnerabili (ad esempio, anticipazione pubblica o garanzia), per evitare che la capacità di anticipo possa condizionare l’accesso.

UN PROGETTO PILOTA?

Si aprono le porte allo sviluppo di progetti applicabili a livello nazionale e sovranazionale, nell’ambito della mobilità sanitaria rimborsata nell’UE ed extra-UE. Una piattaforma digitale che funga da porta d’accesso unica per i pazienti internazionali, con lo scopo di centralizzare, in modo chiaro e multilingue, l’offerta sanitaria delle singole strutture ospedaliere. Ognuna di esse potrebbe concentrare le proprie schede descrittive dei centri, delle aree cliniche di expertise, dei pacchetti di prestazioni e dei contatti dei centri di cura per pazienti esteri all’interno di un’unica piattaforma accessibile ai pazienti esteri. Il prerequisito fondamentale è una strutturazione interna, sia per garantire la continuità assistenziale al paziente, sia per una gestione logistica e burocratica tipica del paziente internazionale. Oltre a questo sviluppo trasversale, è necessario un approccio verticale, coinvolgendo di più gli organi ministeriali, sia per il finanziamento del progetto sia per policy di riduzione della complessità burocratica che può limitare l’accesso alle cure da parte dei pazienti internazionali. Resta una criticità di fondo: è raro che un paziente decida di partire dall’estero per una prestazione invasiva. Spesso non conosce la struttura, la lingua e le procedure offerte. Meglio spostare l’engagement del paziente più a monte, lavorando non tanto sul “paziente turista” (che viaggia per curarsi), quanto sul “turista paziente” (che è già in Italia per lavoro, studio o turismo). L’idea è sfruttare l’infrastruttura in costruzione dei centri ambulatoriali territoriali per offrire pacchetti diagnostici in mezza giornata (check-up mirati o second opinion), prenotabili tramite piattaforma e fruibili durante il soggiorno. Questo abbassa la soglia di diffidenza e crea le basi per un flusso che va dal pacchetto diagnostico alla proposta terapeutica (se indicata), fino all’eventuale programmazione della prestazione complessa in centri hub, con un case manager dedicato e continuità di ritorno. A supporto, si possono prevedere teleconsulti pre-viaggio, consenso informato e preventivo tradotti, e un vademecum digitale con istruzioni per rimborso e follow-up.

LE AUTRICI

NICOLÒ LUERTI

Università degli studi di Milano, centro di ricerca HEAD FEDERICO LEGA

Professore Ordinario di Economia e Management

Sanitario, Dipartimento di Scienze Biomediche per la Salute, Università Statale di Milano

Mobilità aerea avanzata per il trasporto di merci sanitarie, medicinali e sostanze biologiche urgenti tramite droni alimentati a idrogeno verde. È lo scopo del progetto “Sandbox”, del quale fa parte Stesi Srl, azienda che supporta la logistica a terra e l’analisi predittiva dei ricambi dei droni. Il progetto nasce grazie a un protocollo d’intesa firmato da Regione Veneto, ENAC e SAVE.

Sistema droni per merci sanitarie

L’aeroporto civile “Gino Allegri” di Padova è stato scelto come area di sperimentazione per la presenza in zona di importanti strutture di cura e assistenza. I droni impiegati sono multicotteri con massa complessiva inferiore a 25 kg: richiedono circa tre minuti per il rifornimento, hanno un’autonomia di 100 km, trasportano fino a 5 kg e, a pieno carico, consumano circa 340 grammi di idrogeno verde, con velocità massima di 55 km/h. Il percorso di validazione prevede, dapprima, verifiche a terra del KEB (Key Energy Builder) realizzato da H2C per la produzione, lo

Soluzioni di bloccaggio per l’industria medicale

Da oltre trent’anni, OML è impegnata nella progettazione e realizzazione di attrezzature di bloccaggio per le lavorazioni meccaniche su macchine utensili e vanta lo sviluppo di un’ampia gamma di soluzioni avanzate, sia standard sia customizzate. Sintergrip non necessita di nessuna lavorazione e nasce dall’esigenza di bloccare un pezzo per meno millimetri possibile (3,5 mm di presa).

Questo consente di poter lavorare completamente il pezzo in un’unica fase (soprattutto per macchine a 5 assi) e risparmiare sulle materie prime, soprattutto quando queste hanno una grossa incidenza sul prezzo (alluminio, titanio, ecc.). Oltre a ciò, SinterGrip consente di sfruttare al meglio le prestazioni della macchina utensile e degli utensili, rispondendo così al mercato che richiede un bloccaggio sicuro e che eviti le deformazioni del pezzo.

stoccaggio e l’erogazione di idrogeno verde alimentato da energia rinnovabile; quindi, l’integrazione a terra tra KEB, drone a idrogeno e mezzi di movimentazione; infine, prove di volo in area aeroportuale e successivi test BVLOS tra due strutture ospedaliere della Regione, in cui il pilota mantiene il controllo senza contatto visivo diretto. A partire dai primi mesi del 2026, presso l’aeroporto di Padova è iniziato lo stoccaggio dei prodotti e dei volumi di idrogeno necessari ad alimentare i droni GH2 di H2C, i carrelli elevatori e i trattori per il trasporto merci.

TC spettrale con IA integrata

Per il tredicesimo anno consecutivo, Philips è stata riconosciuta come uno dei Top 100 Global Innovators dalla società leader nello studio della proprietà intellettuale Clarivate, a conferma della capacità innovativa dell’azienda in ambito health tech. Philips è prima tra le aziende del settore di tecnologie medicali all’interno della classifica 2026. Attraverso tecnologie basate sull’intelligenza artificiale, l’imaging avanzato e piattaforme digitali, l’azienda supporta i professionisti sanitari a effettuare diagnosi più precise e rendere più efficienti i flussi di lavoro clinici. Tra le innovazioni più recenti introdotte da Philips, Verida è la prima TC spettrale con tecnologia detector-based e intelligenza artificiale integrata lungo l’intera catena di imaging, dall’acquisizione dei dati alla ricostruzione delle immagini. Questo approccio consente di ottenere immagini spettrali di elevatissima qualità diagnostica, caratterizzate da un basso livello di rumore e da un contenuto informativo che va oltre quello delle immagini convenzionali ad alta definizione. L’uso esteso dell’intelligenza artificiale permette inoltre di ottimizzare la dose mantenendo elevati standard diagnostici e di ridurre i consumi energetici fino al 45%.

Poltrona reclinabile per reparti psichiatrici

La poltrona reclinabile LEVO di Pineapple Contracts è progettata per ambienti complessi, in particolare quelli dedicati alla salute mentale, dove sicurezza e comfort sono fondamentali. Ideale per reparti psichiatrici e aree di gestione delle crisi, LEVO elimina i rischi tipici delle reclinabili tradizionali grazie all’assenza di controlli esterni e a un meccanismo di reclinazione completamente nascosto, riducendo al minimo i punti di legatura.

La reclinazione avviene esclusivamente tramite il peso corporeo dell’utilizzatore, senza leve, pulsanti o sistemi elettrici, garantendo una regolazione intuitiva e sicura. Il sedile ampio e lo schienale alto assicurano un comfort ottimale anche per un uso prolungato, favorendo il relax e il riposo. La base in polietilene impermeabile e resistente offre elevati standard igienici e una lunga durata negli ambienti sanitari più impegnativi. Disponibile con rivestimenti ignifughi e resistenti all’acqua in vari colori e tessuti. La struttura robusta è stata testata secondo rigorosi standard di carico, garantendo affidabilità in ambito clinico. Riconosciuta a livello internazionale, LEVO ha vinto il German Design Award 2025 ed è stata selezionata tra i tre prodotti più innovativi agli Healthcare Design Awards 2025 negli Stati Uniti.

Nuova CDU per data center

Motivair by Schneider Electric , un leader nell’innovazione delle tecnologie liquid cooling per le infrastrutture digitali, presenta una nuova Coolant Distribution Unit (CDU) da 2,5 MW, pensata per raffreddare i data center ad alta densità in modo affidabile e su larga scala. Si tratta di una soluzione flessibile e scalabile, per soddisfare le impegnative esigenze della prossima generazione di GPU (Graphic Processing Unit) e delle AI Factory “di scala gigawatt”. Le CDU Motivair utilizzano il software EcoStruxure per operare come un sistema centralizzato, adatto alle necessità di raffreddamento odierne e pronto a scalare a 10MW e oltre, per supportare futuri carichi di lavoro di calcolo accelerato, HPC e AI. Compatta ed efficiente, MCDU-70 ha una capacità perfettamente in linea con le necessità delle infrastrutture di grandi dimensioni. Con 2,5 MW di capacità individuale, sei MCDU-70 possono fornire a questi design una ridondanza 4+2; la capacità dell’unità è pronta anche per le esigenze delle GPU che NVIDIA programma di rendere disponibili nel prossimo futuro.

Con l’aggiunta della MCDU-70, l’offerta end-to-end per il liquid cooling di Schneider Electric ora copre una gamma di capacità da 105 kW a 2,5 MW, rispondendo alle esigenze in termini di prestazioni di oggi e del futuro. Ogni CDU è scalabile e si integra perfettamente con le altre unità e il software Schneider Electric per raffreddare in modo preciso e affidabile il data center.

Le sfide della Sanità 4.0

IL

CONFRONTO EMERSO DURANTE IL CONVEGNO “LE NUOVE SFIDE DELL’OSPEDALE 4.0. I LABORATORI OSPEDALIERI E DI RICERCA”, ORGANIZZATO DA CNETO, RESTITUISCE UNA VISIONE ARTICOLATA DEL LABORATORIO COME INFRASTRUTTURA STRATEGICA DEL SISTEMA SANITARIO

Tra le linee strategiche definite dal Direttivo di CNETO per il Triennio 2025-2027 figura la riproposizione di iniziative e convegni specifici sulla tecnica ospedaliera, che permettano di fare degli approfondimenti sulle aree sanitarie dell’ospedale e delle strutture sociosanitarie. In particolare, il Convegno 2025 ha riguardato il tema dei laboratori ospedalieri e di ricerca e il profondo cambiamento che hanno subito in questi ultimi anni. Dal momento che l’ambito dei laboratori risulta molto ampio, il Comitato Scientifico ha concentrato l’attenzione su alcuni temi strategici da portare all’attenzione dei partecipanti, quali le innovazioni di processo, la loro localizzazione all’interno del sistema ospedale, l’AI, ecc. In generale, il confronto sviluppatosi nel corso dell’ultimo Congresso CNETO ha messo in evidenza come il laboratorio del futuro non possa più essere concepito come un’infrastruttura puramente tecnica o di supporto, ma come una componente strategica del sistema sanitario, fortemente interconnessa con l’architettura, l’organizzazione, la tecnologia e la governance clinica. Il Comitato Scientifico di quest’anno ha selezionato relatori di grande rilievo nazionale e ciò ha permesso di portare all’attenzione dei partecipanti spunti di riflessione ed esperienze pratiche per ripensare queste aree così complesse. I contributi hanno restituito una visione multilivello, in cui il laboratorio diventa un dispositivo spaziale, operativo e culturale capace di rispondere a trasformazioni rapide e spesso imprevedibili.

IL LABORATORIO COME INFRASTRUTTURA STRATEGICA

L’intervento introduttivo di Stefano Capolongo, Presidente CNETO, ha inquadrato il laboratorio all’interno di una riflessione più ampia sull’evoluzione dell’ospedale contemporaneo. L’area dei laboratori è una “macchina” spesso sottovalutata nella sua dimensione fisica e organizzativa, nonostante il suo ruolo centrale nei processi diagnostici e decisionali. Capolongo ha sottolineato come l’architettura e l’ingegneria delle costruzioni siano chiamate a interpretare grandi trasformazioni sociali, ambientali ed epidemiologiche, evidenziando il ritardo strutturale con cui il settore edilizio sanitario fatica a rispondere alla velocità del progresso medico-scientifico. Un tema centrale del suo contributo è la necessità di passare da un approccio prescrittivo a uno evidence-based anche nel progetto degli spazi, introducendo il concetto di misurabilità del benessere e delle prestazioni ambientali. In questo quadro, il laboratorio non può più essere collocato in “spazi di risulta”, ma deve essere progettato come ambiente altamente performante, flessibile e integrato. Capolongo ha richiamato inoltre i grandi megatrend che influenzeranno il futuro della sanità: automazione, AI, cambiamento climatico, invecchiamento della popolazione e carenza di personale sanitario. In tale contesto, la struttura fisica dell’ospedale, e in particolare dei laboratori, è chiamata a colmare parte del divario organizzativo e operativo del sistema sanitario.

Due parole chiave emergono con forza: flessibilità e resilienza. Il laboratorio del futuro deve essere in grado di adattarsi rapidamente a scenari mutevoli, inclusi eventi pandemici, nuove tecnologie diagnostiche e cambiamenti normativi, riducendo al contempo le disuguaglianze nell’accesso alla salute. Il contributo di Pietro Orobelli, uno dei keynote speaker dell’evento di Jacobs Italia, ha affrontato il tema del laboratorio del futuro dal punto di vista della progettazione ingegneristica e della consulenza internazionale. Orobelli ha individuato cinque sfide principali: sicurezza, evoluzione scientifica, digitalizzazione e automazione, nuovi modelli di lavoro, sostenibilità ambientale. Tra queste, la sicurezza viene posta come prerequisito assoluto, evidenziando come i laboratori ospitino rischi chimici, biologici, radiologici ed elettrici spesso sottovalutati dagli stessi utenti.

Aspetto rilevante del suo intervento, la dimensione culturale del progetto: progettisti e utenti parlano spesso linguaggi diversi, e il dialogo iniziale diventa determinante per evitare soluzioni inefficaci o pericolose nel lungo periodo. Il laboratorio del futuro richiede quindi processi di progettazione partecipata e un’analisi approfondita delle attività effettivamente svolte. Orobelli ha insistito sulla necessità di progettare spazi intrinsecamente flessibili, capaci di essere riconfigurati rapidamente attraverso impianti a soffitto, arredi mobili e layout modulari. Questa flessibilità è la sola risposta possibile a un’evoluzione scientifica non lineare e accelerata. Parallelamente, la crescente integrazione di robotica e AI impone di considerare nuove esigenze spaziali, come l’ergonomia robotica, la logistica automatizzata e le infrastrutture digitali ad alta capacità. Ne emerge pertanto che il laboratorio è un ambiente ibrido, in

cui operano contemporaneamente persone, macchine e sistemi informativi, e in cui il progetto architettonico deve anticipare, e non inseguire, l’innovazione tecnologica.

Il contributo di Ettore Domenico Capoluongo, keynote speaker dell’Azienda Ospedaliera San Giovanni Addolorata di Roma e professore dell’Università Federico II di Napoli, ha ricostruito l’evoluzione storica della medicina di laboratorio, mostrando come il passaggio dalla manualità all’automazione abbia progressivamente trasformato il laboratorio in un sistema integrato, informatizzato e ad alta intensità tecnologica.

Un tema chiave del suo intervento è stato la modularità del laboratorio, che deve adattarsi quotidianamente a nuove esigenze diagnostiche, regolatorie e organizzative: infatti, la flessibilità non è solo spaziale, ma anche funzionale e gestionale. Capoluongo ha sottolineato anche come il laboratorio moderno sia ormai un nodo centrale di reti complesse di dati, campioni e decisioni cliniche, supportate dall’AI e sistemi di automazione.

Particolarmente rilevante è l’attenzione alla logistica del campione, alla tracciabilità e alla riduzione degli errori preanalitici, considerati determinanti per la qualità diagnostica. Il laboratorio del futuro è stato descritto come un ambiente in cui l’operatore assume un ruolo di supervisione, governo del processo e interpretazione clinica, mentre le attività ripetitive vengono progressivamente automatizzate. Capoluongo ha introdotto inoltre una visione fortemente orientata alla sostenibilità operativa, che non riguarda solo i consumi energetici, ma anche la gestione dei rifiuti, dei reflui e delle risorse materiali, proponendo il concetto di “green lab” come sistema complesso e non come singola prestazione tecnologica.

La relazione di Lorenzo Blandi, keynote speaker in rappresentanza di ANMDO, ha portato la prospettiva della direzione sanitaria, focalizzandosi sulla collocazione del laboratorio all’interno dell’ospedale e sulla sua influenza diretta sugli esiti di salute. Ha ribadito come il 70% delle decisioni cliniche dipenda dai risultati di laboratorio, rendendo questa funzione centrale nella gestione del rischio clinico e nella sicurezza del paziente.Il laboratorio del futuro è stato definito come un’infrastruttura critica in scenari di crisi: pandemie, eventi climatici estremi, ecc. In questo senso, la localizzazione fisica del laboratorio assume un valore strategico, dovendo garantire continuità operativa, protezione dei dati e sicurezza dei lavoratori. Ha inoltre evidenziato come le scelte progettuali debbano tenere conto degli scenari più critici, e non solo quelli ordinari. Un ulteriore tema emergente ha riguardato l’integrazione tra laboratorio centrale e point of care, che devono essere governati in modo unitario per evitare frammentazioni e rischi diagnostici. Il laboratorio del futuro, nella visione della direzione sanitaria, è quindi un sistema connesso, vicino alle aree critiche (come il PS), ma anche capace di estendersi e adattarsi all’evoluzione tecnologica e normativa.

TEMI EMERGENTI E VISIONI A CONFRONTO

La seconda sessione del Convegno ha offerto un’analisi articolata sul laboratorio del futuro, affrontato come infrastruttura critica del sistema ospedaliero, nodo tecnologico, spazio produttivo ad alta complessità e ambiente di lavoro in profonda trasformazione. Gli interventi hanno messo in evidenza come l’evoluzione dei laboratori non sia guidata da un solo fattore, ma dall’interazione tra sicurezza, flussi, normativa, automazione, digitalizzazione, sostenibilità e governance organizzativa, con forti ricadute sulla progettazione architettonica e impiantistica.

L’intervento di Francesco Contegno, fondatore di AwareLab Srl ed esperto nell’ambito della progettazione e gestione di aree di laboratorio, ha introdotto una lettura fortemente provocatoria del laboratorio ospedaliero contemporaneo. Esso è un sistema pervasivo, non coincide con il solo Corelab, ma permea l’intero ospedale attraverso flussi di campioni, materiali, dati e rifiuti. In questa visione, il laboratorio è paragonato a un sistema circolatorio, che connette ogni funzione clinica e assistenziale. Contegno ha inoltre sottolineato la necessità di progettare partendo dal campione, seguendone l’intero ciclo di vita: dalla generazione, al trasporto, alla processazione, fino alla gestione del rifiuto. Quest’ultimo aspetto viene indicato come uno degli anelli più deboli e sottovalutati, nonostante rappresenti una delle principali fonti di rischio biologico e chimico. Contegno ha sottolineato inoltre la criticità del rapporto tra esigenze espresse dagli utenti e traduzione progettuale, indicando negli URS (User Requirement Specification), strumento fondamentale per trasformare le aspettative in requisiti verificabili. Centrale è anche il tema normativo: il laboratorio del futuro deve essere progettato

con un approccio risk-based, come indicato da OMS, superando una lettura meramente prescrittiva delle norme. Emergono infine temi chiave quali il controllo della contaminazione anche oltre gli standard minimi, l’integrazione della ricerca nell’ospedale e l’adozione di cicli di miglioramento continuo (Plan-Do-Check-Act) applicati anche alla progettazione. Alessandro Sandrelli, collega di DBA Group, ha portato l’attenzione sul vero costo della mancanza di flessibilità. Nei contesti esistenti, essa genera complessità operative, ritardi, costi aggiuntivi e riduzione della qualità del servizio. Sandrelli ha proposto il concetto di laboratorio “camaleontico”, ovvero un’infrastruttura che si adatta nel tempo e nello spazio, diventando quasi invisibile quando funziona correttamente. Elemento fondante di questa visione è la definizione di un modulo base di laboratorio (dimensionale, impiantistico e funzionale), aggregabile e riconfigurabile, che consenta modifiche future senza interventi invasivi. Attraverso casi studio concreti, sono emerse le difficoltà legate a spazi non predisposti: assenza di spazi polmone, interpiani insufficienti, impianti rigidi. In particolare, i laboratori GMP realizzati in spazi inadeguati mostrano come la rigidità iniziale comprometta qualsiasi evoluzione futura. La flessibilità va quindi progettata all’inizio e richiede tempo, dialogo e investimento, elementi sempre più compressi nei processi decisionali attuali. Il contributo congiunto di Chiara Gatti e Michele Gazzara dell’Istituto Clinico Humanitas ha offerto una visione integrata tra architettura, ingegneria clinica e gestione operativa, attraverso il caso studio di Rozzano. Qui l’automazione non è presentata come semplice inserimento tecnologico, ma come occasione di ripensamento radicale dei flussi e dei layout. L’introduzione della Total Lab Automation ha consentito di ridisegnare il laboratorio come sistema lineare, compatto e riconfigurabile, migliorando ergonomia, sicurezza e gestione delle urgenze. Centrale è l’approccio metodologico: definizione condivisa degli URS, analisi dettagliata dei flussi di materiali e personale, raccolta di dati quantitativi sui volumi e sulle prestazioni attese. Dal punto di vista degli esiti, il caso Humanitas dimostra benefici misurabili: riduzione dei turnaround time fino al 50%, maggiore affidabilità diagnostica, migliore utilizzo del personale e incremento delle condizioni di lavoro. Tra i temi proposti, particolarmente rilevante è stata l’attenzione alla sostenibilità, con l’introduzione di sistemi di depurazione interna dei reflui, che trasformano un problema gestionale in un’opportunità ambientale.

La progettazione degli spazi deve tenere conto del concetto di misurabilità del benessere e delle prestazioni ambientali “ “

Sabrina Buoro, in rappresentanza di SIBioC e referente del Comitato Regionale Servizi di Medicina di Laboratorio di DG Welfare di

Il laboratorio è un ambiente ibrido in cui operano persone e macchine, e in cui il progetto architettonico deve anticipare l’innovazione tecnologica “ “

Regione Lombardia, ha concentrato il suo intervento sull’anatomia patologica, descritta come l’ultimo grande laboratorio ancora fortemente artigianale. In questo contesto, la digital pathology viene presentata come una innovazione distruttiva, capace di ridisegnare l’intero processo diagnostico, non solo lo strumento di osservazione. Il passaggio da un workflow analogico a uno completamente digitale implica tracciabilità totale, integrazione dei sistemi informativi, automazione di fasi pre- e post-analitiche e una profonda revisione degli spazi. L’AI, in particolare tramite deep learning, emerge come supporto al patologo, non come sostituzione, con applicazioni nella classificazione, nella riduzione degli errori e nella gestione dei flussi di lavoro. Ha evidenziato tuttavia forti criticità: elevati costi, consumo energetico, necessità di dataset affidabili, validazione degli algoritmi e trasparenza decisionale. I dati relativi al caso studio lombardo mostrano che, nonostante la diffusione di scanner, nessun laboratorio ha ancora implementato un flusso completamente digitale, confermando che la transizione è in atto ma incompleta. Centrale è il richiamo alla necessità di concentrazione delle attività e di investimenti coordinati, evitando frammentazioni inefficaci.

L’intervento di Michele Sarnatano, ATI project, e Ivan Pecis, AHSI Spa, ha affrontato il tema del laboratorio del futuro nel contesto della rigenerazione ospedaliera, attraverso l’intervento dell’Ospedale di Siena. Qui il laboratorio diventa motore di riordino funzionale e di supporto alla medicina di precisione. Il progetto ha evidenziato come la flessibilità debba essere declinata a scala architettonica, impiantistica e di arredo, soprattutto in edifici stratificati e vincolati. Sono emerse soluzioni basate su open space modulari, impianti completamente a soffitto, pareti tecniche integrate all’arredo e riduzione dei vincoli fissi a pavimento. Questo approccio consente modifiche future senza interrompere l’attività, riducendo tempi, costi e rischi. Il laboratorio è qui concepito come piattaforma resiliente, capace di accogliere funzioni transitorie e definitive, supportando sia l’operatività quotidiana sia l’evoluzione tecnologica e organizzativa nel lungo periodo.

Lorella Lanza di SIPMeL ha concluso il quadro con una riflessione dal punto di vista del professionista di laboratorio, focalizzandosi sull’anatomia patologica e sulla citometria a flusso. Il laboratorio è stato definito “invisibile” perché guida decisioni cliniche fondamentali senza produrre grandi volumi numerici.

Il suo intervento ha messo in luce criticità strutturali: carenza di specialisti, complessità dei campioni, difficoltà di automazione completa e problematiche legate alla conservazione a lungo termine dei materiali. Particolarmente significativa è la proposta, ancora incom-

piuta, di reti digitali di competenza, basate su digital morphology e second opinion a distanza, come risposta alla carenza di esperti. Le difficoltà informatiche, la gestione dei big data e la frammentazione dei sistemi LIS emergono come ostacoli principali. Tuttavia, il potenziale di queste reti è elevato: standardizzazione diagnostica, formazione continua, riduzione delle disuguaglianze territoriali e miglioramento complessivo della qualità del servizio.

IL LABORATORIO DI RICERCA DEL FUTURO

La terza sessione ha spostato progressivamente il focus dalla diagnostica clinica alla ricerca, alle nuove tecnologie avanzate (automazione, AI, stampa 3D) e alla biosicurezza. Tra gli highlight principali, è emerso che il laboratorio è un’infrastruttura altamente specializzata, energivora, regolata da requisiti complessi e sempre più interconnessa con la clinica, l’università e l’industria.

La riflessione sulla ricerca portata da Alberto Peano, collega dell’Azienda Ospedaliera Santa Croce e Carle di Cuneo, ha evidenziato come il laboratorio di ricerca non sia assimilabile a quello clinico, pur avendo raggiunto livelli comparabili di tecnologia e qualità. La ricerca può essere preclinica o clinica, di base o applicata, e coinvolge ospedali, IRCCS, università, enti di ricerca e industria farmaceutica, con assetti spaziali e funzionali differenti. Un tema ricorrente è la necessità di laboratori dedicati, evitando la commistione con la diagnostica clinica, sia per ragioni di sicurezza sia per efficienza. I laboratori di ricerca sono stati descritti come strutture fortemente “rifiuto-produttive” ed energivore, a causa dell’uso intensivo di DPI, reagenti, reflui liquidi e, in alcuni casi, materiali radioattivi o animali da laboratorio. Le sfide principali identificate sono: l’equilibrio tra automazione e flessibilità, considerando il rischio di obsolescenza tecnologica; la sostenibilità ambientale ed energetica; la progettazione di facility modulari e adattabili; il wellbeing degli operatori con ambienti di lavoro luminosi, confortevoli e non confinati nei livelli interrati. In questa prospettiva, è emerso il concetto di value-based research, intesa non solo come valore economico o clinico, ma come valutazione etica del rapporto tra beneficio, impatto ambientale e risorse impiegate. Francesco Contegno ha argomentato in modo sistematico il tema della biosicurezza, chiarendo come il rischio biologico rappresenti una criticità peculiare rispetto ad altri rischi (chimici o fisici): è spesso invisibile, bidirezionale e privo di soglie minime di sicurezza. È stata illustrata la classificazione degli agenti biologici in gruppi di rischio e la conseguente articolazione dei Biosafety Levels (BSL), dal livello 1 al livello 4, con un aumento progressivo della complessità architettonica, impiantistica e gestionale. Dal BSL-2, tipico di molte attività ospedaliere e di ricerca, fino ai livelli 3 e 4, la progettazione deve integrare: sistemi di contenimento basati su pressioni differenziali; filtrazione assoluta dell’aria; locali di vestizione e decontaminazione; finiture tecniche compatibili con sanificazione intensiva; formazione specifica del personale. È stato

inoltre sottolineato come il passaggio a livelli elevati di biosicurezza non comporti solo modifiche spaziali, ma anche un cambio radicale dei comportamenti operativi che richiede sia addestramento che una profonda revisione dell’organizzazione del lavoro.

L’intervento di Umberto Nocco, Presidente di AIIC, ha affrontato il laboratorio dal punto di vista dell’ingegneria clinica, mettendo in evidenza la tensione tra evoluzione tecnologica rapida e rigidità strutturale degli edifici ospedalieri.

Il laboratorio è stato descritto come una delle aree più standardizzabili dell’ospedale, poiché il “paziente” è rappresentato dal campione, ma al tempo stesso una delle più critiche in termini di tempi (turnaround time), flussi e affidabilità. Nocco ha sottolineato come la concentrazione delle attività e l’automazione abbiano migliorato produttività e standardizzazione, senza però generare i risparmi economici inizialmente attesi. Come già avvenuto per la radiologia digitale, l’investimento tecnologico viene compensato da costi strutturali, impiantistici e di gestione.

Un aspetto centrale riguarda la dimensione dei picchi di lavoro, generati da determinanti esterni al laboratorio (orari dei prelievi, trasporti), che obbligano a dimensionare macchine e spazi sul massimo carico, con un utilizzo parziale nelle restanti ore. Dal punto di vista spaziale, le apparecchiature diventano più compatte ma spesso più pesanti, ponendo problemi di portata delle strutture, soprattutto negli edifici esistenti. Emergono quindi esigenze di spazi regolari, portate elevate, impianti flessibili e predisposizioni che consentano frequenti riconfigurazioni, legate anche al rapido turnover contrattuale delle tecnologie.

Chiara Gatti e Paolo Oliva dell’Istituto Clinico Humanitas hanno portato all’attenzione il caso studio del 3D Innovation Lab di Humanitas che rappresenta una concreta anticipazione del laboratorio del futuro come piattaforma traslazionale tra clinica, ricerca, formazione e industria. Il laboratorio di stampa 3D nasce all’interno di un edificio progettato come “hangar della conoscenza”, con forte attenzione a sostenibilità, luce naturale, flessibilità e collaborazione interdisciplinare. Il laboratorio si articola in tre linee principali: clinical need, produzione di dispositivi medici personalizzati (modelli anatomici, guide chirurgiche) certificati, utilizzati direttamente in ambito clinico; education, modelli e phantom anatomici per la formazione avanzata e il training chirurgico; ricerca e biofabbricazione, sviluppo di scaffold, modelli biologici e sistemi cellularizzati per applicazioni precliniche e farmaceutiche.

Il racconto del caso clinico del cuore stampato in 3D per un intervento di autotrapianto cardiaco evidenzia il valore strategico di queste tecnologie: non solo supporto tecnico, ma abilitatore decisionale, capace di ridurre il rischio clinico e rendere possibili interventi altamente complessi. Il laboratorio diventa così un’infrastruttura certificata (ISO 13485) per la produzione di medical device custom-made, con implicazioni dirette sulla progettazione degli spazi, sui requisiti normativi e sui flussi operativi.

Nel quadro prospettico delineato, la ricerca di laboratorio è destinata a evolvere ulteriormente attraverso l’uso di digital twin, modelli virtuali avanzati che, supportati dall’AI, potrebbero ridurre in modo significativo la sperimentazione animale. Tuttavia, questa transizione richiede una grande disponibilità di dati strutturati e

digitalizzati, ambito in cui il contesto italiano presenta ancora ritardi significativi. Il laboratorio del futuro è quindi visto come un sistema data-driven, dove la qualità e la quantità dei dati diventano prerequisiti fondamentali per l’innovazione.

DATI CRITICI, SOSTENIBILITÀ,

GOVERNANCE E TERAPIE AVANZATE

La sessione conclusiva ha ampliato ulteriormente la riflessione sul laboratorio del futuro, spostando il baricentro su quattro dimensioni chiave: gestione tempestiva dell’informazione clinica, sostenibilità energetica e digitale, organizzazione e governance economica, nuove infrastrutture per le terapie avanzate. Il laboratorio emerge come nodo informativo centrale, ambiente ad alta intensità tecnologica e spazio regolato da requisiti sempre più stringenti.

L’intervento di Samuele Franchini di ASCOM ha introdotto il tema della comunicazione tempestiva dei risultati critici di laboratorio, affrontando il laboratorio come produttore di dati clinici ad alto impatto sul rischio del paziente. Il riferimento agli standard di Joint Commission sottolinea come la gestione dei valori critici non sia solo un tema tecnologico, ma un obiettivo di sicurezza internazionale. Franchini ha evidenziato i limiti della comunicazione tradizionale (telefonate, read-back manuale, documentazione cartacea), che comporta ritardi, rischio di errore e impossibilità di analisi sistematiche.

La proposta è una piattaforma integrata, capace di ricevere i dati dai sistemi di laboratorio, filtrarli, tracciarli e indirizzarli in mobilità all’operatore corretto, con logiche di escalation e presa in carico documentata. In questa visione, il laboratorio del futuro è parte di un ecosistema informativo interconnesso, che include dispositivi medici, cartelle cliniche, sistemi di chiamata infermiere e supporto decisiona-

le, riducendo il rischio clinico e migliorando la tempestività delle cure. L’intervento di Cosimo Verteramo, Deerns, ha affrontato il tema della sostenibilità nei laboratori, superando la tradizionale contrapposizione tra requisiti di contaminazione controllata ed efficienza energetica. Ha introdotto il concetto di Smart Lab, inteso non come laboratorio “automatizzato”, ma come laboratorio interconnesso e adattivo, capace di utilizzare i dati in tempo reale per modulare il proprio comportamento.

Le tecnologie abilitanti includono IoT, AI, big data, digital twin, robotica, stampa 3D e sistemi avanzati di calcolo. Verteramo ha sottolineato come questi strumenti richiedano una ridefinizione dei team di progetto, introducendo competenze nuove (data analyst, esperti di AI, cybersecurity) accanto a quelle tradizionali di ingegneria e architettura. Il laboratorio digitale permette di monitorare e adattare dinamicamente ventilazione, consumi, profili di rischio e processi operativi, migliorando sicurezza, sostenibilità e comfort. Un aspetto rilevante è stata l’introduzione di nuovi KPI che includano indicatori intangibili come benessere del personale, assenteismo e produttività, oltre ai classici parametri energetici. Il laboratorio del futuro viene quindi visto come una piattaforma evolutiva, soggetta a continue “release”, analogamente ai sistemi software.

Tiziana Lazzarotto, in rappresentanza di AMCLI e professoressa presso l’Università di Bologna, ha portato l’attenzione sul laboratorio di microbiologia clinica, evidenziandone la complessità operativa e logistica. Il caso del laboratorio metropolitano di Bologna mostra come il laboratorio del futuro debba gestire volumi elevatissimi di campioni, una grande varietà di matrici biologiche e un funzionamento continuo (H24), soprattutto dopo l’esperienza pandemica. Il tema centrale è stato la conservazione dei campioni, che dipende

dal tipo di materiale, dalla presenza o meno di terreni conservanti e dalla finalità. Emergono esigenze di spazi dedicati a diverse temperature, incubatori avanzati, celle fredde per kit diagnostici e sistemi di monitoraggio continuo (data logger, allarmi). L’automazione delle catene microbiologiche consente non solo la processazione, ma anche lo stoccaggio temporaneo intelligente dei campioni, garantendo rintracciabilità e possibilità di riesame.

Lazzarotto ha sottolineato inoltre l’importanza della compliance regolatoria e della responsabilità medico-legale del referto, che impone una progettazione accurata degli spazi di conservazione, dei flussi e delle infrastrutture IT.

Sonia Cecoli, in rappresentanza di SIAIS, ha affrontato il laboratorio del futuro dal punto di vista della governance economica e organizzativa, ribadendo che il costo non è solo economico, ma riguarda processi, qualità, sicurezza e sostenibilità nel tempo. Nei laboratori medici, il focus è sulla capacità di supportare la diagnosi clinica attraverso sistemi informativi complessi e non semplici gestionali di processo. È stata sottolineata l’importanza della programmazione a lungo termine, della scalabilità e dell’integrazione di discipline diverse (biochimica, microbiologia, genetica, anatomia patologica). Le gare in service, se ben progettate, diventano strumenti di governo e non solo di acquisto, a patto che vi sia trasparenza nei costi, monitoraggio delle performance, gestione dei tempi di fermo macchina e formazione continua del personale. Un tema ricorrente è stato quello del comfort del personale di laboratorio, spesso trascurato nonostante l’elevato carico cognitivo e ambientale (rumore, automazione pneumatica, permanenza prolungata). Il laboratorio del futuro deve quindi essere non solo efficiente, ma anche luogo di lavoro.

L’intervento conclusivo di Manuela Torti di Mangini Srl ha introdotto il tema delle Cell Factory e delle terapie avanzate (ATMP), spostando il focus dal laboratorio come luogo di analisi al laboratorio come ambiente produttivo farmaceutico. La Cell Factory nasce per garantire la produzione di terapie geniche e cellulari in condizioni GMP, dove la qualità del prodotto non può essere verificata a posteriori, ma deve essere garantita dall’intero processo e dall’ambiente. Torti ha ricostruito l’evoluzione normativa e progettuale delle Cell Factory in Italia, evidenziando come le prime esperienze abbiano richiesto profonde revisioni per soddisfare i requisiti AIFA. Oggi la progettazione richiede ambienti di Classe A in background B, sistemi di monitoraggio continuo, tracciabilità totale e layout complessi con percorsi separati per personale, materiali e prodotto. Le prospettive future includono sistemi chiusi, bioreattori robotizzati e isolatori, che potrebbero ridurre costi e complessità spaziale, ma che attualmente presentano limiti tecnologici e regolatori. Torti ha sottolineato il rischio di frammentazione degli investimenti e propone modelli hub and spoke, in cui poche Cell Factory altamente specializzate servano reti più ampie di ospedali. Il laboratorio del futuro, in questo ambito, è una sfida infrastrutturale che deve inseguire una scienza in rapidissima evoluzione.

CONSIDERAZIONI CONCLUSIVE

Il Congresso ha delineato il laboratorio del futuro come infrastruttura critica e strategica, sempre più orientata alla gestione intelligente dei dati, alla sostenibilità ambientale, alla qualità regolatoria e alla personalizzazione delle cure. Dal laboratorio diagnostico alla ricerca avanzata, fino alla produzione di terapie cellulari, emerge la necessità di ambienti flessibili, interconnessi e governabili nel tempo, capaci di adattarsi a una medicina in continua trasformazione. La sfida non è solo tecnologica, ma culturale, organizzativa ed etica. Come argomentato nelle conclusioni del Congresso, il Direttivo si è complimentato con il Comitato Scientifico per i contributi, gli interventi, e l’attenta selezione dei relatori di rilievo nazionale che hanno fatto registrare un notevole successo con ben 110 partecipanti. Tutto ciò è stato possibile grazie al supporto di diversi sponsor che hanno creduto nell’iniziativa, quali ASCOM, ATI Project e AHSI Spa, DBA Group, nonché Pineapple e USM che hanno allestito con i loro arredi il Cenobio dei Dogi. Si ringraziano inoltre i colleghi di LabTravel Mice che hanno curato gli aspetti organizzativi dell’evento e hanno permesso il successo dell’iniziativa.

Design & Health Lab, DABC, Politecnico di Milano e Segretario Generale CNETO

PLANNING SOLUTIONS

22|23|24 aprile 2026

Bologna • Quartiere Fieristico

IDROTERMOSANITARIO ELETTRICO

La soluzione completa.

La soluzione completa o erta da Comoli Ferrari nasce dall’integrazione tra elettrico e idrotermosanitario: impianti che comunicano, edi ci che diventano intelligenti, energia che si trasforma in comfort e risparmio.

Scopri il nostro ecosistema di opportunità e fai crescere il tuo business.

Esplora tutte le possibilità!

È l’innovazione che guarda lontano: dalla gestione automatica e integrata di calore e climatizzazione all’uso di energie rinnovabili, no a case e building smart.

Ogni soluzione risponde a una richiesta di well living e alle s de della transizione energetica, dalla progettazione, al supporto post-vendita.

Forniamo Soluzioni Impiantistiche integrate, accompagniamo i professionisti nella crescita del proprio business.

Progettati per le Empath Units - unità di emergenza psichiatrica - e per tutti gli ambienti di salute mentale, i nostri arredi combinano un design lineare e avvolgente a una struttura robusta e resistente, che garantisce sicurezza nel supportare i pazienti nei momenti di crisi.

I rischi di legatura e le possibilità di occultamento sono attentamente minimizzati, contribuendo così a creare ambienti confortevoli e sicuri che danno priorità all’incolumità dei pazienti e alla tranquillità del personale ospedaliero.

www.pineapplecontracts.com

Foto: Peter Brown Architectural Photography

Turn static files into dynamic content formats.

Create a flipbook