Progettare per la Sanità n. 3/23 Giugno

Page 1

Organizzazione, tecnologia, architettura

Il COFCO Center: un progetto innovativo e non convenzionale / Casa Sollievo Bimbi, hospice pediatrico aperto alle famiglie / I profondi cambiamenti indotti dalla rivoluzione digitale in sanità / La gestione delle attività di laboratorio / L’ambizioso piano di ristrutturazione del CHUV / L’evoluzione del settore edilizio ospedaliero: tra competenze tecniche e organizzative / La massima igiene nei luoghi di cura in epoca post pandemica / La condivisione dei dati punto cardine del nuovo SSN / Contro le infezioni del sito chirurgico

CNETO Centro
l’Edilizia
Ospedaliera
Nazionale per
e la Tecnica
Il Cofco Cultural & Health Center di Shanghai 23 ISSN: 17206642 03
fi Via Gennaro Righelli, 76-78 00137 Roma Tel. 06 82002732 Fax 06 82083959 www.rosiglioni.it Per
medicale
oltre 40
il
da
anni
PREZZI INFORMATIVI DELL’EDILIZIA www.build.it I PREZZARI dei Bonus edilizi

Il manuale è una guida operativa alla corretta applicazione delle norme di riferimento per le attività soggette ai controlli e alle verifiche di prevenzione incendi.

Il testo nasce con l’obiettivo di fornire al Progettista uno strumento utile alla selezione della procedura adottabile nella realizzazione di un nuovo progetto di prevenzione incendi. Per ogni attività compresa nell’Allegato I del DPR 151/2011, per la quale è possibile applicare il Codice o, in alternativa, le regole tecniche tradizionali, si sono valutate le procedure di carattere generale (RTO) impiegabili, unitamente alle norme tecniche collegate, al fine di consentire la scelta immediata della metodologia idonea e consentita dalle disposizioni normative.

Novità
www.build.it

L’importanza della rete

so proprio, ma anche le diverse declinazioni di fragilità.

Un primo e importante passo in questa direzione, guardando più specificatamente all’assistenza rivolta ai pazienti cronici, è quello di ricercare forme di integrazione e sinergia tra differenti possibili declinazioni di residenzialità volte a tutelare il valore sociale della comunità al fine di ridurre il senso di isolamento degli ospiti.

pluralità di risposte organiche in cui modulare l’intensità assistenziale in relazione al bisogno, offrendo ambienti dalle caratteristiche friendly e accoglienti oltre che volti a contrastare lo stigma e l’isolamento sociale.

Il Cofco Cultural & Health Center di Shanghai Il Cofco Cultural & Health Center i

Abbiamo sempre più coscienza che le risposte adeguate ad assicurare il continuum assistenziale ai cittadini vadano ricercate in una prospettiva di rete clinica integrata costituita sia dagli ospedali che dalla compagine territoriale dei centri di prevenzione, diagnosi, controlli, riabilitazione e gestione della cronicità.

Questo significa coinvolgere diverse risposte e un’offerta articolata e adeguata ai reali bisogni che non contempli solo la malattia in sen-

Se guardiamo all’intero comparto sociosanitario si può certamente individuare nello spettro dei bisogni molto ampio la maggiore criticità organizzativa e realizzativa: accanto al paziente cronico autosufficiente esiste quello non autosufficiente; esistono varie forme di patologie e disabilità che si contraddistinguono per differenti livelli di gravità e potenzialità di recupero; vi sono famiglie che possono prendersi in carico le persone al proprio domicilio e altre no. È questa molteplicità di situazioni che necessariamente implica il superamento della frammentazione e standardizzazione dell’offerta affinché sia garantita una

È un dato di fatto, per esempio, che la maggior parte delle strutture residenziali per anziani riflettano un po’ quella mentalità che, interpretando la vecchiaia come una patologia, ha sostanzialmente articolato gli ambienti e i layout organizzativi mutuando il modello gestionale dallo spazio ospedaliero.

Pianificare correttamente le scelte strategiche di un sistema sanitario significa al tempo stesso guardare all’offerta per acuti e specialistica così come alla qualità dei servizi che l’intera rete territoriale è in grado di offrire, compreso il mondo della fragilità; un mondo poliedrico e costituito da una grande popolazione in continua crescita che merita un’attenzione progettuale che vada oltre agli schemi consolidati e aspiri all’innovazione.

Margherita Carabillò

Direttore Responsabile

Giorgio Albonetti

Direttore Scientifico

Margherita Carabillò

Coordinamento Editoriale

Chiara Scelsi - c.scelsi@lswr.it

Redazione

Fabio Chiavieri redazione@progettareperlasanita.it

Comitato scientifico

S. Brusaferro, S. Capolongo, M. Carabillò, Marco Gola, J. Guercini, K. Kob, Maurizio Mauri, F. S. Mennini, C. Nicora, D. Pedrini, G.Polifrone

Comitato di redazione

Architettura: Design LAB, DABC Politecnico di Milano

Impiantistica: Francesco Ruggiero

Information Technoloy: Fabrizio Massimo Ferrara

Innovazione digitale: Paolo Bertini

Organo ufficiale del C.N.E.T.O.: Centro Nazionale per l’Edilizia e la Tecnica Ospedaliera

Organizzazione e management:

Federico Lega

Servizi e facility management: Arturo Zenorini

Tecnologie per l’Architettura: Rosa Romano, Maria Chiara Torricelli

Hanno collaborato a questo numero:

S. Arruzzoli, A. Bertella, S. Capolongo,

M. Cusmai, V. De Simone, F. A. Fabbri, F. Lega, E. Maggioni, M. Pedrini, M. C. Torricelli, A. Zenorini.

Stampa & Produzione

Antonio Iovene - 3491811231

a.iovene@lswr.it

Pubblicità

Costantino Cialfi c.cialfi@lswr.it Tel. 346 6705086

Archivio immagini Shutterstock

Traffico Ornella Foletti ornella.foletti@quine.it Tel. 3427968897

Abbonamenti www.quine.it abbonamenti.quine@lswr.it - Tel. 02 864105

Costo copia singola: euro 2,50

abbonamento annuale Italia euro 40,00 abbonamento annuale Europa euro 60,00

Stampa

TIPOLITOGRAFIAPAGANI s.r.l. via Adua, 6 25050 - Passirano - (Brescia) - Italy)

©2023 Quine Business Publisher

Progettare per la sanità www.progettareperlasanita.it

Reg. Trib. Milano n. 767 del 09/11/1998 Iscrizione al ROC n. 12191 del 29.10.2005

Tutti gli articoli pubblicati su Progettare per la sanità sono redatti sotto la responsabilità degli Autori. La pubblicazione o la ristampa degli articoli deve essere autorizzata per iscritto dall’editore. Ai sensi dell’art. 13 del Regolamento Europeo per la Protezione dei Dati Personali 679/2016 di seguito GDPR, i dati di tutti lettori saranno trattati sia manualmente, sia con strumenti informatici e saranno utilizzati per l’invio di questa e di altre pubblicazioni e di materiale informativo e promozionale. Le modalità di trattamento saranno conformi a quanto previsto dagli art. 5-6-7 del GDPR. I dati potranno essere comunicati a soggetti con i quali Quine Srl intrattiene rapporti contrattuali necessari per l’invio delle copie della rivista. Il titolare del trattamento dei dati è Quine Srl, Via Spadolini 7, 20141 Milano, al quale il lettore si potrà rivolgere per chiedere l’aggiornamento, l’integrazione, la cancellazione e ogni altra operazionedi cui agli art. 15-21 del GDPR.

Testata Associata

3 EDITORIALE giugno 2023

Sommario

IL COFCO CULTURAL & HEALTH CENTER

Il Centro Culturale e Sanitario COFCO di Shanghai offre spazi pubblici e un parco lungo il canale Punan per promuovere l’interazione tra gli abitanti del nuovo polo residenziale circostante. Con un’architettura accogliente, il centro è anche un luogo di incontro e di condivisione che può contribuire a migliorare la salute dei cittadini di Stefano Capolongo e Stefano Arruzzoli

LA CASA SOLLIEVO BIMBI 20

RICERCA CLINICA E ASSISTENZA SANITARIA NELL’ERA DELLA RIVOLUZIONE DIGITALE

Dalla medicina personalizzata all’intelligenza artificiale, dall’analisi dell’exposoma al metaverso esposti dai maggiori esperti italiani del settore i profondi cambiamenti indotti nella pratica medica di Arturo Zenorini

12
28 4 SOMMARIO giugno 2023

MAKE OR BUY PER IL LABORATORIO

Riflessioni attorno alle gestione delle attività del Laboratorio in service tra necessità e opportunità di Federico Lega, Elena Maggioni, Michele Cusmai

LA SFIDA DEL SETTORE DELLE COSTRUZIONI FRA NORME E INNOVAZIONI TECNOLOGICHE

L’evoluzione digitale dell’intero comparto industriale delle costruzioni necessità di un approccio che integri la tecnologia con un evoluzione in termini di competenze e revisione degli assetti organizzativi supportata dalla evoluzione tecnologica. In questo senso sia a livello cogente che volontario le norme ci supportano

La facciata del nuovo blocco operatorio transitorio ed endoscopia

NEL LUOGHI DI CURA

Il tema della massima igiene nei luoghi di cura in epoca post pandemica è stato ampiamente dibattuto nell’incontro proposto al convegno digitale Cleaningpiù promosso dalla rivista

Dimensione Pulito

Le aziende presenti in questo numero

Bft pag. 6 www.bft-automation.com/it

Carlo Bianchi IV cop. www.carlobianchi.com/it/

di Maurizio Pedrini

LA RIVOLUZIONE DELLA CARTELLA DIGITALE AMBIENTALE

Le ICA continuano a rappresentare un problema molto serio in ogni parte del mondo e costituiscono statisticamente la complicanza più frequente in ospedale. Tra queste, le infezioni del sito chirurgico sono le più ricorrenti

di Federico Alfredo Fabbri, Valentina De Simone

Rosiglioni II cop. www.rosiglioni.it

B. B. Impianti pag. 59 www.nicfa.eu

Valsir pag. 60 www.valsir.it

32
41 44 58
News 6 RUBRICHE
5 SOMMARIO giugno 2023
LA RIQUALIFICAZIONE DEL CENTRO OSPEDALIERO UNIVERSITARIO DEL VAUD
36
di Maria Chiara Torricelli

BFT PRESENTA LA VASTA GAMMA DI AUTOMAZIONI ADATTA AD AMBIENTI OSPEDALIERI E SANITARI

Dove c’è un accesso da automatizzare, Bft ha una soluzione sicura, innovativa e adatta a tutte le esigenze. Bft, multinazionale italiana con sede a Schio (VI), fa parte del Gruppo SOMFY ed è presente con decine di filiali e oltre 530 distributori in oltre 120 Paesi.

Bft propone una gamma di soluzioni sicure e innovative con caratteristiche uniche ed esclusive. In particolare, le soluzioni che Bft ha ideato nell’ambito del controllo degli accessi pedonali e veicolari si adattano a ogni contesto installativo, sono affidabili e pensate per durare nel tempo.

Gli ingressi automatici pedonali di Bft sono adatti agli ambienti sanitari (ospedali, cliniche, ambulatori) perché garantiscono il rispetto dei protocolli igienici e aiutano a prevenire il rischio di contaminazione: le automazioni per porte pedonali Bft possono essere equipaggiate con sistemi di azionamento “senza contatto” o con pulsanti a sfioramento che utilizzano la tecnologia radar ed attivare l’apertura della porta con il semplice avvicinamento della mano.

La gestione degli accessi veicolari e della sosta degli automezzi nelle strutture sanitarie è un aspetto critico sia per gli operatori sanitari che per i pazienti ed i visitatori.

La gamma di barriere stradali Bft rappresenta la soluzione ottimale per la gestione degli accessi alle aree di parcheggio o la regolamentazione degli accessi ad aree riservate. Inoltre, la gamma di dissuasori di passaggio e di sosta risponde alle necessità legate alla gestione degli accessi dei veicoli nelle aree pedonali, nei parcheggi e nelle aree dedicate ai mezzi di soccorso per regolamentarne la sosta o il passaggio.

I sistemi di parcheggio a pagamento di Bft si prestano a qualsiasi contesto dove la gestione della sosta degli automezzi riveste un aspetto importante per l’utenza. Le soluzioni Bft consentono alle strutture sanitarie di mettere a reddito le superfici dedicate alla sosta degli automezzi, di regolamentarne l’accesso e l’utilizzo o di preservarne l’occupazione non autorizzata, aumentando contestualmente il livello di servizio reso all’utenza che si rivolge alla struttura sanitaria. L’operatività delle barriere stradali, dei dissuasori di sosta e passaggio e dei sistemi di parcheggio a pagamento è assicurata da tecnologie esclusive che ne consentono il controllo anche da remoto, agevolando così il lavoro di chi si occupa di proteggere gli edifici e la gestione dell’accesso in aree riservate.

Per informazioni: www.bft-automation.com

giugno 2023 6 NEWS
█ Dissuasori Bft █ Gli ingressi automatici pedonali di Bft sono adatti agli ambienti sanitari

SISTEMA DI MISURA MULTIPUNTO CERTIFICATO MID

Socomec, specialista nel monitoraggio energetico, annuncia che il suo sistema DIRIS Digiware è ora disponibile anche in versione MID (Measuring Instrument Directive) e potrà quindi essere impiegato nelle applicazioni che richiedono la verifica fiscale dell’energia effettivamente consumata, come richiesto dalla direttiva MID.

Entrando nel dettaglio dell’offerta, i moduli di misura certificati MID sono i DIRIS Digiware: I-30; I-35; I-60; I-61; S-130; S-135. La Direttiva sugli strumenti di misura è una Direttiva UE del Parlamento europeo e del Consiglio, datata 26 febbraio 2014 (2014/32/UE), che si applica agli strumenti di misura quali contatori di acqua, gas, energia elettrica, energia termica, nonché pesi o quantità di liquidi utilizzati nelle transazioni commerciali. Inoltre, un allegato specifico della Direttiva (MI-003) è dedicato ai contatori di energia elettrica attiva (kWh). In generale, la Direttiva MID definisce un quadro giuridico per garantire la protezione dei consumatori e la correttezza del commercio, stabilendo che gli strumenti di misura debbano essere valutati da un organismo notificato.

Socomec fornisce una gamma di strumenti di misura certificati MID sia con inserzione diretta che tramite sensori amperometrici. La gamma si compone di contatori tradizionali COUNTIS e analizzatori DIRIS in formato modulare per il monitoraggio di un

singolo carico e dei moduli DIRIS Digiware S-13xMID, I-3xMID e I-6xMID certificati in Classe C, ideali per misurare con precisione il consumo di più carichi elettrici. La presenza di un unico display semplifica la lettura di tutte le misure.

Per garantire l’integrità del sistema e una precisione di misura senza precedenti, i moduli di misura dell’energia DIRIS Digiware MID sono dotati di caratteristiche innovative che vanno oltre le pratiche di mercato convenzionali.

IN RICORDO DI ANTONIO CICCHETTI

Lo scorso maggio è scomparso Antonio Cicchetti, Presidente del CNETO dal 1992 al 2004. Nel suo lungo incarico ha contribuito significativamente allo sviluppo dell’associazione promuovendone le relazioni internazionali attraverso l’organizzazione di quattro Conferenze Europee sull’Ospedale. Forte della sua competenza ed esperienza nel settore organizzativo-gestionale, Cicchetti ha stimolato l’esigenza di affrontare la tematica delle progettazioni in ambito sanitario in maniera integrata, con l’obbiet-

tivo di coinvolgere nel processo progettuale tutti i diversi aspetti, sia architettonico-funzionali e tecnologici, sia quelli di tipo organizzativo e gestionale.

“Per numerosi anni ho avuto l’opportunità, oltre di esserne amico, di collaborare con lui, sia come segretario generale e presidente dell’associazione, sia a livello professionale, apprezzandone la competenza e la capacità manageriale” ha dichiarato Giuseppe Manara.

La redazione di Progettare per la Sanità esprime le più sentite condoglianze all’Associazione e ai famigliari.

giugno 2023 7 NEWS

PNRR: IL PUNTO AGENAS SULLE CASE DI COMUNITÀ

Le regioni sono in ritardo sulla riforma della medicina del territorio. Case ed ospedali di comunità e centrali operative “Cot” non si vedono ancora. Dopo i rilievi della Corte dei Conti sui ritardi nell’applicare il Piano Nazionale di Ripresa e Resilienza, a certificarlo è l’Agenzia dei Servizi sanitari regionali (Agenas) in audizione alla Commissione Affari Sociali del Senato. Al 31 dicembre 2022 era operativo l’8,5% del totale delle 1430 nuove case di comunità previste. Le “case” attivate a tutto il 2022 in base ai contratti istituzionali di sviluppo (Cis) per sviluppare il Piano erano 122 su 1430, di quelle previste in singole regioni sulla base di accordi di programma con il ministero della salute erano invece operative 111 su 195; solo in Lombardia, Emilia Romagna, Piemonte, Toscana e Molise risultavano attive strutture previste dai piani operativi regionali attivati con i fondi PNRR e solo in Lombardia Piemonte ed Umbria risultavano case previste da accordi di programma che utilizzano altre fonti di finanziamento. A fine 2022 inoltre era stato attivato solo il 7,1% degli ospedali di comunità previsti dai piani operativi regionali redatti in base al PNRR e il 27,8% di quelli previsti da accordi sottoscritti al di fuori del PNRR grazie al supporto di fondi regionali e fondi europei di sviluppo regionale: fin qui, per quel che possono, rispondono “presente” Lombardia, EmiliaRomagna, Veneto, Liguria ma anche Molise e Calabria. Quanto alle centrali operative territoriali Cot, siamo molto indietro e al 2022 solo il 2,3% di quelle previste da finanziamenti PNRR era attivo mentre era attiva una Cot su quattro di quelle finanziate dalle regioni fuori dal PNRR. I dati sono estratti da una relazione conoscitiva dell’Agenzia sull’ammodernamento del patrimonio edilizio che illustra lo stato d’attuazione della Missione 6 PNRR: un tema che è centrale per il Servizio sanitario a partire dalla legge 502 del 1992 quando furono stanziati 30 mila miliardi di vecchie lire, pari a 15,6 miliardi di euro per ristrutturare edifici ospedalieri ed ambulatoriali ed ammodernare il parco macchine (quest’ultimo ora oggetto di nuovo finanziamento nel PNRR per 4,05 miliardi di euro di fondi dell’Unione

Europea). L’indagine racconta come di questi 15,6 miliardi, poco più di 2 siano stati destinati entro il 1996, poco più di 6 tra il ’96 e il 2006, 1,2 in funzione del patto salute 2006-09, 2 miliardi in base alle finanziarie tra il 2008 e il 2010 e 5 miliardi erogati dalle Finanziarie tra 2019 e 2022 oltre a 113 milioni “extra” elargiti per ristrutturare gli ospedali psichiatrici giudiziari. A livello nazionale, ricorda Agenas, mettiamo “a terra” queste erogazioni sulla base di accordi di programma tra ministero della Salute e singole regioni: accordi che passano al vaglio operativo del Nucleo Verifica Investimenti Pubblici del Ministero stesso, poi al setaccio del ministero dell’Economia e infine nel dibattito in conferenza Stato Regioni che li ratifica. Agenas sottolinea però che nell’iter post-ratifica iniziano problemi frutto di errori anteriori e successivi, in particolare – al di là di imprevisti contingenti come i contrasti con i comuni, l’eventuale scarso sostegno della regione all’Asl, il cambio di manager regionali o d’azienda sanitaria – il vero problema sarebbe il fatto che quando è sottoscritto l’accordo la progettazione non è ancora in uno stato avanzato. Il binomio regione-azienda crederebbe poco in quello che fa. Altri problemi riguardano la fase attuativa, con imprevisti quali l’aumento dei costi degli interventi, l’emergere di nuovi o diversi fabbisogni, le varianti in corso d’opera, i trasferimenti momentanei di attività sanitarie strategiche in siti che… non sono ancora stati trovati. Infine, ci possono essere difficoltà in sede di rendicontazione. Con il PNRR allo strumento degli accordi di programma si è sostituito il Contratto istituzionale di sviluppo, ma gli iter non sono cambiati troppo e i problemi sono più o meno gli stessi. In quanto ente di supporto alle regioni, Agenas nel documento si propone come operatore di snodo nel monitoraggio e nella rendicontazione, che relazioni semestralmente al Ministero sullo stato di attuazione dei progetti, in un quadro dove il governo centrale in caso di inerzia regionale – o di altre pubbliche amministrazioni titolate all’accesso ad accordi di programma e CIS – possa esercitare anche poteri sostitutivi nell’interesse della popolazione.

L’ACCESSIBILITÀ DELL’ASSISTENZA SANITARIA E IL BENESSERE DEI PROFESSIONISTI IN EUROPA

Secondo un recente rapporto pubblicato dal World Economic Forum, Global Health and Healthcare Strategic Outlook, la carenza di operatori sanitari potrebbe salire a 10 milioni entro la fine del decennio, incidendo sull’accesso alle cure e aggravando le disuguaglianze nella fornitura di assistenza sanitaria.

In particolare l’OMS ha rilevato che il personale sanitario e assistenziale europeo sta invecchiando e in nessun altro Paese la maturazione dei

professionisti del settore medico è così pressante come in Italia, dove oltre il 56% dei medici ha 55 anni o più.

Dato questo scenario, la tecnologia avrà un ruolo importante nel modo in cui i Paesi riusciranno a far fronte alla carenza di personale sanitario, con innovazioni come le piattaforme sanitarie, l’automazione delle attività amministrative e la fornitura di servizi di teleassistenza che riducono l’onere per gli operatori sanitari.

giugno 2023 8 NEWS

L’assistenza a distanza sarà fondamentale tanto per i pazienti quanto per gli operatori sanitari: ai primi, consentendo di accedere all’assistenza sanitaria comodamente da casa; ed ai secondi di accedere alle cartelle cliniche dei pazienti e di fornire assistenza in tutto il mondo, con una teleassistenza che va oltre le consultazioni online, espandendosi in diagnosi a domicilio, sistemi di somministrazione di farmaci a domicilio e dispositivi di monitoraggio dei pazienti, che contribuiscono a migliorare gli standard di cura.

Aurora teleQ contribuisce a migliorare l’ambiente di lavoro degli operatori sanitari fornendo un sistema per gestire tutti i contatti con i pazienti e l’accesso alla loro storia clinica attraverso un’unica interfaccia utente, indipendentemente dal metodo di contatto preferito dal paziente. Il sistema strutturato di prenotazione delle chiamate consente agli operatori sanitari, spesso alle prese con condizioni di lavoro difficili, di pianificare in anticipo i propri impegni e di ridurre lo stress telefonico. Di conseguenza, il personale ha giornate lavorative più ordinate e i pazienti sanno quando aspettarsi una chiamata, aumentando così il tempo a disposizione per ogni paziente e migliorando la qualità delle cure. Tutto ciò non sarebbe tuttavia possibile senza l’interconnettività Equinix. I data center e i point of presence di Equinix, che collegano in modo sicuro i fornitori di servizi di telecomunicazione regionali con la piattaforma Equinix, consentono ad Aurora Innovation di offrire un’esperienza di telesoccorso estremamente affidabile a pazienti e operatori sanitari,

█ L’assistenza a distanza sarà fondamentale tanto per i pazienti quanto per gli operatori sanitari fornendo i requisiti di prevedibilità, resilienza, standardizzazione, scalabilità e sicurezza necessari per soddisfare le esigenze attuali e future dell’assistenza sanitaria.

L’ASSOBIOTEC AWARD 2023 A ILARIA CAPUA

È stato assegnato a Ilaria Capua, senior fellow of Global Health, Johns Hopkins University Sais Europe, l’Assobiotec Award 2023 di Assobiotec-Federchimica. Il riconoscimento, consegnato a Milano in occasione dell’evento ‹Costruire l’Italia di domani: la strada del biotech’, dal 2008 viene attribuito a personalità e/o enti che si sono particolarmente distinti nella promozione dell’innovazione, della ricerca scientifica e del trasferimento tecnologico. Il premio è andato alla Capua “per il suo appassionato contributo al progresso della scienza e della conoscenza, per il suo impegno nel voler far comprendere la profonda connessione fra la salute del pianeta e di tutti i suoi abitanti, per aver scelto l’Italia come Paese dal quale affrontare la sfida del nuovo paradigma della salute circolare. Per il suo sguardo attento, sempre volto al futuro”. A consegnare il riconoscimento è stato il presidente di Assobiotec, Fabrizio Greco. L’incontro è stato organizzato in occasione dell’Assemblea pubblica di Assobiotec, al quale è intervenuto anche il ministro delle Imprese e del Made in Italy, Adolfo Urso, che ha annunciato come il ministero stia lavorando a un piano industriale per rendere l’Italia un centro di eccellenza nelle biotecnologie. Durante i lavori si sono alternati sul palco rappresentanti istituzionali e delle imprese, scienziati, addetti ai lavori e pazienti. Tutti

hanno ribadito il potenziale e il valore delle biotecnologie: asset strategico per l’Italia di domani, opportunità di sviluppo della conoscenza, dell’economia e del benessere, ma anche strumento indispensabile per l’autonomia strategica dell’Italia e dell’Europa. Formazione, ricerca, sviluppo delle start-up, accesso all’innovazione e investimenti nel settore sono stati i temi approfonditi nel corso dell’evento, dal quale è arrivato un appello unanime: l’Italia del biotech, nonostante l’eccellente ricerca e le tante pubblicazioni, non riesce ad essere attrattiva e competitiva in uno scenario internazionale; al Paese serve una comune visione sull’importanza delle biotecnologie e sulla consapevolezza che continuare con lo status-quo lascerà l’Italia ai margini della competizione globale.

giugno 2023 9 NEWS

PROMS E PREMS, CONDIVIDERE IL VALORE DELLE CURE: AL VIA IL CORSO FAD EDRA

Le pressioni sul sistema salute crescono nei paesi cosiddetti avanzati in maniera incessante, causa incremento delle disponibilità terapeutiche, incremento della domanda salute e risorse cronicamente insufficienti. Non tanto perché gli investimenti diminuiscano. Piuttosto, è vero il contrario: la spesa sanitaria è in crescita costante ma diminuiscono la soddisfazione di esercenti, professionisti, pazienti e cittadini.

Si tratta di un paradosso senza precedenti nella storia dei sistemi sanitari, che pone l’obbligo di interrogarsi in maniera multidisciplinare su cosa sia il valore oggi in sanità, e rispondere concretamente su come produrlo.

Il valore prodotto dagli interventi sanitari (si tratti di interventi singoli o percorsi diagnostico-terapeutici integrati) deve essere misurato attraverso adeguati indicatori: di efficacia clinica, di sostenibilità economica, di utilità dal punto di vista dei diretti interessati - i pazienti.

Il corso Edra “PROMs e PREMs: condividere il valore delle cure” vuole aiutare medici e professionisti della salute a conoscere gli strumenti scientifici “Patient-reported outcomes e patientreported experiences” per utilizzarli con l’obiettivo di integrare alle tradizionali valutazioni anche la prospettiva dei pazienti, e come tali offrire un punto di vista privilegiato sugli effettivi be

nefici guadagnati o meno dai trattamenti ricevuti, non in senso tecnico, quanto rispetto a ciò che conta di più nella loro vita ordinaria: mantenimento delle funzioni rilevanti e qualità della vita. Strutturato in modalità Fad asincrona e diviso in due moduli, il corso fornirà, con il superamento di un test di verifica, 4 crediti Ecm.

Docente e responsabile scientifico del corso è Federico Pennestrì, Postdoctoral Researcher, Istituto Ortopedico Galeazzi, University Contract Professor, Università Vita-Salute San Raffaele. Nel 2017 Dottore di Ricerca presso Università Vita-Salute San Raffaele ed Eupolis Lombardia, con una tesi sulla riforma del sistema sociosanitario lombardo. Federico Pennestrì svolge attività di ricerca, didattica e divulgazione in politiche sanitarie, patient-reported experiences, HTA, innovazione, management sanitario, bioetica, storia della medicina e antropologia della salute.

Fra le molteplici pubblicazioni scientifiche nazionali e internazionali, oltre al primo libro italiano pubblicato sui Patient-Reported Outcome Measurements (Edra, Milano, 2022), si segnalano “Eppur si muore. Vivere di più o vivere meglio?” (Mursia, Mila-

giugno 2023 10 NEWS

VIAGGIO STUDIO CNETO: DANIMARCA E SVEZIA SOTTO LA LENTE

Dal 27 settembre al 1° ottobre 2023, la delegazione CNETO composta da una trentina di partecipanti visiterà alcune eccellenza ospedaliere di Danimarca e Svezia. Durante il viaggio, infatti, i rappresentanti dell’associazione avranno l’opportunità di vedere e studiare ospedali e progetti relativi a strutture dislocate tra Copenaghen, Malmö e Göteborg.

Partendo dal territorio danese, il primo progetto studiato sarà quello dello Zealand University Hospital di KØge. Tale progetto prevede l’ampliamento dell’attuale struttura ospedaliera che sarà portata dagli attuali 64 mila metri quadrati e 296 posti letto ai futuri 185 mila metri quadrati e 789 posti letto. La nuova struttura accoglierà tutti i reparti di cura, il pronto soccorso/emergenza e ricerca della regione ed è concepita per diventare l’ospedale più grande dell’area tra i maggiori del Nord Europa. Nella capitale danese verranno visitati il Copenaghen Cancer Center e il Ringshospitalet. Il centro sanitario per malati di cancro è stato realizzato nel quinquennio 2005-2009. Come i monasteri, questo ospedale ha un cortile interno dove sedersi in silenzio e meditare. Altre attività includono gruppi di pazienti, psicologi, gruppi per parenti e gruppo di consulenza gestiti dalla Danish Cancer Society. La Casa offre anche attività come l’arrampicata e l’allenamento.

Il Ringshospitalet segue alcuni principi guida di progettazione che sono il benessere e la guarigione del paziente, i bisogni degli operatori sanitari e l’adattabilità futura delle funzioni ospedaliere.

La nuova estensione dell’Ala Nord mira a favorire il recupero di ogni paziente ottimizzando l’efficienza e la funzionalità del personale ospedaliero.

Come da programma il gruppo CNETO si sposterà poi a Malmö per visitare lo Skåne University Hospital. Si tratta di un campus in fase di modernizzazione perfornire ai pazienti cure altamente specializzate ora e in futuro. Il campus comprenderà un nuovo edificio ospedaliero con un totale di 240 camere singole, reparti, 23 moderne sale operatorie e un’unità di trattamento sterile con robotica.

A Göteborg, invece, il viaggio proseguirà con la visita Quenn Silvia Children’s Hospital.

Caratterizzato dalla tipica architettura sanitaria suburbana omogenea degli anni ‘70, il grande campus dell’Östra Hospital è un misto di edifici alti e bassi. Il Queen Silvia Children’s Hospital è un primo passo nella trasformazione in un campus ospedaliero più urbano con flussi di lavoro migliorati che rispondono alle esigenze collaborative della moderna assistenza sanitaria. Sempre a Göteborg è prevista la visita del Carlanderska Hospital. Questo ospedale fornisce assistenza sanitaria specialistica a pazienti pubblici e privati. Un’estensione necessaria ospita principalmente funzioni ad alta intensità tecnologica come:

█ chirurgia; █ raggiX; █ sterilizzazione; ma aggiunge anche nuovi ingressi, strutture per il personale e un ristorante. Facendo eco ai piani originali, il nuovo design del Carlanderska Hospital rispetta l’atmosfera e l’espressione ben note dell’edificio, ma mostra il suo carattere unico.

Il programma prevede poi la visita del Södra Älvsborg Sjukhus (SÄS) a Boras- Göteborg. La clinica psichiatrica di questo ospedale è un ambiente curativo che protegge l’integrità del paziente e un luogo di lavoro rilassante per il personale. Adottando un approccio progettuale umanista che incoraggia l’interazione con il luogo e la natura, la clinica offre un rifugio sicuro per il recupero del paziente, dei parenti e del personale.

Il viaggio studio si concluderà con la visita del Chalmers University of Technology a Göteborg. La struttura è a forma di cilindro a sei piani che appare come composto da grandi ruote dentate d’ampiezza differente.

L’energia ricavata dai pannelli fotovoltaici inseriti in corrispondenza dell’ultimo piano dell’edificio viene impiegata per soddisfare i consumi della struttura. La copertura ospita inoltre un impianto solare termico, progettato per produrre acqua calda. Al fine di ottenere il maggiore isolamento termico possibile, la struttura dell’edificio è stata realizzata con pannelli prefabbricati in calcestruzzo. Nel complesso, lo stabile impiega meno di 60 kWh per metro quadrato.

Per informazioni sul programma completo: segreteria@cneto.it https://www.cneto.it/viaggi-studio

giugno 2023 11 NEWS
█ Chalmers University of Technology a Göteborg

Il Cofco Cultural & Health Center

Il Centro Culturale e Sanitario COFCO di Shanghai offre spazi pubblici e un parco lungo il canale Punan per promuovere l’interazione tra gli abitanti del nuovo polo residenziale circostante. Con un’architettura accogliente, il centro è anche un luogo di incontro e di condivisione che può contribuire a migliorare la salute dei cittadini

di Stefano Capolongo e Stefano Arruzzoli 12 ARCHITETTURA giugno 2023

█ Vista a volo d’uccello sull’area di progetto, che mostra la relazione tra il COFCO Cultural & Health Center e il contesto urbano e fluviale. © AOGVision, su gentile concessione di Steven Holl Architects

DATI TECNICI

Luogo: Shanghai (Cina)

Cliente: COFCO (Chinese Food Processing Company)

Superficie lorda complessiva: 7.520 mq circa (6.030 mq per il Centro Culturale e 1.490 mq per il Centro della Salute)

Committente: Chinese Food Processing Company (COFCO)

Anno di progettazione: 2016

Anni di realizzazione: 2017-2021

Anno di inaugurazione: 2021

PROGETTISTI

Progettista principale: Steven Holl Architects.

Capi progetto: Roberto Bannura (partner responsabile), Noah Yaffe (consulente di progetto), Xi Chen e Sihuan Jin (progettisti), Zhu Zhu (Assistente alla progettazione).

Team di Progettazione: Wenying Sun, Ruoyu Wei, Dimitra Tsachrelia, Yuanchu Yi, Okki Berendschot, Pu Yun, Elise Riley, Lydia Liu, Tsung-Yen Hsieh, ShihHsueh Wang, Michael Haddy, Yi Ren, Xu Zhang, Lidong Sun, Peter Chang, Yuchun Lin, Peilu Chen, Hong Ching Lee.

Architetti Associati: East China Architectural Design & Research Institute.

Progetto Strutturale: East China Architectural Design & Research Institute.

Progetto Impiantistico: East China Architectural Design & Research Institute.

Progetto delle facciate: Institute Winda Façade Nan Feng.

Lighting Design: L’Observatoire International.

13 ARCHITETTURA giugno 2023

Il Centro Culturale e Sanitario COFCO di Shanghai è un progetto dello studio Steven Holl Architects, situato lungo il canale Punan nel Distretto di Fengxian della città di Shanghai, in Cina. Infatti, il noto studio di progettazione è stato incaricato dalla Chinese Food Processing Company (COFCO) nell’estate del 2016 per progettare un centro sanitario e culturale.

Il progetto, inaugurato nel 2021, sorge in un’area caratterizzata dalla presenza di edifici residenziali uniformi a blocchi; è stato concepito come un “condensatore sociale”, con il fine di agevolare l’integrazione della comunità tramite un nuovo complesso pubblico, nel quale erogare sia servizi socioculturali, che prestazioni sanitarie mirate per la popolazione di riferimento

CONCEPT E PRINCIPI PROGETTUALI

Come Steven Holl afferma: “mentre i complessi residenziali adiacenti appaiono ripetitivi, l’intervento è caratterizzato da ariosità ed

energia spaziale, e invita l’intera comunità ad essere parte attiva e propositiva delle attività”. Il polo sanitario e il centro culturale sono costruzioni in calcestruzzo esoscheletrico che plasmano uno spazio pubblico centrale che si estende all’interno degli edifici grazie a tagli sottrattivi nella struttura.

Infatti, il progetto è definito da due corpi di fabbrica di nuova realizzazione, connessi da un’area verde circostante. Il concept cita fortemente l’opera letteraria “Nuvole e Orologi” del filosofo inglese Karl R. Popper: il grande parco urbano che circonda i due edifici segue una trama organizzata in cerchi che richiamano i quadranti degli orologi, mentre le due architetture rimandano alle mutevoli forme delle nuvole, attraverso giochi di pieni e vuoti dettati dalle loro aperture irregolari.

Un progetto di paesaggio studiato dove gli spazi aperti vengono antropizzati nella forma grazie ad un disegno pulito dalle geometrie ben riconoscibili, e nella sostanza invece risultano rispettosi del contesto fluviale.

█ Vista dalla piazza centrale del nuovo Cultural Center. © AOGVision, su gentile concessione di Steven Holl Architects █ Disegno assonometrico dell’area di progetto, che mostra la traduzione del concetto “Nuvole e Orologi”. © Steven Holl, su gentile concessione di Steven Holl Architects
14 ARCHITETTURA giugno 2023
█ Disegno del layout funzionale degli spazi aperti, che richiama il concetto “Nuvole e Orologi” © Steven Holl, su gentile concessione di Steven Holl Architects

La struttura dei due corpi di fabbrica è invece realizzata in muri portanti in cemento armato, che i progettisti hanno deciso di lasciare a vista anche in facciata. Infatti, originariamente i prospetti dovevano essere intonacati del colore bianco, ma i fori generati dalle casseforme sul cemento accentuavano ulteriormente il concept dell’edificio-nuvola, convincendo così Steven Holl a non applicare ulteriori finiture sul materiale.

Inoltre, questo senso di leggerezza è enfatizzato dalle numerose superfici vetrate poste al piano terra, che fanno sembrare gli edifici come nuvole sospese e fluttuanti.

PROGETTO FUNZIONALE

Gli edifici presentano una forma planimetrica irregolare, scolpita anche dalle forme curvilinee degli spazi aperti circostanti, ma entrambi condividono lo stesso principio distributivo, dove gli ambienti interni ruotano attorno ad un impianto di risalita centrale, caratterizzato da un grande vano scale di forma circolare.

█ Dettaglio della facciata nord in cemento a vista del Cultural Center. © AOGVision, su gentile concessione di Steven Holl Architects
15 ARCHITETTURA giugno 2023
█ Piano terra del Cultural Center, dedicato alle funzioni pubbliche e a spazi per la comunità. © Steven Holl Architects, su gentile concessione di Steven Holl Architects.

Proprio questo elemento di connessione verticale conferisce agli spazi interni una grande luminosità attraverso il grande lucernario posto in sommità, che consente l’ingresso di molta luce naturale. Per questo motivo è chiamata dai progettisti “Corte di Luce”.

La strategia progettuale ha optato per la separazione delle finalità funzionali dei due edifici: il polo culturale e il polo sanitario. Il polo culturale, di circa 6.030 mq, ospita al suo interno diverse funzioni come aree ristoro, svago, spazi espositivi, una libreria, una palestra e spazi per le attività comuni. L’edificio si articola su quattro piani fuori terra e uno interrato. Si può accedere al Centro Culturale sia dal piano terra che dal piano primo, attraverso una rampa che collega l’edificio con la piazza esterna.

Nello specifico le funzioni si suddividono in tale maniera:

█ piano interrato: servizi logistici e aree tecniche;

█ piano terra: lobby, servizi generali e spazi per la comunità;

█ piano primo: biblioteca, spazi espositivi, auditorium e spazi pc;

█ piano secondo: area amministrativa e area gioco (biliardo, ping-pong, badminton);

█ piano terzo: palestra e area formazione.

Differentemente il polo sanitario, con una superficie di circa 1.490 mq e sviluppato su tre piani fuori terra e uno interrato, offre diversi servizi, tra cui terapie fisiche, farmacia, ultrasuonoterapia e sale RX. Al suo interno sono presenti anche servizi amministrativi e di supporto, come un asilo nido e aule per la formazione.

█ Vista esterna sulla “Corte di Luce” del Cultural Center. © AOGVision, su gentile concessione di Steven Holl Architects █ Piano terra del Health Center. © Steven Holl Architects, su gentile concessione di Steven Holl Architects █ Pianta piano secondo del Health Center. © Steven Holl Architects, su gentile concessione di Steven Holl Architects
16 ARCHITETTURA giugno 2023

Nello specifico le funzioni si suddividono in:

█ piano interrato: servizi logistici e depositi, aree tecniche e archivi sanitari;

█ piano terra: lobby e servizi generali;

█ piano primo: area ambulatoriale con le rispettive aree di attesa; █ piano secondo: aree dedicate al personale sanitario (uffici, aree meeting, ecc.).

La relazione fra i due edifici è affidata allo spazio verde che intercorre e le loro numerose aperture, specialmente al piano terra, favoriscono il rapporto con l’esterno, generando una forte connessione tra architettura e paesaggio.

I progettisti hanno voluto enfatizzare questa commistione tra architettura e natura anche attraverso l’utilizzo di tetti verdi in sedum, così da mitigare la percezione dei due edifici quando osservati dagli alti blocchi residenziali circostanti. Oltre all’applicazione di superfici verdi in copertura, sono numerose le altre tecnologie adoperate per conseguire gli obiettivi legati alla sostenibilità ambientale degli edifici. Infatti, le strategie adottate dallo studio per questo progetto includono sistemi di riscaldamento e raffreddamento centralizzati, monitoraggio della CO2, accumulo termico, riciclo delle acque grigie e dell’acqua piovana.

Inoltre, sebbene il COFCO Center sia stato progettato prima della pandemia di COVID-19, riesce comunque a rispondere

efficacemente alle nuove esigenze igienico-sanitarie emerse a seguito della sua esplosione. In particolare, lo spazio verde favorisce la gestione dei flussi, evitando la congestione delle persone negli ambienti interni degli edifici, nei quali è comunque

█ Vista interna della “Corte di Luce” del Health Center. © AOGVision, su gentile concessione di Steven Holl Architects
17 ARCHITETTURA giugno 2023
█ Sezione longitudinale del Cultural Center. © Steven Holl Architects, su gentile concessione di Steven Holl Architects

garantito un ottimo livello di salubrità dell’aria, tramite le grandi superfici vetrate apribili che consentono costanti e adeguati ricambi d’aria.

SALUTE E COMUNITÀ

Il COFCO Center ha accolto una delle sfide più importanti che il mondo della sanità sta affrontando, (soprattutto dopo la recente esperienza pandemica di COVID-19), ovvero il rapporto tra salute e comunità. Infatti, le strutture locali rappresentano il primo punto di accesso ai servizi sanitari per i cittadini, e la loro efficacia a rispondere alle esigenze sociali e di salute delle comunità di riferimento consente agli ospedali generali di sgravarsi di quei numerosi accessi impropri che hanno messo in crisi i dipartimenti di emergenza durante l’emergenza pandemica. Questo ruolo di primo accesso alle cure è efficacemente assolto dal COFCO Cultural & Health Center in quanto, offrendo alla popolazione non solo le prestazioni sanitarie di cui necessita, ma

anche una vasta serie di servizi al cittadino, il polo è riuscito ad imporsi concretamente come nodo strategico e attrattivo per la comunità. Come sostiene Steven Holl, “lavorare sull’architettura per la cultura e la salute è un impegno sociale, molto necessario nel momento in cui ci troviamo poiché continuiamo a sentire gli impatti globali della pandemia”.

Inoltre, l’architettura del centro rappresenta un approccio innovativo al tema: la scelta di separare le funzioni socioculturali e sanitarie in due edifici separati non è convenzionale, e permette anche di valorizzare l’area verde di pertinenza, che così acquisisce un ruolo cruciale per il coinvolgimento dei cittadini.

CONCLUSIONI

Attualmente i progettisti di tutto il mondo stanno ripensando i futuri centri sanitari della medicina territoriale. Il COFCO Center offre diversi spunti di riflessione per affrontare il tema del rapporto tra salute e comunità, in particolare sull’importanza degli spazi aperti per la definizione degli ambienti comunitari e sulla relazione tra spazi destinati a servizi socioculturali e sanitari. Rapportato al contesto italiano, nel quale recentemente è stata avviata l’implementazione delle nuove strutture per la sanità territoriale (Case e Ospedali di Comunità e Centrali Operative Territoriali), il COFCO Center può essere un riferimento da prendere in esame, quanto meno nei suoi intenti progettuali. Infatti, sebbene la maggior parte delle Case e degli Ospedali di Comunità verrà collocata all’interno di edifici esistenti (rimanendone dunque vincolata alle loro caratteristiche tipologiche), per le strutture di nuova realizzazione, il COFCO Center è un progetto virtuoso a cui riferirsi, non solo per la qualità architettonica espressa, ma soprattutto per il modo innovativo e non convenzionale con cui ha saputo trattare il rapporto tra spazi per la comunità e salute.

Le informazioni utili per la scrittura dell’articolo sono state tratte da:

█ descrizioni del progetto fornito da Steven Holl Architects;

█ disamina tecnica dei disegni di progetto;

█ portali di architettura accessibili dal web.

Si ringraziano per la realizzazione dell’articolo i colleghi di Steven Holl Architects, e in particolare Marisa Espe, per la condivisione delle immagini e disegni pubblicati in questo articolo e Marco Gola per il coordinamento della pubblicazione.

STEFANO CAPOLONGO

STEFANO ARRUZZOLI

18 ARCHITETTURA giugno 2023
█ Pianta piano terzo del Health Center. © Steven Holl Architects, su gentile concessione di Steven Holl Architects Design & Health Lab, Dip. Architettura, ingegneria delle costruzioni e ambiente costruito, Politecnico di Milano. Gli autori

Il testo è un importante contributo allo sviluppo e alla diffusione delle norme di sicurezza antincendio, fornendo gli elementi indispensabili all’approfondimento delle conoscenze tecniche, delle dinamiche e delle variabili di cui si deve tenere conto per una corretta progettazione antincendio. Come utile guida, attraverso elaborati grafici, circolari di chiarimento, esempi procedurali, permette a progettisti e costruttori di trarre indicazioni utili per progettare correttamente l’impianto di prevenzione incendi.

Parte del testo è dedicata ad una dettagliata descrizione degli aspetti tecnici della Fire Safety Engineering, nuovo approccio alla progettazione.

Novità
www.build.it

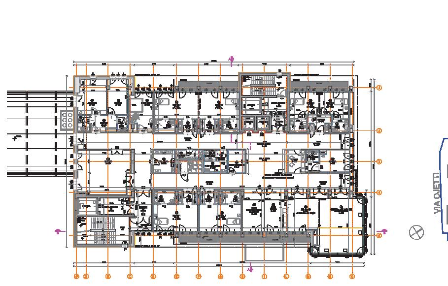
La Casa Sollievo Bimbi

Nell’ambito delle attività di cui si occupa Vidas da oltre quarant’anni, è nata Casa Sollievo Bimbi, un edificio destinato a hospice pediatrico aperto alle famiglie per aiutarle a prendersi cura dei loro figli affetti da malattie inguaribili

di Margherita Carabillò
20 ARCHITETTURA giugno 2023

DATI TECNICI

Committente: Fondazione Vidas

Luogo: Milano

Data realizzazione: 2016 – 2019

Superficie totale: 7.970 mq

PROGETTAZIONE

Architettura e coordinamento: Arch. Valentino Benati

Strutture: Ing. Danilo Campagna (MSC Associati)

Impianti: Ing. Gianpiero Bozino (B.R.E. Engineering)

21 ARCHITETTURA giugno 2023

Esistono edifici, quali gli ospedali, che sono difficili da progettare perché richiedono la conoscenza approfondita di molteplici e articolati requisiti organizzativi, strutturali, impiantistici che caratterizzano le diverse aree funzionali e servizi (tra loro strettamente integrati e spesso complementari) e soprattutto perché coinvolgono un sapere multidisciplinare in continuo aggiornamento; esistono altri edifici in cui la complessità del progetto risiede nel cercare di fornire una risposta efficace alla gestione del paziente secondo un approccio olistico e non “meccanicistico”, orientato alla persona in quanto unione di mente, corpo, ambiente e società. Questo significa che le

risposte ai reali bisogni possono essere molteplici, differenti e articolate, implicando un sostegno alle diverse declinazioni di fragilità. Se guardiamo all’ambito della presa in carico dei pazienti ad alta complessità assistenziale, la maggiore criticità organizzativa e realizzativa si può certamente individuare proprio nell’ampio spettro dei bisogni derivanti dalla gravità della condizione clinica, a cui si aggiungono variabili sociali e psicologiche. In più, vi sono pazienti che si contraddistinguono per differenti livelli di autonomia e vi sono famiglie che possono prendersi in carico le persone al proprio domicilio e altre no.

22 ARCHITETTURA giugno 2023
█ Planimetria generale dell'area

In questo panorama estremamente composito e articolato si inserisce l’attività di Vidas che dal 1982 difende il diritto delle persone con malattie inguaribili a vivere con dignità fino all’ultimo istante e offre un servizio gratuito di cure palliative finalizzato al sollievo dalla sofferenza, al sostegno alla famiglia e all’accompagnamento di fine vita.

LA MISSION

Con questi obiettivi è nata Casa Sollievo Bimbi, inaugurata nel marzo 2019 e finanziata con i contributi privati di ben 21 mila donatori: una struttura non ancora presente in Lombardia e di cui si sentiva fortemente il bisogno dal momento che le richieste di cure palliative nell’intera Regione coinvolge ogni anno ben 1.200 minori su un totale di 30 mila circa in tutta Italia. Il progetto rivolto all’assistenza di quei pazienti che per motivi clinici o socio-ambientali non possono essere assistiti a domicilio parte nel 2006, anno in cui la Fondazione Vidas realizza l’Hospice Casa Vidas. Edificio destinato ad accogliere 20 posti letto per adulti oltre ad aree per le attività diurne, ambulatoriali e attività formative destinate a operatori e volontari, che affianca l’attività svolta dalle équipe domiciliari. Dieci anni dopo, nel 2016, la stessa Fondazione avvia il percorso di realizzazione di un secondo lotto destinato a hospice pediatrico, aperto alle famiglie per aiutarle a prendersi cura dei loro figli affetti da malattie inguaribili garantendo servizi di abilitazione (per far acquisire a mamme e papà le competenze indispensabili per assistere i loro figli a casa), rivalutazione clinica (per monitorare sintomi di difficile controllo o monitorare parametri clinici), sollievo (per dare un periodo di riposo a genitori tanto provati da un’assistenza costante), accompagnamento (quando il tempo per stare insieme è breve).

sollievo bimbi aiuta le famiglie a prendersi cura dei loro bimbi affetti da malattie inguaribili

IN DIFESA DELLA DIGNITÀ DELLA PERSONA

VIDAS difende il diritto del malato a vivere anche gli ultimi momenti di vita con dignità. È un’associazione di volontariato laica, fondata da Giovanna Cavazzoni a Milano nel 1982. Offre assistenza sociosanitaria completa e gratuita ai malati con patologie inguaribili a domicilio e nell’hospice Casa Vidas: degenza e day-hospice. Un servizio garantito grazie all’intervento di proprie équipe sociosanitarie, formate da figure professionali tutte specializzate in cure palliative, affiancate da volontari selezionati. Un percorso di quasi quarant’anni accanto a chi soffre e che ha raggiunto oltre 39.000 persone: anziani, adulti e dal 2015 anche bambini. Per loro nel 2019 è stata inaugurata Casa Sollievo Bimbi, primo hospice pediatrico della Lombardia per l’accoglienza di

minori gravemente malati e il sostegno alle famiglie. L’attività di formazione per operatori e di sensibilizzazione rivolta alla cittadinanza accompagnano da sempre quella assistenziale.

Dati pazienti 0-18 anni Nel 2022, l’équipe pediatrica VIDAS ha assistito 94 pazienti minori di età. L’età media è di 7-8 anni e il 70% di loro è affetto da patologie non oncologiche. Le giornate di assistenza sono state: 13.302 a domicilio, con una media di 36 pazienti al giorno; 1.408 in degenza e 4.851 in day hospice.

Per informazioni: www.vidas.it

Casa
giugno 2023
█ L'area reception e lavoro infermieri
23 ARCHITETTURA

Il recente edificio, progettato all’insegna della sostenibilità e del basso impatto energetico, si articola in un piano interrato e cinque piani fuori terra: circa 8.000 metri quadrati complessivi dedicati all’assistenza completa e gratuita dei piccoli pazienti e delle loro famiglie.

IL PROGETTO FUNZIONALE

Al piano interrato sono stati ubicati i servizi generali e la morgue, comunicante attraverso un ascensore-montalettighe, con il passaggio carrabile coperto che garantisce la necessaria riservatezza nel momento del commiato. Dal piano terreno, in cui sono collocate parte delle attività amministrative e tre camere ad uso foresteria, si accede alla struttura attraverso l’ampio e luminoso atrio di ingresso pubblico sul quale prospetta l’area reception.

Il secondo e il quinto piano sono destinati a uffici, spazi per la formazione, centro di ricerca scientifica sui bambini e sugli adolescenti malati e alla grande sala per conferenze.

Il terzo e il quarto piano sono quelli dedicati al percorso di supporto agli ospiti e alle loro famiglie: al livello inferiore, gli spazi per le attività diurne, con gli ambulatori, gli studi medici, la palestra e le aree per lo svago e il gioco; al livello superiore, sei mini-appartamenti per il ricovero in degenza, fortemente connotati dall’aspetto confortevole e domestico.

24 ARCHITETTURA giugno 2023
█ Alcuni spazi per le attività diurne █ Pianta piano terreno
25 giugno 2023
█ Pianta piano quarto in cui sono ubicate le camere di degenza

Sebbene l’impianto planimetrico sia stato mutuato da un tipico schema ospedaliero a “corpo quintuplo” al fine di promuovere l’efficientamento dei processi assistenziali, gli interni sono stati trattati con cromie vivaci e allegre, con arredi di tipo alberghiero e non sanitario, con decorazioni e maquettes che danno vita a spazi molto gradevoli e dal carattere friendly Ogni alloggio, attrezzato per l’ospitalità del minore e della famiglia laddove la complessità delle cure o la necessità di un tempo di sollievo rendano opportuno il ricovero in struttura, è stato pensato per offrire le comodità di una casa potendo disporre di un servizio igienico privato, di armadiature per gli effetti personali e di un divano letto matrimoniale per i genitori o i familiari del paziente che possono accedere alla struttura 24 ore su 24. Attraverso l’installazione di pareti mobili è stato creato uno spazio flessibile che può mettere in comunicazione due alloggi contigui in caso di necessità.

Per favorire la sensazione di appartenenza, i pazienti possono allestire la propria stanza con oggetti personali, allo scopo di personalizzarla e non farli sentire estranei.

Gli spazi comuni sono a completa disposizione dei pazienti e sono organizzati in modo tale da soddisfare le esigenze di gioco e di relazione dei bambini (anche attraverso attività di pet therapy, musicoterapia e teatro), così come quelle di intimità e di socializzazione dei genitori.

L'ARCHITETTURA

Da un punto di vista compositivo e architettonico il nuovo edificio è posto in prosecuzione di quello esistente a cui si collega

tramite il corpo che ospita la sala da pranzo con la cucina e si armonizza ad esso attraverso l’utilizzo di elementi verticali e orizzontali in mattoni a vista.

I volumi vetrati dei soggiorni di piano dalle generose altezze, oltre ad alleggerire il complessivo effetto materico, offrono luce e ampie vedute verso l’esterno.

L’obiettivo di realizzare una struttura in grado di rispondere ai più aggiornati criteri di risparmio energetico e di benessere ambientale è stato perseguito attraverso l’utilizzo di sistemi impiantistici finalizzati alla produzione propria di energia, il ricorso a pannelli solari fotovoltaici e all’impianto di cogenerazione per lo sfruttamento della temperatura dell’acqua di falda nonché grazie alla scelta di un rivestimento esterno altamente performante con facciata ventilata in materiale ceramico e laterizio faccia a vista.

Un virtuoso esempio di inserimento rispettoso e rigenerante nei tessuti urbani attraverso scelte compositive che ben si integrano nel contesto e un’attenzione ai dettagli che non lascia alcuna scelta progettuale al caso: un risultato evidente che fa percepire quanto sia importante progettare e costruire luoghi che siano anche in grado di offrire servizi indispensabili alla collettività.

L’autrice

MARGHERITA CARABILLÒ

Architetto, Vicepresidente CNETO e direttrice della rivista Progettare per la Sanità

26 ARCHITETTURA giugno 2023
█ Sezione e prospetto sud-est dell'hospice adulti e del corpo di collegamento

I PREZZARI DEI BONUS EDILIZI

NUOVA EDIZIONE 1° SEMESTRE 2023

Rilevazione prezzi MARZO 2023

Più di 15.000 prezzi del mercato nazionale dei cantieri di nuova costruzione, suddivisi in costi di manodopera, noli-costi orari, materiali, opere compiute e sicurezza. In particolare, sono riportate voci e prezzi per scavi e trasporti, opere provvisionali, pali e trivellazioni, opere in vetrocemento, massetti, sottofondi, vespai, drenaggi, opere murarie, condotti e canne fumarie, tetti e manti di copertura, impermeabilizzazioni, pavimenti, opere in pietra da taglio, rivestimenti, intonaci, controsoffitti e pareti divisorie, serramenti in legno e in pvc, opere in vetro e materie plastiche, opere da pittore, opere stradali e di giardinaggio, assistenze murarie, rilievi e prove di laboratorio, opere di sicurezza.

L’edizione del 1° semestre 2023 riporta l’aggiornamento ordinario delle tabelle della manodopera di tutte le categorie, suddivise per ciascuna provincia italiana, e dei prezzi dei materiali rispetto ai listini di febbraio 2023. Contiene, anche, la revisione generale dei prezzi dei noli e di leganti, malte e calcestruzzi. Di particolare rilievo la revisione effettuata sui costi delle opere murarie che utilizzano nuovi laterizi.

www.build.it

Ricerca clinica e assistenza sanitaria nell’era della rivoluzione digitale

Dalla medicina personalizzata all’intelligenza artificiale, dall’analisi dell’exposoma al metaverso: esposti dai maggiori esperti italiani del settore i profondi cambiamenti introdotti nella pratica medica

di Arturo Zenorini
28 INNOVAZIONE
giugno 2023
DIGITALE

Medicina personalizzata, fascicolo sanitario 2.0, impiego dell’intelligenza artificiale in diagnostica e ricerca, prospettive aperte dal metaverso: questi i temi principali affrontati in due sessioni dell’incontro online “La rivoluzione digitale nella sanità”, nell’ambito di “Innovazione Più - Il Convegno digitale sulle innovazioni informatiche”, organizzato da Quine, parte di LSWR Group. Ecco una sintesi dei punti salienti emersi nel corso delle relazioni – moderate da Susanna Garofalo, Project director Edra, e Ludovico Baldessin, CEO Edra – nel quale il filo conduttore era rappresentato dalla possibilità, grazie agli avanzamenti informatici e tecnologici, di porre realmente il paziente al centro delle cure.

MEDICINA PERSONALIZZATA GRAZIE

AL FASCICOLO SANITARIO 2.0

Gianluca Polifrone, Direttore Ufficio di Presidenza e Segretario Consiglio di Amministrazione AIFA (Agenzia Italiana del Farmaco), si è soffermato sul futuro prossimo del fascicolo sanitario elettronico (FSE). «In Italia» ha spiegato «da un punto di vista dell’aggregazione dei dati sanitari dei pazienti ci troviamo in una situazione molto eterogenea. Il SSN, cioè, non è dotato di un’infrastruttura unica su tutto il territorio nazionale ma esiste una serie di silos verticali che, dal punto di vista del linguaggio informatico, non si parlano tra loro». Per rendere traguardabile la medicina personalizzata, sottolinea, occorre un uso intelligente dei dati, da aggregare in un FSE. «La prima norma che ha previsto l’istituzione di questo strumento risale al 2012» ricorda Polifrone. Da allora, nello sviluppo dello strumento si è perso tempo prezioso, anche per via della pandemia di Covid-19 che, peraltro, ha evidenziato l’assoluta necessità di un SSN basato sulla rivoluzione informatica. «Il Fascicolo Sanitario 2.0, ossia la rivisitazione normativa e attuativa del nuovo strumento, non può prescindere da una responsabilità gestionale in capo alle singole strutture ospedaliere» afferma Polifrone. In particolare, specifica, l’innovazione in Sanità riguarda due macroaree: la re-ingegnerizzazione dei sistemi organizzativi e dei processi all’interno del SSN, con un CUP nazionale e un insieme di professionalità in grado di sovrapporre il dato amministrativo a quello sanitario, e la ‘digital health’ – ovvero la medicina fatta di dati digitali – non fornita intrinsecamente dal sistema sanitario pubblico ma basata sulle opportunità tecnologiche offerte dalla R&S del mercato».

LA RIVOLUZIONE IN DIABETOLOGIA: NUOVI DISPOSITIVI E INTELLIGENZA ARTIFICIALE

«Da molto tempo l'area diabetologica si è digitalizzata e abbiamo la possibilità di usufruire di molti dispositivi avanzati per il monitoraggio della glicemia» afferma la dr.ssa Nicoletta Musacchio,

Past President dell’Associazione Medici Diabetologi (AMD). «La digitalizzazione è un dovere in ambito sanitario, soprattutto perché – nell’era dei big data – avere la possibilità di analizzare migliaia di informazioni significa probabilmente trovare anche nuova conoscenza, nella consapevolezza che il dato di per sé non costituisce conoscenza ma lo diventa quando viene interpretato in modo corretto». L’AMD, ricorda Musacchio, già da due decenni ha adottato una cartella clinica digitale che copre la maggior parte dei servizi di diabetologia sul territorio nazionale, continuando da allora a raccogliere in un vasto database i dati archiviati, i qual sono analizzati anche per effettuare azioni di correzione della pratica clinica tramite un sistema di qualità interno. Con l’intento di valutare uno strumento che potesse migliorare questo sistema, AMD si è rivolta all’intelligenza artificiale, in particolare al sistema Clearbox AI, in grado di colloquiare continuamente con l’esperto che gli pone delle domande. La dott.ssa Musacchio dichiara che AMD ha effettuato sperimentazioni per verificare l’affidabilità degli algoritmi di machine learning, riportando risultati molto confortanti in termini di supporto al clinico in termini di interpretazione dei dati, predizione dell’inerzia terapeutica e sviluppo di simulazioni per orientare le scelte di trattamento. «L’obiettivo principale» conclude «è la possibilità di utilizzare banche dati integrate che, tra l’altro, inciderebbero molto positivamente anche sulla riduzione dei costi».

DALLA FISICA ALLA MEDICINA, L’ANALISI DELL’EXPOSOMA

Il prof. Paolo Marchetti, Ordinario di Oncologia Medica all’Università “La Sapienza” di Roma, direttore scientifico dell’IRCCS-IDI e Presidente della Fondazione per la Medicina Personalizzata, ha ricordato come, negli ultimi 20 anni, il prof. Giorgio Parisi, premio Nobel per la fisica, ha messo a punto la teoria degli equilibri multipli, riuscendo a trasferire la fisica teorica nella pratica clinica quotidiana, evidenziando la possibilità di mettere insieme informa-

29 INNOVAZIONE DIGITALE giugno 2023

zioni disparate per fornire una risposta olistica e mostrando come l’exposoma [mappa dettagliata di tutte le componenti ambientali cui un individuo viene esposto nel corso della sua vita, evidenziata con uno screening di migliaia di geni collegabili a determinate malattie, NdR] sia realmente misurabile e integrabile nella pratica clinica. «È una prospettiva in cui – grazie alla collaborazione con il CINECA, l’Istituto Nazionale di Fisica Nucleare, la Fondazione per la Medicina Personalizzata, l’Istituto Superiore di Sanità oltre che l’Università La Sapienza – stiamo costruendo un nuovo progetto mirato a integrare queste informazioni verificandole con metodologie di analisi che non hanno nulla a che vedere con la statistica convenzionale» spiega Marchetti. «Occorre capire che la ricerca di una profilazione ancora più estesa con test che evidenzino una mutazione in un numero sempre più elevato di geni è poco rilevante se commisurata al modello istologico convenzionale in oncologia, dove si cercano fattori predittivi di prognosi o di risposta a un farmaco. L’attuale modello in sviluppo non ha bisogno di profilazioni ed è accompagnato dal modello agnostico mediante il quale la valutazione si estende non a un tipo di tumore ma a tutti i tumori che hanno una determinata alterazione. Inoltre, vi sono le grandi opportunità del modello mutazionale nel quale non si cercano più bersagli per trovare un maggior numero possibile di farmaci bensì più mutazioni per comprendere come mai, a parità di bersaglio, non si ha una risposta o si ottiene una risposta maggiore» spesso a causa di interazioni tra farmaci. Per rendere queste conoscenze sistematiche e con ricadute pratiche cliniche «insieme alla fondazione ReS (Ricerca e Salute) presieduta da Nello Martini abbiamo iniziato lo studio che ha come definizione

il Virtual Consultation System dei Molecular Tumor Board, con la raccolta prospettica di tutte le informazioni come dati sorgente» spiega Marchetti. «Oggi siamo alle soglie di uno studio successivo nel quale tutto questo verrà distribuito a 60 centri in 13 Regioni nel nostro paese per offrire realmente la medicina personalizzata a tutti». Per cogliere queste opportunità, avverte Marchetti, è però prioritaria «l’acquisizione automatica di queste informazioni, senza implementazione di nuovi database perché ciò toglierebbe tempo da dedicare al paziente e aumenterebbe la possibilità di commettere errori. Servono quindi strumenti di routine in grado di leggere i dati dell’ospedale nella loro forma sorgente e di trasferirli nella piattaforma».

INTELLIGENZA ARTIFICIALE E INTELLIGENZA

EMOTIVA TRA CLINICA E RICERCA

L’uso dell’intelligenza artificiale in diagnostica e ricerca è stato il tema affrontato da Gabriella Pravettoni, Direttrice del Dipartimento di Psico-oncologia dell’Istituto Europeo Oncologico di Milano, e docente di Psicologia Cognitiva e delle Decisioni all’Università Statale di Milano. Pravettoni ha inizialmente descritto le diverse reazioni dei pazienti e dei loro familiari alle innovazioni informatiche in medicina e, in particolare, al ricorso all'intelligenza artificiale. «In prima battuta tutti sono molto positivi quando si parla di innovazione ma in realtà ci sono vari ostacoli da superare o comunque comportamenti diversi da un punto di vista psicologico che vengono assunti per integrare un’innovazione nel modo migliore» spiega la specialista. «Molte persone in effetti ricorrono a sistemi innovativi ma, se si va ad analizzarne l’uso, tali sistemi sono impiegati per il 10-15% rispetto alle loro potenzialità. Il tema centrale, infatti, è proprio quello dell’avversione al cambiamento in presenza di un comportamento consolidato: questo riguarda in particolare i pazienti con maggiori difficoltà verso l’innovazione tecnologica ma altre volte riguarda il personale ospedaliero che fa molta fatica ad abbandonare l’impiego di alcune strumentazioni». Per superare questo problema, «dovremmo condividere maggiormente con i pazienti i vantaggi in diagnostica derivanti dall’uso dell’intelligenza artificiale, informandoli meglio sulla logica del loro impiego, per far crescere la consapevolezza di quali sono i valori aggiunti, come la possibilità di prevenire errori».

INTELLIGENZA ARTIFICIALE, DALLA TEORIA ALLA PRATICA

Imprenditore che ha lavorato per decenni nel settore della salute, Marco Grespigna, Fondatore e CEO di Think Fwd Group, sostiene che «in tutte le iniziative che riguardano l’intelligenza artificiale nel mondo della medicina emergono due elementi molto

30 INNOVAZIONE DIGITALE giugno 2023

chiari: una è la percezione dei possibili rischi derivanti dal suo utilizzo, l’altra è la netta evidenza che questa tecnologia potrà offrire grandi vantaggi allo sviluppo e all’innovazione. La sfida del futuro sarà quella di mediare tra questi due punti di vista». Rispetto ai paesi anglosassoni, fa notare, nel contesto italiano vi sono differenti opportunità di sviluppo e applicazione dell’intelligenza artificiale. «Innanzitutto, vi è un tema culturale, quale la propensione al rischio, ossia di all'affrontare sfide per cercare di trovare soluzioni migliorative: questo atteggiamento in Italia è tendenzialmente più basso. La seconda è un’attenzione normativa molto più forte. Le due cose unite normalmente creano una maggiore resistenza al cambiamento». Peraltro, la fatica al cambiamento, specifica Grespigna, se da un lato è culturale, dall’altro è legata anche agli stessi operatori e non solo dovuta alle Istituzioni in sé. «Questo limite può essere superato anche attraverso un sistema di formazione e supporto agli operatori affinché possano più semplicemente capire l’importanza dell’utilizzo della tecnologia». Occorre poi sfatare il mito che l’intelligenza artificiale sia qualcosa di estremamente complesso, costoso e che possa essere applicata di conseguenza solo a grandi progetti e soluzioni, afferma. «Infatti, l’intelligenza artificiale è utile a risolvere anche piccoli problemi, semplificandoli in modo molto rapido. Un esempio è il riconoscimento visivo facciale dei pazienti che consente a questi ultimi di entrare all’interno di una struttura ospedaliera essendo immediatamente riconosciuti all’accesso e di essere indirizzati in modo automatico e veloce al proprio reparto o al medico di riferimento tramite un sistema di intelligenza artificiale, consultabile sullo smartphone o su una struttura posizionata nella reception». Per il futuro è possibile attendersi una sempre maggiore abitudine a pensare alla tecnologia come a uno strumento che migliora la qualità di vita dell’individuo e spesso lo solleva dalla parte più ripetitiva e meccanica della propria attività lavorativa.

LA RICERCA CLINICA NEL METAVERSO, SCENARI IN DIVENIRE

Il dott. Gualberto Gussoni, direttore scientifico del Centro Studi FADOI (Federazione delle Associazioni dei Dirigenti Ospedalieri Internisti) ha offerto alcune riflessioni sulle potenzialità del metaverso nella ricerca clinica. «Il tema della virtualizzazione, ovvero del creare una dimensione immersiva, è propria del metaverso che Matthew Ball ha definito come un network interoperabile di mondi virtuali creati in 3D, cioè un vasto ambiente digitale nel quale è possibile spostarsi senza soluzione di continuità da una piattaforma 3D all’altra portando con sé i propri Avatar e i propri beni digitali». Difficile immaginare quali possano essere le applicazioni in futuro per la ricerca clinica, secondo Gussoni. «Forse il maggiore impatto a livello generale e sociale è quello di rendere

questo mondo come una sorta di internet 2.0 o di World Wide Web immersivo in 3D, ovvero una realtà virtuale che permette di spostarsi tra diverse piattaforme con la facilità con la quale oggi ci si muove nel web attraverso i browser» afferma. «Ottimizzando ciò che già la rete Internet ci consente di fare supportandoci in termini di ricerca, il metaverso potrebbe essere utile nel trasferimento dei dati, nella comunicazione medico-paziente, nella raccolta del consenso informato, finanche all’esecuzione delle procedure di studio. Inoltre, potrebbero cambiare in senso migliorativo – in termini di modalità più interattive e immersive –- tutte quelle operazioni che si possono raccogliere sotto il cappello della telemedicina e che sono sempre più spesso utilizzate anche nella ricerca clinica, come nel modello di studio clinico decentralizzato che si sta progressivamente affermando». La digitalizzazione introduce potenzialità ma anche criticità sulla tracciabilità e sulla sicurezza dei dati, con la nascita del concetto di blockchain, ricorda il direttore del Centro Studi FADOI: in questo senso, secondo Gussoni, lo stesso metaverso potrebbe ar compiere un salto evolutivo e garantire, o comunque offrire, maggiore efficienza e fiducia perché i dati sono accurati e tempestivi, condivisi solo attraverso un network di membri autorizzati in cui tutti i trasferimenti di informazione sono convalidati e i loro riferimenti immutabili perché registrati in modo permanente. «La medicina interna tradizionalmente non è mai stata vissuta nei decenni precedenti come una disciplina tecnologica rispetto ad altre che per loro natura lo sono sicuramente. Questo però sta cambiando e si avrà, anche per gli internisti, un’introduzione e una sempre maggiore diffusione di questi strumenti nell’ambito dei percorsi diagnostici clinico-assistenziali».

31 INNOVAZIONE DIGITALE giugno 2023

Make or Buy per il laboratorio

Riflessioni attorno alla gestione delle attività del Laboratorio in service tra necessità e opportunità

Dopo oltre dieci anni di consolidamento, ridimensionamento, efficientamento e riconfigurazione, i tempi sono maturi per una riflessione approfondita su cosa davvero sia avvenuto, quali miti persistono, quali modelli e paradigmi debbano essere presi a riferimento per il futuro della medicina di laboratorio e del laboratorio di analisi dell’azienda sanitaria pubblica e privata.

Vi sono diverse dinamiche che negli ultimi anni hanno cambiato profondamente e che potrebbero ulteriormente modificare l’assetto operativo e di governo del laboratorio, nonché il suo ruolo nel sistema aziendale. Le stesse dinamiche portano alla riflessione se l'esternalizzazione della funzione operativa del laboratorio, mantenendo quella di governo dello stesso in capo all'azienda

di Federico Lega, Elena Maggioni, Michele Cusmai
32 ORGANIZZAZIONE giugno 2023

sanitaria, possa essere una strada percorribile e vantaggiosa, che permetta da un lato l’ottenimento di benefici connessi all’efficienza e continuità dei processi di funzionamento, dall’altro di liberare tempo ai professionisti da dedicare a ruoli e scopi più valoriali. In questo articolo proveremo ad illustrare prima le principali dinamiche che caratterizzano il laboratorio moderno, per poi discuteremo delle possibili collegate ragioni e vantaggi per cui valutare la scelta tra il make or buy.

LE DINAMICHE ORGANIZZATIVE E LE SFIDE DEL LABORATORIO MODERNO

Consolidamenti

A partire dai primi anni 2000 si è intensificata la tendenza nel SSN a ricercare soluzioni organizzative e logistiche per i laboratori di analisi che favorissero:

█ la crescita di scala dimensionale del singolo laboratorio, con riferimento ai volumi (soprattutto per ridurre il costo per test in un’ottica di economie di scala);

█ la conseguente concentrazione intra-aziendale e interaziendale delle strutture, con creazione di mega-laboratori che servono aree metropolitane/provinciali e spesso più aziende

█ la creazione di reti hub&spokes, con i mega laboratori centrali che guidano reti con (pochi) laboratori decentrati e point of care.

La realizzazione dei “mega-laboratori” è stata possibile anche per mezzo dello sviluppo tecnologico, informatico e logistico che consente oggi di gestire con una adeguata tempestività la domanda e refertazione degli esami e il trasporto a distanza dei campioni. Questo crescente gigantismo pone sfide organizzative di coordinamento, continuità e sistematicità dei processi produttivi di magnitudine superiore a quanto mai registrato fino a ora.

Ci sono più laboratori nel laboratorio

La crescita dimensionale e la concentrazione sono indirizzi che possono sposarsi bene con il laboratorio che eroghi solamente la tradizionale e limitata tipologia di esami convenzionali (laboratorio di I livello). Ma ormai il “laboratorio” consta spesso in una rete di laboratori con una strategia di ridefinizione di vocazioni dei singoli nodi tra esami ad alta diffusione e quelli più specialistici, complessi, a volumi contenuti: due modelli di laboratorio che convivono e che potrebbero avere soluzioni gestionali e operative diverse per ottimizzarne il funzionamento. Per erogare le routine a volumi alti e senza limiti, in modo affidabile, continuo e

33 ORGANIZZAZIONE giugno 2023

diffuso, è necessario ribadire l’importanza di massima attenzione sulla qualità dei processi produttivi del laboratorio, a iniziare dalla qualità del campione biologico (modalità di prelievo, manipolazione e trasporto del campione), dalla accuratezza analitica e fino alla qualità della comunicazione del referto (tempestività, appropriatezza degli intervalli di riferimento/livelli decisionali, controllo dell’avvenuta “cattura” dell’informazione da parte del mondo clinico).

Non solo. Occorre concentrare l’alta complessità laddove le competenze e la volume-based quality fanno la differenza.

Rapporto tra -omiche e laboratorio

Le -omiche, in tutte le loro declinazioni, rappresentano non solo il futuro prossimo del laboratorio (in molti casi il presente) bensì anche l’area con maggiore potenziale di sviluppo. Tale area di intervento ridisegnerà inevitabilmente gli equilibri tra le linee di attività tradizionali di un laboratorio di analisi, ponendo una serie di questioni sensibili sul piano professionale ed etico. Per tali ragioni, è compito dei professionisti del laboratorio assumere un ruolo guida nell’introduzione delle -omiche, governandone l’uso e lo sviluppo in equilibrio tra ricerca, salute, etica e libertà individuale. Essi, dunque, dovranno avere il tempo per concentrarsi anche su questi aspetti della medicina di laboratorio, liberandosi dalle attività non a valore aggiunto (amministrative, logistiche, operative standardizzate).

Quattro ruoli sono in cerca di protagonisti

La complessità crescente delle attività svolte da un laboratorio clinico, l’innovazione in corso, la maggiore attenzione alle risorse e in generale le attese di performance su molti fronti (qualità efficienza, costi, innovazione ecc.) hanno determinato l’emergere di una molteplicità di ruoli che il professionista del laboratorio può essere chiamato a svolgere. In particolare, quattro sembrano essere quelli fondamentali:

█ ruolo clinico, di consulente fondamentale quando non di leader di un processo diagnostico e terapeutico;

█ ruolo direzionale, per organizzare e gestire strutture e reti sempre più grandi e complesse;

█ ruolo di buyer, al servizio di processi sofisticati di acquisizione di tecnologie e materiali, di trasformazioni fisiche e logistiche da progettare e guidare;

█ ruolo di produttore, per garantire quantità e qualità di una produzione sempre più voluminosa ed articolata basata sull’applicazione delle regole di creazione e controllo della qualità e delle specifiche di prestazione

In particolare, i primi tre sono ruoli che devono essere presidiati con molta attenzione da parte dei professionisti del laboratorio in quanto si delineano come attività a maggior valore aggiunto. Il ruolo di produttore potrebbe quindi essere sostenuto da un' attività esternalizzata di alta qualità ed affidabilità, che liberi il tempo dei professionisti per le restanti.

34 ORGANIZZAZIONE giugno 2023

In quest’ottica, e tenendo in considerazione le esigenze attuali del Sistema nonché le sue future traiettorie, un laboratorio indirizzato ad un ruolo più clinico, bilanciato tra volumi importanti di attività a bassa complessità e volumi crescenti (controllati e appropriati) di attività ad alta complessità, sarà un laboratorio anche in grado di divenire sempre più attrattivo per i nuovi talenti interessati a svolgere più un ruolo di “consulente dei clinici” e medico di laboratorio che non di produttore di esami.

MAKE OR BUY?

Alla luce di quanto descritto fino a ora emerge una motivazione interessante per approfondire i possibili benefici apportati dall’esternalizzazione alla gestione del laboratorio, per quella parte produttiva che potrebbe liberare tempo per le attività a maggior valore aggiunto da parte dei professionisti. Quella che segue è una proposta di classificazione dei potenziali benefici cche potrebbero essere conseguiti con la gestione in service data all’esterno tramite contrattualizzazione di parte o tutta l’attività di laboratorio, fermo restando che i professionisti medici e la direzione rimangono in capo all’azienda sanitaria e continuano a svolgere le attività usuali avendo però più tempo per quelle maggiormente rilevanti ed interessanti, connesse ai temi di clinical governance (orientamento dei comportamenti diagnostici dei colleghi), innovazione (introduzione nuove metodiche, esami ecc.) e specializzazione (esami ad alta complessità e specificità).

Ecco i potenziali benefici:

█ organizzazione amministrativa. Uno dei principali vantaggi dell’esternalizzazione riguarda la possibilità di spostare l’attenzione da attività di supporto (amministrazione, logistica ecc.) alle core competence professionali;

█ gestione delle forniture e del magazzino. L’esternalizzazione aumenta la flessibilità nella gestione delle forniture e può portare a due miglioramenti. Il primo dal punto di vista dell’efficientamento dell’attività garantendo una maggiore fruibilità delle forniture e aumentando il ventaglio dei fornitori a disposizione dell’azienda. Il secondo riguarda lo sgravo del carico burocratico in capo ai clinici liberando tempo in favore di attività di governo clinico, offrendo la possibilità di impiegare tempo ed energie ad attività a maggior valore aggiunto;

█ velocità di risposta all’innovazione. Nel laboratorio analisi, dove le innovazioni ed evoluzioni sono continue, la gestione esternalizzata potrebbe offrire un supporto in grado di favorire l’adozione immediata delle possibili innovazioni prevedendole già nel contratto e superando le complessità amministrative tipiche del settore pubblico;

█ innovazione e tecnologia. L’esternalizzazione prevede una programmazione ciclica dei piani di aggiornamento/manuten-

zione dei dispositivi e macchinari, garantendo una costante innovazione tecnologica e sviluppo delle competenze. Tale forma di collaborazione potrebbe mitigare i problemi di dotazione infrastrutturale e rinnovo tecnologico che affligge le aziende sanitarie pubbliche e talvolta genera un gap competitivo nei confronti del settore privato;

█ alleggerimento operativo. L’affidamento esternalizzato della gestione dei servizi potrebbe favorire lo sgravio operativo in capo al personale tecnico-amministrativo, a eccezione del controllo dell’operato dell’erogatore;

█ organizzazione della progettualità. Il fornitore potrebbe e dovrebbe svolgere attività di project management continua con la finalità di garantire la verifica dell’evoluzione progettuale e la qualità del servizio come da contratto e da innovazioni previste;

█ standardizzazione. Le prassi aziendali vengono riorganizzate e standardizzate per il tramite del servizio esterno, ciò al fine di garantire una maggiore efficienza ed efficacia nel rispetto degli standard qualitativi richiesti offrendo un servizio omogeneo; █ agevolare l’attività programmatoria. Il provider può portare a maggiore integrazione e coordinamento nelle attività programmatorie dei fabbisogni interni.

A fronte di questi potenziali benefici, vi sono naturalmente una serie di riflessioni da prendere in considerazione: dalle resistenza culturali alla deriva ideologica che vede le esternalizzazioni dell’attività core sanitaria come una “privatizzazione” della sanità pubblica, dai problemi amministrativi di gestione di un contratto di fornitura complesso a quelli valoriali di allineamento tra identità ed appartenenza dei professionisti in ruolo all’azienda sanitaria e quelli forniti dal soggetto contrattualizzato per il service.

Tuttavia, per concludere, l’esternalizzazione delle attività base del laboratorio ad alti volumi del laboratorio potrebbe essere una soluzione da vagliare per le direzioni dello stesso e per le Direzioni Strategiche delle aziende sanitarie, di fronte alle dinamiche che stanno caratterizzando il settore. Alcune prime esperienze, tra cui quella forse più datata e significativa in corso all'Ospedale dell'Angelo di Mestre, potrebbero essere oggetto di analisi al fine di studiare in modo approfondito gli effettivi vantaggi e limiti, e se quanto discusso in questo articolo si colleghi al “principio di realtà” che vivono le aziende sanitarie pubbliche e private.

Gli autori

FEDERICO LEGA

Università degli Studi di Milano, Direttore HEAD

ELENA MAGGIONI

Ricercatrice HEAD

MICHELE CUSMAI

Controller

ASST Rhodense

35 ORGANIZZAZIONE giugno 2023

La riqualificazione del Centro Ospedaliero Universitario del Vaud

La facciata del nuovo blocco operatorio transitorio ed endoscopia rappresenta una soluzione ispirata a inscriversi con coerenza nel paesaggio della città ospedaliera

36 TECNOLOGIE giugno 2023
di Maria Chiara Torricelli (Fotografie ©Yves André)

DATI TECNICI

Progetto del rivestimento di facciata: meier + associés architectes, Ginevra, e bureau d’étude façades Arteco SA, Chexbres.

Committente: CHUV Cité Hospitalière Lausanne. Direction des constructions, ingénierie, technique et securité.

Localizzazione: Losanna, Cantone del Vaud

Anni di progettazione della facciata: 2014-2015

Anni di realizzazione: 2016-2017

37 TECNOLOGIE giugno 2023
█ La città ospedaliera del CHUV. Vista dal lato sud-ovest dell’edificio principale anni ’70 e degli interventi di sopraelevazione per realizzare il Centro di Oncolologia, il ristorante del personale, il Blocco operatorio transitorio

I centri ospedalieri universitari sono delle città sottoposte a interventi di riqualificazione continua: sostituzioni, addizioni e densificazioni, al posto della demolizione o della costruzione altrove sono scelte frequenti, almeno nei paesi europei. Le innovazioni scientifiche e tecnologiche in sanità, la evoluzione della domanda di cura e di ricerca rendono obsolete le vecchie strutture, ma spesso la scelta è quella di intervenire sull’esistente, per diversi motivi, tra i quali anche il peso di criteri urbanistici e identitari, che caratterizzano in un dato contesto i grandi centri di eccellenza. Le trasformazioni in corso al Centro Ospedaliero Universitario del Vaud (CHUV) sono un esempio significativo, anche perché si iscrivono in un concept paesaggistico che è stato messo a punto per tutta la città ospedaliera, e che ha ispirato la soluzione progettata da meier + associés architectes, con il Bureau d’études Arteco, per il volume volano del blocco operatorio.

UN’ECCELLENZA INTERNAZIONALE

Il CHUV è un centro di livello europeo, uno dei cinque ospedali universitari svizzeri, con diciassette dipartimenti clinici, medicotecnici, amministrativi e accademici, 490.000 m2 di superficie utile, 54 edifici concentrati nella città ospedaliera in pieno centro di Losanna, 1522 letti in funzione. Nel 1982, quando fu inaugurato il suo edificio principale, serviva una popolazione del cantone del Vaud di 523.000 abitanti, oggi ne serve più di 800.000. Da più di quindici anni il CHUV segue un piano ambizioso di ristrutturazione che investe le piattaforme tecnologiche e gli spazi per adattarli agli standard e ai progressi tecnologici, nonché all’impiego di

attrezzature e organizzazioni logistiche efficienti ed economiche. Nel tempo all’edificio principale si sono affiancati nuovi volumi che hanno permesso alla copertura a sud dei volumi bassi del vecchio edificio di liberarsi dell’eliporto e di disporre di superfici su cui intervenire in sopraelevazione con tre nuove realizzazioni: l’ampliamento del Centro Coordinato di Oncologia, l’estensione del ristorante del personale, e la realizzazione del Blocco Operatorio Transitorio (BOPT), necessario per il trasferimento delle attività del blocco operatorio centrale durante la sua completa riqualificazione. I nuovi volumi sono concepiti come innesti nel corpo precedente, connessi con passerelle che assicurano i flussi di pazienti, operatori e materiali.

L’INTERVENTO SUL BOPT

Il BOPT si sviluppa su 2 piani per un totale di 3.000 m2 di superficie utile, a ogni piano c’è un blocco costituito da 8 sale, organizzate secondo lo schema tradizionale a doppio corridoio, più tutti i locali di filtro, accoglienza, lavoro, servizi e tecnici. La recovery unificata è al piano superiore, mentre al piano sottostante c’è una caffetteria per lo staff del BOPT. Una volta terminata nel settembre 2021 la riqualificazione del Blocco operatorio centrale (14 sale), il BOPT resta oggi utilizzato a un piano per la chirurgia, mentre all’altro piano le sale operatorie sono destinate a sale di endoscopia e la recovery a ospedale di giorno.

Il BOPT è un volume con struttura a telaio metallico, solette orizzontali prefabbricate in calcestruzzo e acciaio, tamponamenti collaboranti che assicurano tenuta all’acqua e all’aria e un iso-

38 TECNOLOGIE giugno 2023
█ Facciata del Blocco Operatorio Transitorio con il rivestimento a nastri in alluminio composito e le aperture vetrate della caffetteria e della recovery

lamento termico conforme alle norme cantonali, corrispondente allo standard Minergie® in vigore in Svizzera. Su questa struttura edilizia, realizzata con un appalto integrato tra il 2014 e il 2016, la committenza ha voluto procedere alla realizzazione di un involucro di facciata con un affidamento separato a seguito di un concorso di progettazione, volto a selezionare una soluzione che si inscrivesse al meglio nel contesto, ricucendo il linguaggio dell’edificio anni ’70 e delle nuove espansioni, in particolare le due contigue sopraelevazioni. La proposta architettonica dello studio “meier+ associati” è risultata vincente, per il fatto di cogliere, nel contesto eterogeneo del CHUV, alcune permanenze, già interpretate nei due nuovi volumi del Centro Oncologico e del ristorante: il registro orizzontale delle fasce piene in pannelli di calcestruzzo lavato, alternate alle fasce vetrate, dell’edificio anni ’70, e il registro più fluido in pannelli in fibrocemento e vetrate delle due recenti sopraelevazioni. Per realizzare questa continuità tematica e allo stesso tempo sottolineare il suo carattere specificamente tecnologico, il BOPT è stato rivestito con un “bardage” di nastri costituiti da pannelli piegati e sovrapposti in quinconce. La integrazione è assicurata utilizzando le stesse basi dimensionali, orizzontali e altimetriche, della struttura preesistente. La testura del “bardage” conferisce però un carattere emblematico alla

39 TECNOLOGIE giugno 2023
█ Montaggio del rivestimento a schermo avanzato, in basso si vede la sottostruttura █ Dettaglio in corrispondenza delle finestre █ Il rivestimento di facciata completato

Legenda:

1. scossalina di acroterio in alluminio termolaccato 3mm

2. tenda a lamelle in alluminio termolaccato

3. telaio di finestra in alluminio a taglio termico U=0,6-1,0 W/m2K

4. vetro camera doppio o triplo secondo bilancio termico U=0,61,0 W/m2K

5. scossalina davanzale in alluminio termolaccato 3mm

6. rivestimento di controparete in cartongesso 25mm

7. lana minerale 60 mm e barriera al vapore

8. isolante termico in lana minerale 180 mm

9. tamponamento esterno

10. sottostruttura verticale in lamiera di alluminio 3mm a interasse 1200 mm

11. rinforzo e sottostruttura dei pannelli compositi del rivestimento di facciata, profondità variabile

12. pannelli compositi alluminio spessore 3-4mm e nucleo minerale

13. ancoraggio dei pannelli del rivestimento con incisioni a baionetta

14. controventi della sottostruttura

15. struttura principale in acciaio

16. possibilità di integrazione di prese d’aria o altri impianti

17. rinvio dell’acqua in alluminio

18. parapetto in cls lavato preesistente

19. appoggio a taglio termico della sottostruttura verticale di facciata

specificità programmatica del nuovo volume. Il ritmo dei nastri leggeri in alluminio composito alleggerisce e anima l’espressione di una facciata relativamente chiusa verso l’esterno, valorizzando tuttavia le eccezioni, come le vetrate a nastro della facciata sud, quasi una fessura in corrispondenza della recovery, più alte in corrispondenza della caffetteria, che gode così della luce naturale e della veduta sulla strada. La scelta di pannelli compositi in alluminio e nucleo minerale risponde ai requisiti di leggerezza, dimensioni, planarità, incombustibilità posti dalla soluzione di rivestimento ventilato a schermo avanzato su una sopraelevazione. Il carattere leggero, il colore e la lucentezza di questa pelle dialogano tuttavia più che con i pannelli del vecchio edificio, con i pannelli in fibrocemento delle altre due sopraelevazioni.

I pannelli sono montati su una sottostruttura verticale posta in relazione con la campata strutturale di 7,20 m, ad interasse di 1,20 m, ma il gioco in verticale dell’assemblaggio dei nastri piegati rompe il ritmo uniforme della struttura. I dettagli sono stati studiati dal bureau d’études che ha messo a punto la ingegnerizzazione dell’idea architettonica nelle soluzioni di ancoraggio, di passaggio dalla struttura esistente alla nuova facciata e di raccordo orizzontale tra le fasce pensato anche per facilitare la manutenzione.

Bibliografia e ringraziamenti

Le informazioni utili per la scrittura e la illustrazione dell’articolo sono state fornite dallo studio meier + associés architectes oltre che essere state tratte da: Direction des constructions, ingénierie, technique et sécurité, “Façades du bloc opératoire transitoire. Cité hospitalière – Lausanne. Mandats d’étude parallèles – Rapport du Collège d’experts”, CHUV 2014; Direction des constructions, ingénierie, technique et sécurité, “Bloc opératoire Batiment hospitalier 06/07, Cité hospitalière – Lausanne, Présentation de projet”, CHUV 2014.

Si ringrazia per la documentazione e la revisione dell’articolo, l’architetto Martin Jaques di meier + associés architectes.

L’Autrice

Architetto, già professore ordinario di Tecnologia dell’Architettura è adesso professore onorario presso l’Università di Firenze. Membro del Centro interuniversitario di ricerca Sistemi e Tecnologie per le Strutture Sanitarie, Sociali e della Formazione -TESIS, del Centro Nazionale per l’Edilizia e la Tecnica Ospedaliera -CNETO, della Società Italiana di Tecnologia dell’Architettura - SITdA

40 TECNOLOGIE giugno 2023
MARIA CHIARA TORRICELLI █ Dettaglio della facciata del BOPT del CHUV.

La sfida del settore delle costruzioni fra norme e innovazione tecnologica

L’evoluzione digitale dell’intero comparto industriale delle costruzioni necessita di un approccio che integri la tecnologia con un'evoluzione in termini di competenze e revisione degli assetti organizzativi

Il settore delle costruzioni è governato da alcuni “macrotrend” che pur rappresentando elementi di innovazione e, quindi, capaci di conferire valore, si devono scontrare con una filiera atavicamente lenta a mutar di pelle; si parla con sempre maggior enfasi e convinzione di: sostenibilità, automazione dei processi di costruzione, intelligenza artificiale, Block Chain e smart contract, IoT e sensoristica, virtual/augmented/mixed reality ecc.

La transizione digitale ha un ruolo fondamentale nella integrazione di tutti questi temi e l’elemento abilitante per il comparto AECO è il B.I.M (Building Information Modelling). Il BIM costituisce la base metodologica per la gestione digitale dei processi delle costruzioni ed è un fenomeno che è andato molto oltre l’iniziale significato del suo acronimo. Possiamo distinguere almeno quattro importanti ambiti che lo contraddistinguono: █ modello informativo digitale, come elemento aggregatore di contenuti informativi grafici (3D) e alfanumerici correlati reciprocamente e parametrizzabili;

di Alessio Bertella
41 TRANSIZIONE DIGITALE giugno 2023

█ qualità e controllo intesa come la possibilità favorita dalla natura digitale dei modelli informativi di essere controllati, visualizzati, confrontati e correlati fra loro al fine di ridurre le interferenze, la ridondanza dei contenuti, la rispondenza a norme e regolamenti; █ gestione e automazione dei processi informativi intesa come la possibilità di connettere i modelli informativi a qualsiasi ambito o sistema che usi, elabori e gestisca le informazioni al fine sviluppare i processi decisionali: cronoprogrammi, computi, analisi strutturali, analisi energetiche ecc. █ comunicazione, trasparenza, collaborazione intesa come la possibilità di sfruttare piattaforme in cloud che abilitano il coordinamento fra gli attori coinvolti: proprietari, stazioni appaltanti, progettisti, costruttori, valicatori, direttori dei lavori.

Contestualmente si sono sviluppati sia a livello nazionale che internazionale standard e best practice per guidare l’adozione di una metodologia digitale da parte del mondo delle costruzioni. Attualmente in Italia si lavora alla norma UNI11337

“Gestione digitale dei processi informativi delle costruzioni”, a livello europeo è CEN/TC 442 Building Information Modelling (BIM) che sviluppa norme in tal senso, in ISO abbiamo la serie ISO 19650 Building Information Modelling (BIM) come framework di riferimento a livello internazionale. È importante evidenziare che proprio il connubio fra un fenomeno nato da una spinta inzialmente tecnologica, il BIM, e il complesso delle norme appena citate, garantiscono il successo di una transizione digitale piena e consapevole, a patto che chi ha potere decisionale e possibilità di spesa sia coinvolto, creda, conosca.

È un cambiamento che deve essere sponsorizzato dai vertici e supportato in particolare da chi, nel processo di produzione, si trova nella posizione di sviluppare o gestire il patrimonio immobiliare, perché saranno questi gli attori che beneficeranno, in ultima analisi, di tutti i vantaggi della digitalizzazione dei processi delle costruzioni.

Mancando uno di questi tre elementi perché, come spesso succede, la tentazione rimane quella di adottare tecnologia nella vana speranza che questa magicamente risolva tutto, il risultato è quello di sperimentare cocenti delusioni, perdere tempo, non avere efficacia nel passaggio a un nuovo modo di lavorare e gestire i processi delle costruzioni.

IL TEMA AFFRONTATO DAL NUOVO CODICE

DEGLI APPALTI

La recente pubblicazione del nuovo codice degli appalti sembra il Dlgs n.36 del 31 Marzo 2023 sembra aver fatto proprie le considerazioni appena esposte dando grandissimo risalto allla digitalizzazione.

Come è noto a livello pubblico il il tema dei “metodi e strumenti quali quelli per la modellazione elettronica…” è stato introdotto con il Dlgs 50/2016 (art. 23 comma 13) ed è stato reso obbligatorio con i decreti applicativi DM 560/2017 e DM312/2021.

Il nuovo testo normativo però si spinge ben oltre sul tema del “digitale” dando spazio in molti dei suoi articoli all’esigenza di una transizione che coinvolga pienamente il settore sin dalle fasi del processo di procurement, dagli articoli 19 al 36 infatti si introduce la “digitalizzazione del ciclo di vita dei contratti” e vengono enunciati i principi fondanti della trasparenza nella gestione dei contratti pubblici, dell’efficienza nella gestione degli stessi tra l’altro con evidenti riferimenti a criteri attengono alla sostenibilità sociale e istituzionale.

Il vero cuore della digitalizzazione dei processi delle costruzioni lo ritroviamo poi nell’art. 43 e nell’Allegato I.9 per cui viene definitivamente confermata l’adozione di “metodi e strumenti

42 TRANSIZIONE DIGITALE giugno 2023

di gestione informativa digitale delle costruzioni” per la progettazione e la realizzazione di opere di nuova costruzione e per gli interventi su costruzioni esistenti per importo a base di gara superiore a un milione di euro.

Sono poi confermate e in alcuni casi aggiornate tutte le disposizioni del D.M. 560/17 e del successivo D.M. 312/21 in materia di:

█ adempimenti da parte delle stazioni appaltanti; █ interoperabilità e modalità di scambio delle informazioni; █ specifiche tecniche nazionali e internazionali utilizzabili; █ contenuti minimi della documentazione di gara ecc.

Risulta poi molto importante il risalto dato a tutte le fasi del processo di realizzazione di un asset, sgombrando definitivamente il campo dalla presunta applicazione principalmente nell’ambito della progettazione.

Anche in questo caso è da evidenziare come il la transizione digitale venga visto come un processo di evoluzione in cui devono coniugarsi un mix di competenze (per la prima volta si indicano precisi profili professionali di cui la PA si deve dotare), soluzioni tecnologiche (piano di acquisizione HD e SW) nuovi assetti in tema di organizzazione (atto organizzativo).

Non è poi un caso che il Codice citi le stesse norme tecniche come supporto alla corretta adozione di un approccio digitale, promuovendo un “framework” condiviso a livello internazionale e spingendo il nostro mercato interno a confrontarsi e a poter “parlare” con quello estero.

Stante queste considerazioni sembra ormai prioritario, per i gestori di patrimoni immobiliari adeguarsi a queste nuove istanze, cercando di comprendere che un asset digitalizzato - qualcosa che infine tende sempre più al concetto di “smart building” - non è un prodotto che si richiede al mercato, non è una prestazione professionale, ma è il risultato di una filiera che nel suo complesso ha lavorato e si è organizzata per arrivare a questo obiettivo. Ogni attore per quanto di sua competenza deve fare la sua transizione perché sia in grado di accedere alla fase del processo edilizio che gli compete contribuendo alla realizzazione fisica e a questo punto virtuale dell’asset.

QUALI I VANTAGGI PER IL SETTORE OSPEDALIERO

Il settore ospedaliero in questo senso può fortemente beneficiare di una rivoluzione di questa portata avendo l’opportunità di concorrere alla sistematizzazione di un patrimonio immobiliare complesso, articolato, in cui l’opportunità fornita dal progresso tecnologico può conferire valore aggiunto.

Questo valore lo ritroviamo nella possibilità di riuscire gestire i processi di progettazione, realizzazione e gestione in modo più efficace ed efficiente, diminuendo i tempi di riprogettazione, diminuendo gli errori, migliorando la comunicazione, la gestione e manutenzione di attrezzature, arredi, impianti a favore di una flessibilità nella gestione degli spazi che i recenti eventi pandemici ci hanno imposto con allarmante urgenza. La classe dirigenziale del comparto immobilire italiano è chiamata ad affiancare alla doverosa competenza in materia finanziaria, gestionale e organizzativa una rinnovata competenza tecnica per guidare scelte strategiche efficaci; la digitalizzazione cambia profondamente il modo in cui il settore si comporta nei confronti della gestione del bene a oggi più prezioso, l’informazione, e questo non può essere trattato soltanto come un mero fatto tecnico da delegarsi a un esperto IT.

ALESSIO BERTELLA L’autore
43 TRANSIZIONE DIGITALE giugno 2023

L’esigenza della massima igiene nel luoghi di cura

Nell’ambito della sessione dedicata al tematica dell’igiene diffusa nella sanità e negli ambienti civili, a cui è stata dedicata la seconda giornata del Congresso digitale promosso dalla rivista Dimensione Pulito del Gruppo LSWR, nella mattinata di giovedì 2 febbraio, si è tenuto l’incontro dal titolo: “Luoghi di cura: l’esigenza della massima igiene”. Moderato da Maurizio Pedrini, direttore della rivista e organizzatore dell’evento, si sono confrontati sull’importante argomento Antonio Montanile, Direttore Presidio Medico Ospedaliero Brindisi (“Il punto sulle buone pratiche di pulizia e sanificazione: esigenze post pandemia e nuovi protocolli di sicurezza”); Gregorio Mangano, Presidente AIISA (“L’igiene degli impianti di trattamento dell’aria, elemento fondante della sicurezza nei reparti ospedalieri”) Camillo Rossi, Vicepresidente SIMM, Società Italiana Leadeship Management in Medicina (“Un nuovo approccio all’igiene ospedaliera post pandemica”) e Toni D’Andrea, CEO director ISSA EMEA (“Percorsi formativi per certificare le competenze nell’erogazione dei servizi di pulizia”).

LA REGOLAMENTAZIONE DELL’ATTIVITÀ DI PULIZIA/SANIFICAZIONE IN FORMA D’IMPRESA

“Il settore delle pulizie e delle sanificazioni”, ha esordito Montanile, “ha svolto un ruolo essenziale nell’emergenza Covid, soprattutto nelle strutture ospedaliere, e certamente sta svolgendo ora un ruolo fondamentale per la piena ripartenza del Paese. Nel contesto emergenziale”, ha aggiunto,

“ sono emerse purtroppo delle difficoltà sistemiche per gli operatori del settore. Anzitutto la concorrenza sleale da parte di imprese improvvisate, prive di professionalità, che si sono candidate senza alcun know-how a svolgere attività delicate, come la sanificazione, che non

Dimensione Pulito

possono prescindere nel loro espletamento dalla competenza di chi le organizza e svolge. Si è inoltre assistito al moltiplicarsi di protocolli di sanificazione fai da te, che prescindono da qualsiasi approccio scientifico. In un contesto emergenziale, come quello che speriamo di esserci lasciati alle spalle”, ha evidenziato Montanile, “le informazioni scientifiche su come affrontare il Coronavirus Sars CoV-2 sono state inizialmente scarse e non sempre univoche, per cui si è rivelata preziosa l’opera del Ministero della Salute, dell’Istituto Superiore della Sanità, dell’Inail e delle strutture superiori di coordinamento create medico-scientifiche per affrontare la pandemia che hanno cercato di orientare le attività di disinfezione/sanificazione verso metodiche d’intervento intrinsecamente valide e, nel contempo, scevre da rischi di danni all’ambiente, alla salute dei cittadini, di quanti operano nel settore sanitario ed in quello della pulizia/sanificazione.”

Montanile si è quindi soffermato sull’analisi dei Requisiti richiesti per l’esercizio dell’attività di pulizia e sanificazione in forma di impresa. Questi ultimi sono regolamentati dal D.M 7 luglio 1997, n. 274. In modo estremamente sintetico, emerge che per esercitare l’attività di sola pulizia e/o disinfezione (lettere a e b) dell’art. 2 comma 1 DM 274/97 occorrono solo i requisiti di onorabilità ed economico-finanziari; per svolgere anche attività imprenditoriale di disinfestazione e/o derattizzazione e/o sanificazione (lettere c, d ed e) dell’art. 1 DM 274/97 occorrono, oltre a quelli del punto precedente, anche i requisiti tecnico-professionali (art. 2 comma 3 del DM 274/97), tra cui la presenza del preposto alla gestione tecnica. Montanile si è quindi concentrato nella descrizione delle operazioni di pulizia principali previste per una struttura sanitaria. Come agire, in concreto? Occorre, in primo luogo, assicurare la pulizia giornaliere e la sanificazione periodica dei locali, degli ambienti, delle postazioni di lavoro e delle aree comuni e di

di Maurizio Pedrini
44 ORGANIZZAZIONE giugno 2023
Il tema della massima igiene nei luoghi di cura in epoca post pandemica è stato ampiamente dibattuto nell’incontro proposto al convegno digitale Cleaningpiù promosso dalla rivista

svago. Nel caso di presenza di una persona con Covid-19 all’interno dei locali, si procede alla pulizia e sanificazione secondo le disposizioni della circolare n. 5443 del 22 febbraio 2020 del Ministero della Salute, nonché alla loro ventilazione. Bisogna poi garantire la pulizia accurata a fine turno e la sanificazione periodica di tastiere, schermi touch, mouse con adeguati detergenti, sia negli uffici, sia nei reparti. In ottemperanza alle indicazioni del Ministero della Salute, secondo le modalità ritenute più opportune, si possono organizzare interventi particolari/periodici di pulizia. Nelle aree geografiche a maggiore endemia, in aggiunta alle normali attività di pulizia, è necessario prevedere, alla riapertura, una sanificazione straordinaria degli ambienti, delle postazioni di lavoro e delle aree comuni, ai sensi della circolare 5443 del 22 febbraio 2020. Montanile ha concluso il suo intervento, dedicato alle buone pratiche di pulizia e sanificazione, mettendo in risalto come, relativamente alle imprese di pulizia, sia emersa con forza la necessità di un’ ulteriore regolamentazione dell’attività di pulizia/sanificazione in forma di impresa. Ha quindi posto in risalto l’importanza di specifici piani di formazione degli operatori addetti al processo di pulizia e sanificazione dell’ambiente ospedaliero, cui deve provvedere l’ente interno o l’azienda che svolge le operazioni di pulizia. La formazione, a più livelli, deve prevedere sia corsi di base sulle procedure, la sicurezza e la qualità, che anche step successivi di specializzazione, a seconda della tipologia dei locali dove l’addetto opera.

L’IGIENE DEGLI IMPIANTI DI TRATTAMENTO D’ARIA

“Il tema dell’igiene e della sanificazione degli impianti di trattamento dell’aria, con particolare attenzione a quelli dei luoghi di cura ”, ha detto Gregorio Mangano, “è al centro dell’attenzione quale misura efficace di contrasto alla diffusione di Sars CoV-2. AIISA (Associazione Italiana Igienisti Sistemi Aeraulici), affronta questi temi dal lontano 2004. Si tratta”, ha evidenziato Mangano, “di un argomento molto delicato che presenta aspetti di forti criticità e parecchie opportunità. Si pensa spesso, infatti, che sia sufficiente pulire l’aria attraverso la filtrazione che elimina il particolato e bioaerosol presente liberamente nell’aria. Non si può affrontare il tema della qualità dell’aria interna se al concetto di ventilazione non si affianca quello di filtrazione. I sistemi di trattamento dell’aria, infatti, oltre che a garantire le condizioni termo igrometriche richieste, sono in via prioritaria adibiti a ridurre le sostanze inquinanti negli ambienti interni e sono i principali artefici della qualità dell’aria che respiriamo”.

Ma cosa accade agli impianti di trattamento dell’aria se non vengono controllate le condizioni igieniche, o se non vengono effettuate le corrette azioni di pulizia e sanificazione? Possono davvero compromettere la sicurezza in ambito ospedaliero? La risposta appare quasi scontata, certamente gli effetti possono essere assai dannosi. Per queste ragioni tali interventi sono di fondamentale importanza, in pri-

mo luogo per tutelare il benessere e la salute degli ospiti, dei pazienti e del personale. Le operazioni di manutenzione e sanificazione delle condotte aerauliche, regolarmente programmate e realizzate servono sia a proteggere la continuità e la qualità del servizio erogato riducendo al tempo stesso i costi operativi totali, sia a garantire la sicurezza negli ambienti e lo stato di efficienza di presidi medici e attrezzatura. Mangano ha quindi allargato la riflessione: “nella nostra società”, ha spiegato, “si trascorre fino al 90% del proprio tempo in luoghi chiusi ed il 30-40% di questo si passa nei luoghi di lavoro. Esistono quindi fondati sospetti che il 40% delle assenze da lavoro per malattia sia dovuto a problemi di qualità dell’aria interna degli uffici. La IAQ, Indoor Air Quality (Qualità dell’aria Interna) rappresenta la caratteristica dell’aria trattata che risponde ai requisiti di purezza. Essa non contiene contaminanti noti tali da arrecare danno alla salute e causare condizioni di malessere per gli occupanti. I contaminanti, contenuti sia nell’aria di rinnovo che in quella riciclata, sono gas, vapori, microrganismi, fumo ed altre sostanze particolate. Il presidente di AIISA ha quindi spiegato il motivo per cui gli impianti aeraulici si contaminano. Le incrostazioni alle pareti sono composte prevalentemente da materiale organico che prolifica a seguito di condizioni climatiche favorevoli, in particolar modo temperature e una elevata umidità relativa. Queste condizioni unite costituiscono un ideale terreno di coltura per varie specie micotiche e batteriche e microrganismi 8acari). Infine, il sistema di distribuzione dell’aria favorisce il trasporto di polveri e microrganismi verso gli ambienti confinati (piscina, spogliatoi, atrio, uffici, saloni ecc.). Le principali conseguenze per la salute umana sono: danno alle mucose oculari, alla cute e all’apparato respiratorio degli occupanti, accelerando altresì il deterioramento delle apparecchiature presenti all’interno dei locali. Mangano ha preso quindi in esame la legislazione nazionale in materia. Il Testo Unico D.L. 81/2008 in materia di tutela della salute e della sicurezza nei luoghi di lavoro (30 aprile 2008) – Allegato IV – Requisiti dei luoghi di lavoro, al punto 1.9.1.4 relativo al microclima, stabilisce che “gli stessi impianti devono essere periodicamente sottoposti a controlli, manutenzione, pulizia e sanificazione per la tutela della salute dei lavoratori”. Al punto successivo, specifica inoltre che “qualsiasi sedimento o sporcizia che potrebbe comportare un pericolo immediato per la salute dei lavoratori dovuto all’inquinamento dell’aria respirata deve essere eliminato rapidamente”. Il relatore si è poi soffermato sulle leggi guida nazionali di riferimento, elencandole in rapida successione. A cominciare delle “LineeGuida per la Prevenzione ed il Controllo della Legionellosi”, adottate il 4 aprile 2000; a seguire, le “Linee-Guida per la tutela e la promozione della salute negli ambienti confinati”, adottate il 27 settembre 2001; le “linee-Guida recanti indicazioni sulla legionellosi per i gestori di strutture turistico-ricettive e termali”, adottate il 13 gennaio 2005; lo “Schema di Linee-Guida per la definizione di protocolli tecnici di manutenzione predittiva sugli impianti di climatizzazione”, adottato il 5 ottobre 2006; le “Line-Guida emesse dalla Presidenza del Consiglio (Conferenza

45 ORGANIZZAZIONE giugno 2023

Permanente Stato-regioni)”Procedura operativa per la valutazione e gestione dei rischi correlati all’igiene degli impianti di trattamento aria” del 7 febbraio 2013. “I tre punti focali del sistema di sorveglianza introdotto dalle Linee-Guida del 7/02/2013 prevedono: ispezione visiva degli apparati; ispezione tecnica molto più approfondita; azioni correttive di manutenzione e/o sanificazione. Infine, Mangano ha portato come esempio di riferimento in materia la Legislazione Regionale Lombarda che, con la Legge del 30 dicembre 2009 – Nuovo Testo Unico delle Leggi Regionali in materia di Sanità e Decreto attuativo della Direzione generale Sanità Lombardia – n. 1751 del 24/02/2009 all’art. 59 (Misure di prevenzione nelle strutture sanitarie) afferma: “Al fine di prevenire la diffusione di malattie infettive trasmesse da nebulizzazione derivante da impianti di distribuzione dell’acqua sanitaria e di condizionamento, le strutture sanitarie e sociosanitarie pubbliche e private accreditate hanno l’obbligo di compiere, in modo continuativo, in relazione agli esiti riscontrati, le azioni di prevenzione, controllo e manutenzione dei seguenti impianti: a) impianti di produzione e distribuzione dell’acqua calda sanitaria; b) impianti di condizionamento dell’aria; c) impianti per idroterapia non termale e aerosolterapia. L’art. 2, della Legge, recita: “Le azioni di prevenzione, controllo e manutenzione di cui al comma 1, da effettuare con cadenza minima annuale, e in caso di provata contaminazione o di malattia nei pazienti, sono indicate con decreto della direzione generale competente in materia di sanità. Gli oneri sono a carico delle strutture sanitarie e sociosanitarie. Le operazioni sono certificate dalle ASL, registrate e controfirmate dal responsabile della struttura o suo delegato”.

UN MODO DIVERSO DI AFFRONTARE LE EMERGENZE PANDEMICHE

Camillo Rossi ha portato la preziosa testimonianza di come l’Ospedale di Brescia e l’Azienda Socio-Sanitaria alla quale esso fa capo, che conta attualmente circa 7mila dipendenti, abbiano affrontato la pandemia da Sars CoV-2, trattando circa 14mila pazienti contagiati dal virus e ottimizzando sia la struttura che i mezzi e le risorse umane a disposizione. “Tra la prima e la seconda ondata”, ha precisato, “abbiamo studiato una specifica modalità di assistenza ai pazienti COVID che riservasse loro alcune aree dell’ospedale. Si è deciso di usare un’area ospedaliera ad anello, operativa dagli anni Cinquanta, una parte storica realizzata dall’architetto Bordoni, un’altra, a nord, il cosiddetto Policlinico satellite, edificato negli anni Settanta, e infine il padiglione B, con un corpo di fabbrica dotato d’un un sistema di areazione particolarmente collaudato e sicuro. Attuando i requisiti di sicurezza richiesti a partire dall’agosto 2020, ci siamo così ritrovati a disporre di cinque piani dedicati all’emergenza COVID, con ben 170 posti letto, organizzati in funzione dell’intensità di cura. Va sottolineato come tutte le procedure adottate per il personale interno siano state puntualmente seguite, anche dalle aziende che ci forniscono il

servizio di pulizie. Per quanto riguarda, invece, l’accesso dei visitatori, lo stesso era legato alla misurazione della temperatura e scheda anamnestica richiesta per stabilire le condizioni iniziali di salute. A prescindere dal possesso del green pass base, dalla vaccinazione e quant’altro, abbiamo chiesto l’esibizione di un tampone effettuato nell’arco delle quarantotto ore e, nei periodi di massima riapertura, è stato introdotto l’accesso a giorni alterni. L’ospedale ha operato facendo i conti con le evidenze richieste dal mutare delle condizioni, ovvero dai cambiamenti organizzativi e tecnologici richiesti dalla delicata e complessa situazione da affrontare. Comunque, è bene sottolineare che non abbiamo avuto la necessità di effettuare specifici investimenti, perché la principale priorità che ci siamo posti è stata quella di rafforzare e rendere ancor più stringenti le misure di sicurezza che avevamo già introdotto da tempo. In sostanza”, ha sottolineato Rossi, quando il 24 febbraio del 2020 è stato ricoverato da noi il primo paziente COVID, ci siamo trovati a poter contare, per il ricovero, solo su una struttura che disponeva di una palazzina esterna di malattie infettive realizzata negli Anni Ottanta: abbiamo immediatamente implementato i posti letto fino al numero di 70, il che ci ha consentito di affrontare bene l’emergenza. Sia stati perciò costretti ad effettuare una revisione complessiva del nostro modus operandi, serrando i ranghi e organizzando al meglio i nostri asset che si occupano di igiene ospedaliera e sanificazione, a partire dal servizio di pulizia con un apposito project financing appositamente deputato ad esso. Ci siamo resi subito conto che era necessario adottare una radicale modifica dei comportamenti rispetto alla cura dei nostri ricoverati: mentre normalmente bisogna proteggere un paziente dall’altro, i pazienti Covid erano sostanzialmente tutti uguali: occorreva proteggerli da se stessi. Abbiamo dovuto procedere con interventi forti, assai onerosi e rapidi di formazione del personale rispetto ai DPI, che hanno attivamente coinvolto non solo il nostro personale interno ma anche quello delle imprese di pulizia che operano all’interno della struttura nosocomiale. Inoltre, abbiamo adottato subito i dispositivi di protezione individuale, in primis la mascherina FFP2, che abbiamo messo a disposizione di tutti i dipendenti, appositamente addestrati all’uso corretto della stessa. Si è agito anche per impedire tutta una serie di contatti, anche in locali che potevano sembrare di scarsa rilevanza ai fini del potenziale contagio, come i luoghi di consumo collettivo dei pasti, le mense, i bar. Mi preme sottolineare che abbiamo posto al centro dell’attenzione il concetto di comunità ospedaliera”, ha detto a chiare lettere Rossi, “considerando le imprese di pulizia e ristorazione quali soggetti prioritari all’interno di essa, al pari di medici, infermieri e personale paramedico. Tutte queste persone sono state prontamente sottoposte al programma vaccinale, già a partire dal 27 dicembre 2020. Lo sforzo organizzativo che abbiamo dovuto affrontare è stato notevoli, ma ha dato ottimi risultati. In estrema sintesi, abbiamo affrontato l’emergenza COVID con le armi della velocità, dell’accuratezza, con iniziative di formazione ad hoc, revisione degli spazi ed elasticità. Ora, a proposito

46 ORGANIZZAZIONE giugno 2023

di quest’ultima caratteristica, dico subito che non possiamo fare passi indietro e tornare allo status quo”, ha ribadito con forza il relatore. Certo, dobbiamo restare estremamente duttili, perché quando si cura la popolazione, le persone presentano bisogni che non sono spesso codificabili fin dall’inizio, ma in futuro dovranno assolutamente essere mantenuti e migliorati gli standard raggiunti in questi ultimi anni. Mi riferisco in particolare anche al rapporto con le imprese di pulizia , che sono state prese per mano e accompagnate a svolgere un lavoro comune in piena e proficua sinergia. Per raggiugere questo obiettivo abbiamo potuto contare sul lavoro di un apposito staff dedicato all’interno della Direzione Medica del presidio principale, che integra diverse professionalità e adesso sta mettendo in rete una massa di dati per poter monitorare al meglio le Infezioni Correlate all’Assistenza, ovvero quella pandemia silente che ogni anno in Italia miete 35mila vittime. Questo sforzo, come è facilmente immaginabile, ha ricadute immediate per comprendere come si muove il nostro intero ecosistema ospedaliero, in modo da sintonizzare l’uso di determinati presidi in funzione di quanto avviene, giorno dopo giorno, in ambito microbiologico. Con immediate e preziose ricadute anche sulla prevenzione e sull’intensità e le frequenze degli interventi di pulizia, sulla scelta dei prodotti, sulla logistica e su tanti altri aspetti, con l’obiettivo finale di migliorare sia le condizioni di cura dei pazienti e la loro sicurezza, sia la salubrità dell’ospedale”.

CONDIZIONI IGIENICO SANITARIE PROGRESSIVAMENTE PIÙ RIGOROSE

“Quello della formazione o meglio della definizione di percorsi formativi, mirati e adeguati al livello di competenza e di responsabilità richiesta in materia di pulizia professionale”, ha affermato Toni D’Andrea, “rappresenta un tema immenso in un settore in profonda trasformazione. Da un’indagine che avevamo commissionato alcuni anni fa ad un importante istituto di sondaggi emergeva il fatto preoccupante che in Italia, soltanto il 15% degli addetti alle pulizie, sia in regime di autoservizio che di outsourcing, aveva completato un ciclo di formazione sulle tecniche e sulle metodologie di pulizia. Oltre il 90 % di questo utilizzava, in ambito professionale, prodotti, macchine e attrezzature destinati ad un utilizzo domestico. Nonostante la scarsa attenzione per il nostro lavoro”, ha proseguito, “rimango convinto che “la Pulizia” meriti un posto d’onore sia nella storia sociale che nell’immaginario collettivo. Ciò che abbiamo, o forse avevamo capito, è che la Pulizia è un bene necessario non solo alla nostra sopravvivenza. Il che ci consente di affermare in modo concreto i valori della dignità e della socialità. M cosa accadrebbe se, anche per poche ore, venissero meno i servizi di pulizia? Come cambierebbe la nostra percezione di un dato luogo. Immaginate gli ospedali, gli asili, i mezzi di trasporto, e tanti altri contesti lasciati precipitare nella voragine dello sporco e della malattia. Pulizia è sempre un investimento e non un costo. E in

ambito sanitario le cifre lo mostrano in modo inequivocabile. I modelli econometrici indicano che all’aumentare dell’1% l’indice di spesa per i servizi di pulizia il tasso di infezione si riduce tra lo 0,12% e lo 0,20%. Se un’azienda ospedaliera tagliasse i costi del budget per la pulizia di 58.000€ avrebbe nel breve periodo un costo aggiuntivo netto di oltre 100.000€ causato da un aumento di infezioni (più ricoveri, più medicinali, più risarcimenti). In Europa l’incidenza media delle infezioni correlate all’assistenza e di circa l’8%. Questa incidenza arriva a superare il 30% nei pazienti sottoposti a terapia intensiva. Un dato, che molti non conoscono, è che nell’ultimo decennio sulla Terra sono stati costruiti oltre 50 miliardi di metri quadrati di nuova superficie di cemento, vale a dire un Empire State Building ogni 25 minuti. Sono stato realizzati in un anno tanti edifici quanti ne conta l’intero Giappone, un trend che non cenna a diminuire visto che le previsioni per i prossimi 40 anni stimano 230 miliardi di metri quadri di nuove costruzioni, pari a una nuova Parigi alla settimana. Il processo di affermazione del Cleaning è da sempre legato a due variabili fondamentali: l’incremento demografico che alimenta la domanda di costruzione di nuovi edifici e il tasso di modernizzazione nei diversi Paesi richiedono condizioni igienico sanitarie progressivamente più rigorose, a partire dai luoghi di cura. Nei prossimi anni l’omologazione degli standard igienici applicati nei paesi emergenti agli standard occidentali e l’incremento dimensionale dell’ambiente costruito produrranno una domanda mostruosa di servizi di pulizia. Pensate perciò”, ha proseguito, “a quanto il fattore competenza inciderà sulla variabile produttività, a quanto il tema della formazione e della qualificazione del lavoro giocherà il ruolo determinante nel nostro settore. L’incidenza del “labour intensive” nell’erogazione dei servizi di pulizia dovrà cedere terreno alla meccanizzazione e alla robotizzazione di molte attività. Il costo della manodopera abbiamo detto incide mediamente per oltre l’80% del costo complessivo e dovrà essere rimodulato per assumere un ruolo più di controllo e gestione che di esecuzione. Abbiamo parlato di industria dei servizi, voglio darvi qualche numero. Costruire la consapevolezza di quanto il nostro lavoro sia importante per il mondo. Il Europa esistono 290.000 imprese di servizi di pulizia che danno lavoro a 4 milioni di persone che producono un fatturato pari a 120 miliardi di euro che negli ultimi 25 anni è cresciuto con una media del 9% all’anno. Negli Stati Uniti i numeri sono simili , circa 3 milioni di operatori con un fatturato che dal 2016 al 2021 è cresciuto del 5,7% e che nel 2022 dovrebbe attestarsi a poco più di 80 miliardi di dollari. Si prevede da qui al 2029 un incremento delle assunzioni all’interno del comparto nella misura del 4% all’anno. La mia constatazione”, ha concluso D’Andrea, “è che negli ultimi anni, nel comparto del cleaning professionale la produttività è aumentata pochissimo. La meccanizzazione dei processi è partita solo in quei Paesi che presentano un costo della manodopera troppo alto, la formazione, che insieme all’innovazione tecnologica concorre ad elevare il tasso di produttività, è un’attività minima, marginale”.

47 ORGANIZZAZIONE giugno 2023

La condivisione e la protezione dei dati nella collaborazione territoriale

Il 2023 sarà un anno estremamente importante per la messa a terra degli interventi previsti nell’ambito della Sanità dal PNRR e dal DM77. Collaborazione territoriale, telemedicina e condivisione dei dati dettagliati saranno i punti cardine dell’evoluzione del SSN, ma questo richiede sia una evoluzione tecnologica nei sistemi informativi aziendali, sia la definizione di un quadro normativo in merito alla protezione dei dati in grado di rispondere alle esigenze operative dei professionisti, dei pazienti e dello stesso sistema sanitario nazionale:

█ la rete territoriale e i percorsi di cura;

█ l’organizzazione dei dati negli attuali sistemi informativi aziendali;

█ la necessaria evoluzione dei sistemi informativi aziendali;

█ la collaborazione di aziende diverse nel percorso di cura del paziente.

LA RETE TERRITORIALE E I PERCORSI DI CURA

Già da tempo, sia dal punto di vista clinico che organizzativo, il servizio sanitario si sta evolvendo dall’erogazione di singoli episodi assistenziali autonomi (primo per tutti il ricovero di lunga durata) ad un modello di rete basato su forme di collaborazione multiprofessionale e territoriale per l’erogazione sinergica di servizi più sostenibili, più efficaci e appropriati dal punto di vista clinico e anche in grado di migliorare la qualità della vita del paziente.

di Fabrizio Massimo Ferrara, Silvia Stefanelli
48 INFORMATICA giugno 2023
Nello scenario di collaborazione territoriale previsto dal PNRR e dal DM77 i dati non servono solo per il supporto episodico al singolo paziente, ma anche per gestire il suo intero percorso di cura, con la continuità dei processi clinici e organizzativi fra i diversi centri

A questo scopo, sono innanzi tutto definiti i PDTA finalizzati alla cura e l’assistenza di una specifica patologia, fino all’obiettivo della “presa in carico” del paziente e della gestione integrata del suo percorso di cura personalizzato, per far fronte – in modo organico e integrato –ai suoi bisogni di salute, molto spesso – in particolare per pazienti anziani e cronici – non legati a una sola patologia (oltre il 50% dei pazienti cronici ulta sessantacinquenni soffre di almeno due patologie1) e variabili nel tempo (vedi riquadro 1).

Questo obiettivo è al centro del modello evolutivo definito nell’ambito del PNRR e del DM77 ed implica ovviamente aspetti di natura organizzativa, clinica e tecnologica:

█ la valutazione e la gestione del paziente da parte di un team multidisciplinare, operante in centri diversi: afferenti sia alla

RIQUADRO 1

Il percorso di cura

Con il termine “percorso” si intende l’insieme sinergico e coordinato di servizi (sia singoli servizi che pacchetti di servizi) multiprofessionali – medici, assistenziali e socioassistenziali – e delle corrispondenti attività organizzative, erogati da diversi operatori e da diverse strutture sul territorio a favore di un paziente per affrontare un suo bisogno di salute.

Può anche comprendere attività eseguite direttamente dal paziente e/o dai suoi caregiver, quali assunzione di terapie, auto-misurazioni di parametri vitali, comunicazione di informazioni agli operatori di riferimento. A seguito della valutazione da parte di una equipe multidisciplinare, il paziente viene preso in carico dalla struttura e viene definito il percorso (piano di assistenza individuale, PAI), personalizzato in funzione dei suoi specifici bisogni.

L’implementazione del percorso comprende la pianificazione e l’erogazione da parte delle organizzazioni coinvolte dei servizi clinico-assistenziali e delle prescrizioni terapeutiche necessarie nonché gli adempimenti a carico del paziente stesso con la relativa pianificazione di massima nell’arco del tempo e l’individuazione degli operatori interessati con i relativi ruoli e regole di ingaggio.

Il percorso del paziente è seguito da un team multidisciplinare (formato anche da professionisti di diverse organizzazioni) e,

1 Ministero della Salute – Piano Nazionale delle cronicità https://www.salute.gov.it/imgs/C_17_pubblicazioni_2584_allegato.pdf

stessa azienda che ad aziende diverse, in prospettiva anche private;

█ il potenziamento della rete territoriale mediante la costituzione di centri adeguati ai singoli bisogni e la costituzione di centrali operative territoriali (COT) con la responsabilità di seguire e coordinare l’evoluzione del paziente lungo il suo percorso attraverso i diversi centri e le diverse aziende;

█ la presenza di una infrastruttura informatica in grado di integrare e condividere i dati e supportare l’utilizzo della telemedicina che rappresenta uno strumento indispensabile e abilitante sia per aumentare il contatto ed il monitoraggio del paziente che per consentire la collaborazione clinico-organizzativa dei vari professionisti coinvolti, operanti sul territorio anche senza la presenza del paziente stesso.

usualmente, da un case manager con la responsabilità di seguire l’evoluzione del paziente e di coordinare l’erogazione dei servizi necessari. Va anche considerato che il percorso non è un iter predefinito ed immutabile, ma si evolve dinamicamente nel tempo, in termini di tipologia e di pianificazione delle attività da eseguire, sulla base degli esiti dei vari trattamenti e dell’evoluzione dello stato di salute e dei bisogni del paziente (Figura 1).

Cfr.

https://www.asiquas.it/wp-content/uploads/2021/06/Percorsidiagnostici.pdf

https://www.epicentro.iss.it/focus/ocse/Cap1-Percorsi.pdf

https://www.salute.gov.it/portale/lea/dettaglioContenutiLea. jsp?area=Lea&id=4705&ling a=italiano&menu=socioSanitaria

49 INFORMATICA giugno 2023

È evidente come per implementare questo scenario un prerequisito fondamentale per l’infrastruttura informatica sia rappresentato dalla organizzazione e dalla gestione dei dati, che devono essere disponibili in forma elementare, in modo da essere utilizzabili individualmente da strumenti automatici, e non solo aggregati in documenti, magari PDF crittografati. In tale formato (come in gran parte registrati nell’attuale FSE) sono senz’altro utili per una ispezione visiva e per attestare l’autore dell’atto clinico nel suo complesso, ma non possono essere utilizzati per l’analisi ed il monitoraggio proattivo dell’evoluzione delle condizioni di salute del paziente. Si pensi, per esempio alla necessità di un grafico con l’andamento nel tempo della glicemia correlata con la pressione arteriosa durante la visita di un paziente, all’evidenziazione tempestiva di valori anomalo di allarme nell’ambito di una popolazione monitorata da una COT ecc.

█ quella relativa al supporto ai processi clinico-organizzativi, in cui l’esigenza non è l’analisi dettagliata del singolo individuo, ma l’elaborazione ed aggregazione di alcune specifiche informazioni di più pazienti, per esempio per la costruzione di liste di lavoro, di cruscotti di monitoraggio per evidenziare tempestivamente situazioni di allarme, di agende di appuntamenti ecc. Per non parlare della ricerca, della prevenzione e della medicina predittiva.

L’ORGANIZZAZIONE DEI DATI NEGLI ATTUALI SISTEMI INFORMATIVI AZIENDALI

A questo scopo, nello scenario di collaborazione territoriale previsto (Figura 2), l’organizzazione e la condivisione dei dati deve soddisfare a due requisiti, che esulano della struttura e dagli scopi del Fascicolo Sanitario Elettronico:

█ quella relativa al singolo paziente, per fornire all’operatore sanitario – durante l’attività clinico - assistenziale (anche in assenza del paziente) – un quadro completo e affidabile dello stato del paziente in esame, sia in termini dei dati clinici che delle attività effettuate/previste.

Nota: Queste informazioni, in termini di dati clinici ed attività, possono essere originate sia nell’ambito di quanto pianificato nel percorso, sia a fronte di altre esigenze di salute del paziente che può effettuare visite, esami, ricoveri (anche presso centri diversi) per problemi non strettamente connessi da quanto oggetto del percorso.

Per ragioni storiche e commerciali, i sistemi informativi delle aziende sanitarie sono in massima parte strutturati secondo architetture “a silos” con applicazioni diverse, debolmente interconnesse fra di loro e operanti con basi di dati di fornitori diversi, eterogenee dal punto di vista tecnologico e di contenuto informativo, oltre che spesso proprietarie e non accessibili dall’azienda stessa al di fuori delle funzionalità oggetto della fornitura. Ai principali “silos” operanti a livello dipartimentale e/o dei principali processi aziendali, va poi aggiunta quella miriade di applicazioni, spesso collegate con un dispositivo medico, che vengono utilizzate a livello individuale per il supporto a singole attività, come nel caso della telemedicina, ciascuna con la sua base dati scollegata dal resto (Figura 3).

Di conseguenza i dati clinici ed organizzativi dei pazienti sono frammentati in contesti diversi (per esempio cartelle cliniche specialistiche, cartelle ambulatoriali, sistemi dipartimentali, sistemi di supporto alla ricerca, archivi di big-data ecc.). Questo scenario di frammentazione si amplifica inevitabilmente sempre più con:

█ l’evoluzione dei modelli assistenziali, in cui il percorso clinico-organizzativo del paziente è gestito da diversi attori anche distribuiti sul territorio e ognuno con il proprio sistema informatico;

█ la crescita delle applicazioni di telemedicina (durante la pandemia Covid sono state più di 200 le iniziative di telemedicina avviate autonomamente dalle singole aziende sanitarie2);

█ l’aumento dell’IoT e delle APP - anche commerciali- gestite autonomamente dai pazienti.

50 INFORMATICA giugno 2023

Da una recente indagine (3) dell’Osservatorio sulla Telemedicina Operativa dell’ALTEMS (4) cui hanno partecipato 128 aziende sanitarie, è emerso che il numero medio delle applicazioni (e relative basi dati) nelle aziende è dell’ordine di 80, con punte che superano le 200, senza contare tutte quelle le applicazioni a supporto dei dispositivi (ad esempio gli ecografi ed ECG distinti) utilizzati autonomamente – in mobilità e negli ambulatori – a supporto delle varie attività. È chiaro che in questo contesto frammentato diventa anche impossibile (sia tecnicamente che economicamente) il popolamento completo e sicuro del FSE, a cui dovrebbe collegarsi ogni singola applicazione.

Tutto questo determina un aumento del volume di dati ed uno scenario complessivo che potremmo definire “la Babele della sanità digitale” (Figura 3), con i dati che diventano sempre più settoriali e circoscritti ad attività specifiche e registrati secondo tecnologie diverse e con modelli sintattici e semantici diversi, quasi sempre proprietari. In definitiva inutilizzabili per quegli obiettivi di salute del singolo cittadino, gestione dei processi clinico-assistenziali all’interno dell’azienda e sul territorio e supporto alle esigenze complessive del SSN (vedi anche l’articolo “La babele dei dati nella sanità digitale” nel numero 2-2021 di “Progettare per la Sanità”).

In questo scenario, già all’interno della singola azienda, diventa difficile, se non impossibile:

█ dal punto di vista clinico: presentare un quadro complessivo dello stato di salute del paziente per assicurare la fondatezza delle decisioni cliniche

e per attivare meccanismi di monitoraggio e di alert riscontrabili dalla correlazione di diverse informazioni (es. co-morbilità, allergie...);

█ dal punto di vista economico e della continuità del percorso di cura:

assicurare la continuità dei processi evitando hand-over verbali o cartacei, e pianificare ed ottimizzare le risorse necessarie, tanto a livello del singolo centro che in contesti distribuiti e di collaborazione sul territorio;

█ dal punto della protezione dei dati: adempiere a tutte le disposizioni del Regolamento, non solo in termini di criteri e livelli uniformi per la sicurezza e il controllo sugli accessi e sull’utilizzo dei dati personali, ma anche relativamente al diritto dell’interessato all’ottenimento ed alla trasportabilità dei propri dati;

█ dal punto di vista della prevenzione e della ricerca: disporre di un patrimonio informativo, coerente e il più ampio possibile, per consentire –nel rispetto della normativa – analisi statistiche, epidemiologiche e di ricerca;

█ dal punto di vista della dipendenza dai fornitori delle diverse applicazioni:

non aver bisogno di rivolgersi – con i conseguenti oneri in termini di tempi e di costi – ogni qual volta sia necessaria l’acquisizione di dati di interesse, fino a configurare fenomeni di “vendor lock-in” evidenziati anche nel 2017 dalle “Linee guida 8” dell’Autorità Nazionale Anticorruzione(5)

COME EVOLVERE I SISTEMI INFORMATIVI AZIENDALI

2 Instant Report COVID-19, settimanali dell’ALTEMS da Marzo 2020, https://altems. unicatt.it/altems-covid-19

3 Survey sulle soluzioni di telemedicina implementate dalle aziende sanitarie, 2021, www.dati-sanita.it

4 https://altems.unicatt.it/altems-laboratori-e-osservatori-i-sistemi-informativi-sanitariper-il-governo-dell-organizzazione

Già nel 2017, il “Quadro europeo di interoperabilità - Strategia di attuazione” (6) indicava l’accessibilità e la condivisione dei dati come il requisito fondamentale per una reale interoperabilità dei sistemi. Questa necessità è stata nuovamente evidenziata anche dal Ministero della Salute, nella “Proposta per lo Schema di riforma dei Sistemi Informativi Sanitari” del gennaio 2022 (Figura 4). Il raggiungimento di questo obiettivo richiede peraltro misure sia tecniche che normative.

5 delibera numero 950 del 13 settembre 2017

6 https://ec.europa.eu/isa2/eif_en

51 INFORMATICA giugno 2023
█ Figura 3 - La frammentazione e non accessibilità dei dati nello scenario attuale

Dal punto di vista tecnologico, questa evoluzione non può ovviamente basarsi sulla sostituzione dell’esistente e sull’adozione di un unico sistema (un “grande fratello”) che dovrebbe essere in grado in grado di gestire in modo tempestivo e adeguato tutti i diversi contesti organizzativi e i requisiti delle diverse patologie (si pensi per esempio al numero delle cartelle cliniche specialistiche mirate a particolari esigenze e realizzate in collaborazione con le società scientifiche).

La strategia evolutiva deve quindi basarsi su tre requisiti fondamentali:

a) è innanzi tutto necessario preservare la possibilità di integrare nel sistema informativo applicazioni diverse, fornite da fornitori diversi, selezionabili senza condizionamenti tecnici e/o commerciali, ma in funzione della sola adeguatezza rispetto alle esigenze cliniche e organizzative e della convenienza economica;

b) è necessario un approccio “non invasivo”, tale cioè da non richiedere modifiche alle applicazioni già operative nell’azienda, che richiederebbero tempi e costi ulteriori. Al tempo stesso flessibile e graduale, tale cioè da poter essere implementato secondo le priorità, le esigenze e le risorse dell’azienda, consentendo di preservare e capitalizzare su quanto man mano realizzato.

c) infine, ma forse per primo dal punto di vista strategico, è necessario che il patrimonio informativo integrato sia organizzato secondo un modello conosciuto dall’azienda e non proprietario, in modo da garantire all'azienda stessa la reale proprietà sui

7 https://www.salute.gov.it/portale/documentazione/p6_2_2_1. jsp?lingua=italiano&id=3223

propri dati e la possibilità di usarli in tutte le applicazioni, come e quando necessario, senza condizionamenti di sorta – con i conseguenti tempi e costi – rispetto a specifici fornitori.

Per raggiungere questo scopo si può adottare lo stesso approccio – graduale, non invasivo e senza bisogno di modificare le applicazioni – implementato, da sempre, nell’area amministrativa mediante la costruzione del “datawarehouse” che – senza imporre limitazioni tecniche e/o commerciali alle singole applicazioni – riceve i dati dei diversi settori e li integra in una base dati aziendale, tramite la quale poter effettuare tutte le analisi ed operazioni relative al controllo gestione ed al governo amministrativo dell’azienda. In questo modo l’azienda rimane libera di adottare – senza vincoli economici e/o tecnologici – le applicazioni più rispondenti alle proprie esigenze nei singoli settori, garantendosi parallelamente la disponibilità e l’integrazione del patrimonio informativo complessivo. Adottando anche per il governo clinico questo approccio, il sistema informativo dell’azienda può abbastanza facilmente dotarsi di un “Clinical Data Repository” (8) (Figura 5), ovvero una base dati indipendente dalle singole applicazioni, che sia basata su una struttura stabile, conosciuta dall’azienda e accessibile autonomamente senza dipendenza dai fornitori e preferibilmente standard. Integrando tutti i dati clinico-organizzativi (oltre che i nomenclatori, le codifiche ed i profili di abilitazione) il Repository potrà sia assicurare a tutte le nuove applicazioni di disporre con sicurezza dei dati necessari da qualsiasi fonte vengano generati, sia costituire l’unica interfaccia aziendale verso i sistemi esterni e verso il FSE secondo lo standard HL7/FHIR previsto dal PNRR, in grado quindi di assicurarne la completezza e la coerenza secondo quanto previsto nello schema architetturale dello scenario nazionale (Figura 6).

Dal punto di vista delle normative sulla protezione dei dati, si può ossevare che un Clinical Data Repository (CDR) implementa, fra l’altro, un “Dossier Sanitario”, come definito nelle “Linee guida in materia di dossier sanitario”(9) risalenti al 4 giugno 2015.

8 https://www.gartner.com/it-glossary/cdr-clinical-data-repository

9 https://www.garanteprivacy.it/home/docweb/-/docweb-display/docweb/4084632

52 INFORMATICA giugno 2023

Tali Linee Guida, nate in presenza del quadro giuridico vigente prima del GDPR, oltre a stabilire i requisiti -tecnologicamente realizzabili- in termini di controllo e tracciabilità degli accessi da parte degli operatori autorizzati, richiedono anche l’esplicito consenso del paziente come base giuridica per l’ integrazione nel CDR dei suoi dati fra i vari sistemi nei quali sono frammentati.

La domanda che ci si pone oggi è se oggi tali Linee Guida del Garante debbano o meno considerarsi applicabili, nel nuovo quadro giuridico del GDPR.

L’art. 9 par. 2 introduce infatti molte altre basi giuridiche utilizzabili in questa tipologia di trattamento:

█ lo stesso art. 9 lett. h richiama non solo la locuzione “trattamenti per diagnosi e cura” ma anche quella di “gestione dei sistemi sanitari”;

█ la lett. i) che legittima il trattamento dei dati per “la garanzia di parametri elevati di qualità e sicurezza dell’assistenza sanitaria” oppure la lett. g sull’interesse pubblico

Le posizioni del nostro Garante Privacy appaiono molto restrittive sul punto (si vedano le Prescrizioni Garante del 9 marzo 2019 e l’Ingiunzione nei confronti della Valle D’Aosta del 10 novembre 2022). Tali posizioni partono tutte dal provvedimento del Garante 9 marzo 2019 n. 55 titolato “Chiarimenti sull’applicazione della disciplina per il trattamento dei dati relativi alla salute in ambito sanitario” in forza del quale solo il singolo atto clinico troverebbe la sua base giuridica nell’art. 9 lett. h) mentre tutte le altre attività devono trovare fondamento per il trattamento nel consenso del paziente.

Ora, considerare il consenso come unica base legittimante per trattamenti connessi e collegati clinicamente alla singola prestazioni (seppure “ulteriori” rispetto alla stessa) rappresenta oggi una significativa criticità – sia dal punto di vista sanitario, organizzativo che tecnico – al raggiungimento dello scenario di collaborazione previsto dal PNRR, in quanto le aziende:

a) dovrebbero oggi contattare tutti i pazienti che sono stati seguiti in passato per acquisire formalmente il consenso, operazione chiaramente oltremodo lunga e complessa;

53 INFORMATICA giugno 2023

b) nei casi in cui il paziente non dovesse confermare il proprio consenso, diventerebbe molto complesso -in molti casi non fattibile né dal punto di vista tecnico che da quello economicoriuscire ad assicurare il funzionamento della rete assistenziale sul territorio per gestire il percorso del paziente. A meno di non rimanere nello scenario attuale in cui tutta la responsabilità viene riversata sul paziente stesso che autonomamente ha il compito di gestire il proprio percorso e di contattare i diversi attori portando ogni volta il faldone cartaceo dei proprio dati sanitari.

La struttura di un Clinical Data Repository secondo queste caratteristiche, rispondente nel modello dati allo standard ISO-12967 ed alle esigenze di protezione dei dati personali definite nelle suddette “Linee guida in materia di dossier sanitario” in termini di registrazione e controllo degli accessi, è stata implementata dal “Laboratorio sui Sistemi Informativi Sanitari” (10) dell’ALTEMS ed è liberamente disponibile in modalità open source sul sito www. dati-sanita.it, secondo le specificità di diversi sistemi di gestione di basi di dati (Oracle, MS-SQL e Postgres).

LA COLLABORAZIONE DI AZIENDE DIVERSE

NEL PERCORSO DI CURA DELPAZIENTE

Lo scenario descritto riesce a soddisfare le esigenze clinicoorganizzative di gestione del percorso di cura nel caso in cui tutti gli attori sul territorio coinvolti nella cura della paziente appartengano alla stessa azienda che implementi il Repository e governi – dal punto di vista tecnico e organizzativo – l’accesso ai dati a tutti gli utenti, che sono tutti suoi dipendenti.

La situazione è più complessa nel caso in cui – come peraltro avviene nella maggioranza dei casi – il percorso di cura del paziente si sviluppi mediante la collaborazione di aziende diverse, quali ASL, AO, AOU, singoli specialisti, servizi sociali, e anche strutture private. Si pensi per

10 https://altems.unicatt.it/altems-laboratori-e-osservatori-i-sistemi-informativi-sanitariper-il-governo-dell-organizzazione

esempio alla auspicata collaborazione ospedale-territorio nella cura delle cronicità, dei pazienti multi-morbidi, dei pazienti disabili, e delle malattie rare anche fra strutture interregionali. In questi casi l’efficienza e l’efficacia dei trattamenti clinicoassistenziali sono direttamente legate alla possibilità per tutti gli attori interessati di condividere sia dati clinici che il piano delle attività del paziente in modo da poter rispondere tempestivamente e sinergicamente all’evoluzione delle esigenze del paziente stesso.

Anche per questo contesto, la presenza dei repository che integri tutte le informazioni disponibili nell’azienda e rappresenti quindi un unico punto di interazione fra l’azienda stessa ed il mondo esterno è un elemento imprescindibile per rendere fattibile e sicura la collaborazione sulla rete territoriale.

Si possono a questo proposito individuare due possibili scenari - anche coesistenti - a seconda della complessità della struttura della rete e delle infrastrutture tecnologiche a disposizione degli attori coinvolti (Figura 7):

a) L’azienda che ha preso in carico il paziente consente l’accesso al proprio repository, per la consultazione e l’aggiornamento dei dati di interesse, a tutti gli attori coinvolti sul territorio nella gestione del percorso di cura del paziente stesso. Può essere il caso di un singolo specialista, di un MMG, di una

█ Figura 7 – La necessità di Dossier Sanitari condivisi e “multi-titolari”, con dati forniti da diversi soggetti (compreso il paziente), ognuno dei quali responsabile dei dati originati

54 INFORMATICA giugno 2023

farmacia, coinvolti nella cura del paziente e che non dispongano e/o abbiano necessità di un proprio sistema informativo articolato e completo.

b) L’ Azienda Ospedaliera, che -con i propri specialisti- ha in cura il paziente per una o più specifiche patologie, deve collaborare con i servizi territoriali della ASL sia per prestazioni legate alle specifiche patologie trattate dagli specialisti stessi sia per servizi diagnostici, terapeutici ed assistenziali complementari, necessari al paziente in relazione alle sue condizioni di salute. In questo caso si può ipotizzare che i due repository (quello della ASL e quello dell’Ospedale) interagiscano – direttamente o tramite i servizi delle piattaforme nazionali – per condividere i dati necessari e integrarli nel proprio contesto clinico, organizzativo e tecnologico, in modo da consentire la pianificazione e l’erogazione dei servizi in modo sicuro ed efficiente, mantenendo sempre – in ambedue i repository – un quadro completo ed aggiornato dell’evoluzione del percorso del paziente.

Ferme restando queste imprescindibili esigenze clinico-organizzative per il supporto alle operatività per rendere il sistema usabile al singolo utente (sanitario o paziente che sia), la presenza di un repository regionale, se completo, integrato e sincronizzato con tutti i repository aziendali può costituire una soluzione di natura tecnica per facilitare le interazioni e le integrazioni di ambienti tecnologici diversi.

In questo caso, va anche previsto il caso -tutt’altro che infrequente- di quei pazienti che sono seguiti anche da centri di Regioni diverse da quella di residenza, o per le caratteristiche della patologia e l’eccellenza dei centri extra-regionali in questi ambiti, o per una maggiore vicinanza geografica vivendo vicino al confine fra regioni diverse.

L’implementazione di questi scenari -anche nel caso in cui ci si avvalga di un unico repository messo a disposizione dalla Regione- configura quindi la necessità di realizzare di “dossier sanitari multi-titolari” cui devono poter accedere – con le dovute modalità e abilitazioni – diverse organizzazioni e diversi soggetti (compreso il paziente stesso), ognuno dei quali responsabile dei dati direttamente gestiti.

Questo è certamente possibile dal punto di vista tecnico con una opportuna struttura del repository che tenga traccia delle singole operazioni sui singoli dati.

Necessita peraltro ancora di un quadro normativo che renda possibile questa condivisione in modo semplice e con tempi e procedure organizzative coerenti con la necessaria completezza, sicurezza e tempestività nella cura del paziente.

Anche per questa seconda ipotesi si pone il problema di un corretto inquadramento sotto il profilo GDPR, sia sotto il profilo dei ruoli privacy che quello della base giuridica.

Circa i ruoli privacy, allo stato attuale della disciplina è possibile ipotizzare solo tre soluzioni:

█ un soggetto (per esempio ospedale) assume il ruolo di titolare e tutte le altre strutture sanitarie (es. azienda territoriale, ente di assistenza ecc.) vengono nominati come responsabili ex art. 28 GDPR: soluzione percorribile ma che è senza dubbio molto complessa nella gestione dei contratti e della eventuale e connessa responsabilità solidale (art. 82 GDPR);

█ i soggetti coinvolti nel percorso diventano tutti contitolari (art. 26 GDPR): anche questa percorribile in teoria ma molto articolata nella pratica, perché comporterebbe la stipula di contratti di contitolarità con diversi soggetti (che tra l’atro potrebbero cambiare ove cambi il percorso di cura);

█ la titolarità autonoma delle diverse persone giuridiche coinvolte nel percorso di cura: questa appare più semplice ma si porta dietro il tema della base giuridica autonoma per ogni soggetto e, altresì, il tema della legittimità dei trasferimenti dei dati da un soggetto a un altro.

Su questo ultimo punto si riaprono le considerazioni già sopra svolte circa l’idonea base giuridica. Se infatti non si apre un orizzonte che vada “oltre il consenso”, e non si riflette su altre basi giuridiche che pur appaiono lecitamente utilizzabili, il rischio è quello non solo di dover raccogliere un consenso ogni step (con la perdita anche di quel senso di “unicità del percorso” che caratterizza la scelta clinica), ma anche di non sapere come “trasmettere” i dati da un soggetto ad un altro.

Sul punto Agenas ha pubblicato, a dicembre 2022, un documento piuttosto corposo (circa 118 pagine) titolato “La Centrale Operativa Territoriale: dalla realizzazione all’attivazione” (11) nel quale, oltre ad illustrare come deve essere organizzata una COT, spiega anche come trattare i dati in compliance al GDPR. Tale documento può essere uno spunto iniziale per ampliare il ragionamento alle modalità di trattamento dei dati in un assetto diversi da quello attuale. Molto, in sintesi, il documento disegna il seguente percorso.

Fonte dei dati

Le COT dovranno poter utilizzare le banche dati già esistenti, quali anagrafe pazienti (regionali ed ANA) database ricoveri e prestazioni ambulatoriali PAI, anagrafiche personale sanitario ecc.

Tipologia dei dati trattati

I dati trattati saranno

█ dati personali afferenti a pazienti interessati da una transizione assistenziale (dati anagrafici, dati relativi alla salute);

11 https://www.agenas.gov.it/comunicazione/primo-piano/2184-la-centrale-operativaterritoriale-dalla-realizzazione-all%E2%80%99attivazione

55 INFORMATICA giugno 2023

█ dati personali afferenti ad operatori che prestano attività presso la COT oppure operanti presso le strutture di partenza e destinazione della transizione assistenziale e svolgenti un ruolo nello specifico processo di transizione (dati anagrafici, dati relativi alla salute);

█ dati afferenti ai caregiver impegnati nel supporto ad altro soggetto (dati anagrafici).

Finalità del trattamento

Tali dati verranno tratti dalla COT per le seguenti finalità (per le quali dovranno quindi essere completi e adeguati):

█ coordinamento della presa in carico della persona tra i servizi e i professionisti sanitari coinvolti nei diversi setting assistenziali (transizione tra i diversi setting: ammissione/dimissione nelle strutture ospedaliere, ammissione/dimissione trattamento temporaneo e/o definitivo residenziale, ammissione/dimissione presso le strutture di ricovero intermedie o dimissione domiciliare); coordinamento/ ottimizzazione degli interventi, attivando soggetti e risorse della rete assistenziale;

█ tracciamento e monitoraggio delle transizioni da un luogo di cura all’altro o da un livello clinico assistenziale all’altro;

█ supporto informativo e logistico, ai professionisti della rete assistenziale (MMG, PLS, MCA, IFoC ecc.), riguardo le attività e servizi distrettuali;

█ raccolta, gestione e monitoraggio dei dati di salute, anche attraverso strumenti di telemedicina, dei percorsi integrati di cronicità, dei pazienti in assistenza domiciliare e gestione della piattaforma tecnologica di supporto per la presa in carico della persona, (telemedicina, strumenti di e-health ecc.), utilizzata operativamente dalle CdC e dagli altri servizi afferenti al Distretto, al fine di raccogliere, decodificare e classificare il bisogno.

Base giuridica

Circa la base giuridica per il “passaggio” di dati in tutte queste “comunicazioni” di dati relativi alla salute da un soggetto a un altro, il documento così stabilisce (e questa a parere mio è la parte più interessante):

In considerazione del fatto che la transizione tra un setting e l’altro è da considerarsi come la logica prosecuzione del percorso di cura di un interessato, il quale prosegue afferendo a diversi servizi/strutture nel corso del tempo, il trattamento dei dati viene effettuato dai titolari del trattamento ai sensi dell’art. 6 par. 1 lettera e) e dell’art. 9, par. 2, lettera h) del GDPR 679/2016.

Precisando subito dopo che:

Si precisa come sia necessario valutare la necessità di utilizzo di un presupposto di liceità ulteriore quale il consenso (art. 9, paragrafo 2,

lettera a del GDPR), nel momento in cui il percorso di trattamento dati svolto in concreto da una COT preveda delle comunicazioni dati ad alcuni soggetti il cui intervento potrebbe non essere strettamente necessario al raggiungimento della finalità di gestione della transizione assistenziale richiesta, ma che gli operatori ritengano comunque utile Dalla lettura combinata dei due paragrafi sopra riportati sembrerebbe di capire che il passaggio di un paziente da un setting di cura ad un altro setting di cura – per esempio un PDTA post ricovero che parte dall’ospedale per andare sul territorio (sia MMG, attività specialistica, infermiere di comunità ecc.) per poi magari tornare in ospedale – sia giustamente da considerare come un “unico percorso di cura”, che come tale trova la sua base giuridica nell’art. 6 lett. e) (interesse pubblico) e nell’art. 9 lett. h) (diagnosi e cura) del GDPR; solo ove poi per ragioni cliniche si esca dal setting di cura previsto per comunicare con altri soggetti occorrerà il consenso dell’interessato.

L’interpretazione di Agenas in sostanza tiene conto della continuità clinica e ritiene – in maniera corretta a parere di chi scrive – che tale l’unicità del percorso clinico comporti anche una unicità di base di trattamento, ritenendo quindi l’art. 9 lett. h) come base giuridica in grado di “coprire” giuridicamente l’intero precorso. In altre parole la costruzione giuridica di Agenas si basa sul fatto che, sotto il profilo clinico, vi è una “transizione assistenziale” del paziente da uno/più soggetti erogatori ad altri soggetti erogatori e che tale transizione assistenziale possa essere considerata un unico “percorso di cura”: in questo senso, sotto il profilo GDPR, tutto il processo (indipendentemente dal fatto che vi partecipino soggetti diversi) può trovare la propria base giuridica nell’art. 9 lett. h) GDPR (cioè passaggi da un soggetto ad un altro senza consenso del paziente).

Senza dubbio si tratta di una interpretazione avanzata, che forse meriterebbe un confronto con il Garante Privacy.

Si segnala infine che tali nuovi modelli organizzativi comportano senza dubbio una Valutazione d’Impatto ex art. 35 GDPR (e non potrebbe essere diversamente considerando tutti questi dati che viaggeranno da un soggetto a un altro): attività che spesso invece non viene svolta nelle strutture sanitarie.

Gli autori

FABRIZIO MASSIMO FERRARA

Docente di Informatica e sistemi informativi nel Corso di Laurea in Economia e Gestione delle Aziende e dei Servizi Sanitari e Coordinatore del “Laboratorio sui sistemi informativi sanitari” presso l’ ALTEMS – Alta Scuola di Economia e Management dei Sistemi Sanitari, Università Cattolica del Sacro Cuore

SILVIA STEFANELLI

Studio legale Stefanelli & Stefanelli

56 INFORMATICA giugno 2023

La settima edizione di quest’Opera, riveduta e aggiornata, raccoglie in un unico, agile strumento di lavoro tutte le norme cardine che sovraintendono al governo del territorio.

Tra i provvedimenti recepiti, scelti fra quelli che rivestono maggiore interesse per il lettore, segnaliamo:

– il DL 31 maggio 2021, n. 77, convertito, con modificazioni, dalla Legge 29 luglio 2021, n. 108, Governance del Piano nazionale di ripresa e resilienza e prime misure di rafforzamento delle strutture amministrative e di accelerazione e snellimento delle procedure, recante numerose e significative modifiche al Testo Unico dell’Edilizia;

– il DLgs 8 novembre 2021, n. 207, che modifica, fra l’altro, le norme sul certificato di agibilità e introduce le regole per l’infrastrutturazione digitale degli edifici;

– la Legge 9 marzo 2022, n. 22, Disposizioni in materia di reati contro il patrimonio culturale, recante modifica al Codice dei Beni Culturali e del Paesaggio.

L’insieme dei provvedimenti approvati recentemente conferma l’obiettivo del Legislatore di rilanciare gli investimenti pubblici e di promuovere l’accelerazione degli interventi di rigenerazione urbana e di ricostruzione del territorio nazionale.

Un esaustivo indice analitico-alfabetico rende questo volume un supporto indispensabile per i Tecnici, i Progettisti e i RUP della Pubblica Amministrazione che necessitano di strumenti sempre aggiornati e coordinati con le ultime norme che disciplinano questa complessa materia.

www.build.it Nuova Edizione

La rivoluzione della Cartella Digitale Ambientale

In Italia le infezioni ospedaliere fanno più vittime degli incidenti stradali, facciamo l’esame per la patente ma lo facciamo un esame in “lavaggio delle mani”? E poi, chi non lo passa cosa fa? Smette di fare i turni in ospedale e va a ripetizioni?

In tutto il mondo, le infezioni sono l’evento avverso più frequente in sanità e costituiscono statisticamente la complicanza più frequente in ospedale; l’organizzazione mondiale della sanità ha dimostrato che l’infezione del sito chirurgico è la più studiata e ricorrente e colpisce fino a un terzo dei pazienti sottoposti a procedura chirurgica. Tali infezioni, poi, rimangono tra le ICA (Infezioni Correlate all’Assistenza) più frequenti in alcuni paesi europei e negli Stati Uniti. A questo scenario si unisce anche il sempre più alto tasso di antibiotico resistenza, problematica che vede purtroppo l’Italia al primo posto insieme alla Spagna.

UN TREND DA INVERTIRE

Se questo trend non cambierà, nel 2050 le infezioni uccideranno più della malattia oncologica.

A parte l’aspetto umano di non poco conto, possiamo permetterci di sostenere i relativi costi sanitari e sociali? Proprio per questo sempre più spesso la Cassazione viene chiamata a risolvere le sempre più frequenti cause legali per i danni da ICA.

Una recente sentenza della Corte Suprema Italiana - datata 3 marzo 2023 in materia di infezioni nosocomiali e oneri probatori

della struttura ospedaliera - ha portato a una svolta nell’ambito del contenzioso giudiziario.

Alla struttura occorre provare:

█ di avere adottato tutte le cautele prescritte dalle normative vigenti e dalle leges artis al fine di prevenire l’insorgenza di patologie infettive;

█ di aver applicato i protocolli di prevenzione delle infezioni.

La Cassazione arriva a elencare i punti di ciò che le strutture ospedaliere dovrebbero allegare e dimostrare per rendere ovvio di aver adottato tutte le cautele prescritte e di aver applicato i protocolli di prevenzione.

Le misure necessarie per la prevenzione delle infezioni del sito chirurgico sono oggetto di intensa ricerca ed estrema attenzione in quanto le evidenze relative alle misure comportamentali sono molto più difficili da trovare e la loro applicazione difficile da provare.

COSA FARE PER DIFENDERSI

DALLE INFEZIONI DEL SITO CHIRURGICO

In questo scenario cosa possiamo fare? Come ci possiamo difendere da questi intelligentissimi batteri e virus, capaci di mutare alla velocità del suono e di collaborare fra loro in modo impeccabile?

di Federico Alfredo Fabbri, Valentina De Simone
58 INNOVAZIONE DIGITALE giugno 2023
Le ICA continuano a rappresentare un problema molto serio in ogni parte del mondo e costituiscono statisticamente la complicanza più frequente in ospedale. Tra queste, le infezioni del sito chirurgico sono le più ricorrenti

Per far fronte a questa sfida è giunto il momento di essere creativi, e l’innovazione digitale è la strada da seguire.

Un gruppo di creativi visionari hanno creato la sala operatoria dotata di sistemi di areazione 4.0 dotato di un sistema innovativo che consente il controllo delle condizioni ambientali in tempo reale su un alto numero di parametri e la registrazione di questi dati.

I sistemi di areazione 4.0 per la sala operatoria portano diversi vantaggi; durante lo svolgimento delle attività chirurgiche, la soluzione 4.0 acquisisce i parametri ambientali, ne abilita il monitoraggio continuo e svolge in automatico le azioni necessarie per riportare in controllo i valori in caso di necessità.

In secondo luogo, la soluzione 4.0 permette di salvare e memorizzare i dati ambientali.

Tutte le informazioni raccolte dal sistema permettono di svolgere analisi a posteriori e di creare una Cartella Digitale Ambientale, una novità assoluta in ambito sanitario, uno strumento che può diventare la chiave di volta per aumentare la qualità del servizio e implementare un piano strutturato in un’ottica di miglioramento continuo.

Per il paziente, la diffusione della Cartella Digitale Ambientale significherebbe poter accedere in modo trasparente alle informazioni relative alle condizioni ambientali presenti durante l’intervento. Per l’operatore potrebbe essere lo stimolo e la prova di aver operato al meglio delle possibilità.

La Cartella Digitale Ambientale permette di fornire all’Ente strumenti preziosi ed efficaci per il controllo della qualità, rappresen-

tando uno strumento di prevenzione dei rischi e promozione della sicurezza per il paziente e per l’operatore sanitario, non dimentichiamoci infatti degli enormi rischi che gli operatori hanno affrontato e continuano ad affrontare in questa epoca di super virus! Questa tecnologia non avrebbe il valore che ha senza il continuo impegno dei nostri innovatori nella formazione e sensibilizzazione degli operatori sanitari, sia per un utilizzo corretto del sistema sia per l’adozione di comportamenti consapevoli e conformi alle linee guida. Una macchina non vince la gara senza un pilota d’eccezione. Il risultato di questo lungo lavoro di ricerca e di progettazione è un modello di riferimento che prende in considerazione l’aspetto tecnologico, l’utilizzo da parte degli utenti e l’operato del personale, il tutto volto a darci maggiori possibilità in questa lotta all’agente patogeno.

Ricordate Christofer Reeve, indimenticabile Superman degli anni ’80? Sono state le infezioni a portarci via questo grande attore: un motivo in più per combattere i temibili batteri che ci hanno privato di un supereroe!

FEDERICO
Architetto VALENTINA DE SIMONE Dottoressa in Biologia Gli autori
ALFREDO FABBRI
59 INNOVAZIONE DIGITALE giugno 2023 L’innovativa
dimensione del controllo in chirurgia

MULTISTRATO VALSIR, LA MIGLIOR DIFESA PER LE TUBAZIONI IDRAULICHE

Legionella e altri batteri presenti nell’acqua in natura sono al centro di un protocollo di disinfezione da parte delle strutture sanitarie sia perché viene richiesto a livello normativo, sia perché il rischio che un agente patogeno riesca a penetrare all’interno di un luogo di cura è sempre molto elevato.

A parte i progressi compiuti dalla medicina in ottica di contrasto all’infezione, anche i trattamenti di prevenzione dell’acqua hanno subito un’evoluzione importante che, tuttavia, non ha ancora portato a una soluzione definitiva in termini di:

█ efficacia;

█ rispetto totale della potabilità dell’acqua;

█ conservazione delle tubazioni.

Non essendoci un trattamento in grado di rispettare questi tre aspetti completamente, sono stati via via impiegati metodi che privilegiano un aspetto piuttosto che un altro.

Per semplificare, si possono raggruppare i trattamenti oggi disponibili in due macrocategorie:

█ trattamenti di tipo fisico (per esempio i metodi termici o di filtrazione dell’acqua);

█ trattamenti chimici (con utilizzo di agenti chimici: ad esempio cloro libero, biossido di cloro o monoclorammina).

LE IMPLICAZIONI DEI TRATTAMENTI

A BASE DI CLORO

Le conseguenze di questi trattamenti sulle tubazioni degli impianti non sono facili da prevedere perché la conseguenza su un impianto dipendono da molteplici fattori: il materiale delle tubazioni, (metallo o plastica), la temperatura di esercizio dell’acqua (al crescere della temperatura aumenta l’effetto ossidante del trattamento sulla tubazione), la tipologia di sanificante stesso, la pressione di esercizio (con l’aumento abbiamo un effetto peggiorativo).

Un altro aspetto importante riguarda la durata del trattamento, il quale può essere eseguito con un dosaggio in continuo per prevenzione, oppure può essere fatto anche come “trattamento shock”, in dosaggi più alti, per contrastare un’epidemia in atto. Da alcune analisi svolte da Valsir è emerso che il trattamento più impattante sulle tubazioni è quello che impiega il biossido di cloro, che risulta molto aggressivo nei confronti dell’impianto e in più genera dei sottoprodotti come cloriti e clorati che sono nocivi per la potabilità dell’acqua e, quindi, per l’utente finale.

L’azione corrosiva del biossido di cloro sulle tubazioni plastiche

█ Valsr propone una gamma completa di tubi e raccordi per la realizzazione di impianti di distribuzione idrica, di riscaldamento e raffrescamento ad alta e bassa temperatura, per aria compressa e industriali

Un esempio: l’azione del biossido di cloro su una tubazione in PPR – tradizionalmente impiegata per realizzare soprattutto impianti di grandi dimensioni – si svolge in tre fasi; in una prima fase il ClO2 va ad attaccare lo strato interno della tubazione, aggredendo la parte stabilizzante del materiale, quindi i legami chimici della materia prima. Nell’ultima fase si iniziano a formare delle microfessurazioni che col tempo portano a un’importante erosione del materiale della tubazione che, oltretutto, si frammenta ed entra in circolo insieme all’acqua. Nella peggiore delle ipotesi si arriva alla rottura dell’impianto con conseguenti perdite d’acqua.

60 PUBBLIREDAZIONALE giugno 2023

█ Esempio di azione corrosiva su una tubazione in rame causata dai trattamenti a base di cloro

█ Pexal® è il sistema composto da tubo multistrato realizzato in polietilene reticolato e alluminio saldato testa-testa per la conduzione idrica compatibile con tutte le linee di raccordi Valsir

L’azione corrosiva del biossido di cloro sul metallo

Prendiamo come esempio il rame, materiale tra i più utilizzati per le tubazioni d’acqua. Il rame ha la particolarità di diminuire l’effetto biocida del biossido di cloro, con la conseguenza che se ne rendono necessarie dosi sempre più alte e pericolose in circolo; allo stesso tempo avviene una corrosione del metallo che porta alla fessurazione della tubazione. In quanti anni si possano verificare questi danni è molto difficile da indicare o, per meglio dire, è complicato dare una risposta univoca viste le tante condizioni al contorno con così tanti fattori in gioco. In alcuni casi studio si sono riscontrate delle rotture già nei primi 10 anni di vita dell’impianto.

LA SOLUZIONE VALSIR: IL MULTISTRATO

Conscia di questa problematica, Valsir ha svolto studi e sperimentazioni per migliorare le materie prime del proprio multistrato applicato ai propri per i sistemi per l’ di adduzione. I risultati hanno permesso di prolungare la vita utile della tubazione in modo considerevole a parità di condizioni al contorno.

Per esempio, se confrontiamo la quantità di materiale che deteriorandosi si mescola all’acqua durante l’azione chimica del sanificante, nel multistrato Valsir rispetto a una tubazione in polipropilene PPR, questo valore è inferiore del 15%; se confrontato con una in rame la perdita del materiale diminuisce del 4% rallentando la formazione delle fessurazioni ma, soprattutto, conservando più a lungo la qualità dell’acqua.

Il multistrato Valsir è una tubazione in metallo e plastica che unisce i vantaggi sia della soluzione plastica, sia di quella metallica. La tubazione si presenta con lo strato interno in polietilene reticolato di tipo B, uno strato intermedio in alluminio e uno strato esterno protettivo in polietilene (prodotto Mixal) o polietilene reticolato tipo B (prodotto Pexal).

█ Il multistrato Valsir è una tubazione in metallo e plastica che unisce i vantaggi sia della soluzione plastica, sia di quella metallica

Spiega Francesco Folli, Product Manager Valsir: «Il nostro multistrato nasce ed è testato per un ciclo di vita di 50 anni nelle condizioni di esercizio definite dalla normativa. Questa non prevede però l’azione di un elemento sanificante come può essere il cloro o il biossido di cloro. Per compensare a questa lacuna, Valsir ha investito anche sull’affidabilità del materiale plastico (PEXb) a contatto con l’acqua puntando a migliorarne la resistenza all’azione ossidante degli agenti sanificanti.»

IL RUOLO DEL PROGETTISTA

Nella progettazione di un dell’impianto di un edificio ospedaliero va attentamente considerato il problema delle Infezioni Correlate all’Assistenza. Anche l’acqua, come abbiamo visto, può essere portatrice di germi e batteri potenzialmente letali. Il progettista, pertanto, deve saper valutare benefici e conseguenze nella scelta del trattamento più idoneo in funzione del sistema impiegato per l’impianto idraulico.

In prima battuta c’è un costo di realizzazione che, ovviamente, è legato in particolar modo alla tipologia di tubazione scelta. Tuttavia, una volta realizzato l’impianto, spesso ci si dimentica di pensare ai costi di manutenzione, intervento e riparazione per eventuali guasti o problematiche.

«E non ci fermiamo solo a questi – precisa Francesco Folli – ma pensiamo alle implicazioni che una perdita d’acqua potrebbe determinare qualora provocasse un’interruzione di servizio all’interno di un ospedale, per esempio l’inagibilità di una sala operatoria. Fortunatamente, rispetto a qualche anno fa, la progettazione è più attenta all’intero ciclo-vita della struttura e questo porta a valutare l’investimento con una visione molto più ampia.»

61 PUBBLIREDAZIONALE giugno 2023

Perché associarsi al C.N.E.T.O.

Il CNETO è un’associazione culturale che riunisce architetti e ingegneri interessati ai problemi dell’edilizia e della tecnica ospedaliera, tecnici, igienisti, amministratori ed economi di direzioni ospedaliere. Il CNETO ha come obiettivo primario la promozione dell’informazione e della conoscenza nello specifico settore della sanità, settore in continua e rapida evoluzione, che richiede il costante aggiornamento di tutti gli operatori. È proprio con questa finalità che l’Associazione organizza convegni nazionali e internazionali, viaggi di studio presso le strutture all’avanguardia sia italiane che estere, attiva contatti ufficiali con le altre associazioni e le istituzioni più rappresentative, anche straniere. Il CNETO è stato fondato quale Associazione multidisciplinare proprio perché la progettazione ospedaliera e socio-sanitaria esige la sinergia tra le diverse figure professionali coinvolte nella valutazione e risoluzione di tutti gli aspetti che concorrono a definire il progetto. La presenza delle Aziende, in qualità di soci collettivi, permette di stabilire uno stretto legame anche con il mondo della produzione e del mercato, le cui tendenze in atto costituiscono un indispensabile strumento di cultura tecnica.

RICHIESTA DI ADESIONE

Presa visione dell’articolo 4 dello statuto del CNETO il/la sottoscritto/a

Nome e Cognome

chiede di essere iscritto al CNETO in qualità di componente ordinario collettivo sostenitore studente € 100,00 € 300,00 € 600,00 € 50,00

Professione

Attività o carica

Comunicazioni sull’attività svolta nel campo-ospedaliero

Residenza e indirizzo:

Via N.

Città

Tel

Centro Nazionale per l’Edilizia e la Tecnica Ospedaliera

Versamento con bonifico bancario intestato a CNETO sul C/C Banca Prossima S.P.A., Filiale di Milano IBAN IT51A0335901600100000129131 specificando nella causale: “Quota associativa anno ..., Cognome e Nome (o ragione sociale) associato”.

C.N.E.T.O.

Centro Nazionale per l’Edilizia e la Tecnica Ospedaliera www.cneto.it | e-mail: info@cneto.it

Per iscriversi e per informazioni C.N.E.T.O.
62 giugno 2023

NOTIZIE DAL CNETO

A conclusione delle votazioni del CNETO per il triennio 2022-2024, sono risultati eletti i seguenti consiglieri:

Presidente: Stefano Capolongo

Past President: Maurizio Mauri

Segretario Generale: Marco Gola

Vice Presidenti: Margherita Carabillò e Roberto Righini

Direttore Rivista Progettare per la Sanità: Margherita Carabillò

Tesoriere: Roberto Righini

• GIUNTA ESECUTIVA

Ark.Ing.81 S.r.l. Righini

Bragonzi Gilberto

Carabillò Margherita

Ingaglio Monica

Meoli Federica

Peretti Gabriella

• CONSIGLIO NAZIONALE

Pollo Riccardo

Ravegnani Morosini Roberto

Sibillassociati Sibilla

Taddia Andrea

Tognolo Chiara

Vitali Marco

In rappresentanza dei Soci ordinari

Azzini Susanna

Bettamio Valentina

Bragonzi Gilberto

Brambilla Andrea

Carabillò Margherita

Colombo Luigi

Dubini Nicoletta

Ferrante Tiziana

Gola Marco

Grifa Egisto

Ingaglio Monica

Ladini Lino

Manara Giuseppe

Mauri Maurizio

Meoli Federica

Oddi Baglioni Grifone

Pedrini Daniela

Peretti Gabriella

Pollo Riccardo

Ravegnani Morosini Roberto

Taddia Andrea

Tognolo Chiara

Torricelli Maria Chiara

Vitali Marco

Zingaretti Gabriele

In rappresentanza dei Soci collettivi AIRNOVA

ARK.ING.81 S.r.l.

BININI PARTNERS S.r.l.

CAIREPRO - COOPERATIVA ARCHITETTI

E INGEGNERI PROGETTAZIONE

POLITECNICO DI MILANO - Dipartimento ABC

PROGER SpA

PROGETTO CMR

SAGICOFIM SpA

SIBILLASSOCIATI

TECNICAER ENGINEERING S.r.l.

ESTRATTO DALLO STATUTO

Art. 1 Denominazione

Il “C.N.E T O - Centro Nazionale per l’Edilizia e la Tecnica Ospedaliera” è una Associazione culturale, apartitica e senza scopo di lucro, nata sotto gli auspici dell’ANIAI L’Associazione è retta dal presente statuto la cui attuazione operativa è demandata, se necessario, ad appositi regolamenti operativi

Art. 2 Sede

La sede legale del C.N.E T O è stabilita in Roma. L’Associazione può aprire sedi operative periferiche

Art.3 Scopo

L’Associazione ha come scopo, a beneficio della collettività: la promozione dello studio dei problemi organizzativi, gestionali e progettuali connessi con l’edilizia socio sanitaria;

di stabilire e mantenere contatti in campo nazionale e internazionale fra esperti italiani e stranieri e altre Associazioni che si interessano ai problemi attinenti allo scopo sociale;

di porre a disposizione e di favorire la diffusione delle conoscenze e del progresso delle arti dello specifico settore anche attraverso l’uso dei propri mezzi e strutture;

la promozione e/o la partecipazione al capitale sociale di società e/o associazioni che abbiano il fine statutario di approfondire, diffondere la cultura tecnico –architettonica, gestionale e organizzativa dell’edilizia socio-sanitaria, anche a scopi didattici ed editoriali la qualificazione e il riconoscimento delle professionalità, svolgendo un ruolo di formazione e di informazione degli operatori

Per il raggiungimento dello scopo sociale il C.N.E T O indice, promuove e organizza convegni, seminari, giornate di studio, viaggi, visite tecniche, pubblicazioni proprie o di terzi e diffonde la rivista organo ufficiale dell’associazione

Art.4 – Ammissione e Soci

Sono ammessi a far parte del C.N.E T O le persone fisiche e giuridiche che, condividendone gli scopi, ne faranno domanda scritta, o tramite il sito ufficiale, alla Giunta Esecutiva e la cui domanda sarà dalla stessa accettata. I soci C.N.E T O. si distinguono in ordinari, studenti, collettivi, sostenitori, onorari

Soci ordinari, le persone fisiche esperte nel campo oggetto dello scopo associativo che ne fanno richiesta e che corrispondono annualmente la quota sociale ordinaria

Soci studenti e neo laureati, gli iscritti a corsi di studio universitari attinenti le materie interessanti lo scopo sociale che ne fanno richiesta e che corrispondono una quota associativa pari al 50% della quota sociale ordinaria. La qualifica di studente decade dopo tre anni dal termine degli studi e comunque entro il 30° anno di età

Soci collettivi, le persone giuridiche, gli Enti pubblici e privati, le Associazioni scientifiche e tecniche che ne fanno richiesta e che operano nel campo oggetto dello scopo associativo e che corrispondono la quota sociale collettiva pari a tre volte l’ordinaria; hanno diritto a tre voti

Soci sostenitori, i soggetti individuati alle lettere precedenti che si impegnano a corrispondere, per almeno cinque anni, una quota sociale annua pari a due volte la quota collettiva; hanno diritto a tre voti

Soci onorari, le personalità che per merito scientifico o professionale o per aver acquisito particolari meriti verso l’associazione vengono nominati tali. La loro nomina è proposta dalla Giunta Esecutiva, approvata dal Consiglio Nazionale e ratificata dall’Assemblea dei soci; i Soci Onorari non pagano la quota associativa e non hanno diritto di voto

Art. 5 Organi del C.N.E T O

Sono: l’Assemblea dei Soci, Il Consiglio Nazionale, Il Presidente, La Giunta esecutiva, Il Collegio dei revisori

63 giugno 2023
71 ottobre 2020febbraio 2023

Organo uf ficiale del C.N.E.T.O Centro Nazionale per l’Edilizia e la Tecnica ospedaliera

L’INFORMAZIONE AUTOREVOLE NEL MONDO

DELLA PROGETTAZIONE PER LA SANITÀ

NON PERDERE QUESTA OCCASIONE

COMPILA LA CARTOLINA QUI SOTTO O VAI SUL SITO WWW.QUINE.IT

E ATTIVA SUBITO IL TUO ABBONAMENTO A SOLI

abbonamento annuale

• MANAGEMENT

E ORGANIZZAZIONE

• SICUREZZA E IGIEN

• INFORMATION TECHNOLOGY

• AGGIORNAMENTO LEGISLATIVO

• SCENARI INTERNAZIONALI

• TECNOLOGIE

E NOVITÀ DALL’INDUSTRIA

RISK MANAGEMENT

Abbonati su www.quine.it o compila questo coupon e invialo via email: abbonamenti@quine.it

Nome e Cognome

Azienda

Indirizzo

Cap Città

Telefono

E-mail

PEC (per fatturazione elettronica)

Codice fiscale (obbligatorio)

Partita IVA Codice destinatario (per fatturazione elettronica)

Desidero sottoscrivere il seguente abbonamento:

Abbonamento annuale Italia (6 numeri) a € 40,00.

Abbonamento annuale Europa (6 numeri) a € 60,00

PAGAMENTO

Bonifico Bancario IBAN IT88U0521601631000000000855 (allego fotocopia)

Versamento su c/c postale N.60473477 intestato a Quine Srl - Via Spadolini, 7 - 20141 Milano (allego fotocopia)

Addebito su carta di credito

Visa Carta Sì Mastercard

n. scadenza /

CVC (CVC: ultime 3 cifre del numero che si trova sul retro, nello spazio della firma)

Firma

CONSENSO AL TRATTAMENTO DEI DATI

Ai sensi dell’art 13 Regolamento Europeo per la Protezione dei Dati Personali 679/2016 (GDPR), il sottoscritto __________________________________________________________________________________ esprime il proprio espresso e specifico consenso a trattamento de dati ai fini di:

- Inv o e-mail promozionali e/o comunicazioni di marketing, nonché effettuazione di ricerche di mercato, se autorizzato dal cliente, da parte di Quine Srl o di società da essa controllate, collegate o partecipate; Esprimo il mio consenso Nego il mio consenso

- Invio e-mail promozionali e/o comunicazioni di marketing, se autorizzate dal cliente per finalità di profilazione (come ad es memorizzazione di abitudini di consumo) volte a migliorare le offerte nei confronti del cliente, da parte di Quine Srl o di società da essa controllate collegate o partecipate; Esprimo il mio consenso Nego il mio consenso

- Invio e-mail promozionali e/o comunicazioni di marketing, nonché effettuazione di ricerche di mercato, e di profilazione se autorizzato dal cliente, per conto di società terze (appartenenti alle categorie editoria, professionisti della salute, case farmaceutiche ecc) non facenti parte di Lswr Group Esprimo il mio consenso Nego il mio consenso

Esprimo il mio consenso al trattamento in base all’informativa di cui sopra Data

Firma
40 € ABBONAMENTI
Quine - Edra LSWR Group, Srl Via Spadolini, 7 20141 Milano - Italia Tel +39 02 864105 Fax +39 02 88184301
ORGANIZZAZIONE TECNOLOGIA
Editore:
PROGETTAZIONE
20 CNETO C ntroNazionale p rl’Edil z elaTecn c Ospedaiera 01
Il nuovo Ospedale di Cord o E g P ISSN: 17206642 Le azionidaintraprendere pergli ospedali del futuro/Tradizione e innovazionenelnuovoospedalediCordova/Larivoluzionedigitale nelleaziendesanitarieesociosanitare/Perchénondecolla lFasccolo Sanitario Elettronico / I pazient a etti da AMD nel progetto NEXTV SION /ProgettoAtt va-Mente:l arte cometerapia/Aspetti impantistici nelbunker di radioterapia/Gestione delle cronicità ne a ASL di Foggia / L’informatizzazione ne le Unità Farmaci Antblastici/ Progettazioneantincend odegliospedali:lavalutazione deimaterialidifinitura
Organizzazione,tecnologia, architettura

Una banca dati, mille servizi Aggiornata mensilmente

Dalla grande esperienza di DEI, nasce DEIPLUS PREMIUM la nuova soluzione digitale dedicata al mondo dell’edilizia

DEIPLUS PREMIUM è la banca dati con l’intero archivio dei prezzi dell’edilizia a partire dal 2018

Disponibile solo in abbonamento

DEIPLUS PREMIUM consente una consultazione immediata delle voci e la creazione di listini in un unico ambiente di lavoro anche direttamente dal tuo cellulare.

DEIPLUS PREMIUM trasforma il modo di consultare i prezzi dell’edilizia rendendolo facile, immediato e sempre aggiornato.

Con DEIPLUS PREMIUM si può

VISUALIZZARE

le voci di tutti i prezzari dal 2018

CERCARE qualsiasi voce con parole chiave o codice

CREARE listini personalizzati senza limitazioni di numero di voci

ESPORTARE

le voci dei listini

Vuoi provare DEI PLUS PREMIUM?

AGGIORNARE i listini in modo automatico o manuale

Richiedi l’accesso alla versione trial per 7 giorni

Vuoi maggiori informazioni?

MONITORARE

l’andamento dei prezzi nel tempo

06.21060305 abbonamentidei@lswr.it

Turn static files into dynamic content formats.

Create a flipbook
Issuu converts static files into: digital portfolios, online yearbooks, online catalogs, digital photo albums and more. Sign up and create your flipbook.