Progettare per la Sanità n. 2/24 Aprile

Page 1

L’espansione dell’Ospedale Sacré-Coeur di Montréal / La clinica di neuroriabilitazione e paraplegiologia di Basilea / Atmosfera domestica e familiare per pazienti pediatrici / A Cremona un modello di architettura sanitaria / Il centro di chirurgia robotica presso l’ASST di Brescia / La sostenibilità energetica in ospedale / L’impatto clinico dell’intelligenza artificiale / Un corso per specialisti in IA e telemedicina / Qualità degli ospedali italiani: esiti confortanti / Planetary Health Festival 2024 / Grandi Ospedali alla terza edizione / Un nuovo modello di ospedale tecnologico e resiliente

Il Sant Joan de DEU Pediatric Cancer Center di Barcellona (PCCB) ISSN: 17206642
S.r.l

RAINPLUS

La soluzione al problema delle bombe d’acqua

Negli ultimi anni le precipitazioni sono caratterizzate da picchi di piovosità violenti e improvvisi sempre più frequenti.

Rainplus rappresenta la più efficiente tecnologia per il drenaggio delle acque piovane in grado di gestire precipitazioni anche estreme, ed è perfetto per la copertura di edifici di grandi dimensioni, anche nel contesto della ristrutturazione.

Entra in contatto con un consulente tecnico

Tel. 0365/877.397

www.valsir.it
fi Via Gennaro Righelli, 76-78 00137 Roma Tel. 06 82002732 Fax 06 82083959 www.rosiglioni.it Per il medicale da oltre 40 anni

La fuga epossidica dalle brillanti prestazioni: una gamma di colori che esalta qualsiasi scelta di ceramica si unisce a un’incredibile durata nel tempo e ad una elevata igienicità.

● FACILE DA APPLICARE

● NON ASSORBE ED È FACILE DA PULIRE

● RESISTENTE A BATTERI E MUFFE

● MANTIENE SALUBRE L’AMBIENTE INTERNO

● AMPIA GAMMA COLORI

● IDONEA PER FUGHE SINO A 15 mm

Tutti i colori della gamma fugature Mapei sono coordinati tra loro e con il sigillante Mapesil AC.

Bellezza e utilità

Il Sant Joan de DEU Pediatric Cancer Center di Barcellona (PCCB)

Negli ultimi trent’anni anche in Italia abbiamo assistito a quell’importante rivoluzione che, mettendo al centro il paziente e la sua necessità di “sentirsi a casa” anche nel momento della cura, ha indirizzato il progetto ospedaliero verso la ricerca di una integrazione sempre più stretta tra architettura, natura e tecnologia. Un rovesciamento di prospettiva che ha posto l’attenzione sull’influenza che la percezione dello spazio determina sull’utente, promuovendo un processo di mitigazione di quell’ambiente

fortemente caratterizzato dalla presenza di una “invadente” componente impiantistica che aveva contraddistinto gli ospedali del passato.

Oggi l’approccio al progetto risponde a una logica olistica che rivolge una grande attenzione verso tematiche estremamente attuali quali l’inserimento urbano e territoriale (dal punto di vista paesaggistico ma anche naturalistico), il rapporto più intimo con gli spazi verdi quali promotori del processo di guarigione (design biofilico), i programmi di azione che perseguono gli obiettivi della sostenibilità mediante l’applicazione di sistemi attivi e passivi finalizzati alla realizzazione di “involucri” qualitativamente gradevoli e soprattutto performanti. Il risultato di questo processo ha scardinato l’immagine anonima e opprimente delle strutture sanitarie del passato e ha favorito il senso di accoglienza e di domesticità. Sebbene attualmente si faccia ancora molta fatica ad attuare nelle nostre strutture quell’integrazione che definirei “armoniosa” con la componente impiantistica così preponderante, impattante ma soprattutto

necessaria negli spazi per la salute, possiamo sicuramente affermare che in questi ultimi due decenni la concezione dell’ospedale sia passata da “oggetto di edilizia” a “oggetto di architettura”. Ciò ha significato uscire da una logica standardizzata considerando il binomio architettura-impianti come un rapporto simbiotico volto a garantire l’efficienza dei percorsi clinici dei pazienti ma anche la realizzazione di quell’healing environment che gioca un ruolo così importante nel processo di recupero del paziente.

Ma il progetto di un ospedale non può fondarsi esclusivamente sul trionfo della bellezza dell’espressione architettonica come forma di espressione artistica pura e, soprattutto, estranea al concetto di utilità e funzionalità: la sua prima mission, infatti, non è ispirare ammirazione bensì quella di occuparsi della salute e del benessere delle persone creando tutte quelle condizioni che consentono di non mettere a rischio l’efficacia del lavoro medico.

Direttore Responsabile

Giorgio Albonetti

Direttore Scientifico

Margherita Carabillò

Coordinamento Editoriale

Chiara Scelsi - c.scelsi@lswr.it

Redazione

Fabio Chiavieri f.chiavieri@lswr.it

Comitato scientifico

S. Brusaferro, S. Capolongo, M. Carabillò, Marco Gola, J. Guercini, K. Kob, Maurizio Mauri, F. S. Mennini, C. Nicora, D. Pedrini, G.Polifrone

Comitato di redazione

Architettura: Design LAB, DABC Politecnico di Milano

Impiantistica: Francesco Ruggiero

Information Technoloy: Fabrizio Massimo Ferrara

Innovazione digitale: Paolo Bertini

Organizzazione e management: Federico Lega

Organo ufficiale del C.N.E.T.O.: Centro Nazionale per l’Edilizia e la Tecnica Ospedaliera

Servizi e facility management:

Arturo Zenorini

Tecnologie per l’Architettura: Rosa Romano, Maria Chiara Torricelli

Hanno collaborato a questo numero:

T. Arriga, M. Dalla Bona, G. Fornari, A. Giana, M. Gola, D. Ibrahim, G. Lamberti, F, Lega,

P. Lodetti, M. Lombardo, M. Lorenzoni, M. Massaron, E. Molinu, E. Mosca, A. Palazzolo, M. Pedrini, G. Provesi, R. Romano, D. Zanchi, A. Zenorini

Stampa & Produzione

Antonio Iovene - 3491811231 a.iovene@lswr.it

Pubblicità

Costantino Cialfi

c.cialfi@lswr.it Tel. 346 6705086

Archivio immagini

Shutterstock

Traffico

Ornella Foletti ornella.foletti@quine.it Tel. 3427968897

Abbonamenti

www.quine.it

abbonamenti.quine@lswr.it - Tel. 02 864105

Costo copia singola: euro 2,50 abbonamento annuale Italia euro 40,00 abbonamento annuale Europa euro 60,00

Stampa

TIPOLITOGRAFIAPAGANI s.r.l. via Adua, 6 25050 - Passirano - (Brescia) - Italy)

©2023 Quine Business Publisher

Progettare per la sanità

www.progettareperlasanita.it

Reg. Trib. Milano n. 767 del 09/11/1998

Iscrizione al ROC n. 12191 del 29.10.2005

Tutti gli articoli pubblicati su Progettare per la sanità sono redatti sotto la responsabilità degli Autori. La pubblicazione o la ristampa degli articoli deve essere autorizzata per iscritto dall’editore. Ai sensi dell’art. 13 del Regolamento Europeo per la Protezione dei Dati Personali 679/2016 di seguito GDPR, i dati di tutti lettori saranno trattati sia manualmente, sia con strumenti informatici e saranno utilizzati per l’invio di questa e di altre pubblicazioni e di materiale informativo e promozionale. Le modalità di trattamento saranno conformi a quanto previsto dagli art. 5-6-7 del GDPR. I dati potranno essere comunicati a soggetti con i quali Quine Srl intrattiene rapporti contrattuali necessari per l’invio delle copie della rivista. Il titolare del trattamento dei dati è Quine

Testata Associata

Srl, Via Spadolini 7,
Milano, al quale il lettore si potrà rivolge-
chiedere
altra operazionedi
20141
re per
l’aggiornamento, l’integrazione, la cancellazione e ogni
cui agli art. 15-21 del GDPR.
3 EDITORIALE aprile 2024

Sommario

12

22

ESPANSIONE DELL’OSPEDALE SACRÉ-COEUR DI MONTRÉAL:

PASSATO E FUTURO SI INTEGRANO INSIEME

Il progetto di espansione dell’ospedale risponde a un’importante condizione di vetustà dell’Hôpital du Sacré-Cœur-de-Montréal, i cui locali risalgono principalmente al 1926. L’ampliamento e la modernizzazione delle strutture hanno permesso di offrire i più alti livelli di qualità delle cure, dei servizi, dell’insegnamento e della ricerca

di Marco Gola, Erica Isa Mosca, Daniel Ibrahim

INNOVAZIONE E SOSTENIBILITÀ: LA CLINICA DI NEURORIABILITAZIONE E PARAPLEGIOLOGIA DI BASILEA

Il progetto per la trasformazione e l’ampliamento della clinica di neuroriabilitazione e paraplegiologia di Basilea, curato dallo studio svizzero Herzog & de Meuron, dimostra come il ricorso a tecnologie prefabbricate a secco integrate in una struttura puntiforme permetta di garantire flessibilità funzionale e compositiva nel tempo

di Rosa Romano

30

IL SANT JOAN DE DEU PEDIATRIC CANCER CENTER DI BARCELLONA

Il SJD PCCB offre spazi interni in stretta connessione con l’ambiente esterno e le viste alla città. Con un’architettura accogliente, il centro crea un’atmosfera domestica e un senso di familiarità nella vita dei pazienti pediatrici, fattori chiave nel percorso di cura del bambino e nell’accompagnamento della famiglia

Elisa Molinu, Giacomo Provesi

40

NUOVO OSPEDALE DI CREMONA

Il nuovo Ospedale di Cremona emerge come un possibile modello per l’architettura sanitaria, focalizzandosi sulla qualità architettonica come elemento centrale per promuovere il benessere psico-fisico

A cura di SEC Newgate Italia ufficio stampa MCA

4 SOMMARIO aprile 2024

LO SVILUPPO DEL CENTRO

DI CHIRURGIA ROBOTICA DELL’ASST

SPEDALI CIVILI DI BRESCIA

Una costante interazione tra unità operative sanitarie e quelle di staff aziendali permette il migliore conseguimento degli obiettivi strategici definiti dalle Direzioni delle Aziende Sanitarie Pubbliche. L’esempio del centro di chirurgia robotica presso l’ASST di Brescia, mette in evidenza di Davide Zanchi, Martina Dalla Bona, Gianluca Fornari, Paolo Lodetti, Massimo Lombardo, Marianna Lorenzoni, Giovanni Lamberti, Federico Lega, Alberto Giana

DIGITALIZZAZIONE E AI

PER LA SOSTENIBILITÀ ENERGETICA

IN OSPEDALE

Il progetto coinvolge cinque ospedali Humanitas in diverse città italiane e mira a migliorare l’efficienza energetica e l’impatto ambientale delle strutture ospedaliere attraverso l’adozione di soluzioni tecnologiche avanzate di Tiziano Arriga, Gianluca Cimino, Marco Massaron, Alfonso Palazzolo 44 50

54

60

DIGITALIZZAZIONE DELLA SANITÀ

E IMPATTO CLINICO DELL’INTELLIGENZA

ARTIFICIALE

Questo il titolo di un approfondito incontro all’interno del convegno digitale “InnovazionePiù” organizzato da Edra. di Arturo Zenorini

SPECIALISTI IN IA E TELEMEDICINA:

UN CORSO INTERAMENTE E-LEARNING

All’Università di Parma, organizzato un Master innovativo annuale sulle applicazioni cliniche della Telemedicina e dell’Intelligenza Artificiale. Per approfondire il tema abbiamo intervistato il prof. Gaddi (Presidente SIT) e la prof.ssa Esposito (direttore del corso) sulla docenza multidisciplinare e sull’attenzione ai pro e contro di Arturo Zenorini

Le aziende presenti in questo numero

Exposanità pag. 71

www.exposanita.it

FAAC pag. 80

www.faactechnologies.com

Mapei

www.mapei.com pag. 2

64

68

PLANETARY HEALTH FESTIVAL 2024

Si terrà a Verona dal 3 al 5 ottobre prossimi Planetary Health Festival 2024, l’evento dedicato alla salute planetaria che esplorerà temi cruciali come cambiamenti climatici, biodiversità e accesso ai servizi essenziali.

IL JRP HI PROGETTA L’OSPEDALE

DEL FUTURO

Il progetto Next Generation Hospital® prende forma attraverso un nuovo modello di ospedale tecnologico e resiliente al cambiamento e alle sfide demografiche che si delineano all’orizzonte. Politecnico di Milano, ricercatori, aziende e istituzioni si sono riuniti per affrontare le successive fasi di sviluppo dell’ospedale del futuro, attraverso la piattaforma tecnologica Joint Research Partnership Healthcare Infrastructures (JRP HI)

A cura della redazione

72

DA NORD A SUD MIGLIORA LA QUALITÀ

OSPEDALIERA

Il Rapporto sulla Qualità degli Outcome clinici negli ospedali italiani propone un’interessante valutazione comparativa tra le strutture pubbliche e private del Servizio Sanitario Nazionale, con esiti decisamente confortanti. A colloquio con il dottor Domenico Mantuan, Direttore Generale dell’Agenzia nazionale per i servizi sanitari regionali. di Maurizio Pedrini

76

GRANDI OSPEDALI, PRESENTATA

LA TERZA EDIZIONE AL MINISTERO

DELLA SALUTE

Condividere conoscenze e strategie innovative per alzare sempre di più l’asticella nel Settore Sanitario Italiano. Con questa ambizione nasce il progetto “Grandi Ospedali”, ideato da Koncept, giunto alla terza edizione, presentata al Ministero della Salute A cura della redazione

Plantinox pag. 21

www.plantinox.it

Rosiglioni I cop. III cop - pag. 1

www.rosiglioni.it

Schneider Electric IV cop. www.se.com

Valsir II cop. www.valsir.it

NEWS 6 NORMATIVA COMMENTATA 82 RUBRICHE
5 SOMMARIO aprile 2024

A TORINO LA PRIMA CAMERA IMMERSIVA INTERATTIVA

È stata recentemente inaugurata nell’Aula Magna del Polo Didattico del Dipartimento di Scienze Cliniche e Biologiche situata presso l’Azienda Ospedaliero-Universitaria San Luigi Gonzaga di Orbassano, la nuova Immersive Interactive Room del Centro di Simulazione Medica Avanzata. Sono intervenuti Stefano Geuna, Rettore Università di Torino, David Lembo, Presidente del Corso di Laurea in Medicine and Surgery, Massimo Terzolo, Direttore del Dipartimento di Scienze Cliniche e Biologiche e Davide Minniti, Direttore Generale AOU San Luigi Gonzaga di Orbassano. Un soccorso sanitario in alta montagna, un intervento d’emergenza immediatamente al di fuori delle mura dell’ospedale e un’attività chirurgica in sala operatoria: sono solo alcuni degli scenari riproducibili nella nuova camera immersiva del Polo Universitario del San Luigi. Un ambiente di simulazione avanzata in grado di trasformare lo spazio in un’altra realtà, reale o immaginaria, con cui si può interagire

█ La Camera Immersiva Interattiva offre la possibilità anche di comprendere meglio i processi fisiologici che costituiscono le basi del funzionamento del nostro corpo

grazie a speciali proiettori laser che trasformano le sue pareti in schermi touch interattivi.

Tecnologie come Rumble Floor per generare vibrazioni nel pavimento, erogatori di oltre 400 odori diversi e di fumi, simulatori di eventi atmosferici come il vento, e un raffinato sistema sonoro che permette di riprodurre rumori ambientali, per la prima volta utilizzate in una sala immersiva, potenziano ulteriormente la sensazione di essere davvero sulla scena e stimolano a mobilitare tutte le risorse intellettive, emotive e sensoriali, necessarie ad affrontare situazioni complesse, ad elevato rischio per il paziente e spesso pericolose per lo stesso medico o infermiere.

La simulazione nella formazione medico-scientifica è riconosciuta come strumento fondamentale per la riduzione del rischio clinico, la probabilità, cioè, che si verifichino eventi avversi durante un intervento chirurgico, e per la massimizzazione della sicurezza di pazienti e professionisti sanitari. Proprio per questo, la nuova camera immersiva nasce come strumento di formazione di studenti e studentesse del Corso di Laurea in Medicine and Surgery dell’Università di Torino e, per la prima volta, si tratta di una tecnologia messa a disposizione anche di medici e infermieri che lavorano in ospedale.

Tutti i principali spazi dedicati all’attività sanitaria dell’Ospedale San Luigi Gonzaga, come sale operatorie e ambulatori, saranno mappati per essere riprodotti nella camera, in cui studenti, medici e infermieri potranno simulare l’attività che si troveranno poi ad affrontare concretamente nella realtà. Problemi, passaggi critici ed errori possibili, saranno trasformati in argomento di discussione con colleghi e colleghe, con lo scopo di poter reagire più efficacemente nella realtà quotidiana e migliorare e rafforzare le proprie competenze.

La Camera Immersiva Interattiva offre la possibilità di ricostruire percorsi diagnostici e terapeutici, comprendere meglio i processi fisiologici che costituiscono le basi del funzionamento del nostro corpo, capire come i farmaci agiscono nell’organismo e realizzare delle vere e proprie escape room che hanno la capacità di mettere alla prova e migliorare le capacità di analisi e decisione di professionisti sanitari e futuri medici.

“La nuova Immersive Interactive Room” ha dichiarato il Rettore Stefano Geuna “permetterà a studenti, medici e professionisti sanitari di confrontarsi con situazioni mediche delicate in ambienti clinici diversi realizzati in scenari didattici immersivi e realistici. L’inaugurazione di oggi rappresenta un’ulteriore tappa a favore della formazione universitaria in ambito medico rivolta alla salute delle persone perché consentirà di abbattere il rischio clinico ponendo come obiettivo primario la sicurezza di pazienti e operatori sanitari. L’Università di Torino conferma ancora una volta la sua forte vocazione all’innovazione della didattica e risponde alle aspettative ed

aprile 2024 6 NEWS
█ Tavolo dei relatori all’inaugurazione della nuova Immersive Interactive Room

esigenze di tutti gli attori coinvolti nel processo formativo in ambito sanitario: studenti, docenti, professionisti sanitari e cittadinanza”.

“Dall’orientamento scolastico all’ospedale passando per la didattica universitaria, la nuova Camera immersiva è uno strumento molto efficace di formazione” sottolinea David Lembo, Presidente del Corso di Laurea in Medicine and Surgery. “Realizzata grazie al progetto di eccellenza del Dipartimento di Scienze Cliniche e Biologiche, la camera immersiva è un luogo dove didattica innovativa, ricerca e formazione continua si alimentano a vicenda per permettere agli studenti e al personale sanitario di esercitarsi in un ambiente protetto, ma realistico, che consente loro non solo di acquisire competenze ma anche di commettere errori in sicurezza, analizzarli e quindi perfezionare le abilità pratiche e relazionali a beneficio dei pazienti”.

“È un’occasione straordinaria, per il personale sanitario del nostro ospedale - commenta Davide Minniti, Direttore generale dell’AOU San Luigi Gonzaga - avere a disposizione uno strumento tecnologicamente così avanzato, che è anche veicolo di una sinergia fra Università e ospedale sempre più concreta. Siamo felici di mettere a disposizione di questo progetto risorse professionali particolarmente qualificate, a vantaggio di una crescente qualità dell’offerta della sanità pubblica regionale, in termini di competenza professionale e di sicurezza per i pazienti”.

La Camera Immersiva Interattiva è stata allestita dalla azienda leader mondiale in questo campo, la britannica Gener8, e si tratta del modello più avanzato d’Europa e uno dei più completi e accessoriati del mondo. È collocata presso il Centro di Simulazione Medica Avanzata del Polo Didattico dell’Università di Torino dell’A-

OU San Luigi di Orbassano realizzato con il contributo della Compagnia San Paolo, uno spazio di circa 240 metri quadri pienamente inseriti nel Centro Didattico universitario. Il Centro è dotato di sistemi di simulazione di eccellenza, di manichini ad alta complessità tecnologica che ricreano il paziente adulto e pediatrico e dei più innovativi sistemi multimediali. Tre aule mettono a disposizione di studenti e specializzandi numerosi simulatori ad alta fedeltà, tra i quali simulatori virtuali per artroscopia e per laparoscopia di ultima generazione che consentono l’acquisizione e il perfezionamento di tecniche chirurgiche mini-invasive. Una sala di simulazione, allestita come un reparto di area critica e attrezzata con i più evoluti manichini presenti in commercio, permette ai discenti di eseguire procedure mediche simulate in alta fedeltà, gestite e monitorate da una cabina di regia collegata da vetri unidirezionali e da telecamere e sistemi audio ambientali. Infine, un’aula di riunione plenaria permette la pianificazione e poi la revisione delle attività svolte in simulazione.

Il Centro ospita anche il più avanzato tavolo anatomico per la dissezione virtuale del corpo umano, già utilizzato da molte tra le più importanti scuole ed istituzioni al mondo. Questo strumento consente di visualizzare l’anatomia esattamente come se si trattasse di un cadavere reale con il vantaggio di un’esperienza interattiva in touch-screen che permette un livello di esplorazione e di apprendimento dell’anatomia umana superiore a quello offerto da qualsiasi altro sistema tradizionale disponibile.

Il Centro di Simulazione Medica Avanzata può contare su un team di 6 istruttori esperti, medici e infermieri e organizza corsi di alta professionalità, formando sempre nuovo personale che ottiene qui il titolo di Istruttore.

OSPEDALI IN ITALIA: OLTRE IL 50% OBSOLETI E INADEGUATI

In Italia oltre il 50% delle infrastrutture sanitarie è vecchio e non adeguato ai modelli organizzativi, gestionali e sanitari contemporanei e più del 70% degli ospedali italiani ha più di 50 anni. I dati provengono dalla ricerca della piattaforma Joint Research Partnership Healthcare Infrastructures (Jrp Hi) del Politecnico di Milano e dimostrano quanto il patrimonio immobiliare sanitario italiano presenti forti criticità in termini di obsolescenza e inefficienza. Il Piano Nazionale di Ripresa e Resilienza (PNRR) prevede uno stanziamento di circa 9 miliardi, tra gli oltre 15 dedicati al settore Salute nella Missione 6, per l’attivazione di “Reti di prossimità, Strutture e Telemedicina per l’Assistenza Sanitaria Territoriale”, tra cui la realizzazione o rifunzionalizzazione di 1.288 Case della Comunità e di 381 Ospedali di Comunità.

Un settore in cui Nocivelli S.p.A., Esco Company operante nel settore nelle operazioni di Partenariato Pubblico Privato (PPP) per la realizzazione di strutture sanitarie e ospedaliere, opera da anni ed █ La sede della Nocivelli S.p.A.

aprile 2024 7 NEWS

ha una esperienza di valore al servizio del SSN. Il Gruppo partecipa alle principali procedure di gara, ponendo particolare attenzione a quelle gare d’appalto che consentono la stipula di convenzioni con le Pubbliche Amministrazioni volte alla riqualificazione di strutture sanitarie e ospedaliere.

Nel 2023, Nocivelli si è aggiudicata una commessa da 1,5 milioni nel Bresciano a fine maggio, una da 21,8 milioni nelle province di

Brescia, Lecco e Mantova a metà giugno, e una da 7 milioni nelle province di Brescia e Lodi a fine giugno, per un valore complessivo di oltre 30 milioni. Le due commesse maggiori rientrano proprio in progetti previsti dal Piano Nazionale di Ripresa e Resilienza (PNRR) e hanno come oggetto l’affidamento dell’esecuzione di opere edili e impiantistiche per la realizzazione e/o adeguamento di strutture da adibire a Ospedali di Comunità e Case di Comunità.

A DEERNS ITALIA LA PROGETTAZIONE DEGLI IMPIANTI

DEL NUOVO OSPEDALE UNICO SAVIGLIANO-SALUZZO-FOSSANO

Un nuovo capitolo di innovazione a servizio degli ambienti di cura ha preso forma con il recente accordo per la progettazione del Nuovo Ospedale Unico Savigliano-Saluzzo-Fossano che ha assegnato a Deerns Italia - società di ingegneria e consulenza specializzata nei servizi professionali per l’edilizia sostenibile - la progettazione degli impianti elettrici, meccanici e idrici, dell’acustica e dell’energia che garantiranno l’efficienza energetica e la sostenibilità della nuova struttura sanitaria. Ad aggiudicarsi il contratto per l’affidamento formale dell’incarico di progettazione del nuovo ospedale é il raggruppamento temporaneo di progettisti costituito, oltre a Deerns Italia, da: Studio Altieri S.p.A. (Capogruppo Mandataria) - Progettazione edile, progettazione sanitaria, ambientale; antincendio; Coordinamento della sicurezza in fase di progettazione; Iconia Ingegneria Civile S.r.l. - Progettazione Strutture; TRTIngegneria - Analisi costi-benefici delle alternative, valutazione del traffico, Progettazione infrastrutturale e Planeta ECOnsulting - Relazione geologica.

“Siamo davvero orgogliosi di essere stati scelti per questo importante progetto perché rappresenta un’importante occasione di applicare l’innovazione tecnologica agli ambienti di cura in un contesto strategico e in un momento storico sempre molto delicato. Il nostro approccio olistico alla progettazione degli edifici trova una delle sue migliori espressioni proprio in ambito ospedaliero, dove l’obbiettivo è quello di realizzare struttu-

re sanitarie concepite per favorire la risposta del paziente alle cure, con conseguente riduzione dei tempi di ospedalizzazione”, spiega Arianna Surace, Business Development Manager di Deerns Italia, che aggiunge: “Deerns investe molto nella ricerca volta all’identificazione di soluzioni sempre più innovative che possano traguardare il futuro in un’ottica di totale integrazione tra la tecnologia, le esigenze sanitarie e il comfort dei pazienti, puntando alla flessibilità e all’efficienza dei processi ospedalieri. Con questo obiettivo, metteremo a disposizione la nostra esperienza fin dalla primissima fase progettuale che verrà sviluppata con lo stretto coinvolgimento della Direzione Generale, della Direzione Sanitaria, del personale medico e tecnico dell›Azienda Ospedaliera”.

Il nuovo ospedale avrà una superficie di 105 mila metri quadrati, con 382 posti letto di cui 57 tecnici e 23 day hospital e 24 posti letto aggiuntivi come “reparto polmone”. Nel dettaglio, sono previste 9 sale operatorie di cui una ibrida; un blocco parto e una sala cesareo. L’Area critica del Pronto soccorso sarà costituita da 2 shock room, 25 box triage, un OBI (reparto di Osservazione Breve Intensiva) da 10 posti letto, una diagnostica radiologica in Pronto Soccorso con due sale Radiologiche, una TAC, e l’Eco Cardio Tomografia. Il secondo piano sarà strutturato in nove aree di degenza e ambulatoriali. Infine, il parcheggio conterà 700 posti auto.

OSPEDALI, PUBBLICATA LA CLASSIFICA NEWSWEEK.

ITALIA NE PIAZZA 14 NEI PRIMI 250

Un ospedale canadese entra fra i tre migliori del mondo intaccando la “valanga a stelle e strisce” degli anni scorsi. L’ingresso della Toronto General University al terzo posto della classifica annuale dei 250 migliori ospedali “generalisti”, redatta ogni anno a cura di Newsweek e Statista, fa certo notizia Oltreoceano. Salda al comando, prima, resta la Mayo Clinic di Rochester, USA; e al secondo posto segue a ruota come un anno fa la Cleveland

Clinic. Scende al 5° posto la Massachusetts clinic di Boston. I nosocomi migliori stavolta sono stati scelti da un novero di oltre 2400, e nel gruppo dei candidati entrano per la prima volta Cile e Malesia. Per valutare i 10 in vetta, per ora in relazione a tutti i servizi – ma seguiranno le classifiche degli ospedali specializzati (oncologici, cardiologici, pediatrici, ginecologici) – gli 85 mila esperti scelti dalla rivista Newsweek e dalla società di ricerche

aprile 2024 8 NEWS

Statista hanno tenuto conto di molti parametri. Tra essi entra per la prima volta l’uso dell’intelligenza artificiale nella ricerca. Il punteggio è basato sulla valutazione di un questionario online sugli aspetti della struttura (tra le tante cose si considerano anche le pratiche igieniche e la proporzione tra pazienti e sanitari nei reparti) e sui report relativi al grado di soddisfazione dei pazienti dimessi, inclusi Patient Reported Outcome Measures. La maggior parte degli ospedali “top” sta negli Stati Uniti, lungo tutta l’Europa Occidentale, Australia, 10 paesi asiatici e alcuni americani: un campione super-rappresentativo dell’industriaospedale, il cui fatturato oggi nel globo cuba 4240 miliardi di dollari, 20 volte l’import del Piano Nazionale di Ripresa e Resilienza. Al 6° posto c’è il primo ospedale europeo, la Charité di Berlino, che supera l’istituto universitario Karolinska di Stoccolma, all’8° si piazza Parigi con Pitié Salpetrière, al 9° Israele (Sheba Medical Center), al 10° Zurigo (Ospedale Universitario) all’11° Singapore. In realtà fin qui poco di nuovo, i “gioielli” degli stati del Vecchio Continente hanno consolidato le loro posizioni. E gli italiani? Un anno fa la prima struttura era il Policlinico Gemelli al 38° posto seguito al 60° da Niguarda a Milano, al 64° dal San Raffaele Milano, al 65° dal Policlinico Sant’Orsola Malpighi di Bologna, all’89° dall’Humanitas di Rozzano (Milano), al 101° dal Policlinico San Matteo di Pavia, al 103° dall’Ospedale di Padova; in tutto con Bergamo, Brescia, Torino e Firenze piazzavamo 11 ospedali nei 250 posti che contano, uno in più dell’anno prima, (e meno di Usa, Germania, Giappone) ma a fronte di un numero di candidati triplicato rispetto all’inizio delle valutazioni. L’Irccs Policlinico Gemelli di Roma si conferma essere an-

cora una volta il migliore ospedale italiano e, rispetto al 2023, quest’anno sale dal 38° al 35° posto nella classifica globale. Il Grande ospedale pubblico Metropolitano di Niguarda a Milano sale di 8 posizioni dal 60° al 52° posto e il San Raffaele, Irccs, sale di sette posti, al 57°. Eccezionale il balzo dell’Humanitas dall’89° al 65° posto, il Sant’Orsola Malpighi è “stabile” al 66° posto. Restiamo a cinque ospedali nei primi cento del mondo, ma al 103° posto piomba l’Azienda ospedaliera universitaria integrata di Verona. Con Pavia, Padova. Con 14 ospedali nei primi 250, miglioriamo la performance nazionale, in un contesto più “affollato” e competitivo, con criteri di valutazione più raffinati. (fonte Sanita33)

THE HEALTHCARE INNOVATION SUMMIT

Il mondo della sanità è al centro di importanti sfide tecnologiche, organizzative e infrastrutturali ed è proprio in questo contesto che si colloca l’Healthcare Innovation Summit, un evento dedicato alla sanità digitale e che per questa edizione sarà realizzato da TIG - The Innovation Group insieme ad AISIS - Associazione Italiana Sistemi Informativi in Sanità, dal 9 all’11 ottobre, presso il NHOW Hotel in Via Tortona a Milano.

Nella fase post Covid il settore sanitario italiano ha dovuto affrontare importanti cambiamenti anche grazie agli interventi del PNRR e del DM 77 (il decreto del Ministero della Salute che definisce i modelli e gli standard per lo sviluppo dell’assistenza territoriale nel Servizio Sanitario Nazionale). I dati di scenario evidenziano come sia sempre più strategica l’innovazione digitale per colmare il divario crescente tra le esigenze sanitarie e le risorse disponibili, soprattutto a fronte di una società caratterizzata da una forza lavoro in dimi-

nuzione, una popolazione che invecchia e una crescente frammentazione sociale.

Durante queste giornate le istituzioni, le associazioni e le organizzazioni del settore sanitario pubblico e privato si confronte-

aprile 2024 9 NEWS
█ Dal 9 all’11 ottobre si terrà a Milano l’Healthcare Innovation Summit 2024

ranno, dunque, sui nuovi scenari di sviluppo del Sistema Sanitario Nazionale e sulla spesa sanitaria. Verrà fatto, inoltre, un focus sulle sfide e sulle opportunità che l’innovazione digitale può portare nell’ecosistema della sanità e delle life science, grazie anche al coinvolgimento dei maggiori partner tecnologici attivi nel mercato. Ricerca ed health innovation, ma anche prospettive e applicazioni concrete dell’Intelligenza Artificiale sono temi che verranno affrontati dagli esperti del settore. Infine, si parlerà an-

che della governance e dell’interoperabilità dei dati sanitari, che rappresentano oramai il perno centrale della rivoluzione digitale in un contesto in rapida evoluzione, oltre ai temi sempre più attuali della cybersecurity e della tutela della privacy. Healthcare Innovation Summit vuole essere il primo momento di un programma articolato di iniziative comuni nel settore della formazione e della diffusione della cultura sui temi dell’innovazione digitale nel campo della sanità, del biotech e delle life science.

PNRR, DA SANITÀ DIGITALE A MINISTERO SALUTE

ECCO LE NOVITÀ DEL NUOVO DECRETO LEGGE

Norme per la sicurezza sul lavoro con patente a punti e una sorta di percorso “bonus malus” per le imprese appaltatrici dei cantieri: è questo il punto chiave del decreto-legge PNRR appena approvato dal Consiglio dei Ministri. Ma il provvedimento, che andrà poi modificato e ratificato dalle camere, si configura come un testo “omnibus” di 48 articoli e affronta più temi di intervento, tra cui alloggi universitari, lotta al lavoro irregolare, reclutamento dei magistrati. E vi si parla anche di sanità. In quest’ambito, si danno nuovi compiti all’Agenzia dei servizi sanitari regionali nell’attuare il Fascicolo sanitario elettronico e nel governo della sanità digitale. E si crea una sorta di direttore generale al Ministero della Salute, figura tecnica che il tempo dirà se sia raffrontabile alle direzioni generali ormai presenti presso tutti gli assessorati regionali.

Misura interessante per medici e cittadini nel medio-breve periodo appare il “riciclo” della piattaforma nazionale “Digi-

tal green certificate” (Piattaforma nazionale - DGC) da utilizzare anche, in futuro, per nuove certificazioni sanitarie. Oltre ai green pass, sia per far fronte a eventuali emergenze sanitarie, sia per agevolare rilascio e verifica di modelli utilizzabili negli Stati OMS aderenti alla rete globale di certificazione digitale, la Piattaforma emetterà i certificati individuati man mano da decreti concertati tra Ministri di Salute ed Economia previo parere del Garante privacy. Per l’implementazione della piattaforma, è autorizzata la spesa di euro 3,85 milioni quest’anno e per la sua manutenzione si spenderanno 1,85 milioni dal 2025. In parallelo, nell’Ufficio di Gabinetto Ministero della Salute, dal 1° giugno 2024 opererà un dirigente generale “con compiti di consulenza e ricerca nell’ambito di analisi, valutazione delle politiche pubbliche e revisione della spesa in materia sanitaria nonché per coadiuvare e supportare il Ministero nelle funzioni strategiche di indirizzo e di coordinamento delle articolazioni ministeriali nel settore delle politiche di bilancio”. Costo a regime: euro 294.400 dal 2025.

Infine, per assicurare la tempestiva realizzazione dell’investimento 1.2 (ammodernamento ospedali) del PNRR e del Piano nazionale per gli investimenti complementari, le regioni possono impegnare le risorse finanziarie per l’edilizia sanitaria (legge 11 marzo 1988), integrando i progetti inseriti nei Contratti Istituzionali di Sviluppo (CIS) già sottoscritti. Il ministro per gli Affari europei, il Sud, le Politiche di coesione e il Pnrr Raffaele Fitto, sottolinea che il DL dà modo di responsabilizzare gli enti chiamati a spendere i fondi europei del PNRR. Per stenderlo, è stato fatto un “lavoro molto complesso” e le coperture sono state trovate in una serie di fondi individuati con il Ministro dell’Economia Giancarlo Giorgetti, che Fitto ha ringraziato.

“Apriamo le condizioni per il lavoro ulteriore dei prossimi mesi, che saranno importanti sia per la verifica sulla quinta rata che per la sesta e settima che sono due obiettivi del 2024” (fonte Sanita33)

aprile 2024 10 NEWS

DAVINCI SALUTE LANCIA ELTY

L’HealthTech italiana conosciuta come DaVinci Salute lancia Elty, il nuovo brand pensato per il benessere della persona. Questo segna un momento importante nella storia dell’azienda e un rinnovato impegno per rendere la salute fisica e mentale sempre più accessibile alle persone. A guidare la roadmap di Elty sarà quindi l’intensificazione delle collaborazioni con le cliniche e gli ambulatori in tutta Italia e l’ampliamento delle partnership con le aziende per offrire il servizio di medico dedicato e il supporto psicologico ai dipendenti come parte integrante del welfare. Gli investimenti in tecnologia e AI continueranno invece a svolgere un ruolo chiave con l’obiettivo di offrire servizi innovativi in ottica di prevenzione.

Fondata nel 2018 con lo scopo di fornire soluzioni innovative e creare accessibilità nel settore sanitario, DaVinci Salute ha conquistato rapidamente una posizione di rilievo sul mercato per pazienti, professionisti sanitari, cliniche e aziende. Con il passare degli anni e l’ampliamento della gamma di servizi offerti alla persona, l’azienda ha sentito la necessità di porsi nuovi sfidanti

obiettivi creando un nuovo brand in grado di riflettere appieno la sua crescente diversificazione.

Nasce così Elty: parola che deriva dall’italianizzazione di “healthy” ossia “essere sani”. Questo termine, infatti, racchiude in sé l’essenza stessa della mission aziendale – creare un futuro più sano grazie ad una maggiore accessibilità ai servizi legati al benessere fisico e mentale, con l’obiettivo di mettere sempre il paziente moderno, più connesso e attento alle proprie esigenze, al centro.

HEALTH INCLUSIVITY INDEX – I RISULTATI DELLA SECONDA FASE DEL PROGETTO

Il 66% della popolazione mondiale ha sperimentato nella propria vita almeno una barriera di ingresso nell’accesso ai servizi sanitari: tre persone su cinque nel mondo soffrono di esclusione sanitaria, con maggior incidenza se si guarda a Generazione Z (i giovani tra i 14 ed i 29 anni) e Millennials (gli adulti tra i 30 ed i 44 anni). Questa la principale evidenza della seconda fase del Global Health Inclusivity Index - realizzato dal think-thank Economic Impact e supportato da Haleon, leader mondiale nel settore del Consumer Healthcare – che misura l’estensione e l’esperienza di inclusione sanitaria in 40 Paesi. Esiste un netto divario generazionale in materia di salute, con la GenZ che si sente maggiormente esclusa dal sistema sanitario con il 45% di loro che esprime un disallineamento fra necessità personali rispetto alla qualità dell’assistenza ricevuta. Un’evidenza ancor più critica se si considera che circa un terzo di Millenials e Gen-Z ha riportato che la propria condizione di sofferenza e lo stato di salute personale non sono stati presi seriamente in considerazione dal personale sanitario professionista. Accesso completamente negato per un quinto di queste due fasce generazionali (21% per Gen-Z e 22% per Millennials).

Il focus sull’Italia

Nella seconda fase dell’Indice, l’Italia si colloca al 15° posto nella parte alta della classifica, perdendo una sola posizione rispetto alla precedente edizione dello studio.

Il Paese ha espresso nel complesso 4 evidenze positive:

█ l’accesso all’assistenza sanitaria è negato a una percentuale minore della popolazione (solo 3 Paesi ottengono risultati migliori in termini di inclusività della salute);

█ il dato sul mancato accesso della popolazione a esami e trattamenti è basso;

█ non si evidenziano discriminazioni nella qualità dell’assistenza sanitaria in termini di razza, etnia o classe sociale;

█ gli elevati standard di vita sostengono la salute della popolazione e, quindi, alleggeriscono il sistema sanitario;

e due evidenze negative:

█ un’educazione sanitaria della popolazione tra le più basse rispetto ai Paesi ad alto reddito;

█ l’accesso all’innovazione tecnologica quale acceleratore d’inclusività: in Italia solo 3 persone su 10 dichiarano di avere accesso a servizi di teleassistenza contro il 53% in media degli altri Paesi ad alto reddito.

Secondo l’indagine, quindi, il sistema sanitario italiano garantisce a tutti i cittadini l’accesso ai servizi per la salute, con qualche eccezione se si considerano le fasce più fragili della popolazione e le persone che convivono con una condizione cronica (4 su 10 hanno sperimentato barriere nell’accesso alle cure) e, in parte, la GenZ e Millennials (3 su 10) a causa di visite, cure ed esami negati.

aprile 2024 11 NEWS

Espansione

dell’Ospedale Sacré-Coeur di Montréal: passato e futuro si integrano insieme

Il progetto di espansione dell’ospedale risponde a un’importante condizione di vetustà dell’Hôpital du Sacré-Cœur-de-Montréal, i cui locali risalgono principalmente al 1926. L’ampliamento e la modernizzazione delle strutture hanno permesso di offrire i più alti livelli di qualità delle cure, dei servizi, dell’insegnamento e della ricerca

di Marco Gola, Erica Isa
Daniel Ibrahim (Immagini e piante: Yelle Maillé et associés architectes inc.) ARCHITETTURA 12
Mosca,
aprile 2024

DATI GENERALI

Progettisti

Provencher_Roy, Yelle Maillé et associés architectes

Dimensioni dell’area di espansione 16.252 mq

Anno di completamento 2022

Città

Montréal, Canada

ARCHITETTURA 13
█ Prospetto principale dell’espansione dell’Ospedale Sacré-Coeur di Montréal. Immagine concessa da Yelle Maillé et associés architectes inc.
aprile 2024

STORIA, EVOLUZIONE E PRESTIGIO DELL’OSPEDALE

L’Hôpital du Sacré-Cœur-de-Montréal è stato fondato nel 1898 dalle Suore della Provvidenza. Nacque come luogo di accoglienza per i più malati (tubercolari, cancerosi, ecc.) e i più bisognosi (invalidi, ecc.), tantoché era rinomato come “l’Ospedale degli incurabili”. Fu distrutto per causa di un grave incendio e l’ospedale fu ricostruito dalla comunità religiosa nel 1926 nell’attuale sito ove è localizzato, cioè su Gouin Boulevard nel quartiere Ahuntsic-Cartierville. Da 1927 infatti viene riconosciuto come l’Hôpital du Sacré-Cœur de Montréal (HSCM) ed è uno dei più antichi ospedali del Quebec. Dopo quasi un secolo di storia, l’ospedale è oggi uno dei quattro principali centri di assistenza di Montréal e ospita un centro traumatologico altamente specializzato, nonché un centro sovraregionale per le cure cardiovascolari, infezioni respiratorie e salute mentale. È anche rinomato per l’ortopedia e la chirurgia bariatrica. Si stima infatti che un quarto della popolazione del Quebec, ovvero quasi 2 milioni di persone, in termini di bacino di utenza, faccia riferimento a esso. A oggi l’ospedale ospita più di 63.000 pazienti all’anno e il suo polo di emergenza è un centro di riferimento per il paese. In aggiunta, da circa 50 anni, l’ospedale è affiliato con Università di, il che lo rende un luogo di ricerca e formazione di rilievo in Quebec ed è membro di una rete di eccellenza afferente al CIUSSS du Nord-de-l’Île-de-Montréal.

IL PROGETTO DI AMPLIAMENTO

DELL’OSPEDALE

Nonostante la sua importanza, la struttura centenaria è risultata obsoleta. Nel corso del tempo, infatti, le carenze fisiche e funzio-

nali hanno impedito all’istituzione di portare avanti la sua missione attuale.

Per tale motivo Provencher_Roy e Yelle Maillé et associés architectes si sono occupati in questi ultimi anni a supportare la struttura sanitaria, rinnovando gli spazi del pronto soccorso nel 2009, supportando il progetto di riorganizzazione funzionale e con un progetto di espansione dell’ospedale.

Nello specifico alla genesi del progetto di ampliamento c’è l’obiettivo a lungo termine di creare una nuova ala altamente compatta e funzionale, che fornisca il collegamento più efficiente tra l’attuale pronto soccorso al piano inferiore, il nuovo centro traumatologico al secondo livello e un futuro blocco operatorio previsto al piano terra.

La nuova stecca a forma di “L” ospita molte delle funzioni critiche e ad alta complessità tecnologica dell’ospedale, tra cui il centro traumatologico integrato, l’unità di endoscopia e l’area maternoinfantile. L’ampliamento libera così spazi nell’edificio storico che a loro volta possono ospitare da altre aree sanitarie più adatte alla tipologia esistente.

Nello specifico il progetto funzionale è stato così organizzato: al piano terra sono stati localizzati i servizi di endoscopia, prossimi al pronto soccorso esistente;

█ al primo piano l’area della ricerca e formazione, afferente al centro traumatologico;

█ al secondo piano l’area della traumatologia;

█ al terzo piano l’area materno-infantile;

█ all’ultimo livello sono stati previsti vani tecnici;

█ e il piano copertura è stato progettato sovradimensionato per ospitare un’eventuale espansione con l’introduzione del blocco operatorio.

14 ARCHITETTURA
█ Prospetto principale dell’espansione dell’Ospedale Sacré-Coeur di Montréal.

15 ARCHITETTURA aprile 2024
Assonometria funzionale. Progetto architettonico del Piano terra.

█ Progetto architettonico del Piano primo.

█ Progetto architettonico del Piano Secondo.

16 ARCHITETTURA aprile 2024

█ Progetto architettonico del Piano terzo.

Come si può osservare la parte storica è strutturata su una tipologia distributiva a corpo triplo, mentre il nuovo edificio sulla tipologia a corpo quintuplo.

La strategia progettuale massimizza l’efficienza e la funzionalità, collegando meticolosamente i nuovi spazi con la struttura esistente e mantenendo al tempo stesso un collegamento costante con l’edificio storico e il paesaggio naturale del sito.

Un lungo asse collega gli edifici storici con la stecca moderna, garantendo la circolazione in continuità per facilitare i percorsi pubblici e sanitari. Da questo asse i visitatori possono accedere agli spazi sanitari degli altri padiglioni storici tramite il connettivo verticale direttamente accessibile dal nuovo ingresso. L’asse principale si apre su un ingresso accogliente inondato di luce e progettato per fungere anche da luogo di incontro informale per i professionisti di vari dipartimenti, studenti, visitatori e pazienti.

IL CENTRO INTEGRATO DI TRAUMATOLOGIA (CIT)

L’area dedicata alla traumatologia è uno dei poli di eccellenza dell’Hôpital du Sacré-Cœur-de-Montréal, che conta con il CIT sul più grande centro di traumatologia universitaria di Montreal.

17 ARCHITETTURA aprile 2024
█ Hall di ingresso. Immagine concessa da Yelle Maillé et associés architectes inc.

Il centro è costituito da 150 medici, 500 infermieri e 25 ricercatori che lavorano in sinergia quotidianamente. In relazione al concept del progetto funzionale, il fatto di far collaborare medici intensivisti, farmacisti, ricercatori, insegnanti, tirocinanti e altri professionisti della traumatologia negli stessi ambienti permette di poter scambiare pareri e ragionamenti, di approfondire meglio i metodi di cura, di innovare e persino di salvare più vite.

Il CIT ha una dimensione più di 3.500 mq di superficie distribuita su 2 livelli. Sono 32 camere individuali di terapia intensiva, di cui 7 isolate. Il centro conta anche 4 laboratori di ricerca e 6 laboratori di simulazione e insegnamento. Nello specifico il centro di simulazione è una risorsa importante nello sviluppo dell’esperienza degli utenti soggetti a cure critiche.

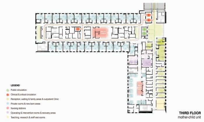
L’AREA MATERNO-INFANTILE

I nuovi spazi dell’area materno-infantile hanno che si estendono su una superficie di circa 1.800 mq, comprendono 26 moderne camere adatte alle pratiche attuali. Progettate sul “modello TARPP” (travaglio - parto - recupero - post-partum), queste camere individuali promuovono la sicurezza e la continuità delle cure e l’intimità delle famiglie offrendo loro un soggiorno nella stessa stanza, dall’ingresso alla partenza dall’ospedale. Di queste 26 camere, una potrà ospitare una pazienti in isolamento respiratorio e altre due potranno accettare un secondo letto in caso di necessità.

18 ARCHITETTURA aprile 2024
█ Schema complessivo delle tipologie distributive dell’Ospedale Sacré-Coeur di Montréal. █ Hall di ingresso. Immagine concessa da Yelle Maillé et associés architectes inc.

█ Schema del modulo adoperato per il disegno delle facciate.

In aggiunta, le sale dedicate al monitoraggio prenatale e postnatale sono allestite nei nuovi locali dell’unità materno-infantile e facilitano l’accesso ai servizi ambulatoriali soprattutto per le gravidanze a rischio e per le pazienti più vulnerabili.

L’unità include anche: una sala di ecografia; un’area dedicata all’accoglienza e al triage della clientela incinta, compresa una sala di osservazione con quattro postazioni; una sala per l’allattamento e uno spazio per una consulente per l’allattamento; e una sala riservata al follow-up neonatale.

SERVIZIO DI ENDOSCOPIA

Il trasferimento dei servizi di endoscopia all’interno del nuovo edificio dell’Hôpital du Sacré-Coeur-de-Montréal offre un’area di intervento più ampia (950 mq) che comprende cinque sale di intervento, di cui tre per la gastroenterologia (gastroscopia e colonscopia), una per la pneumologia e una per l’urologia. Il servizio include anche una sala multipla per le tecniche avanzate sotto fluoroscopia, nonché una sala risveglio di 18 posti letto, di cui 14 standard e 4 in isolamento.

SISTEMA DI FACCIATA

L’ampliamento sfrutta uno dei vantaggi distintivi del sito: il contesto naturale e l’accesso alla luce naturale. L’integrazione delle finestre

pavimento/soffitto nelle stanze e le generose aperture nelle aree pubbliche e alle estremità dei corridoi forniscono abbondante luce e viste sull’esterno senza compromettere la privacy dei pazienti. Questi principi come elemento fondamentale del trattamento e del recupero del paziente preservano le intenzioni progettuali definite nel progetto dell’edificio storico, la sua connessione con il paesaggio naturale e la sorprendente configurazione radiale originariamente stabilita per seguire il percorso del sole.

I piani superiori, occupati dalle camere di degenza, sono rivestiti con fasce verticali di pannelli ceramici che riprendono la matericità dell’edificio originale, alternate a sezioni di facciata continua verticali costituite da tripli vetri con tende integrate. Il ritmo costante delle aperture richiama il linguaggio e le proporzioni originali. Questa continuità dell’esistente è bilanciata da un linguaggio distintivo che afferma l’evoluzione contemporanea della struttura sanitaria. La sua finestratura si modula in profondità, rispondendo all’orientamento solare, e la grande vetrata posizionata all’estremità di ciascuna ala è una una reinterpretazione moderna dei solarium.

I piani superiori sembrano fluttuare sopra quelli inferiori, completamente vetrati, dove sale d’attesa, lounge, sale riunioni e altre aree semi-pubbliche godono di ampie viste sul contesto e sull’edificio originale.

Questi piani inferiori intrecciano aree coltivate e costruite per incorporare il paesaggio come parte centrale dell’esperienza del paziente. L’introduzione dei nuovi giardini consentono a pazienti,

19 ARCHITETTURA aprile 2024

medici, visitatori e personale di godere di spazi per la contemplazione silenziosa e il riposo massimizzando l’esposizione alla luce naturale.

L’aggiunta è inoltre progettata per accogliere eventuali future espansioni.

Composto da un’alternanza di strisce verticali di facciata piena in muratura e vetrate, il linguaggio permette un’alta efficienza energetica per l’involucro, e preserva l’apporto di luce naturale e le viste degli spazi interni. La continuazione della ritmica delle aperture dello scrigno, alimentata dalla volontà di stabilire un’eccellente integrazione dell’ampliamento nel suo contesto paesaggistico e patrimoniale assume così una forma decisamente contemporanea.

TOUR VIRTUALE

Per un tour virtuale dell’ospedale

Sacré-Cœur-de-Montréal inquadrare

il QR Code oppure andare al sito:

https://tourmkr.com/F14H8rHu1x/40410324p&42.64h&90.58t

Bibliografia e ringraziamenti

Le informazioni utili per la scrittura dell’articolo sono state tratte da: █ descrizioni del progetto fornito da Yelle Maillé et associés architectes inc; █ disamina tecnica dei disegni di progetto; █ portali di architettura accessibili dal web.

Si ringraziano per la realizzazione dell’articolo i colleghi degli Yelle Maillé et associés architectes inc., e in particolare Jean Yves Lam, per la condivisione delle immagini e disegni pubblicati in questo articolo.

Gli autori

MARCO GOLA

ERICA ISA MOSCA

DANIEL IBRAHIM

Design & Health Lab, Dip. Architettura, ingegneria delle costruzioni e ambiente costruito, Politecnico di Milano.

20 ARCHITETTURA aprile 2024
█ Sala d’attesa. Immagine concessa da Yelle Maillé et associés architectes inc. █ Corridoio interno delle aree funzionali. Immagine concessa da Yelle Maillé et associés architectes inc.

Innovazione e sostenibilità: la clinica di neuroriabilitazione e paraplegiologia di Basilea

Il progetto per la trasformazione e l’ampliamento della clinica di neuroriabilitazione e paraplegiologia di Basilea, curato dallo studio svizzero Herzog & de Meuron, dimostra come il ricorso a tecnologie prefabbricate a secco integrate in una struttura puntiforme permetta di garantire flessibilità funzionale e compositiva nel tempo

TECNOLOGIE 22
di Rosa Romano
aprile 2024

DATI TECNICI

Progetto

REHAB Basel, Clinica di neuroriabilitazione e Paraplegiologia

Località

Basilea, Svizzera

Fasi del progetto

Concorso: gennaio 1998 - dicembre 1998

Progetto: gennaio 1999 - dicembre 1999

Realizzazione: gennaio 1999 –dicembre 2002

Trasformazione e ampliamento: febbraio 2018 - agosto 2020

Cliente

REHAB Basel AG, Basilea, Svizzera

Rappresentante del cliente

Hardegger Planung & Projektmanagement, Zurigo, Svizzera

Progetto architettonico

Herzog & de Meuron, Basilea, Svizzera

Project Manager

ARGE Herzog & de Meuron / Proplaning AG, Basilea, Svizzera

Progetto del paesaggio

August + Margrith Künzel

Landschaftsarchitekten, Basilea, Svizzera

Progetto dell’impianto elettrico Amstein + Walthert AG Ingenieure, Zurigo, Svizzera

Progetto dell’impianto di climatizzazione

Sulzer Energieconsulting AG, Liestal, Svizzera

Progetto idraulico

Bogenschütz AG, Basilea, Svizzera

Progetto strutturale

Consorzio di ingegneria, ARGE Pauli Frei Zachmann, Basilea, Svizzera

Supervisione della costruzione

Proplaning AG, Basilea, Svizzera

Project Manager (trasformazione ed ampliamento)

Proplaning AG, Basilea, Svizzera

Progetto dell’impianto di climatizzazione (trasformazione ed ampliamento)

Stokar + Partner AG, Basilea, Svizzera

Progetto idraulico (trasformazione e ampliamento)

Gemperle Kussmann, Basilea, Svizzera

CONSULENTI SPECIALISTICI

Acustica: Martin Lienhard, Langenbruck, Svizzera

Progettazione ospedaliera

Hardegger Planning & Project Management, Zurigo, Svizzera

Facciata (trasformazione e ampliamento)

Christoph Etter, Fassadenplanungen, Basel, Switzerland

Consulenza sulla protezione antincendio (trasformazione e ampliamento)

Quantum Brandschutz GmbH, Basilea, Svizzera

Consulenza energetica (trasformazione e ampliamento)

Ehrsam Beurret, Ingegneri e progettisti

SIA USIC, Pratteln, Svizzera

Area del Sito 24.000 mq

Superficie Utile Lorda 23.221 mq

Superficie Utile Coperta

9.500 mq

TECNOLOGIE 23 aprile 2024
█ Vista esterna del REHAB

Il progetto della clinica di neuroriabilitazione e paraplegiologia di Basilea è stato sviluppato nel 1998 dallo studio di progettazione Herzog & de Meuron per venire in contro alle richieste dalla committenza di realizzare un edificio capace di ospitare

110 posti letto e 550 degenti al giorno, che non avesse però le caratteristiche di una clinica ospedaliera, ma ricordasse, per le scelte spaziali e tecnologiche, un piccolo insediamento urbano.

Seguendo questo input sia il progetto del nuovo corpo di fabbrica, che quello dell’ampliamento, sono stati concepiti con l’obiettivo di soddisfare sia le esigenze funzionali del personale ospedaliero che quelle dei pazienti paraplegici, costretti

a restare per periodi molto lunghi (anche superiori ai 18 mesi) all’interno del REHAB.

Questa duplice necessità ha portato alla realizzazione di una struttura a padiglione, compatta per forma ma dinamica nella concezione planimetrica e spaziale, caratterizzata dalla presenza di ambienti multifunzionali e diversificati nei quali trascorrere il tempo libero, in solitudine o compagnia, tra una seduta terapeutica e l’altra.

Il corpo di fabbrica realizzato nel 1999 è stato così concepito come un parallelepipedo di due piani, nel quale le strutture terapeutiche e mediche sono state collocate al piano terra, mentre le camere di degenza (tutte di 42,00 mq di superficie)

24 TECNOLOGIE aprile 2024
█ Pianta del piano terra

sono state poste al secondo piano, favorendo la vista verso l’esterno attraverso l’integrazione di un grande ballatoio a terrazza coperto.

Con l’obiettivo di facilitare gli spostamenti di tutte le tipologie di pazienti ospitati, affetti da diversi gradi di disabilità, gli spazi interni, sono stati articolati intorno ad una sequenza variegata di rampe, cortili e giardini, riconoscibili per le caratteristiche funzionali e tecnologiche adottate. Si tratta di elementi di connessione che, oltre a servire come ambienti di sosta e di orientamento, sono stati progettati per ottimizzare la distribuzione della luce naturale all’interno dell’edificio. Lo studio August + Margrith Künzel è stato chiamato a curarne la com-

ponente paesaggistica, implementando la presenza di elementi vegetali all’interno ed all’esterno del corpo di fabbrica con l’obiettivo di realizzare un ambiente biofilico che potesse contribuire ad accelerare i processi di guarigione dei pazienti e permettesse di armonizzare l’impatto dell’edificio rispetto all’ambiente circostante.

Gli ambulatori e le stanze di degenza sono stati articolati in modo variegato attorno ai giardini-cortili (chiamati rispettivamente: giardino dell’acqua; giardino alla francese; giardino terapeutico e piscina), quasi fossero elementi tipologici di un micro-assetto urbano nel quale replicare la sequenza: abitazione, piazza, strada.

25 TECNOLOGIE aprile 2024
█ Pianta del piano primo
26 TECNOLOGIE aprile 2024
█ Pianta del piano secondo
27 TECNOLOGIE aprile 2024
█ Vista della terrazza del nuovo volume realizzato in occasione dell’intervento di ampliamento del 2018 █ Sezione di una delle stanze di degenza, con dettaglio del solar pipe sferico integrato in copertura

Allo stesso modo, gli ambienti comuni e di cura sono tati sviluppati come volumi iconici, riconoscibili per forma e caratteristiche estetiche e materiche, adottando scelte compositive e funzionali finalizzate a creare diversi gradi di comfort indoor. È questo, ad esempio il caso della piscina, posta all’interno di una piramide in calcestruzzo armato realizzata al centro dell’omonimo cortile, e caratterizzata dalla presenza di una moltitudine di solar pipe che portano luce, attraverso altrettante aperture circolari, all’interno dello spazio di cura e relax, emulando l’effetto del cielo stellato.

In linea con la filosofia dello studio Herzog & de Meuron il progetto è stato sviluppato per raggiungere elevati standard energetico-ambientali, adottando soluzioni di involucro caratterizzate dall’uso del legno e del vetro e capaci di armonizzare il corpo di fabbrica con la natura circostante.

In particolar modo, il legno, declinato nelle sue infinite variabili cromatiche, diventa l’elemento di riconoscimento del REHAB e viene integrato: nei pavimenti in rovere; nelle pareti rivestite con pannelli in larice e rovere; nei controsoffitti realizzati in multistrato d’abete; nelle schermature dei grandi ballatoi del secondo piano, realizzate con piccoli listelli di quercia a sezione circolare connessi da sfere di vetro acrilico; nei telai in rovere dei grandi infissi trasparenti.

28 TECNOLOGIE aprile 2024
█ Foto di una delle stanze di degenza del secondo piano, con vista verso il solar pipe e la terrazza █ Vista interna della piscina

Analogamente, il tetto giardino estensivo, intervallato dalle calotte semisferiche di grandi solar pipe (del diametro di due metri) che portano luce naturale all’interno delle stanze di degenza, chiude l’edificio in alzato, connettendo idealmente e visivamente i pazienti, spesso costretti a passare lunghi periodi distesi in un letto, con il cielo e la campagna circostante.

IL PROGETTO DI AMPLIAMENTO

Realizzato tra il 2018 e il 2020, segue idealmente l’approccio adottato per la costruzione del primo edificio. L’intervento, motivato dalla necessità di realizzare nuovi ambienti di degenza dedicati ai malati affetti da disturbi comportamentali, ha riguardato la trasformazione di alcuni spazi al piano terra, con la riduzione della superficie di uno dei cortili interni e la realizzazione di un nuovo volume sopra il vecchio solaio di copertura. Si tratta di un ambiente, interamente realizzato con strutture prefabbricate in legno e caratterizzato dalla presenza di quattro grandi spazi utilizzabili dai pazienti durante le pause terapeutiche (una grande zona pranzo-cucina, un soggiorno e due sale relax) a cui si sommano alcune stanze di servizio (come spogliatoi ed uffici) ed una grande terrazza coperta che si affaccia verso il paesaggio circostante.

La flessibilità planimetrica dell’impostazione compositiva originaria e la possibilità di utilizzare le stesse tecnologie costruttive del 1999 hanno fatto si che l’intervento di integrazione ed ampliamento risultasse pienamente integrato con il corpo di fabbrica esistente, senza alterarne l’impostazione e l’impatto energetico ambientale, supportando l’approccio olistico alla progettazione ospedaliera messo a punto dallo studio svizzero Kerzog & de Meuron proprio nel progetto di questo edificio, che può considerarsi non a caso il primo di una lunga serie di sperimentazioni di successo che si sono susseguite dal 1999 ai giorni nostri e che sono state finalizzate a validare un modello spaziale e tecnologico legato al concetto di umanizzazione degli ambienti ospedalieri.

Ringraziamenti

Si ringrazia lo studio Herzog & de Meuron per aver fornito all’autrice tutte le informazioni e le immagini necessarie alla stesura dell’articolo.

L’autrice

29 TECNOLOGIE aprile 2024
█ Vista di uno dei cortili giardino al piano terra

Il Sant Joan de Deu

Pediatric Cancer Center di Barcellona

Il SJD PCCB offre spazi interni in stretta connessione con l’ambiente esterno e le viste alla città. Con un’architettura accogliente, il centro crea un’atmosfera domestica e un senso di familiaritá nella vita dei pazienti pediatrici, fattori chiave nel percorso di cura del bambino e nell’accompagnamento della famiglia

di Elisa
Provesi ARCHITETTURA 30
Molinu, Giacomo
aprile 2024

DATI TECNICI

Luogo

Carrer Santa Rosa 39 08950 Esplugues de Llobregat, Barcelona

Cliente

Confraternita di Sant Joan de Déu

Ospedale Sant Joan de Déu di Barcellona

Destinazione d’uso Ospedale oncologico pediátrico

Superficie 13.196 m2

Anni di realizzazione ottobre 2018 / giugno 2022

PROGETTISTI

Architettura

Pinearq Slp

Progettista principale:

Arch. Albert De Pineda

Team di progettazione:

Arch. Roberto Cortés, Arch. Carla Romagosa

Direzione dei lavori e coordinazione della sicurezza in cantiere (CSE)

ENNE Gestión Activa de Proyectos

SLP

Team di progettazione: Inmaculada Casado Martínez, Daniel Rivera Bertrán, Ester Cabané, Eduardo Jarque Pinto

Impianti, strutture, interior INDUS Ingeniería y Arquitectura SL (Strutture)

STATIC Ingeniería SA (Strutture)

SC Enginyeria (Impianti)

Rai Pinto Studio & Arauna Studio (Interior design)

BIOREM. Biomedical Engingeering (impianti sanitari)

FOTOGRAFIE

Aitor Estévez e Wilfredo Meléndrez

█ Il Sant Joan de Deu Pediatric Cancer Center di Barcellona: piazza di accesso (foto Wilfredo Meléndrez)
ARCHITETTURA 31 aprile 2024

UN POLO DEDICATO ALLA CURA DEL CANCRO INFANTILE

Il SJD PCCB è un centro dedicato alla diagnosi, cura e ricerca del cancro infantile, nato dalla necessità strategica di creare un centro ad alta tecnología, focalizzato unicamente sull’assistenza oncologica pediatrica, all’interno dell’Ospedale Sant Joan de Déu di Barcellona.

Il nuovo PCCB è situato al limite della città metropolitana di Barcellona, ai piedi della Serra di Collserola, il parco naturale che circoscrive ad ovest la città. Il polo occupa in parte gli spazi di un edificio esistente nel lotto dedicato alla didattica e alla formazione, adattandolo e cambiandone la destinazione d’uso per creare un progetto organico di ristrutturazione e ampliamento.

VISIONE STRATEGICA: EROGAZIONE DI SERVIZI SANITARI PEDIATRICI

L’obiettivo del nuovo Centro Oncologico è quello di fornire cure efficaci, efficienti ed adeguate ad un grande volume di pazienti, centralizzando in un’unica struttura un’équipe professionale

altamente specializzata, che altrimenti sarebbe dislocata in vari centri con minore capacità strutturale e assistenziale.

Il concept funzionale adotta le 4 “P”, una strategia che vuole mettere al centro del progetto l’utente:

█ Play: il gioco come elemento essenziale nella vita di un bambino. Gli spazi sono pensati per permettere e incentivare il gioco individuale o di gruppo, diversificandolo a tutte le età, dai più piccoli ai ragazzi.

█ Parents: il paziente pediatrico deve essere sempre accompagnato da un familiare. Gli spazi di interazione e di riposo dei familiari migliorano il benessere sia del paziente che degli accompagnatori, favorendo la vicinanza con il paziente, la comunicazione con i medici e, allo stesso tempo, offrendo spazi per la decompressione e la relazione con le altre famiglie.

█ Pain-free: l’ambientazione, i materiali caldi, le vedute aperte sulla città e sulle montagne, la luce naturale e gli spazi per le relazioni, sono elementi che umanizzano gli spazi e mitigano l’esperienza traumatica, come può essere una lungodegenza in ospedale.

32 ARCHITETTURA aprile 2024
█ Ponte elevato/Passerella di connessione (foto Aitor Estévez)

█ Professionals: coinvolgimento di tutti gli operatori sanitari nella cura del paziente.

IL PROGETTO FUNZIONALE

Il progetto prevede che il 70% dell’edificio sia dedicato a spazi sanitari mentre il restante 30% sia destinato a ricerca e sviluppo. Il nuovo centro dispone di 37 camere singole, 8 camere per trapianti, 26 box per day hospital e 21 ambulatori, un reparto operatorio; laboratori di ricerca oncologica e altri servizi sanitari.

Il PCCB è dotato anche di un centro di medicina nucleare (SIMM - Servizio di Imaging Molecolare e Metabolico), con apparecchiature all’avanguardia per la diagnosi dei tumori dello sviluppo e di altre patologie, oltre a strutture per effettuare nuovi trattamenti.

Il PCCB dispone anche di due sale per la terapia metabolica, consentendo il trattamento di alcuni tumori con radiofarmaci. Queste strategie, note come radioimmunoterapia, aumentano la specificità e l’efficacia dei nuovi trattamenti.

F1-Ristrutturazione dell’edificio esistente

F1-Ampliamento: edificio sanitario

F2-Ampliamento: ponti di connessione e spazi aperti

33 ARCHITETTURA aprile 2024
█ Schema delle fasi di realizzazione █ Albert de Pineda: L’Architetto Albert De Pineda, progettista principale del PCCB

█ Pianta di degenza tipo

█ Sezione prospettica dello spazio d’accesso

34 ARCHITETTURA aprile 2024

█ Spaccato assonomotrico

Per favorire la collaborazione tra le equipe mediche, è stata creata una connessione tra i due centri. L’ospedale maternoinfantile adiacente è collegato al nuovo Cancer Center attraverso un ponte pedonale di 90 metri, evitando la duplicazione di servizi e promuovendo una migliore integrazione impiantistica e dell’infrastruttura IT.

Particolare attenzione è dedicata ai reparti di degenza per pazienti immunodepressi, dove è stato implementato un impianto di climatizzazione con filtrazione assoluta e pressione positiva negli spazi condivisi. Questo sistema di ventilazione meccanica consente ai bambini di giocare all’esterno delle loro stanze, evitando possibili rischi di contagio nosocomiale.

Il progetto architettonico si articola in 3 fasi costruttive, ognuna delle quali corrisponde ad una azione progettuale.

La prima prevede l’ammodernamento e la trasformazione dell’edificio esistente, la seconda riguarda la realizzazione del nuovo corpo di fabbrica e della facciata continua che abbraccia anche l’edificio esistente. La terza e ultima fase connette il nuovo edificio con il vicino ospedale pediatrico.

UMANIZZAZIONE DELL’OSPEDALE

Tutte le strategie progettuali sono state applicate con un unico obiettivo: umanizzare gli spazi per i pazienti pediatrici

Natura

La progettazione ha tenuto conto dei fattori ambientali che possono modificare positivamente le nostre emozioni, i pensieri ed i comportamenti, introducendo quanto più possibile la luce naturale, i colori e creando atmosfere positive, al fine di aiutare ad accrescere la sensazione di sicurezza e facilitare la guarigione dei pazienti pediatrici.

L’ubicazione del Centro a ridosso del Parco Naturale di Collserola ha permesso di integrare nel progetto ambienti con un design concepito attorno la natura: “Attraverso l’osservazione dell’ambiente naturale circostante ed il gioco, i pazienti del centro scoprono come molti esseri viventi del nostro mondo hanno sviluppato caratteristiche incredibili per sopravvivere”.

Quest’idea è allegoricamente legata ai concetti di resilienza e guarigione dei bambini malati di cancro.

35 ARCHITETTURA aprile 2024

█ La stanza di degenza. L’antesala come zona di soggiorno e gioco rende più piacevole il soggiorno dei pazienti

L’edificio è stato reso il più possibile permeabile alla luce naturale, estendendo le finestre dell’ex edificio didattico fino al pavimento per massimizare la vista sull’ambiente’esterno.

Tutti gli spazi fruiti dagli utenti - pazienti e personale medicohanno luce naturale dalla facciata o luce zenitale da lucernari. Da un edificio esistente, chiuso e non illuminato, si è abbracciata la progettazione biofilica: il paesaggio circostante e la luce naturale entrano e vengono incorporati nell’edificio in corridoi, sale di consultazione e stanze.

L’umanizzazione degli spazi ospedalieri è ottenuta anche grazie all’integrazione tra la tecnologia ad alta complessità medica e l’adozione di un’architetura domestica, a misura di bambino.

Progetto partecipato

Garantire un senso di domesticità all’interno dell’ospedale permette di continuare il più possibile una vita quotidiana e “normale”, che di solito viene interrotta durante questo tipo di cure mediche.

Tutte le scelte progettuali sono state prese ponendo al centro l’utente principale – il bambino e l’adolescente – personalizzando ad hoc gli ambienti dedicati a lui e ai suoi accompagnatori. Inoltre, la progettazione funzionale degli spazi è stato guidata da un processo partecipativo, di co-creazione, in cui sono stati coinvolti il personale medico e le famiglie. Coinvolgere i futuri

36 ARCHITETTURA aprile 2024
█ Studio della facciata con i colori corporativi del PCCB █ Dettaglio della facciata (foto Aitor Estévez)

utenti dello spazio ha aggiunto prospettive preziose e contribuito a creare un ambiente più inclusivo e adatto alle esigenze di tutti. Si incoraggia l’uso degli spazi di relazione: spazi di incontro, di gioco, di relazione e di scambio, di riposo, di studio ecc. Possiamo trovare diversi tipi di spazi di relazione tra gli utenti che abitano l’edificio:

█ tra pazienti, condividendo spazi gioco nelle unità di degenza.

█ Anche al paziente immunodepresso – per quanto possibile – viene data la possibilità di uscire dalla stanza e interagire nella ludoteca dell’Unità, completamente attrezzata a tale scopo;

█ tra i pazienti e i loro accompagnatori, separando lo spazio di riposo e di studio del paziente dallo spazio di riposo degli accompagnatori, garandento a ciascuno la propria privacy;

█ tra i pazienti e gli accompagnatori con il personale medico, creando aree di visita concepite come aree di comunicazione informale all’esterno delle degenze;

█ tra il personale medico, ampliando le aree dei corridoi di circolazione a loro dedicata per formareli in spazi di incontro e scambio di idee;

█ tra gli accompagnatori, grantendo una valvola di sfogo con le Family Lounge, spazi deducati alle famiglie.

Gioco

Attraverso l’osservazione e il gioco, gli interni del centro ci rivelano come molti organismi del nostro ambiente naturale abbiano sviluppato caratteristiche incredibili per sopravvivere. Questo discorso è collegato in modo allegorico ai concetti di resilienza e superamento dei bambini malati di cancro.

Gli spazi sono decorati con forme naturali ingigantite. In questo modo diventa visibile ciò che spesso non vediamo e si valorizza l’importanza della Natura e la sua straordinaria creatività nel trovare modi per sopravvivere: farfalle che compiono lunghi viaggi e si prendono cura l’una dell’altra di notte per proteggersi; semi che si lasciano trasportare dal vento per lunghi percorsi; uccelli che migrano distanze incredibili; fiori con proprietà sorprendenti, sono alcuni degli esempi che possiamo trovare.

Le silhouette organiche e monocromatiche su larga scala coprono ampie superfici e sporgono dal piano della parete o della finestra, modificando visivamente la percezione dei piani architettonici. L’astrazione delle forme lascia spazio all’interpretazione, potenziando il gioco, la creatività e la partecipazione.

Lungo l’edificio ci sono diverse sale relax e giochi, ognuna tematizzata con un ecosistema diverso del pianeta: il Sahara, l’Artico, l’Amazzonia, così come l’alta montagna o il fondale marino.

37 ARCHITETTURA aprile 2024
█ Piano quinto: terrazza con caffetteria (foto Wilfredo Meléndrez) █ Hall di ingresso (foto Aitor Estévez) █ Quinto piano: la caffetteria (foto Aitor Estévez)

█ Sala dedicata alle famiglie (foto Aitor Estévez)

█ Spazio intermedio (Aitor Estévez)

█ Camera tipo (foto Aitor Estévez)

Nel foyer principale è stata progettata un’opera d’arte: una foresta virtuale che diventa un portale magico verso l’esterno, la natura di Collserola. Questa installazione, che avvicina la natura ai bambini dell’ospedale, gioca con la flora e la fauna autoctone e con i cambiamenti esterni (le ore, le stagioni e il tempo). Una foresta magica che si anima con l’interazione dei bambini, che possono riempire gli schermi di colori, di animali personalizzati o generare un tornado di vento o farfalle. Tutto cio`e`reso possibile da 5 totem che permettono, con il gioco interattivo, di modificareo l’elemento naturale in modo inaspettato e inusuale. Il sistema di arredi è ispirato agli animali invertebrati e comprende insiemi di divani, panche, poltrone e pouf che si incastrano tra loro, bilanciando riposo e gioco.

Tutte queste soluzioni progettuali mirano a un obiettivo finale: umanizzare l’architettura dell’ospedale, adattandola alle esigenze dei bambini affinché si sentano a loro agio e possano vivere un’esperienza ludica in un contesto solitamente poco accogliente.

L’INVOLUCRO: RISANAMENTO, RISTRUTTURAZIONE E RIGENERAZIONE

Al fine di mitigare l’impatto ambientale del nuovo intervento, vengono adottate tre differenti strategie di sostenibilità che favoriscono sia l’architettura passiva che quella attiva, con l’obiettivo di migliorare l’efficienza energetica dell’involucro edilizio:

38 ARCHITETTURA aprile 2024

█ Sala gioco, piano ospedalizzazione (foto Wilfredo Meléndrez)

█ ridurre le perdite energetiche migliorando l’isolamento termico con una nuova facciata;

█ proteggere per mezzo del sistema di frangisole a lamelle verticali;

█ generare energia pulita per l’autoconsumo .

L’involucro è costruito con una facciata ventilata, che migliora l’efficienza energetica e la sicurezza antincendio, realizzata in laste di grandi dimensioni di pietra ricostruita ultracompatta, di colore grigio chiaro. Su questa base monocromatica viene installato un sistema di lamelle verticali in alluminio anodizzato in colori vivaci analoghi a quelli interni, che danno un aspetto giocoso all’edificio e al contempo proteggono dall’irraggiamento. Questa soluzione ha permesso di unificare l’immagine dell’edificio esistente con la nuova volumetria dell’ampliamento. I serramenti esistenti sono stati tutti sostituiti con nuovi a taglio termico e vetria a bassa emissione termica, controllo solare e basso emissivi.

Inoltre, sulla facciata a sud, tra le lamelle si inseriscono vetri fotovoltaici di ultima generazione, i quali, oltre a schermare dal sole grazie alla loro bassa emissività, generano energia elettrica.

SFIDE E PARTICOLARITÀ DEL LAVORO

Le principali sfide affrontate da questo progetto sono state, in primo luogo, la modifica del piano regolatore generale per

poter realizzare il collegamento con l’ospedale esistente, attraverso la passerella sopraelevata che oltrepassa la strada pubblica.

In secondo luogo, l’adattamento alle mutate esigenze della proprietà, in termini di modifiche distributive, effettuato in fase di esecuzione dell’opera, frutto del processo di progettazione collettiva a cui hanno partecipato tutti gli utenti coinvolti (medici e familiari dei pazienti), denominato “Patient Experience”. Infine, l’edificio è stato costruito durante la pandemia (20202022) senza cessare la sua attività, e il cui accesso si è trovato in un punto critico e conflittuale di utilizzo molto intenso. In un ospedale è importante che non vi siano rischi per i pazienti, oltre a quelli intrinsechi nell’attività ospedaliera.

Il controllo e la prevenzione dei rischi nosocomiali, la mitigazione di polveri e rumore, la rimozione di detriti, evitare la sovrapposizione dei percorsi degli utenti e delle lavorazioni, sono stati punti cardine sui quali è stato gestito il cantiere, al fine di non gravare sull’attività ospedaliera, sui pazienti e sugli utenti del Centro.

39 ARCHITETTURA aprile 2024

Nuovo Ospedale di Cremona

Il nuovo Ospedale di Cremona emerge come un possibile modello per l’architettura sanitaria, focalizzandosi sulla qualità architettonica come elemento centrale per promuovere il benessere psico-fisico

A cura di SEC Newgate Italia ufficio stampa MCA (foto Visual by MCA Visual)
40 ARCHITETTURA aprile 2024
█ Vista dal Parco della Salute

IL PROGETTO DEL NUOVO OSPEDALE DI CREMONA E DEL PARCO DELLA SALUTE

Mario Cucinella Architects (MCA) propone un nuovo modello di architettura sanitaria dal quale emerge una visione olistica della salute e del benessere della persona, in stretta connessione con i sistemi territoriali e la rete sanitaria assistenziale. Il Nuovo Ospedale di Cremona si integra con il contesto socioculturale, diventando centro sanitario che non ospita solo servizi di diagnosi e cura, ma anche spazi di interazione sociale, per lo svago, per accrescere il valore del benessere e della cura della persona. Il processo progettuale parte da un’analisi approfondita della struttura urbana e territoriale, integrando da un lato la struttura radiale di percorsi e spazi urbani tipici di Cremona, che contribuiscono alla definizione dell’area di progetto come nuovo centro di attrazione; dall’altro la composizione altimetrica delle terrazze fluviali caratterizzata da argini e passeggiate sospese nel paesaggio naturale. A tale analisi, si integra la necessità di creare un sistema resiliente, capace di adattarsi al mutare delle esigenze sociali economiche e ambientali.

UN ECOSISTEMA DELLA SALUTE

L’area di progetto, a cavallo tra l’espansione urbana e il Parco del Po e del Morbasco, ne consente la riconnessione, diventando così una nuova porta d’accesso per il sistema naturale. Il Nuovo Ospedale, che si sviluppa in continuità con il paesaggio del Parco della Salute, segue un andamento semicircolare che garantisce la permeabilità sia fisica sia visuale tra i due elementi. Il progetto architettonico permette di concepire gli spazi proposti come core centrali dai quali possono scaturire nuove aree di espansione: la copertura verde che emerge dal sistema del parco crea spazi coperti in relazione con il paesaggio circostante, che possono essere colonizzati nel tempo al fine di rendere l’Ospedale un luogo attivo per l’incontro e l’interazione sociale. Le funzioni di asilo ed aree legate all’educazione, attualmente presenti nel complesso, sono integrate da una biblioteca e residenze temporanee a supporto di pazienti e famiglie, al fine di promuovere nuove relazioni con la comunità.

IL PARCO DELLA SALUTE

Nuovo tassello nel paesaggio per la città di Cremona, è un punto di riferimento per la comunità, animato da spazi di socialità e luoghi introspettivi per la cura e il benessere fisico e mentale. Al contempo, rappresenta un ambito di naturalità e di biodiversità urbana. È caratterizzato da tre elementi:

█ bosco climatico, un sistema naturale che abbraccia l’Ospedale, caratterizzato da percorsi verdi che legano una sequenza di attività terapeutiche per i residenti e gli utenti dell’ospedale, alternate a zone di biodiversità animale e vegetale. Qui è possibile

DATI GENERALI

Cliente: ASST di Cremona

Luogo: Cremona, Italia

Anno: 2023

Area di intervento: 180.000 mq

Collaboratori

Progetto Strutture: Buromilan

Progetto Impianti e Prevenzione Incendi: ARTELIA

Progetto del Paesaggio: LAND Italia

Team di progetto

Mario Cucinella Architects

Mario Cucinella

Project Manager: Valentina Grasso

Design Leader: Tommaso Bettini

Design Manager: Mariachiara Mondini

Engineer, Computational Design Expert: Marcello Michelini

Architect, BIM Specialist: Jacopo Ambrosiani

Engineer, Computational Design Expert: Giacomo Righi Grimaldi

Visual Unit Manager: Alessia Monacelli

Senior Visual Artist Specialist: Walter Vecchio

Visual Artist Specialist: Vincenzo Metafora

Visual Artist Specialist: Chiara Giammarco

Visual Artist Specialist: Gian Lorenzo Petrini

Visual Artist Specialist: Lorenzo Mancini

█ Nuovo Ospedale di Cremona vista aerea. Visual by MCA Visual

41 ARCHITETTURA aprile 2024

beneficiare di una terapia psico-fisica del tutto naturale, grazie ad attività quali la meditazione e la contemplazione, il Forest Bathing e Barefooting, spazi di lettura singola e collettiva all’aperto, e una Food Forest comunitaria;

█ anello vitale, un percorso caratterizzato da spazi per le attività ludico-sportive e per l’interazione sociale, in dialogo con gli elementi architettonici pubblici e del complesso ospedaliero;

█ anello rurale, un ampio sistema naturale a prato caratterizzato da uno specchio d’acqua centrale come punto cardine dell’intero Parco. Un luogo per eventi e attività.

L’EDIFICIO OSPEDALIERO

Sarà una “città nella città” dove molteplici funzioni e relazioni trovano spazio in un’unica infrastruttura complessa.

L’edificio, sviluppato su sette livelli fuori terra, è suddiviso in due corpi principali che si connettono a livello 00, in corrispondenza con il principale accesso sanitario: un cuore centrale, caratterizzato dalla piastra tecnologica che accoglie il blocco operatorio diviso in quattro settori (emergenza, cardiovascolare, multifunzionale, chirurgia minore), e una struttura in elevazione caratterizzata dalla presenza di servizi sanitari a media/bassa tecnologia.

Partendo dalla concezione dell’utente quale centro del sistema ospedaliero, la progettazione avviene attraverso principi di empatia, creatività e comprensione delle esigenze della persona in cura, dello staff sanitario e dei visitatori, per garantirne alti livelli di benessere. Questo è possibile anche grazie all’ottimizzazione di parametri che, come evidenziato dai più recenti studi in tema di Evidence-Based Design, hanno una ricaduta sul decorso dei pazienti e sulle performance del personale sanitario, quali l’illuminazione naturale, il rapporto con la natura, i livelli di rumore negli ambienti e la qualità dell’aria.

La considerazione del paziente come centro fondamentale del sistema ospedaliero ha orientato la strategia progettuale: da una parte il paziente troverà in ospedale ambienti differenti a seconda dei percorsi e dell’intensità di cura che dovrà seguire; d’altra parte, si rompe l’isolamento dei vari reparti, non più “celle” distinte ma gruppi di professionalità diverse (medici ed infermieri) che operano sullo stesso paziente. Ne deriva un sistema nel quale l’intero ospedale collabora alla cura del paziente come se fosse un unico reparto, e non come una sommatoria di reparti isolati.

Altro tema centrale è la flessibilità di gestione dell’ospedale che, già dalla sua progettazione, si deve preparare al nuovo, con spazi e modalità adatti: così nel progetto si facilita il riassetto degli ambiti di degenza per rispondere al mutare delle necessità sanitarie (il 20% delle camere di degenza può essere trasformata in area di terapia intensiva con interposizione di un filtro, e l’80% può essere trasformato in camera a due letti, al fine di poter far fronte ad esigenze improvvise di posti-letto).

█ Vista dalla copertura verde
42 ARCHITETTURA aprile 2024
█ Vista dalla Hospital Street

L’architettura del Nuovo Ospedale di Cremona definisce anche un gradiente di accessibilità degli spazi: da ambienti raccolti nei quali privacy e benessere del paziente diventano centrali, a quelli più permeabili e aperti ai cittadini che ospitano servizi commerciali per l’utenza e i visitatori e connettono l’ospedale alla scala urbana. Lo sono, ad esempio, l’Hospital Street, area di accoglienza per il pubblico ma anche spazio di interazione per il personale sanitario, e il Centro di gestione, che al primo piano accoglie gli spazi dedicati al governo delle attività cliniche dislocate sul territorio.

L’area strategica dell’Ospedale è dove sono allocati i servizi assistenziali, che rappresentano il ponte tra l’Ospedale stesso e il territorio che lo circonda:

█ Pronto Soccorso. Al piano 00, rispecchia lo schema dell’“Ospedale nell’ospedale” ed è in grado di funzionare autonomamente dal resto della struttura senza che ci sia interferenza vicendevole, abbattendo i tempi di esecuzione delle prestazioni mediche previste; allo stesso tempo è collegato con percorsi veloci e dedicati ai servizi diagnostici, ai blocchi operatori, alle terapie intensive e alle degenze. È prevista anche una sezione autonoma per la gestione del paziente infetto con collegamento diretto e dedicato con aree di degenza precettabili in caso di emergenza sanitaria.

█ Diagnostica per immagini. Al piano 00, il servizio è contiguo al Pronto Soccorso, al Blocco operatorio e alle degenze intensive ai quali è collegato tramite corridoi dedicati.

█ Area ambulatoriale. Al piano 01, fuori dagli altri percorsi, in connessione con le aree destinate alla prenotazione e all’accettazione.

IMPRONTA ECOLOGICA

Il nuovo intervento è l’occasione per integrare nell’edificio e nello spazio esterno risposte di mitigazione degli effetti del cambiamento climatico: elementi e processi naturali, Nature-Based Solutions, come la presenza di vegetazione, di acqua e la scelta dei materiali di pavimentazione contribuiscono a mitigare l’isola di calore urbana raggiungendo una diminuzione della temperatura media percepita di circa 4° rispetto alla situazione attuale.

In più, oltre alla scelta di materiai e di soluzioni costruttive specifiche, si ricorre a strategie passive – come orientamento ottimale, permeabilità ai venti e illuminazione naturale – con l’obiettivo di minimizzare l’impatto sull’ambiente, riducendo le emissioni.

“Il Nuovo Ospedale di Cremona – spiega Mario Cucinella, fondatore e direttore creativo di MCA - potrà rappresentare un modello per l’architettura sanitaria sotto più aspetti ad iniziare dal bando che, con le sue linee guida, ha rimesso al centro la qualità dell’architettura come fattore centrale per il benessere psico-fisico. Diverse sono le sfide che siamo chiamati ad affrontare: dal progettare spazi che si prenda-

no cura non solo dei degenti ma di tutte le persone che quotidianamente vivono un ospedale – pensiamo a chi ci lavora – alla capacità di prevedere edifici capaci di trasformarsi e adattarsi alle mutevoli condizioni (non solo alle ultime emergenze sanitarie, ma anche alle continue evoluzioni in campo medico che comportano innovazioni anche strutturali).

Dobbiamo tornare a un’idea di ospedale che sia parte della vita della città e non unicamente un luogo di cura: Cremona ha fatto una scelta importante e di qualità, che farà scuola non solo in Italia.”

█ Vista dalla camera di degenza █ Vista dal Parco Fluviale
43 ARCHITETTURA aprile 2024

Team multidisciplinari: il centro di chirurgia robotica dell’ASST

Spedali

Civili di Brescia

Una costante interazione tra unità operative sanitarie e quelle di staff aziendali permette il migliore conseguimento degli obiettivi strategici definiti dalle Direzioni delle Aziende Sanitarie Pubbliche. L’esempio del centro di chirurgia robotica presso l’ASST di Brescia, mette in evidenza i positivi effetti di questa interazione.

di Davide Zanchi, Martina Dalla Bona, Gianluca Fornari, Paolo Lodetti, Massimo Lombardo, Marianna Lorenzoni, Giovanni Lamberti, Federico Lega, Alberto Giana
44 ORGANIZZAZIONE

La tecnica robot-assistita rappresenta oggi una delle più moderne forme di erogazione dell’attività chirurgica. L’ASST Spedali Civili di Brescia ha dato avvio alla pratica della chirurgia robotica nel 2012, in seguito all’acquisizione del primo robot chirurgico Da Vinci: in un primo momento, l’attività è stata limitata all’Unità Operativa di Urologia, che ha privilegiato interventi per il trattamento delle patologie tumorali della prostata e del rene, malformazioni dell’apparato urinario e casi selezionati di ipertrofia benigna della prostata. I risultati ottenuti con la chirurgia robotica siano stati positivi, sia in termini di efficacia che di sicurezza: essa ha permesso di ridurre la durata della degenza, i sanguinamenti, i dolori post-operatori ed il rischio di complicanze. Dal 2013 al 2021 l’attività ha registrato numeri costanti pari a circa 107 interventi medi annuali, effettuati, come detto, prevalentemente dall’Unità Operativa di Urologia. Di seguito si propone un grafico dell’evoluzione dei volumi dell’attività chirurgica robotica proprio nel decennio 2012-2021:

Come si può notare dalla fig. 1, al di là del calo registrato nel periodo covid, il volume annuo degli interventi è sempre stato compreso tra i 100 e i 120.

A partire dall’anno 2022 tuttavia, Regione Lombardia attraverso la DGR 5450/2021 [1], ha richiesto a tutti gli enti erogatori di diritto pubblico dotati di apparecchiature chirurgiche robotizzate un volume minimo annuale di 250 interventi per robot, al fine di garantire un idoneo utilizzo di strumentazioni così performanti e costose.

L’ASST degli Spedali Civili di Brescia, raccogliendo con impegno il mandato di Regione Lombardia, ha deciso quindi di realizzare un Centro Aziendale dedicato alla chirurgia robotica con

duplice finalità: rispettare quanto richiesto dall’ente regionale e creare idonee condizioni per un concreto e rapido radicamento di questa tecnologia presso i propri Dipartimenti Chirurgici.

IL RILANCIO DEL CENTRO DI CHIRURGIA ROBOTICA

La volontà aziendale di costituire un Centro di Chirurgia Robotica ha trovato applicazione dapprima nella scelta di rinnovare e potenziare il parco tecnologico a disposizione: si è infatti deciso in primis di sostituire il robot chirurgico “Da Vinci Si” già presente con il modello “Xi” e, in seguito all’aggiornamento delle caratteristiche della prima macchina ed evidenziatene le potenzialità, l’ASST ha provveduto all’acquisizione di una seconda apparecchiatura similare alla prima. A oggi pertanto l’azienda è dotata di due robot chirurgici “Da Vinci Xi” in grado di essere utilizzati per un’ampia gamma di interventi afferenti a diverse specialità mediche.

Successivamente, la Direzione ha provveduto alla costituzione di un gruppo di lavoro medico con competenza multidisciplinare, identificando un responsabile dello stesso; infine, a supporto dell’attività del personale sanitario, è stato composto un team di figure provenienti da unità operative in staff alle Direzioni (Controllo di Gestione, Gestione Operativa, Direzione Medica, Ingegneria Clinica, DAPSS, Accreditamento) in grado di presidiare tutti gli aspetti di contorno dell’attività chirurgica. Quest’ultima scelta in particolare ha rivestito un significato organizzativo degno di approfondimento e centrale in questa trattazione, in quanto ha mostrato i benefici di una stretta cooperazione tra tutti i settori aziendali.

45 ORGANIZZAZIONE aprile 2024
█ Fig. 1 Grafico a colonne mostrante la crescita del n° interventi eseguiti in chirurgia robotica dall’ASST Spedali Civili negli anni 2012-2021

Da ultimo, si è scelto di assegnare uno specifico item nel sistema di budget annuale a tutti gli attori sopra identificati, al fine di conferire ulteriore stimolo verso il pieno raggiungimento degli obiettivi assegnati.

Nello specifico, il team multidisciplinare ha incentrato il proprio impegno nello sviluppo di sistemi di programmazione e controllo dell’attività sanitaria, a supporto dell’organizzazione e del monitoraggio dell’attività stessa. Il razionale di questo è da ricercarsi in due principali direttrici:

█ la volontà di consentire un naturale sviluppo dell’attività clinica verso le aree operative ritenute più idonee dal personale medico per l’uso di questa tecnologia; █ la possibilità, per lo stesso personale medico, di occuparsi di aspetti prevalentemente sanitari e organizzativi specifici (es. i turni di accesso all’utilizzo delle strumentazioni), garantendo così il monitoraggio continuo dell’attività e dei successivi esiti.

Su tali presupposti il gruppo di lavoro ha posto in essere varie iniziative al fine di costruire una adeguata impalcatura metodologica supporto dell’attività sanitaria; ciascun settore componente il gruppo tecnico ha fornito il proprio contributo dedicandosi all’area di propria afferenza e coordinando la propria attività con quella degli altri componenti del gruppo sulla base del principio dell’”adattamento reciproco” teorizzato da Mintzberg [2], cercando così di alternare delle attività “individuali” e specifiche di ciascun settore a dei periodici momenti di analisi in forma collegiale al fine di abituare il personale sanitario alla presenza di report di interesse comune ed a momenti di di-

scussione degli stessi. In tal senso, appare di particolare interesse segnalare iniziative quali:

█ la modifica di alcuni campi del software gestionale di sala operatoria, volta alla creazione di un parametro (da compilarsi prima dell’avvio dell’atto chirurgico) necessario all’identificazione di quale tra le due apparecchiature chirurgiche a disposizione è stato utilizzato per l’erogazione dell’intervento;

█ l’identificazione di equipe di personale infermieristico di sala operatoria dedicate all’attività robotica;

█ la programmazione di specifiche sedute operatorie dedicate ai due robot, anche attraverso il progressivo incremento delle sedute “verticali” (sedute chirurgiche che proseguono oltre l’orario standard 8-14) necessarie all’esecuzione di un numero maggiore di interventi nella medesima sessione;

█ la redazione di un prospetto mensile di programmazione dell’utilizzo dei due robot chirurgici. Tale prospetto ha l’obiettivo di definire e condividere, per ciascun giorno del mese, l’assegnazione delle Sale Operatorie in cui operano i robot e di calcolare indicatori di utilizzo degli stessi robot, mettendo in evidenza eventuali giornate “scoperte” e consentendo una tempestiva riprogrammazione delle attività in esse previste. Il report deve essere redatto entro due settimane dall’inizio della mensilità cui si riferisce e viene trasmesso tramite email sia in fase di pre-compilazione sia di postcompilazione per la conferma del calendario definitivo;

█ la redazione di un report di monitoraggio post operatorio: avente cadenza mensile, il report monitora numerosi aspet-

46 ORGANIZZAZIONE aprile 2024

█ Fig. 2 Grafico a colonne mostrante la crescita del n° interventi eseguiti in chirurgia robotica dall’ASST Spedali Civili negli anni 2012-2023

ti dell’attività robotica. In particolare, vengono considerate misure come:

█ il rispetto del prospetto di programmazione;

█ la corretta compilazione nel gestionale di sala operatoria di informazioni necessarie alla successiva creazione della SDO;

█ indicatori ministeriali di riferimento [3] (durata media di ciascun intervento, orario di inizio del primo intervento della seduta, tempo di occupazione sala, percentuale del tempo chirurgico sul tempo di occupazione sala, tempo medio di attesa prima

dell’inizio dell’attività chirurgica). Ogni misura è oggetto di rilevazione per ciascuna specialità chirurgica ed è supportata da un commento;

█ l’andamento degli interventi erogati confrontati con l’obiettivo aziendale e riporta in fase conclusiva alcuni commenti/comunicazioni utili al personale medico;

█ l’inserimento dei dati relativi alla chirurgia robotica all’interno del cruscotto della reportistica aziendale. In esso, un primo report evidenzia i dati dei pazienti dimessi che sono stati oggetto di intervento chirurgico in regime di robotica: per ciascuno

█ Fig. 3 Grafico a torta mostrante la ripartizione tra le diverse specialità chirurgiche del n° interventi eseguiti in chirurgia robotica dall’ASST Spedali Civili negli anni 2022-2023, 2023

47 ORGANIZZAZIONE aprile 2024

di essi sono indicate informazioni quali il DRG alla dimissione, la degenza media, il ricavo e, attraverso il confronto con i medesimi DRG erogati senza l’ausilio delle apparecchiature di robotica, è reso possibile il confronto su parametri quali il rimborso e le giornate di degenza. Un ulteriore report propone una serie di indicatori relativi all’attività chirurgica, a completamento di quanto redatto dal report aziendale citato nel punto precedente.

Quanto sopra ha consentito lo sviluppo di una costante interlocuzione tra le strutture sanitarie ed il gruppo di staff a supporto, facilitando il confronto e la condivisione di informazioni di interesse comune.

RISULTATI OTTENUTI E PROSPETTIVE FUTURE DEL CENTRO

Gli strumenti ed i processi sopra descritti hanno permesso al centro di chirurgia robotica di conseguire due principali obiettivi:

█ un sensibile incremento dei volumi di pazienti presi in carico; █ una progressiva saturazione dei tassi di utilizzo quotidiano dei robot.

Il primo esito è sintetizzabile con il grafico riportato in fig. 2. Esso riprende volutamente il grafico mostrato all’inizio della trattazione: appare evidente il forte incremento dei volumi rilevati al termine dell’anno 2023 ed esso mostra come l’ASST abbia di fatto raggiunto un livello produttivo assolutamente in linea con gli standard di utilizzo delle apparecchiature di chirurgia robotica. Attualmente, infatti, vengono erogati circa 800 interventi l’anno, 400 per ciascun robot, un valore estremamente interessante se paragonato alla situazione pre-sviluppo del centro aziendale. Tali volumi consentono, peraltro, di conseguire un risultato in pieno allineamento con l’obiettivo produttivo posto da Regione Lombardia.

Inoltre, il costante lavoro di programmazione ha permesso la saturazione delle giornate di utilizzo del robot: ogni mese, infatti, i robot sono utilizzati per il 95% dei giorni lavorativi di-

█ Tabella 1 Tasso di occorrenza delle principali 5 procedure sul numero di interventi totali per specialità negli anni 2022-2023 nell’ASST Spedali Civili di Brescia, 2023

48 ORGANIZZAZIONE aprile 2024

sponibili, mentre solo in presenza di emergenze che richiedono tecniche chirurgiche più tradizionali uno dei due robot non viene attivato.

Questo intenso livello di utilizzo è stato raggiunto grazie all’importante impegno profuso dal personale sanitario che ha creduto fortemente all’utilizzo della tecnologia robotica, al punto da sviluppare un approccio multisettoriale verso questa tecnologia (fig. 3).

Sono oggi sei le specialità chirurgiche che effettuano interventi ricorrendo al robot (chirurgia generale, chirurgia toracica, urologia, ostetricia e ginecologia, chirurgia pediatrica, cardiochirurgia) ed è in previsione anche l’annessione dell’otorinolaringoiatria nel gruppo di lavoro aziendale. Con riferimento al naturale sviluppo dell’attività clinica, la tabella 1 riporta gli interventi chirurgici più frequenti, a testimonianza delle ampie possibilità d’uso di questa tecnologia.

Consapevoli, come detto, del forte impegno profuso dal personale sanitario e dalla dedizione da esso posta all’apprendimento ed all’utilizzo della nuova tecnologia, si sottolinea come la scelta dell’Azienda di favorire la generazione di forti meccanismi di integrazione tra staff alle Direzioni e le strutture sanitarie sia risultata essere uno dei driver principali per il raggiungimento dei target annuali posti come obiettivo, in quanto ha consentito sia la costruzione di ponti comunicativi costanti, necessari per l’allineamento tra esigenze ed obiettivi, sia lo sviluppo di strumenti di programmazione e monitoraggio condivisi ed efficaci.

Non sono peraltro concluse le opportunità di sviluppo del centro aziendale: l’analisi dei tempi chirurgici e di sala operatoria apre alla possibilità di estendere la durata programmata di alcune sedute operatorie per incrementare il numero di interventi per seduta. Nonostante sia chiara a tutti la difficoltà di ottenere tassi di incremento come quelli rilevati nel biennio 2022-2023 (fig. 2), l’Azienda è consapevole di poter ottenere ulteriori miglioramenti incrementali e provare a perseguire il target di 850/900 interventi anno. Dal punto di vista organizzativo e contabile, inoltre, verranno sviluppati percorsi di collaborazione sia con il fornitore dei robot sia con una società scientifica di livello nazionale per l’implementazione di analisi organizzative relative al layout ottimale in sala operatoria ed al calcolo dei costi medi per intervento chirurgico erogato nelle diverse specialità. Infine, dal punto di vista formativo, sono in corso valutazioni in merito alla possibilità di utilizzo delle tecnologie legate alla realtà immersiva per poter consentire al personale medico di effettuare sedute di formazione all’utilizzo delle strumentazioni chirurgiche da remoto. Appare evidente, in conclusione, come il perseguimento delle possibilità di sviluppo sopra descritte possa essere posi-

tivamente favorito dalla stretta collaborazione tra personale medico e personale degli staff. In questo senso, si conferma driver centrale di sviluppo organizzativo la costruzione di forme di relazione tra settori aziendali in cui ciascuno, secondo le proprie competenze, metta in atto sistemi e strumenti atti a consentire alle strutture sanitarie di poter erogare la propria attività concentrandosi pressochè interamente sugli aspetti clinici ed, eventualmente, tecnologici della stessa. In tal modo, viene perseguita sia la specializzazione delle strutture sia l’integrazione delle stesse, con evidenti benefici per i pazienti.

Bibliografia e ringraziamenti

1. Delibera Regionale N° XI/5450 - 03/11/2021, Delibera n. 5450 (regione.lombardia.it), 2021.

2. Henry Mintzberg, “La progettazione dell’organizzazione aziendale” ed. Il Mulino, 1996

3. Accordo tra lo Stato, le Regioni e le Province autonome di Trento e Bolzano sul documento recante “Linee di indirizzo per la gestione delle liste di attesa per ricoveri programmati nelle strutture sanitarie e corretta tenuta delle agende di prenotazione”, Conferenza Permanente per i rapporti tra lo Stato, le Regioni e le Province Autonome di Trento e Bolzano - Convocazione e o.d.g. seduta del 2 agosto 2023 (statoregioni.it), 2023.

Gli autori

DAVIDE ZANCHI

Direttore SC Controllo di Gestione

MARTINA DALLA BONA

Ingegnere Gestionale presso SC Gestione Operativa

GIANLUCA FORNARI

Direttore Amministrativo ASST degli Spedali Civili di Brescia

PAOLO LODETTI

Direttore SC Gestione Operativa

MASSIMO LOMBARDO

Direttore Generale ASST degli Spedali Civili di Brescia

MARIANNA LORENZONI

Direttore SC Direzione Medica del Presidio Ospedaliero di Brescia

GIOVANNI LAMBERTI

Consulente di Direzione, Presidente NVP ASST Spedali Civili di Brescia

FEDERICO LEGA

Professore Universitario UNIMI, componente NVP ASST

Spedali Civili di Brescia

ALBERTO GIANA

Funzionario Regione Lombardia, componente NVP ASST Spedali Civili di Brescia

49 ORGANIZZAZIONE aprile 2024

Digitalizzazione e AI per la sostenibilità energetica in ospedale

Il progetto coinvolge cinque ospedali Humanitas in diverse città italiane e mira a migliorare l’efficienza energetica e l’impatto ambientale delle strutture ospedaliere attraverso l’adozione di soluzioni tecnologiche avanzate

di Tiziano
Arriga, Gianluca Cimino, Marco Massaron, Alfonso Palazzolo
50 INNOVAZIONE DIGITALE
█ Ospedale Humanitas

La transizione tecnologica e la trasformazione digitale stanno interessando diversi settori economici e imprese di tutte le dimensioni. Anche il settore della Sanità sta rapidamente formando un nuovo paradigma: la tecnologia abilitante dell’industria 4.0 continua a svilupparsi entrando anche in ambienti come quello ospedaliero.

Il settore sanitario richiede energia per funzionare, sia di tipo elettrico (per il funzionamento degli impianti), ma soprattutto di tipo termico (per il condizionamento e riscaldamento degli edifici). Gli ospedali sono strutture complesse che possono essere composte da più di un edificio e sono caratterizzate da elevati consumi energetici.

Il gruppo ospedaliero Humanitas, riconosciuto a livello internazionale per l’eccellenza nella qualità clinica e nella ricerca, ha intrapreso una collaborazione strategica con Evogy, green tech company certificata B Corp, e GETEC

Italia, ESCo specializzata nella fornitura di soluzioni energetiche all'avanguardia, ed Evogy, green tech company certificata B corp, per lo sviluppo di progetto pionieristico di

efficientamento energetico. L’ambizioso progetto coinvolge cinque ospedali situati sul territorio del Nord Italia. Questa iniziativa, mirata a ridurre significativamente il consumo energetico, mantenendo il comfort ambientale all’interno degli edifici, integra soluzioni tecnologiche avanzate per

“Il controllo della qualità dell’aria negli ambienti ospedalieri e sanitari, soprattutto dopo l’emergenza Covid-19, è diventata sempre più importante. Ci serviva una soluzione innovativa che andasse ad integrare e a rendere più efficiente l’esistente sistema di gestione dell’edificio, adattandosi alle nuove esigenze di ottimizzazione dei consumi energetici.”

Gianluca Cimino, Energy Manager del Gruppo Humanitas

51 INNOVAZIONE DIGITALE
█ Hall di ingresso dell’Ospedale Humanitas

█ Foto 2 Il grafico mostra il consumo reale dell’Unità di Trattamento Aria rispetto alla baseline. In rosso i consumi prima dell’installazione di Simon, in blu i consumi dopo l’installazione di Simon

una gestione sostenibile delle strutture sanitarie. Questo progetto è un esempio di trasformazione sostenibile e innovativa nelle pratiche di gestione energetica ospedaliera.

HUMANITAS E LA SFIDA DELL’EFFICIENZA ENERGETICA

Con un consumo energetico di 33 GWhe/anno e 80 GWht/ anno, il gruppo Humanitas ha cercato un approccio innovativo per ridurre il proprio impatto ambientale e i propri costi, mantenendo alta l’attenzione alla qualità clinica e la sicurezza di pazienti e operatori.

La stragrande maggioranza della domanda di calore è assicurata da sistemi di riscaldamento, ventilazione e condizionamento dell’aria (HVAC) – nel caso degli ospedali in questione rappresenta circa il 45% - oltre che da centrali di cogenerazione, che non devono solo garantire il comfort e la qualità dell’aria per persone (pazienti, dipendenti, visitatori), ma devono soprattutto soddisfare le esigenze delle attività di tipo medico svolte in specifici ambienti e/o reparti. Rimane essenziale dunque disporre di un sistema efficiente per il controllo di temperatura, umidità e concentrazione di CO 2

INNOVAZIONE E TECNOLOGIA

Evogy, grazie alla partnership con GETEC Italia, ha introdotto la sua piattaforma Simon , un Building Energy Management System in cloud basato su tecnologia IoT (Internet of Things) e AI. La soluzione opera grazie ad un modello digitale ( digital twin ) dell’edificio. Con Simon è possibile ottimizzare i consumi energetici degli edifici tramite una conduzione intelligente degli impianti fatti da algoritmi di intelligenza artificiale che sfruttano i dati relativi a dati di consumo energetico o di generazione, dati ambientali, dati relativi al mercato dell’energia e dati meteorologici.

All’interno degli ospedali era già presente un BMS (Building Management System), dunque gli edifici disponevano già di un sistema di efficientamento energetico basato su logiche statiche, questo ha permesso di ridurre al minimo le attività di interfacciamento agli impianti presenti in campo e di raccolta dati. Tramite l’installazione di sensori addizionali per il monitoraggio delle condizioni ambientali e dei consumi di energia elettrica non presenti in campo è stato possibile monitorare in maniera più capillare la qualità dell’aria e le condizioni termoigrometriche nelle aree comuni degli ospedali dove si concentrano la maggior parte delle persone. Inoltre, è stato possibile analizzare il profilo di consumo energetico degli ospedali.

52 INNOVAZIONE DIGITALE aprile 2024
Meter locale tecnico I Energia attiva 8 kWh 6 kWh 4 kWh 2 kWh 16 10 2021 18 10 2021 20 10 2021 22 10 2021 24 10 2021 26 10 2021 28 10 2021 30 10 2021 31 11 2021 03 11 2021 05 11 2021 07 11 2021 09 11 2021 11 11 2021 13 11 2021 Meter locale tecnico I Baseline Comparison I Meter locale tecnico I Energia attiva Comparison I Meter locale tecnico I Baseline Scala asse Y

Grazie alla raccolta dei dati in tempo reale dai misuratori energetici, dai sistemi di condizionamento e dai sensori che monitorano il comfort ambientale si è proceduti all’implementazione gli algoritmi di intelligenza artificiale per il controllo dinamico dei setpoint di mandata delle UTA (Unità di trattamento aria), della ventilazione, di temperatura di mandata della pompa di calore e di temperatura e ventilazione per i fancoil degli ospedali.

GETEC Italia ha svolto un ruolo fondamentale, fornendo supporto tecnico e operativo per garantire un’integrazione efficace della soluzione Simon nel sistema esistente, migliorando il comfort e riducendo i consumi.

Attraverso l’utilizzo di questi servizi digitali sarà possibile migliorare i tempi di risposta a eventuali malfunzionamenti, affinare ed automatizzare la conduzione degli impianti e ridurre i costi di manutenzione.

“Grazie alla digitalizzazione spinta e ai sistemi di monitoraggio in continuo, riduciamo in modo considerevole i tempi di risposta a eventuali malfunzionamenti, oltre ad efficientare e automatizzare la conduzione degli impianti riducendo così costi di manutenzione e ottimizzando i consumi.”

Paolo Gianola, CSO Public Administration and Private Healthcare Division & COO GETEC Piattaforma Italia

tico totale sui cinque ospedali è stato di 450 MWh e di 1.2 Ml Smc. Questi risultati dimostrano l’efficacia delle tecnologie IoT e AI nell’abbattimento della CO 2 e evidenziano il reale contributo che si può fornire nei piani di decarbonizzazione.

“Grazie al progetto, Humanitas ha evitato di immettere in atmosfera 1000 ton di CO2. Da più di 15 anni Humanitas si avvale di un contratto di manutenzione che prevede al suo interno l’esecuzione di tutte le operazioni necessarie tenendo conto di risparmiare energia; il contratto attuale Evogy, GETEC Italia automatizza molti di questi processi”

Marco Massaron Direttore Area Tecnica Humanitas

CONCLUSIONI

“Il progetto Humanitas è molto ambizioso e sfidante. Questa collaborazione testimonia la bontà della proposta pensata per rispondere pienamente e in modo efficiente alle esigenze di sostenibilità ambientale e di innovazione di un gruppo così importante, attivo in un ambito particolare sensibile come la salute.”

Tiziano Arriga, CEO Evogy

RISULTATI E IMPIANTO

Il progetto ha consentito di risparmiare 1000 t di CO2, con un miglioramento del comfort del 50%. Il risparmio energe-

Il successo di questo progetto, grazie al supporto di GETEC Italia ed Evogy, mette in luce l’importanza di un approccio integrato e innovativo, che punti verso un approccio più moderno e sostenibile ai servizi di energy management. Questo progetto è un esempio eccellente di come l’innovazione digitale possa migliorare significativamente il settore sanitario. Grazie all’integrazione delle tecnologie avanzate nelle strutture sanitarie, è possibile ottenere numerosi vantaggi che contribuiscono alla decarbonizzazione degli edifici. Questo approccio ha consentito il raggiungimento di risultati positivi non solo in termini di risparmio energetico, ma anche in termini di riduzione delle emissioni di gas serra e di miglioramento della qualità dei servizi offerti.

Gli autori

TIZIANO ARRIGA

CEO Evogy

GIANLUCA CIMINO

Energy Manager Gruppo Humanitas

MARCO MASSARON

Direttore Area Tecnica Humanitas

ALFONSO PALAZZOLO

Head of Sales Private Healthcare GETEC Italia

53 INNOVAZIONE DIGITALE aprile 2024

Digitalizzazione della

sanità e impatto clinico dell’intelligenza artificiale: opportunità e ostacoli da superare

Questo il titolo di un approfondito incontro all’interno del convegno digitale “InnovazionePiù 2023” organizzato da Edra

di Arturo Zenorini
54 CONVEGNI aprile 2024

UTILITÀ E LIMITI DI CHATGPT IN AMBITO SANITARIO

Sull’intelligenza artificiale vi sono molti miti da sfatare: chi ne tesse lodi eccessive, chi la rifugge per i potenziali rischi connessi. In effetti, i modelli linguistici come ChatGPT sono in grado di superare test universitari e per l’abilitazione dei medici. Quale rischio possono porre allora tali modelli ai pazienti in cerca di diagnosi gratuite e fai da te? E quale ruolo possono invece giocare nelle mani di un medico competente o di una struttura sanitaria? A queste domande, poste da Domenico Mancini , General Manager Journal Edra, hanno risposto nella prima tavola rotonda Iacopo Cricelli , CEO di Genomedics, e Stefania Alvino , Head of Digital Innovation, Daiichi Sankyo Italia.

«Il tema è di grande interesse e attualità, come dimostra un boom esponenziale di ricerca su PubMed sui termini IA, machine learning e deep learning» sottolinea Iacopo Cricelli

«Negli ultimi due anni, nell’ambito del deep learning basato su reti neurali si è sviluppata l’IA generativa che attraverso sistemi complessi permette di interpretare il testo su una base di statistica e ricorsività». L’aspetto tecnologico più importante dell’IA generativa come chatGPT, spiega Cricelli, consiste nella capacità di trovare delle similarità semantiche e delle relazioni fra le parole per classificare i testi stessi, che tramite applicazioni avanzate portano alla creazione di sistemi interattivi di domanda/risposta, ovvero veri e propri sistemi di dialogo (chatbot) in cui c’è una controparte artificiale che risponde alle nostre domande. «Questa è una grande rivoluzione» sottolinea l’esperto «perché le risposte offerte sono molto spesso contestuali, intelligenti, utili ed efficaci e applicate alla sanità tali risposte possono diventare sistemi di generazione di ‘medical report’ molto utili per la classe medica. Questi sistemi, una volta certificati e capaci di interpretate alcune logiche di tipo medico-clinico, potranno sostituire alcuni compiti della medicina in modo tale da sollevare la classe medica da una serie di interazioni basilari semplici (come la classificazione del rischio) che oggi invece occupano moltissimo tempo, demandando al medico solamente le attività di cui effettivamente c’è bisogno per una pratica più efficace e basata su logiche più complesse». L’ultima frontiera dell’IA generativa – termina Cricelli - è il “language model” che analizza tantissimi dati testuali e, all’interno di tutte le frasi, scompone le singole parole (‘tokenizzazione’) poi correlate e confrontate frase per frase per capire quali parole sono quelle effettivamente più appropriate rispetto al contesto in cui si trovano e costruisce un database che in modo statistico porta a una mappa di coerenza delle parole rispetto alle parole vicine. Le macchine non hanno, secondo questa logica,

una capacità di ragionamento di tipo senziente ma attraverso queste tecnologie, utilizzando la statistica avanzatissima dell’IA riescono a trovare un sistema per cui costruire delle risposte che sono più appropriate. Stefania Alvino sottolinea come anche un’azienda come Daiichi Sankyo Italia stia valutando valore, vantaggi, utilità e limiti di chatGPT nell’ambito farmaceutico e si stia interrogando se effettivamente l’IA possa essere un valore portare avanti iniziative di questo tipo, soprattutto in ottica formativa e informativa. Rispetto a chatGPT, specifica, «parliamo di un sofisticato modello di machine learning, quindi con una grandissima capacità di apprendimento automatico che ha ovviamente dei vantaggi e delle utilità e sicuramente è utilissimo per imparare dalle conversazioni, permettendo di avere risposte sempre più personalizzate. È utilissimo nel mondo delle ricerche di mercato e nell’ambito più creativo di scrittura di articoli o di ideazione di contenuti; per cui promette di svolgere molte attività routinarie con risultati di qualità e soprattutto in tempi nettamente inferiori. Questo è molto interessante nell’ambito medico per capire anche come riusci -

55 CONVEGNI aprile 2024
█ Iacopo Cricelli, CEO di Genomedics █ Stefania Alvino, Head of Digital Innovation, Daiichi Sankyo Italia

re a snellire i tempi burocratici delle varie attività». È ovvio, aggiunge Alvino, che se ci sono vantaggi come per tutte le tecnologie ci sono poi dei limiti: un contenuto totalmente aggiornato potrebbe essere mancante o comunque è difficile e soprattutto è difficile gestire domande con risposte aperte. «Inoltre, modelli come chatGPT vengono addestrati su dati in inglese e questo potrebbe creare un’incomprensione per alcuni aspetti su altre lingue. Il rischio sta nell’uso che poi se ne fa, cioè le persone possono fare eccessivo affidamento a modelli di conversazione e arrivare a una perdita del pensiero critico e alla capacità decisionale. Insomma, chatGPT non andrà a sostituire una visita medica o una visita in una struttura, quindi il contatto medico-paziente caratterizzato dall’empatia tra curante e assistito».

CRITICITÀ DEL PROCESSO NAZIONALE DI INNOVAZIONE

Qual è la strategia nazionale del percorso di digitalizzazione della sanità italiana, coniugando la programmazione futura con le eccellenze già esistenti sul territorio? Questo il quesito posto da Ludovico Baldessin , CEO di Edra, ai relatori della seconda sessione.

«Quando si parla di innovazione in sanità spesso ci si riferisce erroneamente a quanto viene introdotto nel sistema sanitario grazie alla ricerca e sviluppo da parte del mercato» mentre è importante la digitalizzazione dei sistemi organizzativi, sottolinea Gianluca Polifrone , Direttore Ufficio di Presidenza & Segretario Consiglio di Amministrazione presso AIFA Agenzia Italiana del Farmaco. «La transizione dalla medicina del ventesimo secolo al ventunesimo secolo è in grado di procurare dati. Il medico chirurgo che entra in sala operatoria non è più da solo con la sua équipe ma entra in zona opera -

toria utilizzando un patrimonio di dati allineati con vari protocolli scientifici. Inoltre, l’innovazione dovrebbe migliorare i sistemi ancorati ancora oggi a processi analogici». L’attività di coordinamento avrebbe dovuto introdurre la tecnologia cercando di evitare che il mercato portasse troppo eterogeneità delle soluzioni, come è invece avvenuto, aggiunge Polifrone. Per superare i problemi della burocrazia del SSN la politica e i manager dovrebbero focalizzarsi sui processi interni ospedalieri e la loro ingegnerizzazione, prosegue. «Abbiamo avuto bisogno della pandemia per capire che il medico di medicina generale, così come l’aveva inteso il legislatore nel ’78, non bastava più» aggiunge Polifrone. «Oggi dobbiamo parlare di medicina territoriale come servizio, quindi mi piacerebbe vedere il medico di medicina generale affiancato da competenze infermieristiche e amministrative, corredato dal parco tecnologico di cui disponiamo, per tornare a visitare i pazienti ed evitare che questi affollino i pronto soccorso che sono stati quelli che hanno fatto il territorio in questi decenni. È un’operazione molto complessa per la quale ci vuole sicuramente il contributo di tutti gli attori».

L’importanza delle Regioni, in questo contesto, è stata espressa da Giovanni Gorgoni , CEO presso AReSS (Agenzia Regionale per la Salute Sociale) Puglia, il quale vede una realtà dell’evoluzione digitale della sanità in chiaroscuro. Sebbene siano stati fatti importanti investimenti per l’infrastruttura nazionale, «serve visione» sottolinea «e occorre presidiare l’atterraggio a medio-lungo termine di questo investimento» e tener conto in anticipo di cose che si possono già immaginare. «La trasformazione digitale è un investimento, oltre che tecnologico, soprattutto culturale e organizzativo, di lungo termine» aggiunge Gorgoni. È indispensabile un “change management” che significa avere «professionisti in reparto che aiutano infermieri, medici, operatori sanitari e pa-

56 CONVEGNI aprile 2024
█ Gianluca Polifrone, Direttore Ufficio di Presidenza & Segretario Consiglio di Amministrazione presso AIFA Agenzia Italiana del Farmaco █ Giovanni Gorgoni, CEO presso AReSS (Agenzia Regionale per la Salute Sociale) Puglia

zienti a capire come trasformare il processo tradizionale di cura in un processo migliorato completamente nuovo, digitalmente abilitato».

Le specifiche criticità riguardanti la telemedicina sono esaminate da Sergio Pillon , referente per il Governo Clinico della Trasformazione Digitale presso ASL Frosinone e vicepresidente dell’AISDeT (Associazione Italiana di Sanità Digitale e Telemedicina). Non è possibile rilasciare un certificato telematico di malattia né da parte del medico curante né della centrale di telemedicina per la continuità assistenziale, sottolinea Pillon. Inoltre, le linee guida per i servizi di telemedicina - che hanno un peso importantissimo anche rispetto alla responsabilità professionale – riportano che la telemedicina e il teleconsulto sono prescritti a giudizio del medico. Il quale, però, deve valutare le competenze digitali del paziente. Per valutare le competenze e la disponibilità di tecnologie (banda, connettività) del paziente può essere necessario un sopralluogo effettuato da un centro servizi che rilascia un attestato. Ciò porta, con le attuali leggi e le grandi carenze regolatorie, a situazioni rischiose sotto il profilo penale nell’attività professionale. In generale, evidenzia Pillon, «non basta comprare piattaforme di telemedicina. Prima si devono fare dei modelli reali organizzativi e poi applicare le piattaforme».

Terapie digitali, algoritmi e privacy

Nella terza sessione (dedicata a “Ricerca e cura tra PNRR, digitalizzazione e privacy”), Marcella Marletta , Esperta Sanità Pubblica, già direttore generale del ministero della Salute e Membro del Consiglio Superiore di Sanità, Direttore Generale responsabile di 250 progetti di ricerca scientifica di sanità pubblica, sottolinea che «il ruolo della ricerca è fondamentale per guidare l’innovazione. In sanità il miglioramento delle

cure e lo sviluppo delle tecnologie innovative dipende sempre della ricerca, però qualche problema si è avuto negli ultimi anni in cui abbiamo assistito a una crisi tale per cui gli investimenti pubblici non sono più stati la prima scelta dei governi. Quindi la crisi finanziaria ha portato a un fenomeno distorsivo nel quale gli investimenti in ricerca erano inferiori sia rispetto all’Europa che addirittura anche al livello extra-europeo». Ci auguriamo veramente che possano essere finanziati programmi di ricerca per potenziare le tecnologie abilitanti nell’ambito sanitario per migliorare la diagnosi, il monitoraggio e il trattamento delle patologie più importanti in un ecosistema sanitario che veda ancora una volta al centro l’eccellenza della nostra ricerca, aggiunge Marletta. «L’innovazione si può far spazio ancora grazie agli investimenti industriali» osserva. «Le imprese negli ultimi 15 anni hanno dimostrato un grosso impegno, investendo ancora soprattutto con l’autofinanziamento. Però la volontà di cambiamento della Sanità passa comunque per la digitalizzazione. L’obiettivo è quello di sostenere le cure dei pazienti, offrire un’assistenza sempre più connessa e integrata, con pazienti sempre più esigenti sia all’interno degli ospedali che al domicilio. In tutto questo viene facile introdurre anche il principio della intelligenza artificiale». Attenzione, però: le App a livello di rischio elevato dovranno sottostare a normative stringenti sulla sicurezza e sulla qualità. «Se il cambiamento governa noi, non troveremo più valore e neanche una riservatezza del dato e quindi andremo a infrangere tutta la privacy, compresa la nostra» conclude Marletta. Giuseppe Recchia, medico con grande e lunga esperienza di ricerca e sviluppo del farmaco e, dal 2019, Co-Founder & CEO di daVi DigitalMedicine e DigitalRehab srl, settore delle imprese che fanno innovazione sviluppando App e sarebbero chiamate a investire in Italia, chiarisce che «le terapie digitali

57 CONVEGNI aprile 2024
█ Digitale presso ASL Frosinone e vicepresidente dell’AISDeT (Associazione Italiana di Sanità Digitale e Telemedicina) █ Marcella Marletta, Esperta Sanità Pubblica, già direttore generale del ministero della Salute e Membro del Consiglio Superiore di Sanità

sono tecnologie sanitarie disegnate per trattare dei comportamenti disfunzionali. Sono interventi sanitari sviluppati attraverso sperimentazione clinica randomizzata e controllata come avviene con il farmaco. La grande differenza rispetto al farmaco è che la tecnologia che supporta è diversa. Il principio attivo non è una molecola, come in un antidepressivo chimico, ma è un algoritmo».

Recchia prosegue elencando le maggiori criticità che possono portare a confusione nei quattro articoli di un disegno di legge depositato alla Camera . «1) La definizione di terapia digitale, aspetto fondamentale. Se non si definisce bene l’oggetto vi è il rischio di grande confusione e la grande confusione è il primo elemento che scoraggia l’investitore. 2) Il comitato di valutazione delle terapie digitali. 3) L’Osservatorio permanente sulle terapie digitali. 4) L’inserimento nei Lea di terapie digitali che rispondono a certi criteri e sono rimborsati dal servizio sanitario». Questa legge può essere migliorata, afferma Recchia. Per esempio, una delle cose importanti da inserire è che le terapie digitali sono di prescrizione medica, fatto qui non precisato, su cui è meglio essere molto chiari. «Abbiamo bisogno di cambiare rotta perché la rivoluzione del PNRR, che comporta certamente un cambiamento epocale in termini di disponibilità nel poter sviluppare investimenti, deve essere accompagnata da responsabilità e regole chiare che possono essere esigibili» aggiunge Paolo Petralia , Vicepresidente vicario FIASO (Federazione Italiana Aziende Sanitarie e Ospedaliere) e Direttore generale presso ASL 4 S.S.R. Ligure. «Dobbiamo investire, oltre che in tecnologia e in infrastrutture, in risorse umane. Pagarle meglio, fidelizzarle di più e utilizzare regole più semplici e flessibili, come abbiamo fatto durante la pandemia, per poterle trattenere all’interno del servizio sanitario» prosegue Petralia. «Tutto questo è fare la

rivoluzione legata al post-pandemia. Una rivoluzione che denota un atteggiamento di uscita dalla comfort zone. In questo senso siamo chiamati tutti, nessuno escluso, a partecipare a questa sfida. Sono chiamati i cittadini, perché anch’essi non sono soltanto utenti del servizio sanitario, ma sono protagonisti attivi. Sono chiamati a farlo le comunità locali, dalle pubbliche amministrazioni a tutti i corpi intermedi. E naturalmente le aziende sanitarie: oggi sono 200 le aziende in Italia chiamate a trasformare i soldi della fiscalità dei nostri concittadini in risposta di salute». Occorre, conclude Petralia, anche un contributo che le aziende mettano in campo sia in senso propositivo e attivo per essere leve della trasformazione, ma anche come luogo di convergenza, come terreno neutro dove poterci ritrovare tutti, operatori, cittadini, decisori, industria, mercato, per costruire una salute che sia, oltre che di qualità, anche sostenibile, come deve essere per garantire un futuro al nostro servizio sanitario nazionale.

Pro e contro nel settore dell’informatica giuridica

Nella quarta e ultima sessione, moderata da Roberto Pardolesi , Professore del Dipartimento di Scienze Politiche all’Università LUISS Guido Carli, si osserva come i nuovi modelli di intelligenza artificiale resi disponibili al pubblico lascino intravedere profondi cambiamenti anche di tipo economico e giuridico. In particolare, Gianfranco D’Aietti , Docente di informatica giuridica (SSPL Bocconi-Pavia), già magistrato, si è concentrato sull’individuazione di modelli di responsabilità coerenti con l’incremento delle capacità attribuite alle nuove intelligenze artificiali: si prospetta, in particolare, una soluzione evolutiva che, nel tenere conto di un’ipotetica progressiva maturità e autonomia di tali agenti, li riconosca, a partire da

58 CONVEGNI aprile 2024
Paolo Petralia, Vicepresidente vicario FIASO (Federazione Italiana Aziende Sanitarie e Ospedaliere) e Direttore generale presso ASL 4 S.S.R. Ligure sviluppo del farmaco e, dal 2019, Co-Founder & CEO di daVi DigitalMedicine e DigitalRehab srl

una determinata soglia e sulla base di un accorto processo educativo, quali autonomi centri di imputazione di responsabilità, con particolare riguardo alla dimensione processuale. L’espressione “la certezza del diritto” si sta modificando in “intelligenza artificiale forte”. «Tutto il mondo dell’Information Technology aspettava qualcosa di simile alla fine degli anni 2000, tra 7-10 anni. In realtà c’è stata un’anticipazione straordinaria che sta sconvolgendo il mondo, e soprattutto il diritto, perché sembra che questi sistemi abbiano delle capacità di dare delle risposte» afferma D’Aletti. Alcune macchine giuridiche intelligenti, già esistenti in Italia, permettono di avere non solo dei precedenti giurisprudenziali, ma coordinati tra di loro. «Quindi questi sistemi forniscono non solo una quantità di documenti, ma dei documenti che hanno un minimo di strutturazione ragionata. E si stanno mettendo a punto col ministero della Giustizia dei sistemi di gestioni di procedimenti giudiziari che utilizzano categorie giuridiche».

Poi ci sono dei sistemi che indirizzano verso delle soluzioni. «Questi diventano più pericolosi dal punto di vista del giurista» osserva D’Aietti. «Perché suggeriscono soluzioni dando dei punteggi di credibilità mentre la Cassazione, quando fornisce una soluzione, si basa su un’autorevolissima tecnica di gestione della produzione giuridica». Forse in futuro, prosegue, sarà possibile effettuare un’analisi produttiva sui dati giudiziari in settori specifici che si limitano alla discrezionalità, disporre di sistemi interattivi di navigazione delle regole di diritto e addirittura costruire algoritmi. «Questa è però una fase che si sta immaginando, ma che non funziona ancora» conclude.

Giovanni Ziccardi , Professore del Dipartimento di Scienze Giuridiche all’Università degli Studi di Milano, ha infine esposto una riflessione sui pericoli di discriminazione connessi al ricorso all’intelligenza artificiale. «Da noi Il regolamento chiede all’autorità di controllo che ci sarà sull’intelligenza artificiale che l’azienda che produce il sistema presenti una documentazione aggiornata sul funzionamento, sulla logica utilizzata e sui meccanismi alla base di quel sistema» spiega. «Inoltre, occorre fornire alcuni dati che sono stati utilizzati nel training. Infine, il regolamento prevede una cosa molto strana ma abbastanza tipica nell’ordinamento europeo, ovvero la presenza di un essere umano che possa intervenire nel caso la macchina fornisca dei risultati discriminatori. Questo è molto interessante» commenta Ziccardi. «La classica diffidenza del legislatore europeo e il timore dello scienziato pazzo e della macchina che possa impazzire e danneggiare l’essere umano». Infine, Ziccardi affronta il problema della cybersecurity: «questi strumenti, per evitare danni e output discriminatori, dovranno essere molto forti dal punto di vista della sicurezza informatica alla base».

59 CONVEGNI aprile 2024
█ Roberto Pardolesi, Professore del Dipartimento di Scienze Politiche all’Università LUISS Guido Carli █ Gianfranco D’Aietti, Docente di informatica giuridica (SSPL Bocconi-Pavia) █ Giovanni Ziccardi, Professore del Dipartimento di Scienze Giuridiche all’Università degli Studi di Milano

Specialisti in IA e telemedicina: un corso interamente e-learning

All’Università di Parma, organizzato un Master innovativo annuale sulle applicazioni cliniche della Telemedicina e dell’Intelligenza Artificiale.

Per approfondire il tema abbiamo intervistato

il prof. Gaddi (Presidente SIT) e la prof.ssa Esposito (direttore del corso) sulla docenza multidisciplinare e sull’attenzione ai pro e contro

di Arturo Zenorini
60 INNOVAZIONE DIGITALE

Dai bio-robot all’Internet of things, dalla system medicine alla teleneurofisiologia clinica, dall’impatto sociologico dell’intelligenza artificiale al rapporto tra reti neurali e big data. Sono solo alcuni degli argomenti che sono trattati al Master ARTE - Intelligenza ARtificiale e TElemedicina – dell’Università di Parma, un corso di studi annuale proposto in modalità interamente e-learning ai professionisti d’ambito sanitario che intendano diventare specialisti di IA – Intelligenza artificiale e telemedicina, utilizzando le ultime tecnologie in modo lungimirante. Complessivamente il Programma didattico del Master ARTE consente alle diverse professionalità di condividere contenuti scientifici comuni e di acquisire il linguaggio specialistico essenziale per rendere possibili la coproduzione e l’interoperabilità tipiche dell’intelligenza artificiale e delle nuove tecnologie. La prima parte del programma didattico affronta in particolare i principali aspetti della telemedicina, partendo dalla sua corretta definizione, fino alle tipologie di servizi offerti e al fascicolo sanitario elettronico, dalle piattaforme dei servizi fino alle procedure per effettuare una televisita, al telemonitoraggio e al teleconsulto. La seconda parte del programma riguarda le applicazioni delle IA in campo sanitario, come per esempio la realtà aumentata, da un punto di vista tecnico, etico e giuridico.

Abbiamo chiesto maggiori dettagli sulle caratteristiche distintive del Master ARTE - e in che cosa soprattutto è innovativo rispetto ad analoghe iniziative - al direttore del Master, prof.ssa Susanna Esposito, professore ordinario di Pediatria all’Università di Parma e componente del consiglio direttivo della SIT, e al prof. Antonio Gaddi, medico, Presidente della Società Italiana di Telemedicina (SIT) e docente del Master.

█ Prof.ssa Esposito, qual è la definizione corretta di telemedicina? E da quali premesse è nato questo Master? Questo master nasce proprio dall’incontro che il prof. Gaddi, già da tempo Presidente della Società Italiana di Telemedicina, e io abbiamo avuto durante il periodo Covid, in cui sicuramente l’erogazione di servizi di assistenza sanitaria tramite ricorso a tecnologie innovative era diventata una necessità. Pertanto, abbiamo realizzato diverse attività di tipo formativo, oltre a sviluppare delle linee guida che potessero supportare nell’assistenza i clinici. La telemedicina consiste nella trasmissione sicura di informazioni e dati di carattere medico che possono essere testi/suoni/immagini per prevenzione/diagnosi/trattamento/follow-up dei pazienti, quindi è una sorta di servizio sanitario diagnostico-terapeutico che non sostituisce la prestazione sanitaria tradizionale nel rapporto personale medico-paziente ma la integra, migliorandone l’efficacia, l’efficienza e l’appropriatezza. Proprio per questo abbiamo pensato che fosse importante dal punto di vista della formazione creare un master che fosse utile a operatori anche di settori estremamente diversi (ambito accademico, della sanità, o anche assicurativo).

Ciò ha portato appunto a sviluppare un prodotto che considerasse a 360° la salute digitale partendo dall’intelligenza artificiale e anche includendo un ampio spazio dedicato alla telemedicina, utile sia a illustrare i servizi offerti sia il ruolo dei team multidisciplinari e gli standard esistenti dal punto di vista legislativo a livello europeo e nazionale per l’erogazione delle prestazioni sanitarie a distanza. Tutto questo con la presentazione di una serie di attività che consistono nei controlli di salute in età pediatrica, in alcune visite ambulatoriali specialistiche anche su pazienti cronici, nella gestione del perioperatorio, nella gestione del paziente pediatrico o dell’anziano con o senza patologie, cioè sia in fase di urgenza che nella fase di capacità. È sottolineato il grande ruolo che la telemedicina ha nella diagnostica e quello che è stato l’impatto a seguito del Covid e, naturalmente, abbiamo considerato le problematiche emergenti e le sfide future anche dal punto di vista sia delle responsabilità sanitaria che nel trattamento dei dati. Oltre questo, dal punto di vista scientifico stiamo portando avanti una serie di iniziative nell’ambito della SIT [del cui direttivo nazionale fa parte la prof.ssa Esposito] che hanno proprio la finalità di stendere le linee guida grazie a professionisti che possano indicare quando la telemedicina è utile e come è possibile impiegarla. Occorre infatti considerare che oggi c’è un ampio numero di applicazioni che non si limita certo all’organizzazione di una teleconferenza ma consiste nel poter seguire il paziente a casa grazie all’uso di device che il paziente - soprattutto cronico - utilizza con facilità, riducendo perciò l’impegno assistenziale del paziente stesso che può ‘saltare’ delle visite al centro. Inoltre, possono essere effettuate determinate attività di consulenza (come un supporto psicologico, nutrizionale o relativo all’attività fisica) che possono essere effettuate a domicilio. Quindi questo ci ha portato a realizzare un master che è partito il primo anno con poco più di 10 iscritti e che quest’anno, con iscrizioni non ancora chiuse, vede già oltre 70 iscritti, il che indica molto bene quale sia l’interesse per questa attività. Inizialmente non si capiva chi fosse la figura professionale che doveva essere esperta di telemedicina, invece, adesso sempre più diversi ambiti stanno richiedendo un professionista che abbia competenze specifiche che, in questo caso, vengono rilasciate attraverso un diploma di master universitario.

█ Prof. Gaddi, quali aspetti ritiene fondamentali di questo master?

Vorrei esprimere una nota di ringraziamento da parte della Società Italiana di Telemedicina all’Università di Parma e alla prof.ssa Esposito (da poco entrata nel direttivo della Società in cui lavora in doppia veste, come professoressa universitaria e come direttore). Già due anni fa, grazie all’entusiasmo e all’intelligenza scientifica della prof.ssa Esposito e grazie anche all’apertura dell’Università di Parma, abbiamo avviato un percorso formativo che è altissima-

61 INNOVAZIONE DIGITALE aprile 2024

mente innovativo e che va a toccare in modo preciso due aspetti: quali sono le cose utili per il paziente dal punto di vista clinico e come possono essere apprese e poi applicate al paziente, da un lato, e dall’altro cos’è sub judice. Questo master, che è auspicabile si estenda ad altre realtà universitarie, ha delle caratteristiche davvero particolari: intanto giustamente affianca i due filoni principali (intelligenza artificiale e telemedicina) che alcuni considerano separati ma che invece si embricheranno uno nell’altro nei prossimi anni in modo assoluto. Poi perché si basa, anche come struttura didattica formativa, sul principio della coproduzione; cioè noi cerchiamo di preparare figure diverse che hanno personalità sanitarie differenti - per la loro storia, per la loro laurea - facendoli cimentare assieme su materie molto diverse una dall’altra (senza ricorrere a molte ore di insegnamento dedicate a discipline tecnologiche senza applicazioni alla medicina). Noi invece cerchiamo di creare la vera possibilità per queste persone di avere la mentalità interdisciplinare, di vedere diversi aspetti, e auspichiamo che questo si rifletta poi in una vera coproduzione, così che il biotecnologo, il biologo, il medico, l’infermiere, lo specialista con vocazione verso le scienze sociali e quello che ha più vocazione verso le tecnologie anche avanzate riescano a lavorare assieme. Questo perché, se vogliamo la telemedicina del futuro, non possiamo lavorare a compartimenti stagni.

█ Prof. Gaddi, può esporre qualche esempio di applicazioni pratiche della telemedicina affrontate nel master?

Ci sono alcuni aspetti della telemedicina che sono relativi ad alcune branche specialistiche – come per esempio la telecardiologia o la telepediatria (o ancora la telereumatologia o la teledermatologia) di cui esistono linee guida internazionali – e riguardo alle quali si

possono dare alle persone che stiamo formando-in sede di corso o di ‘project work’ (elaborati finali) - anche degli elementi conoscitivi pratici (sempre in ottica interdisciplinare, con una visione olistica grazie alla presenza di docenti con differenti propensioni) che siano trasferibili sul paziente oltre che sicuri, in quanto garantiti dai docenti del master, dall’esperienza e dalla letteratura in più settori, sia disciplinari sia organizzativi: per esempio come si può organizzare una rete di telemedicina, come stare attenti che la telemedicina rispetti perfettamente la legge europea e italiana in maniera tale che le persone preparate dal corso, oltre a essere formate dal ‘fuoco incrociato’ di discipline diverse e cimentandosi con altri operatori sanitari, siano dotate di un pacchetto di conoscenze che possano essere immediatamente utili nel loro ambiente di lavoro (Asl, imprese private, farmacie, etc.) nel contatto con il paziente. Questo pacchetto, però, non copre tutta la telemedicina, ma solo una parte ‘accountable’ che funziona davvero, si può applicare al paziente e serve a far crescere il progesso.

Va però tenuto presente che la telemedicina nel suo complesso è più che “babelizzata” in questo momento e che esiste un’ampia serie di proposte tecnologiche (strumentali, sperimentali, etc.) che sono addirittura pericolose, cioè non solo sub judice ma potenzialmente dannose sia per l’organizzazione sanitaria sia per l’applicazione sui pazienti. L’esempio più classico può essere proprio l’uso attuale un po’ disinvolto delle intelligenze artificiali delle quali chi se ne occupa in modo più professionale a volte può avere conoscenze limitate, per esempio su concetti-chiave come il machine learning. Ciò fa capire come c’è la necessità da un lato di dare le basi conoscitive per questi giovani, dall’altro di mettere in evidenza anche quali sono le criticità potenziali per il futuro, considerando anche come, ai vari livelli istituzionali che devono investire i fondi

62 INNOVAZIONE DIGITALE aprile 2024

del PNRR in questo settore, il livello di conoscenza della materia e dei problemi potenziali legati a questi argomenti a volte è inadeguato. Per questo motivo abbiamo bisogno di formare i discenti e in questo momento la SIT sta cercando di formare anche le figure apicali delle agenzie governative.

█ Prof. Gaddi, può spiegare più in dettaglio quali possono essere, a suo avviso, gli impieghi inutili o dannosi dell’intelligenza artificiale in medicina?

Un esempio eclatante riguarda un aspetto molto delicato, ovvero l’ipotesi di utilizzare realmente i sistemi di machine learning, di planning e di intelligenza artificiale sui dati dei cittadini italiani in base a calcoli non realistici (come seguire 200mila persone in telemedicina ogni 10 secondi). Se volessimo far girare un sistema di machine learning raccogliendo bene dei dati e delle informazioni su milioni di persone raccogliendo anche analitiche numerose con la creazione di veri big data, la potenza di calcolo del CINECA e dell’INFN con i quali abbiamo un accordo di collaborazione come SIT non sarebbe sufficiente ad analizzare tali dati. Purtroppo, molti millantano capacità sul tema dell’intelligenza artificiale, avendo sistemi piccoli e non convalidati al fuoco della sperimentazione, senza la potenza di calcolo che serve e senza quell’esperienza che occorre soprattutto nel creare i sistemi con autoapprendimento non supervisionato. Di conseguenza potremmo avere risultati apparentemente positivi – perché non occorre molto a rivendicare esiti utili a farsi un po’ di pubblicità - ma in realtà non utili o addirittura dannosi. Questo problema è stato evidenziato nell’ultimo documento pubblicato dalla Commissione Europea per l’Intelligenza Artificiale e se ne sta occupando una Commissione Italiana apposita e addirittura la Santa Sede. In realtà le intelligenze artificiali, se ben gestite, rappresentano un’arma molto potente che ci potrà aiutare moltissimo, però abbiamo bisogno di persone che siano preparate sugli aspetti relativi alla potenza di calcolo e su come queste rete neurali si programmano, abbiamo ancora bisogno di dati e di sperimentazioni e, soprattutto, abbiamo bisogno di operatori che poi quando applicano questi metodi non siano abdicativi o passivi rispetto al computer, ma ne conoscano i pro e contro, che sappiano valutarli a vario livello (dall’infermiere che deve fidarsi dell’orientamento diagnostico dato da un sistema di machine learning fino al dottorando di ricerca che deve invece studiare ad altissimo livello le intelligenze artificiali stesse).

█ Perché questa esigenza è così sentita?

Faccio solo un accenno: si sente ancora l’idea di inserire nei flussi della telemedicina le COT (le Centrali Operative Territoriali) dove si trova poco personale infermieristico e quindi, in deroga in alcune Regioni, si mettono dei sistemi di intelligenza artificiale per vicariare carenze di competenze e conoscenze mediche. Proporre

una cosa di questo tipo sull’intero territorio nazionale può essere veramente molto pericoloso se poi gli strumenti che si adottano non funzionano bene. Quello che deve trasparire sull’importanza fondamentale di questo Master e che, a differenza di altri settori della telemedicina dove ci sono conoscenze consolidate da anni e quindi l’insegnamento di questa materia è relativamente più facile, nel settore dell’applicazione delle information technology nel campo della salute ci sono cambiamenti continui da un mese all’altro, tutti da esplorare, creare e studiare, per formare una generazione di persone responsabili. Per fortuna i cittadini e i medici hanno una forma di prudenza che spesso non si riscontra nei tecnologi, nelle imprese, nei politici, negli amministratori regionali o nelle persone interessate ai fondi del PNRR, i quali credono ciecamente nella rivoluzione dell’information technology. È fondamentale, pertanto, che l’atto formativo dia le garanzie, le assicurazioni e l’accountability. Per questo è fondamentale che da due anni circa l’Università di Parma e la prof.ssa Esposito abbiano affrontato questa sfida. Sarà quindi opportuno che lo Stato e l’Università per prima che rappresenta la cultura elaborino uno standard nazionale formativo di altissimo livello.

█ Prof.ssa Esposito, alla luce dell’innovatività del Master in termini di argomenti trattati, in base a quali criteri avete operato la selezione ottimale del corpo docente?

Uno dei nostri punti di forza – e questo dipende anche dal regolamento dei Master dell’Università di Parma - è che abbiamo avuto la possibilità di inserire nel corpo docente molti professionisti che lavorano effettivamente in questi ambiti, e questo fa sì che il Master non sia costituito da pura teoria ma abbia voluto coinvolgere i più esperti delle diverse sezioni. L’altro elemento rilevante è che abbiamo cercato di valorizzare anche l’impegno dei partecipanti che poi realmente svolgono la loro tesi su ambiti su cui lavorano, non sono cioè obbligati a fare un qualcosa di compilativo ma per realizzare i loro progetti spesso sono in contatto anche con le aziende con cui poi iniziano davvero la collaborazione lavorativa. Per cui penso che il punto fondamentale è stato quello di aver identificato le aree di telemedicina e intelligenza artificiale come due aree su cui servisse un’alta formazione multidisciplinare, perché il nostro corpo docente è appunto multidisciplinare: ci sono medici, ingegneri, informatici, professori di legge esperti in bioetica e in tema di privacy. Allo stesso tempo, insieme a questo progetto formativo abbiamo attivato laboratori pratici che potessero essere sempre più attrattivi per i nostri partecipanti. Per far questo ci avvaliamo di un supporto che personalizza la formazione stessa visto che ci sono soggetti che operano in diversi ambiti.

Tutte le informazioni relative al Programma didattico del Master ARTE sono reperibili all’indirizzo web https://www.masterarte-unipr.it/

63 INNOVAZIONE DIGITALE aprile 2024

Planetary Health Festival 2024, l’evento della salute globale e sostenibile

Si terrà a Verona dal 3 al 5 ottobre prossimi Planetary Health Festival 2024, l’evento dedicato alla salute planetaria che esplorerà temi cruciali come cambiamenti climatici, biodiversità e accesso ai servizi essenziali. L’evento offrirà momenti di discussioni, workshop e laboratori su mobilità sostenibile, economia circolare, alimentazione, e invecchiamento sostenibile, promuovendo una visione olistica per un futuro globale e sostenibile

64 ATTUALITÀ aprile 2024

Lo scorso anno, la popolazione mondiale ha superato gli 8 miliardi di persone, all’inizio del 900 erano solo un miliardo e mezzo. Un altro parametro in costante crescita è la temperatura del pianeta: recentemente l’Organizzazione Mondiale Meteorologica ha individuato il 2023 come anno record e il segretario dell’OMS definisce oramai questa un’era di ebollizione globale. Il 50% dell’economia mondiale, secondo il World Economic Forum, è minacciato dal collasso della biodiversità e dall’incremento elevatissimo delle zoonosi. Inoltre, dato ancora più allarmante, il 30% della popolazione mondiale ancora non riesce ad accedere ai servizi essenziali. Papa Francesco dice che stiamo vivendo non “un’epoca di cambiamenti” ma “un cambiamento di epoca” e, di fatto, come sostengono anche molti studiosi, sta iniziando una nuova era geologica. Per oltre 11 mila anni abbiamo avuto l’Olocene, ma l’uomo ha avuto un impatto così forte e trasformativo sul mondo, che oramai si parla di una nuova era geologica chiamata Antropocene. Quello che emerge chiaro da questa pluralità di elementi è che è indispensabile lavorare urgentemente per riequilibrare il rapporto tra uomo e sistemi naturali. E da qui, nasce la visione della Planetary Health, ovvero, il più elevato livello di salute e benessere di equità raggiungibile in tutto il mondo attraverso un’equilibrata governance da una parte dei sistemi politici, umani, economici e sociali determinanti per il futuro del mondo, e dall’altra dei sistemi naturali terrestri che definiscono i confini ambientali entro i quali l’umanità può svilupparsi.

In altri termini la salute planetaria mette assieme la salute umana con quelle animale, ambientale, sociale in una prospettiva globale,

perché quello che accade in un luogo molto lontano da noi (come abbiamo visto con il Covid) si può velocemente ripercuotere anche in Italia.

LA SALUTE PLANETARIA È LA SALUTE DELLA

CIVILTÀ UMANA E LO STATO DEI SISTEMI

NATURALI DA CUI ESSA DIPENDE

Proprio per affermare questa importantissima visione, Edra ha creato Healtival, una società che si occuperà di organizzare il festival della salute planetaria che si terrà a Verona dal 3 al 5 ottobre prossimi.

Tre giorni dove la salute planetaria, quindi, sia il fulcro della discussione, dove affermare questa visione, creare consapevolezza tra le istituzioni fino ai cittadini, passando chiaramente per tutti i profes-

65 ATTUALITÀ aprile 2024

sionisti, individuando al contempo azioni concrete e strategie per misurarle e, soprattutto, condividendo quelle che sono le migliori pratiche. I protagonisti di questo evento saranno le istituzioni, quindi, oltre al comune di Verona, daranno il loro sostegno il Ministero della Salute, il Ministero dell’Ambiente, della Pontificia Accademia della Vita, le università, gli enti, le imprese, le fondazioni, il terzo settore. Ma soprattutto saremo noi tutti perché lo sforzo di metabolizzare questa visione sarà importantissimo.

I temi che verranno approfonditi saranno eterogenei:

█ Visione olistica della Salute

█ Prevenzione e stili di vita

█ Alimentazione sostenibile

█ Prospettive italiane, europee e mondiali

█ Ruolo delle città e delle regioni

█ Formazione ed informazione

█ Impatto dei consumi sull’ambiente

█ Transizione ecologica ed energie sostenibili

█ Imprese del futuro

█ Lavoro, turismo ed economia circolare

La scelta di svolgere questo evento a Verona nasce perché questa città più di altre incarna un equilibrio dal punto di vista ambientale.

I TEMI COGENTI

L’agenda di questa tre giorni del festival del Planetary Health Festival prevede alcune sessioni plenarie e altre più specifiche in cui verranno trattate le tematiche della sostenibilità ambientale e del-

la salute planetaria con l’obiettivo di dare una visione olistica per un futuro sostenibile. Si parlerà di riscaldamento globale e di tutti gli effetti da esso derivante come per esempio le zoonosi, che richiedono un approccio multidisciplinare tra i vari professionisti ma anche tra le persone comuni. Un altro argomento molto importante che verrà trattato in plenaria è quello dell’economia circolare in quanto obiettivo di tutte le città del mondo al fine di riorganizzare la nostra vita e le struttura delle città per perseguire il concetto di sostenibilità. In un’altra sessione plenaria verrà affrontato quello che è un nuovo orizzonte culturale etico, filosofico e sociologico per il futuro della vita dell’uomo per abbattere la cultura dello scarto, del consumismo “usa e getta”, che non si cura di risparmiare né acqua, né risorse né cibo. Come già detto le tre giornate del Planetary Health Festival potranno contare su tantissime attività collaterali quali: percorsi culturali, seminari, workshop, tavoli di discussione, che andranno a focalizzarsi su temi più specifici quali per esempio l’impatto dell’intelligenza artificiale sulla salute sociale, il concetto di legame tra salute animale e sicurezza alimentare e, quindi, il ruolo del professionista veterinario nelle politiche di prevenzione. Verranno organizzati anche laboratori che possono essere importanti per la prevenzione di malattie che coinvolgeranno molti attori tra cui, per esempio, le farmacie e gli enti territoriali sulla città di Verona. Si parlerà anche di energia perché non si può parlare di benessere planetario senza pensare al risparmio energetico e alle nuove forme di produzione dell’energia, alla raccolta differenziata e a molto altro ancora. Anche in questo caso si svolgeranno workshop e laboratori per capire come si può ridurre lo spreco, coinvolgendo banalmente il comportamento del singolo cit-

66 ATTUALITÀ aprile 2024

tadino che moltiplicato per i milioni di persone può avere un impatto davvero molto forte, senza dimenticare i bambini, perché la cultura del risparmio si promuove fin dall’infanzia.

Una sessione verrà dedicata alla mobilità come uno degli elementi che più può impattare sull’inquinamento ambientale. Si parlerà di mobilità sostenibile, delle nuove forme di mobilità come il car sharing, il bike sharing, i nuovi sistemi di trasporto che si stanno sempre più sviluppando all’interno dei comuni italiani e non solo, e del concetto di “area pulita” applicato da diversi comuni per liberare i centri storici dalle auto private o comunque dai mezzi a combustione. Un altro argomento di vitale importanza che troverà ampio spazio al festival della salute planetaria è quello dell’alimentazione e dei consumi, in particolare, si approfondirà il ruolo che i comportamenti nei consumi e nelle abitudini alimentari possono avere sulla sostenibilità globale e, quindi, sulla salute e, conseguentemente, sulla spesa che ogni Stato deve affrontare per la sanità e per il mantenimento della salute stessa. Ma non solo. In questo ambito si discuterà di sicurezza alimentare al fine di evitare contaminazioni e garantire, quindi, un miglior stile di vita ed evitare infezioni o diffusioni di nuove malattie. La qualità della vita delle persone in età adulta sarà un altro tema al centro dell’evento. Si parlerà dell’invecchiamento sostenibile, cioè di come poter invecchiare in salute, di quali politiche poter adottare affinché le persone siano attive anche nell’età adulta e anziana, che possono quindi contribuire al benessere della collettività, all’econo-

mia di un paese, ma anche e soprattutto per ridurre quello che è l’impatto economico e sociale che può avere invece una generazione di anziani che non invecchiano in salute.

COLLABORANO A QUESTO EVENTO (ELENCO AGGIORNATO AL 13/03/2024)

Partner

Comune di Verona

Edra

Patrocini

Altems

CesDirSan

Cittadinanza Attiva

FIMG

Fmp

Fno TSRM e PSTRP

FNOFI

FNOVI

Lab GOV.city

Luiss law, digital innovation, sustainability

LUISS

Pontificia Accademia per la Vita

Università cattolica

67 ATTUALITÀ aprile 2024

JRP HI progetta l'Ospedale del Futuro

Il progetto Next Generation Hospital® prende forma attraverso un nuovo modello di ospedale tecnologico e resiliente al cambiamento e alle sfide demografiche che si delineano all’orizzonte. Politecnico di Milano, ricercatori, aziende e istituzioni si sono riuniti per affrontare le successive fasi di sviluppo dell’ospedale del futuro, attraverso la piattaforma tecnologica Joint Research Partnership Healthcare Infrastructures (JRP HI)

a cura della redazione
68 ATTUALITÀ

In Italia il50% delle infrastrutture ospedaliere non è adeguato ad accogliere i nuovi modelli organizzativi e sanitari resi necessari dalle nuove istanze sociali, economiche e ambientali. Inoltre, le linee guida esistenti e i requisiti di accreditamento strutturale per la progettazione ospedaliera risultano incompleti, datati ed eccessivamente prescrittivi. Di conseguenza, diventa fondamentale affrontare l’obsolescenza dell’infrastruttura sanitaria, in termini sia concettuali sia fisici, con interventi di rigenerazione finalizzati a dar vita all’ospedale del futuro.

Con questo obiettivo è nata, nel 2022, la Piattaforma di ricerca multiattore Joint Research Partnership Healthcare Infrastructures (JRP HI). Il progetto del Politecnico di Milano – Dipartimento ABC (Architettura, ingegneria delle costruzioni e ambiente costruito) e di Fondazione Politecnico di Milano si rivolge alle imprese e alle istituzioni per sviluppare e sperimentare strategie evolutive di innovazione progettuale, tecnologica, organizzativa, costruttiva e gestionale, verso un modello sempre più orientato alle esigenze di pazienti, caregivers e del personale sanitario.

Oggi è infatti sempre più necessario misurare le qualità di un ospedale e identificare adeguati requisiti e indicatori di monitoraggio per ciascun ambito tematico in grado di traghettare gli ospedali contemporanei verso dei veri modelli di nuova generazione (Next Generation Hospital®) funzionali, sostenibili, digitali, sicuri, inclusivi e in rete con il territorio per intercettare efficacemente le esigenze della sanità del futuro.

Naturale conseguenza di tale concezione è la definizione di nuovi modelli e framework metaprogettuali per aiutare i decisori e i policymakers, le stazioni appaltanti e i progettisti a individuare i corretti dimensionamenti, le relazioni funzionali e spaziali e i requisiti prestazionali che un ospedale che guarda al futuro deve possedere. Le infrastrutture ospedaliere sono un asset strategico per la loro rilevanza sociale, ambientale ed economica, ma ad oggi mancano linee guida aggiornate, strategie condivise e indicatori misurabili per la loro efficace progettazione, realizzazione e gestione. Con questo obiettivo ideatori e partner del progetto si sono riuniti l’8 febbraio nell’Aula Magna del Politecnico di Milano per fare il punto sull’attività di ricerca realizzata nei primi due anni dalla creazione della JRP e sui prossimi traguardi, anche alla luce delle sfidanti previsioni demografiche. Innanzitutto, tra i requisiti metaprogettuali dell’ospedale del futuro vi è il Modello Funzionale, ovvero la classificazione dell’infrastruttura ospedaliera in 15 Macroaree Funzionali (es. macroarea Diagnostica, Diurna, Chirurgica, Emergenza, Servizi Generali, etc.) e relative 55 Aree Funzionali (es. Area Diagnostica per immagini, Area Pronto Soccorso, Area Blocco Operatorio ecc.) aventi tra loro alta, media o bassa relazione spaziale. Sono state inoltre classificate anche quelle funzioni innovative che si osservano in trend evolutivi come ad esempio le aree Discharge Room, Terapia Semi-intensiva o Clinical Trial Unit. Il modello suggerisce la prossimità corretta tra aree diverse con la loro collocazione preferibile nel progetto (es. stesso livello, separazione,

█ Stefano Capolongo, docente di Hospital Design del Politecnico di Milano e responsabile scientifico del progetto Joint Research Partnership Healthcare Infrastructures (JRP HI) (foto Femia)

piano pubblico, piano interrato ecc.) e propone la loro aggregazione in tre diverse scale di Ospedale: Small, Medium e Large. A tali indicazioni si affianca il Modello Prestazionale, la raccolta dei 95 Requisiti da rispettare per garantire all’infrastruttura ospedaliera specifiche prestazioni e traguardare in termini concreti un modello futuribile di ospedale secondo 7 Ambiti di valutazione: Localizzazione, Progetto Funzionale, Flessibilità, Sostenibilità, Gestione del Rischio, Innovazione Digitale e Centralità degli Utenti. La finalità del modello, sviluppato a partire dalle raccomandazioni dell’Organiz-

LE PROIEZIONI DEMOGRAFICHE

Secondo il rapporto Istat 2021, la popolazione residente è in decrescita e soprattutto il rapporto tra giovani e anziani sarà di 1 a 3 nel 2050 mentre la popolazione in età lavorativa scenderà in 30 anni dal 63,8% al 53,3% del totale. La crisi demografica sul territorio è rappresentata dal fatto che entro 10 anni l’dei Comuni avrà subito un calo di popolazione, (87% nel caso di Comuni di zone rurali). A più breve termine si stima che la popolazione italiana over 65 aumenterà di 3,8 milioni e quella over 80 di 1,1 entro il 2035 pur a fronte di un decremento della popolazione totale del 5% (Jones Lang LaSalle IP, Inc., 2021).

69 ATTUALITÀ aprile 2024

zazione Mondiale della Sanità sintetizzate nel 2022 dal Politecnico di Milano nel Technical Brief “Hospitals of the Future”, è supportare le istituzioni, gli attori industriali e l’intera filiera delle infrastrutture sanitarie verso standard contemporanei e di qualità, dalle fasi iniziali di progettazione e garantire efficienza durante l’intera vita utile dell’infrastruttura.

Infine, la Norma Terminologica UNI indica la struttura generale e la nomenclatura specialistica di 410 termini condivisa tra i diversi attori dell’ecosistema salute. La sua funzione è costituire uno standard e lessico comune a tutti gli operatori del settore a cui la documentazione ufficiale (bandi di gara, manifestazioni di interesse, proposte ecc.) dovrà riferirsi.

“I luoghi della cura sono oggi contaminati dalle grandi rivoluzioni demografiche, tecnologiche, ambientali ed epidemiologiche, ma allo stesso tempo possono interpretare in chiave fisico spaziale l’approccio “One Health” e contribuire alla salute globale attraverso la creazione di luoghi per la cura più sani, efficienti e confortevoli per tutti gli utenti - precisa Stefano Capolongo, docente di Hospital Design del Politecnico di Milano e responsabile scientifico dell’iniziativa. L’Ospedale oggi deve sempre più integrarsi con l’attuale contesto socioculturale, diventando un polo urbano capace di promuovere salute e innovazione. L’organismo ospedaliero è infatti una “città nella città” dove molteplici funzioni trovano spazio e relazioni in un’unica infrastruttura complessa”. Se prima si progettava l’ospedale “per posti letto” o eventualmente “per volumi di attività” oggi la sfida è sviluppare il progetto delle infrastrutture per la salute sulla base dei processi sanitari ed organizzativi previsti per il prossimo futuro. Attraverso la piattaforma di ricerca JRP contribuiremo a ripensare in questi termini i Requisiti per l’accreditamento delle architetture ospedaliere superando gli attuali standard prescrittivi attraverso l’introduzione di indicatori prestazionali per Ospedali di nuova generazione”.

“Il progetto Next Generation Hospital inizia ora a rappresentare un punto di riferimento per il settore sanitario - afferma Ferruccio Resta Presidente di Fondazione Politecnico di Milano. Non si tratta solamente di innovazione tecnologica, ma di una collaborazione multiattoriale che coinvolge imprese, pubbliche amministrazioni e mondo accademico al fine di realizzare una piattaforma che si candida a essere un interlocutore per le politiche sanitarie locali e nazionali. Un confronto che grazie ai diversi angoli di visione ci permette di affrontare le sfide del futuro con una visione olistica e innovativa ma capace di fornire risposte concrete e attuabili. Durante questo primo triennio di ricerca (2022-2024), abbiamo avviato diverse ricerche volte a razionalizzare lo stato dell’arte e a definire i requisiti chiave, in funzione di due obiettivi principali: da un lato, delineare una visione aggiornata dell’ospedale di nuova generazione basata su evidenze pratiche e risultati internazionali, e dall’altro, prestare attenzione alla misurazione degli aspetti legati allo spazio fisico, considerando il legame intrinseco tra ambiente costruito e salute”.

L’obiettivo del primo triennio di ricerca (2022-2024), principalmente orientato alla razionalizzazione dello stato dell’arte e del quadro dei requisiti, è duplice. Da un lato proporre una nuova visione dell’ospedale di nuova generazione, sistematizzando le evidenze più importanti e i risultati basati sulla pratica anche a livello internazionale. Dall’altro lato concentrare l’sull’di misurare tutti gli aspetti dello spazio fisico e il rapporto stretto che esiste tra l’costruito e la salute, con particolare riferimento all’che un progetto di qualità può avere sui risultati organizzativi della struttura sanitaria.

I PARTNER DEL PROGETTO

Assa Abloy

Biovitae

Copma

Coopservice

Deerns Italia

Edison Next

Gerflor

H.C. Hospital Consulting

Harpaceas

Humanitas Research Hospital

Istituto Don Calabria

Korian Italia

Lenzi consultant

Mario Cucinella Achitects

Med Health Technologies

Nexor

Nippon Gases Italia

Philips

Politecnica Ingegneria ed Architettura

Proger – InAR – Ingegneria Architettura

Reair

Relyens

Siemens

Tecnicaer Engineering

Webuild

Le istituzioni partner

AREU – Agenzia Regionale Emergenza Urgenza

– Regione Lombardia

Ospedale Maggiore di Lodi

ASST Lodi

ASST Ovest Milanese

ASST Melegnano e Martesana

Servizio Sanitario Regione Emilia-Romagna

Istituto delle Scienze Neurologiche

Servizio Sanitario della Toscana

70 ATTUALITÀ aprile 2024
GRUPPOVENTO.IT PASSIONE. EVOLUZIONE. BOLOGNA 17 - 19 APRILE 2024 CI STA A CUORE CHI CURA Progetto e direzione In collaborazione con Il 19 Aprile in contemporanea con 19•21 Aprile 2024 ACQUISTA ONLINE IL TUO BIGLIETTO D’INGRESSO

DA NORD A SUD

MIGLIORA LA QUALITÀ

OSPEDALIERA

Il Rapporto sulla Qualità degli Outcome clinici negli ospedali italiani propone un’interessante valutazione comparativa tra le strutture pubbliche e private del Servizio Sanitario Nazionale, con esiti decisamente confortanti. A colloquio con il dottor Domenico Mantuan, Direttore Generale dell’Agenzia nazionale per i servizi sanitari regionali

di Maurizio Pedrini
72 INTERVISTA

La distribuzione delle strutture con livello di qualità alta o molto alta, per almeno il 50% dell’attività valutata è in aumento rispetto all’anno precedente (dal 23% al 26%). Non solo, se analizziamo nel dettaglio alcuni tipi di prestazioni, scopriamo che ci sono strutture di eccellenza anche nel sud della penisola

Domenico Mantuan

È stato presentato, presso la sede di Unioncamere, a Roma, il Rapporto sulla Qualità degli Outcome clinici negli Ospedali italiani 2023, elaborato da Agenas (Agenzia nazionale per i servizi sanitari regionali) e Aiop (Associazione italiana ospedalità privata), che propone una valutazione comparativa tra le strutture di diritto pubblico e le strutture di diritto privato del Servizio sanitario nazionale, da cui si evince la qualità offerta dalla sanità italiana, con un focus sulla variabilità tra Regioni e all’interno delle stesse, sulla base dei risultati del Programma Nazionale Esiti (PNE) 2022.

Il risultato è una fotografia della qualità offerta dal nostro SSN, che consente il confronto sulla base della natura giuridica delle strutture. Abbiamo chiesto al Direttore Generale di AGENAS, dott. Domenico Mantuan, di commentare per noi gli esiti dell’indagine.

█ Innanzitutto, dottore, possiamo presentare l’identikit e la missione di AGENAS, Agenzia Nazionale per i Servizi Sanitari Regionali?

AGENAS si configura come organo tecnico-scientifico del Servizio sanitario nazionale (SSN) e svolge un’attività di ricerca e di supporto nei confronti del Ministro della salute (Mds), delle Regioni e Province Autonome di Trento e Bolzano nonché delle loro aziende sanitarie. Inoltre, spetta all’Agenzia sia l’attuazione della Missione 6 salute Componente 1 del PNRR - dedicata al potenziamento delle reti di prossimità, delle strutture e dei servizi di telemedicina per l’assistenza sanitaria territoriale - sia il ruolo di Agenzia nazionale per la sanità digitale, con l’obiettivo di assicurare il potenziamento della digitalizzazione dei servizi e dei processi in sanità.

█ Sulla base di quali indicatori è stata valutata e stilata la graduatoria circa la qualità degli Outcone clinici negli Ospedali Italiani nel 2023?

Tengo a precisare che da oltre 10 anni AGENAS realizza, tramite il PNE, il lavoro di monitoraggio e analisi delle cure erogate in Italia, negli ospedali pubblici e privati accreditati. L’ultima edizione presentata dall’Agenzia prende in considerazione circa 1.400 ospedali ed effettua un’analisi dell’attività attraverso 195 indicatori di cui 170 relativi all’assistenza ospedaliera (66 di esito/processo, 88 di volu-

█ Domenico Mantuan, Direttore Generale dell’Agenzia nazionale per i servizi sanitari regionali

me e 16 di ospedalizzazione) e 25 relativi all’assistenza territoriale, quest’ultima valutata indirettamente in termini di ospedalizzazione evitabile (14 indicatori), esiti a lungo termine (7) e accessi impropri in pronto soccorso (4).

█ In sostanza, cosa è emerso di importante e significativo da questa indagine, post Covid, rispetto ai dati del passato? Quanto ha inciso questa dura esperienza nel miglioramento dell’organizzazione ospedaliera?

Sono molti gli spunti dai quali gli operatori e tutti gli stakeholder del mondo della salute possono trarre utili considerazioni, quindi, invito i lettori a visitare il portale del Programma Nazionale Esiti (https://pne.agenas.it/home). Fatta questa dovuta premessa, va senza dubbio segnalato come nel 2022 si sia registrato un aumento dei ricoveri rispetto al 2021 (+328 mila), e sia proseguito il riallineamento dei volumi ai livelli prepandemici, sebbene persista una riduzione del 10% rispetto al 2019. Allo stesso modo riguardo i volumi - ricordo che il DM 70/2015 ha previsto delle soglie minime di attività per singolo istituto di ricovero o per unità operativa complessa, relativamente a una serie di procedure chirurgiche, in ragione della documentata relazione esistente tra la numerosità della casistica e gli esiti delle cure - permane una certa frammentazione della casistica, seppur con segnali di miglioramento in alcuni ambiti come ad esempio per gli interventi sul tumore maligno della mammella e per la colecistectomia laparoscopica.

73 INTERVISTA aprile 2024

█ Dall’indagine è emerso un persistente divario tra il modello di organizzazione sanitaria e ospedaliera proposto nel Nord Italia, in particolare dalla Regione Veneto (vedi Modello Veneto), che lei ben conosce, essendone stato tra gli artefici, e quella del Sud Italia?

Le rispondo di no perché, come hanno ben rappresentato il dott. Baglio – Coordinatore attività PNE – e la dott.ssa Marina Davoli – Responsabile tecnico PNE – nel corso delle loro presentazioni, la distribuzione delle strutture con livello di qualità alta o molto alta, per almeno il 50% dell’attività valutata, è in aumento rispetto all’anno precedente (dal 23% al 26%). Non solo, se analizziamo nel dettaglio alcuni tipi di prestazioni, scopriamo che ci sono strutture di eccellenza anche nel sud della penisola. Ad esempio, nel caso del bypass - mortalità a 30 giorni dopo intervento; strutture con almeno 360 interventi di bypass nel biennio 2021-2022 - L’Azienda Ospedaliera S. Giovanni Di Dio E Ruggi D’Aragona di Salerno risulta tra le prime tre posizioni. Ma lo stesso possiamo dire in ambito oncologico dove tra le strutture con livello di qualità alta - per tutti e 3 gli indicatori dell’area valutati - ne troviamo 4 della regione Puglia, 1 della Campania e una della Regione Sicilia. Detto ciò, non possiamo dimenticarci che ci sono ambiti dove i margini di miglioramento sono ampi

e il lavoro di AGENAS va nella direzione di colmare le distanze dove presenti.

█ Guardando al futuro, quali impegni risultano prioritari per una diversa organizzazione ospedaliera che migliori le performances e le prestazioni dei servizi resi all’utenza, cercando di uniformarli a dei precisi parametri nazionali? Io non parlerei di diversa organizzazione ospedaliera, non dobbiamo mai dimenticare che il nostro Servizio sanitario nazionale, pur con le sue criticità, risulta tra i migliori a livello mondiale. Sicuramente il potenziamento dell’assistenza territoriale in atto grazie ai fondi del PNRR potrà dare un grande impulso al miglioramento di quella ospedaliera, che così non dovrà più farsi carico di molte delle prestazioni che dovrebbero essere erogate presso strutture quali le Case di Comunità se non, quando possibile, direttamente al domicilio del paziente. In premessa ho citato il ruolo di AGENAS quale Agenzia per la sanità digitale. Ebbene, sono certo che anche un buon utilizzo del flusso dei dati sanitari a disposizione potrà, in un futuro molto prossimo, dare un importante contributo al miglioramento della presa in carico dei pazienti non solo in ambito di assistenza, sia essa di tipo ospedaliera o territoriale, bensì di prevenzione e promozione della salute e degli stili di vita delle persone.

74 INTERVISTA aprile 2024

Il Nuovo Codice dei Contratti Pubblici (DLgs 36/2023, pubblicato il 31 marzo 2023) innova l’istituto delle varianti in corso d’opera, ridisegnando il concetto di variante sostanziale e introducendo nuove ipotesi di modifiche contrattuali. La riforma prevede l’obbligo di inserire nei contratti di appalto clausole per la revisione dei prezzi e per la rivisitazione degli obblighi esecutivi nonché nuovi adempimenti in capo ai vari soggetti coinvolti nella gestione del contratto di appalto: il Responsabile Unico di Progetto (RUP), il Direttore dei Lavori e l’Esecutore. Di particolare interesse risultano le varianti compensative che consentono di fare fronte all’aumento dei costi delle lavorazioni utilizzando i risparmi di spesa derivanti da modifiche al progetto.

L’analisi della disciplina complessiva delle varianti in corso d’opera, inoltre, non può essere disgiunta dalla verifica del ruolo più incisivo attribuito al RUP (quale Responsabile Unico del Progetto), nonché al Direttore dei Lavori, nella fase istruttoria e decisionale.

Dopo un’attenta analisi delle novità previste dal DLgs 36/2023 con un focus dettagliato su limiti qualitativi e quantitativi, il Prontuario indica il corretto iter istruttorio per redigere, approvare, realizzare le opere in variante, supportando il Tecnico con schemi, modelli, relazioni ed esempi concreti.

Il testo costituisce, quindi, un valido strumento operativo per gli operatori del settore: Responsabile Unico del Progetto, Direttore dei Lavori, Coordinatori della Sicurezza, Professionisti, Operatori economici.

www.build.it
Nuova Edizione

Grandi Ospedali, presentata

la

terza edizione al Ministero della Salute

Condividere conoscenze e strategie innovative per alzare sempre di più l’asticella nel Settore Sanitario Italiano. Con questa ambizione nasce il progetto “Grandi Ospedali”, ideato da Koncept, giunto alla terza edizione, presentata al Ministero della Salute

A cura della redazione
76 CONVEGNI

L’”Open Meeting // Grandi Ospedali”, la due giorni per discutere delle sfide future, insieme ai professionisti della sanità, industrie farmaceutiche e direttori generali, quest’anno è in programma a Napoli il 28 e 29 maggio 2024, presso l’AORN A. Cardarelli e AOU Federico II.

Aprendo l’evento il Ministro della Salute, Orazio Schillaci, ha sottolineato l’importanza di portare avanti progetti e idee negli ospedali per rafforzare la capacità del sistema sanitario di rispondere alle esigenze dei cittadini.

Le edizioni precedenti hanno già affrontato temi come la ricerca, la digitalizzazione, le competenze e la comunicazione interna, la medicina di genere, le malattie rare, la chirurgia e la robotica. Proseguendo la strada tracciata, l’Open Meeting 2024 vuole elaborare strategie per la trasformazione del settore.

“In questo momento di trasformazione radicale della sanità –ha detto il ministro della Salute Orazio Schillaci aprendo l’evento – è stimolante sapere che nei nostri ospedali si stanno portando avanti idee e progetti per individuare le soluzioni migliori per rafforzare la capacità del sistema di rispondere efficacemente ed in modo sostenibile alle esigenze dei cittadini”. “Bisogna agire a 360 gradi per rendere più moderna la sanità – ha proseguito – utilizzare i fondi del Pnrr per la telemedicina, la digitalizzazione, le diagnosi a distanza. Questi sono tutti strumenti che vedo nell’ottica di superare le diseguaglianze, non solo tra Nord e Sud ma anche tra piccoli e grandi comuni”.

“Grandi ospedali – ha detto Antonio D’Amore , Direttore Generale AORN A. Cardarelli, Napoli; Vicepresidente Fiaso – si rilancia come il laboratorio delle idee e del confronto. Il confronto per noi è crescita in un momento di innovazione e cambiamento. Per questo è importante confrontarsi tra quelli che sono i pilastri della sanità: le direzioni generali del pubblico e del privato, ma anche quelli che sono pilastri importanti in un processo di innovazione, come le aziende private informatiche e le aziende farmaceutiche. Napoli è ben lieta di ospitare l’edizione di quest’anno che siamo sicuri sarà corposa, interessante e di crescita”, ha concluso.

“Oggi gli ospedali – ha dichiarato Giovanni Migliore , Presidente Fiaso, a margine dell’evento – si trovano di fronte a una nuova sfida, quella di tornare a essere protagonisti attraverso l’integrazione territorio - ospedale. Noi abbiamo fatto molto bene attraverso gli ospedali e stiamo facendo passi da gigante anche sul territorio. Le nuove tecnologie di comunicazione ci consentono oggi di fatto di azzerare i gap logistici e questo è il senso che noi vogliamo dare anche a questa giornata. Interpretare il ruolo dei grandi ospedali come motore dell’alta specialità a domicilio del paziente, ma anche della ricerca e dell’innovazione in sanità”.

“Eccellenza nei grandi ospedali – ha commentato Paolo Petralia, Direttore Generale, ASL 4 Liguria; Vicepresidente Vicario Fiaso – significa guardare al futuro coniugando competenze ed esperienze dei professionisti, insieme a quelle delle aziende, dell’industria, dell’imprenditoria privata e soprattutto delle aziende sanitarie pubbliche. Insieme rappresentano un unicum nel panorama delle sperimentazioni gestionali e organizzative del nostro Paese. Ecco perché l›esperienza dei Grandi Ospedali è davvero una prospettiva interessante: quella di portare avanti un›attività congiunta di confronto e di scambio di buone prassi e di esperienze, ma al tempo stesso traguardare una costruzione di innovazione sostenibile e proiettata al futuro”.

77 CONVEGNI aprile 2024
█ Antonio D’Amore, Direttore Generale AORN A. Cardarelli, Napoli; Vicepresidente Fiaso █ Giovanni Migliore, Presidente Fiaso

IL PROGRAMMA DELL’EVENTO

MERCOLEDÌ 29 MAGGIO 2024

Sede: Padiglione Monumentale, AORN A. Cardarelli, Napoli

10:30-11:30 Saluti istituzionali

11:30-12:00 Interventi

12:00-12:15 Storia del progetto Grandi Ospedali

12:15-13:00 Introduzione dei lavori e presentazione del programma Open Meeting // Grandi Ospedali 2024

13:00-14:30 Pausa

14:30-16:30 Tavola rotonda degli Ambassador della Sanità italiana e dei partner

GIOVEDÌ 30 MAGGIO 2024

Sede: Facoltà di Scienze Biotecnologiche, Università degli Studi di Napoli Federico II, Napoli

10:00-12:30 I laboratori dei grandi ospedali: La ricerca dell’eccellenza nei grandi ospedali – sessione I

13:00-15:30 I laboratori dei grandi ospedali: La ricerca dell’eccellenza nei grandi ospedali – sessione II

Le aree dei laboratori 2024

█ Digitalizzazione e Innovazione nei Grandi Ospedali

█ Gli ospedali e il loro territorio

█ Grandi Ospedali come snodi nella filiera dell’assistenza sanitaria

█ Grandi Ospedali, centri per l’eccellenza

█ Grandi Ospedali, il posizionamento nel contesto sociale

█ La gestione dell’emergenza

█ Modelli organizzativi innovativi

█ Sostenibilità, Green, Circolarità

█ Vaccinazione in ospedale

Spazio Agorà

11:00-15:00 Interviste sui temi dell’Open Meeting // Grandi Ospedali 2024

15:00-15:30 Conferimento titolo Ambassador della Sanità italiana

15:30-17:00 Considerazioni finali delle due giornate di Open Meeting 2024

78 CONVEGNI aprile 2024
█ Paolo Petralia, Direttore Generale, ASL 4 Liguria; Vicepresidente Vicario Fiaso █ Ludovico Baldessin, Amministratore Delegato Edra

“Una giornata molto importante quella di oggi – ha dichiarato Daniela Donetti , Direttore Generale, Azienda ospedaliero-universitaria Sant’Andrea, Roma – noi abbiamo ospitato la seconda edizione presso l’Azienda ospedaliera Sant’Andrea, in collaborazione con Tor Vergata nel maggio scorso.

In quell’ambito, 31 laboratori hanno prodotto dei progetti veramente molto significativi che serviranno per definire le linee per la sanità del futuro. Oggi continuiamo questo percorso insieme e continueremo a progettare per il futuro di questa sanità”.

“In Italia con Grandi Ospedali portiamo avanti una serie di iniziative – ha commentato Giuseppe Longo , Direttore Ge -

nerale, AOU Federico II, Napoli – tra cui quella di oggi che è propedeutica alle giornate del 28 e 29 maggio a Napoli. L’eccellenza è importante perché attraverso le aziende ospedaliere si riescono a raggiungere i livelli assistenziali di alta qualità e assistenza. In modo particolare, con le aziende ospedaliere universitarie si riesce ad avere l’integrazione tra le attività assistenziali, la ricerca e la didattica. Questo permette di migliorare tutti i settori dell’assistenza”.

“La giornata di oggi – ha commentato Ludovico Baldessin , Amministratore Delegato Edra – con la presentazione degli “Open meeting 2024 grandi ospedali” è stata molto importante. Il ministro Schillaci ha chiarito qual è la traiettoria evolutiva e altrettanto ha fatto il direttore generale di Agenas, agenzia occupata nel ridisegno anche delle cure e nel monitoraggio. Da una parte la territorializzazione e dall’altra la digitalizzazione, sono due dimensioni imprescindibili di trasformazione. Proprio per questo l’iniziativa Grandi ospedali appare così importante. L’edizione 2023 è stata di grande successo, molto partecipata e ha prodotto tante idee, ma anche delle strategie applicative molto chiare. E ci sono le premesse per avere un’edizione 2024 altrettanto importante. È una fucina per costruire nuove visioni, per capire come implementarle e come rendere concrete, andando anche a comunicare quella che è un’eccellenza. Stiamo parlando di strutture che uniscono grandi capacità di cura e di ricerca e che in futuro probabilmente interagiranno sempre più col territorio grazie anche alla tecnologia. E quindi proprio in questo momento di grandissima trasformazione, questa iniziativa pone le basi per capire concretamente come supportarla, come promuovere e come cogliere tutte le opportunità”.

79 CONVEGNI aprile 2024
█ Giuseppe Longo, Direttore Generale, AOU Federico II, Napoli

Porta automatica AIRSLIDE: la soluzione FAAC per la sanità

Quando si può parlare di un ingresso automatico sicuro? Quali sono i requisiti che garantiscono l’incolumità degli utenti? Queste domande sono fondamentali per chi opera nel settore Safety & Security con funzione di HSE, Facility o Property & Real Estate e gestisce gli impianti di strutture sanitarie, garantendo sicurezza e conformità normativa. FAAC, da sempre, sviluppa soluzioni per l’automazione e da quasi 30 anni opera anche nel settore porte e ingressi automatici, proponendo sia soluzioni rispondenti alle normative vigenti, con forti innovazioni volte al risparmio energetico - riconosciute da Enea e dal Ministero dell’Ambiente e della Sicurezza Energetica - sia servizi di manutenzione ordinaria e straordinaria, per supportare grandi clienti del mondo della sanità nel mantenimento e adeguamento del parco installato. Affidare i servizi di installazione e manutenzione a operatori competenti che pongono la sicurezza al primo posto è cruciale, soprattutto in con-

testi sensibili come strutture che assistono anziani, bambini e persone con modalità ridotta e dove i requisiti normativi sono ancora più stringenti.

Scegliendo di affidarsi a FAAC, si dispone di un supporto sia per la progettazione e realizzazione di nuove strutture, sia per la riqualificazione di varchi esistenti, spesso datati e fuori norma, che hanno la necessità di essere adeguati secondo quanto previsto dall’attuale normativa EN 16005. Grazie a ciò, si riducono i rischi di incidenti e si ottengono vantaggi nell’efficientamento energetico, soddisfacendo le esigenze degli Energy Manager e gli standard ESG (acronimo di environmental, social, governance).

Dal punto di vista normativo, dal 2013 la norma EN 16005 ha rivoluzionato il settore delle porte pedonali motorizzate, introducendo nuovi standard di sicurezza nell’approccio all’analisi dei rischi di un ingresso automatico.

80 PUBBLIREDAZIONALE aprile 2024

L’obbligo di conformità normativa e la necessità di garantire la sicurezza sul luogo di lavoro sottolineano l’importanza della manutenzione periodica degli impianti, non solo come requisito normativo, ma anche come opportunità per migliorare le prestazioni e ridurre i rischi.

LA PORTA AIRSLIDE PER LA SANITÀ: GARANZIA DI SICUREZZA E QUALITÀ

AMBIENTALE

Soluzioni innovative come la porta AIRSLIDE di FAAC rappresentano un passo avanti verso la modernizzazione degli impianti, offrendo vantaggi sia in termini di sicurezza che di efficienza energetica. AIRSLIDE è l’innovativa porta automatica con lama d’aria integrata che limita le dispersioni termiche e riduce il consumo energetico, sia d’estate che d’inverno, oltre a contenere l’ingresso di smog, polveri e insetti. Inoltre, rappresenta una soluzione efficace che inibisce i fastidiosi colpi d’aria in prossimità della porta. AIRSLIDE è anche dotata del sistema Energy Saving brevettato da FAAC, che ottimizza i tempi di apertura e chiusura allo scopo di risparmiare energia (le porte si aprono solo in caso di reale necessità e si chiudono immediatamente dopo il passaggio della persona). Proprio per le loro caratteristiche, AIRSLIDE e Energy Saving sono tra le soluzioni che consentono a FAAC di essere un’azienda Opinion Leader nella campagna nazionale sull’efficienza energetica “Italia in classe A”, promossa dal Ministero

dell’Ambiente e della Sicurezza Energetica (MASE) e realizzata dall’ENEA.

La porta AIRSLIDE è stata studiata per adattarsi al meglio anche alle esigenze delle strutture sanitarie. Una delle applicazioni più recenti è quella adottata per l’entrata principale dello storico ospedale Koelliker di Torino. Sull’accesso principale, sono stati installati due ingressi automatici scorrevoli FAAC al fine di sostituire una porta girevole preesistente, di altro produttore, che non garantiva più performance adeguate dal punto di vista funzionale, manutentivo e di risparmio energetico.

Le due nuove porte automatiche di FAAC vengono a creare un ingresso a bussola che ha la funzione di filtro sia per la dispersione d’aria climatizzata sia per gli agenti inquinanti, e sono equipaggiate con automazione A1400, profilo TK50, dispositivo Energy Saving e lama d’aria integrata AIRSLIDE.

Per strutture come l’ospedale Koelliker, con un elevato flusso in entrata e uscita e con utenti che possono avere criticità o vulnerabilità nei movimenti, la porta automatica AIRSLIDE è la soluzione perfetta. La lama d’aria integrata nell’infisso, posizionata in corrispondenza della soglia di ingresso e che si attiva ad ogni apertura, garantisce vantaggi dal punto di vista ambientale e offre la maggiore efficacia possibile, assicurando elevati standard di comfort grazie all’abbattimento dei colpi d’aria in prossimità della porta stessa. Per una struttura sanitaria una porta d’ingresso come AIRSLIDE rappresenta un aiuto in più all’interno del percorso di cura offerto dall’ospedale.

81 PUBBLIREDAZIONALE aprile 2024

Appalti, sentenze e aggiornamenti normativi

CONTRATTI DI APPALTI PUBBLICI, NOVITÀ NORMATIVE

CONTRATTI PUBBLICI DI APPALTI

O CONCESSIONI

Con il nuovo anno è entrata in vigore la digitalizzazione dell’interno ciclo degli appalti e dei contratti pubblici (sia essi rientranti nel novero degli appalti siano essi facenti parte delle concessioni di qualsiasi importo) come previsto dal nuovo Codice degli Appalti.

Al centro del nuovo sistema figura la Banca Dati ANAC che interloquirà da una parte con le piattaforme certificate utilizzate dalle stazioni appaltanti e dall’altro con le banche dati statali che detengono informazioni necessarie alle stazioni appaltanti e agli enti concedenti per gestire le varie fasi del ciclo di vita dei contratti pubblici.

Le fasi di programmazione, progettazione, pubblicazione, affidamento ed esecuzione di appalti e concessioni verranno dunque gestite dalle stazioni appaltanti utilizzando piattaforme di approvvigionamento digitale certificate.

Le piattaforme saranno utilizzate per la redazione o acquisizione degli atti relativi alle varie procedure di gara; trasmissione dei dati e documenti alla Banca Dati Anac; l’accesso alla documentazione di gara; la presentazione del Documento di gara unico europeo; la presentazione delle offerte; l’apertura, gestione e conservazione del fascicolo di gara; il controllo tecnico, contabile e amministrativo dei contratti in fase di esecuzione e la gestione delle garanzie.

La digitalizzazione del ciclo di vita degli appalti pubblici e delle concessioni determina nuovi sistemi di gestione dei codici identificativi delle gare e delle comunicazioni obbligatorie all’Anac. Non sarà più attivabile lo smartcig, ossia il sistema semplificato che ha consentito per anni l’acquisizione del codice identificativo di gara (CIG) con l’inserimento di una serie ridotta di informazioni, rapportato alle acquisizioni di lavori, beni e servizi di valore inferiore a 40.000 euro. Di conseguenza, le stazioni appaltanti dovranno acquisire e perfezionare, anche per importi modesti, il CIG ordinario (che ha tuttavia il pregio di consentire l’attivazione delle funzionalità del fascicolo virtuale dell’operatore economico) attraverso le piattaforme di approvvigionamento, mediante l’interoperabilità con la piattaforma dei contratti pubblici gestita da Anac.

L’Autorità ha precisato nella deliberazione n. 582 del 13 dicembre 2023 che resta tuttavia consentita, fino a una successiva comunicazione, l’acquisizione del CIG attraverso il sistema simog per le procedure i cui bandi o avvisi siano stati pubblicati o le cui lettere di invito sono state inviate entro il 31 dicembre 2023: il sistema consentirà il perfezionamento dei codici identificativi di gara esclusivamente se la data di pubblicazione del bando o della spedizione della lettera di invito è antecedente al 1° gennaio 2024. I CIG acquisiti successivamente a tale data saranno automaticamente eliminati entro 48 ore se non riferiti a procedure pubblicate entro il 31 dicembre 2023.

Fino al 30 giugno 2024, anche al fine dell’assolvimento degli obblighi di comunicazione nei confronti della Banca dati nazionale dei contratti pubblici, le stazioni appaltanti e gli enti concedenti hanno facoltà di utilizzare l’interfaccia web messa a disposizione mediante la piattaforma dei contratti pubblici per l’acquisizione del CIG in relazione a quelle tipologie di contratti (in gran parte contratti esclusi dall’applicazione del codice) per i quali era previsa l’acquisizione dello smartcig senza limiti di importo, a soli fini di tracciabilità dei flussi finanziari, nonché per altre particolari fattispecie (tra le quali le adesioni ad accordi quadro e convenzioni formati entro il 31 dicembre 2023 e per la ripetizione di servizi analoghi prevista dall’articolo 76, comma 6 del codice per gare pubblicate entro la fine del 2023). Per le comunicazioni obbligatorie relative alla fase di affidamento e all’esecuzione, l’Autorità ha chiarito che le stesse saranno effettuate dal 1° gennaio 2024 dalle stazioni appaltanti e dagli enti concedenti mediante l’interfaccia classica con il sistema simog per i CIG acquisiti con lo stesso e invece con la piattaforma dei contratti pubblici per i CIG acquisiti (con le nuove modalità) mediante le piattaforme di approvvigionamento.

La documentazione relativa alle varianti, individuata all’articolo 5, comma 12, dell’allegato II.14 del decreto legislativo n. 36/2023 è resa disponibile dalla stazione appaltate per l’Anac tramite un link ipertestuale al luogo dove detta documentazione è conservata, ad esempio la piattaforma di approvvigionamento digitale (non necessita, pertanto, l’invio che veniva effettuato secondo le vecchie modalità).

82 NORMATIVA COMMENTATA aprile 2024 di Antonella Crugliano, Arianna Laurenti, Sara Capizzi Ufficio Legale e Appalti Dipartimento Tecnico Patrimoniale AUSL di Bologna

Altra novità rilevante è rappresentata dal Fascicolo virtuale dell’operatore economico predisposto da ANAC: lo strumento consentirà l’accesso alle informazioni riguardanti gli operatori economici per la verifica del possesso dei requisiti per la partecipazione agli appalti pubblici e l’assenza di cause di esclusione. Le informazioni contenute nel fascicolo inserite dall’operatore economico attraverso apposite funzionalità verranno aggiornate automaticamente dagli enti certificatori e potranno essere consultati dalle stazioni appaltanti in tutte le procedure di affidamento cui lo stesso operatore economico parteciperà.

Altra questione da segnalare introdotta dal nuovo Codice è rappresentata dal superamento nell’ambito delle commissioni giudicatrici dell’incompatibilità endoprocedimentale che precludeva la presenza nella medesima Commissione di coloro che erano stati coinvolti a vario titolo nell’ambito della procedura.

Si guardava con sfavore la presenza in Commissione del RUP a tutela della trasparenza e dell’imparzialità di giudizio dei commissari. Il Nuovo Codice consente al RUP non solo di far parte della Commissione come membro, ma altresì come Presidente a meno che non venga dimostrata l’incompatibilità dei ruoli attraverso comprovate ragioni di interferenza e di condizionamento.

Si è reputato, in sede di elaborazione delle nuove disposizioni, fosse più opportuno superare la presunzione di condizionamento sulla scelta dell’aggiudicataria a beneficio della conoscenza più approfondita dell’oggetto dell’appalto e della possibilità, in virtù di detta conoscenza, di poter più agevolmente individuare l’offerta migliore.

PRINCIPI E MASSIME GIURISPRUDENZIALI E/O AMMINISTRATIVE

Attività di approvvigionamento

Delibera ANAC 29 novembre 2023 n.562

L’ANAC, a seguito dell’acquisizione delle risultanze delle attività ispettive effettuate presso un’Azienda Sanitaria. ha rilevato la violazione di una serie di normative di fondamentale importanza nella disciplina contrattualistica pubblica.

Un primo ambito violato risulta essere quello della programmazione degli acquisti dal momento che, nel verificare il comportamento posto in atto dalla stazione appaltante, ha sottolineato come la stessa ASL non avesse contezza delle necessità di approvvigionamento di beni (nel caso di specie presidi sanitari quali “guanti monouso, camici monouso, Reti per ernia, tubi di aspirazione liquidi, ecc.”). Più nello specifico la stessa ANAC ha rilevato come l’attività di Programmazione degli acquisti, anche per quanto concerne gli appalti di servizi e forniture, risulta essere obbligatoria, per tutte le pubbliche amministrazioni e costituisce una declinazione del principio di buon andamento dell’azione amministrativa.

Un secondo profilo di criticità emerso, derivante dal comportamento adottato dall’Azienda Sanitaria, è stato l’illegittimo frazionamento degli acquisti, culminato in aggiudicazioni di forniture senza che vi fosse un previo espletamento di alcuna procedura di gara; questo modus procedendi - pur finalizzato a garantire la costante presenza dei beni necessari allo svolgimento delle attività della AUSL - ha comportato anche il mancato rispetto del principio della tutela della concorrenza, realizzatosi tramite l’assegnazione di affidamenti senza ricorrere al mercato ed alle altre società che avrebbero potuto partecipare alle procedure. Un ulteriore profilo contestato risulta essere quello riguardante la mancata adeguata applicazione della normativa sulla tracciabilità dei flussi finanziari (Legge 136/2010). In tal senso, nella Comunicazione di avvio dell’istruttoria, veniva evidenziato come la modalità di utilizzo dei CIG adottata dalla Azienda Sanitaria risultasse completamente elusiva della disciplina di cui alla legge n. 36 del 20120 laddove solo l’utilizzo di uno specifico CIG, collegato univocamente ad una procedura/affidamento, “permette di rendere trasparenti le operazioni finanziarie relative all’utilizzo del corrispettivo dei contratti pubblici, in modo da consentire un controllo in itinere ed a posteriori sui flussi finanziari provenienti dalle amministrazioni pubbliche”.

Oltre alle violazioni sopra richiamate veniva, inoltre, contestata l’irregolarità connessa al mancato versamento del contributo all’Autorità in tutti i casi in cui, conclusosi un affidamento, l’Azienda Sanitaria avrebbe dovuto procedere ad individuare un nuovo operatore economico tramite apposita procedura rispettosa della disciplina normativa sui contratti, previa richiesta di un CIG ed effettuazione del pagamento, se dovuto, del contributo previsto dal legislatore in favore dell’Autorità. A tale ultimo inadempimento consegue, altresì, il mancato rispetto degli obblighi informativi attinenti sia alla fase di gara che alla fase esecutiva dell’affidamento.

Applicazione nuovo Codice procedure PNRR/PNC Tar Umbria, sentenza n. 758/2023

Il Tar Umbria - con la pronuncia n.758/2023 pubblicata lo scorso 21 dicembre - conferma l’applicazione del nuovo codice dei contratti anche alle procedure PNRR/PNC in caso di assenza di richiami specifici contenuti nel D.L n.77/2021, come già affermato anche dal MIT con i recenti pareri n.2203/2023 e n.2295/2023 (che hanno superato l’impostazione espressa nel parere n.2153 che sosteneva il contrario).

Nel caso di specie, i riferimenti normativi cui si affida il giudice sono, nell’ordine, l’articolo 226, l’articolo 225 e l’articolo 226, da cui si desume il microsistema normativo che chiarisce la problematica delle disposizioni applicabili al PNRR/PNC avviati dalla data di efficacia del nuovo codice ovvero dal 1° luglio 2023 (art. 229 comma 1).

83 NORMATIVA COMMENTATA aprile 2024

L’art. 226, comma 2, chiarisce che il nuovo codice si applica solo alle procedure avviate a far data dalla sua efficacia indicando i casi, ad esempio per «le procedure e i contratti» i cui «bandi o avvisi con cui si indice la procedura di scelta del contraente siano stati pubblicati prima della data in cui il codice acquista efficacia». Per il PNRR/PNC, subentra l’articolo 225, e in particolare il comma 8, che delinea il quadro normativo applicabile a questo tipo di appalti anche se avviati successivamente alla data di efficacia del nuovo codice.

In particolare, la disposizione precisa che «si applicano, anche dopo il 1° luglio 2023, le disposizioni di cui al decreto-legge n. 77 del 2021, convertito, con modificazioni, dalla legge n. 108 del 2021, al decreto-legge 24 febbraio 2023, n. 13, nonché le specifiche disposizioni legislative finalizzate a semplificare e agevolare la realizzazione degli obiettivi stabiliti dal Pnrr, dal Pnc nonché dal Piano nazionale integrato per l’energia e il clima 2030 di cui al regolamento (UE) 2018/1999 del Parlamento europeo e del Consiglio, dell’11 dicembre 2018».

Ora, il DL 77/2021, come puntualizza il giudice, «non reca una compiuta disciplina delle procedure di affidamento degli appalti finanziati con le risorse del Pnrr». Pertanto, se è vero che alcune norme del codice del 2016 continuano ad applicarsi agli appalti

finanziati anche solo in parte dal Pnrr/Pnc è altresì vero che per «quanto non derogato o comunque non diversamente disciplinato dal DL 77/2021, alle suddette procedure debba applicarsi il d.lgs. n.36/2023, secondo la regola generale di cui all’art. 226, co. 2, del nuovo codice, o, per una sorta di effetto di trascinamento, la fonte derogata dalle succitate disposizioni del d.l. n. 77/2021, ovvero il d.lgs. n. 50/2016». E in questo senso, del resto, dispone sempre l’articolo 226 quando al successivo comma 5 puntualizza che «ogni richiamo in disposizioni legislative, regolamentari o amministrative vigenti al decreto legislativo 18 aprile 2016, n.50 del 2016, o al codice dei contratti pubblici vigente alla data di entrata in vigore del codice, si intende riferito alle corrispondenti disposizioni del codice o, in mancanza, ai principi desumibili dal codice stesso». In conclusione, nel momento in cui non è perfettamente rinvenibile una norma del codice del 2016, per superare la carenza di disciplina il riferimento dovrà intendersi al nuovo codice dei contratti. Ciò viene bene espresso dal giudice che chiarisce che «al di là delle disposizioni di cui al DL n.77/2021 e delle altre fonti espressamente richiamate dall’art. 225, co. 8, del d.lgs. n.36/2023, applicabili anche alle procedure finanziate con i fondi del Pnrr pur se bandite successivamente all’efficacia del nuovo codice, dovranno trovare dunque applicazione le norme ed i principi» di quest’ultimo.

84 NORMATIVA COMMENTATA aprile 2024

Legno e Vetro strutturale. Calcolo e progettazione secondo Eurocodici e NTC di Carlo Sigmund è il terzo volume della collana Eurocodici strutturali CEN/TC 250 - QUADERNI che presenta le regole costruttive e le procedure di calcolo per la progettazione di elementi strutturali in legno e vetro strutturale.

Il quaderno tecnico – con 15 esempi sintetici esplicitati e 1 esemplificazione di “segmenti” di calcolo – tratta i materiali LEGNO e VETRO STRUTTURALE

Per il primo di essi vengono riportate considerazioni relativamente alle caratteristiche e peculiarità dei legnami utilizzabili e alle loro principali classificazioni normative. Si descrivono le classificazioni in termini di elasticità e resistenza rispetto all’orientamento delle fibre del legno, gli aspetti tecnologici e le dimensioni di produzione, sia per legno massiccio che per legno lamellare.

Segue una sezione di formule di progetto e verifica di elementi inflessi e/o pressoinflessi e sollecitati a taglio.

La seconda parte sul materiale “vetro strutturale” tratta le tipologie principali di vetro (in particolare il vetro “float” o vetro “ricotto”), i trattamenti di rinforzo (meccanico, termico e chimico) e i principali criteri di progetto e di verifica. L’ultima parte affronta dettagliate tematiche di progettazione (impatto dei venti, azione della folla, ecc.).

L’opera tratta con chiarezza le tematiche esposte e costituisce un valido testo di supporto tecnico sia per i progettisti di opere relative ad elementi strutturali in legno e vetro strutturale che per tutti gli altri soggetti coinvolti nel settore delle costruzioni con particolare riferimento alle applicazioni strutturali del legno e vetro.

Le novità in libreria

Struttura del libro

• I Legno

– Elementi strutturali in legno

– Verifiche degli elementi in legno

– Impalcati misti legno-cls: teoria delle travi composte

• II Vetro strutturale

– Sistemi di vetro strutturale

– Peculiarità sul calcolo del vetro strutturale

www.darioflaccovio.it Dario Flaccovio Editore

Perché associarsi al C.N.E.T.O.

Il CNETO è un’associazione culturale che riunisce architetti e ingegneri interessati ai problemi dell’edilizia e della tecnica ospedaliera, tecnici, igienisti, amministratori ed economi di direzioni ospedaliere. Il CNETO ha come obiettivo primario la promozione dell’informazione e della conoscenza nello specifico settore della sanità, settore in continua e rapida evoluzione, che richiede il costante aggiornamento di tutti gli operatori. È proprio con questa finalità che l’Associazione organizza convegni nazionali e internazionali, viaggi di studio presso le strutture all’avanguardia sia italiane che estere, attiva contatti ufficiali con le altre associazioni e le istituzioni più rappresentative, anche straniere. Il CNETO è stato fondato quale Associazione multidisciplinare proprio perché la progettazione ospedaliera e socio-sanitaria esige la sinergia tra le diverse figure professionali coinvolte nella valutazione e risoluzione di tutti gli aspetti che concorrono a definire il progetto. La presenza delle Aziende, in qualità di soci collettivi, permette di stabilire uno stretto legame anche con il mondo della produzione e del mercato, le cui tendenze in atto costituiscono un indispensabile strumento di cultura tecnica.

RICHIESTA DI ADESIONE

Presa visione dell’articolo 4 dello statuto del CNETO il/la sottoscritto/a

Nome e Cognome

chiede di essere iscritto al CNETO in qualità di componente ordinario collettivo sostenitore studente € 100,00 € 300,00 € 600,00 € 50,00

Professione

Attività o carica

Comunicazioni sull’attività svolta nel campo-ospedaliero

Residenza e indirizzo:

Via N. Città

Tel

Per iscriversi e per informazioni

C.N.E.T.O.

Centro Nazionale per l’Edilizia e la Tecnica Ospedaliera

Versamento con bonifico bancario intestato a CNETO sul C/C Banca Prossima S.P.A., Filiale di Milano IBAN IT51A0335901600100000129131 specificando nella causale: “Quota associativa anno ..., Cognome e Nome (o ragione sociale) associato”.

C.N.E.T.O.

Centro Nazionale per l’Edilizia e la Tecnica Ospedaliera www.cneto.it | e-mail: info@cneto.it

86 aprile 2024

NOTIZIE DAL CNETO

A conclusione delle votazioni del CNETO per il triennio 2022-2024, sono risultati eletti i seguenti consiglieri:

Presidente: Stefano Capolongo

Past President: Maurizio Mauri

Segretario Generale: Marco Gola

Vice Presidenti: Margherita Carabillò e Roberto Righini

Direttore Rivista Progettare per la Sanità: Margherita Carabillò

Tesoriere: Roberto Righini

• GIUNTA ESECUTIVA

Ark.Ing.81 S.r.l. Righini

Bragonzi Gilberto

Carabillò Margherita

Ingaglio Monica

Meoli Federica

Peretti Gabriella

• CONSIGLIO NAZIONALE

Pollo Riccardo

Ravegnani Morosini Roberto

Sibillassociati Sibilla

Taddia Andrea

Tognolo Chiara

Vitali Marco

In rappresentanza dei Soci ordinari

Azzini Susanna

Bettamio Valentina

Bragonzi Gilberto

Brambilla Andrea

Carabillò Margherita

Colombo Luigi

Dubini Nicoletta

Ferrante Tiziana

Gola Marco

Grifa Egisto

Ingaglio Monica

Ladini Lino

Manara Giuseppe

Mauri Maurizio

Meoli Federica

Oddi Baglioni Grifone

Pedrini Daniela

Peretti Gabriella

Pollo Riccardo

Ravegnani Morosini Roberto

Taddia Andrea

Tognolo Chiara

Torricelli Maria Chiara

Vitali Marco

Zingaretti Gabriele

In rappresentanza dei Soci collettivi

AIRNOVA

ARK.ING.81 S.r.l.

BININI PARTNERS S.r.l.

CAIREPRO - COOPERATIVA ARCHITETTI

E INGEGNERI PROGETTAZIONE

POLITECNICO DI MILANO - Dipartimento ABC

PROGER SpA

PROGETTO CMR

SAGICOFIM SpA

SIBILLASSOCIATI

TECNICAER ENGINEERING S.r.l.

ESTRATTO DALLO STATUTO

Art. 1 Denominazione

Il “C.N.E T O - Centro Nazionale per l’Edilizia e la Tecnica Ospedaliera” è una Associazione culturale, apartitica e senza scopo di lucro, nata sotto gli auspici dell’ANIAI L’Associazione è retta dal presente statuto la cui attuazione operativa è demandata, se necessario, ad appositi regolamenti operativi

Art. 2 Sede

La sede legale del C.N.E T O è stabilita in Roma. L’Associazione può aprire sedi operative periferiche

Art.3 Scopo

L’Associazione ha come scopo, a beneficio della collettività: la promozione dello studio dei problemi organizzativi, gestionali e progettuali connessi con l’edilizia socio sanitaria; di stabilire e mantenere contatti in campo nazionale e internazionale fra esperti italiani e stranieri e altre Associazioni che si interessano ai problemi attinenti allo scopo sociale; di porre a disposizione e di favorire la diffusione delle conoscenze e del progresso delle arti dello specifico settore anche attraverso l’uso dei propri mezzi e strutture; la promozione e/o la partecipazione al capitale sociale di società e/o associazioni che abbiano il fine statutario di approfondire, diffondere la cultura tecnico –architettonica, gestionale e organizzativa dell’edilizia socio-sanitaria, anche a scopi didattici ed editoriali

la qualificazione e il riconoscimento delle professionalità, svolgendo un ruolo di formazione e di informazione degli operatori

Per il raggiungimento dello scopo sociale il C.N.E T O indice, promuove e organizza convegni, seminari, giornate di studio, viaggi, visite tecniche, pubblicazioni proprie o di terzi e diffonde la rivista organo ufficiale dell’associazione

Art.4 – Ammissione e Soci

Sono ammessi a far parte del C.N.E T O le persone fisiche e giuridiche che, condividendone gli scopi, ne faranno domanda scritta, o tramite il sito ufficiale, alla Giunta Esecutiva e la cui domanda sarà dalla stessa accettata. I soci C.N.E T O. si distinguono in ordinari, studenti, collettivi, sostenitori, onorari

Soci ordinari, le persone fisiche esperte nel campo oggetto dello scopo associativo che ne fanno richiesta e che corrispondono annualmente la quota sociale ordinaria

Soci studenti e neo laureati, gli iscritti a corsi di studio universitari attinenti le materie interessanti lo scopo sociale che ne fanno richiesta e che corrispondono una quota associativa pari al 50% della quota sociale ordinaria. La qualifica di studente decade dopo tre anni dal termine degli studi e comunque entro il 30° anno di età

Soci collettivi, le persone giuridiche, gli Enti pubblici e privati, le Associazioni scientifiche e tecniche che ne fanno richiesta e che operano nel campo oggetto dello scopo associativo e che corrispondono la quota sociale collettiva pari a tre volte l’ordinaria; hanno diritto a tre voti

Soci sostenitori, i soggetti individuati alle lettere precedenti che si impegnano a corrispondere, per almeno cinque anni, una quota sociale annua pari a due volte la quota collettiva; hanno diritto a tre voti

Soci onorari, le personalità che per merito scientifico o professionale o per aver acquisito particolari meriti verso l’associazione vengono nominati tali. La loro nomina è proposta dalla Giunta Esecutiva, approvata dal Consiglio Nazionale e ratificata dall’Assemblea dei soci; i Soci Onorari non pagano la quota associativa e non hanno diritto di voto

Art. 5 Organi del C.N.E T O

Sono: l’Assemblea dei Soci, Il Consiglio Nazionale, Il Presidente, La Giunta esecutiva, Il Collegio dei revisori

87 aprile 2024 71 febbraio 2024
71 ottobre 2020 63 2023

Organo uf ficiale del C N E T O Centro Nazionale per l’Edilizia e la Tecnica ospedaliera

L’INFORMAZIONE AUTOREVOLE NEL MONDO

DELLA PROGETTAZIONE PER LA SANITÀ NON PERDERE QUESTA OCCASIONE

COMPILA LA CARTOLINA QUI SOTTO O VAI SUL SITO WWW.QUINE.IT

E ATTIVA SUBITO IL TUO ABBONAMENTO A SOLI

abbonamento annuale 40 €

• MANAGEMENT E ORGANIZZAZIONE

• SICUREZZA E IG

• INFORMATION TECHNOLOGY

• AGGIORNAMENTO LEGISLATIVO

• SCENARI INTERNAZIONALI

• TECNOLOGIE

E NOVITÀ DALL’INDUSTRIA

Abbonati su www.quine.it o compila questo coupon e invialo via email: abbonamenti@quine.it

Nome e Cognome

Azienda

Indirizzo

Cap Città

Telefono

E-mail

PEC (per fatturazione elettronica)

Codice fiscale (obbligatorio)

Partita IVA

Codice destinatario (per fatturazione elettronica)

Desidero sottoscrivere il seguente abbonamento:

Abbonamento annuale Italia (6 numeri) a € 40,00.

Abbonamento annuale Europa (6 numeri) a € 60,00

PAGAMENTO

Bonifico Bancario IBAN IT88U0521601631000000000855 (allego fotocopia)

Versamento su c/c postale N.60473477 intestato a Quine Srl - Via Spadolini, 7 - 20141 Milano (allego fotocopia)

Addebito su carta di credito

Visa Carta Sì Mastercard

n. scadenza /

CVC (CVC: ultime 3 cifre del numero che si trova sul retro, nello spazio della firma)

Firma

CONSENSO AL TRATTAMENTO DEI DATI

Ai sensi dell’art 13 Regolamento Europeo per la Protezione dei Dati Personali 679/2016 (GDPR)

il sottoscritto __________________________________________________________________________________

esprime il propr o espresso e specifico consenso a trattamento de dati ai fini di:

- Inv o e-mail promozionali e/o comunicazioni di marketing, nonché effettuazione di r cerche di mercato, se autorizzato dal cliente, da parte di Quine Sr o di società da essa controllate, collegate o partecipate;

Esprimo il m o consenso Nego il mio consenso

- Inv o e-mail promoz onali e/o comunicazioni di marketing, se autorizzate dal cliente per final tà di profilazione

(come ad es memorizzaz one di abitudini di consumo) volte a migliorare e offerte ne confronti del cliente, da parte di Quine Srl o di società da essa controllate, col egate o partec pate;

Esprimo il m o consenso Nego il mio consenso

- Inv

a trattamento in base all’informativa di cui sopra Data Firma
Editore: Quine - Edra LSWR Group, Srl Via Spadolini, 7 20141 Milano - Italia Tel +39 02
Fax +39
PROGETTAZIONE
o e-mail promoz onali e/o comunicazioni di marketing, nonché effettuazione di r cerche di mercato, e di profilaz one se autorizzato da c iente, per conto di società terze (appartenenti alle categorie ed toria, professionist del a salute, case farmaceut che ecc), non facenti parte di Lswr Group Esprimo il m o consenso Nego il mio consenso Esprimo il m o consenso
ABBONAMENTI
864105
02 88184301
ORGANIZZAZIONE TECNOLOGIA RISK MANAGEMENT

da oltre 40 anni per il medicale

S.r.l

con EcoStruxureTM for Healthcare l’infrastruttura IoT-ready per la digitalizzazione dell’energia

Scarica la nostra sintesi della norma ISO52120 sull’efficienza energetica tramite l’automazione degli edifici

Rendi il tuo progetto di ospedale più se.com/it

Turn static files into dynamic content formats.

Create a flipbook
Issuu converts static files into: digital portfolios, online yearbooks, online catalogs, digital photo albums and more. Sign up and create your flipbook.