Progettare per la Sanità n. 4/23 Settembre

Page 1

CNETO Centro Nazionale per l’Edilizia e la Tecnica Ospedaliera

Organizzazione, tecnologia, architettura

Strutture sanitarie sostenibili: l’ Isala Meppel / Il New Children’s Hospital, eccellenza finlandese / Nuova sala autoptica al San Martino di Genova / La creazione del valore nel SSN / Nasce la nuova banca dati DEI Plus / Le telemedicina in ambito medico-legale pubblico / “Fare luce” in un ospedale / Un esempio eccellente di info sharing

l’Ospedale Isala Meppel, Drenthe, Paesi Bassi 23 ISSN: 17206642 04
fi Via Gennaro Righelli, 76-78 00137 Roma Tel. 06 82002732 Fax 06 82083959 www.rosiglioni.it Per
medicale
oltre 40
il
da
anni

Forniture Rosiglioni Impianti: massimo comfort, sicurezza degli ospiti

di utilizzo, dai flussomentri agli umidificatori per ossigeno e aria, dagli aspiratori endocavitari alle sacche monouso.

In un ipotetico RSA (Residenze Sanitarie Assistenziali) o ospedale modello, l’architettura, gli arredi, le finiture, i colori, le qualità materiche, la segnaletica, i suoni e gli odori, la temperatura, l’umidità e la ventilazione, la luminosità, la vista, la pulizia e l’igiene; tutto dovrà comunicare calore e accoglienza.

Anche i dispositivi medici, gli accessori sono fondamentali per garantire il benessere degli anziani ospitati all’interno delle strutture. Non solo devono essere funzionali e confortevoli, ma devono anche rispettare le esigenze specifiche degli ospiti, come la mobilità ridotta e la necessità di assistenza continua.

L’attenzione al benessere degli anziani, e non solo, è il fil-rouge di ogni progetto di Rosiglioni Impianti. Azienda nata più di 40 anni fa che ha focalizzato tutta la sua attività sul settore ospedaliero nell'ambito specifico degli impianti gas medicali e degli allestimenti.

Dall'esperienza maturata in tutte le tipologie di strutture, dal pubblico al privato,

dall'ambulatorio al reparto di alta specializzazione, il personale ha sviluppato una importante competenza e specializzazione sia per quanto riguarda gli aspetti normativi che relativi alle forniture per l'uso quotidiano.

Rosiglioni Impianti è in grado di fornire tutta la consulenza per la progettazione degli impianti gas medicali e di comunicazione ospedaliera, la realizzazione e assistenza tecnica degli stessi, la fornitura di tutti gli accessori

Importanti collaborazioni con aziende fabbricanti di componenti ed accessori consentono a Rosiglioni Impianti di fornire soluzioni personalizzate per l'assistenza ai pazienti, dalle lampade visita e lettura, alle testaletto progettate con design funzionale ed eleganti, dagli accessori da applicare al letto a quelli da soffitto e parete per le camere e gli ambulatori, tutti volti ad agevolare il personale e i pazienti, ottimizzando spazi e tempi, riducendo al minimo l'impatto degli interventi tecnici.

Acqua Sterile per inalazione USP

Flaconi contenenti acqua sterile per inalazione USP privi di conservanti o additivi per l'uso su un solo paziente nella terapia respiratoria o come soluzione di lavaggio in sistemi di bronco-aspirazione a circuito chiuso.

Disponibile in flaconi da 350ml o 550ml.

informazione pubblicitaria rosiglioni.it

SISTEMA MULTISTRATO

PEXAL - MIXAL - THERMOLINE - PEXAL BRASS

BRAVOPRESS - PEXAL EASY - PEXAL TWIST

PEXAL XL

L’avanguardia delle soluzioni multistrato

Sistema per la distribuzione idrica per eccellenza, perfetto sia per Il trasporto di acqua potabile calda e fredda che per gli impianti di riscaldamento e raffrescamento, grazie alla gamma completa di raccordi e diametri.

Ottima flessibilità, notevole stabilità di forma, eccezionale resistenza all’abrasione, alla corrosione ed agli agenti chimici.

Seguici su:

www.valsir.it

In tema di ospedali pediatrici

soluzioni tecniche e architettoniche che risultino (per quanto possibile) tranquillizzanti, accoglienti oltre che diversificate perché rivolte a pazienti che attraversano una fase evolutiva dello sviluppo caratterizzata da diversi livelli di maturità nell’interazione fisica e cognitiva con l’ambiente ospedaliero.

L’Ospedale Isala Meppel, Drenthe, Paesi Bassi

Gli ospedali pediatrici nel nostro Paese non sono molti ed è quindi una bellissima opportunità oltre che una grandissima sfida quando si promuovono iniziative di progettazione per la realizzazione di nuove strutture sanitarie interamente dedicate a bambini (e adolescenti), come nei recenti casi di Genova e Napoli.

Il tema, per un progettista, trovo sia particolarmente affascinante in quanto richiede una notevole competenza tecnica e al contempo una grande sensibilità nel fornire

Il ruolo importantissimo della famiglia richiede lo studio di caratteristiche spaziali e funzionali degli ambienti in grado di adattarsi alla logica del cosiddetto “child-parent” o, più frequentemente, “child-mother system”. In fase di ideazione, “calarsi nei panni” dell’ospite non è cosa semplice: un ambiente piacevole per un adulto può risultare noioso per un bambino o produrre ansia a un adolescente.

Tutti sappiamo benissimo che un ospedale pediatrico deve essere dotato di locali in più per garantire, oltre alla diagnosi e terapia, anche lo svolgimento di attività di distrazione, apprendimento e socializzazione; deve caratterizzarsi per l’aspetto friendly perché ciò che i bambini sperimentano entrando in un ospedale “colorerà” l’impressione del

loro intero soggiorno; richiede una lobby accogliente, in grado di offrire distrazioni positive, ma anche reparti che mettano al centro la famiglia; necessita di allestimenti interni con piante, dipinti, sculture, ausili interattivi quali strumenti di riduzione del senso di isolamento ma anche di stimolo dei sensi visivo, uditivo, tattile e olfattivo. Per fare una sintesi, trovo molto efficace l’espressione usata dall’autore americano Bruce King Komiske in un suo libro sul tema: richiama il concetto di “wow factor” come quella qualità che il progettista deve dare a un ospedale pediatrico perché sia in grado di generare quella sensazione sorprendente di trovarsi in un edificio molto speciale sin dal primo istante. Perché questi non siano solo bei principi ma anche risultati concreti è imprescindibile che tutti (sponsor, pianificatori, progettisti, costruttori) abbiano piena coscienza nel riconoscere che occorrono adeguati programmi funzionali e spaziali oltre che equi finanziamenti.

Direttore Responsabile

Giorgio Albonetti

Direttore Scientifico

Margherita Carabillò

Coordinamento Editoriale

Chiara Scelsi - c.scelsi@lswr.it

Redazione Fabio Chiavieri redazione@progettareperlasanita.it

Comitato scientifico

S. Brusaferro, S. Capolongo, M. Carabillò, Marco Gola, J. Guercini, K. Kob, Maurizio Mauri, F. S. Mennini, C. Nicora, D. Pedrini, G.Polifrone

Comitato di redazione

Architettura: Design LAB, DABC Politecnico di Milano

Impiantistica: Francesco Ruggiero

Information Technoloy: Fabrizio Massimo Ferrara

Innovazione digitale: Paolo Bertini

Organo ufficiale del C.N.E.T.O.: Centro Nazionale per l’Edilizia e la Tecnica Ospedaliera

Organizzazione e management: Federico Lega

Servizi e facility management: Arturo Zenorini

Tecnologie per l’Architettura: Rosa Romano, Maria Chiara Torricelli

Hanno collaborato a questo numero:

S. Alessandrini, S. Cribellati, F. M. Ferrara, M. Gola, F. Lega, M. Lunghi, A. Rebecchi, M. C. Torricelli, Y. Yu, R. Zelatore, A. Zenorini

Stampa & Produzione Antonio Iovene - 3491811231 a.iovene@lswr.it

Pubblicità

Costantino Cialfi c.cialfi@lswr.it Tel. 346 6705086

Archivio immagini Shutterstock

Traffico

Ornella Foletti ornella.foletti@quine.it Tel. 3427968897

Abbonamenti www.quine.it abbonamenti.quine@lswr.it - Tel. 02 864105

Costo copia singola: euro 2,50 abbonamento annuale Italia euro 40,00 abbonamento annuale Europa euro 60,00

Stampa

TIPOLITOGRAFIAPAGANI s.r.l. via Adua, 6 25050 - Passirano - (Brescia) - Italy)

©2023 Quine Business Publisher

Progettare per la sanità www.progettareperlasanita.it

Reg. Trib. Milano n. 767 del 09/11/1998 Iscrizione al ROC n. 12191 del 29.10.2005

Tutti gli articoli pubblicati su Progettare per la sanità sono redatti sotto la responsabilità degli Autori. La pubblicazione o la ristampa degli articoli deve essere autorizzata per iscritto dall’editore. Ai sensi dell’art. 13 del Regolamento Europeo per la Protezione dei Dati Personali 679/2016 di seguito GDPR, i dati di tutti lettori saranno trattati sia manualmente, sia con strumenti informatici e saranno utilizzati per l’invio di questa e di altre pubblicazioni e di materiale informativo e promozionale. Le modalità di trattamento saranno conformi a quanto previsto dagli art. 5-6-7 del GDPR. I dati potranno essere comunicati a soggetti con i quali Quine Srl intrattiene rapporti contrattuali necessari per l’invio delle copie della rivista. Il titolare del trattamento dei dati è Quine Srl, Via Spadolini 7, 20141 Milano, al quale il lettore si potrà rivolgere per chiedere l’aggiornamento, l’integrazione, la cancellazione e ogni altra operazionedi cui agli art. 15-21 del GDPR.

Testata Associata
3 EDITORIALE settembre 2023

Sommario

NO ALL’USO DI COMBUSTIBILI FOSSILI: L’OSPEDALE ISALA MEPPEL

L’ospedale Isala Meppel è un ospedale di emergenza ed è considerato una delle strutture sanitarie più sostenibili, moderne e confortevoli dei Paesi Bassi. Infatti, l’intero ospedale è fuori dalla rete nazionale di approvvigionamento di gas, rendendola la prima struttura sanitaria senza l’uso di combustibili fossili dello Stato di Marco Gola, Yong Yu, Andrea Rebecchi

ARCHITETTURA E TECNOLOGIA DEL NEW CHILDREN’S HOSPITAL DI HELSINKI

Una qualità che è anche misura, cura del dettaglio e attenzione costruttiva. La facciata è una lezione contemporanea di progettazione nel solco della tradizione dell’architettura moderna finlandese, coniugando razionalità costruttiva, sensibilità per l’ambiente e un linguaggio che “acquista calore, ricchezza, cordialità” di Maria

UNA SALA AUTOPTICA A PROVA DI AGENTI PATOGENI

All’Ospedale Policlinico S. Martino di Genova è stata certificata una nuova sala autoptica BSL3 a elevato livello di biosicurezza, a tutela degli operatori e della comunità da possibili patogeni infettivi di Arturo Zenorini

12
20
28 4 SOMMARIO settembre 2023

IL SERVICE DESIGN PER UNA SANITÀ DI VALORE

La funzione delle aziende sanitarie è servire i bisogni della popolazione che tutelano e curano. Per farlo nel modo migliore occorre padroneggiare metodi e strumenti della progettazione del servizio con logiche e strumenti ben sviluppati in ambito d’azienda nel disegno delle modalità di erogazione delle attività sanitarie di Stefano Cribellati, Federico Lega

DEI PLUS: LA BANCA DATI CHE RIVOLUZIONA I PREZZARI DEI

Insieme a Giuseppe Rufo, Direttore Prezzari DEI, abbiamo scoperto tutte le novità e gli utilizzi della nuova banca dati DEI PLUS

A cura della redazione

LA LUCE GIUSTA AL MOMENTO GIUSTO

Parlare di illuminazione nel settore ospedaliero vuol dire più che mai avere la luce giusta, al momento giusto e nel posto giusto tenendo conto delle esigenze di operatori sanitari e pazienti di Margherita Lunghi

DIGITAL INFORMATION SHARING:

A GENOVA UN CASO VIRTUSO

La grande quantità di dati disponibili, la frammentazione degli strumenti di governo e la scarsa integrazione degli stessi costituiscono ad oggi una delle barriere maggiori alla corretta fruibilità delle informazioni e al reale efficientamento dei processi. Vediamo l’esempio evolutivo dell’Ospedale Policlinico San Martino di Genova di Riccardo Zelatore

LE TELEVISITE NELLE COMMISSIONI MEDICO-LEGALI DELL’INPS

All’interno dell’attuale contesto sanitario e normativo, le commissioni medico-legali INPS possono implementare la Telemedicina per l’attività di accertamento, evitando sia il disagio dello spostamento all’interessato, sia il sovraccarico delle strutture sanitarie dell’Istituto stesso di Sergio Alessandrini e Fabrizio Massimo Ferrara

RUBRICHE

Normativa commentata

Le aziende presenti in questo numero

ABB pag. 9

www.new.abb.com

Bft pagg. 11-66

www.bft-automation.com/it

Carlo Bianchi pag. IV cop. www.carlobianchi.com/it/

Faac pagg. 6-27-64

www.faacgroup.com

Georg Fisher pag. 35 www.georgfisher.com

MIGLIORARE LA QUALITÀ DELL’ARIA

NEL RISPETTO DI AMBIENTE PERSONE

Preoccuparsi della qualità dell’aria negli ambienti indoor è fondamentale per la salute delle persone, a maggior ragione nelle strutture sanitarie dove il rischio di contrarre malattie da virus e batteri è potenzialmente più alto. Ne abbiamo parlato in esclusiva con Stefano Guantieri Direttore generale di VORTICE e Presidente di VORTICE INDUSTRIAL e Roberto Ottaviani Direttore generale di VORTICE INDUSTRIAL di Fabio Chiavieri

UN MODO DI VIVERE MIGLIORE E ACCESSIBILE A TUTTI

Il concetto di sostenibilità nella sua accezione più ampia coinvolge aspetti di carattere sociale, ambientale e climatico che sono propedeutici a un nuovo modo di consumare e vivere da parte di tutti i cittadini. Da questo presupposto, nasce l’idea di “sviluppo sostenibile” che sostiene l’attività di Bft. Ne abbiamo parlato con Enrico Lombardo, Distribution Italy Director dell’azienda di Fabio Chiavieri

GE Health Care pag. 8

www.gehealthcare.it

Hiteco pag. 7

www.hiteco.it

Novacolor pag. 10

www.novacolor.it

Rosiglioni II cop. – pag. 1

www.rosiglioni.it

RX Italy pag. 19

www.rxglobal.com

Valsir pag. 2

www.valsir.it

36 40
50 66 54
42
58
News 6
5 SOMMARIO settembre 2023

INGRESSI AUTOMATICI PER LA SANITÀ

Quando si può parlare di un “ingresso automatico sicuro”? Quali sono i requisiti che garantiscono l’incolumità degli utenti? Queste domande sicuramente non sono poste gli utenti che transitano attraverso un ingresso automatico di una struttura sanitaria pubblica o privata ma dovrebbero essere ben presenti per chi assicura il mantenimento e gli adeguamenti degli impianti, operante con funzioni di HSE, Facility o Property & Real Estate, affidando i servizi manutentivi solo ad operatori competenti che pongano la sicurezza al primo posto, soprattutto in contesti che accolgono anziani, bambini, persone malferme e disabili, dove i requisiti normativi sono ancora più stringenti.

FAAC da sempre sviluppa soluzioni per l’automazione e da quasi 30 anni opera anche nel settore “porte e ingressi automatici”, proponendo sia soluzioni rispondenti alle normative cogenti con forti innovazioni volte al risparmio energetico, altresì riconosciute da Facciamo un affondo normativo? Dal 2013, il settore delle porte pedonali motorizzate è governato dalla norma EN16005 che introduce cambiamenti radicali nell’approccio all’analisi dei rischi di un ingresso automatico. Alcune novità sostanziali riguardano gli aspetti di sicurezza, come la limitazione della forza di spinta in chiusura e/o la protezione tramite coppie di fotocellule non più ammissibile, comportando il passaggio obbligato a sensori di sicurezza EN 12978 che rilevino movimento e presenza sul varco, inibendo la richiusura. La EN16005 prevede inoltre che i sensori dedicati alla sicurezza della macchina siano monitorati, nuovi requisiti per la valutazione dei rischi sui bordi e sui franchi di sicurezza, e nuovi requisiti per le porte automatiche per le vie di fuga, prevedendo anche l’adozione di porte automatiche ridondanti Peraltro, la EN16005 si inserisce in un contesto di riferimenti che già normavano il settore, in quanto un ingresso automatico ricade già nel contesto applicativo della Direttiva Macchine 89/392, la quale prevede che il fabbricante della macchina realizzi l’Analisi dei Rischi e identifichi le soluzioni adottate per la loro riduzione, il

Registro di Manutenzione da consegnare in copia all’utilizzatore/ proprietario della macchina, emettere la Dichiarazione CE di conformità e apporre sulla macchina la marcatura CE

In aggiunta, il Testo Unico sulla Sicurezza (Dlgs. 106) del 2009, prescrive un “obbligo di rispondenza delle attrezzature di lavoro a requisiti generali di sicurezza”. In pratica prevede (capo III, art.15, punto 1, lett.Z) l’”obbligatorietà della manutenzione” delle macchine secondo quanto previsto dal costruttore e dal relativo piano di manutenzione, e che essa sia a carico del datore di lavoro, che ne diviene responsabile; da qui nasce l’esigenza di avvalersi di professionisti esterni qualificati. Inoltre, il Testo Unico prescrive (capo III, art.15, punto 1, lett. C) l’”eliminazione dei rischi e, ove ciò non sia possibile, la riduzione dei rischi al minimo in relazione alle conoscenze acquisite in base al progresso tecnico”; nella sostanza, il Testo Unico impone un costante monitoraggio ed adeguamento degli impianti esistenti.

In definitiva, la manutenzione ancorché obbligatoria, offre l’opportunità di valutare lo stato degli impianti e identificare le opportune azioni correttive, anche tramite piani di adeguamento/svecchiamento di ingressi automatici fuori norma, sostituendoli con soluzioni innovative come AIRSLIDE, che assicurano un contributo tangibile per l’efficientamento energetico e che possono rientrare negli interventi complessivi coperti dalle detrazioni fiscali attualmente disponibili.

settembre 2023 6 NEWS

L’IMPATTO DELLA TELEPSICHIATRIA IN LOMBARDIA

DURANTE LA PANDEMIA

I ricercatori del dipartimento di Scienze della Salute dell’Università Statale di Milano, in collaborazione con i dipartimenti di Salute Mentale e delle Dipendenze dell’ASST Santi Paolo e Carlo di Milano e dell’ASST di Lodi, e con la Struttura Salute Mentale, Dipendenze, Disabilità e Sanità Penitenziaria della Regione Lombardia, hanno pubblicato uno studio su Nature Mental Health sull’impatto di strumenti di telepsichiatria. Al progetto hanno collaborato anche docenti di psichiatria dell’Università di Oxford e dei tre poli didattici cittadini della facoltà di Medicina e Chirurgia dell’Università Statale di Milano. È stata utilizzata la banca dati di Regione Lombardia dei servizi di salute mentale territoriali per descrivere la trasformazione degli interventi durante il primo anno pandemico, compresa la progressiva implementazione della telepsichiatria. Sebbene le implicazioni per la salute mentale della crisi pandemica siano oggetto di innumerevoli studi, non era infatti ad oggi disponibile una lettura epidemiologica integrata sulla risposta di un sistema sanitario pubblico esteso come quello lombardo, che copre un bacino di utenza di 10 milioni circa di persone mediante il lavoro di 36 dipartimenti, distribuiti su 12 province. Rispetto all’anno precedente, nel primo semestre del 2020 si registrava una riduzione nel numero complessivo di prestazioni, e le province con un impatto precoce e maggiore della pandemia mostravano anche un maggior decremento del numero di interventi psichiatrici. Il numero di prestazioni tornava però rapidamente sovrapponibile a quello dell’anno precedente nel secondo semestre 2020, quando

si osservava una progressiva integrazione della telepsichiatria nella pratica clinica (sino ad un intervento ogni quattro negli ultimi mesi dell’anno). Questi interventi erano relativamente più utilizzati con utenti donne per tutte le fasce d’età e le diagnosi; in generale, si evidenziava poi una progressiva diminuzione degli interventi effettuati da remoto all’aumentare dell’età, con un nuovo aumento oltre i 65 anni. La telepsichiatria era relativamente più utilizzata in gruppi di utenti con un impatto complessivo minore sulle risorse dei servizi, quali disturbi alimentari ed ossessivo-compulsivo, meno in quelli con maggiore impatto, quali ad esempio i disturbi dello spettro schizofrenico.

I dati internazionali disponibili ad oggi provenivano da singoli siti o da collaborazioni di piccoli gruppi nel contesto di reti assistenziali meno integrate. Oltre a fornire informazioni specifiche sulla risposta dei servizi di salute mentale all’emergenza pandemica, lo studio evidenzia i vantaggi in termini di ricerca dei registri italiani per la salute mentale, che riflettono l’attività di un sistema sanitario pubblico estesamente distribuito ed accessibile, con una rete di servizi ampiamente sovrapponibili tra i centri. Nonostante l’emergenza relativa alla salute mentale catalizzata dalla pandemia, l’Italia continua infatti ad essere uno dei paesi G7 con minori risorse economiche destinate al settore. La mole di interventi annuali erogati evidenziata dallo studio (circa 1,5 milioni) sembra giustificare un congruo investimento sulle nuove tecnologie, sulla formazione dei lavoratori e sulla ricerca epidemiologica su vasta scala relativa ad efficacia degli interventi e soddisfazione di operatori e utenti.

GESTIONE EFFICIENTE DELLA DISTRIBUZIONE DI TECNOLOGIE MEDICALI

Ottenere una gestione più efficiente del sistema di approvvigionamento, del controllo di magazzino e dei sistemi di vendita, e più in generale una ERP più funzionale. Queste le necessità che hanno portato il Gruppo GADA a rivolgersi a Hiteco, società del Competence Center Business Solutions del Gruppo Impresoft.

Il Gruppo GADA rappresenta da oltre 40 anni un punto di riferimento per ospedali, cliniche, poli universitari e centrali di acquisto per quanto riguarda la distribuzione di tecnologie medicali innovative per conto dei più importanti produttori mondiali e per l’erogazione di servizi specialistici. Nello specifico, ad oggi conta più di 500 ospedali serviti su tutto il territorio italiano e oltre 50.000 spedizioni annue per più di 5.000 prodotti. Il Gruppo collabora inoltre con diverse realtà, startup e non solo, e per loro sviluppa piani di lancio delle soluzioni e terapie innovative.

Dati i volumi sempre più elevati di spedizioni e prodotti gestiti, il Gruppo GADA si è rivolto a Hiteco con la necessità di implementare una nuova supply chain che efficientasse le operazioni di approvvigionamento, stoccaggio e vendita e le rendesse più dinamiche e immediate. La soluzione offerta dall’azienda del Gruppo Impresoft ha rinnovato completamente l’organizzazione della logistica di GADA, integrandola con SAP Business One. I flussi logistici, sia attivi che passivi, sono infatti oggi gestiti tramite una piattaforma comune, che consente di consolidare il database aziendale rendendolo più fruibile. Grazie a questa soluzione e al nuovo modello organizzativo implementato, il Gruppo Gada ha immediatamente osservato un’importante crescita sia in termini di utenti che di risorse, servizi e fatturato.

settembre 2023 7 NEWS

IMMAGINARE UNA SALUTE MIGLIORE: UN’ESPERIENZA SANITARIA PIÙ UMANA E FLESSIBILE

Uno studio commissionato da GE HealthCare, azienda leader nella tecnologia medica, nella diagnostica farmaceutica e nelle soluzioni digitali, dal titolo Reimagining Better Health (Immaginare una salute migliore), identifica prospettive ed esigenze di chi è al centro dell›assistenza sanitaria: pazienti e medici. Lo studio, condotto su un campione di 5.500 pazienti e rappresentanti di associazioni dei pazienti e 2.000 medici in 8 diversi Paesi, ha lo scopo di contribuire a delineare un percorso da seguire quando fattori di stress come il burnout, la mancanza di personale e il numero di pazienti arretrati mettono a dura prova la resilienza dei sistemi sanitari.

Ai partecipanti all’indagine è stato chiesto di rispondere a domande relative al sistema sanitario nel suo complesso, sulla base delle loro esperienze e osservazioni personali.

I risultati rivelano che molti dei fattori di sviluppo in grado di far progredire il sistema rappresentano, al contempo, una sfida per pazienti e medici. In particolare, lo studio ha rilevato che la poca fiducia nell’IA, la scarsa interoperabilità tecnologica all’interno del sistema sanitario, il burnout della forza lavoro, la frammentazione della collaborazione sanitaria e l’accessibilità alle cure sono alcuni dei punti dolenti.

Le potenzialità dell’Intelligenza Artificiale unito a scarsa fiducia

Oggi le tecnologie di Intelligenza Artificiale in ambito sanitario sono progettate per migliorare l’esperienza e i risultati dei pazienti, automatizzare le attività e aumentare la produttività. Sebbene la maggioranza dei medici intervistati ritenga che l’IA possa supportare il processo decisionale clinico (61%), consenta interventi sanitari più rapidi (54%) e contribuisca a migliorare l’efficienza operativa (55%), lo studio mostra che la diffidenza e lo scetticismo nei confronti dell’IA in ambito medico - senza riferimento a prodotti specificisono prevalenti tra tutti gli stakeholder.

Solo il 42% dei medici ritiene che i dati dell’IA siano affidabili (negli Stati Uniti la percentuale scende al 26%). I medici con più di 16 anni di esperienza sono ancora più scettici nei confronti dell’IA, con solo il 33% che si fida della qualità dei dati. Inoltre, i medici ritengono che, sebbene l’IA possa contribuire a ridurre le disparità di assistenza (54%), la tecnologia è anche soggetta a “bias”, pregiudizi incorporati (44%).

Scarsa fiducia nei nuovi modelli di erogazione delle cure

I pazienti indicano come priorità assoluta per il futuro, ancor prima delle soluzioni tecnologiche che consentono di indivi-

duare più rapidamente potenziali problemi di salute, una mag-

giore flessibilità nelle modalità, nei luoghi e nei tempi di erogazione dei servizi sanitari; tuttavia, la flessibilità dell’assistenza distribuita al di fuori delle mura degli ospedali può creare delle difficoltà.

La metà dei medici non si sente a proprio agio nel fornire assistenza clinica al di fuori dell’ambiente clinico tradizionale (50%). Anche i pazienti sono apprensivi nei confronti dei nuovi metodi di erogazione delle cure e non si sentono del tutto a loro agio con i test a domicilio o fuori dalla clinica (62%) senza supervisione. Inoltre, per i pazienti è importante chi fornisce le cure. Mentre la maggior parte dei pazienti (67%) ha un alto livello di fiducia nel proprio medico di famiglia, i livelli di fiducia scendono quando si considerano altri professionisti della sanità. Poco più della metà dei pazienti (52%) non ha fiducia negli operatori sanitari che non sono medici o infermieri ospedalieri per quanto riguarda i consigli sanitari appropriati.

Connettività in un sistema frammentato

Parte di questo disagio nei confronti dei nuovi modelli di erogazione delle cure può essere attribuito alla scarsa interoperabilità tecnologica del sistema sanitario. Poco più della metà dei medici afferma che le tecnologie mediche si integrano perfettamente tra loro (51%) e sono facili da usare e intuitive (53%). Sebbene i pazienti e i medici desiderino che i dati sanitari rilevanti dei pazienti siano disponibili tra i sistemi e le piattaforme, questo non è stato pienamente realizzato. Il 41% dei

settembre 2023 8 NEWS

medici non è convinto di avere accesso tempestivo a cartelle cliniche elettroniche affidabili e circa un terzo dei pazienti (35%) teme che i medici che li hanno in cura non abbiano accesso ai loro dati sanitari rilevanti.

La forza lavoro è caratterizzata dal burnout

Secondo lo studio, un impressionante 42% dei medici intervistati ha riferito che sta considerando attivamente di lasciare il settore sanitario. Inoltre, il 39% non prova un senso di orgoglio per la propria professione.

In tutti gli otto Paesi esaminati, la retribuzione inadeguata e lo scarso equilibrio tra lavoro e vita privata sono stati tra i motivi principali citati per abbandonare il lavoro. Inoltre, il 47% dei medici ha dichiarato di non sentirsi pienamente supportato dalla leadership. I pazienti sentono l’impatto del burnout dei medici, con il 43% che afferma di non sentirsi ascoltato dai medici e meno della metà (42%) che trova che i medici siano in grado di empatizzare con la loro situazione personale e con il modo in cui questa influisce sul loro trattamento.

Un obiettivo comune

In termini di visione di ciò che ci aspetta, il 99% dei medici concorda (completamente o in parte) con la definizione di un futuro in cui: i pazienti e chi li cura sono più strettamente collegati tra loro grazie alle soluzioni tecnologiche; l’assistenza ai pazienti e le cure mediche si svolgono sia all’interno che all’esterno degli ambienti clinici tradizionali, ad esempio nelle case dei pazienti; l’ecosistema sanitario viene ampliato per includere una gamma più varia di operatori sanitari, alcuni dei quali potrebbero non essere presenti oggi. Dallo studio Reimagining Better Health emerge un obiettivo chiaro: un sistema sanitario più umano e flessibile. GE HealthCare ne ha condiviso le principali evidenze per incoraggiare la discussione, la collaborazione e le azioni tra le parti interessate del settore: i pazienti, l’ampio spettro degli operatori sanitari, i leader del settore, i rappresentanti istituzionali, il settore tecnologico e l’opinione pubblica. Tutti sono invitati a considerare il proprio ruolo nel superare le barriere, in modo che tutti possano beneficiare di cure migliori.

SISTEMA DI CHIAMATA PERSONALE E SEGNALAZIONE AL CIVITAS VITAE DI PADOVA

La Civitas Vitae di Padova è una Residenza della Fondazione Opera Immacolata Concezione Onlus che rappresenta un esempio di infrastruttura di coesione sociale unico in Italia.

La gestione si basa su modello urbanistico-assistenziale messo a punto da Angelo Ferro, presidente della Fondazione fino al 2016, e a cui è stata intitolata questa struttura. L’idea alla base è stata quella raccogliere in un’unica area, all’interno di un polmone verde, un insieme di attività al servizio delle persone fragili, con particolare riferimento agli anziani, una città della vita (in la-

tino Civitas Vitae). Da questa visione è nata la struttura sociosanitaria di Padova a cui, proprio per creare un polo di coesione sociale secondo la visione che ne ha guidato lo sviluppo, sono affiancate un Residence per persone autosufficienti, un centro per l’infanzia, un palasport dedicato agli atleti diversamente abili, una palestra di riabilitazione, un campo di bocce e una pista didattica per l’educazione stradale.

Tutte le strutture all’interno della Civitas Vitae sono circondate da un ampio parco verde e sono collegate da un tunnel sot-

settembre 2023 9 NEWS
█ L’ingresso della Civitas Vitae “Angelo Ferro” a Padova █ Pannello ABB Clinos installato nelle camere del nuovo reparto della RSA

terraneo che permette agli operatori e agli Ospiti di spostarsi comodamente al riparo dal caldo o dalle intemperie.

La Fondazione ha da sempre posto grande attenzione al mantenimento delle proprie strutture al massimo grado di efficienza e opera continuamente per la ristrutturazione e ammodernamento degli impianti. Recentemente è stato completamente ristrutturato e ampliato un reparto della RSA, dedicato agli ospiti affetti da decadimento cognitivo e denominato “Borgo Nuovi Passi”, inaugurato a maggio 2023. Per l’installazione del sistema di chiamata personale e segnalazione in questo reparto e in tutti gli altri nuclei della Residenza Pio XII, è stato scelto il sistema Clinos di ABB.

Tra le principali caratteristiche che fanno di Clinos un sistema ideale per la gestione delle chiamate in questo tipo di strutture si possono citare:

█ segnalazione acustica- visiva delle chiamate a prova di errore;

█ monitoraggio continuo delle chiamate paziente con visualizzazione delle chiamate prioritarie;

█ possibilità di effettuare 4 tipi di chiamate diverse.

PITTURE E VERNICI GREEN

Novacolor è stato il primo brand in Italia, nel settore delle pitture e vernici per l’edilizia professionale, a ricevere, per la linea MATmotion e Puro_VOC Free, la Eurofins Indoor Air Comfort Gold, certificazione che attesta il rispetto di precisi requisiti in merito alle emissioni di VOC, garantendo un ambiente interno salubre. Ma utilizzare materie prime sostenibili non significa dover rinunciare alla qualità. Oggi le nuove tecnologie non solo permettono di ottenere pregio estetico e durabilità del prodotto, ma permettono di migliorare queste doti.

La connessione con la sostenibilità, che trasuda dalla storia di Novacolor, trova oggi visibilità nell’ulteriore acquisizione della Indoor Air Comfort Gold per tutti i rivestimenti in polvere della gamma Archi+, le finiture a calce della linea Minerals ed i primer Novacolor. I prodotti Novacolor a godere oggi della certificazione sono molti anche perché in tutto il mondo sempre più consumatori hanno ormai preso coscienza di quanto sia importante la qualità dell’aria all’interno delle abitazioni, per questo motivo scelgono sempre più prodotti eco-compatibili. Questo speciale attestato combina tutte le normative europee in materia di emissioni di VOC e quasi tutte le etichette facoltative sulle emissioni di VOC, includendo non solo test e screening per migliaia di prodotti chimici ma anche un programma interno di qualità, volto a garantire che i prodotti a bassa emissione siano prodotti ciclicamente. Ecco perché l’azienda crea prodotti che soddisfano le esigenze e le aspettative dei clienti senza intacca-

Nell’offerta Clinos sono disponibili diversi tipi di pulsanti di chiamata e nella RSA di Padova è stato installato quello comunemente più utilizzato per la sua estrema semplicità di utilizzo, fondamentale in presenza di ospiti anziani. La tastiera pensile installata è quella a comando semplice dove il pulsante di chiamata di grandi dimensioni e di colore rosso è installato su un comando ergonomico e robusto. Questo tipo di dispositivo è disponibile in numerose soluzioni di installazione con un’ampia gamma di prese e anche diversi tipi di logica integrata, per soddisfare le diverse esigenze delle strutture che richiedono l’installazione di questo tipo di sistemi. Sono infatti disponibili diversi tipi di agganci per qualsiasi soluzione (7 PIN, A-coded, autosgancio) e diverse metrature per il cavo di collegamento. Un altro elemento fondamentale che deve essere presente nelle camere per questo tipo di impianti è il pannello attraverso cui il personale attiva il segnale di chiamata. Il dispositivo Clinos installato a Padova, dotato di interfaccia touch screen, consente di attivare diversi tipi di chiamata (pulsante di chiamata normale, chiamata medico ecc.), tutti contraddistinti da un colore differenti, per l’immediata identificazione della tipologia da selezionare.

re il benessere delle generazioni presenti e future permettendo al consumatore di cambiare le abitudini di acquisto proponendo materiali green e tracciando una strada percorribile da chi intendesse modificare approccio nel settore della produzione di vernici e pitture decorative.

Bello e sostenibile sono concetti sinergici, condivisi e condivisibili per aiutare il settore e l’ambiente a raggiungere il meglio a favore di uno stile di vita adatto al futuro. L’acquisizione della Indoor Air Comfort Gold per nuove categorie di prodotto è la testimonianza che per Novacolor questo futuro è già iniziato.

settembre 2023 10 NEWS

DISSUASORI DI SOSTA

E PASSAGGIO PER AMBIENTI OSPEDALIERI E SANITARI

Bft propone una gamma di soluzioni sicure e innovative con caratteristiche uniche ed esclusive. In particolare, le soluzioni che Bft ha ideato nell’ambito del controllo degli accessi veicolari si adattano ad ogni contesto installativo, sono affidabili e pensate per durare nel tempo.

La gestione degli accessi veicolari e della sosta degli automezzi nelle strutture sanitarie è un aspetto critico sia per gli operatori sanitari che per i pazienti ed i visitatori.

In questo senso, la gamma di dissuasori di passaggio e di sosta di Bft risponde alle necessità legate alla gestione degli accessi veicolari nelle aree pedonali, nei parcheggi e nelle aree dedicate ai mezzi di soccorso per regolamentarne la sosta o il passaggio.

I dissuasori Bft, in particolare, sono di 3 tipi: fissi, per interdire l’accesso a lungo termine, semiautomatici e quindi attivabili manualmente tramite una chiave dedicata che movimenta meccanicamente una molla a gas e automatici, in grado di abbassarsi ed alzarsi tramite tecnologia elettromeccanica o oleodinamica.

La maggior parte dei dissuasori si configura come cilindri metallici, che vengono installati sotto al manto stradale e alzati quando è necessario impedire l’accesso. Ciascun dissuasore è dotato di una pompa oleodinamica che, anche in caso di malfunzionamento o blackout, garantisce la chiusura o l’apertura dei varchi, a seconda delle esigenze del momento.

Oltre alla funzione di gestione degli accessi, i dissuasori Bft rispondono all’esigenza di protezione che diventa prioritaria nelle aree pedonali e in quelle dedicate ai mezzi di soccorso. I dissuasori Bft, infatti, garantiscono velocità di azionamento e massima resistenza all’impatto in situazioni di emergenza.

La resistenza all’impatto è uno dei parametri principali su cui si valuta l’intera categoria di prodotti: particolarmente importante in contesti pubblici e privati, questa caratteristica deve garantire che il dissuasore di sosta e parcheggio continui a svolgere la propria funzione anche in caso di urto.

Nello specifico caso, i dissuasori anti-terrorismo di Bft si dimostrano di estrema efficacia in luoghi ad elevato rischio, poiché riescono a fermare un veicolo di 7,5 tonnellate lanciato ad una velocità di 80 km/h. Da non sottovalutare inoltre la capacità dei dissuasori di integrarsi perfettamente nell’ambiente in cui vengono installati lasciando inalterato l’aspetto estetico.

L’operatività dei dissuasori di sosta e passaggio è assicurata da tecnologie esclusive che ne consentono il controllo anche da remoto, agevolando così il lavoro di chi si occupa di proteggere gli edifici e la gestione dell’accesso in aree riservate.

La protezione degli edifici, infatti, può essere gestita direttamente da control room integrate e connesse.

Per informazioni:

www.bft-automation.com

settembre 2023 11 PUBBLIREDAZIONALE

No all’uso di combustibili fossili: l’Ospedale Isala Meppel

L’ospedale Isala Meppel è un ospedale di emergenza ed è considerato una delle strutture sanitarie più sostenibili, moderne e confortevoli dei Paesi Bassi. Infatti, l’intero ospedale

è fuori dalla rete nazionale di approvvigionamento di gas, rendendola la prima struttura sanitaria senza l’uso di combustibili fossili dello stato olandese

12 ARCHITETTURA settembre 2023
di Marco Gola, Yong Yu e Andrea Rebecchi

DATI GENERALI

Anno di progettazione

2017

Anni di realizzazione 2020-2021

Superficie lorda di pavimento 23.500 mq

Volume complessivo 10.000 mc

Costo totale 55.000.000 €

Luogo Meppel, Drenthe, Paesi Bassi

General contractor

Trebbe, Dura Vermeer & ENGIE

Committente Isala Klinieken & Zorggroep Noorderboog

Progetto architettonico Vakwerk Architecten

Progetto impiantistico Deerns

Consulenti Kragten (progetto delle aree esterne) e Basalt (componente finanziaria)

13 ARCHITETTURA
█ Ospedale Isala Diaconessenhuis. © Egbert de Boer, su gentile concessione di Vakwerk Architecten settembre 2023

INQUADRAMENTO E CONCEPT PROGETTUALE

L’ospedale Isala Diaconessenhuis è situato al confine orientale del comune di Meppel, una piccola città a Nord-Est dell’Olanda dove incontra la Reestdal, una valle rurale caratterizzata da prati, campi, brughiere, foreste, tenute e fattorie. Rispetto al contesto rurale, il nuovo ospedale è un complesso di grandi dimensioni e ospita 180 posti letto.

Per connettersi al meglio con il contesto esistente, si è scelto di progettare un edificio più basso con la maggior parte delle funzioni al piano terra e due volumi compatti posti al di sopra. L’edificio può essere immaginato come un paesaggio elevato, poiché fa riferimento ai secolari Drentse esgehuchten, cioè piccoli villaggi sorti su terreni più elevati. Laddove un tempo questi “villaggi” fornivano protezione contro le inondazioni temporanee, il paesaggio del tetto rialzato ora offre “protezione” sotto forma di assistenza sanitaria.

È risaputo che l›assistenza sanitaria nei Paesi Bassi è fornita da medici indipendenti e ospedali privati senza scopo di lucro. Non si tratta di un sistema sanitario particolarmente innovativo o diverso rispetto ad altre nazioni, ma consente la realizzazione di strutture all’avanguardia e la qualità dell’Isala Meppel – dal contesto in cui è inserito fino ai materiali di pregio selezionati per i suoi interni – indica che i Paesi Bassi hanno un sistema sanitario competitivo in cui ambienti clinici attraenti e ben gestiti possono fungere come elemento chiave per i cittadini.

Con questo nuovo intervento Vakwerk Architecten ha realizzato un notevole valore aggiunto su più fronti per la comunità locale: in termini sociali è stato realizzato un ospedale che mette al centro l’utente e la natura; in termini funzionali è stato garantito un progetto con un’elevata ottimizzazione dei flussi; ed infine in termini culturali, è stato realizzando un edificio che risponde agli usi e costumi della regione di Meppel, dove alcune persone infatti si presentano ancora indossando abiti e zoccoli tradizionali. Il brief di progettazione prevedeva un ospedale completo di 23.500 mq con un centro di riabilitazione integrato di circa 5.000 mq, che dovevano essere integrati nel paesaggio circostante. L’obiettivo che si sono posti i progettisti è quello di un ospedale che trascende lo stereotipo dell’ospedale tradizionale; infatti, è stato adottato un approccio olistico con l’intento di creare un ambiente atto a contribuire attivamente al benessere degli utenti. I principi su cui si è basato il progetto sono la sostenibilità, l’igiene e comfort degli ambienti, e un uso flessibile dello spazio. Il nuovo design è stato ispirato da un vecchio insediamento nel Reest, l’area in cui si trova l’ospedale. Il verde intorno all’edificio si abbina alla riserva naturale circostante Het Reestdal a cui si aggiunge anche l’edificio stesso che si integra con la scelta dei materiali di finitura. L’impatto dell’ospedale è chiaramente visibile entrando nell’edificio. Come segnalano i responsabili della struttura sanitaria, i pazienti e visitatori si sentono subito a casa, sono più rilassati e

riescono a orientarsi più facilmente. I pazienti ricoverati per periodi più lunghi hanno camere che si affacciano sull’ambiente naturale, con le cicogne che nidificano proprio davanti alle loro finestre. L’atmosfera familiare stimola i pazienti ad alzarsi dal letto, interagire nei living space o addirittura uscire per una breve passeggiata. Questi piccoli elementi possono contribuire a migliorare il tasso di recupero dei pazienti.

Grazie all’elevata presenza di luce naturale, ai costanti affacci sulle aree esterne, gli stessi elementi naturali che costituiscono dei landmark per facilitare il wayfinding e una scelta accurata di texture e materiali, l’edificio assomiglia ad una struttura sociosanitaria piuttosto che ad un ospedale. Come alcuni referenti della struttura ospedaliera segnalano, è un edificio che cambia completamente l’idea e la percezione di un ospedale, sia per i suoi pazienti che per gli operatori sanitari che vi lavorano. E ciò corrisponde a quello che era il motto che i progettisti aspiravano a offrire: un ambiente curativo che stimoli vitalità, salute e movimento.

Infine, il bando prevedeva un budget molto limitato ed è oggettivo che la scelta di sviluppare un edificio più esteso con corti interne comporti un costo differente rispetto ad uno compatto. Per tale motivo i progettisti hanno realizzato un progetto semplice con la scelta di materiali di materiali di finitura ordinari, concentrandosi molto sulle sale d’attesa e gli spazi comuni, che risultano essere gli spazi più vissuti dalla comunità.

PROGETTO FUNZIONALE

Nonostante l’ampia presenza di servizi, l’edificio risulta comunque a dimensione dell’utente: accogliente, coerente e funzionale.

I progettisti hanno organizzato workshop, diversi gruppi di lavoro e incontri con gli operatori sanitari e tutto ciò ha contribuito a ottimizzare i flussi di lavoro e a dare vita a un edificio altamente efficiente. L’obiettivo principale era quello di creare un ambiente di cura che stimolasse la vitalità, la salute e il movimento.

I punti di ingresso sono indicati da tagli presenti in copertura: quello principale, a sud, accentuato da una lunga tettoia, è riservato ai degenti; l’altro, a est, è dove sono raggruppati gli ingressi per i pazienti di emergenza, il personale e l’area per il carico e scarico delle attrezzature. In aggiunta, per consentire alla luce del giorno di penetrare nella pianta profonda, i progettisti hanno praticato sei incisioni nel tetto per creare cortili vetrati, attorno ai quali sono disposti la maggior parte degli spazi di attesa.

Tutto il progetto sanitario funzionale si basa su un concetto pragmatico di flusso degli utenti con la separazione tra il piano terra e le componenti sopraelevate dell’edificio con una struttura in cemento armato; in tale maniera si crea una netta divisione tra l’area outpatient (ambulatori) e quella inpatient (degenze). Così solo i pazienti in caso di ricovero devono salire ai piani superiori.

14 ARCHITETTURA settembre 2023

Come segnalano i progettisti, per la definizione del progetto ottimale, al personale è stato concesso un ampio margine di manovra per aiutare a determinare il progetto. I progettisti hanno condotto diversi incontri in cui il personale ha spiegato le relazioni funzionali e spaziali, e dove localizzare nello specifico l’area diagnostica.

In aggiunta, prima della costruzione, il team di progettazione ha testato il percorso del personale e dei pazienti attraverso un modello 1:1 del piano terra in un enorme capannone. Questo processo ha permesso di dimostrare il corretto funzionamento della struttura a cui sono stati smussati gli angoli per consentire una manovrabilità più semplice dei letti ospedalieri. Nello specifico il progetto funzionale si struttura nella seguente maniera:

█ piano terra: aree di accoglienza, aree ambulatoriali, il pronto soccorso, il blocco operatorio e l’area diagnostica, nonché tutti gli spazi relativi ai servizi generali;

█ piano primo: amministrative e direzionali, con la presenza anche di alcuni spazi ambulatoriali, in caso di necessità;

█ piano secondo: degenze ordinarie e specialistiche (ortopedia, psichiatria, ecc.), e un’area riabilitativa;

█ piano terzo: degenze ordinarie;

█ in copertura sono presenti spazi relativi alle componenti tecnologiche.

L’ospedale non presenta piani interrati e l’area tecnologica è un volume a parte in prossimità dell’edificio. Inoltre, come si può osservare nei piani superiori, le dimensioni dei due volumi che si elevano, hanno dimensioni e altezze differenti.

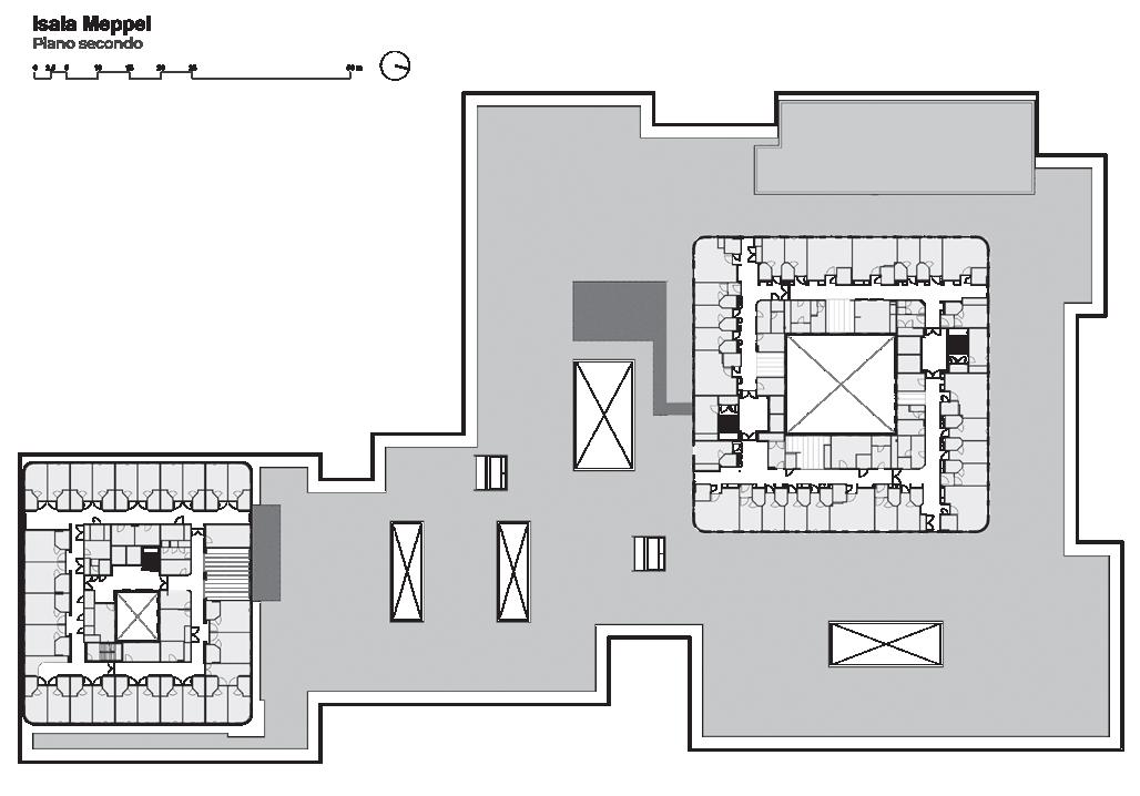
Ogni piano di ciascun blocco contiene 60 posti letto, disposti attorno al perimetro della main street, con camere doppie e triple alternate a singole. Al centro di questi piani ci sono servizi condivisi, come cucine, magazzini e un soggiorno/sala TV comune.

15 ARCHITETTURA settembre 2023
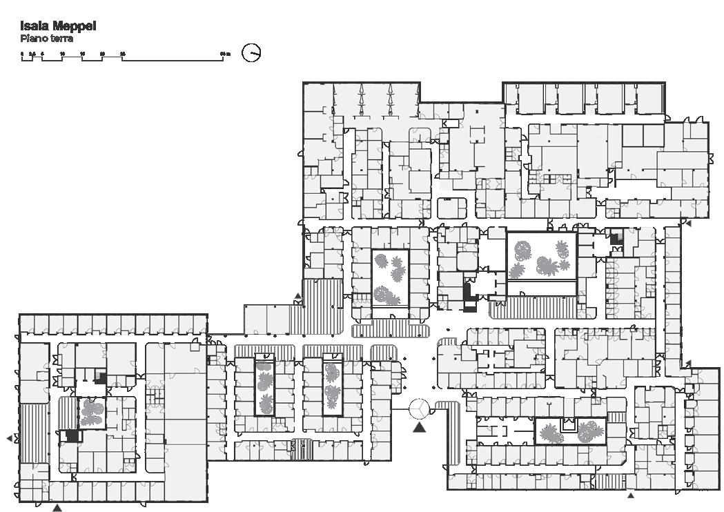
█ Pianta del piano terra. © Vakwerk Architecten.

Ogni piano è identico agli altri in termini di locali e attrezzature, pertanto, il personale infermieristico può lavorare in modo efficiente ovunque si trovi.

La tipologia distributiva in generale è quella a corpo triplo, mentre il corpo quintuplo è preponderante ove sono presenti le funzioni più complesse al piano terra.

█ Pianta del piano secondo. © Vakwerk Architecten. █ Sezione orizzontale dell’ospedale. © Vakwerk Architecten.
16 ARCHITETTURA settembre 2023

E come si può osservare dal progetto funzionale, il percorso del pubblico è piuttosto compatto al piano terra.

Le aree di attesa e/o i soggiorni sono sempre vicine alle facciate, nonché ogni percorso presenta alcuni punti strategici che hanno contatto con il paesaggio circostante o sui patii con finestre a tutta altezza.

La peculiarità del progetto è quello di prevedere alcuni spazi speciali con un percorso di movimento progettato per consentire ai pazienti di sperimentare il mondo al di là del loro letto. Anche per gli interventi chirurgici, i pazienti raggiungono la sala operatoria a piedi, dopodiché possono rilassarsi nella loro stanza di trattamento circondati dalla splendida natura della valle di Reest

ASPETTI QUALITATIVI E L’ASSENZA DELLA RECEPTION

È stata prestata particolare attenzione a sfruttare il più possibile le qualità del contesto naturale in molti modi creativi. Con il suo orientamento prevalentemente orizzontale, l›uso di uno schema di colori modesto e l›implementazione di un paesaggio verde sul tetto, l›ospedale è perfettamente inserito nell›ambiente naturale circostante. In aggiunta è molto particolare come è stato ideato l’ingresso degli utenti: al piano terra si viene accolti dalla hall assente del solito bancone e/o infopoint. L’utente è direttamente immerso nell’atrio che dà avvio alla main street. È lì presente giusto un membro dello staff in piedi, a disposizione, per aiutare chi ne avesse bisogno. Per garantire una transizione senza soluzione di continuità tra l’ambiente naturale e l’interno, Vakwerk Architecten ha collaborato con i designer di Komovo per creare un’identità spaziale adeguata: infatti il sistema di wayfinding si basa su intarsi nel pavimento – ritagli in ottone a forma di foglie dei comuni alberi locali, posizionate come se fossero trasportate dal vento – che guidano l’utente direttamente ai punti di check-in computerizzati e alla sala di attesa. A ciò si aggiungono animali seguono i movimenti dei visitatori all’ingresso attraverso una proiezione interattiva a parete e varie stampe di piante e animali adornano pareti, porte, finestre e tende.

█ Sala di attesa. © Melanie Samat, su gentile concessione di Vakwerk Architecten █ Corridoio interno delle aree funzionali. © Leon vd Velden, su gentile concessione di Vakwerk Architecten █ Hall di ingresso. © Leon vd Velden, su gentile concessione di Vakwerk Architecten █ Dettaglio della foglia in ottone presente sulla pavimentazione che caratterizza in wayfinding. © Peter de Krom, su gentile concessione di Vakwerk Architecten
17 ARCHITETTURA settembre 2023

LE FACCIATE

L’architettura dell’edificio non vuole riflettere un’immagine di ospedale asettico, ma si concentra piuttosto sulla reazione all’ambiente naturale di guarigione del Reestdal. La facciata è rivestita di lastre di alluminio piegate che si fondono con il contesto e riflettono la luce del sole. Per questo motivo, i pannelli di facciata - che in realtà sono tutti dello stesso colore - cambiano aspetto a seconda del punto di vista e dell’ora del giorno: infatti se al mattino l’alluminio sembra piuttosto scuro, nel pomeriggio acquisisce un colore argenteo. Le tettoie accentuano l’orizzontalità degli edifici e aiutano a prevenire il surriscaldamento. In aggiunta, la presenza dell’intonaco bianco nei patii interni aiuta a guidare la luce del giorno in profondità nell’edificio.

STRATEGIE DI SOSTENIBILITÀ E SOLUZIONI DI E-HEALTH

L’ospedale non è innovativo solo nell’organizzazione e nella configurazione architettonica: l’Isala Diaconessenhuis è anche il primo ospedale che non adopera risorse da combustibili fos -

sili dei Paesi Bassi. I pannelli solari coprono i tetti dei due volumi superiori e l’edificio è dotato di accumulo di energia termica in falda acquifera.

In aggiunta, l’edificio soddisfa anche i requisiti per gli edifici a quasi energia zero (NZEB), la massima qualità del misuratore ambientale della piattaforma ambientale per il settore sanitario. Inoltre, l’edificio tratta l’ambiente circostante con il massimo rispetto: il terreno è principalmente piantumato con vegetazione locale; i nidi delle cicogne sono stati conservati e ne sono stati aggiunti di nuovi; il tetto verde garantisce una biodiversità sufficiente e funge da riserva idrica aggiuntiva, oltre agli uadi circostanti. Il tetto verde è coltivato con sedum, erbe autoctone e aromatiche.

In termini di funzionamento, è concepito come un ospedale smart e atto a ridurre gli sprechi; pertanto, l’insieme di queste misure di sostenibilità ha dato vita a un edificio “sano” sia per gli utenti che per l’ambiente, ora e in futuro.

Un’altra sfida era quella di consentire l’assistenza sanitaria a distanza, o e-health. Le strutture ICT offrono ai medici l’opportunità di visitare i pazienti e valutare la loro salute in un ambiente virtuale senza compromettere la qualità del servizio sanitario.

In generale, il nuovo edificio soddisfa i requisiti più elevati in termini di sostenibilità, risparmio energetico, igiene con soluzioni specifiche per il controllo della Legionella, un uso flessibile dello spazio e comfort dell’utente.

Bibliografia

Le informazioni utili per la scrittura dell’articolo sono state tratte da:

█ descrizioni del progetto fornito da Vakwerk Architecten;

█ disamina tecnica dei disegni di progetto;

█ portali di architettura accessibili dal web.

Ringraziamenti

Si ringraziano per la realizzazione dell’articolo i colleghi di Vakwerk Architecten, e in particolare Wieke van Ulsen, per la condivisione delle immagini e disegni pubblicati in questo contributo.

Gli Autori

MARCO GOLA

YONG YU

ANDREA REBECCHI

Design & Health Lab, Dip. Architettura, ingegneria delle costruzioni e ambiente costruito, Politecnico di Milano

18 ARCHITETTURA settembre 2023
█ Sistema di facciata. © Egbert de Boer, su gentile concessione di Vakwerk Architecten

Architettura e tecnologia del New Children’s Hospital di Helsinki

Una qualità che è anche misura, cura del dettaglio e attenzione costruttiva. La facciata è una lezione contemporanea di progettazione nel solco della tradizione dell’architettura moderna finlandese, coniugando razionalità costruttiva, sensibilità per l’ambiente e un linguaggio che “acquista calore, ricchezza, cordialità”

20 TECNOLOGIE settembre 2023
di Maria Chiara Torricelli (foto di Tuomas Uusheimo)

DATI TECNICI

Committente: KOY Uusi Lastensairaala

Locatario: Helsinki and Uusimaa Hospital District

Progettisti Architettura: SARC Architects (Architetto Leader e Coordinatore: Antti-Matti Siikala, Progettista facciata: Román Cisneros), Architect Group Reino Koivula

Main Contactor: SRV Rakennus Oy

Anni di progettazione e costruzione: 2014-2018

Volume: 230.000 m3

Superficie totale: 48.000 m2

21 TECNOLOGIE
█ Montaggio del brise soleil in vetro colorato ai piani della piastra settembre 2023

Leonardo Benevolo ha usato le parole “calore, ricchezza, cordialità” per descrivere come Alvar Aalto abbia superato il rigore dimostrativo dell’architettura dei CIAM con il suo progetto del 1928 per il sanatorio di Paimio, piccola città distante da Helsinki meno di 150 km. Nell’impianto volumetrico e nelle facciate del New Children’s Hospital di Helsinki, progettato tra il 2014 e il 2017 da SARC Architects e il gruppo Reino Koivula, i segni della lezione di Aalto sono ancora vivi, reinterpretati con l’attenzione contemporanea a come dosare la percezione del colore, della brillantezza, della luce. Vi si ritrovano l’uso di superfici curve in tensione con quelle piane, il ritmo interrotto delle aperture sulla facciata, ma soprattutto la concezione dell’involucro architettonico come elemento di relazione tra interno ed esterno.

Il New Children’s Hospital di Helsinki è un’architettura di qualità, riconosciuta sotto molteplici aspetti. Appena aperto dopo la sua realizzazione ha ricevuto il premio Finlandia Prize for Architecture 2018, che si propone di premiare l’architettura creativa e di alta qualità e di evidenziare il valore culturale e il ruolo dell’architettura nella promozione del benessere. Sempre nello stesso

anno è stato anche nominato Progetto dell’anno dalla Project Management Association della Finlandia, perché portato a termine in modo sicuro, nei tempi previsti, all’interno del budget, rispondendo al contempo ai criteri di qualità.

Di questo ospedale abbiamo già ampiamente parlato (“New Children’s Hospital: psicologia e design a sostegno di cure all’avanguardia”, Margherita Carabillò, Arturo Zenorini – Progettare per la Sanità n. 4 settembre 2019, pp.6-13 e 54-56), a proposito degli aspetti architettonici, funzionali, del design di interni, con illustrazioni e planimetrie. In questo articolo l’intento è quello di mettere in evidenza alcuni aspetti tecnologici che concorrono a creare la qualità dell’architettura, della facciata in particolare. È interessante anche fare una premessa: alla base di questa qualità c’è, crediamo, anche la buona gestione del progetto: competenza, partecipazione, collaborazione, controllo dei tempi e dei costi fanno il risultato, attribuibile a una “rete di attori” che va dalla committenza, ai manager, al team di progettazione, al general contractor e le altre imprese esecutrici. Anche questa una realtà non comune, in Italia come in molti altri paesi d’Europa.

22 TECNOLOGIE settembre 2023
█ La facciata sul fronte strada di accesso al New Children’s Hospital █ La facciata sul fronte laterale di accesso delle urgenze

In effetti l’ospedale è un esempio di progetto nel quale un’ampia cooperazione, una pianificazione attenta e la collaborazione tra i diversi soggetti coinvolti hanno permesso di raggiugere gli obiettivi nei limiti di costo e di tempo prefissati. Nel 2012 viene creata una Associazione a supporto del progetto, con compiti di sensibilizzazione dell’opinione pubblica sulla necessità di realizzare il nuovo ospedale; il finanziamento pubblico non è al momento sufficiente e la strada dei prestiti è onerosa. A inizio 2013 si avvia, tramite una fondazione, la raccolta di fondi da privati cittadini, aziende e altri enti. La raccolta prosegue fino al 31 luglio 2015, raggiungendo un contributo di circa 36 M€ sul costo complessivo del progetto, che è stato di 175 M€. Per svolgere il ruolo di committenza per la realizzazione dell’intervento la fondazione ha costituito una società immobiliare, la Kiinteistö Oy Uusi Lastensairaala. Dopo il completamento dell’edificio la fondazione è restata proprietaria dell’immobile, in uso a titolo gratuito a Helsinki and Uusimaa Hospital District, a cui fa capo l’ospedale pediatrico come parte dello Helsinki University Hospital. Con il 2014 viene avviato il processo di progettazione e costruzione, si tratta di un appalto del tipo di quello che in Italia è l’appalto integrato, con un’impresa main contractor, una società di project manager e gli studi di architettura; la forma del contratto è denominata Cooperative project management contract e ha comportato l’adozione di un modello di fast track construction, in base al quale il cantiere ha avuto avvio con l’avvio della progettazione. Così nel 2016 è già completata la struttura e si avviano i lavori della facciata. L’ospedale è stato consegnato con due mesi di anticipo rispetto al programma e ha aperto le porte a metà settembre 2018. Il sistema costruttivo adottato è misto: a telaio in c.a. gettato in opera nella piastra che va dall’interrato al terzo piano; a pilastri prefabbricati in c.a. e lastre di solaio e getto in opera nella stecca sovrastante, che va dal piano quarto al nono. Anche i tamponamenti sono in pannelli prefabbricati in c.a. del tipo a sandwich senza ponti termici e con la lastra interna più spessa, per raggiungere una buona inerzia termica. La soluzione prefabbricata per struttura e tamponamento è comune in Finlandia, riduce i tempi di cantiere e i costi, inoltre, anche grazie al ricorso al cemento a presa rapida per i getti in opera, permette di iniziare presto i lavori delle opere interne in condizioni di cantiere asciutto. La fase finale della costruzione ha comportato una stretta collaborazione per promuovere la messa in funzione dell’ospedale, ad esempio avviando, già in fase di costruzione, la fornitura e l’installazione delle attrezzature sanitarie fisse. Ma è nel ritmo geometrico e materico delle facciate che l’attenzione al dettaglio e il sapiente equilibrio fra le parti, giocato in termini di luce e colore, realizzano la connotazione singolare di questo ospedale pediatrico. È stata la stessa committenza a volere elementi di colore sulle facciate ma, come ci dice Román Cisneros, architetto spagnolo responsabile per SARC Architects del progetto finale della facciata, il modo in cui il colore è qui usato “ha an-

23 TECNOLOGIE settembre 2023
█ Vista verso l’esterno dall’interno del fronte principale █ La facciata del volume sovrastante la piastra

che un sapore mediterraneo. In Spagna, come in Italia, usiamo in modo più naturale i colori. Dopo alcune proposte iniziali, si è deciso di optare per una tavolozza di circa quindici colori accesi, applicati puntualmente come pennellate verticali su una grande tela bianca del volume superiore. Nella facciata curva del volume inferiore, gli stessi colori sono stati utilizzati sotto forma di trasparenze nei cristalli verticali. Questa facciata ha uno sfondo nero per creare un contrasto tra i due volumi.”

Il corpo di base, grazie alla sua forma e alle sue dimensioni, dialoga, sul prospetto che dà sulla strada, con i piccoli edifici residenziali antistanti. Orientata a sud-est la facciata è prevalentemente vetrata, si alternano vetri scuri con le aree ricoperte da grandi elementi in cemento nero, ai due piani più alti il brise soleil, a lame verticali in vetro di diversi colori, produce una visione continuamente variabile con il movimento, per chi guarda l’edificio dall’esterno, mentre dall’interno filtra la luce e il panorama.

Ai piani superiori la stecca delle degenze, a corpo quintuplo, ha un rivestimento a schermo ventilato realizzato in ceramica bianca formata in piatti di tre diverse larghezze, 20, 30 e 50 cm, tutti nella stessa tonalità di bianco ma con una diversa finitura superficiale: il pezzo da 50 cm ha un rilievo pensato appositamente per questo edificio, gli altri due hanno una superficie esterna liscia, uno con finitura lucida e l’altro con finitura opaca. La diversa dimensione e la diversa finitura determinano variazioni degli indici di riflessione della luce, così da produrre una vivace vibrazione di un volume che sa-

█ Montaggio del rivestimento ceramico
24 TECNOLOGIE
█ Particolari del prospetto con rivestimento ceramico

rebbe altrimenti monotono. A questa vibrazione concorre ancor più la soluzione adottata per le aperture. Queste interrompono la superficie del rivestimento ceramico con un ritmo variabile di elementi architettonici ad andamento verticale ad altezza di piano, composti da tre parti: la finestra vetrata, la finestra di ventilazione e la sovrastante porzione piena tra un piano e l’altro. La finestra di ventilazione dall’esterno non appare perché è schermata da una doga in lamiera metallica perforata, realizzata nei colori scelti per il brise soleil del basamento. Le doghe corrono in verticale a tutta altezza di piano e sono poste alternativamente, nella sovrapposizione delle aperture, a destra e a sinistra della vetrata. La finestra illuminante e quella di ventilazione compongono l’infisso propriamente detto: un doppio infisso, quello esterno a telaio in alluminio, quello interno con telaio in legno, sia nella soluzione tamponata a vetro camera sia in quella tamponata con uno sportello ligneo isolato. La parte piena sopra all’infisso è realizzata da un pannello in calcestruzzo isolato, come il resto della facciata ma un poco più sottile e qui rivestito da un vetro

1. pannello prefabbricato in c.a. e isolante termico

2. controtelaio in legno

3. pannello prefabbricato

4. doppia finestra interna in legno esterna in alluminio

5. profilo in acciaio

6. profilo di tenuta sigillante

7. profilo di alluminio verniciato

8. elementi di rivestimento in ceramica su orditura metallica

9. elemento ceramico di chiusura

10. piatti in ceramica

11. piastre in ceramica

12. sportello legno e isolamento

13. profilo in legno

14. elementi di rivestimento in ceramica

15. elemento in ceramica di chiusura

16. profilo in alluminio

17. doghe in lamiera forata di alluminio verniciato

18. pannello prefabbricato

19. lastre in vetro

20. elemento oscurante

21. sottostruttura del davanzale

22. rivestimento davanzale

23. lamiera forata in alluminio verniciato

24. profili in legno

█ Disegno di dettaglio sulle aperture della facciata in ceramica: sezione orizzontale al livello delle finestre, sezione orizzontale a livello del pannello sopraluce e parapetto; sezioni verticali speculari sulla finestra

█ La finestra vetrata e la finestra di ventilazione viste dall’interno di una camera di degenza
1 9 17 5 13 21 3 11 19 7 15 23 2 10 18 6 14 22 4 12 20 8 16 24
11 25 TECNOLOGIE settembre 2023

█ Disegno di dettaglio della facciata con rivestimento ceramico e profili colorati in lamiera forata, prospetto, sezione orizzontale e sezione verticale

scuro, in modo da creare delle bande scure verticali che ritmano le posizioni delle aperture. Dall’interno la vista risulta incorniciata da un telaio in legno e dal tamponamento ligneo della apertura di ventilazione, con una soluzione dal sapore domestico nel materiale e nelle dimensioni. La finestra vetrata parte su un parapetto basso, così da permettere la visione anche dalla postazione allettata nelle camere di degenza, non è abitualmente apribile, la ventilazione naturale è infatti affidata all’apertura della porzione di infisso all’uopo destinata. Lo studio della facciata nelle sue prestazioni tecniche e nella sua qualità estetica, portato avanti nel processo attento di scelte tecnologiche, costruttive e architettoniche, ha permesso di rinnovare la impostazione tipologica tradizionale dell’ospedale a “stecca su piastra”, frequente nell’edilizia ospedaliera dei monoblocchi costruiti tra gli anni ’50 e ’70 , tipologia cui era vincolata la costruzione dell’ospedale pediatrico di Helsinki, per la forma e la ridotta dimensione del sito su cui si interveniva.

Ringraziamenti e riferimenti

Le informazioni utili per la scrittura e la illustrazione dell’articolo sono state fornite dallo studio SARC Architects. Si ringrazia per la documentazione e la revisione dell’articolo, in particolare l’architetto Román Cisneros e Anton Hamppu. Si rinvia per la descrizione estesa del progetto a: Margherita Carabillò e Arturo Zenorini, “New Children’s Hospital: psicologia e design a sostegno di cure all’avanguardia”, Progettare per la Sanità, n.4 Settembre 2019, pp.6-13 e 54-56.

L’autrice

MARIA CHIARA TORRICELLI

Architetto, già professore ordinario di Tecnologia dell’Architettura è adesso professore onorario presso l’Università di Firenze. Membro del Centro interuniversitario di ricerca Sistemi e Tecnologie per le Strutture Sanitarie, Sociali e della Formazione -TESIS, del Centro Nazionale per l’Edilizia e la Tecnica Ospedaliera -CNETO, della Società Italiana di Tecnologia dell’Architettura - SITdA

26 TECNOLOGIE settembre 2023
www.faac.it

Una sala autoptica a prova di agenti patogeni

All’Ospedale Policlinico S. Martino di Genova è stata certificata una nuova sala autoptica BSL3 a elevato livello di biosicurezza, a tutela degli operatori e della comunità da possibili patogeni infettivi, progettata secondo rigidi criteri post-pandemici in cui le esigenze di igiene e medicina preventiva convergono con quelle ingegneristiche, anatomo-patologiche e medico-legali

di Arturo Zenorini settembre 2023
28 IMPIANTI

DATI TECNICI

Committente:

IRCCS Ospedale Policlinico San Martino

Luogo: Genova

Data realizzazione: 2023

Importo lavori: 628.859,66 €

RUP: Ing. Michela Tognetti (Policlinico)

DL: Ing. Alberto Borneto (Policlinico)

PROGETTAZIONE

Progetto preliminare: Ing. Alberto Borneto (Policlinico)

Progetto esecutivo: Taccini Ingegneria (GE)

Progetto di variante: Ing. Alberto Borneto (Policlinico)

Impresa esecutrice: RVM Impianti (BS)

Forniture specialistiche: Comfit (TO)

Auditor livello biosicurezza: Bioconsulting-LN (SI)

█ Sala settoria BSL3 A sinistra il tavolo settorio, a destra e in fondo arredi tecnici per facilitare lo studio degli organi e il campionamento dei tessuti.
2023
settembre
29 IMPIANTI

Le necessità di disporre di una sala autoptica in grado di soddisfare i criteri più stringenti di sicurezza stabiliti dall’Istituto Superiore di Sanità con l’avvio della pandemia da Covid-19, ha portato a una completa reingegnerizzazione della sala settoria dell’IRCCS Ospedale Policlinico S. Martino di Genova (di seguito anche solo Policlinico). Duplice l’obiettivo: creare una struttura protetta, dotata di tutti gli accorgimenti atti a ridurre il rischio di contaminazione degli operatori da parte di microrganismi patogeni trasmessi da corpi di persone decedute per possibili patologie infettive o trasmissibili a rischio; soprattutto, disporre di un’area perfettamente delimitata oltre i cui perimetri esterni non fossero possibili contaminazioni verso altre aree della struttura nosocomiale e la comunità.

Abbiamo approfondito l’argomento, in termini di caratteristiche tecniche della sala BSL3 e di implicazioni ad ampio spettro sull’attività ospedaliera, con le principali figure coinvolte in questa complessa operazione: da un lato l’Ufficio Tecnico del Policlinico nella persona dell’Ing. Alberto Borneto; dall’altro i co-responsabili scientifici del progetto: il dott. Paolo Nozza, direttore dell’UOC di Anatomia Patologica (ospedaliera) dell’IRCCS Ospedale Policlinico S. Martino, e il Prof. Francesco Ventura, professore ordinario di Medicina Legale dell’Università di Genova e direttore dell’UOC di Medicina Legale dell’IRCCS Ospedale Policlinico S. Martino.

BIOSICUREZZA AL TOP

█ Ing. Borneto, come è strutturata la sala e quali sono le differenze fondamentali che caratterizzano una sala settoria BSL3 rispetto ad altre con livello di biosicurezza inferiore? Occorre premettere che i livelli di biosicurezza sono strettamen te correlati alla classificazione degli agenti biologici (art. 268 del

T.U. 81/08), ripartiti in quattro gruppi a seconda del rischio di infezione per i lavoratori, propagazione nella comunità, disponibilità di misure di profilassi e cura. Un agente biologico del gruppo 1 presenta poche probabilità di causare malattie. Uno del gruppo 2 può causare malattie in soggetti umani e costituire un rischio per i lavoratori ma è poco probabile che si propaghi nella comunità e sono disponibili misure profilattiche o terapeutiche. Un agente biologico del gruppo 3 può causare malattie gravi e costituisce un serio rischio per i lavoratori; può propagarsi nella comunità ma, di norma, sono disponibili efficaci misure profilattiche o terapeutiche. Un agente biologico del gruppo 4 può provocare malattie gravi in soggetti umani e costituisce un serio rischio per i lavoratori e può presentare un elevato rischio di propagazione nella comunità; inoltre, non sono disponibili, di norma, efficaci misure profilattiche o terapeutiche.

Le strategie di biocontenimento, pertanto, si adottano nella realizzazione di sale classificate con un certo livello di biosicurezza, e si traducono nell’implementazione di sistemi di protezione primaria e secondaria. I primi hanno il precipuo scopo di preservare la salute e la sicurezza dei lavoratori e dell’ambiente di lavoro e si traducono essenzialmente nell’utilizzo di dispositivi di protezione individuale (DPI) e collettiva (DPC, quali possono essere le cappe e i tavoli autoptici aspirati) e procedure predeterminate, condivise e formalizzate tra tutti gli operatori che a vario titolo hanno accesso all’ambiente di lavoro. I secondi sono invece preposti alla difesa dell’ambiente esterno dal rischio di contaminazione da parte dei patogeni potenzialmente presenti nell’ambiente di lavoro; si traducono pertanto in aspetti prettamente ingegneristici

di Arturo Zenorini
█ Ing. Alberto Borneto █ Prof. Francesco Ventura
30 IMPIANTI settembre 2023
█ Dott. Paolo Nozza

█ In sintesi, che cosa distingue gli ambienti classificati come BSL1 e BSL2 dalle più severe classificazioni BSL3 e BSL4?

La distinzione risiede nella maggiore importanza che assumono i sistemi di protezione secondaria, e quindi gli aspetti ingegneristici mirati alla protezione dell’ambiente esterno. In particolare, gli elementi più evidenti e distintivi di una BSL3 rispetto a una BSL2 sono la presenza di: a) zone filtro sia in ingresso che in uscita dalla sala settoria che la separino fisicamente dal resto della struttura in cui è ubicata; b) porte di accesso da un locale all’altro della zona controllata a tenuta e dotate di una logica di interblocco delle serrature;

c) impianto HVAC che oltre ad essere dimensionato per garantire le corrette condizioni termoigrometriche, deve essere calibrato per garantire dei salti di pressione negativi dall’esterno verso l’interno ad ogni passaggio di ambiente; d) filtrazione assoluta dell’aria espulsa all’esterno; e) un sistema di accumulo, decantazione e trattamento chimico delle acque reflue e opportuno autoclavaggio di eventuali residui solidi; f) un robusto sistema di sensori ed allarmi ottico-acustici opportunamente settati per segnalare eventuali derive dei parametri che garantiscono il biocontenimento. Passare dal livello BSL2 al BSL3 vuol dire sostanzialmente operare all’interno di un sistema edificio-impianto che garantisca un abbattimento del rischio di diffusione dell’eventuale patogeno nell’ambiente esterno e pertanto tra la comunità.

█ In cosa è consistito il protocollo di qualifica che ha condotto alla certificazione finale di una classe di biocontenimento di livello 3, ovvero di questa sala BSL3?

La qualificazione non prende solo in considerazione la struttura, le attrezzature e gli impianti ivi installati ma anche le procedure, che sono da considerarsi assolutamente determinanti al pari degli elementi tecnologici. Il protocollo di qualifica si concretizza per tanto in più fasi di esame che vanno dalla verifica documentale, a prove strumentali, financo all’interrogazione dei responsabili della struttura.

Va effettuata innanzitutto un’analisi documentale che include: a) una check list atta a verificare la presenza di tutti i presidi e le attrezzature necessarie; b) elaborati grafici as-built; c) dichiarazioni di conformità degli impianti; d) schede tecniche e relativi certificati di collaudo di impianti e attrezzature; e) IO e procedure (ingresso operatori e vestizione, uscita operatori e svestizione, smaltimento indumenti e DPI, lavaggio mani, sanificazione sala, impianti e attrezzature, etc.). In secondo luogo, va operato un audit in sito che si concretizza con un sopralluogo della durata di una giornata intera durante la quale si effettuano ogni genere di test, anche strumentali (balometro, leak test, smoke test, manometri differenziali, etc.) mirati a verificare oltre che il corretto funzionamento del sistema di biocontenimento in condizioni di esercizio ordinarie, anche che la struttura mantenga condizioni adeguate di biosicurezza in situazioni non routinarie.

█ All’atto pratico tutto questo in che cosa si traduce? Si traduce nella simulazione di scenari di guasto e al contestuale monitoraggio di quanto accade a seguito degli stessi, quali: a) guasto di un estrattore; b) guasto di entrambi gli estrattori; c) guasto della sola mandata; d) blackout; e) non funzionamento del sistema di controllo. In ognuno di questi scenari viene monitorato l’andamento della pressione e del flusso aria dei vari locali e tra gli stessi e verificato anche il comportamento della pressione/flusso fino al ripristino delle condizioni di set-up. I criteri di accettabilità consistono nel non apprezzare alcuna inversione del flusso di aria e pressurizzazione dei locali. Altri test effettuati in sito hanno lo scopo di verificare: a) pressioni e portate in condizioni di “riposo”; b) funzionalità degli interblocchi tra le porte e che l’apertura della porta non produca inversione di flusso tra i locali; c) che ogni attraversamento di utenze a parete/soffitto sia sigillato sul perimetro del locale; d) la sigillatura del controsoffitto; e) che l’utente abbia la possibilità di verificare la correttezza del gradiente di pressione prima di entrare; f) che sia presente (all’interno del locale e in esterno) un dispositivo che lancia un allarme ottico-acustico in caso di superamento dei limiti di accettabilità della pressione; g) l’area BSL-3 deve essere ad accesso controllato in modo tale che solo gli autorizzati possano accedere e non ci sia la possibilità che anche inavvertitamente altri possano farlo. Infine, nell’ultima fase del protocollo di qualificazione, è prevista una verifica degli aspetti procedurali relativi a: a) pratica di decontaminazione preventiva materiali/salma all’uscita dalla sala autoptica; b) pratica di decontaminazione degli ambienti del complesso sala autoptica; c) pratica di decontaminazione degli impianti HVAC del complesso sala autoptica; d) pratica di rimozione vestiario/DPI e flusso di uscita personale.

31 IMPIANTI settembre 2023
█ Tavolo settorio.

█ Porta di accesso tra locali con differente gradiente di pressione.

█ Sala settoria. Da notare le bocchette del sistema che garantisce il costante ricambio dell’aria (in alto, di forma circolare, per l’immissione) e in basso (di forma rettangolare, per l’aspirazione). Nell’angolo a destra (sportello a specchio) l’ubicazione del filtro HEPA atto a trattenere qualsivoglia agente patogeno aereo prima dell’espulsione all’esterno della sala.

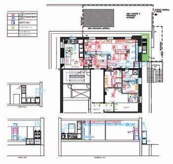
AMBIENTE FINALIZZATO PER L’ESECUZIONE DELL’INTERO PROCESSO DELL’ATTIVITÀ

SETTORIA

Costruire un ambiente tale da permettere agli operatori di dedicarsi all’intero processo di un’autopsia. È stato questo, spiega il dott. Nozza, lo scopo fondamentale che, con il prof. Ventura, co-

responsabile scientifico del progetto, si è cercato di perseguire. «L’effettuazione di un’autopsia» sottolinea il dott. Nozza «è un atto estremamente complesso, caratterizzato da una serie di procedure che in parte si effettuano prima dell’autopsia vera e propria, in assenza del corpo; altre che si compiono prima dell’autopsia, in presenza del cadavere; altre che si fanno dopo la dissezione, in

32 IMPIANTI settembre 2023
█ Planimetria con dislocazione e funzione dei locali adiacenti alla sala autoptica. █ Planimetria con indicazione del flusso d’aria, dei valori di pressione relativa attesi e, in rosso, del perimetro dell’area di contenimento.

presenza del corpo; e altre ancora che si effettuano dopo l’autopsia, in assenza del cadavere». Premesso ciò, prosegue, «ciò che distingue questa sala settoria da quella precedente, e dalla maggior parte delle sale settorie, è la possibilità di dedicarsi, con la maggiore efficacia possibile, alle procedure successive alla sezione del cadavere, come l’esame macroscopico e il campiona-

mento degli organi prima o dopo la loro fissazione, disponendo di una moderna cappa aspirante. Inoltre, la presenza di moderni strumenti di videoregistrazione, che consentono di effettuare fotografie e riprese durante tutte le procedure settorie, permette di estendere la partecipazione all’autopsia a persone non presenti fisicamente nella sala, riducendo i rischi per la salute degli operatori e consentendo ai medici settori di lavorare con la maggiore comodità possibile. Tutto ciò è particolarmente importante per i casi di soggetti affetti da SARS Cov2, altre malattie infettive quali l’epatite virale, o malattie trasmissibili come le malattie da prioni. La possibilità di trasmissione a distanza e di registrazione ha, inoltre, evidenti implicazioni per l’insegnamento dell’autopsia, incidendo inoltre sulla riduzione del rischio clinico e sulla documentazione dei reperti a scopo scientifico.»

Il dott. Nozza fa notare inoltre come vi sia una serie di arredi tecnici che consentono di gestire nel modo migliore gli organi eseguendo anche procedure di biobanking o di raccogliere campioni per analisi di tipo microbiologico o molecolare.

In riferimento alle misure di sicurezza di chi pratica attività settoria, il dott. Nozza precisa che: «al di là della necessità di disporre di una sala settoria che consentisse di esaminare cadaveri ad alto rischio di malattia infettiva o trasmissibile - in realtà le autopsie sono tutte da considerarsi a rischio, «anche quelle che non sono dichiarate tali». In ogni caso, chiarisce, «allo scopo di evitare il rischio di trasmissione di agenti infettivi o trasmissibili, deve essere applicata tutta una serie di misure precauzionali, ricordando che il rischio riguardante la maggior parte delle malattie infettive

█ Locale tecnico con sistemi per il trattamento dell’aria. █ Pannello di controllo esterno ai locali che nel complesso costituiscono l’area BSL3, inclusa la sala settoria. La visualizzazione della corretta presenza dei gradienti pressori nei locali permette l’accesso agli stessi.
33 IMPIANTI settembre 2023
█ Schema dell’impianto aeraulico per il trattamento dell’aria.

o trasmissibili passa fondamentalmente da tre meccanismi principali: l’inalazione, l’infusione (a livello della sezione della superficie corporea) e gli spruzzi. Quindi bisogna mettere in atto, soprattutto con l’uso dei DPI, tutte le precauzioni che in qualsiasi autopsia vanno applicate per poter ridurre al minimo il rischio: dispositivi di protezione che coprono il corpo - soprattutto la testa e gli occhi, con visori speciali – e l’utilizzo di guanti antitaglio, possibilmente indossati in doppio paio». Questa sala BSL3, conclude, ha una concezione nuova e forse unica.

IMPLICAZIONI SU SCIENZA MEDICA FORENSE E ACCERTAMENTI GIUDIZIARI

La storia della sala BSL3 coincide con la pandemia da Covid-19. «Il SARS-CoV-2 è stato dichiarato un virus che, per le attività sanitarie, richiedeva un livello di sicurezza 3 in quanto ad alta diffusione aerogena» spiega il prof. Ventura. «Lo stesso livello di sicurezza si è imposto per l’attività settoria che comporta una manipolazione del cadavere con l’apertura delle cavità toracica, addominale e cranica, che genera un aerosol infettivo di particelle ossee e di liquidi che si disperde nell’ambiente. Prima l’istituto Superiore di Sanità (ISS) (1) e poi l’Organizzazione Mondiale della Sanità (OMS) hanno dichiarato che le autopsie di soggetti infetti dovevano essere fatte in sale idonee BSL3, con mascherine FFP2 o FFP3, camice a tenuta stagna, guanti e visiera. Sicuramente tra le cause scatenanti di questa decisione vi era il fatto che non solo esisteva il rischio in sala settoria per l’operatore - che doveva essere ovviamente equipaggiato con i dispositivi di massima sicurezza - ma che tale rischio esisteva anche per l’ambiente in caso di sala settoria non dotata degli appositi accorgimenti richiesti dal livello di biosicurezza 3».

Non soltanto da un punto di vista clinico ma anche autoptico l’Italia era poco preparata a questo tipo di situazione, fa notare il prof. Ventura, perché le sale settorie BSL3 erano e sono ancora poche. «Inoltre, in attesa dell’apertura della nuova sala al S. Martino, non era possibile fare autopsie in Liguria su cadaveri infetti o sospetti infetti secondo le indicazioni emanate dal Ministero della Salute nei primissimi mesi della pandemia, le quali vietavano non soltanto le autopsie diagnostiche ma anche quelle giudiziarie. Noi - spiega il prof. Ventura - abbiamo ovviato in parte a questo problema ipotizzando l’utilità di fare i tamponi nasofaringei anche ai cadaveri oltre che ai soggetti che arrivavano in pronto soccorso e che stavano male. All’inizio non ci credevano in molti, neanche i clinici. Data la complessità della situazione è comunque nata l’idea di fare i tamponi ai cadaveri. Siamo stati tra i primi a farli in Italia».

In tal senso, prosegue il docente in medicina legale, «ho mandato una lettera all’American Journal of Forensis Medicine and Pathology

(2) focalizzata sull’utilità di fare un tampone preliminare anche a

un’autopsia in aree disagiate come la nostra per la mancanza di sale settorie idonee. Il giornale americano ha pubblicato questa lettera che ha supportato tale pratica come opera di screening: nel senso che, se il tampone fosse stato negativo, il cadavere non sarebbe stato infetto e quindi l’autopsia si poteva fare anche in sala settoria non BSL3». Ci sono stati però problemi dal punto di vista medicolegale, sottolinea il prof. Ventura, consistenti nel garantire alla Procura della Repubblica l’esecuzione di autopsie per i sospetti reati. «Il Ministero, addirittura, all’inizio vietava di fare le autopsie sui cadaveri infetti, anche se sospette vittime di reato. Nel caso di tampone positivo, per un po’ di tempo si è dovuto fare riferimento a sedi fuori Regione con sale BSL3, come Lucca e, successivamente, Vercelli. Siamo comunque riusciti a proseguire l’attività autoptica giudiziaria sui cadaveri con tampone negativo, facendola in sede». I magistrati, riporta il prof. Ventura, spesso chiedevano per quanto tempo un cadavere potesse rimanere infettivo. «La letteratura non diceva molto all’inizio della pandemia perché non c’erano studi sull’argomento, e ce ne sono pochi tuttora» afferma il prof. Ventura. «Certo è che anche noi abbiamo avuto l’occasione di avere un cadavere per quasi tre mesi a disposizione – nessuno lo reclamava e non aveva parenti - e di verificare se fosse sempre infetto a distanza di alcune settimane dal decesso, tramite tamponi ripetuti nel tempo. Il cadavere era sempre positivo ai tamponi che, soprattutto, replicavano su coltura (3); questo vuol dire che il virus era ancora vivo e vitale. Questo è un singolo caso, ma ci dice che il cadavere può rimanere infettivo a lungo. Per definire quanto a lungo bisognerebbe avere una casistica molto più ampia, tanto che l’OMS e l’ISS non hanno mai modificato il tempo limite oltre il quale il cadavere di una persona deceduta per Covid-19 possa essere sottoposto ad autopsia. Sicuramente la carica virale si abbassa, però non si sa con certezza di quanto e in quanto tempo».

Bibliografia

█ Rapporto ISS COVID-19 - n.6/2020. Procedura per l’esecuzione di riscontri diagnostici in pazienti deceduti con infezione da SARS-CoV-2. Gruppo di Lavoro ISS Cause di morte COVID-19.

█ Ventura F, Barranco R. Cadaveric Nasopharyngeal Swab in Coronavirus Disease 2019 Infections: Can it be Useful for Medico-Legal Purposes? Am J Forensic Med Pathol. 2020;41:238-9. doi: 10.1097/PAF.0000000000000560.

█ Ventura F, Drommi M, Barranco R, et al. How Long Can a Dead Body Remain Infectious?: Postmortem Nasopharyngeal Swabs and SARS-CoV-2 Culture in a Corpse Over an 87-Day Period. Am J Forensic Med Pathol. 2022;43:215-9. doi: 10.1097/PAF.0000000000000779.

34 IMPIANTI settembre 2023

Il Service Design per una sanità di valore

DALLA PRESTAZIONE ALL’ESPERIENZA

Negli ultimi anni è aumentata nella sanità italiana l’attenzione sul tema del valore e della sua creazione ed incremento, declinabile da diverse prospettiva come la ricerca di maggiore equità, migliori esiti, produttività e sostenibilità e non ultimo un migliore “patient journey” e/o “patient experience”. Proprio quest’ultimo punto è diventato centrale nel SSN a seguito della crescita di aspettative della popolazione e della pressione competitiva generata da un settore privato che ha costruito larga parte del suo successo su questa dimensione di differenziazione. Per passare da una sanità prestazionale ad una esperienziale. Le aziende sanitarie e gli ospedali sono quindi chiamati a prestare sempre più attenzione alla progettazione delle modalità di erogazione dei servizi, per generare la migliore qualità ed esperienza in coloro che li ricevono. D’altronde è da diversi decenni ben conosciuto nell’industria dei servizi il fenomeno della “piramide rovesciata” per il quale è il punto di contatto, colui o colei che eroga il servizio e come lo fa, che davvero fa la differenza nella percezione del cliente.

36 ORGANIZZAZIONE settembre 2023
La funzione delle aziende sanitarie è servire i bisogni della popolazione che tutelano e curano. Per farlo nel modo migliore occorre padroneggiare metodi e strumenti della progettazione del servizio con logiche e strumenti ben sviluppati in ambito d’azienda nel disegno delle modalità di erogazione delle attività sanitarie

Ecco perché costruire il proprio modello o formula di servizio ("La formula di servizio quale base per progettare l'organizzazione", F. Lega, L. Boffa, D. Landi, G. A. Marfia, G. Mataluni - Progettare per la Sanità giugno 2018, pp 2628) e poi applicare le leve del service design diventa un elemento chiave per produrre la sensazione nel paziente-cliente di aver vissuto una esperienza di qualità. Nel prosieguo di questo articolo verranno approfonditi i contenuti e leve specifiche del service design.

UN QUADRO CONCETTUALEDI

RIFERIMENTO: IL MODELLO SERVQUAL

Nell’evoluzione delle pratiche che circondano e completano le procedure medico-assistenziali assumono sempre più importanza i principi e i valori che sono tipici del mondo dei servizi e che spostano l’attenzione dal processo-procedura, nel quale efficacia e efficenza rappresentano le dimensioni fondamentali, alla qualità del servizio intesa in modo olistico. La componente “tecnico-professionale” viene data per scontata, ma intervengono altre dimensioni che contribuiscono a formare l’esperienza di pazienti, familiari e operatori sanitari. In quest’ottica la qualità dei servizi diviene fondamentale nella valutazione e nel miglioramento dei servizi sanitari.

Il modello SERVQUAL suggerito da Parasuraman, Zeithaml e Berry offre un approccio utile per valutare la qualità dei servizi indagando cinque dimensioni chiave:

Affidabilità

Gli ospedali devono essere in grado di erogare i servizi promessi in modo tempestivo e accurato, mantenendo gli standard di qualità.

Responsività

È importante che venga data una risposta tempestiva alle richieste dei pazienti e assistenza immediata.

Competenza

Medici, infermieri e professionisti sanitari devono avere competenze, conoscenze e abilità per garantire cure di qualità.

Accessibilità

Gli ospedali dovrebbero essere facilmente accessibili, offrire orari di apertura adeguati e ridurre al minimo i tempi di attesa o di accesso.

Empatia

Il personale deve dimostrare empatia, ascoltare attivamente le esigenze di pazienti e caregiver e assicurare un sostegno emotivo durante il percorso di cura.

ll modello fornisce un quadro concettuale per comprendere e misurare la qualità del servizio percepita dai pazienti e identificare le lacune tra le aspettative e le prestazioni effettive per

37 ORGANIZZAZIONE settembre 2023
█ Il modello Servqual: allineare aspettative e percezioni

identificare le aree di miglioramento. È possibile, infatti, individuare alcuni gap percettivi che possono essere utilizzati per allineare aspettative e prestazioni dei servizi (fig. 1):

Gap aspettative

Tra la percezione da parte del top management dell’ospedale delle aspettative dei pazienti e il servizio atteso dai pazienti.

Gap progettazione

Tra percezione da parte del top management dell’ospedale delle aspettative dei pazienti e le specifiche di qualità del servizio.

Gap produzione

Tra le specifiche di qualità del servizio e le prestazioni effettive erogate.

Gap comunicazione

Tra quanto comunicato verso i pazienti e le prestazioni effettive erogate.

Gap di percezione

Tra il servizio atteso e le percezioni sul servizio.

L’analisi dei gap abbinata all’applicazione delle pratiche di Service Design consente alle organizzazioni sanitarie di intraprendere azioni per migliorare la qualità del servizio e l’esperienza del paziente.

L’ESPERIENZA DEL SERVIZIO IN AMBITO SANITARIO

L’esperienza del paziente (patient experience) è un aspetto di grande importanza per garantire la qualità dell’assistenza sanitaria. Si riferisce all’effetto complessivo prodotto da tutte le interazioni con gli operatori sanitari che influenzano le percezioni di qualità delle cure da parte del paziente nel “continuum” delle cure incluse le fasi di prevenzione, diagnosi, trattamento e di follow-up.

Un’esperienza positiva del paziente è cruciale per diversi motivi. In primo luogo, influisce sulla soddisfazione complessiva del paziente riguardo all’assistenza ricevuta, che può influenzare la sua aderenza alle terapie e la volontà di avvalersi di cure future. In secondo luogo, un’esperienza positiva può contribuire a una comunicazione efficace tra il paziente e il personale sanitario, favorendo una migliore comprensione delle informazioni mediche e delle istruzioni per il trattamento.

Infine, una buona esperienza del paziente può aiutare a ridurre l’ansia e lo stress associati alle cure mediche, migliorare il benessere complessivo di tutti gli attori coinvolti.

Nella definizione entrano in gioco elementi che non sono strettamente legati alla componente tecnico-professionale del servizio sanitario, ma che impattano su quelli di contorno e contribuiscono alla percezione complessiva del servizio fruito.

Il quadro si complica in quanto occorre considerare che l’esperienza è contestualmente vissuta, oltre che dai pazienti, da operatori sanitari e caregiver e come tutti questi attori si influenzino nella determinazione complessiva dell’esperienza di servizio.

SERVICE DESIGN PER L’INNOVAZIONE E IL MIGLIORAMENTO DEI SERVIZI IN SANITÀ

Per migliorare l’esperienza del paziente, molti sistemi sanitari stanno adottando iniziative quali l’implementazione di tecnologie digitali per semplificare l’accesso ai servizi sanitari, l’addestramento del personale sanitario sull’empatia e la comunicazione efficace, e anche la raccolta sistematica dei feedback dei pazienti per identificare le aree di miglioramento.

In quest’ottica la progettazione dei servizi sanitari diviene un approccio strategico e creativo per sviluppare e migliorare i servizi nel settore sanitario.

Adottare in sanità i principi e i metodi del Service Design consente di migliorare l’efficacia, l’efficienza e l’esperienza degli utenti - pazienti, familiari e operatori sanitari - attraverso l’ottimizzazione dei processi, la semplificazione delle interazioni e la creazione di soluzioni efficaci e a misura di tutti gli attori coinvolti con l’obiettivo di ottenere un ambiente di cura che sia sicuro, compassionevole, efficace ed efficiente.

Quindi nel riprogettare i servizi sanitari si stanno sempre più adottando approcci centrati sul paziente che mettono al centro delle decisioni cliniche e organizzative le esigenze, le preferenze e i valori dei pazienti. Questo implica coinvolgere il paziente nelle decisioni sul proprio percorso di cura, ascoltare le sue preoccupazioni e desideri, personalizzare l’assistenza in base alle sue specifiche necessità. L’obiettivo è identificare punti di difficoltà e aree di miglioramento per creare soluzioni innovative che soddisfino le esigenze di tutti gli attori coinvolti nel servizio. Nella definizione di nuove proposte di valore per i servizi l’applicazione dei principi del service design risultano particolarmente utili per creare esperienze positive per i pazienti, i familiari e il personale sanitario. I principi fondamentali adottati nel Service Design in ambito sanitario, toccano, infatti, aspetti cruciali per la definizione di soluzioni efficaci:

█ user centered: i servizi dovrebbero essere testati attraverso gli occhi degli utilizzatori;

█ co-creative: tutti gli stakeholder dovrebbero essere inclusi nel processo di progettazione;

█ sequencing: il servizio dovrebbe essere visualizzato come una sequenza di azioni interconnesse;

█ evidencing: i servizi dovrebbero essere resi “tangibili” in termini di artefatti reali;

38 ORGANIZZAZIONE settembre 2023

█ holistic: l’ambiente di un servizio dovrebbe essere considerato nel suo complesso.

█ asking and listening: analizzare i problemi da nuovi punti di vista attraverso domande rivolte agli attori coinvolti;

█ visualizing: creare diagrammi, illustrazioni, mappe o modelli fisici può consentire di cogliere aspetti e spunti non considerati;

█ prototyping: r:ealizzare prototipi, anche sulla carta, consente di dare forma “tangibile” alle idee; i prototipi aiutano a comunicare idee, a far provare esperienze agli altri e ottenere importanti riscontri sull’efficacia delle soluzioni;

█ storytelling: la comunicazione e le storie sono cruciali sia nelle attività di progettazione che di cura; narrazioni e infografiche sono strumenti essenziali per comunicare agli altri i concetti legati alla progettazione dei servizi sanitari.

Nell’approccio tipico del Service Design il concetto di progettazione

dei servizi sanitari si basa sull’idea che non siano solo una serie di procedure mediche, ma un’esperienza complessa che coinvolge molteplici punti di contatto (touchpoint) tra il sistema sanitario e gli utenti. Questi possono includere la comunicazione, la prenotazione dei servizi e appuntamenti, l’accesso e l’accoglienza dei pazienti, il coinvolgimento del paziente nel processo di cura, l’ambiente e il confort, la competenza del personale, la gestione dei flussi di lavoro, la gestione dei reclami, il feedback e il monitoraggio.

Contesti e metodi progettuali

La progettazione dei servizi sanitari può essere applicata a diversi contesti come ospedali, ambulatori, cliniche, case di cura e servizi di telemedicina. Nel processo sono utilizzate diverse metodologie, tra cui la ricerca etnografica, interviste, workshop di co-creazione e prototipazione rapida. Particolarmente utile risulta essere la mappatura dei touchpoint coinvolti nel processo di erogazione del servizio. La rilevazione dei touchpoint coinvolti non deve essere limitata a quelli strettamente connessi al servizio in oggetto (es. effettuazione di una risonanza magnetica), ma deve tener conto di tutto il percorso esperienziale collegato.

Tipicamente sono da prendere in considerazione quelli legati alle seguenti fasi:

- Pre-servizio: dalla prima ricerca di informazioni o messaggio alla decisione

Pazienti e familiari ricercano informazioni rilevanti in internet e sui canali di comunicazione, visitano il sito web dell’ospedale per avere informazioni logistiche o sulle modalità di erogazione dei servizi; compilano form sul sito web o cartacei, leggono recensioni, gestiscono appuntamenti e utilizzano app ecc.

- Interazione: dall’inizio del contatto alla fine dell’erogazione Visita, segnaletica e wayfinding, televisita, sala d’attesa, diagnostica, telecontrollo, comunicazione, documentazione, procedura, prescri-

zione, istruzioni, ammissione, percorso di cura, medico, operatori sanitari, trasporto, farmacia, servizi ausiliari, attrezzature, sostegno psicologico, volontari, pulizia, confort stanze, confort arredamento, alimentazione, dimissione, fatturazione e documentazione amministrativa ecc.

- Post-servizio: dalla fine dell’erogazione a… Facilità di contatto, processo di follow-up, newsletter, programmi educativi, ecc.

Per ciascuna fase si devono individuare i touchpoint coinvolti e armonizzarli per creare soluzioni efficaci e misurabili. È importante, infatti, non fermare l’attività di progettazione alla definizione delle caratteristiche del servizio ma individuare anche gli indicatori da monitorare per verificare la qualità dei servizi erogati e ridurre i gap che abbiamo visto nel modello SERVQUAL. Infine, da segnalare come migliorare l’esperienza del paziente richiede un impegno da parte di tutti gli attori coinvolti nel sistema sanitario: professionisti sanitari, management, amministratori sanitari, pazienti e familiari.

UNO SFORZO COLLETTIVO E BEN SUPPORTATO

Come richiamato in chiusura del precedente paragrafo, produrre una migliore patient experience è il frutto di uno sforzo collettivo, ovvero sia di una leadership diffusa dal livello di responsabilità del reparto fino alla direzione aziendale. Ciò implica che oltre ad una conoscenza diffusa nell’organizzazione dei principi del service design occorre porre attenzione su due aree di intervento nello specifico:

█ la costruzione ed il consolidamento di una “cultura del servizio” all’interno della cultura organizzativa dominante nell’organizzazione;

█ l’assunzione di un ruolo proattivo di promozione dell’attenzione al tema - e di sviluppo delle connesse progettualità - da parte sia della Direzione Aziendale, sia delle “direzioni tecniche”, quali la DMPO e la direzione delle professioni sanitarie. Direzioni e loro professionisti che dovranno quindi possedere nel proprio bagaglio tecnico le competenze in materia di service design per accompagnare e sostenere le progettualità di trasformazione assieme ai clinici ed alle professioni sanitarie coinvolte direttamente.

I paragrafi 1 e 5 sono a cura di F. Lega, i paragrafi 2-4 sono a cura di S. Cribellati

Gli autori

STEFANO CRIBELLATI

Presidente ed amministratore di Sege S.r.l.

FEDERICO LEGA

Università degli studi di Milano

39 ORGANIZZAZIONE settembre 2023

DEI PLUS: la banca dati che rivoluziona i prezzari DEI

Insieme a Giuseppe Rufo, Direttore Prezzari DEI, abbiamo scoperto tutte le novità e gli utilizzi della nuova banca dati DEI PLUS

L’edilizia è un settore in continuo cambiamento che necessita di un aggiornamento costante e rapido. Per questo nasce DEI PLUS, la nuova piattaforma gratuita per l’edilizia dove è possibile trovare i Prezzari DEI completi, aggiornati, affidabili e sempre al servizio del professionista. Della nuova piattaforma sviluppata da DEI e dei suoi utilizzi abbiamo parlato con Giuseppe Rufo, Direttore Prezzari DEI.

█ Da dove nasce e che cos’è DEI PLUS?

G.R.: La nuova banca dati rappresenta il cambio di paradigma dei prezzari DEI. Ovvero: prima i prezzari DEI costituivano la banca dati, oggi invece è la banca dati aggiornata DEI PLUS che farà nascere, costruirà ed elaborerà i prezzari DEI. Questa è la grande rivoluzione. Questo significa, in sostanza, che la banca dati riunirà in un unico e grande database tutti i materiali che verranno aggiornati mensilmente e, successivamente, si andranno ad aggiornare anche le opere compiute. Avere un unico database, inoltre, significa poter cercare più facilmente gli articoli che si desiderano per poi visualizzarli ed esportarli su un proprio documento o, in alternativa, la possibilità, per chi vuole, di creare un proprio elenco prezzi di progetto o un prezzario generale. Il database permette in automatico di aggiornare il listino precedentemente creato dall’utente perché riconosce i codici e, di conseguenza, aggiorna l’elenco prezzi del cliente senza perdere tempo nuovamente nella ricerca delle voci. █

A cura della redazione
40 INTERVISTA settembre 2023
Giuseppe Rufo, Direttore Prezzari DEI

█ A chi si rivolge e com’è possibile accedere alla banca dati?

Per accedere alla banca dati è sufficiente avere un abbonamento DEI che darà al cliente anche la possibilità di consultare sempre e online i prezzari della DEI, con gli arretrati fino a 5 anni. Esiste, inoltre, un servizio abbonamenti che assiste il cliente e un sito dedicato. Una volta entrati nel mondo DEI PLUS, il cliente ha diritto a consultare tutti i prezzari della DEI, a scaricare tutto quello che gli serve o ritiene utile, a creare un elenco prezzi, ad avere l’aggiornamento automatico dei prezzi, fare verifiche, etc. Una vasta gamma di funzioni che aiutano il professionista nel suo lavoro quotidiano.

█ Oltre alla consultazione dei prezzari, ci sono altre funzionalità che offre DEI PLUS?

Sì, per esempio è possibile scaricare i dati per creare un proprio elenco prezzi; che sia un elenco prezzi di progetto specifico oppure generale. Questa funzionalità può essere molto utile nel momento in cui un professionista deve lavorare su due edifici diversi che hanno voci uguali; infatti, un determinato listino si

può anche duplicare e averlo in automatico con l’aggiornamento. Per aggiornamento automatico si intende che nel momento in cui viene stampato un nuovo prezzario, l’aggiornamento non sarà svolto più dal cliente, ma avviene in automatico se per quelle voci sono presenti aggiornamenti, diversamente rimarrà inalterato fino a nuove quotazioni. Senza dubbio le quattro funzioni più importanti di DEI PLUS sono: cercare, visualizzare, esportare e creare elenchi prezzi.

█ Prossimi obiettivi di DEI PLUS?

Per il 2023 stiamo lavorando a due novità molto importanti: fornire la banca dati di un software per il computo metrico e i cataloghi aggiornati con il BIM. Sarà molto importante avere i cataloghi “BIMizzati” perché dal 1° gennaio 2025 entrerà in vigore l’obbligatorietà dell’utilizzo del BIM per tutti i lavori pubblici con importo superiore a un milione di euro. Infatti, se all’oggetto BIM di cui dispone il cliente si aggiunge il prezzo medio DEI, questo consente al professionista di ottenere in automatico il costo quando andrà a inserire all’interno del suo progetto BIM quel prodotto specifico.

41 INTERVISTA settembre 2023

Le Televisite nelle commissioni medico-legali dell’INPS

All’interno dell’attuale contesto sanitario e normativo, le commissioni medico-legali INPS possono implementare la Telemedicina per l’attività di accertamento, evitando sia il disagio dello spostamento all’interessato, sia il sovraccarico delle strutture sanitarie dell’Istituto stesso

Le attività medico-legali ambulatoriali dell’INPS, similmente a quelle del SSN, hanno subìto un forte rallentamento dell’attività a causa dell’emergenza sanitaria collegata al SARS-CoV-2. Al blocco delle visite dirette durante la prima fase è subentrato successivamente, alla ripresa dell’attività in presenza, un rallentamento dell’attività dovuto alle restrizioni sanitarie per la sicurezza di utenti ed operatori che hanno accresciuto considerevolmente i tempi medi di definizione dell’accertamento delle minorazioni civili (invalidità, cecità e sordità), dell’handicap e della disabilità per il collocamento mirato al lavoro. Per ovviare a ciò, il Coordinamento Generale Medico Legale dell’INPS (CGML) ha indicato alle commissioni presso le Unità Operative medico legali di provvedere, laddove possibile, a definire gli accertamenti con valutazioni su atti anche in lavoro agile.1

1 INPS Messaggio n. 1502 del 06-04-2020 Procedimento di accertamento sanitario dell’invalidità civile, cecità civile, sordità, handicap e disabilità in periodo emergenziale COVID-19; INPS Messaggio numero 001609 del 14/04/2020.

Con l’art. 29-ter della Legge 11/09/20 n. 120 è anche intervenuta un’importante novella legislativa, che ha riconosciuto e regolarizzato l’attività su atti. Pertanto, in casi selezionati e ben documentati, è possibile semplificare l’iter per l’accertamento medico legale assistenziale, riducendo notevolmente i tempi di definizione.2

In questo nuovo contesto sanitario e normativo è possibile individuare un quadro di soluzioni – sia organizzative che tecnologiche – che consenta alle commissioni medico-legali di interagire con gli interessati nel processo di accertamento mediante modalità di telemedicina, ottenendo il doppio beneficio sia di evita-

2 Nel corso del 2022 è stato introdotto un servizio innovativo sul sito web dell’Istituto, denominato “Allegazione documentazione sanitaria invalidità civile”, al fine di assicurare l’acquisizione di documentazione sanitaria con caratteristiche di sicurezza. Questo servizio consente a cittadini, patronati e medici certificatori di inviare telematicamente la documentazione sanitaria per una potenziale definizione su atti, attraverso un processo che garantisce il rispetto di regole essenziali riguardanti l’identificazione, la sicurezza e i requisiti del GDPR.

di Sergio Alessandrini e Fabrizio Massimo Ferrara
42 INFORMATICA settembre 2023

re all’interessato il disagio dello spostamento, sia il sovraccarico delle strutture sanitarie dell’INPS. Lo studio è stato condotto nell’ambito di una collaborazione fra il “Laboratorio sui Sistemi Informativi Sanitari” dell’ALTEMS, Alta Scuola di Economia e Management dei Sistemi Sanitari dell’Università Cattolica del Sacro Cuore, e l’Unità Operativa medicolegale dell’INPS presso la Filiale di Roma Montesacro. In questo articolo sono descritti i passi salienti del processo, per il quale è stato realizzato anche un dettagliato manuale operativo (figura 1), disponibile liberamente sul sito www.dati-sanita.it.

IL PROCESSO DI ACCERTAMENTO

SANITARIO DELLE MINORAZIONI CIVILI E DELL’HANDICAP

Il processo di accertamento sanitario delle minorazioni civili (invalidità, cecità e sordità, di cui rispettivamente alle leggi n. 295/90, n. 382/70 e n. 381/70), dell’handicap (L. 104/1992) e della disabilità per il collocamento mirato al lavoro (L. 68/1999) è schematizzabile nelle seguenti fasi:

a. il certificato medico introduttivo, redatto in formato digitale, è inoltrato telematicamente all’INPS dal medico certificatore abilitato, attivando l’iter di una nuova istanza;

b. il cittadino richiedente presenta la domanda di prima istanza/aggravamento per via telematica, indicando obbligatoriamente anche il codice identificativo del certificato medico precedentemente acquisito;

c. completata la connessione tra i due moduli (certificato e domanda), il sistema consente l’inoltro telematico all’INPS, che provvede a trasmettere l’istanza, sempre per via telematica, alle Aziende Sanitarie Locali (ASL) di competenza;

d. la programmazione del calendario delle visite segue l’ordine cronologico di presentazione delle domande;

e. in caso di revisione, la convocazione è effettuata direttamente dall’INPS, così come l’accertamento medico-legale;

f. il cittadino riceverà comunicazione mediante lettera raccomandata a/r della data della visita ambulatoriale secondo il calendario di appuntamento della ASL o della U.O. medicolegale INPS competente per residenza del cittadino in caso di convezione (vedi appresso);

g. la visita domiciliare è effettuabile solo nell’ipotesi di non trasportabilità del soggetto richiedente; in tal caso il medico certificatore può indicarlo direttamente nel certificato introduttivo, oppure deve compilare e inviare telematicamente il certificato medico integrativo, almeno 5 giorni prima della data già fissata per la visita ambulatoriale;

43 INFORMATICA settembre 2023
Figura 1 – Il manuale operativo

h. l’accertamento del possesso dei requisiti sanitari previsti dalla legge viene attuato da una commissione medico-legale presso l’ASL o presso l’INPS nelle Province dove le Regioni hanno delegato l’accertamento all’Istituto;

i. le commissioni per l’invalidità civile sono composte da tre medici (art. 1, comma 2, della L. 295/90): uno specialista in medicina legale che assume le funzioni di presidente e due medici di cui uno scelto prioritariamente tra gli specialisti in medicina del lavoro; in caso di accertamenti finalizzati anche alla valutazione dello stato di handicap (L.104/92) o disabilità (L. 68/99), la commissione è la medesima che accerta l’invalidità civile, integrata da un “operatore sociale” e un “esperto nei casi da esaminare” (queste ultime due figure sono previste dalla L.104/92, art. 4);

j. al momento della visita, il cittadino consegna alla commissione la documentazione sanitaria in possesso, a meno che non l’abbia già allegata sul portale INPS;

k. ultimati gli accertamenti, la commissione redige in formato digitale il verbale di visita, uno per ogni tipologia di richiesta, che viene inviato all’interessato in duplice copia: una con tutti i dati sanitari e l’altra con il solo giudizio finale; i verbali sanitari in formato digitale sono a disposizione degli uffici amministrativi INPS per gli adempimenti successivi (fase amministrativa);

l. possono essere redatti verbali su atti in tutti i casi in cui sia stata presentata una documentazione sanitaria che consenta una valutazione obiettiva; la valutazione su atti può essere richiesta anche dal diretto interessato o da chi lo rappresenta; in ogni caso spetta al responsabile della commissione di accertamento indicare la documentazione sanitaria da produrre.

Anche nel caso di visita presso la ASL la validazione definitiva del verbale è compiuta dell’INPS (legge 3 agosto 2009, n. 102). Nelle regioni o provincie ove l’attività di accertamento delle minorazioni civili, dell’handicap e della disabilità per il collocamento mirato è effettuata dall’INPS in convenzione (ad es. Friuli V.G, Veneto, Lazio, Campania, Basilicata), a fronte della domanda del cittadino le relative pratiche vengono acquisite telematicamente dall’INPS e assegnate per competenza territoriale alle diverse U.O. medicolegali, che possono consultarne la lista, calendarizzare le sedute per le commissioni ed aggiornare lo stato delle pratiche mediante le procedure informatiche aziendali (procedura CIC). L’accentramento di competenze ha generalmente realizzato un più efficace iter del processo, riducendo notevolmente i tempi di definizione.

L’ACCERTAMENTO DELL’HANDICAP

La redazione di verbali su atti sanitari probanti è ben applicabile all’invalidità civile, essendo valutazione di stretta pertinenza

medico-legale che, in casi selezionati, può fare a meno degli elementi acquisibili solo mediante la visita diretta e l’esame obiettivo dell’interessato.

Nell’accertamento dello stato di handicap invece la valutazione non è solo di competenza medica ma è affidata ex art. 4 L. 104/92 a commissioni di tipo interdisciplinare (Medici, Operatore Sociale, Esperto nei casi da esaminare) e polispecialistico (Medico legale, Medico del lavoro) e si basa anche su informazioni di contesto (sociali e ambientali) che sono ottenibili solo attraverso il colloquio diretto con l’interessato oppure, in caso di persone non collaboranti, con i suoi familiari/caregiver 3

In base alla normativa, l’handicap non è una caratteristica intrinseca all’individuo, ma piuttosto il risultato dell’interazione della minorazione, fisica, psichica o sensoriale, stabilizzata o progressiva con l’ambiente di vita e di lavoro, che la Legge definisce come processo di emarginazione o di svantaggio sociale. Quest’ultimo è la limitazione o l’impedimento alla partecipazione della persona alle normali attività che costituiscono l’esistenza umana, mentre per emarginazione si deve intendere una condizione di esclusione non volontaria dai rapporti sociali che riduce, in concreto e non già in astratto, le opportunità e lo sviluppo della personalità.

Pertanto, l’accertamento deve essere individualizzato e non può prescindere dalla particolareggiata descrizione del “profilo di funzionamento” del soggetto. Detto profilo deve poter descrivere il livello di funzionamento del soggetto conseguente all’interazione delle sue menomazioni e capacità, già valutate dalla componente medica della commissione, con gli ostacoli ma anche con i supporti forniti dai fattori ambientali.

Specialmente la valutazione dell’intervento assistenziale – ai fini del giudizio di gravità ex art.3 c.3 – evidenzia che non può prescindersi da un accertamento individualizzato, ad esclusione dei casi di riconoscimento ex lege: grandi invalidi di guerra ed equiparati (art. 38, c.5 L. 448/98) e persone con S. di Down ( art. 94, c.3 L. 289/02).

La descrizione del profilo di funzionamento del soggetto basato sullo svantaggio socio-relazionale (limitazioni dell’attività e restrizioni della partecipazione) e sul contesto ambientale, sono realizzate dalle commissioni col supporto dell’Operatore Sociale (O.S.), ruolo con caratteristiche non esattamente specificate dalla legge e che nelle ASL è stato generalmente individuato nel profilo dell’Assistente Sociale.

Nell’Istituto le informazioni ottenute dall’O.S. sono registrate nella scheda socio-ambientale – composta dai moduli «Attività

3 Si rimanda al testo della Legge, in particolare all’articolo 3, comma 1, 2 e 3 per le definizioni di handicap di cui alla L. 104/1992. I concetti di menomazione, disabilità e handicap della Legge 104 si ispirano alla classificazione internazionale delle menomazioni (ICIDH) elaborata dall’OMS nel 1980.

44 INFORMATICA settembre 2023

e Partecipazione» e «Fattori ambientali» ricavati dalla Checklist del W.H.O. – parte integrante del verbale prodotto dalla commissione in quanto consente di delineare le limitazioni dell’attività e le restrizioni della partecipazione, nonché i fattori ambientali sussistenti nel caso specifico.4 Nelle ASL viene invece generalmente compilata ed allegata al fascicolo una «scheda di valutazione sociale».

L’iter valutativo presso l’INPS prevede che la commissione interdisciplinare esamini il certificato introduttivo e la documentazione inviata dall’interessato.

Nel caso si ritenga necessaria una visita diretta, si possono verificare due casi:

█ viene calendarizzata una visita di accertamento presso la U.O. medico-legale (caso più comune);

█ qualora invece il cittadino sia riconosciuto intrasportabile, a seguito di specifica richiesta corredata da certificazione integrativa, due medici della commissione effettuano una visita a domicilio; l’esito di tale visita verrà successivamente valutato dalla commissione, in apposita seduta, ai fini della redazione del verbale definitivo.

4 WHO - IFC Checklist. Reperibile su: https://www.who.int/standards/classifications/ international-classification-of-functioning-disability-and-health

In caso di visita in presso la U.O., la commissione procede ad eseguire:

█ una valutazione medica sullo stato clinico; █ un colloquio con l’interessato o con i suoi caregiver/familiari (in caso di importante deficit cognitivo) per valutare il profilo di funzionamento e compilare, da parte dell’O.S., la scheda socio-ambientale.

Nel caso in cui la valutazione possa basarsi interamente su atti o venga effettuata una visita a domicilio, l’accertamento medicolegale dell’handicap effettuato dalla commissione rimarrebbe privo degli elementi indispensabili contenuti nella scheda socioambientale, ottenibili solo con l’intervista dell’interessato o con i suoi familiari.

L’intervista ai fini della compilazione della scheda socio-ambientale potrebbe effettuarsi mediante un colloquio telefonico con l’interessato e/o i suoi familiari e caregiver. Tuttavia, l’interazione telefonica con l’interessato può essere problematica e presenta comunque evidenti limitazioni, in quanto non consente una valutazione complessiva del contesto ambientale, logistico e sociale fornita dagli stessi interessati, che è invece necessaria ai fini della determinazione dell’handicap, inteso come “svantaggio sociale” del soggetto nel proprio contesto relazionale e culturale.

45 INFORMATICA settembre 2023
█ Figura 2 – Il percorso nell’accertamento dello stato di handicap

Per ovviare a questo limite, sia l’intervista sia la scheda sociale possono essere acquisite mediante soluzioni di telemedicina, allo stesso modo di una visita in presenza, modalità che consente di completare la valutazione rispettando il principio di collegialità previsto dalla normativa.5

LO SCENARIO CON L’UTILIZZO DI SOLUZIONI DI TELEMEDICINA

Nel rispetto di questo quadro normativo, nel seguito viene descritta una procedura di telemedicina studiata per supportare le commissioni medico-legali dell’INPS nell’accertamento dello stato di handicap, mediante l’impiego di una piattaforma di comunicazione in grado di consentire una più completa interazione con l’interessato ed eventualmente con i suoi familiari/caregiver

A questo scopo è necessario un sistema di comunicazione in grado di consentire -in modo integrato- la comunicazione audiovideo e lo scambio di messaggi e documenti via chat, implementando le necessarie misure di sicurezza in termini di crittografazione di tutte le comunicazioni. Per la sua immediatezza, gratuità e semplicità d’uso, nello studio si è fatto riferimento alla piattaforma Skype, che può essere sostituita con qualsiasi altra piattaforma esistente sul mercato in grado di fornire le stesse funzionalità.

Le prestazioni in modalità di telemedicina consistono in una intervista al cittadino richiedente, nella quale la commissione INPS, dopo aver formulato la diagnosi e valutato il complesso delle minorazioni e la capacità complessiva individuale residua, attraverso l’O.S. redige la scheda socio-ambientale sulla quale, come da prassi, si baserà anche il giudizio definitivo collegiale (1. non handicap, 2. handicap; 3. handicap in situazione di gravità).

L’attività in questione può essere assimilata ad una prestazione di televisita, secondo la definizione contenuta nelle «Indicazioni nazionali per l’erogazione di prestazioni in telemedicina» del dicembre 2020.

Il protocollo descritto nel seguito si intende applicabile agli accertamenti effettuati nei casi seguenti:

a. Completamento di un accertamento su atti (ex art.29-ter L. 120/2020);

b. Completamento di visita domiciliare (persona intrasportabile).

Nel caso in cui si pianifichi una visita medica in presenza presso la U.O. medico-legale, il colloquio avverrà invece direttamente

5 “La commissione medica U.S.L. si pronuncia collegialmente con l’intervento di almeno tre membri.” art. 1 comma 5 del Decreto M. Tesoro 5 agosto 1991, n. 387 “Regolamento recante le norme di coordinamento per l’esecuzione delle disposizioni contenute nella Legge 15 ottobre 1990, n. 295, in materia di accertamento dell’invalidità civile. GU Serie Generale n.286 del 06-12-1991

con gli interessati a seguito della visita medica. La figura 2 schematizza le varie casistiche.

IL PERCORSO ORGANIZZATIVO CON PROTOCOLLO DI TELEMEDICINA

Nel caso di completamento della valutazione interamente sulla base degli atti:

1. Le commissioni medico legali inviano all’interessato a mezzo posta elettronica (se l’indirizzo è disponibile) ovvero con plico postale – sia in caso di primo accertamento, sia in caso di revisione – una lettera di richiesta di documentazione sanitaria, conforme al modello stabilito dal CGML, invitandolo a trasmettere la documentazione sanitaria secondo le procedure stabilite dall’Istituto;

2. Se l’interessato non produce documentazione probante, che consenta una valutazione obiettiva, verrà convocato a visita diretta;

3. Qualora invece l’interessato provvede, nei termini stabiliti, all’invio di documentazione adeguata, ovvero in presenza di idonea documentazione a disposizione della commissione (ad es. verbale IC di recente visita domiciliare effettuata), questa potrà redigere il verbale di handicap sulla base degli atti in apposita seduta;

4. L’O.S. contatta telefonicamente il richiedente per informarlo della possibilità di procedere alla raccolta degli elementi socio-ambientali mediante televisita. In caso di accettazione, verifica con l’interessato la disponibilità delle infrastrutture tecniche necessarie (di fatto un semplice smartphone), spiega le operatività ed invia – via mail – una lettera informativa ai sensi della protezione dei dati personali ed un breve manuale di istruzioni su come utilizzare la piattaforma ed accedere al servizio. Concorda inoltre la data per un contatto preliminare per verificare il corretto funzionamento della piattaforma di comunicazione e la successiva data dell’effettiva televisita;

5. Precedentemente alla televisita, l’O.S. pianifica la videochiamata, inviando contestualmente al richiedente un messaggio tramite la piattaforma, al quale il richiedente stesso risponderà per conferma;

6. Effettuato il collegamento telematico con l’interessato, la commissione procederà all’intervista ai fini dell’acquisizione degli elementi socio-ambientali, che verranno registrati a cura dell’O.S. nell’apposita scheda già presente in procedura CIC, in quanto allegato integrante al verbale definitivo;

7. Al termine del colloquio l’O.S. chiede al paziente di esprimere il livello di soddisfazione e di gradimento nella procedura utilizzata e, nel caso, degli eventuali problemi riscontrati; tali dati, insieme ad altri indicatori valutati dalla commissione sono

46 INFORMATICA settembre 2023

registrati in una apposita scheda anonima al fine di esaminare la validità del protocollo di telemedicina utilizzato;

8. Subito dopo la televisita, la commissione collegialmente completerà il verbale definitivo utilizzando l’applicativo “Invalidità Civile in Convenzione “ (CIC) con le modalità consuete.

Nel caso di completamento delle visite domiciliari (persona intrasportabile):

1. I due medici incaricati, il giorno della visita al domicilio, rilevato che la persona visitata si trova nelle condizioni di poter usufruire dei servizi a distanza, consegnano la documentazione prevista e anticipano all’interessato che sarà contatto dall’O.S. per procedere nella pianificazione della televisita con la commissione per la raccolta degli elementi socio-ambientali;

2. Le successive attività si esplicano come dal punto “4” in avanti dell’accertamento su atti.

Il soggetto sottoposto all’accertamento viene informato della modalità telematica per la televisita della commissione di accertamento dell’handicap:

1. direttamente dai medici incaricati di effettuare la visita medica a domicilio;

2. telefonicamente, a seguito della decisione da parte della commissione di effettuare la valutazione agli atti, sulla base della documentazione precedentemente inviata dal soggetto sottoposto all’accertamento.

Il materiale informativo fornito al soggetto sottoposto all’accertamento, descritta anche in una lettera – consegnato direttamente o inviata per mail – consiste in:

a. una informativa sugli aspetti di protezione dei dati personali correlati con la modalità di interazione tramite telemedicina. La lettera fa riferimento a e rappresenta una integrazione della più generale informativa fornita dall’Istituto al cittadino, nel momento in cui è stata iniziata la pratica;

b. un breve manuale di istruzioni che spieghi il servizio e l’utilizzo della piattaforma di comunicazione adottata per la teleseduta prevista.

LA TELESEDUTA

Prima della data programmata (tendenzialmente il giorno prima), l’O.S. pianifica una chiamata al soggetto sottoposto all’accertamento con la apposita funzione “pianifica chiamata”, specifican-

47 INFORMATICA settembre 2023
█ Figura 3 – Lo svolgimento della teleseduta

do la data e l’ora prevista. Il soggetto sottoposto all’accertamento, mediante la chat della piattaforma di comunicazione adottata conferma la partecipazione alla teleseduta ed invia eventuali altre comunicazioni che ritenga rilevanti. All’orario concordato ha luogo la teleseduta (schematizzata in Figura 3), che si articola nei passi descritti nel seguito:

█ Prima di iniziare la chiamata, l’O.S. prende visione di eventuali comunicazioni inviate dal soggetto sottoposto all’accertamento sulla chat.

█ L’O.S. effettua la chiamata, alla presenza degli altri componenti della commissione, e comincia il colloquio con il soggetto sottoposto all’accertamento ed eventualmente anche con i suoi familiari/care-giver; sulla chat della piattaforma di comunicazione è automaticamente registrato sia l’inizio della chiamata che l’orario. Qualora nel corso del colloquio siano presenti terze persona (familiari o care-giver) ad assistere il soggetto all’accertamento, l’O.S. acquisisce e registra sulla scheda il consenso verbale da parte dell’interessato e procede all’identificazione della/delle persone presenti chiedendo loro di inviare una foto di un proprio documento tramite la chat, provvede quindi alla stampa del documento ricevuto e la archivia nella pratica, cancellando subito dopo il file dalla chat. Alternativamente, può chiedere di mostrare il documento attraverso la webcam, ed acquisisce uno screenshot dello schermo, che stampa e archivia.

█ Durante la teleseduta l’O.S. registra nella scheda le informazioni necessarie acquisite tramite il colloquio, come avviene durante le visite in presenza, specificando nella registrazione che la seduta è avvenuta in modalità telematica.

█ Al termine della seduta, prima di terminare il colloquio, l’O.S. invita il soggetto sottoposto all’accertamento ad esprimere il livello di soddisfazione e di gradimento e, nel caso, eventuali problemi riscontrati. Questi dati (anonimi) sono registrati dall’Operatore Sociale, insieme a sue altre valutazioni, in un apposito file Excel che sarà utilizzato per analizzare la validità del protocollo di telemedicina adottato.

█ Al termine della teleseduta vengono cancellate dalla chat tutte le eventuali comunicazioni che sono intercorse fra l’interessato e la commissione.

SVILUPPO DI SOLUZIONI DI TELEMEDICINA IN AMBITO MEDICO-LEGALE PUBBLICO

La telemedicina in ambito prettamente clinico è considerata un complemento alle prestazioni tradizionali ed è utilizzata in diverse tipologie di soluzioni in relazione alle differenti esigenze di interazione con il paziente (tele-visita, tele-monitoraggio, tele-assistenza) o di collaborazione tra operatori sanitari (tele-collabo-

razione, tele-consulto) previsti dai percorsi clinico-assistenziali per le diverse patologie, compatibilmente con le caratteristiche dei pazienti.

In campo medico-legale gli accertamenti tradizionalmente prevedono il “rigorismo obiettivo sia concettuale, sia tecnico” ovvero un esame clinico del soggetto condotto con una metodologia compatibile con le specifiche esigenze della disciplina, per cui il giudizio medico-legale conseguente “deve rappresentare l’immagine fedele della verità oggettiva … fondato su dottrine e su principi scientifici sicuri o prevalenti”.6 Ciò solo apparentemente è di ostacolo all’utilizzo della telemedicina nell’attività medico-legale.

Nel caso di attività collegiali finalizzate all’accertamento di minorazioni civili, come già definite in precedenza, o della disabilità per il collocamento al lavoro, la normativa già citata prevede che la commissione “si pronunci collegialmente con l’intervento di almeno tre membri”, ovvero ogni membro deve agire in modo congiunto e collaborativo con gli altri, prendendo decisioni simultaneamente in maniera consultiva e condividendo responsabilità e autorità, al fine di emettere il giudizio valutativo finale che sarà riportato nel verbale.

Nessuna disposizione normativa, tuttavia, impone la compresenza fisica dei componenti la commissione in uno stesso luogo e difatti nel periodo del c.d. lockdown sono state permesse dal CGML dell’INPS commissioni valutative su atti che operavano con modalità da remoto in videoconferenza.

A ben vedere, nulla vieta che l’esame obiettivo medico-legale dell’interessato venga condotto da un solo medico in presenza, che redige pure il verbale informatizzato, mentre il resto della commissione partecipa da remoto mediante un programma di videoconferenza. In tal modo medico in presenza e membri da remoto possono interagire simultaneamente tra di loro e con l’interessato, procedere all’intervista per le diverse esigenze valutative e poi decidere collegialmente a seconda della tipologia di verbale da compilare con le modalità già descritte.

Tale modalità “mista” (presenza/remoto) di accertamento collegiale potrebbe essere efficacemente sviluppata in ultima analisi anche per il contenzioso giudiziario assistenziale e previdenziale di competenza INPS.

In questa ultima eventualità, il consulente di parte INPS (CTP) secondo il dispositivo dell’art. 194 cc può “intervenire alle operazioni” del consulente tecnico d’ufficio (CTU) nominato dal giudice e può “presentare al consulente, per iscritto o a voce, osservazioni e istanze”. I termini utilizzati “intervenire”, “presentare per iscritto o a voce” riferiti al CTP non impongono una precisa mo-

48 INFORMATICA settembre 2023
6 Gerin C., Antoniotti F., Merli S.: Medicina Legale e delle Assicurazioni, Roma, S.E.U., 1986

dalità di intervento, né la compresenza fisica col CTU; pertanto, si ritiene che sia possibile un’interpretazione in senso più ampio, fino a comprendere anche la modalità di collegamento mediante videoconferenza durante le operazioni peritali. Naturalmente il caso del contenzioso giudiziario richiede un approfondito studio di compatibilità normativa e tecnica per assicurare il rispetto formale e sostanziale del principio del contraddittorio, esame che esula dalle finalità del presente contributo.

CONCLUSIONI

L’INPS, con oltre 120 anni di storia, è un’istituzione che svolge un ruolo centrale nel welfare del nostro Paese e che ha dimostrato una grande capacità di innovazione tecnologica, spesso ponendosi all’avanguardia rispetto ad altre amministrazioni pubbliche. Attraverso la sua Area medico-legale gestisce, tra l’altro, l’accertamento sanitario delle minorazioni civili (invalidità, cecità e sordità), dell’handicap e della disabilità ai fini del collocamento mirato al lavoro, mediante modalità ed applicazioni informatiche. La recente emergenza correlata al SARS-CoV-2 ha determinato effetti drammatici sulla società e l’economia italiane, ma anche opportune reazioni quali l’accelerazione dei cambiamenti tecnologici ed informatici, tra cui lo sviluppo della telemedicina, considerata uno dei pilastri dell’innovazione nel campo sanitario all’interno del Piano Nazionale di Ripresa e Resilienza (PNRR). Anche nell’INPS, pertanto, è stato avviato uno studio di modalità di accertamento medico-legale innovativo, individuando nell’accertamento dello stato di handicap un campo di sperimentazione più che adeguato, assimilabile ad una prestazione di televisita, anche se al momento limitato al completamento di visite domiciliari o di accertamenti su atti.

La procedura proposta rispetta i processi esistenti sotto il profilo sanitario, organizzativo ed amministrativo delle U. O. medicolegali e delle commissioni INPS, ed ha il vantaggio di non richiedere investimenti in nuovo software e/o hardware, né un particolare impegno nella formazione e/o nel supporto del personale INPS e nei confronti dei cittadini richiedenti il riconoscimento dell’handicap. Per il cittadino richiedente, già in possesso almeno di uno smartphone , non è necessario alcun costo aggiuntivo se non quello del collegamento alla rete Internet.

Tale nuova modalità di accertamento richiede un’adeguata fase di sperimentazione con un approccio graduale, sia per ottimizzare in corso d’opera la procedura, sia per registrare gli indicatori (impegno, tempo, soddisfazione del richiedente) che permettano di ottenere dati oggettivi atti a dimostrare i benefici conseguibili e l’efficacia della modalità di telemedicina proposta. Il limite della procedura è riconducibile alla possibile assenza di conoscenze informatiche minime, alle carenze nella disponibilità

di strumenti telematici o alla insufficiente qualità delle infrastrutture a disposizione dei cittadini. Questi aspetti problematici, riassumibili col termine digital divide, sono un condizionamento comune allo sviluppo di tutte le soluzioni di telemedicina nel nostro Paese.

Ci auguriamo che la modalità di acquisizione dei verbali di handicap descritta, che ha ricevuto anche l’approvazione informale ma indubbia del massimo rappresentante dell’Ente, potrà essere sperimentata presso tutte le U.O. medico-legali dell’INPS. In ogni caso non sembra più procrastinabile l’implementazione di una modalità “mista” (presenza/remoto) di accertamento collegiale che permetta di risolvere le difficoltà gestionali dell’attività medico-legale assistenziale, sia ordinaria che nella eventuale fase di contenzioso giudiziario.

Gli autori

SERGIO ALESSANDRINI

Coordinatore medico-legale a.i. Unità Operativa Complessa – INPS Regione Lazio e INPS Roma Montesacro FABRIZIO MASSIMO FERRARA

Docente di Informatica e sistemi informativi nel Corso di Laurea in Economia e Gestione delleAziende e dei Servizi Sanitari e Coordinatore del “Laboratorio sui sistemi informativi sanitari” (7) presso l’ ALTEMS – Alta Scuola di Economia e Management dei Sistemi Sanitari, Università Cattolica del Sacro Cuore

Bibliografia

█ Alessandrini S. “La Televisita per l’accertamento dello stato di Handicap (L. 104/92): proposta di modalità operativa per le commissioni INPS”, tesi discussa 05/02/21 per conseguimento diploma Master Universitario di II Livello in “Organizzazione e Gestione delle Aziende e dei Servizi Sanitari” ALTEMS Università Cattolica Del Sacro Cuore, Anno Accademico 2019-2020

█ Alessandrini S., Ferrara F.M., Fracasso A., Papavero S., Pillon S., Stefanelli S.: “Studio per l’introduzione delle televisite nel processo di accertamento dello stato di handicap da parte delle commissioni medico-legali dell’INPS” – Osservatorio sulla Telemedicina - ALTEMS - Alta Scuola di Economia e Management dei Sistemi Sanitari - Università Cattolica del Sacro Cuore – www.dati-sanita.it/wp/

█ Tridico P. “Le innovazioni INPS per la tutela dei fragili” Sanità Complementare, n.3 pp. 40-44, 2022 - https://www.lavorowelfare.it/2022/12/20/sanita-complementare-numero-3/

7 https://altems.unicatt.it/altems-laboratori-e-osservatori-i-sistemi-informativi-sanitari-per-il-governo-dell-organizzazione

49 INFORMATICA settembre 2023

La luce giusta al momento giusto

Parlare di illuminazione nel settore ospedaliero vuol dire più che mai avere la luce giusta, al momento giusto e nel posto giusto tenendo conto delle esigenze di operatori sanitari e pazienti

Diminuire le ombre e ridurre l’affaticamento degli occhi dell’équipe chirurgica comporta una riduzione del livello di distrazione.

Il paziente, invece, avendo un approccio diametralmente opposto alle strutture sanitarie, dovrà avere un’esperienza per quanto possibile serena. Migliorare l’accoglienza degli ambienti nel suo insieme è un aspetto fondamentale che riguarda anche la scelta degli apparecchi di illuminazione da installare nei vari reparti.

Lo scopo è quello di creare un ambiente positivo per l’utilizzatore per l’intera permanenza in struttura, sia se si parla di un intervento chirurgico, sia se riferito a una semplice, ma mai banale, breve visita ambulatoriale.

Il progetto illuminotecnico deve necessariamente tener presenti le due macrocategorie di utilizzatori finali: gli operatori sanitari e i pazienti.

La luce va intesa come un mezzo necessario affinché gli operatori sanitari possano lavorare in modo sicuro ed efficiente, deve poter ridurre al minimo l’abbagliamento in situazioni delicate e fornire il massimo comfort visivo durante lo svolgimento delle proprie mansioni.

L’illuminazione ha quindi questo compito: creare un ambiente sicuramente funzionale, ma anche confortevole e stimolante. Quando si progettano e si installano fonti di luce, oltre all’approccio funzionale ed estetico, dovranno essere seguiti anche una serie di requisiti tecnici regolamentati dalla normativa UNI EN 12464-1, che stabilisce le linee guida dell’illuminazione nei luoghi di lavoro in interno, dove vengono presi in esame anche le Strutture Sanitarie, che dovranno soddisfare le tre esigenze fondamentali, ovvero il comfort visivo, la prestazione visiva e la sicurezza.

I parametri presi in esame saranno quindi i seguenti:

█ distribuzione delle luminanze: è necessario evitare contrasti di luminanze troppo elevati o troppo bassi al fine di supportare il comfort visivo;

di Margherita Lunghi 50 ILLUMINAZIONE settembre 2023
█ Realizzazione sala operatoria

█ illuminamento medio (Em): i valori medi da mantenere, necessari a garantire il comfort visivo, che riguardano le superfici di riferimento nella zona del compito visivo e in quelle circostanti; █ abbagliamento molesto: impedisce una visione corretta del compito visivo. Deve esserevalutato utilizzando il metodo CIE dell’indice unificato di abbagliamento UGR; █ apparenza del colore: si riferisce al colore apparente della luce emessa ed è definita dalla temperatura di colore correlata: luce bianco calda, minore di 3000 K, luce bianco neutra, da 3300 a 5300 K, luce bianchissima maggiore di 5300 K; █ resa del colore (CRI): è un indice che definisce la capacità di una lampada di restituire in modo adeguato i colori, definendo 100 il valore reale;

█ fattore di manutenzione: deve essere stabilito dal progettista in base alle caratteristiche dell’impianto, degli apparecchi e del programma di manutenzione.

UN’ILLUMINAZIONE DIFFERENTE PER CIASCUNA AREA OSPEDALIERA

Le aree di applicazione possono essere a grandi linee suddivise in: Sale operatorie, con particolare attenzione anche alle aree pre e post-operatorie, unità di cura intensiva, lunghe degenze, locali per gli operatori, quali studi medici e sale infermieri, oltre a tutti quei locali ausiliari, come ad esempio le sale d’aspetto, i corridoi, le aree di transito e altri che possono rendersi necessari in base al tipo di struttura e al progetto.

specifici, quali ad esempio quelli dedicati alla maternità o anche all’oculistica.

SALE OPERATORIE

Le sale operatorie richiedono un’attenzione speciale, in questo caso è molto importante che anche il corpo stessa dell’apparecchio risponda a determinate caratteristiche. Questa e un’area a contaminazione controllata, dove la pulizia di tutti i componenti al suo interno è fondamentale per mantenere il locale asettico.

Per quanto riguarda la parte illuminotecnica, la norma generale prevede 1000 lux, mentre per l’area chirurgica è richiesta un’illuminazione, che coadiuvata da lampade scialitiche, va da 10.000 a 100.000 lux.

L’illuminazione generale della sala poi dovrà avere un’eccellete emissione associata ad un ottimo sistema di diffusione, meglio se si prevede il microprismatizzato, in quanto aiuta a creare i giusti contrasti e profondità visiva nell’ambiente di lavoro, un UGR19 per minimizzare il rischio di abbagliamento, un’alta resa cromatica (CRI) maggiore di 90 con una temperatura di colore neutra di 4000K.

Gli apparecchi dovranno quindi prevedere una protezione totale IP65 per scongiurare la possibilità di infiltrazione di agenti esterni in forma di vapori liquidi o di polveri; il diffusore dovrà essere in vetro, materiale che permette la pulizia diretta coi i principali detergenti usati nel settore.

Un apparecchio sempre più richiesto e utilizzato ormai da anni per le operazioni chirurgiche è l’RGB+W che combina la luce bianca ai colori che, a seconda del tipo di operazione, possono essere da ulteriore supporto per una visione sempre più ottimale durante le diverse procedure.

Queste sono le condizioni ideali per illuminare una sala operatoria, che si presume dovrà durare negli anni garantendo agli operatori di svolgere al meglio le loro delicate mansioni evitando affaticamenti visivi nell’immediato o portare nel lungo periodo a disagi o danni alle capacità visive del personale di sala.

█ Apparecchio tipo ospedaliero

Per quanto di nostro interesse possiamo ritrovare questi parametri elencati nel settore degli Edifici di cura, che prende in esame le sale operatorie, i locali diagnostici, le corsie, le sale per il personale, oltre a dare particolare attenzione a reparti

█ Parametri illuminotecnici, Sale Operatorie

RIANIMAZIONE E CURE INTENSIVE

Passando alle aree di terapia intensiva o di lunga degenza ci si trova in una situazione dove permane la necessità del veder bene dell’operatore, ma inizia ad essere molto importante an-

51 ILLUMINAZIONE settembre 2023

che la percezione del paziente, che deve ritrovarsi il più possibile in un ambiente sicuro e confortevole.

Gli apparecchi dovranno avere sempre un’elevata efficienza per facilitare l’assistenza medica e infermieristica, ma l’emissione potrà essere più diffusa e uniforme, rispetto a una sala operatoria, per trasmettere una sensazione più avvolgente e confortevole, per questo si consiglia di utilizzare un diffusore opale in vetro o metacrilato, che garantisce un’ottima resa da questo punto di vista.

I requisiti tecnici prevedono un grado di protezione da IP54 a IP65, anche questo varia in base alla semplice degenza o agli eventuali macchinari presenti nelle terapie, a quanto queste possono essere invasive o con potenziale rischio di infezione, come potrebbe essere un reparto di grandi ustionati.

Anche in questo caso è consigliata una buona resa cromatica CRI90, ma non è vincolante come in una sala operatoria, così come la temperatura colore di 4000K e un UGR che può variare dai 19 ai 22, mentre i lux richiesti devono rientrare in un delta dai 300 ai 1000 nelle aree dove previsto l’intervento medico, la lettura delle cartelle cliniche e la programmazione e verifica dei macchinari.

installazione e compatibilità con l’impianto, dove con il semplice inserimento di una composizione con immagini, si può dare un aspetto completamente rinnovato all’intero reparto.

I campi di applicazione ormai sono molteplici; gli apparecchi infatti sono studiati per supportare un’illuminazione adeguata con la vista di immagini rilassanti, decorative o motivazionali selezionate sempre più spesso con la consulenza di un terapeuta e finalizzate o rendere più confortevoli i luoghi di lunga degenza, le sale del risveglio, le case di riposo e gli ospedali pediatrici.

Spazi comuni come hall e sale d’aspetto possono essere trattate più da un punto di vista estetico ed emozionale, giocando così con forme, dimensioni e tipologia di installazione, per creare uno stacco dalla solita.

Anche la temperatura colore può virare su toni più caldi 2700/3000k aiutando a sentire l’ambiente più confortevole e meno freddo e distaccato, come spesso purtroppo sono gli edifici di cura.

LOCALI DI USO GENERALE

Gli stessi parametri vanno tenuti presente anche per le sale dedicate al personale, che dovrà sempre avere un’ottima visibilità nei locali dedicati e anche nei corridori, spesso provvisti di un sensore al passaggio, per essere sempre in grado di intervenire, ma non subire stress visivi se continuamente sottoposti a una luce diretta e sovresposizione non necessaria nella maggior parte dell’orario di turno.

In queste aree si può iniziare ad introdurre apparecchi di illuminazione di supporto che contribuiscano a rendere l’ambiente più gradevole, completando anche l’arredamento o il tema dell’ospedale; una soluzione di facile realizzazione, ma di sicuro effetto, sono i pannelli a soffitto con immagini rilassanti o evocative; nati dall’idea di creare l’illusione di un cielo in uno spazio chiuso, a oggi hanno svariate declinazioni e usi. La prima cosa da valutare, di sicuro vantaggio ai fini della progettazione, è che questi apparecchi abbiano le medesime caratteristiche tecniche degli altri a luce bianca pensati per la struttura, in modo da non creare disagi in fase di montaggio,

█ Parametri illuminotecnici, Locali di uso generale

(Legenda: Em = Illuminamento medio mantenuto; UGRL= Indice unificato di abbagliamento (Unified Glare Rating); Ra= Indice di resa cromatica; Uo= uniformità di illuminamento).

CONCLUSIONI

Attenzione particolare andrebbe poi dedicata al re-lamping, pratica che prevede la sostituzione di apparecchi obsoleti, talvolta ancora alimentati da lampadine fluorescenti con apparecchi LED, fondamentali per il risparmio energetico, inserendo in progetto anche lampade che possano essere un valore aggiunto per la realizzazione in termini di funzionalità, estetica e comfort.

Come si è visto l’illuminazione nel settore ospedaliero, oltre a sottostare a normative ben definite, svolge sempre di più un ruolo fondamentale di supporto agli operatori e di benessere e sensazione di comfort per i pazienti. Creare un ambiente ottimale e funzionale per le persone, passa anche dalla scelta di un elemento da sempre fondamentale per l’uomo: la luce.

MARGHERITA LUNGHI Forlight L'Autrice
█ Parametri illuminotecnici, Rianimazione e Cure Intensive
52 ILLUMINAZIONE settembre 2023

Una banca dati, mille servizi Aggiornata mensilmente

Dalla grande esperienza di DEI, nasce DEIPLUS PREMIUM la nuova soluzione digitale dedicata al mondo dell’edilizia

DEIPLUS PREMIUM è la banca dati con l’intero archivio dei prezzi dell’edilizia a partire dal 2018

Disponibile solo in abbonamento

DEIPLUS PREMIUM consente una consultazione immediata delle voci e la creazione di listini in un unico ambiente di lavoro anche direttamente dal tuo cellulare.

DEIPLUS PREMIUM trasforma il modo di consultare i prezzi dell’edilizia rendendolo facile, immediato e sempre aggiornato.

Con DEIPLUS PREMIUM si può

VISUALIZZARE

le voci di tutti i prezzari dal 2018

CERCARE qualsiasi voce con parole chiave o codice

CREARE listini personalizzati senza limitazioni di numero di voci

ESPORTARE

le voci dei listini

Vuoi provare DEI PLUS PREMIUM?

AGGIORNARE i listini in modo automatico o manuale

Richiedi l’accesso alla versione trial per 7 giorni

Vuoi maggiori informazioni?

MONITORARE

l’andamento dei prezzi nel tempo

06.21060305 abbonamentidei@lswr.it

Digital information sharing: a Genova un caso virtuso

La grande quantità di dati disponibili, la frammentazione degli strumenti di governo e la scarsa integrazione degli stessi costituiscono ad oggi una delle barriere maggiori alla corretta

fruibilità delle informazioni e al reale efficientamento dei processi. Vediamo

l’esempio evolutivo

dell’Ospedale Policlinico San Martino di Genova

Il vecchio adagio “per migliorare un processo occorre prima misurarlo” resta incipit inevitabile per coloro che operano nell’efficientamento dei processi aziendali. A tale scopo la raccolta, l’osservazione e l’analisi del patrimonio informativo presente in azienda diventano nodo cruciale per perseguire le finalità di miglioramento. Oggi gli strumenti informatici non mancano e le aziende sono sicuramente orientate all’adozione di nuove tecnologie per il reperimento di quante più informazioni possibili. Rimane tuttavia aperto il problema della sintesi e dell’integrazione dei dati che sovente germinano da sorgenti diverse, non comunicanti e assumono volumi sempre più importanti. Problema che da tema squisitamente tecnologico risale sino a diventare una difficoltà di UX (user experience), ovvero di esperienza utente. Pertanto, brutalmente parlando, l’utilizzo risulta arduo se non addirittura impossibile per gli utenti finali.

Per la massimizzazione dei processi collaborativi in logica Digital Twin – dall’attivazione degli alert alla rendicontazione integrata con le più diffuse piattaforme ERP, dalla sorveglianza della compliance normativa all’integrazione con modelli BIM – mainsim si propone come leva e canale evolutivo per la trasformazione digitale. Affinché tutti i processi interessati siano interconnessi e interoperanti è necessario che l’integrazione dei dati e dei sistemi presenti in azienda possa essere affrontata in maniera agile, minimizzando i rischi tecnologici e supportando la mancanza degli skill interni.

UN RIFERIMENTO PER L’AREA SANITARIA DELLA

LIGURIA

Un esempio virtuoso che documenta e conferma come oggi le aziende debbano e possano affrontare in modo consapevole e

di Riccardo Zelatore
54 INNOVAZIONE DIGITALE settembre 2023

strutturato queste problematiche ci è fornito dall’azienda sanitaria Ospedale Policlinico San Martino di Genova, punto di riferimento per le necessità sanitarie dei cittadini dell’area metropolitana genovese e ligure.

L’Istituto afferisce alla tipologia organizzativa IRCCS, con riconoscimento nella disciplina oncologica, perseguendo oltre alle finalità di assistenza e cura dei pazienti anche quelle di formazione e ricerca.

Le sue strutture costituiscono infatti il centro di riferimento del polo didattico della Scuola di Scienze Mediche e Farmaceutiche dell’ateneo genovese.

L’Istituto è costituito da 6 dipartimenti ad Attività integrata (DAI):

█ Dipartimento di Chirurgia generale, specialistica e oncologica;

█ Dipartimento di Neuroscienze ed Organi di senso;

█ Dipartimento di Medicina Interna Generale e Specialistica;

█ Dipartimento di Emergenza e Accettazione;

█ Dipartimento delle Terapie Oncologiche Integrate;

█ Dipartimento della Diagnostica, della patologia e delle cure ad alta complessità tecnologica.

L’Ospedale Policlinico San Martino eroga servizi e prestazioni di diagnosi e cura in regime di ricovero e ambulatoriale secondo le seguenti macro-attività:

█ Degenza;

█ Day hospital;

█ Day surgery;

█ Ambulatorio;

█ Ambulatorio chirurgico;

█ Servizi di diagnostica;

█ Servizi di supporto;

█ Blocchi operatori;

█ Prestazioni ambulatoriali complesse;

█ Day service ambulatoriali.

L’integrazione delle attività permette di affiancare ai tradizionali obiettivi assistenziali e terapeutici i compiti di didattica e ricerca scientifica e, oltre al promuovere e coordinare l’attività di formazione, concorre ad elevare lo stato delle conoscenze scientifiche.

Il Policlinico ha sede a Genova nella zona di San Martino d’Albaro ed è da sempre una vera e propria città dentro la città, con 4964 dipendenti (di cui 254 universitari convenzionati), 12 km di viali interni e un territorio di circa 35 ettari.

È ampiamente servito dai mezzi di trasporto pubblico urbano ed extraurbano, nonché facilmente raggiungibile dalle principali arterie di comunicazione ferroviarie ed autostradali ed ha al suo interno un efficiente servizio di trasporto gratuito ed un servizio di accompagnamento personalizzato per le fasce più deboli dell›utenza.

55 INNOVAZIONE DIGITALE settembre 2023
█ Home page di accesso alla piattaforma mainsim

█ Videata mainsim che rappresenta lo stato delle varie attività manutentive in essere

mainsim si è proposta come leva e canale evolutivo per la trasformazione digitale fornendo all’azienda sanitaria ligure non solo la soluzione software per la gestione delle problematiche manutentive “a guasto” e “programmate” legate all’asset management, ma permettendo ai vari Enti dell’Ospedale la normalizzazione e l’armonizzazione di tanti processi distinti che, prima del progetto di riorganizzazione, si sovrapponevano in modo frammentato e inefficiente.

Gli Enti coinvolti in questo percorso di change management e process reengineering sono stati:

1. informatica – SIA;

2. ufficio tecnico;

3. ingegneria clinica;

4. ufficio SDO - Drg (rendicontazione attività di ricovero);

5. servizi autorimessa;

█ mainsim wizard a tiles per l’apertura rapida di richieste manutentive o in generale per l’attivazione di processi

6. ispettorato aziendale;

7. ufficio inventario – traslochi;

8. 112 – 118;

9. gestione logistica.

Tante realtà poco comunicanti e servite da strumenti diversi, che hanno richiesto un importante processo di analisi e riconfigurazione.

La killer feature portante è sintetizzabile nel termine “integrabilità” e l’intervento si è mosso attraverso i seguenti percorsi evolutivi:

█ integrazione delle utenze mappate nell’Active Directory del Policlinico;

█ integrazione di una serie di servizi (Oracle) per ereditare informazioni su elementi organizzativi dell’ospedale quali: Reparti UO, CDA e CDC, comprese le Ubicazioni UO;

█ integrazione delle varie piattaforme esistenti in uso ai fornitori e in particolare:

1. Informatico – SIA: con Arioni Informatica per il recupero anagrafica Asset IT in modo che l’utenza possa aprire ticket relazionati a quest’ultima;

2. Ufficio Tecnico: integrazione con Iren (software in uso Manpro) per alcune tipologie di richieste appartenenti all’ufficio tecnico; Kineo (software in uso mainsim) per altre tipologie; Bioclima (frigoriferi e criocontenitori utilizza interfaccia mainsim);

3. Ingegneria Clinica: HC (software in uso Biogest) per il recupero apparecchiature elettromedicali e la gestione dei nuovi acquisti componenti e gestione del fuori uso.

In sintesi, un’unica piattaforma decisionale per abilitare scelte ponderate e reattive.

Per un’organizzazione così articolata si è rilevata di vitale importanza la condivisione delle informazioni inerenti i processi aziendali. Una visione olistica per portare un nuovo livello di efficienza all’organizzazione, che attraverso un elevato livello di usability, ha permesso di unificare informazioni disparate e fornire valore all’intero ecosistema dell’azienda.

Ancora un esempio eccellente di info sharing che conferma come l’adozione degli strumenti corretti, la formazione di skills interne e il supporto di partner qualificati e professionali possano oggi abilitare il raggiungimento di processi collaborativi e permettere alle aziende produttive una equilibrata e corretta governance.

L’autore

RICCARDO ZELATORE

Sales Manager, mainsim Gruppo Duferco

56 INNOVAZIONE DIGITALE settembre 2023

La settima edizione di quest’Opera, riveduta e aggiornata, raccoglie in un unico, agile strumento di lavoro tutte le norme cardine che sovraintendono al governo del territorio.

Tra i provvedimenti recepiti, scelti fra quelli che rivestono maggiore interesse per il lettore, segnaliamo:

– il DL 31 maggio 2021, n. 77, convertito, con modificazioni, dalla Legge 29 luglio 2021, n. 108, Governance del Piano nazionale di ripresa e resilienza e prime misure di rafforzamento delle strutture amministrative e di accelerazione e snellimento delle procedure, recante numerose e significative modifiche al Testo Unico dell’Edilizia;

– il DLgs 8 novembre 2021, n. 207, che modifica, fra l’altro, le norme sul certificato di agibilità e introduce le regole per l’infrastrutturazione digitale degli edifici;

– la Legge 9 marzo 2022, n. 22, Disposizioni in materia di reati contro il patrimonio culturale, recante modifica al Codice dei Beni Culturali e del Paesaggio.

L’insieme dei provvedimenti approvati recentemente conferma l’obiettivo del Legislatore di rilanciare gli investimenti pubblici e di promuovere l’accelerazione degli interventi di rigenerazione urbana e di ricostruzione del territorio nazionale.

Un esaustivo indice analitico-alfabetico rende questo volume un supporto indispensabile per i Tecnici, i Progettisti e i RUP della Pubblica Amministrazione che necessitano di strumenti sempre aggiornati e coordinati con le ultime norme che disciplinano questa complessa materia.

www.build.it Nuova Edizione

Migliorare la qualità dell’aria nel rispetto di ambiente e persone

Preoccuparsi della qualità dell’aria negli ambienti indoor è fondamentale per la salute delle persone, a maggior ragione nelle strutture sanitarie dove il rischio di contrarre malattie da virus e batteri è potenzialmente più alto. Ne abbiamo parlato in esclusiva con Stefano Guantieri Direttore generale di VORTICE e Presidente di VORTICE INDUSTRIAL e Roberto Ottaviani Direttore generale di VORTICE

INDUSTRIAL

di Fabio Chiavieri
58 IMPIANTI settembre 2023

La qualità dell’aria in ambienti indoor è influenzata da vari fattori quali l’inquinamento dell’aria esterna immessa in ambiente, la presenza di portatori di cariche batteriche o virali che accedono negli edifici, ma anche, soprattutto negli ambienti sanitari, la scarsa igiene degli ambienti e delle attrezzature, l’inquinamento interno generato da materiali presenti, il rilascio di sostanze tossiche o comunque dannose ecc. Per questo motivo, a una corretta progettazione delle UTA (Unità di trattamento aria) deve essere considerata tra i costi di esercizio anche la corretta manutenzione degli impianti. Di questi temi e di molti altri risvolti legati alla qualità dell’aria ne abbiamo parlato con Stefano Guantieri Direttore Generale di VORTICE e Presidente di VORTICE INDUSTRIAL e Roberto Ottaviani Direttore Generale di VORTICE INDUSTRIAL. VORTICE si occupa da 70 anni di qualità dell’aria, un impegno sottolineato anche dall’acquisizione nel 2011 di Loran, oggi VORTICE INDUSTRIAL, specializzata nel trattamento aria in specifici settori industriali.

█ Ing. Guantieri, preoccuparsi della qualità dell’aria negli ambienti indoor è fondamentale per la salute delle persone, a maggior ragione nelle strutture sanitarie dove il rischio di contrarre malattie da virus e batteri è potenzialmente più alto. Qual è, secondo VORTICE, il corretto approccio alla sanificazione dell’aria negli ambienti chiusi?

Da molti anni VORTICE nel suo complesso si occupa della qualità dell’aria negli ambienti indoor: negli anni ’70 fu la prima azienda a importare in Italia i filtri al “carbon cocco” molto performanti che venivano utilizzati nei sottomarini americani e che diedero avvio alla produzione dei primi depuratori d’aria per uso residenziale. La mission stessa dell’azienda sottolinea l’impegno in questa direzione che è stato a maggior ragione aumentato in questi ultimi anni sia per far fronte alle nuove esigenze dell’edilizia moderna, sia per la pandemia. In altri termini lavoriamo per il benessere e il progresso sociale attraverso prodotti che muovono l’aria in modo sicuro e nel rispetto dell’ambiente e delle persone. Negli ultimi anni il mercato ha

visto il manifestarsi di due eventi: uno è lo sviluppo dell’edilizia moderna che vede edifici, ivi incluse le strutture sanitarie, sempre più isolati, coibentati e di elevata classe energetica; con queste nuove soluzioni, il trattamento dell’aria che circola negli ambienti chiusi è di fondamentale importanza. Uno studio condotto in Francia prima del 2010 ha messo in evidenza che nella Regione di Parigi c’è stata una recrudescenza di tutte le malattie di tipo respiratorio e non solo proprio perché gli impianti di areazione delle nuove case non erano eseguiti a regola d’arte sia dal punto di vista progettuale, sia della bontà dei prodotti installati. E poi non possiamo dimenticarci dell’avvento del Covid che ha stressato il tema della qualità dell’aria, fino a quel momento sconosciuto ai più. Proprio durante la crisi pandemica VORTICE ha creato un’Academy con l’intento di fare corsi di formazione online su questi temi dedicati a progettisti e installatori. Per tutti questi motivi abbiamo sviluppato prodotti per la sanificazione dell’aria sia plug and play, sia per l’installazione fissa canalizzabili. Abbiamo unito il concetto di filtrazione con quello di sanificazione mediante utilizzo di filtri assoluti HEPA aggiungendo un elemento attivo che è la fotocatalisi: il dispositivo fotocatalitico da noi utilizzato è stato poi riconosciuto come efficace contro il Covid-19 dal laboratorio dell’Ospedale Sacco di Milano.

█ Quanto conta, in termini di prevenzione, soprattutto in spazi confinati che ospitano soggetti deboli come una Struttura Sanitaria, la corretta progettazione di una Unità Trattamento Aria per il Settore Ospedaliero/Farmaceutico?

L’importanza è evidente: aggiungerei anche gli ambienti scolastici dove VORTICE ha sviluppato unità apposite per il ricambio dell’aria. È ormai patrimonio comune che il corretto ricambio dell’aria in spazi confinati sia il miglior sistema per controllare e prevenire diffusione di virus e batteri. Se a questo si aggiunge l’utilizzo di dispositivi complementari di depurazione o sanificazione si possono ottenere risultati eccellenti in termini di prevenzione. Non si dimentichi il tema della sanificazione dei condotti dell’aria: il fatto di avere un dispositivo di fotocatalisi a bordo dell’apparecchiatura a monte aiuta sensibilmente il contenimento della proliferazione all’interno dei condotti stessi.

L’ATTENZIONE AGLI IMPIANTI UTA IN EPOCA

POST COVID

█ Ing. Ottaviani, quali sono le osservazioni e le considerazioni tecniche preliminari alla progettazione di una Unità di Trattamento Aria in una Struttura Ospedaliera?

Le Unità di trattamento aria per strutture ospedaliere devono rispettare alcune caratteristiche tecniche legate prevalentemente alla periodica necessità di accurata pulizia interna. Le unità sono accom-

59 IMPIANTI settembre 2023
█ Ing. Stefano Guantieri, Direttore Generale VORTICE S.p.A. e Presidente di VORTICE INDUSTRIAL

pagnate dalla marcatura CE e certificazione secondo la norma VDI 6022. Tutti i componenti interni sono in acciaio inox AISI 304 o AISI 316, progettati per non avere sporgenze, bordi taglienti angoli nei quali si possa accumulare sporcizia. Gli angoli interni sono raccordati con raggio tale da consentire una facile pulizia e disinfezione, come richiesto dalle direttive 2006/42/CE ed EN 6022.

█ L’esperienza che abbiamo vissuto con il Covid-19 ci porta a pensare che eventi di questo tipo possono anche ripetersi. Quali caratteristiche deve avere oggi un impianto di Trattamento Aria in ambito sanitario per garantire il suo ruolo strategico in caso di emergenze sanitarie?

Durante il periodo di pandemia una delle azioni che sono state eseguite sulle UTA è stata quella di aumentare la portata di aria esterna

riducendo contemporaneamente quella di ricircolo, in modo da ridurre per “diluizione” il contenuto virale dell’aria trattata. In vari impianti sono state installate lampade germicida a valle dell’unità con implicazioni logistiche spesso difficili per mancanza di spazi. Noi riteniamo che la futura progettazione delle UTA per ambito ospedaliero passerà attraverso un maggiore utilizzo dell’aria esterna abbinato a sistemi di recupero calore molto efficienti ma soprattutto in grado di garantire assenza di trafilamenti tra aria espulsa e aria esterna. Si possono aggiungere come suggerimenti progettuali l’utilizzo di sistemi di fotocatalisi e di filtrazioni molecolari sull’aria di ricircolo eventualmente presente. Come VORTICE INDUSTRIAL abbiamo molte referenze in ambito ospedaliero, farmaceutico e alimentare sia in Italia che all’Estero.

IL FUTURO NELLA DIGITALIZZAZIONE

█ Parliamo di Ospedale 4.0: in che modo questa visione dell’Ospedale del futuro sta indirizzando la progettazione e la realizzazione dei prodotti VORTICE con riferimento alla manutenzione e al monitoraggio?

«Mentre quanto detto sopra ha a che fare con l’hardware di prodotto, altrettanto importante è la gestione del software di prodotto – spiega Stefano Guantieri. In questo senso tutte le unità prodotte possono oggi essere gestite tramite regolazione intelligente e collegate ai moderni sistemi di supervisione presenti sul mercato. In questo modo viene attivata la gestione da remoto, la manutenzione programmata e tenuti sotto controllo costi di gestione e l’efficienza del sistema. L’Azienda sta inoltre sempre spingendo sempre di più la ricerca verso l’applicazione di sensori che monito-

█ VORTICE INDUSTRIAL nel 2014 ha progettato e prodotto centrali di trattamento aria fornite a una società di installazione di Roma che sono state installate nel polo “Probiotico” dello stabilimento Pfitzer di Aprilia (Latina) █ Impianto di trattamento aria VORTICE INDUSTRIAL installato nello stabilimento farmaceutico Sterling di Corciano (PG)
60 IMPIANTI settembre 2023
█ Roberto Ottaviani, Direttore Generale VORTICE INDUSTRIAL

rano le caratteristiche dell’aria non solo dal punto di vista termodinamico ma anche dal punto di vista “qualitativo” misurando livelli di CO2, Radon e altri gas nocivi.»

Dice Roberto Ottaviani: «L’Azienda sta muovendo i primi passi nella direzione lanciata da VORTICE con la tecnologia BRA.VO che monitora la qualità dell’aria interna tramite sensori appositi ed esterna attraverso banche dati presenti sul WEB, modificando le condizioni di lavoro dei dispositivi tramite modalità WI-FI. Stiamo verificando come trasferire e promuovere commercialmente questa tecnologia di nostra proprietà anche sulle UTA come già presente. I settori alimentare, farmaceutico e ospedaliero saranno interessati a questo tipo di sviluppo dove l’impiego di sensoristica intelligente la farà da padrone.»

BRA.VO è un sistema domotico aperto basato sull’Internet of Things. Grazie alla connettività WiFi di casa si integra perfettamente con i principali dispositivi e accessori della Smart Home. Il sistema BRA.VO vanta altresì la piena integrazione con l’ecosistema Apple HomeKit ed è in grado di funzionare con gli assistenti vocali Google Assistant e Amazon Alexa. La App BRA.VO, disponibile sia per dispositivi Android che IOS, è lo strumento semplice ed intuitivo per configurare il proprio “Home System” una volta installati i prodotti ed è in grado di configurare al suo interno i dispositivi BRA.VO S a maggior supporto del monitoraggio preciso e costante della qualità dell’aria indoor.

Il sistema BRA.VO si compone di un dispositivo di ventilazione meccanica smart con recupero di calore (BRA.VO M), indispensabile nelle abitazioni di nuova costruzione in classe A, nei piccoli interventi di ristrutturazione che contribuisce ad

aumentare la classe energetica dell’edificio e negli ambienti con problemi di umidità da condensa e di un aspiratore centrifugo, in versione da parete (BRA.VO Qe) e da incasso (BRA.VO Qi) in grado di estrarre in pochissimo tempo elevate concentrazioni di aria viziata, umidità e odori da cucina o bagni.

BRA.VO M è adatto all’installazione in soggiorno, in studio, in camera da letto e nella cameretta dei bambini: il dispositivo espelle l’aria viziata dalla stanza e grazie al sistema di ricambio d’aria ne preleva di nuova dall’esterno, la filtra e la carica dell’energia trattenuta dal flusso dell’aria estratta.

È il dispositivo ideale per costruzioni nuove o ristrutturate all’insegna del risparmio energetico e si caratterizza per:

• silenziosità in tutte le ore della giornata;

• funzionamento autonomo garantito dai sensori a bordo;

• massimo comfort congiuntamente a consumi minimi;

• elevata efficienza di scambio termico.

LA STORIA DI VORTICE INDUSTRIAL

Nel 2010 VORTICE S.p.A. acquisisce il 66% di Loran con lo scopo di entrare nel mercato della ventilazione e del condizionamento industriale, mettendo al servizio dello sviluppo dell’Azienda, non solo la solidità economica che la contraddistingue, ma anche un modello di sviluppo di business che va dall’internazionalizzazione dei mercati, ai prodotti e ai servizi. L’anno successivo, VORTICE S.p.A. acquisisce il controllo del 100% di Loran con lo scopo di accelerare sui pilastri di sviluppo dell’Azienda già delineati, internazionalizzazione, prodotti e servizi. Al fine di focalizzare l’organizzazione sulle linee di sviluppo, Loran

smette la fornitura di impianti di distribuzione dell’aria e si concentra sullo sviluppo delle centrali di trattamento aria in ottica customizzazione, per il cliente e per specifici segmenti di mercato. Sono gli anni in cui Loran sviluppa il proprio business in oltre 20 nazioni e consuntiva il suo fatturato in 50% in Italia ed il rimanente in nazioni europee ed extraeuropee. Sviluppa la vendita in Italia tramite una rete di oltre 20 agenzie che coprono il 100% del territorio e all’estero tramite importatori. Nel 2019 Loran diventa VORTICE INDUSTRIAL S.r.l. per sottolineare l’impegno del Gruppo VORTICE nel settore del trattamento aria industriale.

█ UTA modello CTAE sanificabili per il settore ospedaliero e farmaceutico
61 IMPIANTI settembre 2023
TECNOLOGIA BRA.VO: IoT PER LA QUALITÀ DELL’ARIA

Il Radon è un gas radioattivo presente nel sottosuolo, nelle acque e in alcuni materiali utilizzati nelle costruzioni (per esempio rocce, tufo e graniti). Tende a risalire in superficie e, senza un adeguato isolamento o una corretta aerazione, si accumula negli ambienti chiusi, specie quelli interrati o ai piani inferiori degli edifici come cantine, box, magazzini, caveau bancari, negozi, uffici e abitazioni. Se la sua concentrazione nell’aria supera i limiti consentiti, risulta particolarmente pericoloso per gli occupanti, potendo causare l’insorgere del cancro al polmone (secondo l’organizzazione Mondiale della Sanità è la seconda causa di tale malattia dopo il fumo di tabacco).

La concentrazione di Radon di un ambiente si misura in bequerel/m3 (Bq/m3). In Italia la legge 101/2020, che dà attuazione alla Direttiva Europea 2013/59 Euratom, fissa in 300 Bq/m3 il limite oltre il quale è imposto l’obbligo di intervento per ridurne la concentrazione. Solo qualora tutte le azioni messe in opera risultino insufficienti è ammesso agire riducendo i tempi di permanenza massima nei locali in questione.

Le soluzioni comunemente adottate per prevenire l’accumulo di Radon negli spazi confinati consistono nel posizionamento di una guaina impermeabile al gas in corrispondenza delle fondamenta dell’edificio ovvero

PER LA QUALITÀ DELL’ARIA SERVONO INVESTIMENTI

█ Ing. Guantieri, i fondi europei messi a disposizione dal PNRR, in particolare la Mission 6, rappresentano un’occasione per migliorare il nostro SSN. Questi finanziamenti possono fungere da volano anche per il vostro comparto?

In Italia sappiamo molto bene quali sono gli interventi da fare e possediamo anche la tecnologia per farli, ma c’è il grosso ostacolo della burocrazia. Ci sono molte strutture sanitarie che necessitano di un ammodernamento dei sistemi di areazione, motivo per cui stiamo partecipando a molti progetti europei in questo ambito. Come già accennato, spesso la vetustà degli edifici ospedalieri – e di quelli scolastici – rende gli interventi di ripristino o di miglioramento molto complessi che richiederebbero un piano di intervento nazionale che tenga conto sia della progettazione, sia della manutenzione, quest’ultima spesso trascurata o non eseguita secondo le norme vigenti.

nella realizzazione di un vespaio aerato.

Per ovviare al problema, soprattutto nei casi di immobili pre-esistenti, VORTICE ha sviluppato un sistema di ventilazione appositamente concepito per mitigare le concentrazioni di Radon, aspirandolo direttamente dal terreno o dai locali in cui tende ad accumularsi.

La soluzione ideata si basa su una gamma di 8 estrattori, diversi per taglia e prestazioni. Di questi, 5 denominati CA-RM ES sono destinati all’installazione in condotto e particolarmente adatti, per la tenuta stagna (grado IPX7), al posizionamento in pozzetti interrati soggetti ad allagamento. I restanti 3, identificati dalla sigla CA-RM RF ES, sono stati pensati invece per l’installazione su tetti o all’estremità di condotti verticali di aerazione (in questo caso il grado di protezione è IPX5).

Comuni a tutte le unità sopra citate sono le elevate prestazioni (fino a oltre 1.200 m³/h con 200 Pa di pressione residua) e i ridotti consumi (da 90 a 165 W), in virtù degli efficienti motoventilatori EC (la stessa tecnologia adottata sui più recenti veicoli elettrici), perfettamente adatti all’impiego continuativo, 7/24. L’ottimale sigillatura degli involucri e degli accoppiamenti alle tubazioni previene, inoltre, i rischi di esalazioni di gas radioattivo, pericolose per la salute.

LOTTA AL RADON █ CTAE: tutti i componenti interni sono in acciaio inox AISI 304 o AISI 316
62 IMPIANTI settembre 2023
PREZZI INFORMATIVI DELL’EDILIZIA www.build.it I PREZZARI dei Bonus edilizi

INGRESSI AUTOMATICI PER LA SANITÀ

Dalla sicurezza degli impianti, con la manutenzione e gli adeguamenti normativi, alle opportunità di efficientamento energetico

Quando si può parlare di un “ingresso automatico sicuro”? Quali sono i requisiti che garantiscono l’incolumità degli utenti? Queste domande sicuramente non sono poste gli utenti che transitano attraverso un ingresso automatico di una struttura sanitaria pubblica o privata ma dovrebbero essere ben presenti per chi assicura il mantenimento e gli adeguamenti degli impianti, operante con funzioni di HSE, Facility o Property & Real Estate, affidando i servizi manutentivi solo ad operatori competenti che pongano la sicurezza al primo posto, soprattutto in contesti che accolgono anziani, bambini, persone malferme e disabili, dove i requisiti normativi sono ancora più stringenti.

FAAC da sempre sviluppa soluzioni per l’automazione e da quasi 30 anni opera anche nel settore “porte e ingressi automatici”, proponendo sia soluzioni rispondenti alle normative cogenti con forti innovazioni volte al risparmio energetico, altresì riconosciute da

Enea e Ministero dell’Ambiente e della Sicurezza Energetica, sia servizi di manutenzione ordinaria e straordinaria, per supportare grandi Clienti della Sanità nel mantenimento ed adeguamento del parco installato.

Avvalendosi di FAAC si dispone di un supporto sia per la progettazione e realizzazioni di nuove strutture, sia per la riqualificazione di varchi esistenti e spesso oltremodo datati e fuori norma, che hanno la necessità di essere adeguati secondo quanto previsto dall’attuale normativa EN 16005; in tal modo si possono cogliere le opportunità di un adeguamento normativo per ridurre i rischi di sinistri e si possono cogliere i benefici tangibili per l’efficientamento energetico, adottando una soluzione integrata che soddisfa le aspettative degli Energy Manager e realizza un investimento in linea con i criteri ESG per la parte ambientale.

64 PUBBLIREDAZIONALE settembre 2023

Facciamo un affondo normativo? Dal 2013, il settore delle porte pedonali motorizzate è governato dalla norma EN16005 che introduce cambiamenti radicali nell’approccio all’analisi dei rischi di un ingresso automatico. Alcune novità sostanziali riguardano gli aspetti di sicurezza, come la limitazione della forza di spinta in chiusura e/o la protezione tramite coppie di fotocellule non più ammissibile, comportando il passaggio obbligato a sensori di sicurezza EN 12978 che rilevino movimento e presenza sul varco, inibendo la richiusura. La EN16005 prevede inoltre che i sensori dedicati alla sicurezza della macchina siano monitorati, nuovi requisiti per la valutazione dei rischi sui bordi e sui franchi di sicurezza, e nuovi requisiti per le porte automatiche per le vie di fuga, prevedendo anche l’adozione di porte automatiche ridondanti Peraltro, la EN16005 si inserisce in un contesto di riferimenti che già normavano il settore, in quanto un ingresso automatico ricade già nel contesto applicativo della Direttiva Macchine 89/392, la quale prevede che il fabbricante della macchina realizzi l’Analisi dei Rischi e identifichi le soluzioni adottate per la loro riduzione, il Registro di Manutenzione da consegnare in copia all’utilizzatore/ proprietario della macchina, emettere la Dichiarazione CE di conformità e apporre sulla macchina la marcatura CE

In aggiunta, il Testo Unico sulla Sicurezza (Dlgs. 106) del 2009, prescrive un “obbligo di rispondenza delle attrezzature di lavoro a requisiti generali di sicurezza”. In pratica prevede (capo III, art.15, punto 1, lett.Z) l’”obbligatorietà della manutenzione” delle macchine secondo quanto previsto dal costruttore e dal relativo piano di manutenzione, e che essa sia a carico del datore di lavoro, che ne diviene responsabile; da qui nasce l’esigenza di avvalersi di pro-

fessionisti esterni qualificati. Inoltre, il Testo Unico prescrive (capo III, art.15, punto 1, lett. C) l’”eliminazione dei rischi e, ove ciò non sia possibile, la riduzione dei rischi al minimo in relazione alle conoscenze acquisite in base al progresso tecnico”; nella sostanza, il Testo Unico impone un costante monitoraggio ed adeguamento degli impianti esistenti.

In definitiva, la manutenzione ancorché obbligatoria, offre l’opportunità di valutare lo stato degli impianti e identificare le opportune azioni correttive, anche tramite piani di adeguamento/svecchiamento di ingressi automatici fuori norma, sostituendoli con soluzioni innovative come AIRSLIDE, che assicurano un contributo tangibile per l’efficientamento energetico e che possono rientrare negli interventi complessivi coperti dalle detrazioni fiscali attualmente disponibili.

65 PUBBLIREDAZIONALE settembre 2023

Responsabilmente sostenibili

Promuovere il benessere sociale attraverso una visione sostenibile dei processi produttivi è l'obiettivo dichiarato di Bft. Ne parliamo con Enrico Lombardo

durante le fasi d’installazione e manutenzione dell’impianto. Per capire qual è la filosofia alla base delle strategie produttive di Bft abbiamo intervistato Enrico Lombardo che dell’azienda è il Distribution Italy Director.

█ Oggi si parla sempre di più di sostenibilità di processi e prodotti con l’obiettivo di promuovere il benessere e il progresso sociale nel rispetto dell’ambiente. Che posto occupa questo concetto nella vostra Mission?

Bft, azienda con sede italiana a Schio (VI), propone soluzioni all’avanguardia, ideate per soddisfare ogni esigenza tecnica e operativa degli installatori impegnati nel settore Building Access Automation. Negli anni l’azienda ha progettato e realizzato una vasta gamma di prodotti tecnologicamente avanzati, supportati da software capaci di gestire più operatori contemporaneamente anche da remoto.

Grazie all’esperienza nell’ambito dell’automazione degli accessi di strutture industriali e commerciali, Bft è in grado di fornire all’installatore non solo i migliori prodotti ma anche il supporto tecnico necessario per svolgere al meglio il proprio lavoro, attraverso l’organizzazione di training

Premetto che Bft Spa dal 2004 fa parte del Gruppo SOMFY, leader mondiale nei controlli automatici per le aperture e le chiusure di case ed edifici. “Ispirare un modo migliore di vivere accessibile a tutti” è la Vision del nostro Gruppo e lo “sviluppo sostenibile” è il principale pilastro della nostra Mission. Di fronte agli sconvolgimenti in atto nel mondo - che si aggiungono alle sfide climatiche, ambientali e sociali - i cittadini, le istituzioni e le aziende si stanno unendo per creare percorsi diversi e cercano soluzioni che rendano più sostenibile il modo di produrre, di consumare e di vivere. Per il Gruppo SOMFY questa “spinta” è presente in ogni ambito e viene vissuta come segno di speranza nel futuro. In particolare, continuiamo a ridurre il nostro impatto ambientale per prenderci cura del nostro pianeta e affrontare l’emergenza climatica; sviluppiamo prodotti e soluzioni a basso consumo che aiutino a migliorare le prestazioni energetiche degli edifici; ci sforziamo di offrire ai nostri dipendenti un ambiente di lavoro appagante, equo e inclusivo; manteniamo relazioni etiche e rispettose con i nostri partner in tutti i 58 paesi del mondo dove siamo presenti.

█ Quali sono le peculiarità costruttive delle vostre soluzioni che vi contraddistinguono rispetto alla concorrenza?

La principale peculiarità dei nostri prodotti è quella di essere smart, ovvero intelligenti. Bft è stata la prima azienda del settore a introdurre nell’ambito dell’automazione e del controllo degli accessi dei prodotti

di Fabio Chiavieri
66 INTERVISTA settembre 2023

connessi, integrabili e gestibili da remoto. Già nel 2011 - ben prima quindi dell’avvento degli smartphone - disponevamo di dispositivi wireless (all’epoca basati su sistema operativo Symbian) per il controllo dei varchi tramite telefoni cellulari Nokia e offrivamo ai nostri Clienti, tramite un kit di sviluppo software, la possibilità di integrare in sistemi BMS (Building Management System) i nostri prodotti destinati alle applicazioni commerciali e del terziario. La Mission di Bft è quella di “essere sempre un passo avanti”: è nel nostro DNA, tanto da averlo scritto nei muri del nostro quartier generale di Schio (VI). “In Bft creiamo soluzioni avanzate, con caratteristiche uniche ed esclusive. Allo stesso tempo semplici, fruibili, vicine alle persone. Tecnologie di nuova generazione studiate per migliorare la vita di tutti: degli installatori e di chi le utilizza. Questi siamo noi oggi: un’azienda attenta alle esigenze del presente, con uno sguardo teso al futuro. Una realtà professionale, dalla forte connotazione umana, capace di prendere a braccetto i propri partner e, grazie ad un approccio di full access specialist, farli procedere a quel ritmo dinamico che permette di stare sempre in prima linea. Un’azienda dove la componente tecnica è sorretta dalla forza della passione, dove il know-how ingegneristico si completa con la brillantezza di un’inventiva vivace. Una tecnologia veloce, smart, sempre in accelerazione: per avanzare al ritmo dell’innovazione e, insieme a voi, essere sempre un passo avanti”. Che si tratti di un prodotto residenziale (per esempio un’automazione per un cancello) o del più sofisticato sistema di parcheggio, il denominatore comune è sempre lo stesso: la connettività che rende intelligenti gli accessi.

█ Gli ambiti applicativi dei vostri prodotti sono svariati, tra questi spicca il mondo dell’edilizia di cui fa parte quella ospedaliera. Quali soluzioni potete offrire per le strutture sanitarie?

Gli ambiti applicativi dei prodotti Bft sono svariati ma tutti assolutamente legati al modo dell’edilizia. Bft offre infatti soluzioni avanzate per il controllo degli accessi pedonali e veicolari destinati ad applicazioni in ambito residenziale, industriale, commerciale, terziario e urbano. L’azienda è nata nel 1981 realizzando inizialmente prodotti per l’automazione di porte e cancelli e, nel corso del tempo, ha ampliato la propria offerta sviluppando soluzioni dedicate alla gestione ed al controllo degli accessi per edifici commerciali, del terziario e per le aree urbane. Andando più in dettaglio: un’ampia gamma di barriere stradali, di dissuasori di passaggio e di sosta (anche ad alta sicurezza-antiterrorismo), di porte automatiche (sia scorrevoli che a battente) e di sistemi di parcheggio automatici a pagamento.

Tutte le soluzioni appena citate trovano applicazione negli edifici ospedalieri o nelle strutture sanitarie. Nella nostra gamma di barriere

stradali troviamo dei modelli che prevedono l’apertura automatica in caso di mancanza di alimentazione: sviluppate proprio per le strutture ospedaliere, queste barriere consentono l’arrivo dei mezzi di soccorso in caso di emergenza. Per quanto riguarda i dissuasori di passaggio e di sosta, questi vengono comunemente utilizzati per gestire l’accesso veicolare in determinate aree, per impedire la sosta di automezzi in aree riservate o per la protezione perimetrale di edifici “sensibili”. Le porte ad apertura/chiusura automatica trovano ampia applicazione nelle strutture sanitarie dove, per questioni di sicurezza o igienicosanitarie, è necessario gestire gli accessi pedonali o evitare il contatto con le superfici. Non meno importanti i sistemi di parcheggio automatici che consentono la gestione di aree di sosta veicolare con molteplici obiettivi: consentire l’accesso ad aree riservate (ai dipendenti, per esempio), preservare e/o regolamentare l’occupazione dei posti auto (penso agli utenti del servizio) oppure mettere a reddito aree di parcheggio, addebitando un costo a chi usufruisce del posto auto.

█ Automazione e Industria 4.0 sono strettamente correlati. Come si fondono questi due concetti all’interno delle soluzioni che proponete sul mercato?

Tra tutte le soluzioni di automazione che Bft propone al mercato, la gamma dedicata all’automazione dei parcheggi è quella che, più di tutte le altre, è correlata ad Industria 4.0 e ne soddisfa i requisiti. I sistemi Bft sono infatti certificati a tale scopo e possono quindi godere delle agevolazioni fiscali previste. Se infatti la chiave di volta dell’industria 4.0 sono i sistemi “ciberfisici” - ovvero sistemi fisici che sono strettamente connessi con i sistemi informatici e che possono interagire e collaborare con altri sistemi simili - un sistema di parcheggio ha un’architettura connessa, è dotato di un software di gestione, può essere controllato da remoto ed integrato in altri sistemi informatici. Il beneficio per l’utilizzatore che sceglie i sistemi di parcheggio Bft è quindi duplice: oltre alla possibilità di mettere a reddito un’area di sosta e/o preservarne l’occupazione non autorizzata, l’impianto potrà godere delle agevolazioni previste ed avere un pay-back più veloce nel tempo. Le strutture sanitarie (cliniche, ospedali, ambulatori, ecc) decidono molto spesso di dotare le proprie aree di parcheggio di sistemi automatici perché l’accesso e la sosta degli automezzi sono normalmente aspetti critici che vanno opportunamente gestiti: Bft, oltre a produrre i sistemi, possiede solide competenze tecniche che mette a disposizione dei propri clienti che si apprestano a valutare l’installazione di questi impianti. Può inoltre offrire un servizio “chiavi in mano” che va dalla progettazione all’installazione; non solo, si occupa anche della manutenzione per garantire la piena funzionalità dell’impianto nel tempo.

67 INTERVISTA settembre 2023

Appalti, sentenze e aggiornamenti normativi

CONTRATTI DI APPALTI PUBBLICI, NOVITÀ NORMATIVE

Decreto Legislativo 31 marzo 2023 n.36 recante il nuovo Codice dei contratti pubblici pubblicato in Gazzetta Ufficiale n.77 del 31 marzo 2023

Le disposizioni del Codice, con i relativi allegati, entrano in vigore il 1° aprile 2023 e acquistano efficacia il 1° luglio 2023. Una delle principali novità è rappresentata dai numerosi principi cui occorre fare riferimento nell’affidamento dei contratti pubblici e nella loro esecuzione; tra questi primeggiano i principi del risultato e della fiducia

Principio del risultato: le stazioni appaltanti devono perseguire il risultato nell’esercizio della loro attività affidando il contratto e vigilando sulla sua esecuzione con la massima tempestività e il migliore rapporto tra qualità e prezzo nel rispetto dei principi di legalità, trasparenza e concorrenza; detto principio costituisce modalità per conseguire il miglior risultato possibile nell’affidamento ed esecuzione del contratto e, al contempo, criterio prioritario per l’esercizio del potere discrezionale.

Principio della fiducia: la PA e gli operatori economici devono operare avendo reciproca fiducia nell’azione legittima, trasparente e corretta; la finalità del legislatore è eliminare il clima di sospetto che ha ispirato la normativa previgente: Ogni stazione appaltante ha la responsabilità delle gare e deve svolgerle non solo rispettando la legalità formale, ma anche tenendo presente che ogni gara è funzionale alla realizzazione di un’opera pubblica nel modo più rispondente agli interessi della collettività; il raggiungimento di tale risultato implica il superamento di ogni forma di inerzia; da qui la fiducia nelle scelte compiute dalla P.A.. Importante sottolineare come ai fini della responsabilità amministrativa, costituisce colpa grave la violazione di regole e l’omissione delle ordinarie cautele, non invece la violazione o l’omissione determinata dal riferimento a indirizzi giurisprudenziali prevalenti o a parere delle autorità competenti. Altro principio degno di rilevo è rappresentato da quello di conservazione dell’equilibrio contrattuale: i fatti sopravvenuti straordi-

nari ed imprevedibili che determinino una alterazione dell’equilibrio contrattuale danno diritto alla rinegoziazione secondo buona fede delle condizioni contrattuali onde ripristinare l’originario sinallagma.

LE PRINCIPALI NOVITÀ INTRODOTTE

Responsabile unico di Progetto (art.15): si tratta non più di responsabile di procedimento, ma di responsabile di una serie di fasi preordinate alla realizzazione di un progetto o di un intervento. La complessa attività amministrativa attraverso cui si svolgono le fasi di programmazione, progettazione, affidamento ed esecuzione dei contratti pubblici comporta lo svolgimento non di un solo procedimento, ma di una pluralità di procedimenti, e l’emanazione di altrettanti provvedimenti amministrativi e/o atti di diritto privato; è prevista la possibilità per le stazioni appaltanti di nominare un responsabile per le fasi di programmazione, progettazione ed esecuzione e un responsabile per la fase di affidamento. Tale opzione ha il vantaggio di evitare un’eccessiva concentrazione in capo al RUP di compiti e responsabilità direttamente operative. Si introduce, quindi, un principio di “responsabilità per fasi”

Digitalizzazione del ciclo di vita dei contratti: l’obiettivo del nuovo codice è quello di ricomprendere l’intero ciclo di vita dei contratti, articolato in programmazione, progettazione, pubblicazione, affidamento ed esecuzione. È previsto un “ecosistema nazionale di approvvigionamento digitale” i cui pilastri sono rappresentati dalla Banca dati nazionale dei contratti pubblici, fascicolo virtuale dell’operatore economico, piattaforme di approvvigionamento digitale, utilizzo di procedure automatizzate.

Programmazione dei beni e servizi: diventa triennale, in luogo di quella biennale, per uniformità rispetto a quello dei lavori. Modi-

68 NORMATIVA COMMENTATA settembre 2023
di Antonella Crugliano, Sara Capizzi, Arianna Laurenti Ufficio Legale e Appalti Dipartimento Tecnico Patrimoniale AUSL di Bologna

ficate anche le soglie che richiedono l’inserimento nei programmi: per i lavori vanno inseriti quelli di importo stimato pari o superiore a 150.000 euro. È poi previsto che i lavori di importo pari o superiore alla soglia di rilevanza europea siano inseriti nell’elenco triennale dopo l’approvazione del documento di fattibilità delle alternative progettuali e nell’elenco annuale dopo l’approvazione del documento di indirizzo della progettazione. I servizi vanno inseriti nel programma triennale se di importo stimato pari o superiore a 140.000 euro. Inserimento obbligatorio nei documenti di gara iniziali delle clausole di revisione prezzi in relazione al verificarsi di particolari condizioni di natura oggettiva, non prevedibili al momento dell’offerta. Il meccanismo di revisione prezzi si applica nelle ipotesi di una variazione in aumento o in diminuzione superiore al 5 per cento dell’importo complessivo originario e opera nella misura dell’80 per cento in relazione alla quota dell’importo variato.

Requisiti di ordine generale: la materia viene riordinata in ben cinque articoli riguardanti le cause di esclusione automatica, le cause di esclusione non automatica, la disciplina procedimentale comune agli eventi dai quali consegue l’esclusione dell’operatore economico, la disciplina riguardante i raggruppamenti di imprese, con la previsione dei casi di sostituzione o estromissione del componente del raggruppamento ed infine la disciplina dell’illecito professionale. A ciò si aggiunge l’ampliamento della disciplina del self cleaning, l’eliminazione della figura dei soggetti cessati dalla carica nell’anno antecedente la data di pubblicazione del bando di gara, il diverso inquadramento della omissione della comunicazione alla stazione appaltante o la sua non veridicità in ordine alla sussistenza dei fatti o dei provvedimenti che possono costituire

essere di possibile rilievo per la valutazione di inaffidabilità sottesa all’illecito professionale.

Subappalto: la principale novità è rappresentata dal venir meno della preclusione al cosiddetto subappalto a cascata. Si prevede la possibilità che le stazioni appaltanti indichino nei documenti di gara eventuali limitazioni al subappalto a cascata, che devono essere specifiche e motivate.

Partenariato pubblico privato (PPP): viene eliminata la ripartizione dell’attuale tra contratti di concessione e contratti di PPP, che ha dato luogo a difficoltà ermeneutiche e, quindi, operative. Ora le disposizioni generali in materia di PPP precedono la disciplina delle singole figure contrattuali, quali la concessione, la locazione finanziaria e il contratto di disponibilità, materia tutta disciplinata in unico libro.

Finanza di progetto: previsto ora il solo procedimento di project financing ad iniziativa privata, con la conseguente eliminazione della disciplina del project ad iniziativa pubblica prevista nel codice vigente. Inoltre, sono stati disciplinati i requisiti dei soggetti proponenti. Con specifico riguardo agli investitori istituzionali si precisa che, qualora privi dei requisiti richiesti dal bando, possano associarsi o consorziarsi, nella successiva gara, con operatori in possesso dei requisiti. Inoltre, per incentivare la partecipazione degli investitori istituzionali alle operazioni di PPP, è stata introdotta la previsione per cui questi ultimi possano soddisfare, in sede di gara, la richiesta dei requisiti di carattere economico – finanziario e tecnico – professionali avvalendosi, anche integralmente, delle capacità di altri soggetti e che possano subappaltare, anche integralmente, le prestazioni oggetto del contratto.

69 NORMATIVA COMMENTATA settembre 2023

Perché associarsi al C.N.E.T.O.

Il CNETO è un’associazione culturale che riunisce architetti e ingegneri interessati ai problemi dell’edilizia e della tecnica ospedaliera, tecnici, igienisti, amministratori ed economi di direzioni ospedaliere. Il CNETO ha come obiettivo primario la promozione dell’informazione e della conoscenza nello specifico settore della sanità, settore in continua e rapida evoluzione, che richiede il costante aggiornamento di tutti gli operatori. È proprio con questa finalità che l’Associazione organizza convegni nazionali e internazionali, viaggi di studio presso le strutture all’avanguardia sia italiane che estere, attiva contatti ufficiali con le altre associazioni e le istituzioni più rappresentative, anche straniere. Il CNETO è stato fondato quale Associazione multidisciplinare proprio perché la progettazione ospedaliera e socio-sanitaria esige la sinergia tra le diverse figure professionali coinvolte nella valutazione e risoluzione di tutti gli aspetti che concorrono a definire il progetto. La presenza delle Aziende, in qualità di soci collettivi, permette di stabilire uno stretto legame anche con il mondo della produzione e del mercato, le cui tendenze in atto costituiscono un indispensabile strumento di cultura tecnica.

RICHIESTA DI ADESIONE

Presa visione dell’articolo 4 dello statuto del CNETO il/la sottoscritto/a

Nome e Cognome

chiede di essere iscritto al CNETO in qualità di componente ordinario collettivo sostenitore studente € 100,00 € 300,00 € 600,00 € 50,00

Professione

Attività o carica

Comunicazioni sull’attività svolta nel campo-ospedaliero

Residenza e indirizzo:

Via N.

Città

Tel

Centro Nazionale per l’Edilizia e la Tecnica Ospedaliera

Versamento con bonifico bancario intestato a CNETO sul C/C Banca Prossima S.P.A., Filiale di Milano IBAN IT51A0335901600100000129131 specificando nella causale: “Quota associativa anno ..., Cognome e Nome (o ragione sociale) associato”.

C.N.E.T.O.

Centro Nazionale per l’Edilizia e la Tecnica Ospedaliera www.cneto.it | e-mail: info@cneto.it

Per iscriversi e per informazioni C.N.E.T.O.
70 settembre 2023

NOTIZIE DAL CNETO

A conclusione delle votazioni del CNETO per il triennio 2022-2024, sono risultati eletti i seguenti consiglieri:

Presidente: Stefano Capolongo

Past President: Maurizio Mauri

Segretario Generale: Marco Gola

Vice Presidenti: Margherita Carabillò e Roberto Righini

Direttore Rivista Progettare per la Sanità: Margherita Carabillò

Tesoriere: Roberto Righini

• GIUNTA ESECUTIVA

Ark.Ing.81 S.r.l. Righini

Bragonzi Gilberto

Carabillò Margherita

Ingaglio Monica

Meoli Federica

Peretti Gabriella

• CONSIGLIO NAZIONALE

Pollo Riccardo

Ravegnani Morosini Roberto

Sibillassociati Sibilla

Taddia Andrea

Tognolo Chiara

Vitali Marco

In rappresentanza dei Soci ordinari

Azzini Susanna

Bettamio Valentina

Bragonzi Gilberto

Brambilla Andrea

Carabillò Margherita

Colombo Luigi

Dubini Nicoletta

Ferrante Tiziana

Gola Marco

Grifa Egisto

Ingaglio Monica

Ladini Lino

Manara Giuseppe

Mauri Maurizio

Meoli Federica

Oddi Baglioni Grifone

Pedrini Daniela

Peretti Gabriella

Pollo Riccardo

Ravegnani Morosini Roberto

Taddia Andrea

Tognolo Chiara

Torricelli Maria Chiara

Vitali Marco

Zingaretti Gabriele

In rappresentanza dei Soci collettivi AIRNOVA ARK.ING.81 S.r.l.

BININI PARTNERS S.r.l.

CAIREPRO - COOPERATIVA ARCHITETTI

E INGEGNERI PROGETTAZIONE

POLITECNICO DI MILANO - Dipartimento ABC

PROGER SpA

PROGETTO CMR

SAGICOFIM SpA

SIBILLASSOCIATI

TECNICAER ENGINEERING S.r.l.

ESTRATTO DALLO STATUTO

Art. 1 Denominazione

Il “C.N.E T O - Centro Nazionale per l’Edilizia e la Tecnica Ospedaliera” è una Associazione culturale, apartitica e senza scopo di lucro, nata sotto gli auspici dell’ANIAI L’Associazione è retta dal presente statuto la cui attuazione operativa è demandata, se necessario, ad appositi regolamenti operativi

Art. 2 Sede

La sede legale del C.N.E T O è stabilita in Roma. L’Associazione può aprire sedi operative periferiche

Art.3 Scopo

L’Associazione ha come scopo, a beneficio della collettività: la promozione dello studio dei problemi organizzativi, gestionali e progettuali connessi con l’edilizia socio sanitaria;

di stabilire e mantenere contatti in campo nazionale e internazionale fra esperti italiani e stranieri e altre Associazioni che si interessano ai problemi attinenti allo scopo sociale;

di porre a disposizione e di favorire la diffusione delle conoscenze e del progresso delle arti dello specifico settore anche attraverso l’uso dei propri mezzi e strutture;

la promozione e/o la partecipazione al capitale sociale di società e/o associazioni che abbiano il fine statutario di approfondire, diffondere la cultura tecnico –architettonica, gestionale e organizzativa dell’edilizia socio-sanitaria, anche a scopi didattici ed editoriali

la qualificazione e il riconoscimento delle professionalità, svolgendo un ruolo di formazione e di informazione degli operatori

Per il raggiungimento dello scopo sociale il C.N.E T O indice, promuove e organizza convegni, seminari, giornate di studio, viaggi, visite tecniche, pubblicazioni proprie o di terzi e diffonde la rivista organo ufficiale dell’associazione

Art.4 – Ammissione e Soci

Sono ammessi a far parte del C.N.E T O le persone fisiche e giuridiche che, condividendone gli scopi, ne faranno domanda scritta, o tramite il sito ufficiale, alla Giunta Esecutiva e la cui domanda sarà dalla stessa accettata. I soci C.N.E T O. si distinguono in ordinari, studenti, collettivi, sostenitori, onorari

Soci ordinari, le persone fisiche esperte nel campo oggetto dello scopo associativo che ne fanno richiesta e che corrispondono annualmente la quota sociale ordinaria

Soci studenti e neo laureati, gli iscritti a corsi di studio universitari attinenti le materie interessanti lo scopo sociale che ne fanno richiesta e che corrispondono una quota associativa pari al 50% della quota sociale ordinaria. La qualifica di studente decade dopo tre anni dal termine degli studi e comunque entro il 30° anno di età

Soci collettivi, le persone giuridiche, gli Enti pubblici e privati, le Associazioni scientifiche e tecniche che ne fanno richiesta e che operano nel campo oggetto dello scopo associativo e che corrispondono la quota sociale collettiva pari a tre volte l’ordinaria; hanno diritto a tre voti

Soci sostenitori, i soggetti individuati alle lettere precedenti che si impegnano a corrispondere, per almeno cinque anni, una quota sociale annua pari a due volte la quota collettiva; hanno diritto a tre voti

Soci onorari, le personalità che per merito scientifico o professionale o per aver acquisito particolari meriti verso l’associazione vengono nominati tali. La loro nomina è proposta dalla Giunta Esecutiva, approvata dal Consiglio Nazionale e ratificata dall’Assemblea dei soci; i Soci Onorari non pagano la quota associativa e non hanno diritto di voto

Art. 5 Organi del C.N.E T O

Sono: l’Assemblea dei Soci, Il Consiglio Nazionale, Il Presidente, La Giunta esecutiva, Il Collegio dei revisori

71 settembre 2023
71 ottobre 2020 63 febbraio 2023

Organo uf ficiale del C.N.E.T.O Centro Nazionale per l’Edilizia e la Tecnica ospedaliera

L’INFORMAZIONE AUTOREVOLE NEL MONDO

DELLA PROGETTAZIONE PER LA SANITÀ

NON PERDERE QUESTA OCCASIONE

COMPILA LA CARTOLINA QUI SOTTO O VAI SUL SITO WWW.QUINE.IT

E ATTIVA SUBITO IL TUO ABBONAMENTO A SOLI

abbonamento annuale

• MANAGEMENT

E ORGANIZZAZIONE

• SICUREZZA E IGIEN

• INFORMATION TECHNOLOGY

• AGGIORNAMENTO LEGISLATIVO

• SCENARI INTERNAZIONALI

• TECNOLOGIE

E NOVITÀ DALL’INDUSTRIA

RISK MANAGEMENT

Abbonati su www.quine.it o compila questo coupon e invialo via email: abbonamenti@quine.it

Nome e Cognome

Azienda

Indirizzo

Cap Città

Telefono

E-mail

PEC (per fatturazione elettronica)

Codice fiscale (obbligatorio)

Partita IVA Codice destinatario (per fatturazione elettronica)

Desidero sottoscrivere il seguente abbonamento:

Abbonamento annuale Italia (6 numeri) a € 40,00.

Abbonamento annuale Europa (6 numeri) a € 60,00

PAGAMENTO

Bonifico Bancario IBAN IT88U0521601631000000000855 (allego fotocopia)

Versamento su c/c postale N.60473477 intestato a Quine Srl - Via Spadolini, 7 - 20141 Milano (allego fotocopia)

Addebito su carta di credito

Visa Carta Sì Mastercard

n. scadenza /

CVC (CVC: ultime 3 cifre del numero che si trova sul retro, nello spazio della firma)

Firma

CONSENSO AL TRATTAMENTO DEI DATI

Ai sensi dell’art 13 Regolamento Europeo per la Protezione dei Dati Personali 679/2016 (GDPR), il sottoscritto __________________________________________________________________________________ esprime il proprio espresso e specifico consenso a trattamento de dati ai fini di:

- Inv o e-mail promozionali e/o comunicazioni di marketing, nonché effettuazione di ricerche di mercato, se autorizzato dal cliente, da parte di Quine Srl o di società da essa controllate, collegate o partecipate; Esprimo il mio consenso Nego il mio consenso

- Invio e-mail promozionali e/o comunicazioni di marketing, se autorizzate dal cliente per finalità di profilazione (come ad es memorizzazione di abitudini di consumo) volte a migliorare le offerte nei confronti del cliente, da parte di Quine Srl o di società da essa controllate collegate o partecipate; Esprimo il mio consenso Nego il mio consenso

- Invio e-mail promozionali e/o comunicazioni di marketing, nonché effettuazione di ricerche di mercato, e di profilazione se autorizzato dal cliente, per conto di società terze (appartenenti alle categorie editoria, professionisti della salute, case farmaceutiche ecc) non facenti parte di Lswr Group Esprimo il mio consenso Nego il mio consenso

Esprimo il mio consenso al trattamento in base all’informativa di cui sopra Data

Firma
40 € ABBONAMENTI
Quine - Edra LSWR Group, Srl Via Spadolini, 7 20141 Milano - Italia Tel +39 02 864105 Fax +39 02 88184301
ORGANIZZAZIONE TECNOLOGIA
Editore:
PROGETTAZIONE
20 CNETO C ntroNazionale p rl’Edil z elaTecn c Ospedaiera 01
Il nuovo Ospedale di Cord o E g P ISSN: 17206642 Le azionidaintraprendere pergli ospedali del futuro/Tradizione e innovazionenelnuovoospedalediCordova/Larivoluzionedigitale nelleaziendesanitarieesociosanitare/Perchénondecolla lFasccolo Sanitario Elettronico / I pazient a etti da AMD nel progetto NEXTV SION /ProgettoAtt va-Mente:l arte cometerapia/Aspetti impantistici nelbunker di radioterapia/Gestione delle cronicità ne a ASL di Foggia / L’informatizzazione ne le Unità Farmaci Antblastici/ Progettazioneantincend odegliospedali:lavalutazione deimaterialidifinitura
Organizzazione,tecnologia, architettura

I PREZZARI DEI BONUS EDILIZI

NUOVA EDIZIONE 1° SEMESTRE 2023

Rilevazione prezzi MARZO 2023

Più di 15.000 prezzi del mercato nazionale dei cantieri di nuova costruzione, suddivisi in costi di manodopera, noli-costi orari, materiali, opere compiute e sicurezza. In particolare, sono riportate voci e prezzi per scavi e trasporti, opere provvisionali, pali e trivellazioni, opere in vetrocemento, massetti, sottofondi, vespai, drenaggi, opere murarie, condotti e canne fumarie, tetti e manti di copertura, impermeabilizzazioni, pavimenti, opere in pietra da taglio, rivestimenti, intonaci, controsoffitti e pareti divisorie, serramenti in legno e in pvc, opere in vetro e materie plastiche, opere da pittore, opere stradali e di giardinaggio, assistenze murarie, rilievi e prove di laboratorio, opere di sicurezza.

L’edizione del 1° semestre 2023 riporta l’aggiornamento ordinario delle tabelle della manodopera di tutte le categorie, suddivise per ciascuna provincia italiana, e dei prezzi dei materiali rispetto ai listini di febbraio 2023. Contiene, anche, la revisione generale dei prezzi dei noli e di leganti, malte e calcestruzzi. Di particolare rilievo la revisione effettuata sui costi delle opere murarie che utilizzano nuovi laterizi.

www.build.it

CB Omnia nasce con l’obiettivo di offrire ad ambulatori e piccole cliniche private progetti omnicomprensivi, che vanno dalla progettazione di sale operatorie e ambienti ospedalieri, alla realizzazione, nonché alla fornitura e gestione di tutte le apparecchiature.

PER UN VERO E PROPRIO PROGETTO CHIAVI IN MANO

CONSULENZA

Proponiamo le soluzioni più idonee e funzionali, rispondenti al desiderata.

PROGETTAZIONE

Seguiamo passo passo il cliente nello sviluppo del progetto

REALIZZAZIONE DI SOLUZIONI CUSTOMIZZATE

Soluzioni personalizzate e progettate ad hoc

04

INSTALLAZIONE

Ci occupiamo della posa in opera e del collaudo finale

05

GESTIONE E MANUTENZIONE

Un team dedicato all’assistenza e manutenzione resta a completa disposizione del cliente per ogni necessità

www. cbomnia .it

Turn static files into dynamic content formats.

Create a flipbook
Issuu converts static files into: digital portfolios, online yearbooks, online catalogs, digital photo albums and more. Sign up and create your flipbook.