Progettare per la Sanità n. 2/23 Aprile

Page 1

CNETO Centro Nazionale per l’Edilizia e la Tecnica Ospedaliera

Organizzazione, tecnologia, architettura

Un ecosistema di innovazione medica: l’Innovation Center of High-Performance Medical Device / Riqualificazione energetica e comfort dei pazienti / Case di Comunità: una rinnovata visione dei servizi assistenziali / Le sfide della Sanità al Convegno CNETO / I vantaggi delle reti cliniche assistenziali / Ottimizzazione dei costi operativi con il Digital Twin / Protezione e sicurezza dei dati e dispositivi sanitari / Convegno Costruirepiù: la progettazione post pandemia degli ospedali / Come affrontare il fenomeno delle ICA

L’Innovation Center of High-Performance Medical Device di Guangzhou 23 ISSN: 17206642 02

Hycleen Automation System

Hot Water Energy Calculator

Consumo energetico per la produzione di acqua calda: calcolo, simulazione, ottimizzazione

GF Piping Systems ha sviluppato uno strumento online con cui calcolare in modo semplice e rapido il consumo di energia per la fornitura di acqua calda nell‘edificio: l’«Hot Water Energy Calculator». Allo stesso tempo, lo strumento online può essere utilizzato per simulare il potenziale risparmio energetico che si otterrebbe ottimizzando il sistema di acqua potabile, garantendo l’igiene dell’acqua potabile. L’«Hot Water Energy Calculator» può essere utilizzato gratuitamente al seguente link: www.gfps.com/it/hot-water-energy-calculator

GF Piping Systems
fi Via Gennaro Righelli, 76-78 00137 Roma Tel. 06 82002732 Fax 06 82083959 www.rosiglioni.it Per
medicale
oltre 40
il
da
anni

Allarme Sanità (pubblica)

vo metaprogetto di ospedale, si debba operare nel senso di una profonda revisione dei meta-processi che lo governano: possiamo costruire edifici moderni e tecnologicamente avanzati solo dopo aver fatto chiarezza sulle diverse modalità organizzative che la digitalizzazione e l’evoluzione delle scienze mediche richiedono, altrimenti rischiamo un enorme spreco di risorse.

Ospedale del futuro, ospedale 4.0, next generation hospital, smart hospital… quale modello di ospedale stiamo ridisegnando per essere pronti ad affrontare le sfide dei prossimi anni? Sicuramente l’obiettivo è quello di promuovere l’ammodernamento dei nostri edifici per la salute affinché siano in grado di garantire, in primo luogo, efficienza, innovazione, resilienza e accoglienza. Il problema è che oggi più che mai dobbiamo fare i conti con alcune criticità.

Innanzi tutto, ho sempre più consapevolezza che prima ancora di ridefinire il nuo-

In secondo luogo, abbiamo una urgente necessità di adeguare i parametri economici relativi ai costi di costruzione e realizzazione per renderli compatibili con i risultati da raggiungere. Solo così riusciremo a superare la profonda crisi dovuta al rallentamento dei progetti per mancanza di budget e la conseguente desertificazione dei bandi di gara dovuti ai rincari delle materie prime e dell’energia.

Infine, mai come in questo periodo abbiamo l’esigenza di capire di che Sanità del futuro stiamo parlando perché il fenomeno sempre più evidente che vede medici e infermieri fuggire verso il privato o all’estero sta

diventando preoccupante: si sente parlare di una vera e propria emorragia che, secondo i dati forniti dalla Federazione sindacale dei medici, ha portato in dieci anni alla chiusura di ben 111 ospedali, 113 pronto soccorso oltre al taglio di 37.000 posti letto, all’allungamento delle liste di attesa e all’aumento del ricorso a prestazioni private. In più, la grave carenza del personale alle strutture pubbliche ha già generato una frequente domanda di cosiddetti professionisti “a gettone”, facendo lievitare i costi del lavoro e mettendo sotto pressione ulteriormente i bilanci delle nostre Regioni.

Il rischio che stiamo correndo, ormai da più parti palesato, è quello di scardinare quei principi di universalità, uguaglianza ed equità sanciti dalla nostra Costituzione e rafforzati, con la legge 833/1978, dall’istituzione del nostro Servizio Sanitario Nazionale. Quegli stessi principi che, per anni, sono stati riconosciuti come elementi di orgoglio per il nostro Paese.

Margherita Carabillò

Direttore Responsabile

Giorgio Albonetti

Direttore Scientifico

Margherita Carabillò

Coordinamento Editoriale

Chiara Scelsi - c.scelsi@lswr.it

Redazione

Fabio Chiavieri

redazione@progettareperlasanita.it

Comitato scientifico

S. Brusaferro, S. Capolongo, M. Carabillò, Marco Gola, J. Guercini, K. Kob, Maurizio

Mauri, F. S. Mennini, C. Nicora, D. Pedrini, G.Polifrone

Comitato di redazione

Architettura: Design LAB, DABC Politecnico di Milano

Impiantistica: Francesco Ruggiero

Information Technoloy:

Fabrizio Massimo Ferrara

Innovazione digitale: Paolo Bertini

Organo ufficiale del C.N.E.T.O.: Centro Nazionale per l’Edilizia e la Tecnica Ospedaliera

Organizzazione e management:

Federico Lega

Servizi e facility management:

Arturo Zenorini

Tecnologie per l’Architettura: Rosa Romano, Maria Chiara Torricelli

Hanno collaborato a questo numero:

V. A. Allegretti, M. Buffoli, E. Brusamolin, M. Cappellina, T. Ferrante, M. Ferrara, G. Laudani, F. Lega, M. Pedrini, F. Romagnoli, R. Romano, T. Villani, A. Zenorini,

Stampa & Produzione

Antonio Iovene - 3491811231

a.iovene@lswr.it

Pubblicità

Costantino Cialfi

c.cialfi@lswr.it Tel. 346 6705086

Archivio immagini Shutterstock

Traffico

Ornella Foletti ornella.foletti@quine.it Tel. 3427968897

Abbonamenti www.quine.it

abbonamenti.quine@lswr.it - Tel. 02 864105

Costo copia singola: euro 2,50

abbonamento annuale Italia euro 40,00

abbonamento annuale Europa euro 60,00

Stampa TIPOLITOGRAFIAPAGANI s.r.l. via Adua, 6 25050 - Passirano - (Brescia) - Italy)

©2023 Quine Business Publisher

Progettare per la sanità www.progettareperlasanita.it

Reg. Trib. Milano n. 767 del 09/11/1998

Iscrizione al ROC n. 12191 del 29.10.2005

Tutti gli articoli pubblicati su Progettare per la sanità sono redatti sotto la responsabilità degli Autori. La pubblicazione o la ristampa degli articoli deve essere autorizzata per iscritto dall’editore. Ai sensi dell’art. 13 del Regolamento Europeo per la Protezione dei Dati Personali 679/2016 di seguito GDPR, i dati di tutti i lettori saranno trattati sia manualmente, sia con strumenti informatici e saranno utilizzati per l’invio di questa e di altre pubblicazioni e di materiale informativo e promozionale. Le modalità di trattamento saranno conformi a quanto previsto dagli art. 5-6-7 del GDPR. I dati potranno essere comunicati a soggetti con i quali Quine Srl intrattiene rapporti contrattuali necessari per l’invio delle copie della rivista. Il titolare del trattamento dei dati è Quine Srl, Via Spadolini 7, 20141 Milano, al quale il lettore si potrà rivolgere per chiedere l’aggiornamento, l’integrazione, la cancellazione e ogni altra operazionedi cui agli art. 15-21 del GDPR.

Testata Associata

L’Innovation Center of High-Performance Medical Device di Guangzhou
2 EDITORIALE aprile 2023

CONTROLLO

ZeroCONTACT è un sistema di apertura automatizzato appliccabile alle serrande dei moduli ZeroFire e si aziona semplicemente con il passaggio del piede in corrispondenza della spia luminosa. Il sistema permette di evitare il contatto con la superficie garantendo assoluta sicurezza anche in ambienti di alta criticità.

INFEZIONI
La spia luminosa azzurra indica quando la serranda è completamente aperta o chiusa.
ZERO Contact Contact Automatic LIGHT www.favero.it LIGHT LONG LASTING INNOVATION
La spia rossa indica la mobilizzazione della serranda in apertura o chiusura.

Sommario

IL CENTRO NAZIONALE DI INNOVAZIONE PER DISPOSITIVI MEDICI AD ALTE PRESTAZIONI

DI GUANGZHOU

L’Innovation Center of High-Performance Medical Device (IHM·GBA) nasce con l’obiettivo di dare origine ad un ecosistema di innovazione medica che promuova la collaborazione tra le imprese, le istituzioni accademiche e ospedali internazionali, accelerando la commercializzazione di tecnologie mediche avanzate e migliorando la salute e la qualità di vita dei pazienti di Maddalena Buffoli, Erica Brusamolin di Maddalena Buffoli, Erica Brusamolin

RIQUALIFICAZIONE ENERGETICA

DEGLI OSPEDALI ESISTENTI: IL CASO DELL’OSPEDALE PROVINCIALE DI BREGENZ

Nel settore ospedaliero, migliorare le prestazioni energetiche dell’edifico permette di incrementare il comfort dei pazienti e del personale sanitario, che possono così beneficiare di migliori condizioni di temperatura, illuminazione e acustica con conseguenze positive anche sui tempi di guarigione. Partendo da questa e altre riflessioni presentiamo il progetto di riqualificazione e ampliamento dell’Ospedale Provinciale di Bregenz di Rosa Romano

LE FUTURE SFIDE DELLA SANITÀ

Nella scenografica cornice di Camogli, il 12 e 13 febbraio si è tenuto il convegno nazionale CNETO 2023 sul tema: “Le future sfide della sanità 4.0. Le nuove case e ospedali di comunità e di sistemi integrati per la salute ”. di Giuseppe Laudani

RETI CLINICHE:

LA FRONTIERA PER CURE INTEGRATE, SICURE E DI QUALITÀ

Le Case di Comunità italiane discusse e messe a confronto con le strutture di Kaiser Permanente per individuare possibili spunti utili al SSN italiano di Martina Cappellina, Marianna Ferrara, Federico Lega

LE CASE DI COMUNITÀ: ALCUNE ESPERIENZE INTERNAZIONALI

Nell’ambito del SSN le Case di Comunità rappresentano il fulcro dei nuovi servizi assistenziali integrati sul territorio. Attraverso lo studio di tre casi internazionali l’articolo propone soluzioni progettuali che interpretano questa rinnovata visione dei servizi socio-sanitari secondo logiche di integrazione, relazione proattiva, inclusività con il contesto locale e la sua comunità di Tiziana Ferrante, Federica Romagnoli, Teresa Villani

10
16
32
22
28 4 SOMMARIO aprile 2023

40

DIGITAL TWIN OPERATIVO: LIBERARE RISORSE IN FASE DI ESERCIZIO IN UNA STRUTTURA SANITARIA

La transizione digitale ed energetica rappresenta lo strumento più adeguato a colmare le carenze di risorse che sempre più preoccupa chi elargisce i servizi sanitari: i benefici che ne derivano richiedono un cambio radicale del mindset di chi ha l’onere di pianificare la sanità del futuro di Vito Augusto Allegretti

IL ROVESCIO DELLA MEDAGLIA DELLA DIGITALIZZAZIONE IN SANITÀ

In un incontro online discussi i temi della sicurezza dei dispositivi elettromedicali e degli impedimenti burocratici incontrati dal CNR nello svolgere i progetti clinici di Arturo Zenorini

44 50 News 6 Normativa commentata 56

LA PROGETTAZIONE OSPEDALIERA POST-COVID

In occasione del convegno digitale Costruirepiù dello scorso mese di febbraio, la sessione curata da CNETO ha sottolineato la necessità di aggiornare le conoscenze nell’ambito della progettazione ospedaliera a seguito dell’evento pandemico che ha messo in crisi i sistemi sanitari di tutto il mondo di Fabio Chiavieri

AZIONI COORDINATE CONTRO LE ICA

Carlo Bianchi IV cop.

www.carlobianchi.com/it

Comoli Ferrari III cop.

www.comoliferrari.it

Favero Health Project pag. 3

www.favero.it

RUBRICHE Georg Fisher II cop.-pag.8 www.gfps.com Rosiglioni pag. 1 www.rosiglioni.it Valsir pag. 9-54 www.valsir.it

5 SOMMARIO aprile 2023

36
Il tema del rischio clinico è sempre più al centro dell’attenzione perché interessa vari settori della sanità e ha un forte impatto sociale ed economico. Alberto Firenze, presidente nazionale dell’Associazione Hospital & Clinical Risk Managers, è convinto che si possa affrontare in modo nuovo il preoccupante fenomeno delle ICA, miete ogni anno migliaia di vittime di Maurizio Pedrini Le aziende presenti in questo numero

L’IMPATTO DELLO STOP AI BONUS SULLA FILIERA HVAC

Con il blocco della cessione del credito e dello sconto in fattura che travolge anche l’Ecobonus, il DecretoLegge 11/2023 espone la filiera dell’impiantistica di riscaldamento, climatizzazione e trattamento dell’acqua a danni tanto inaspettati quanto inge nti. Oltre a riferirsi ai lavori non ancora avviati, infatti, lo stop alle agevolazioni ha valore retroattivo, e va a coinvolgere anche gli ordini di merce già ordinata ma non ancora consegnata o installata. L’impatto sulle imprese è stato immediato, con una frenata sugli ordinativi da parte dei clienti e un numero crescente di disdette degli acquisti. Le stime delle associazioni di settore federate Anima Confindustria parlano di perdite del 30%.

Alberto Montanini, presidente di Assotermica – Associazione produttori apparecchi e componenti per impianti termici – comme nta « Il comparto dei produttori di caldaie è uno dei segmenti di mercato più colpiti dal taglio all’Ecobonus, misura su cui molte società che fanno efficientamento energetico avevano virato confidando nel mantenimento dello sconto in fattura. Nel 2022 sono stati installati 1,1 milioni di apparecchi, nel 2023 ci saranno circa 350.000 unità in meno, con un ritorno

ai valori prepandemici. Purtroppo anche gli apparecchi ibridi saranno penalizzati ».

Sulla stessa linea le parole di Stefano Bellò, vicepresidente di Assoclima – Costruttori sistemi di climatizzazione. «Sulla base delle nostre previsioni, il settore delle pompe di calore subirà una riduzione di un terzo del giro d’affari. Trattandosi di interventi edilizi articolati, il mercato tornerà a concentrarsi su riqualificazioni profonde e nuove costruzioni, arrestando un processo virtuoso di decarbonizzazione degli edifici esistenti, che spesso necessita di iter lunghi o complessi, in particolare nei condomini». F abrizio Leoni, presidente di Aqua Italia – Associazione costruttori trattamenti acque primarie – dichiara «Sebbene il nostro co mparto risenta meno dei tagli rispetto a settori più direttamente coinvolti, resta comunque sicura la previsione di una considerevole contrazione del fatturato per le imprese. I bonus, resi accessibili dalle agevolazioni fiscali, hanno avuto un ruolo fondamentale nel rilancio dell’economia italiana e come motore del mercato, ma oltre al dato economico ricordiamo che l’obiettivo ultimo è l’efficienza energetica in ottica di transizione sostenibile, che ora rischia essere in pericolo ».

FAAC OPINION LEADER DELLA CAMPAGNA NAZIONALE

“ITALIA IN CLASSE A”

FAAC Spa, l’azienda multinazionale italiana, con sede a Bologna, leader nel settore dell’automazione e del controllo accessi a uso veicolare e pedonale per applicazioni residenziali e industriali, è il nuovo Opinion Leader della Campagna nazionale sull’efficienza energetica “Italia in classe A”, promossa dal Ministero dell’Ambiente e della Sicurezza Energetica e realizzata dall’ENEA.

L’accordo, siglato nei giorni scorsi con ENEA dal presidente di FAAC, Andrea Moschetti, riguarda le soluzioni e prodotti dell’azienda bolognese di comprovata efficacia nel risparmio energetico, in particolare quelle che consentono di ridurre le dispersioni di aria climatizzata.

FAAC può perciò fregiarsi del ruolo di Opinion Leader per alcune delle sue soluzioni di punta: “Airslide”, l’ingresso automatico per ante scorrevoli con lama d’aria integrata; l’innovativo dispositivo “Energy Saving”, che applicato agli ingressi automatizzati permette di individuare la direzione della camminata ottimizzando perfettamente i tempi di apertura/chiusura ed evitando inutili dispersioni d’aria; il sistema di riarmo automatico per ingressi

automatici installati su vie di fuga, che consente di eliminare fermi macchina e le conseguenti dispersioni termiche in caso di sfondamento delle ante.

Queste tre soluzioni potranno riportare perciò il logo di Opinion Leader nell’ambito della seconda edizione della Campagna Nazionale “Italia in classe A”, che si svolge nel biennio 2023-2024.

aprile 2023 6 NEWS
█ FAAC è il nuovo Opinion Leader della Campagna nazionale sull’efficienza energetica “Italia in classe A”, promossa dal Ministero dell’Ambiente e della Sicurezza Energetica e realizzata dall’ENEA.

La Campagna nasce su un modello di comunicazione scientifica integrata e si concentra ora sullo studio di strumenti di comunicazione che, nel rispetto della completezza, trasparenza, correttezza delle informazioni divulgate, affrontino in chiave innovativa il raggiungimento della più larga parte della popolazione, con messaggi che esaltano la consapevolezza del ruolo che ciascuno può interpretare, inducendo ad un protagonismo attivo e informato che accompagni e faciliti la transizione energetica verso la sostenibilità economica ambientale e sociale.

Tra le linee di attività approvate dal Ministero dello sviluppo economico, un ruolo importante è appunto quello degli Opinion Leader, definiti e individuati sulla base di parametri certi e verificabili. Istituzioni, associazioni, imprese e soggetti -non attivi

nella filiera energetica- autorevoli nel loro settore di attività. Autorevolezza misurata sulla base del numero di clienti, associati, utenti e sulla reputazione per l’attenzione ai temi della sicurezza, dell’ambiente della sostenibilità sociale.

“Azienda da sempre attenta, nei suoi quasi 60 anni di attività, agli standard di eticità e alle soluzioni di avanguardia rispettose della sostenibilità ambientale – sottolinea il presidente Andrea Moschetti -, FAAC aderisce con entusiasmo e orgoglio a questa iniziativa che riconosce la qualità dei nostri prodotti e l’impegno che mettiamo nella ricerca e sviluppo di soluzioni che rispondono in pieno alle esigenze dei nostri clienti e utilizzatori e della collettività nella sua interezza. Tra queste esigenze ai primi posti sta certamente il risparmio energetico”

10a CONFERENZA EUROPEA SULL’INGEGNERIA OSPEDALIERA

L’Associazione francese di ingegneria ospedaliera, Ingénieurs Hospitaliers de France (IHF), ospiterà la 10a Conferenza europea sull’Ingegneria Ospedaliera (ECHE) presso il Palazzo dei Congressi di Parigi dal 14 al 16 giugno di quest’anno, in concomitanza con le 63° Giornate di studio e formazione IHF.

Jacques Roos, vicepresidente di IHF e dell’IFHE-EU (quest’ultima è stata istituita a Strasburgo nel settembre 2005, con la prima Conferenza europea sull’ingegneria sanitaria (ECHE) tenutasi dal 5 al 7 settembre dello stesso anno a Baden-Baden, in Germania), ha dichiarato: Molte associazioni europee di ingegneri ospedalieri hanno confermato la loro partecipazione, che è importante, poiché uno degli obiettivi centrali dell’IFHE è consentire ai membri di conoscersi meglio e promuovere la condivisione di esperienze e competenze tra Paesi europei, in particolare attraverso ECHE.

Eventi complessi in Europa, compreso il COVID-19, pandemia, cambiamento climatico, guerra in Ucraina e la necessità di un accesso universale alla sanità, stanno ulteriormente complicando le principali sfide che l’ingegneria ospedaliera si trova attualmente ad affrontare – sviluppo sostenibile e riduzione delle emissioni climalteranti, ciclo di vita e costi complessivi, sviluppo del digitale e dell’intelligenza artificiale e coinvolgere

gli utenti nella progettazione degli spazi sanitari. Tutti questi sono elementi che stanno ora influenzando i temi più tradizionali della gestione della manutenzione, il funzionamento e la progettazione dell’ambiente costruito in ambito sanitario. Queste criticità saranno discusse da relatori di spicco di IFHEEU nel corso di due sessioni plenarie e degli otto workshop a tema, e saranno presentate in articoli pubblicati nel Libro degli atti - un opuscolo stampato che sarà dato a tutti i partecipanti al loro arrivo, come pubblicazione di riferimento.

Ci sarà un’esposizione che permetterà ai visitatori di scoprire le innovazioni e dibattere con altri professionisti e ci saranno molteplici opportunità per interazione.

La conferenza sarà integrata da una esposizione, con un’ampia possibilità di interazione tra delegati, relatori e altre figure del settore dell’ingegneria ospedaliera da tutta Europa.

Per il programma completo dell’evento: https://eche-paris2023.com/en

aprile 2023 7 NEWS
█ Ingénieurs Hospitaliers de France (IHF), ospiterà la 10a Conferenza europea sull’Ingegneria Ospedaliera (ECHE) presso il Palazzo dei Congressi di Parigi dal 14 al 16 giugno 2023

CONSUMO ENERGETICO PER LA PRODUZIONE DI ACQUA CALDA: CALCOLO, SIMULAZIONE, OTTIMIZZAZIONE

A oggi, un edificio ben isolato spesso consuma più energia per l’acqua calda di quanto non se ne consumi per il riscaldamento. Bisogna quindi tenerne conto per aumentare l’efficienza energetica. Lo strumento online “Hot Water Energy Calculator” di GF Piping Systems ha questo obiettivo: quantificare tale consumo e calcolare il risparmio ottenibile ottimizzando gli impianti. GF, collaborando con l’Università di Scienze Applicate dell’Ostfalia, ha sviluppato uno strumento online con cui calcolare in modo semplice e rapido il consumo energetico per la fornitura di acqua calda nell’edificio.

Nello strumento possono essere inseriti i parametri quali la superficie utile, l’anno di costruzione, la temperatura dell’acqua, la fonte di energia, i dettagli del sistema di distribuzione. E il calcolatore restituisce: fabbisogno energetico annuo in kWh, emissioni di CO 2 e costi energetici per anno in euro. Inoltre, vengono quantificate le dispersioni di calore. I vantaggi dell’ottimizzazione energetica con il sistema Hycleen Automation System di Georg Fischer sono:

█ riduzione del consumo di energia garantendo al contempo l’igiene dell’acqua potabile;

█ rispetto delle misure di risparmio energetico imposte dalle norme di legge presenti e future;

█ conformità al concetto di green building e agli standard di certificazione di breeam, leed;

█ monitoraggio e regolazione costante della temperatura, anche mediante accesso remoto (hycleen connect);

█ abbassamento della temperatura del sistema al minimo richiesto dalla legge;

█ riduzione della portata grazie all’ottimizzazione delle perdite e alla regolazione della potenza della pompa di circolazione;

█ tempi di ammortamento del sistema ridotti grazie al consistente risparmio energetico.

Per utilizzare lo strumento: www.gfps.com/it/hot-water-energy-calculator

Il volume edito da Allemandi “Marco Vitali. Architetture fotografate da Gianfranco Verrua”, presenta le architetture disegnate da Marco Vitali attraverso l’interpretazione del fotografo Gianfranco Verrua che ha saputo evidenziare, con le sue immagini, lo stile che ne ha animato la progettazione e nel quale ha riconosciuto solidi legami e corrispondenze con la sua visione, centrata su forme forti, schiette e pulite.

Le foto dei progetti selezionati sono una testimonianza tangibile del lavoro di Marco Vitali che è sempre avanzato nella direzione volta a trasformare anche le opere di ingegneria in vere e proprie opere architettoniche. La raccolta delle realizzazioni più significative in ambito sanitario,

in tanti anni di fortunata e competente attività professionale, dimostra proprio la capacità di Marco - ingegnere con una particolare sensibilità verso l’architettura - di rispondere alla richiesta funzionale dando valore al luogo.

Marco Vitali è Socio e membro della giunta esecutiva CNETO, attivo dagli anni ‘60 come progettista libero professionista e da oltre cinquant’anni impegnato nella progettazione di edifici pubblici soprattutto in ambito sanitario.

Gianfranco Verrua, laureato in Sociologia e in Psicologia, è giornalista e fotografo nonché autore di mostre e libri di fotografie soprattutto nell’ambito del paesaggio urbano e dell’architettura.

aprile 2023 8 NEWS
RECENSIONI
“Marco Vitali. Architetture fotografate da Gianfranco Verrua” Umberto Allemandi editore, Torino, 2022. Pagg. 159

VALSIR, OLI, MARVON E ALBA TRA LE PRIME AZIENDE

ITALIANE DEL SETTORE IDROTERMOSANITARIO

A CERTIFICARE LA CARBON FOOTPRINT DI ORGANIZZAZIONE

La Carbon Footprint è un indicatore attraverso il quale è possibile misurare le emissioni di gas serra generate da un’organizzazione, da un servizio, da un prodotto. In questo caso, parliamo di una realtà industriale, anzi…quattro: quelle di Valsir, OLI, Marvon e Alba, aziende appartenenti alla holding bresciana Silmar Group. “Certificare” l’impronta ecologica di un’impresa significa misurarne con precisione l’impatto ambientale, considerando anche tutti i fattori “a valle e a monte” dell’operato di tale impresa. Con la scelta di cimentarsi in questa nuova sfida, le quattro aziende valsabbine non soltanto si sono impegnate a verificare – secondo le precise indicazioni della norma UNI EN ISO 14064 – il reale impatto delle proprie attività produttive, ma hanno scelto di adottare i criteri stabiliti dalla “Science Based Target initiative” (SBTi) per fissare gli obiettivi di mitigazione dell’emissione di CO2 e gas ad effetto serra e – soprattutto – di rendicontare pubblicamente l’andamento del proprio percorso. È un passo essenziale perché definisce un punto di partenza, l’inizio di un percorso. E perché permette di definire gli obiettivi

da raggiungere con lo scopo di ridurre le emissioni attraverso l’attuazione di misure adeguate, che includono sia attività di miglioramento del proprio profilo ecologico, sia iniziative di compensazione (ad esempio, attività di riqualificazione ambientale).

Ma una scommessa così importante non è una novità per Valsir e consociate, che hanno iniziato già molti anni or sono a rendicontare il proprio impegno sostenibile attraverso la pubblicazione del Bilancio di Sostenibilità (di cui è stata recentemente data alle stampe la quarta edizione biennale) e che nel tempo hanno lavorato costantemente in questa direzione, ad esempio – per quanto riguarda proprio Valsir – con il conseguimento della certificazione ISO 50001 e ISO 14001, rispettivamente del Sistema di Gestione dell’Energia e dell’Ambiente e delle certificazioni EPD (in conformità alle norme UNI EN ISO 14025 e UNI EN ISO 14025+A2) che misurano l’impatto ambientale di ciascun prodotto, considerandone l’intero ciclo di vita “dalla culla alla tomba”.

aprile 2023 9 NEWS
█ Vista aerea dello stabilimento Valsir di Vestone (BS)

Il Centro Nazionale di innovazione per dispositivi medici ad alte prestazioni di Guangzhou

L’Innovation Center of High-Performance Medical Device (IHM·GBA) nasce con l’obiettivo di dare origine ad un ecosistema di innovazione medica che promuova la collaborazione tra le imprese, le istituzioni accademiche e ospedali internazionali, accelerando la commercializzazione di tecnologie mediche avanzate e migliorando la salute e la qualità di vita dei pazienti

di Maddalena Buffoli, Erica Brusamolin
10 ARCHITETTURA aprile 2023
█ Vista esterna dal piano strada del nuovo Innovation Center of High-Performance Medical Device.©Tian Fangfang, su gentile concessione di HENN Architecture

DATI TECNICI

Luogo

Guangzhou (Cina)

Cliente

Chuang Jing Med

Superficie lorda complessiva 59.000 mq circa

Anno di progettazione 2019

Anni di realizzazione 2020 -2022

Anno di inaugurazione 2022

Progettista principale HENN Architecture. Capi progetto: Georg Pichler (partner responsabile), Hua Qiao (diretto del progetto), Leander Adrian (direttore del design)

Team di progettazione

Guangzhou Design Institute Group Co. Ltd (partner locale), Hezhang Design (partner paesaggista), SuP Ingenieure GmbH (partner facciate), RDI (progetto illuminotecnico)

11 ARCHITETTURA aprile 2023

IDEAZIONE DELL’IHM·GBA

Il 10 giugno 2019, in occasione del 3° Guanzhou International Bio Forum, è stato fondato il Centro di innovazione per dispositivi medici ad alte prestazioni. L’edificio che lo ospita poggia le sue fondamenta su Guangzhou International Bio Island, al centro della più grande città costiera del sud della Cina, a Guangzhou. Con una superficie di 1.83 km quadrati, questa isola costituisce il vettore principale per lo sviluppo della ricerca e della tecnologia biomedica ospitando finora più di 100 imprese biotecnologiche, istituti di ricerca e sviluppo, organizzazioni che forniscono servizi di supporto professionale e centri di investimento finanziario per lo sviluppo dell’industria biofarmaceutica.

All’interno di questo contesto, l’Innovation Center of High-Performance Medical Device mira a diventare un nuovo punto di riferi-

mento globale sullo sviluppo di apparecchiature mediche di alto livello tecnologico adottando un approccio dinamico fatto da operazioni di mercato, di proprietà intellettuale e proprietà industriale, e di collaborazioni tra team di talenti internazionali in settori come R&D, cliniche, controllo qualità e marketing. Il Centro di innovazione per dispositivi medici ad alte prestazioni rappresenta uno dei 16 centri nazionali di innovazione manifatturiera ed anche parte dei progetti chiave previsti nelle priorità del Piano d’azione triennale del “Programma di sviluppo della Grande Baia di GuangdongHong Kong-Macao”. Infatti, l’iniziativa economica e di sviluppo lanciata dal governo cinese nel 2017, mira alla creazione di un hub innovativo e tecnologico di livello mondiale che possa competere con altre grandi aree metropolitane come la Bay Area di San Francisco.

12 ARCHITETTURA aprile 2023
█ Zoom sul prospetto dell’edificio intervallato dalla presenza di giardini pensili. ©Tian Fangfang, su gentile concessione di HENN Architecture

IL RUOLO INNOVATIVO E STRATEGICO DEL CENTRO DI RICERCA

L’Innovation Center of High-Performance Medical Device è un centro di ricerca e sviluppo focalizzato sull’innovazione di dispositivi medici ad alta tecnologia. Il Centro di Innovazione si concentra sulla ricerca, sviluppo e commercializzazione di dispositivi medici avanzati come: apparecchiature di imaging medico, strumenti chirurgici robotici, dispositivi di monitoraggio dei pazienti, dispositivi diagnostici e terapeutici avanzati, e molti altri. Questa è stata la

giusta occasione per riunire una serie di importanti produttori di apparecchiature mediche, tra cui Mindray, United Imaging e LifeTech Scientific Corp

Nel Centro hanno trovato spazio anche istituti di ricerca come gli Shenzhen Institutes of Advanced Technology sotto l’Accademia cinese delle scienze. In definitiva, il Centro collabora con università, ospedali, imprese tecnologiche e altre organizzazioni per sviluppare tecnologie innovative e accelerare la commercializza-

13 ARCHITETTURA aprile 2023
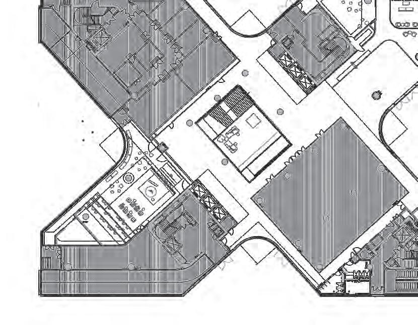
zione dei prodotti. █ Hall di ingresso del Centro di Innovazione. Dettaglio sull’elemento di connessione dei piani e sull’apertura a soffitto che favorisce l’ingresso della luce naturale. ©Tian Fangfang, su gentile concessione di HENN Architecture █ Area comune per la condivisione e il riposo degli utenti. ©Tian Fangfang, su gentile concessione di HENN Architecture Piano terra dell’edificio, dedicato alle funzioni pubbliche. ©HENN, su gentile concessione di HENN Architecture. Piano primo dell’edificio. ©HENN, su gentile concessione di HENN Architecture.

Questa nuova struttura rappresenta un’innovazione importante in quanto consente di creare un ambiente favorevole all’innovazione medica che promuove la collaborazione tra le imprese, le istituzioni accademiche e gli ospedali, accelerando la commercializzazione di tecnologie mediche avanzate e migliorando la salute e la qualità della vita dei pazienti. In altre parole, il centro di innovazione rappresenta un passo avanti nella creazione di un ecosistema medico integrato che favorisce lo sviluppo e la commercializzazione di tecnologie mediche avanzate. Si prevede infatti che il Centro di Innovazione svolgerà un ruolo importante nello sviluppo dell’industria dei dispositivi medici ad alta tecnologia non solo nella regione ma anche a livello globale. Come afferma Zheng Hairong, direttore del Centro di Innovazione e vicecapo degli Istituti di tecnologia avanzata di Shenzhen sotto l’Accademia cinese delle scienze, “l’importanza delle apparecchiature mediche di fascia alta è stata evidenziata durante la lotta contro l’epidemia. Con l’aiuto del centro di innovazione, la Cina intensificherà gli sforzi per le scoperte delle apparecchiature mediche di fascia alta”.

IL PROGETTO FUNZIONALE

Il design del progetto dello studio di architettura HENN è caratterizzato dal concetto del “Knowledge Weave”, ideale per rappresentare la visione di un centro di ricerca orientato al futuro e alla crescita. Questa struttura moderna e tecnologicamente avanzata rappresenta una nuova tipologia di architettura verticale ad alta densità. La forma a X del progetto architettonico allude alla forte collaborazione che caratterizza il modello lavorativo applicato all’interno del Centro di Innovazione che mira a far incontrare i diversi ricercatori che condividono il medesimo interesse per la ricerca, lo sviluppo e la commercializzazione accelerata di strumentazioni medica avanzate.

Tra i servizi al suo interno, si trovano servizi di supporto per la ricerca e lo sviluppo di dispositivi medici, come la progettazione del prodotto, la prototipazione, la valutazione delle prestazioni e la verifica della conformità normativa. A questi si aggiungono anche servizi di supporto alle imprese, come assistenza nella gestione dei diritti di proprietà intellettuale, formazione imprenditoriale, networking, accesso a laboratori e strumentazioni tecnologiche avanzate, consulenza sull’innovazione tecnologica, e analisi sulla fattibilità progettuale.

I circa 59.000 metri quadrati dell’edificio ospitano laboratori di ricerca, uffici, sale conferenze, spazi per la collaborazione e lo scambio informale tra le diverse organizzazioni coinvolte nel processo di innovazione medica. Il progetto di HENN riesce ad intrec-

14 ARCHITETTURA aprile 2023
Piano terzo dell’edificio. ©HENN, su gentile concessione di HENN Architecture. █ Schema della strategia di design seguita dallo studio HENN per la progettazione del nuovo Centro di lnnovazione. © HENN, su gentile concessione di HENN Architecture █ Diagramma che mostra i tre principali volumi che compongono l’edificio ©HENN, su gentile concessione di HENN Architecture

Focus di dettaglio sulla facciata dell’edificio. ©HENN, su gentile concessione di HENN Architecture

ciare sapientemente tutti questi servizi nella pianta a forma di X, utilizzando in modo ottimale la trama quadrata. Come si evince dall’esploso assonometrico, all’interno dell’edificio si trova una prima area pubblica di “sperimentazione” con i laboratori, poi i piani di sviluppo con sale multifunzionali, e infine le aree direzionali e uffici. Nello specifico, lungo i quattro “segmenti” che compongono la pianta a X si trovano i laboratori o gli spazi di lavoro, mentre le intersezioni sono dedicate agli spazi comuni e condivisi per i dipendenti.

I tre piani dell’edificio, separati visivamente in facciata da giardini pensili, sono organizzati e strutturati dal basso verso l’alto in modo tale da fare riferimento all’analogo processo di sviluppo di un progetto che parte da un’idea fino ad arrivare alla sua applicazione, come affermano i progettisti.

La griglia strutturale si presenta più fitta nelle aree dei laboratori e più ampia nelle sezioni dedicate agli uffici. Questo disegno planimetrico permette l’uso ottimale di ogni piano: il volume inferiore ospita le funzioni pubbliche come la hall, la sala espositiva, il laboratorio espositivo e la caffetteria; il secondo piano sovrastante ospita laboratori, sale riunioni e sale polivalenti; mentre all’ultimo piano si trovano gli uffici. Due nuclei di sviluppo attraversano gli spazi verticali al centro dell’edificio.

In generale, gli spazi sono principalmente flessibili e modulari per consentire di adattare gli spazi alle diverse esigenze degli utenti,

e per la maggior parte sono dotati di tecnologie avanzate per la sicurezza, l’automazione e il controllo ambientale, in modo tale da garantire un ambiente di lavoro sicuro e confortevole per gli utenti.

CONCLUSIONI

L’Innovation Center of High-Performance Medical Device presenta numerosi aspetti di innovazione progettuale. Oltre alla già citata forma di X in pianta, che – secondo il team di progettisti e la direzione strategica del centro- consente di intrecciare e sfruttare al meglio le diverse funzioni dell’edificio, e alla zonizzazione verticale che permette di separare le funzioni pubbliche da quelle private, l’interazione tra spazi a uno e due piani crea un continuum spaziale intrecciato a spirale che collega tra loro le diverse aree di lavoro e caratterizza il design l’edificio.

La forma dell’edificio agevola anche l’ingresso della luce naturale in ogni ambiente dei 4 segmenti fino al cuore dell’edificio, fornendo diversi punti panoramici sul contesto naturale circostante. All’interno di questo contesto, il centro di ricerca si fa riconoscere grazie anche al suo prospetto giocoso caratterizzato da un mix contrastante fatto di curve, spigoli vivi, superfici rientranti, trasparenti e aree traslucide che conferiscono qualità estetica alle viste esterne e creano una composizione dinamica ma omogenea lungo le facciate rendendo l’edificio un landmark Anche la sostenibilità trova spazio in questo progetto dove vengono garantiti sia gli spazi verdi, come i giardini pensili tra ogni piano che vengono utilizzati come aree ricreative e di recupero per il personale lavorativo, che gli spazi di condivisione nelle intersezioni della pianta che favoriscono l’interazione tra i dipendenti e lo scambio informale di idee.

Si ringraziano per la realizzazione dell’articolo i colleghi degli HENN Architecture, e in particolare Elena Artzt, per la condivisione delle immagini e piante pubblicate in questo articolo.

Bibliografia

█ descrizioni del progetto fornìte da HENN Architecture; █ disamina tecnica delle piante del progetto;

█ pagina web dell’Innovation Center of High-Performance Medical Device;

█ portali di architettura accessibili dal web.

Le autrici

MADDALENA BUFFOLI

ERICA BRUSAMOLIN

Design & Health Lab, Dip. Architettura, ingegneria delle costruzioni e ambiente costruito, Politecnico di Milano

15 ARCHITETTURA aprile 2023

Riqualificazione energetica di ospedali esistenti: il caso dell’Ospedale Provinciale di Bregenz

Nel settore ospedaliero, migliorare le prestazioni energetiche dell’edifico permette di incrementare il comfort dei pazienti e del personale sanitario, che possono così beneficiare di migliori condizioni di temperatura, illuminazione e acustica con conseguenze positive anche sui tempi di guarigione.

Partendo da questa e altre riflessioni presentiamo il progetto di riqualificazione e ampliamento dell’Ospedale Provinciale di Bregenz in Austria

di Rosa Romano 16 TECNOLOGIE aprile
2023

DATI TECNICI

Tipologia: Ospedale

Luogo:

Carl-Pedenz-Strasse 2 6900 Bregenz, Austria 47° 29‘ 49.751 “N 9° 44‘ 42.256” E

Cliente:

Vorarlberger Krankenhaus

Betriebsgesellschaft m.b.H. Feldkirch, Austria Cooperation

Landscape design: Baumschlager Eberle Architekten

Interior design: Baumschlager Eberle Architekten

Fotografie: Eduard Hueber Dieter Leistner

Superficie totale: 20.859 mq

Superficie coperta: 6.363 mq

Superficie lorda: 31.318 mq

Volume dell’edificio: 117.132 mc

Superficie calpestabile: 20.357 mq

Costruzione: 2001-2019

Costo di costruzione: 100.000.000 €

17 TECNOLOGIE aprile 2023
█ Fig. 1 L’ospedale dopo l’intervento di riqualificazione

Attualmente il 7% degli edifici esistenti non residenziali in Europa è costituito da ospedali (BPIE, 2011), che complessivamente sono responsabili di oltre il 5% delle emissioni di CO2 (Karliner et al., 2019), a causa delle prestazioni non ottimali dei loro involucri edilizi e degli impianti al loro servizio.

Inoltre, considerando che la maggioranza delle strutture ospedaliere del vecchio continente è stata realizzata tra il 1945 e gli anni Ottanta, risulta urgente adottare strategie di riqualificazione energetica e funzionale che permettano di ridurre l’impatto ambientale di questa tipologia di edifici pubblici, adeguando i loro ambienti alle nuove istanze della medicina contemporanea, che richiedono flessibilità degli spazi e comfort per gli utenti.

Le direttive Europee emanate nell’ultimo decennio (2012/27/UE Energy Efficiency Directive e 2010/31/UE Energy Performance of Building Directive) hanno dato numerosi stimoli in tal senso, fissando l’ambizioso target del 3% come quota obbligatoria di edifici pubblici da rinnovare ogni anno. Nel dettaglio la norma EPBD indica chiaramente come la riqualificazione energetica non debba limitarsi a singoli interventi localizzati, ma riguardare la complessità dell’edificio, inteso come sistema integrato involucro/impianto, e puntare alla riduzione dell’80% dei consumi energetici globali, valutando esattamente l’impatto ambientale ed economico delle strategie adottate.

Numerosi progetti realizzati in Europa nell’ultima decade, dimostrano come tempi e costi della riqualificazione energetica profonda possano essere ridotti utilizzando elementi di involucro assemblati a secco e prefabbricati, che permettano di controllare tutte le fasi e le problematiche legate alle attività di cantiere e consentano, dove possibile, il rapido alloggiamento di nuovi impianti (elettrici, termici e/o per la produzione delle energie rinnovabili), garantendo al contempo prestazioni meccaniche, termoigrometriche e acustiche elevate.

Nel settore ospedaliero, migliorare le prestazioni energetiche dell’edifico permette, inoltre, di incrementare il comfort dei pazienti e del personale sanitario, che possono così beneficiare di migliori condizioni di temperatura, illuminazione e acustica con conseguenze positive anche sui tempi di guarigione (BPIE, 2018).

Partendo da queste riflessioni abbiamo scelto di presentare in questo primo numero della sezione “Tecnologie dell’architettura per la Sanità” il progetto di riqualificazione e ampliamento dell’Ospedale Provinciale di Bregenz, realizzato dallo studio svizzero Baumschlager Eberle Architekten, con l’obiettivo di cambiare radicalmente l’immagine architettonica e le prestazioni energetiche globali del vecchio corpo di fabbrica, dotandolo di nuovi spazi per la cura.

IL PROGETTO DI RIQUALIFICAZIONE

L’intervento di riqualificazione e ampliamento dell’Ospedale Provinciale di Bregenz ha riguardato l’efficientamento dei vecchi padi-

glioni ospedalieri (costruiti negli anni Settanta e caratterizzati dalla presenza di una facciata realizzata con elementi prefabbricati in calcestruzzo senza nessuna prestazione energetica) e la costruzione di nuovi copri di fabbrica destinati alla degenza e ad ospitare nuove funzioni sanitarie a servizio dei reparti esistenti.

Il cantiere, protrattosi per circa venti anni, è stato condotto per fasi successive, dal 2001 al 2019, ed ha permesso di realizzare nel corso del tempo, e senza mai interrompere l’attività ospedaliera ordinaria, i seguenti ambienti: il nuovo ingresso principale, la caffetteria, gli uffici amministrativi, il pronto soccorso e, infine, i nuovi reparti di degenza che ospitano circa 257 posti letto (Fig. 1).

Dal punto di vista funzionale il progetto ha previsto, oltre alla creazione di nuovi reparti, la riorganizzazione di tutti i collegamenti interni ed esterni con la creazione di percorsi più brevi per mettere in comunicazione gli ambienti del pronto soccorso con il resto del complesso ospedaliero, e il miglioramento dei collegamenti verticali e orizzontali, con lo scopo di ottimizzare i processi di gestione interna della nuova struttura sanitaria (Fig. 2).

Anche gli ambienti di degenza e gli spazi comuni sono stati sottoposti ad un intervento di riqualificazione finalizzato a migliorare il comfort degli utenti, prevendendo una nuova riorganizzazione degli arredi, con particolare attenzione alla scelta dei materiali da finitura (prevalentemente legno, acciaio e vetro) ed alla collocazione dei letti dei pazienti, che sono stati rivolti verso le grandi vetrate della nuova facciata, dalle quali godere della vista del paesaggio esterno e dei giardini, anch’essi riqualificati.

Per ottenere spazi più confortevoli e luminosi il progetto ha previsto la demolizione di alcuni tramezzi e controsoffitti interni, sostituiti da pareti mobili e superfici trasparenti.

Il nuovo corpo di fabbrica originale è stato inoltre integrato con una luminosa scala interna che collega i tre piani della clinica ginecologica e pediatrica, mentre il volume a sbalzo costruito in corrispondenza del quarto piano è stato destinato ad ospitare i nuovi ambienti di degenza connessi al reparto di terapia intensiva esistente. Tutte le nuove architetture hanno struttura in acciaio e sono tamponate con soluzioni di chiusura verticale e orizzontale multistrato a secco. Infine, è stata realizzata una nuova piastra di atterraggio per l’elisoccorso in corrispondenza della copertura del corpo centrale, collegata con un vano scala illuminato dall’alto ai reparti sottostanti. Si tratta di un totem tecnologico che diventa simbolo della presenza dell’ospedale nel paesaggio di Bregenz.

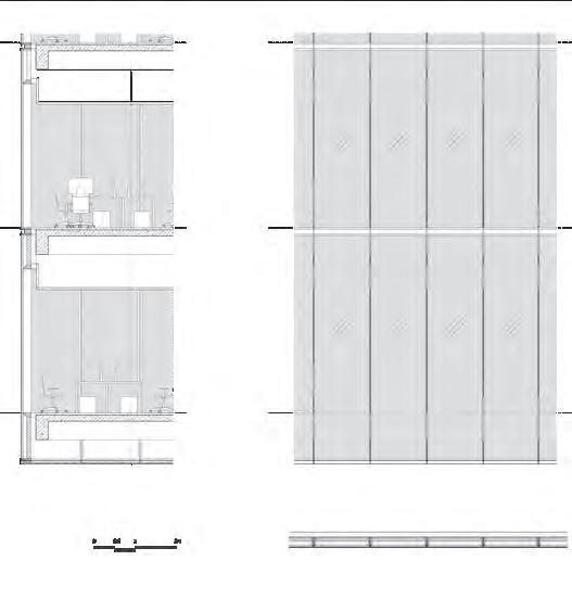
L’intera facciata dell’edificio è stata sottoposta a ristrutturazione nel 2014 prevedendo l’installazione, rispetto al sistema di involucro esistente, di una nuova pelle traslucida a schermo avanzato (Fig. 3), realizzata in pannelli orizzontali di altezze diverse e caratterizzata dalla stratigrafia descritta in figura 4a.

Lo stesso sistema di facciata, integrato con un’intercapedine d’aria di 18 cm e un panello di finitura interna multistrato a secco (co-

18 TECNOLOGIE aprile 2023
19 TECNOLOGIE aprile 2023
█ Fig. 2 - Pianta del piano tipo █ Fig. 3 - Confronto tra il vecchio sistema di facciata in elementi in calcestruzzo (a sinistra) ed il nuovo sistema di facciata con finitura in pannelli di vetro VSG (a destra)

█ Fig. 4a - D2, sezione verticale in corrispondenza del nuovo tamponamento opaco di facciata, dall’interno verso l’esterno: lastra di cartongesso (2,50 cm); isolamento termico in lana di roccia (5,00 cm); lastra di cartongesso (2,50 cm); intercapedine d’aria (18,30 cm); barriera al vapore (00,20 cm); pannello di cartongesso antincendio (02,00 cm); isolamento termico in lana di vetro idrofoba (10,00 cm); pannello di cartongesso antincendio (02,00 cm); pannello isolante in lana di vetro idrofoba (22,00 cm); tessuto non tessuto bianco di protezione al vento (00,20 cm); intercapedine d’aria per la ventilazione (04,60 cm); vetro stratificato di sicurezza VSG opaco (01,30 cm) con giunti di testa aperti di 10 mm

stituito da cartongesso di 2 cm, isolante termico in lana di roccia 5 cm e pannello di cartongesso da 2 cm), è stato utilizzato per realizzare i nuovi volumi dell’edificio, dando unità formale a tutto il corpo di fabbrica.

Il pacchetto di chiusura, progettato ad hoc per l’intervento di riqualificazione raggiungere valori di trasmittanza termica pari a 0,10 W/ mqK (prima dell’intervento: 0,713 W/mqK) a fronte di una massa superficiale di circa 190 kg/mq (prima dell’intervento: 116 kg/mq), contribuendo così alla drastica riduzione dei consumi energetici globali dell’edificio per la climatizzazione invernale ed estiva.

Anche gli infissi esistenti sono stati sostituiti con nuove finestrature realizzate con un telaio in alluminio a taglio termico, tamponamento

█ Fig. 4b - D1, sezione verticale in corrispondenza del nuovo infisso realizzato con un telaio in alluminio a taglio termico, tamponamento in triplo vetro basso emissivo, e integrato da un sistema di schermatura esterno realizzato con tende a rullo o veneziane arancioni

in triplo vetro basso emissivo, e integrate da un sistema di schermatura con tende a rullo arancioni (Fig. 4b). Si tratta di aperture trasparenti, costituite da un elemento fisso orizzontale (in basso) e da ante mobili superiori apribili a battente e a vasistas per favorire la ventilazione naturale all’interno degli ambienti e garantire le adeguate operazioni di manutenzione e pulizia. Per aumentare l’effetto di traslucenza del nuovo involucro di chiusura verticale, i telai delle finestre (dello spessore di 77,00 mm) e il profilato che ospita la schermatura solare sono stati integrati nel nuovo pacchetto di facciata. I nuovi infissi presentano valori di trasmittanza termica totale di 0,98 W/mqK, fattore di assorbimento pari al 39% e potere fonoisolante di circa 43 dB.

20 TECNOLOGIE aprile 2023

CONCLUSIONI

Il progetto di riqualificazione energetica profonda e ampliamento del Provincial Hospital dimostra come sia possibile intervenire su strutture ospedaliere nel rispetto delle normative europee inerenti l’obbligo di raggiungere il target nZEB anche per gli edifici esistenti, senza incidere negativamente sulle loro prestazioni funzionali, ma, ove possibile, migliorandole attraverso l’addizione di nuovi spazi e volumi.

La scelta di procedere per lotti e sviluppare un sistema di facciata innovativo ha permesso, inoltre, a Baumschlager Eberle Architekten di cambiare radicalmente l’assetto funzionale ed estetico della vecchia struttura sanitaria, ricreando uno spazio per la cura umanizzato, progettato come uno scrigno traslucente all’interno del quale il paziente può trovare ambienti luminosi, colorati e confortevoli, sviluppati secondo i principi del regenerative design.

Il ricorso a soluzioni tecnologiche di involucro assemblabili a secco ha consentito di ridurre tempi e costi di messa in opera e di intervenire con operazione non intrusive, senza interrompere le attività ospedaliere quotidiane.

Le ottime prestazioni energetiche raggiunte dai nuovi componenti opachi e trasparenti sviluppati per il progetto di riqualificazione dimostrano, infine, come sia possibile ridurre anche l’impronta ambientale degli edifici ospedalieri esistenti, che a oggi risultano essere ancora tra quelli maggiormente impattanti a scala globale.

L’Autrice

Dottore di ricerca, Professore Associato in Tecnologia dell’Architettura. Afferisce al Dipartimento di Architettura dell’Università di Firenze e ai Centri di Ricerca Interuniversitaria ABITA e TESIS.

21 TECNOLOGIE aprile 2023
█ Fig. 5 - Prospetto Est (in alto) e prospetto Ovest (in basso) ROSA ROMANO █ Fig. 6 La nuova facciata con finitura in pannelli di vetro VSG

Le Case di Comunità: alcune esperienze internazionali

Nell'ambito

Nell’ambito dei nuovi servizi sanitari nazionali, le Case di Comunità (CdC) rappresentano il fulcro del sistema dei servizi assistenziali integrati territoriali1

Esse si caratterizzano per essere facilmente raggiungibili (e riconoscibili) dalla popolazione rispetto al contesto di riferimento, proponendosi come insieme articolato di servizi e attività sani-

di Tiziana Ferrante, Federica Romagnoli, Teresa Villani
█ I casi di studio
1 cfr. Ministero della Salute, DM 23.05.2022, n. 77. “Regolamento recante la definizione di modelli e standard per lo sviluppo dell’assistenza territoriale nel Servizio sanitario nazionale”.
22 ARCHITETTURA aprile 2023
del SSN le Case di Comunità rappresentano il fulcro dei nuovi servizi assistenziali integrati sul territorio. Attraverso lo studio di tre casi internazionali l'articolo propone soluzioni progettuali che interpretano questa rinnovata visione dei servizi socio-sanitari secondo logiche di integrazione, relazione proattiva, inclusività con il contesto locale e la sua comunità

tarie e sociosanitarie all’interno di uno spazio fisico che deve veicolare, attraverso le sue qualità architettoniche, principi di accoglienza, condivisione, promozione di salute e fruibilità. In tal senso, l’articolo propone l’approfondimento di tre casi studio internazionali, selezionati proprio rispetto a questa rinnovata visione dei servizi assistenziali di prossimità italiani che vede (con le opportune distinzioni rispetto alla specificità dei modelli esteri), molte affinità con logiche di integrazione (“Integrated Care Centers”), di relazione proattiva e inclusiva con la ‘comunità’ e di strutturazione capillare nel contesto locale (“Community Health Centers”).

Il primo esempio, il Kentish Town Health Centre di Londra è stato uno dei primi edifici concepiti per “esprimere un nuovo approccio olistico all’assistenza sanitaria”2, e offre (a circa duecentoventimila abitanti) servizi diagnostici ed altre attività aperte al territorio. Il secondo, il Jean Bishop Integrated Care Centre di Hull (UK), si rivolge soprattutto ad anziani (circa dodicimila pazienti) con patologie croniche che necessitano di cure continuative a lungo termine.

2 cfr. UK Department of Health. (2013). Health Building Note 11-01: Facilities for primary and community care services.
23 ARCHITETTURA aprile 2023

Il terzo, il Ballarat Community Health Primary Care Centre, in Virginia (Australia) è parte di un network di cinque strutture sanitarie territoriali a servizio di una città di centomila abitanti. Nei tre Centri sono state adottate differenti strategie localizzative per assicurare una facile raggiungibilità da parte degli utenti e l’integrazione con altri servizi della rete: i due Centri del Regno Unito si trovano in posizione baricentrica rispetto ad un tessuto residenziale molto denso, sono raggiungibili attraverso la viabilità locale e a scala territoriale, si relazionano con altre strutture sanitarie (il Kentish Town HC è a 2 Km dal più vicino ospedale; il Jean Bishop ICC dista 4 Km e 10 Km dai due ospedali di riferimento). Nel caso australiano di Ballarat, il Centro si trova a meno di 600m da altri tre servizi sanitari territoriali e a meno di 300m dal tessuto residenziale

urbano, ben collegato ad esso da due strade ad alto scorrimento ed un percorso ciclabile dedicato.

Le specificità sopra descritte si riflettono in un’offerta eterogenea di servizi/funzioni presenti, comunque riconducibili a quattro macroaree (MA): MA Specialistica; MA Cure Primarie; MA Assistenza di prossimità; MA Servizi Generali e Logistici3, rispetto alle quali è possibile osservarne l’incidenza in percentuale nei tre esempi analizzati.

Nelle relazioni tra le Aree Funzionali (AF), si nota come nelle immediate vicinanze dell’area accoglienza (MA Servizi Generali) siano collocate funzioni della MA dell’Assistenza di prossimità, atte a concretizzare in spazi polifunzionali, l’integrazione dei servizi per il primo accesso alle cure sanitarie con quelli di assistenza sociale;

█ Fig. 1 - Riconoscibilità dell’edificio nel contesto locale █ Fig. 2 - Visibilità e comfort delle aree di accoglienza e attesa
24 ARCHITETTURA aprile 2023
3 AGENAS. (2022). Documento di indirizzo per il Metaprogetto della Casa di Comunità. I Quaderni di Monitor, Supplemento alla rivista semestrale Monitor.

di immediata raggiungibilità, rispetto all’accoglienza, risulta anche la MA Cure Primarie (dedicata alle attività ambulatoriali).

Ad eccezione del Kentish Town HC, gli altri due esempi presentano la MA Specialistica in un’area più circoscritta/esclusiva, spesso servita da accessi dedicati.

Entrando nel merito della qualità degli spazi, si è cercato di esplicitare attraverso la lettura dei tre casi-studio esaminati, come in altri contesti esteri i Centri assimilabili al modello delle CdC italiane, abbiano dato una ‘risposta’ architettonica alle molteplici istanze della comunità, attraverso alcune soluzioni progettuali come di seguito descritte.

Riconoscibilità

dell’edificio nel contesto locale

È un requisito fondamentale delle CdC che si riscontra nei tre esempi, in cui gli edifici fungono da landmark urbano, integrandosi in modo armonico nel contesto. Nel caso di Ballarat, si ritrova nella forma della copertura a falde con differenti inclinazioni, che dà identità all’edificio e ne richiama i caratteri regionali; negli altri due esempi, la visibilità dell’edificio a scala urbana è delegata a caratteristiche cromatiche dai forti contrasti (Fig.1).

Visibilità e comfort delle aree di accoglienza

Comune ai tre esempi la scelta di riservare alle aree di accoglienza/attesa una posizione baricentrica, ben visibile per facilitare

25 ARCHITETTURA aprile 2023
█ Fig. 3 - Integrazione e flessibilità delle Aree Funzionali

l’orientamento verso l’articolata offerta di servizi e di creare zone ampie e confortevoli nei corridoi e nelle aree di attesa, attraverso finiture e arredi di design, dal carattere “familiare” (Fig.2).

Integrazione e flessibilità delle AF

L’impianto distributivo-funzionale nei tre casi rappresenta un elemento rilevante rispetto alle logiche organizzative. Il Kentish Town HC presenta AF che esulano da una rigida ‘zonizzazione’ per diventare occasione di ibridazione con altri servizi sociali, aperti alla comunità. Tutti e tre gli esempi presentano spazi polifunzionali, flessibili, cardini di integrazione tra attività sanitarie e sociali che nel caso di Ballarat, si ritrovano sia ai lati dell’atrio (ove è possibile espandere/contrarre lo spazio in base alle attività da ospitare grazie all’uso di pareti mobili), sia nella grande scalinata dell’atrio

centrale che accoglie sul retro una piccola area giochi per bambini e può trasformarsi in spazio espositivo per mostre collettive (Fig.3).

Continuità visiva e facilitazione nell’orientamento

L’esigenza di garantire la massima permeabilità e fruibilità trova risposta nella configurazione spaziale, enfatizzata nei casi studio (Ballart, Kentish Town) dalla presenza di spazi a tutta altezza, fortemente caratterizzati cromaticamente, che generano continuità visiva e facilitano l’orientamento.

Nel caso di Londra, inoltre, la Committenza ha promosso con finanziamenti dedicati un progetto artistico per aumentare ulteriormente la riconoscibilità degli spazi e favorire l’orientamento in tutte le aree del Centro (Fig. 4).

26 ARCHITETTURA aprile 2023

Valorizzazione della luce naturale e del verde

L’estrema rilevanza attribuita alla luce naturale nel caso del Kentish THC è evidente nella grande apertura sommitale dell’atrio che illumina la sala d’attesa e ancor più nel caso di Ballarat, nelle ampie superfici finestrate e lucernari orientati per captare e diffondere la luce naturale, anche negli spazi di distribuzione. Un generale senso di benessere è inoltre garantito attraverso il rapporto con gli elementi naturali: nel caso del Jean Bishop ICC attraverso una piccola corte interna con giardino sensoriale su cui si affacciano gli spazi ambulatoriali e a Ballarat, attraverso piantumazioni indoor nelle aree di attesa (Fig. 5).

Scelte di sostenibilità ambientale

Sia nella progettazione del Kentish Town HC, che del Centro di Ballart sono stati applicati criteri di sostenibilità ambientale, attraverso l’uso di materiali riciclabili o ad alto contenuto riciclato, privi di VOC (cfr. Ballart ove si privilegiano materiali locali, a base di legno); impianti a basso consumo, che permettono di sfruttare il raffrescamento passivo notturno innescato dall’atrio centrale, con aperture automatizzate da sensori di temperatura e collettori del vento in copertura (nel Kentish Town) ed infissi automatici per la ventilazione naturale, dotati di sistemi di oscuramento con lamelle orientabili (nel Ballart) oltre a sistemi per l’efficientamento energetico e idrico.

Sono state inoltre previste soluzioni per “educare” alla sostenibilità quali: punti di ricarica per veicoli elettrici, parcheggi per biciclette e una stazione informativa per il riciclo dei rifiuti (Fig. 6).

CONCLUSIONI

Queste prime osservazioni sugli esempi analizzati ci inducono a riflettere su alcune questioni.

La qualità architettonica delle CdC non può essere meramente ascrivibile a standard dimensionali, ma va ricercata attraverso lo studio accurato di possibili soluzioni che tengano in considerazione importanti aspetti tra cui l’integrazione con il territorio; l’adozione di soluzioni sostenibili sotto il profilo ambientale, so -

ciale ed economico; la valorizzazione dell’aria e della luce naturale e l’integrazione con il verde per il benessere e il comfort; la flessibilità e integrabilità degli spazi; la riconoscibilità degli edifici e degli spazi per l’orientamento attraverso il design e l’arte. In tale direzione, i tre esempi osservati possono quindi offrire interessanti spunti progettuali per ispirare future scelte nel campo della progettazione delle nuove CdC che potranno essere opportunamente declinati a seconda dei differenti contesti territoriali e delle specifiche esigenze della comunità di riferimento in cui si andranno a realizzare.

Le autrici

TIZIANA FERRANTE

FEDERICA ROMAGNOLI, TERESA VILLANI

"Sapienza" Università di Roma, TESIS Centro Interuniversitario di ricerca Sistemi e Tecnologie per le Strutture Sanitarie, Sociali e della Formazione

27 ARCHITETTURA aprile 2023

Le future sfide della Sanità

Nella scenografica cornice di Camogli, il 12 e 13 febbraio si è tenuto il convegno nazionale

CNETO 2023 sul tema: “Le future sfide della sanità

4.0. Le nuove case e ospedali di comunità e di sistemi integrati per la salute”.

di Giuseppe Laudani
28 ATTUALITÀ
2023
█ Camogli ha accolto ancora una volta il convegno nazionale CNETO
aprile

Ancora una volta l’appuntamento con il convegno nazionale CNETO non ha tradito le aspettative, sia per numero di partecipanti, sia per le tematiche affrontate. Al centro dell’attenzione dell’edizione 2023, tenutasi lo scorso mese di febbraio nella sala conferenze dell’hotel Cernobbio dei Dogi di Camogli, le sfide che la sanità dovrà affrontare in epoca 4.0, con particolare riferimento a quelle che saranno le nuove strutture di prossimità quali le case e gli ospedali di comunità.

Sotto la guida del presidente dell’associazione Stefano Capolongo e del direttore della rivista “Progettare per la Sanità” Margherita Carabillò si sono alternate le sessioni previste e le presentazioni dei relatori, invitati a condividere le loro esperienze sul tema del convegno.

Introdotti dai saluti istituzionali di Silvio Brusaferro , Direttore dell’Istituto Superiore di Sanità, di AGENAS, degli ordini tecnico- professionali della città di Genova e delle associazioni vicine al CNETO, ANMDO, Siais, AiCARR, i lavori hanno preso il via con la lectio magistralis dell’architetto e urbanista di fama internazionale Alfonso Femia , che ha voluto porre l’accento sulla responsabilità che abbiamo di essere “costruttori di mondi ”. Femia sottolinea come negli ultimi anni si è perso l’equilibrio tra natura e artificio, tra dimensione intima e collettività; è l’azione responsabile che deve pertanto mettere in relazione la città e il territorio con l’ambiente, generando progetti capaci realmente di avviare un processo di “innovazione sociale ed economica”. Bisogna ripensare oggi la città, riadattarla, trasformarla in una città buona, onesta, una città degli equilibri e della reciprocità. Solo la “città buona” può essere cura e l’ospedale ne diventa il dispositivo a sostegno “di quegli invisibili”, che la città stessa ha creato.

All’ evento si è registrata una partecipazione intensa che ha dato l’idea di un interesse “mai sedato”, ma certamente intorpidito da una pandemia non del tutto dimenticata, ed i continui interventi dei presenti ne ha testimoniato l’alto livello di interesse degli addetti ai lavori.

A seguire il pubblico hanno potuto assistere alle presentazioni dei relatori delle Istituzioni Nazionali e degli Enti Locali che, in rappresentanza della ATS Milano dell’Agenas e del Alisa , hanno dato un contributo determinante al successo dell’evento. Subito nel vivo quindi, con l’intervento di Agenas a cura di Domenico Mantoan e Alice Borghini sul D.M. 77 e sul quadro normativo di riferimento per le attività di programmazione del modello organizzativo della rete di Assistenza Sanitaria Territoriale Nazionale. Con le slide scorrono gli standard e i dimensionamenti contenuti nel decreto, le definizioni dei termini e la previsione degli investimenti PNRR fino alle conclusioni di Mantoan, che ci riassume la mission delle nuove strutture, concepite come luoghi di cura che sfruttano l’innovazione tecnologica, la digitalizzazione dei processi e promuovono un’ assistenza integrata, multidisciplinare, multiprofessionale, e personalizzata, grazie anche all’utilizzo di big data, dei sistemi di AI e della telemedicina.

Successivamente il Politecnico di Milano con Maddalena Buffoli e Marco Gola ha raccontato le diverse fasi della metodologia adottata per il “Metaprogetto” delle Case ed Ospedali di Comunità e delle COT. La definizione delle macro-aree specialistiche, l’indicazione delle relazioni funzionali e spaziali ed il dimensionamento percentuale delle superfici, contribuiscono alla definizione di un modello attendibile e di sicura efficacia. L’ analisi è condotta su esperienze nazionali ed internazionali già operanti nei diversi sistemi sanitari, e riflessa sulle esigenze di un sistema, quello italiano, estremante delicato e sensibile che conduce sempre all’ irrisolta dicotomia: realizzare una nuova costruzione o riutilizzare esistente?

FUNZIONI E SERVIZI DELLE CASE E DEGLI OSPEDALI DI COMUNITÀ

Maria Chiara Torricelli e Gabriella Peretti hanno presentato i lavori del gruppo-CNETO per condividere il punto di vista dell’associazione sull’ argomento. Il “progetto di architettura”, sostengono le relatrici, può dare un contributo importante al perseguimento degli obiettivi del Piano attraverso cinque temi chiave: il territorio, l’ambiente, i luoghi dotati di “senso”, la centralità della persona e la qualità della cura e la flessibilità del progetto che, declinati in modo appropriato, possono sia “improntare” le realizzazioni sotto il profilo tecnico-funzionale, sia esprimere gli aspetti valoriali di una comunità. La

█ L'architetto Alfonso Femia durante la lectio magistralis al convegno CNETO
29 ATTUALITÀ aprile 2023

partecipazione al convegno è stata molto sentita, oltre ai professionisti addetti ai lavori e soci-Cneto si è registrata la presenza di rappresentanti dell’imprenditoria, delle istituzioni e anche di numerosi giovani professionisti iscritti al Master del PoliMi, vero e proprio stimolo al confronto generazionale e all’ innovazione. Di seguito l’intervento del Vicepresidente Nazionale A.N.M.D.O Karl Kob, sul ruolo del Direttore Sanitario e della funzione chiave che svolge nella progettualità dei luoghi di cura. Attraverso i riferimenti normativi che ne regolano le nomine, Kob ha analizzato le competenze e le responsabilità di questo delicato Ufficio alla luce dei recenti provvedimenti finalizzati alla riorganizzazione dell’assistenza territoriale, confermando, in conclusione, il Direttore Sanitario come l’elemento “trainante” e “incisivo” della progettualità e della verifica dei risultati attesi. Il tema della Digitalizzazione in sanità è stato affrontato da Francesco Pensalfini della Siais, società patrocinate il convegno. L’esperienza del COVID-19, ha spiegato il relatore, ha creato enormi opportunità per potenziare i sistemi informativi sanitari, ridisegnando spazi, funzioni, assetti organizzativi e i contenuti stessi dei processi di cura. Il PNRR ha disegnato infatti la “Casa” come primo luogo di cura, con nuovi progetti di telemedicina: Televisita, Teleconsulto, Telemonitoraggio e Teleassistenza; gli “OdC , CdC, e Ospedali per acuti” con il potenziamento della digitalizzazione e il rafforzamento dell’infrastruttura e il

perfezionamento delle cartelle cliniche e del fascicolo sanitario elettronici; le “COT” a facilitare l’accessibilità dei cittadini alle cure mediche. Questa architettura, messa a servizio della continuità delle cure, dell’ integrazione Ospedale–Territorio, del sistema di emergenza –urgenza e della gestione delle patologie rilevanti, si avvale del prezioso contributo delle tecnologie ICT, indispensabili per la sua attuazione e funzionalità. Di contro, l’ampliamento della rete e la diffusione di dispositivi medici e IoT, hanno aumentato la vulnerabilità dei sistemi attraverso le nuove porte "lasciate aperte" dalla digitalizzazione, vulnerabilità che, insieme alla insufficiente interoperabilità di sistemi e dispositivi, determina l’area di miglioramento in cui è impegnata la ricerca tecnologica di settore e la comunità degli addetti ai lavori. L’intervento di carattere impiantistico è affidato a Matteo e Giorgio Bo di Aircarr , anch’essa patrocinante il convegno, e affronta il tema del trattamento dell’aria negli ambienti sanitari “minori” quali possono sembrare gli ospedali e le case di comunità. Per contrastare il rischio di infezioni nosocomiali, in un ambiente comunque “ad alta frequenza”, e per garantire un discreto livello di comfort, i relatori hanno confermato che si possono usare i criteri di progettazione degli ospedali per acuti, definendo come impianti ideali quelli del tipo misto: aria/ acqua. Le dispersioni invernali e i carichi estivi, sarebbero gestiti da specifici terminali di utenza mentre il ricambio d’aria e

30 ATTUALITÀ aprile 2023
█ Una delle sale conferenze dell’Hotel Cernobbio dei Dogi di Camogli dove si è svolta l’edizione 2023 del convegno CNETO

il controllo dell’umidità relativa garantiti dalla dimissione di aria esterna di ventilazione trattata. Gli impianti, hanno concluso i Bo, “sono una soluzione, non un problema” e come tale meglio evitare sistemi eccessivamente complessi, inutili ridondanze e potenziali rischi igienici. Via libera quindi a superfici radianti , a pavimento o a soffitto o eventualmente travi fredde , entrambi funzionanti a secco e facilmente pulibili.

APPLICAZIONE DELLE CASE E OSPEDALI DI COMUNITÀ

Nella seconda giornata di lavori si è colta ancora di più l’importanza del dibattito, soprattutto in un momento concitato come quello che stiamo vivendo. Le scadenze del PNRR costringono i professionisti a ridurre le tempistiche di processo, ma questo ci dimostra come è possibile migliorare la performance e realizzare progetti, anche complessi, in tempi più brevi. Lo spazio per un confronto aperto tra professionisti di grande esperienza è quindi sempre importante per affrontare questa fase in modo serio, e consapevole.

L’intervento di Helen Tucker , per esempio, nel raccontare l’esperienza inglese dei community hospitals, ha evidenziato come la rete di questi presidi si sia sviluppata in Inghilterra in un periodo di oltre un secolo, mentre l’Italia ha avviato un programma simile (500 strutture inglesi contro le 400 italiane) in modo così rapido. La dottoressa ha raccontato, inoltre, come i Community Hospitals pervadano la cultura sociale ed il territorio in modo profondo, capillare e “sentito”. Per loro stessa natura, precisa la Tucker, queste realtà avranno bisogno di tempo per essere accolte e percepite ed in questo sarà fondamentale che vengano “impostate” e “comunicate” nel modo corretto. La popolazione deve comprenderne il potenziale e percepirne il valore affinché diventino una risposta reale al bisogno di salute che, soprattutto dopo la pandemia, è quanto mai espresso. Ecco che allora l’impostazione e la comunicazione dei servizi erogati, la varietà dell’offerta, la prossimità fisica, la flessibilità e la capacità di evolvere perseguendo i bisogni e le richieste della collettività, rappresentano il cardine di queste progettazioni che, altrimenti, rischiano di non essere comprese. Della presentazione della dottoressa Tucker non devono sfuggire alcuni messaggi chiave, come il senso di appartenenza, la resilienza e la creatività, ricercata in un rapporto con e per il prossimo; se gli ospedali di comunità devono rappresentare una nuova interfaccia con il territorio, funzione che ha spesso rappresentato la differenza tra il successo e il fallimento di un sistema, essi devono essere impostati in modo corretto, lungimirante e consapevole, godere del necessario respiro e essere dotati di tutti i collegamenti opportuni, siano essi fisici o nei contenuti.

La strategia per il monitoraggio della sostenibilità dei singoli interventi del PNRR è stata analizzata dall’ intervento di Alessandro Izzi con uno studio che mostra che con la pianificazione territoriale fatta, in Italia ci saranno più CdC nel sud del nostro paese, per la prevalenza di piccoli centri e più isolati; più OdC al nord, dovuti a un’ assistenza più attenta alla low care ; e un sostanziale equilibrio al centro, grazie ad ambiti territoriali meno estesi e più facilmente raggiungibili. Inoltre, ha detto Izzi, l’agenda 2030 propone una diversa visione dello sviluppo sostenibile, che include anche la dimensione economica, quella sociale e ambientale e vengono promossi nuovi approcci multidisciplinari in grado di garantire il miglioramento della salute dei cittadini. Il metodo si basa principalmente su un primo valore che scaturisce da una qualità tecnico/numerica dei fattori analizzati, ed un secondo dato che tiene conto di alcune costanti attribuite ai singoli ambiti.

L’insieme restituirà un valore numerico classificato in un range dal più sostenibile al meno sostenibile in grado di caratterizzare l’esito finale dell’intervento analizzato.

In chiusura un ulteriore intervento Agenas a cura della Alice Borghini ancora sul tema della sostenibilità che, ricorda la dott. ssa, investe tutti del compito di dare soluzioni percorribili per rendere la sanità “utilizzabile” alle generazioni future senza aggravi di costi. Il tema del PNRR è una grande opportunità che rende necessari approcci di metodo complessi ed equi, ma, anche di forti decisionalità. La sostenibilità di ogni progetto, sia del costruire/ristrutturale sia nel gestire/manutenere, deve essere compresa, anche se le disponibilità non sembrano oggi sufficienti a coprire tutti gli interventi programmatori già identificati. Oggi è chiesto a tutti di “guardare lontano ” con una visione proiettata nel futuro oltre i tempi dei rinnovi delle cariche elettorali, dove l’essere protagonista porti a “posare una pietra” sulla quale se ne possa posare un’altra… e così via. È necessario avere chiara l’immagine finale dell’opera, forse il tempo non permetterà di vederla compiuta ma, la prima pietra rappresenta le fondamenta, e senza quelle non sarà possibile procedere.

Si ringrazia per la collaborazione

Nicoletta Dubini, Alessandra Izzo, Lucia Mosconi, Maria Chiara Torricelli, Francesco Pensalfini, Alessandro Izzi

Per ulteriori informazioni sul convegno: https://www.cneto.it/convegni-e-workshop

L’autore 31 ATTUALITÀ aprile 2023
GIUSEPPE LAUDANI Healthcare specialist progetto CMR

Reti cliniche: la frontiera per cure integrate, sicure e di qualità

Le reti clinico-assistenziali, progettate a partire dagli anni 2000 e rilanciate nel quadro del DM n. 70 del 2015, dovrebbero rappresentare una priorità della programmazione sanitaria nazionale e regionale per i numerosi vantaggi a esse ascrivibili

Negli ultimi anni si è rafforzato il focus sulla costruzione di reti tra professionisti, le cosiddette reti cliniche, quale “strumento” per migliorare i livelli di integrazione verticali (tra professionisti ospedalieri e territoriali) e orizzontali (tra professionisti dello stesso ambito, ospedaliero o

territoriale) nei processi di accesso, presa in carico e cura della malattia. La definizione data dal NHS inglese nel 2000 rimane il punto di riferimento per inquadrare il concetto di rete clinica strutturata, ovvero che sia formalizzata e riconosciuta dal sistema sanitario di apparte-

di Martina Cappellina, Marianna Ferrara, Federico Lega
32 ORGANIZZAZIONE aprile 2023

nenza “Linked groups of professionals from primary, secondary, tertiary care working in a coordinated manner unconstraid by existing professional and exsisting organizational boundaries to ensure equitable provision of high quality effective services” (Our National Health 2000).

Le ragioni per cui un “investimento” di sistema sullo sviluppo e consolidamento delle reti cliniche sia interessante, se non opportuno e necessario, sono riassunte nella figura 1. Le aspettative sono diverse e tutte con importanti potenziali benefici sul miglioramento del livello dei servizi sanitari.

Fino al punto che perfino la Camera dei Deputati è arrivata ad affermare che “La distribuzione dei ruoli, la collaborazione tra professionisti, la condivisione di strumenti innovativi e la strategia pubblicoprivato, aiuta a migliorare la capacità di gestione dei pazienti. Va riconosciuta la validità dei network in sanità nati per volontà di singoli professionisti o di aziende. Si tratta di esperienze di grande valore che vanno tradotte in concrete realtà su tutto il territorio” (XII Commissione Affari Sociali, Camera dei Deputati)

In questo contesto, le reti cliniche maggiormente strutturate ad oggi nel contesto italiano sono quelle oncologiche, dalla cui esperienza si possono trarre alcune interessanti riflessioni.

Dati alla mano, nel 2020, in Italia, 3,6 milioni di persone vivevano con una diagnosi di cancro. Oggi sono oltre un quarto (27%) le persone colpite da un tumore che possono considerarsi guarite. Inoltre, i tassi di mortalità per tutti i tumori sono in diminuzione rispetto alla media del periodo pre-pandemico e le percentuali di sopravvivenza a 5 anni sono aumentate. Alcuni dati mostrano inoltre che la sopravvivenza dei pazienti italiani è in linea ai livelli più elevati rilevati riscontrati in Europa; essendo la sopravvivenza influenzata dalla tempestività della diagnosi, dall’adeguatezza terapeutica e dal valore dell’assistenza, ciò dà una misura dell’efficacia della presa in carico in oncologia da parte del sistema sanitario italiano.

Questi numeri infatti, da un lato ci indicano che il panorama oncologico sta cambiando poiché il cancro rappresenta una patologia potenzialmente curabile o “cronicizzabile”, grazie anche ai trattamenti a disposizione, basati su una medicina personalizzata o di precisione; dall’altro, sono certamente il portato di un miglioramento organizzativo avvenuto negli anni nella modalità di accesso ai professionisti e nel loro coordinamento, entrambi resi possibili e favoriti proprio dalle reti cliniche.

Molto positivo quindi che in Italia sia stato emanato il Piano Oncologico 2022-2027 che tra i diversi punti strategici presentati, prevede l’implementazione delle Reti Oncologiche Regionali. Già nel 2014 con il documento di intesa Stato Regioni del 30 ottobre 2014, concernente il “Documento Tecnico di indirizzo per ridurre il burden del cancro 2014-2016, erano state fornite delle linee di indirizzo per la programmazione e costituzione delle Reti Oncologiche Regionali, successivamente riviste con l’ Accordo tra il Governo, le Regioni e le Province autonome del 17 aprile 2019, in cui viene evidenziata la

complessità dei bisogni sanitari e la insufficiente risposta incentrata esclusivamente sull’azienda sanitaria; si fa leva sull’importanza di una collaborazione tra i vari soggetti coinvolti e tra questi, il volontariato e le associazioni oncologiche dei pazienti, riconosciute come componenti fondamentali della rete. Con delibera del 2 agosto 2019, è stato quindi istituito l’Osservatorio per il monitoraggio delle Reti oncologiche regionali presso Agenas.

La rete oncologica regionale è pertanto un modello organizzativo composto da un gruppo multidisciplinare di professionisti e ha come obiettivo principale la presa in carico dei pazienti oncologici attraverso una stretta connessione tra i vari setting assistenziali e socioassistenziali coinvolti.

La rete può rappresentare un punto di forza per un SSR, essendo incentrata su principi cardine quali la condivisione delle competenze, l’integrazione ospedale-territorio, la sicurezza e la qualità delle cure, l’appropriatezza clinica fondata su basi scientifiche, l’omogeneità ed equità dei trattamenti e l’utilizzo efficace ed efficiente delle risorse disponibili. Può essere uno strumento fondamentale di unificazione dell’intero percorso assistenziale dalla prevenzione alla cura, inserendo in esso la più avanzata ricerca clinica ed il tutto con una visione paziente-centrica.

Tuttavia, a fronte del dato positivo rappresentato dall’attenzione e dalla crescita che le reti cliniche oncologiche regionali (ROR) hanno avuto negli ultimi anni su tutto il territorio nazionale, vi sono ancora margini di miglioramento su cui lavorare.

A livello nazionale i risultati di efficienza e appropriatezza delle ROR vengono valutati da AGENAS mediante una griglia di rilevazione e valutazione disponibile on-line sul sito istituzionale di AGENAS e compilata dalle singole Regioni e Province Autonome. L’ultimo rapporto raccoglie di dati ricevuti nel periodo compreso tra il 1° agosto 2020 e il 31 dicembre 2020. La griglia è stata condivisa con i tavoli tecnici delle reti oncologiche regionali e contiene 142 item suddivisi in quattro aree tematiche: struttura di base, meccanismi operativi,

█ Figura 1 - Funzioni e obiettivi delle reti cliniche
33 ORGANIZZAZIONE aprile 2023

processi sociali, risultati. Per ogni area tematica viene calcolato un Indice Sintetico (IS). Moltiplicando la somma di ogni IS, per il peso di ciascuna area tematica si ottiene l’Indice Sintetico Complessivo (ISCO) di ciascuna ROR.

Dalle risposte emerge che in 17 Regioni/PA sono stati istituiti organi di controllo e coordinamento per le ROR e in 15 è stato individuato il coordinatore; inoltre, in tutto il territorio nazionale è presente un Registro dei Tumori Regionale. Nelle reti sono coinvolte tutte le tipologie di strutture: Aziende Ospedaliere, Aziende Sanitarie Locali, Aziende Ospedaliere Universitarie, IRCCS, Hospice, Strutture private accreditate e i team multidisciplinari sono composti da Oncologi, Anatomopatologi, Chirurghi, Coordinatore, Direttore, Farmacisti, Fisioterapisti e/o riabilitatori, Genetisti, Infermieri, MMG e PLS, Palliativisti, Nutrizionisti, Psicologi e Radioterapisti. Inoltre, in 8 Regioni/PA la rete fornisce un secondo parere come prestazione gratuita al paziente oncologico, anche con la previsione di una figura professionale di riferimento per la second opinion

Nell’insieme, dal rapporto AGENAS si evidenzia come la maggior parte delle ROR abbia incrementato il proprio punteggio di valutazione rispetto all’anno precedente, tuttavia l’ISCO 2020 resta ancora al di sotto della sufficienza in molte regioni.

Un elemento di particolare interesse che nasce dall’esperienza delle ROR è la modellizzazione della rete, che viene ricondotta a quattro archetipi:

1. Comprehensive Cancer Center (CCC);

2. Hub and Spoke (H&S);

3. Cancer Care Network (CCN)

4. Comprehensive Cancer Care Network (CCCN).

Il Comprehensive Cancer Center (CCC) racchiude le principali competenze e risorse in un unico centro con forza attrattiva territoriale. Il modello Hub&Spoke prevede una serie di Strutture di primo livello (SPOKE) diffuse sul territorio, collegate a centri a maggiore specializzazione (HUB).

Il Cancer Care Network (CCN) implica una integrazione organizzativa e centralizzazione di servizi senza una definita gerarchia tra le Strutture.

Infine, il Comprehensive Cancer Care Network (CCCN) è costituito da una rete gestita e coordinata da una autorità centrale che governa tutte le Strutture presenti nel territorio.

La figura 2 riporta la classificazione delle diverse soluzioni adottate dalle regioni Italiane.

Dall’analisi emerge che i modelli organizzativi più diffusi sono il modello Hub&Spoke e il modello Comprehensive Cancer Care Network. Per l’attuazione dei percorsi di cura in 16 Regioni/PA sono stati realizzati specifici percorsi assistenziali per garantire un percorso integrato in collegamento con il proprio MMG/PLS e i servizi sociosanitari del territorio, che afferiscono al dipartimento oncologico intra-aziendale; tutte le Regioni/PA rispondenti hanno creato un percorso di cura ad hoc per il paziente con specifiche patologie oncologiche. Nello specifico, l’associazione italiana di oncologia medica (AIOM) e il Collegio Italiano dei Primari Oncologi Medici Ospedalieri (CIPOMO) hanno segnalato - sulla base dell’esperienza pratica - il CCCN come modello più adeguato al territorio tra i vari proposti, poiché sembrerebbe quello “in grado di garantire una maggiore uniformità in termini di accesso, di gestione clinica, di governance e di monitoraggio dei dati sia per finalità cliniche che di ricerca”.

Tuttavia, occorre anche sottolineare come il rapporto AGENAS mostri che solo poche regioni abbiano un modello di rete già strutturato, mentre la maggior parte sia ancora in una fase di “organizzazione”. Questo sembra collegarsi anche alle importanti differenze che si riscontrano relativamente ai volumi ed esito degli interventi chirurgici di carattere oncologico effettuati negli anni osservati, in particolare con considerevoli variazioni tra la Lombardia e le altre regioni d’Italia. A conferma che le reti cliniche favorendo la concentrazione delle casistiche laddove vi è migliore competenza e tecnologia sono strumento per la qualità e sicurezza del paziente, oltre che di grande impatto sulla accessibilità ai servizi.

Vi sono quindi alcuni importanti spazi su cui occorre lavorare per implementare e uniformare le reti a livello nazionale. Un processo di “standardizzazione” delle modalità organizzative e di governance delle reti cliniche sembra quindi non solo auspicabile ma anche necessario per dare ulteriore capacità al SSN nel rispondere alle crescenti sfide della qualità, appropriatezza e produttività.

Gli autori

MARTINA CAPPELLINA

Università degli Studi di Milano

MARIANNA FERRARA

Università degli Studi di Milano

FEDERICO LEGA

Università degli Studi di Milano

34 ORGANIZZAZIONE aprile 2023
█ Figura 2 - I modelli di ROR adottati dalle Regioni Italiane Anno 2020 (Fonte Rapporto Agenas sulle reti oncologiche)

Il manuale è una guida operativa alla corretta applicazione delle norme di riferimento per le attività soggette ai controlli e alle verifiche di prevenzione incendi.

Il testo nasce con l’obiettivo di fornire al Progettista uno strumento utile alla selezione della procedura adottabile nella realizzazione di un nuovo progetto di prevenzione incendi. Per ogni attività compresa nell’Allegato I del DPR 151/2011, per la quale è possibile applicare il Codice o, in alternativa, le regole tecniche tradizionali, si sono valutate le procedure di carattere generale (RTO) impiegabili, unitamente alle norme tecniche collegate, al fine di consentire la scelta immediata della metodologia idonea e consentita dalle disposizioni normative.

Novità
www.build.it

Digital Twin Operativo: liberare risorse in fase di esercizio in una struttura sanitaria

La transizione digitale ed energetica rappresenta lo strumento più adeguato a colmare le carenze di risorse che sempre più preoccupa chi elargisce i servizi sanitari: i benefici che ne derivano richiedono un cambio radicale del mindset di chi ha l’onere di pianificare la sanità del futuro

Se da un lato i cambiamenti demografici e l’invecchiamento della popolazione alimentano una continua domanda di servizi sanitari, dall’altro si è in presenza di una crescente carenza di operatori sanitari; inoltre, stiamo assistendo a profondi cambiamenti climatici che richiedono da un lato un utilizzo sostenibile delle risorse naturali e dall’altro una gestione consapevole dell’incertezza dei costi energetici; infine, gli standard legali e normativi stanno diventando sempre più stringenti ed in continua evoluzione e richiedono risorse per analizzare i contesti, mitigarne i rischi e cogliere nuove opportunità. Lo scenario che pertanto si presenta a chi ha l’onere di gestire una macchina complessa quale quella della cosiddetta “industria della salute” è per lo meno sfidante, in quanto le problematiche da affrontare generano una pressione crescente sui costi operativi ricorrenti del sistema edificio-impianti, peraltro in un momento storico caratterizzato da carenze incrementali di risorse economiche disponibili.

È del tutto evidente che per essere efficaci occorre agire contestualmente sia in termini di riduzione e ottimizzazione dei costi operativi sia di incremento della produttività dello staff medicosanitario, che sottendono dunque un uso efficiente, sicuro, affidabile, resiliente e sostenibile delle risorse.

Una visione comune tra gli operatori di soluzioni e servizi e gli utilizzatori di un edificio per il futuro post-pandemia è la connessione tra mondo reale e mondo digitale. Nell’ambiente costruito, questo concetto è incarnato dal “gemello digitale” (o Digital Twin), ovvero una replica digitale interattiva del sistema edificio-impiantipersone che permette di analizzarne, simularne e predirne il comportamento, portando con sé efficienza e innovazione e, dunque, migliorando (di fatto) la performance di business.

Il Digital Twin rende disponibili (in tempo reale) le informazioni statiche e dinamiche del sistema edificio-impianti-persone, costruendo una base conoscitiva di dati che può consentire di prendere

di Vito Augusto Allegretti
36 INNOVAZIONE DIGITALE aprile 2023

decisioni in modo consapevole, avendo chiaro ciò che si vuole implementare e disponendo costantemente di un riferimento e di strumenti per poterne monitorare l’andamento al modificarsi delle variabili esogene ed endogene del sistema mediante algoritmi di intelligenza artificiale e di “machine learning”.

I “gemelli digitali” rappresentano un’enorme opportunità per monitorare le prestazioni di un edificio in tempo reale. Infatti, ideare, progettare, costruire e gestire operativamente un sistema edificioimpianti-persone con un approccio guidato dai dati è il modo migliore per un’Azienda di attuare la propria “transizione digitale ed energetica”, che abbia come risultato finale il conseguimento di obiettivi quali la flessibilità, la sicurezza, la resilienza e la sostenibilità del sistema in fase di esercizio. In questo modo, i gemelli digitali costituiscono il veicolo che abilita la formulazione di nuovi servizi a valore aggiunto per il gestore di servizi sanitari. Il gemello digitale prende forma e si compone degli elementi che man mano si rendono disponibili lungo il ciclo di vita dell’opera, a partire dall’ideazione, alle fasi di progettazione e costruzione sviluppate attraverso la metodologia BIM (Building Information Modeling), volgendo a concretizzazione durante l’hand-over: esso diviene il modello informativo di riferimento nella fase di gestione e di vita utile dell’opera. Alla base della gestione del flusso informativo si ha il Common Data Environment (CDE), ovvero l’ambiente di condivisione costantemente alimentato dai dati scambiati durante le fasi di progettazione, costruzione e gestione, i quali provengono dal processo BIM, dai sistemi di Building Management System (BMS), Geographic Information System (GIS), Real Time Location System (RTLS), Enterprise Resource Planning (ERP), Document Management System (DMS), Computer Aided Management System (CAFM), Computerized Maintenance Management System (CMMS), Hospital Information Medical System (HIMS), ecc.; il CDE rappresenta, quindi, l’Eco-Sistema ideale nel processo di gestione di una (infra)struttura complessa, che pone al centro:

a. la sostenibilità e le prestazioni del sistema edificio-impiantipersone, in termini di:

█ riduzione dei costi operativi (efficienza energetica, decarbonizzazione, utilizzo intelligente dell’energia generata da fonti rinnovabili e manutenzione);

█ incremento del benessere e della sicurezza degli occupanti;

b. l’aumento dell’efficienza del personale tecnico e dello staff medico-sanitario, in termini di:

█ supporto alla ricerca tempestiva di dispositivi che richiedono manutenzione;

█ supporto per aiutare gli infermieri a trovare più velocemente le attrezzature elettro-medicali e dispositivi sanitari.

I dati statici e quelli dinamici costituiscono il “cibo” di un gemello digitale.

I dati statici sono relativi agli asset dell’edificio che sono fissi in loco. In genere, questi dati comprendono per esempio i nomi degli ambienti, l’identificazione di aree, le attrezzature fisse, gli arredi, le finiture, ossia i “metadata”, che possono anche essere incorporati in qualsiasi elemento per registrare ad es. la provenienza del bene, le informazioni sulla garanzia, i manuali operativi, i programmi di manutenzione ecc.

I dati dinamici, invece, integrano i dati statici e registrano le informazioni provenienti dai dispositivi attivi del sistema edificio-impianti-persone, che sono in continua evoluzione e gestiti tramite le tecnologie presenti negli edifici, come gli IoT ossia l’«Internet delle Cose »: si tratta di sensori che registrano grandezze quali la temperatura e l’umidità degli ambienti, la velocità delle ventole dei componenti degli impianti di climatizzazione, l’accesso alle porte, le perdite d’acqua, la qualità dell’aria interna ed esterna, i consumi energetici ecc.

I dati generati dai sensori IoT, così come dai sistemi di monitoraggio e controllo, costituiscono una grande ricchezza per il gestore

█ Il “gemello digitale” del sistema edificio-impianti-persone è l’abilitatore di servizi digitali a valore aggiunto per i gestori di servizi sanitari
37 INNOVAZIONE DIGITALE aprile 2023

di un edificio, in quanto, se analizzati mediante opportuni algoritmi di intelligenza artificiale, generano informazioni che consentono di individuare e implementare adeguate strategie di ottimizzazione nella gestione operativa dell’edificio. Tra gli esempi di applicazioni di servizi si possono annoverare il miglioramento della salubrità degli ambienti, la riduzione dei costi energetici, la previsione delle esigenze di manutenzione e molto altro ancora, il tutto nell’ottica di liberare risorse nel periodo di esercizio.

A livello basilare, un gemello digitale è un cruscotto in tempo reale che fornisce per esempio informazioni sull’utilizzo degli asset all’interno di un edificio. Attraverso un’interfaccia utente, gli operatori degli edifici possono interrogare qualsiasi oggetto rappresentato nel modello digitale. Se l’oggetto è dotato di sensori, le informazioni vengono visualizzate in tempo reale; inoltre, è possibile esaminare le informazioni storiche.

Una delle utilità più consone di un gemello digitale nella fase di esercizio di un edificio include l’applicazione di servizi di analisi dei dati per scopi predittivi, come le esigenze di manutenzione, i programmi di manutenzione, l’ordinazione preventiva di parti di ricambio e l’eliminazione degli sprechi di manodopera e materiali. Queste applicazioni di servizi predittivi favoriscono la continuità operativa, riducono i costi di esercizio e contribuiscono a mitigare i rischi di gestione operativa del sistema edificio-impianti.

Gemello Digitale (Digital Twin) di un nuovo sistema o di un sistema esistente edificio-impianti-persone significa, dunque, acquisizione ed elaborazione di dati per supportare il processo decisionale al fine di incrementare le prestazioni di una struttura sanitaria nella fase di esercizio. In particolare, per attuare tale innovazione:

a. occorre innanzitutto impiegare metodologie innovative basate sull’Information Management supportate da tecnologie aperte e soluzioni progettuali all’avanguardia per garantire:

█ l’adattabilità organizzativa e funzionale nel tempo;

█ la flessibilità ovvero la scalabilità funzionale in linea con l’evoluzione tecnologica;

b. l’applicazione della metodologia BIM contestualmente alla logica di gestione dei flussi informativi attraverso l’implementazione di CDE e di tutti i sistemi digitali di progettazione e controllo nelle fasi di studio di fattibilità/ideazione/progettazione si trova per sua natura ad assicurare la massima interoperabilità tra i sistemi e un buon grado di fluidità nella comunicazione, insieme alla garanzia di trasparenza, oltre al più ampio coinvolgimento di tuti i soggetti principali del processo; occorre, cioè, che la piattaforma digitale tenga conto dei processi e di come questi sono interpretati dagli operatori (staff medico-sanitario in primis), con l’obiettivo di conoscere le inefficienze e rendere misurabili oggettivamente i benefici proposti, il tutto per esem-

█ Il “gemello digitale” del sistema edificio-impianti-persone è lo strumento che rende consapevole il processo decisionale, fornendo un riferimento oggettivo al raggiungimento di un obiettivo di business
38 INNOVAZIONE DIGITALE aprile 2023
█ Il «Digital Twin» operativo è il nodo di congiunzione nell’interazione tra modo reale e mondo virtuale

pio al fine di ottimizzare il lay-out (organizzazione funzionale), l’accesso e la manutenzione; è necessario dunque che sia adottato un opportuno Ambiente Comune di Condivisione dei Dati (CDE – Common Data Environment) flessibile e che bene si integri con le tecnologie impiegate nelle fasi di progettazione e di costruzione, al fine di strutturare l’ontologia dei dati in fase operativa, facilitando (di fatto) l’identificazione, la manutenibilità, l’accessibilità e l’archiviazione; occorre inoltre che le tecnologie digitali siano in grado di gestire il ciclo di vita operativo di un asset immobiliare; a tal fine, occorre che l’applicazione software attui un’efficace e sicura connessione bidirezionale (diretta e/o basata su API – Application Programmabile Interface - standard) tra il CDE e il modello informativo dell’opera al fine di consentire la costante sincronizzazione dei dati lungo il ciclo di vita utile; tale tipo di connessione abilita ad un ambiente flessibile di modifica e aggiornamento, sempre necessario durante la fase di gestione, nonché in fase di riconfigurazione degli spazi e delle funzioni, di ri-progettazione e adattamento del sistema edificio-impianti-persone; attraverso la simulazione virtuale, occorre che sia le tecnologie digitali che le applicazioni software garantiscano alle varie funzioni che insistono in una struttura sanitaria (Operation Manager, Energy Manager, Security Manager, ecc.) la qualità dell’interazione per il coordinamento dei documenti, delle informazioni e delle attrezzature per i sistemi di controllo della qualità medica e non medica (funzionamento, gestione del rischio, ambiente dati comune operativo, verifica delle condizioni, ispezioni);

c. con riferimento alla gestione digitale dei documenti, occorre che i sistemi digitali impiegati si integrino con il CDE e siano conformi agli standard normativi internazionali (ad es. ISO 19650) e contribuiscano all’interazione tra PIM (Project Information Model) e AIM (Asset Information Model), come indicato dagli standard; occorre che il sistema di gestione documentale garantisca l’integrità e la continuità dei dati in tutte le fasi di progettazione e lungo l’intero ciclo di vita dell’asset class attraverso classificazioni di categorie e sottocategorie di dati; i vantaggi di una gestione “digitale” dell’asset descritti nella presente trattazione si possono ottenere, naturalmente, anche nel caso di edifici esistenti, per i quali si rende necessario condurre dei rilievi tramite tecnologia laser-scanner (nuvola di punti) su cui impostare la generazione di un modello digitale dell’esistente e a cui associare dati/informazioni utili ad una gestione informativa del sistema edificio-impianti-persone le integrazioni mediante API bidirezionali con piattaforme quali CMMS, DMS, BMS, GIS, CAFM, BIM, ERP devono far sì che il software fornisca l’ambiente più flessibile per:

█ l’integrazione e la connettività a qualsiasi dato o sistema esistente;

█ facilitare una comunicazione senza soluzione di continuità dei sistemi, dei team e dei processi di gestione dei sistemi edifici-impianti-persone;

█ garantire che le prestazioni contrattuali non siano ostacolate;

█ migliorare l’efficienza delle attività a carico degli operatori;

f. occorre infine che il software fornisca servizi di manutenzione per l’assistenza di primo, secondo e terzo livello e consenta di effettuare simulazioni di pianificazione e controllo delle attività in fase di esercizio, riducendo al minimo i costi operativi e massimizzando l’efficienza dei servizi di manutenzione, della gestione e, finanche, della cura dei pazienti.

Occorre che questo modulo della piattaforma consenta di perseguire obiettivi di incremento delle prestazioni degli edifici, dell’efficienza energetica e gestionale degli impianti, mediante:

█ analisi energetica;

█ manutenzione predittiva;

█ gestione intelligente degli allarmi;

█ gestione degli asset medicali e no;

█ gestione dei sistemi energetici decentralizzati / resilienza energetica;

█ gestione della mobilità elettrica.

Per attuare tale approccio occorre necessariamente un cambio di paradigma nell’ideazione, progettazione, costruzione e gestione di una struttura sanitaria ed in particolare di un asset class complesso come quello degli ospedali; ciò non può prescindere da una visione innovativa da parte delle Committenti, siano esse pubbliche o private, basata sulla piena consapevolezza e promozione di strategie virtuose attraverso l’implementazione in fase di progettazione e costruzione (CAPEX) di tecnologie e metodologie innovative adeguate per perseguire l’ottimizzazione dei costi ricorrenti in fase di esercizio (OPEX) con un approccio al “ritorno di investimento” tipico dell’industria, responsabilizzando il soggetto costruttore/gestore-manutentore al rispetto di determinati Indici di Prestazioni (KPI – Key Performance Indicator) contrattuali. In altri termini, l’innovazione tecnologica consente di attuare finalmente l’approccio alla prestazione misurata, da cui trarre benefici in tutte le fasi di vita di una struttura ospedaliera e consentire di implementare oggettivamente l’”Ospedale Paziente Centrico”, con risvolti positivi nel ridurre i costi operativi, trattenere le competenze, attrarre i talenti e migliorare di fatto l’immagine dell’Ospedale.

L’autore

Healthcare Vertical Market Manager di Siemens S.p.A., Membro del Comitato Guida del JRP Healthcare Infrastructures
39 INNOVAZIONE DIGITALE aprile 2023

Il rovescio della medaglia della digitalizzazione in sanità

In un incontro online discussi i temi della sicurezza dei dispositivi elettromedicali e degli impedimenti burocratici incontrati dal CNR nello svolgere i progetti clinici

La protezione dei dati sanitari e la sicurezza dei dispositivi elettromedicali sono stati i temi principali della sessione centrale dell’incontro online “La rivoluzione digitale nella sanità”, nell’ambito di “Innovazione Più - Convegno digitale sulle innovazioni informatiche”, tenutosi a novembre 2022 e organizzato da Quine, parte di LSWR Group. Il moderatore, Luigi Ferro, giornalista di “Computerworld.it”, ha evidenziato la crescente importanza della

sicurezza informatica negli ospedali dove, specie a seguito della pandemia di Covid-19, si è registrato il positivo sviluppo della telemedicina che, al contempo, ha contribuito all’insorgenza di vari problemi (tra gli altri, i ransomware e la sicurezza del dato). Un punto debole è rappresentato dai dispositivi elettromedicali, spesso obsoleti e più vulnerabili agli attacchi dei sempre più sofisticati malware.

di Arturo Zenorini
40 INNOVAZIONE DIGITALE aprile 2023

LA SICUREZZA DEI DISPOSITIVI ELETTROMEDICALI, IN PASSATO E OGGI

IRCCS

“San Matteo” di Pavia, ha confermato come la sicurezza dei dispositivi elettromedicali di costo medio (IoMT, Internet of Medical Things) stia divenendo un problema sempre più sentito a causa dei sempre maggiori attacchi informatici subiti dai sistemi sanitari. «In passato ogni dispositivo elettronico viveva di vita propria» spiega Assunto. «L’era digitale ha ora portato all’introduzione di numerosi strumenti - sia di imaging che di altro tipo - i quali sono collegati alla rete. I problemi nascono perché la maggior parte dei dispositivi hanno un board software obsoleto e le applicazioni usate su questi apparati erano state progettate per una concezione di utilizzo abbastanza chiuso e non orientato alla sicurezza, per cui si trovano dispositivi di cui non è possibile cambiare le password di accesso ai dati. Spesso sono dispositivi dotati di interfacce che male si adattano a standard di sicurezza ottimali, per cui sono facilmente attaccabili da malware mirati a bloccare l’attività ospedaliera o rubare il dato clinico, che ha un valore estremamente elevato nel mercato nero. Inoltre, vi è lo pseudo-mercato dei programmi di protezione che non salvaguardano più, per scelte aziendali, software obsoleti in quanto il produttore di Cybersecurity parte dal presupposto che il software debba essere aggiornato». In Italia, la Direttiva NIS adottata nel 2018 si applica agli OSE (operatori di servizi essenziali) che - nei settori di energia, sanità, trasporti, infrastrutture digitali - non possono subire un’interruzione del servizio.

«Gli effetti degli incidenti sono misurati come numero di utenti coinvolti e come impatto (cioè entità e durata che l’incidente provoca sull’utenza, in questo caso sui pazienti)» specifica Assunto.

«In Italia, con l’introduzione dell’Agenzia Nazionale per la Cybersecurity, sono state adottate le norme del NIS che ha elaborato un framework, ovvero una serie di pratiche da applicare sulle organizzazioni (incluse quelle sanitarie) che consentono di rispondere a eventuale attacchi informatici. Tale framework include cinque macroaree - l’identificazione, la protezione, la detezione, la risposta e il recupero - ciascuna suddivisa in sottocategorie. È così possibile capire in un tempo breve se la postazione è sicura o se ci sono criticità molto gravi in termini di passibilità ad attacchi, consentendo di avviare un piano di remediation per portarla a un livello adeguato di sicurezza».

LE PRECAUZIONI DA PRENDERE IN TELEMEDICINA

Per quanto riguarda la telemedicina, «tutti i canali, ai quali vanno applicate password sicure, devono essere assolutamente crittografati e bisogna gestire la loro tracciabilità per evitare anche una loro possibile manipolazione» precisa Assunto. «Pertanto,

gli aspetti da considerare sono: un piano di valutazione dei rischi commisurato alla tipologia dei servizi forniti, il quale deve prevedere una ponderazione dei rischi che sono stati individuati, la loro rivalutazione periodica con adeguamento continuo delle tecnologie di difesa commisurato all’avanzamento dei cyberattacchi, la formazione degli utenti/caregiver in merito alle procedure di sicurezza».

L’Ospedale San Matteo di Pavia, dal 2018, ha intrapreso un percorso molto innovativo con dotazione di strumenti e servizi orientati alla Cybersecurity, quali «il SIEM, strumento di intelligenza artificiale (IA) che raccoglie tutti gli eventi di allarme da più fonti permettendo di identificare se un evento è potenzialmente malevolo; l’MDR, un software posizionato all’interno di ogni PC e postazione di lavoro che traccia tutte le attività; i dispositivi medici – i più esposti a tentativi di attacco – protetti attraverso infrastrutture ad hoc quale una control room virtuale dove tutti gli eventi che si svolgono sul dispositivo medico vengono correlati attraverso dei match all’attività malware mondiale per capire se vi è un possibile attacco in corso».

C’è quindi un’attività costante di monitoraggio su tutte le possibili fonti di attacco tramite un’analisi del rischio continuativa, operata di solito esternamente da un security provider tramite il SOC Center H24, una piattaforma che riceve tutti gli eventi, li analizza, blocca gli attacchi (malware, phishing o altro) e fa partire delle procedure di escalation che portano all’intervento immediato anche 365 giorni all’anno. L’aspetto più temuto relativo alla sicurezza in un ambiente sanitario è legato alla scarsa formazione degli utenti e degli operatori, dichiara Assunto.

«Spesso l’utente fa inavvertitamente azioni che lo espongono a rischi di sicurezza, come cliccare sul link di una mail o lanciare un programma eseguibile solo perché gli è arrivato sul compu-

41 INNOVAZIONE DIGITALE aprile 2023

ter» spiega l’esperto. «Gli aspetti più negativi da un punto di vista aziendale sono due: il disservizio, che porta a bloccare il pronto soccorso o il laboratorio di analisi, servizi cardine dell’ospedale; il danno economico causato dai ransomware, programmi che criptano i dati in maniera irrecuperabile se non dal possessore della chiave di criptazione, per cui l’ospedale viene sottoposto a un’azione di ricatto. Per questo si parla ormai da tempo di “security by design” cioè prodotti costruiti con sistemi di sicurezza incorporati. Ma le norme attuali non impongono alcun obbligo sui dispositivi esistenti, molti dei quali sono obsoleti e non possono essere connessi in rete. La situazione migliorerà man mano che i nuovi dispositivi sostituiranno quelli non sicuri».

Inoltre, conclude, con il PNRR sono stati stanziati dei fondi ad hoc dai quali si può attingere per effettuare una serie di investimenti che possono migliorare la Cybersicurezza ospedaliera.

PROTEZIONE DEL DATO COME OSTACOLO

ALLA RICERCA SCIENTIFICA

Anche un eccesso di sicurezza del dato, determinato dalle severe norme a tutela della privacy, possono talvolta essere d’ostacolo, soprattutto nell’ambito della ricerca clinica.

«La ricerca si basa sulla raccolta di grosse quantità di dati, anche nel tempo, e che quindi occorre riutilizzare» ha affermato a tale proposito Raffaele Conte, responsabile della protezione dei dati del Consiglio Nazionale delle Ricerche (CNR). «Un primo problema sta nel motivare un periodo di conservazione dei dati che sia abbastanza lungo rispetto alla finalità del singolo progetto». In Italia anche il sacrosanto principio di trasparenza nei confronti dell’interessato è interpretato in modo forse troppo rigido.

«L’utilizzo di dati sanitari, quindi di dati particolari, quantomeno in Italia richiede sempre il consenso nonostante la ricerca scientifica rientri fra le deroghe previste dall’articolo 9 per l’utilizzo di dati particolari» afferma Conte. «Inoltre, un limite rispetto agli altri paesi è dovuto al fatto che il garante si è espresso in maniera negativa sull’uso di dati strutturati provenienti direttamente dagli ospedali o dagli interessati e che potrebbero essere molto preziosi per attività di indagine epidemiologica. Un’ulteriore criticità» aggiunge «è costituito dai ruoli non chiari nel rapporto con i singoli ospedali, dove alcuni comitati etici impostano la modulistica per autorizzare le sperimentazioni cliniche in modo che i giovani clinici sono nominati titolari autonomi, definizione non esistente nel Regolamento europeo. Quando c’è una stretta collaborazione e non vi è solo una semplice comunicazione di dati ma si è definito insieme il protocollo, non può esserci una titolarità autonoma, anche perché le regole deontologiche per la ricerca scientifica richiedono che i trattamenti di ricerca siano ben distinti da quelli di cura».

POSSIBILI MIGLIORAMENTI CON L’APPLICAZIONE DEL DATA GOVERNANCE ACT

Dal giugno scorso, aggiunge Conte «è entrato in vigore un nuovo Regolamento Europeo, il Data Governance Act (DGA), che sarà applicabile da settembre e normerà proprio l'utilizzo e il riutilizzo di dati e che è nato per uniformare l'applicazione delle norme di Data Protection rispetto alla direttiva europea precedente, recepita dai vari stati membri con possibilità di introdurre ulteriori condizioni o limitazioni per il trattamento di dati genetici, biometrici o relativi alla salute, così in Italia è sempre richiesto il consenso e in altri paesi magari si utilizza il legittimo interesse per l’uso di dati nelle sperimentazioni». «Il DGA poggia su tre concetti: il riutilizzo di grosse quantità di dati, la definizione di intermediari e l’altruismo dei dati» specifica Conte. «Oggi si cerca di evitare di ricorrere al consenso e piuttosto di utilizzare altri presupposti giuridici per cui all’interessato siano date sempre le informazioni per far sì che possa conservare e mantenere il controllo sui suoi dati e quindi, in qualsiasi momento, far valere i propri diritti di recesso». Un miglioramento è necessario, osserva l’esperto: le attività di ricerca sono in genere finanziate da progetti che hanno determinate tempistiche, e se i tempi invece si allungano per poter riuscire ad accedere ai dati inevitabilmente alla fine si è costretti a rimodulare il progetto, e questo poi ha conseguenze sugli stessi progetti e sui loro obiettivi. «La ricerca si basa sulla condivisione e l’approccio basato su un controllo di ciò che avviene sulla rete si è sempre fatto negli ambiti delle attività nelle strutture di ricerca» conclude Conte. «C’è comunque ancora tanto lavoro a fare in termine di formazione del personale».

42 INNOVAZIONE DIGITALE aprile 2023

Il testo è un importante contributo allo sviluppo e alla diffusione delle norme di sicurezza antincendio, fornendo gli elementi indispensabili all’approfondimento delle conoscenze tecniche, delle dinamiche e delle variabili di cui si deve tenere conto per una corretta progettazione antincendio. Come utile guida, attraverso elaborati grafici, circolari di chiarimento, esempi procedurali, permette a progettisti e costruttori di trarre indicazioni utili per progettare correttamente l’impianto di prevenzione incendi.

Parte del testo è dedicata ad una dettagliata descrizione degli aspetti tecnici della Fire Safety Engineering, nuovo approccio alla progettazione.

Novità
www.build.it

La progettazione ospedaliera post-Covid

In occasione del convegno digitale CostruirePiù dello scorso mese di febbraio, la sessione curata da CNETO ha sottolineato la necessità di aggiornare le conoscenze nell’ambito della progettazione ospedaliera a seguito dell’evento pandemico che ha messo in crisi i sistemi sanitari di tutto il mondo

Gli edifici sociosanitari in generale e l’ospedale in particolare sono strutture per loro natura talmente complesse da richiedere un costante sviluppo della cultura tecnica-ospedaliera per promuovere un approccio multidisciplinare al tema dell’edilizia sanitaria pubblica e privata. La recente pandemia da SARS Cov 2 ha messo in crisi alcune certezze progettuali di una volta, rendendo concreta la necessità di mettere a disposizione degli ospedali e dei luoghi di cura spazi che siano facilmente riconfigurabili per rispondere prontamente a eventuali emergenze sanitarie, nonché di migliorare la qualità dell’aria di questi ambienti in quanto essa rappresenta il mezzo di trasporto principale degli agenti patogeni. Questa presa di coscienza post crisi pandemica si trasforma in una sfida per architetti, progettisti e impiantisti chiamati a realizzare nuovi ospedali o a intervenire su quelli vecchi attraverso una visione olistica del progetto.

Su questo tema si è concentrata la sessione dal titolo “La progettazione ospedaliera post-Covid” tenutasi durante il convegno digitale CostruirePiù 2023 dello scorso 9 febbraio.

All’evento, moderato da Roberto Righini, Vicepresidente CNETO, hanno partecipato Margherita Carabillò, Vicepresidente CNETO e direttrice della rivista Progettare per la Sanità, Paolo Bertini, Coordinatore del Gruppo di Lavoro “Digitaliz-

di Fabio Chiavieri
44 ATTUALITÀ aprile 2023

zazione” del CNETO e Susanna Azzini, 3WHE Teamwork e membro del Consiglio Nazionale CNETO.

QUALI MODELLI ARCHITETTONICI DELLE STRUTTURE PER LA SALUTE

«Siamo in presenza per quanto riguarda i nostri ospedali e le strutture sanitarie in generale di un patrimonio molto vecchio, in cui costantemente ci confrontiamo con infrastrutture sanitarie tra le più vecchie d’Europa con il 63% di quelle ospedaliere che hanno oltre 40 anni.»

Così esordisce Margherita Carabillò nella sua presentazione dal titolo “Quali modelli architettonici delle strutture per la salute”.

«La pandemia ci ha fatto fare i conti con questa realtà, mettendo in crisi tutta una serie di acquisizioni in tema di progettazione che avevano maturato negli ultimi decenni, e ponendo l’accento sul fatto che i progetti non sono più rispondenti ai requisiti qualitativi e quantitativi che consideriamo ottimali, almeno per quanto riguarda l’attività pubblica.»

Sebbene l’attività sanitaria non possa essere paragonata a quella industriale, se paragoniamo quello che è successo a livello di rivoluzione industriale negli ultimi 30 anni, il settore sanitario è rimasto indietro, legato a processi che non seguono l’evoluzione dei flussi di lavoro, invece, l’innovazione tecnologica in sanità, al di là di portare benefici nella diagnostica, cura e assistenza ai pazienti, deve portare all’impiego di nuove metodologie che governano i flussi di lavoro come già accade in alcuni paesi molto avanzati del Nord Europa.

«Il problema che ci troviamo ad affrontare oggi – prosegue l’architetto Carabillò – è come questa nuova riorganizzazione dei flussi di lavoro andrà a impattare sulla riorganizzazione delle strutture sanitarie. Nel 2019, CNETO ha visitato il Docrates Cancer Centre di Helsinki in Finlandia, una nazione molto evoluta dal punto d vista della gestione dei processi in sanità. Va tenuto presente che in questo Paese hanno una questione territoriale complicata, pensiamo per esempio alla distanza esistente tra la capitale e la Lapponia, quindi, l’uso della tecnologia è estremamente frequente anche per una questione di sostenibilità economica dei sistemi. Il Docrates è sostanzialmente un ospedale senza letti specializzato in oncologia dove non viene svolta alcuna attività operatoria e la dimissione del paziente avviene in maniera veloce attraverso la consegna al paziente stesso di strumenti portatili che gli consentono di essere gestito a distanza quotidianamente. Il paziente si sente così accudito anche a casa ma non viene preso in carico dall’ospedale purché non abbia sintomi preoccupanti da richiedere l’intervento di un equipe medico-infermieristica. Il percorso di avvicinamento del paziente a questa struttura prevede un appuntamento, la conseguente diagnosi, un piano di trattamento

– l’eventuale intervento chirurgico viene gestito all’esterno dell’ospedale –, il trattamento diurno presso la struttura e il follow-up.»

Il Docrates Cancer Centre è dotato di una hall che mette in comunicazione l’area diagnostica con il Patient Hotel a gestione alberghiera dove il paziente viene gestito in un’ambiente che non è di caratteristica ospedaliera. I luoghi della cura di questo centro finlandese dal punto di vista qualitativo sono molto qualificati con un’atmosfera più domestica che ospedaliera. Lo stesso dicasi per i luoghi del soggiorno per il paziente non ospedalizzato. L’aspetto interessante di questa modalità di gestione del paziente all’interno di questa struttura, che è specialistica e non ha i requisiti di una struttura ospedaliera per acuti, è che quando il paziente viene dimesso rimane comunque in contatto con il centro tramite i-Pad su cui segna quotidianamente tutti i suoi sintomi rispondendo a specifiche domande sullo stato di salute. Le risposte arrivano a un Command Center che, se l’evoluzione del paziente è normale, invia un messaggio per rassicurare il paziente, in caso contrario parte un alert che avvisa il presidio medico-infermieristico che interviene recuperando il contatto diretto con il paziente.

«È stato dimostrato che questo processo, oltre a ottimizzare il percorso diagnostico, è stato accolto in maniera positiva dal paziente che si sente comunque accudito, permette una migliore vigilanza dal punto di vista clinico e consente di intervenire con maggiore tempestività ma, soprattutto, ha permesso la raccolta di dati sull’efficacia delle terapie che vengono gestite per una risposta rapida al paziente.

«Un processo che fa sentire molto distante quello che accade oggi nei nostri ospedali, ma che sicuramente non si può ignorare visto che alcuni Paesi, come appunto quelli del Nord Europa o gli Stati Uniti, sono veri precursori in questo tipo di innovazioni.»

Un altro esempio molto interessante di ospedale del futuro è l’Humber River Hospital di Toronto che è la prima struttura sanitaria digitalizzata al 100% in cui i processi organizzativi vengono gestiti da un grosso centro di comando basato sull’IA. Si tratta di 420 metri quadrati in cui viene monitorato e gestito il flusso dei pazienti in ogni fase del percorso di cura, dal momento in cui viene accettato a quello in cui viene dimesso. Questo Command Center ha dato degli enormi vantaggi, tant’è che negli USA sono oltre 20 le strutture che si sono dotate di questo sistema. I pazienti hanno avuto un accesso tempestivo alle cure, meno tempo di attesa affinché i posti letto siano messi a disposizione, efficientamento della programmazione degli interventi chirurgici, degenze più brevi e dimissioni più rapide. Questi sistemi sono stati utilizzati anche per tenere sotto controllo l’evoluzione pandemica.

I vantaggi per i medici e per gli operatori infermieristici sono una maggiore attenzione ed energia nel fornire cure di qualità ai pazienti, migliori risultati sanitari, meno tempo dedicato al coordinamento dei trasferimenti dei pazienti.

45 ATTUALITÀ aprile 2023

«Tutti questi processi non si possono ignorare perché impattano sulla progettazione degli spazi Tante sicurezze progettali di una volta sono state messe in crisi; ci siamo resi improvvisamente conto che le emergenze pandemiche possono capitare e quindi abbiamo la necessità di disporre rapidamente degli spazi che siano riconfigurabili e convertibili in caso di necessità. Ci siamo resi conto di quanto abbia importanza la corretta separazione dei flussi e la flessibilità delle strutture sanitarie; di come ci sia la necessità di incrementare gli spazi da destinare o che possono essere destinati a pazienti infetti e garantire l’ingresso e l’uscita sicuri del personale ospedaliero e per i pazienti e le persone non infette.» Flessibilità e resilienza sono tornati termini di moda ma in realtà si tratta di prerequisiti indispensabili nella progettazione di una struttura ospedaliera visto che viene costruita per durare negli anni. Per quanto riguarda l’utilizzo delle tecnologie digitali e della telemedicina in Italia è stato fatto un grosso salto in avanti per cui gli spazi ospedalieri ne devono tenere conto.

«Ci siamo resi conto, inoltre, che abbiamo la necessità di separare i sistemi HVAC delle infrastrutture in base al tipo di unità-paziente e all’area servita all’interno dell’ospedale, e siamo tornati sul tema delle camere singole o camere doppie. In buona sostanza, abbiamo messo in crisi alcune certezze e si è riaperto il dibattito sulla riconfigurazione di alcune aree importantissime. Questo dibattito deve essere affrontato evidentemente in maniera interdisciplinare perché così è il progetto ospedaliero.»

Queste reali necessità odierne ma si conciliano con alcune problematiche altrettanto evidenti oggigiorno: insufficienti disponibilità economiche, tempistiche di realizzazione estremamente

lunghe, l’alternanza di interlocutori durante l’iter progettuale e mancanza di personale specializzato utile per il buon funzionamento di alcuni modelli gestionali che potrebbero essere efficaci. Tempi, costi, qualità alla base del project management sono evidentemente troppo importanti che però si scontrano con le problematiche sopra citate.

Il punto di partenza deve essere il modulo strutturale, come chiaramente dice Margherita Carabillò: «Se non si gestisce in maniera corretta il modulo strutturale non è possibile garantire flessibilità agli ospedali, che, viceversa, può essere garantita attraverso soluzioni come le Universal Room in grado di convertire le degenze ordinarie in degenze intensive sempre tenendo conto che ciò implica camere più grandi, con maggiori dotazioni elettriche e con più attacchi gas, quindi, più costi. Oggi vanno creati ospedali “a fisarmonica” che siano in grado di espandere temporaneamente la capacità durante l’emergenza e di contrarsi quando l’emergenza è finita.»

Un esempio tipico segnalato dalla Vicepresidente CNETO è l’ospedale Rambam Hospital di Haifa in Israele dove sostanzialmente il parcheggio può essere convertito in ospedale di emergenza. Un altro caso è il Rush Universal Medical Center di Chicago dove, per esempio, l’Emergency Department è stato progettato in modo da poter accogliere anche le grandi emergenze dividendolo in tre unità di 20 posti letto ognuna delle quali può essere isolata con trattamento aria separato.

«Sappiamo – conclude Margherita Carabillò – come mettere a punto una strategia di adeguamento e di risposta da un punto di vista strutturale, ma sembra ancora più complicato mettere a

█ Margherita Carabillò, Vicepresidente CNETO e direttrice della rivista Progettare per la Sanità
46 ATTUALITÀ aprile 2023
█ Paolo Bertini, Coordinatore del Gruppo di Lavoro “Digitalizzazione” del CNETO █ Susanna Azzini, 3WHE Teamwork e membro del Consiglio Nazionale CNETO

lungo una revisione generale della governance con nuove professionalità che sono necessarie per gestire questo tipo di cambiamento a cui stiamo assistendo.»

LA DIGITALIZZAZIONE IN SANITÀ

La pandemia ha dato sicuramente un’accelerazione al processo di digitalizzazione della sanità in Italia, sebbene la trasformazione fosse già in atto da molto tempo. Durante il momento più duro della diffusione del Covid-19 sono state realizzate strutture in tempi estremamente brevi grazie a tecnologie avanzate e digitali.

«Il lavoro che CNETO sta facendo per favorire questo processo – dice Paolo Bertini, relatore dell’intervento dal titolo “La digitalizzazione in sanità: soluzioni e strategie per il progetto e la gestione delle costruzioni complesse” – parte dai fattori abilitanti della transizione digitale, quindi, dalle condizioni minime che ci aspettiamo perché si possano mettere in campo i progetti su cui stiamo lavorando e, naturalmente, dall’analisi delle inefficienze attuali. Non solo nella progettazione, costruzione e gestione tecnica ma anche dal punto di vista della fruizione e della gestione medica. Il tema dello “Smart Hospital”, infatti, non è riferito solo all’edificio fine a sé stesso, bensì a un sistema più complesso che riguarda anche la parte medica, quella di cura e l’esperienza del paziente.»

Parlando in primo luogo di struttura dell’edificio, il processo digitale di ideazione, progettazione, validazione, costruzione, e gestione deve passare necessariamente attraverso la metodologia BIM che consente di portare efficienza e qualità a tutte le fasi del processo. Altrettanto importante è il concetto di Digital Twin che include il modello BIM dell’edificio, il sistema di gestione energetica, la gestione della manutenzione e i servizi a valore aggiunto in ambito predittivo.

Lo Smart Hospital visto come sistema edificio-impianti persone (seco ndo un concetto molto più ampio rispetto allo Smart Building) prevede l’interazione tra edificio, gli impianti, staff medico e paziente. La gestione degli spazi e FF&E ( apparecchiature, arredi e attrezzature ) in manie ra digitale significa poter essere a conoscenza in ogni istante del contenuto delle strutture, fino ad arrivare al tracciamento in tempo reale (RTLS) . Fondamentale è inoltre l’integrazione tra dell’efficienza energetica e la digitalizzazione delle attività di Asset & Facility Management in un’ottica di gestione efficiente, sostenibile e sicura. A proposito di sicurezza, la digitalizzazione e ntra a pieno titolo anche nell’ambito della Cyber Security e protezione dei dati personali.

«Sono tutti concetti già impiegati in passato ma oggi li approfondiamo con un’accezione nuova con competenze e tecnologie diverse come, per esempio, l’Intelligenza Artificiale e le Neuro-Scienze.»

LA DIGITALIZZAZIONE NELLE FASI DI PROGETTAZIONE, COSTRUZIONE E GESTIONE

Il BIM (Building Information Modeling) è diventato un modello informativo che segue tutto il percorso dell’opera dalla progettazione, alla costruzione e gestione, e ogni fase trae i propri vantaggi. Ciascuna fase ne gode di diretti e di indotti: durante la costruzione, esistono vantaggi indotti dall’applicazione del BIM in fase di progettazione come, per esempio, la possibilità di prevenire eventuali criticità che in cantiere costerebbero tempi e soldi. La costruzione in modalità BIM induce a sua volta vantaggi nella fase di gestione e manutenzione grazie al Digital Twin. In fase di progettazione i principali vantaggi sono, quindi, la Clash Detection, la verifica dei requisiti funzionali e tecnologici in ottica di facilitare l’accreditamento e l’esercizio delle strutture sanitarie, il Code Checking o Controllo Normativo in ambito sicurezza, accessibilità ecc. Tucco ciò consente di arrivare ad avere al termine della fase costruttiva una sorta di As-Built digitale, ovvero un Asset Information Model Management che consente di gestire la struttura in maniera più efficiente avendo collegati il Digital Twin che include il Modello OpenBIM e il relativo database informativo.

LO SMART HOSPITAL

La vera digitalizzazione ottenuta mediante la combinazione tra metodologie e tecnologie sia in ambito prettamente medico sia a quello inerente la struttura fisica ospedaliera, attuando di fatto la convergenza OT (Operating Technology) – IT (Information Technology) – MT (Medical Technology).

Lo Smart Hospital rappresenta l’evoluzione da un sistema edificio-impianti-persone “convenzionale” a un sistema connesso, integrato, interoperabile e flessibile che genera efficienza, flessibilità, sicurezza, resilienza e sostenibilità nel periodo di esercizio.

Ciò significa combinare metodologie e tecnologie sia in ambito prettamente medico, sia a quello inerente la struttura fisica ospedaliera, quindi, attuando la convergenza OT (Operating Technology) – IT (Information Technology) – MT (Medical Technology).

«L’ambiente di condivisione nell’ambito della gestione tecnica, in altre parole il Digital Twin, è un ambiente in cui questi sistemi di gestione degli impianti, della progettazione, delle apparecchiature ecc. collaborano e si integrano - piega Paolo Bertini. I sistemi di tracciamento o localizzazione in tempo reale, quindi relativi alle apparecchiature, attrezzature e arredi, sono molto importanti perché non si tratta semplicemente di sapere dove si trovano in un preciso momento degli asset, bensì si possono tracciare i “comportamenti” che avvengono in una struttura sanitaria consentendo di fare un’analisi dei flussi a posteriori. In questo processo evolu-

47 ATTUALITÀ aprile 2023

tivo rientra tutta la parte di fruizione. I sistemi digitali, infatti, si integrano e sono al servizio delle attività cliniche, dal monitoraggio alla diagnosi, fino ad arrivare allo Human Digital Twin che replica il corpo del paziente in tutte le sue funzionalità.»

Pensare alle strutture sanitarie e alle reti sanitarie del futuro grazie alla digitalizzazione significa pensare non solo ai dati tecnici dell’edificio, ma capire quale sia la possibilità di fare in modo che sia l’ospedale ad andare incontro al paziente, oppure, grazie all’IA e alle neuroscienze fare un’opera di prevenzione come già si sta sperimentando nella sicurezza in cantiere.

LA QUALITÀ DELL’ARIA NEGLI AMBIENTI SANITARI

Susanna Azzini, 3WHE Teamwork e membro del Consiglio Nazionale CNETO, con la relazione dal titolo “Qualità dell’aria negli ambienti sanitari” ha introdotto la problematica legata alla salubrità degli spazi all’interno delle strutture sanitarie. La qualità dell’aria indoor (IAQ, Indoor Air Quality) si riferisce all’aria interna che si respira negli ambienti confinati in cui rientrano gli ospedali. Per parlare di qualità dell’aria bisogna cominciare dall’igiene degli ambienti sanitari. Grazie agli studi iniziati nel corso del 1800 oggi sappiamo che la contaminazione tra persone chiuse nello stesso ambiente avviene attraverso agenti patogeni, più generalmente inquinanti di origine biologica (virus, batteri ecc.), chimica (anestetici, antiblastici, detergenti ecc.) o di altra natura come per esempio il particolato atmosferico, l’amianto, il Radon ecc. A questi va aggiunta la tematica legata al rilascio in ambiente di inquinanti di natura chimica da parte di arredi o componenti edilizie che determinano un potenziale rischio. Tutti questi inquinanti si muovono nell’aria.

«Il Covid-19 ha insegnato, a discapito della vita di milioni di persone, alla totalità della popolazione mondiale che l’aria è in realtà un mezzo di trasporto, per cui l’espirato carico di virus di un paziente affetto da una patologia respiratoria può raggiungere una persona sana anche a una distanza ritenuta in passato sufficientemente sicura - dichiara Susanna Azzini.

«L’aria, dunque, può essere estremamente pericolosa nel momento in cui l’ambiente è chiuso o confinato, come per esempio una sala di aspetto di un ospedale. La ventilazione di un ambiente serve proprio rimuovere dall’ambiente stesso la parte di aerosol carico di patogeno emesso dalla persona portatrice. A maggior ragione è indispensabile che gli ospedali, dove si ha la maggiore concentrazione di persone potenzialmente affette da malattie respiratorie o comunque con problematiche di natura infettivologica o batteriologica, siano dotati di impianti che consentano, attraverso il “mezzo aria”, di rimuovere il contaminante di qualsiasi natura.»

D’altronde è scientificamente provato che la ventilazione, in base al numero di ricambi di aria che si danno all’ambiente, può rimuo-

vere rapidamente i patogeni e riportare a una situazione di salubrità o quantomeno ridurre il rischio di contagio. In particolare, la concentrazione di patogeno nell’aria in un ambiente di 50 m3 alla presenza di una persona malata che tossisce ogni 30 secondi diminuisce con l’aumentare del numero di ricambi d’aria permesso dal sistema diventilazione

«Per poter definire la qualità dell’aria negli ambienti sanitari occorre fare un’analisi del rischio a cura degli Igienisti a beneficio dei progettisti degli impianti che devono effettuare le opportune valutazioni. Una volta valutato qual è il rischio accettabile, il progettista potrà dimensionare gli impianti e stabilire strategie di azione. Poiché l’ospedale è una struttura complessa e articolata è necessario definire requisiti dell’aria nelle diverse aree ospedaliere in funzione dell’uso e quindi del rischio. Nel 1997 il Decreto Bindi – che ha sancito come si accreditano le strutture sanitarie - e altri Decreti regionali specifici hanno stabilito i requisiti minimi impiantistici per cui sono state date le prime indicazioni sui blocchi operatori, le terapie intensive, le centrali di sterilizzazione ecc. relative alle condizioni ambientali, ovvero, temperatura, umidità, ricambi d’aria, a queste si sono aggiunte la norma UNI 11425 per le sale operatorie e la UNI 14644 per le camere bianche e ambienti associati controllati. L’INAIL è uscita successivamente con ulteriori indicazioni sulla ventilazione per le RM e una linea guida sulle sale operatorie.

«Per operare correttamente – prosegue l’ingegner Azzini - gli impiantisti dovrebbero avere a disposizione il prospetto delle normative che indicano per ogni ambiente, dopo che è stata fatta l’analisi del rischio da parte degli igienisti, quali sono i parametri corretti da garantire relativamente a temperature estate/inverno, umidità relativa, differenza di pressione tra gli ambienti e numero di ricambi ora di aria di rinnovo da dover garantire. .

«Su questi temi, CNETO sta sviluppando in collaborazione con AiCARR degli studi che consentiranno anche a seguito delle esigenze particolarmente evidenziate durante e a seguito della pandemia, di progettare impianti di ventilazione in funzione della qualità dell’aria in alcune aree specifiche ancora non normate quali il Pronto Soccorso o, più in generale il DEA, e le Degenze, prevedendone anche livelli di flessibilità e adattabilità sinora non attuati. Di fondamentale importanza sarà l’introduzione di sistemi di monitoraggio che consentano di valutare l’efficacia del risultato di qualità dell’aria richiesto e previsto in progetto.

Il tutto sempre con un occhio di riguardo alla sostenibilità ambientale ed economica anche alla luce della crisi energetica.

Poiché gli impianti di ventilazione sono per loro natura particolarmente “rigidi” è fondamentale per questo lavorare insieme agli architetti per condividere le scelte edilizie che permettano la realizzazione di soluzioni impiantistiche adattabili ad eventuali emergenze pandemiche che si dovessero ripresentare in futuro.»

48 ATTUALITÀ aprile 2023
PREZZI INFORMATIVI DELL’EDILIZIA www.build.it I PREZZARI dei Bonus edilizi

Azioni coordinate contro le ICA

Il tema del rischio clinico è sempre più al centro dell’attenzione perché interessa vari settori della sanità e ha un forte impatto sociale ed economico. Alberto Firenze, presidente nazionale dell’Associazione Hospital & Clinical Risk Managers, è convinto che si possa affrontare in modo nuovo il preoccupante fenomeno delle ICA, che miete ogni anno migliaia di vittime

di Maurizio Pedrini
ORGANIZZAZIONE
2023
50
aprile

Il rischio clinico rappresenta una sorta di sigillo di garanzia relativamente al diritto alla salute del paziente, che è costituzionalmente protetto. Esso viene esplicitato nella cura sicura del paziente, a tutela della qualità dell’assistenza sanitaria.

“La Legge del 2017, anche se presenta alcuni punti ancora da realizzare, si occupa efficacemente dei potenziali rischi correlati all’esercizio dell’assistenza sanitaria, proprio allo scopo di evitare il verificarsi di errori, definiti eventi sentinella” così esordisce sul tema il professor Alberto Firenze.

È fondamentale conoscere approfonditamente questo delicato aspetto dell’assistenza sanitaria, che investe direttamente la qualità, la sicurezza e la prevenzione delle cure prestate negli ospedali e nelle strutture socioassistenziali in genere. Analizzare le cause del problema e avviare progetti mirati per lo studio, la riduzione e gestione del fenomeno è di fondamentale importanza.

█ Può presentarci, innanzitutto l’Associazione di cui è alla guida e parlarci degli obiettivi per cui è nata?

L’Associazione “Hospital & Clinical Risk Managers” è una libera associazione fra professionisti, sorta otto anni fa, che persegue scopi esclusivamente scientifici e culturali, senza fini di lucro ed agisce nel pieno rispetto delle norme nazionali e internazionali. Essa si propone di supportare, implementare e coordinare l’azione degli operatori sanitari impegnati, per ruolo e/o funzione aziendale, nella realizzazione di politiche di qualità e sicurezza delle cure e delle strutture in cui le cure sono erogate. Gli scopi dell’Associazione sono realizzati attraverso iniziative scientifiche, culturali e professionali, i cui contenuti si intendono ispirati alle evidenze scientifiche e traggono origine dalle migliori pratiche cliniche ed

assistenziali. Attraverso tali iniziative l’Associazione persegue l’aggiornamento scientifico del settore e promuove la diffusione delle attività di gestione del risk management. La stura alla sua nascita è stata data dalla Legge n. 24/2017 che schematizza il ruolo della figura professionale del “risk manager” nelle strutture sanitarie, quindi anche nelle “cliniche” e/o ospedali veterinari. L’attività del professionista può essere sintetizzata nell’identificazione del rischio, valutazione dello stesso e messa in atto delle strategie più indicate per la sua eliminazione.

█ Cosa si intende per rischio clinico, così come definito da una legge sicuramente valida, ma per tanti aspetti ancora inapplicata?

Il rischio clinico rappresenta una sorta di sigillo di garanzia relativamente al diritto alla salute, che è costituzionalmente protetto. Esso viene sostanzialmente esplicitato nella cura sicura del paziente, in funzione della qualità dell’assistenza sanitaria. La Legge del 2017 – anche se come lei ha giustamente evidenziato - presenta alcuni punti ancora da realizzare, si occupa efficacemente dei potenziali rischi correlati all’esercizio dell’assistenza sanitaria, proprio allo scopo di evitare il verificarsi di errori, definiti eventi sentinella. Questi ultimi sono eventi avversi, di particolare gravità, potenzialmente evitabili, che possono comportare la morte o un grave danno alla salute del paziente. Si considera grave danno qualsiasi conseguenza non intenzionale e indesiderabile derivante dall’evento avverso. Per la loro gravità, è sufficiente che si verifichino una sola volta affinché, da parte dell’organizzazione, si renda necessario sia un immediato accertamento dei fattori che hanno causato l’evento o che hanno contribuito a causarlo, sia la verifica degli stessi, con il preciso

51 ORGANIZZAZIONE aprile 2023

intento di ridurli o eliminarli completamente. L’obiettivo di fondo è l’individuazione e implementazione di adeguate misure correttive.

█ Il rischio clinico è presente a molte situazioni, pensiamo soprattutto alle ICA, Infezioni Correlate all’Assistenza: come agire, in concreto?

Non c’è dubbio che l’attuale elevata complessità assistenziale e l’alto numero di prestazioni erogate dal Servizio Sanitario Nazionale sono fattori assai delicati, che favoriscono – purtroppo – il verificarsi di errori. Credo che si debba agire favorendo in tutti i modi un percorso proattivo, con l’esercizio – laddove possibile – di azioni mirate. È indispensabile, soprattutto, agire con la leva formativa, facendo in modo che l’applicazione di analisi mirate possa permetterci di ragionare in termini di prevenzione, non semplicemente reattivi. Insomma, è necessaria una svolta decisa, un radicale cambio di aspettativa, da una Safety I a una Safett II, per far sì che certi errori siano meno presenti e si riducano il più possibile”.

█ Purtroppo, però, l’Italia – insieme alla Grecia -ha la maglia nera quanto a numero di ICA, con una “pandemia silente” che miete annualmente migliaia di vittime. In Europa le ICA sono responsabili, ogni anno, di circa 16 milioni di giornate di degenza aggiuntive, 37.000 decessi e 110.000 decessi per i quali l’infezione è una concausa. Cosa si può fare, in concreto, per prevenirle?

La prevenzione nasce dall’individuazione di tali lacune, seguita da un intervento mirato ma soprattutto da attività informative finalizzate all’introduzione di buone pratiche. Si tratta di semplici azioni che potrebbero prevenire più del 70% delle infezioni. Il primo esempio è proprio l’igiene delle mani, misura fondamentale per la prevenzione delle Infezioni Associate all’Assistenza (ICA). Ed è sulla pulizia delle mani che l’Organizzazione Mondiale della Sanità (OMS) promuo ve ogni anno la “Giornata Mondiale dell’Igiene”. Sono diverse le

strategie di prevenzione delle ICA che prevedono l’adozione, nelle procedure sanitarie, di comportamenti professionali in grado di ridurre significativamente il rischio del paziente: il rispetto dell’asepsi (sterilizzazione degli strumenti chirurgici) nelle procedure invasive, la disinfezione e la sterilizzazione dei presidi sanitari e la normotermia (riscaldamento del paziente durante l’operazione chirurgica). Non dimentichiamo che le complicazioni dovute alle ICA, oltre ad avere un grave impatto sociale (sofferenza, difficoltà psicologiche, assenza dal lavoro) e ad essere causa di morte in ambito ospedaliero (con circa 7.800 vittime l’anno), hanno un forte peso economico. Secondo analisi effettuate dalla nostra Associazione, le ICA ogni anno prevedono costi, per i pazienti come per le strutture, che si aggirano intorno ai 7 miliardi di euro su scala Europea. A incidere economicamente è il prolungamento della degenza, il consumo di farmaci e l’uso di procedure eccessivamente care.

█ Questo processo per prevenire le Infezioni ospedaliere dovrebbe coinvolgere tutte le figure presenti in ospedale e nei luoghi di cura?

Sono fermamente convinto che la corretta gestione del rischio clinico comporti un salto di qualità, con una visione integrata della sicurezza in grado di ruotare a trecentosessanta gradi, coinvolgendo e rendendo protagoniste di questo processo tutte le figure preposte. Ovviamente la chiave di volta per vincere questa difficile partita è la formazione.

█ Quale interdipendenza esiste, a suo parere, tra la ricerca della massima igiene e sanificazione dei reparti ospeda-

La ringrazio della domanda perché, in effetti, esiste una stretta correlazione tra gli indirizzi governativi e comunitari in materia, il modo in cui gli stessi vengono recepiti dalle direzioni sanitarie e

52 ORGANIZZAZIONE aprile 2023

la messa in pratica delle indicazioni da parte del personale preposto alla pulizia e sanificazione. Questa semplice osservazione è ancor più importante considerando che nella gestione del rischio sono proprio queste azioni – se svolte in modo puntuale e rigoroso – a rappresentare delle straordinarie barriere nella concatenazione di eventi avversi. Quindi è necessario insistere al massimo sul rispetto degli standard, sulle procedure ma anche sui percorsi formativi perché la vera prevenzione è strettamente legata a questi fattori strategici.

█ La pandemia ha posto sotto i riflettori il prezioso lavoro svolto dal personale medico, infermieristico, paramedico impegnato a contenere il diffondersi del virus SARS

CoV-2. Sotto i riflettori sono finiti, in quel periodo, pure gli umili addetti alle pulizie. Pensa che vi sia il rischio di un ritorno alla normalità, ovvero ad una inadeguata attenzione ai temi dell’igiene in chiave di prevenzione e sicurezza negli ospedali e nei luoghi di cura? Spero di no, anzi voglio credere che ciò non avverrà. Quanto al personale delle imprese di pulizia, si tratta del primo anello di una lunga catena di eventi che possono scatenarsi se gli interventi di sanificazione e igienizzazione non sono adeguati. Durante il periodo della pandemia abbiamo visto che, dopo un iniziale periodo di smarrimento, in Italia e in Europa la gestione dei contagi è passata attraverso un insieme di azioni mirate ed assai efficaci, in primis il lavaggio accurato delle mani. Sono stati recuperati principi e valori legati al buon senso, trasmessi da anni per intere generazioni, che forse erano stati dimenticati, o comunque trascurati, ma si sono rivelati davvero preziosi. L’Associazione che rappresento, in questo difficile e complesso periodo, ha lavorato da subito apportando un contributo importante per offrire linee guida praticabili. In particolare, abbiamo collaborato con Anip-Confindustria pubblicando un manuale della buone pratiche igieniche di sanificazione degli ambienti, finalizzato ad orientare non solo le imprese di pulizia, ma anche in cittadini. Smobilitare quanto di buono è stato realizzato, significherebbe compiere un irrecuperabile passo indietro.

█ Quanto è importante la formazione universitaria, non solo in ambito medico, sul tema del rischio clinico?

L’aspetto della formazione è nevralgico, ma non solo per il personale medico e gli operatori sanitari, anche per gli addetti alle pulizie. Per compiere questo sforzo è indispensabile poter contare sulle Associazioni di riferimento, sia in ambito medico che nella filiera della sanitation. La nostra Associazione è impegnata con determinazione su questo terreno: siamo presenti in parecchie Università italiane; abbiamo in atto in particolar modo, una collaborazione con l’Università degli Studi di Palermo, avviata sette anni orsono: un Master di II° livello di Risk Management ed Organizzazione Sanitaria (Mirmos), al quale si è affiancato anche un Corso di perfezionamento sul management del rischio infettivo correlato alla sicurezza sanitaria e ala gestione dei farmaci. Vorremmo coinvolgere le Associazioni di categoria della pulizia e igiene professionale per una corretta stesura e gestione di alcuni aspetti dei capitolati delle gare d’appalto da parte della committenza. Stiamo infine lavorando per avviare un fattivo confronto su questi temi con il Governo Meloni.

█ Lei ha partecipato in veste di relatore al primo Congresso Digitale Cleaning più, organizzato dalla rivista Dimensione Pulito e dal Gruppo LSWR: che impressione ha riportato di questa esperienza?

Il Congresso è stato davvero interessante, con argomenti ben calibrati e tanti autorevoli relatori. Io sono intervenuto alla sessione dedicata al tema della transizione digitale, trattando alcuni aspetti di telemedicina riguardanti il miglioramento del rapporto tra Servizio Sanitario Nazionale e cittadino. Quest’ultimo, in prospettiva, è chiamato a svolgere un ruolo sempre più attivo e partecipe, in vista dell’obiettivo finale della cura sanitaria. Direi che il vostro Congresso virtuale ha costituito un’iniziativa utile e necessaria di informazione e aggiornamento per l’intero settore. Mi auguro che possa essere riproposto anche in futuro, consolidando la positiva collaborazione avviata con l’Associazione da me presieduta.

CHI È ALBERTO FIRENZE

Presidente dell’Associazione “Hospital & Clinical Risk Managers”, il prof. Alberto Firenze è professionista dalla lunga esperienza nel management sanitario e attuale responsabile dell’Unità di staff “Risk management e qualità aziendale” del Policlinico di Palermo. -Dal 24.05.2016 Collaborazione professionale all’Assessore Regionale della salute della Regione Siciliana per il supporto all’attività amministrativa e di governo in termini di qualità e tutela della salute.

53 ORGANIZZAZIONE aprile 2023
█ Alberto Firenze, presidente nazionale dell’Associazione Hospital & Clinical Risk Managers

SILENZIO, C’È SILERE®

Gli addetti ai lavori sanno bene che, per il corretto funzionamento di un impianto di scarico, il condotto di ventilazione gioca un ruolo fondamentale. Questa considerazione si basa sulla raccolta di dati fatta sul campo, visto che la quasi totalità dei problemi che si presentano in un sistema di scarico sono da ricondurre ad uno scarso o inesistente sistema di ventilazione, soprattutto negli edifici più datati. Quando un flusso di scarico si muove all’interno delle tubazioni crea a valle delle pressioni positive e a monte delle pressioni negative. Il sistema di ventilazione è basilare per gestire queste pressioni. In caso di ventilazione assente o sottodimensionata, oltre a influenzare negativamente la capacità di scarico del sistema, tali pressioni mettono in movimento l’acqua contenuta all’interno dei sifoni presenti sugli apparecchi sanitari, creando rumori indesiderati e permettendo la fuoriuscita di odori all’interno degli ambienti abitabili.

La normativa europea UNI EN 12056-2 sui “Sistemi di scarico funzionanti a gravità all’interno degli edifici”, impiegata anche in Italia, consente l’uso di diverse tipologie di sistemi di ventilazione, indica come dimensionarli e realizzarli, lasciando al progettista la facoltà di decidere quale tipologia utilizzare.

La soluzione più semplice ed economica è chiamata “ventilazione primaria” e prevede il prolungamento della colonna di scarico sino all’esterno dell’edificio, dove il sistema termina con un torrino di ventilazione. È generalmente impiegata in edifici di altezza contenuta, in quanto permette di gestire al meglio le pressioni negative, ma non è così efficiente con le pressioni positive che sono tipiche negli edifici molto alti.

Per poter gestire anche le pressioni positive, si può passare alla “ventilazione parallela” che prevede la realizzazione di una seconda colonna dedicata esclusivamente alla ventilazione. Tale colonna aggiuntiva ha un diametro inferiore rispetto a quella di scarico e permette di aumentare la portata di scarico del sistema rispetto alla “ventilazione primaria”. Per esempio, con una colonna di scarico dal tipico diametro di 110 mm, la portata di scarico con un sistema di ventilazione primaria è di 4 l/s, mentre con la “ventilazione parallela” la portata passa a 5,6 l/s, il 40% in più. Se consideriamo un appartamento “tipo” – cucina con lavello e lavastoviglie; bagno con vasca, lavandino, wc e bidet – con la “ventilazione primaria” si possono collegare, a una colonna con diametro di 110 mm, fino a 9 appartamenti tipo; con la “ventilazione parallela” si possono collegare fino a 18 appartamenti tipo, senza necessità di

aumentare la dimensione della colonna di scarico. A sua volta la “ventilazione parallela” può essere “diretta”, quando la colonna di ventilazione è vicina alla colonna di scarico, e “indiretta” quando la colonna di ventilazione si trova a distanza, generalmente vicino all’apparecchio sanitario più lontano dalla colonna di scarico.

█ Silere è il sistema a innesto di tubi, raccordi e accessori industrializzato, prodotto e brevettato da Valsir in grado di garantire valori di rumorosità tra i più bassi oggi sul mercato

█ Come si vede dalla sezione del tubo, Silere è un sistema monoparete: l’intero spessore dei tubi e dei raccordi è realizzato con una miscela di polipropilene e cariche minerali.

54 PUBBLIREDAZIONALE aprile 2023

Un’ulteriore soluzione, chiamata “ventilazione secondaria”, risulta essere dal punto di vista tecnico la migliore tra quelle previste dalla normativa, in quanto collega tutti gli apparecchi sanitari con la colonna di ventilazione, garantendo che ognuno di essi sia perfettamente ventilato. Questo sistema viene raramente utilizzato in quanto non sempre è fattibile l’installazione delle molte tubazioni necessarie all’interno delle pareti o dei massetti.

La realizzazione di un impianto di ventilazione, a supporto di un impianto di scarico, influenza il progetto sia economicamente sia dal punto di vista degli ingombri. Infatti, ciò che spesso crea più vincoli non sono solamente i costi, ma anche lo spazio disponibile all’interno del cavedio tecnico. Aumentare la dimensione e il numero delle tubazioni di un sistema di scarico da far transitare all’interno del cavedio tecnico non è sempre possibile; ecco perché spesso si ricorre a soluzioni tecniche che, oltre a risolvere il problema della ventilazione, consentono di ridurre le dimensioni del cavedio o riservare lo spazio disponibile al suo interno ad altri impianti.

IL SEGRETO È LA BRAGA MISCELATRICE

Valsir è l’unica azienda in grado di combinare un sistema di scarico con prestazioni acustiche elevatissime ad una soluzione tecnica come la “braga miscelatrice”, soluzione ideale per edifici di elevata altezza o con elevato fattore di contemporaneità d’uso degli apparecchi sanitari. Ma di cosa si tratta? E perché è così vantaggioso?

«La braga miscelatrice – dichiara Matteo Bettinsoli, Product Manager Valsir – è un particolare raccordo che, come altre bra-

ghe proposte da Valsir, permette il collegamento delle diramazioni orizzontali con la colonna verticale; a differenza delle altre, ha una geometria studiata appositamente per aumentare notevolmente le prestazioni dell’impianto di scarico e, in combinazione con Silere, contenerne i livelli di rumorosità. Silere è, infatti, il nostro prodotto fonoisolante per eccellenza, nato con l’obiettivo di realizzare un sistema di scarico dalle prestazioni acustiche elevatissime; basti ricordare che a 2 l/s (tipico scarico di un WC) si misurano livelli di rumore di soli 6 dB(A), secondo i test indicati dalla norma EN 14366. Questo grazie al materiale impiegato per la sua realizzazione, una miscela di polipropilene e cariche minerali che conferisce, inoltre, un’elevata resistenza meccanica.

Tornando alla braga VBF, questa evita la necessità di installare una colonna parallela di ventilazione; nonostante questo, il sistema risulta perfettamente ventilato, in quanto la forma della braga miscelatrice diminuisce notevolmente la velocità del flusso di scarico, riducendo le pressioni che si generano all’interno dello stesso. Inoltre, la braga consente di far ricircolare l’aria all’interno delle due camere che la compongono, creando lo stesso effetto di una ventilazione parallela. Questo vantaggio si traduce in un risparmio di spazio e costi apprezzabile soprattutto in edifici alti, come ad esempio un ospedale, e in una maggiore capacità della portata di scarico che sale fino a 13 l/s rispetto a quella permessa dalla ventilazione parallela, permettendo di collegare a una colonna con diametro 110 mm fino a 100 appartamenti tipo.»

█ Silere è un prodotto fonoisolante che raggiunge prestazioni acustiche di eccellenza. Quali sono le peculiarità tecniche e realizzative che consentono a questo sistema di scarico di raggiungere tali prestazioni rispetto ad altri sistemi Valsir o di altri produttori?

«Nel corso degli anni – risponde Matteo Bettinsoli – il mercato edilizio è diventato sempre più esigente e attento anche ad aspetti tecnici che vanno oltre il buon funzionamento dell’impianto. Uno di questi sono le prestazioni acustiche. Quando un sistema di scarico è in funzione, i rumori nascono all’interno del condotto a causa delle vibrazioni e degli impatti provocati dalla caduta del liquido scaricato; questo può creare fastidi ad altri inquilini nel caso di un edificio residenziale o, ancora peggio, ai pazienti di un ospedale o di una casa di cura. Per questo motivo Valsir ha studiato due tipi di sistemi di scarico ad alte prestazioni acustiche, che sono Triplus e Silere. Ciò che permette a Silere di garantire valori di rumorosità tra i più bassi sul mercato è la sua peculiarità realizzativa.»

Silere, infatti, è un sistema caratterizzato dallo spessore molto elevato delle pareti di tubi e raccordi, che sono realizzate con una miscela di polipropilene e cariche minerali dall’altissima densità e dalle elevate caratteristiche meccaniche alle basse (resistenza all’urto fino a -20°C) ed alte temperature (in esercizio discontinuo fino a 95°C).

55 PUBBLIREDAZIONALE aprile 2023

Appalti, sentenze e aggiornamenti normativi

CONTRATTI DI APPALTI PUBBLICI, NOVITÀ NORMATIVE

Legge 21 giugno 2022 n.78 (GU 146 del 24 giugno 2022) recante Delega al Governo in materia di contratti pubblici

Legge di bilancio 2023 (legge 29 dicembre 2022 n.197)

L’art. 1 comma 458 della legge di bilancio 2023 modifica ed integra l’art. 26 del D.L. 17 maggio 2022, n. 50 (c.d. Decreto Aiuti), recante disposizioni per fronteggiare gli aumenti eccezionali dei prezzi dei materiali da costruzione negli appalti pubblici; in particolare: █ (art.26 comma 5-ter del D.L.50/2022) relativamente agli interventi di cui alla lett. b), dell’art. 26, comma 4, del D.L. 50/2022 (trattasi di interventi diversi da quelli finanziati con le risorse del PNRR e PNC), per l’accesso al Fondo per l’adeguamento dei prezzi, limitatamente agli stati di avanzamento (SAL) concernenti le lavorazioni eseguite o contabilizzate dal direttore dei lavori ovvero annotate, sotto la responsabilità dello stesso, nel libretto delle misure dal 1 agosto 2022 al 31 dicembre 2022, le stazioni appaltanti trasmettono, entro il 31 gennaio 2023, in luogo della copia del SAL, il prospetto di calcolo del maggiore importo del SAL rispetto all’importo del SAL determinato alle condizioni contrattuali, firmato dal direttore dei lavori e vistato dal responsabile unico del procedimento;

█ (art. 26, comma 6-bis, del D.L. 50/2022) in relazione agli appalti pubblici di lavori - compresi quelli affidati agli accordi quadro - aggiudicati sulla base di offerte, con termine finale di presentazione entro il 31 dicembre 2021, lo stato di avanzamento dei lavori afferente alle lavorazioni eseguite o contabilizzate dal direttore dei lavori ovvero annotate, sotto la responsabilità dello stesso, nel libretto delle misure dal 1 gennaio 2023 al 31 dicembre 2023 è adottato (anche in deroga alle specifiche clausole contrattuali e a quanto previsto dall’articolo 216, comma 27-ter, del D. Lgs..50/2016) applicando i prezzari regionali aggiornati annualmente. I maggiori importi derivanti dall’applicazione dei prezzari, al netto dei ribassi formulati in sede di offerta, sono riconosciuti dalla stazione appaltante nella misura del 90% nei limiti delle risorse disponibili. Il relativo certificato di pagamento è

emesso contestualmente e comunque entro 5 giorni dall’adozione dello stato di avanzamento;

█ (art. 26, comma 6-ter, del D.L. 50/2022) le disposizioni di cui all’art. 26, comma 6-bis del D.L. 50/2022, si applicano anche agli appalti pubblici di lavori, aggiudicati sulla base di offerte con termine finale di presentazione compreso tra il 1 gennaio 2022 e il 31 dicembre 2022 (e che non abbiano accesso al Fondo per l’avvio di opere indifferibili) relativamente alle lavorazioni eseguite o contabilizzate dal direttore dei lavori ovvero annotate, sotto la responsabilità dello stesso, nel libretto delle misure, dal 1/01/2023 al 31/12/2023. Per i citati appalti e accordi quadro, la soglia di cui al comma 6-bis, secondo periodo, è rideterminata nella misura dell’80%;

█ (art.26 comma 6-quinquies del D.L.n.50/2022) nelle more dell’aggiornamento dei prezzari di cui al comma 6-bis, le stazioni appaltanti utilizzano l’ultimo prezzario adottato, ivi compreso quello infrannuale di cui al comma 2 dell’art. 26, del D.L. 50/2022. All’eventuale conguaglio, in aumento o in diminuzione, si provvede in occasione del pagamento degli stati di avanzamento dei lavori afferenti alle lavorazioni eseguite o contabilizzate dal direttore dei lavori ovvero annotate, sotto la responsabilità dello stesso, nel libretto delle misure a seguito dell’aggiornamento del prezzario.

Decreto Ministero delle Infrastrutture e dei Trasporti (MIT) 1 febbraio 2023 n.16.

Il Decreto individua le modalità operative e le condizioni di accesso al Fondo per la prosecuzione delle opere pubbliche, previste dall’articolo 26, comma 6-quater, del decreto-legge n. 50/2022 (c.d. DL Aiuti) – modificato dal comma 458 della legge 197/2022 (legge di bilancio 2023).

Le disposizioni relative al Fondo si applicano a quanto previsto dall’articolo 26, commi 6-bis, 6- ter e 12 del D.L. n. 50/2022 e in particolare:

56 NORMATIVA COMMENTATA aprile 2023
di Antonella Crugliano, Sara Capizzi, Arianna Laurenti Ufficio Legale e Appalti Dipartimento Tecnico Patrimoniale AUSL di Bologna

agli appalti pubblici di lavori, nonché agli accordi quadro di cui all’articolo 54 del Codice dei Contratti Pubblici, aggiudicati sulla base di offerte, con termine finale di presentazione entro il 31 dicembre 2021, relativamente agli stati di avanzamento concernenti le lavorazioni eseguite o contabilizzate dal direttore dei lavori ovvero annotate, sotto la responsabilità dello stesso, nel libretto delle misure dal 1° gennaio 2023 al 31 dicembre 2023; agli appalti pubblici di lavori, relativi anche ad accordi quadro di cui all’articolo 54 del Codice dei Contratti Pubblici, aggiudicati sulla base di offerte con termine finale di presentazione compreso tra il 1° gennaio 2022 e il 31 dicembre 2022 che non abbiano accesso al Fondo di cui all’articolo 26, comma 7 del decreto-legge n. 50 del 2022, con riferimento alle lavorazioni eseguite o contabilizzate ovvero annotate dal direttore dei lavori, sotto la responsabilità dello stesso, nel libretto delle misure, dal 1° gennaio 2023 al 31 dicembre 2023.

Le risorse di riferimento sono quelle del Fondo di cui all’art. 7, comma 1, del D.L. n. 76/2020, convertito, con modificazioni, dalla legge n. 120/2020.

Le Stazioni appaltanti dovranno inviare le richieste di accesso al Fondo tramite la piattaforma dedicata gestita dal Ministero delle infrastrutture e dei trasporti, specificando nell’istanza:

i dati del contratto d’appalto (CUP e CIG);

il prospetto di calcolo del maggior importo dello stato di avanzamento dei lavori rispetto all’importo dello stato di avanzamento dei lavori determinato alle condizioni contrattuali, firmato dal direttore dei lavori e vistato dal responsabile unico del procedimento;

l’entità delle lavorazioni effettuate, con l’indicazione del relativo stato di esecuzione, contabilizzazione o annotazione nel libretto delle misure;

l’entità delle risorse finanziarie disponibili, ai sensi dell’articolo 26, commi 6-bis, quarto periodo del D.L. n. 50/2022,, e utilizzate ai fini del pagamento dello stato di avanzamento dei lavori in relazione al quale è formulata l’istanza di accesso al Fondo;

l’entità del contributo richiesto;

gli estremi del conto di tesoreria o, solo nei casi in cui la stazione appaltante non ne sia provvisto, del conto corrente ordinario, per l’effettuazione del versamento del contributo riconosciuto a valere sulle risorse del Fondo.

Le domande potranno essere presentate nell’arco di quattro finestre temporali:

█ 1° aprile - 30 aprile 2023

█ 1° luglio - 31 luglio 2023

█ 1° ottobre - 31 ottobre 2023

█ 1° gennaio 2024 - 31 gennaio 2024

Per ciascuna finestra temporale, il Ministero esaminerà le domande ricevute nell’arco del mese successivo, comunicando tramite decreto

direttoriale l’accesso ai fondi in maniera cumulativa e secondo l’ordine di presentazione delle domande.

PRINCIPI E MASSIME GIURISPRUDENZIALI

Rinegoziazione prima della stipula del contratto

Tar Piemonte, sezione II, sentenza n. 180/2022

Il caso di specie riguarda il diniego opposto da una stazione appaltante ad una richiesta di adeguamento del corrispettivo d’appalto, formulata da un operatore sulla base del principio di buona fede ex art. 1375 cc.

In particolare, detta istanza, riferita ad una gara aggiudicata a distanza di quasi cinque mesi dal termine di presentazione delle offerte, si era resa necessaria per via dell’intervenuto aumento dei costi dei materiali.

La stazione appaltante nega la rinegoziazione dell’offerta, invocando la possibilità di ricorrere, in futuro, alla revisione dei prezzi in fase di esecuzione ex art. 26 del D.L. n. 50/2022 (c.d. Decreto Aiuti).

Tuttavia, il TAR ritiene inapplicabile detto disposto al caso di specie e fondata la richiesta da parte dell’operatore economico di aggiornamento dei prezzi (dovuta ai noti aumenti verificatisi nel 2022); sulla base di dette considerazioni la stazione appaltante avrebbe dovuto svolgere almeno “un approfondimento istruttorio sulla tenuta dell’equilibrio delle condizioni contrattuali, fermi i ribassi presentati in gara”.

La giurisprudenza, tra l’altro, nel sottolineare l’importanza dei criteri di efficacia ed economicità in materia di appalti pubblici, ammette la rinegoziazione delle condizioni contrattuali sia in corso d’esecuzione sia prima della stipula del contratto (cfr. Cons. Stato, Sez. V, n. 2709 dell’11 aprile 2022; TAR Sardegna, Cagliari, n. 770 del 16.

Da qui la necessità dell’amministrazione di giungere alla stipula di un contratto in condizioni di equilibrio, prendendo in considerazione le sopravvenienze segnalate dagli operatori economici. Secondo il TAR occorre valutare il contesto storico-economico, il tempo intercorso tra la formulazione/presentazione dell’offerta e l’avvio delle prestazioni contrattuali, il carattere imprevedibile delle sopravvenienze.

Ogni ipotesi di rinegoziazione incontra però un limite invalicabile nei principi di parità di trattamento e trasparenza, che impediscono la “negoziazione di modifiche che non mirino al recupero dell’equilibrio iniziale del contratto cha la gara stessa perseguiva, ma che si presentino in grado di estendere in modo considerevole l’oggetto dell’appalto ad elementi non previsti, alterare l’equilibrio economico contrattuale originario in favore dell’aggiudicatario, rimettere in discussione l’aggiudicazione dell’appalto”.

57 NORMATIVA COMMENTATA aprile 2023

La settima edizione di quest’Opera, riveduta e aggiornata, raccoglie in un unico, agile strumento di lavoro tutte le norme cardine che sovraintendono al governo del territorio.

Tra i provvedimenti recepiti, scelti fra quelli che rivestono maggiore interesse per il lettore, segnaliamo:

– il DL 31 maggio 2021, n. 77, convertito, con modificazioni, dalla Legge 29 luglio 2021, n. 108, Governance del Piano nazionale di ripresa e resilienza e prime misure di rafforzamento delle strutture amministrative e di accelerazione e snellimento delle procedure, recante numerose e significative modifiche al Testo Unico dell’Edilizia; – il DLgs 8 novembre 2021, n. 207, che modifica, fra l’altro, le norme sul certificato di agibilità e introduce le regole per l’infrastrutturazione digitale degli edifici; – la Legge 9 marzo 2022, n. 22, Disposizioni in materia di reati contro il patrimonio culturale, recante modifica al Codice dei Beni Culturali e del Paesaggio.

L’insieme dei provvedimenti approvati recentemente conferma l’obiettivo del Legislatore di rilanciare gli investimenti pubblici e di promuovere l’accelerazione degli interventi di rigenerazione urbana e di ricostruzione del territorio nazionale.

Un esaustivo indice analitico-alfabetico rende questo volume un supporto indispensabile per i Tecnici, i Progettisti e i RUP della Pubblica Amministrazione che necessitano di strumenti sempre aggiornati e coordinati con le ultime norme che disciplinano questa complessa materia.

www.build.it Nuova Edizione

Le schede di architettura

Uno strumento di consultazione pensato per progettisti e health planner: la pubblicazione dei disegni di progetto in grande formato assicura la completa leggibilità e comprensione degli schemi grafici a corredo delle realizzazioni presentate nella rivista

Il Centro Nazionale di innovazione per dispositivi medici ad alte prestazioni di Guangzhou pag.10

59 APPROFONDIMENTO aprile 2023

Centro Nazionale di innovazione di Guangzhou

60 APPROFONDIMENTO aprile 2023
Piano terra dell’edificio, dedicato alle funzioni pubbliche. ©HENN, su gentile concessione di HENN Architecture.

Centro Nazionale di innovazione di Guangzhou

61 APPROFONDIMENTO aprile 2023
Piano terzo dell’edificio. ©HENN, su gentile concessione di HENN Architecture.

Perché associarsi al C.N.E.T.O.

Il CNETO è un’associazione culturale che riunisce architetti e ingegneri interessati ai problemi dell’edilizia e della tecnica ospedaliera, tecnici, igienisti, amministratori ed economi di direzioni ospedaliere. Il CNETO ha come obiettivo primario la promozione dell’informazione e della conoscenza nello specifico settore della sanità, settore in continua e rapida evoluzione, che richiede il costante aggiornamento di tutti gli operatori. È proprio con questa finalità che l’Associazione organizza convegni nazionali e internazionali, viaggi di studio presso le strutture all’avanguardia sia italiane che estere, attiva contatti ufficiali con le altre associazioni e le istituzioni più rappresentative, anche straniere. Il CNETO è stato fondato quale Associazione multidisciplinare proprio perché la progettazione ospedaliera e socio-sanitaria esige la sinergia tra le diverse figure professionali coinvolte nella valutazione e risoluzione di tutti gli aspetti che concorrono a definire il progetto. La presenza delle Aziende, in qualità di soci collettivi, permette di stabilire uno stretto legame anche con il mondo della produzione e del mercato, le cui tendenze in atto costituiscono un indispensabile strumento di cultura tecnica.

RICHIESTA DI ADESIONE

Presa visione dell’articolo 4 dello statuto del CNETO il/la sottoscritto/a

Nome e Cognome

chiede di essere iscritto al CNETO in qualità di componente ordinario collettivo sostenitore studente € 100,00 € 300,00 € 600,00 € 50,00

Professione

Attività o carica

Comunicazioni sull’attività svolta nel campo-ospedaliero

Residenza e indirizzo:

Via N.

Città

Tel

Centro Nazionale per l’Edilizia e la Tecnica Ospedaliera

Versamento con bonifico bancario intestato a CNETO sul C/C Banca Prossima S.P.A., Filiale di Milano IBAN IT51A0335901600100000129131 specificando nella causale: “Quota associativa anno ..., Cognome e Nome (o ragione sociale) associato”.

C.N.E.T.O.

Centro Nazionale per l’Edilizia e la Tecnica Ospedaliera www.cneto.it | e-mail: info@cneto.it

Per iscriversi e per informazioni C.N.E.T.O.
62 aprile 2023

NOTIZIE DAL CNETO

A conclusione delle votazioni del CNETO per il triennio 2022-2024, sono risultati eletti i seguenti consiglieri:

Presidente: Stefano Capolongo

Past President: Maurizio Mauri

Segretario Generale: Marco Gola

Vice Presidenti: Margherita Carabillò e Roberto Righini

Direttore Rivista Progettare per la Sanità: Margherita Carabillò

Tesoriere: Roberto Righini

• GIUNTA ESECUTIVA

Ark.Ing.81 S.r.l. Righini

Bragonzi Gilberto

Carabillò Margherita

Ingaglio Monica

Meoli Federica

Peretti Gabriella

• CONSIGLIO NAZIONALE

Pollo Riccardo

Ravegnani Morosini Roberto

Sibillassociati Sibilla

Taddia Andrea

Tognolo Chiara

Vitali Marco

In rappresentanza dei Soci ordinari

Azzini Susanna

Bettamio Valentina

Bragonzi Gilberto

Brambilla Andrea

Carabillò Margherita

Colombo Luigi

Dubini Nicoletta

Ferrante Tiziana

Gola Marco

Grifa Egisto

Ingaglio Monica

Ladini Lino

Manara Giuseppe

Mauri Maurizio

Meoli Federica

Oddi Baglioni Grifone

Pedrini Daniela

Peretti Gabriella

Pollo Riccardo

Ravegnani Morosini Roberto

Taddia Andrea

Tognolo Chiara

Torricelli Maria Chiara

Vitali Marco

Zingaretti Gabriele

In rappresentanza dei Soci collettivi

AIRNOVA

ARK.ING.81 S.r.l.

BININI PARTNERS S.r.l.

CAIREPRO - COOPERATIVA ARCHITETTI

E INGEGNERI PROGETTAZIONE

POLITECNICO DI MILANO - Dipartimento ABC

PROGER SpA

PROGETTO CMR

SAGICOFIM SpA

SIBILLASSOCIATI

TECNICAER ENGINEERING S.r.l.

ESTRATTO DALLO STATUTO

Art. 1 Denominazione

Il “C.N.E.T.O. - Centro Nazionale per l’Edilizia e la Tecnica Ospedaliera” è una Associazione culturale, apartitica e senza scopo di lucro, nata sotto gli auspici dell’ANIAI. L’Associazione è retta dal presente statuto la cui attuazione operativa è demandata, se necessario, ad appositi regolamenti operativi.

Art. 2 Sede

La sede legale del C.N.E.T.O. è stabilita in Roma. L’Associazione può aprire sedi operative periferiche.

Art.3 Scopo

L’Associazione ha come scopo, a beneficio della collettività: la promozione dello studio dei problemi organizzativi, gestionali e progettuali connessi con l’edilizia socio sanitaria;

di stabilire e mantenere contatti in campo nazionale e internazionale fra esperti italiani e stranieri e altre Associazioni che si interessano ai problemi attinenti allo scopo sociale;

di porre a disposizione e di favorire la diffusione delle conoscenze e del progresso delle arti dello specifico settore anche attraverso l’uso dei propri mezzi e strutture;

la promozione e/o la partecipazione al capitale sociale di società e/o associazioni che abbiano il fine statutario di approfondire, diffondere la cultura tecnico –architettonica, gestionale e organizzativa dell’edilizia socio-sanitaria, anche a scopi didattici ed editoriali

la qualificazione e il riconoscimento delle professionalità, svolgendo un ruolo di formazione e di informazione degli operatori

Per il raggiungimento dello scopo sociale il C.N.E.T.O. indice, promuove e organizza convegni, seminari, giornate di studio, viaggi, visite tecniche, pubblicazioni proprie o di terzi e diffonde la rivista organo ufficiale dell’associazione.

Art.4 – Ammissione e Soci

Sono ammessi a far parte del C.N.E.T.O. le persone fisiche e giuridiche che, condividendone gli scopi, ne faranno domanda scritta, o tramite il sito ufficiale, alla Giunta Esecutiva e la cui domanda sarà dalla stessa accettata. I soci C.N.E.T.O. si distinguono in ordinari, studenti, collettivi, sostenitori, onorari

Soci ordinari, le persone fisiche esperte nel campo oggetto dello scopo associativo che ne fanno richiesta e che corrispondono annualmente la quota sociale ordinaria

Soci studenti e neo laureati, gli iscritti a corsi di studio universitari attinenti le materie interessanti lo scopo sociale che ne fanno richiesta e che corrispondono una quota associativa pari al 50% della quota sociale ordinaria. La qualifica di studente decade dopo tre anni dal termine degli studi e comunque entro il 30° anno di età

Soci collettivi, le persone giuridiche, gli Enti pubblici e privati, le Associazioni scientifiche e tecniche che ne fanno richiesta e che operano nel campo oggetto dello scopo associativo e che corrispondono la quota sociale collettiva pari a tre volte l’ordinaria; hanno diritto a tre voti.

Soci sostenitori, i soggetti individuati alle lettere precedenti che si impegnano a corrispondere, per almeno cinque anni, una quota sociale annua pari a due volte la quota collettiva; hanno diritto a tre voti

Soci onorari, le personalità che per merito scientifico o professionale o per aver acquisito particolari meriti verso l’associazione vengono nominati tali. La loro nomina è proposta dalla Giunta Esecutiva, approvata dal Consiglio Nazionale e ratificata dall’Assemblea dei soci; i Soci Onorari non pagano la quota associativa e non hanno diritto di voto

Art. 5 Organi del C.N.E.T.O.

Sono: l’Assemblea dei Soci, Il Consiglio Nazionale, Il Presidente, La Giunta esecutiva, Il Collegio dei revisori

63 aprile 2023
71
2020
2023
ottobre
febbraio

Organizzazione,tecnologia,architettura

Organo ufficiale del C.N.E.T.O Centro Nazionale per l’Edilizia e la Tecnica ospedaliera

L’INFORMAZIONE AUTOREVOLE NEL MONDO

DELLA PROGETTAZIONE PER LA SANITÀ

NON PERDERE QUESTA OCCASIONE

COMPILA LA CARTOLINA QUI SOTTO O VAI SUL SITO WWW.QUINE.IT

E ATTIVA SUBITO IL TUO ABBONAMENTO A SOLI

abbonamento annuale

• MANAGEMENT

E ORGANIZZAZIONE

• SICUREZZA E IGIEN

• INFORMATION TECHNOLOGY

• AGGIORNAMENTO LEGISLATIVO

• SCENARI INTERNAZIONALI

• TECNOLOGIE

E NOVITÀ DALL’INDUSTRIA

PROGETTAZIONEORGANIZZAZIONE TECNOLOGIARISK MANAGEMENT

Abbonati su www.quine.it o compila questo coupon e invialo via email: abbonamenti@quine.it

Nome e Cognome

Azienda

Indirizzo

Cap Città

Telefono

E-mail

PEC (per fatturazione elettronica)

Codice fiscale (obbligatorio)

Partita IVA

Codice destinatario (per fatturazione elettronica)

Desidero sottoscrivere il seguente abbonamento:

Abbonamento annuale Italia (6 numeri) a € 40,00.

Abbonamento annuale Europa (6 numeri) a € 60,00

PAGAMENTO

Bonifico Bancario IBAN IT88U0521601631000000000855 (allego fotocopia)

Versamento su c/c postale N.60473477 intestato a Quine Srl - Via Spadolini, 7 - 20141 Milano (allego fotocopia)

Addebito su carta di credito

Visa Carta Sì Mastercard

n. scadenza/

CVC (CVC: ultime 3 cifre del numero che si trova sul retro, nello spazio della firma)

Firma

CONSENSO AL TRATTAMENTO DEI DATI

Ai sensi dell’art. 13 Regolamento Europeo per la Protezione dei Dati Personali 679/2016 (GDPR), il sottoscritto __________________________________________________________________________________ esprime il proprio espresso e specifico consenso a trattamento de dati ai fini di:

- Invio e-mail promozionali e/o comunicazioni di marketing, nonché effettuazione di ricerche di mercato, se autorizzato dal cliente, da parte di Quine Srl o di società da essa controllate, collegate o partecipate; Esprimo il mio consenso Nego il mio consenso

- Invio e-mail promozionali e/o comunicazioni di marketing, se autorizzate dal cliente per finalità di profilazione (come ad es. memorizzazione di abitudini di consumo) volte a migliorare le offerte nei confronti del cliente, da parte di Quine Srl o di società da essa controllate collegate o partecipate; Esprimo il mio consenso Nego il mio consenso

- Invio e-mail promozionali e/o comunicazioni di marketing, nonché effettuazione di ricerche di mercato, e di profilazione se autorizzato dal cliente, per conto di società terze (appartenenti alle categorie editoria, professionisti della salute, case farmaceutiche ecc), non facenti parte di Lswr Group Esprimo il mio consenso Nego il mio consenso

Esprimo il mio consenso al trattamento in base all’informativa di cui sopra Data

Firma
40 €
ABBONAMENTI
Editore: Quine - Edra LSWR Group, Srl Via Spadolini, 7 20141 Milano - Italia Tel +39 02 864105 Fax +39 02 88184301
20 CNETO CentroNazionale perl’Edilizia elaTecnicaOspedaliera 01
Il nuovo Ospedale di Cordova ottegorPorenEarutcetiuqrA ISSN: 17206642 Leazionidaintraprenderepergliospedalidelfuturo/Tradizionee innovazionenelnuovoospedalediCordova/Larivoluzionedigitale nelleaziendesanitarieesociosanitarie/PerchénondecollailFascicolo Sanitario Elettronico / I pazienti a etti da AMD nel progetto NEXTVISION /ProgettoAttiva-Mente:l’artecometerapia/Aspetti impiantisticinelbunkerdiradioterapia/Gestione delle cronicità nella ASL di Foggia / L’informatizzazione nelle Unità Farmaci Antiblastici/ Progettazioneantincendiodegliospedali:lavalutazione deimaterialidifinitura

Turn static files into dynamic content formats.

Create a flipbook
Issuu converts static files into: digital portfolios, online yearbooks, online catalogs, digital photo albums and more. Sign up and create your flipbook.