Progettare per la Sanità n. 1/23 Febbraio

Page 1

Organizzazione, tecnologia, architettura

Incontro, comunicazione, cooperazione: l’Amsterdam UMC Imaging Center / Edificazione e ristrutturazione architettonica delle strutture sanitarie territoriali / Case di Comunità a confronto con le Kaiser Permanente / Il Lean Thinking in gastroenterologia / Impianti VCCC per i laboratori di produzione farmaci antiblastici / L’efficienza energetica dei sistemi HVAC / Gli aspetti tecnologici nei progetti di ospedali / La trasformazione digitale delle strutture sanitarie / Le televisite nel percorso di cura dei pazienti HIV

CNETO Centro Nazionale per l’Edilizia e la Tecnica Ospedaliera
L’Amsterdam UMC Imaging Center 23 ISSN: 17206642 01

RAINPLUS

La soluzione al problema delle bombe d’acqua

Negli ultimi anni le precipitazioni sono caratterizzate da picchi di piovosità violenti e improvvisi sempre più frequenti.

Rainplus rappresenta la più efficiente tecnologia per il drenaggio delle acque piovane - in grado di gestire precipitazioni anche estreme - ed è perfetto per la copertura di edifici di grandi dimensioni, anche nel contesto della ristrutturazione.

Entra in contatto con un consulente tecnico Tel. 0365/877.397

www.valsir.it

Si parla di sfide future, ma il tempo stringe

difficile trovare riferimenti interessanti nel panorama internazionale sebbene con le peculiarità dei casi specifici.

Poter contare sull’osservazione dell’esperienza altrui al fine di apprendere, analizzare, valutare possibili cambiamenti, prima di sperimentare attivamente un processo o un progetto, ha per me un valore molto importante. Consente di non partire da zero, perché quel tempo impiegato da qualcuno prima di te per fare o imparare qualcosa, si traduce inevitabilmente in conoscenza accumulata che può essere utile a noi stessi e spesso anche alla collettività. Se pensiamo al ridisegno del nuovo modello di Sanità di prossimità accelerato dalle risorse messe a disposizione dal PNRR, non è

In un articolo che pubblichiamo in questo numero, parliamo per esempio dell’esperienza del Kaiser Permanente che ha creato il chronic care model e che rappresenta un esempio di grandissimo interesse per le politiche sulla de-ospedalizzazione e continuità territoriale. Anche la lunga tradizione inglese nell’ambito dei community hospitals costituisce senza dubbio un utile esempio di estensione efficace delle cure primarie e di risposta sanitaria e socio-assistenziale integrata per la popolazione locale di appartenenza. Un modello che si fonda, però, sul supporto fondamentale dei medici di base ma soprattutto della componente infermieristica a cui è sostanzialmente affidata la gestione di tali strutture.

Da più parti è stato sottolineato che per soddisfare le aspettative del PNRR servirà, tra l’altro, arruolare circa 30 mila nuovi infermieri e questo aspetto, in un momento di grave crisi del sistema a causa del blocco dei posti a disposizione e della perdita di attrattività delle professioni sanitarie pubbliche, appare

la minaccia più seria che rischia di compromettere la messa in funzione delle strutture che dovranno essere pronte entro il 2026. A questo proposito mi sembra sfidante pensare che entro tre anni dovremo realizzare 435 ospedali di comunità a fronte dei 500 community hospitals che gli inglesi hanno costruito e messo in funzione dal 1859 a oggi!

Oltre al reperimento del personale necessario è indispensabile mettere a fuoco quella formazione specialistica che fa dell’infermiere dei community hospital un professionista con competenze differenti rispetto a quello impiegato nell’ospedale generalista. In più, dobbiamo prendere coscienza che la comunicazione riveste un ruolo fondamentale sui cittadini e senza una condivisione di conoscenza, funzione e potenzialità dei nostri nuovi ospedali di comunità, difficilmente essi potranno diventare il riferimento continuativo sul territorio.

Il 12 e 13 febbraio, il convegno nazionale CNETO che si terrà a Camogli, costituirà un momento di riflessione e confronto su queste tematiche ancora in divenire.

Organo ufficiale del C.N.E.T.O.: Centro Nazionale per l’Edilizia e la Tecnica Ospedaliera

Direttore Responsabile

Giorgio Albonetti

Direttore Scientifico

Margherita Carabillò

Coordinamento Editoriale

Chiara Scelsi - c.scelsi@lswr.it

Redazione Fabio Chiavieri redazione@progettareperlasanita.it

Comitato scientifico

S. Brusaferro, S. Capolongo, M. Carabillò, Marco Gola, J. Guercini, K. Kob, Maurizio

Mauri, F. S. Mennini, C. Nicora, D. Pedrini, G.Polifrone

Comitato di redazione

Architettura: Design LAB, DABC Politecnico di Milano

Impiantistica: Francesco Ruggiero

Information Technoloy:

Fabrizio Massimo Ferrara

Innovazione digitale: Paolo Bertini

Organizzazione e management:

Federico Lega

Servizi e facility management:

Arturo Zenorini

Tecnologie per l’Architettura: Rosa Romano, Maria Chiara Torricelli

Hanno collaborato a questo numero: F. Alessi, L. Baldessin, P. Bertini, M. Bo, G. Bo, G. Ferraguzzi, G. d’Ettorre, M. Gola, F. M. Ferrara, A. Lazzaro, F. Lega, C. M. Mastroianni, F. Mazziotta, S. Monterisi, A. Morganti, E. Nelson Cavallari, S. Piccinelli, E. Pierini, G. E. Recchia, M. Ridolfi, R. Romano, C. Spinosa, M. C. Torricelli

Stampa & Produzione

Antonio Iovene - 3491811231 a.iovene@lswr.it

Pubblicità

Costantino Cialfi

c.cialfi@lswr.it Tel. 346 6705086

Archivio immagini Shutterstock

Traffico Ornella Foletti ornella.foletti@quine.it Tel. 3427968897

Abbonamenti www.quine.it

abbonamenti.quine@lswr.it - Tel. 02 864105

Costo copia singola: euro 2,50

abbonamento annuale Italia euro 40,00

abbonamento annuale Europa euro 60,00

Stampa

TIPOLITOGRAFIAPAGANI s.r.l. via Adua, 6 25050 - Passirano - (Brescia) - Italy)

©2023 Quine Business Publisher

Progettare per la sanità www.progettareperlasanita.it

Reg. Trib. Milano n. 767 del 09/11/1998

Iscrizione al ROC n. 12191 del 29.10.2005

Tutti gli articoli pubblicati su Progettare per la sanità sono redatti sotto la responsabilità degli Autori. La pubblicazione o la ristampa degli articoli deve essere autorizzata per iscritto dall’editore. Ai sensi dell’art. 13 del Regolamento Europeo per la Protezione dei Dati Personali 679/2016 di seguito GDPR, i dati di tutti lettori saranno trattati sia manualmente, sia con strumenti informatici e saranno utilizzati per l’invio di questa e di altre pubblicazioni e di materiale informativo e promozionale. Le modalità di trattamento saranno conformi a quanto previsto dagli art. 5-6-7 del GDPR. I dati potranno essere comunicati a soggetti con quali Quine Srl intrattiene rapporti contrattuali necessari per l’invio delle copie della rivista. Il titolare del trattamento dei dati è Quine Srl, Via Spadolini 7, 20141 Milano, al quale il lettore si potrà rivolgere per chiedere l’aggiornamento, l’integrazione, la cancellazione e ogni altra operazionedi cui agli art. 15-21 del GDPR.

Testata Associata

Margherita Carabillò L’Amsterdam UMC Imaging Center
2 EDITORIALE febbraio 2023

CONTROLLO INFEZIONI

ZeroCONTACT è un sistema di apertura automatizzato appliccabile alle serrande dei moduli ZeroFire e si aziona semplicemente con il passaggio del piede in corrispondenza della spia luminosa. Il sistema permette di evitare il contatto con la superficie garantendo assoluta sicurezza anche in ambienti di alta criticità.

La spia luminosa azzurra indica quando la serranda è completamente aperta o chiusa.
ZERO Contact Contact Automatic LIGHT www.favero.it LIGHT LONG LASTING INNOVATION
La spia rossa indica la mobilizzazione della serranda in apertura o chiusura.

Sommario

AMSTERDAM UMC IMAGING CENTER

Negli ultimi all’interno dell’University Medical Center di Amsterdam è stato realizzato un nuovo centro diagnostico. Questo edificio ospita una vasta gamma di tecnologie imaging di ultima generazione. Si tratta di uno dei pochi centri sanitari in cui la produzione, l’assistenza clinica, la ricerca preclinica e clinica e i progetti congiunti tra accademici e settore privato sono stati riuniti sotto lo stesso tetto di Marco Gola, Alessandro Morganti

IL METAPROGETTO DELLA CASA DI COMUNITÀ

Dalle Case e dagli Ospedali di Comunità alle Centrali Operative Territoriali: ecco le linee di indirizzo per progettare le strutture assistenziali previste dal PNRR. Sull’argomento abbiamo intervistato Stefano Capolongo, responsabile scientifico del gruppo di lavoro del Politecnico di Milano che si è occupato di questo progetto di Arturo Zenorini

GLI ASPETTI TECNOLOGICI DELL’ARCHITETTURA OSPEDALIERA

Tecnologie dell’Architettura è la nuova sezione della nostra rivista Progettare per la Sanità dedicata a tutte le tematiche che coinvolgono gli aspetti tecnologici fondamentali nei progetti di ospedali e di luoghi di cura in genere

di Rosa Romano, Maria Chiara Torricelli

LA RIVOLUZIONE DIGITALE NELL’EDILIZIA OSPEDALIERA

Fedele al proprio ruolo di strumento fondamentale per la diffusione e la comunicazione di tutto quanto è innovazione nel mondo dell’architettura ospedaliera, Progettare per la Sanità lancia una nuova sezione dedicata alla trasformazione digitale che coinvolge la progettazione delle strutture sanitarie di Paolo Bertini

LA SFIDA DEL “TERRITORIO”:

COSA INSEGNANO 75 ANNI DI KAISER PERMANENTE?

Le Case di Comunità italiane discusse e messe a confronto con le strutture di Kaiser Permanente per individuare possibili spunti utili al SSN italiano di Gaia Ferraguzzi, Federico Lega, Sara Piccinelli, Elisabetta Pierini, Francesco Mazziotta

8
16
26
22
24 4 SOMMARIO febbraio 2023

IL LEAN THINKING: DAI PRINCIPI

ALLA SUA APPLICAZIONE IN AMBITO SANITARIO

L’efficientamento del sistema gestionale e organizzativo tramite approccio Lean dei reparti di grastroenterologia dell’ASST

Fatebenefratelli Sacco di Milano di Ludovico Baldessin, Simona Monterisi, Claudia Spinosa

L’EFFICIENZA ENERGETICA

NEL SISTEMA DI GENERAZIONE

DEL FREDDO PER I GRANDI OSPEDALI

La tecnologia a levitazione magnetica impiegata nelle macchine a compressione di vapore porta a numerosi vantaggi per impianti e applicazioni dove la generazione del freddo è richiesta h24 ogni giorno dell’anno, come accade negli edifici ospedalieri di Michela Motta

IMPIANTI

VCCC PER I LABORATORI DI PRODUZIONE FARMACI ANTIBLASTICI

Vediamo quali sono i criteri di progettazione degli impianti di Ventilazione e Condizionamento a Contaminazione Controllata per le Unità Farmaci Antiblastici di Matteo Bo, Giorgio Bo

LA TELEMEDICINA NELLA CURA

DEI PAZIENTI AFFETTI DA HIV

Il percorso di cura dell’HIV richiede frequenti controlli e follow-up; inoltre, per motivi di privacy, molti pazienti preferiscono farsi seguire da Centri in comuni diversi dalla loro residenza. L’utilizzo di strumenti di telemedicina può sensibilmente ridurre i disagi di Gabriella d’Ettorre, Eugenio Nelson Cavallari, Fabrizio Massimo Ferrara, Gregorio Egidio Recchia, Marco Ridolfi, Federica Alessi, Alessandro Lazzaro, Claudio Maria Mastroianni

Favero Health Project pag. 3

www.favero.it

IMI Hydronic pag. 54

www.imi-hydronic.com

Mapei pag. 14

www.mapei.it

30
42 48 Le aziende presenti in questo numero News 6 Normativa commentata 56 RUBRICHE Rosiglioni IV cop. www.rosiglioni.it Valsir pag. 1 www.valsir.it Wetech II cop. www.wetechsystem.it 5 SOMMARIO febbraio 2023
36

NUOVI PORTONI TAGLIAFUOCO SCORREVOLI

Il Gruppo Hörmann è uno dei più importanti player anche nello specifico comparto delle chiusure antincendio, prodotte dall’azienda, per l’Europa, all’interno di cinque stabilimenti, di cui quattro situati in Germania e uno in Austria. Risultato dell’importante know how acquisito dalla società in questo segmento, sono i nuovi portoni scorrevoli tagliafuoco OD, ideali per tutte le aree – commerciali, industriali, agricole, hospitality o pubbliche – in cui si voglia proteggere persone, spazi e oggetti non solo dal fuoco ma anche dalla diffusione di gas potenzialmente letali, in caso di incendio.

Realizzati in acciaio e in acciaio inox, questi modelli sono presentati a uno e due battenti, nonché in esecuzione telescopica. Proposti in versione antincendio ignifuga (El 2 30) come anche incombustibile (El 2 60, El 2 90 e El 2 120), i nuovi portoni dispongono del marchio CE e soddisfano pienamente le normative EN 16034 ed EN 13241, valide a livello europeo.

Idonee per rispondere ad ogni necessità, le chiusure OD sono disponibili, a richiesta, nell’esecuzione tagliafumo (S 200) o a chiusura ermetica (S a) e possono essere dotate di portina pedonale inserita, con o senza soglia (solitamente equipaggiata con chiudiporta aereo su guide di scorrimento), per facilitare il passaggio pedonale e il transito con carrelli di trasporto.

Dal funzionamento estremamente silenzioso grazie alla presenza di mirati cuscinetti a sfera, questi modelli presentano la rotella portante cilindrica e il solido rullo di scorrimento abbinati alla canalina di scorrimento brevettata; tutti insieme, tali elementi garantiscono un’ottimale compensazione della forza.

Dotati di motorizzazioni SupraMatic HT o ITO 400 Hörmann, in grado di assicurare una movimentazione rapida e sicura, i portoni OD possono essere muniti, per uno scorrimento ancor più dolce e silenzioso, di automazioni SupraMatic HT e ITO 400 FU con SoftStart e Soft-Stop di serie. Azionabili con telecomando, pulsantiera o selettore a chiave, le automazioni vengono sbloccate, grazie a un meccanismo brevettato, in caso di incendio.

Progettualmente avanzate, queste chiusure sono proposte in numerose varianti architettoniche, tra cui quelle che prevedono lo scorrimento del portone in nicchie dotate di portelli a scomparsa e meccanismi occultati di apertura, un unicum ad oggi sul mercato. Pur trattandosi di soluzioni destinate per lo più ad ambienti industriali e commerciali, i portoni OD sono curati in ogni più piccolo particolare anche dal punto di vista estetico. Ne è un esempio la scanalatura a V brevettata sulla giunzione dell’elemento, senza collegamenti a vite visibili, peculiarità in grado di conferire alla chiusura un impatto visivo d’assoluto effetto. Anche gli elementi sottili da 72 mm, incollati a filo su tutta la superficie e allineati tra loro mediante aste filettate, contribuiscono a un risultato estetico d’assoluta eccezione.

Presentati nelle due superfici standard Pearl Grain e lamiera d’acciaio liscia, oltre che in quella opzionale acciaio inox V2 A, 1.4301, questi modelli sono disponibili con fondo grigio-bianco RAL 9002, oppure in sette colori preferenziali e, a richiesta, in vari RAL a scelta, colori metallizzati, colori NCS e verniciatura a polvere esclusiva in acciaio Corten.

Molto stabili grazie al profilato ad innesto con labirinto dentellato, i portoni OD spiccano infine per facilità d’installazione e attenzione alla salvaguardia ambientale, non solo perché sono il risultato di un ciclo di produzione impostato su severi criteri ecologici, ma anche per la tipologia di imballi utilizzati, che sono ottimizzati per offrire la necessaria protezione col minimo impegno di materiali.

Per informazioni: www.hormann.it

febbraio 2023 6 NEWS
█ I nuovi portoni scorrevoli tagliafuoco OD Hormann

LA SANITÀ DEL FUTURO AL CONVEGNO CNETO 2023

Si terrà ancora una volta nella splendida cornice di Camogli, all’Hotel Cenobio dei Dogi, il Convegno Nazionale CNETO 2023 che avrà come titolo “Le sfide future della sanità 4.0. Le nuove Case e Ospedali di Comunità e i sistemi integrati per la salute”. I temi, di grande attualità, verranno affrontati con 4 sessioni, spalmate su due giorni di lavori dal 12 al 13 febbraio. In particolare, durante la prima giornata, dopo i saluti istituzionali e la Lectio Magistralis di Alfonso Femia, verrà affrontato il tema “Case e Ospedali di Comunità: dal DM 77 al metaprogetto” e, a seguire, verranno analizzate le “Funzioni e servizi delle Case e degli Ospedali di Comunità”.

Nella seconda giornata, in mattinata, si svolgerà la sessione dal titolo “Applicazione delle Case e degli Ospedali di Continuità” a cui farà seguito nel pomeriggio lo studio sulle “Azioni intraprese e da intraprendere e Attività di monitoraggio”.

L’evento è promosso dal CNETO (Centro Nazionale Edilizia e Tecnica Ospedaliera) con il patrocinio di OA.GE (Ordine degli Architetti, Pianificatori, Paesaggisti e Conservatori di Genova).

Per ulteriori informazioni: https://www.cneto.it/convegni-e-workshop

Programma preliminare

DOMENICA, 12 FEBBRAIO

13.30 Registrazione

14.00 Saluti istituzionali

- Istituto Superiore di Sanità‚ Silvio Brusaferro

- AGENAS‚ Domenico Mantoan

- Ordine degli Architetti di Genova‚ Riccardo Miselli

- Ordine degli Ingegneri di Genova‚ Enrico Sterpi

- Sltl Liguria‚ Virna Frumento

- AiCAAR‚ Matteo Bo

- ANMDO‚ Karl Kob

- SIAIS‚ Daniela Pedrini

14.30 Lectio Magistralis a cura di Alfonso Femia

Alfonso Femia – Atelier(s) Alfonso Femia srl

SESSIONE

Case e Ospedali di Comunità: dal DM 77 al metaprogetto

Moderazione di: Maurizio Mauri – CNETO e Francesco Godio – Giovani CNETO

15.15 Case e Ospedali di Comunità: il DM 77

Domenico Mantoan – AGENAS

15.45 Metaprogetto delle CdC e OdC

LUNEDÌ, 13 FEBBRAIO

09.00 Inizio dei lavori

SESSIONE

Applicazione delle Case e Ospedali di Comunità

Moderazione di: Maria Chiara Torricelli – Università degli Studi di Firenze e Laura Sacchetti – Università degli Studi di Ferrara

09.00 Esperienza UK degli Ospedali di Comunità

Helen Tucker – Community Hospitals Association

09.30 Le Case di Comunità: esperienze internazionali

Tiziana Ferrante – Università “Sapienza” di Roma

09.55 Esperienza di ATS Milano: Manuale di supporto alle ASST Lombarde

Walter Bergamaschi – ATS Milano

10.20 Missione 6 e le altre Missioni correlate al progetto delle Case e Ospedali di Comunità (M1, M2, M5)

Alessandro Izzi – Izzi Associati Architettura

10.45 Question time

11.00 Coffee break

SESSIONE

CONVEGNO NAZIONALE 2023

Le future sfide della Sanità 4.0. Le nuove Case e Ospedali di Comunità e i sistemi integrati per la salute

PRESIDENTE: Stefano Capolongo

CAMOGLI (GE), 12-13 febbraio 2023

Stefano Capolongo‚ Maddalena Buffoli e Marco Gola – Politecnico di Milano

16.15 Question time

16.30 Coffee break

SESSIONE Funzioni e servizi delle Case e degli Ospedali di Comunità

Moderazione di: Margherita Carabillò – Progettare per la Sanità e Eletta Naldi - Università degli Studi di Firenze

17.00 Un documento del CNETO per la CdC e l’OdC

Maria Chiara Torricelli – Università degli Studi di Firenze e Gabriella Peretti - Politecnico di Torino

17.20 Il ruolo del Direttore Sanitario nella progettualità dei luoghi di cura

Karl Kob – ANMDO

17.40 Digitalizzazione delle Case e Ospedali di Comunità

Francesco Pensafinii‚ SIAIS

18.00 Sistemi impiantistici delle nuove Case e Ospedali di Comunità

Matteo Bo‚ AiCAAR

18.15 Question time

18.30 Chiusura dei lavori della giornata

20.30 Cena sociale

Azioni intraprese e da intraprendere e Attività di monitoraggio Moderazione di: Gabriella Peretti – Politecnico di Torino e Silvia Mangili – Politecnico di Milano

11.45 Stato attuale dell’applicazione delle CdC e OdC a livello italiano: azioni intraprese e da intraprendere

Alice Borghini – AGENAS [invitata]

12.15 Strategie di monitoraggio

Virma Frumento - Sltl Liguria

12.45 Question time

13.00 Conclusioni

Alessandro Bonsignore – Presidente dell’Ordine dei Medici di Genova

Stefano Capolongo – Presidente CNETO

Margherita Carabillò – Vice-Presidente CNETO

Daniela Pedrini - SIAIS

Roberto Righini– Vice-Presidente CNETO

13.30 Chiusura dei lavori

febbraio 2023 7 NEWS

Amsterdam UMC Imaging Center

Negli ultimi anni all’interno dell’University Medical Center di Amsterdam è stato realizzato un nuovo centro diagnostico. Questo edificio ospita una vasta gamma di tecnologie di imaging di ultima generazione. Si tratta di uno dei pochi centri sanitari in cui la produzione, l’assistenza clinica, la ricerca preclinica e clinica e i progetti congiunti tra accademici e settore privato sono stati riuniti sotto stesso tetto

di Marco Gola, Alessandro Morganti 8 ARCHITETTURA febbraio
2023

█ Amsterdam UMC Imaging Center.

█ Copyright William Moore

DATI TECNICI

Progettisti Wiegerinck Architects in collaborazione con AT Osborne, Ptg advies, DDock, Royal HaskoningDHV, IBS, Olivier + Partners, Peutz e Studio Hartzema

Committente

Amsterdam UMC

Localizzazione

Amsterdam, Paesi Bassi

Anno di progettazione

2010-2011

Anni di realizzazione

2015-2019

Anno di inaugurazione

fine 2019

Area del sito 2.500 mq

Superficie lorda

18.000 mq circa

Costo

46 milioni di euro circa Certificazione di sostenibi

BREAAM-NL

9 ARCHITETTURA febbraio 2023

UN NUOVO POLO DI INNOVAZIONE TECNOLOGICA

L’University Medical Center di Amsterdam è un centro medico di rilievo internazionale che unisce cure complesse di alta qualità per i pazienti, ricerca scientifica innovativa e formazione per gli operatori sanitari di nuova generazione. L’ospedale è nato dalla fusione di due ospedali universitari della capitale olandese: l’Academic Medical Center (AMC) e il Vrije Universiteit University Medical Center (VUmc), e attivamente collabora con le facoltà di medicina delle rispettive università.

L’UMC di Amsterdam conta più di 15.000 professionisti, cura oltre 350.000 pazienti all’anno e ospita otto istituti di ricerca con gruppi di ricerca e dipartimenti che lavorano su vari aspetti dello stesso tema di ricerca‚ quali: il Centro oncologico; Scienze cardiovascolari; Gastroenterologia, Endocrinologia e Metabolismo; Istituto per le infezioni e l’immunità; Scienze motorie; Neuroscienze; Sanità pubblica; Riproduzione e sviluppo umano. In generale il polo ospedaliero copre l’intero spettro dei temi della ricerca sanitaria e biomedica‚ adottando un approccio multidisciplinare e

intersettoriale volto al miglioramento della qualità e della rilevanza sociale della ricerca.

Negli ultimi anni l’ospedale si è ampliato con la realizzazione dell’Amsterdam UMC Imaging Center. Infatti nel 2010 VUmc ha bandito un concorso di progettazione, vinto da Wiegerinck Architects in collaborazione con D/DOCK. Nel bando i progettisti erano stati invitati a formulare la loro visione di un edificio con l’obiettivo di unificare tutte le attività associate alle tecniche di imaging med cale, laboratori per la ricerca scientifica e un’area dedicata alla produzione di radiofarmaci. Le parole chiave per il progetto dell’Amsterdam UMC Imaging Center proposte dai Wiegerinck Architects sono state “Incontro”, “Comunicazione” e “Cooperazione”.

Si tratta di una struttura in cui confluiscono tutte le tecniche di imaging (Radiologia e Medicina Nucleare, Ciclotrone BV e il Laser Lab) utilizzate per scopi medici. Si tratta di un progetto unico in quanto solo poche università al mondo hanno a disposizione una gamma di tecnologie all’avanguardia del genere che‚ secondo il New England Journal of Medicine‚ sanno “cambiare il volto della medicina clinica”.

Questo centro è diventato il fiore all’occhiello del cluster nazionale di salute e scienze della vita. Infatti offre una vasta offerta di tecniche di imaging all’avanguardia che consente di ridurre le liste di attesa, la diagnosi precoce e la definizione delle adeguate tecniche di trattamento.

In aggiunta, grazie alla presenza di tecnologie di ultima generazione, il personale sanitario addetto è in grado di esaminare più dettagliatamente le strutture anatomiche e i processi fisiologici, metabolici e molecolari del corpo umano, consentendo loro di selezionare il trattamento più adeguato per il paziente.

Inoltre, il centro ospita laboratori attrezzati con tecnologie Nikon tali da accelerare la ricerca medica e farmaceutica e ridurre i costi di sviluppo di nuovi farmaci e trattamenti, nonché ha spazi dedicati per la produzione di radiofarmaci con la disponibilità di isotopi medici.

Come segnala la direzione strategica della struttura sanitaria: “solo attraverso la collaborazione e condivisione delle conoscenze nell’era dell’imaging multimodale e dell’innovazione aperta, l’University Medical Center Amsterdam saprà dare origine ad un cluster life-tech ad alta intensità di conoscenza e relativo all’imaging. E non si esclude che in futuro questo edificio possa ospitare anche sale operatorie ibride”.

LA RELAZIONE CON IL CONTESTO

L’Amsterdam UMC Imaging Center si localizza nel Zuidas Business District‚ a sud di Amsterdam‚ facilmente raggiungibile con i mezzi pubblici.

10 ARCHITETTURA febbraio 2023
Masterplan dell’University Medical Center di Amsterdam

L’Imaging Center è il primo edificio di una serie di nuovi volumi che presto saranno realizzati nel lotto. In particolare, questo nuovo polo è costruito sul grande orto botanico esistente e insieme ai nuovi edifici, questo spazio si trasformerà in un cortile-giardino ad uso dei pazienti, degli operatori sanitari, dei ricercatori e degli altri visitatori.

Gli edifici interessati saranno tutti collegati tra loro e con l’ospedale in una disposizione coerente attraverso una passerella ad anello‚ organizzata su tre livelli‚ che ai due piani fuori terra permette la distruzione di utenti e personale sanitario‚ mentre in quello interrato un percorso logistico.

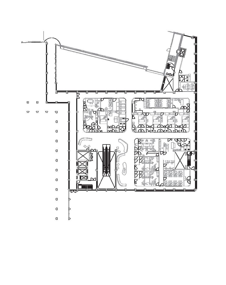
L’ORGANISMO ARCHITETTONICO

I progettisti hanno dato origine a una piattaforma interattiva per un gruppo di utenti molto diversificato. Come segnala Tom Vlemingh‚ “la complessità di questo progetto risiedeva nel modo in cui

l’edificio viene utilizzato e nel volume compatto”. Pertanto, l’intero processo ha richiesto molte ricerche, riflessioni‚ simulazioni. Un edificio complesso come questo può essere paragonato a un organismo vivente, in cui i diversi elementi svolgono tutti una funzione specifica e lavorano insieme come organi per mantenere in vita l’intero complesso. Ciascuno dei temi del design si riferisce a una parte specifica del corpo umano; per esempio, i polmoni dell’edificio sono formati da un grande vuoto luminoso, dove i pazienti vengono accolti presso l’info-point. In generale tutta la tecnologia, il cablaggio, la circolazione dell’aria e la ventilazione sono stati concepiti come la circolazione sanguigna dell’edificio. I percorsi sono brevi, immediati e molto regolari‚ anche con una distribuzione verticale compatta‚ e i flussi della logistica a loro volta sono chiari e separati dal percorso degli utenti. Il progetto funzionale dell’Imaging Center è suddiviso in diverse zone, con una netta separazione tra flussi di personale e pazienti.

I flussi dei pazienti sono ottimizzati, con un servizio rapido e accurato da parte del personale presso i desk di accoglienza‚ il sistema di wayfinding e i pannelli interattivi.

Nell’atrio e ad ogni piano sono presenti le aree di attesa a dimensione di utente‚ che sia un adulto oppure un bambino. Esse sono state create con l’intento di essere illuminate naturalmente‚ dove le persone possono sedersi comodamente. C’è una scelta di spazi aperti (lunghi tavoli) dove le persone possono interagire e/o aree dove le persone possono isolarsi. Questo tiene conto dei diversi modi in cui le persone affrontano lo stress.

Come afferma Tom Vlemingh‚ il capo-progetto “è abbastanza angosciante dover essere curato. Aiuta se è facile orientarsi in una struttura sanitaria, ma anche potersi ritirare e provare un senso di privacy. Un ambiente professionale, in cui il paziente sente immediatamente che è in buone mani”. Nonostante la sua funzione medica, si tratta di un edificio molto trasparente con l’intento di offrire molto spazio per la luce del giorno perché i pazienti che si trovano in un momento vulnerabile della loro vita possano sentirsi a proprio agio.

In relazione ai servizi di imaging erogati‚ diversi ambienti sono ciechi. Per tale motivi nella parte posteriore di queste aree, accanto alla vetrata, sono state ricavati degli spazi ad hoc per i dipendenti.

Il volume progettato ha previsto la realizzazione di un layout distributivo molto elementare che offre anche ai gestori della struttura la possibilità di rimodulare porzioni dell’edificio in caso di esigenza. Queste zone sono state studiate per garantire sempre una netta separazione tra il personale e i flussi di pazienti.

Il progetto funzionale è così strutturato:

█ nei due piani interrati sono presenti spazi dedicati al ciclotrone‚ nonché aree della logistica;

█ al piano terra‚ oltre all’ingresso principale‚ è presente la medicina nucleare clinica con PET-TAC, PET-RM e SPECT-TAC;

11 ARCHITETTURA febbraio 2023
█ Hall di ingresso a pluri-altezza. Copyright Hanne van der Woude █ Sala di attesa interna. Copyright Hanne van der Woude

█ ai due livelli superiori sono presenti le aree della radiologia clinica con RM e TC;

█ ai due livelli superiori sono presenti le aree della radiologia clinica con RM e TC;

due livelli sono aree della radiologia clinica RM e TC;

█ al terzo piano è presente il tracer center‚ cioè l’imaging impiegato nello sviluppo e nell’applicazione dei farmaci‚ con la presenza di laboratori altamente controllati e sterili;

█ al terzo piano è presente il tracer center‚ cioè l’imaging impiegato nello sviluppo e nell’applicazione dei farmaci‚ con la presenza di laboratori altamente controllati e sterili;

tracer cioè impiegato nell’applicazione dei con la presenza di altamente controllati e sterili;

█ all’ultimo livello sono collocati il Laser LaB‚ cioè l’istituto per laser e bio- fotonica‚ nonché la piastra tecnologica.

█ all’ultimo livello sono collocati il Laser LaB‚ cioè l’istituto per laser e bio- fotonica‚ nonché la piastra tecnologica.

█ livello sono collocati il Laser LaB‚ cioè l’istituto per bio- fotonica‚ nonché la piastra tecnologica.

I progettisti hanno localizzato le aree sanitarie‚ soprattutto le aree della risonanza magnetica‚ in relazione ai maggiori flussi di utenti quotidiani.

I progettisti hanno localizzato le aree sanitarie‚ soprattutto le aree della risonanza magnetica‚ in relazione ai maggiori flussi di utenti quotidiani.

I progettisti hanno localizzato le aree sanitarie‚ soprattutto le aree della risonanza magnetica‚ in relazione ai maggiori flussi di utenti quotidiani.

12 ARCHITETTURA febbraio 2023
Vista tridimensionale dell’Amsterdam UMC Imaging Center
Sezione e
UMC Imaging
Progetto funzionale dell’Amsterdam UMC Imaging Center 16
Primo piano dell’Amsterdam
Center
UMC Imaging
Progetto
UMC
Vista tridimensionale UMC Imaging Center
Primo piano dell’Amsterdam
Center
funzionale dell’Amsterdam
Imaging Center Sezione e
16
febbraio 2023
ARCHITETTURA
Primo piano dell’Amsterdam UMC Imaging Center Progetto funzionale dell’Amsterdam UMC Imaging Center Sezione e Vista tridimensionale dell’Amsterdam UMC Imaging Center

FLESSIBILITÀ

L’Imaging Center è stato costruito per il futuro: la struttura assicura che le installazioni tecnologiche possano essere facilmente adattate‚ in tale modalità le aree di ricerca, i laboratori e gli uffici possono essere facilmente ricollocati. Il centro infatti ospita un gran numero di dispositivi di imaging che potrebbero essere cambiati e/o sostituiti nel tempo; ciò pone pertanto elevate esigenze di flessibilità dell’edificio.

Le componenti pesanti‚ come la risonanza magnetica‚ possono essere sostituite e/o trasferite grazie al sovradimensionamento della struttura e al sistema di facciata che consente il posizionamento flessibile di tutti i tipi di attrezzatura‚ così da ridurre al minimo possibili interruzioni dei servizi sanitari e disagi per gli utenti.

E se negli anni a venire ci fosse bisogno di ulteriore spazio, è possibile aggiungere diversi nuovi piani all’edificio.

SOSTENIBILITÀ

È oggettivo che l’Amsterdam UMC Imaging Center sia un edificio energivoro per via della grande componente tecnologica e impiantistica che lo caratterizza‚ ma le soluzioni adotattate in

particolare sull’involucro permettono un funzionamento adeguato della struttura tra cui sistemi di recupero di calore e pannelli solari che contribuiscono a ridurre le emissioni di CO2

Uno degli aspetti caratterizzanti è l’involucro dell’edificio: la struttura realizzata in cemento armato è completamente rivestita da grandi pannelli di vetro caratterizzate da una texture con una stampa riflettente che‚ oltre a creare un effetto semitrasparente‚ filtra la luce del giorno e riflette una parte sostanziale del calore. In aggiunta un adeguato studio dell’orientamento, la presenza di brise-soleil (orizzontali e verticali rispetto all’affaccio), l’introduzione di materiali isolanti di alta qualità, un rapporto efficace tra pieno e vuoto, la presenza di tetti verdi, materiali sostenibili e planimetrie flessibili hanno permesso, insieme ad altre soluzioni tecniche, di ottenere la certificazione BREEAM-NL “Very Good”.

Bibliografia e ringraziamenti

█ Le informazioni utili per la scrittura dell’articolo sono state tratte da:

█ descrizioni del progetto fornito dagli Wiegerinck Architects

█ disamina tecnica delle piante e sezioni del progetto;

█ pagina web del University Medical Center di Amsterdam;

█ portali di architettura accessibili dal web.

Si ringrazia per la realizzazione dell’articolo gli Wiegerinck Architects, e in particolare Allard Terwel, per la condivisione delle immagini e delle piante

Gli autori

MARCO GOLA

ALESSANDRO MORGANTI

Design & Health Lab, Dip. Architettura, ingegneria delle costruzioni e ambiente costruito, Politecnico di Milano

13 ARCHITETTURA febbraio 2023
█ Area dei laboratori. Copyright Hanne van der Woude █ Piastra tecnologica. Copyright Hanne van der Woude █ Vista di un corridoio perimetrale. Copyright Hanne van der Woude

ADESIVI CEMENTIZI E MEMBRANE ANTIFRATTURA

IMPIEGATE PER IL NUOVO

GALEAZZI-SANT’AMBROGIO

diovascolari, ed è specializzata in neurochirurgia e nel trattamento dei tumori cerebrali maligni e benigni. Al suo interno grande spazio è dedicato alla didattica universitaria e alla ricerca scientifica perché nel 2006 l’Istituto Ortopedico Galeazzi ha ottenuto dal Ministero della Salute, il riconoscimento di IRCCS (Istituto di Ricovero e Cura a Carattere Scientifico) per la ricerca nell’ambito delle malattie dell’apparato locomotore.

L’OSPEDALE DEL FUTURO

La struttura, distribuita su quasi 180.000 m2 di superficie totale, è stata progettata secondo gli standard più innovativi di sostenibilità e funzionalità. Progettato secondo una moderna concezione architettonica, l’edificio si sviluppa su 16 piani fuori terra ed è costituito da un corpo principale in cui sono concentrate le attività ospedaliere e i laboratori di ricerca e le attività inerenti all’attività universitaria. Altri tre edifici sono dedicati ai servizi indispensabili: una centrale tecnologica, una per i gas medicali e un’isola ecologica.

Il nuovo polo ospedaliero Galeazzi-Sant’Ambrogio, che ha riunito l’istituto ortopedico Galeazzi e l’istituto clinico Sant’Ambrogio è stato inaugurato ad agosto 2022. L’ospedale rappresenta uno dei cardini del futuro ecosistema della ricerca, dell’innovazione e della cura all’interno dell’area MIND (Milano Innovation District), presso Rho Fiera.

UN POLO DEDICATO ALLA CURA, ALLA RICERCA E ALLA DIDATTICA

La nuova realtà sanitaria riunisce le eccellenze dei due istituti, ortopedia e traumatologia e diagnosi e cura delle patologie car-

Per la costruzione dell’ospedale, la committenza ha richiesto l’utilizzo di materiali durevoli, che richiedessero pochi interventi di manutenzione. La scelta è quindi caduta sull’uso del gres porcellanato, un materiale durevole e resistente, con un degrado nettamente inferiore rispetto al classico pvc adottato nella maggioranza delle strutture sanitarie. Grazie alla scelta del riempitivo epossidico, inoltre, è possibile garantire massima igienicità alla pavimentazione.

]Per realizzare l’ospedale sono state scelte le soluzioni più moderne ed efficienti in termini di risparmio energetico e di sostenibilità ambientale, per ridurre al massimo sprechi e consumi, ma anche le emissioni acustiche e inquinanti. I materiali scelti sono

14 PUBBLIREDAZIONALE febbraio 2023

ecocompatibili e salubri, con capacità di assorbimento dello smog attraverso tecniche di purificazione dell’atmosfera e autopulenti. Per questa ragione il nuovo Ospedale Galeazzi-Sant’Ambrogio è già registrato per la procedura di valutazione, candidandosi alla Certificazione Leed Gold V4 per la sostenibilità ambientale.

stagionati (considerate le tempistiche di cantiere) e senza il tassativo rispetto dei giunti presenti sui sottofondi. Assorbendo le irregolarità del sottofondo le membrane evitano il danneggiamento della pavimentazione finale per un risultato sicuro e duraturo.

DESOLIDARIZZARE E POSARE

Prima di partecipare agli interventi di posa dei pavimenti e rivestimenti, Mapei è intervenuta nel 2019 nella costruzione della piastra di fondazione, la più grande d’Europa, fornendo gli additivi per il getto di calcestruzzo (DYNAMON XTEND W500 SN, DYNAMON EW, MAPETARD): ben 33.000 m3 di calcestruzzo pompati non stop per 94 ore.

Negli ambienti interni, Mapei è intervenuta fornendo sistemi di posa completi costituiti da membrane, adesivi e stuccature per ceramica che hanno permesso il rispetto di tempistiche stringenti e la posa su supporti non perfettamente maturi.

In particolare, una efficace e duratura soluzione costruttiva è stata adottata per la posa delle lastre di gres in grande formato nelle aree a ridosso di stanze e corridoi. Le lastre di grande formato tendono a fornire un aspetto continuo e monolitico delle superfici; pertanto, la presenza di giunti o discontinuità sui sottofondi possono costituire un ostacolo all’ottenimento di questo risultato. Mapei ha fornito sistemi completi di membrane anti-frattura di tessutonon tessuto come Mapetex System e anti-frattura-impermeabilizzanti come Mapeguard UM35, membrana desolidarizzante, antifrattura, impermeabilizzante per supporti fessurati, umidi e/o non perfettamente stagionati, per la posa di piastrelle di ceramica e materiale lapideo. L’impiego di queste membrane ha consentito la posa del gres di grande formato su sottofondi non perfettamente

Per applicare MAPEGUARD UM 35 e MAPETEX SYSTEM è stato scelto l’adesivo cementizio ad alta adesione, deformabile, a reologia variabile, KERAFLEX EXTRA S1.

Lo stesso adesivo è stato usato per la posa delle piastrelle in grès porcellanato mentre per la stuccatura delle fughe è stato scelto il riempitivo epossidico antibatterico KERAPOXY CQ, una scelta quanto mai appropriata ai fine dell’igiene delle superfici. Il prodotto è infatti inassorbente e permette di realizzare pavimenti, pareti, tavoli da lavoro, ecc. conformi al sistema HACCP ed ai requisiti del Regolamento CE n. 852/2004, sull’igiene dei prodotti alimentari. L’utilizzo del riempitivo epossidico ha permesso inoltre di evitare cali di volume alla fugatura e quindi il mantenimento della stessa a filo pavimento e di facilitare le operazioni di movimentazione dei pazienti che necessitano di essere trasportati.

Tutti i giunti sono stati realizzati con il sigillante acetico puro MAPESIL AC, resistente alla muffa e con tecnologia BioBlock®. La combinazione delle due stuccature garantisce alle pavimentazioni massima igienicità e resistenza ad agenti aggressivi e frequenti lavaggi.

Sulle scale di servizio e i pianerottoli le lastre in marmo di Carrara sono state posate con ADESILEX P9 EXPRESS, adesivo cementizio ad alte prestazioni, a presa rapida e tempo aperto allungato, mentre nei bagni, dopo l’impermeabilizzazione effettuata con la membrana liquida MAPEGUM WPS e con le bandelle MAPEBAND EASY, le piastrelle in grès porcellanato sono state posate con lo stesso KERAFLEX EASY S1.

█ Per applicare MAPEGUARD UM 35 e MAPETEX SYSTEM è stato scelto l’adesivo cementizio ad alta adesione, deformabile, a reologia variabile, KERAFLEX EXTRA S1

15 PUBBLIREDAZIONALE febbraio 2023
█ Sulle scale di servizio e i pianerottoli le lastre in marmo di Carrara sono state posate con ADESILEX P9 EXPRESS

Il Metaprogetto della Casa di Comunità

Dalle Case e dagli Ospedali di Comunità alle Centrali Operative Territoriali: ecco le linee di indirizzo per progettare le strutture assistenziali previste dal PNRR. Sull’argomento abbiamo intervistato Stefano Capolongo, responsabile scientifico del gruppo di lavoro del Politecnico di Milano che si è occupato di questo progetto

di Arturo Zenorini
16 ATTUALITÀ febbraio 2023

Si è da poco conclusa la pubblicazione di tre volumi di Quaderni della rivista “Monitor”, pubblicata da AGENAS (Agenzia nazionale per i servizi sanitari regionali) e rivolta ai rappresentanti delle Istituzioni, agli operatori della sanità, ai progettisti e alle Università, dedicati alle linee di indirizzo per la progettazione e la realizzazione delle nuove strutture previste dal Piano Nazionale di Ripresa e Resilienza (PNRR), quali le Case di Comunità (CdC), gli Ospedali di Comunità (OdC) e le Centrali Operative Territoriali (COT). L’obiettivo è la nuova edificazione e la ristrutturazione architettonica e organizzativa delle strutture sanitarie territoriali. I tre documenti – scaricabili dal sito dell’Agenzia – offrono ciascuno un metaprogetto di architettura, ovvero delle linee di indirizzo dedicate ai diversi edifici e alle loro interrelazioni con altre strutture del territorio.

Abbiamo intervistato su questi argomenti il responsabile scientifico del gruppo di lavoro del Politecnico di Milano che si è occupato di questo progetto, il prof. Stefano Capolongo, Presidente di CNETO (Centro Nazionale per l’Edilizia e la Tecnica Ospedaliera), Direttore del Dipartimento Architettura, ingegneria delle costruzioni e ambiente costruito (ABC) del Politecnico di

Milano, Professore Ordinario di Hospital Design presso lo stesso Ateneo.

█ Prof. Capolongo, cominciamo dalla definizione di “metaprogetto”. Che cosa si intende esattamente con questo termine?

Il metaprogetto non è fisicamente un progetto, ma una linea di indirizzo che attraverso una serie di indicazioni progettuali supportate da schemi funzionali va a definire gli elementi caratterizzanti a cui il progetto di architettura deve aspirare. Come si può intuire, dovendo essere una linea di indirizzo valida sia per edifici esistenti che di nuova realizzazione, gli schemi funzionali possono essere un importante supporto per i progettisti, ma è poi richiesta una sorta di «adattamento» - soprattutto negli scenari di riuso del patrimonio esistente - rispetto alla tipologia edilizia della struttura e alla sua localizzazione (e pertanto il suo intorno). Nello specifico, il metaprogetto mette a sistema i modelli organizzativi rilevanti, gli standard del DM 77 “Regolamento recante la definizione di modelli e standard per lo sviluppo dell’assistenza territoriale nel Servizio Sanitario Nazionale” pubblicato sulla Gazzetta Ufficiale n. 144 del 22 Giugno 2022.

I TRE QUADERNI DI MONITOR

Le tre pubblicazioni cui si fa riferimento in questa intervista si intitolano (tra parentesi l’indirizzo web per il download dei documenti integrali):

“Documento di indirizzo per il Metaprogetto della Casa di Comunità”

https://www.agenas.gov.it/images/agenas/In%20primo%20piano/ TERRITORIO/Quaderni_di_Monitor_Documento_metaprogetto_ stampa.pdf

“Documento di indirizzo per il Metaprogetto dell’Ospedale di Comunità”

https://www.agenas.gov.it/images/agenas/monitor/quaderno/pdf/ Quaderni_Monitor_Ospedale_Comunit%C3%A0_stampa.pdf

“La Centrale Operativa Territoriale: dalla realizzazione all’attivazione”

https://www.agenas.gov.it/images/agenas/In%20primo%20piano/ COT/Per_stampa_Quaderno_COT.pdf

A seguito della Pandemia di COVID-19, che ha profondamente colpito l’intera Nazione evidenziando le significative criticità del nostro sistema, il Governo italiano ha approvato il Piano Nazionale di Ripresa e Resilienza (PNRR) per rilanciarne l’economia e promuovere al contempo salute, sostenibilità e innovazione digitale. Il PNRR fa parte del programma dell’Unione Europea noto come Next Generation EU (NGEU), un fondo che prevede investimenti e riforme per accelerare la transizione ecologica e digitale; migliorare la formazione delle lavoratrici e dei lavoratori; e conseguire una maggiore equità di genere, territoriale e generazionale. Tale fondo da 750 miliardi di euro (noto anche come Recovery Fund) assegna all’Italia un totale di 191,5 miliardi di euro. Il PNRR rappresenta

quindi il motore per la programmazione degli investimenti e delle riforme che l’Italia prevede di attuare entro il 2026. Il piano si articola in 6 Missioni, ciascuna delle quali caratterizzata da Componenti (in totale 16), a loro volta articolate in Investimenti con il corrispettivo importo assegnato. Le 6 Missioni del Piano sono: 1) Digitalizzazione, innovazione, competitività, cultura e turismo; 2) Rivoluzione verde e transizione ecologica; 3) Infrastrutture per una mobilità sostenibile; 4) Istruzione e ricerca; 5) Inclusione e coesione; 6) Salute. È nell’ambito della Componente 1 della Missione 6 che rientrano i Documenti di indirizzo per il Metaprogetto della Casa e dell’Ospedale di Comunità, oltre che delle Centrali Operative Territoriali.

PANDEMIA DI COVID-19
DALLA
ALLA MISSIONE
6 “SALUTE” DEL PNRR
17 ATTUALITÀ febbraio 2023

█ Come si inseriscono questi documenti di indirizzo nell’ambito del PNRR e qual è l’obiettivo per cui sono stati elaborati?

In relazione alle molteplici attività e agli obiettivi del PNRR, all’interno della Missione 6 “Salute” Componente 1 (M6C1) “Reti di prossimità, strutture intermedie e telemedicina per l’assistenza sanitaria territoriale” cui sono stati destinati 7 miliardi di euro, sono state individuate 3 linee di investimento da attuare entro la metà del 2026. Per l’attuazione di tali obiettivi, sono stati quindi successivamente emanati decreti nazionali di supporto, quali il DM 77 [citato sopra] con l’intento di definire tutti gli aspetti organizzativi di queste strutture. Dal momento che il DM 77 argomenta nel dettaglio la tipologia di servizi e il personale da coinvolgere, e consapevoli dei tempi stretti per la realizzazione degli interventi entro il 2026, i “Documenti di indirizzo per il Metaprogetto della Casa di Comunità, dell’Ospedale di Comunità e della Centrale Operativa Territoriale” hanno proprio l’intento di andare a tradurre gli aspetti organizzativi nella configurazione degli spazi necessari. Naturalmente il metaprogetto definisce le linee di indirizzo generali; rispetto alla tipologia di intervento (nuova realizzazione, riuso di edifici esistenti, etc.) ci possono essere applicazioni e soluzioni di adattamento differenti.

█ Da quali Istituzioni e come sono stati elaborati questi documenti di indirizzo?

In questi mesi è stata attivata una Convenzione tra AGENAS e il Design & Health Lab del Dip. ABC del Politecnico di Milano che ha permesso una stretta collaborazione tra diversi referenti nell’ambito della programmazione sanitaria di AGENAS, coordinati dal Dott. Mantoan e la Dott.ssa Borghin, con i ricercatori del Politecnico di Milano, coordinati dal prof. Capolongo e la prof.ssa Buffoli. Il lavoro è stato

condotto con un approccio multidisciplinare che ha coinvolto medici, architetti e ingegneri per poter produrre un documento di supporto ai progettisti e ai tecnici che si occuperanno degli interventi.

Il team di lavoro ha analizzato casi studio nazionali e internazionali per meglio comprendere trend e possibili “contaminazioni” provenienti da altri sistemi sanitari.

█ Nei documenti sono inizialmente descritti gli obiettivi generali e strategici per la progettazione delle Case di Comunità (CdC) e dell’Ospedale di Comunità (OdC). Può descriverne gli aspetti principali?

È evidente che la sfida del PNRR richieda alle Pubbliche Amministrazioni e ai progettisti di non limitarsi a rispondere alle richieste delle singole Missioni (in questo caso la Missione 6), ma proprio di adottare un approccio trasversale nella realizzazione dell’edificio attento alle sfere ambientali, sociali ed economiche. Nel caso delle Case e degli Ospedali di Comunità è richiesto - come sintetizzato nel documento - che si tengano in considerazione gli input di: Missione 1, relativa a Digitalizzazione e Innovazione di processi, prodotti e servizi; Missione 2, relativa alla transizione ecologica; Missione 5, relativa all’inclusione sociale. Il documento da questo punto di vista riassume una serie di strategie e input che i progetti di nuova realizzazione e di riuso, rispetto alle condizioni di contesto in cui si vanno ad inserire, possono essere attuati.

█ Come si inseriscono le Case della Comunità nel nuovo modello di medicina territoriale? Quali altre strutture sono più correlate ad esse dal punto di vista funzionale?

Le Case della Comunità assumono un ruolo strategico nel territorio. Hanno l’intento di offrire in maniera capillare servizi principalmente sanitari per garantire i servizi di base a tutti cittadini. Per tale motivo, per offrire sempre di più un’offerta adeguata alla Comunità, si prevede la presenza importante dei Medici di Medicina Generale e/o Pediatri di Libera Scelta. Precedentemente tale sfida era stata affrontata dall’introduzione delle Case della Salute (introdotte con il Ministro Livia Turco nel 2007) ma la realizzazione di tale strutture è stata limitata solo ad alcune regioni (quali, per esempio, Emilia-Romagna, Toscana, Piemonte), come anche argomentato in una delle Ricerche del CNETO coordinata dalla prof.ssa Peretti [scaricabile all’interno dell’Area Soci del CNETO, NdR]. È oggettivo che le indicazioni a livello nazionale propongano la realizzazione di Case e Ospedali di Comunità e delle Centrali Operative Territoriali in maniera autonoma ma, come anche il documento di indirizzo argomenta, il suggerimento è che le strutture della medicina territoriale siano integrate almeno con strutture sanitarie esistenti (ospedali, centri riabilitativi, ecc.) oppure che siano integrate tra loro le Case e gli Ospedali di Comunità e/o Centrali Operative Territoriali perchè possano lavorare in sinergia ed essere strutturate per avere i servizi in condivisione.

18 ATTUALITÀ febbraio 2023
█ Stefano Capolongo, responsabile scientifico del gruppo di lavoro del Politecnico di Milano che si è occupato del progetto, Presidente di CNETO (Centro Nazionale per l’Edilizia e la Tecnica Ospedaliera), Direttore del Dipartimento Architettura, ingegneria delle costruzioni e ambiente costruito (ABC) del Politecnico di Milano, Professore Ordinario di Hospital Design presso lo stesso Ateneo.

█ Nel documento dedicato alle Case di Comunità viene descritto dettagliatamente il relativo metaprogetto funzionale. Quali sono i punti fondamentali tra quelli esaminati?

Il documento argomenta tutte le funzioni considerate obbligatorie e facoltative ed è ovviamente più esaustivo rispetto alle informazioni che qui sintetizzo. Limitandosi all’essenziale, occorre sapere che, a partire dal DM 77, nello specifico dall’elenco delle funzioni delle Casa di Comunità, i servizi sono stati classificati secondo 4 macroaree omogenee: 1) Macro-Area “specialistica” che ospita tutti i servizi di natura sanitaria (diagnostica di base, area prelievi, servizi ambulatoriali e quelli specialistici); 2) Macro-Area “Cure Primarie” che accoglie tutti gli spazi per la Medicina di Gruppo, tra cui i Medici di Medicina Generale (MMG), Pediatria di Libera Scelta (PLS) e gli Infermieri di Famiglia o Comunità (IFoC), etc.; 3) Macro-Area “Assistenza di Prossimità” che ospita Assistenza medica H24/12, servizi infermieristici, il Punto Unico di Accesso (PUA), nonché uno sportello e uffici sede dei servizi socio-sanitari; 4) Macro-Area “Servizi generali e logistici che accoglie tutte le funzioni non sanitarie che permettono il funzionamento della struttura quali l’accoglienza degli utenti e del personale sanitario, le aree logistiche e i locali tecnici. Il documento di indirizzo ha suggerito una serie di schemi funzionali delle macro-aree con approfondimenti sui locali necessari per ciascuna di esse, differenziati per tipologia Hub e Spoke, nonchè sono state realizzate delle matrici di relazione funzionale e spaziale delle varie attività previste. In generale, la differenza tra Hub e Spoke è principalmente di natura dimensionale e si differenziano per la presenza di alcuni servizi (infatti la Spoke ospita funzioni in meno rispetto all’Hub), ma le macro-aree vengono confermate per le due tipologie. Diventa strategico, in particolar modo, nell’area di “assistenza di prossimità”, prevedere spazi per la comunità, in quanto si tratta di uno spazio che offre anche dei servizi per i cittadini e ciò non nega la possibilità di integrare funzioni aggiuntive rispetto alle esigenze locali puntuali.

█ Passando agli Ospedali di Comunità, può descrivere le peculiarità relative al loro scopo nel nuovo modello di assistenza territoriale e in che cosa si differenzieranno sostanzialmente dagli ospedali?

Gli Ospedali di Comunità sono strutture intermedie tra l’assistenza domiciliare e l’ospedale e hanno l’obiettivo di evitare ricoveri inappropriati supportando al meglio il processo di dimissione dalle strutture di ricovero, garantendo assistenza a pazienti con condizioni complesse, superando la specificità per singola patologia/ condizione.

L’investimento proposto dal Governo italiano all’interno del PNRR mira al potenziamento del livello di assistenza sanitaria territoriale intermedia attraverso diverse tipologie di strutture sanitari come le CdC per l’accesso, l’accoglienza, l’orientamento dell’assistito, la progettazione e l’erogazione degli interventi sanitari e gli Ospe-

dali di Comunità destinati ai ricoveri di breve durata che necessitano di interventi di media e bassa intensità.

Differentemente dalle degenze ordinarie dei poli ospedalieri, gli OdC saranno dotati di un’unità singola di degenza da 15-20 posti letto, espandibili fino ad un massimo di due unità di degenza, per un totale di massimo 40 posti letto e insieme alle CdC pongono il loro obiettivo nella riduzione degli accessi impropri ai poli ospedalieri e di Pronto Soccorso.

Sono, inoltre, concepiti come struttura socio-assistenziale per favorire la transizione dei pazienti dalle strutture ospedaliere per malattie acute al proprio domicilio, offrendo ai pazienti un luogo dove poter sostare per il percorso post-ricovero e per consentire alle loro famiglie di aver un periodo di tempo necessario per l’organizzazione del rientro al domicilio. Il ricovero presso l’OdC deve avere una durata massima di 30 giorni. Solo in casi eccezionali, motivati dalla presenza di situazioni cliniche non risolte, la degenza potrà prolungarsi ulteriormente.

Il modello dell’OdC è già parzialmente esistente nel territorio italiano. Si tratta, per lo più, di reparti ospedalieri riconvertiti a degenze di bassa intensità o a reparti per il periodo di transizione tra il post-operatorio e la dimissione al proprio domicilio.

Sarà dunque auspicabile che anch’essi vengano interessati da interventi di adeguamento o, nel caso di quelli più obsoleti, che vengano dismessi per essere ricostruiti in altri luoghi dove possa essere consentito il raggiungimento dell’efficienza medico-assistenziale.

In conclusione, la peculiarità è che è gestito da personale infermieristico, in cui l’assistenza medica è assicurata dai medici di medicina generale o dai pediatri di libera scelta o da altri medici dipendenti o convenzionati con il SSN; la responsabilità igienicoorganizzativa e gestionale fa capo al distretto che assicura anche le necessarie consulenze specialistiche.

█ Sempre in riferimento agli Ospedali di Comunità, come si possono sintetizzare gli elementi distintivi del metaprogetto funzionale?

A partire dal DM 77, i servizi dell’OdC possono essere classificati in due macro-aree omogenee: Macro-Area “Degenza” che ospita tutti i servizi di natura sanitaria quali degenze, ambulatori e aree per la riabilitazione; Macro-Area “Generali e Logistici” che accoglie tutte le funzioni non sanitarie che permettono il funzionamento della struttura, quali accoglienza utenti e personale sanitario, aree logistiche e locali tecnici.

In generale l’area di degenza può ricordare gli aspetti generali che caratterizzano le degenze ordinarie, ma con la peculiarità che possono prevedere ambienti protetti con posti dedicati a pazienti con demenza o con disturbi comportamentali, in quanto affetti da patologie croniche riacutizzate a domicilio o in dimissione ospe-

19 ATTUALITÀ febbraio 2023

daliera. Queste strutture potrebbero ridurre l’istituzionalizzazione e l’ospedalizzazione in ambienti sanitari non idonei. Nel caso, sarebbe opportuno attrezzare tali spazi con arredi appropriati alla tipologia di utenza a tutela della loro sicurezza e incolumità. Tali degenze dovrebbero essere di tipo singolo ed essere le più prossime alla postazione controllo infermieri.

█ Nei documenti di indirizzo, un capitolo è dedicato alle caratteristiche strutturali e architettoniche delle Case e degli Ospedali di Comunità. Può dare qualche dettaglio in proposito?

È oggettivo che il documento non sia esaustivo sugli aspetti architettonici e strutturali. Diverse linee di indirizzo alla fine del documento sono state argomentate proprio per dare delle suggestioni ai progettisti, ma questo non era il fine del documento (ricordiamo che il metaprogetto definisce le caratteristiche spaziali a partire dal DM 77). Tale considerazione emerge alla luce del fatto che la realizzazione delle Case e Ospedali di Comunità ha un’estensione molto ampia sull’intero territorio, con edifici di nuova realizzazione e di riuso del patrimonio esistente, e pertanto con una così ampia casistica di scenari era difficile dare un’indicazione specifica.

È anche vero che il lavoro condotto a livello nazionale può subire regione per regione specifiche integrazioni puntuali suggerite dagli stakeholder locali. Un esempio in questo senso è l’ampio lavoro di ATS Milano e Regione Lombardia per la realizzazione del “Vademecum per l’attuazione degli interventi edilizi”

(https://www.ats-milano.it/sites/ default/files/2022-07/Vademecum%20prog.%20CdC%20OdC%20 COT%20_%2023.06.2022.pdf) in cui sono offerte precise indicazioni di grafica coordinata degli spazi, di metodo e di supporto alle procedure di gara, declinato oggettivamente al contesto territoriale di riferimento. È anche possibile - pensando ai professionisti coinvolti e ai diversi ricercatori universitari che stanno analizzando il tema - che in questi prossimi mesi e anni vengano pubblicati studi e report con approfondimenti su diversi aspetti che ad oggi la letteratura - anche internazionale - non ha ancora argomentato. Proprio rispetto a quest’ultimo punto il CNETO recentemente ha attivato un gruppo di lavoro proprio sulle Case e Ospedali di Comunità - coordinato dalla prof.ssa Maria Chiara Torricelli e la prof.ssa Peretti - e il 12/13 Febbraio 2022 si terrà un Convegno a Camogli proprio inerente a questi temi.

█ Riguardo, infine, alle Centrali Operative Territoriali, quali sono gli aspetti più rilevanti del metaprogetto funzionale e come si interfacceranno queste strutture con le CdC e gli OdC nell’ambito del Distretto?

A partire dal DM 77 e nello specifico dall’elenco dei servizi erogati per le COT, le funzioni previste sono così suddivise: macro-area “Centrale operativa” che ospita sala operativa e i relativi uffici direzionali e amministrativi e la macro-area “Servizi generali e logistici” con tutte le

funzioni di accoglienza del personale, aree logistiche e locali tecnici. La COT rappresenta l’elemento cardine dell’organizzazione territoriale in quanto svolge una funzione di coordinamento della presa in carico dell’utente “protetto” e di raccordo fra i soggetti della rete assistenziale. La COT assolve al suo ruolo di raccordo tra i vari servizi attraverso funzioni distinte e specifiche tra cui il coordinamento della presa in carico della persona tra i servizi e i professionisti sanitari coinvolti nei diversi setting assistenziali, ottimizzazione degli interventi, tracciamento e monitoraggio del paziente, e così via.

IL MODELLO ORGANIZZATIVO DELLE COT

Le Centrali Operative Territoriali (COT) costituiscono, come spiega il DM 77, un nuovo modello organizzativo di Centrale che svolge funzioni di coordinamento sia della presa in carico integrata e coordinata della persona, che del raccordo tra servizi e professionisti coinvolti nei diversi setting assistenziali: attività territoriali, sanitarie e sociosanitarie, ospedaliere, e che dialoga con la rete dell’emergenza-urgenza. Le COT sono così classificate: Centrali Operative 112 e 118, dedicate alla gestione dell’emergenza-urgenza; Centrale Operativa Regionale 116117, che fa riferimento al numero europeo armonizzato (NEA) per le cure mediche non urgenti, aiutando i cittadini ad accedere ai servizi sanitari e sociosanitari, e che agisce mediamente su un bacino di utenza di 1-2 milioni di persone; Centrale Operativa Territoriale di Distretto, per una copertura ancora più capillare del territorio (con un bacino di utenza di circa 100.000 abitanti, che corrispondono al Distretto) che coordina i servizi tra utenti, CdC, OdC e altre strutture sociosanitarie sul territorio.

I PROFESSIONISTI COINVOLTI

AGENAS - Agenzia nazionale per i servizi sanitari regionali Direttore Generale: Domenico Mantoan

Gruppo di Lavoro: Alice Borghini, Antonio Fortino, Federica Riano, Alessandro Izzi

POLITECNICO DI MILANO - Dipartimento di Architettura, ambiente costruito e ingegneria delle costruzioni (ABC), Design & Health Lab

Responsabile Scientifico: Stefano Capolongo

Gruppo di Lavoro: Maddalena Buffoli, Marco Gola, Erica Brusamolin, Stefano Arruzzoli, Yong Yu, Andrea Brambilla, Silvia Mangili.

NEL
20 ATTUALITÀ febbraio 2023
GRUPPO DI LAVORO
PREZZI INFORMATIVI DELL’EDILIZIA www.build.it I PREZZARI dei Bonus edilizi

Gli aspetti tecnologici dell’architettura ospedaliera

Tecnologie dell’Architettura è la nuova sezione della nostra rivista Progettare per la Sanità dedicata a tutte le tematiche che coinvolgono gli aspetti tecnologici fondamentali nei progetti di ospedali e di luoghi di cura in genere

Fin dalle sue origini l’ospedale si è posto come tema di architettura nel quale gli aspetti tecnologici assumono particolare rilevanza. Oggi tutte le strutture per la sanità sono investite dalla questione tecnologica, declinata in aspetti prestazionali, tecnici e ambientali, e in aspetti formali. Se gli aspetti tecnici-prestazionali sono andati crescendo in importanza con l’aumentare della complessità di questi edifici, gli aspetti formali sono chiamati sempre più a testimoniare come una società si prende cura delle persone, il ruolo pubblico di questi servizi, la salute quale bene comune. I diversi sottosistemi tecnologici-edilizi (strutture, facciate, coperture, partizioni interne ecc.), oltre a fornire prestazioni specifiche, sono il luogo della integrazione tra edificio, impianti e tecnologie sanitarie. Si tratta di sistemi a diverso grado di obsolescenza e complessità che l’architettura deve ricomporre nell’organismo edilizio, nelle sue diverse parti e relazioni con il contesto, sia per rispondere a logiche di funzionalità, efficienza e sostenibilità, che per essere percepita come dotata di senso, ‘parlare’ a chi utilizza quegli spazi.

Dalla sua nascita, nella seconda metà del XVIII secolo, come tipo edilizio destinato alla cura, l’ospedale moderno ha prestato un’at-

di Rosa Romano, Maria Chiara Torricelli
22 TECNOLOGIE febbraio 2023
█ Centre Hospitalier Universitaire Vaudois (CHUV), Losanna. Facciata del nuovo blocco operatorio transitorio e centro di endoscopia. Progettisti: meier + associés architectes, Ginevra, e bureau d’étude façades arteco sa, Chexbres

tenzione sempre maggiore a requisiti di igiene, comfort e funzionalità da cui derivare l’assetto insediativo e le soluzioni impiantistiche, ma le tecnologie edilizie sono restate per più di un secolo quelle tradizionali, mentre il linguaggio compositivo seguiva gli stili, da quello neoclassico, a quello modernista. Le innovazioni strutturali e impiantistiche del primo ’900 investono la progettazione ospedaliera nella tipologia e nella tecnologia, ma è poi con il secondo dopoguerra che, in molti paesi europei, si affronta in specifico la questione tecnologica in termini di sistemi costruttivi, da industrializzare, impostare su criteri di coordinazione dimensionale e di modularità. Una inversione significativa di tendenza, non avulsa dall’affermarsi in quegli anni di teorie e posizioni nella cultura architettonica, si riscontra nelle realizzazioni a partire dagli anni ’80 del secolo scorso: ci vuole più attenzione all’architettura degli ospedali, negli interni come nel rapporto con la città, luoghi aperti e protetti al tempo stesso, familiari, ‘umani’. Si conferma un approccio tecnologico fondato sull’uso di griglie modulari e regole di integrazione tra subsistemi tecnici: i sottosistemi support e quelli fit-out; ma la tecnica deve diventare architettura: nella configurazione e matericità degli involucri, negli atrii e nelle gallerie dei percorsi, nei dettagli.

Cosa ne è oggi della questione tecnologica dell’architettura nei progetti di ospedali e di luoghi di cura in genere, a livello internazionale e in Italia?

Il sistema support (struttura portante e infrastrutturazione impiantistica) costituisce la voce di costo più elevata sui costi di costruzione e prestazionalmente rilevante per la sicurezza e la flessibilità nel tempo: la campata strutturale si è ridimensionata, rispetto alle grandi luci proposte in ospedali stranieri degli anni ’60-70; l’interpiano tecnico è rimodulato; gli ingombri ottimizzati.

Nelle soluzioni di involucro (facciate e coperture) si trovano forme, materiali e sistemi costruttivi molto diversi: soluzioni high tech ‘leggere’ e ‘a doppia pelle’; soluzioni materiche tradizionali faccia a vista; soluzioni green che integrano il verde nella costruzione; forme geometriche a reticolo, massive alternate ad aperture, continue avvolgenti. Le scelte compositive diverse sono (o dovrebbero essere) giustificate in base a requisiti di comfort e sostenibilità energetica-ambientale, in un’ottica che dovrebbe essere quella del “ciclo di vita”.

Per i sistemi fit-out: partizioni interne; controsoffitti; pavimentazioni; porte; il discorso si fa più articolato in base alle funzioni delle diverse parti dell’organismo edilizio, più vicino, se vogliamo, all’utente e alle destinazioni d’uso. Talvolta è oggetto di una progettazione a sé stante, che dovrebbe essere ben integrata con la progettazione organizzativa dei servizi, con le tecnologie sanitarie e le attrezzature.

A tutti questi temi è destinata la nuova sezione Tecnologie dell’Architettura di Progettare per la Sanità. L’intento è quello di portare

all’attenzione le tendenze evolutive e innovative in questo campo, cercando di coniugare, nella illustrazione di soluzioni tecnologiche di architettura, aspetti prestazionali, di sostenibilità ambientale, aspetti costruttivi ed estetici. Gli articoli prevalentemente faranno riferimento di volta in volta a un progetto, realizzato o comunque in fase di esecuzione, ma ci saranno anche saggi di esperti che affronteranno in specifico qualche questione di progettazione tecnologica dell’architettura, illustreranno le buone pratiche e le criticità.

Le autrici

Dottore di ricerca, Professore Associato in Tecnologia dell’Architettura. Afferisce al Dipartimento di Architettura dell’Università di Firenze e al Centro di Ricerca Interuniversitario ABITA.

Architetto, già professore ordinario di Tecnologia dell’Architettura è adesso professore onorario presso l’Università di Firenze. Membro del Centro interuniversitario di ricerca Sistemi e Tecnologie per le Strutture Sanitarie, Sociali e della Formazione -TESIS, del Centro Nazionale per l’Edilizia e la Tecnica Ospedaliera -CNETO, della Società Italiana di Tecnologia dell’Architettura - SITdA.

ROSA ROMANO MARIA CHIARA TORRICELLI
23 TECNOLOGIE febbraio 2023

La rivoluzione digitale nell’edilizia ospedaliera

Fedele

delle strutture sanitarie

Tanti anni fa, da giovane apprendista, avevo capito che le tecnologie digitali avrebbero avuto un ruolo importante nella mia vita professionale e che l’avrebbero cambiata per sempre, ma non potevo davvero immaginare quanto.

A distanza di oltre trent’anni posso dire che non solo hanno cambiato la nostra vita, ma sono diventate uno strumento necessario di un processo molto più ampio che prende il nome di “trasformazione digitale”.

Le parole chiave della trasformazione digitale sono: formazione, innovazione metodologica (evoluzione e digitalizzazione dei processi) e innovazione tecnologica.

Temi come BIM, Digital Twin, Smart Building sono diventati di uso comune e rappresentano un riferimento importante, strategico.

Il BIM (Building Information Modeling) è una parte integrante del processo digitale: è l’insieme delle metodologie, delle tecnologie e delle procedure che consentono l’attuazione della digitalizzazione del processo delle costruzioni.

Adottare il BIM significa intervenire in modo ‘chirurgico’ sull’efficienza di ogni fase (Design, Construction, Operation & Mantainance) contribuendo (di fatto) all’efficienza complessiva del processo.

Allo stesso modo il concetto di Digital Twin racchiude in sé tutte le caratteristiche e i vantaggi di un ecosistema digitale che porta efficienza, sostenibilità in tutte le fasi del ciclo di vita utile dell’opera, e trova la sua naturale applicazione nel concetto di Smart Building (nel nostro caso: Smart Hospital).

Tutto ciò richiede un cambiamento di paradigma, una “rivoluzione” culturale e l’evoluzione dei processi oltre che un investimento in tempo, risorse umane e tecnologie.

Dedicarsi alle strutture sanitarie, lo sappiamo bene, significa progettare e gestire la “complessità”.

Per questo, oggi più che mai, si rende necessario “governare” i processi in tutte le sue fasi principali (pianificazione, progettazione, realizzazione e gestione dell’opera) seguendo una metodologia digitale e adottando tecnologie innovative.

di Paolo Bertini
al proprio ruolo di strumento fondamentale per la diffusione e la comunicazione di tutto quanto è innovazione nel mondo dell’architettura ospedaliera, Progettare per la Sanità lancia una nuova sezione
dedicata alla trasformazione digitale che coinvolge la progettazione
24 INNOVAZIONE DIGITALE febbraio 2023

Progettare per la Sanità ha un ruolo fondamentale nella comunicazione e nella diffusione della cultura di questo cambiamento epocale. È giunto, dunque, il momento di dedicare uno spazio ben definito al tema della trasformazione digitale; ed è con grande piacere che ho accolto l’invito del Direttore Margherita Carabillò a coordinare questa nuova rubrica, che si chiamerà “Innovazione Digitale”.

Dico spesso che portare innovazione significa dare risposte a domande che non sono state ancora pensate. La sfida, dunque, è molto ambiziosa, ma è proprio per questo che l’abbiamo colta! Nella rubrica ci sarà ampio spazio per presentare casi studio (progetti, realizzazioni, esperienze di gestione) nei quali BIM, Digitalizzazione e Tecnologie innovative hanno avuto un ruolo determinante.

Vi saranno articoli, approfondimenti sui temi di maggiore interesse per tutti gli operatori del settore coinvolti a vario titolo (committenti, progettisti, costruttori, validatori ecc.) nel processo di trasformazione digitale.

Quali sono i “fattori abilitanti” alla transizione digitale? Quali le principali “inefficienze” del sistema?

Quali linee guida seguire e quali i passi fondamentali per implementare un processo digitale sostenibile, che porti efficienza?

Investire nella digitalizzazione significa, prima di tutto, definire quale sia l’effettivo “gain” che ne deriva e misurarne il rapporto costi/benefici: qual è, dunque, il valore effettivo della trasformazione digitale, per un operatore del settore?

Quali prospettive, quali opportunità vi sono per le strutture sanitarie pubbliche/private che decidono di muovere i primi passi nel percorso di trasformazione digitale?

Cercheremo di dare risposte a queste e ad altre domande e lo faremo ponendo la massima attenzione a ciò che i nostri lettori si aspettano dalla nostra rubrica.

Per questo abbiamo bisogno della vostra collaborazione: non mancate mai di farci avere i vostri commenti, i vostri suggerimenti e, naturalmente, le vostre critiche costruttive e nell’interesse di tutti. Se pensate di avere esperienze di innovazione digitale da condividere (siano esse di progettazione, costruzione, gestione, validazione…) scriveteci, saremo lieti di prenderle in considerazione e valutare l’opportunità di condividerle in questa rubrica dedicandovi lo spazio che meritano.

L’appuntamento è quindi al prossimo numero di Progettare per la Sanità.

PAOLO BERTINI

Coordinatore GdL

"Digitalizzazione" - CNETO

Membro del tavolo

"Innovazione Digitale" - JRP

Healthcare Infrastructures

L’autore
25 INNOVAZIONE DIGITALE febbraio 2023

LA SFIDA DEL “TERRITORIO”: COSA INSEGNANO 75 ANNI DI KAISER PERMANENTE?

Le Case di Comunità italiane discusse e messe a confronto con le strutture di Kaiser Permanente per individuare possibili spunti utili al SSN italiano

di Gaia Ferraguzzi, Federico Lega, Francesco Mazziotta, Sara Piccinelli, Elisabetta Pierini
26 ORGANIZZAZIONE febbraio 2023

Il decreto ministeriale 77 del 2022, tra le altre cose, prevede il potenziamento delle strutture note come Case e Ospedali di Comunità. Per quanto ancora in divenire in Italia, l’esperienza internazionale insegna che sistemi simili, con strutture simili, esistono già. Ne è un esempio Kaiser Permanente, una health maintenance organization (HMO – simile ad una ASL, con una popolazione servita di oltre 12 milioni di assistititi) che ha creato il chronic care model e rappresenta un benchmarking di grandissimo interesse per le politiche sulla de-ospedalizzazione e continuità territoriale.

IL MODELLO KAISER PERMANENTE

Il modello di cura integrata proposto dal Kaiser Permanente, o Kaiser (KP), è noto per l’altissima qualità ed efficienza. Si tratta del più grande sistema di erogazione di cure degli Stati Uniti, con sede in California, che si occupa di fornire assistenza sanitaria in diversi Stati del continente americano, quali Hawaii, Oregon, California, Washington, Colorado, Maryland, Virginia, Washington DC e Georgia.

L’organizzazione nasce intorno al 1933, ma col passare degli anni si espande e fortifica fino a diventare quello che è oggi.

Il KP è un fornitore integrato senza scopo di lucro di piani sanitari prepagati, assicurazioni ed health-care in generale. Assiste oltre 12 milioni di persone, annovera 39 ospedali e le strutture sono popolate da più di 65.000 infermieri, 23.000 medici e 218.000 dipendenti. Si intercala nel contesto sanitario americano, caratterizzato

dall’essere misto privato e pubblico, con forte influenza delle società assicurative sull’erogazione delle cure.

Caratteristica delle cliniche e delle strutture del KP è la presenza di tutti i servizi deputati alla salute, “all in one”, nei quali, oltre alla possibilità di essere visitati da medici di medicina generale (scelti dal singolo assistito) o specialisti, si possono anche eseguire esami di laboratorio e prestazioni di radiologia. Il personale è quindi distribuito in strutture che possono avere degli orari specifici (medical center, medical office, target clinic) o che riescono a garantire prestazioni di cura delle urgenze nell’arco di tutte le 24 ore, come le urgent care clinics. In generale, ad eccezione dei trattamenti salvavita in regime di emergenza, qualsiasi tipo di prestazione può essere eseguita all’interno dei centri del KP. Inoltre, KP ha da anni sviluppato una piattaforma estesa di telemedicina. È possibile prenotare visite online, che possono spaziare dal semplice scambio per e-mail alla video visita. Anche per telefono è possibile prenotare una visita o ricevere assistenza telefonica 24 ore su 24, 7 giorni su 7. Sempre da una piattaforma online è possibile infine prenotare le visite in presenza presso una delle strutture del KP.

I sistemi informativi adoperati dal sistema KP prevedono che ogni visita e ogni informazione clinica relativa alla storia, all’anamnesi e all’attuale condizione del paziente vengano condivise con tutto il personale sanitario che si occupa e si occuperà dell’assistito, attraverso un software condiviso chiamato KP HealthConnect. In questo modo, chiunque incontri il paziente

27 ORGANIZZAZIONE febbraio 2023
█ Nelle CdC i medici potranno servirsi di strumentazioni normalmente non presenti in ambulatori di medicina generale, quali ecografo, elettrocardiografo, retinografo, oct, spirometro

può avere accesso ad ogni informazione raccolta senza doverli raccogliere nuovamente.

Numerosi sono stati i tentativi di emulazione di questo complesso sistema avvenuti nel corso del tempo, ma la maggior parte di questi si sono rivelati fallimentari. Un recente studio pubblicato nel 2016 ha dimostrato come un importante elemento utile a spiegare il successo del Kaiser risieda nell’investimento nelle figure infermieristiche professionali, le quali percepiscono più soddisfacente il proprio lavoro all’interno di queste strutture rispetto ad altre.

LE CASE DI COMUNITÀ OGGI E DOMANI

Entro il 2026, come previsto dal PNRR, dovrebbero essere realizzate in Italia 1.350 Case della Comunità, nuove strutture sociosanitarie emergenti nel Servizio Sanitario Nazionale. Insieme al PNRR stesso, il decreto n. 77/2022 ne ha definito le caratteristiche. Queste sono ideate come strutture sanitarie promotrici di un modello multidisciplinare di lavoro, luoghi privilegiati ricchi di interventi di carattere sociale e di integrazione sociosanitaria per una nuova modalità di presa in carico delle persone e delle comunità al fine di prevenire le malattie, prolungare la vita e promuovere la salute.² Sono strutture che nascono dall’esigenza di potenziare la presa in carico di pazienti affetti da patologie croniche, diminuire la pressione del pronto soccorso e ospedale e aumentare il controllo sanitario locale garantendo un più facile accesso a diagnosi e cure a cittadini di tutte le fasce d’età e di reddito. Saranno distribuite in modo capillare sul territorio, andando a costituire un punto di riferimento continuativo per i cittadini che possono accedere gratuitamente alle prestazioni sanitarie erogate.

Il punto di accesso è unico e sarà il luogo in cui il paziente riceverà la giusta accoglienza, informazione e orientamento al suo percorso di cura. La sede della Casa della Comunità è pensata come visibile e facilmente accessibile in modo da fornire al cittadino risposte adeguate nel più breve tempo possibile. La soluzione organizzativa raccomandata (hub & spoke) prevede un elemento centrale da cui emerge una rete per le cure primarie e per i supporti sociali ed assistenziali, proponendosi così come luogo di offerta e di relazione, attento a tutte le dimensioni di vita della persona e della comunità. In queste strutture polivalenti che garantiscono funzioni di assistenza sanitaria primaria e attività di prevenzione è prevista la presenza di:

█ area prelievi e vaccinazioni;

█ cure primarie e continuità assistenziale;

█ area ambulatori specialistici;

█ area dei programmi di prevenzione e di promozione della salute;

█ attività consultoriali;

█ area servizi sociali del Comune.

L’equipe di medici sarà composta da medici di medicina generale, pediatri, medici specialisti, infermieri e altri professionisti della salute quali tecnici di laboratorio, ostetriche, psicologi che operano in raccordo anche con la rete delle farmacie territoriali. I medici potranno servirsi di strumentazioni normalmente non presenti in ambulatori di medicina generale, quali ecografo, elettrocardiografo, retinografo, oct, spirometro. Le diverse regioni hanno a disposizione i fondi previsti dal PNRR (circa 2 miliardi) per recuperare gli immobili dismessi e allestire il necessario e previsto numero di Case di Comunità su tutto il territorio nazionale. Ne è prevista una ogni 40-50 mila abitanti, con all’interno 30-35 operatori sanitari, amministrativi e assistenti sociali a garantire la prestazione.

IL CONFRONTO

Kaiser Permanente prevede e anticipa alcuni aspetti chiave delle future Case di Comunità ponendoli come propri elementi fondanti. Queste similitudini si articolano su più livelli, dall’ideologia (mission della Fondazione Permanente) alla pratica (organizzazione della struttura).

Infatti, Kaiser Permanente nasce con l’idea di porre la prevenzione al centro delle cure per i propri membri. Ai tempi della Grande Depressione, quando il Dottor Garfield creò KP ed ideò il primo ospedale per operai stabilì che fossero le compagnie assicurative a pagare in anticipo una quota fissa per ciascun lavoratore così da risolvere nell’immediato le difficoltà economiche dell’ospedale ma anche permettere a KP di avere risorse disponibili per porre maggior enfasi sul mantenimento della salute piuttosto che sulla cura della possibile malattia. Con la nascita del prepayment si sconvolse quindi il consueto modello del fee for service imperante e che metteva l’enfasi sul produrre prestazioni, non sul prevenire. Se le risorse sono associate al numero degli assistiti piuttosto che ai servizi eseguiti l’offerta può essere organizzata differentemente incoraggiando ad intraprendere tutte quelle attività tipicamente di secondo piano (gestione fattori di rischio e prevenzione) in un contesto di pagamento per prestazione. A livello pratico, l’attenzione alla prevenzione nel sistema KP si traduce con la presenza di interventi di prevenzione primaria quali spazi informativi ed educativi dedicati nei medical offices/medical centers/ medical clinics, sconti all’iscrizione presso palestre, piscine e centri di allenamento, ma anche incentivi per acquisti di abbigliamento sportivo o attrezzi. Inoltre, sono disponibili online per i membri KP percorsi personalizzati per iniziare una vita più salutare a livello alimentare, sportivo, di abbandono di cattive abitudini, per incrementare la mindfulness, di coaching, di gruppi di supporto ecc. Anche percorsi e indicazioni vaccinali fanno parte dell’offerta.

Oltre alla prevenzione primaria, vengono offerti innumerevoli servizi di prevenzione secondaria quali screening (per adulti, specifici per

28 ORGANIZZAZIONE febbraio 2023

donne, specifici per bambini). In ogni stato in cui è presente, il KP offre inoltre ulteriori pacchetti di screening a propria discrezione. Anche l’idea delle Case della Comunità nasce attorno a un principio di cura più vasto, non solo sanitario ma anche sociale, che miri a una sanità di iniziativa attraverso l’attivazione di processi volti alla prevenzione e all’offerta di servizi sanitari e socio-sanitari per condizioni cliniche che non richiedono gestione esclusivamente ospedaliera. Come in KP, anche la Casa della Comunità prevede tra i servizi standard di offerta le vaccinazioni, i programmi di screening e i servizi per la salute mentale e le dipendenze. Si tratta di offerte facoltative o raccomandate, non obbligatorie, ma comunque fondamentali e che potrebbero prendere ispirazione dall’esperienza pluri-decennale di KP. Inoltre, nelle proprie strutture territoriali KP prevede la presenza di spazi, quali medical clinics o medical centers, che erogano una varietà di servizi. Vi si trovano infatti servizi di cure primarie e secondarie (inclusi: pediatri, medici internisti, geriatri, specialisti, infermieri ecc), esami di laboratorio, prestazioni di imaging, possibilità di fare visite oculistiche, servizi di farmacia e in alcuni casi anche same- day surgery e dipartimenti di urgenza e altri servizi. Si tratta della stessa varietà di servizi, professionisti e processi che dovrebbero diventare elementi centrali nelle case della comunità. Magari per arrivare ad avere commenti simili a questo rilasciato da un medico di medicina generale (family physician) di KP «I had access to many different doctors working next door whom I could hit up for info…Also, at Kaiser Permanente, you can call up any specialist and ask them for advice» che ricorda precisamente la cooperazione attesa tra MMG e medici specialisti, la cui agenda deve avere spazi protetti a disposizione dei primi. La presenza del medico di medicina generale integrato nella struttura è una realtà già presente in KP e che viene attesa nelle Case della Comunità, anche per potenziare quel supporto amministrativo ed organizzativo di base che dovrebbe alleggerire la burocrazia/operatività oggi “sofferta” dal medico.

Altro elemento da studiare è la distribuzione delle strutture di KP che, come quella progettata per le CdC, è volutamente capillare per facilitarne la visibilità, il senso di vicinanza sul territorio e quindi l’accesso per diminuire la pressione sugli ospedali e sui pronto soccorso in particolare.

Infine, anche in KP è presente qualcosa di simile agli Ospedali di Comunità (OdC) nella struttura delle Skilled Nursing Facilities. Le Skilled Nursing Facilities sono strutture indipendenti ove l’accesso è indicato o alla dimissione ospedaliera o tramite invio del paziente dall’ambulatorio. I professionisti presenti sono infermieri, fisioterapisti, tecnici della riabilitazione e medici supervisori per stabilire i piani di cura individuali; la gestione è tuttavia prevalentemente in mano agli infermieri. Questo tipo di esperienza è infatti simile a quella degli OdC, come punto intermedio tra ospedalizzazione e cure domiciliari per pazienti fragili.

Il ruolo stesso dell’infermiere, che nel KP è stato recentemente reinvestito di maggior attenzione, trova risalto anche con le “nuove” figure di Infermiere di Famiglia ed Infermiere di Comunità, chiavi nel sistema Case della Comunità.

L’INGREDIENTE SEGRETO: L’INTERCONNESIONE DIGITALE

Negli Stati Uniti così come in tutto il mondo, Kaiser Permanente è stato riconosciuto come un “sistema sanitario” di grande successo. Oltre alla attenta ed innovativa progettazione del sistema di offerta, “votato” alla medicina preventiva ed di iniziativa (KP lavora con meno di 1,5PL/000 ospedalieri), vi è un ingrediente segreto fondamentale rappresentato dalla spinta continua all’innovazione tecnologica, in particolare all’ecosistema digitale (HealthConnect) sottostante tutta la filiera di funzionamento di KP. HealthConnect, infatti, ha contribuito a rendere il sistema KP non solo fortemente connesso, ma anche interconnesso (in termini di relazione), offrendo ulteriori possibilità di scambio, comunicazione e collaborazione ai diversi livelli e professionisti. I pazienti iscritti a HealthConnect possono accedere in qualsiasi momento dal portale kp.org, in cui vengono raccolti e aggiornati i dati ogni volta che il paziente si interfaccia con i servizi sanitari. Accedendo al portale, il paziente può anche consultare i risultati dei test diagnostici e di laboratorio completi di referto, avere sotto controllo le proprie vaccinazioni e ricevere alert, chiedere delle prescrizioni e la loro ripetizione (è un fascicolo sanità di immediata e facile consultazione, tutti gli assistiti di KP hanno dato liberatoria alla circolazione dei dati tra i professionisti di KP). Così, HealthConnect offre ai medici un sistema di gestione delle informazioni sui pazienti in grado di supportare decisioni su prevenzione, diagnosi e cura e si è dimostrato ridurre notevolmente i casi di malpractice. Numerosi sono quindi gli spunti che si potrebbero approfondire a partire dall’esperienza di Kaiser Permanente utili al futuro del SSN e ne consegue un invito alle direzioni regionali, ed aziendali ad esplorare il contesto internazionale in quanto oltre a KP vi sono altrettante esperienze di valore in Francia, Spagna, Germania e Nord Europa da cui trarre ispirazione e magari qualche soluzione operativa per la sfida dell’attivazione e sviluppo di CdC e OdC.

Gli autori

FEDERICO LEGA

FRANCESCO MAZZIOTTA

SARA PICCINELLI

ELISABETTA PIERINI

Università degli Studi di Milano, CRC HEAD e Scuola di Specializzazione in igiene e medicina preventiva

GAIA FERRAGUZZI
29 ORGANIZZAZIONE febbraio 2023

Il LEAN Thinking: dai principi alla sua applicazione in ambito sanitario

L’efficientamento del sistema gestionale e organizzativo tramite approccio Lean dei reparti di grastroenterologia dell’ASST Fatebenefratelli Sacco di Milano

Misurare le nostre performances è fondamentale per poter rendere al meglio nel nostro lavoro”, così esordisce il Professor Maconi, Direttore e Responsabile della diagnostica e fisiopatologia gastroenterologica dell’ASST Fatebenefratelli Sacco-Milano, coinvolto in qualità di tutor nel percorso di Formazione sul Campo “iLean”. L’obiettivo del corso è stato quello di fornire un modello di efficientamento del sistema gestionale ed organizzativo del reparto, avvalendosi dell’approccio Lean in Sanità: una filosofia di gestione operativa aziendale volta alla riduzione degli sprechi e all’aumento dell’efficienza organizzativa, creando spazi e circoli virtuosi di prevenzione, monitoraggio del paziente e ottimizzazione delle risorse.

COME AGISCE LA METODOLOGIA LEAN?

Il Lean Thinking (o Lean production - produzione snella) è un insieme di principi, metodi e tecniche dedicati alla gestione dei processi operativi, che mirano ad aumentare il valore percepito dal cliente finale e a ridurre sistematicamente gli sprechi. Il primo autore ad utilizzare il termine “produzione snella” fu John Krafcik nel 1988 nell’articolo “Triumph of the lean production system”, nel

quale riportò dimostrò come le industrie che operano con una politica di produzione “lean” siano in grado di supportare una produzione più vasta di modelli, pur mantenendo elevati livelli di qualità e produttività (Krafcik, 1988). L’industria automobilistica è stato uno dei settori di applicazione del Lean Thinking di maggior successo. Le varie forme di spreco definite dalla Toyota Production System (Galgano & Galgano, 2006) sono:

█ eccesso di attività: l‘insieme di tutte quelle attività che non producono reale valore per l’azienda;

█ movimento: il doversi spostare per raggiungere luoghi o materiali lontano dal punto di utilizzo;

█ difetti: la grande produzione di scarti o la necessità di rilavorazioni dei materiali;

█ scorta: l’acquisizione e/o produzione di materiali in eccesso rispetto al fabbisogno richiesto dalla produzione;

█ eccesso di produzione: produzione effettiva superiore rispetto a quanto richiesto per i successivi step o dal cliente

█ attesa: utilizzo di tempo (ed annesse risorse) in maniera non produttiva;

█ trasporto: operare nel trasporto di materiale senza reali necessità connesse alla creazione del prodotto.

di Ludovico Baldessin, Simona Monterisi, Claudia Spinosa
30 ORGANIZZAZIONE febbraio 2023

I PRINCIPI LEAN

Sono 5 i principi-guida che delineano il modello teorico della produzione snella:

█ VALUE: definizione del valore dal punto di vista del cliente, e quindi, cosa il cliente è disposto a pagare;

█ VALUE STREAM: identificazione del flusso di valore, e l’insieme di tutte le azioni che portano alla realizzazione del prodotto o servizio;

█ FLOW: fluidità di tutte le attività; tutto deve realizzarsi tramite processi, senza interruzioni o ritardi;

█ PULL: impostare le attività secondo la logica “pull” e non “push”, ovvero realizzare un’attività solo quando il processo a valle lo richieda;

█ KAIZEN: perseguire la perfezione tramite continui miglioramenti (“kaizen”, parola formata da KAI = cambiamento, miglioramento più ZEN= buono, migliore).

attesa e scarsa qualità nelle prestazioni erogate al paziente. Un interessante studio di Womack e Jones del 1997 ha mostrato che il 40% dei pazienti fisicamente presenti in ospedale è in uno stato di attesa: in attesa di un esame diagnostico, di un intervento, delle dimissioni ecc.

In ambito sanitario, è possibile identificare tre diverse tipologie di processi (Villa, 2012):

█ processi primari clinico-assistenziali: insieme di attività di diagnosi, trattamento e riabilitazione, finalizzate alla risoluzione del problema di cura del paziente;

█ processi sanitari di supporto: attività funzionali ed interconnesse al processo primario clinico-assistenziale, che coinvolge direttamente il paziente e professionisti sanitari;

█ processi amministrativi di supporto: l’insieme di attività amministrative e gestionali che risultano essere essenziali per lo svolgimento dei processi di cura senza coinvolgimento diretto del paziente e di professionisti sanitari.

L’ottenimento dei migliori risultati in tema di qualità ed efficienza è possibile tramite la ricerca e la definizione di standard di riferimento dei processi produttivi, finalizzati all’eliminazione della variabilità nei comportamenti, nelle attività e nei percorsi che risultano essere fonte di possibili sprechi (Poppendieck et al., 2011; Villa, 2012).

IL PERCORSO FORMATIVO “ILEAN”

PERCHÉ IL LEAN IN SANITÀ?

L’applicazione della metodologia e dei principi LEAN in ambito sanitario risale alla fine degli anni ’80, grazie al lavoro di Steven Spear, pioniere nella diffusione e nella divulgazione dei vantaggi nell’uso del Lean Thinking all’interno del sistema sanitario in America (Womak & Jones 2017). In Italia, le città all’avanguardia furono Firenze e Genova a partire dai primi anni 2000. Per migliorare le performance e dunque l’erogazione delle prestazioni sanitarie, il solo controllo delle risorse impiegate (tempistiche, personale, tecnologiche ecc.) o di quanto viene prodotto (volumi di produzione, soddisfazione del personale, soddisfazione del cliente, ecc.) non è sufficiente. Risulta necessario porre attenzione sull’analisi dei processi produttivi e sul loro svolgimento (Bensa, Prenestini, & Villa, 2008; Vona & Di Paola, 2014) al fine di evitare un consumo non appropriato delle risorse, lunghi tempi di

Facendo riferimento alla filosofia ed ai principi Lean definiti nei precedenti paragrafi, è stato sviluppato da EDRA S.p.A. con la sponsorizzazione non condizionante di Takeda Italia S.p.A. il percorso ECM di Formazione sul Campo (FSC) con Gruppi di Miglioramento, dal titolo “iLean, percorsi innovativi di formazione per ottimizzare la gestione del paziente in terapia infusionale nei reparti di gastroenterologia”. Il percorso ha coinvolto i reparti di Gastroenterologia dell’Azienda Ospedaliera di Padova nel corso nel 2021 e dell’Ospedale Sacco di Milano nel 2022.

Se da un lato è stata necessaria la personalizzazione del percorso in base alla realtà del singolo reparto, obiettivi comuni sono stati l’individuazione di attività, comportamenti organizzativi e processi virtuosi nella presa in carico e gestione del paziente in terapia infusionale nel reparto di gastroenterologia.

Durante gli incontri di FSC Gruppi di Miglioramento, i professionisti sanitari, sotto la guida del responsabile scientifico, del tutor e di un esperto Lean in Sanità, hanno effettuato la revisione dei percorsi organizzativi/gestionali del reparto attraverso i) la misurazione e l’analisi dei processi, ii) l’identificazione delle criticità ed i punti aggredibili presenti all’interno del Patient Journey, iii) definizione di un piano di azione e iv) applicazione degli spunti

█ Figura 1. Piramide esemplificativa dei principi Lean
31 ORGANIZZAZIONE febbraio 2023

█ Figura 2. Le fasi della metodologia Lean e del percorso di Formazione sul Campo per la revisione dei percorsi organizzativi/gestionali del reparto attraverso i) la misurazione e l’analisi dei processi, ii) l’identificazione delle criticità ed i punti aggredibili presenti all’interno del Patient Journey, iii) definizione di un piano di azione e iv) applicazione degli spunti di miglioramento per la messa in atto del nuovo modello clinico-organizzativo volto all’ottimizzazione degli stessi

di miglioramento per la messa in atto del nuovo modello clinicoorganizzativo volto all’ottimizzazione degli stessi. Per lo svolgimento del progetto, ci si è avvalso di un sistema web-based customizzato per la raccolta dei KPI, con un’interfaccia user-friendly, un flusso ottimizzato per l’inserimento dei dati e una dashboard che ha messo in evidenza i parametri chiave dell’attività.

In funzione degli incontri programmati dalla FSC, è stata elaborata un’analisi puntuale inerenti ai diversi Key Performance Indicator del centro e del suo modello organizzativo, ed è stato predisposto un opportuno modello per agevolare la discussione sull’individuazione delle criticità e la definizione delle azioni di miglioramento correlate.

IL REPARTO DI GASTROENTEROLOGIA DELL’OSPEDALE SACCO: I RISULTATI OTTENUTI

La prima raccolta dati (giugno 2022) ha quantificato la durata media del patient journey presso il reparto di gastroenterologia in 2

32 ORGANIZZAZIONE febbraio 2023
█ Tabella 1. Analisi del percorso del paziente in terapia infusionale presso il reparto di gastroenterologia dell’Ospedale Sacco di Milano secondo l’A3 report

ore e 7 minuti, dal momento dell’arrivo in reparto, lo svolgimento dell’infusione e, infine, le dimissioni. L’intero percorso del paziente è stato analizzato nelle singole fasi: puntualità del paziente, attesa per la visita, durata della visita, attesa per l’infusione, attesa per le dimissioni (Tabella 1). In sede di discussione durante l’incontro Gruppi di Miglioramento di luglio 2022, sono stati individuati quali punti aggredibili i ritardi del paziente (da dover sensibilizzare alla puntualità) e la durata media della visita, rallentata spesso da problemi con il sistema informatico dell’ospedale. Non sono invece emerse problematiche in merito alla gestione della sala infusionale in termini di spazi poltrona e condivisione con altri reparti. Tra luglio e agosto sono state messe in atto le azioni di miglioramento in merito alla sensibilizzazione del paziente al rispetto dell’orario della visita e sono stati organizzati incontri di confronto con il reparto IT dell’ospedale per l’aggiornamento e l’ottimizzazione nel sistema di profili pazienti al fine di ottenere “impegnative standard”.

Gli effetti sono stata quindi valutati con una seconda raccolta dati a settembre la cui analisi ha evidenziato una riduzione del 12% dei tempi medi di permanenza del paziente presso il reparto di gastroenterologia dopo la terza infusione (con un tempo medio di 1ora e 52 minuti a settembre).

IL REPARTO DI GASTROENTEROLOGIA DELL’OSPEDALE DI PADOVA: I RISULTATI

OTTENUTI

Nel reparto di Gastroenterologia di Padova, la tempificazione della Value Stream Mapping del processo di «terapia infusionale» è cominciata a giugno 2021 e ha evidenziato un importante gap tra la durata desiderata e la durata effettiva. In particolare, per i pazienti sottoposti a terapia “corta”, è stato registrato un tempo medio doppio rispetto ai desiderata: 3 ore abbondanti a fronte dell’ora e mezza prevista.

Al fine di identificare quali fossero nel percorso del paziente le attività non-a-valore responsabili dei lunghi tempi di percorrenza, è stata condotta una seconda raccolta dati più dettagliata, che ha incluso fasi quali il tempo per l’effettuazione del tampone per infezione da Sars-Covid-19, l’attesa del medico, la durata della visita, il tempo necessario alla compilazione dei questionari da parte del paziente, l’attesa dell’avvio della terapia, la durata della terapia e infine le dimissioni.

Questa operazione ha permesso l’individuazione delle potenziali cause aggredibili e responsabili dell’allontanamento del tempo di attraversamento effettivo rispetto ai desiderata:

█ sovraccarico del personale infermieristico;

█ lunghi tempi per effettuazione del tampone;

█ mancato rispetto del piano appuntamenti da parte dei pazienti;

█ lunghi tempi di compilazione dei questionari da parte dei pazienti.

TIPO TERAPIA DURATA DESIDERATA DURATA MIN DURATA MAX DURATA MEDIA GAP MEDIO Corta 01:30 01:45 04:30 03:11 01:41 Lunga 02:00 o 03:00* 03:00 04:15 03:34 n.d.*
█ Figura 3. Confronto della durata totale del percorso del paziente in terapia infusionale presso il reparto di gastroenterologia dell’Ospedale Sacco di Milano prima e dopo la messa in atto delle azioni di miglioramento: si registra una riduzione dell’12% dei patient journey tra giugno e settembre 2022 █ Tabella 2. Durata totale del percorso del paziente in terapia infusionale presso il reparto di gastroenterologia dell’Ospedale di Padova, con distinzione tra terapia “corta” e “lunga” (*la terapia lunga a sua volta si distingue in terapia con o senza induzione con diverse tempistiche di riferimento)
33 ORGANIZZAZIONE febbraio 2023
█ Figura 4. Fasi del percorso del paziente in terapia infusionale presso il reparto di gastroenterologia dell’Ospedale di Padova analizzate

Per ognuna delle cause il gruppo di miglioramento ha elaborato delle contromisure che il centro si è quindi impegnato a mettere in atto da novembre 2021 e settembre 2022 con i seguenti risultati:

█ riduzione del 39% dei tempi medi di effettuazione del tampone, grazie all’impiego di una risorsa aggiuntiva per l’effettuazione tampone (ma anche per effetto di una diminuzione dell’affluenza di pazienti che hanno avuto necessità di effettuare il tampone);

█ riduzione del 50% dei tempi di attesa della visita del medico e compilazione questionario, merito di un confronto tra i diversi questionari per l’identificazione delle informazioni comuni al fine di snellire la raccolta di informazioni;

█ riduzione del 57% dei tempi di dimissione, grazie alla maggior disponibilità del personale infermieristico (per la presenza di nuova risorsa di cui sopra) e come diretta conseguenza della riduzione dei tempi di compilazione dei questionari da parte dei pazienti (di cui sopra).

La durata totale del percorso del paziente in terapia “corta” da giugno 2021 a settembre 2022 ha quindi registrato un miglioramento complessivo del 34%, registrando una durata media di 2 ore e 6 minuti a fronte della prima misurazione media pari a 3 ore e 11 minuti.

Per quanto concerne i tempi di percorrenza della terapia “lunga senza induzione”, è stato registrato un miglioramento del 19,6% da novembre 2021 a settembre 2022.

CONCLUSIONI

La volontà del Percorso di Formazione è stata quella di supportare il centro di riferimento tramite un approccio metodologico che, attraverso la raccolta di indicatori di valutazione dell’efficienza organizzativa e di soddisfazione del paziente, potesse rappresentare un vero e proprio nuovo strumento di applicazione di un modello clinico-organizzativo di gestione del Patient Journey centrato sulle necessità del paziente e sui suoi risultati di cura.

I primi risultati ottenuti, grazie alla messa in atto delle contromisure applicate nel breve termine, hanno confermato l’efficacia della metodologia Lean nell’identificazione di punti aggredibili nei processi sanitari al fine di proporre azioni di miglioramento per ottenere rapidi risultati. Il cambiamento parte dalla presa di coscienza di chi vi opera e lavora costantemente per ottenere il meglio, e la metodologia Lean affianca e supporta i professionisti nel percorso di efficientamento dei processi clinico-assistenziali.

Bibliografia

█ BENSA, Giuliana; VILLA, Stefano; PRENESTINI, Anna. La logistica del paziente in ospedale: aspetti concettuali, strumenti di analisi e leve di cambiamento. La logistica del paziente in ospedale, 2008.

█ GALGANO, Alberto; GALGANO, Cristina. Il Sistema Toyota per la Sanità. Più qualità meno sprechi. goWare & Guerini Next, 2018.

█ KRAFCIK, John F. Triumph of the lean production system. Sloan management review, 1988.

█ POPPENDIECK, Mary, et al. Principles of lean thinking. IT Management Select, 2011.

█ VILLA, Stefano. L’ Operations management a supporto del sistema di operazioni aziendali. Modelli di analisi e soluzioni progettuali per il settore sanitario. CEDAM, 2012.

█ VONA, Roberto; DI PAOLA, Nadia. Lean thinking in sanità: il caso della logistica degli approvvigionamenti e della distribuzione ospedaliera dei farmaci, 2014.

█ WOMACK, James P.; JONES, Daniel T. Lean thinking—Banish waste and create wealth in your corporation. Journal of the Operational Research Society, 1997.

█ WOMACK, James P.; JONES, Daniel T. Lean thinking. Come creare valore e bandire gli sprechi. goWare & Guerini Next, 2017.

Gli autori

LUDOVICO BALDESSIN

AD Edra S.p.A.

SIMONA MONTERISI

Project Leader, Edra S.p.A

CLAUDIA SPINOSA

█ Figura 5. Confronto della durata media totale del percorso del paziente in terapia infusionale “corta” presso il reparto di gastroenterologia dell’Ospedale di Padova

Project Manager, Edra S.p.A.

34 ORGANIZZAZIONE febbraio 2023

Il manuale è una guida operativa alla corretta applicazione delle norme di riferimento per le attività soggette ai controlli e alle verifiche di prevenzione incendi.

Il testo nasce con l’obiettivo di fornire al Progettista uno strumento utile alla selezione della procedura adottabile nella realizzazione di un nuovo progetto di prevenzione incendi. Per ogni attività compresa nell’Allegato I del DPR 151/2011, per la quale è possibile applicare il Codice o, in alternativa, le regole tecniche tradizionali, si sono valutate le procedure di carattere generale (RTO) impiegabili, unitamente alle norme tecniche collegate, al fine di consentire la scelta immediata della metodologia idonea e consentita dalle disposizioni normative.

Novità
www.build.it

Impianti VCCC per i laboratori di produzione farmaci antiblastici

Vediamo quali sono i criteri di progettazione degli impianti di Ventilazione e Condizionamento a Contaminazione Controllata per le Unità Farmaci Antiblastici

La ricostituzione finale dei farmaci chemioterapici antiblastici, effettuata in ospedale con dosaggi personalizzati sul singolo paziente mediante miscelazione con appositi eccipienti del principio farmaceutico attivo, è un’ operazione molto critica: █ essendo il principio farmaceutico attivo potenzialmente pericoloso è necessario proteggere l’operatore e l’ambiente; █ dovendo il prodotto essere somministrato per via parenterale esso deve risultare perfettamente sterile è pertanto necessario proteggere il prodotto stesso.

In ragione di ciò i laboratori di galenica clinica, comunemente chiamati UFA “Unità Farmaci Antiblastici”, in cui vengono prodotti tali farmaci costituiscono uno dei reparti ospedalieri più critici e delicati che devono essere progettati dal punto di vista edile ed impiantistico con gli stessi criteri di un ambiente farmaceutico.

LINEE GUIDA PROGETTUALI PER I LABORATORI UFA

Le più importanti linee guida per la progettazione dei laboratori di produzione galenica sterile di farmaci antineoplastici personalizzati sono le seguenti:

1. provvedimento della Conferenza permanente per i rapporti tra lo Stato, le Regioni e le Province Autonome di Trento e Bolzano del 5 agosto 1999 (Gazzetta Ufficiale 7 ottobre 1999, n. 236) : “Documento di linee guida per la sicurezza e la salute dei lavoratori esposti a chemioterapici antiblastici in ambiente sanitario”;

2. linee guida ISPESL maggio 2010 “Indicazioni per la tutela dell’operatore sanitario per il rischio di esposizione ad antiblastici”;

3. linee guida ISOPP (International Society of Oncology Pharmacy Practitioners) aprile 2006 “Standards of Practice: Safe Handling of Cytotoxics”.

Gli aspetti salienti dell’ormai datato provvedimento della Conferenza permanete Stato Regioni sono i seguenti:

█ la produzione dei farmaci chemioterapici antiblastici deve avvenire in una struttura centralizzata, isolata e protetta;

█ la preparazione dei farmaci deve avvenire sotto cappe a flusso laminare di classe II;

█ il ricambio dell’aria deve essere pari ad almeno 6 Vol/h.

Esso non specifica:

█ la classe di contaminazione particellare dell’ambiente;

█ il gradiente di pressione dell’ambiente rispetto ai locali attigui.

di Matteo Bo, Giorgio Bo
36 IMPIANTISTICA febbraio 2023

Le linee giuda ISPEL, dopo aver precisato che “i chemioterapici antiblastici sono stati riconosciuti dalla Comunità Scientifica come sostanze cancerogene o, probabilmente, cancerogene per l’uomo”, prescrivono che la preparazione dei farmaci antiblastici venga effettuata in un ambiente possibilmente centralizzato, appositamente dedicato e in depressione. L’UFA deve essere dotato di un sistema di ventilazione e condizionamento in grado di abbattere quanto più possibile la concentrazione in aria dei composti pericolosi, con almeno 6 ricambi ora di aria esterna. L’operatore deve eseguire la preparazione del farmaco sotto cappa a flusso laminare verticale oppure in un isolatore.

Lo standard ISOPP costituisce senza dubbio la linea guida più completa chiara ed esaustiva da cui desumere i criteri di progettazione di un reparto UFA.

Ad esso si farà pertanto riferimento nel seguito.

I locali UFA devono risultare perfettamente stagni e le uniche fessure di trafilamento dell’aria devono essere costituite dalle porte, quest’ ultime del tipo per camere bianche (porte pharma) dotate di ghigliottina a pavimento (air stop).

Prescrizioni relative agli impianti HVAC

Relativamente agli impianti HVAC lo standard, nel precisare che il reparto UFA deve essere classificato con i criteri di una camera bianca di tipo farmaceutico, richiama le seguenti due linee guida:

█ EudraLex Volume 4 EU Guidelines to Good Manufacturing Practice Annex 1 “Manufacture of sterile Medicinal Products” note come linee guida EU GMP;

█ Linee guida PIC/S (Pharmaceutical Inspection Co-operation Scheme): “Guide to good practices for the preparation of medicinal products in healthcare establishments”

LE

INDICAZIONI PROGETTUALI FORNITE DALLO STANDAR ISOPP

Prescrizioni relative alle opere edili

Relativamente agli aspetti costruttivi edili lo standard si limita a prescrivere la realizzazione di ambienti facilmente pulibili: pareti con superfici lisce e resistenti all’ azione dei detergenti, illuminazione ad incasso nel soffitto, assenza di sporgenze.

In ragione di ciò i locali UFA sono di norma realizzati con pareti prefabbricate (così dette pareti pharma) specifiche per ambienti classificati, costituite da pannelli sandwich autoportanti rivestiti su entrambi i lati da un laminato plastico e sigillati fra loro con mastice di silicone.

Gli angoli e gli spigoli devono essere realizzati con profili sgusciati, i pavimenti in PVC antistatico dissipativo oppure in resina.

I controsoffitti devono essere anch’essi di tipo farmaceutico a tenuta, reticolo 600*600 mm con pannelli di tamponamento in lamiera, alluminio o PVC montati in appoggio sul reticolo di sostegno e accuratamente sigillati. Ove necessario tali controsoffitti devono essere pedonabili.

Poiché la preparazione di farmaci chemioterapici antiblastici è da ritenersi una preparazione asettica essa deve essere eseguita in un ambiente di grado A ai sensi EU GMP.

Si possono utilizzare due diversi tipologie di dispositivi biohazard per operare in ambiente di grado A (fig. 1):

1. Le cappe di sicurezza biologiche a flusso laminare verticale (LAF) di Classe II ( Biosafety Cabinet classe II = BSC classe II);

2. Isolatori a pressione positiva o negativa;

La classificazione dell’ambiente e i livelli di pressione da mantenere dipendono dal tipo di dispositivo biohazard utilizzato.

Infatti, le linee guida PIC/S, oltre a segnalare che poiché si manipolano prodotti farmaceutici pericolosi l’ambiente deve essere in pressione negativa, prescrivono che i locali UFA abbiano i seguenti gradi di protezione ai sensi EU GMP:

█ in caso di impiego di cappe a flusso laminare verticale di classe II ambiente almeno di grado B;

█ in caso di impiego di isolatori a pressione dell’aria negativa ambiente almeno di grado C;

37 IMPIANTISTICA febbraio 2023
█ Figura 1. Dispositivi biohazard A: cappa di sicurezza biologica (BSC) Classe II e B: isolatore entrambi in grado di garantire un flusso laminare di grado A secondo EU GMP sul piano di lavoro

in caso di impiego di isolatori a pressione dell’aria positiva, che sono totalmente e permanentemente sigillati rispetto all’ ambiente essi possono essere installati anche in una stanza non controllata o un ambiente di grado D.

Le soluzioni in essere più ricorrenti sono costituite dall’ impiego di cappe a flusso laminare, in quanto meno costose degli isolatori. In questo caso gli ambienti devono avere una classe di contaminazione particellare misurata in condizioni operational almeno di grado B. Sempre più ospedali hanno però già iniziato ad utilizzare gli isolatori a pressione dell’aria negativa che risultano più sicuri. In questo caso gli ambienti devono avere una classe di contaminazione particellare misurata in condizioni operational almeno di grado C.

CRITERI DI CONTROLLO DELLE PRESSIONI DIFFERENZIALI

Trattandosi di ambienti classificati l’ accesso ai laboratori UFA deve necessariamente avvenire attraverso bussole di isolamento più comunemente note come “air lock” con porte interbloccate. La figura 2 illustra le varie tipologie di air-lock.

I laboratori UFA devono essere caratterizzati dai seguenti gradienti di pressione:

█ pressione negativa rispetto al proprio air-lock di accesso, affinché sia sempre impedita in caso di incidente la fuoriuscita di sostanze pericolose;

█ pressione positiva rispetto all’ ambiente esterno affinché sia sempre garantita la massima asepsi.

La figura 3 illustra le modalità di controllo delle pressioni differenziali che perseguono i suddetti obiettivi. L’ air-lock con cui si accede al laboratorio UFA deve essere del tipo “bolla” con lo stesso grado di contaminazione particellare del laboratorio in modo tale che l’aria che entra nel laboratorio classificato provenga comunque da un ambiente di pari classe di contaminazione. L’apertura di una singola porta di uno degli air-lock mantiene il verso della sequenza delle pressioni.

È consigliabile venga installato un indicatore delle pressione differenziale rilevata fra il laboratorio UFA e il relativo air lock per avere sempre chiaramente monitorata la corretta pressurizzazione della stanza.

█ Figura 2. Tipologie di air lock
38 IMPIANTISTICA febbraio 2023
█ Figura 3. Gradienti di pressione da mantenere

ESEMPIO DI UN REPARTO UFA

L’ intervento riportato a titolo esemplificativo è costituito da tre laboratori UFA dotati di cappe BSC di classe II.

La figura 4 illustra il lay out distributivo del reparto, la figura 5 la classificazione dei vari locali e la figura 6 i livelli di pressione.

L’impianto di Ventilazione e Condizionamento a Contaminazione Controllata (VCCC) è illustrato nella figura 7 (stralcio relativo a uno dei laboratori UFA). Esso è dimensionato per garantire nei laboratori UFA le seguenti condizioni di progetto:

█ Grado di contaminazione particellare in condizioni operational secondo EU GMP: B

█ Inverno:

 Temperatura: 20°C

 Umidità relativa: 45%

█ Figura 4. Disposizione degli ambienti e dei relativi arredi

█ Estate:

 Temperatura: 24°C

 Umidità relativa: 55 %

█ Portata minima aria esterna per ventilazione: 6 Vol/h

L’impianto VCCC è del tipo a tutt’ aria esterna multizone con batterie di post riscaldo più sistemi di ricircolo locali e filtrazione assoluta terminale.

L’ aria esterna viene trattata in una UTA aria primaria a punto fisso (14 °C) sia in inverno, sia in estate. Il sistema di recupero deve essere del tipo a doppia batteria con fluido intermedio in quanto, come verrà più oltre descritto, l’espulsione dell’ aria deve avvenire mediante appositi cannister con filtri assoluti del tipo bug in bug out.

39 IMPIANTISTICA febbraio 2023
█ Figura 5. Gradi di classificazione dei vari locali secondo EU GMP

Per ciascun locale l’aria esterna viene immessa in appositi plenum posti sopra il controsoffitto nei quali arriva anche l’ aria ambiente di ricircolo prelevata nella parte bassa delle pareti. Da tali plenum viene diffusa nei locali di norma mediante appositi ventilatori dotati di filtro assoluto noti come Fan Filter Units (FFU) di cui la figura 8 illustra uno spaccato. Il controllo in continuo del gradiente di pressione fra il laboratorio UFA e il proprio air lock di accesso viene effettuato in continuo tramite la serranda motorizzata VAV 1 di figura 7. Il dimensionamento delle portate di aria esterna da immettere nei locali avviene secondo i seguenti criteri:

a. Laboratori UFA la portata dell’aria esterna di progetto è la massima fra i seguenti valori:

█ portata di ventilazione;

█ portata necessaria per coprire il carico termico sensibile;

█ portata necessaria per garantire il controllo delle pressioni in condizione di cappa funzionante. È pertanto assolutamente indispensabile conoscere la portata espulsa dalla cappa. Quest’ ultimo è in generale il valore maggiore.

b. Air lock e pass box la portata di progetto è quella necessaria per garantire il controllo delle pressioni (portata sotto porta).

La tabella 1 riporta i risultati di tali dimensionamenti

La portata complessivamente immessa in ambiente attraverso i filtri HEPA (somma della portata di aria esterna e della portata dell’aria ambiente ricircolata) è il dato di progetto in genere più delicato in quanto è quello che consente il controllo del grado di contaminazione particellare in condizioni operational.

█ Figura 7. Stralcio dello schema funzionale relativo a uno dei laboratori UFA (locale 29) e relativi air lock di accesso (locale 26) e pass box (locali 49 e 50). CAV =Costant Air Volume. VAV = Variable Air Volume █ Figura 6 Livelli di pressione mantenuti nei vari locali
40 IMPIANTISTICA febbraio 2023

Come in tutte le clean rooms esso dipende molto dalla vestizione e dal comportamento del personale. In ragione di ciò non è facile da valutare. L’esperienza dimostra che per gli ambienti di grado B i valori minimi della portata complessiva da immettere in ambiente sono in genere pari a circa 50÷60 Vol/h.

Poiché l’aria estratta dalle cappe e dall’ ambiente potrebbe essere inquinata da sostanze pericolose per la salute umana, essa prima di essere espulsa all’ esterno deve attraversare un filtro assoluto di sicurezza in modo da evitare rischi di inquinamento ambientale. Tali filtri HEPA possono quindi accumulare sostanze pericolose. Per evitare che esse possano venire a contatto con il personale addetto alla manutenzione, si utilizzano specifici canister di contenimento che garantiscono la loro sostituzione in totale sicurezza (procedura bag in/bag out).

[PA] [PA] [M2] [M] [M3] [M3/H] [VOL/H] [M3/H] [M3/H] [M3/H] [M3/H] DIURNO OPERATIONAL UFA 1 CAPPA SPENTA B H14 +15 -15 15,8 3 47,4 2450 52 850 0 950 100 UFA 1 CAPPA ACCESA 850 700 250 100 NOTTURNO STAND BY UFA 1 CAPPA SPENTA B H14 +15 -15 15,8 3 47,4 2450 52 400 0 500 100 [PA] [PA] [M2] [M] [M3] [M3/H] [VOL/H] [M3/H] [M3/H] [M3/H] DIURNO E NOTTURNO AIR LOCK INGRESSO UFA B H14 +30 +15 3,9 3 6,9 550 80 200 100 100 REGIME REGIME LOCALE LOCALE GRADO EU GMP OPERATIONAL GRADO EU GMP OPERATIONAL FILTRAZIONE FILTRAZIONE ΔP DA MANTENERE RISPETTO ESTERNO ΔP DA MANTENERE RISPETTO ESTERNO ΔP DA MANTENERE RISPETTO AIR LOCK SUPERFICIE SUPERFICIE ALTEZZA ALTEZZA VOLUME VOLUME PORTATA IMMESSA FFU ( CAV) PORTATA IMMESSA FFU ( CAV) RICIRCOLI TOTALI RICIRCOLI TOTALI PORTATA ARIA ESTERNA ( VAV ) PORTATA ARIA ESTERNA ( VAV ) PORTATA ESPULZIONE CAPPA ( CAV ) PORTATA ARIA ESPULSA ( VAV ) PORTATA IN TRANSITO DALL’ AIR LOCK ΔP DA MANTENERE RISPETTO UFA PORTATA ARIA IN TRANSITO VS UFA PORTATA ARIA IN TRANSITO VS CORRIDOIO MATTEO BO GIORGIO BO Prodim S.r.l, Torino Gli autori
█ Figura 8. Spaccato di un fan filter unit
41 IMPIANTISTICA febbraio 2023

L’efficienza energetica nel sistema di generazione del freddo per i grandi ospedali

La tecnologia a levitazione magnetica impiegata nelle macchine a compressione di vapore porta a numerosi vantaggi per impianti e applicazioni dove la generazione del freddo è richiesta h24 ogni giorno dell’anno, come accade negli edifici ospedalieri

di Michela Motta
42 IMPIANTISTICA

Gli ospedali sono a oggi paragonabili a industrie energivore, con elevati consumi di energia elettrica, frigorifera e termica. Questi sistemi risultano essere in funzione tutto l’anno per gestire macchinari e sale operatorie a temperature/umidità controllate.

Si stima che il 40% dei consumi globali siano legati agli edifici e di questo, ben il 37% al mondo HVAC, ovvero al riscaldamento e raffrescamento degli ambienti.

Una maggiore attenzione al sistema di generazione può portare a notevoli vantaggi, in particolare sui grandi volumi e su centrali complesse, caratterizzate da diverse tecnologie (chiller, pompe di calore, assorbitori, torri evaporative ecc.).

Un altro aspetto fondamentale su impianti che lavorano in continuità sono i costi relativi all’intero di ciclo di vita. Fondamentale quindi approfondire i temi legati alla sostenibilità, all’efficienza energetica e alla manutenzione di centrale.

Negli ospedali spesso la generazione del freddo è richiesta h24 ogni giorno dell’anno. Le centrali sono spesso caratterizzate da grandi potenze e da più unità al fine di garantire anche un minimo di ridondanza se non addirittura completa. Inoltre, spesso chiller si trovano ad interfacciarsi con pompe di calore (condensate ad aria o ad acqua) o con un chiller ad assorbimento. Importante quindi calare sempre la scelta delle macchine nel singolo impianto e gestire in modo ottimale anche la regolazione di centrale, andando a prevedere le cascate e le priorità delle diverse macchine installate. Come macchine a compressione di vapore, la tecnologia a levitazione magnetica porta a numerosi vantaggi per questa tipologia di impianti ed applicazioni.

La proposta riguarda in particolare chiller con compressore centrifugo monostadio, azionato da inverter, a levitazione magnetica con gas R1233zd(E), completamente senza lubrificazione.

L’unità è caratterizzata da gas sostenibile, alte efficienze e bassi costi di manutenzione.

Di seguito si scenderà nel dettaglio di ognuno di questi aspetti, partendo da alcune considerazioni riguardo i refrigeranti.

Essendo i sistemi HVAC una parte significativa del consumo di energia di un edificio sono stati emessi negli anni numerosi standard, come EPBD, EcoDesign e RES, per la riduzione delle emissioni di gas serra e per un miglioramento dell’efficienza operativa delle apparecchiature HVAC.

Le norme si concentrano sulla riduzione delle emissioni tramite la riduzione delle perdite, stabilendo e richiedendo corsi di formazione, ispezioni e certificazione degli impianti. Le restrizioni sul tipo e sulla quantità di refrigerante erano inizialmente poche perché si presumeva che i gas sigillati all’interno delle unità senza perdite non avessero effetto sull’atmosfera.

La legislazione è stata un successo e ha ottenuto una riduzione totale dell’11.2% di emissioni. Ha inoltre espresso un obiettivo a

lungo termine di una riduzione complessiva del 70%, portando ad un altro regolamento emesso dall’UE nel 2014.

Il nuovo regolamento ha introdotto una graduale riduzione degli HFC senza alcun divieto, al fine di ridurre al minimo l’impatto sui settori di attività interessati e fornire tempo a società, associazioni e paesi per comprendere e attuare i requisiti. Entro il 2050 ci sarà una riduzione minima dell’80% a livello globale.

Come unità di misura viene considerata la “Quantità equivalente di CO2” (GWP x kg di refrigerante), espressa in tonnellate. Il rilascio atmosferico di una quantità di refrigerante ha lo stesso effetto sul riscaldamento globale di una quantità precisa di anidride carbonica.

Al fine di promuovere la riduzione della quantità equivalente di CO2, l’Unione europea ha istituito un regime per il quale i produttor i di refrigerante possono immettere solo un certo numero di quote l’anno sul mercato. Questo porta a prediligere refrigeranti a basso GWP.

La prima generazione di refrigeranti è stata sviluppata negli anni ‘30 con l’obiettivo di migliorare l’efficienza di processo. Altre quattro generazioni sono state sviluppate a partire dalla seconda metà del secolo scorso con l’obiettivo di evitare il cloro, ridurre il potenziale di riduzione dell’ozono (ODP) e ridurre il potenziale di riscaldamento globale (GWP). La nuova classe di refrigeranti sviluppata a questo scopo si chiama HFO, HydroFluorOlefins: composti organici insaturi base di carbonio, idrogeno e fluoro con un GWP ridotto a circa lo 0,1% dei refrigeranti HFC.

I parametri fondamentali da considerare per i diversi tipi di refrigerante sono quindi:

█ GWP;

█ ODP;

█ Classificazione ASHRAE: quindi individuarne la tossicità e il livello di infiammabilità.

43 IMPIANTISTICA febbraio 2023
█ Figura 1. Caratteristiche refrigeranti

Fondamentale nella scelta dei refrigeranti tenere in considerazione tutti i punti di cui sopra senza tralasciare l’efficienza della macchina e le dimensioni della stessa.

Si prenda come baseline il gas R134a, tipico HFC. A parità di potenza frigorifera, nuovi gas HFO come l’R1234ze o l’R1233zd(E) hanno bisogno di più volume. Le macchine sono di conseguenza più grandi, ma anche più efficienti.

Un buon parametro di confronto può essere il TEWI (Total Equivalent Warming Impact), ossia un parametro di valutazione del comportamento globale di una macchina frigorifera. Valuta, infatti, l’impatto diretto dovuto alle perdite di refrigerante ma anche l’impatto indiretto, ossia il contributo delle emissioni di anidride carbonica dovute alla produzione di energia elettrica assorbita dalla macchina durante il suo funzionamento.

Il gas refrigerante utilizzato per il centrifugo a levitazione magnetica è l’HFO R1233zd(E).

Questo gas ha un GWP di 4.5 (F-Gas) e viene classificato A1 ossia non tossico e non infiammabile.

Il centrifugo a levitazione magnetica è stato ingegnerizzato su questa tipologia di gas a bassa pressione altamente efficiente.

La tecnologia nasce anni fa nella marina militare statunitense, per evitare vibrazioni e gestione olio su navi e sottomarini, per poi adattarla con gli anni ad applicazioni civili.

È quindi una scelta anche altamente tecnologica oltre che efficiente e a basso costo manutentivo.

La macchina presenta un unico compressore del tipo centrifugo, il motore è ad induzione ed ermetico.

A differenza delle tecnologie centrifughe a motore aperto non presenta alette di pre-rotazione (PRV), ma la parzializzazione viene gestita direttamente dal sistema inverter (VSD – Variable Speed Drive) presente sulla macchina. Un avanzato sistema di regolazio-

NPLV AHRI STANDARD

P.to Carico Ti,c Peso

A 100% 30 1%

B 75% 24,2 42%

C 50% 18,3 45%

D 25% 18,3 12%

"SEPR

REGOLAMENTO 2016/2281 & REGOLAMENTO 2015/1095"

P.to Carico Tc in/out Te in/out

A 100% 30/35 12/7

B 93% 23/(*) (*)/7

C 87% 16/(*) (*)/7

D 80% 9/(*) (*)/7

█ Figura

ne, attuato tramite pannello di controllo, gestisce il funzionamento dell’inverter al fine di mantenere il set point richiesto all’evaporatore.

Questa tipologia di macchine viene fornita di standard con il VSD per diverse ragioni tecniche e di efficienza. La scelta dell’inverter è sempre più vantaggiosa, si riporta di seguito il grafico del COP di una unità con e senza VSD. Si nota un aumento considerevole dell’efficienza con una media del 25% e picchi anche maggiori del 30%. Solo a pieno carico le efficienze sono simili. Se si analizza però il funzionamento di un chiller, questo non andrà mai al 100% del carico ma parzializzerà in funzione delle diverse condizioni al contorno (es. temperatura e umidità esterne, carico richiesto dall’impianto ecc).

0,00 2,00 4,00 6,00 8,00 10,00 12,00 100 90 80 70 60 50 40 30 20 15 Efficienza % di carico frigorifero Rendimento
█ Figura 2. Esempio di rendimento per un centrifugo standard da 2MW, con e senza VSD
44 IMPIANTISTICA febbraio 2023
3. Calcolo NPLV (AHRI) e SEPR (EcoDesign)

Le unità, infatti, tendono a lavorare nella massima potenzialità della curva di efficienza, ovvero indicativamente tra l’80% e il 30%. Si pensi anche solo al calcolo dell’indice di efficienza stagionale NPLV (AHRI), ossia la media pesata di quattro condizioni di funzionamento. La macchina, come riportato nella tabella sottostante, lavorerà al 100% del carico solo l’1% delle ore annue e maggiormente tra il 75-50%.

Anche se fossero presenti più unità, una volta che entrano tutte in funzione, esse parzializzano alla stessa percentuale di carico per questioni idrauliche. Di conseguenza lavorare con macchine inverter è sempre vantaggioso.

L’inverter presenta vantaggi anche legati alla durabilità e affidabilità delle macchine in quanto provoca minori stress meccanici, in particolare:

█ avviamento graduale con corrente in entrata inferiore alla corrente a nominale;

█ l’accelerazione graduale riduce le sollecitazioni esercitate su motore e linea d’asse;

█ riduce i livelli di rumore nella maggior parte delle condizioni di funzionamento;

█ ottima parzializzazione con alte efficienze;

█ conforme allo standard IEEE 519-2014 se utilizzato con un filtro attivo delle armoniche (opzionale). Il filtro attivo riduce sotto il 5% la distorsione delle armoniche ed è certificato insieme alla macchina stessa.

Di conseguenza, tutti i vantaggi sopra elencati, a fronte ormai di un minimo investimento aggiuntivo per installare l’inverter sulle

unità (direttamente nel QE a bordo macchina) è ampiamente ripagato nel corso di poche ore di funzionamento delle stesse.

Il tipo di gas scelto permette appunto l’utilizzo di cuscinetti magnetici, ossia il rotore gira nel solo campo magnetico. Il controllore "gestito dal pannello di controllo a bordo macchina" controlla in continuo la posizione del rotore (con circa 20.000 misure al secondo) al fine porlo sempre nella posizione corretta.

Il corretto posizionamento del rotore anche in seguito ad un eventuale mancanza di alimentazione della macchina è dovuto al fatto che vi è una UPS installata nel QE a bordo macchina per il rallentamento e il corretto posizionamento dello stesso al

MAGNETIC BEARING CONTROLLER CONDENSER COMPRESSOR/ MOTOR EVAPORATOR
MAGNETIC BEARINGS
Refrigerant Circuit █ Figura 4. Schema di un sistema a levitazione magnetica
45 IMPIANTISTICA febbraio 2023
█ Figura 5. Tabella di efficienza al variare del carico e della temperatura in ingresso al condensatore - Esempio per una chiller da 2 MW a 7/12C e 30/35C

fine di poter ripartire senza problemi nel momento in cui torna l’alimentazione della macchina.

Non vi è quindi nessun tipo di lubrificazione (senza olio, senza refrigerante). Questa scelta tecnologica porta a numerosi vantaggi.

Non essendo lubrificata la macchina gestisce basse temperature in ingresso al condensatore, ossia bassi rapporti di compressione. Questo anche grazie all’orifizio variabile del circuito frigo che fornisce un’ampia gamma di punti operativi stabili senza l’uso del bypass del gas caldo. Viene svolto un continuo rilevamento del livello del refrigerante nel condensatore e viene di conseguenza regolata la posizione della valvola tramite il pannello di controllo per ottimizzare il livello del refrigerante. Questa tipologia di unità è decisamente più efficiente di quelle lubrificate ad olio in condizioni nominali con un miglioramento del COP del 15%-20%, ma si esprime al meglio sulle efficienze stagionali e nei diversi punti di lavoro off-design. Di seguito si riporta una tabella con i rendimenti di un’unità da 2MW al variare del carico frigorifero (10%- 100%) e della temperatura in ingresso al condensatore.

L’unità gestisce temperature fino ai 5C pur facendo 7C all’evaporatore. Come si nota dalla tabella le efficienze sono molto alte. Le macchine solitamente non gestiscono temperature sotto i 16/18C in ingresso alla macchina. Sugli impianti lato torre evaporativa si trova spesso installata una valvola a tre vie proprio per la gestione della temperatura in ingresso alla macchina. Questo tipo di tecnologia, non avendo problemi di lubrificazione, può scendere molto come temperatura in ingresso al con-

densatore con, di conseguenza, alti rendimenti e bassi consumi di energia elettrica. La macchina lavora, a bassi rapporti di compressone, in una sorta di free cooling nel senso che il compressore è acceso per far girare refrigerante ma con bassissimi consumi senza necessità di installare scambiatori di calore, ulteriori gruppi di pompaggio o addirittura torri dimensionati a BU inferiori per gestire il pieno carico dell’impianto. Si ha quindi un impianto molto più semplice, anche come gestione, e nettamente più performante.

Un’altra caratteristica del centrifugo a levitazione magnetica è quella di avere un evaporatore falling-film, ossia un fascio semiallagato, come rappresentato nella figura 7. Questa tecnologia permette di avere maggiore efficienza e meno carica di refrigerante.

Un aspetto molto importante di questa tipologia di compressore centrifugo è legato alla bassa manutenzione dello stesso. Oltre a non esserci la manutenzione legata al circuito dell’olio, non vi è da fare manutenzione del compressore in quanto la driveline è costruita per durare tutta la vita utile della macchina. Questo permette un grande risparmio sulla revisione del compressore e delle tenute meccaniche.

La tecnologia dei centrifughi a levitazione magnetica è applicata al meglio su impianti che lavorano tante ore e durante tutto l’anno, in quanto permettono di lavorare su tutta l’ampia gamma operativa anche a basse temperature di condensazione, pur avendo bassissimi costi di gestione e manutenzione.

In conclusione, si riassumono i plus dei centrifughi “lubrification free” a levitazione magnetica:

Ore Ore COP.R lubrificato ad olio COP.R levitazione magnetica COP.R 1200 1000 800 600 400 200 0 30.00 25.00 20.00 15.00 10.00 5.00 0.00 29_031_8 27_029_8 24_026_8 21_023_8 18_020_8 16_018_8 13_015_8 10_012_8 7_09_8 4_06_8 -2_04_8 -1_01_8 -4_0 --1_2 -7_0 --4_2 -9_0 --6_2 -12_0 --9_2 46 IMPIANTISTICA febbraio 2023
█ Figura 6. Temperature annuali a Milano e relativa cadenza: confronto di COP tra un centrifugo lubrificato e un levitazione magnetica

█ refrigerante sostenibile HFO R1233zd(e);

█ motore a induzione con cuscinetti magnetici;

█ alta efficienza in ogni condizione;

█ ottimi rendimenti a carichi parziali;

█ possibilità di installare un filtro armonico attivo;

█ bassi costi di manutenzione straordinaria.

Di seguito si vuole approfondire uno schema di centrale esistente di un ospedale nel nord Italia con due centrifughi a levitazione magnetica senza lubrificazione da 4MW l’uno condensati ad acqua di torre.

L’impianto prevede un circuito primario e uno secondario entrambi a portata variabile. Ogni chiller monta un misuratore di energia frigorifera (misuratore di portata e due sonde di temperatura).

Una nota progettuale: queste unità sono in grado di gestire la portata variabile lato evaporate dell’impianto, portate minori con dT più elevati rispetto ai classici 5C ed eventualmente set point variabili di temperatura.

Le macchine, come precedentemente spiegato, sono molto efficienti anche stand alone. Ovviamente potendo gestire con un sistema di supervisione tutta la centrale, l’efficienza della stessa verrà amplificata.

Questo aspetto è fondamentale, soprattutto se presenti più di una unità e/o unità diverse tra loro a livello tecnologico.

Un esempio spesso ricorrente negli ospedali è la presenza di un sistema tri-generativo, ossia cogenerazione e assorbitore (LiBr).

Quest’ultimo insiste sull’impianto primario di acqua refrigerata di conseguenza si deve regolare la centrale in modo da dargli mas-

sima priorità al fine di usufruire di tutto il caldo di scarto del motore. Anche l’assorbitore prevede una torre evaporativa (o sistema equivalente) di conseguenza vi saranno diversi aspetti da regolare in centrale. Questa, per esempio, è bene tenerla separata dai centrifughi a levitazione magnetica in quanto un assorbitore gestisce fino a 20C in ingresso al condensatore mentre il chiller fino a 5°C come spiegato sopra.

La regolazione per l’inserimento delle due macchine sarà impostata sulla base dell’energia frigorifera effettivamente richiesta dall’impianto o in base alla temperatura di set point all’evaporatore.

La logica della cascata di accensione/spegnimento macchine è gestita in funzione del carico richiesto dalle utenze, dalla temperatura bulbo umido e dalla percentuale di carico a cui si vuole far lavorare le singole unità cercando di stare nel punto della curva di rendimento più alto possibile.

La regolazione del circuito di condensazione è effettuata sulla base della temperatura di mandata ai gruppi frigoriferi. Il set point di temperatura sarà dinamico, in funzione del valore di temperatura a bulbo umido letto dalla rispettiva sonda esterna in modo da sfruttare anche le basse temperature in ingresso al condensatore e usare quindi la macchina in modo più efficiente.

█ Figura 7. Evaporatore falling film █ Figura 8. Tecnologie a confronto: centrifugo lubrificato (dx) e levitazione magnetica (sx)
L’Autrice 47 IMPIANTISTICA febbraio 2023
MICHELA MOTTA HVAC Technical Sale Support Manager Johnson Controls

La telemedicina nella cura dei pazienti affetti da HIV

L’esperienza del Policlinico Umberto I di Roma

Al giorno d’oggi l’infezione da HIV non rappresenta più una condizione morbosa gravata da un esito infausto, al contrario, grazie all’avvento di terapie antiretrovirali (TARV) sempre più efficaci e tollerabili attualmente questa patologia è caratterizzata da un andamento cronico, assimilabile per esempio a quello dell’ipertensione arteriosa o del diabete. Sebbene l’aspettativa e la qualità di vita delle persone che vivono con infezione da HIV, in inglese “people living with HIV” (PLWH), siano sostanzialmente sovrapponibili a quelle delle persone sieronegative, per mantenere un buono stato di salute a lungo termine le PLWH necessitano da un lato di assumere indefinitamente la TARV e dall’altro di sottoporsi a periodici controlli per il follow-up della patologia e per lo screening ai fini della prevenzione delle così dette non-AIDS related comorbidities (un gruppo di patologie che riconoscono un’eziologia infiammatoria e che si presentano con particolare frequenza nelle PLWH nonostante l’assunzione della TARV)1

Alla luce di quanto fin qui riportato si può ben capire come un’efficace continuità assistenziale e uno stabile rapporto tra l’assistito e l’Infettivologo rappresentino elementi di primaria importanza per il raggiungimento di un soddisfacente stato di salute del paziente nel lungo termine. Per l’ottenimento di questo risultato è necessario, in primo luogo, il mantenimento dell’aderenza nei confronti della TARV e dei periodici controlli clinici, laboratoristici e strumentali.

In questo contesto, la pandemia da SARS-CoV2 ha comportato un’improvvisa e prolungata sospensione delle attività degli ambulatori per la cura e il follow-up dell’infezione da HIV, con conseguenze fortemente negative sulla continuità assistenziale. Va inoltre considerato che la TARV rappresenta non solo uno strumento per la salute del singolo, ma anche uno strumento per la prevenzione della circolazione dell’infezione da HIV nella società civile (infatti le persone con infezione da HIV che grazie all’assunzione della TARV presentano una viremia stabilmente non rilevabile non corrono il rischio di trasmettere l’infezione attraverso i rapporti sessuali non protetti, il così detto paradigma U=U ovvero undetectable=untransmittable)2, pertanto qualunque ostacolo all’engagement in un efficace percorso di continuità assistenziale si può potenzialmente tramutare in un incremento del rischio generale di infezione da HIV.

La possibilità di attivare un’attività di telemedicina dedicata alle persone con infezione da HIV in follow-up presso l’Ambulatorio di Malattie Infettive dell’Azienda Ospedaliera Universitaria Policlinico Umberto I ha rappresentato un’intrigante sfida che ci ha permesso di mantenere un costante contatto con i pazienti in follow-up presso la nostra struttura sopperendo così ai limiti imposti dalle restrizioni messe in atto in epoca pandemica. Inoltre, l’ambulatorio di telemedicina si è rivelato essere uno strumento prezioso anche

di Gabriella d’Ettorre,
Eugenio Nelson Cavallari, Fabrizio Massimo Ferrara, Gregorio Egidio Recchia, Marco Ridolfi, Federica Alessi, Alessandro Lazzaro, Claudio Maria Mastroianni
48 TELEMEDICINA febbraio 2023
Il percorso di cura dell’HIV richiede frequenti controlli e follow-up; inoltre, per motivi di privacy, molti pazienti preferiscono farsi seguire da Centri in comuni diversi dalla loro residenza. L’utilizzo di strumenti di telemedicina può sensibilmente ridurre i disagi

al di là delle difficoltà strettamente legate alla pandemia, che ancora adesso ci permette di assicurare un follow-up agevole e costante a quelle persone che per vari motivi presentano difficoltà a raggiungere l’ospedale o preferiscono limitare il numero di accessi in ospedale.

L’utilizzo della telemedicina in ambito infettivologico, a parte un limitato numero di esperienze precedenti, rappresenta una recente acquisizione, legata soprattutto alla pandemia da SARS-CoV2. Infatti, sebbene alla data del 26/12/2022 risultassero indicizzati su Pubmed 54007 articoli corrispondenti al termine “telemedicine” e 10093 articoli corrispondenti a “telemedicine and COVID-19”, ricercando “telemedicine and HIV” è stato possibile identificare solo 770 risultati.

Un’aderenza subottimale alla TARV è stata direttamente associata a un più alto rischio di mortalità delle persone con infezione da HIV, anche in Italia3. Tra le principali motivazioni riconosciute come causa di una ridotta aderenza alla TARV e di ridotta retention in care tra le PLWH troviamo: la difficoltà nel programmare gli appuntamenti in relazione agli impegni quotidiani, la distanza dall’ambulatorio e le difficoltà relative al trasporto sino alla struttura ospedaliera4. Un’indagine effettuata nell’ambito di una popolazione di 371 PLWH in epoca pre-pandemica e riguardante l’attitudine rispetto al potenziale utilizzo della telemedicina per il follow-up clinico dell’infezione ha mostrato come il 57% degli intervistati abbia manifestato propensione verso l’utilizzo della telemedicina qualora questa si fosse resa disponibile. Tra gli elementi in favore della telemedicina gli intervistati hanno indicato: la maggiore facilità di organizzazione rispetto agli impegni quotidiani, la riduzione del tempo da dedicare agli spostamenti e benefici in termini di privacy; di contro, il timore di non riuscire a comunicare in maniera efficace e soddisfacente con il medico e il timore rispetto alla sicurezza dei propri dati personali sono stati indicati quali elementi sfavorevoli rispetto all’uso della telemedicina5

A tale proposito non è da trascurare la propensione e i timori dei medici rispetto all’utilizzo della telemedicina per il follow-up clinico dei pazienti con infezione da HIV. In una indagine condotta in epoca pre-pandemica in una popolazione di infettivologi esperti nella gestione dell’infezione da HIV, l’83% degli intervistati ha espresso il timore di non riuscire a valutare in maniera completa, attraverso la telemedicina, lo stato di salute dei propri pazienti. Allo stesso tempo però l’85% dei partecipanti concordava sul fatto che la telemedicina avrebbe potuto migliorare per questi stessi pazienti l’accesso all’assistenza sanitaria6. I dati disponibili in letteratura ci mostrano poi come la telemedicina si sia rivelata utile nel raggiungimento di un soddisfacente outcome virologico (inteso come soppressione della viremia plasmatica) e immunologico (inteso come valore della conta dei linfociti T CD4 circolanti) in popolazioni classicamente ritenute “difficili” come ad esempio quella carcera-

ria, le minoranze etniche, le persone senza fissa dimora, le persone soggette ad abuso alcolico o all’utilizzo di sostanze stupefacenti (a eccezione di coloro che utilizzano sostanze stupefacenti per via endovenosa)7,8

L’AMBULATORIO DI TELEMEDICINA

Presso l’Ambulatorio di Malattie Infettive dell’Azienda OspedalieraUniversitaria Policlinico Umberto I di Roma (gestito dal Prof. Claudio Mastroianni e dalla Prof.ssa Gabriella d’Ettorre) è stato attivato da settembre 2021 un ambulatorio di telemedicina dedicato alle PLWH. Il Servizio di telemedicina prevede la possibilità di effettuare televisite infettivologiche di controllo, mentre le prime visite sono erogate esclusivamente “in presenza”. Ad oggi presso tale Ambulatorio sono state effettuate 613 televisite di controllo (Figura 1). La popolazione che ne ha usufruito è risultata composta nel 27% dei casi da donne e nel 73% dei casi da uomini. La televisita infettivologica viene effettuata attraverso il collegamento a una piattaforma di comunicazione audiovisiva che permette anche lo scambio semplice e immediato di documenti, come per esempio il referto di esami diagnostici (ematochimici o radiologici), spesso effettuati dal paziente in base alle indicazioni ricevute da parte dei medici dell’Ambulatorio in occasione dei controlli precedenti. Le televisite vengono effettuate utilizzando un computer di pertinenza della Struttura sanitaria dotato di casse o cuffie audio e di una webcam oppure attraverso uno smartphone, anche questo messo a disposizione dalla Struttura ospedaliera e dedicato alle televisite infettivologiche. Sebbene l’intenzione iniziale fosse di destinare alle televisite dei giorni e orari dedicati, l’efficacia e la comodità di tale prestazione ha reso possibile una completa integrazione delle televiste con la più ordinaria attività ambulatoriale, così che attualmente le visite in presenza e quelle telematiche si alternano, in base a quanto programmato con i pazienti o in base a eventuali esigenze impreviste che rendono necessario il tramutare una visita in presenza in televisita per l’impossibilità di raggiungere fisicamente i locali dell’ambulatorio da parte del paziente.

L’età mediana dei pazienti che hanno usufruito del servizio di telemedicina è stata di 53 anni con un range tra 19 e 84 anni (fig. 1). Grazie all’utilizzo della telemedicina è stato possibile valutare pazienti presso la propria abitazione, sul posto di lavoro o durante viaggi di lavoro o di piacere. I collegamenti sono stati effettuati con diverse province del Lazio (Roma, Latina, Viterbo), regioni italiane (Valle d’Aosta, Lombardia, Abruzzo, Campania, Molise, Puglia, Calabria, Sardegna) e con diverse nazioni (Belgio, Regno Unito, Polonia, Stati Uniti, Brasile, India).

La durata media delle televisite effettuate è stata di 20 minuti (con un range tra 15 e 30 minuti). Lo svolgimento di ciascuna televisita ricalca l’abituale svolgimento di una visita in presenza ad eccezio-

49 TELEMEDICINA febbraio 2023

ne dell’esame obiettivo (raccolta dell’anamnesi patologica prossima, verifica di eventuali accertamenti effettuati nell’intervallo di tempo trascorso dalla precedente visita, indagine della presenza di sintomi preesistenti e sintomi di nuova insorgenza, verifica della terapia farmacologica in atto e di eventuali interazioni farmacologiche, verifica dell’aderenza alla TARV, visione degli esami di laboratorio di follow-up, inoltre ove possibile il paziente misura i parametri vitali e li comunica in tempo reale al medico). Un riscontro tale da indicare la necessità di organizzare una visita in presenza a integrazione della televisita si è verificato nel 9% dei casi. La complessità clinica dei casi affrontati (fig. 2) è stata valutata mediante una scala arbitraria composta di 3 livelli crescenti e basata sulle seguenti variabili: comorbidità, polifarmaco terapia, aderenza alla TARV, stato immuno-virologico. L’82% delle televisite ha mostrato un grado di complessità intermedia o elevata (casi equamente distribuiti, 41% e 41%), mentre nel 18% dei casi si è trattato di casi clinici di complessità ridotta. La durata delle televisite e la

necessità organizzare una visita in presenza sono aumentate parallelamente al grado di complessità clinica del caso.

Nessuno dei pazienti visitati mediante telemedicina ha riferito difficoltà nell’utilizzo di questo mezzo né ha avuto necessità di aiuto per riuscire a collegarsi con il medico. Il gradimento da parte dei pazienti (fig. 3), valutato al termine di ciascuna televisita mediante una scala da 1 a 5, è risultato ottimale: l’83.7% dei pazienti si è detto completamente soddisfatto del servizio (votazione 5/5), mentre il 16% si è detto soddisfatto (votazione 4/5); solo lo 0.1% e lo 0.2% dei pazienti si è detto rispettivamente insoddisfatto (votazione 1/5) o indifferente (votazione 3/5).

In definitiva, l’esperienza fin qui condotta ci ha mostrato come la telemedicina applicata alla cura e al follow-up delle persone con infezione da HIV rappresenti un’opportunità per garantire e mantenere un efficace, continuo e duraturo rapporto medico-paziente, con la potenzialità in definitiva di migliorare l’outcome di salute a lungo termine dei pazienti.

█ Figura 2: Il grado di complessità clinica dei casi affrontati mediante telemedicina è stato stratificato attraverso l’utilizzo di una scala arbitraria che ha preso in considerazione la presenza di: comorbidità, polypharmacy, aderenza alla TARV e stato immuno-virologico dei pazienti

50 TELEMEDICINA febbraio 2023

L’INIZIATIVA “TELEMEDICINA SUBITO” E LA METODOLOGIA DI IMPLEMENTAZIONE

Il progetto è stato condotto nell’ambito dell’iniziativa “Telemedicina Subito!” (www.dati-sanita.it): una collaborazione volontaria avviata già nel marzo 2020 dal Laboratorio sui Sistemi Informativi Sanitari dell’ALTEMS (1) fra organizzazioni sanitarie (figura 4), attraverso la quale è stata definita una metodologia utilizzabile anche autonomamente dalle singole aziende, per individuare le procedure secondo cui implementare televisite, nel rispetto dei requisiti specifici delle diverse patologie e dei diversi contesti dei vari centri. Come anche evidenziato nel DM 77 del 22.05.2022, “le prestazioni di telemedicina non sostituiscono completamente le prestazioni assistenziali tradizionali, ma le integrano per migliorarne efficacia, efficienza, appropriatezza e sostenibilità”. La telemedicina, quindi, non deve ridursi ad un prodotto tecnologico e/o ad una attività autonoma, alternativa e scollegata rispetto alle attività in presenza,

ma deve costituire una risorsa aggiuntiva, complementare alle attività tradizionali, in grado di fornire un valore aggiunto al paziente ed a sistema e praticabile qualora le condizioni del paziente lo richiedano e lo consentano. A questo scopo l’implementazione non può rispondere solo a generici modelli, ma deve rispecchiare le esigenze della patologia e le caratteristiche clinico-organizzative dello specifico Centro (“one size does not fit all”), in modo da rendere possibile, a seconda delle esigenze ed a fronte dello stato di salute del paziente (che possono variare nel corso del tempo), l’erogazione delle visite in presenza e/o in telemedicina, assicurando la continuità e la coerenza del percorso di cura e l’integrità del quadro clinico del paziente in modo da assicurare la completezza e la sicurezza della decisione medica (fig. 5).

Con questo approccio, la piattaforma comunicazione deve rappresentare solo lo strumento tecnologico per l’interazione con il paziente, senza determinare condizionamenti tecnici e/o organizzativi nel contesto esistente. Sia le attività amministrative (es. la prenotazione e l’eventuale pagamento del ticket), sia quelle cliniche (es. gestione della cartella clinica, prescrizione, refertazione) sono effettuate con gli stessi strumenti -cartacei o informatici- attualmente in uso presso il Centro. È solo l’interazione con il paziente, in termini di comunicazione audio/video e di scambio di messaggi e documenti, che viene eseguita mediante un sistema di comunicazione, autonomo ed indipendente rispetto alla infrastruttura tecnologica dell’azienda, in modo da non determi-

51 TELEMEDICINA febbraio 2023
█ Figura 3: Grado di soddisfazione dei pazienti valutato al termine della televisita infettivologica 1. https://altems.unicatt.it/altems-laboratori-e-osservatori-i-sistemi-informativi-sanitari-per-il-governo-dell-organizzazione

nare condizionamenti nel sistema informativo esistente, che può evolversi secondo le esigenze dell’organizzazione e secondo le linee guida definite per la convergenza con lo scenario complessivo previsto dal PNRR. Vale sottolineare come questa strategia

sia poi stata raccomandata anche dalle “Indicazioni nazionali per l’erogazione di prestazioni in telemedicina” del dicembre 2020: “La prestazione sanitaria erogata in modalità di televisita è regolarmente gestita e refertata sui sistemi informatici in uso presso

52 TELEMEDICINA febbraio 2023
█ Figura 6: I manuali per le televisite HIV presso il Policlinico Umberto I

l’erogatore, alla pari di una visita specialistica erogata in modalità tradizionale, con l’aggiunta della specifica di erogazione in modalità a distanza”

La metodologia di basa quindi su un approccio “bottom-up”: analizzando i processi esistenti sotto il profilo sanitario, organizzativo e amministrativo, e definendo se/come gli stessi processi possano essere eseguiti sostituendo il contatto in presenza mediante interazioni a distanza attraverso un sistema di comunicazione disponibile, conosciuto e possibilmente gratuito. Può quindi essere riassunta nei seguenti passi:

1. Analisi del processo clinico-organizzativo usuale, basato sull’erogazione delle prestazioni in presenza.

2. Definizione dello stesso processo gestendo l’interazione con il paziente con strumenti telematici di uso comune (Skype, Teams, Zoom...) o piattaforme già esistenti presso l’Azienda, dettagliando le modalità d’uso, le eventuali criticità e le relative soluzioni. Lo strumento viene selezionato nei singoli casi tenendo conto delle caratteristiche di sicurezza, della tipologia di pazienti e delle indicazioni Regionali e delle preferenze della organizzazione sanitaria.

3. Individuazione ed attuazione degli adempimenti necessari ai fini della rispondenza, dal punto di vista organizzativo e tecnologico, a quanto prescritto dal Regolamento UE 2016/619 (GDPR).

4. Analisi delle esigenze dei pazienti e produzione del materiale formativo ed informativo necessario.

5. Individuazione di indicatori di processo da raccogliere al termine di ogni prestazione, con cui misurare la validità della soluzione ai fini clinici, di impatto sociale e di programmazione aziendale.

Vale sottolineare come questo approccio, non invasivo rispetto allo scenario esistente, non costoso e rapidamente implementabile, oltre che in grado di fornire subito un servizio ai pazienti sia del tutto compatibile e sinergico con quanto previsto nell’ambito del PNRR in termini di future piattaforme regionali e nazionali. Quando queste infrastrutture saranno disponibili (orientativamente alla fine del 2024) sarà infatti sufficiente sostituire le piattaforme di comunicazione oggi adottate con quelle regionali e/o aziendali lasciando invariato il processo clinico-organizzativo studiato e sperimentato, capitalizzando sull’esperienza acquisita nel frattempo.

La metodologia è stata adottata in diversi centri e per diverse patologie. Per ogni contesto è stato definito un manuale operativo (fig. 6) che dettaglia come erogare le prestazioni secondo gli stessi criteri delle prestazioni in presenza, ma sostituendo il contatto diretto con l’interazione remota con il paziente. I manuali prodotti sono disponibili sul sito www.dati-sanita.it, ad oggi sono stati registrati oltre 2.000 download, anche da paesi diversi dall’Italia.

Riferimenti

1. SG Deeks, J Overbaugh, A Phillips et al. HIV Infection. Nat Rev Dis Primers. 2015 Oct 1;1:15035. doi: 10.1038/nrdp.2015.35.

2. https://www.nih.gov/news-events/news-releases/science-clearhiv-undetectable-equals-untransmittable

3. R Prinapori, B Giannini, N Riccardi, et al. Predictors of retention in care in HIV-infected patients in a large hospital cohort in Italy. Epidemiol Infect. 2018 Apr;146(5):606-611. doi: 10.1017/ S0950268817003107. Epub 2018 Feb 28.

4. CW Holtzman, JA Shea, K Glanz et al. Mapping patient-identified barriers and facilitators to retention in HIV care and antiretroviral therapy adherence to Andersen’s Behavioral Model. AIDS Care. 2015;27(7):817-28. doi: 10.1080/09540121.2015.1009362. Epub 2015 Feb 11.

5. D Dandachi, BN Dang, B Lucari, et al. Exploring the Attitude of Patients with HIV About Using Telehealth for HIV Care. AIDS Patient Care STDS. 2020 Apr;34(4):166-172. doi: 10.1089/ apc.2019.0261.

6. K Anderson, T Francis, F Ibanez-Carrasco et al. Physician’s Perceptions of Telemedicine in HIV Care Provision: A Cross-Sectional Web-Based Survey. JMIR Public Health Surveill. 2017 May 30;3(2):e31. doi: 10.2196/publichealth.6896.

7. JD Young, M Patel, M Badowski et al. Improved virologic suppression with HIV subspecialty care in a large prison system using telemedicine: an observational study with historical controls. Clin Infect Dis. 2014 Jul 1;59(1):123-6. doi: 10.1093/cid/ ciu222.

8. AI Boshara, ME Patton, BR Hunt et al. Supporting Retention in HIV Care: Comparing In-Person and Telehealth Visits in a Chicago-Based Infectious Disease Clinic. 2022 Aug;26(8):2581-2587. doi: 10.1007/s10461-022-03604-w. Epub 2022 Feb 3.

Gli autori

GABRIELLA D’ETTORRE1

EUGENIO NELSON CAVALLARI2

FABRIZIO MASSIMO FERRARA3

GREGORIO EGIDIO RECCHIA2

MARCO RIDOLFI2

FEDERICA ALESSI2

ALESSANDRO LAZZARO1

CLAUDIO MARIA MASTROIANNI1

1. Dipartimento di Sanità Pubblica e Malattie Infettive “Sapienza” Università di Roma

2. Dipartimento di Malattie Infettive Azienda OspedalieroUniversitaria Policlinico Umberto I

3. Laboratorio sui sistemi informativi sanitari – ALTEMS Università Cattolica del Sacro Cuore

53 TELEMEDICINA febbraio 2023

PROGETTAZIONE E CONTROLLO DI IMPIANTI HVAC

Negli impianti HVAC presenti nelle strutture sanitarie assume ancora più importanza la regolazione di temperatura accurata e adattabile in continuo. Il controllo dell’impianto è critico sia per il comfort interno dei pazienti che per l’efficienza energetica dell’edificio.

Infatti, controllando correttamente la portata di un’unità terminale possiamo ottimizzare il consumo energetico in base al fabbisogno effettivo di riscaldamento o raffrescamento, senza sprechi. Una delle maggiori sfide per il controllo dell’impianto è rappresentata da una valvola in grado di adattarsi anche in caso di bassa portata o variazioni di pressione nell’impianto. Oggi, raramente gli impianti di riscaldamento e raffrescamento funzionano in condizioni ottimali. Infatti, in molti Paesi europei, funzionano a meno del 20% della portata (50% della potenza) per l’80% circa del tempo. Questo sottolinea l’importanza di una buona controllabilità in condizioni di bassa portata, altrimenti per la maggior parte della stagione di riscaldamento, l’impianto non sarebbe in grado di garantire i livelli di potenza e quindi di temperatura desiderati. Inoltre, anche minime variazioni rispetto al set-point, di soli +/1°C, possono influenzare il funzionamento di applicazioni critiche. In conclusione, un controllo accurato della temperatura non è soltanto opportuno, ma una necessita.

Di seguito, due progetti particolarmente interessanti, uno di ristrutturazione di un edificio esistente e l’altro di progettazione di un uovo edificio, che, oltre a raggiungere un alto grado di comfort, si caratterizzano per l’alta efficienza.

RISTRUTTURAZIONE DELL’OSPEDALE OUTRAM COMMUNITY HOSPITAL

L’ospedale Outram Community (OCH) di Singapore fa parte del gruppo ospedaliero Singhealth Community. Si tratta di un edificio di 19 piani, dotato di 545 posti letto, e ospita inoltre diverse aree dedicate alla riabilitazione. La sua costruzione è stata terminata nel 2019.

IMI Hydronic è stata incaricata di eseguire un’analisi completa, allo scopo di ottimizzare i consumi energetici delle pompe e garantire le migliori prestazioni dei prodotti installati, per poter assicurare il più alto livello di comfort a tutti gli utenti della struttura.

54 PUBBLIREDAZIONALE febbraio 2023
█ L’ospedale Outram Community (OCH) di Singapore

Innanzitutto, gli specialisti di IMI Hydronic hanno condotto un’analisi preliminare in diversi punti del sistema idronico, comprese le unità terminali (ventilconvettori, unità di trattamento dell’aria) e i circuiti locali, verificando l’autorità delle valvole di regolazione e l’efficienza delle unità refrigeranti.

I dati sono stati raccolti impiegando l’avanzato strumento di misurazione diagnostica TA-SCOPE, realizzato dalla stessa IMI Hydronic, che ha consentito di rilevare le portate e le perdite di carico delle valvole di bilanciamento IMI TA per ciascuna unità di trattamento dell’aria, nonché per tutte le unità terminali dell’intero impianto. Dopo aver raccolto e analizzato i dati, è stato eseguito un confronto con il progetto originale. Solitamente è piuttosto difficile avere accesso a questo tipo di dati ma in questo caso, poiché la progettazione dell’impianto era stata inizialmente realizzata da IMI Hydronic, è stato possibile reperire tutte informazioni necessarie.

I dati raccolti sono stati elaborati tramite il software HySelect, che ha permesso al team di IMI Hydronic di semplificare i complessi calcoli idronici e stabilire la configurazione ottimale delle pompe, per garantire la corretta prevalenza e poter quindi fornire le portate idonee a tutte le unità terminali, al fine di ottenere la temperatura corretta in tutte le diverse aree dell’ospedale.

Durante le fasi di collaudo e messa in servizio dell’impianto idronico, IMI Hydronic ha potuto confermare che i valori ottenuti tramite il software HySelect erano gli stessi di quelli acquisiti in tempo reale sul campo - un’ulteriore rassicurazione per i clienti. Grazie agli interventi di ottimizzazione messi in atto, l’ospedale Outram Community è riuscito a raggiungere un’efficienza delle unità refrigeranti che è risultata conforme ai parametri del GreenMark di Singapore corrispondenti alla Certificazione LEED Platinum.

PROGETTO DEL COMPLESSO OSPEDALIERO TIROL KLINIKEN

Il progetto ha riguardato la costruzione del nuovo complesso ospedaliero Tirol Kliniken ad Innsbruck (Austria).

IMI Hydronic Engineering si è aggiudicata l’appalto ad aprile 2018 e ha completato i lavori nel mese di agosto dello stesso anno.

Il compito di IMI è stato quello di progettare e realizzare l’intero impianto HVAC del nuovo edificio, oltre che eseguirne la messa in servizio e fornire i necessari prodotti.

Il team austriaco di IMI Hydronic, in sinergia con il Centro di supporto tecnico (ESC) dell’azienda, ha innanzitutto eseguito il calcolo completo delle tubazioni. È stato quindi possibile studiare la soluzione migliore per il cliente, compresa la selezione dei prodotti e il rispettivo dimensionamento, nonché il calcolo delle perdite di carico, dei valori KV delle valvole e altre impostazioni.

Date le dimensioni dell’edificio, era essenziale che l’impianto potesse offrire una portata adeguata e una pressione sufficiente.

Sono state installate le valvole di bilanciamento e regolazione indipendenti dalla pressione (PIBCV), dotate di regolatori di pressione differenziale integrati, in grado di assicurare un’autorità di regolazione elevata, precisione e stabilità di controllo, nonché un costante bilanciamento dell’impianto. Queste valvole indipendenti dalla pressione con caratteristica EQM consentono una modulazione precisa anche a portate molto basse e il mantenimento della corretta temperatura interna durante tutto il periodo di funzionamento del riscaldamento.

Il cliente ha optato per l’impiego di un sistema completo di riscaldamento a pavimento, che costituiva una rete molto estesa. Pertanto, si è deciso di installare delle valvole di bilanciamento e dei regolatori di pressione differenziale sulle colonne montanti, in combinazione al collettore di riscaldamento a pavimento, dotato di regolazione automatica della portata (AFC). Questa esclusiva tecnologia assicura un bilanciamento preciso e diretto, senza necessità di calcoli complessi – un vantaggio inestimabile per il cliente in termini di facilità di gestione dell’impianto.

55 PUBBLIREDAZIONALE febbraio 2023
█ Il nuovo complesso ospedaliero Tirol Kliniken a Innsbruck (Austria)

Appalti, sentenze e aggiornamenti normativi

CONTRATTI DI APPALTI PUBBLICI, NOVITÀ NORMATIVE

Legge 21 giugno 2022 n.78 (GU 146 del 24 giugno 2022) recante Delega al Governo in materia di contratti pubblici

Il Consiglio dei Ministri, nella riunione del 16 dicembre u.s., ha approvato, in esame preliminare, il decreto legislativo di riforma del Codice dei contratti pubblici in attuazione dell’articolo 1 della legge 21 giugno 2022 n.78; la finalità sottesa all’articolato normativo è quella di adeguare la normativa italiana al diritto europeo e ai principi espressi dalla giurisprudenza della Corte costituzionale e delle giurisdizioni superiori, interne e sovranazionali, nonchè di razionalizzare, riordinare e semplificare la disciplina vigente in materia di contratti pubblici relativi a lavori, servizi e forniture, anche allo scopo di evitare l’avvio di procedure di infrazione da parte della Commissione e di giungere alla risoluzione delle procedure avviate.

Due sono i principi cardine:

█ il principio del risultato che riguarda l’affidamento del contratto e la sua esecuzione con la massima tempestività e il migliore rapporto tra qualità e prezzo;

█ il principio della fiducia nell’azione legittima, trasparente e corretta della pubblica amministrazione,

principi che completano le prescrizioni europee relative alla pubblicità, trasparenza e parità di trattamento.

Tra le novità di maggiore rilevanza figurano:

█ l’obbligo di inserimento delle clausole di revisione prezzi al verificarsi di una variazione del costo superiore alla soglia del 5 per cento, con il riconoscimento in favore dell’impresa dell’80 per cento del maggior costo;

█ l’affidamento diretto da parte dei piccoli comuni per importi fino a 500mila euro;

█ la possibilità dell’appalto integrato senza limiti (con esclusione degli appalti per opere di manutenzione ordinaria); il contratto potrà avere come oggetto la progettazione esecutiva sulla base di un progetto di fattibilità tecnico economica approvato;

█ il subappalto a cascata;

█ la facoltà per l’appaltatore di richiedere, prima della conclusione del contratto, la sostituzione della cauzione o della garanzia fideiussoria con ritenute di garanzia sugli stati di avanzamento;

Per le procedure sottosoglia, si adottano stabilmente le soglie previste per l’affidamento diretto e per le procedure negoziate nel cosiddetto decreto semplificazioni (decreto legge 16 luglio 2020 n.76). Si stabilisce il principio di rotazione secondo cui, in caso di procedura negoziata, è vietato procedere direttamente all’assegnazione di un appalto nei confronti del contraente uscente. In tutti gli affidamenti di contratti sottosoglia sono esclusi i termini dilatori, sia di natura procedimentale che processuale.

La digitalizzazione diventa un vero e proprio motore per modernizzare tutto l’impianto dei contratti pubblici e l’intero ciclo di vita dell’appalto. Si definisce un ecosistema nazionale di approvvigionamento digitale, i cui pilastri si individuano nella Banca dati nazionale dei contratti pubblici, nel fascicolo virtuale dell’operatore economico, nelle piattaforme di approvvigionamento digitale, nell’utilizzo di procedure automatizzate nel ciclo di vita dei contratti pubblici.

Inoltre, si realizza una digitalizzazione integrale in materia di accesso agli atti, in linea con lo svolgimento in modalità digitale delle procedure di affidamento e di esecuzione dei contratti pubblici. Si riconosce a tutti i cittadini la possibilità di richiedere la documentazione di gara, nei limiti consentiti dall’ordinamento vigente, attraverso l’istituto dell’accesso civico generalizzato.

Si reintroduce la figura del general contractor, tenuto a perseguire un risultato amministrativo mediante le prestazioni professionali e specialistiche previste, in cambio di un corrispettivo determinato in relazione al risultato ottenuto e alla attività normalmente necessaria per ottenerlo.

Ai fini della responsabilità amministrativa, è stabilito che non costituisce colpa grave la violazione o l’omissione determinata dal riferimento ad indirizzi giurisprudenziali prevalenti o a pareri delle autorità competenti.

56 NORMATIVA COMMENTATA febbraio 2023
di Antonella Crugliano, Sara Capizzi, Arianna Laurenti Ufficio Legale e Appalti Dipartimento Tecnico Patrimoniale AUSL di Bologna

È previsto che il nuovo codice entri in vigore: █ per tutti i nuovi procedimenti a partire dal 1° aprile 2023; █ per tutti i procedimenti già in corso dal 1° luglio 2023.

PRINCIPI E MASSIME GIURISPRUDENZIALI

Offerta tecnica senza sottoscrizione

Tar Lazio, Roma, sezione III, sentenza n. 16558/2022

La firma/sottoscrizione dell’offerta costituisce l’unico requisito idoneo a conferire giuridica esistenza alla proposta tecnica.

La sottoscrizione dell’offerta, anche nelle procedure telematiche, rappresenta pertanto un momento indefettibile che consente la riconducibilità/paternità dell’offerta ad un soggetto ben individuato, determinando la precisa assunzione di responsabilità nei confronti della stazione appaltante.

La sentenza richiama l’orientamento giurisprudenziale dominante, secondo cui la sottoscrizione “è essenziale nelle gare pubbliche sia per verificare la necessaria coincidenza tra il soggetto apparentemente autore dell’atto e colui che lo ha sottoscritto, sia perché quest’ultimo attraverso la firma fa proprio il contenuto del documento (e quindi fa propria anche la dichiarazione che il documento rappresenta)”

Non è esperibile il soccorso istruttorio (art. 83 comma 9 del Codice) che ammette solo la possibilità di integrare/correggere mere carenze documentali (documenti amministrativi, mere dichiarazioni etc.) e/o irregolarità minime. E la sottoscrizione delle offerte non può essere giuridicamente configurata in questi termini visto che la firma “dell’offerta tecnica” così come dell’offerta economica, costituisce “elemento che (…omissis…) vale a conferire giuridica attribuibilità della proposta contrattuale al partecipante alla gara”.

Valutazione offerte tecniche

Consiglio di Stato, Adunanza Plenaria, 14 dicembre 2022 n.16

Nel diritto dei contratti pubblici, i commissari di gara cui è demandato il compito di esprimere una preferenza o un coefficiente numerico, quando procedono alla valutazione degli elementi qualitativi dell’offerta tecnica possono confrontarsi tra loro in ordine a tali elementi prima di attribuire individualmente il punteggio alle offerte, purchè tale confronto non si presti ad una surretizia introduzione del principio della collegialità, con la formulazione di punteggi precostituiti ex ante, laddove tali valutazioni debba essere di natura individuale.

Clausola sociale Consiglio di Stato, Sezione V, n.6761 del 2 novembre 2020

La clausola sociale prevede, per gli affidamenti dei contratti di concessione e d’appalto di lavori e servizi, con particolare riguardo ai contratti ad alta intensità di manodopera, che nei bandi di gara e inviti possano essere inserite specifiche clausole sociali volte a promuovere la stabilità occupazionale del personale impiegato, prevedendo l’applicazione da parte dell’aggiudicatario dei contratti collettivi di settore.

I servizi ad alta intensità di manodopera sono quelli nei quali il costo della manodopera è pari almeno al 50 per cento dell’importo totale del contratto.

La clausola sociale può essere applicata solo negli appalti di lavori e servizi e non di forniture. Di solito, la tutela dei lavoratori “uscenti” è sempre stata una condizione prevista negli appalti pubblici a favore degli utenti della Pubblica Amministrazione laddove il personale, che prima era alle dipendenze del vecchio affidatario e che poi viene reclutato dal nuovo aggiudicatario, è in grado di garantire quella continuità di servizio importante per molte tipologie di prestazioni appaltate.

Nelle gare di appalto, il regime della clausola sociale richiede un bilanciamento fra più valori, tutti di rango costituzionale, e anche europeo.

Ci si riferisce da un lato al rispetto della libertà di iniziativa economica privata, garantita dall’articolo 41 della Costituzione, ma anche dall’articolo 16 della Carta di Nizza, che riconosce “la libertà di impresa”, conformemente alle legislazioni nazionali. Dall’altro lato al diritto al lavoro, la cui protezione è imposta dall’articolo 35 della Costituzione e dall’articolo 15 della Carta di Nizza, di analogo contenuto.

Il Consiglio di Stato aveva ribadito che la clausola sociale va formulata e intesa in maniera elastica e non rigida, rimettendo all’operatore economico concorrente la valutazione in merito all’assorbimento dei lavoratori impiegati dal precedente aggiudicatario.

Di recente è stato specificato che la clausola non comporta “alcun obbligo per l’impresa aggiudicataria di un appalto pubblico di assumere a tempo indeterminato ed in forma automatica e generalizzata, nonché alle medesime condizioni, il personale già utilizzato dalla precedente impresa o società affidataria, ma solo che l’imprenditore subentrante salvaguardi i livelli retributivi dei lavoratori riassorbiti in modo adeguato e congruo”.

Ancora più specificatamente, non c’è l’obbligo di garantire ai lavoratori già impiegati, le medesime condizioni contrattuali ed economiche. Clausola sociale, dunque, non vuol dire che vada garantita la conservazione dell’inquadramento e l’anzianità del lavoratore assorbito dall’impresa aggiudicataria. In ogni caso, specifica il Consiglio di Stato, la libertà dell’imprenditore non vuol dire che può fare tutto ciò che vuole, dovendo lo stesso in ogni caso attenersi sempre alle condizioni economiche e contrattuali vigenti.

57 NORMATIVA COMMENTATA febbraio 2023

La settima edizione di quest’Opera, riveduta e aggiornata, raccoglie in un unico, agile strumento di lavoro tutte le norme cardine che sovraintendono al governo del territorio.

Tra i provvedimenti recepiti, scelti fra quelli che rivestono maggiore interesse per il lettore, segnaliamo:

– il DL 31 maggio 2021, n. 77, convertito, con modificazioni, dalla Legge 29 luglio 2021, n. 108, Governance del Piano nazionale di ripresa e resilienza e prime misure di rafforzamento delle strutture amministrative e di accelerazione e snellimento delle procedure, recante numerose e significative modifiche al Testo Unico dell’Edilizia;

– il DLgs 8 novembre 2021, n. 207, che modifica, fra l’altro, le norme sul certificato di agibilità e introduce le regole per l’infrastrutturazione digitale degli edifici;

– la Legge 9 marzo 2022, n. 22, Disposizioni in materia di reati contro il patrimonio culturale, recante modifica al Codice dei Beni Culturali e del Paesaggio.

L’insieme dei provvedimenti approvati recentemente conferma l’obiettivo del Legislatore di rilanciare gli investimenti pubblici e di promuovere l’accelerazione degli interventi di rigenerazione urbana e di ricostruzione del territorio nazionale.

Un esaustivo indice analitico-alfabetico rende questo volume un supporto indispensabile per i Tecnici, i Progettisti e i RUP della Pubblica Amministrazione che necessitano di strumenti sempre aggiornati e coordinati con le ultime norme che disciplinano questa complessa materia.

www.build.it Nuova Edizione

Le schede di architettura

Uno strumento di consultazione pensato per progettisti e health planner: la pubblicazione dei disegni di progetto in grande formato assicura la completa leggibilità e comprensione degli schemi grafici a corredo delle realizzazioni presentate nella rivista

Amsterdam UMC Imaging Center pag.8

59 APPROFONDIMENTO febbraio 2023

Amsterdam UMC Imaging Center

60 APPROFONDIMENTO febbraio 2023 Masterplan dell’University Medical Center di Amsterdam

Amsterdam UMC Imaging Center

Primo piano dell’Amsterdam UMC Imaging Center 61 APPROFONDIMENTO febbraio 2023

Perché associarsi al C.N.E.T.O.

Il CNETO è un’associazione culturale che riunisce architetti e ingegneri interessati ai problemi dell’edilizia e della tecnica ospedaliera, tecnici, igienisti, amministratori ed economi di direzioni ospedaliere. Il CNETO ha come obiettivo primario la promozione dell’informazione e della conoscenza nello specifico settore della sanità, settore in continua e rapida evoluzione, che richiede il costante aggiornamento di tutti gli operatori. È proprio con questa finalità che l’Associazione organizza convegni nazionali e internazionali, viaggi di studio presso le strutture all’avanguardia sia italiane che estere, attiva contatti ufficiali con le altre associazioni e le istituzioni più rappresentative, anche straniere. Il CNETO è stato fondato quale Associazione multidisciplinare proprio perché la progettazione ospedaliera e socio-sanitaria esige la sinergia tra le diverse figure professionali coinvolte nella valutazione e risoluzione di tutti gli aspetti che concorrono a definire il progetto. La presenza delle Aziende, in qualità di soci collettivi, permette di stabilire uno stretto legame anche con il mondo della produzione e del mercato, le cui tendenze in atto costituiscono un indispensabile strumento di cultura tecnica.

RICHIESTA DI ADESIONE

Presa visione dell’articolo 4 dello statuto del CNETO il/la sottoscritto/a

Nome e Cognome

chiede di essere iscritto al CNETO in qualità di componente ordinario collettivo sostenitore studente € 100,00 € 300,00 € 600,00 € 50,00

Professione

Attività o carica

Comunicazioni sull’attività svolta nel campo-ospedaliero

Residenza e indirizzo:

Via N.

Città

Tel

Centro Nazionale per l’Edilizia e la Tecnica Ospedaliera

Versamento con bonifico bancario intestato a CNETO sul C/C Banca Prossima S.P.A., Filiale di Milano IBAN IT51A0335901600100000129131 specificando nella causale: “Quota associativa anno ..., Cognome e Nome (o ragione sociale) associato”.

C.N.E.T.O.

Centro Nazionale per l’Edilizia e la Tecnica Ospedaliera www.cneto.it | e-mail: info@cneto.it

Per iscriversi e per informazioni
C.N.E.T.O.
62 febbraio 2023

NOTIZIE DAL CNETO

A conclusione delle votazioni del CNETO per il triennio 2022-2024, sono risultati eletti i seguenti consiglieri:

Presidente: Stefano Capolongo

Past President: Maurizio Mauri

Segretario Generale: Marco Gola

Vice Presidenti: Margherita Carabillò e Roberto Righini

Direttore Rivista Progettare per la Sanità: Margherita Carabillò

Tesoriere: Roberto Righini

• GIUNTA ESECUTIVA

Ark.Ing.81 S.r.l. Righini

Bragonzi Gilberto

Carabillò Margherita

Ingaglio Monica

Meoli Federica

Peretti Gabriella

• CONSIGLIO NAZIONALE

Pollo Riccardo

Ravegnani Morosini Roberto

Sibillassociati Sibilla

Taddia Andrea

Tognolo Chiara

Vitali Marco

In rappresentanza dei Soci ordinari

Azzini Susanna

Bettamio Valentina

Bragonzi Gilberto

Brambilla Andrea

Carabillò Margherita

Colombo Luigi

Dubini Nicoletta

Ferrante Tiziana

Gola Marco

Grifa Egisto

Ingaglio Monica

Ladini Lino

Manara Giuseppe

Mauri Maurizio

Meoli Federica

Oddi Baglioni Grifone

Pedrini Daniela

Peretti Gabriella

Pollo Riccardo

Ravegnani Morosini Roberto

Taddia Andrea

Tognolo Chiara

Torricelli Maria Chiara

Vitali Marco

Zingaretti Gabriele

In rappresentanza dei Soci collettivi AIRNOVA

ARK.ING.81 S.r.l.

BININI PARTNERS S.r.l.

CAIREPRO - COOPERATIVA ARCHITETTI

E INGEGNERI PROGETTAZIONE

POLITECNICO DI MILANO - Dipartimento ABC

PROGER SpA

PROGETTO CMR

SAGICOFIM SpA

SIBILLASSOCIATI

TECNICAER ENGINEERING S.r.l.

ESTRATTO DALLO STATUTO

Art. 1 Denominazione

Il “C.N.E T O - Centro Nazionale per l’Edilizia e la Tecnica Ospedaliera” è una Associazione culturale, apartitica e senza scopo di lucro, nata sotto gli auspici dell’ANIAI L’Associazione è retta dal presente statuto la cui attuazione operativa è demandata, se necessario, ad appositi regolamenti operativi

Art. 2 Sede

La sede legale del C.N.E T O è stabilita in Roma. L’Associazione può aprire sedi operative periferiche

Art.3 Scopo

L’Associazione ha come scopo, a beneficio della collettività: la promozione dello studio dei problemi organizzativi, gestionali e progettuali connessi con l’edilizia socio sanitaria;

di stabilire e mantenere contatti in campo nazionale e internazionale fra esperti italiani e stranieri e altre Associazioni che si interessano ai problemi attinenti allo scopo sociale;

di porre a disposizione e di favorire la diffusione delle conoscenze e del progresso delle arti dello specifico settore anche attraverso l’uso dei propri mezzi e strutture;

la promozione e/o la partecipazione al capitale sociale di società e/o associazioni che abbiano il fine statutario di approfondire, diffondere la cultura tecnico –architettonica, gestionale e organizzativa dell’edilizia socio-sanitaria, anche a scopi didattici ed editoriali la qualificazione e il riconoscimento delle professionalità, svolgendo un ruolo di formazione e di informazione degli operatori

Per il raggiungimento dello scopo sociale il C.N.E T O indice, promuove e organizza convegni, seminari, giornate di studio, viaggi, visite tecniche, pubblicazioni proprie o di terzi e diffonde la rivista organo ufficiale dell’associazione

Art.4 – Ammissione e Soci

Sono ammessi a far parte del C.N.E T O le persone fisiche e giuridiche che, condividendone gli scopi, ne faranno domanda scritta, o tramite il sito ufficiale, alla Giunta Esecutiva e la cui domanda sarà dalla stessa accettata. I soci C.N.E T O. si distinguono in ordinari, studenti, collettivi, sostenitori, onorari

Soci ordinari, le persone fisiche esperte nel campo oggetto dello scopo associativo che ne fanno richiesta e che corrispondono annualmente la quota sociale ordinaria

Soci studenti e neo laureati, gli iscritti a corsi di studio universitari attinenti le materie interessanti lo scopo sociale che ne fanno richiesta e che corrispondono una quota associativa pari al 50% della quota sociale ordinaria. La qualifica di studente decade dopo tre anni dal termine degli studi e comunque entro il 30° anno di età

Soci collettivi, le persone giuridiche, gli Enti pubblici e privati, le Associazioni scientifiche e tecniche che ne fanno richiesta e che operano nel campo oggetto dello scopo associativo e che corrispondono la quota sociale collettiva pari a tre volte l’ordinaria; hanno diritto a tre voti

Soci sostenitori, i soggetti individuati alle lettere precedenti che si impegnano a corrispondere, per almeno cinque anni, una quota sociale annua pari a due volte la quota collettiva; hanno diritto a tre voti

Soci onorari, le personalità che per merito scientifico o professionale o per aver acquisito particolari meriti verso l’associazione vengono nominati tali. La loro nomina è proposta dalla Giunta Esecutiva, approvata dal Consiglio Nazionale e ratificata dall’Assemblea dei soci; i Soci Onorari non pagano la quota associativa e non hanno diritto di voto

Art. 5 Organi del C.N.E T O

Sono: l’Assemblea dei Soci, Il Consiglio Nazionale, Il Presidente, La Giunta esecutiva, Il Collegio dei revisori

71 ottobre 2020 63 febbraio 2023

Organo uf ficiale del C.N.E.T.O Centro Nazionale per l’Edilizia e la Tecnica ospedaliera

L’INFORMAZIONE AUTOREVOLE NEL MONDO

DELLA PROGETTAZIONE PER LA SANITÀ

NON PERDERE QUESTA OCCASIONE

COMPILA LA CARTOLINA QUI SOTTO O VAI SUL SITO WWW.QUINE.IT

E ATTIVA SUBITO IL TUO ABBONAMENTO A SOLI

abbonamento annuale

• MANAGEMENT

E ORGANIZZAZIONE

• SICUREZZA E IGIEN

• INFORMATION TECHNOLOGY

• AGGIORNAMENTO LEGISLATIVO

• SCENARI INTERNAZIONALI

• TECNOLOGIE

E NOVITÀ DALL’INDUSTRIA

PROGETTAZIONE

Abbonati su www.quine.it o compila questo coupon e invialo via email: abbonamenti@quine.it

Nome e Cognome

Azienda

Indirizzo

Cap Città

Telefono

E-mail

PEC (per fatturazione elettronica)

Codice fiscale (obbligatorio)

Partita IVA

Codice destinatario (per fatturazione elettronica)

Desidero sottoscrivere il seguente abbonamento:

Abbonamento annuale Italia (6 numeri) a € 40,00.

Abbonamento annuale Europa (6 numeri) a € 60,00

PAGAMENTO

RISK MANAGEMENT

Bonifico Bancario IBAN IT88U0521601631000000000855 (allego fotocopia)

Versamento su c/c postale N.60473477 intestato a Quine Srl - Via Spadolini, 7 - 20141 Milano (allego fotocopia)

Addebito su carta di credito

Visa Carta Sì Mastercard

n. scadenza /

CVC (CVC: ultime 3 cifre del numero che si trova sul retro, nello spazio della firma)

Firma

CONSENSO AL TRATTAMENTO DEI DATI

Ai sensi dell’art 13 Regolamento Europeo per la Protezione dei Dati Personali 679/2016 (GDPR), il sottoscritto __________________________________________________________________________________ esprime il proprio espresso e specifico consenso al trattamento dei dati ai fini di:

- Invio e-mail promozionali e/o comunicazioni di marketing, nonché effettuazione di ricerche di mercato, se autorizzato dal cliente, da parte di Quine Srl o di società da essa controllate, collegate o partecipate; Esprimo il mio consenso Nego il mio consenso

- Invio e-mail promozionali e/o comunicazioni di marketing, se autorizzate dal cliente per finalità di profilazione (come ad es memorizzazione di abitudini di consumo) volte a migliorare le offerte nei confronti del cliente, da parte di Quine Srl o di società da essa controllate, collegate o partecipate; Esprimo il mio consenso Nego il mio consenso

- Invio e-mail promozionali e/o comunicazioni di marketing, nonché effettuazione di ricerche di mercato, e di profilazione se autorizzato dal cliente, per conto di società terze (appartenenti alle categorie editoria, professionisti della salute, case farmaceutiche ecc) non facenti parte di Lswr Group Esprimo il mio consenso Nego il mio consenso

Esprimo il mio consenso al trattamento in base all’informativa di cui sopra

Firma
Data
40 € ABBONAMENTI
Quine - Edra LSWR Group, Srl Via Spadolini, 7 20141 Milano - Italia Tel +39 02 864105 Fax +39 02 88184301
Editore:
ORGANIZZAZIONE TECNOLOGIA
20 CNETO C ntroNazionale p rl’Edil zi elaTecn c Ospedaiera 01
tecnologia, architettura Il nuovo Ospedale di Cord o En g ISSN: 17206642 Le azionidaintraprendere pergli ospedali del futuro/Tradizione e innovazionenelnuovoospedaled Cordova/Larivoluzionedigitale nelleaziendesanitarieesociosanitare/Perchénondecolla lFasccolo Sanitario Elettronico / I pazient a etti da AMD nel progetto NEXTV SION /ProgettoAtt va-Mente:l arte cometerapia/Aspetti impiantistici nelbunker di radioterapia/Gestione delle cronicità nel a ASL di Foggia / L’informatizzazione nelle Unità Farmaci Antblastici/ Progettaz oneantincend odegliospedali:lavalutazione deimaterialidifinitura
Organizzazione,
www.c os tr uirepiu.it ON V EG N O DIG I T AL E A D ELLE C O S T R U ZI O N I BR AIO 2023 Per sponsor izzazioni: dircom@quine.it D EL L A FI L I E R Costruire sponsor con il patrocinio di 3 CFP A GIORN ATA PER GLI INGEGNERI E VENTO ACCREDITATO COME CONVEGNO Riguarda i video delle dirette su www.costruirepiu.it
Servizi e manutenzione Progettazione e installazione impianti gas medicali Vendita accessori Per il medicale da oltre 40 anni… Via Gennaro Righelli, 76-78 00137 Roma Tel. 06 82002732 Fax 06 82083959 www.rosiglioni.it

Turn static files into dynamic content formats.

Create a flipbook
Issuu converts static files into: digital portfolios, online yearbooks, online catalogs, digital photo albums and more. Sign up and create your flipbook.