AiCARR Journal #87 - Edifici scolastici | Ventilazione e salute

Page 1


LA RIVISTA PER I PROFESSIONISTI DEGLI IMPIANTI HVAC&R

ANNO15 - SETTEMBRE 2024

NORMATIVA

IL NUOVO PIANO NAZIONALE INTEGRATO ENERGIA E CLIMA

EVOLUZIONE NORMATIVA PER LA DECARBONIZZAZIONE

DEGLI EDIFICI

COMPONENTI DI IMPIANTO

FUTURO DEI TERMINALI IDRONICI PER IL COMFORT

FOCUS

SOLUZIONI IMPIANTISTICHE PER VMC SCOLASTICA

RICERCA

LIVING LAB SUGLI ZERO ENERGY BUILDINGS

ASPETTI COGNITIVI E COMFORT ACUSTICO

LUCE DI QUALITÀ PER AMBIENTI SCOLASTICI SERENI

AICARR PER LA SCUOLA

MONITORAGGIO DI UN SISTEMA HVAC DECENTRALIZZATO

A TUTTA ARIA

PREMIO TESI

TECNOLOGIA INTELLIGENTE PER LE FACCIATE

TECNOLOGIA, AFFIDABILITÀ, EFFICIENZA

Gree, soluzioni di qualità per sistemi VRF a 3 tubi con recupero di calore

TUBI

GMV6 HR di Gree è un sistema VRF a 3 tubi con recupero di calore che offre un’ampia gamma di unità esterne modulari che permettono di realizzare sistemi da 28 kW a 224 kW, a cui è possibile abbinare molteplici tipologie di unità interne. Il sistema può gestire le unità ad espansione diretta con modalità differenti e produrre ACS garantendo così “raffreddamento, riscaldamento e produzione dell’acqua calda sanitaria” contemporaneamente, fornendo una soluzione completa. Nei funzionamenti misti si ha il recupero di calore, che è massimo quando la potenza richiesta in freddo e quella richiesta in caldo si equivalgono.

Con Daikin Altherma è sempre sereno

Grazie a Daikin Altherma potrai infatti contare su:

La più ampia gamma sul mercato che risponde a ogni esigenza, adattandosi alle nuove costruzioni, alle ristrutturazioni o ai sistemi esistenti.

Affidabilità ed esperienza di Daikin, che da oltre 20 anni si dedica alla progettazione di pompe di calore innovative e sostenibili.

“Semplicemente Sereni”, l’estensione della garanzia fino a 5 anni, che offre manodopera, ricambi originali e assistenza specializzata Daikin.

Contattaci. Richiedi un preventivo.

Periodico Organo ufficiale AiCARR n. 87 settembre 2024 www.aicarrjournal.org

EDITORS IN CHIEF

Francis Allard (France)

Claudio Zilio (Italy)

HONORARY EDITOR

Bjarne Olesen (Denmark)

ASSOCIATE EDITORS

Karel Kabele (Czech Republic)

Valentina Serra (Italy)

SCIENTIFIC COMMITTEE

Ciro Aprea (Italy)

William Bahnfleth (USA)

Marco Beccali (Italy)

Umberto Berardi (Italy)

Anna Bogdan (Poland)

Busato Filippo (Italy)

Alberto Cavallini (Italy)

Iolanda Colda (Romania)

Stefano Paolo Corgnati (Italy)

Francesca R. d'Ambrosio (Italy)

Annunziata D’Orazio (Italy)

Filippo de’ Rossi (Italy)

Livio de Santoli (Italy)

Marco Dell’Isola (Italy)

Giorgio Ficco (Italy)

Marco Filippi (Italy)

Manuel C. Gameiro da Silva (Portugal)

Cesare M. Joppolo (Italy)

Dimitri Kaliakatsos (Italy)

Essam Khalil (Egypt)

Risto Kosonen (Finland)

Jarek Kurnitski (Latvia)

Renato M. Lazzarin (Italy)

Catalin Lungu (Romania)

Anna Magrini (Italy)

Zoltán Magyar (Hungary)

Rita M.A. Mastrullo (Italy)

Livio Mazzarella (Italy)

Arsen Melikov (Denmark)

Gino Moncalda Lo Giudice (Italy)

Gian Luca Morini (Italy

Boris Palella (Italy)

Federico Pedranzini (Italy)

Fabio Polonara (Italy)

Piercarlo Romagnoni (Italy)

Francesco Ruggiero (Italy)

Giovanni Semprini (Italy)

Jorn Toftum (Denmark)

Timothy Wentz (USA)

REDAZIONE

Giorgio Albonetti | Direttore Responsabile

Erika Seghetti | Coordinamento Editoriale

Francesca De Vecchi | redazione.aicarrjournal@quine.it

Hanno collaborato a questo numero | Fabrizio Ascione, Antonino Di Bella, Lisa Battagliarin, Fabio Bignucolo, Filippo Busato, Francesca Cappelletti, Laura Carnieletto, Michele De Carli, Costanzo Di Perna, Gianmaria Fulici, Jacques Gandini, Milica Mitrovic, Umberto Moscato, Marco Noro, Maria Teresa Oricoli, Irene Pavanello, Clara Peretti, Livio Petriccione, Luca Alberto Piterà, Ilaria Pittana, Giada Remia, Jophep Roberts, Piercarlo Romagnoni, Beatrice Riccardi, Giuseppe Romano, Pietro Scimemi, Umberto Turrini, Luca Verdi

MANAGEMENT BOARD

Giorgio Albonetti

Luca Alberto Piterà

Erika Seghetti

Claudio Zilio

EDITORIAL BOARD

Umberto Berardi

Filippo Busato

Marco Noro

Massimiliano Pierini

Luca Alberto Piterà

Giuseppe Romano

PUBBLICITÀ

Costantino Cialfi | Direttore Commerciale – c.cialfi@lswr.it – cell. 346 705086

Ilaria Tandoi | Ufficio traffico – i.tandoi@lswr.it

SERVIZIO ABBONAMENTI

abbonamenti.quine@lswr.it – tel. 02 864105

Abbonamento annuale (6 fascicoli): 55 €

PRODUZIONE

Antonio Iovene | Procurement Specialist – a.iovene@lswr.it – cell. 349 1811231

Grafica e Impaginazione: Marco Nigris

Stampa: New Press Edizioni Srl – Lomazzo (CO)

EDITORE

Quine srl

Sede legale

Via Spadolini, 7 – 20141 Milano www.quine.it – info@quine.it – tel. 02 864105

AiCARR journal è una testata di proprietà di AiCARR – Associazione Italiana Condizionamento dell’Aria, Riscaldamento e Refrigerazione Via Melchiorre Gioia 168 – 20125 Milano Tel. +39 02 67479270 – Fax. +39 02 67479262 www.aicarr.org

Gli articoli presenti all’interno di AiCARR Journal sono il risultato di una libera e personale interpretazione dei relativi autori. In nessun caso le idee espresse dall’autore possono essere considerate come parere di AiCARR. Nel caso in cui qualche diritto di autore sia stato involontariamente leso, si prega di contattare l’autore dell’articolo, al fine di risolvere ogni possibile conflitto.

Crediti Formativi Professionali per gli autori di AiCARR Journal

Grazie all’accreditamento di AiCARR Journal presso il Consiglio Nazionale degli Ingegneri, agli ingegneri iscritti all’Albo che forniranno contributi alla rivista verranno attribuiti 2,5 CFP ad articolo pubblicato. Per la proposta di articoli, potete scriverci all’indirizzo di redazione: redazione.aicarrjournal@quine.it

SUBMIT YOUR PAPER

Tutti i membri dell'associazione possono sottoporre articoli per la pubblicazione. Ricordiamo che dal 1 aprile 2014, tutti i contributi autorali sono sottoposti a Blind Peer Rewiew. www.aicarrjournal.org

Testata Associata Aderente

Posta target magazine - LO/CONV/020/2010. Iscrizione al Registro degli Operatori della Comunicazione nº 12191 del 29/12/2005 Tutto il materiale pubblicato dalla rivista (articoli e loro traduzioni, nonché immagini e illustrazioni) non può essere riprodotto da terzi senza espressa autorizzazione dell’Editore. Manoscritti, testi, foto e altri materiali inviati alla redazione, anche se non pubblicati, non verranno restituiti. Tutti i marchi sono registrati. Ai sensi dell'art. 13 Regolamento Europeo per la Protezione dei Dati Personali 679/2016 di seguito GDPR, i dati di tutti i lettori saranno trattati sia manualmente, sia con strumenti informatici e saranno utilizzati per l’invio di questa e di altre pubblicazioni e di materiale informativo e promozionale. Le modalità di trattamento saranno conformi a quanto previsto dagli art. 5-6-7 del GDPR. I dati potranno essere comunicati a soggetti con i quali Quine srl intrattiene rapporti contrattuali necessari per l’invio delle copie della rivista. Il titolare del trattamento dei dati è Quine srl chiedere l’aggiornamento, l’integrazione, la cancellazione e ogni altra operazione di cui agli articoli 15-21 del GDPR.

Nel 1989 veniva usata per la prima volta la parola “Eco-Friendly”. Noi lo eravamo già.

Da 35 anni, Clivet è sinonimo di pompa di calore. Una tecnologia efficiente e sostenibile in cui continuiamo a investire per garantire massime performance in tutti i settori, dal residenziale al terziario e all’industria.

THUNDER

Pompa di calore reversibile da 40 a 85 kW

• Compressori scroll e ventilatori full inverter

• Produzione acqua calda fino a 75°C

• Modularità fino a 16 unità

• Campo operativo in riscaldamento da -20°C a +42°C

“STARE BENE A SCUOLA” E QUALITÀ DEGLI AMBIENTI INDOOR

Gli articoli di questo numero sono prevalentemente incentrati su tematiche relative agli edifici scolastici. Da genitore, desidero condividere con il lettore alcune considerazioni che nascono da ormai oltre vent’anni di discussioni e confronti con dirigenti scolastici, insegnanti, personale ATA e ovviamente con gli altri genitori.

I nostri figli passano la maggior parte delle ore della giornata per circa 200 giorni all’anno a scuola: lo “stare bene a scuola” è un tassello fondamentale per il loro percorso di crescita personale. Di conseguenza l’impatto sociale che ne deriva è enorme. Il concetto dello “stare bene a scuola” si compone ovviamente di una serie di aspetti soggettivi e oggettivi, varia in continuazione, segue la crescita degli allievi e l’evoluzione culturale della società. Al raggiungimento di tale fine concorrono moltissimi aspetti umani, pedagogici, tecnologici, ambientali. Mi voglio soffermare innanzitutto sugli aspetti ambientali dal momento che sono i più vicini alle attività professionali di molti soci AiCARR. Per esperienza personale, docenti e dirigenti molto spesso ignorano il significato di Indoor Environmental Quality ma sono assolutamente consapevoli che una temperatura confortevole, un’aria salubre (spesso definita come “non viziata”), un’adeguata illuminazione, un’acustica adatta sono fondamentali per rendere più efficace e inclusiva l’azione didattica.

Questa convinzione diffusa tra il personale della scuola trova conferma a livello scientifico internazionale e nazionale e si traduce in numerosi documenti, alcuni dei quali sono ad esempio disponibili nella piattaforma di INDIRE (Istituto Nazionale di Documentazione Innovazione e Ricerca Educativa).

Inoltre, l’introduzione di approcci didattici più moderni e inclusivi ha evidenziato che lo schema convenzionale di edificio, basato su corridoi e classi progettate e arredate per la docenza frontale, non è più adatto.

Tale concetto è ribadito, ad esempio, in un report della Cassa Depositi e Prestiti del 2021: “le evoluzioni in atto impongono il ripensamento dell’organizzazione degli spazi. In quest’ottica, gli interventi edilizi dovrebbero essere orientati alla predisposizione di ambienti di apprendimento flessibili e polifunzionali”.

La ridefinizione del ruolo e della funzione dell’aula didattica impone di fatto nuovi approcci progettuali architettonici che impattano anche sugli impianti di condizionamento, sui sistemi di illuminazione e sulle soluzioni acustiche ambientali. Infine, le esigenze legate agli obiettivi europei di decarbonizzazione impongono che la progettazione avvenga con obiettivi precisi e ambiziosi di miglioramento dell’efficienza energetica. Evidentemente l’applicazione estesa di questo nuovo paradigma risulta molto difficile nel panorama italiano con la maggior parte degli edifici scolastici esistenti costruiti prima del 1975. Gli investimenti necessari sono ingenti perché riguardano aspetti architettonici degli involucri edilizi, l’abbattimento in molti casi delle barriere architettoniche, l’adeguamento antisismico, l’adeguamento degli impianti antincendio, l’efficientamento energetico. Gli investimenti al momento sono solo in parte sostenuti dai fondi stanziati per l’edilizia scolastica con il PNRR. Da questa prospettiva, con rammarico, osservo che non ci si può stupire se nel nostro Paese si è saputo promuovere solo marginalmente l’installazione di sistemi di ventilazione controllata nelle aule a seguito della terribile “lezione” data dalla recente pandemia.

Come ultima considerazione, ritengo che dagli investimenti necessari dovrebbero essere detratti i costi “sociali” evitati e soprattutto si dovrebbe tenere conto che gli investimenti sugli edifici scolastici avrebbero un impatto positivo “inestimabile” sulla crescita, la formazione e lo sviluppo del capitale umano delle prossime generazioni.

Claudio Zilio, Presidente AiCARR

CARATTERISTICHE PRINCIPALI

• Carrozzeria metallica

• Manico reclinabile

• Ruote grandi

• Filtro dell’aria lavabile

• Umidostato elettronico

• Doppio contaore

• Scarico continuo

• Sbrinamento a gas caldo

• Sovrapponibili

• 3 potenze disponibili

• Pompa scarico continuo (su richiesta)

IDEALI PER

• Cantieri edili

• Asciugatura massetti

• Asciugatura muri

• Posa pavimenti

• Grandi ambienti

• Processi industriali

• Noleggio

16

NORMATIVA

PNIEC - Piano Nazionale integrato Energia e Clima

Sintesi dal testo definitivo PNIEC

L. A. Piterà

EPBD

18

Esiti e criticità di vent’anni di misure tecniche, legislative e procedurali per la decarbonizzazione

Dalla prima EPBD alla direttiva Case Green

F. Ascione

ACUSTICA

28

Aspetti cognitivi e comfort acustico nelle scuole per un apprendimento inclusivo

Relazione fra ambiente scolastico e apprendimento per determinare condizioni acustiche accettabili

L. Battagliarin, I. Pavanello, I. Pittana, A. Di Bella, P. Romagnoni, P. Scimemi, F. Cappelletti

ILLUMINOTECNICA

36

Luce di qualità per la scuola

Progettazione illuminotecnica e circadiana per un ambiente scolastico sereno

M.T. Oricoli, G. Romano

RICERCA APPLICATA

44

UniZEB, il Living Lab sugli Zero Energy Buildings

L’esperienza dell’Università di Padova con un ecosistema di scuole, enti e aziende del territorio

L. Carnieletto, M. Mitrovic, B. Riccardi, U.Turrini, L. Petriccione, F.Bignucolo, M. De Carli

FOCUS

52

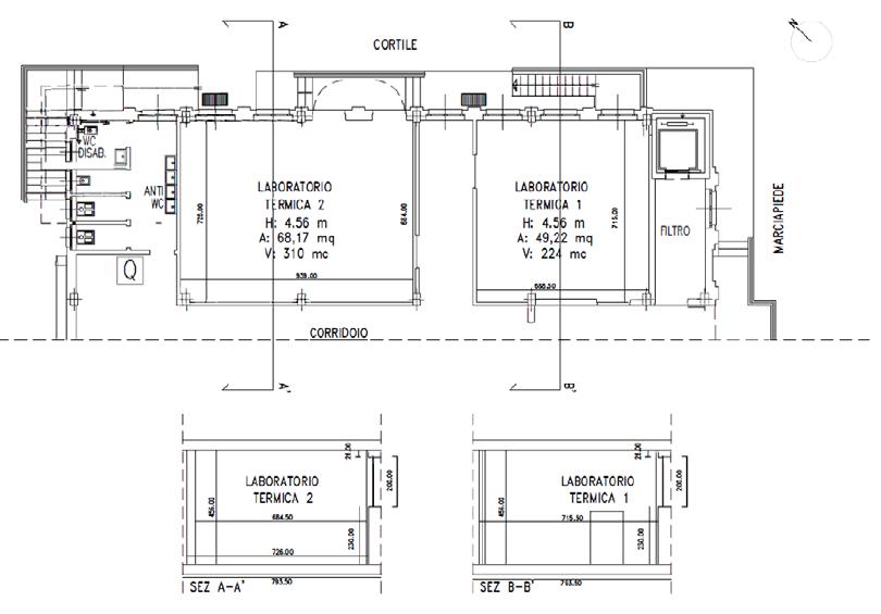
Soluzioni impiantistiche per la ventilazione meccanica per il settore scolastico

Casi studio di VMC nella Regione Marche e nella Provincia di Bolzano

C. Peretti, C. Di Perna, L. Verdi, G. Fulici, U. Moscato, G. Remia*

AICARR PER LA SCUOLA

60

Monitoraggio di un anno di funzionamento di un sistema HVAC decentralizzato a tutta aria per un’aula scolastica

Analisi di un sistema HVAC donato da AiCARR ad un istituto scolastico di Rho

M. Noro, F. Busato, L.A. Piterà*

COMPONENTI DI IMPIANTO

68 Il futuro dei terminali idronici per il comfort: focus sugli impatti previsti dalla nuova EPBD

Una “Balanced Scorecard” per la climatizzazione a ciclo annuale

J. Gandini

PREMIO TESI AICARR

78

Vetri a cristalli liquidi dispersi in polimeri come tecnologia intelligente per le facciate: caratterizzazione, modellazione e controllo

Illuminamento da luce naturale e abbagliamento in caso di vetri PDLC

J. Roberts

Novità Prodotti

GALLETTI

Il 28 e 29 maggio 2024 Galletti ha ospitato un Focus tecnico per progettisti di impianti, in cui è stato approfondito il tema dell’evoluzione normativa sull’uso degli F-gas. Il nuovo Regolamento (UE) 2024/573, infatti, in vigore dall’11 marzo 2024, persegue l’obiettivo di eliminare progressivamente (dal 1º gennaio 2025 al 1º gennaio 2032) l’utilizzo dei gas fluorurati, incentivando l’utilizzo di gas refrigeranti naturali e a basso impatto climatico. Galletti è un’impresa famigliare, leader a livello internazionale nel settore HVAC con soluzioni di “Advanced Design” per il terziario e il residenziale. Fondata nel 1906 come opificio per la lavorazione del ferro, negli anni ’60 entra nel settore del riscaldamento con il primo termoconvettore e negli anni ’70 in quello del condizionamento, anticipando tutta la serie di terminali di impianto che rappresentano, attualmente, uno dei business dell’azienda, impegnata nello sviluppo di soluzioni che assecondino la strategia europea per l’uso di refrigeranti naturali a bassissimo GWP (propano R290). www.galletti.com

SOLUZIONI PER ACS ADATTE A OGNI ESIGENZA

Gree offre soluzioni tecnologicamente avanzate, anche per la sostituzione di sistemi tradizionali, in grado di donare comfort a 360°: riscaldamento, raffreddamento e produzione di acqua calda sanitaria. Hombask è il sistema indipendente di ultima generazione a pompa di calore per la produzione di ACS che utilizza refrigerante naturale R290, in Classe A+. Sia il compressore, sia il motore del ventilatore sono modulanti, permettendo elevate prestazioni. Il sistema Free Match con ACS, che utilizza refrigerante R32, è la soluzione adatta per utenze domestiche che richiedono riscaldamento, raffreddamento e ACS con una sola unità esterna. Grazie al recupero di calore, garantisce migliori prestazioni e un ridotto impatto sull’ambiente. L’uso di refrigeranti a impatto basso o quasi nullo sul riscaldamento globale dimostra l’attenzione alla sostenibilità di tutte le proposte Gree per impianti a pompa di calore. L’elevata efficienza energetica e i consumi contenuti, resi possibili dall’utilizzo di componenti selezionati e dalla tecnologia Full DC Inverter di ultima generazione, si coniugano con la massima affidabilità nel tempo.

www.greeitalia.it

Da sinistra: Elvira Ariniello, Junior Digital Specialist; Filippo Genovese, Project Leader; Michele Galletti, Amministratore Delegato Galletti S.p.A.; Luca Germano, Direttore Tecnico; Silvia Lomuscio, Communication Specialist.

NUOVI FILTRI EPM1 80% A CARBONI ATTIVI PER I SISTEMI VMC

Helty ha reso disponibile per i propri sistemi di VMC un nuovo filtro ePM1 80% a carboni attivi, in grado di arrestare l’80% delle polveri sottili PM1. Corrispondente alla classe F9 del vecchio sistema di classificazione, il nuovo filtro Helty riduce l’esposizione delle persone agli agenti inquinanti esterni immettendo negli spazi indoor aria filtrata e purificata non solo dalle polveri sottili PM10 e PM2,5, ma anche dalle particelle PM1, della grandezza inferiore a 1 micron. Ma non è tutto: la tecnologia a carboni attivi impedisce anche l’ingresso agli odori e agli inquinanti organici volatili in forma gassosa,

assicurando aria sempre nuova e pulita. Il nuovo filtro può essere comodamente acquistato tramite lo shop online dell’azienda, per riceverlo direttamente a casa e provvedere autonomamente alla sostituzione. In questo modo, anche chi è già in possesso di unità VMC Helty con filtro F7 / ePM2,5 65% potrà scegliere di fare un upgrade del sistema di filtrazione, elevando ulteriormente i livelli di salubrità dell’aria nella propria abitazione. heltyair.com

Zero impatto in facciata, ancora più discreta e invisibile

VMC a scomparsa

I nuovi sistemi decentralizzati con uscita in luce si mimetizzano alla perfezione nella struttura dell’edificio, grazie alla possibilità di gestire le griglie di aerazione nella spalletta della finestra. Una soluzione perfetta non solo in cantieri di nuova edilizia, ma anche in ristrutturazioni e contesti ad alto valore storico-artistico.

Novità Prodotti

CALDAIE A CONDENSAZIONE PER IMPIANTI CENTRALIZZATI

Sime estende l’offerta di caldaie a condensazione per impianti centralizzati con le gamme a basamento Alu HE e Alu Plus HE, particolarmente compatte e leggere e potenze da 80 a 1100 kW. Lo scambiatore è costituito da elementi preassemblati in lega di alluminio-silicio, materiale affidabile con alta conducibilità termica, e dotato di ampi passaggi acqua che lo preservano dall’intasamento offrendo basse perdite di carico. Il bruciatore integrato di tipo premiscelato modulante consente di rispettare i limiti più stringenti delle normative europee e internazionali sulle emissioni inquinanti.

Tutti i modelli sono omologati “Range Rated” per consentire la regolazione della potenza nominale della caldaia all’effettivo fabbisogno termico rientrando così nei limiti previsti da specifiche normative.

L’elettronica evoluta è in grado di ottimizzare il funzionamento per un’ampia gamma di schemi preconfigurati comprensivi di circuiti secondari diretti e miscelati. Le caldaie Alu HE e Alu Plus HE possono anche essere installate in cascata fino a otto apparecchi di uguale potenza termica arrivando così a una potenza massima complessiva di 8.800 Kw www.sime.it

COMFORT TERMICO E BASSI CONSUMI

La gamma di pompe di calore aria-acqua Yukon nasce dall’esperienza trentennale di Sinclair nel settore HVAC. Sono pompe di calore efficienti, a basso consumo energetico, con costi di gestione contenuti e funzionano con il gas R32 a basso impatto ambientale.

La linea si compone di sistemi split, abbinabili al modulo Hydrobox o All-In-One con serbatoio integrato da 190 e 240 litri, con alimentazione monofase da 6 kW fino a 16 kW di potenza termica e alimentazione trifase da 12 kW fino a 16 kW. Completano la gamma le unità monoblocco con componenti idraulici integrati sull’unità esterna, disponibili con una potenza termica fino a 30 kW. In particolare, le monoblocco Sinclair possono essere gestite in cascata fino a 6 moduli, rendendole una soluzione ideale per piccoli condomini.

Tramite l’App Comfort Home da smartphone e tablet si possono gestire i sistemi di climatizzazione a pompa di calore

Sinclair anche da fuori casa. Alcuni sistemi sono poi predisposti per dialogare con i protocolli più diffusi in abito domotico come Modbus in modo da rendere ancora più “smart” la gestione dei consumi.

www.beijerref.it/AirConditioning-Sinclair/

NOLEGGIO DI MACCHINE PER IL CONDIZIONAMENTO DELL’ARIA E LA REFRIGERAZIONE DI PROCESSO

BRENTA RENT è una società specializzata nel noleggio di macchine per il condizionamento dell’aria e la refrigerazione di processo. Con oltre 20 anni di esperienza, offre soluzioni personalizzate per una vasta gamma di settori. Ecco di seguito alcuni punti chiave.

• Ampia Flotta: BRENTA RENT dispone di un vasto parco macchine, con circa 150 unità. Queste includono gruppi frigoriferi industriali (chiller) con una resa frigorifera che va dai 15 kW fino a oltre 1000 kW, Roof-Top e Unità di trattamento aria.

• Versatilità: il noleggio è utilizzato in vari contesti, come il condizionamento estivo o invernale, il raffreddamento di processo e situazioni di emergenza come manutenzioni, picchi di produzione, guasti improvvisi e stand-by.

• Qualità ed efficienza: le macchine della flotta sono progettate e costruite dalla consociata ACM KÄLTE KLIMA, seguendo gli standard per il freddo a noleggio. L’efficienza delle macchine è garantita da controlli accurati e collaudi dinamici.

• Le macchine della flotta noleggio sono anche disponibili per la vendita di seconda mano con adeguato periodo di garanzia. www.brentarent.it

il freddo a noleggio

20 ANNI DI ESPERIENZA NEL SETTORE

DEL FREDDO A NOLEGGIO

BRENTA RENT offre un vasto parco macchine che comprende gruppi figoriferi industriali dai 15 ai 1000 Kw, rooftop, unità di trattamento aria.

The REHVA HVAC World Congress CLIMA is the leading international scientific congress in the field of heating, ventilation, and air conditioning (HVAC). After the great success of the 2022 edition, organized by the Dutch association TVVL, the baton now passes to AiCARR for the organization of CLIMA 2025: the 15th REHVA HVAC World Congress, which will be held in Milan, Italy, from June 4th to 6th, 2025.

The theme of this Italian edition is “Decarbonized, healthy, and energy-conscious buildings in future climates”, a topic that highlights the fundamental importance of the HVAC sector in all its aspects. In this perspective, CLIMA 2025 will offer professionals, academics, and companies in the HVAC sector a unique opportunity for international discussion about these “hot” topics.

MORE INFO: www.climaworldcongress.org info@climaworldcongress.org | info@aicarr.org

UNITÀ POLIVALENTI EXP E POMPE DI CALORE REVERSIBILI IN R290

Rhoss presenta due nuove gamme di unità polivalenti EXP e pompe di calore reversibili a propano della serie UniPACK-P, esposte in anteprima a MCE. Con potenze da 50 a 160 kW ed elevate efficienze stagionali, si amplia la possibilità di offrire unità dotate di compressori scroll e refrigerante naturale R290 (GWP 0,02) sia per nuove installazioni che per rinnovamento di edifici con integrazione o sostituzione totale dei sistemi di riscaldamento esistenti, incluse caldaie. Disponibili in 11 taglie, configurazioni e strutture ottimizzate per una totale sicurezza con refrigerante A3, vengono proposte nelle versioni Alta Efficienza e Supersilenziata, con produzione di acqua calda fino a 72 °C. Il Sequenziatore Integrato per la gestione di più unità in parallelo e un’ampia gamma di accessori ne garantiscono la semplicità installativa in ottica Plug&Play. UniPACK-P EXP & UniPACK-P: un passo avanti verso un futuro più green ed efficiente. www.rhoss.com

I sensori Belimo migliorano la qualità dell’aria.

Verifica la qualità dell’aria nei tuoi edifici

Il funzionamento corretto dei sistemi HVAC è un requisito fondamentale per mantenere una qualità dell’aria interna (IAQ) adeguata e sicura. La tecnologia dei sensori Belimo offre precisione, affidabilità superiore, facilità di installazione e perfetta integrazione con tutti i sistemi di automazione degli edifici (BAS).

Offriamo una gamma completa di sensori nelle versioni per ambiente, da canale o da tubazione per misurare temperatura, umidità (umidità relativa, umidità assoluta, entalpia e punto di rugiada), pressione, CO2 e composti organici volatili (VOC).

I nostri sensori sono disponibili anche come sensori combinati con diversi valori misurati. Affidati agli esperti del settore.

Scopri i vantaggi su www.belimo.com

Novità Prodotti

POMPA DI CALORE REVERSIBILE FULL INVERTER RAFFREDDATA AD ARIA

Thunder è una soluzione con tecnologia full-inverter su compressori scroll di ultima generazione e ventilatori assiali. Offre la massima efficienza energetica e l’impiego del R-290, refrigerante naturale ed ecologico (GWP = 3) utilizzabile nel lungo periodo conforme al regolamento europeo sui gas fluorurati F-Gas (517/2014), contribuisce alla riduzione dell’effetto serra diretto e indiretto. Disponibile nella fascia di potenza da 40 a 85 kW si caratterizza per elevate prestazioni, versatilità applicativa ed estesi limiti di funzionamento. L’unità raggiunge prestazioni per applicazioni a media temperatura con un’efficienza stagionale in riscaldamento SCOP (W55) fino a 3,63, superando i requisiti minimi imposti dalla direttiva Ecodesign (ErP). Garantisce riscaldamento, raffreddamento e produzione di acqua calda sanitaria fino a 75 °C e un campo operativo in riscaldamento compreso tra –20 °C e +42 °C di aria esterna. È perfetta per i nuovi edifici e per l’utilizzo nelle ristrutturazioni grazie alla possibilità di produrre acqua calda ad alta temperatura, idonea all’impiego in alternativa e in sostituzione alle caldaie, in abbinamento ai classici impianti a radiatori. Propone 3 livelli acustici, non variando le dimensioni dell’unità. Rispetta gli standard europei di sicurezza e, in aggiunta, ha ulteriori misure di sicurezza come il sensore di perdita gas e il ventilatore di estrazione ATEX. La modularità e le connessioni idrauliche dedicate semplificano e velocizzano l’installazione. È possibile connettere idraulicamente fino a 6 unità in parallelo e gestire fino a 16 unità in una rete locale. www.clivet.com

SISTEMA RAG: RECUPERO E RIUTILIZZO ACQUE GRIGIE

Nel gruppo delle acque reflue prodotte a livello domestico si identificano come acque grigie quelle provenienti da docce, vasche, lavabi e bidet dei bagni, lavatrici e lavabi delle lavanderie, condensa dei climatizzatori. Questo tipo di reflui, che solitamente vengono smaltiti e persi in fognatura, in realtà sono i più facili da recuperare, trattare e riutilizzare per scopi non potabili. Elbi propone un’efficace soluzione impiantistica (e a basso impatto ambientale) per la realizzazione del sistema per il recupero e trattamento delle acque grigie idoneo a ogni caso specifico: il sistema RAG della linea Aquapura. L’ampia gamma di vasche prodotte in tipologie diverse (serbatoi orizzontali, verticali, modulari da interro, vasche da esterno, etc) permette di soddisfare infatti qualsiasi esigenza progettuale, dalla piccola abitazione alle grandi costruzioni (condomini, ospedali. etc.). Ogni casistica viene valutata e studiata dall’ufficio tecnico, che è in grado di consigliare la miglior soluzione attuabile personalizzata. www.elbi.it

DIFFUSORI AD ALTA INDUZIONE SISTEMA COMBINATO MANDATA-RIPRESA PER IMPIANTI VAV

INDULCLIP Z-A e INDUDRALL Z-A rappresentano un’unità compatta combinata per l’aria di mandata e di ripresa.

Ogni unità INDULCLIP Z-A e INDUDRALL Z-A è composta da un plenum a doppia camera e un diffusore. La piastra è collegata al plenum con una connessione su 4 punti, adatta sia per installazione “libera” sia con controsoffitto.

La sezione dell’aria di mandata, utilizzando la parte esterna dell’unità, immette aria nella stanza attraverso un collaudato diffusore a effetto elicoidale ad alta induzione e silenzioso, anche con differenze di temperatura di –10 K ed elevate portata d’aria.

L’aria di ripresa, utilizzando la parte centrale dell’unità, è convogliata al circuito in ripresa tramite una sezione interna del plenum.

VANTAGGI

• Aria di mandata e aria di ripresa in un’unica unità compatta

• Estremamente bassa la velocità dell’aria in ambiente fino a 0,12 m/s

• Dimensioni da 600 a 625 mm

• Elevate portate d’aria fino a 1500 m3/h

• Elevato ΔT –10 K www.sagicofim.com

PNIEC Piano Nazionale integrato Energia e Clima

L’articolo presenta una sintesi di quanto previsto dal testo de nitivo del Piano Nazionale

Integrato Energia e Clima (PNIEC), aggiornato e recentemente inviato

Lo scorso 1º luglio, il Ministero dell’Ambiente e della sicurezza energetica e il Ministero delle Infrastrutture e dei trasporti hanno inviato alla Commissione europea l’aggiornamento del PNIEC che conferma gli obiettivi stabiliti nella proposta pubblicata a giugno 2023 e, in alcuni casi, supera i target comunitari, soprattutto nel settore delle energie rinnovabili. Il piano è basato su un approccio realistico e tecnologicamente neutro ed è focalizzato su fonti rinnovabili elettriche, produzione di combustibili rinnovabili, ristrutturazioni edilizie, elettrificazione dei consumi finali, diffusione di auto elettriche, riduzione della mobilità privata e cattura, trasporto e stoccaggio della CO2; inoltre, tiene conto degli eventi significativi avvenuti da gennaio 2020, a valle della pubblicazione dell’ultimo PNIEC, tra cui la pandemia, il conflitto tra Russia e Ucraina e l’aumento dei prezzi dell’energia.

Nello scenario al 2030 il PNIEC prevede di raggiungere una potenza prodotta dalle fonti energetiche rinnovabili di 131 GW, di cui 79,2 GW dal solare, 28,1 GW dall’eolico, 19,4 GW dall’idroelettrico, 3,2 GW dalle bioenergie e 1 GW dalla geotermia; quest’ultima quota potrebbe aumentare con il raggiungimento di un adeguato livello di maturità di alcuni progetti attualmente in sviluppo.

La copertura dei fabbisogni energetici da fonti rinnovabili è prevista pari al 34% nel settore dei trasporti e al 36% per il riscaldamento e il raffrescamento nei consumi finali lordi di energia; uguale al 63% dei consumi finali del settore elettrico e al 54% del totale dell’idrogeno utiliz-

zato nell’industria. Nel settore civile è fondamentale incentivare l’uso delle pompe di calore per il riscaldamento e coinvolgere maggiormente l’agricoltura, che ha mostrato stabilità nelle emissioni. È necessario anche il contributo delle amministrazioni centrali e degli enti territoriali per identificare e attuare nuove politiche. Nel settore industriale coperto dall’ETS, il sistema per lo scambio delle quote di emissione dell’UE, il maggiore contributo deriverà dall’aumento delle rinnovabili nel mix energetico, dal phase-out del carbone, dall’efficienza energetica nei processi industriali e dal citato utilizzo di gas rinnovabili come biometano e idrogeno.

Nello stesso scenario, i consumi di energia primaria e quelli di energia finale sono previsti rispettivamente pari a 123 Mtep (rispetto ai 157 Mtep del 2023) e 102 Mtep. I risparmi cumulativi annuali nei consumi finali attraverso regimi obbligatori di efficienza energetica raggiungeranno i 73,4 Mtep. Infine, la riduzione delle emissioni dei gas serra, GHG, sarà del 66% rispetto ai livelli del 2005 per tutti gli impianti regolati dalla normativa ETS.

Emissioni e Assorbimenti di GHG

La riduzione delle emissioni è regolamentata principalmente in tre ambiti:

• Sistema ETS: la direttiva ETS e la legislazione correlata stabiliscono un sistema di “cap and trade” che limita le emissioni di gas serra, con un massimo ridotto annualmente per garantire il raggiungimento graduale dell’obiettivo, fissato dal pacchetto Fit for 55 alla riduzione del 62% rispetto ai livelli del 2005 entro il 2030.

• Regolamento Effort Sharing (ESR): questo regolamento, aggiornato recentemente, impone all’Italia di ridurre le emissioni del 43,7% rispetto al 2005, entro il 2030, nei settori trasporti, residenziale, terziario, industria non ETS, rifiuti e agricoltura. La riduzione deve seguire una traiettoria con limiti annuali massimi di emissione. L’Italia deve ridurre le emissioni del 30% rispetto ai livelli del 2021 nei settori trasporti, residenziale e agricoltura.

• Regolamento LULUCF: stabilisce norme per la riduzione delle emissioni e gli assorbimenti di carbonio nei settori dell’uso del suolo e della silvicoltura.

L.A. Piterà*

L’obiettivo al 2030 è un assorbimento netto per l’Europa di 310 Mt di CO2,eq e per l’Italia di 35 Mt di CO2,eq

Efficienza Energetica

L’efficienza energetica è cruciale per ridurre consumi ed emissioni e per incrementare la quota di energie rinnovabili e la sicurezza energetica. L’Italia, nel suo scenario di riferimento, prevede consumi energetici finali superiori a quelli degli obiettivi dell’Unione europea, per cui sono richieste misure aggiuntive e potenziate rispetto a quelle definite per gli altri Paesi membri; in particolare, per raggiungere gli obiettivi della Energy Efficiency Directive III e sostenere una transizione energetica efficace e sostenibile è necessario quanto segue.

Settore Civile e Trasporti

• Civile: conformemente alla Direttiva EPBD, il tasso di ristrutturazione degli edifici deve aumentare e devono essere previste tecnologie per l’elettrificazione, l’automazione e controllo e l’isolamento delle superfici disperdenti. Le pompe di calore saranno fondamentali per il riscaldamento, sostenute dalla diffusione di impianti fotovoltaici domestici.

• Trasporti: deve essere data priorità alla riduzione della mobilità privata, alla promozione della mobilità collettiva su rotaia e allo spostamento delle merci da gomma a ferro. Sono previste misure per ridurre il fabbisogno di mobilità, aumentare l’efficienza degli spostamenti e promuovere carburanti alternativi e veicoli elettrici.

favorire l’efficienza energetica.

Politiche e Incentivi

• Va prevista una riforma degli incentivi fiscali per migliorare il rapporto costo-beneficio degli interventi, con priorità agli edifici meno performanti e alle situazioni di povertà energetica.

• Deve essere contemplato un piano per incrementare l’efficienza energetica degli edifici pubblici per raggiungere la riqualificazione del 3% degli edifici pubblici all’anno e la riduzione dei consumi della pubblica amministrazione dell’1,9% annuo.

• L’efficienza energetica va promossa anche negli edifici non residenziali privati.

Sicurezza Energetica

Per garantire la sicurezza energetica vanno diversificate le fonti di approvvigionamento, vanno potenziati le infrastrutture, il market coupling, il monitoraggio dei consumi e delle fonti e va incentivata la transizione verso fonti rinnovabili e nucleari.

• Diversificazione delle fonti di gas: vanno stipulati nuovi accordi per forniture tramite gasdotti e GNL e va aumentato l’uso di impianti di stoccaggio e rigassificazione, con una riduzione significativa delle importazioni dalla Russia rispetto al 2022.

• Potenziare le infrastrutture: vanno installate nuove unità di rigassificazione a Piombino e Ravenna, va aumentata la capacità di trasporto Sud-Nord e vanno ottimizzate le concessioni esistenti.

Sviluppo delle infrastrutture di trasmissione

Il Piano prevede come obiettivo l’ampliamento delle interconnessioni con altri Paesi, il miglioramento della sicurezza, qualità e resilienza del sistema elettrico e l’aumento della capacità di scambio tra le diverse zone di mercato. Oltre a semplificare gli iter autorizzativi, è importante promuovere l’uso di FER e accumuli, sviluppare tecnologie innovative come l’idrogeno verde (per i settori industriale e i trasporti a lungo raggio) e il nucleare. I reattori di IV generazione potrebbero fornire, entro il 2050, circa l’11% dell’energia elettrica richiesta (8 GW previsti), mentre nel lungo termine il nucleare da fusione potrebbe raggiungere una proiezione del 22%. Inoltre, è fondamentale affrontare la povertà energetica con misure di efficienza e rinnovabili in autoconsumo.

Ricerca, innovazione e competitività

L’obiettivo principale è identificare e sviluppare tecnologie energetiche innovative per raggiungere i target del Green Deal e rafforzare la competitività industriale nazionale, creando un ecosistema favorevole all’innovazione tecnologica e alla sostenibilità ambientale. Questo implica concentrare gli sforzi di ricerca, sviluppo e innovazione su tecnologie che contribuiscano sia alla decarbonizzazione sia alla competitività industriale, con due obiettivi:

• al 2030: bisogna focalizzarsi su tecnologie già disponibili e per conseguire i traguardi fissati dal Fit for 55, quali solare fotovoltaico e termico, eolico onshore e offshore, batterie e stoccaggio, pompe di calore, energia geotermica, elettrolizzatori, celle a combustibile, biogas/biometano sostenibile, cattura e stoccaggio del carbonio e tecnologie di rete.

• al 2050: vanno sviluppate tecnologie attualmente in fase dimostrativa o prototipale, necessarie per la decarbonizzazione dell’industria e dei trasporti pesanti.n

* Luca A. Piterà. Segretario Tecnico di AiCARR

Settore Industriale

• Devono essere previste semplificazioni e ampliamenti degli interventi supportati e va fatta una revisione in chiave green dei benefici fiscali per

• M onitoraggio e regolamentazione: deve essere effettuato il monitoraggio dei consumi e delle fonti di gas nel rispetto del Regolamento di sicurezza n. 1938/2017, con una nuova valutazione dei rischi.

TESTO DEL PNIEC

Scarica il testo del PNIEC dal seguente link: https://tinyurl.com/PNIEC2024 o inquadra il QR-CODE

Esiti e criticità di vent’anni di misure tecniche, legislative e procedurali per la decarbonizzazione dell’ambiente costruito

Dalla prima EPBD alla direttiva Case Green: excursus sullo sviluppo delle politiche europee dal 2002 al 2024 in tema di e cienza energetica del patrimonio edilizio comunitario

F. Ascione*

“In quell’Impero, l’Arte della Cartografia giunse a una tal Perfezione che la Mappa di una sola Provincia occupava tutta una Città, e la mappa dell’impero tutta una Provincia. Col tempo, queste Mappe smisurate non bastarono più. I Collegi dei Cartografi fecero una Mappa dell’Impero che aveva l’Immensità dell’Impero e coincideva perfettamente con esso. Ma le Generazioni Seguenti, meno portate allo Studio della cartografia, pensarono che questa Mappa enorme fosse inutile e non senza Empietà la abbandonarono all’Inclemenze del Sole e degli Inverni.

Nei deserti dell’Ovest rimangono lacerate Rovine della Mappa”.

Il Rigore della Scienza, Jorge Luis Borges

Nel mese di aprile 2024 è stata definitivamente approvata la direttiva EU/2024/1275 [1], quarta versione della Energy Performance of Building Directive, meglio nota come EPBD, la direttiva europea che, dalla sua prima emanazione nel 2002, ha di fatto cambiato paradigma, procedure, obiettivi dell’efficienza energetica in edilizia in tutti i paesi membri

dell’Unione europea, in un viaggio ancora in corso (Figura 1).

Agli inizi del nuovo millennio, la originale EPBD [2] sancisce la sua valenza epocale, perché – per la prima volta nella storia dei paesi dell’Unione – si stabilisce un percorso comune, di condivisione di obiettivi, metodi, indicatori. La EPBD 2002/91/EU non solo indica una direzione verso cui andare, ma definisce anche una cornice piuttosto restrittiva all’interno della quale i paesi membri UE dovranno poi legiferare, contemplando evidentemente le specificità che li caratterizzano, e quindi le peculiarità tecnologiche, costruttive, storiche, epoche di costruzione e specificità climatiche. La direttiva 2002/91/EU non trova immediata applicazione nei paesi dell’Unione, richiedendo:

• da una parte, recepimento nei corpi legislativi nazionali, non avendo quindi effetto diretto su cittadini o professionisti bensì sui Governi e i Parlamenti;

• dall’altra, adeguamento delle metodologie di calcolo, attraverso definizione di standard tecnici e procedurali, per cui è dato mandato al CEN – Comitato Europeo per la Normazione – di sviluppare tutte quelle che sono le norme necessarie per rendere applicativa la nuova direttiva, attraverso un complesso coordinamento orizzontale e verticale,

ragione per cui uno standard specifico, il CEN/TR 15615:2008 – meglio conosciuto come “umbrella document” –serve solo a coordinare tutti gli altri. È un momento di grande complessità, in cui procedono in parallelo Istituzioni nazionali ed europee. L’Italia inizia il percorso di recepimento della EPBD con il D. Lgs. 192/2005, poche settimane prima del termine ultimo stabilito dall’Europa, e solo poche settimane dopo aver approvato il misconosciuto ultimo atto della legge 10/1991, il D.M. 27/07/2015 che contemplava l’attuazione di taluni commi della legge energetica nazionale, abrogati poi proprio dal D. Lgs. 192/2005. Il D. Lgs. 192/2005 ha vita piuttosto breve nella sua versione originale. Un anno dopo, infatti, viene fortemente modificato dal D. Lgs. 311/2006 che, insieme a una serie di novità rilevanti, introduce il ben noto regime transitorio per la prestazione energetica degli edifici. La fase di transizione include, nel 2008, sia la pubblicazione del D. Lgs. 115/2008, ulteriore atto legislativo tampone, sia (e soprattutto) la pubblicazione delle prime due parti delle UNI/TS 11300, relative al calcolo del fabbisogno termico degli edifici nella stagione estiva e invernale e al calcolo dei rendimenti degli impianti di riscaldamento. Non sono temi nuovi, ovviamente, per il Comitato

normatore nazionale, ma sono norme e allegati tecnici “nuovi” intesi come recepimento degli omologhi standard europei (e.g., EN 13790:2008 ed EN 15316-2-3:2008). Il nuovo assetto legislativo/procedurale sembra in dirittura di arrivo, e infatti è così: nell’estate del 2009, tutto si definisce compiutamente, con l’entrata in vigore del D.P.R. 59/2009 e D.M. 26/06/2009, rispettivamente recanti i requisiti minimi prestazionali degli edifici (decreto “prescrittivo”) e le linee guida per la certificazione energetica degli stessi (decreto “procedurale”). Ormai i professionisti e cittadini italiani dispongono di un quadro chiaro e definitivo in materia di efficienza energetica degli edifici, armonico rispetto alle linee guida comunitarie. Questa fase di regime stazionario però dura poco: nel 2010, infatti, è pubblicata la direttiva 2010/31/EU [3] – la EPBD Recast (rifusione) –che aggiorna, cambia e “sposta l’asticella più in alto”. Non è tutto da rifare, ma poco ci manca. Con il cambiamento del quadro legislativo europeo, anche a livello nazionale, si richiedono nuove leggi e regolamenti. Da qui si capisce la complessità del tutto e quindi il procedere secondo molteplici canali paralleli, con difficoltà di coordinamento, sovrapposizione, sfasamenti temporali, nel lavoro di:

• a livello europeo, Istituzioni di governo (i.e., Parlamento, Commissione e Consiglio) e CEN, Comitato Europeo di Normazione;

• a livello nazionale, ad esempio quello italiano, da una parte Parlamento, Governo e Regioni/Province Autonome, e dall’altra l’UNI, Ente Italiano di Normazione, insieme al Comitato Termotecnico Italiano.

La EPBD II, direttiva 2010/31/EU, si riferisce a un contesto politico, sociale e professionale più maturo e consapevole. Tra i suoi aspetti di maggiore rilevanza, deve essere sottolineata l’introduzione, nell’immaginario tecnico-professionale:

FIGURA 1 Timeline delle EPBD e delle leggi e regolamenti italiani di recepimento

• del target di “edificio a energia quasi zero” (nZEB), anche se la data di decorrenza per questo nuovo livello prestazionale è fissata al 2019 per gli edifici pubblici e a uso pubblico, e al 2021 per tutti gli edifici privati di nuova costruzione;

• del concetto di prestazione ottimale in riferimento ai costi, sia di investimento che di esercizio nel ciclo di vita, introducendo il concetto di “cost-optimal” (per la cui completa attuazione, però, sarà necessario il successivo Regolamento Delegato EU 244/2012 [4]). Ancora una volta, si ammette un periodo “transitorio”, fino appunto alla decorrenza degli obblighi di nZEB, la cui definizione non è riportata dalla direttiva (genericamente, questa stabilisce che la domanda energetica minima sarà soddisfatta prettamente dall’uso di fonti rinnovabili) ma sarà oggetto di recepimento da parte del singolo Paese.

In Italia, la EPBD II viene inizialmente recepita dal D.L. 63/2013 poi convertito in legge (L. 90/2013), anche se poi la completa attuazione si ha con i tre decreti del 26 giugno 2015 riportanti:

• metodologie di calcolo delle prestazioni energetiche, definizione delle prescrizioni e dei requisiti minimi degli edifici;

• schemi e modalità di riferimento per la compilazione della relazione tecnica di progetto;

• nuove linee guida nazionali per la certificazione energetica degli edifici. Di fatto, cambia completamente quello che era il quadro sancito dal D.P.R. 59/2009 e dalle prime linee guida per la certificazione energetica degli edifici. Si introduce l’attuale modello per l’attestato di prestazione energetica degli edifici, che si diffonde molto anche in virtù della sua obbligatorietà (per la verità, già stabilita in precedenza, a partire dal D. Lgs. 311/2006) in concomitanza di trasferimenti di proprietà degli immobili, concessione in uso, locazione. La diffusione degli APE è anche legata alla loro obbligatorietà tra la documentazione da produrre per fruire delle incentivazioni fiscali per il risparmio energetico, le varie forme di eco-bonus, introdotte a partire dal 2007, per interventi di varia natura, con soglie differenziate di detrazione fiscale da ripartire in numero di anni variabili. Nel turbinio di questo nuovo mondo orbitante intorno ai nuovi orizzonti di efficienza energetica in edilizia, in questa sede, per brevità, non riteniamo di approfondire anche la cronistoria dei meccanismi incentivanti.

Gli APE, dunque, iniziano a diventare un documento

noto ai cittadini – se non nel significato numerico della prestazione energetica e pertanto della reale comprensione degli indicatori EP (i famigerati kWh/m2 anno di energia primaria non rinnovabile, riferiti a uno specifico uso energetico o alla domanda globale) – quantomeno come strumento di sensibilizzazione rispetto ai consumi. Gli APE iniziano a divenire più accurati e si riducono quelle classi G, mal calcolate, che caratterizzavano la gran parte degli annunci immobiliari presenti nelle vetrine delle agenzie immobiliari. Il rinnovato successo degli attestati di prestazione energetica forse è anche dovuto alla lettura “friendly” delle prestazioni, mediante scale colorate (usando quello che nell’immaginario collettivo è il colore della buona “practice”, il verde, rispetto a quella “cattiva”, il rosso) o anche ad esempio attraverso l’utilizzo delle emoticon sorridenti, neutrali o tristi, per dare immediatezza visiva a una prestazione energetica soddisfacente, intermedia o negativa.

Con la ricostruzione della cronistoria arriviamo direttamente al 2018, quando il lavorio costante delle Istituzioni europee – Commissione, Consiglio e Parlamento – porta all’approvazione della terza versione della direttiva sulla efficienza energetica degli edifici: la EPBD III [5].

Invero, la direttiva 2018/844/EU forse andrebbe ricordata in altro modo, includendo, oltre agli edifici, anche taluni altri settori, tanto è vero che lo stesso documento ufficiale definisce tale direttiva come documento che modifica “la direttiva 2010/31/UE sulla prestazione energetica nell’edilizia e la direttiva 2012/27/UE sull’efficienza energetica”. Sebbene anche la direttiva precedente, quindi la 2010/31, avesse posto una grande attenzione agli edifici

esistenti, la 2010/31/UE sarà ricordata come quella direttiva che introduce, per gli edifici nuovi, la quasi neutralità energetica. Al contrario, pur nella estrema sintesi che lo spazio di questo articolo concede, la direttiva 844/2018 è quella che pone il “focus” sullo stock immobiliare esistente. Si prevede che ogni Stato Membro stabilisca una “long term strategy” per ristrutturare l’intero parco edilizio, al fine di avere città decarbonizzate entro il 2050, con step intermedi al 2030 al 2040. Sono introdotte una serie di altre indicazioni, ad esempio circa la predisposizione degli edifici all’intelligenza, la necessità di rendere trasparenti le prestazioni energetiche di edifici e consapevoli rispetto ai consumi (e alla loro riduzione) i cittadini che li abitano, prescrizioni affinché gli edifici diventino degli hub per la ricarica della mobilità elettrica. Il concetto di efficienza energetica si inizia a estendere dagli edifici al settore dei trasporti, in qualche modo non guardando più al singolo “building”, ma alla complessità degli edifici, verso un orizzonte di comunità energetica. Ancora una volta, l’approvazione e il trasferimento nel corpo legislativo nazionale prevedono un certo margine temporale. L’Italia recepisce la direttiva 844/2018 in piena pandemia, con il D. Lgs. 48/2020. Siamo verso la fine del primo “lockdown”, almeno nel senso più restrittivo del termine, l’attività legislativa è anche rivolta a iniziare un nuovo percorso di rilancio delle attività economiche, anticipando i concetti di “ripresa e resilienza” protagonisti nell’anno successivo. Il Governo Conte bis, quasi contestualmente, nel maggio 2020, promulga il D.L. 34/2020 recante “Misure urgenti in materia di salute, sostegno al lavoro e all’economia, nonché di politiche sociali connesse all’emergenza epidemiologica da COVID-19” e, alcuni

giorni dopo, emana il succitato D. Lgs. 48/2020 di recepimento delle nuove linee guida europee.

In ambito di strumenti di incentivazione degli interventi di riqualificazione energetica degli edifici esistenti, siamo in presenza di una operazione senza precedenti, finanche maggiormente dirompente – almeno “sulla carta” e al netto delle storture che senza dubbio vi sono state – del “bonus facciate”. Le detrazioni fiscali per interventi di riduzione della domanda di energia degli edifici – nate nel 2007 al 55% e poi portate al 65%, ma anche al 70, 75, 80, 85 e 90% negli anni successivi – superano nel 2020 la soglia del 100%. È possibile, mediante beneficio diretto, sconto in fattura e cessione del credito, usufruendo anche di intermediazioni, detrarre il 110% delle spese sostenute per ridurre il consumo energetico degli edifici. Il superbonus non sostituisce gli “eco-bonus” precedenti, bensì è uno strumento giuridico aggiuntivo, prevedendo vincoli e regole di ingaggio diversi (e.g., interventi “trainanti” e “trainati”, doppio salto di classe, massime soglie per singoli interventi, unità immobiliare in condominio o case isolate, etc.).

In parallelo, iniziative, piani e programmi procedono anche a livello europeo, affrontando gli stessi temi, e quindi la necessità di decarbonizzare le città, rilanciare le economie messe a dura prova dalla pandemia, stabilire nuovi paradigmi prestazionali e di vivibilità per gli edifici (le cui vulnerabilità e deficit sono stati ulteriormente portati alla luce dai lockdown). In questo contesto, meramente a titolo esemplificativo, si cita il pacchetto “Fit for 55%”, che guarda all’obiettivo di ridurre le emissioni climalteranti, nei confini dell’Unione, di almeno il 55% entro il 2030. Altre iniziative da menzionare sono l’“European Grean

Deal” con la “Building Renovation Wave” (“…aiming to improve energy efficiency, boost the economy and deliver better living-standards for Europeans…”), la “New European Bauhause” e programmi quali l’“EU Mission 100 Climate-neutral and smart cities by 2030”.

In tutto questo, probabilmente proprio a causa delle fragilità, non solo in termini di richieste energetiche, ma anche e soprattutto di benessere indoor e capacità di determinarlo (in seguito, il fenomeno è stato accentuato e reso più evidente durante i lockdown), già dal 2016, presso la Commissione europea, era stato istituito un nuovo Osservatorio, quello sulla “povertà energetica”. I report dell’Osservatorio rivelano dati allarmanti: mediamente, in Unione europea, quasi il 9% dei cittadini denuncia “inability to keep home adequately warm”, percentuale che sale al 16% in Italia e orbita intorno al 40% in Bulgaria. Con riferimento alle condizioni di comfort estive, queste sono insoddisfacenti in quasi il 20% delle abitazioni europee, con percentuali che salgono al 25% in Italia, 35% in Portogallo, quasi il 50% in Bulgaria [6]. Molti altri dati sono riportati dall’Osservatorio, con constanti aggiornamenti, ad esempio riportati in [7], con riferimento alle condizioni di comfort abitativo in ambedue le stagioni, la possibilità e la facilità di approvvigionamento energetico, la disponibilità di installazioni di sistemi per il controllo microclimatico (heating e cooling), la possibilità di pagare le utenze energetiche senza preoccupazioni: tutti i numeri rivelano una debolezza che, nell’ambito dell’Unione, probabilmente – se non inattesa – comunque non si riteneva fosse di tale rilevanza. Con riferimento alle condizioni di invivibilità delle città europee nella stagione estiva, molti studi scien-

tifici sono ora disponibili, a partire da quelli condotti dai gruppi di ricerca in materia di “Urban e Building overheating”, da Santamouris [8, 9, 10] a Mavrogianni et al. [11], in contesti climatici mediterranei ma anche del Centro e Nord-Europa.

Oltre a iniziative, programmi e progetti dimostratori ed esemplari, a livello europeo si lavora per definire la quarta versione della EPBD, già nel 2022, con un testo molto avanzato e più forte di quello poi approvato solo qualche settimana fa. Va detto che, oltre a una estenuante “trattativa” al ribasso tra i vari paesi europei (che talora, ahimè, proprio non riescono a non far emergere quelle che sembrano istanze rivolte alla tutela di interessi meramente nazionali), un’ulteriore lunghissima fase è stata quella del “trilogo”, e quindi la fase di negoziazione “a tre”, tra Commissione, Consiglio e Parlamento. La nuova direttiva è definitivamente pubblicata in Gazzetta Ufficiale dell’Unione Europea nella primavera 2024 senza approvazione all’unanimità, con voto contrario di Italia e Ungheria in consiglio Ecofin, astensione di Croazia, Polonia, Repubblica Ceca, Slovacchia e Svezia. Non vi è spazio per discutere nel dettaglio tutte le misure introdotte dalla EPBD IV, ovviamente secondo una timeline progressiva, con decorrenza a partire dal 2025, allorquando si prevede lo stop a tutte le forme di incentivi dei sistemi di generazione a combustibili fossili. Negli anni successivi, iniziano a decorrere i nuovi obblighi in tema di installazione di impianti solari sugli edifici pubblici non residenziali, l’obbligo di presentazione di piani di grande ristrutturazione dello stock immobiliare, i nuovi modelli per gli attestati di prestazione energetica, la limitazione del GWP degli edifici, l’obbligo dello standard di “zero-emission building” a partire dal 2028 per gli edifici pubblici e a uso pubblico e dal 2030 per tutti gli edifici nuovi privati, la riduzione drastica dei consumi energetici degli stock residenziali e non residenziali di almeno il 16% entro il 2030, di almeno il 26% al 2033, la graduale dismissione delle caldaie a combustibili da completarsi entro il 2040, e finalmente la completa neutralità climatica degli edifici della Unione europea entro 2050. In tutto questo, abbiamo per un attimo tralasciato quella che è l’evoluzione delle norme tecniche, a livello italiano, quelle prime due parti delle UNI/TS 11300 del 2008, a cui si sono aggiunte, negli anni successivi, altre quattro norme, fino alla parte 6, con diversi aggiornamenti di ciascuna di queste nel corso degli anni. A oggi, solo a titolo esemplificativo, è in vigore la norma UNI EN

52016 del 2018 che introduce per gli edifici un metodo di calcolo aggiornato, anche dinamico orario.

Senza entrare ulteriormente nel merito di questo lungo e travagliato percorso che ci ha portato qui, in un viaggio comune lungo 22 anni, di certo la legislazione, per quanto complessa e per quanto in continuo “divenire”, ormai è chiaro che stabilisca un percorso lungo due binari:

• nuovi edifici ZEB, prima pubblici e poi anche privati (secondo uno schema che rilancia il ruolo esemplare delle Istituzioni pubbliche) tali da non determinare emissioni climalteranti;

• massiva riqualificazione energetica degli edifici esistenti, tale per cui si avrà una progressiva decarbonizzazione di tutto lo stock immobiliare.

Come ben noto, la doppia “leva” è resa necessaria dai tassi di turn-over in edilizia estremamente bassi, mediamente intorno allo 0,6%/anno in UE.

Intanto, nell’aprile del 2024, il Governo ha inviato alle Regioni una bozza di nuovo decreto requisiti minimi, tale da recepire la direttiva 844 del 2018 secondo quelli che sono i principi già trasferiti nel D. Lgs. 48/2020. In definitiva, formalmente, in un momento in cui è già approvata la EPBD IV, ci apprestiamo a tradurre in prescrizioni le indicazioni della EPBD III.

Oltre l’Europa, a livello sovra-comunitario, molti di questi temi sono stati, negli ultimi anni, affrontati in tavoli “planetari”, dai G8 ai G20, e in tutte le Conferenze delle Parti sui cambiamenti climatici (che, con molta enfasi iniziale, talora sembrano montagne che partoriscono non si sa cosa). Nonostante tutto l’effort profuso – a livello mondiale, europeo e nazionale – ancora poche settimane fa l’homepage dell’International Energy Agency citava che gli edifici a tutt’oggi rappresentano un potenziale enorme inesplorato di risparmio energetico.

Sebbene i dati non siano recentissimi, in Europa, meno del 10% degli edifici è stato costruito dopo il 2000, mentre la stragrande parte è stata costruita prima del 1979 [12]. Proprio la fine degli anni ’70 è un periodo “soglia”, perché entrano in vigore le prime leggi energetiche nazionali in materia di risparmio energetico in edilizia, a seguito della crisi mediorientale che determinò enorme difficoltà negli approvvigionamenti. Sono gli stessi anni in cui si iniziano a prescrivere austerity e targhe alternate per la circolazione, e diviene obbligatorio, almeno sulla carta, l’isolamento termico degli edifici. Fino a quella data, la necessità di crescita post-bellica delle città, la nuova industrializza-

(HDD) e raffrescamento (CDD) negli ultimi 40 anni (source: https://www.eea.europa.eu/data-and-maps/figures/trend-in-heating-and-cooling-1)

zione, l’inurbamento avevano portato a un’edilizia veloce, massiva, con larghissimo uso dei telai in calcestruzzo armato e componenti di chiusura dell’involucro edilizio leggeri, basati largamente sull’utilizzo di laterizi forati. L’approvvigionamento energetico sembrava non essere un problema, non il principale almeno, e l’uso degli impianti termici compensava le perdite energetiche di edifici colabrodo. E questo è il parco edilizio con cui a oggi ancora ci misuriamo: circa il 65% degli edifici europei sono costruiti in questo modo, nascono sprovvisti di isolamento termico, cosicché uno studio del Building Performance Institute Europe [13] stabilisce che i 2⁄3 sono oggi classificati nelle due peggiori classi energetiche. È molto interessante un articolo di qualche anno fa del Guardian che si concentra su quelle che sono le porzioni delle città europee più densamente

abitate [14]. Nel centro storico di Napoli si arriva a oltre 22113 abitanti per km2, praticamente 100 volte la densità media italiana (206 persone/km2 ), mentre a Parigi e Barcellona, in talune aree, superano i 52000 abitanti/km2. Molte altre città europee hanno densità di questo ordine di grandezza. Centri storici e periferie (Figura 12) sono inesorabilmente i luoghi su cui concentrarsi, poiché qui, per motivi diversi ma analogamente pressanti, è dove vi è una concentrazione di criticità:

• perché la densità abitativa implica densità energetica, calore antropogenico, inquinamento e isole di calore;

• perché il tessuto storico implica vincoli di natura culturale, di preservazione, di limitate possibilità per migliorare la prestazione termica degli edifici, senza inficiare quella che è una peculiarità italiana, un patrimonio architet-

FIGURA 2 Congestione dei centri storici e volumi edificati nelle periferie
FIGURA 3 Evoluzione dei gradi giorno di riscaldamento

tonico unico e da preservare, di cui siamo custodi ma che appartiene al mondo intero;

• perché la superficie dei tetti, disponibile per le rinnovabili, chiaramente in edifici di 10-15 piani propri delle periferie non è sufficiente a garantire una percentuale significativa di copertura della domanda energetica;

• perché molte volte, al netto di fenomeni di gentrificazione dei centri storici, qui e nei sobborghi ai margini delle città, si concentra anche la fascia di popolazione economicamente più fragile, e quindi quella più esposta alla povertà energetica.

Milano e Napoli hanno aree metropolitane di circa 4 milioni di abitanti, Roma supera i 4,3 milioni. Tre città intorno alle quali orbita circa un quinto della popolazione italiana e che, insieme alle altre conurbazioni, di fatto rappresentano la sfida per nuovi modelli di città sostenibili. Centri storici e periferie delle metropoli urbane: è da qui, a mio avviso, che è necessario ripartire, anche mediante leggi “ad hoc” per tali contesti,

promuovendo una intensa rigenerazione urbana, “energeticamente” orientata. Ed è quanto mai urgente.

In tutto questo, ogni estate, aumentano fenomeni di mortalità, morbidità e co-morbidità legati al surriscaldamento delle città e alle ondate di calore, con effetti ormai cronici oltre agli episodi acuti dovuti a eventi estremi, di crescente frequenza, inizialmente dai nomi suggestivi perché esotici ma la cui “ordinarietà” ha reso ormai tristemente normali. Tutti noi abbiamo memoria di quello che è successo nel luglio del 2023, allorquando, probabilmente per la prima volta nella storia italiana, si è avuta una condizione climatica di anomalia termica dovuta a temperature e umidità impressionanti per oltre 15 giorni consecutivi. Il futuro non può essere costruito su una logica emergenziale. Quando, puntuali a luglio, tornano “Caronte”, “Lucifero” e “Medusa”, non possiamo continuare a consigliare agli anziani di cercare rifugio nei centri commerciali.

Nel legiferare e nel progettare –sembra scontato dirlo ma affatto non

è così – l’Italia della politica e delle professioni deve capire che qui vi sono due stagioni, lunghe, critiche, con esigenze contrastanti. Se iper-isoliamo, non basterà nelle ore notturne estive aprire le finestre, in presenza di temperature esterne che non consentono efficace raffrescamento. Questo può funzionare a Berlino, non a Palermo. Metodi e prescrizioni introdotti dalle linee guida internazionali, rispetto alle quali in passato vi è stato un ruolo forse trainante da parte di paesi con caratteristiche ben diverse dalle nostre, vanno declinati rispetto alle nostre esigenze e peculiarità: climatiche, tecnologiche, costruttive. Tutti i professionisti italiani conoscono il significato dei gradi giorno di riscaldamento. I gradi giorno di raffrescamento, in continuo aumento, non trovano invece spazio in nessuna legge (Figura 3).

Quando nell’estate del 2023, ho avuto l’onore di presentare la “keynote” introduttiva del 39° Convegno AiCARR, mi sono divertito, approfittando degli ultimi giorni d’estate, a modellare un tipico edificio degli anni ’60: tecnologia strutturale in calcestruzzo armato, telaio di travi e pilastri e solai in laterocemento, tamponature a cassa vuota. In analogia con tale qualità tecnologica costruttiva, è stato modellato anche quello che è l’impianto di riscaldamento tradizionale, centralizzato, colonne montanti e radiatori (Figura 4). Forse non era nemmeno necessario ricorrere a codici evoluti per la simulazione termo-energetica; è evidente che, nel clima di Napoli, non è possibile nessun

FIGURA 4 Tipologia edilizia, termofisica e classe energetica dell’edificio modellato

comfort estivo senza utilizzo di impianti di climatizzazione, secondo l’approccio tradizionale di Fanger, della originaria UNI 7730, o anche secondo il noto “old but gold” vecchio ASHRAE 55-1992 (Figura 5, sinistra). Per rilassare un po’ i vincoli, immaginando un andamento incontrollato delle temperature interne in regime estivo, si è pertanto ipotizzato un modello di comfort secondo cui valutare il benessere termico nella stagione calda, che fosse quello adattivo (Figura 5, destra). Pertanto, il riferimento dello studio è stata la categoria intermedia (Categoria II, adottando come riferimento il modello EN 15251 o quello dello Standard ASHRAE 55-2013) che comunque prevede temperature dell’aria interna non superiori a circa 30 °C, assumendo il periodo centrale della stagione estiva come base di calcolo per la temperatura media esterna o la “mean running outdoor temperature”. Secondo queste condizioni al contorno, l’edificio è stato simulato, adoperando, come file climatico orario, il tradizionale IWEC (International Weather for Energy Calculation) dei primi anni 2000. Andando ad analizzare le temperature indoor, per due appartamenti, rispettivamente a un piano intermedio e in copertura, si evince come rientrino nei limiti di accettabilità buona parte delle ore, nei due giorni di fine luglio considerati (Figura 6).

La simulazione è stata poi ripetuta facendo prima evolvere il file climatico da indicazioni IPCC (Intergovernmental Panel on Climate Change), pur adottando un approccio semplificato per definire file climatici orari secondo gli scenari di emissione RCP 4.5 e RCP 8.5 (Representative Concentration Pathways). A valle di tali nuove simulazioni, è evidente un drastico peggioramento delle condizioni indoor (Figura 7), alla luce del cambiamento climatico, che di fatto annulla qualunque possibile concetto di comfort, anche allentando ulteriormente i vincoli, e quindi ammettendo la terza categoria di accettabilità.

Facendo un passo indietro, vestendo poi i panni del cittadino e non dello studioso, e sfruttando le “possibilità” introdotte dalle politiche di incentivazione, ho riqualificato energeticamente l’edificio, ad esempio, approfittando di quei pacchetti di ristrutturazione “standardizzati”, talora (purtroppo “spesso”) proposti sia da professionisti che dai grandi player del settore. In particolare, ho applicato al modello un tradizionale intervento “superbonus 110%”, con installazione di isolamento termico a cappotto fino a rispettare i limiti del decreto ottobre 2020, isolamento della copertura, il tutto con incidenza ben superiore a quel

25% minimo per accedere agli incentivi. Allo stesso modo, come intervento “trainato”, si è proceduto alla sostituzione di finestre comprensive di infissi (doppio vetro basso-emissivo, telaio in PVC, Uw intorno a 1,3 W/m2K). Per essere quanto più aderenti alla realtà, nessun inter-

vento ha interessato l’impianto termico, già dotato di regolazione ambiente per ambiente e contabilizzazione del calore mediante ripartitori, perché riqualificato in precedenza secondo le prescrizioni della direttiva 2012/27/UE, recepita in Italia dal D. Lgs. 102 del 2014.

FIGURA 5 Modelli per lo studio del comfort termico indoor, tradizionale e adattivo
FIGURA 6 Condizioni interne medie nei due appartamenti analizzati (file climatico Naples IWEC ASHRAE)
FIGURA 7 Condizioni interne medie nei due appartamenti analizzati (file climatici monitorati e di scenario)

Migliaia di microfori e nessun getto d’aria diretto

L’esclusiva tecnologia WindFree™ è l’ideale in ogni contesto: in ufficio, hotel e punti vendita, ma anche negli ambienti più delicati della casa come la camera da letto. Diffusione omogenea

Gestione

In Figura 8, emerge una drastica riduzione della domanda energetica di riscaldamento invernale, a valle della molto migliore resistenza termica dell’involucro edilizio (e.g., Uwall da 1,05 a 0,28 W/m2K) e anche in virtù

BIBLIOGRAFIA

della minore infiltrazione indotta dai nuovi serramenti. La domanda energetica in raffrescamento (ipotizzando questa volta la presenza di sistema per il controllo microclimatico estivo) non è cambiata, riducendosi lievemente (con

[1] Directive 2024/1275/EU of the European Parliament and of the Council of 24 April 2024 on the energy performance of buildings (recast), Official Journal of the European Union, L series 8.5.2024.

[2] Directive 2002/91/EU of the European Parliament and of the Council of 16 December 2002 on the energy performance of buildings, Official Journal of the European Union, 04/01/2003, L 1/65.

[3] Directive 2010/31/EU of the European Parliament and of the Council of 16 December 2002 on the energy performance of buildings (recast), Official Journal of the European Union, 18/06/2010, L series 153/13.

[4] Commission Delegated Regulation (EU) No 244/2012 of 16 January 2012 supplementing Directive 2010/31/EU of the European Parliament and of the Council on the energy performance of buildings by establishing a comparative methodology framework for calculating cost-optimal levels of minimum energy performance requirements for buildings and building elements, Official Journal of the European Union 21.3.2012 L 81/18.

[5] Directive (EU) 2018/844 of the European Parliament and of the Council of 30 May 2018 amending Directive 2010/31/EU on the energy performance of buildings and Directive 2012/27/EU on energy efficiency, Official Journal of the European Union, 19/06/2018, L 156/75.

[6] Thomson H. and Bouzarovski S., Addressing Energy Poverty in the European Union: State of Play and Action, EU energy Poverty Observatory, 2019.

[7] Energy Poverty National Indicators: Insights for a more effective measuring. Energy Poverty Advisory Hub, EU Commission, October 2022.

[8] Santamouris M., Recent progress on urban overheating and heat island research. Integrated assessment of the energy, environmental, vulnerability and health impact. Synergies with the global climate change, Energy and Buildings 2020, 207, 109482.

[9] Santamouris M., Innovating to zero the building sector in Europe: Minimising the energy consumption, eradication of the energy poverty and mitigating the local climate change, Solar Energy, 2016, 128: 61-94.

[10] Santamouris M., Regulating the damaged thermostat of the Cities – Status, Impacts and Mitigation Strategies, Energy and Buildings, 2015, 91:43-56.

[11] Taylor J., McLeod R., Petrou G., Hopfe C., Mavrogianni A., Castaño-Rosa R., Pelsmakers S., Lomas K., Ten questions concerning residential overheating in Central and Northern, Europe, Building and Environment, 2023, 234, 110154.

[12] Cordis Project, EU project completes largest study of European building stock, 36619, 2014, available at: https:// cordis.europa.eu/article/id/36619-eu-project-completes-largest-study-of-european-building-stock. CORDIS | European Commission.

[13] BPIE Building Performance Institute Europe, Future-proof buildings for all Europeans – A guide to implement the Energy Performance of Buildings Directive, 2019, available at: https://www.bpie.eu/ publication/a-guide-to-implementing-the-energy-performance-of-buildings-directive/

[14] Europe’s most densely populated square kilometres – mapped, The Guardian, 2018, available at: https://citi. io/2018/04/05/europes-most-densely-populated-square-kilometres-mapped/

effetto benefico, quindi) nelle settimane centrali estive, ma aumentando nei mesi intermedi, allorquando è evidente che l’isolamento termico rappresenti una limitazione al raffrescamento naturale delle strutture e alla dissipazione, verso l’ambiente esterno più fresco principalmente nelle ore notturne, dei guadagni termici endogeni e solari. Tutto questo già con il file climatico tradizionale, e quindi senza far ricorso al dato climatico evoluto secondo gli scenari di cambiamento climatico, che accentuerebbero di molto tale criticità.

In definitiva, e mi appresto a chiudere questo lungo scritto, forse un limite di questi ultimi venti anni di politiche energetiche è stato quello di non aver completamente cambiato l’approccio progettuale, in qualche modo derivando le misure di efficienza energetica, soprattutto in ristrutturazioni, da contesti che non rappresentano le specificità italiane. Non conosco i numeri ma, pur essendo state incentivate (anche di più, dal punto di vista della soglia economica di ammissibilità, in €/m2) tecnologie atte a migliorare la prestazione energetica estiva, anche in climi caldi sono stati installati molti più “cappotti termici” che “pareti ventilate”, molti più vetri basso-emissivi rispetto a vetri selettivi o a controllo solare. E il medesimo discorso vale per i sistemi di schermatura e per la ventilazione meccanica. Insomma, se non la cultura tecnica, forse la professione ha spesso inseguito i bonus, talvolta così sembra, piuttosto che quello che dovrebbe caratterizzare ogni intervento progettuale, e quindi non la standardizzazione, bensì il cardine latino “suum cuique tribuere”. Non è tardi, abbiamo una nuova direttiva da recepire, città che in gran parte devono ancora misurarsi con i vincoli stringenti di decarbonizzazione, in cui la promozione, innanzitutto culturale, delle tecnologie di mitigazione del surriscaldamento devono divenire centrali. Dum spiro, spero: c’è ancora un futuro da costruire, con molto impegno e partecipazione, ma facendo qualcosa per cambiare le cose, non come il venditore di almanacchi di leopardiana narrazione. Ogni occasione di dialettica politica, a tutti i livelli, da quelli sovranazionali a quelli locali, può costruire sinergie verso un obiettivo comune e condiviso, senza la inutile stratificazione di strumenti legislativi sovrapposti e ridondanti: la Mappa dell’Impero di Borges, appunton

* Fabrizio Ascione, DII – Dipartimento di Ingegneria Industriale – Università degli Studi di Napoli Federico II

FIGURA 8 Prestazioni energetiche “ex-ante” e “ex-post” rispetto al retrofit Superbonus (medie per intero edificio)

The Royal League

Feel the future

of fans

ZAvblue2 – Livelli di efficienza senza pari – ideale per DATA CENTER

Ventilatore ottimizzato per installazioni compatte, l’innovativo design biomimetico riduce drastica mente le perdite mantenendo una stabilità di pressione dell’aria costante.

Il filtro attivo per armoniche, fornisce la correzione del fattore di potenza, elimina le armoniche e aumenta la qualità della rete. www.ziehl-abegg.com/it

Ideale per data center

OPZIONALE

Filtro attivo per armoniche

The Royal League nella ventilazione , nei controlli e negli azionamenti

Aspetti cognitivi e comfort acustico nelle scuole per un apprendimento inclusivo

Equality è un progetto che mira a valutare la qualità della relazione fra ambiente scolastico e apprendimentoi, per determinare condizioni acustiche accettabili per diversi gruppi di bambini (normo-udenti e non normo-udenti, madrelingua italiani e non)

L. Battagliarin, I. Pavanello, I. Pittana, A. Di Bella, P. Romagnoni, P. Scimemi, F. Cappelletti*

Introduzione

La Qualità Ambientale Interna o Indoor Environmental Quality (IEQ) di un ambiente nel suo complesso, intesa come l’insieme delle grandezze fisiche che ne descrivono gli aspetti visivi, termici, acustici e di qualità dell’a-

ria, è fondamentale per garantire un normale sviluppo delle abilità comunicative, linguistiche e cognitive nel bambino [1-3]. Un ambiente scolastico inadeguato rispetto a uno o più ambiti

di comfort può determinare un eccessivo sforzo cognitivo compromettendo l’apprendimento e il rendimento scolastico. Ciò è particolarmente vero per i bambini nei primi gradi di istruzione,

come nella scuola primaria, quando hanno bisogno di discernere tra diversi simboli e suoni per stabilire le basi dei processi di apprendimento fondamentali, quali la lettura e il fare di conto.

In Europa, il recente aumento di attenzione da parte delle istituzioni per le condizioni ambientali interne nelle scuole ha portato all’introduzione di norme o linee guida per la progettazione di edifici scolastici [4-6]. In Italia, le norme nazionali [7, 8] non sono soddisfatte dalla maggior parte delle aule in quanto sono state costruite prima della promulgazione delle leggi vigenti o prima dell’aggiornamento dei criteri ambientali [9]. Alcuni studiosi riferiscono che l’età degli edifici è un indicatore delle condizioni degli interni degli edifici. Confrontando, ad esempio, due strutture di età diverse è stato rilevato che gli studenti dell’edificio moderno ottengono risultati significativamente più alti in lettura, ascolto, lingua e attività aritmetiche rispetto agli studenti della struttura più vecchia [10]. La qualità degli interni deve pertanto essere prioritariamente perseguita nella ristrutturazione degli edifici per l’istruzione, dove l’uso di materiali e tecnologie adeguate può facilmente migliorare l’apprendimento dei bambini. Tuttavia, manca ancora un accordo sui requisiti ambientali necessari a ottimizzare gli apprendimenti. Tra tutti gli aspetti fisici dell’IEQ, la qualità dell’ambiente acustico sembra essere essenziale per favorire l’apprendimento poiché gli studenti imparano ascoltando l’insegnante e i loro compagni. In particolare, il rumore è l’aspetto più preoccupante negli ambienti per l’apprendimento [11]. L’esposizione di lungo termine al rumore, in particolare durante i primi anni di scuola, può alterare gli apprendimenti dei giovani alunni compromettendone in modo

permanente il rendimento scolastico. Infatti, la capacità di percepire il parlato nel rumore è tipicamente inferiore nei bambini di età compresa tra 7 e 11 anni rispetto ai giovani adulti e migliora successivamente nell’adolescenza [12]. Una scarsa intelligibilità del discorso dell’insegnante, causata dal rumore e dal riverbero in classe, comporta una perdita di informazioni [13] e uno stato di affaticamento cognitivo, come ampiamente dimostrato da diversi studi [11, 14]. Lo sforzo cognitivo derivante da una scarsa qualità acustica è associato a maggiori difficoltà nell’elaborazione e nella memoria delle informazioni a breve e lungo termine [15] e può influenzare negativamente la percezione [16]. Infine, il rumore in classe interferisce con le attività scolastiche che non comportano l’ascolto, come la lettura [17, 18], la scrittura [19] e l’informatica [19, 20], aspetti spesso non considerati.

A rendere la difficoltà di ascolto e di comprensione in ambienti rumorosi un problema ancora più grave, sono alcune condizioni individuali aggravanti, quali la presenza di disturbi specifici dell’apprendimento, il deficit uditivo (ipoacusia) di grado anche lieve o il bilinguismo. In effetti, una normale soglia audiometrica o la presenza di un grado non invalidante di ipoacusia, come definito dall’OMS per i bambini [21], non consentono di prevedere le abilità di percezione del parlato in ambienti acusticamente impegnativi [22, 23].

Tuttavia, una normale soglia audiometrica anche per i toni ad alta frequenza estesa (Extended High Frequencies), ovvero per le frequenze superiori a 8 kHz (massima frequenza che normalmente in clinica si testa nell’esame audiometrico) contribuisce alla percezione del parlato nel rumore e può essere considerata un buon indicatore dell’intelli-

gibilità del parlato nel rumore. Di conseguenza, il deficit uditivo per i suoni ad alta frequenza estesa compresi tra 10 e 16 kHz, comune nei giovani adulti considerati normo-udenti, può essere correlato alla difficoltà di udire il parlato nel rumore. Queste evidenze portano da una parte a poter considerare la capacità uditiva alle EHF un elemento di connessione tra l’audiometria e la percezione della parola e dall’altra a considerarla un importante fattore diagnostico precoce di una ipoacusia, dato che tipicamente insorge molti anni prima di essa, quando è ancora possibile applicare efficacemente misure preventive [24].

A oggi la legislazione nazionale sull’acustica nelle scuole prevede valori di riferimento da rispettare che non tengono conto degli aspetti soggettivi connessi con la percezione dei bambini e con le loro prestazioni, quando sono sottoposti a molti stimoli diversi contemporaneamente. Questi requisiti risultano obsoleti e sono stati determinati nell’ipotesi di alunni normalmente udenti, senza considerare che il rumore di fondo e il lungo tempo di riverbero nelle aule sono spesso cause di disagio uditivo e di una alterata percezione verbale in tutti gli alunni [13]. Una revisione dei requisiti acustici interni è essenziale per sostenere ulteriori investimenti nella ristrutturazione degli edifici scolastici previsti dal Piano Nazionale di Ripresa e Resilienza (PNRR). Questa revisione dovrebbe inoltre considerare che, anche se gli studenti con disabilità uditive nelle scuole primarie italiane sono circa il 4% dei 95.838 studenti con disabilità certificate, tuttavia, la letteratura riporta che circa il 17% della popolazione scolastica può sperimentare un certo grado di perdita dell’udito durante l’età della scuola primaria [25].

Il progetto EQUALITY

Obiettivi del progetto Il progetto EQUALITY, finanziato dal MUR (Ministero dell’Università e della Ricerca) con fondi del PNRR (cod. 2022PEL99F), presentato dal Dipartimento di Culture del Progetto dell’Università Iuav di Venezia insieme a due unità di ricerca dell’Università di Padova, rappresentate dai dipartimenti di Neuroscienze e di Ingegneria Industriale, si pone l’obiettivo di studiare la relazione tra la qualità dell’ambiente interno e il comfort acustico e le prestazioni cognitive dei bambini nelle scuole primarie di primo grado, al fine di definire quali condizioni acustiche siano in grado di migliorare il benessere degli alunni, facilitando così il loro rendimento scolastico. In partico-

lare, il progetto è stato impostato per valutare:

a. i rapporti segnale-rumore più confortevoli che non influiscono sull’intelligibilità del parlato;

b. la misura in cui le condizioni acustiche interne (ad esempio tempo di riverberazione, rumore di fondo, indice di trasmissione vocale) influenzano l’intelligibilità del parlato e le prestazioni cognitive dei bambini (memoria di lavoro, attenzione visiva selettiva e sostenuta), valutate sia nel rumore di fondo e sia in condizioni di comfort acustico;

c. la misura in cui altre condizioni interne (ad esempio termiche, di illuminazione e di qualità dell’aria) possano compromettere il comfort acustico e le prestazioni cognitive dei bambini nelle aule reali.

Per sviluppare la ricerca si stanno predisponendo diverse attività, quali: i. esperimenti di laboratorio in condizioni controllate, ii. esperimenti condotti in aule scolastiche reali, e iii. modellazione acustica delle aule monitorate. La ricerca si focalizza su partecipanti di età compresa tra 8 a 11 anni che frequentano il terzo, quarto e quinto anno di scuola primaria. A questa età, i bambini non sembrano aver già acquisito l’esperienza necessaria per sviluppare la capacità di percepire il parlato in presenza di elevato rumore di fondo e sono pertanto estremamente vulnerabili agli effetti del rumore sull’apprendimento [26]. Inoltre, i bambini di 8 anni o più mostrano già una buona affidabilità test-retest necessaria per affrontare i test che saranno utilizzati. Il numero minimo di bambini richiesto dallo studio ai fini statistici è 80, calcolato in base al metodo di determinazione della dimensione del campione suggerito da [27]. I partecipanti saranno reclutati a partire da una decina di scuole selezionate dalle aree urbane e suburbane di Padova e Venezia, in base alla presenza di almeno un bambino non normo-udente per classe. Pertanto, circa un ottavo del campione sarà composto da bambini con problemi di udito. Secondo i dati più recenti sul bilinguismo nelle scuole primarie italiane pubblicati dal MIUR (Ministero dell’Istruzione e del Merito) e dal MUR, ci si aspetta di trovare anche la presenza di 8 o 9 bambini la cui lingua madre non sia l’italiano.

FIGURA 1 Postazioni di lavoro nel laboratorio CORE-CARE del Dipartimento di Ingegneria Industriale dell’Università degli Studi di Padova

TABELLA 1 Test di caratterizzazione dell’udito, di percezione e di prestazione cognitiva svolti in laboratorio e in classe

# NOME DEL TEST

IN LABORATORIO

1 Extended HighFrequencies (EHF) Audiometry

2 Uncomfortable Loudness Levels (ULL)

3 Speech-inNoise Quality Subjective Scales

4 Speech in Noise Intelligibility

5 Spatial-visual Span Test

TIPO DI VALUTAZIONE E CONDIZIONI RISULTATI

Soglia audiometrica alle alte frequenze estese (1 to 16 kHz)

Monoaural Uncomfortable Loudness Levels for warble tones (1 to 12 kHz) using earphones

Scala di preferenza per test di ricezione del parlato nel rumore valutato per tre livelli di rumore

Identificazione di parole bisillabiche per tre livelli di rumore per tre livelli di rumore

Valutazione della capacità di memoria visuo-spaziale per tre livelli di rumore

Valori soglia in dB HL @ 0,5, 1, 4, 8, 12, 16 kHz

Livelli in dB HL @ 1, 4, 8, 12 kHz IN LABORATORIO E IN CLASSE

6 Listening Span Test

Lo studio sperimentale in laboratorio CORE-CARE

Per poter caratterizzare la sensibilità uditiva dei bambini e per studiarne la capacità di percezione uditiva e le prestazioni cognitive in un ambiente controllato, effettuando variazioni definite di rapporto segnale-ru-

Livello di preferenza su scala a 5 valori

Accuratezza Tempo di risposta

Valutazione della memoria di lavoro verbale per tre livelli di rumore

more, mantenendo allo stesso tempo la qualità dell’aria, le condizioni termiche e di illuminazione all’interno degli intervalli di comfort, è stata progettata una serie di esperimenti in laboratorio. Le attività sperimentali saranno proposte a studenti normo-udenti e ipoudenti e saranno condotte presso il laboratorio CORE-CARE del Diparti -

mento di Ingegneria Industriale dell’Università degli Studi di Padova, una sala controllata per la valutazione del comfort ambientale e la valutazione soggettiva della risposta umana (Figura 1). In CORE-CARE è possibile impostare la temperatura operativa controllando la temperatura di tutte le superfici (pavimento, pareti e soffitto) e la portata di

ventilazione. Inoltre, l’illuminamento può essere regolato per raggiungere le condizioni standard di riferimento secondo la normativa EN 16798-1: 2019. In questo modo, tutti i parametri IEQ possono essere mantenuti stabili cambiando solo il livello di rumore ambientale e il riverbero.

In CORE-CARE Lab i bambini saranno prima sottoposti a prove audiometriche e di comfort (i.e. #1 e #2 in Tabella 1) per caratterizzare la risposta ai segnali acustici non influenzati dalle condizioni architettoniche. Successivamente i test di Speech in Noise (i.e. #3 e #4 nella Tabella 1) e i test cognitivi (i.e. #5 e #6 nella Tabella 1) saranno somministrati a gruppi di quattro bambini alla volta che soggiorneranno in laboratorio come se fossero a scuola. Tutti i test saranno somministrati utilizzando una procedura basata su tablet.

I test in laboratorio

In Tabella 1 sono riassunti i test che saranno svolti in laboratorio. I primi due test sono tipiche misure audiometriche che servono per caratterizzare dal punto di vista fisiologico il soggetto. In particolare, il test#1 rileva la soglia audiometrica per via aerea comprendente le alte frequenze estese (EHF), misurata tramite procedura automatizzata condotta su tablet e ottenuta monauralmente a 0,5-1-4-8-12-16 kHz con l’utilizzo di cuffie [28].

Le soglie uditive convenzionali a 0,5-1-2-4 kHz sono utili per identificare i bambini eventualmente affetti da lieve perdita dell’udito. Secondo Moore et al. (2020) [29] l’incidenza di bambini con lieve perdita dell’udito è del 20% e, seppur di minore entità, tale perdita incide sulla percezione del linguaggio nel rumore e sulle capacità cognitive spese per il linguaggio e la lettura.

Quindi, la sensibilità uditiva alle alte frequenze estese influisce sulla percezione del parlato nel rumore, diventando un utile indicatore per discriminare quei soggetti che potrebbero essere in difficoltà nella percezione del linguaggio nel rumore [30].

Il secondo test previsto (test#2) misura i livelli del fastidio (ULLs) utilizzando la procedura raccomandata dalla British Society of Audiology (2011) [31]. I livelli di fastidio sono indici di iperacusia, condizione molto diffusa tra i bambini normoudenti (dal 3,2% al 17,1%) di età compresa tra 5 e 12 anni [28]. L’iperacusia è infatti spesso caratterizzata da ULLs più bassi alle alte frequenze (8 kHz) che alle basse frequenze (0,25 kHz) [32].

Per esplorare la preferenza rispetto all’ascolto del parlato nel rumore, si userà il test#3 che misura la preferenza su scale di valutazione soggettiva. In particolare, sarà usata una tavoletta con una scala visuale-analogica di 5 gradi su cui i bambini esprimeranno la loro preferenza rispetto alla rumorosità dello stimolo. Gli stimoli del linguaggio saranno presentati in campo libero a tre diversi rapporti segnale-rumore (babble noise).

Accanto alla preferenza sarà eseguito il test di intelligibilità verbale nel rumore (test#4). Il test sarà condotto utilizzando una applicazione sviluppata su tablet Android a partire da una precedente versione sviluppata nell’ambito del progetto di ricerca finanziato con fondi POR FSE 2014/2020 (codice progetto: 2105-0010-1463-2019). Il test, adattato da TIPI-2 [33], valuta la capacità di identificare le parole bisillabiche nel rumore ed è appositamente progettato per i bambini dai 6 agli 11 anni. Al bambino viene chiesto di selezionare sul tablet l’immagine corretta che ha sentito con tre diversi livelli di rumore

di fondo. Il software registra automaticamente i risultati calcolando il numero di risposte corrette, il numero di errori, il tempo di reazione e il numero di distrattori selezionati. Infine, per valutare la relazione tra stimolo acustico e funzioni cognitive, saranno proposti ai bambini due test per verificare il disturbo generato dal rumore sulla memoria visuo-spaziale. Un primo test di valutazione dello span visuo-spaziale (test#5) è il Frog Matrices Task [34, 35]. I partecipanti sono fatti accomodare, seduti, davanti allo schermo di un computer, dove viene visualizzata una griglia costituita da un totale di 9 caselle (3x3). Esse rappresentano gli stagni entro cui una rana inizierà a saltare, dopo un segnale di inizio. I partecipanti sono invitati a ripercorrere a ritroso il movimento compiuto dal personaggio. Nello specifico, dovranno toccare lo schermo a partire dall’ultimo spazio occupato dalla rana e proseguire, nell’ordine inverso, con i precedenti. Nella fase iniziale, il test prevede l’esecuzione di due salti da parte del personaggio, sino ad arrivare a un massimo di cinque. Sono previsti due trial per ciascuna stringa mnemonica, per un totale di 10 possibili prove. Lo span di memoria visuo-spaziale è rappresentato dalla lunghezza della stringa più lunga che il partecipante riesce a riprodurre. Il secondo test proposto (test#6) è un test di valutazione della memoria di lavoro verbale (Listening Span Test). I partecipanti sono invitati a giudicare la veridicità di alcuni enunciati, esprimendo un giudizio in termini di “vero” o “falso”. Successivamente, viene loro richiesto di ricordare l’ultima parola di ciascun enunciato proposto. Il trial inizia con due frasi, arrivando sino a un massimo di cinque. Il test fornisce una misura di accuratezza, data dalla possibilità di elaborare correttamente informazioni fornite, e una misura della capacità di memoria, rappresentata dal numero massimo di items lessicali recuperati. Evidenze in letteratura [36] sottolineano la centralità della memoria nei processi di apprendimento. Tuttavia, i tradizionali test di span di cifre (o di parole) sembrano offrire un ritratto parziale dei soggetti in esame, in quanto falliscono nel predire le prestazioni relative al ragionamento logico, alla comprensione del testo scritto, nonché nel cogliere le differenze individuali tra lo span di memoria e le prestazioni cognitive. Il Listening Span Test, al contrario, risulta particolarmente efficace nell’esaminare la componente “attiva” della memoria, la quale prevede, simultaneamente, il mantenimento e l’elaborazione di uno stimolo. Tali meccanismi rappresentano il denominatore comune

di qualsiasi apprendimento.

L’analisi degli eventuali errori compiuti dai partecipanti consente di trarre preziose informazioni in merito ai processi cognitivi messi in atto durante l’elaborazione delle informazioni e alle difficoltà soggettive dei soggetti. Le fragilità possono riguardare, ad esempio, il mantenimento dell’esatta sequenza degli stimoli (nel caso di errori di inversione) o l’inibizione di competitori semantici distraenti.

Lo studio sperimentale in aule reali

Nelle classi, i bambini sono esposti a molti stimoli, come rumore, radiazione solare, condizioni termiche e contaminanti atmosferici, che possono deteriorare alcune funzioni del processo cognitivo. In particolare, le condizioni esterne possono avere un impatto sulla memoria di lavoro, l’attenzione visiva selettiva e sostenuta e la ricezione del parlato. L’attività sperimentale in aula permette il confronto tra i risultati dei test cognitivi raccolti in laboratorio, dove solo la componente acustica viene alterata, con quelli raccolti in un ambiente reale dove la presenza di più stimoli può alterare la risposta soggettiva.

Nelle scuole saranno quindi monitorate le condizioni ambientali interne (temperatura e umidità dell’aria, concentrazione di anidride carbonica, illuminamento, livello di pressione sonora), saranno misurati i parametri acustici passivi e il tempo di riverberazione delle aule e saranno somministrati ai bambini i questionari di preferenza (#3), i test di intelligibilità del parlato (#4) e i test di performance (#5 e #6) come descritti in Tabella 1. Durante le lezioni regolari verranno introdotti alcuni segnali di rumore, con le stesse modalità sperimentate in laboratorio.

I dati raccolti in ambienti reali permetteranno quindi di confermare i risultati ottenuti con gli esperimenti di laboratorio rendendoli più solidi e affidabili o, viceversa, di comprendere quanto grandezze ambientali non controllate possano influenzare

i risultati di laboratorio. La variabilità della popolazione scolastica in termini di capacità uditive e di lingua madre porterà a un confronto tra le risposte acustiche raccolte da diversi cluster di soggetti.

Risultati preliminari e limiti da superare

Lo studio dell’influenza del rumore sugli aspetti cognitivi presenta alcune difficoltà di tipo metodologico legate alla scelta delle grandezze più adatte a caratterizzare il rumore associato alle diverse attività scolastiche e al tipo di segnale da usare negli esperimenti. Gli ambienti scolastici, soprattutto le classi delle scuole primarie, sono ambienti rumorosi anche quando vi si svolgano attività cosiddette in quiete. I livelli sonori misurati in precedenti campagne di misura durante le atti -

Attività di gruppo

Scuola A - numero di studenti medio per classe n=22.5
Scuola B – numero di studenti medio per classe n=17.7

vità didattiche all’interno di scuole in provincia di Padova hanno rilevato valori di livello sonoro statistico di LA95,min di 43,6 dB(A) in occasione di attività di didattica interattiva e di 81,0 dB(A) durante attività di gruppo [37]. Generalmente l’indicatore utilizzato per la caratterizzazione della rumorosità dell’ambiente è il livello sonoro equivalente calcolato per il periodo di esposizione oppure il suo valore statistico LA95, che rappresenta il valore del livello di pressione sonora che viene superato dal 95% dei valori rilevati nel periodo di misura. Tuttavia, alcuni studi hanno dimostrato l’influenza sul benessere e la salute della variazione del livello sonoro nel tempo, la sua frequenza e la sua entità rispetto al rumore di fondo [38]. Una metrica che potrebbe rivelarsi utile in ambito scolastico è il cosiddetto indice di intermittenza IR, che esprime

la percentuale di energia sonora, sulla totale energia ricevuta da un ambiente, che è determinata dagli eventi rumorosi che superano una determinata soglia durante un certo periodo di tempo [38].

Per testare la variabilità dell’indice di intermittenza nelle scuole sono stati condotti dei monitoraggi continui con cui si è misurato il livello di pressione sonora durante lo svolgimento di diverse attività scolastiche quali la lezione orale dell’insegnante, lo svolgimento di compiti individuali da parte degli alunni, lo svolgimento di attività didattiche interattive tra insegnante e bambini, le attività formative ludiche in gruppo.

I risultati del monitoraggio mostrano come il valore dell’indice di intermittenza vari con il tipo di attività svolta e dal numero di studenti in aula (Figure 2 e 3). Le misure in aule con un numero di

Scuola A - numero di studenti medio per classe n=22.5

studenti minore ha evidenziato un livello LA95 più basso e un’intermittenza del rumore più elevata. Questo è dovuto al non mascheramento degli eventi che si possono verificare. Considerazioni analoghe spiegano l’intermittenza rilevata a seconda della tipologia di didattica svolta in classe. Infatti, nel caso di attività di gruppo, dove c’è la presenza di un maggiore LA95, è individuabile una minore intermittenza. Al contrario l’ambiente acustico durante attività individuali che garantiscono maggiore quiete, è caratterizzato da minore rumore di fondo, ma maggiore intermittenza che quindi potrebbe deteriorare il beneficio di bassi livelli continui.

Riguardo al tipo di segnale di rumore da usarsi negli esperimenti, i monitoraggi di lungo termine possono fornire indicazioni rispetto alla dinamica del segnale che più interferisce con le funzioni cognitive nei bambini. Dai primi risultati, coerenti con la letteratura, si evidenzia che il rumore se non intellegibile non svolge nei bambini normo-udenti un’azione deteriorante nei confronti delle funzioni cognitive legate alla memoria verbale, all’attenzione visiva e all’inibizione cognitiva. Tuttavia, questo aspetto sarà dettagliatamente esplorato nel corso del progetto.

Scuola B – numero di

FIGURA 3 Confronto tra livello

Conclusioni

Il progetto EQUALITY presenta degli elementi di originalità nei suoi obiettivi orientati al progresso delle conoscenze sulla relazione tra la qualità dell’ambiente interno e i suoi effetti sull’apprendimento dei bambini, includendo gruppi vulnerabili di studenti. In particolare, il progetto si propone di individuare delle soglie uditive e dei livelli di rumorosità accettabili per diversi gruppi di bambini (normo-udenti e non normo-udenti, madrelingua italiani e

BIBLIOGRAFIA

non). A partire da queste, sarà possibile quindi definire le condizioni acustiche interne preferite per gli stessi gruppi di bambini e quantificare l’effetto del rumore su alcune funzioni cognitive di breve termine, come la memoria e l’attenzione.

Tali risultati costituiranno la base per la definizione di nuovi requisiti

[1] De Giuli, V., Da Pos, O., De Carli, M. (2012) Indoor environmental quality and pupil perception in Italian primary schools. Build and Environ 56 335-345.

di progettazione per edifici scolastici e aule in grado di ridurre lo sforzo di apprendimento dei bambini non normo-udenti.n

* Lisa Battagliarin, Irene Pavanello, Ilaria Pittana, Antonino Di Bella, Piercarlo Romagnoni, Pietro Scimemi, Francesca Cappelletti

[2] Klatte, M., Lachmann, T., Meis, M. (2010). Effects of noise and reverberation on speech perception and listening comprehension of children and adults in a classroom-like setting. Noise Heal. 12(49).

[3] Minelli, G., Puglisi, G. E., Astolfi, A. (2022) Acoustical parameters for learning in classroom: A review. Build and Environ 208 108582.

[4] UNI – Ente Italiano di normazione. 2007. UNI EN 10840. Luce e illuminazione - Locali scolastici - Criteri generali per l’illuminazione artificiale e naturale.

[5] European Committee of Standardization, 2019. EN 16798-1, Energy performance of buildings- Ventilation for buildings. Part 1: Indoor environmental input parameters for design and assessment of energy performance of buildings addressing indoor air quality, thermal environment, lighting and acoustics - Module M1-6.

[6] European Committee of Standardization, 2019. CEN/TR 16798-2:2019 Energy performance of buildings - Ventilation for buildings - Part 2: Interpretation of the requirements in EN 16798-1 - Indoor environmental input parameters for design and assessment of energy performance of buildings addressing indoor air quality, thermal environment, lighting and acoustics (Module M1-6).

[7] UNI – Ente Italiano di normazione. 2020. UNI 11532-2. Caratteristiche acustiche interne di ambienti confinati - Metodi di progettazione e tecniche di valutazione - Parte 2: Settore scolastico.

[8] UNI – Ente Italiano di normazione. 1995. UNI 10339. Impianti aeraulici al fini di benessere. Generalità, classificazione e requisiti. Regole per la richiesta d’offerta, l’offerta, l’ordine e la fornitura.

[9] Astolfi, A., Pellerey, F. (2008) Subjective and objective assessment of acoustical and overall environmental quality in secondary school classrooms, J. Acoust. Soc. Am. 123 (1) 163–173.

[10] Bowers, J., Burkett, C. (1988) Physical environment influences related to student achievement, health, attendance, and behavior. Counc. Educ. Facil. Plan. J. 26, 33–34.

[11] Massonnié, J., Frasseto, P., Mareschal, D., Kirkham, N.Z. (2020) Learning in Noisy Classrooms: Children’s Reports of Annoyance and Distraction from Noise are Associated with Individual Differences in Mind-Wandering and Switching skills. Environment and Behavior 54(I) 58-88

[12] Vander Ghinst, M., Bourguignon, M., Niesen, M., Wens, V., Hassid, S., Choufani, G., Jousmäki, V., Hari, R., Goldman, S., & De Tiège, X. (2019) Cortical Tracking of Speech-in-Noise Develops from Childhood to Adulthood. The Journal of Neuroscience 39(15), 2938–2950.

[13] Prodi, N., Visentin, C., Peretti, A., Griguolo, J., Bartolucci, G.B., (2019) Investigating listening effort in classrooms for 5-to 7-year-old children. Language, Speech, and Hearing Services in Schools 50(2), 196-210.

[14] Rönnberg, J., Lunner, T., Zekveld, A., Sörqvist, P., Danielsson, H., Lyxell, B., et al. (2013) The Ease of Language Understanding (ELU) model: theoretical, empirical, and clinical advances. Front Syst Neurosci. 7(31) 1-17.

[15] Clark, C., Paunovic, K. (2018) Who environmental noise guidelines for the European region: A systematic review on environmental noise and quality of life, wellbeing and mental health. Int J Environ Res Public Health. 15(11).

[16] Pichora-Fuller, M.K., Kramer, S.E., Eckert, M.A., Edwards, B., Hornsby, B.W.Y., Humes, L.E., et al. (2016) Hearing impairment and cognitive energy: The framework for understanding effortful listening (FUEL). Ear Hear. 37(1) 5S-27S.

[17] Connolly, P., Taylor, B., Francis, B., Archer, L., Hodgen, J., Mazenod, A., et al. (2019) The misallocation of students to academic sets in maths: A study of secondary schools in England. Br Educ Res J. 45(4).

[18] Puglisi, G.E., Prato, A., Sacco, T., Astolfi, A. (2018) Influence of classroom acoustics on the reading speed: A case study on Italian second-graders. J Acoust Soc Am. 144(2).

[19] Dockreill, J.E., Shield, B.M. (2006) Acoustical barriers in classrooms: the impact of noise on performance in the classroom. Br Educ Res J. 32(3).

[20] Caviola, S., Visentin, C., Borella, E., Mammarella, I., Prodi, N. (2021) Out of the noise: Effects of sound environment on maths performance in middle-school students. J Environ Psychol. 73(3):101552.

[21] Olusanya, B. O., Davis, A. C., & Hoffman, H. J. (2019) Hearing loss grades and the international classification of functioning, disability and health. Bulletin of the World Health Organization, 97(10), 725–728.

[22] Pienkowski, M. (2017) On the Etiology of Listening Difficulties in Noise Despite Clinically Normal Audiograms. Ear and hearing, 38(2), 135–148.

[23] Le Prell, C. G., Hammill, T. L., & Murphy, W. J. (2019) Noise-induced hearing loss and its prevention: Integration of data from animal models and human clinical trials. The Journal of the Acoustical Society of America, 146(5), 4051.

[24] Motlagh Zadeh, L., Silbert, N. H., Sternasty, K., Swanepoel, D. W., Hunter, L. L., & Moore, D. R. (2019) Extended high-frequency hearing enhances speech perception in noise. Proceedings of the National Academy of Sciences, 116(47), 23753–23759.

[25] Elbeltagy, R. (2020). Prevalence of mild hearing loss in schoolchildren and its association with their school performance. International archives of otorhinolaryngology, 24, 93-98.

[26] Erickson, L. C., & Newman, R. S. (2017). Influences of background noise on infants and children. Current directions in psychological science, 26(5), 451–457.

[27] Walter, S. D., Eliasziw, M., & Donner, A. (1998). Sample size and optimal designs for reliability studies. Statistics in Medicine, 17(1), 101–110.

[28] Nagao, K., Bullard, A. S., Pasko, L. E., Pereira, O., Walter, C., Hammond, M., … & Morlet, T. (2019). Tablet-Based Hearing Test Among Child Clinical Populations: Performance and Preference. Telemedicine and e-Health, 25(10), 973-978.

[29] Moore, D. R., Zobay, O., & Ferguson, M. A. (2020). Minimal and mild hearing loss in children: Association with auditory perception, cognition, and communication problems. Ear and hearing, 41(4), 720-732.

[30] Motlagh Zadeh, L., Silbert, N. H., Sternasty, K., Swanepoel, D. W., Hunter, L. L., & Moore, D. R. (2019). Extended high-frequency hearing enhances speech perception in noise. Proceedings of the National Academy of Sciences, 116(47), 23753-23759.

[31] British Society of Audiology. (2022). Recommended Procedure Determination of uncomfortable loudness levels [Online]. Available from: https://www.thebsa.org.uk/wp-content/uploads/2023/10/OD104-36-Recommeded-Procedure-Unconfortable-Loudness-2.pdf. [Accessed date: May 28th, 2024]

[32] Potgieter, I., Fackrell, K., Kennedy, V., Crunkhorn, R., & Hoare, D. J. (2020). Hyperacusis in children: a scoping review. BMC pediatrics, 20, 1-13.

[33] Arslan, E., Genovese, E., Orzan, E., & Turrini, M. (1997). Valutazione della percezione verbale nel bambino ipoacusico. Ecumenica editrice, Bari.

[34] Massonniè J., Roberts C.J. et al. (2019). Is Classroom Noise Always Bad for Children? The Contribution of Age and Selective Attention to Creative Performance in Noise, Frontiers in psychology, vol. 10, art. 381. doi: 10.3389/fpsyg.2019.00381

[35] Morales J., Calvo A., Bialystok E. (2013). Working Memory Development in Monolingual and Bilingual Children. J Exp Child Psychol. 2013 February; pp. 187–202. doi:10.1016/j.jecp.2012.09.002.

[36] Daneman, M., & Carpenter, P. A. (1980). Individual differences in working memory and reading. Journal of verbal learning and verbal behavior, 19(4), 450-466.

[37] Battagliarin L., Cappelletti F., Romagnoni P., Di Bella A. (2024) Noise monitoring in primary schools: comparisons between different time-dependent parameters for acoustic performance evaluation. Proceedings of Inter-Noise 2024, 25-29 August, Nantes.

[38] Jean Marc Wunderli, Reto Pieren, Manuel Habermacher, Danielle Vienneau, Christian Cajochen, Nicole Probst-Hensch, Martin Röösli and Mark Brink. 2016. Intermittency ratio: A metric reflecting short-term temporal variations of transportation noise exposure. Journal of Exposure Science and Environmental Epidemiology (2016), 575 – 585

SISTEMI E IMPIANTI

Impianti di laminazione |

Trattamento acque meteoriche |

Trattamento reflui civili e industriali |

Trattamento acque da autolavaggi |

Recupero e riutilizzo acqua piovana e acque grigie |

Luce di qualità per la scuola

Gli e etti della luce non terminano con l’esperienza della visione. I risvolti non visivi sono molteplici e hanno conseguenze importanti, riscontrabili nel medio/lungo termine. L’articolo presenta le regole base di progettazione illuminotecnica e circadiana per un ambiente scolastico sereno, in cui sia messo al centro il benessere degli studenti e del personale docente

Oricoli, G. Romano*

Introduzione Il Progetto della luce negli ambienti scolastici prende solitamente come spunto iniziale l’esigenza di riduzione dei consumi elettrici. L’efficientamento energetico è infatti

la prima motivazione che spinge il gestore di un complesso scolastico a richiedere l’intervento di tecnici specializzati per definire le migliori strategie

per limitare l’impatto di spesa del servizio luce controllando congiuntamente i costi di gestione nel medio e lungo termine.

Il termine di confronto più evidente è la bolletta, che rappresenta impietosamente l’energia spesa per illuminare le aule, i corridoi, gli ambienti amministrativi e tecnici, le biblioteche, le palestre per un periodo che si sviluppa in maniera intensa lungo tutto l’arco dell’anno scolastico, con un alleggerimento durante il periodo estivo. Se questo è il punto di partenza, perché non lavorare nell’ottica della valorizzazione dell’energia messa in campo, guardando alla “qualità” oltre che alla “quantità”? Per fare ciò è necessario che tutti gli attori del processo, amministratori, progettisti, imprese esecutrici e perché no, fruitori, siano consapevoli del valore che si cela in un progetto di buona luce e quale leva virtuosa possa costituire non solo per l’efficienza impiantistica, ma anche e soprattutto per il benessere degli utenti.

Non è da sottovalutare il fatto che negli ambienti dedicati all’istruzione, a tutti i livelli, dalla scuola dell’infanzia alle università, l’efficacia dell’apprendimento è infatti strettamente legata alla percezione del benessere e del comfort ambientale declinato tipicamente in termico, acustico e di illuminazione.

In merito a quest’ultima, innume -

revoli studi scientifici in ambito illuminotecnico e medico hanno sinergicamente confermato che la buona luce è determinante non solo per la percezione dell’ambiente e di ciò che ci circonda, ma anche per il benessere e la salute delle persone in senso più generale.

Il ruolo della buona luce è infatti fondamentale perché stimolando la concentrazione e l’attenzione, contribuisce ad aumentare le prestazioni e a ridurre gli errori, consentendo di tradurre efficacemente in informazione quindi in conoscenza gli stimoli visivi esterni.

Si intuisce che il concetto di illuminazione comporta dei risvolti di tipo non visivo che rappresentano delle peculiarità necessarie specie negli ambienti scolastici dove studenti, insegnanti e operatori passano quotidianamente molta parte del loro tempo, sia esso diurno o serale.

Ecco perché è importante fare sintesi dei principi base di illuminotecnica per poter offrire un progetto di qualità o, dall’altro lato, per essere consapevoli che quanto è stato realizzato risponde al meglio possibile ai requisiti prestazionali e di benessere.

Fenomeno della visione

Generalmente diamo per scontato il fatto di “vedere bene” quanto ci circonda ossia ci accorgiamo di affaticamento e/o discomfort nel momento in cui abbagliamenti molesti, livelli di illuminamento troppo limitati o esageratamente elevati, alternanze marcate di luci e ombre, ci costringono a sforzare i nostri occhi per mettere a fuoco. Il processo della visione è tanto complesso quanto soggettivo. L’occhio umano percepisce lo stimolo luminoso per lunghezze d’onda della radiazione elettromagnetica comprese fra 380 nm e 780 nm con sensibilità diverse a seconda della lunghezza d’onda. Raggi ultravioletti e infrarossi sono ai confini estremi, al di fuori della banda del visibile.

Con visione fotopica si intende la modalità di percezione e di risposta delle cellule retiniche agli stimoli luminosi con livelli di illuminamento tipici del contesto diurno. La curva di sensibilità fotopica V(λ) (Figura 1) rappresenta di conseguenza la sensibilità spettrale della retina umana in risposta agli stimoli luminosi nella fascia del visibile, determinata su un campione di soggetti umani.

Sulla base della visione fotopica sono costruite le valutazioni e le metriche illuminotecniche che portano a definire quantitativamente i livelli di illuminamento in lux che troviamo come riferimenti normativi da adottare nei progetti.

Fotorecettori retinici

La radiazione luminosa restituita per riflessione dagli oggetti che ci circondano attraversa la cornea, il cristallino e il corpo vitreo e giunge sulla retina ove stimola i fotorecettori che provvedono a trasmettere il segnale al cervello che lo decodifica e lo rielabora, trasformandolo alfine in immagine.

Sulla retina sono presenti principalmente tre tipologie di fotorecettori: i coni e i bastoncelli sono i più conosciuti perché strettamente legati al fenomeno tangibile e immediatamente percepibile della visione.

I coni, concentrati nella parte centrale della retina, sono in grado di percepire i colori in condizioni fotopiche cioè con livelli di illuminamento elevati. I bastoncelli, più numerosi dei coni e distribuiti sulla zona periferica della retina, essendo molto sensibili alla luce, lavorano in condizioni scotopiche, cioè con livelli di illuminamento molto bassi, tipicamente in scala di grigi e con ampia visione. Alla fine del ’900 sono state introdotte le prime

FIGURA 1 Curva di visibilità fotopica

evidenze degli studi su una terza tipologia di fotorecettori presenti sulla retina (ipRGCs, Intrinsically Photosensitive Retinal Ganglion Cells), fotosensibili alla radiazione elettromagnetica come i coni e i bastoncelli, ma, a differenza di questi, con effetti “non visivi” (non-image forming responses) [1] e “non immediati”, strettamente legati alla sincronizzazione dei ritmi circadiani e al ritmo sonno/ veglia perché direttamente connessi con la produzione giornaliera di melatonina e cortisolo (Figura 2).

In analogia a quanto accade per la visione fotopica, la risposta “non visiva” del nostro organismo agli stimoli della luce, dovuta appunto alla sensibilità dei recettori ipRGCs, è rappresentata dalla curva m(λ) detta di sensibilità melanopica. Sulla base della curva m(λ) sono state sviluppate le metriche per la valutazione oggettiva dello spettro luminoso sotto l’aspetto circadiano.

Luce che trasforma le immagini in informazioni

Riferimenti di partenza – la normativa

Regola d’oro: il progetto non parte se non sono chiari i riferimenti normativi da rispettare. Le norme specifiche per l’illuminazione in ambito scolastico sono la UNI EN 12464-1 (in particolare prospetti 43 e 44) e la UNI 10840 [2], le quali individuano le prestazioni illuminotecniche di un impianto in relazione alla tipologia di utenti e di funzioni e ai diversi compiti visivi. In esse si trovano declinati i principali concetti illuminotecnici quali illuminamento, uniformità, resa cromatica, abbagliamento, illuminamento cilindrico.

In generale, il livello di illuminamento dei compiti visivi cambia in relazione sia al livello di impegno visivo degli allievi sia ai diversi scenari che si possono oramai creare in aula: lezione tradizionale, utilizzo della LIM, proiezioni, lavoro individuale su videoterminali, lavori di gruppo, ecc… La norma pone l’attenzione, oltre che al compito visivo, cioè all’area specifica in cui viene svolta l’attività, anche all’ambiente in cui esso è inserito, dando dei riferimenti di illuminamento e uniformità anche per pareti e soffitti (Figura 3). L’ambiente luminoso nel suo insieme influenza, infatti, la prestazione visiva quindi il benessere delle persone. La distribuzione bilanciata delle luminanze all’interno del campo visivo è infatti alla base della nitidezza della visione (acuità visiva), della sensibilità al contrasto e dell’efficienza delle funzioni oculari.

In contesto scolastico il riconoscimento e la comu -

FIGURA 3 Livelli di illuminamento consigliati
FIGURA 4 Illuminamento cilindrico
FIGURA 2 Effetti visivi e non visivi della luce (Philips)

nicazione visiva sono imprescindibili. Per questo, per favorire l’interazione, la comunicabilità e la trasmissione efficace delle informazioni e per il riconoscimento di oggetti e persone in movimento all’interno dello spazio, la norma introduce il concetto di illuminamento cilindrico Em,z. L’illuminamento infatti deve essere reso anche in senso “volumetrico” in ambiente e su diversi piani, tipicamente a 1,6 m da terra se riferito a persone in piedi e 1,2 m per persone sedute (Figura 4).

L’indice UGR (Undefined Glare Rating) identifica con un numero l’abbagliamento riferito a un determinato punto di osservazione. Tanto è complicata la formula per il calcolo dell’UGR tanto è immediato il riscontro nell’esperienza quotidiana. Si sperimenta il fenomeno dell’abbagliamento quando nel nostro campo visivo si presentano aree a luminanza elevata o a elevato contrasto di luminanza come superfici illuminate, sorgenti luminose, aperture finestrate oltre che riflessioni della luce su oggetti o superfici riflettenti (super-

gliamenti per riflessione hanno un peso e conseguenze molto importanti in termini di benessere ed efficacia della percezione delle immagini (Figura 5).

La scelta della temperatura di colore della luce (Figura 6) è spesso soggetta a gusto personale o legata all’aspetto cromatico di insieme dell’ambiente e degli arredi. Tuttavia, questa scelta legata alla distribuzione dello spettro luminoso delle sorgenti non è banale considerando, per completezza di informazione, gli effetti di tipo fisiologico che può innescare. Nel caso di fruizione prolungata degli spazi durante l’arco della giornata l’adozione di sistemi di illuminazione artificiale basati sulla variazione, oltre che della quantità di luce, anche della temperatura di colore delle sorgenti porterebbe ad assecondare la corretta sincronizzazione dell’orologio biologico.

Luce per il benessere psicofisico e l’attenzione

Fino a questo punto abbiamo descritto la luce sotto l’aspetto ottico e visivo: il raggio luminoso riflesso dagli oggetti colpisce coni e bastoncelli sul fondo della retina e il cervello provvede a elaborare lo stimolo da essi trasmesso in immagini e quindi in informazioni per l’apprendimento. Come già accennato c’è qualcos’altro, oltre fici vetrate o lucide, monitor ecc.).

La valutazione dell’abbagliamento in ambiente è estremamente importante, poiché indici troppo elevati provocano limitazioni della prestazione visiva specie in persone con difetti al campo visivo oltre che difficoltà di adattamento e ridotta visione di contrasto.

Per garantire il rispetto dei limiti di abbagliamento non basta fermarsi alla dichiarazione della scheda tecnica dell’apparecchio di illuminazione che si intende utilizzare. Certo, è un buon punto di partenza. Occorre altresì valutare con il calcolo svariate variabili ambientali come le caratteristiche spaziali e colorimetriche dell’ambiente, la disposizione e l’orientamento degli apparecchi, il punto di vista dell’osservatore.

Nel caso degli ambienti scolastici attuali in cui vi è la necessità di utilizzare ausili digitali (tablet, monitor, LIM, …) e in cui la direzione di osservazione prevalente non è solo quella verso il banco, ma spazia secondo molteplici direttici, la valutazione dell’UGR e degli abba -

La luce interviene sulla sincronizzazione del nostro orologio biologico e sulla regolazione della produzione di ormoni quali la melatonina e il cortisolo responsabili delle nostre attitudini alla veglia o al riposo. Si intuisce che la mala regolazione del ritmo circadiano porta all’alterazione del nostro orologio biologico, con discomfort e malessere che si traducono in minore produttività, discontinuità nell’attenzione, affaticamento, aumento degli errori, depressione.

FIGURA 5 Scuola 2.0
FIGURA 6 Temperatura di colore della luce

a ciò che vediamo. Abbiamo tutti presente come in natura il variare della luce influenzi il comportamento di animali e piante. L’uomo non è certo escluso, avendo adattato il proprio orologio biologico al susseguirsi giornaliero e ciclico, circadiano appunto, fra giorno e notte. Proprio per la complessa sinergia degli aspetti visivi e non visivi della luce, il CIE, Comitato Internazionale per l’Illuminazione, ha introdotto il concetto di “Integrative lighting” [3], vale a dire “luce integrata”, indicando nella luce il principale agente sincronizzatore del nostro orologio biologico.

Il progetto dell’illuminazione artificiale può influenzare profondamente questo meccanismo studiando la qualità e la quantità di luce più adatta in relazione all’ambiente e alla funzione ovvero al momento di utilizzo, specie nei casi in cui le attività si protraggono per lungo tempo in ambienti confinati.

Sensibilità fotopica e melanopica

Parlando degli effetti della luce sul nostro orologio biologico, capita spesso che si rimanga a un livello superficiale di trattazione ritenendo il tutto molto soggettivo. È necessario comprendere che, a valle degli studi di tipo medico, in ambito illuminotecnico sono state individuate delle metodologie di calcolo che permettono di valutare la bontà e l’efficacia di un impianto di illuminazione in relazione alla tipologia spettrale delle sorgenti luminose scelte.

Accanto alla curva di visibilità V(λ), che pesa lo stimolo visivo fotopico in relazione alla componente spettrale della luce, entra in gioco la curva m(λ) che rappresenta la sensibilità dei fotorecettori responsabili degli effetti sui cicli circadiani (Figura 7). Si nota come la sensibilità spettrale dei recettori visivi fotopici (coni e bastoncelli), pur se simile, è sfalsata rispetto a quella dei recettori non visivi (cellule gangliari). Il picco di sensibilità spettrale fotopica è intorno ai 555 nm, mentre quella non visiva è intorno ai 490 nm. Questo comporta che, a parità di illuminamento fotopico, cioè a parità di lux sul compito visivo, differenti tipologie di sorgenti luminose ossia sorgenti con spettri di emissione diversi possono avere diversi effetti circadiani, specie se la differenza si manifesta nella fascia delle lunghezze d’onda più piccole.

In ambito fotopico, ovvero quando si parla di “effetti visivi” della luce, sono disponibili dati numerici sia in fase di progetto grazie al calcolo illuminotecnico che in campo mediante le misure effettuabili con lo strumento chiamato luxmetro.

Effetti non visivi della luce in ambito scolastico

• Mantenimento dei livelli di concentrazione e attenzione durante le attività scolastiche

• Diminuzione degli errori

• Riduzione della sonnolenza e influenza sull’umore con riduzione dei comportamenti aggressivi

• Miglioramento della qualità del sonno notturno con aumento del rendimento scolastico

Idee per una illuminazione ottimale

• Scelta attenta dello spettro luminoso delle sorgenti con elevato indice melanopico

• Impostazione di diversi scenari di luce in relazione alle diverse attività:

• illuminamento elevato con temperature fredde per attività che richiedono concentrazione;

• illuminamento regolabile con tonalità più calde per attività più semplici o di sostegno

• Regolazione della luce artificiale in base al contributo di luce naturale

D65 è definito “illuminante solare standard” ovvero “luce diurna media del mezzogiorno del cielo del nord” con temperatura di colore di 6500 K.

FIGURA 7 Curve di sensibilità fotopica e melanopica

In ambito “non visibile”, pur non essendo al momento possibile misurare con strumenti il contributo melanopico delle sorgenti luminose, è possibile calcolare l’efficacia in termini melanopici delle sorgenti luminose adottate.

Il CIE propone un modello di calcolo sviluppato dal Lucas Group dell’Università di Manchester [4] che mette a confronto e pesa lo spettro emissivo della sorgente artificiale da valutare con lo spettro standard della luce naturale D65, per arrivare a calcolare il rapporto melanopico di efficienza relativo alla luce diurna mDER (melanopic Daylight Efficacy Ratio).

Tale indice rappresenta di fatto l’efficacia in termini di risposta melanopica di una sorgente artificiale messa a confronto con la luce naturale (Figura 8).

Al giorno d’oggi la maggior parte della popolazione, utenti delle scuole compresi, passa purtroppo molto tempo in ambienti confinati, con un rapporto osmotico e visivo con l’ambiente esterno molto limitato se non assente. Peraltro, per limitare l’impatto termico in ambiente, la luce naturale viene schermata e attivata la luce artificiale, essendo questa la condizione

più favorevole per il bilancio energetico generale dell’edificio. La luce artificiale diventa pertanto imprescindibile per lo svolgimento delle attività e per avere anche degli effetti sui cicli circadiani dovrebbe quindi essere il più naturale possibile ovvero dovrebbe idealmente seguire in quantità e qualità spettrale l’andamento della luce solare.

Protocollo Well e lux melanopici

Se il protocollo Leed si prefigge il raggiungimento della sostenibilità ambientale di un edificio, il protocollo Well (Well Building Standard) [5], lanciato nel 2014, pone come obiettivo il benessere degli utenti che ci abitano indicando delle strategie per i vari contesti e secondo varie categorie (aria, acqua, luce, comfort termico, ecc…).

Per quanto riguarda l’illuminazione, il protocollo Well identifica 13 requisiti. In particolare, il requisito n.54 “Circadian lighting design”, per preservare gli effetti biologici della luce sugli esseri umani, si pone come scopo la definizione di una soglia minima di componente circadiana identificata con una grandezza

denominata EML ovvero lux melanopici equivalenti.

La metrica proposta deriva dalla ponderazione della radiazione elettromagnetica visibile in base alla sensibilità delle cellule gangliari ipRGC piuttosto che ai coni, come avviene per la teoria fotopica tradizionale.

Per la verifica delle prestazioni, gli EML devono essere misurati/calcolati sul piano verticale all’altezza degli occhi dell’utente. Di fatto, per ottenere il valore dei lux melanopici equivalenti, il valore dei lux fotopici misurati/calcolati sul piano verticale all’altezza degli occhi dell’utente deve essere moltiplicato per l’indice denominato mDER melanopic Daylight Efficacy Ratio.

Oramai, molti produttori di apparecchi di illuminazione danno evidenza dell’indice mDER nella scheda tecnica degli apparecchi per indicare la bontà della sorgente led ovvero quanto questa si avvicina allo spettro naturale preso come standard di confronto.

Definizione dell’indice mDER

Lo spettro luminoso emesso dalla sorgente artificiale viene pesato sulla curva di sensibilità melanopica m(λ); l’area sottesa dalla curva risultante rappresenta il contributo melanopico della radiazione artificiale [6].

Analogamente, l’area della curva sottesa dallo spettro pesato sulla curva di sensibilità fotopica V(λ) rappresenta il contributo fotopico come siamo soliti definire e individuare mediante la metrica illuminotecnica tradizionale. Mettendo a confronto la sorgente artificiale a led con la sorgente standard solare D65, quest’ultima modulata al fine di avere la medesima componente circadiana rispetto alla sorgente artificiale, si può notare come la componente fotopica della sorgente artificiale sia più elevata rispetto a quella della sorgente naturale definita come mEDI (melanopic Equivalent Daylight Illuminance).

Il rapporto fra componente fotopica naturale mEDI rispetto alla componente fotopica artificiale rappresenta appunto l’indice mDER. Tanto più questo indice è elevato, tanto più simile alla luce naturale è la sorgente artificiale presa in considerazione.

A titolo di esempio, nelle immagini seguenti (Figure 9-10-11-12) sono messe a confronto alcune sorgenti luminose, diverse per tipologia e per temperatura di colore. Per ciascuna di esse è stato valutato l’indice mDER. Si nota la differenza in termini di efficacia circadiana a seconda della tipologia di sorgente e di temperatura di colore.

FIGURA 8 Curva di irradianza spettrale della luce solare e curve di sensibilità V(λ) e m(λ)

Calcolo dei lux melanopici equivalenti

Una volta noto l’indice mDER, derivato dal data sheet dell’apparecchio di illuminazione o da calcolo in base allo spettro di emissione della sorgente artificiale, è possibile quindi calcolare il valore dei lux melanopici equivalenti per

confrontarli con i valori limite indicati, ad esempio, dal protocollo Well (Figura 13).

Lo scopo è quello di valutare la bontà della soluzione illuminotecnica in termini di effetti circadiani.

Conclusioni

In ambito scolastico ed educativo, la luce ha un ruolo fondamentale per vedere in maniera corretta e tradurre in modo efficace le immagini in informazione e quindi in apprendimento. Esistono anche effetti non visivi della luce che influiscono sul nostro orologio biologico.

Curva dello spettro luminoso emesso dalla sorgente: curva di irradianza spettrale prodotta dalla sorgente espressa in W/(m2 nm)

Area sottesa dallo spettro luminoso emesso dalla sorgente: irradianza della sorgente espressa in W/m2

Curva V(λ): curva di sensibilità fotopica che assume valore massimo pari a 1 in corrispondenza della lunghezza d’onda di 555 nm

Curva m(λ): curva di sensibilità melanopica che assume valore 1 in corrispondenza della lunghezza d’onda di 490 nm

Area sottesa dalla curva prodotto dello spettro luminoso della sorgente pesata su V(λ): irradianza pesata sulla curva di visibilità dell’occhio umano e proporzionale all’illuminamento (fotopico)

Area sottesa dalla curva prodotto dello spettro luminoso della sorgente pesata su m(λ): irradianza pesata sulla curva di visibilità dell’occhio umano e proporzionale all’illuminamento con effetti circadiani (melanopico)

Lo studio dell’impianto di illuminazione, a partire dalla scelta dei corpi illuminanti e dalla valutazione della qualità delle sorgenti luminose ha effetti decisivi in termini di benessere e comfort sul nostro organismo sia nel breve che nel lungo termine. In particolare, gli aspetti “non visivi” della luce hanno conseguenze non banali sul nostro organismo

FIGURA 9 Curva di irradianza spettrale LED 2700 K e riscontro del contributo melanopico (mDER = 0,445)
FIGURA 10 Curva di irradianza spettrale LED 4000 K e riscontro del contributo melanopico (mDER = 0,76)

e di conseguenza sul nostro stare bene. Pur sembrando un enunciato in forte antitesi, la luce artificiale deve essere il più naturale possibile. Il corretto dimensionamento e la qualità dell’impianto di illuminazione e della sua gestione diventano pertanto cruciali per creare le migliori condizioni ambientali per lo svolgimento delle attività scolastiche e per il benessere degli studenti e degli operatori, sia nel breve sia nel lungo termine.n

* Maria Teresa Oricoli, Giuseppe Romano, Manens Spa

BIBLIOGRAFIA E WEBGRAFIA

[1] UNI EN 12464-1: 2021 appendice B.5 L’influenza della distribuzione della potenza spettrale sugli effetti anidolici che non formano immagine

[2] UNI EN 12464-1 e UNI 10840

[3] CIE Integrative Lighting — Non-visual effects

[4] https://lucasgroup.lab.manchester.ac.uk/measuringmelanopicilluminance/ [5] https://standard.wellcertified.com/light/circadian-lighting-design

[6] prof. Laura Bellia “Prescrizioni per un’illuminazione che favorisca la sincronizzazione dei ritmi biologici”

FIGURA 11 Curva di irradianza spettrale FL 2950 K e riscontro del contributo melanopico (mDER = 0,429)
FIGURA 12 Curva di irradianza spettrale LED 4000 K e riscontro del contributo melanopico (mDER = 0,588)
FIGURA 13 Protocollo Well e riferimento ai lux melanopici richiesti negli ambienti scolastici

UniZEB,

il Living Lab sugli Zero Energy Buildings dell’Università degli Studi di Padova

L’articolo presenta l’esperienza di UniZEB, il Living Lab multidisciplinare permanente dell’Università di Padova su edi ci a consumo

zero o a energia positiva, in cui ricerca, didattica e trasferimento tecnologico si fondono in un ecosistema che coinvolge scuole, enti e aziende del territorio

L. Carnieletto, M. Mitrovic, B. Riccardi, U.Turrini, L. Petriccione, F.Bignucolo, M. De Carli*

In origine la locuzione “living lab” era associata a un’idea, un ambiente, una metodologia che favoriscono approcci partecipativi per la creazione condivisa di conoscenza mirata all’innovazione e alla trasformazione sociale. Oggi “living lab” rappresenta un insieme di azioni riguardanti la ricerca applicata in contesti del mondo

reale, studiando ad esempio l’interazione tra utenti e innovazione tecnologica. Vi possono essere diversi modelli di “living lab” per tipologia di applicazione. Le caratteristiche che possono accomunare i diversi “living lab” sono

(Compagnucci et al. 2021):

• ricerca transdisciplinare (che combina più discipline);

• progettazione iterativa e sperimentale con particolare attenzione all’apprendimento e all’adattamento;

• visione a lungo termine verso il cambiamento sociale e la scalabilità;

• applicazione nel mondo reale. Si possono attribuire alla categoria di “living lab” i cosiddetti “laboratori del mondo reale”, particolari laboratori presenti in Germania incentrati sulla sostenibilità (Schäpke et al. 2015), il Live-In Lab al KTH Royal Institute of Technology in Svezia (Molinari et al., 2023), l’Environmental Applied Physics Living Lab (EAPLL) all’Università di Perugia (Piselli et al, 2019), l’HSB Living Lab a Chalmers [1], al Massachusetts Institute of Technologies [2] (MIT), all’Università TU Delft [3], all’Amsterdam Institute for Advanced Metropolitan Solutions [4], il laboratorio Zero Emission Buildings del NTNU [5]. Nel 2007 è nata anche un’associazione internazionale, la European Network of Living Labs (ENoLL) [6], che promuove lo scambio di conoscenze e la collaborazione tra oltre 480 membri per diffondere il concetto di Living Lab. I “living lab” hanno spesso anche una connotazione formativa, educativa e

didattica non limitata solo a discipline scientifiche, ma relative ad aspetti caratterizzati da diverse sfaccettature culturali. In quest’ottica, pertanto, l’approccio non deve essere solo multidisciplinare (ossia conoscenze diverse in ambito ingegneristico definibili come “giustapposizione delle conoscenze”), ma deve includere caratteristiche interdisciplinari (definibili come “integrazione”, abbastanza tipico l’esempio dell’approccio nell’edilizia) e transdisciplinari (ossia di settori diversi da quelli scientifici, che coinvolgono economia, psicologia ecc.).

Una metodologia o un quadro di riferimento di living lab è un metodo per affrontare problemi complessi, coinvolgendo molti stakeholder. Maggiori dettagli sui living lab che coinvolgono aspetti formativi sono stati trattati da Backhaus et al. (2023).

L’origine del progetto UniZEB e le sue dimensioni attuali

UniZEB è un laboratorio multidisciplinare permanente dell’Università

1 Descrizione delle principali attività nell’iter realizzativo del laboratorio

Anno Attività organizzative

2015

2016

Fondazione del progetto con breve dichiarazione di intenti

Deposito del marchio, lancio del progetto, contatti con Scuola Edile e ANCE, verifica del sito idoneo alla costruzione.

2017 Attività di promozione e fund rising, definizione del sito e del progetto

2018 Accordo quadro tra Università, Scuola Edile, Comune, Spisal e ANCE

2019

2020-2021

Promozione e ricerca degli sponsor mancanti

Attività incentrate sulla conclusione del progetto esecutivo

2022 Promozione e ricerca degli sponsor mancanti

2023

Promozione e ricerca degli sponsor mancanti

Attività di progettazione e in cantiere

Call di idee da parte degli studenti e concept architettonico

Progetto preliminare

Progetto definitivo

Progetto esecutivo e richiesta permesso di costruire

Platea, strutture e impermeabilizzazioni

Isolamento termico e acustico

Serramenti, impianti e finiture interne

2024 Inaugurazione e attività di disseminazione Finiture

di Padova che ha come obiettivo la realizzazione di un Living Lab come esempio di edifici a zero consumo (Zero Energy Buildings) ed edifici a energia positiva (Plus Energy Houses). Si tratta di un progetto realizzato con approccio bottom-up, ossia nato dagli studenti che hanno coinvolto dapprima pochi docenti di Ingegneria e poi progressivamente altri docenti di altre Scuole.

Oggi conta 15 docenti di 6 Dipartimenti: tre di Ingegneria e uno di Geoscienze, uno di Psicologia e uno di Economia. Per poter procedere con la realizzazione del laboratorio, è stato necessario redigere un accordo tra le parti coinvolte, che stabilisce i ruoli di ciascun firmatario.

• L’Università è proprietaria intellettuale del progetto, coordina le attività scientifiche ed è proprietaria della catena degli strumenti di misura (sensori, componenti, data-logger, PLC, tablet, PC, software ecc.) installati nel laboratorio e utilizzati per il monitoraggio. L’Università si impegna a mettere a disposizione docenti, ricercatori, assegnisti, dottorandi, borsisti, personale tecnico amministrativo, tesisti e studenti al fine di sfruttare dal punto di vista didattico e scientifico il laboratorio.

• La Scuola Edile è proprietaria del lotto di terra che ospita le attività del laboratorio ed è proprietaria della struttura del laboratorio stesso, sia delle parti edili e impiantistiche temporanee sia delle parti edili e impiantistiche stabili. Inoltre la Scuola Edile è responsabile della costruzione del laboratorio e delle attività inerenti alle fasi di allestimento del laboratorio stesso, mettendo a disposizione i propri docenti, allievi e tecnici e qualsiasi altra figura avente un contratto di collaborazione scientifica o di docenza in essere con le attività inerenti al laboratorio. La Scuola Edile concede in comodato d’uso gratuito all’Università gli spazi e le parti edili e impiantistiche realizzate per le fasi di misura.

• ANCE ha il compito di promuovere l’iniziativa presso i propri associati, aiutare nel reperire le risorse, in particolar modo individuare aziende che hanno contribuito o che potrebbero contribuire al laboratorio. Inoltre, ANCE si impegna a collaborare alla formazione degli allievi della Scuola Edile e degli studenti dell’Università, oltre che a concorrere, assieme alla Scuola, nell’eventuale smaltimento delle componenti dell’edificio attraverso percorsi formativi ad hoc.

• L’ULSS 6, in particolare il Servizio di Prevenzione, Igiene e Sicurezza negli Ambienti di Lavoro (SPISAL), ha il compito importante di promuovere la salute e la sicurezza, come

TABELLA

da sua principale mission; questa particolare formazione può avvenire in campo, nella fase di cantiere del laboratorio, in un luogo di formazione per eccellenza che coinvolge molteplici figure professionali presenti e future.

• Il Comune ha il compito di supportare le pratiche burocratiche collegate alle modifiche che potrebbero essere necessarie per passare da un’attività sperimentale a un’altra. Inoltre, il Comune si impegna a consentire l’utilizzo di eventuali infrastrutture locali che siano nella propria disponibilità a fini dimostrativi e scientifici nell’ottica di sperimentare tecnologie che promuovano, facilitino e dimostrino le potenzialità scientifiche e tecnologiche di sistemi applicabili al laboratorio e integrabili nel concetto di Smart City su scala distrettuale.

Oltre a questi partner istituzionali sono state di fondamentale importanza le aziende del territorio (oltre 40) che hanno contribuito mediante sponsorizzazione alla fornitura dei migliori materiali, prodotti e tecnologie disponibili oggi sul mercato. I costi di costruzione e realizzazione dell’edificio pilota non forniti dagli sponsor sono stati coperti dalla Scuola Edile e dall’Università.

Infine, sono stati coinvolti gli Ordini degli Architetti e degli Ingegneri per promuovere corsi di formazione agli iscritti con la previsione dei crediti formativi.

Aspetti didattici

Gli studenti vengono reclutati ogni anno su base volontaria e il progetto fornisce un Open Badge, ma non fornisce crediti formativi. Le attività promosse all’interno del laboratorio hanno come interesse comune una continua contaminazione interdisciplinare e transdisciplinare sia delle hard skills che delle soft skills. L’obiettivo principale è proporre agli studenti un’opportunità per crescere in un’università più concreta, inclusiva ed esperienziale, che permetta una formazione pratica per future/i professioniste/i in tema di tecnologie verdi e sostenibili.

È stata posta una particolare attenzione allo sviluppo delle capacità di lavoro in gruppo, di rispetto delle scadenze e di capacità di problem solving. L’enfasi sulle soft skills ha incluso attività di team building, workshop su comunicazione efficace e gestione del tempo, promuovendo così un ambiente di lavoro collaborativo e interdisciplinare che ha ulteriormente consolidato il coinvolgimento.

In particolare la Scuola Edile fornisce annualmente una formazione di 16 ore a tutti i partecipanti con accreditamento per lavoratori sulla sicurezza a rischio alto in cantiere.

Ogni anno gli studenti coinvolti sono mediamente 30. Questi studenti devono organizzarsi per portare avanti le diverse attività: ingegneristiche, architettoniche, di gestione del progetto e degli studenti stessi, di comunicazione e rapporto con gli sponsor, ecc. Oggi, il progetto studentesco si è affinato a tal punto da avere una struttura organizzativa chiara in cui gli studenti sono riuniti in diversi gruppi di lavoro (ciascuno con un capogruppo), che si rapportano tra di loro e con il project manager, figura senior che in questi anni ha portato avanti anche il cantiere e la gestione dei lavori del laboratorio (Figura 1).

A fi ne anno, viene condiviso un questionario anonimo per valutare il coinvolgimento dei membri del team. Le domande sono incentrate sul grado di coinvolgimento e la qualità della

collaborazione, oltre a suggerimenti per migliorare il gruppo e il progetto. I risultati servono a implementare strategie di sviluppo mirate a rafforzare il team e ottimizzare il lavoro per l’anno successivo.

L’impegno dei membri nel team è sempre stato elevato, poiché ciascun membro, sentendosi coinvolto, ha percepito la possibilità di contribuire in maniera significativa al raggiungimento degli obiettivi prefissati. Questa dinamica ha favorito lo sviluppo di un forte senso di appartenenza e di identità specifica tra i partecipanti.

In media, la permanenza degli studenti nel team è stata di quasi due anni, con una prevalenza di studenti dei corsi di laurea magistrale. Il team ha mantenuto nel tempo una composizione mista, anche se l’ultimo anno

FIGURA 1 Organigramma del team UniZEB
FIGURA 2 Composizione del team negli anni

UniZEB - percorso di studi dei membri

accademico (23/24) vede un’inversione del trend con una maggiore partecipazione femminile (Figura 2).

Un aspetto particolarmente importante e critico è il passaggio di know-how tra un anno accademico e il successivo, in quanto molti studenti che partecipano al laboratorio finiscono il loro percorso universitario oppure vanno in Erasmus. Pertanto, vi è circa un 70% di ricambio tra studenti da un anno accademico all’altro. A tal fine occorre individuare da un lato i capigruppo dell’anno successivo, dall’altro effettuare un’attività di recruitment all’inizio dell’anno accademico per poter avere nuovi studenti all’interno del progetto.

Il progetto studentesco UniZEB in questi anni ha visto partecipare oltre 300 studenti di molte Scuole dell’Ateneo. Si riportano alcune statistiche con la provenienza degli studenti (Figura 3).

Descrizione del laboratorio

Il laboratorio, la cui costruzione si è appena conclusa e la cui inaugurazione è avvenuta il 30 maggio 2024, è un’abitazione di circa 80 m2, pensata per una famiglia tipo (genitori con un figlio). Nella pratica il laboratorio ospiterà 3 studenti che vivranno in modo permanente nel laboratorio per testare l’edificio in condizioni reali di esercizio. Dal punto di vista architettonico (Figura 4), la pianta della casa è compatta e suddivisa in tre aree principali: zona giorno (soggiorno e cucina), zona di servizio (locale tecnico, data-room, bagno), zona notte (camera singola, camera matrimoniale/doppia). Inoltre, le tre aree ruotano intorno a uno spazio centrale di convivialità esterna (il portico). Il sistema costruttivo è in Cross Laminated Timber (CLT) e il rivestimento esterno è in pannelli prefabbricati in poliuretano espanso rigido. Internamente l’edificio ha un rivestimento con lana di poliestere e doppia lastra di cartongesso. La facciata rivolta a sud presenta sia una finitura a cappotto che una facciata ventilata, entrambe monitorate per confrontare le due tecnologie di involucro. Sono presenti tre tipologie di tetto: un tetto standard (con ghiaia bianca), un tetto verde e un tetto con un pavimento flottante. La platea è ventilata naturalmente (anche queste soluzioni sono monitorate). Un’altra particolarità della casa è la presenza di un pavimento flottante che consenta di poter alloggiare futuri sistemi aggiuntivi di monitoraggio.

Dal punto di vista degli impianti, la casa è dotata di riscaldamento e raffrescamento radiante a soffitto. L’acqua

FIGURA 3 Ripartizione negli ambiti disciplinari
FIGURA 4 Pianta dell’edificio pilota: 1. Soggiorno; 2. Cucina; 3. Vano tecnico; 3. Data-room; 4. Bagno; 6. Camera singola; 7. Camera doppia; 8. Corridoio; 9. Portico
FIGURA 5 Edificio ultimato

calda sanitaria e il circuito idronico per il riscaldamento e raffrescamento sono alimentati da una pompa di calore geotermica, munita di una sonda verticale a doppia U di 100 m. È presente un impianto di ventilazione a doppio flusso con recupero di calore e deumidificazione con chiller a espansione diretta (a bordo dell’unità di ventilazione), il cui calore di condensazione è dissipato mediante l’acqua fredda prodotta dalla pompa di calore geotermica con un circuito parallelo a quello degli impianti radianti a soffitto.

L’edificio ha un impianto fotovoltaico da 6 kWp che produce più energia elettrica di quanto l’edificio stesso ne consumi. L’edificio è inoltre dotato di un impianto avanzato di gestione (BMS) con monitoraggio dei parametri indoor (temperatura, umidità e CO2) in ogni ambiente e mediante smart plug.

Vi è anche un trattamento specifi co delle acque piovane e delle acque reflue attraverso la fornitura di un sistema di stoccaggio e il sistema di fitodepurazione per il trattamento delle acque reflue.

La particolarità di questo laboratorio consiste nel confronto tra diverse soluzioni di involucro nelle stesse condizioni al contorno e operative per un confronto omogeneo dei dati. Inoltre, si intende effettuare il monitoraggio delle prestazioni dell’edificio pilota testando le soluzioni tecnologiche nelle reali condizioni di esercizio. A tal fine è stato installato un sistema di strumenti di misura che consente di caratterizzare il comportamento del sistema edificio-impianto in dettaglio, mediante una piattaforma informatica di acquisizione dati. Sarà possibile monitorare i parametri ambientali e le variabili che regolano il funzionamento degli impianti termotecnici, la trasmissione del calore attraverso l’involucro edilizio, i consumi elettrici suddivisi per utilizzo, la produzione fotovoltaica, l’energia prodotta dalla sonda geotermica e le caratteristiche delle acque piovane. Si specifica che le reali condizioni di esercizio sono ricreate grazie alla presenza di tre studenti che abiteranno effettivamente la casa-laboratorio, permettendo di studiare l’utilizzo quotidiano degli spazi e delle tecnologie, garantendo dati e osservazioni realistiche per la ricerca (Figura 5 e 6).

Trasferimento tecnologico, formazione e informazione

Un altro obiettivo del progetto è il trasferimento tecnologico con il territorio. Infatti, le collaborazioni instaurate hanno permesso di rafforzare il collegamento tra il mondo

accademico degli studenti e dei ricercatori e quello degli enti, dei professionisti e delle aziende. È stato infatti creato un ambiente stimolante non solo per la ricerca e l’innovazione, ma anche per consentire alle aziende di partecipare attivamente a iniziative che mirano alla

formazione della nuova forza lavoro. In questi anni infatti sono stati organizzati seminari e giornate di formazione per gli studenti; in particolare, sono state organizzate tre Fiere della Formazione a cui hanno partecipato sia studenti universitari sia studenti delle

Lavoratori, Sindacati

Università
Scuola Edile
Comune di Padova
ANCE
SPISAL
Ricercatori Studenti
Ordini professionali
Aziende sponsor
FIGURA 6 Aspetti tecnologici dell’edificio
FIGURA 7 Interrelazioni all’interno dell’ecosistema UniZEB

scuole tecniche superiori per una giornata mirata alla formazione sui temi della sostenibilità in ambito edilizio, visitando il cantiere e permettendo alle aziende sponsor di illustrare i propri prodotti negli stand montati all’interno della Scuola Edile. Complessivamente, in queste tre manifestazioni, si sono

presentati oltre 600 giovani che hanno potuto avvicinarsi al mondo dell’edilizia e impiantistico, e vederlo da diverse prospettive. All’interno dell’ultima Fiera sono state organizzate anche le Olimpiadi dell’Edilizia in cui gli studenti del progetto UniZEB assieme alle aziende sponsor hanno allestito diverse prove

pratiche di posa in opera di alcuni sistemi costruttivi promossi dagli sponsor del progetto.

Il laboratorio si prefigge anche una stretta collaborazione con il Comune per attività congiunte di informazione e sensibilizzazione, oltre a potenziali progetti finanziati congiunti incentrati sulla sostenibilità e i green buildings. Infine, UniZEB si propone come una piattaforma di scambio e contaminazione tra aziende, ricercatori, studenti ed enti del territorio in cui possano nascere nuove idee da testare in questo laboratorio che rappresenta pertanto un ecosistema innovativo (Figura 7).

Prestazioni energetiche previste

Il modello di simulazione energetica dell’edificio è stato sviluppato e utilizzato in diverse occasioni, con obiettivi specifici. Inizialmente è stato creato per il dimensionamento degli impianti termotecnici, come descritto in (De Carli et al. 2021). Successivamente, lo stesso modello è stato ripreso per effettuare un’analisi di sensitività, verificando l’impatto di alcune variabili sul fabbisogno termico, come riportato in (Riccardi et al., 2023). Attualmente, il modello è stato ulteriormente affi nato per renderlo maggiormente dettagliato e fedele rispetto all’edificio reale, in modo da mettere in comunicazione il modello digitale con la rete di sensori che è al momento in fase di installazione nell’edificio. Una prima versione di questo modello è stata presentata recentemente (Carnieletto et al., 2024).

È stato utilizzato il software di simulazione dinamica TRNSYS, che ha permesso di simulare il comportamento energetico del sistema edificio-impianto. Dopo l’implementazione della geometria e degli strati costruttivi, la modellazione si è concentrata sugli impianti termotecnici, quindi modellando sia il soffitto radiante sia il sistema di ventilazione. Il sistema di produzione di ACS include il modello del serbatoio di 200 litri alloggiato all’interno del casing della pompa di calore. Infine, l’impianto fotovoltaico è stato modellato considerando una potenza di 6 kWp e una batteria di accumulo da 10 kWh. Il modello considera sia i profili di carico elettrico (elettrodomestici e illuminazione) sia la pompa di calore per il riscaldamento, raffrescamento (inclusa la deumidificazione), la produzione di ACS e gli ausiliari elettrici. Il fabbisogno dell’edificio in termici di riscaldamento, raffrescamento (sia sensibile che latente) e acqua calda sanitaria è rappresentato in Figura 8. La Figura 9 riassume il carico elettrico che il

FIGURA 8 Fabbisogno termico dell’edificio: riscaldamento, raffrescamento e produzione dell’acqua calda sanitaria
FIGURA 9 Fabbisogni elettrici dell’edificio, divisi tra contributo derivante dalla pompa di calore e altri utilizzatori
FIGURA 10 Bilanci dell’energia elettrica generata e ceduta/acquisita dalla rete

sistema fotovoltaico deve soddisfare, dividendo il contributo derivato dalla pompa di calore da quello dei carichi elettrici dell’edificio (illuminazione ed elettrodomestici).

La Figura 10, infine, descrive lo sharing di energia elettrica prodotta dai pannelli fotovoltaici tra l’energia destinata a soddisfare direttamente il carico dell’edificio, l’energia fornita al carico alla batteria e lo scambio di energia con la rete. Nonostante il modello sia in attesa di migliorare le strategie di regolazione in funzione di quelle realmente attive nell’edificio, i risultati prevedono un edificio a energia quasi zero, con ottime premesse per diventare un edificio a energia positiva. Infine, il monitoraggio delle variabili permetterà di validare il modello in diverse stagioni e con diverse condizioni di esercizio.

Conclusioni

In questo lavoro è stato presentato il concetto di Living Lab, che rappresenta un ambiente transdisciplinare in cui ricerca, didattica e trasferimento tecnologico si fondono in un ecosistema che coinvolge diversi stakeholder. In quest’ottica il progetto UniZEB rappresenta un Living Lab su edifici a consumo zero o a energia positiva.

In questo laboratorio è stata data molta rilevanza agli studenti che rappresentano il punto focale del progetto, nel quale possono cimentarsi in esperienze importanti, che si basano sull’approccio del “learning by doing” e che consentono di sviluppare sia “soft skills” che “hard skills”.

Il progetto coinvolge non solo studenti universitari, ma anche studenti degli istituti superiori, in un ambiente in cui anche le aziende del territorio hanno un ruolo fondamentale, potendo trasmettere, oltre alle migliori tecnologie attualmente sul mercato, anche le buone pratiche applicative.

Dal punto di vista realizzativo, l’edificio pilota presenta diverse tecnologie di involucro e sistemi di climatizzazione ad alta efficienza. L’edificio è dotato di un sistema di supervisione e controllo molto avanzato, che permette un monitoraggio molto dettagliato di tutto il sistema edificio-impianto. L’edificio sarà vissuto da tre studenti sui quali sarà possibile verificare anche l’effetto del comportamento sulla gestione dell’edificio e sui suoi potenziali consumi. La formazione degli utenti che vivranno all’interno sarà fondamentale non solo per garantire l’uso ottimale delle risorse, ma anche per trasferire ai giovani utilizzatori dell’edificio abitudini corrette in termini di sostenibilità e di risparmio energetico.n

BIBLIOGRAFIA

∙ AMS Institute. Urban Living Labs. AMS n.d. https://www.ams-institute.org/how-we-work/living-labs/

∙ Backhaus, J., Böschen, S., John, S., Altepost, A., Cloppenburg, F., Fahy, F., Gäckle, J., Gries, T., Heckwolf, C., Matschoss, K., Meyer, J., Münderlein, D., Schmitt, M., Sonntag, A., Timpe, A., Gramelsberger. G., (2023). Living Lab. Handbook transdisciplinary learning. T. Philipp, T. Schmohl (eds.). Pag. 235-244. Doi: 10.1515/9783839463475-025

∙ Carnieletto, L., Mitrovic, M., Riccardi, B., Turrini, U., Bignucolo, F. and De Carli, M. (2024). Towards Zero Energy Buildings: the UniZEB case study. 53rd AiCARR International Conference, March 12-13-14th 2024, Milano, https://doi.org/10.1051/e3sconf/202452301004

∙ Compagnucci, Lorenzo, Francesca Spigarelli, José Coelho, and Carlos Duarte. 2021. Living Labs and user engagement for innovation and sustainability. Journal of Cleaner Production 289: 125721–38.

∙ De Carli, M., Carnieletto, L., Emmi, G., Menegazzo, D., Turrini, U., Zarrella, A., Di Bella, A., Problems and questions for predicting comfort conditions in a zero-energy residential building, Roomvent 15 th Roomvent conference, Torino, Febbraio 2021

∙ Molinari, M., Anund Vogel, J., Rolando, D., Lundqvist, P.,Using living labs to tackle innovation bottlenecks: the KTH Live-In Lab case study, Applied Energy, 2023, 338, Doi: 10.46855/energy-proceedings-10088

∙ Piselli, C. Pisello, A.L., Occupant behavior long-term continuous monitoring integrated to prediction models: impact on office building energy performance, Energy, 176 (2019), pp. 667-681, Doi: 10.1016/j. energy.2019.04.005

∙ Riccardi, B., Sisti, E., Carnieletto, L., Rampazzo, M. and De Carli, M. (2023). Global Sensitivity Analysis applied to a dynamic energy simulation model: the case study of UniZEB prototype building, 26th International Congress of Refrigeration, August 21-25th 2023, Paris, Doi: 10.18462/iir.icr.2023.0732

∙ Schäpke, Niko, Mandy Singer-Brodowski, Franziska Stelzer, Matthias Bergmann, and Daniel J. Lang. 2015. Creating space for change: Sustainability transformations: The case of Baden-Württemberg. GAIA – Ecological Perspectives for Science and Society 24 (4): 281–83

WEBGRAFIA

[1] HSB Living Lab – Construction21. Construction21Org, https://www.construction21.org/case-studies/h/hsb-living-lab.html

[2] MIT Office Of Sustainability. Living Labs | MIT Sustainability, https://sustainability.mit.edu/living-labs

[3] The Green Village – The Green Village, https://thegreenvillage.org/en/

[4] Amsterdam Institute of Advanced Metropolitan solutions, https://www.ams-institute.org/ how-we-work/ull/our-living-labs/

[5] ZEB Living Lab at NTNU, https://www.sintef.no/en/all-laboratories/zeb-living-lab/

[6] ENoLL, European Network of Living Labs, https://enoll.org/

* Laura Carnieletto, DII, Dipartimento di Ingegneria Industriale, Università degli

Studi di Padova, DAIS Dipartimento di Scienze Ambientali, Informatica e Statistica, Università Ca’ Foscari di Venezia

Milica Mitrovic, DII, Dipartimento di Ingegneria Industriale, Università degli

Studi di Padova, ICEA, Dipartimento di Ingegneria Civile Edile e Architettura, Università degli Studi di Padova, Scuola Edile di Padova

Beatrice Riccardi, DII, Dipartimento di Ingegneria Industriale, Università degli

Studi di Padova, Istituto Universitario degli Studi Superiori IUSS Pavia

Umberto Turrini, Livio Petriccione, ICEA, Dipartimento di Ingegneria Civile Edile e Architettura, Università degli Studi di Padova

Fabio Bignucolo, Michele De Carli, DII, Dipartimento di Ingegneria Industriale, Università degli Studi di Padova

Soluzioni impiantistiche per la ventilazione meccanica per il settore scolastico

Vantaggi e criticità delle soluzioni di ventilazione meccanica VMC per aule scolastiche, analizzate in due casi di studio nella Regione Marche e nella Provincia di Bolzano

C. Peretti, C. Di Perna, L. Verdi, G. Fulici, U. Moscato, G. Remia*

La tecnologia

La ventilazione meccanica è una tecnologia utilizzata per garantire un ricambio controllato dell’aria all’interno degli edifici, migliorando la qualità del comfort delle persone e riducendo la probabilità di malattie respiratorie. Fra tutte le diverse tipologie di ambienti, le aule scolastiche rappresentano un caso particolarmente critico in quanto caratterizzate da elevati affollamenti, in cui la

ventilazione meccanica può avere un impatto significativo sulla salute e sulla produttività degli studenti e del personale. I sistemi di ventilazione decentralizzati o semi canalizzati consistono in macchine che soddisfano i ricambi d’aria di singoli ambienti tramite immissione e/o estrazione puntuale. Sono

più semplici da installare soprattutto negli edifici esistenti durante le fasi di ristrutturazione. Le configurazioni impiantistiche sono molteplici e comprendono l’installazione dei macchinari a parete, a soffitto oppure integrati negli infissi. Negli ultimi anni sul mercato stanno

comparendo sempre più soluzioni di questo tipo dedicate alle aule scolastiche, ovvero unità di ventilazione meccanica a doppio flusso con elevata filtrazione dell’aria e recupero del calore sensibile e latente. Tali macchine, inoltre, si prestano molto bene ad essere adattate negli spazi già esistenti senza la necessità di opere edili onerose. Tuttavia, due grosse criticità delle unità decentralizzate riguardano l’efficienza di distribuzione dell’aria per evitare la corto-circuitazione dell’aria pulita / esausta e gli aspetti relativi all’acustica.

Caratterizzazione delle aule scolastiche

L’interesse per l’edilizia scolastica e l’importanza della progettazione degli spazi è un elemento noto da tempo. Costruire ambienti inclusivi, ovvero ambienti privi di barriere e facilitanti rispetto all’accesso, alla vita scolastica e alla didattica che vi si svolge all’interno, è da sempre un obiettivo perseguito sia nella costruzione degli ambienti che nella strutturazione degli spazi. La ricerca pedagogica ha evidenziato da tempo, infatti, come il lavoro educativo

TABELLA 1 Numero massimo di alunni in una classe e superfici espresse in metri quadrati in funzione del numero minimo e massimo degli occupanti (Fonte: MIUR – Ministero dell’Istruzione e del Merito1 e D.M. 1975)

Alunni, numero minimo Alunni, numero massimo

Superficie in riferimento al numero minimo

Superficie in riferimento al numero massimo

Infanzia 18 26 32,4 m2 46,8 m2

Primaria 15 26 27 m2 46,8 m2

Secondaria di I grado 18 27 32,4 m2 48,6 m2

Secondaria di II grado 27 52,9 m2 1 https://www.miur.gov.it/formazione-classi

Riferimenti: Decreto del Presidente della Repubblica n. 81 del 20 marzo 2009 e Decreto del Ministro della Pubblica Istruzione n. 331 del 24 luglio 1998.

prenda le mosse anche da una continua riconfigurazione dello spazio disponibile affinché questo divenga “a misura” di chi lo vive. Lo spazio sostiene i processi di apprendimento e va considerato a tutti gli effetti una risorsa educativa che non solo influenza, ma delinea e definisce i contorni e i contenuti dell’esperienza di apprendimento, sociale ed educativa.

Normative e legislazione che definiscono requisiti minimi degli spazi scolastici sono evolute negli anni, a partire dal 1975, data di pubblicazione del Decreto Ministeriale 18 dicembre 1975 (di seguito indicato con D.M. 1975) dal titolo “Norme tecniche aggiornate relative all’edilizia scolastica, ivi compresi gli indici di funzionalità didattica, edilizia e urbanistica, da osservarsi nella esecuzione di opere di edilizia scolastica”. Si riportano di seguito le caratteristiche delle aule scolastiche e i relativi riferimenti.

Dimensioni delle aule, D.M. 1975:

• 1,80 m2/alunno nelle scuole materne, elementari, medie e 1,96 m2/ alunno nelle scuole superiori;

• Altezza minima: 3 m.

Affollamento e superfici delle classi:

Il D.M. 1975 prevede 25 alunni per classe (Tabella 1). Il DM 26.08.92 prevenzione incendi per l’edilizia scolastica, prevede un affollamento massimo di 26 persone per aula. In Figura 1 sono rappresentati due esempi di aule per la didattica che rispettano i requisiti normativi attuali.

Le esperienze pregresse sulla VMC nelle

Aula in angolo

Finestre: 1,5 x 2 m (x3)

Aula in angolo Finestre: 1,25 x 2 m (x4)

Aula tra due aule

Area netta: 42 m2

6 x 7 m

H = 3 m

Finestre: 4,5 x 2 m

Finestre: 1,5 x 2 m (x3)

Aula tra due aule

Area netta: 57 m2

6 x 9,5 m H = 3 m

Finestre: 5 x 2 m

Aula Finestre: 1,25 x 2 m (x4)

FIGURA 1 Esempi di tipologie di aule scolastiche con diverse finestrature. Le tre configurazioni in alto hanno una superficie netta interna di 42 m2 e una altezza di 3 metri. Le tre configurazioni in basso hanno una superficie netta interna di 57 m2 e una altezza di 3 metri

scuole: la Regione Marche e la Provincia di Bolzano (VMC per il radon)

A seguito dell’emergenza sanitaria da COVID-19, il controllo della qualità dell’aria interna è diventato di fondamentale importanza, soprattutto all’interno degli edifici scolastici. Per tale motivazione, nel 2021 la Regione Marche ha realizzato un intervento straordinario per lo svolgimento in sicurezza delle attività didattiche attraverso l’installazione nelle aule scolastiche di impianti di ventilazione meccanica controllata. Questa tipologia di impianto è stata installata su più di 1900 aule, appartenenti a circa 200 scuole sull’intero territorio marchigiano. Base fondamentale dell’attività di ricerca è stato il censimento delle scuole coinvolte nell’intervento, al fine di creare un database contenente le informazioni necessarie per l’individuazione dei plessi scolastici dotati di impianti di ventila-

Aula
Corridoio
Corridoio

zione. Tramite i dati forniti dalla Regione Marche (per cui si ringrazia la collaborazione dell’Ingegnere Andrea Bartoli) è stato possibile individuare il numero delle scuole coinvolte, la tipologia e il numero di aule in cui è stato installato l’impianto, il modello e la tipologia del sistema installato.

Nello specifico, sono state coinvolte 201 scuole per un totale di 1904 aule in cui è stato istallato l’impianto di ventilazione. La provincia di Ancona è prima per numero di installazioni, contando 529 aule, seguita dalla provincia di Pesaro Urbino (425 aule), Macerata (421 aule), Ascoli Piceno (289 aule) e infine Fermo (240).

Le altre tre tipologie individuate sono: impianto centralizzato, impianto delocalizzato con unità di ventilazione posta all’esterno delle aule e impianto delocalizzato con unità di ventilazione interna alle aule e canali. Quest’ultima tipologia consiste nel posizionare l’unità di ventilazione all’interno del controsoffitto e utilizzare dei canali per la diffusione dell’aria all’interno dell’aula. In questo caso la macchina di ventilazione non è a vista, ma sono visibili solo i diffusori posizionati nel controsoffitto (Figura 3).

Nella Figura 4 è rappresentata la distribuzione delle tipologie impiantistiche individuate, riportando il numero di aule in cui sono state installate e la percentuale di incidenza rispetto al totale. L’impianto centralizzato risulta il meno diffuso, poiché di difficile progettazione in scuole esistenti. Quest’ultimo in particolare è stato individuato solo su due scuole, localizzate nella provincia di Fermo.

L’analisi dei progetti forniti ha permesso l’individuazione di quattro diverse strategie di progettazione dell’impianto, secondo le quali sono state classificate le scuole. La tipologia più diffusa è l’impianto delocalizzato, che consiste nell’installazione di un’unità di ventilazione indipendente a vista direttamente all’interno dell’aula (Figura 2). In questo caso l’unità di ventilazione può essere installata a parete (installazione verticale) o a soffitto (installazione orizzontale).

Il censimento delle scuole ha permesso l’individuazione dei plessi scolastici dove realizzare l’attività di ricerca. Lo scopo principale dell’attività, oltre a verificare e studiare la qualità dell’aria interna a seguito delle installazioni, è la definizione di un protocollo di monitoraggio applicabile agli edifici scolastici e replicabile in futuro da altri enti e soggetti interessati. Tramite tale protocollo si vuole definire la corretta metodologia secondo la quale effettuare i sopralluoghi e le diverse prove/misure all’interno delle aule scolastiche. Parte integrante dello sviluppo del proto-

Centralizzato

Delocalizzato

Delocalizzato con Unità Esterne alle Aule

Delocalizzato con Unità Interna e Canali

collo è stata la definizione di una serie di documenti e schede a supporto dei professionisti, da utilizzare durante la realizzazione dei sopralluoghi e delle misure. Il protocollo è stato sviluppato e migliorato dal 2021 a oggi applicandolo su 10 scuole, per un totale di 75 aule comprendenti tutte le tipologie di impianto precedentemente indicate. All’interno del protocollo sono ripor-

tate le varie procedure e le normative di riferimento per il monitoraggio dei parametri ambientali, ovvero:

• prove termiche-IAQ per la valutazione della temperatura dell’aria, dell’umidità relativa e della concentrazione di CO2;

• prove fluidodinamiche per la valutazione della portata e dell’efficienza dell’impianto di ventilazione;

• blower door test per la valutazione

FIGURA 2 Esempi di installazione di impianto delocalizzato
FIGURA 3 Esempi di installazione di impianto con unità di ventilazione esterna (sinistra) e posta nel controsoffitto con canali e diffusori (destra)
FIGURA 4 Classificazione delle aule in funzione della tipologia di impianto di ventilazione installato (numero aule; percentuale rispetto al totale)

della permeabilità dell’involucro dell’aula oggetto di misure; • prove acustiche.

L’esperienza delle VMC nella

Provincia di Bolzano

Molteplici sono le installazioni di sistemi VMC realizzate in Provincia di Bolzano, oltre alle installazioni centralizzate negli edifici nuovi e ad alcuni esempi di riqualificazioni dei sistemi di ricambio dell’aria (Figura 5). Diverse sono le installazioni per ridurre le concentrazioni di radon attraverso la diluizione degli inquinanti. Tipologie e portate di ventilazione sono variabili e per analizzarle sono state selezionate 58 installazioni oggetto di monitoraggio del loro funzionamento e della capacità di riduzione delle concentrazioni di radon e degli inquinanti, in particolare la CO2 ovvero il principale indicatore della qualità dell’aria (Fonte: UNI PdR 122/2022, Prassi di riferimento dal titolo “Monitoraggio della qualità dell’aria negli edifici scolastici – Strumenti, strategie di campionamento e interpretazione delle misure”).

Delle 58 installazioni il 55% sono impianti centralizzati mentre i restanti sono sistemi decentralizzati installati a parete oppure nelle finestre all’interno delle aule o di altri locali (laboratori, ecc…). Per ridurre le concentrazioni di radon il tasso di ricambio è variabile sulla base dei seguenti parametri: concertazione annuale di radon misurata mediante sistema passivo prima del risanamento, concentrazione di radon obiettivo dopo il risanamento e tasso di ventilazione dell’ambiente. Valori tipici di ricambi delle 58 scuole analizzate variavano tra 1 e 3 vol/h.

In Italia non esiste una norma tecnica che tratti questo tema e che dettagli le attività per la prevenzione

(edifici nuovi) oppure la riduzione delle concentrazioni in edifici esistenti, nei quali fare un risanamento. La DIN/TS 18117-1:2021 è uno standard tecnico tedesco che contiene le basi e descrive le misure per proteggere le costruzioni dal radon. Le misure descritte sono strutturali e di ventilazione e sono differenziate per fabbricati di nuova costruzione o ristrutturati. Il documento è applicabile solo agli edifici residenziali o ai luoghi di lavoro.

Nella norma tecnica DIN/TS 181171:2021 la valutazione per gli interventi di riqualificazione con finalità di riduzione del radon avviene sulla base dei seguenti parametri:

• tasso di ventilazione degli ambienti. Vengono definiti tre livelli in funzione del parametro n50 (numero di ricambi d’aria con una differenza di pressione tra interno ed esterno di 50 Pascal secondo la norma UNI EN ISO 9972); • concentrazione media annuale di radon (per edifici esistenti nei quali è stata fatta una misura mediante dosimetro).

Solo incrociando le informazioni relative a questi due parametri si è in grado di caratterizzare l’edificio e la sua capacità di ridurre il radon.

In molte scuole la ventilazione centralizzata è stata installata nelle palestre, frequentemente collocate nei pianti interrati o seminterrati. Per le aule didattiche sono stati scelti sistemi centralizzati oppure per singola aula.

In Figura 6 sono rappresentati alcuni esempi di installazione dei sistemi VMC centralizzati e canalizzati dedicati alle palestre oppure alle aule scolastiche.

FIGURA 5 Esempi di installazione di sistemi VMC in un’aula nelle scuole della Provincia di Bolzano
FIGURA 6 Esempi di installazione di sistemi VMC centralizzati nelle scuole della Provincia di Bolzano

Radon (Bq/m3) in azzurro e CO2 (ppm) in arancione

Settimana di vacanza lunedì martedì mercoledì giovedì venerdì

Radon (Bq/m3) in azzurro e CO2 (ppm) in arancione

Periodo di permanenza degli occupanti (8.00 – 16.00)

Per quanto riguarda i monitoraggi integrati di radon e CO2 si riporta in Figura 7 un esempio relativo a un’aula seminterrata nella quale sono installate 3 VMC sopra le finestre con una portata complessiva paria a circa 120 m3/h. La concentrazione di radon, riportata con il colore blu si legge sull’ordinata di sinistra, mentre la concentrazione di CO2 rappresentata in arancione si legge sull’ordinata di destra.

Nella Figura 8 è dettagliata una giornata tipo (lunedì) nella quale la riduzione del radon è accompagnata dalla presenza degli occupanti evidenziando come l’apertura delle finestre riesca a ridurre le concentrazioni durante l’orario scolastico.

La determinazione delle portate

La determinazione delle portate di ventilazione per le aule scolastiche è un tema molto dibattuto. Il principale riferimento sono i Criteri Ambientali Minimi, CAM Edilizia – DM 23 giugno 2022 n. 256 che a loro volta richiamano alcune norme per il calcolo delle portate (Tabella 2).

A titolo di esempio sono riportati in Tabella 3 alcuni calcoli applicativi relativi alle due aule scolastiche rappresentate in Figura 3.

L’importanza della distribuzione dell’aria nelle aule

Lo scopo della distribuzione dell’aria negli impianti di ventilazione è quello di movimentare i flussi di immissione ed estrazione dall’interno all’esterno dell’edificio e viceversa. ln questo modo il sistema è in grado di garantire il ricambio ottimale dell’aria e il lavaggio dei locali. Ogni tratto della distribuzione ha uno specifico scopo e deve essere progettato e realizzato con opportuni accorgimenti, in particolar modo va posta attenzione ai materiali impiegati in relazione alla tipologia e al posizionamento delle distribuzioni. Inoltre, un aspetto significativo nella strategia di distribuzione dell’aria è il posizionamento delle bocchette di immissione ed estrazione (Figura 9).

La distribuzione all’interno della classe ha il compito di trasportare

TABELLA 2 Riferimenti normativi e legislativi per la progettazione dei sistemi VMC

CAM Edilizia –DM 23 giugno 2022 n. 256

UNI EN 16798-1:2019

UNI 10339:1995

UNI EN 13141-8:2022

UNI CEN/TR 16798-2:2020

UNI EN 16798-3:2018

UNI CEN/TR 16798-4:2018

UNI/TS 11300

CAM Edilizia –DM 23 giugno 2022 n. 256

Affidamento di servizi di progettazione e affidamento di lavori per interventi edilizi. Per la ventilazione sono prescritti obblighi per gli edifici di nuova costruzione e le ristrutturazioni di I e II livello

Applicazione: progettazione e analisi energetiche

La norma europea UNI EN 16798-1, insieme alla norma UNI 10339, è il principale riferimento per il calcolo delle portate di ventilazione e per i criteri progettuali dei sistemi di ventilazione

Norma di prodotto e di sistema Applicazione: progettazione e installazione.

Norma di prodotto che caratterizza i sistemi di ventilazione decentralizzati. Sono descritti i requisiti delle centrali di ventilazione non canalizzate

Report Tecnico della norma UNI EN 16798-1, fornisce esempi di calcolo e dettagli applicativi

Applicazione: progettazione della ventilazione e analisi energetiche per gli edifici non residenziali

Dettagli tecnici e applicativi della parte 3. Esempio: posizionamento espulsione e prelievo in facciata

Norma tecnica italiana da utilizzare solo per analisi energetiche

Affidamento di servizi di progettazione e affidamento di lavori per interventi edilizi. Per la ventilazione sono prescritti obblighi per gli edifici di nuova costruzione e le ristrutturazioni di I e II livello

Norme tecniche aggiornate relative all'edilizia scolastica, ivi compresi gli indici di funzionalità didattica, edilizia e urbanistica, da osservarsi nella esecuzione di opere di edilizia scolastica. Abrogato ma ancora applicato per il calcolo delle portate.

FIGURA 7 Esempi di monitoraggio congiunto di radon e CO2
FIGURA 8 Esempi di monitoraggio congiunto di radon e CO2

l’aria di rinnovo agli ambienti interni e, contemporaneamente, aspirare l’aria viziata convogliandola verso l’unità di ventilazione.

L’immissione e l’estrazione dell’aria all’interno delle classi devono:

• garantire una buona distribuzione dell’aria per evitare zone non interessate dal flusso;

• evitare correnti di aria fredda che investono direttamente gli occupanti;

• evitare correnti con velocità eccessive;

• garantire il corretto lavaggio dell’aria nel locale.

La rete di distribuzione negli impianti di ventilazione meccanica deve essere dimensionata in modo da garantire il corretto afflusso ed estrazione di aria dagli ambienti. Un dimensionamento errato della rete può generare perdite di carico o velocità eccessive all’interno delle condotte con conseguente diminuzione delle prestazioni del sistema, in quanto non si garantiscono le corrette portate di progetto. Inoltre, velocità eccessive dell’aria possono diminuire il comfort generando rumori, vibrazioni e flussi d’aria fastidiosi all’interno delle classi.

Il progetto necessARIA

Il progetto necessARIA nasce dall’esigenza di analisi, promozione, sviluppo, collaborazione e condivisione delle competenze e delle politiche sul tema

della qualità dell’aria, a partire dagli edifici scolastici. L’obiettivo primario dello studio è di garantire la salute delle persone all’interno degli ambienti di vita e di lavoro. Migliorare la qualità dell’aria indoor nelle scuole si tradurrà in un beneficio significativo per tutta la vita sulla salute degli studenti, del personale docente, tecnico amministrativo, anche nell’ottica dell’inclusione, come sottolineato nelle DPCM 26 luglio 2022 (Linee Guida). Il progetto, iniziato a gennaio 2023 con durata di 4 anni, mira ad analizzare il tema della qualità dell’aria nelle scuole italiane, possibili soluzioni tecniche e tecnologiche, classificare e parametrizzare il patrimonio costruito che può fornire casi pilota per operare concretamente al miglioramento della salute degli occupanti.

Superficie aule Grado scolastico

Portata secondo UNI 10339 (m3/h)

Portata secondo UNI EN 16798-1:2019

LPB, persone non adattate, categoria II (m3/h)

Portata secondo UNI EN 16798-1:2019

LPB, persone non adattate, categoria III (m3/h)

Il progetto necessARIA ha l’ambizione di trasformare il problema della IAQ (Indoor Air Quality) in un’opportunità che consenta di attivare la cooperazione tra il settore della sanità, degli enti pubblici e della scuola. Un corretto ricambio dell’aria interna, condizione spesso non soddisfatta dalla sola apertura delle finestre, migliora la IAQ, contribuendo anche alla diminuzione di un’eventuale presenza di aerosol infetti. Ciò richiede l’utilizzo di sistemi e strategie specificamente dedicati, che devono però al contempo minimizzare il loro impatto dal punto di vista energetico, ambientale e acustico e garantire la salute degli occupanti. Dal punto di vista pratico vi è l’esigenza di disporre di linee guida e strumenti di ausilio alle politiche, alle normative europee e nazionali, basati su paradigmi legati non solo ad aspetti tecnologici, ma anche alla salute e al benessere degli occupanti. L’attività sperimentale sarà affiancata dall’installazione di sistemi di ricambio dell’aria negli edifici scolastici le cui caratteristiche saranno delineate dalle esperienze delle unità operative coinvolte approfondite nella prima parte del progetto. Progetto necessARIA ha come ulteriore obiettivo quello di elaborare uno schema tipo di bando di gara per proget-

FIGURA 9 Esempi di canalizzazioni nelle scuole della Provincia di Bolzano
FIGURA 10 Il logo del progetto necessARIA e i tre focus tematici
TABELLA 3 Esempi di calcolo delle portate di ventilazione (m3/h)

tazione, fornitura, posa e manutenzione: un estratto dei principali requisiti attualmente in fase di discussione è riportato nella parte conclusiva del presente articolo. I sistemi di ricambio dell’aria saranno 35, suddivisi tra nord e sud Italia. Le installazioni saranno effettuate in edifici rappresentativi per le diverse condizioni climatiche e le strutture scolastiche. Per la natura e la complessità del tema affrontato verrà adottato un approccio interdisciplinare, dinamico e innovativo con il possibile coinvolgimento di ulteriori attori e stakeholders. Particolare enfasi verrà dedicata alle attività di disseminazione, formazione e divulgazione.

Il progetto necessARIA è finanziato dal Ministero della salute nell’ambito del Piano Nazionale Complementare “Salute, Ambiente, Biodiversità, Clima”. Codice progetto PREV-A-2022-12377013. In Figura 11 è rappresentata la home page del sito di progetto.

Le VMC del progetto necessARIA: 35 installazioni tra Regione Puglia, Provincia di Bolzano e Regione Abruzzo

All’interno del progetto necessARIA sono previste 35 installazioni di sistemi VMC innovativi nelle seguenti Regioni/Province:

• 12 VMC in Provincia di Bolzano in 12 classi;

• 5 VMC in Abruzzo in 5 classi;

• 18 VMC in Puglia in 18 classi.

Per ogni aula è previsto un finanziamento di 10.000 euro (IVA inclusa), che deve prevendere:

• macchina VMC;

• installazione;

• certificazioni;

• sostituzione filtri per 10 anni. Sono attualmente in fase di definizione i requisiti tecnici per il bando. Questa attività è stata realizzata attraverso un periodico confronto con le associazioni esperte del tema VMC. Grande contributo è stato dato da AiCARR durante gli incontri.

I requisiti tecnici in fase di discussione sono:

• una macchina VMC (Ventilazione Meccanica Controllata) a servizio di una, due aule (o più) installata in corridoio oppure in un locale tecnico (antibagno/sgabuzzini/…);

• portata di ventilazione: applicazione dei Criteri Ambientali Minimi;

• immissione aria esterna: almeno 4 metri dal piano stradale di ingresso dell’edificio (UNI 10339:1995);

• espulsione: su un altro orientamento oppure almeno a una distanza limite definita dal produttore;

• canalizzazione di distribuzione e prelievo in aula: evitare il bypass dei flussi, rispettare i requisiti acustici;

• al fine di assicurare il benessere

acustico e un regolare svolgimento delle lezioni, devono essere installati impianti a bassa rumorosità, che garantiscano l’accettabilità del rumore prodotto dall’impianto;

• installazioni in zona sismica: adottare accorgimenti per i vincoli delle macchine e dei canali;

• sistema di monitoraggio e di regolazione: sistema predisposto per integrazione e di gestione sulle logiche di regolazione e di controllo;

• collegamenti elettrici funzionali all’installazione.n

* Clara Peretti, Luca Verdi, Gianmaria Fulici, Provincia autonoma di Bolzano, Laboratorio Analisi aria e radioprotezione

Costanzo Di Perna, Giada Remia, Università Politecnica delle Marche, DIISM – Dipartimento di Ingegneria Industriale e Scienze Matematiche Umberto Moscato, Università Cattolica del Sacro Cuore, Dipartimento di Scienze della vita e sanità pubblica

FIGURA 11 Home page del sito del progetto www.necessaria.it

Un appuntamento dedicato ai professionisti del settore, per approfondire insieme i temi dominanti del mondo delle costruzioni

info@costruirepiu.it

Monitoraggio di un anno di funzionamento

di

un sistema HVAC decentralizzato a tutta aria per un’aula scolastica

In pieno periodo di pandemia, AiCARR, attraverso le aziende e i progettisti associati, ha donato un sistema di ventilazione meccanica a un istituto superiore di Rho. Questo articolo presenta i dati operativi del primo anno registrati dal sistema di monitoraggio con un’analisi della temperatura dell’aria esterna e interna, dell’umidità relativa, della concentrazione di CO2 e del consumo elettrico dell’unità

M. Noro, F. Busato, L.A. Piterà*

Introduzione Per mitigare la diffusione aerea del COVID-19 negli edifici, l’Organizzazione Mondiale della Sanità ha raccomandato di garantire un’adeguata ventilazione e di

di ventilazione sul rischio di contagio negli ambienti interni [3] [4]. Ad esempio, Cavallini et al. [5] hanno valutato il rischio di infezione con diverse configuaumentare la fornitura totale del flusso d’aria [1] [2]. Il noto modello di Wells-Riley viene spesso utilizzato per quantificare l’effetto del flusso d’aria

razioni impiantistiche, tenendo conto del ruolo del rinnovo dell’aria (ventilazione) e del ricircolo nel ridurre il rischio di infezione dovuto alla rimozione o all’inattivazione del virus.

Durante la pandemia di COVID-19 e i successivi periodi di lockdown nel 2020 e 2021 le scuole sono state tra gli edifici più colpiti [6]. Essendo tra gli ambienti più densamente occupati con occupazione continua, negli ultimi anni molti studi si sono concentrati nel dimostrare la correlazione tra aumento della ventilazione e riduzione del rischio di contagio [7] [9]. Tra le strategie che possono essere adottate per ridurre il rischio di infezione diluendo le cariche virali, l’uso di sistemi di ventilazione meccanica è risultato certamente tra i più efficaci. L’affidamento alle sole infiltrazioni dell’involucro e aerazione dei locali non consente infatti un controllo della distribuzione dell’aria interna, causando possibili condizioni di disagio [10]. Inoltre, viene aumentato il fabbisogno energetico netto dell’edificio senza alcuna possibilità di recupero del calore. A questo proposito, uno studio ha riportato i risultati della misurazione ambientale interna per le scuole in Giappone in un’area a clima freddo, considerando la concentrazione di CO2, la sensazione degli studenti di caldo o freddo, e un confronto del consumo energetico prima e dopo la diffusione dell’infezione da SARS-CoV-2 [11]. In un altro lavoro, Rodríguez-Vidal et al. [12] hanno studiato il comfort interno nelle aule confrontando la ventilazione parziale, costante e naturale (come è stato fatto durante la pandemia) e la ventilazione meccanica e ibrida nel clima dei Paesi Baschi, in Spagna. Gli autori hanno evidenziato come il sistema ibrido mantiene una qualità dell’aria interna accettabile con una

migliore efficienza energetica rispetto al sistema a ventilazione naturale.

Recentemente, Busato e Cavallini [13] hanno evidenziato che l’apertura delle finestre non è efficace nel controllare la diffusione della malattia e che la ventilazione meccanica può ridurre il rischio di infezione individuale di un fattore 3 per la stessa quantità di energia termica necessaria, addirittura superando l’effetto delle mascherine.

I sistemi reversibili a pompa di calore aria-aria (ovvero una pompa di calore/ condizionatore d’aria, HP/AC) possono essere considerati una soluzione adatta per la ventilazione meccanica nelle scuole. Possono essere installati a valle dello scambiatore di recupero di calore (cosiddetti recuperatori termodinamici) oppure utilizzati da soli, senza scambiatore di calore. Questa configurazione semplifica il sistema e ne riduce i costi iniziali. Come inconveniente consente un minor recupero di calore, ma questo è parzialmente bilanciato da un aumento delle prestazioni della pompa di calore. Infatti, le temperature più favorevoli all’evaporatore e al condensatore consentono un coefficiente di prestazione (COP) più elevato [14].

Noro e Zilio [15] in un precedente studio hanno confrontato diversi sistemi (recupero di calore sensibile o totale, pompa di calore, pompa di calore accoppiata a un recuperatore) mediante simulazione dinamica, dimostrando che consentono notevoli risparmi di energia primaria non rinnovabile. L’analisi energetica ha evidenziato che il recupero di calore termodinamico, ovvero l’utilizzo accoppiato di recupero di calore sensibile o totale e pompa di calore reversibile, è la configurazione più vantaggiosa per la ventilazione scolastica sia in climi più freddi e umidi come Milano che in climi più miti

come Palermo, ancor più quando vi sia un aumento della portata di ventilazione (come auspicabile in periodo di pandemia) e per edifici nuovi o ristrutturati. Nello stesso studio, l’analisi economica ha però rivelato che l’utilizzo della configurazione HP/AC è più vantaggioso del recuperatore termodinamico.

Sulla base di queste considerazioni e di alcuni seminari sulla qualità dell’aria indoor svolti subito a valle del periodo COVID-19, AiCARR ha promosso un’attività culturale-didattica per contribuire alla formazione di giovani tecnici nel campo dell’installazione di impianti di riscaldamento, ventilazione e condizionamento dell’aria (HVAC). L’attività è consistita nella progettazione e realizzazione di un impianto di climatizzazione e ventilazione canalizzata a tutta aria per alimentare un laboratorio tecnico di un istituto superiore professionale situato nel comune di Rho (MI).

In questo articolo vengono descritti l’installazione e i risultati del primo anno di esercizio (1º aprile 2022 – 12 febbraio 2023) in termini di qualità dell’aria interna, comfort termico e prestazione energetica.

Missione di AiCARR e motivazioni dell’intervento

Come ben noto ai lettori di questa rivista, AiCARR si occupa fin dalla sua nascita (1960) di tematiche relative all’uso responsabile dell’energia e delle risorse naturali e all’innovazione delle infrastrutture energetiche, sia nell’edilizia residenziale che industriale. I soci AiCARR (attualmente oltre 2200) sono progettisti, costruttori di macchinari, installatori, manutentori, studiosi, ricercatori, studenti, organizzazioni governative e nazionali e internazionali.

AiCARR opera con gli obiettivi principali di produrre e diffondere la cultura del comfort sostenibile, della formazione e dello sviluppo professionale dei dipendenti del settore. Nell’ambito di tali attività, nel corso del 2021, in pieno periodo post-pandemico, i membri della Giunta hanno dato concretezza a una nuova idea: coinvolgere alcuni soci industriali e progettisti, insieme a giovani studenti di un istituto superiore, per progettare e installare un impianto di climatizzazione e ventilazione a servizio di una delle aule della scuola. La motivazione principale alla base di questo progetto era quella di promuovere la collaborazione tra professionisti, studenti e produttori nella creazione di un sistema pratico e vantaggioso a servizio della propria scuola.

2 (Aula TERM-2 nel proseguo) situato al piano terra dell’area nord-est dell’edificio, destinato ai laboratori (Figura 1).

Di seguito vengono elencate le principali caratteristiche del laboratorio (Figura 2):

• superficie netta 70 m2;

• altezza 4,56 m;

• volume netto 319 m3;

• occupazione nominale 30 persone;

• unica superficie di confine con l’ambiente esterno rivolta a nord-est.

Le due aule sono quasi della stessa metratura ed entrambe collegate all’impianto di riscaldamento principale dell’edificio scolastico tramite dei radiatori. La differenza principale è che l’Aula TERM-2 è dotata anche del sistema di ventilazione meccanica per la ventilazione durante le stagioni di riscaldamento e raffreddamento, mentre l’Aula TERM-1 no.

Una caratteristica rilevante dell’impianto è il sistema di monitoraggio, che registra i dati di:

• temperatura, umidità relativa e concentrazione di CO2 esterni;

• temperatura, umidità relativa e concentrazione di CO2 interni, sia per l’Aula TERM-1 che per l’Aula TERM-2;

• consumo elettrico dell’unità.

Descrizione del sistema di ventilazione

L’impianto è stato realizzato presso l’Istituto di Istruzione Superiore “Puecher-Olivetti”, istituto professionale con sede nel Comune di Rho (MI). Lo scopo dell’installazione è quello di fornire:

• sicurezza, attraverso la diluizione dei contaminanti interni;

• qualità dell’aria interna;

• comfort termico;

• miglioramento dell’efficienza energetica;

• riduzione dei costi operativi e di manutenzione. Il locale individuato per l’impianto è il Laboratorio termico

FIGURA 1 (a) Foto da Google Maps della scuola dall’alto con individuata l’Aula TERM-2 situata al piano terra dell’area nord-est dell’edificio, destinata ai laboratori; (b) Vista frontale
FIGURA 2 Pianta e sezione dell’Aula TERM-1 e dell’Aula TERM-2
FIGURA 3 Schema funzionale semplificato dell’impianto di ventilazione canalizzato (non sono rappresentati la valvola a quattro vie e i ventilatori)
(a) (b)

TABELLA 1 Dati nominali per il sistema di ventilazione canalizzato

Portata aria Unità Valore

Portata aria nominale

Pressione massima (mandata)

Pressione massima (indoor)

Raffrescamento1

Potenza frigorifera nominale

Potenza post-riscaldamento

Potenza compressore

m3/h 1300

Pa 630

Pa 630

kW 10,6

kW 2,70

kW 2,91

EER 4,57

Riscaldamento2

Potenza riscaldamento nominale

Potenza compressore

kW 5,93

kW 0,71

COP 8,38

1. Temperatura esterna: 35 °C D.B./ 24 °C W.B. Temperatura aria in ripresa: 26 °C D.B.

Umidità aria in mandata: 11 gv/kga. Temperatura aria in mandata: 24 °C D.B.

2. Temperatura esterna: 7 °C D.B./ 6,0 °C W.B. Temperatura aria in ripresa: 20 °C D.B. / 12 °C W.B.

Temperatura aria in mandata: 20 °C D.B.

L’impianto di climatizzazione e ventilazione a tutta aria canalizzato è stato fornito da un’azienda della Consulta AiCARR. Uno schema semplificato è mostrato in Figura 3. La macchina presenta un unico circuito (R410A) con compressore rotativo; le prestazioni nominali sono riportate in Tabella 1. L’evaporatore è alimentato dall’aria estratta dall’ambiente trattato (batteria 2) e dall’aria esterna da immettere (batteria 1) rispettivamente durante il funzionamento in pompa di calore (HP) e come condizionatore (AC). Questo, come verrà evidenziato in seguito, consente di ottenere valori di COP ed EER molto elevati in quanto le temperature sono molto più favorevoli rispetto alle tradizionali pompe di calore reversibili.

Il sistema ha una portata d’aria minima di 1000 m 3 /h e massima di 1900 m3/h. In questa applicazione l’impianto è stato tarato per funzionare a una portata d’aria fissa di 1500 m3 /h sia nella stagione di riscaldamento che

di raffrescamento. Tale valore è stato determinato secondo il comma 5.3.12

“Purezza dell’aria” del DM 18 dicembre 1975 [16], con un set point fisso di

temperatura dell’aria (TETA in Tabella 2 e Figura 3) rispettivamente di 22 °C e 26 °C. Il sistema di ventilazione fa fronte solo ai carichi di ventilazione, mentre i carichi di riscaldamento sono soddisfatti dai radiatori. Il sistema non fornisce alcun carico di raffreddamento (o è molto basso) (Figura 4).

Metodo di analisi dei dati monitorati

Sulla base dei dati monitorati e riportati nelle successive sezioni sono stati calcolati i principali risultati in termini di energia consumata, efficienza dell’impianto e concentrazione di CO2 negli ambienti. Utilizzando le informazioni provenienti dall’unità di ventilazione illustrate in Figura 3 e i valori di set point come riportato in Tabella 2, sono state calcolate le potenze termiche scambiate al condensatore e all’evaporatore dell’unità HP/AC (Tabella 2).

I dati sono stati monitorati con un intervallo temporale di 5 minuti dal 31 marzo 2022 al 12 febbraio 2023. Nei successivi paragrafi vengono descritti i principali dati monitorati, il risultato dei consumi energetici e della qualità dell’aria indoor durante il periodo di riscaldamento (26 novembre 2022 – 2 dicembre 2022) e raffrescamento (28 giugno 2022 – 4 luglio 2022), sia su base annua che su base giornaliera per una settimana.

FIGURA 4 Immagini e layout dell’impianto di ventilazione a tutta aria canalizzato dell’Aula TERM-2 (per gentile concessione di AiCARR)

Portata aria (V, m3/h - ach)

T aria in mandata (TSUP, °C)

T aria in ripresa (TETA,set, °C)

Potenza termica condensatore (Pcond , kW)

Potenza termica evaporatore (P evap, kW)

Monitoraggio annuale dei dati

Riscaldamento Raffrescamento Off / Riscaldamento / Raffrescamento

- ≈ 5 h -1

evap = Pcond –- Pel

La Figura 5 presenta i dati annuali relativi alla temperatura dell’aria interna, umidità relativa e concentrazione di CO2 per l’Aula TERM-1 (dove non è presente un sistema di ventilazione meccanica controllata) e l’Aula TERM-2 (con ventilazione meccanica controllata). Le curve di temperatura e umidità mostrano un comportamento abba-

evap = ( ρE

V/3600)

6 (a) Dati annuali di temperatura dell’aria esterna, umidità relativa e concentrazione di CO2; (b) Energia elettrica consumata dall’unità di ventilazione TABELLA

- ≈ 5 h -1 IF TETA < TETA,set,heating THEN Riscaldamento ELSE IF TETA > TETA,set,cooling THEN Raffrescamento ELSE Off

TABELLA 3 Modalità di funzionamento in diversi periodi dell’unità di ventilazione per l’Aula TERM-2

Periodo

31 Marzo 2022 – 30 Aprile 2022

Funzionamento

Riscaldamento

1 Maggio 2022 – 30 Maggio 2022 Off

1 Giugno 2022 – 12 Luglio 2022

Raffrescamento

13 Luglio 2022 – 4 Settembre 2022 Off

5 Settembre 2022 – 12 Dicembre 2022

Riscaldamento

13 Dicembre 2022 – 8 Gennaio 2023 Off

9 Gennaio 2023 – 12 Febbraio 2023 Riscaldamento

5 Dati

di temperatura dell’aria ambiente interna, umidità relativa e concentrazione di

Aula

(senza ventilazione meccanica controllata, CMV controlled mechanical ventilation); (b) Aula TERM-2 (con ventilazione meccanica controllata)

FIGURA
annuali
CO2: (a)
TERM-1
FIGURA

7 (a) Dati

l’Aula TERM-2 mostra una concentrazione di CO2 costantemente inferiore, evidenziando una significativa efficacia della ventilazione meccanica nel mantenere una migliore qualità dell’aria.

La Figura 6b illustra il consumo di energia elettrica dell’unità di ventilazione, corrispondente ai periodi di funzionamento del sistema, come dettagliato in Tabella 3. La Figura 7a presenta i dati annuali di potenza termica scambiata al condensatore e all’evaporatore (che rappresenta calore utile e di scarto durante la stagione di riscaldamento e raffreddamento, rispettivamente) e l’energia elettrica consumata dall’unità di ventilazione. Questi valori sono stati calcolati utilizzando le equazioni descritte in Tabella 2. Di conseguenza, in alcuni step temporali assumono valori negativi e non sono stati considerati. Gli indici di efficienza energetica (COP ed EER rispettivamente per la stagione di riscaldamento e raffreddamento) sono stati calcolati come il rapporto tra potenza termica di ventilazione, non i carichi di riscaldamento e raffreddamento (come illustrato nella Figura 6a, in base alle condizioni dell’aria esterna). Tuttavia, stanza simile nei due ambienti, dato che entrambe le aule sono utilizzate per lo stesso scopo (come laboratori) e l’unità di ventilazione soddisfa il carico

FIGURA
annuali della potenza termica ed elettrica; (b) Indici di efficienza energetica (COP ed EER rispettivamente per la stagione di riscaldamento e raffreddamento) e modalità di funzionamento dell’unità di ventilazione (CMV controlled mechanical ventilation)
FIGURA 8 Dati annuali della differenza di concentrazione di CO2 tra ambiente interno ed esterno per i due laboratori
FIGURA 9 (a) Dati settimanali (durante il periodo di riscaldamento) della temperatura dell’aria interna, umidità relativa e concentrazione di CO2 per l’Aula TERM-1 (senza ventilazione meccanica controllata, CMV controlled mechanical ventilation); idem per l’Aula TERM-2 (con ventilazione meccanica controllata)

ed energia elettrica (al condensatore e all’evaporatore rispettivamente per la stagione di riscaldamento e raffreddamento, Figura 7b). In particolare, questo tipo di unità può raggiungere valori

molto elevati grazie alle temperature favorevoli dell’aria esterna all’evaporatore (durante la stagione di raffreddamento) e al condensatore (stagione di riscaldamento).

Come è noto, l’assenza di una corretta ventilazione con aria esterna aumenta la concentrazione di CO2 all’interno delle aule, con il rischio di superare i livelli massimi consentiti per la differenza tra concentrazione interna ed esterna. La norma UNI EN 16798-1 [17] fissa questo limite a 800 ppm per la classe II di qualità di aria indoor, superato il quale si può avere un potenziale aumento della disattenzione e della perdita di apprendimento da parte degli studenti.

La Figura 8 illustra questa differenza per i due laboratori. In particolare, nell’ultima parte del periodo monitorato si può osservare l’efficacia dell’unità di ventilazione dell’Aula TERM-2 nel ridurre la differenza di concentrazione di CO2 tra aria interna ed esterna rispetto all’Aula TERM-1.

Monitoraggio settimanale dei dati durante il periodo di riscaldamento

La Figura 9 e la Figura 10 presentano i dati giornalieri di temperatura dell’aria interna, umidità relativa e concentrazione di CO2 per i due laboratori durante una settimana del periodo di riscaldamento. Come accen -

(a) (b)
FIGURA 12 (a) Potenza termica ed elettrica settimanale (durante il periodo di riscaldamento); (b) COP e modalità di funzionamento dell’unità di ventilazione
FIGURA 11 Dati settimanali (durante il periodo di riscaldamento) della differenza di concentrazione di CO2 tra ambiente interno ed esterno per i due laboratori
(a)
(b)
FIGURA 10 (a) Dati settimanali (durante il periodo di riscaldamento) della temperatura dell’aria esterna, umidità relativa e concentrazione di CO2; (b) Energia elettrica consumata dall’unità di ventilazione

L’articolo è stato presentato alla “53rd AiCARR International Conference - From NZEB to ZEB: the buildings for the next decades for a healthy and sustainable future”, che si è tenuta a Fiera Milano, Rho (MI) - MCE 2024 dal 12 al 14 marzo 2024.

BIBLIOGRAFIA

[1] WHO, 2020. World Health Organization (2020). Water, sanitation, hygiene, and waste management for the COVID-19 virus. Interim guidance

[2] WHO, 2021. World Health Organization (2021). Roadmap to improve and ensure good indoor ventilation in the context of COVID-19. Licence: CC BY-NC-SA 3.0 IGO. ISBN 978-92-4-002128-0

[3] E.C. Riley, G. Murphy, R.L. Riley, Airborne spread of measles in a suburban elementary school. Am. J. Epidemiol., 107(5), 421–432 (1978). https://doi.org/10.1093/oxfordjournals.aje. a112560

[4] L. Gammaitoni, M.C. Nucci, Using a Mathematical Model to Evaluate the Efficacy of TB Control Measures. Emerg. Infect. Dis., 3(3), 335-342 (1997), https://doi.org/10.3201/eid0303.970310

[5] A. Cavallini, F. Busato, F. Pregliasco, Modeling SARS-CoV-2 Infection Risk in Various Office Building HVAC Systems. ASHRAE Journal, 65(7), 52-63 (2023)

[6] N. Agarwal, C.S. Meena, B.P. Raj, L. Saini, A. Kumar, N. Gopalakrishnan, A. Kumar, N.B. Balam, T. Alam, N.R. Kapoor, Aggarwal V, Indoor air quality improve-ment in COVID-19 pandemic: Review. Sustainable Cities and Society, 70, 102942 (2021), https://doi.org/10.1016/j.scs.2021.102942

[7] G. Buonanno, L. Morawska, L. Stabile, Quantitative assessment of the risk of airborne transmission of SARS-CoV-2 infection: Prospective and retrospective applications. Environ. Int, 145, 106112 (2020), https://doi.org/10.1016/j.envint.2020.106112

[8] N. Mao, C.K. An, L.Y. Guo, M. Wang, L. Guo, S.R. Guo, E.S. Long, Transmission risk of infectious droplets in physical spreading process at different times: A review. Building and Environment, 185, 107307 (2020), https://doi.org/10.1016/j.buildenv.2020.107307

[9] E. Lepore, P. Aguilera Benito, C. Pina Ramirez, G. Viccione, Indoors ventilation in times of confinement by SARS-CoV-2 epidemic: A comparative approach between Spain and Italy. Sustainable Cities and Society, 72, 103051 (2021), https://doi.org/10.1016/j.scs.2021.103051

[10] N.R. Kapoor, A. Kumar, C.S. Meena, A. Kumar, T. Alam, N.B. Balam, A. Ghosh, A Systematic Review on Indoor Environmental Quality in Naturally Ventilated School Classrooms: A Way Forward, Advances in Civil Engineering, 2021, 8851685 (2021), https://doi.org/10.1155/2021/8851685

[11] T. Mori, T. Akamatsu, K. Kuwabara, Comparison of Indoor Environment and Energy Consumption before and after Spread of COVID-19 in Schools in Japanese Cold-Climate Region. Energies, 15(5), 1781 (2022), https://doi.org/10.3390/en15051781

[12] I. Rodríguez-Vidal, J. Otaegi, U. Armengod, Evaluating the Feasibility of Hybrid Ventilation in Educational Spaces: A Simulation Study in the Basque Country Climate. Environmental and Climate Technologies, 27(1), 532-544 (2023), https://doi.org/10.2478/rtuect-2023-0039

[13] F. Busato, A. Cavallini, Window Opening or Mechanical Ventilation Systems for Italian Schools? Energetic Aspects, CO2 Concentration and Infection Risk Assessment Based on the SARS-CoV-2 Data. Buildings, 13(7), 1743 (2022), https://doi.org/10.3390/buildings13071743

[14] L. Schibuola, C. Tambani, Performance comparison of heat recovery systems to reduce viral contagion in indoor environments. Applied Thermal Engineering, 190, 116843 (2021), https:// doi.org/10.1016/j.applthermaleng.2021.116843

[15] M. Noro, C. Zilio, Heat recovery in ventilation systems in different climates: energy and economic comparison in old and new schools in COVID-19 pandemic conditions. Science and Technology for the Built Environment, 28(7), 864-885 (2022), https://doi.org/10.1080/2374473 1.2022.2067423

[16] Italian Government. 1975. Updated technical standards relating to school buildings, including didactic, building and urban planning functionality indices, to be observed in the execution of school building works (in Italian, “Norme tecniche aggiornate relative all’edilizia scolastica, ivi compresi gli indici di funzionalità didattica, edilizia ed urbanistica, da osservarsi nella esecuzione di opere di edilizia scolastica”)

[17] UNI.2019. UNI EN 16798-1:2019. Energy performance of buildings - Ventilation for buildings - Part 1: Indoor environmental input parameters for design and assessment of energy performance of buildings addressing indoor air quality, thermal environment, lighting and acoustics - Module M1-6. UNI. Milano

nato nel paragrafo precedente, le curve di temperatura e umidità mostrano un comportamento abbastanza simile nelle due aule. Da questi dati e dalla Figura 11 si osserva che in alcune giornate la concentrazione di CO2 nell’Aula TERM-2 non diminuisce rispetto all’Aula TERM-1: ciò potrebbe essere causato da un particolare “effetto camino” dovuto alla contemporanea apertura delle finestre e della porta del laboratorio che richiamano aria dal corridoio.

La Figura 12 presenta la potenza termica ed elettrica dell’unità di ventilazione e il suo COP durante i tre giorni di funzionamento della settimana considerata.

Conclusioni

Dopo la pubblicazione di numerosi lavori teorici e sperimentali (basati sui dati delle infezioni), l’analisi dei dati forniti da un sistema di monitoraggio è stata utile per una migliore comprensione della ventilazione meccanica in un ambiente come un’aula scolastica, delle sue capacità e dei suoi limiti.

L’analisi ha evidenziato come non tutti i risultati possono essere completamente giustificati utilizzando le informazioni disponibili, e alcuni di questi non sono conformi alle aspettative (vedi commenti per Figura 9 e Figura 11). Alcune azioni migliorative potrebbero essere opportune come, ad esempio, aumentare il numero di sensori di CO2 negli ambienti per monitorarne la distribuzione della concentrazione e calcolare l’effettivo “tasso di ricambio d’aria”, nonché eventuali fenomeni di stratificazione o di cortocircuito nella ventilazione.

Ciononostante, i risultati sperimentali presentati rappresentano un interessante punto di partenza per lo studio dell’efficienza della ventilazione in un’applicazione reale e uno stimolo per future indagini.n

* Marco Noro, Università degli Studi di Padova, Dipartimento di Tecnica e Gestione dei sistemi industriali

Filippo Busato, Università Mercatorum, Facoltà di Scienze e Innovazione Tecnologica

Luca Alberto Piterà, AiCARR

Il futuro dei terminali idronici per il comfort: focus sugli impatti previsti dalla nuova EPBD

L’articolo illustra attraverso una apposita “Balanced Scorecard” quali possono essere le caratteristiche vincenti che premieranno nel futuro i terminali per il comfort idronici per la climatizzazione a ciclo annuale

J. Gandini*

Nella rinnovata impiantistica per il comfort a basso e bassissimo consumo di energia primaria, sempre più orientata a una climatizzazione a ciclo annuale e sempre più alimentata da fonti termiche ed elettriche di energia rinnovabile, i terminali per il

comfort assumo un ruolo nuovo che porta cambiamenti sostanziali per chi progetta o realizza edilizia efficiente. Il presente studio, presentato in occasione del 53° Convegno Internazionale

AiCARR (Milano, 14 marzo 2024) tratta la tematica relativa alle peculiarità dei terminali per il comfort, non solo dedicati al riscaldamento e alla climatizzazione estiva ma anche al ricambio d’aria,

con un forte orientamento a criteri di decarbonizzazione e di elevato impiego di materiali riciclati e riciclabili. Con un numero crescente di Stati, città e organizzazioni che si impegnano per ridurre le emissioni del settore civile entro metà di questo secolo, come definito dalla direttiva 31/2010 e s.m.i., gli edifici a energia quasi zero (NZEB - Nearly Zero Energy Buildings) sono ormai uno standard per molti paesi, come l’Italia.

La rifusione della Direttiva sulla prestazione energetica nell’edilizia (EPBD) (UE/2024/1275), adottata nel maggio 2024, aumenta ulteriormente i requisiti di prestazione energetica per i nuovi edifici. Prevede che tutti i nuovi edifici residenziali e non residenziali siano edifici a emissioni zero a partire dal 1º gennaio 2028 per gli edifici di proprietà di enti pubblici e dal 1º gennaio 2030 per tutti gli altri nuovi edifici, con possibilità di specifiche deroghe, introducendo di fatto il concetto di Zero-emission buildings (ZEB).

Questi edifici ad alta efficienza energetica e a basso impatto ambientale, insieme a numerosi vantaggi, portano alla materializzazione di nuove esigenze che hanno un impatto significativo sulla struttura e sugli impianti per il comfort di cui fanno parte le unità terminali per il comfort situate nei vari ambienti interni agli edifici.

Nell’edilizia energeticamente efficiente e super-efficiente si assiste, infatti, a una crescente preoccupazione per i fenomeni di surriscaldamento (il cosiddetto “over-heating”) e questo fenomeno, in generale, si inizia già a notare per il fatto che gli impianti di condizionamento e deumidificazione, nella maggior parte dei casi, devono essere avviati già in primavera e utilizzati fino all’autunno inoltrato, allargando di fatto la stagione della climatizzazione estiva,

con riduzioni importanti delle necessità di riscaldamento, grazie a involucri edilizi che trattengono buona parte del calore all’interno dell’edificio.

Il riscaldamento, dunque, diventa meno rilevante in termini quantitativi, grazie al maggior grado di isolamento dell’involucro edilizio e in tale condizione, l’inerzia termica può diventare un problema: per questa ragione i tanto diffusi e confortevoli pavimenti radianti, a causa della loro insita inerzia, in questi anni stanno avendo non pochi problemi applicativi, che ne stanno limitando talvolta l’impiego in edilizia NZEB. In queste nuove condizioni, dettate da costruzioni con un criterio di elevata efficienza energetica, diventa strategico avere a disposizione una nuova generazione di unità terminali per il comfort indoor che tengano conto degli stringenti requisiti energetici, funzionali, igienici e di sostenibilità degli edifici decarbonizzati.

Anche la ventilazione vede crescite rilevanti nell’edilizia moderna ed efficiente, a tal punto che ancora oggi ci

si domanda per quale motivo dobbiamo avere spesso impianti separati per la ventilazione e il riscaldamento invernale e la climatizzazione estiva.

Sempre più, infatti, ci si aspetta che queste tre esigenze siano strettamente correlate e che presto o tardi tenderanno a essere risolte da terminali per il comfort di nuova generazione in grado di assolvere a tutte e tre le funzioni (Figura 1).

Oggigiorno le travi fredde costituiscono un buon esempio di terminale per il comfort trivalente, addirittura in grado di lavorare con scambi termici solo sensibili e dunque eliminando la necessità di vaschette di raccolta e scarico condensa dagli ambienti confinati (che possono diventare accumulo di sporcizia se non opportunamente manutenute, pulite e igienizzate). Uno svantaggio delle travi fredde è che, occupando spesso buona parte del soffitto disponibile, sono poco o nulla utilizzate al di fuori degli edifici per la collettività.

A risolvere tale limite sono in arrivo “soluzioni trivalenti” di nuova generazione simili ai fan-coils, anch’esse in grado di effettuare tutti e tre i servizi (riscaldamento, condizionamento, rinnovo e purificazione dell’aria) ma notevolmente più versatili delle travi fredde poiché applicabili a parete o a soffitto come un normalissimo fan coil.

È questo il caso, ad esempio, di un Brevetto Europeo nel campo dei terminali per il comfort pensati per l’edilizia NZEB [1].

FIGURA 1 Esempio di tipico sistema di riscaldamento invernale e di climatizzazione estiva (in questo caso con climatizzatore split in pompa di calore), separato e indipendente dall’impianto di rinnovo e purificazione dell’aria (bocchetta di mandata aria sovrastante l’unità). Molti esperti ritengono che ben presto le tre esigenze di riscaldamento invernale, climatizzazione estiva, rinnovo e purificazione dell’aria, saranno trattate da un unico terminale polivalente, in grado di ottimizzare i trattamenti (prendendo beneficio anche del “Ventilative Cooling”)

In questo contesto, il presente articolo si concentra sull’analisi di quali potrebbero essere le caratteristiche tecniche rilevanti nelle unità terminali per il comfort interno agli edifici, per soddisfare i requisiti NZEB e ZEB nei prossimi decenni.

Ripensare ai terminali per il comfort

Negli ultimi decenni, in funzione dell’evoluzione legislativa e normativa, relativa alla decarbonizzazione edilizia e all’efficienza energetica, e al conseguente affinamento della tecnica costruttiva degli edifici, si può constatare che il futuro dell’edilizia, almeno in Europa nella prospettiva 2030-2050, implica soluzioni estremamente efficienti che consumino circa il 50% in meno di energia rispetto agli attuali edifici a basso consumo energetico e mediamente anche il 75% - 90% (Figura 2) in meno rispetto a quelli costruiti negli anni ’70/’80.

Questo drastico cambiamento, già delineato fin dalle prime revisioni della EPBD del 2010, ha un impatto in tutte le parti dei sistemi per il comfort termo-igrometrico; diverse esperienze negli ultimi 10-15 anni stanno dimostrando il concetto che le unità terminali di comfort interno si troveranno ad affrontare un cambiamento rilevante nell’immediato futuro, perché NZEB e ZEB richiedono un approccio diverso al comfort all’interno dell’edificio come espresso in alcune autorevoli pubblicazioni scientifiche [2][3].

Il comfort all’interno degli edifici energeticamente molto effi cienti comprende oggigiorno non solo le semplici operazioni di riscaldamento invernale e condizionamento estivo dell’aria, ma anche sempre più ventilazione, umidificazione e/o deumidificazione a seconda delle caratteristiche del clima esterno, delle caratteristiche dell’involucro edilizio e dell’attività svolta all’interno degli edifici, che in generale non sono tutti gestiti da un’unica tipologia di unità terminali. Talvolta, infatti, più sistemi coinvolgono diverse tipologie di unità terminali per il comfort, il che, in molti casi, potrebbe generare ridondanza di unità terminali e sistemi.

Parliamo, ad esempio, nel settore residenziale di soluzioni ampliamente utilizzate talvolta ridondanti che prevedono per il riscaldamento, a titolo esemplificativo e non esaustivo, la presenza di radiatori ad acqua (alta velocità di reazione e bassa inerzia) o pavimenti radianti (generalmente maggior comfort termico rispetto ai radiatori e migliori prestazioni a livello SCOP, quando abbi-

FIGURA 2 Interpretazione grafica della lungimirante definizione NZEB secondo gli articoli 2 e 9 della EPBD del 2010, ancora di grande attualità per comprendere come la visione europea sia stata davvero molto chiara fin dall’inizio dell’era dell’efficienza energetica in edilizia. Fonte: Concerted Action EPBD (CA EPBD) [4] un’iniziativa congiunta tra gli Stati membri dell’UE e la Commissione europea. Coinvolge rappresentanti dei ministeri nazionali o delle loro istituzioni affiliate, incaricati di preparare il quadro tecnico, giuridico e amministrativo per la direttiva sulla prestazione energetica nell’edilizia in ciascuno Stato membro dell’UE

nati a pompe di calore, a scapito di inerzia talvolta poco conciliabile con le esigenze di edifi ci ZEB ed NZEB), ventilazione meccanica VMC per il rinnovo dell’aria e condizionatori split per il raffreddamento, con potenziale funzione di riscaldamento ridondante (essendo ormai tutti gli split in pompa di calore).

Tutto questo può generare spreco di risorse planetarie (come nel caso di impianti diversi, ma con funzioni simili e talvolta sovrapposte), elemento sempre più insostenibile per lo sconsiderato uso di materiali e tecnologie che, visto l’aumento della popolazione mondiale, diventeranno sempre più preziose e da tutelare.

I sistemi per il comfort termoigrometrico, al fine di generare un comfort adeguato per le persone, sono sostanzialmente composti da quattro sottosistemi:

1. produzione/trasformazione di energia (per esempio generazione di energia termica e frigorifera, energia ottenuta da recupero di calore, ecc.); 2. distribuzione di energia tramite fluidi

vettori (quali, per esempio, acqua, aria, gas refrigeranti, ecc.);

3. diffusione dell’energia tramite unità terminali per il comfort all’interno degli edifici (ad esempio per convezione, conduzione, irraggiamento o misti);

4. controllo tramite dispositivi per la gestione del comfort (quali, a titolo esemplificativo: centraline di controllo, cronotermostati, radiocomandi, web controller, ecc.).

Tutte queste quattro parti sono interessate dall’evoluzione dell’impiantistica e dell’edilizia efficiente 2030-2050 secondo quanto previsto dalla recente EPB (UE/2024/1275) e dalle tematiche dello SRI (Smart Readiness Indicator) [5][6]. Nel presente articolo ci occuperemo del punto “3) unità terminali per il comfort all’interno degli edifici”, quali per esempio: termosifoni o radiatori, termoarredi, termoconvettori, riscaldamento a battiscopa, pannelli radianti (es. pavimento, parete, soffitto, ecc.), ventilconvettori, travi fredde attive/passive e altre nuove soluzioni volte a migliorare il comfort e ridurre il consumo energe-

FIGURA 3 Immagine esemplificativa che mostra chiaramente come i carichi frigoriferi siano presenti sia nel periodo estivo che in tutte le stagioni intermedie e questo richiederà in futuro una maggiore elasticità e una bassa inerzia al sistema HVAC, con un grande impatto sui terminali per il comfort. Le esperienze acquisite con gli edifici costruiti a bassissimo consumo e le simulazioni dettagliate degli edifici ZEB ed NZEB insegnano che è necessario un approccio attento e integrato nella progettazione di sistemi di riscaldamento e raffreddamento per edifici a energia zero o quasi zero. Fonte: REHVA Journal [7]

dovrebbe essere ottimizzato durante la progettazione dell’edificio. Chiaramente misure passive come gli ombreggiamenti solari (specie quelli di tipo dinamico o cosiddetti intelligenti, privilegiati dallo SRI), la geometria e l’orientamento dell’edificio dovrebbero essere sempre sfruttate al massimo, ma molte esperienze dimostrano crescente preoccupazione per il fenomeno del surriscaldamento o cosiddetto “over-heating” negli edifici ben isolati. Spesso l’over-heating non si limita nemmeno ai caldi mesi estivi. Tipicamente, gli apporti termici provenienti dal sole (dovuti spesso alle ampie superfici vetrate, sempre più utilizzate anche nel residenziale) possono iniziare a generare over-heating già a febbraio, marzo e aprile con un andamento simile in autunno (Figura 3).

L’accumulo di calore, che entra nell’edificio sotto forma di radiazione solare attraverso le finestre, può essere di diverse centinaia di W/m², superando ampiamente il fabbisogno termico dell’edificio. Gli apporti di calore provenienti dal sole combinati con gli apporti di calore interni creano la nuova necessità di raffreddamento, anche nelle stagioni più fredde.

tico, adattandosi in maniera efficiente e ingegnosa alle esigenze attuali e future di NZEB e ZEB.

Riscaldamento e raffreddamento negli edifici efficienti

Progettare un clima interno adeguato negli edifici NZEB, oltre al vantaggio ambientale, implica diverse sfide. Esiste una grande necessità di adattare le modalità di erogazione del comfort negli edifici efficienti poiché innanzitutto essi necessitano di una piccola quantità di energia per il riscaldamento.

È necessario pianificare strategie di ventilazione, riscaldamento e raffreddamento al fine di massimizzare l’uso di fonti rinnovabili e quindi limitare l’impatto ambientale. L’energia necessaria deve essere fornita utilizzando le fonti energetiche il più possibile economiche e rispettose dell’ambiente.

Negli edifici ben isolati e dotati di recupero di calore, il sistema di riscaldamento deve funzionare sulla base di un fabbisogno termico medio molto basso, pur rimanendo affidabile ed efficiente dal punto di vista energetico durante i periodi di picco di carico.

Il miglioramento dell’involucro termico riduce mediamente il tempo di funzionamento annuale per il riscaldamento, ma le situazioni di carico di picco devono essere progettate con molta attenzione per garantire un’adeguata capacità del sistema di coprire determinati momenti (esempio nel picco stagionale in fase di avviamento impianto). Un’altra sfida, sempre più importante negli ultimi anni, è ottimizzare l’involucro termico e l’architettura in modo tale da ridurre al minimo i carichi di raffreddamento estivi.

In linea di principio e di fatto, l’uso dell’energia per il riscaldamento, la ventilazione e il raffreddamento

Diverse tendenze indicano che la necessità di raffreddamento negli edifici residenziali è generalmente in aumento. Ciò è dovuto in parte al fatto che si verificano condizioni climatiche più estreme con estati più calde, in parte all’aumento delle esigenze delle persone in termini di comfort interno e, ultimo ma non meno importante, ai regolamenti edilizi a basso consumo energetico con requisiti più severi di tenuta e isolamento che hanno comportato, come contropartita un aumento generalizzato dei carichi di raffreddamento durante il periodo estivo.

La tecnologia della pompa di calore è ampiamente utilizzata nelle case a basso consumo energetico e rappresenta un modo importante per ridurre il consumo di energia primaria. L’efficienza complessiva delle pompe di calore dipende fortemente dalla temperatura di mandata nell’impianto di riscaldamento e raffreddamento. In generale più bassa è la temperatura di alimentazione (in inverno) e più alta è la temperatura di alimentazione (in estate), maggiore è l’efficienza energetica di sistema e questo è un input estremamente importante per qualsiasi evoluzione tecnica di unità terminali per il comfort interno agli edifici in ottica 2030-2050, così come la necessità di utilizzare il “ventilative cooling” anche attraverso i terminali per il comfort che allo stato attuale, spesso, non sono in grado di supportare.

Tipologie maggiormente diffuse in Europa di terminali idronici per il comfort

In Europa (a differenza di molti paesi orientali che utilizzano normalmente sistemi ad espansione diretta, come ad esempio, i condizionatori split in pompa di calore e degli Stati Uniti che utilizzano da sempre in larga misura sistemi cosiddetti “air side”) sono presenti sul mercato diverse unità terminali per il comfort indoor che utilizzano aria e acqua come fluidi vettori, per diffondere energia nei diversi ambienti interni.

La loro diffusione su larga scala è avvenuta in fasi successive alla fine del diciannovesimo secolo, a partire dai termosifoni, praticamente oggi presenti in quasi tutte le abitazioni europee, per arrivare fino ai giorni nostri con varie evoluzioni, ma sempre subordinati al fatto di potere fare solo riscaldamento.

Col passare degli anni e con un grande impulso a partire dagli anni 1960/2000 sono state introdotte sul mercato moltissime altre unità terminali per il comfort indoor e le tipologie analizzate nel presente articolo, largamente diffuse in Europa, utilizzano spesso acqua come fluido vettore. Di seguito sono elencate a titolo esemplificativo e non esaustivo:

(A) Termosifoni o Radiatori (Figura 4)

(B) Termoarredi (Figura 5)

(C) Termoconvettori (Figura 6)

(D) Terminali a battiscopa (Figura 7)

(E) Soluzioni radianti (Figura 8)

(F) Ventilconvettori (Figura 9)

(G) Ventilconvettori ultrasottili (Figura 10)

(H) Travi fredde attive/passive (Figura 11)

(I) Terminali Trivalenti Innovativi (Figura 12)

Per meglio comprendere la segmentazione dei prodotti, le suddette nove tipologie di unità terminali per il comfort sono state suddivise in tre categorie principali:

• tradizionale “solo riscaldamento”

• tradizionale “riscaldamento e raffrescamento”

• polivalente / innovativo “riscaldamento, raffrescamento e rinnovo e purificazione dell’aria”.

Terminali per il comfort tradizionali “Solo riscaldamento”

(A) Termosifoni o radiatori

• Funzionano solo in regime invernale.

• Terminali largamente utilizzati in ogni tipo di edificio.

• La temperatura di alimentazione dell’acqua varia spesso tra i 65 °C (negli impianti più moderni) e gli 80 °C (tipicamente negli impianti antecedenti gli anni ’90, costruiti prima dell’entrata in vigore della legge 10/91).

Vantaggi:

• soluzione molto semplice ed economica in fase di realizzazione; molto reattivi e a bassa inerzia.

Svantaggi:

• funzionano solo in riscaldamento (per il condizionamento è necessario dotare l’abitazione di un impianto aggiuntivo);

• comfort spesso basso perché fonte di calore concentrata;

• non gestiscono il rinnovo dell’aria ormai necessario negli edifici ad alta efficienza energetica, per il quale si è costretti all’installazione di un ulteriore sistema VMC di rinnovo e purificazione dell’aria.

(B) Termoarredi

• Funzionano solo in regime invernale.

• Terminale largamente utilizzato in bagni e lavanderie, più per scopi estetici e funzionali (scalda-salviette) e solo secondariamente per il riscaldamento.

• La temperatura di alimentazione varia normalmente tra 40 e 60 °C e l’acqua torna al generatore con circa 10 °C in meno.

• Appartengono al gruppo dei termosifoni o radiatori ma sono appositamente studiati per i bagni (in particolare per consentire l’asciugatura di asciugamani) o per locali ad alto contenuto di design.

Vantaggi:

• soluzione spesso molto gradevole esteticamente.

Svantaggi:

• funzionano solo in riscaldamento (per il condizionamento è necessa -

FIGURA 4 Alcune immagini non esaustive dei principali radiatori che si possono trovare sul mercato: (a) radiatori in ghisa a Colonna, (b) radiatori in ghisa conformati a piastre frontali, (c) radiatori in alluminio, (d) radiatori in acciaio)
(a) (c)
(b) (d)

FIGURA 5 Immagine non esaustiva di termoarredi, tipicamente utilizzate nei bagni e lavanderie

rio dotare l’abitazione di un impianto aggiuntivo);

• la resa termica è talvolta messa in secondo piano rispetto all’aspetto estetico;

• non gestiscono il rinnovo dell’aria ormai necessario negli edifici ad alta efficienza energetica, per il quale si è costretti all’installazione di un ulteriore sistema VMC di rinnovo e purificazione dell’aria.

(C) Termoconvettori

• Funzionano di solito solo in regime invernale.

• Terminali di impiego molto limitato nel Sud Europa. Sono, invece, più diffusi nei Paesi del Nord Europa, specie negli edifici pubblici. Vantaggi:

• soluzione spesso molto compatta.

• la resa termica è più alta rispetto a quella dei termosifoni classici e la messa (a) (b)

FIGURA 6 Immagine non esaustiva di termoconvettori, tipicamente utilizzate in ambienti non residenziali: (a) termoconvettore, (b) termoconvettore da incasso a pavimento

FIGURA 7 Immagine non esaustiva di terminali a battiscopa, recentemente rivalutati per l’interessante adattabilità alle esigenze degli edifici energeticamente efficienti, in tema di solo riscaldamento

a regime è normalmente più rapida.

Svantaggi:

• funzionano molto spesso solo in riscaldamento (per il condizionamento è necessario dotare l’abitazione di un impianto aggiuntivo);

• discomfort: forzando la convezione naturale in maniera consistente (rispetto ai radiatori) i termoconvettori movimentano aria in modo assai cospicuo, comportando quasi sempre che l’aria a uno/due metri da terra sia notevolmente più calda di quella a pavimento;

• non gestiscono normalmente il rinnovo dell’aria ormai necessario negli edifici ad alta efficienza energetica, per il quale si è costretti all’installazione di un ulteriore sistema VMC di rinnovo e purificazione dell’aria.

(D) Terminali a battiscopa

• Funzionano solo in regime invernale.

• Tipologia di terminale raramente impiegata.

• I terminali a battiscopa sono alimentati di solito con acqua calda a media temperatura tra 50 e 60 °C. Il calore emanato attraverso i battiscopa risale lungo le pareti, parzialmente riscaldandole; queste a loro volta rilasciano calore all’ambiente per irraggiamento.

Vantaggi:

• soluzione spesso molto compatta rispetto a radiatori e termoconvettori;

• migliore percezione di comfort rispetto a radiatori e termoconvettori poiché l’emissione è più distribuita.

Svantaggi:

• funzionano solo in riscaldamento (per il condizionamento è necessario dotare l’abitazione di un impianto aggiuntivo);

• esigenze funzionali che impongono di lasciare libera la parete in cui sono installati (con le moderne costruzioni dotate spesso di spazi limitati può essere un vincolo alla flessibilità di utilizzo);

• non gestiscono il rinnovo dell’aria ormai necessario negli edifici ad alta efficienza energetica, per il quale si è costretti all’installazione di un ulteriore sistema VMC di rinnovo e purificazione dell’aria.

Terminali per il comfort tradizionali “riscaldamento e raffrescamento”

(E) Pannelli radianti

• Possono funzionare sia in regime invernale che estivo.

• Terminali largamente utilizzati nelle abitazioni di nuova costruzione dagli anni ’90 (specie dopo l’entrata in vigore

della legge 10/91), soprattutto in riscaldamento al posto dei tradizionali impianti a radiatori. Impiegati anche come impianti di condizionamento sensibile, necessitano di essere abbinati a unità di deumidificazione.

• Installazione di tipo a pavimento (per solo utilizzo in riscaldamento) nella maggior parte dei casi, ma in rapida diffusione anche a parete e a soffitto.

• La temperatura di alimentazione dell’acqua calda varia normalmente dai 30 ai 35 °C (salto termico tipico 5 °C) per il funzionamento invernale, quella dell’acqua fredda tipicamente dai 18 ai 23 °C (salto termico tipico 5 °C) per il funzionamento estivo, il che massimizza la resa degli impianti in pompa di calore.

(F) Ventilconvettori

• Funzionano sia in regime invernale che estivo.

• Terminali tradizionali largamente utilizzati nelle applicazioni commerciali e del terziario come uffici e negozi, impiegati marginalmente nel residenziale a causa del basso comfort percepito nel funzionamento invernale (potenziali rischi di stratificazione dell’aria).

• Installazione di tipo a pavimento e/o a incasso nell’80% dei casi, esistono modelli anche a parete e soffitto, questi ultimi quasi esclusivamente dedicati al terziario.

• La temperatura di alimentazione dell’acqua calda varia normalmente dai 55 ai 45 °C (salto termico tipico 5-10 °C), quella dell’acqua fredda dai 7 ai 12 °C (salto termico tipico 5 °C).

• Per propria caratteristica costruttiva, i ventilconvettori, sia in estate che in inverno, generano un getto d’aria concentrato che fuoriesce dalla griglia di mandata, tipicamente posizionata sulla parte superiore dell’unità, che può in talune condizioni generare discomfort oltre che essere collettore di polvere, che si deposita all’interno dell’unità, durante i periodi di non funzionamento, se le unità non sono provviste di serrandine di chiusura automatiche.

(G) Ventilconvettori ultrasottili “slim”

• Terminale che partendo da una configurazione tipo Fan Coil, sta evolvendo e si sta innovando attraverso soluzioni combinate con mantello radiante, che ne migliorano, specie per le soluzioni “slim” (a basso spessore) le possibilità di eccellente applicazione degli impianti in pompa di calore anche negli edifici ZEB ed NZEB. Si tratta di soluzioni in grande sviluppo e diffusione.

FIGURA 8 Esempio di tipico pavimento radiante, recentemente meno diffusi a causa della loro tendenziale inerzia termica, spesso inaccettabile, nell’edilizia ZEB ed NZEB

10 Immagine non esaustiva di tipico ventilconvettore a mantello radiante, molto diffusi di recente, per la loro migliore adattabilità alle esigenze dell’edilizia ZEB ed NZEB

Terminali per il comfort tradizionali polivalenti / innovativi “riscaldamento, raffrescamento e rinnovo e purificazione dell’aria”

(H) Travi fredde attive e passive

• Funzionano sia in regime invernale che estivo.

• Terminali di impiego molto limitato nel Sud Europa, ma in via di sviluppo moderato, specie nel terziario e nel commerciale. Molto diffusi invece nei Paesi del Nord Europa, specie negli edifici pubblici.

• La temperatura di alimentazione dell’acqua fredda, nella stagione estiva varia normalmente dai 14, 18 e 23 °C mentre per la stagione invernale varia dai 30 ai 45 °C.

• La trave fredda è un terminale di diffu-

sione che viene normalmente fissato al soffitto dei locali cui è destinato e lavora solo in sensibile, gestendo il grado di umidità con immissione di aria esterna a tassi di umidità controllati.

(I) Terminali trivalenti innnovativi

• Eesistono nuove soluzioni che conciliano le caratteristiche positive delle travi fredde con la flessibilità applicativa dei ventilconvettori. Una di queste è la soluzione brevettata [1], per Terminali Innovativi con Tecnologia Microchannel e rinnovo e purificazione dell’aria, integrati tramite collegamento per ogni unità terminale a centralina di trattamento aria con recupero calore di tipo a incasso, per applicazioni di riscaldamento e raffreddamento che utilizzano acqua

FIGURA 9 Immagine non esaustiva di tipico ventilconvettore a pavimento
FIGURA
FIGURA 11 Immagine non esaustiva di tipica trave fredda; si nota la bocca di presa aria di rinnovo aria

anche in raffreddamento e riscaldamento sensibili, questa soluzione può contribuire sostanzialmente a buone prestazioni energetiche stagionali (ad esempio SEER e SCOP) sul lato della generazione di riscaldamento e raffreddamento quando, ad esempio, viene utilizzata in combinazione con pompe di calore reversibili. Ottimi risultati nel controllo della IAQ (Indoor Air Quality) in un'unica unità terminale poiché gestisce stanza per stanza (come previsto dallo SRI) i livelli di CO2 e VOC

Analisi comparativa delle diverse soluzioni di terminali per il comfort per edifici NZEB e ZEB, basata sulla metodologia della “Balanced Scorecard”

ANALISI COMPARATIVA

DELLE DIVERSE SOLUZIONI

DI TERMINALI PER IL

COMFORT PER EDIFICI NZEB

E ZEB, BASATA SULLA

METODOLOGIA DELLA

“BALANCED SCORECARD ”

In base agli elementi sopra menzionati, valutando opportunamente vantaggi e svantaggi dei diversi terminali per il comfort in ottica futura ZEB ed NZEB prevalente, lo studio dal titolo “Analysis of the relevant technical characteristics in indoor comfort terminal units for the purpose of satisfying the demanding energy, functional, hygienic and sustainability requirements of NZEB and ZEB buildings”, presentato in occasione del 53° Convegno Internazionale AICARR, ha messo in evidenza nove indicatori di rilevanza per i terminali per il comfort che possono offrire un interessante punto di vista (Tabella 1).

In base agli elementi sopra menzionati, valutando opportunamente vantaggi e svantaggi dei diversi terminali per il comfort in ottica futura ZEB ed NZEB prevalente, lo studio dal titolo “Analysis of the relevant technical

TABELLA 1 La tabella tratta, in lingua originale, dalla relazione presentata dal presente Autore in occasione del 53o Convegno Internazionale AICARR, tenutosi a Milano il 14 marzo 2024, mette per la prima volta in relazione tematiche di: comfort, efficienza energetica, salubrità e sostenibilità dei terminali per il comfort guardando alle esigenze dell’edilizia ZEB ed NZEB in ottica 2030-2050

characteristics in indoor comfort terminal units for the purpose of satisfying the demanding energy, functional, hygienic and sustainability requirements of NZEB and ZEB buildings” (presentato in occasione del 53° Convegno Internazionale AICARR, tenutosi a Milano il 14 marzo 2024, presso il Centro Congressi Stella Polare del quartiere fieristico Rho Fiera Milano al Convegno Internazionale) ha messo in evidenza 9 indicatori di rilevanza per i terminali per il comfort, come segue in tabella 1, che possono offrire un interessante punto di vista

Non hanno particolari problemi di spazio in quanto la tecnologia di scambio termico a microcanale offre il più alto rapporto di scambio termico (kW/m3 di volume unitario) Vs. tecnologia tradizionale a tubi e alette.

I materiali utilizzati sono principalmente alluminio e polistirolo, facili da pulire (per la concezione dell'unità, completamente igienizzabile), ampiamente reperibili e altamente riciclabili.

a temperature moderate (ad esempio, 18-23 °C / 35-30 °C) come vettore termico per fornire la funzione di riscaldamento nella stagione invernale e la funzione di raffreddamento nella stagione estiva. Poiché progettata per funzionare anche in raffreddamento e riscaldamento sensibili, questa soluzione può contribuire sostanzialmente a buone prestazioni energetiche stagionali (ad esempio SEER e SCOP) sul lato della generazione di riscaldamento e raffreddamento quando, ad esempio, viene utilizzata in combinazione con pompe di calore reversibili. Ottimi risultati nel controllo della IAQ (Indoor Air Quality) in un’u(kW/m3 di volume unitario) vs. tecnologia tradizionale a tubi e alette.

• I materiali utilizzati sono principalmente alluminio e polistirolo, facili da pulire (per la concezione dell’unità, completamente igienizzabile), ampiamente reperibili e altamente riciclabili.

Figura 12 Immagine a titolo esemplificativo e non esaustivo di Innovativo Terminale per il comfort brevettato (Studio GANDINI, Verona –Brevetto Italiano ottenuto nel 2016 e Brevetto Europeo ottenuto nel 2023) di tipo trivalente, in grado di provvedere ai fabbisogni termici con trattamenti anche solo sensibili (sia in estate che in inverno) grazie a scambiatori ad elevatissima superficie di scambio primaria, che consentono rese impareggiabili e rinnovo aria stanza per stanza

1

2

3

4

5

6

7

8

9

The indoor comfort terminal units must be able to diffuse both heating and cooling, in this way, with a single type of indoor comfort terminal unit, it will be possible to cover the annual cycle climatization needs of NZEBs.

The indoor comfort terminal units that use water at moderate temperatures (e.g. 35-30°C / 18-23°C) are preferable as they allow greater energy efficiency of the entire system (in particular SCOP and SEER where heat generation is done through Heat Pumps) and better comfort for users.

The indoor comfort terminal units that use combined heating, cooling, air renewal and purification are preferable, in order to offer to users one single solution for all comfort needs.

The indoor comfort terminal units must have low inertia in order to be able to respond quickly and precisely to changes in comfort demand, which can be very critical in NZEBs.

The indoor comfort terminal units must allow for a quick rampup operation phase, which can be very important in NZEBs (e.g. part/non-predictable use of spaces).

The indoor comfort terminal units must be able to spread the heat without generating stratification or hot or cold currents that could lead to situations of discomfort.

The indoor comfort terminal units must not take up much space in order to leave the surfaces/volumes as available as possible and must integrate pleasantly with the furnishings and interiors.

The indoor comfort terminal units must privilege recycling / recycled materials to satisfy future -proof sustainability protocols.

The indoor comfort terminal units must be easily cleanable for all year-round life cycle, in order to make internal surfaces healthy and sanitized also by normal activity of users and not only with specialized operators.

FIGURA 12 Immagine a titolo esemplificativo e non esaustivo di innovativo Terminale per il comfort di tipo trivalente
Tabella 1 – La tabella tratta, in lingua originale, dalla relazione presentata da Studio GANDINI in occasione del 53° Convegno Internazionale AICARR, tenutosi a Milano il 14 marzo 2024, mette

Considerando tutte le peculiarità delle diverse unità terminali per il comfort e le 9 caratteristiche sopra menzionate, è di interessante ispirazione la “Balanced Scorecard” in

Tabella 2 che presenta una valutazione su tutti gli aspetti rilevanti mappati quali, a titolo d’esempio: efficienza energetica,

funzionalità, requisiti igienici e di sostenibilità degli edifici NZEB e ZEB relativi alle unità terminali per il comfort.

Considerando tutte le peculiarità delle diverse unità terminali per il comfort e le 9 caratteristiche sopra menzionate, è di interessante ispirazione la

seguente “Balanced Scorecard” (Tabella 2) che presenta una valutazione su tutti gli aspetti rilevanti mappati quali a titolo esemplificativo e

TABELLA 2 La tabella riporta la “Balanced Scorecard dei terminali per il comfort in ottica ZEB ed NZEB” presentata in occasione del 53° Convegno Internazionale AICARR (Milano, 14 marzo 2024), con la relazione dal titolo “Analysis of the relevant technical characteristics in indoor comfort terminal units for the purpose of satisfying the demanding energy, functional, hygienic and sustainability requirements of NZEB and ZEB buildings”, mette in relazione le diverse tipologie di terminali per il comfort, dando una chiave di lettura pesata delle varie caratteristiche, con un punteggio complessivo che può aiutare i termotecnici nella scelta del migliore terminale per il comfort a seconda delle diverse soluzioni disponibili sul mercato o in divenire

non esaustivo: efficienza energetica, funzionalità, requisiti igienici e di sostenibilità degli edifici NZEB e ZEB relativi alle unità terminali per il comfort

Traditional (normally) “Heating only” indoor Traditional “Heating and Cooling” Innovative “Heating, Cooling and Fresh Air Renovation”

Qualitative criteria of association of points

Points from 1 to 3 Poor

Points from 4 to 6 Sufficient Points from 6 to 9 Good / Very Good 10 Points Excellent

Conclusioni

Gli edifici a energia quasi zero (NZEB) e gli edifici a energia zero (ZEB) sono ormai una realtà consolidata e prospettica in tutta Europa da qui al 2050, con tappe ben precise tese alla decarbonizzazione del settore edile.

La riduzione del fabbisogno energetico netto per la climatizzazione degli edifici è spesso ottenuta inizialmente attraverso misure passive come il miglioramento dell’isolamento e della tenuta all’aria degli edifici e, in secondo livello, grazie all’impiantistica efficiente che impiega in larga misura fonti di energia rinnovabile.

Diversi aspetti legati al comfort, all’efficienza energetica e all’uso ottimizzato dell’energia primaria richiedono un approccio progettuale integrato tra architettura e impiantistica. Se ci si concentra solo sulla riduzione dell’energia termica necessaria, specie in edifici ZEB ed NZEB c’è il rischio che venga trascurato il comfort degli occupanti. È importante progettare la geometria dell’edificio in modo tale da ridurre al minimo i periodi con temperature al di fuori dei criteri di comfort termico.

È altrettanto importante progettare i sistemi di riscaldamento, raffreddamento e ventilazione per gestire i carichi in modo efficiente, con un consumo energetico minimo, preferibilmente utilizzando fonti di raffreddamento gratuite o rinnovabili.

In questo contesto, le unità terminali per il comfort indoor vedranno probabilmente nei prossimi 5-10 anni un’evoluzione sostanziale, privilegiando soluzioni che contemporaneamente possano:

1. Fornire riscaldamento, raffreddamento, rinnovamento e purificazione dell’aria “all in one”, per:

• soddisfare le esigenze di funzionalità complete dell’utente;

• diminuire la complessità dell’installazione HVAC;

• ridurre se non eliminare la ridondanza negli impianti HVAC di diverse tecnologie per servizi simili.

2. Utilizzare in modo efficiente l’acqua a temperatura moderata (ad esempio 35-30 °C in inverno / 18-23 °C in estate) per:

• offrire una buona risposta, in termini di risparmio energetico, se

utilizzati in combinazione con generatori a basso consumo di energia primaria (come, ad esempio, pompe di calore e sistemi ibridi intelligenti, largamente diffusi negli ZEB e NZEB);

• fornire un miglior comfort agli utenti grazie agli scambi termici a temperature moderate.

3. Consentire una facile pulizia e sanificazione in autonomia da parte degli utenti finali e non solo avvalendosi di personale professionale specializzato nella pulizia HVAC, in modo da avere la possibilità di sanificare le unità terminali comfort indoor come possibilità standard nelle operazioni giornaliere/settimanali, come è normalmente per tutte le parti degli ambienti interni (per esempio pavimenti, mobilia, ecc.) che possono essere facilmente pulite e igienizzate con regolarità.

4. Essere costituito dalla maggior quantità possibile di materiali riciclati e/o riciclabili.

Osservando questi quattro principi, oggigiorno solo pochi terminali per il comfort soddisfano contemporaneamente tutte le condizioni per consentire di assolvere alle esigenze di risparmio energetico, funzionalità, igiene e sostenibilità degli edifici NZEB e ZEB. Per questa ragione sono attese sostanziali evoluzioni per questa parte dell’impianto estremamente rilevante per gli utilizzatori.n

* Jacques Gandini, Managing Director, Studio Gandini S.r.l.

BIBLIOGRAFIA

[1] EUROPEAN PATENT SPECIFICATION, EP 3 286 502 B1 deposited October 23rd 2023. Date of filing: April 15th 2016: European Publication Server. International publication number: WO 2016/170456 (27.10.2016 Gazette 2016/43) https://data.epo.org/publication-server/document?iDocId = 7253840&iFormat = 0;

[2] Publication “The significant imbalance of nZEB energy need for heating and cooling in Italian climatic zones” 72nd Conference of the Italian Thermal Machines Engineering Association, ATI2017, 6-8 September 2017, Lecce, Italy. Department of Energy, Politecnico di Torino, C.so Duca degli Abruzzi 24, Torino 10129, Italy;

[3] Aggiornamento della metodologia comparativa cost-optimal secondo Direttiva 2010/31/UE V. Corrado, I. Ballarini, I. Ottati, S. Paduos. Report RdS/2014/107;

[4] Concerted Action EPBD (CA EPBD): Copenhagen, August 2019 - ISBN 978-87-93180-44-4, Implementing the Energy Performance of Buildings Directive (EPBD) Thematic Report. Project realized received funding from the European Union’s Horizon 2020 research and innovation program under grant agreement Nº 692447;

[5] Directive (EU) 2018/844 of the European Parliament and of the Council of 30 May 2018 amending Directive 2010/31/EU on the energy performance of buildings and Directive 2012/27/EU on energy efficiency;

[6] Final report on the technical support to the development of a smart readiness indicator for buildings. Annex F, SRI method B: detailed service catalogue. June 2020, Directorate-General for Energy. Directorate C - Renewables, Research and Innovation, Energy Efficiency. Unit C4 – Energy Efficiency: Buildings and Products;

[7] REHVA Journal, May 2011, M.Sc. (Eng) Lars Sønderby Nielsen: Heating and cooling challenge in nZEB. Experiences from built houses and detailed building simulations calls for a careful and integrated approach when designing heating and cooling systems for nearly zero energy buildings

Vetri a cristalli liquidi dispersi in polimeri come tecnologia intelligente per le facciate: caratterizzazione, modellazione e controllo

Il seguente lavoro di tesi presenta una metodologia per valutare correttamente l’illuminamento da luce naturale e l’abbagliamento in caso di vetri PDLC, a partire da misure spettrali e angolari della trasmissione e della ri essione diretta e di usa

J. Roberts*

Introduzione

Gli smart glazing possono rappresentare un’efficace soluzione per la decarbonizzazione dal settore edile e per il miglioramento del comfort visivo negli edifici [1]. I vetri che contengono cristalli liquidi dispersi in polimeri (PDLC) sono dei vetri commutabili con numerose potenziali applicazioni nelle facciate, grazie ai tempi di commutazione ridotti e alla loro abilità di regolare la trasmissione visiva e solare in un’ampia gamma di condizioni [2], [3].

La trasmissione dei vetri PDLC è altamente dipendente dall’angolo di incidenza ed è principalmente diretta o diffusa, a seconda della tensione applicata. In questo contesto, questo lavoro di tesi presenta una metodologia per la caratterizzazione delle prestazioni degli smart glazing, l’accurata modellazione ottica e termica di vetri PDLC

tramite le Bidirectional Scattering Distribution Functions (BSDFs) e lo sviluppo di un controllo predittivo per sfruttare al meglio tale tecnologia.

La modellazione ottica è essenziale per la simulazione dettagliata delle prestazioni degli edifici, al fine di valutare accuratamente il comfort visivo per gli occupanti e il consumo energetico

dagli impianti di illuminazione artificiale.

Ciononostante, la mancanza in letteratura di modelli dettagliati per la simulazione del comportamento ottico dei vetri PDLC rappresenta un grosso limite. Quest’elaborato si pone quindi l’obbiettivo di presentare una metodologia per valutare correttamente l’illuminamento da luce naturale e l’abbagliamento in caso di vetri PDLC a partire da misure spettrali e angolari della trasmissione e della riflessione diretta e diffusa. Infine, uno smart glazing si può considerare tale solo se abbinato a una strategia di controllo adeguata. Anche in questo caso esistono pochi esempi in letteratura di controlli applicati a vetri PDLC, principalmente di tipo rule-based per la regolazione degli apporti solari, dell’illuminamento e dell’abbagliamento.

La campagna sperimentale

In una prima fase della ricerca, si è svolta una breve campagna sperimentale in condizioni reali nel Facade System Interactions Lab e in ambiente controllato nel G-value Lab di Eurac Research per caratterizzare il comportamento di un sistema vetrato con vetro

PDLC dal punto di vista sia termico sia ottico. Nello specifico, dai dati misurati si sono stimati la conduttanza termica, la trasmissività solare, la trasmissività visibile e il fattore solare. La dipendenza dall’angolo di incidenza è stata altresì analizzata. Sono state confrontate le misure spettrali effettuate in condizioni controllate con quelle globali in condizioni reali. Sono stati quindi calcolati diversi indicatori dell’utilizzo della luce diurna e del comfort visivo a partire da misure di illuminamento e da immagini di tipo High Dynamic Range (HDR).

Il vetro PDLC è stato caratterizzato in cinque stati diversi, in corrispondenza a cinque livelli di tensione applicata al vetro tramite un sistema con un Raspberry-Pi e due relay, provvedendo ad azzerarla prima di una commutazione da uno stato non-translucido a un altro. Le prestazioni misurate del sistema vetrato testato non sono risultate particolarmente soddisfacenti per l’applicazione di controlli avanzati. Infatti, per la regolazione degli apporti solari su un ampio intervallo, è necessaria una differenza ampia della trasmittanza solare tra gli stati estremi dello smart glazing. In

condizioni controllate in laboratorio, si è osservata invece una differenza di meno di 0,05 tra le trasmittanze solari degli stati estremi; in condizioni applicative in campo la differenza osservata è stata ulteriormente ridotta, a meno di 0,02 della trasmittanza solare, come si vede nella Figura 1. Un comportamento simile si è registrato anche per la trasmittanza visibile. Al contrario, per quanto riguarda le misure dell’illuminamento naturale e dell’abbagliamento, si è riscontrato un impatto significativo grazie alla variazione della distribuzione della luce diffusa. Come si vede nella Figura 2, passando dallo stato estremo trasparente allo stato estremo traslucido, si abbassa il valore globale di trasmissione visibile ma si aumenta notevolmente il contributo di quella diffusa. Questa caratteristica potrebbe spiegare i risultati degli indicatori dell’utilizzo della luce diurna, in quanto gli stati globalmente meno trasmissivi non hanno portato necessariamente all’abbassamento dell’illuminamento allontanandosi dalla facciata, come atteso. Per quanto riguarda il rischio di abbagliamento, si sono osservati comportamenti contrari alle attese, a seconda dei momenti della giornata considerati: in taluni momenti, infatti, il rischio di abbagliamento è risultato crescere in accordo con il valore della trasmissione visibile globale, in altri diminuire nonostante l’incremento della trasmissione visibile globale, come si vede nella Figura 3. Questo comportamento può essere spiegato assumendo che, per date posizioni e orientazioni dell’osservatore, l’alta trasmissione visibile diffusa abbia potuto aumentare la luminanza delle fonti di abbagliamento, a dispetto di un più basso valore di trasmissione visibile globale. Questi risultati evidenziano quindi un comportamento particolare del sistema vetrato testato, la cui trasmissione diffusa è altamente variabile. La breve campagna sperimentale rivela un comportamento importante e non tipico per quanto riguarda l’illuminamento da luce naturale e l’abbagliamento a causa della diffusività variabile del vetro. Il vetro PDLC testato ha un’applicabilità nelle facciate limitata grazie alla gamma di variabilità ridotta del fattore solare. Ciononostante, il comportamento diffusivo del vetro potrebbe avere un impatto importante sul comfort termico negli spazi vicini alla facciata, a causa della ridotta radiazione diretta incidente trasmessa.

La modellazione ottica

Come osservato in precedenza, il sistema vetrato testato nella campagna sperimentale ha mostrato un potenziale limitato per l’applicazione nelle facciate a causa

della scarsa variabilità della trasmissività solare e visibile. Per questo motivo, si sono ottenuti dei dati di un altro sistema vetrato con un range di variazione tra gli stati estremi molto più ampio [4], [5]. Questi dati sono stati poi usati come input per la modellazione ottica del sistema vetrato, ponendo particolare attenzione alla caratterizzazione della trasmissione diretta e diffusa, dato il suo impatto importante visto nella campagna sperimentale.

Le grandezze valutate a incidenza normale e mediate sullo spettro visibile sono state usate come input nel modello di Roos [6] per la valutazione della dipendenza angolare ed elaborate mediante il commando iso2klems di Radiance, al fine di combinare i dati diretti e diffusi e generare le matrici di trasmissione e riflessione (Figura 4).

In una prima fase, si sono calcolate le quantità globali dei due stati estremi a partire dalle quantità spettrali in accordo con la norma europea EN 410:2011, come si vede nella Figura 5. Una volta calcolati le quantità globali, sono stati definiti tre stati intermedi tramite l’interpolazione lineare degli stati estremi.

Per quanto riguarda la dipendenza angolare della trasmissione, si è trovato un polinomio rappresentativo in accordo con il modello di Roos [6] (Figura 6). Non erano disponibili i dati della dipendenza della riflessione, per cui si è utilizzato un approccio alternativo, spiegato in seguito.

Ottenuto il polinomio per la trasmissione angolare diretta e diffusa dei cinque stati, si è potuto procedere a rappresentare questi dati tramite le BSDF. Le BSDF sono delle matrici rappresentative della trasmissione e riflessione visibile e solare: per ogni angolo di incidenza, esiste un valore della trasmissione e della riflessione per ogni angolo di uscita. Specificamente, si dividono gli emisferi di incidenza e di uscita in 145 suddivisioni in accordo con Klems, 1994 [7]. Le matrici risultanti sono quindi di dimensione 145 × 145. Una BSDF è composta da otto matrici: la trasmissione visibile dal lato interno, la trasmissione visibile dal lato esterno, la trasmissione solare dal lato interno, la trasmissione solare dal lato esterno, la riflessione visibile dal lato interno, la riflessione visibile dal lato esterno, la riflessione solare dal lato interno e la riflessione solare dal lato esterno. Le matrici di trasmissione si sono ottenute tramite il commando di Radiance iso2klems, il quale prende come input i valori di trasmissione diretta e diffusa per diversi angoli di incidenza, presi dal modello di Roos descritto sopra. Invece, data la mancanza di profili angolari, le matrici di riflessione si sono generate tramite LBNL

Come osservato in precedenza, il sistema vetrato testato nella campagna sperimentale ha mostrato un potenziale a causa della scarsa variabilità della trasmissività solare e visibile variazione tra gli stati estremi molto più ampio la modellazione ottica del sistema vetrato, ponendo particolare attenzione alla caratterizzazione della trasmissione diretta e diffusa, dato il suo impatto importante visto nella campagna sperimentale. Le grandezze valutate ad incidenza normale e mediate sullo spettro visibile sono state usate come input nel modello di Roos iso2klems di Radiance, al fine di combinare i dati diretti e diffusi e generare le matrici di trasmissione e riflessione (Figura 4).

Solare

Trasmissione

diretta + diffusa

Modello Roos

Visibile

Trasmissione

diretta + diffusa

Modello Roos

iso2klems

Matrice di trasmissione solare

iso2klems

Matrice di trasmissione visibile BSDF

Dati di riflessione spettrali LBNL Optics LBNL Window

A 4 Generazione dei BSDF

Figura 4 Generazione dei BSDF

Matrici di riflessione

In una prima fase, si sono calcolate le quantità globali dei due stati estremi a partire dalle quantità spettrali in accordo con la norma europea EN 410:2011, come si vede nella Figura 5 Una volta calcolati le quantità globali, sono stati definiti tre stati intermedi tramite l’interpolazione lineare degli stati estremi.

Window 7.0, che utilizza il modello di Furler [8]. Mettendo insieme le rilevanti matrici, si è ottenuta una BSDF per ogni stato del vetro PDLC. Le BSDF dei singoli strati sono state integrate in un sistema

a triplo vetro tramite LBNL Window 7.0, come si vede nella Figura 7. Si sono poi generate cinque altre BSDF rappresentative dell’intero sistema vetrato per ciascuno stato del vetro PDLC.

FIGUR
FIGURA 2 Useful daylight illuminance UDI
FIGURA 3 Confronto di DGP a diversi momenti del giorno

Figura 6 Trasmissività angolare

Ottenuto il polinomio per la trasmissione angolare diretta e diffusa dei cinque stati, si è potuto procedere a rappresentare questi dati tramite le BSDF. Le BSDF sono delle matrici rappresentative della trasmissione e riflessione visibile e solare: per ogni angolo di incidenza, esiste un valore della trasmissione e della riflessione per ogni angolo di uscita. Specificamente, si dividono gli emisferi di incidenza e di uscita in 145 suddivisioni in accordo con Klems, 1994 [7] Le matrici risultanti sono quindi di dimensione 145 x 145. Una BSDF è composta da otto matrici: la trasmissione visibile dal lato interno, la trasmissione visibile dal lato esterno, la trasmissione solare dal lato interno, la trasmissione solare dal lato esterno, la riflessione visibile dal lato interno, la riflessione visibile dal lato esterno, la riflessione solare dal lato interno e la riflessione solare dal lato esterno Le matrici di trasmissione si sono ottenute tramite il commando di Radiance iso2klems, il quale prende come input i valori di trasmissione diretta e diffusa per diversi angoli di incidenza, presi dal modello di Roos descritto sopra. Invece, data la mancanza di profili angolari, le matrici di riflessione si sono generate tramite LBNL Window 7.0, che utilizza il modello di Furler [8]. Mettendo insieme le rilevanti matrici, si è ottenuta una BSDF per ogni stato del vetro PDLC. Le BSDF dei singoli strati sono state integrate in un sistema a triplo vetro tramite LBNL Window 7.0, come si vede nella Figura 7. Si sono poi generate cinque altre BSDF rappresentative dell’intero sistema vetrato per ciascuno stato del vetro PDLC.

Per quanto riguarda l’utilizzo della luce diurna, è stato impiegato il three-phase method [9] e sono stati calcolati il Useful Daylight Illuminance [10] e il Daylight Autonomy [11]. Gli stati più trasmissivi portano a una distribuzione migliore della luce diurna nello spazio però, indipendentemente dello stato scelto, si rileva una mancanza di luce diurna nella parte della stanza lontana dalla facciata, che andrebbe compensata dall’illuminazione artificiale. Gli stati più traslucenti riescono ad azzerare la metrica UDI-e (la percentuale di ore con un illuminamento superiore a 3000 lx), al costo di UDI-a e UDI-s ridotti (la percentuale di ore con un illuminamento tra 300 e 3000 lx e tra 100 e 300 lx, rispettivamente). La UDI-a dello stato trasparente è più alta rispetto allo stato traslucido.

14 mm aria 5 % / Ar 95 %

8 mm PDLC 4 mm vetro chiaro con rivestimento basso emissivo interiore

A questo punto dello studio, per ciascuno stato PDLC si sono svolte simulazioni annuali dell’utilizzo della luce diurna in un edificio caso studio (il Facade System Interactions Lab di Eurac Research, utilizzato anche nella fase sperimentale) e si sono confrontati

14 mm aria 5 % / Ar 95 %

8 mm vetro chiaro con rivestimento basso emissivo interiore

Le grandi facciate vetrate stanno diventato sempre più comuni negli edifici moderni e ciò può comportare un maggiore rischio di abbagliamento per gli occupanti. Per mitigare tale rischio, esso va correttamente previsto in modo affidabile e dinamico durante la fase di progettazione della facciata [12]. La simulazione annuale dell’abbagliamento richiede tuttavia una potenza computazionale importante ed è perciò necessario prestare attenzione alla scelta della metrica da valutare, bilanciando accuratezza e tempi computazionali. Tra le varie alternative l’indicatore più diffuso e ritenuto a oggi il più accurato è il Daylight Glare Probability (DGP) [13]. Quest’indicatore prende come input un’immagine High Dynamic Range (HDR) e il valore che assume è funzione di diversi parametri come la luminanza dello sfondo, la luminanza dei fonti di abbagliamento, la loro posizione e il contrasto tra le sorgenti di abbagliamento e lo sfondo. Per le simulazioni annuali, spesso viene utilizzato l’indicatore Enhanced Simplified Daylight Glare Probability (eDGPs), che utilizza un’immagine HDR prodotta senza riflessioni – quindi considerando soltanto la luce trasmessa dalla facciata all’osservatore – la cui generazione richiede notevolmente meno tempo computazionale. Il eDGPs considera inoltre separatamente l’illuminamento verticale calcolato con il three-phase method.

diversi indicatori del rischio di abbagliamento. Si è utilizzato un file climatico di EnergyPlus per Bolzano (latitudine 46,47°, longitudine –11,33°, altitudine 241 m) per generare la matrice del cielo necessaria per le simulazioni annuali in Radiance.

Sono stati confrontati tre diversi metodi per generare le necessarie immagini HDR:

• il three-phase method basato sull’analisi di immagini;

• il ray tracing convenzionale con il materiale di Radiance “BSDF”;

• il ray tracing convenzionale con il materiale di Radiance “aBSDF”.

Figura 7 Sistema a triplo vetro
FIGURA 5 Dati spettrali diretti e diffusi
FIGURA 6 Trasmissività angolare
FIG URA 7 Sistema a triplo vetro

Il primo metodo di calcolo è il più veloce ma, essendo matrix-based, è caratterizzato dall’inaccurata rappresentazione della regione circumsolare. Il secondo metodo rappresenta il metodo tradizionalmente adottato per la generazione di immagini HDR ma anche in questo caso la rappresentazione della regione circumsolare è poco accurata grazie ai limiti posti dalla bassa risoluzione dei BSDF. Il terzo metodo infine sfrutta un algoritmo di peak extraction per contrastare la bassa risoluzione dei BSDF ed è in grado di rappresentare meglio la regione circumsolare e la componente diretta della radiazione solare [14]. Infine, sono stati confrontati i valori simulati di DGP ed eDGPs.

In una prima fase, si sono confrontati i diversi metodi della generazione delle immagini HDR in tre diversi momenti nell’anno: mezzogiorno del 23 marzo, del 21 giugno e del 21 dicembre, come si vede nella Figura 8. Nella Figura 9 vengono riportate le immagini HDR per il calcolo del DGP per il 21 marzo a mezzogiorno a titolo di esempio.

La rappresentazione imprecisa della regione circumsolare dei metodi basati sull’immagine trifase e sul raytracing convenzionale con tipo di materiale “BSDF” è immediatamente visibile nella Figura 9. Al contrario, il sole è rappresentato molto meglio con il ray-tracing conven-

zionale con il tipo di materiale “aBSDF”. Infatti, sebbene lo stato traslucido sia altamente diffusivo, la sua trasmissione diretta non è nulla. Questo spiega la componente diretta che colpisce il pavimento, che, pur essendo appena visibile anche su scala logaritmica, non risulta trascurabile. Data la sua rappresentazione più accurata, il tipo di materiale “aBSDF” tende a portare a valori più elevati di DGP ed eDGPs quando il sole è direttamente visibile, per esempio in dicembre. Ciò è particolarmente importante nello stato traslucido, poiché gli altri metodi producono un rischio di abbagliamento impercettibile, mentre il tipo di materiale “aBSDF” porta a un rischio di abbagliamento fastidioso; pertanto, si potrebbero prendere decisioni di controllo diverse a seconda del metodo scelto.

Per lo stato PDLC trasparente di marzo, il tipo di materiale “aBSDF” non risulta in un DGP o eDGPs più elevato. Ciò può essere compreso osservando

le immagini pertinenti nella Figura 9: in realtà, il sole è perfettamente nascosto dietro la parte opaca della facciata, ma i metodi basati sull’immagine trifase e sul ray-tracing convenzionale con “BSDF” distorcono entrambi la regione circumsolare in modo che appaia visibile all’osservatore, portando a valori DGP ed eDGPs erroneamente elevati. Anche in questo caso, si possono prendere decisioni di controllo diverse a seconda del metodo scelto. Come previsto, ci sono alcune differenze tra DGP e eDGPs, che tuttavia sono considerate accettabili data l’enorme riduzione della potenza di calcolo necessaria per il calcolo degli eDGPs. Pertanto, data la sua comprovata maggiore accuratezza, è stato scelto il ray-tracing convenzionale con il tipo di materiale “aBSDF” per calcolare gli eDGPs per le simulazioni annuali. Procedendo alle simulazioni annuali utilizzando il materiale “aBSDF”, si è rivelato un comportamento atipico dell’abbagliamento. Come si vede in Figura 10, si è osservato che gli stati più e meno trasmissivi non sempre corrispondono rispettivamente ai valori massimi e minimi di eDGPs. Questo comportamento non è dissimile da quello osservato nella campagna sperimentale e mostra l’impatto importante della variabilità della trasmissione diffusa. Tuttavia, tale comportamento è limitato a un intervallo di eDGPs tra 0,20 e 0,27. Inoltre, la differenza di eDGPs tra lo stato più trasmissivo e il valore massimo di eDGPs, nonché tra lo stato meno trasmissivo e il valore minimo di eDGPs, non supera lo 0,02. Ciononostante, va osservato che, in condizioni diverse, tale fenomeno potrebbe comportare il superamento della soglia di abbagliamento percettibile e pertanto impattare sul funzionamento delle logiche di controllo del vetro.

Figura 9 Confronto dei metodi di generazione delle immagini HDR (21 marzo a mezzogiorno)
FIGURA 8 Confronto tra metodi di calcolo dell’abbagliamento per (a) lo stato traslucido e (b) lo stato trasparente
(a) (b)
FIGURA 9 Confronto dei metodi di generazione delle immagini HDR (21 marzo a mezzogiorno)

Lo sviluppo del controllo predittivo

Le tecnologie intelligenti per le facciate sono poco utili se non sono abbinate a una strategia di controllo adeguata. Esistono diverse strategie di controllo, con complessità e prestazioni variabili. Dato il modello dettagliato sviluppato e la mancanza di modelli predittivi in letteratura, specialmente applicati alle vetrate PDLC, si è ritenuto opportuno e prezioso creare una strategia di controllo predittiva e confrontarla con una strategia di controllo basata su regole. Fondamentalmente, questa strategia di controllo si avvale del modello di vetrata, implementato in un modello di edificio, per prevedere con precisione l’impatto delle scelte di controllo sulla qualità dell’ambiente interno e sul consumo energetico, al fine di selezionare lo stato PDLC più appropriato in qualsiasi momento.

La strategia di controllo predittiva è capace di bilanciare diversi KPI spesso in contrasto tra loro. Il controllo proposto si basa su di un’architettura “master/ slave”, in cui il “master” rappresenta l’edificio e gli “slave” i modelli utilizzati per simulare possibili azioni del controllore, in base ai quali il “master” può scegliere l’azione più adeguata a seconda dei KPI selezionati. Nello specifico, la scelta è data dalla minimizzazione di una funzione di costo, la quale considera il consumo energetico totale (riscaldamento, raffrescamento, illumina-

(a)

zione artificiale), il benessere termico in presenza della radiazione solare diretta [15] e il contatto visivo con l’esterno [16].

I pesi nella funzione di costo vengono modificati per dare più o meno importanza ai vari KPI. Nell’applicazione del controllo proposto, l’abbagliamento è stato evitato eliminando gli stati PDLC con valori di DGP maggiori di una certa soglia. Sono stati analizzati gli effetti dell’orizzonte di predizione (quanto tempo gli “slave” vedono nel futuro), della soglia di DGP, nonché dei pesi

(b)

della funzione di costo. Il controllo predittivo sviluppato è stato confrontato con casi di riferimento nonché con un controllo basato su regole (RBC) precedentemente sviluppato. Come nello sviluppo del modello ottico, è stato utilizzato come caso di studio il Façade System Interactions Lab di Eurac Research. Per questo lavoro è stato adattato un modello termico calibrato costruito in TRNSYS 18 in un lavoro precedente [17], che corrisponde al modello ottico utilizzato prima. Come in precedenza, è stato utilizzato un file meteo tipico di EnergyPlus per Bolzano. Il passo temporale della simulazione è stato di 15 minuti. Nella Figura 11 si vede che il controllo predittivo è capace di ridurre notevolmente l’abbagliamento a

FIGURA 11 Impatto della soglia di DGP sull’indice dinamico di abbagliamento (a) e il consumo energetico (b) (b) (a)
FIGURA 10 Comportamento di abbagliamento controintuitivo quando (a) l’abbagliamento massimo non si ottiene dallo stato trasparente e quando (b) l’abbagliamento minimo non si ottiene dallo stato traslucido
FIGURA 12 Impatto dei pesi della funzione di costo a luglio sul consumo energetico (a), contatto visivo con l’esterno (b) e benessere termico (c) (a) (b) (c)

di diffusione non speculare può rivelarsi utile in applicazioni alternative, come ad esempio le partizioni vetrate interne. Inoltre, le vetrate sono state simulate in seconda della soglia di DGP scelta, senza impattare sul consumo energetico. Invece, nella Figura 12 sono riportate le prestazioni di tre diversi controlli con differenti pesi nella funzione di costo: il primo (“energy”) focalizzato sulla riduzione del consumo energetico, il secondo (“view”) sulla massimizzazione del contatto visivo con l’esterno e il terzo (“comfort”) sull’ottimizzazione del comfort termico. Tutti i controlli riescono a raggiungere i loro obiettivi, con risultati migliori rispetto al controllo basato su regole predefinite. Le prestazioni del controllo basato su regole sono state valutate come soddisfacenti; tuttavia, il controllo predittivo si è dimostrato superiore nel bilanciare variabili in trade-off grazie al modello ottico precedentemente sviluppato. Infine, date le importanti richieste computazionali registrate, si osserva che sviluppi futuri possono riguardare l’adozione di modelli semplificati, in grado di accelerare la fase di prova, così come di consentire orizzonti di controllo e di predizione più lunghi.

Conclusione

Questo lavoro ha presentato una metodologia dettagliata di caratterizzazione delle vetrate intelligenti, un’accurata modellazione ottica e termica delle vetrate PDLC con le BSDF e lo sviluppo di un controllo predittivo per l’utilizzo ottimale di tali vetrate intelligenti. Non sono stati presi in considerazione fattori economici, sebbene alcune fonti citino il PDLC come una delle tecnologie di smart glazing più accessibili [3], tuttavia è improbabile che possa competere con le soluzioni di schermature dinamiche più tradizionali, come le veneziane. Inoltre, questo lavoro ha dimostrato il potenziale del PDLC per la riduzione dei consumi energetici e il miglioramento del comfort visivo; tuttavia, è necessario riflettere seriamente sulla sua applicazione nelle facciate degli edifici, dato il suo aspetto torbido negli stati meno trasmissivi. Sebbene si sia cercato di quantificare il contatto visivo con l’esterno, questo rimane un fattore altamente soggettivo e alcuni occupanti degli edifici potrebbero non apprezzare la nuvolosità. Ciononostante, la metodologia seguita per modellare otticamente le vetrate con un comportamento

Il presente lavoro, frutto di adattamento successivo, è fra i vincitori del Premio Tesi di Laurea 2023 assegnato da AiCARR per le migliori tesi focalizzate su tematiche inerenti l’efficienza energetica e il benessere sostenibile.

Relatore

Prof. Andrea Gasparella

Correlatore

Prof. Giovanni Pernigotto

BIBLIOGRAFIA

un caso-studio di una cella di prova in laboratorio, e i risultati potrebbero differire in un edificio reale con un’occupazione più variabile, apporti interni più variabili e un comportamento imprevedibile degli occupanti.n

* Joseph Roberts, Libera Università di Bolzano e Università degli Studi di Trento

[1] A. Tabadkani, A. Roetzel, H. X. Li, e A. Tsangrassoulis, “A review of automatic control strategies based on simulations for adaptive facades”, Building and Environment, vol. 175, p. 106801, mag. 2020, doi: 10.1016/j.buildenv.2020.106801.

[2] N. Aste, F. Leonforte, e A. Piccolo, “Color rendering performance of smart glazings for building applications”, Solar Energy, vol. 176, pp. 51–61, dic. 2018, doi: 10.1016/j.solener.2018.10.026.

[3] M. Oh e J. Park, “Evaluation of building energy and daylight performance according to applying electrochromic and pdcl (Polymer dispersed liquid crystal) to office building in South Korea”, International Journal of Sustainable Building Technology and Urban Development, vol. 10, fasc. 4, pp. 227–240, 2019, doi: 10.22712/susb.20190024.

[4] A. Ghosh e T. K. Mallick, “Evaluation of optical properties and protection factors of a PDLC switchable glazing for low energy building integration”, Solar Energy Materials and Solar Cells, vol. 176, pp. 391–396, mar. 2018, doi: 10.1016/j.solmat.2017.10.026.

[5] A. Ghosh, B. Norton, e T. K. Mallick, “Influence of atmospheric clearness on PDLC switchable glazing transmission”, Energy and Buildings, vol. 172, pp. 257–264, ago. 2018, doi: 10.1016/j. enbuild.2018.05.008.

[6] A. Roos, P. Polato, P. A. V. Nijnatten, M. G. Hutchins, F. Olive, e C. Anderson, “ANGULAR-DEPENDENT OPTICAL PROPERTIES OF LOW-E AND SOLAR CONTROL WINDOWS-SIMULATIONS VERSUS MEASUREMENTS”, vol. 69. pp. 15–26, 2000. [Online]. Disponibile su: www.elsevier.com/locate/solener

[7] J. H. Klems, “A new method for predicting the solar heat gain of complex fenestration systems: II, Detailed description of the matrix layer calculation”, ott. 1993, [Online]. Disponibile su: https:// www.osti.gov/biblio/10179398

[8] R. A. Furler, “Angular Dependence of Optical Properties of Homogeneous Glasses”, ASHRAE Transactions, vol. 98, Part 1, 1991.

[9] S. Subramaniam, “Daylighting Simulations with Radiance using Matrix-based Methods”. 2017. [Online]. Disponibile su: https://www.radiance-online.org/learning/tutorials/matrix-based-methods

[10] A. Nabil e J. Mardaljevic, “Useful daylight illuminance: A new paradigm for assessing daylight in buildings”, Lighting Research and Technology, vol. 37, fasc. 1, pp. 41–59, 2005, doi: 10.1191/1365782805LI128OA.

[11] C. F. Reinhart e O. Walkenhorst, “Validation of dynamic RADIANCE-based daylight simulations for a test office with external blinds”, Energy and Buildings, vol. 33, fasc. 7, pp. 683–697, set. 2001, doi: 10.1016/S0378-7788(01)00058-5.

[12] M. Abravesh, B. Bueno, S. Heidari, e T. E. Kuhn, “A method to evaluate glare risk from operable fenestration systems throughout a year”, Building and Environment, vol. 160, ago. 2019, doi: 10.1016/j. buildenv.2019.106213.

[13] E. C. for Standardization, “EN 17037:2022 Daylight in buildings”. 2022.

[14] D. Geisler-Moroder, G. J. Ward, T. Wang, e E. S. Lee, “Peak Extraction in Daylight Simulations Using BSDF Data”. 2021.

[15] American society of heating refrigerating and air-conditioning engineers, “ANSI/ASHRAE Standard 55-2017: Thermal Environmental Conditions for Human Occupancy”, pp. 14–15, 2017.

[16] E. C. for Standardization, “UNI EN 14501:2021”. 2021. [Online]. Disponibile su: https://store.uni. com/uni-en-14501-2021

[17] J. A. Roberts, G. D. Michele, G. Pernigotto, A. Gasparella, e S. Avesani, “Impact of active façade control parameters and sensor network complexity on comfort and efficiency: A residential Italian casestudy”, Energy and Buildings, vol. 255, gen. 2022, doi: 10.1016/j.enbuild.2021.111650.

Una banca dati, mille servizi Aggiornata mensilmente

Dalla grande esperienza di DEI, nasce

DEIPLUS PREMIUM la nuova soluzione digitale dedicata al mondo dell’edilizia

DEIPLUS PREMIUM è la banca dati con l’intero archivio dei prezzi dell’edilizia a partire dal 2018

Disponibile solo in abbonamento

DEIPLUS PREMIUM consente una consultazione immediata delle voci e la creazione di listini in un unico ambiente di lavoro anche direttamente dal tuo cellulare.

DEIPLUS PREMIUM trasforma il modo di consultare i prezzi dell’edilizia rendendolo facile, immediato e sempre aggiornato.

Con DEIPLUS PREMIUM si può

VISUALIZZARE

le voci di tutti i prezzari dal 2018

CERCARE qualsiasi voce con parole chiave o codice

CREARE listini personalizzati senza limitazioni di numero di voci

ESPORTARE

le voci dei listini

AGGIORNARE

i listini in modo automatico o manuale

Vuoi provare DEI PLUS PREMIUM? Richiedi l’accesso alla versione trial per 7 giorni

MONITORARE l’andamento dei prezzi nel tempo

Vuoi maggiori informazioni? 06.21060305 abbonamentidei@lswr.it

Esperto in gestione dell’Energia: corso base, casi studio e ISO 50001

È in programma, a partire dal 1° ottobre, il corso per Esperto in Gestione dell’Energia, sviluppato da AiCARR Formazione anche per offrire ai partecipanti una migliore preparazione all’esame di certificazione delle competenze per EGE, sia per il settore civile che per quello industriale. La novità dell’edizione 2024 consiste nell’aggiunta, al corso che illustra le conoscenze di base, di 2 nuovi moduli, della durata di 4 ore ciascuno, uno dedicato all’analisi e commento di casi studio, l’altro incentrato sulla Norma UNI CEI EN ISO 50001 dedicata ai sistemi di gestione dell’energia. L’obiettivo è quello di fornire le conoscenze fondamentali in riferimento ai temi connessi alla gestione dell’energia, dell’efficientamento energetico e dei relativi meccanismi di incentivazione con l’intento di consentire ai partecipanti di acquisire le indicazioni per svolgere l’attività di EGE riferite alle competenze indicate dalla Norma UNI CEI 11339:2023. La frequenza ai 3 moduli proposti è di grande aiuto per quanti intendono sostenere l’esame di certificazione delle competenze per EGE, sia per il settore civile che per quello industriale.

CFP: per ingegneri

Il calendario

Corso base per Esperto in Gestione dell’Energia – 1-3 e 9 ottobre, 14.00-18.00, 10 ottobre, 9.00-13.00

Analisi di casi studio – 22 ottobre, 14.00-18.00

Norma UNI CEI EN ISO 50001 – 24 ottobre, 14.00-18.00

Il principio del DNSH (Do No Significant Harm) nel PNRR: adempimenti e applicazione

Il Dispositivo per la ripresa e la resilienza, Regolamento UE 241/2021, stabilisce che tutte le misure dei Piani nazionali per la ripresa e resilienza (PNRR) debbano soddisfare il principio di “non arrecare danno significativo agli obiettivi ambientali”. Questo vincolo si traduce in una valutazione di conformità degli interventi previsti al principio del “Do No Significant Harm” (DNSH), con specifico riferimento al sistema di tassonomia delle attività ecosostenibili indicato all’articolo 17 del Regolamento (UE) 2020/852. Il rispetto del principio Do No Significant Harm (DNSH), quindi, nasce per collegare la crescita economica alla tutela dell’ecosistema al fine di garantire che gli interventi previsti dai PNRR nazionali non impattino in maniera significativa sull’ecosistema, particolarmente in riferimento ai sei

Elezione del nuovo Presidente AiCARR

Come annunciato nei mesi precedenti, il 2 settembre sono scaduti i termini per l’invio delle candidature per il nuovo Presidente Eletto, che affiancherà l’attuale Presidente Claudio Zilio a partire da aprile 2025.

La Commissione Elettorale analizzerà le candidature ricevute e stilerà una lista dei candidati presidenti. Ad ottobre sul sito dell’Associazione verranno pubblicati il programma e il Curriculum Vitae dei candidati ammessi, che dovranno firmare una dichiarazione di accettazione a priori

del risultato della votazione.

Le operazioni di voto per il nuovo Presidente AiCARR si svolgeranno online dalle ore 9.00 del 9 dicembre fino alle ore 17.00 del 23 dicembre 2024. I Soci riceveranno il certificato elettorale elettronico via email.

La Commissione Elettorale affiderà le operazioni di spoglio a un ente terzo e proclamerà i risultati entro il 20 gennaio 2025. A partire da aprile 2025, poi, il nuovo Presidente Eletto affiancherà l’attuale, Claudio Zilio, fino alla fine del suo mandato.

40° Convegno Nazionale AiCARR, Minchio:

“L’efficientamento è il primo passo per raggiungere la decarbonizzazione dell’industria”

L’ingegner Fabio Minchio, keynote speaker al 40° Convegno nazionale AiCARR (Peschiera del Garda, 26 settembre 2024), anticipa i temi della sua relazione, offrendo una panoramica sui potenziali benefici della transizione per l’industria, le azioni per il risparmio energetico e le tecnologie innovative per la sostenibilità energetica e ambientale.

In Italia, il settore industriale è terzo per consumi di energia, essendo responsabile del 25% del fabbisogno energetico finale. Circa il 40% di questi consumi è soddisfatto dall’energia elettrica, che proviene però, per gran parte, da fonti fossili, e qualcosa meno attraverso l’utilizzo di gas naturale. Quale mix energetico possiamo immaginare per ridurre l’utilizzo di energia primaria non rinnovabile?

“Le politiche dell’Unione europea impattano sull’Italia e sulle decisioni strategiche che devono essere prese. Se vogliamo ridurre i consumi di energia primaria e al contempo decarbonizzare, le linee guida prevedono una progressiva elettrificazione del consumo industriale. Tuttavia, l’elettrificazione è un processo complesso e, dove è possibile, in alcuni casi gli investimenti potrebbero avere un impatto economico troppo alto. Può essere necessario rivedere, in questa fase transitoria, un atteggiamento troppo drastico in questa direzione. Per quanto riguarda i settori hard-to-abate, in cui l’elettrificazione non è una strada percorribile, si può immaginare una combinazione tra idrogeno e biocombustibili, a condizione che si raggiungano adeguati livelli di costo-efficacia”.

Altri temi che verranno affrontati nel corso del 40° Convegno nazionale dell’Associazione sono le azioni per il risparmio energetico. Quali sono le principali azioni per ridurre il

fabbisogno energetico del settore industriale e il consumo di gas naturale?

“L’obiettivo di decarbonizzare l’industria dovrebbe partire dall’efficientamento energetico (energy efficiency first!), riducendo i consumi negli usi finali. Un tema molto caro alla nostra Associazione è lo sviluppo dei recuperi termici, che sarà uno degli argomenti principali del Convegno nazionale. I recuperi e l’ottimizzazione dell’uso dei livelli termici potrebbero favorire l’adozione delle pompe di calore, una tecnologia che ha un potenziale di diffusione significativo nell’industria, soprattutto in presenza di cascami termici, ad oggi non sufficientemente sfruttato. Sul fronte dell’efficienza energetica, la nostra industria ha raggiunto un buon livello di maturità tecnologica grazie agli investimenti delle aziende negli ultimi decenni. Dobbiamo concentrare i nostri sforzi sulla riduzione degli sprechi, valorizzando le iniziative a basso costo e basso impatto. Per quanto riguarda il biometano, le garanzie d’origine avranno un ruolo centrale. La possibilità di acquistare quote di gas rinnovabile potrebbe ridurre l’impatto equivalente del gas naturale. I sistemi di gestione dell’energia permetteranno

AiCARR informa www.aicarr.org

la diffusione di buone pratiche, come, ad esempio la riduzione dei consumi nelle ore di minore utilizzo e la diffusione di una cultura del risparmio energetico a tutti i livelli dell’organizzazione. Inoltre, le tecnologie digitali di controllo e regolazione possono contribuire significativamente alla riduzione dei consumi.

Le macchine frigorifere e le caldaie hanno beneficiato di miglioramenti tecnologici importanti, elementi che possono favorire la riduzione dei consumi. Ogni settore industriale ha inoltre tecnologie chiave (cosiddette BAT) che si stanno diffondendo”.

Come trasformare la decarbonizzazione e la transizione verde in un’opportunità per le aziende?

“Se riduciamo i consumi, decarbonizziamo, ma non sempre la strada più efficace risulta essere la migliore dal punto di vista economico. Le azioni volte primariamente a decarbonizzare possono non coincidere con le azioni volte primariamente alla riduzione dei consumi di energia primaria. Le aziende stanno lavorando nella direzione della decarbonizzazione a volte in modo irrazionale,

perdendo di vista l’ottimizzazione tecnologica. In futuro sarà necessario adottare un approccio più coerente e attento a questi aspetti, altrimenti le aziende continueranno a percepire queste iniziative come imposizioni.

L’opportunità di ridurre i consumi non significa solo investire in tecnologia costosa, ma anche concentrarsi sulla riduzione degli sprechi, un’area in cui le aziende italiane devono ancora migliorare. Manca infatti la cultura e la diffusione delle buone pratiche in questa direzione. Non sempre sono necessari nuovi impianti. La Transizione 5.0 e altri supporti possono diventare elementi di sostegno, a patto che la loro introduzione non comporti una distorsione del mercato. Spesso si investe solo dove si possono ottenere incentivi, perdendo di vista le scelte tecnologiche ottimali, come dimostra il caso del Superbonus. Bisogna convogliare le risorse in modo razionale. Ad esempio, forse non era necessario incentivare ulteriormente il fotovoltaico, dato che il mercato funzionava già molto bene da solo. Spesso, invece, la generazione di calore e freddo di processo è trascurata da questo punto di vista”.

CLIMA 2025, in arrivo i nomi dei keynote speakers

A breve conosceremo i nomi dei keynote speakers che interverranno al 15° REHVA HVAC World Congress CLIMA 2025, organizzato da AiCARR. Il principale Congresso scientifico internazionale nel settore del riscaldamento, ventilazione e condizionamento dell’aria (HVAC) si terrà a Milano, dal 4 al 6 giugno 2025. Il titolo di CLIMA 2025 è “Edifici decarbonizzati, salubri ed efficienti per il Clima del futuro”, tema che evidenzia

l’importanza fondamentale del settore HVAC in tutti i suoi aspetti. CLIMA 2025 offrirà a professionisti, accademici e aziende del settore HVAC un’opportunità unica per la discussione internazionale su argomenti caldi quali efficientamento degli edifici, qualità dell’aria, decarbonizzazione. Lo scorso 31 agosto è scaduto il termine per l’invio degli abstract dei paper che verranno presentati nel corso di CLIMA 2025.

REHVA Awards in Technology e Design per due Soci AiCARR

REHVA – Federazione delle Associazioni Europee di Riscaldamento, Ventilazione e Condizionamento dell’Aria – ogni anno premia i professionisti HVAC più meritevoli. Le categorie prese in considerazione sono quattro: Science, Design, Technology ed Education.

Quest’anno, due Soci di AiCARR, Luca Zordan e Federico Pedranzini, sono stati insigniti dei prestigiosi REHVA Professional Awards nelle categorie Technology e Design.

Luca Zordan, ingegnere meccanico e referente in Consulta Industriale, è al suo secondo mandato come Consigliere AiCARR. Nel suo ruolo all’interno dell’Associazione, Zordan ha promosso il dialogo sull’innovazione e la sostituzione dei

refrigeranti nelle apparecchiature per la climatizzazione. Ha organizzato seminari tecnici e tavole rotonde sull’adozione del refrigerante R290 nel settore HVAC, contribuendo significativamente allo sviluppo tecnologico del settore. Federico Pedranzini è un ingegnere elettrotecnico: figlio d’arte, ha dedicato la fase iniziale della sua vita lavorativa alla progettazione e installazione di sistemi HVAC&R, per poi rientrare nel mondo accademico in veste di Ricercatore e docente presso il Politecnico di Milano. Socio AiCARR dal 2000, Pedranzini è docente di AiCARR Formazione ed è attualmente membro del Consiglio Direttivo e di Giunta con il ruolo di Presidente della Commissione Comitati Tecnici.

obiettivi ambientali introdotti dalla Tassonomia Europea (Reg. 852/2020). I professionisti che collaborano con le Amministrazioni per la riqualificazione del vasto patrimonio immobiliare, di grande valenza storica, hanno la necessità di ottemperare a quanto viene loro richiesto in tema di rispetto del principio DNSH. In risposta a tale sentita esigenza, AiCARR Formazione ha predisposto un nuovo modulo con l’intento di approfondirne la tematica e, soprattutto, gli adempimenti necessari.

CFP: per ingegneri

Il calendario: 23 e 28 ottobre dalle 14.30 alle 17.30

Collaudo di impianti e taratura e bilanciamento reti, l’importanza della pratica

Sono sempre molto apprezzati i quattro moduli del Percorso Specializzazione progettati con la massima attenzione all’aspetto pratico e pensati per soddisfare le esigenze di chi intende acquisire una sicura conoscenza delle complesse procedure di collaudo di un impianto di climatizzazione e delle operazioni di taratura e bilanciamento delle relative reti aerauliche e idroniche. Particolarmente interessante è la possibilità di seguire tre delle quattro lezioni in programma in un laboratorio attrezzato per esercitazioni pratiche.

CFP: per ingegneri

Il calendario

23 e 24 ottobre – Collaudo e strumenti di misura: lezioni in diretta web

12 novembre – Laboratorio di taratura e bilanciamento di reti idroniche: lezione frontale

13 novembre – Laboratorio di applicazione dei principi di regolazione dei sistemi d’utenza idronici: lezione frontale 19 novembre – Laboratorio di taratura e bilanciamento di reti aerauliche: lezione frontale

DALT - Duct Air Leakage Test:

La valutazione delle perdite operative negli impianti ad aria

Il tema della tenuta delle reti aerauliche è probabilmente quello che ha maggiori potenzialità in termini di efficientamento dei sistemi di climatizzazione. La tematica è oggi affrontata mediante una semplice classificazione basata su una misura di confronto con un indice definito dalle norme che però non porta molto significato dal punto di vista energetico o dimensionale. La competenza sulla tenuta delle reti va oltre la semplice misura e richiede conoscenze specifiche sui fenomeni coinvolti e sugli aspetti realizzativi e costruttivi propri delle reti aerauliche. Il modulo, della durata di una giornata, si svolge in presenza proprio per rispondere in modo pratico e concreto alle esigenze espresse da parte degli operatori di settore.

CFP: per ingegneri

Il calendario: 20 novembre, dalle 9.30 alle 17.30, in presenza

Sede: laboratorio attrezzato AiCARR Formazione-Belimo

Nuova formula per il Percorso sul Commissioning

L’edizione 2024 del Percorso Specialistico dedicato al processo del Commissioning, in calendario a partire da ottobre, si ripropone con la nuova formula pensata per unire la praticità della formazione a distanza alla partecipazione “live”: il Percorso si svolgerà infatti in diretta web per sei mattine, mentre l’ultima lezione, in calendario il 4 dicembre, sarà tenuta interamente in presenza presso la sede di AiCARR a Milano, in modo da favorire un vivace dibattito fra professionisti. Il Percorso, che offre una formazione ampia ed esauriente sul tema, permette ai professionisti in possesso dei requisiti necessari di affrontare l’esame di certificazione per Commissioning Authority e consente di acquisire le competenze per rispondere a uno dei requisiti premianti indicati dal Decreto Ministeriale 23 giugno 2022 sui CAM per l’affidamento del servizio di progettazione e dei lavori per interventi edilizi. Il DM, nella sezione relativa ai criteri per la selezione dei candidati, indica infatti che le stazioni appaltanti possano richiedere all’operatore definite capacità tecniche e professionali, fra cui avere eseguito progetti sottoposti a Commissioning per consentire di ottimizzare l’intero percorso progettuale.

CFP: per ingegneri.

Il calendario

29-30 ottobre e 7-8-28-29 novembre: lezioni in diretta web

4 dicembre: lezione frontale

Quantificare e valorizzare il risparmio energetico

Il corso è pensato in particolare per project ed energy manager di enti pubblici e aziende private, tecnici progettisti dei settori climatizzazione ed edilizia e per tecnici che operano presso le ESCO. Questo nuovo modulo, proposto a novembre nel Percorso Specializzazione, è dedicato alla determinazione e conseguente rendicontazione del risparmio energetico connesso ad una serie di attività poste in essere quando ci si occupa di efficientamento energetico. A partire dalla definizione dei concetti di misurazione e risparmio si introducono quelli legati alla disponibilità delle misure e, quindi, alla necessità delle simulazioni ponendo l’accento sull’effetto dell’incertezza nelle misurazioni e sui diversi scenari di valorizzazione che si possono generare al variare dell’interesse e dell’inflazione.

CFP: per ingegneri

Il calendario: 13 e 11 novembre

Tutte le informazioni relative ai corsi sono pubblicate sul sito www.aicarrformazione.org

AiCARR informa www.aicarr.org

La sua attività di ricerca fortemente applicativa e orientata alla progettazione e il suo contributo alla formazione per i progettisti del futuro sono stati riconosciuti con questo prestigioso premio.

Tutte le novità

La cerimonia di consegna dei premi si terrà il 26 settembre a Peschiera del Garda, in occasione del Convegno nazionale AiCARR.

del nuovo PNIEC

Ristrutturazioni edilizie ed elettrificazione dei consumi finali, crescente peso delle pompe di calore nel mix termico rinnovabile. Sono le novità principali contenute nell’ultimo aggiornamento del Piano Nazionale Integrato Energia e Clima (PNIEC), inviato il 1° luglio alla Commissione europea dal Governo italiano. L’area con gli obiettivi più sfidanti è quella delle energie rinnovabili. Infatti, secondo il PNIEC l’Italia dovrà raggiungere entro il 2030 una potenza da fonte rinnovabile di 131 GW. Secondo le stime, quasi ottanta (79,2 GW) arriveranno dal solare, 28,1 dall’eolico, 19,4 dall’idrico, 3,2 dalle bioenergie e 1 GW da fonte geotermica. La maggiore novità rispetto alle versioni precedenti è l’attenzione riservata al nucleare. Tuttavia, il PNIEC riserva un’attenzione a tutte le tecnologie green più promettenti in ottica di decarbonizzazione e transizione energetica, facendo spesso riferimento al principio della “neutralità tecnologica”, che da sempre contraddistingue l’operato di AiCARR. Un’attenzione che si evince anche dal fatto che il PNIEC propone strategie per l’utilizzo dell’idrogeno anche in miscela con il gas naturale, del biometano e delle biomasse.

AiCARR apprezza in particolare il richiamo alla recente revisione dell’EPBD (Direttiva Case Green) e agli obiettivi collegati di riqualificazione del parco immobiliare. In quest’ottica, il documento cita in più punti l’impiego delle pompe di calore come tecnologia fondamentale per l’integrazione delle energie rinnovabili nel riscaldamento (e raffrescamento) degli edifici. Inoltre, il PNIEC riconosce il ruolo fondamentale del sostegno economico ai cittadini per favorire la transizione negli edifici residenziali, come sottolineato in

diverse sedi ed occasioni da AiCARR. Di particolare interesse, secondo l’Associazione, è anche il richiamo alle tematiche di povertà energetica e il riferimento al quadro delle abitazioni in edilizia residenziale pubblica. In quest’ottica, la volontà di lanciare con ruolo guida “un grande piano di efficientamento del parco immobiliare della Pubblica Amministrazione e di riduzione dei consumi energetici” rappresenta un’iniziativa potenzialmente promettente.

Infine, AiCARR accoglie con favore la volontà del Governo di avviare “attività di formazione e informazione rivolte alla pubblica amministrazione, alle imprese, alle scuole e ai cittadini, con programmazione organica e strutturata, che avranno come filo conduttore l’innovazione tecnologica per il raggiungimento degli obiettivi di decarbonizzazione”, attività che vedono AiCARR in prima fila da oltre sessanta anni. L’Associazione, da parte sua, è pronta a mettere a sistema le competenze condivise degli oltre duemila soci professionisti e accademici nel settore del riscaldamento e del condizionamento dell’aria per raggiungere gli obiettivi di decarbonizzazione.

Il documento programmatico è stato realizzato dai ministeri con il supporto tecnico di ENEA, GSE, RSE, oltre che di ISPRA, dei Politecnici di Milano e di Torino e di numerose Associazioni, tra cui AiCARR.

Il testo del Piano Nazionale Integrato Energia e Clima è scaricabile al seguente QR-CODE.

Sfida tra studenti per scuole green: Healthy Buildings Design Competition

Torna il Concorso Healthy Buildings Design, la sfida tra squadre universitarie che premia i migliori progetti per rendere le scuole più salubri ed efficienti dal punto di vista energetico. I partecipanti avranno l’occasione di innovare in un contesto reale: una scuola elementare di Milano costruita nel 1972.

I vincitori riceveranno un premio di 5.000 euro. I team universitari avranno tempo fino al 14 ottobre 2024 per registrarsi e accettare la sfida

dell’HBDC25, competizione organizzata da REHVA, la Federazione delle associazioni europee di riscaldamento, ventilazione e condizionamento dell’aria, che vede AiCARR tra i suoi membri. Maggiori informazioni sul concorso nel QR-CODE.

Novità nell’ ARIA.

La qualità dell’aria degli ambienti interni è fondamentale per garantire il comfort di case, u ci, luoghi di lavoro e spazi pubblici. Per migliorare l’IAQ, è importante utilizzare sistemi di ventilazione e caci, ridurre le fonti di inquinamento e mantenere una corretta manutenzione degli impianti HVAC.

Il focus Indoor Air Quality comprende soluzioni in grado di gestire temperatura, umidità e qualità dell’aria degli ambienti interni in ambito residenziale, terziario, commerciale o industriale.

In questo scenario Comoli Ferrari si pone come il partner ideale per accompagnare gli installatori verso l’evoluzione del settore con servizi, certi cazioni e competenze.

INDOOR AIR QUALITY

Turn static files into dynamic content formats.

Create a flipbook
Issuu converts static files into: digital portfolios, online yearbooks, online catalogs, digital photo albums and more. Sign up and create your flipbook.