Portfolio QixingHuang

Page 1


Architecture Portfolio

Qixing huAng

ProfessionAl

shop with a predominantly sales centre,combine with cafe,cocktail bar (B1),5.1m(1F),4.2m(2F).Heights allows us to set a new stairs to connect each each floors.

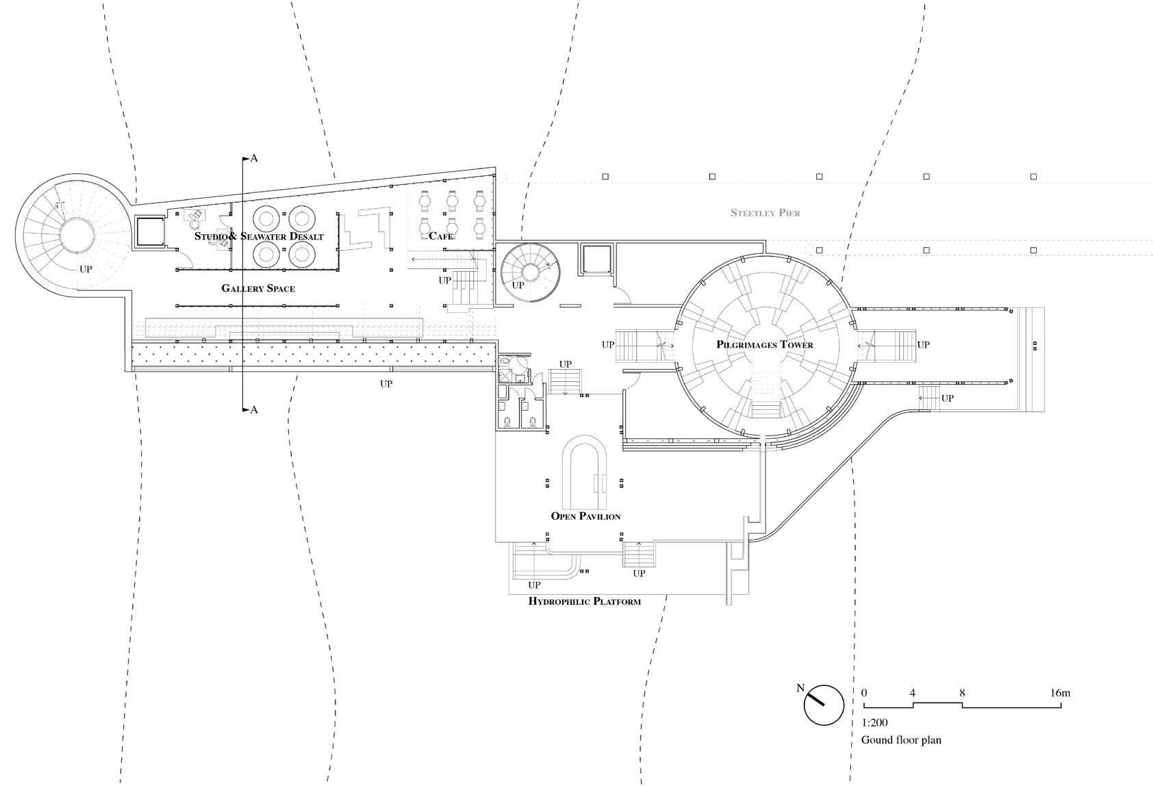
This project is from Stage 6 at Newcastle University, the second year of the Master of Part II Architecture programme.

The brief is generated from the investigation of the Anthropocene, which means that modern humans have since become the most dominant species in shaping the earth. Exploiting peat bog has had one of the most significant impacts on biodiversity and caused substantial carbon emissions.

coMPAred to thousAnds of YeArs of PeAtlAnd forMAtion, huMAn’s rAther short Period on the PlAnet hAs cAused A huge iMPAct on shAPing the eArth. the collAge is shoWing huMAn’s exPlorAtion on the PlAnet’s Wilderness

ANTHROPOCENE ‘AGAMEMNON’
PEATLAND ‘THE SCARED DEER’

not only using the intertidal peatland for a acient and historical survey but also studying present-day evidence of the past to unlock insights about the far future.

The building aims to generate environmental awareness and civic responsibility by creating a spatial experience sequence to appreciate the peatland’s vast temporal breadth and establish a dialogue with the archaeological remnants; it also has the facility and space for peat bog researchers to restore the damaged peatland. People can have a face-to-face experience with peat when they go down to the gallery space.

PrimitivisimDesign

roof eleMent - inviting birds

Part of the visitor’s corridor towards the pilgrimages tower is designed in this way to encourge the nesting of birds Thatch is used and acts as a resource for the building of nests, a process of cohabitating with animals.

WAll eleMent - inviting vegetAtion

The design of the walls follows the overall structure of the ing and the logic of the environment. The building’s facade primarily made with a timber lattice that refers to the old plant. The wooden lattice structure encourages the inhabita tion of plant and vegetation life.

tion the buildfacade is old water inhabita-

The project also examines how architecture can actively participate in the conservation of damaged landscapes and see whether it is possible to change the traditional role of nature and humans. Nature is the primary occupant of the building and subsequently directly informs the design of the architecture – the human inhabitants are mere caretakers of the space.

floor eleMent - living With WAter And tides

The floor arrangement in the building intends to provide pools for intertidal habitats as the sea level gradually increases. The floor elements were not built to resist the concept of flooding, but to create artificial pools incorporating with the landscape. The floor is composed of stable rammed earth.

Location:Liverpool, England

Dimension: Urban Design, Architecture

Purpose: Furniture Market with hybrid functions

coMMunAl uPcYcling MArket ProgrammeAndTheCity:AFuniture MarketInBalticTriangle

Programme summary

This year-long project is from the final year of the Bachelor of Part I Architecture programme.

The design’s origins grew from speaking to multiple members of the Baltic Triangle’s creative community and local residents, understanding the community requirements. The scheme functions as an upcycled furniture market, providing community interaction space, workshops, and studios. It encourages interaction at different scales and also has a sustainable upcycling idea behind it. Additionally, the various functions of the project aim to add value to the community not only on the building scale but also on a neighbourhood and community scale.

hotel rooms for actual household goods experience

the office and the product photography studio

“car boot” sale area with upcycled househould goods

Welcoming front cafe with second-hand bookstore FURNITURE studio and the warehouse

Examine disassemble

Pickphonecall& Lorrycollect Production

Market display,sell Usableparts

Productphotography (Onlineshooping)

Pre-production

Perspective Section
Ground floor, first floor and second floor plans
Workshop
Cafe

Feature window

• Aluminium-framed double-galzed window with Agron gas, face brickwork reveal

External wall, ground floor

• 200x400mm Glulam column

• 2x 15mm fire-resisting gypsum plasterboard

• 87mm cross-laminated timber wall

• Damp-proof membrane

• 90mm thermal insulation

• 65mm Cavity wall

• Steel windpost

• Brick walling: 210/100/60 mm Pale grey water-

struck bricks in stack bond

• 12mm cement board finishing

Parapet

• 2mm Metal cap flashing

• EPDM roof membrane

• Timber blocking piece

• 90mm thermal insulation

• 87mm cross-laminated timber roof element

• 15mm fire-resisting gypsum plasterboard

• Damp-proof membrane

• 2x 15mm fire-resisting gypsum plasterboard

Ground floor

• Self-levelling carpet

• 30 mm levelling screed/ Perimeter upstand insulation

• Polyethylene separating layer/VCL

• 90mm thermal insulation

• Damp-proof membrane

• 600/600mm Concrete pile foundation

Storage/ Studio technical section

0 1m 2m 1:20

Roof

• Earth • Filter fabric

• Perforated edge/ drainage trim

• EPDM roof membrane

• 90mm thermal Insulation

• 87mm cross-laminated timber roof element

• Damp-proof membrane

• 2x 15mm fire-resisting gypsum plasterboard

Ground floor external roof and First floor

• Self-levlling parquet

• 30 mm levelling screed/ Perimeter upstand insulation/Floorbox

• Damp-proof membrane

• 87mm cross-laminated timber floor

• 600/410 mm prefabricated soffit element: 210/100/60 mm brick slips cast in concrete, fixed with steel rods to 110 mm steel channel sections with 48/48 mm inserted wood bearers

Storage/Warehouse

installation model

top structure holding the top beam

hexagonal square column

Model components

frame to hold bottom beam

M4 Bolt 20mm

support plate

spin columns gears for connecting spin

bottom plate to hold gear

bottom support systems

bottom structure providing support

section with central panel in

Display

AWArd Winning Project: Mobile sAnctuAries

RitualEcologiesAndTransnationalReligious CommunitiesInHighlands

Location:Ardross, Inverness, Scotland

Dimension: Masterplan, Architecture

Purpose: Monastic Community Framework

This research work was a one-year elective module running through part II.The research investigates the link between monastic living and sustainable practices. It aims to understand how monastic settlements have worked from the past to the present day, integrating a self-sustaining way of life into their spiritual

traditions. We started by looking at case studies, then site analysis, and gradually shifted scales from a more general to a more in-detail-focused analysis, aiming to discover the approaches, challenges, and opportunities for establishing an Orthodox community in Scotland that can incrementally grow over time. The model and set of strategies were developed to be used further in the next stage of the scheme, as well as to inspire a potential approach to be used by secular society, showing a deeper understanding of sustainable, self-sufficient, ecological practices that could influence new ways of living.

Researched case studies summary

Preliminary model for Ardross

The design strategy sees the gradual intervention starting from a small community into a domestic-scale building with similar aesthetic to context architecture. As the community expands, new buildings would be introduced, designed for the potential to be self-built and grow together with the community and their skills.

Small community
Growing community
Expanded community

Location:Bolton, England

Dimension: Architecture, Masterplanning, Landscape, Sustainability

Site Area:69,260 sqm

Status: Design in prograss 2024

jMArchitects: church WhAtf

AnApartmentMix-useMasterplan in Bolton

Church Wharf Development is a large-scale residential masterplan project based in Bolton, England. It will regenerate the parking lot area in Church Wharf and provide two- to eight-story apartments and public areas. The design proposal includes 12 apartment blocks, a care facility, and a hotel with public landscape space.

Residential blocks have been designed to interact with the River Croal. Pedestrian access and a variety of spaces are promoted throughout the scheme.

AiA life designers: sun YAt-sen universitY

ACMDConcept-AHospitalFocusonthe Communities It Serves

Location:Shenzhen, China

Dimension: Architecture, Masterplanning, Landscape, Interiors, Sustainability

Site Area:153,134 sqm

GFA: 699,770 sqm

Purpose: Healthcare Status: Design Completion 2021

This is a competition project I did with AIA Life Designer in 2021. We brought the CMD central medical centre concept, aiming to make the hospital a destination within its neighbourhood; it is a place for wellness and not just a place to be when you are sick.

Through architecture, the space will transform into an urban landscape for the surrounding communities, schools, and medical staff, providing a tranquil place for leisure and relaxation.

establish

024 设计理念

Design Concept

vieW Axis

合理的建筑朝向,病区向阳

Reasonable orientation, wards face the south

View axis to Nature Landscape and Main Road

绿色低碳的生态理念

roof gArden

PedestriAn vehicle floWs

The town of Brighton on the south side of the site has good natural views and the visual corridor is facilitates the introduction of views into the site

Green and low-carbon ecological concept

场地内的塔楼分散式布局,各住院单元与科研办公等功 能用房都能拥有良好的自然采光

视线贯通光明小镇和圳美大道 基地南侧的光明小镇拥有良好的自然景观,视觉通廊有 利于将景观引入场地中

The decentralized layout of the towers in the site, each inpatient ward and scientific research office and other functional rooms can

Guangming Town on the south side of the site which has a good natural landscape, and the visual corridor is conducive to

各功能通过连廊紧密相连

景观花园 / 屋顶花园

塔楼形成城市地标

Landscape plaza/ roof garden

自然通风和采光

多层次活力空间

Natural ventilation and lighting

The functions are closely connected by corridors

Towers form city landmarks

便捷高效的功能组织

The flows of pedestrian and vehicles are separated vertically 人车流线在竖向上分开设计

Multi-level dynamic space

Multi-layered landscaping system, so that in such a large volume of buildings, people can still get a friendly and natural experience.

Convenient and efficient function organization

核心功能的医技平台位于场地中心,保证院区各功能单 元都能最便捷高效地运行

多层次的景观绿化系统,使人身处在如此大体量的建筑 群中,依然可以获得亲切自然的体验

高体量塔楼分布于场地四周,树立医院的城市地标形象

The multi-level landscape greening system enables people in such a large-scale building group to still get a cordial and natural

The high-volume towers are distributed around the site to establish

The core function medical technology platform is located in the center of the site to ensure that all functional units in the hospital can operate most conveniently and efficiently

A vertical approach to the separation of pedestrian and vehicle flow, the ground floor is mainly pedestrian and landscape plaza, while the vehicles are mainly in underground.

车辆进入场地后就近驶入地下,地面主要为人行及景观 广场,竖向解决人车分流,B1层衔接来自地铁的人行, B2层与城市地下车道相接,提升交通效率

建筑中散布着大大小小的中庭,边界处底层架空,形成 通透连续的内庭院空间,有利于自然通风与采光

下沉广场串联起地上与地下不同来向的人群,屋顶花园 及空中庭院为多种空间的室外活动提供了可能性

Large and small atriums are scattered in the building, and the bottom floor is raised around the building's boundary to form a transparent and continuous inner courtyard space, which is

The sunken square connects people from different directions on the ground and underground. The roof garden and sky courtyard provide the possibility for outdoor activities in a variety of spaces

建筑布局形成的两条轴线同时也是室外景观向建筑内部

When vehicles enter the site, they drive into the underground nearby. The ground is mainly pedestrian and landscape squares. Vertically solves the diversion of pedestrians and vehicles. The B1 layer connects the pedestrians from the subway, and the B2 layer connects with the urban underground lane to improve traffic efficiency

The corridors of the underground is equipped indoor

景观花园 / 屋顶花园

Multi-level dYnAMic sPAces

多层次活力空间

各功能通过连廊紧密相连

Landscape plaza/ roof garden

Multi-level dynamic space

The functions are closely connected by corridors

核心功能的医技平台位于场地中心,保证院区各功能单 元都能最便捷高效地运行

多层次的景观绿化系统,使人身处在如此大体量的建筑 群中,依然可以获得亲切自然的体验

下沉广场串联起地上与地下不同来向的人群,屋顶花园 及空中庭院为多种空间的室外活动提供了可能性

The sunken plaza connects people from different directions above and below the ground, and the roof garden and sky courtyard provide possibilities for outdoor activities in a variety of spaces.

inpatient can The multi-level landscape greening system enables people in such a large-scale building group to still get a cordial and natural experience

The core function medical technology platform is located in the center of the site to ensure that all functional units in the hospital can operate most conveniently and efficiently

The sunken square connects people from different directions on the ground and underground. The roof garden and sky courtyard provide the possibility for outdoor activities in a variety of spaces

自然通风和采光

nAturAl ventilAtion&lighting

人车流线在竖向上分开设计

Natural ventilation and lighting

The flows of pedestrian and vehicles are separated vertically

车辆进入场地后就近驶入地下,地面主要为人行及景观 广场,竖向解决人车分流,B1层衔接来自地铁的人行, B2层与城市地下车道相接,提升交通效率

建筑中散布着大大小小的中庭,边界处底层架空,形成 通透连续的内庭院空间,有利于自然通风与采光

Different atriums are scattered throughout the building, with elevated ground floors at the boundaries, creating a permeable and continuous inner courtyard space, which is conducive to natural ventilation and lighting.

Large and small atriums are scattered in the building, and the bottom floor is raised around the building's boundary to form a transparent and continuous inner courtyard space, which is conducive to natural ventilation and lighting

When vehicles enter the site, they drive into the underground nearby. The ground is mainly pedestrian and landscape squares. Vertically solves the diversion of pedestrians and vehicles. The B1 layer connects the pedestrians from the subway, and the B2 layer connects with the urban underground lane to improve traffic efficiency

lAndscAPe corridors

景观走廊串联商业配套

Landscape corridors linking commercial packages

The two axes formed by the layout of the building also serve as corridors for the extension of the outdoor landscape into the interior of the building,cooperating with the commerical space.

建筑布局形成的两条轴线同时也是室外景观向建筑内部 延伸的廊道,结合地铁方向地下人流设置有下沉广场, 并配以辅助商业,增强室内外空间的活力

The two axes formed by the architectural layout are also corridors extending from the outdoor landscape to the interior of the building. A sunken plaza is set up in conjunction with the underground pedestrian flow in the direction of the subway, and is equipped with auxiliary commerce to enhance the vitality of indoor and outdoor spaces

VANKE

VANKE COMPLEX SHOP

VANKE COMPLEX SHOP

Location:Shenzhen, China

COMPLEX SHOP

Architects:dongqi Architects

Architects:dongqi Architects

Architects:dongqi Architects

Area:697 sqm

Area:697 sqm

Area:697 sqm

dongQi Architects: vAnke coMPlex shoP

AHybridInteriorProject

Wooden Details and Roof Window

Completion:2020

Completion:2020

Completion:2020

Location:Shenzhen,CN

Location:Shenzhen,CN

Location:Shenzhen,CN

Dimension: Installation, Interior Design

Area:697 sqm

This is a complex shop with a predominantly sales centre,combine with cafe,cocktail bar & floral,,the floor heights were 6,7m (B1),5.1m(1F),4.2m(2F).Heights allows us to set a new stairs to connect each floor and people can see the physical model in each floors.

This is a complex shop with a predominantly sales centre,combine with cafe,cocktail bar & floral,,the floor heights were 6,7m (B1),5.1m(1F),4.2m(2F).Heights allows us to set a new stairs to connect each floor and people can see the physical model in each floors.

This is a complex shop with a predominantly sales centre,combine with cafe,cocktail bar & floral,,the floor heights were 6,7m (B1),5.1m(1F),4.2m(2F).Heights allows us to set a new stairs to connect each floor and people can see the physical model in each floors.

Purpose: Retail and Exhibition Space

Status: 2020 Completed

Vanke is one of the largest real estate companies in China. This project is a commission by them to create a complex shop, including a sales centre, cafe, and bar. The main concept is creating interaction on each floor with the staircase design in the middle of the space.

sections concept

sections concept

sections concept

We opened up the floors and lowered the ceiling to make space look like it had been dug out.

We opened up the floors and lowered the ceiling to make space look like it had been dug out.

We opened up the floors and lowered the ceiling to make space look like it had been dug out.

View from 2nd floor to ground floor model
View from ground floor to the roof window Concept sketch

dongQi Architects: estee lAuder ciie

APop-UpStoreDesignedWithADynamic Form To Create More Social Interactions

Location:Shanghai, China

Dimension: Installation, Interior Design

Area:271 sqm

Purpose: Retail and Exhibition Space

Status: 2020 Completed

The Estee Lauder showroom for the CIIE (China International Import Expo) event was my first bulit project, I worked with my colleagues and learned how to use grasshopper to create the parametric model of the framework and fin shapes. And at the same time, testing different Acrylic material characters to create the table setting.

The Main Elevation
The Side Elevation
Display Space
Design Iteration Diagram

henn: QiAnWAn 9-YeAr consistent school

AGreenValleyfortheSchoolCommunity andNieghborhood

Location:Shenzhen, China

Dimension: Architecture, Masterplanning, Landscape, Sustainability

Area:37,141 sqm

Purpose: Education

Status: Design Completion 2020

A 9-year consistent school means putting primary school (6 years) and junior high school (3 years) together. This is a unique school typology in Shenzhen due to the pressure of increasing urban populations and shortage of usable lands. This project in Qianwan, Shenzhen, is a pre-qualification project consisting of two main concepts - a courtyard teaching valley and a lifted green public space. I contributed to the masterplan, circulation and programme diagrams, facade design and rendering works.

A
Credit: Yanan Yuan
Artworks that credit to other authors will be marked with a dote

other Works

visuAlisAtion Model MAking

Visualisation is a key component of effetive commnication in architecture. While during my free time, I am interested in sports cars and using 3d modelling software to create some modules that I am inspired. This serie of rendering was created by Blender and photoshop, showing my skill of rendering and product 3d modeling and design.

Model making is an important approach for architectural thinking and also architectural representation. Throughout the years of studying and practicing architecture, I try to reflect on what has been made to understand the insights and knowledges. At the same time, I also use model as an representation approach, showing my final design intention.

PhotogrAPhY

As much as I love traveling and intercultural commnucation, photography has been one of my most exiciting hoobies to do when I travel somewhere. The photo composition is as critical, if not more, as creating a building. Through a lens, I also using cinematic techniques to generate the emtions that I want the viewers to feel when they see my photos.

Turn static files into dynamic content formats.

Create a flipbook
Issuu converts static files into: digital portfolios, online yearbooks, online catalogs, digital photo albums and more. Sign up and create your flipbook.
Portfolio QixingHuang by Qixing Huang - Issuu