CV with examples of work Qixing Huang

Page 1

Architecture Portfolio

Qixing huAng

Allen | Qixing huAng

Part II Architectural Assistant

An enthusiastic and self-disciplinary individual graduated from Newcastle University in 2023 who is passionate about taking an integrated approach to architecture, interior design and urban design.

Newcastle / London / Shanghai qixinghuang@outlook.com

educAtion

Newcastle Univesity, Newcastle upon Tyne

MArch Architecture in the School of APL

Sept 2021 to Jun 2023

Modules: Architectural Design Research, Architectural Design Practice, Linked Research Project (University project in Ardross, Scotland), Tools for Thinking About Architecture and Architectrual Practice

2-Year Postgraduate Programme RIBA Part 2 accredited (Merit, Research Project won Willam Glover Prize)

Newcastle Univesity, Newcastle upon Tyne

BArch Architecture in the School of APL

Sept 2016 to Jun 2019

Modules: Architecture Design, Architecture Technology, Architecture History, Architecture Theory into Practice, Cities, Cultures and Space, Dissertation in Architectural Studies and Research Methods and Professional Practice and Management

3-Year Undergraduate Programme RIBA Part 1 accredited (2.1, Graduate Project with the Distinction Grade)

INTO Newcastle, Newcastle upon tyne

Architecture Foundation

Modules: Architectural Design, Architecture History, Professsional Study, English Academic Practice

1-Year Pre University Programme

other exPerience

Newcastle Univesity, Newcastle upon Tyne

Part-Time Architecture Undergraduate Students Assistant Tutor

Assited Dr. Kati Blom teaching Year 1 Architecture students, I was invloved in assisting them with brief generation, concept design and developed design process.

Newcastle Univesity, Newcastle upon Tyne

Elected Treasurer of NU Poker Society

Operating the society’s large budget, organising merchandise, sponsorship, and deals with different organisations. Teaching over 130 active members new skills and improvements on playing poker, such as mathematical, psychological aspects and sensible bank management. (won NCL+ Advanced Award in Leadership 2023)

exPerience

Friends Studio(Formerly known as TA!LAB Design), Newcastle Archiectural Assistant

Worked as a part-time architectural assistant on several residential refurbishment projects in the UK, primarily focused on stage 3 onwards with technical details and onsite experience.

AIA Life Designer, Shanghai Archiectural Assistant

Worked on several medical project competitions and mixed-use master planning projects in Asia Pacific Regions and assisted in producing design packages from schematic, design development, and construction processes involving BIM modeling.

Dongqi Architects, Shanghai Archiectural Assistant

Worked on high-end interior design projects ranging from residential, hospitality to commerical sectors, assisting with design works, contacting contractors, meeting suppliers, and coordinating design style with clients.

HENN Architects, Beijing

Archiectural Assistant

Sept 2015 to Jun 2016

Oct 2021 to Jun 2023

Oct 2022 to Jun 2023

Sept 2019 to Sept 2020

Involved with the working process from the pre-qualification to the design development stage with various building types. As my first architectural job, I learn the duties with my colleagues and the communication skills with the clients and contractors.

skills

Architectural

3D |

Rhinocores

Revit

Sketchup

Others

Advanced

Good but willing to learn

Advanced

Grasshopper, Vray, Indesign, Hand Drawing, Model

Making and Microsoft Office

Language

English Professional working proficency

Additional

Experienced photographer

references

Prof. Prue Chiles

Newcastle University the School of APL

Mr. Simon Tsouderos

AIA Life Designer

2D |

Autocad

Illustrator

Photoshop

Mandarin | Native proficency

Good but willing to learn

Advanced

Advanced

Dr. Polly Gould

Newcastle University the School of APL

Mr. Nan Jiang

Dongqi Architects

2020 to Dec 2020 Oct 2021 to May 2022 Dec 2020 to June 2021
Sept
hosPitAl
oceAn one other
PArt
1-8 9-20 21-22 Pg.1 Pg.9 Pg.21 Pg.23 Pg.25 Pg.27 Pg.28 23-24 25-26 27 28 29-30 sections concept This is a complex shop with a predominantly sales centre,combine with cafe,cocktail bar & floral,,the
6,7m (B1),5.1m(1F),4.2m(2F).Heights
of s
Works selected Works AcAdemic Works ProfessionAl Works PArt 2 finAl thesis Project - intervie YeAr 3 Project - commun
2 linked reseArch Project
were
allows us to set a new stairs to connect each floor physical model in each floors.

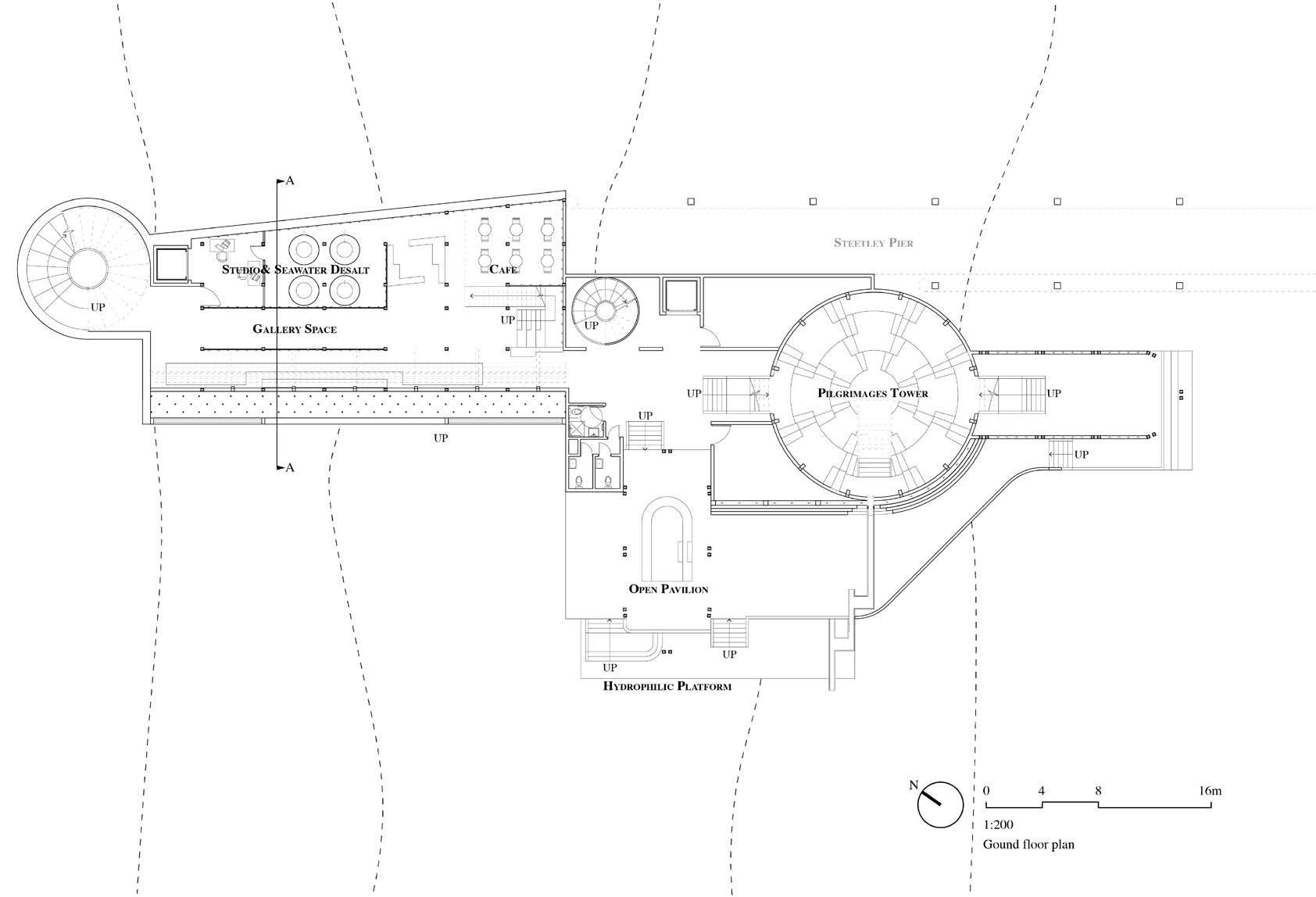
This project is from Stage 6 at Newcastle University, the second year of the Master of Part II Architecture programme.

The brief is generated from the investigation of the Anthropocene, which means that modern humans have since become the most dominant species in shaping the earth. Exploiting peat bog has had one of the most significant impacts on biodiversity and caused substantial carbon emissions.

comPAred to thousAnds of YeArs of PeAtlAnd formAtion, humAn’s rAther short Period on the PlAnet hAs cAused A huge imPAct on shAPing the eArth. the collAge is shoWing humAn’s exPlorAtion on the PlAnet’s Wilderness

1000mm 2000mm 0mm 0 year10 years20 years 10 years 100 years 1000 years
ANTHROPOCENE ‘AGAMEMNON’ PEATLAND ‘THE SCARED DEER’

not only using the intertidal peatland for a acient and historical survey but also studying present-day evidence of the past to unlock insights about the far future.

restorAtion reinvent reseArch

The building aims to generate environmental awareness and civic responsibility by creating a spatial experience sequence to appreciate the peatland’s vast temporal breadth and establish a dialogue with the archaeological remnants; it also has the facility and space for peat bog researchers to restore the damaged peatland. People can have a face-to-face experience with peat when they go down to the gallery space.

SEAWATER DESALTING PEATLAND DIG PEAT TESTBED
3

complex shop with a predominantly sales centre,combine with cafe,cocktail bar & floral,,the floor heights (B1),5.1m(1F),4.2m(2F).Heights allows us to set a new stairs to connect each floor and people can see the model in each floors. Area:697 sqm Completion:2020

Architects:dongqi Architects

VANKE COMPLEX SHOP plan

VANKE COMPLEX SHOP plan

VANKE COMPLEX SHOP plan

vAnke comPlex shoP

AHybridBuilding Wooden details and Patio

Area:697 sqm

Area:697 sqm

Area:697 sqm

Completion:2020

Completion:2020

Completion:2020

Location:Shenzhen,CN

Location:Shenzhen,CN

Location:Shenzhen,CN

This is a complex shop with a predominantly sales centre,combine with cafe,cocktail bar & floral,,the floor heights were 6,7m (B1),5.1m(1F),4.2m(2F).Heights allows us to set a new stairs to connect each floor and people can see the physical model in each floors.

This is a complex shop with a predominantly sales centre,combine with cafe,cocktail bar & floral,,the floor heights were 6,7m (B1),5.1m(1F),4.2m(2F).Heights allows us to set a new stairs to connect each floor and people can see the physical model in each floors.

This is a complex shop with a predominantly sales centre,combine with cafe,cocktail bar & floral,,the floor heights were 6,7m (B1),5.1m(1F),4.2m(2F).Heights allows us to set a new stairs to connect each floor and people can see the physical model in each floors.

We

1.ARCHITECTURAL MODEL 2.BAR COUNTER (CAFE) 3.SIGNING AREA 4.FINANCE ROOM b1

1.ARCHITECTURAL MODEL

2.BAR COUNTER (CAFE) 3.SIGNING AREA

25 26 Port io_CHIEN shih han_ detail Mini recessed light strip This line is the finished surface of the plasterboard wrapped stair beams except for the wrapped steel beams, the side of the tread is hollowed out. Decorative multilayer panel Decorative multilayer panel Structure wall Structure wall 9MM flame retaardant sheet 9MM flame retaardant sheet 9MM flame retaardant sheet Multi-layer veneer composite base sheets Multi-layer veneer composite base sheets Wood veneer Wood veneer pendant Wood veneer Wood veneer pendant Wood veneer pendant Mirror chamfer 1mmx1mm Mirror Keel clip Cladding keel Cladding keel Stainless steel Original building floor slab Interfacial agent Tiles Tiles adhesives fine-grained concrete screed Dry cement mortar levelling layer Same color in the light trough and the ceiling Mini recessed light strip Mirror Same color in the Portflio_CHIEN shih han_ VANKE COMPLEX SHOP sections DN 1.FLORAL 2nd floor 4.GUEST SEATING AREA 1 2 3 4 3.BAR COUNTER 6.HEIGHT TABLE AREA UP DN 1.RECEPTION 2.BAR COUNTER (CAFE) 3.GUEST SEATING AREA 4.SIGNING
1 2 3 4 1st floor UP
AREA
4.FINANCE
b1 floor 5 5.WASHROOM 5.WASHROOM 1 2 3 4 5 5.STORAGE 5 6.STORAGE 6 2.STAIR SEATING 6 mirrored stainless steel 7 up the floors and lowered the ceiling to make space look like it had been dug out. We designed a number of stainless steel panels on ceilings to define the functions and simulate
ROOM
Location:Shenzhen,CN diagram DN 4.GUEST SEATING AREA 3.BAR COUNTER 6.HEIGHT TABLE
UP DN 1.RECEPTION 2.BAR
4.SIGNING AREA 1 2 3 4 1st floor UP
5.WASHROOM 5.WASHROOM 1 2 3 4 5 5.STORAGE 5 6.STORAGE 6 2.STAIR SEATING 6 mirrored stainless steel 7.SCREEN 7 lowered the ceiling to make space look like it had been dug out. We designed a number of stainless steel panels on ceilings to define the functions and simulate skylight
(B1),5.1m(1F),4.2m(2F).Heights allows us to set a new stairs to connect each floor and people can see the Location:Shenzhen, China Dimension: Installation, Interior Design Area:697 sqm Purpose: Retail and Exhibition Space Status: 2020 Completed Vanke is one of the largest real estate companies in China. This project is a commission by them to create a complex shop, including a sales centre, cafe, and bar. The main concept is creating interaction on each floor with the staircase design in the middle of the space. 3 Portflio_CHIEN shih han_ 2021
AREA
COUNTER (CAFE) 3.GUEST SEATING AREA
floor
predominantly sales centre,combine with cafe,cocktail bar & floral,,the floor heights
diagram DN 1.FLORAL 2nd floor 4.GUEST SEATING AREA 1 2 3 4 3.BAR COUNTER 6.HEIGHT TABLE AREA UP DN 1.RECEPTION 2.BAR COUNTER (CAFE) 3.GUEST SEATING AREA 4.SIGNING AREA 1 2 3 4 1st floor UP 1.ARCHITECTURAL MODEL 2.BAR COUNTER (CAFE) 3.SIGNING AREA 4.FINANCE ROOM b1 floor 5 5.WASHROOM 5.WASHROOM 1 2 3 4 5 5.STORAGE 5 6.STORAGE 6 2.STAIR SEATING 6 mirrored stainless steel 7.SCREEN 7 concept
sections
efine the functions and simulate skylight
opened up the floors and lowered the ceiling to make space look like it had been dug out.
Architects:dongqi Architects
3 Portflio_CHIEN shih han_ 2021
diagram DN 1.FLORAL 2nd floor 4.GUEST SEATING AREA 1 2 3 4 3.BAR COUNTER 6.HEIGHT TABLE AREA UP DN 1.RECEPTION 2.BAR COUNTER (CAFE) 3.GUEST SEATING AREA 4.SIGNING AREA 1 2 3 4 1st floor UP 1.ARCHITECTURAL MODEL 2.BAR COUNTER (CAFE) 3.SIGNING AREA 4.FINANCE ROOM b1 floor 5 5.WASHROOM 5.WASHROOM 1 2 3 4 5 5.STORAGE 5 6.STORAGE 6 2.STAIR SEATING 6 mirrored stainless steel 7.SCREEN 7
sections
concept
efine the functions and simulate skylight
We opened up the floors and lowered the ceiling to make space look like it had been dug out.
Architects:dongqi Architects
3 Portflio_CHIEN shih han_ 2021
sections DN 1.FLORAL 2nd floor 4.GUEST SEATING AREA 1 2 3 4 3.BAR COUNTER 6.HEIGHT TABLE AREA UP DN 1.RECEPTION 2.BAR COUNTER (CAFE) 3.GUEST SEATING AREA 4.SIGNING AREA 1 2 3 4 1st floor UP 1.ARCHITECTURAL MODEL 2.BAR COUNTER (CAFE) 3.SIGNING AREA 4.FINANCE ROOM b1 floor 5 5.WASHROOM 5.WASHROOM 1 2 3 4 5 5.STORAGE 5 6.STORAGE 6 2.STAIR SEATING 6 mirrored stainless steel 7.SCREEN 7
look like it had been dug out. efine the functions and simulate skylight
concept We opened up the floors and lowered the ceiling to make space
Wood stair handrail detail Stainless steel panels View from 2nd floor to ground floor model View from ground floor to the roof window Concept sketch Technical drawing, detail tips for the construction process Portflio_CHIEN shih han_ 2021 diagram bar counter bar counter + = branding color branding color colorful plywood wall menu wall with lights height table railing wall cabinet typology Portflio_CHIEN shih han_ 2021 diagram bar counter bar counter + = branding color branding color colorful plywood wall menu wall with lights height table railing wall cabinet typology

Location:Shanghai, China

Dimension: Interior Design

Area:271 sqm

Purpose: Residential

Status: 2022 Completed

residentiAl renovAtion

ALuxuryFlatRenovation

MinimalisticAnd Curved

This project is a residential interior renovation project next to Huangpu River, Shanghai. The flat is in one of the most expensive condos in Shanghai, and it was on the 16th floor. There are the couple and their two sons living in the area. They required minimum style and some curve design in the private spaces.

Location:Shanghai, China

Dimension: Installation, Interior Design

Area:271 sqm

Purpose: Retail and Exhibition Space

Status: 2020 Completed

estee lAuder ciie

APop-UpStoreDesignedWithADynamic Form To Create More Social Interactions

27 28 Living Room
Bathroom The Estee Lauder showroom for the CIIE (China International Import Expo) event was my first bulit project, I worked with my colleagues and learned how to use grasshopper to create the parametric model of the framework and fin shapes. And at the same time, testing different Acrylic material characters to create the table setting. The Main Elevation
Display
Design
Grasshopper Script
The Side Elevation
Space
Iteration Diagram
Wardrobe

visuAlisAtion model mAking PhotogrAPhY

Visualisation is a key component of effetive commnication in architecture. While during my free time, I am interested in sports cars and using 3d modelling software to create some modules that I am inspired. This serie of rendering was created by Blender and photoshop, showing my skill of rendering and product 3d modeling and design.

Model making is an important approach for architectural thinking and also architectural representation. Throughout the years of studying and practicing architecture, I try to reflect on what has been made to understand the insights and knowledges. At the same time, I also use model as an representation approach, showing my final design intention.

As much as I love traveling and intercultural commnucation, photography has been one of my most exiciting hoobies to do when I travel somewhere. The photo composition is as critical, if not more, as creating a building. Through a lens, I also using cinematic techniques to generate the emtions that I want the viewers to feel when they see my photos.

29 30
other Works

Turn static files into dynamic content formats.

Create a flipbook
Issuu converts static files into: digital portfolios, online yearbooks, online catalogs, digital photo albums and more. Sign up and create your flipbook.
CV with examples of work Qixing Huang by Qixing Huang - Issuu