Yuechao Zhang Architecture Portfolio

Page 1


YUECHAO ZHANG

ARCHITECTURE PORTFOLIO

For me, architecture is a process of constantly deconstructing and reshaping my view of reality. It is a collection of a series of concepts, a combination of form and thought, a poem composed of spatial vocabulary, and a concretization of the relationship between things.

Architecture should have no boundaries, it can start from a story imagination, a cultural interpretation, a social observation, a visualization of time, etc. in this portfolio, I take a variety of topics as the driving force of architectural design, and try to build diverse architectural worlds.

A Journey Through Materials

Site: Berkeley Marina,CA

Fall 2024

Instructor: Aaron Forrest

Group Work with Yifei Chen

This project explores the transition of structural materials and their expanded functionality, responding to the unique climatic and environmental conditions of the Berkeley Marina. The column system transitions horizontally from stone-clad concrete in the southwest, where wind pressures are highest, to concrete and timber in the northeast, where forces are lighter. Vertically, columns decrease in size and load-bearing requirements, while material selection addresses exposure to moisture and sunlight for durability.

The design introduces a typology where columns evolve from load-bearing supports to hollow cores housing MEP systems, and finally to occupiable spaces for unique programming.

The site is in Berkeley Marina, where has strong wind and moisture in southwest. And this ferry terminal is a connection of Berkeley Marina and San Francisco.

The design introduces a typology where columns evolve from load-bearing supports to hollow cores housing MEP systems, and finally to occupiable spaces for unique programming.

2nd

To block harsh sunlight from the sides, we used fritted glass where the curtain wall doesn’t obstruct views. Meanwhile, cross-shaped skylights were added to bring more sunlight to the top floor.

Data Dwellings

Site: San Francisco

Spring 2024

Instructor: Georgios Eftaxiopoulos

Individual Work

This is a combining data storage and housing. This combination concept is trying to challenge the traditional way of data storage and the ownership of data.

In data age everyone generate a great amount of data everyday , In the traditional way of data storage: the Internet company collect users data and sent data to data center and pay lots of money for it. But in this process, we Internet users lose the connection with our own data, and don't get any profit. So in this project the new proposal is the Internet company sent the data back to the apt where the Internet users living in And the company pay to the apt, so in this way , allowing residents to get the ownership and profit from the data they generate. And what's more the heat produced by data servers can be used to heat daily water for residents.

Decentralized Data Storage

The Internet company sent the data back to the apt where the Internet users living in And the company pay to the apt, so in this way , allowing residents to get the ownership and profit from the data they generate.

MEP systems are installed above the living areas, connected via the ceiling, ensuring that the mep system do not interfere with the daily lives and when people change the floor spatial types, the process will not influence the mep system .

Shared Living Units Plan
Private Living Units Plan
Shared MEP Roof Plan
Private MEP Roof Plan Data Servers MEP Roof Plan

This is like a system design about data storage, from energy supply to storage to the final use of heat. Creating profits for the entire community while also making it more active.

Shared Living Units
Shared Kitchen
Privated Living Units
Living Space of Shared Living Units
Bedroom of Private Living Units

Under The Wave

Site: Putian, China

Summer 2021

Instructor: Zhao Wen

Personal Work

This project is an exhibition center designed to commemorate the history of fishermen on Meizhou Island, China. Underwater space and resources are the basis for fishermen to survive for generations, due to which the history of fishermen does not only exist on the ground but also underwater. We need an exhibition center with symbolic significance as important as functional significance, which can narrate the stories above and below the waves in a realistic and fantasy way.

Starting from the imagination of underwater space, the project discusses three aspects of architectural design: the flowability of interior space, the shaping of the earth landscape, and the construction of light and darkness atmosphere.

Concept Story | Incarnate as A Fish

Although fishermen accompany the waves day and night and enjoy the gifts brought by the waves, few people care about what the world looks like under the waves. If we incarnate as a fish, we will have a deeper understanding of the waves on which fishermen depend. We are fish living on land.

Wave Shape Extraction

Site Analysis

Horizontal Flow
Vertical Flow
Earth landscape
Void and Solid
Section A-A
Section B-B
Section C-C
Section D-D
Section E-E

are

Five skylights
set on the roof of the project. The light from the skylights can be seen but not reached, attracting people to keep chasing the light like fish. At the same time, these five skylights also serve as guides in the east-west direction.
Ambiguous Light under The Waves
View in Exhibition Hall

Auditorium: Boolean

Site: Oakland, CA Spring 2023

Instructor: Alissa Chastain Personal Work

In this project,I start with three 3D shapes as a means to study the form(s) of the project. The largest will be a Box of fixed dimension that fills the buildable envelope. The other two will nest, intersect, overlap or otherwise occupy the middle of the first volume. The results of this exercise should be prompted by our the initial responses to site, program and circulation.

This project is an exercise in 3D Boolean design skill, aimed at reducing our reliance on twodimensional imagination and improving our understanding of the three-dimensional space of architecture.

The site is located on the intersection of Telegraph Ave and 22nd St in Oakland, at the corner of the street. There is a diagonal angle at the diagonal intersection of the site, which becomes a key factor in stimulating the design of the project

The void space and solid space were defined by using the Boolean of two cuboids. The void space is connected to the outside world and runs through the entire building, while the solid space serves as the main program,such as theater, commercial spaces, and more.

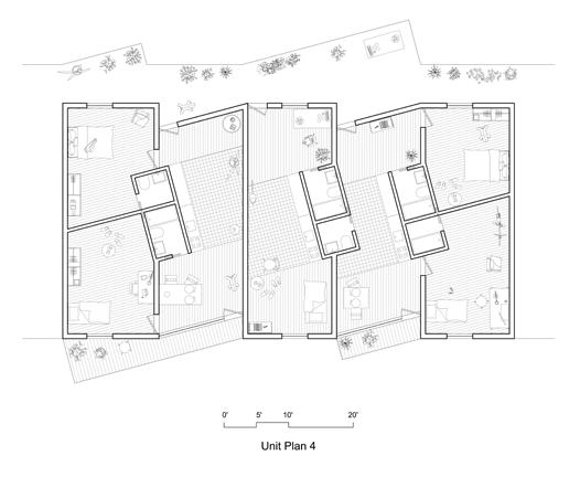
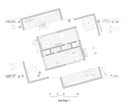
Reframe Living

Site: Oakland, CA

Fall 2023

Instructor: Ryan Keerns

Personal Work

This project aims to reimagine the lifestyle of contemporary urban residents by redefining the boundary between public and private living spaces. The housing scheme is composed of two types of apartment units: Public Units and Private Units.

Public Units share living spaces across boundaries, forming collective communal areas. Private Units retain internalized living spaces, offering more solitude. Both unit types can be further adjusted to allow for more public or private lifestyles, enabling diverse living arrangements within a single housing system.

The site is the large 15-acre parcel located at the intersection of Broadway and Pleasant Valley Avenue. A corner site at a significant urban intersection, the site has the potential to contribute to the identity of the neighborhood and is an ideal candidate for a vibrant collection of housing, retail and public amenity.

Public units: centrifugal and centripetal organization.
Private units: shared and isolated spaces.
Gradual transition from private to public.

Teahouse: Scroll

Site: Xiamen, China

Fall 2021

Instructor: Zhao When

Personal

Work

Located in Xiamen University, the project is a place for teachers and students to drink tea, visit and rest. I take the action of curling as the driving force of the whole project, extract and deconstruct the concepts of traditional Chinese landscape painting and traditional Chinese garden, and finally endow the project with the spatial characteristics of traditional culture by using modern design techniques so that the teahouse is not only a building but also a carrier of culture and metaphor.

This project also tries to combine Colin Rowe's Phenomenon Transparency theory with traditional Chinese garden design theory, to create a rich tour experience for people in a limited space and realize the integration of traditional culture and modern theory at the theoretical level.

Traditional Chinese landscape painting adopts the method of scattered point perspective. Due to the length of the scroll, visitors have to walk while viewing the painting. In this way, the person watching the painting seems to be in the scenery of the painting. If we roll up the painting and make holes in it, sceneries can be juxtaposed on one spot and we can enjoy them at the same time. In this case, we realize the superposition of information and atmosphere, which is called Phenomenon Transparency.

There are four types of forms of window holes, which can meet the tourists' space experience of peeping at the chink, root, crown, and whole and enrich visitors' visual experience.

The landscape counterpoint comes from the Chinese traditional garden. Make use of the opposite scenery, barrier scenery, and clamp scenery to enrich visitors' tour experience.

Peep at The Chink Peep at The Root Peep at The Crown Peep at The Whole
Opposite Scenery
Clamp Scenery Barrier Scenery

Curling Iteration

Hiding and Exposing

The roof is cut to provide ramps to connect the upper and lower platforms. The height relationship of the interior part of the wall is reversed to prevent the internal space of the building from being seen at a glance.

Field Breaking

By creating window holes, the courtyard and indoor space penetrate each other, blurring the boundary between indoor and outdoor. By adding terraces, we can further realize the mutual integration of architecture and nature.

Functional Partition

Courtyards Service Space Stairs Roof Ramp

The trapezoid is a shape that represents kinetic energy. One of the meanings of shaping the rooms in the teahouse into trapezoids is that the trapezoidal spatial form can create an invisible force, which urges tourists to visit from one room to another and from one landscape to another in the teahouse.

1: 125 Scale Model Photograph- West Facade
1 125 Scale Model Photograph- Aerial View of scenes

All rooms in the teahouse are connected in series by using a linear Route to complete a spatial narrative in the painting. The walls and space are elongated, and tourists become both observers and participants in the painting.

Layers:

Wall Aseemblies

Fall 2024

Instructor: Maria Paz Gutierrez

Individual Work

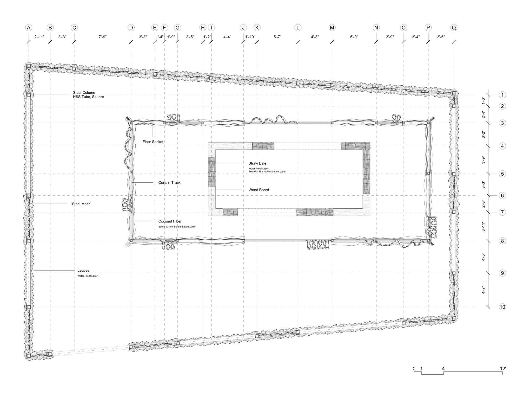
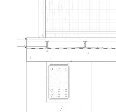
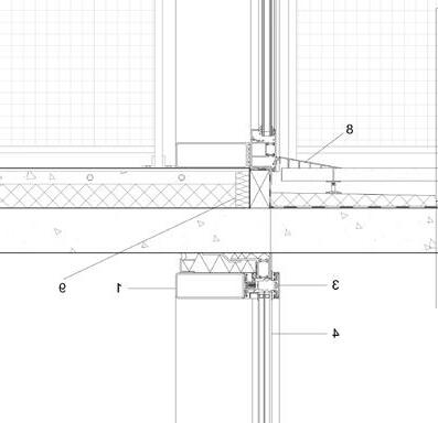
This thesis reimagines the architectural wall not as a sealed system, but as a layered field of interaction. Using plant-based materials—leaves, coconut fiber, straw— it proposes a new way to build: one that is soft, porous, and temporal. Each material performs differently. Each layer becomes a space.

By deconstructing wall assemblies and assigning spatial roles to each layer, architecture becomes tactile, visible, and alive. It invites users to touch, replace, and grow with their walls—a house that breathes, ages, and changes like a living being.

What if We separate the layers of polyvalent wall apart, and consider them as single layer wall?

In this case, inside water proof wall you feel dry but without insulation, you feel cold and noisy. Inside insulation wall you feel warm but wet. They are not perfect, but provide sensory experience.

About sensory experiences, the assemblies matter, materials matter, we don’t need to use industrial products that just served as single performance . We can use plants and something more environmental friendly. And the use of such unfamiliar building materials further intensifies the sensory experience.

Concrete
Combination
Water Proof
Nesting
Insulation
Intersection

I began collecting leaves, Straws, grasses. Layering them, I discovered textures, smells, and colors that no industrial material could offer. There are so many possibilities beyond concrete, wood, steel......

After studying materials, I turned to space. I chose three plant-based materials: leaves, coconut fiber, and straw. Leaves are small and fragile, Coconut fiber is surface and string, Straw is a tube, light and hollow. Each material rearranged as wall, as room, as form. Plants became architecture.

Different Patterns and performances of the Plant Wall

Each program lives in a different layer, shaped by its needs. The garden—light and open—needs no insulation. The bedroom needs softness and privacy. The kitchen demands both water resistance and thermal comfort. Layers are separate, but once they meet, new narratives begin.

Wall assemblages are layers, Layers unfold diverse performances, Performances evoke unique sensory experiences.

Wall assemblages are layers, Layers transform through materials, Materials emerge from the everyday.

Spring 2025

Cook The Wall

Individual Work

It’s not just about sustainability, but also bring new possibilities to architecture. These tiles have different colors, textures, smells compared to traditional architecture materials. about sensation, play, and temporality. It could reduce waste, add sensory experience, and be completely biodegradable.

Glitch City

Fall 2023

Personal Work

Our world is filled with glitches, and the reason we don't see these glitches is that we are immersed in them and consider them as normal things......

When glitches appeared in the city, no one knew what they were. They spread like viruses from buildings to blocks to the whole city. People tried to stop it but found it to be futile, because glitches are manifestations of the problem rather than the problem itself.

So what caused glitches? It’’'s aaActua///y.... c@ p¡†@l¡$℘’....

Tel: +1 5109449807

E-mail: yuechaozhang@berkeley.edu

Turn static files into dynamic content formats.

Create a flipbook
Issuu converts static files into: digital portfolios, online yearbooks, online catalogs, digital photo albums and more. Sign up and create your flipbook.