VentAHood Stock Item Pricebook

Page 1

Vent-A-Hood List Price Book Vent-A-Hood List Price Book Effective April 15, 2022 800-292-8374 www.pinnaclesalesgroup.com LIFETIME WARRANTY MAGIC LUNG BLOWER

Grease Extraction

The patented Magic Lung® centrifugal grease extractor collects 99% of the grease 100% of the time (University of Minnesota)

Quiet and Powerful

Each Magic Lung® blower supplies 300 CFM of air flow—combining multiple blowers will meet any air flow requirement without increasing the noise level. Variable speed blowers become louder and louder as CFM increases.

Efficient

Filters obstruct air flow and spoil the collector properties of the canopy. A range hood equipped with the Magic Lung® blower system is a wide open, active collector that invites contaminants in. A proper collector is the most critical element for good cooking ventilation and requires 1/3 less air flow than a filter-style range hood.

Pinnacle Sales Group 2 List Price Book
Magic Lung® Whisper Quiet Technology
other brands VS
constant 99% centrifugal grease extraction
5% to 60% variable grease extraction screen/baffle filter our premium magic lung® blower
the quietest ventilation available 300 CFM=5.4 sones 600 CFM=6.5 sones 900 CFM=6.3 sones 1200 CFM=6.6 sones
300
600
900
1200
noisy variable speed blower
CFM=6.0 sones
CFM=9.0 sones
CFM=12.0 sones
CFM=15.0 sones
large active canopy removes contaminants closed canopy restricts air flow the vent-a-hood difference

difficult

grease escaping the filters coats the motors and wiring

fire safety

The Magic Lung® constant-speed blower is designed to keep grease and flame from entering the duct. In over 75 years, Vent-A-Hood has never received a report of an attic or wall fire when the Magic Lung® has been in use.

MAGIC LUNG BLOWER

warranty

the vent-a-hood difference + 5 YEARS ON ALL OTHER PARTS

We’ve got you covered with the best warranty in the industry. We offer a lifetime warranty on our Magic Lung blowers, plus a 5-year warranty on all other parts.

3 List Price Book P: 800-292-8374 • F: 800-574-8805 www.pinnaclesalesgroup.com
Magic Lung® Whisper Quiet Technology
other brands VS
flame has no access to secondary sources of combustion no greasy filter to sustain a secondary fire greasy
ducting
flammable flame
access to multiple sources of combustion new, simple slide-off grease tray blower housing snaps apart for fast cleaning easy to clean
filters and
are
has direct
Cleaning the grease from behind the filter is nearly impossible. Access is limited by components and sharp protrusions. Even the motor gets greasy. The new in-the-shield grease tray makes routine cleaning easier than ever. If desired, the Magic Lung® blower comes apart for easy cleaning in soapy water or a dishwasher. to clean
LIFETIME WARRANTY
Vent-A-Hood® has long been the most respected name in ventilation. Our products are guaranteed to work and we stand on over 75 years of manufacturing the highest quality ventilation products. Our family is devoted to your satisfaction.

KEYS TO SUPERIOR VENTILATION

BLOWER(S) • CANOPY • DUCTING

• The first question you should ask a customer is how many BTUs or wattage are produced by the type of cooking equipment that is in their kitchen. Do they have a gas, electric, or induction cooking system?

• The hood, blower system and ducting should be designed to handle the heat being produced from the cooking surface.

• Refer to chart below to determine how many CFM (Cubic Feet per Minute) are needed.

Match Number of Blowers to Cooking Equipment

H%#*"I($#*&0+"J0("#K0(/'"-#!"-")(#*0L$%M""" NK-*"*J.$"0O")00!&+,"$I(&.L$+*"N&//"P$"(#$'Q *K$"K00'R"P/0N$%"#J#*$L"-+'"'()*&+,"#K0(/'"P$"'$#&,+$'" *0"K-+'/$"*K$"K$-*"P$&+,".%0'()$'"PJ"*K$")00!&+,"#(%O-)$S""" K0N"L()K")OL"B)(P&)"O$$*"0O"-&%".$%"L&+(*$C"'0"J0("+$$'Q"

What is “Equivalent CFM”?

123"4225"6227894":;9<8=><829"8?">618;:;5 @=23;AB?C"D"6>92EF"D"5G6<894

D"TUU"6VW"BXYU"6VW"$I(&Z-/$+*C D"@[UU"#&+,/$"P/0N$%

D"\]"'&-L$*$%"Z$+*

6" DIAMETER

D"\UU"6VW"B^UU"6VW"$I(&Z-/$+*C

D"@_UU"'(-/"P/0N$%

* Because the Magic Lung® uses centrifugal filtration units rather than conventional baffle or mesh filters, the Magic Lung® Blower can handle cooking equipment with higher cubic feet per minute (CFM) requirements and is much more efficient than other filtration systems. When comparing Magic Lung® blowers to that of other competitor units, Magic Lung CFM ratings reflect true CFM ratings. For example, a competitor’s 1800 CFM blower unit has a performance equivalent CFM of 1200 CFM.

D"`]"'&-L$*$%"Z$+*

300 CFM 900 CFM

D"TUU"6VW"BXYU"6VW"$I(&Z-/$+*C D"@[UU"#&+,/$"P/0N$% D"\]"'&-L$*$%"Z$+*

D"^UU"6VW"B[RTYU"6VW"$I(&Z-/$+*C"""

D"@_UU"5(-/"a"@[UU"#&+,/$"P/0N$%

D"`]"-+'"\]"'&-L$*$%"Z$+*#

D":EY\_"L(/*&"P/0N$%"*%-+#&*&0+

600 CFM 1200 CFM

D"\UU"6VW"B^UU"6VW"$I(&Z-/$+*C D"@_UU"'(-/"P/0N$%

D"`]"'&-L$*$%"Z$+*

* * * *

:EY\_" B\]"-+'"`]"*0"[U]C

D"[_UU"6VW"B[R`UU"6VW"$I(&Z-/$+*C

D"<N0"@_UU"'(-/"P/0N$%#

D"<N0"`]"'&-L$*$%"Z$+*#

:EY\T" B`]"-+'"`]"*0"[_]C

D"^UU"6VW"B[RTYU"6VW"$I(&Z-/$+*C""" D"@_UU"5(-/"a"@[UU"#&+,/$"P/0N$% D"`]"-+'"\]"'&-L$*$%"Z$+*# D":EY\_"L(/*&"P/0N$%"*%-+#&*&0+

HOOD TYPE
EQUIPMENT TYPES: MAGIC LUNG® BLOWER(S) (TRUE CFM) COMPETITOR EQUIVALENT CFM* MULTI-BURNER COOKTOP RATING (BTU/WATTS) BBQ, WOK OR GRIDDLE (BTU/WATTS) WALL-MOUNT OR UNDER CABINET 12,000 WATTS 12,000 WATTS 240 CFM K SERIES BLOWER 300 CFM B100 SINGLE BLOWER 360 CFM 450 CFM UNDER-CABINET 40,000 - 60,000 BTU 24,000 WATTS 40,000 - 60,000 BTU 24,000 WATTS 600 CFM (B200 DUAL BLOWER) 900 CFM WALL-MOUNT 40,000 - 60,000 BTU 40,000 - 60,000 BTU 24,000 WATTS 600 CFM (B200 DUAL BLOWER) 900 CFM WALL-MOUNT 60,000 - 90,000 BTU 60,000 BTU 36,000 WATTS 900 CFM (ONE B100 SINGLE BLOWER PLUS ONE B200 DUAL BLOWER) 1350 CFM WALL-MOUNT 80,000 - 120,000 BTU 80,000 BTU 48,000 WATTS 1200 CFM (TWO B200 DUAL BLOWERS) 1800 CFM ISLAND 40,000 - 60,000 BTU 40,000 BTU 24,000 WATTS 550 CFM (T200 ISLAND DUAL BLOWER) 900 CFM ISLAND 80,000 - 120,000 BTU 80,000 BTU 48,000 WATTS 1100 CFM (T400 ISLAND CLUSTER BLOWER) 1800 CFM Pinnacle Sales Group 4 List Price Book
COOKING
6"
8" DIAMETER
DIAMETER
8" DIAMETER
:EY\_" B\]"-+'"`]"*0"[U]C \]"'&-LS `]"'&-LS `]"'&-LS \]"'&-LS !"#$%&'(")&(*+&,-&./+-,0((%12(3&& !"#$%&$# '()*&+,"-+'"-../&)-*&0+# !"#$%&'(")&(*+&,-&./+-,0((%12(3&& 123"4225"6227894":;9<8=><829"8?">618;:;5 @=23;AB?C"D"6>92EF"D"5G6<894 SMALL GAS 240 CFM K SERIES BLOWER 300 CFM B100 SINGLE BLOWER 360 CFM 450 CFM
6" DIAMETER 6" DIAMETER 8" DIAMETER 8" DIAMETER 8" DIAMETER 8" DIAMETER
D":EY\T"L(/*&"P/0N$%"*%-+#&*&0+ \]"'&-LS `]"'&-LS `]"'&-LS \]"'&-LS `]"'&-LS `]"'&-LS
P$)-(#$"*K$"W-,&)"=(+,b"(#$#")$+*%&O(,-/"H/*%-*&0+"(+&*#"%-*K$%"*K-+" )0+Z$+*&0+-/"P-Oc$"0%"L$#K"H/*$%#R"*K$"W-,&)"=(+,b"P/0N$%")-+"K-+'/$")00!&+," $I(&.L$+*"N&*K"K&,K$%")(P&)"O$$*".$%"L&+(*$"B6VWC"%$I(&%$L$+*#"-+'")-+"'$/&Z$%" $I(&Z-/$+*"6VW"L()K"L0%$"$OH)&$+*/J"*K-+"0*K$%"H/*%-*&0+"#J#*$L#S"3K$+" )0L.-%&+,"*K$"W-,&)"=(+,b"N&*K"P/0N$%"(+&*#"L-'$"PJ"0*K$%"L-+(O-)*(%$%#R"(#$" *K$"d$I(&Z-/$+*"6VWS] eL(/*&fP(%+$%")00!*0.#"-%$"+0*",$+$%-//J"0.$%-*$'"-*"O(//")-.-)&*JR"NK$%$-#" PPI#R"N0!#"-+'",%&''/$#"-%$"0O*$+"0.$%-*$'"-*"O(//")-.-)&*JS
L-*)K"+(LP$%"0O"P/0N$%#"*0")00!&+,"$I(&.L$+*

KEYS TO SUPERIOR VENTILATION

CANOPY SIZE AND PLACEMENT

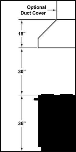
What height hood do you need?

For optimum performance, the hood should be mounted no more than 30" above the cooking surface. the hood height is dependent upon the distance between your cooking surface and your cabinet, soffit, or ceiling.

6" under cabinet – for 27" to 30"

9" under cabinet – for 30" to 33"

18" wall mount – for 48" +

30" wall mount – for 60" +

What width hood do you need?

Wherever possible, the width of the hood should overlap the burners 3"-6" on each side. This is a must for islands.

What depth hood do you need?

The hood should be deep enough to cover all burners.

Under cabinet 19-1/2" or 21" (Standard)

Wall mount 24" standard – most pro-style 27" pro-style cooking

Island hood 27" standard cooking 30" pro-style cooking

DUCTING - USE CORRECT SIZE AND INSTALL PROPERLY

Ducting Dos and Don'ts

'()*&+,"'0i#"-+'"'0+i*#

• Never restrict duct size

• Run the duct as short and straight as possible

D"+$Z$%"%$#*%&)*"'()*"#&j$

• Enlarge the duct for longer runs (over 20o)

• Seal all joints with duct tape

Duct Sizes

12 inch round duct = 113 sq inches of space

10 inch round duct = 79 sq inches of space

D"%(+"*K$"'()*"-#"#K0%*"-+'"#*%-&,K*"-#".0##&P/$ D"$+/-%,$"*K$"'()*"O0%"/0+,$%"%(+#"B0Z$%"_U0C"

8 inch round duct = 50 sq inches of space

7 inch round duct = 38 sq inches of space

• Maintain 4-5 foot spacing between turns

D"#$-/"-//"k0&+*#"N&*K"'()*"*-.$

• Turns should be smooth and gradual

6 inch round duct = 28 sq inches of space

4 inch round duct = 13 sq inches of space

D"L-&+*-&+"X"*0"Y"O00*"#.-)&+,"P$*N$$+"*(%+#

D"*(%+#"#K0(/'"P$"#L00*K"-+'",%-'(-/ '()*"#&j$#

[_"&+)K"%0(+'"'()*"l"[[T"#I(-%$"&+)K$#"0O"#.-)$

5 List Price Book P: 800-292-8374 • F:
www.pinnaclesalesgroup.com
800-574-8805
>95"89?<>=="EA2E;A=F"
5G6<894"g"G?;"62AA;6<"?8h;"
[U"&+)K"%0(+'"'()*"l"m^"#I(-%$"&+)K$#"0O"#.-)$" `"&+)K"%0(+'"'()*"l"YU"#I(-%$"&+)K$#"0O"#.-)$ #L00*K"N-//$'"'()* c$n&P/$"'()* #L00*K",%-'(-/" *(%+ #K-%."-+,/$'" *(%+ .%0.$%")0LP&+&+," 0O"*N0"'()*# &L.%0.$%")0LP&+&+," 0O"*N0"'()*# N-//"/0(Z$% \]"%0(+'":EY_\ `]"%0(+'":EY_` [U]"%0(+'":EYYX [_]"%0(+'":EYYY %00O"k-)! \]"%0(+'":EYT^f1E `]"%0(+'":EYX[f1E [U]"%0(+'":EYY_f1E [_]"%0(+'":EYYTf1E e&+)/('$#",%-Z&*J"'-L.$%"g"(#&+,"0*K$%" /&!$".%0'()*#"L-J"k$0.-%'&j$".$%O0%L-+)$ NK-*"K$&,K*"K00'"'0"J0("+$$'Q *K$"K00'"K$&,K*"&#"'$.$+'$+*"(.0+"*K$"'&#*-+)$ P$*N$$+"J0(%")00!&+,"#(%O-)$"-+'"J0(%")-P&+$*R """"""\]"(+'$%")-P&+$*"g"O0%"_m]"*0"TU] """"""^]"(+'$%")-P&+$*"g"O0%"TU]"*0"TT] """"""[`]"N-//"L0(+*"g"O0%"X`]o """"""TU]"N-//"L0(+*"g"O0%"\U]o NK-*"N&'*K"K00'"'0"J0("+$$'Q NK$%$Z$%".0##&P/$R"*K$"N&'*K"0O"*K$" K00'"#K0(/'"0Z$%/-."*K$"P(%+$%#"T]f\]"0+ $-)K"#&'$S"*K&#"&#"-"L(#*"O0%"&#/-+'#S p"q"X`] p"q"6(#*0L NK-*"'$.*K"K00'"'0"J0("+$$'Q *K$"K00'"#K0(/'"P$"'$$."$+0(,K" "(+'$%")-P&+$*"[^f[r_]"0%"_[]"B#*-+'-%'C "N-//"L0(+*"_X]"#*-+'-%'"f"L0#*".%0f#*J/$ _m]".%0f#*J/$")00!&+, "&#/-+'"K00'"_m]"#*-+'-%'")00!&+,
30" 54" 36" 60" 42" 66"
Custom Venting Accessories are on page XXXX
48"

All items on pages pages 11-29 are in stock and available for quick shipment from the Pinnacle Sales Group warehouse.

Pinnacle Sales Group 6 List Price Book

Stock Item List - Liner Inserts

BHSLD Wall Mount Liner Inserts - 19 1/4” Deep and 12” Tall

See Page 65

WALL MOUNT LINER INSERT SPECIFICATIONS

Equipped with LED lighting. Not available with heat lamps.

*Use VP562 transition (optional) on 900 CFM model to combine outlets into a single 10” duct

Connection Diagram (28 3/8” - 40 3/8” Widths)

Recommended Mounting Height*

300 CFM B100 Single Blower (Top View)

Connection Diagram (28 3/8” - 46 3/8” Widths)

600 CFM B200 Dual Blower (Top View)

Diagram (46 3/8” Width)

*Recommended mounting height is for optimum performance.

Single Blower

VP562 Transition (Optional) For B300 (B200 Dual Blower & B100 Single Blower)

STOCK ITEM LIST 7 List Price Book P: 800-292-8374 • F: 800-574-8805 www.pinnaclesalesgroup.com Model Width Color CFM Duct Retail BH128SLD-BL 28 3/8" Black 300 6” $ 972 BH128SLD-GS 28 3/8" Gunsmoke 300 6” $ 972 BH128SLD-SS 28 3/8" SS 300 6” $ 1,286 BH134SLD-BL 34 3/8" Black 300 6” $ 972 BH134SLD-GS 34 3/8" Gunsmoke 300 6” $ 972 BH134SLD-SS 34 3/8” SS 300 6” $ 1,286 BH140SLD-GS 40 3/8" Gunsmoke 300 6” $ 1,126 BH140SLD-SS 40 3/8" SS 300 6” $ 1,446 BH228SLD-BL 28 3/8" Black 600 8” $ 1,383 BH228SLD-GS 28 3/8" Gunsmoke 600 8” $ 1,383 BH228SLD-SS 28 3/8" SS 600 8” $ 1,737 BH234SLD-BL 34 3/8" Black 600 8” $ 1,383 BH234SLD-GS 34 3/8" Gunsmoke 600 8” $ 1,383 BH234SLD-SS 34 3/8" SS 600 8” $ 1,737 BH240SLD-SS 40 3/8" SS 600 8” $ 1,910 BH246SLD-GS 46 3/8" Gunsmoke 600 8” $ 1,652 BH246SLD-SS 46 3/8" SS 600 8” $ 2,061 BH346SLD-GS* 46 3/8" Gunsmoke 900 6” & 8” $ 2,112 BH346SLD-SS* 46 3/8" SS 900 6” & 8” $ 2,555
VP562/VP563 transition centers outlet over top of hood
Connection
B100
View)
Electrical 1 ¾” Centerline of Hood 8” Outlet Vent Holes 5 ¼” 5 ½” Wall Side 6” Outlet nt Holes Centerline of Hood Electrical (2) 7⁄8” 5⁄16” 1 ¾” 6” Outlet Vent Hole 3 ¼” Electrical Centerline of Hood Wall Side 1 ¾” 1 3⁄8” 5 ¼” 10” Round 10” Round 8” Round 17 ½” 2” 8” Round 6” Round
VP562: 10” VP563: 12”
BHSLD       

Stock Item List - Liner Inserts

BHPSLD Wall Mount Liner Inserts - 22 1/2” Deep and 12” Tall

See Page 65

Equipped with LED lighting. Not available with heat lamps. WALL

Vent Holes

8” Outlet

Connection Diagram (46 3/8” - 58 3/8” Widths)

5⁄16” 1 7⁄8

½”

5 ¼” 5 ½” Wall Side 6” Outlet

600 CFM B200 Dual Blower (Top View) Dual & B100 Single Blower Electrical

BHPSLB Wall Mount Liner Inserts - 22 1/2” Deep and 12” Tall

7 5⁄16” 1 ¾” 11” 5 ½” Wall Side ¼”

Vent Holes Centerline of Hood

Electrical (2)

See Page 65

Double B200 Dual Blowers 1 ¾” Centerline of Hood

10” Round 10” Round 8” Round

Vent Holes 8” Outlet Centerline of Hood

VP562: 10” VP563: 12” Connection Diagram

17 ½” 2” 8” Round 6” Round 12” Round 12” Round 16 ½” 8” Round 8” Round 8” Round 3”

*Use VP562 transition (optional) on 900 CFM model to combine outlets into a single 10” duct

VP562 Transition (Optional) For B300 (B200 Dual Blower & B100 Single Blower)

*Recommended mounting height is for optimum performance.

**Use VP563 transition (optional) on 1200 CFM model to combine outlets into a single 12” duct

VP563 Transition (Optional) For B400 (Double B200 Dual Blowers)

STOCK ITEM LIST Pinnacle Sales Group 8 2022 List Price Book Model Width Color CFM Duct Retail BH340PSLB-SS* 40 3/8" SS 900 6” & 8” $ 2,590 BH446PSLB-SS** 46 3/8" SS 1200 8” & 8” $ 3,173
           
Model Width Color CFM Duct Retail BH228PSLD-SS 28 3/8" SS 600 8” $ 1,755 BH234PSLD-BL 34 3/8" Black 600 8” $ 1,423 BH234PSLD-GS 34 3/8" Gunsmoke 600 8” $ 1,423 BH234PSLD-SS 34 3/8" SS 600 8” $ 1,755 BH240PSLD-SS 40 3/8" SS 600 8” $ 1,934 BH246PSLD-BL 46 3/8" Black 600 8” $ 1,747 BH246PSLD-SS 46 3/8" SS 600 8” $ 2,102 BH346PSLD-BL* 46 3/8" Black 900 6” & 8” $ 2,145 BH346PSLD-SS* 46 3/8" SS 900 6” & 8” $ 2,596 BH352PSLD-BL* 52 3/8" Black 900 6” & 8” $ 2,442 BH352PSLD-SS* 52 3/8" SS 900 6” & 8” $ 3,093 BH358PSLD-SS* 58 3/8" SS 900 6” & 8” $ 3,624 BH452PSLD-SS** 52 3/8" SS 1200 8” & 8” $ 3,545 BH458PSLD-SS** 58 3/8" SS 1200 8” & 8” $ 4,077 BH464PSLD-SS** 64 3/8" SS 1200 8” & 8” $ 4,318
VP562/VP563 transition centers outlet over top of hood
MOUNT LINER
INSERT SPECIFICATIONS
(Top View)
Connection Diagram (52 3/8” - 64 3/8” Widths) (Top View)
Recommended Mounting Height* BHPSLD Electrical/Mechanical Specifications For Blower Units Volts Amps Hz RPM CFM SP@0.0" Equivalent CFM• CFM SP@0.1" CFM SP@0.2" CFM SP@0.3" Minimum Round Duct Size Sones# 115 4.0 60 1550 600 900 531 480 430 8" (50 in.2) 6.5 115 6.0 60 1550 900 1350 804 725 655 VP562: 10" (79 in.2) 6.3 115 7.5 60 1550 1200 1800 1062 960 860 VP563: 12" (113 in.2) 6.6       
(28 3/8” - 52 3/8” Widths)

Stock Item ListLiner Inserts and Under Cabinet Hoods

THSLE Island Liner Insert - 27” Deep and 12” Tall

PRH9 Under Cabinet Range Hood - 21” Deep and 9” Tall

See Page 32

NPH9 Under Cabinet Range Hood - 21” Deep and 9” Tall

See Page 32

SLH9 Under Cabinet Range Hood - 21” Deep and 9” Tall

See Page 32

STOCK ITEM LIST 9 2022 List Price Book P: 800-292-8374 • F: 800-574-8805 www.pinnaclesalesgroup.com
Model Width Color CFM Duct Retail PRH9-130-SS 30” SS 300 6” $ 1,214 PRH9-136-SS 36” SS 300 6” $ 1,214 PRH9-230-SS 30” SS 600 8” $ 1,670 PRH9-236-SS 36” SS 600 8” $ 1,670 PRH9-242-SS 42” SS 600 8” $ 1,852 PRH9-248-SS 48” SS 600 8” $ 1,910
Model Width Color CFM Duct Retail NPH9-130-SS 30” SS 300 6” $ 1,532 NPH9-230-SS 30” SS 600 8” $ 1,987 NPH9-236-SS 36” SS 600 8” $ 1,987
Model Width Color CFM Duct Retail SLH9-130-SS 30” SS 300 6” $ 1,532 SLH9-230-SS 30” SS 600 8” $ 1,987 SLH9-236-SS 36” SS 600 8” $ 1,987
Model Width Color CFM Duct Retail TH236SLE-SS* 36” SS 550 8” $ 3,045 TH242SLE-SS* 42” SS 550 8” $ 3,131 TH448PSLE-SS** 48” SS 1100 8” & 8” $ 5,498
     
Page 67 *VP565 Transition to 8” Round Included **VP564 Transition to 12” Round Included
See

In-Stock Items - Designer Series Hoods

Madison - 24” Deep and 30” Tall

Hood comes in stainless steel finish with mirrored stainless steel lip treatment on all sides, (2) 2” vertical bands in mirrored stainless steel attached with ½” hex nuts, and a chrome pot rail on the front of the hood.

THE VP562 IS INCLUDED ON 900 CFM MODELS TO COMBINE OUTLETS INTO A SINGLE 10” DUCT.

Duct Covers:

WDCRND - Duct Cover Kit includes WDCRND Duct cover with (2) 2” vertical bands in mirrored Stainess Steel attached with 1/2” hex nuts. *Duct cover comes with matching bands that must be installed on site.

Isabella - 24” Deep and 30” Tall

Hood comes in a white finish with mirrored stainless steel lip treatment on all sides at top and bottom, (2) 1” corner band and (2) 1” back bands in mirrored stainless steel on lip.

USE VP562 (OPTIONAL) ON 900 CFM MODELS TO COMBINE OUTLETS INTO A SINGLE 10” DUCT, LISTED ON PAGE 90.

Duct Covers:

See Page 45

STOCK ITEM LIST Pinnacle Sales Group 10 2022 List Price Book
JDH/C2
Width CFM Duct Retail JDH136/C2-SS/AS 36” 300 6” $ 6,158 JDH236/C2-SS/AS 36” 600 8” $ 6,619 JDH242/C2-SS/AS 42” 600 8” $ 7,085 JDH348/C2-SS/AS 48” 900 6” & 8” $ 8,002
Model
Model Width Height CLG. Retail WDCRND-18/12-MSS/JDH/C2/AS 18” 12” 9’ $ 1,089 WDCRND-18/24-MSS/JDH/C2/AS 18” 24” 10’ $ 1,269 WDCRND-24/12-MSS/JDH/C2/AS 24” 12” 9’ $ 1,146 WDCRND-24/24-MSS/JDH/C2/AS 24” 24” 10’ $ 1,395 WDCRND-30/12-MSS/JDH/C2/AS 30” 12” 9’ $ 1,186 WDCRND-30/24-MSS/JDH/C2/AS 30” 24” 10’ $ 1,479
JPH/C1 Model Width CFM Duct Retail JPH236/C1-WH/AS 36” 600 8” $ 6,684 JPH348/C1-WH/AS 48” 900 6” & 8” $ 7,811 Model Width Height CLG. Retail WDCRND-24/12-WH 24” 12” 9’ $ 597 WDCRND-24/24-WH 24” 24” 10’ $ 751 WDCRND-36/12-WH 36” 12” 9’ $ 653 WDCRND-36/24-WH 36” 24” 10’ $ 874
           
See Page 44

In-Stock Items - Designer Series Hoods

Phantom - 24” Deep and 30” Tall

Hood comes in a black carbide finish with a stainless steel lip treatment on all sides.

USE VP562 (OPTIONAL) ON 900 CFM MODELS TO COMBINE OUTLETS INTO A SINGLE 10” DUCT, LISTED ON PAGE 90.

Duct Covers:

See Page 45

STOCK ITEM LIST 11 2022 List Price Book P: 800-292-8374 • F: 800-574-8805 www.pinnaclesalesgroup.com
JPH/C2 Model Width CFM Duct Retail JPH236/C2-BC/AS 36” 600 8” $ 4,649 JPH348/C2-BC/AS 48” 900 6” & 8” $ 5,684 Model Width Height CLG. Retail WDCRND-24/12-BC 24” 12” 9’ $ 597 WDCRND-24/24-BC 24” 24” 10’ $ 751 WDCRND-36/12-BC 36” 12” 9’ $ 653 WDCRND-36/24-BC 36” 24” 10’ $ 874
      

Stock Item List - Wall-Mount Hoods

Charleston - 24” Deep and 30” Tall

Hood comes in stainless steel finish with satin brass lip treatment on all sides, and (2) 2” vertical bands in satin brass attached with laminate.

THE VP562 IS INCLUDED ON 900 CFM MODELS TO COMBINE OUTLETS INTO A SINGLE 10” DUCT.

See Page 44

WDCRND - Duct Cover Kit includes WDCRND Duct cover with (2) 2” vertical bands in Satin Brass attached with laminate. *Duct cover comes with matching bands that must be installed on site.

Avery - 24” Deep and 30” Tall

Hood comes in stainless steel finish with mirrored stainless steel lip treatment on all sides, and (2) 2” vertical bands in mirrored stainless steel attached with laminate.

See Page 44

THE VP562 IS INCLUDED ON 900 CFM MODELS TO COMBINE OUTLETS INTO A SINGLE 10” DUCT.

WDCRND - Duct Cover Kit includes WDCRND Duct cover with (2) 2” vertical bands in mirrored stainless steel attached with laminate. *Duct cover comes with matching bands that must be installed on site.

STOCK ITEM LIST Pinnacle Sales Group 12 2022 List Price Book
Duct Covers: Duct Covers: 24 Width 30" 3" 18"LessThanBottomWidth 12" 24 Width 30" 3" 18"LessThanBottomWidth 12"
Model Width Color CFM Duct Retail JDH236/C2-SS/AS-SB 36” SS 600 8” $ 6,523 JDH348/C2-SS/AS-SB 48” SS 900 6” & 8” $ 7,759 Model Width Color CFM Duct Retail JDH236/C2-SS/AS-MSS 36” SS 600 8” $ 6,178 JDH242/C2-SS/AS-MSS 42” SS 600 8” $ 6,570 JDH348/C2-SS/AS-MSS 48” SS 900 6” & 8” $ 7,414 Model Width Height CLG. Retail WDCRND-18/12/JDH/C2/AS-SB 18” 12” 9’ $ 1,434 WDCRND-18/24/JDH/C2/AS-SB 18” 24” 10’ $ 1,614 WDCRND-30/12/JDH/C2/AS-SB 30” 12” 9’ $ 1,531 WDCRND-30/24/JDH/C2/AS-SB 30” 24” 10’ $ 1,824 Model Width Height CLG. Retail WDCRND-18/12/JDH/C2/AS-MSS 18” 12” 9’ $ 1,089 WDCRND-18/24/JDH/C2/AS-MSS 18” 24” 10’ $ 1,269 WDCRND-24/12/JDH/C2/AS-MSS 24” 12” 9’ $ 1,146 WDCRND-24/24/JDH/C2/AS-MSS 24” 24” 10’ $ 1,395 WDCRND-30/12/JDH/C2/AS-MSS 30” 12” 9’ $ 1,186 WDCRND-30/24/JDH/C2/AS-MSS 30” 24” 10’ $ 1,479

Stock Item List -

Wall-Mount Hoods

Augustine - 24” Deep and 30” Tall

Hood comes in stainless steel finish with satin brass lip treatment on front only, lip has 1 1/2” offset, (4) 2” vertical bands in satin brass attached with laminate.

USE VP562 (OPTIONAL) ON 900 CFM MODELS TO COMBINE OUTLETS INTO A SINGLE 10” DUCT, LISTED ON PAGE 90.

See Page 37

WDCRND - Duct Cover Kit includes WDCRND Duct cover with (4) 2” vertical bands in Satin Brass attached with laminate. *Duct cover comes with matching bands that must be installed on site.

Manhattan - 24” Deep and 30” Tall

Hood comes in stainless steel finish with mirrored stainless steel lip treatment on front only, lip has 1 1/2” offset, (4) 2” vertical bands in mirrored stainless steel attached with laminate.

USE VP562 (OPTIONAL) ON 900 CFM MODELS TO COMBINE OUTLETS INTO A SINGLE 10” DUCT, LISTED ON PAGE 90.

See Page 37

WDCRND - Duct Cover Kit includes WDCRND Duct cover with (4) 2” vertical bands in mirrored Stainless Steel attached with laminate. *Duct cover comes with matching bands that must be installed on site.

STOCK ITEM LIST 13 2022 List Price Book P: 800-292-8374 • F: 800-574-8805 www.pinnaclesalesgroup.com
Model Width Color CFM Duct Retail PWVH30-236-SS/AS-SB 36" SS 600 8" $ 6,219 PWVH30-242-SS/AS-SB 42" SS 600 8" $ 6,634 PWVH30-348-SS/AS-SB 48" SS 900 6” & 8" $ 7,560 Model Width Color CFM Duct Retail PWVH30-236-SS/AS-MSS 36" SS 600 8" $ 5,874 PWVH30-348-SS/AS-MSS 48" SS 900 6" & 8" $ 7,215 Duct Covers: Duct Covers: Model Width Height CLG. Retail WDCRND-36/12-PWVH30-SS/SB 36" 12" 9' $ 2,050 WDCRND-36/24-PWVH30-SS/SB 36" 24" 10' $ 2,412 WDCRND-42/12-PWVH30-SS/SB 42" 12" 9' $ 2,093 WDCRND-42/24-PWVH30-SS/SB 42" 24" 10' $ 2,510 WDCRND-48/12-PWVH30-SS/SB 48" 12" 9' $ 2,176 WDCRND-48/24-PWVH30-SS/SB 48" 24" 10' $ 2,648 Model Width Height CLG. Retail WDCRND-36/12-PWVH30-SS/AS-MSS 36" 12" 9' $ 1,705 WDCRND-36/24-PWVH30-SS/AS-MSS 36" 24" 10' $ 2,067 WDCRND-48/12-PWVH30-SS/AS-MSS 48" 12" 9' $ 1,831 WDCRND-48/24-PWVH30-SS/AS-MSS 48" 24" 10' $ 2,303 24" WIDTH 12" 30" 3" 1 1/2" O set 24" WIDTH 12" 30" 3" 1 1/2" O set

Stock Item List - Wall-Mount Hoods

CWEH9 Contemporary Wall Mount - 21” Deep and 9” Tall

Duct Covers with Removable Panel:

See Page 49

PRH18 Wall Mount Range Hood - 24” Deep and 18” Tall

See Page 34

See Duct Cover Options on Page 20

*Use VP562 transition (optional) on 900 CFM model to combine outlets into a single 10” duct

**Use VP563 transition (optional) on 1200 CFM model to combine outlets into a single 12” duct

STOCK ITEM LIST Pinnacle Sales Group 14 2022 List Price Book Model Width Color CFM Duct Retail PRH18-130-SS 30” SS 300 6” $ 2,010 PRH18-136-SS 36” SS 300 6” $ 2,038 PRH18-230-SS 30” SS 600 8” $ 2,486 PRH18-236-SS 36” SS 600 8” $ 2,513 PRH18-242-SS 42” SS 600 8” $ 2,698 PRH18-248-SS 48” SS 600 8” $ 2,828 PRH18-342-SS* 42” SS 900 6” & 8” $ 3,269 PRH18-348-SS* 48” SS 900 6” & 8” $ 3,400 PRH18-448-SS** 48” SS 1200 8” & 8” $ 3,875
Model Dimensions Ceiling Height Retail WDCRND-12/24-SS 12”W X12”D X 24”H 8’ $ 666 WDCRND-12/36-SS 12”W X 12”D X 36”H 9’ $ 777 Model Width Color CFM Duct Retail CWEH9-236-SS 36” SS 600 8” $ 3,147 CWEH9-248-SS 48” SS 600 8” $ 3,492

Stock Item List - Wall-Mount Hoods

PRXH18 Wall Mount Range Hood - 27” Deep and 18” Tall

See Page 34

See Duct Cover Options on Next Page

NPH18 Wall Mount Range Hood - 24” Deep and 18” Tall

See Duct Cover Options on Next Page

See Page 34

SLH18 Wall Mount Range Hood - 24” Deep and 18” Tall

See Duct Cover Options on Next Page

See Page 34

*Use VP562 transition (optional) on 900

**Use VP563 transition (optional) on

model to combine outlets into a single 10” duct

model to combine outlets into a single 12” duct

STOCK ITEM LIST 15 2022 List Price Book P: 800-292-8374 • F: 800-574-8805 www.pinnaclesalesgroup.com Model Width Color CFM Duct Retail PRXH18-230-SS 30” SS 600 8” $ 2,486 PRXH18-236-SS 36” SS 600 8” $ 2,513 PRXH18-242-SS 42” SS 600 8” $ 2,698 PRXH18-342-SS* 42” SS 900 6” & 8” $ 3,269 PRXH18-348-SS* 48” SS 900 6” & 8” $ 3,400 PRXH18-448-SS** 48” SS 1200 8” & 8” $ 3,875 PRXH18-460-SS** 60” SS 1200 8” & 8” $ 4,799 PRXH18-466-SS** 66” SS 1200 8” & 8” $ 4,899
CFM
CFM
1200
Model Width Color CFM Duct Retail NPH18-236-SS 36” SS 600 8” $ 3,064 NPH18-242-SS* 42” SS 900 6” & 8” $ 3,262 NPH18-348-SS* 48” SS 900 6” & 8” $ 3,948
Model Width Color CFM Duct Retail SLH18-236-SS 36” SS 600 8” $ 3,064

Stock Item List - Wall-Mount Hoods

Duct Covers for PRH18, PRXH18, NPH18 and SLH18

WDCRND duct covers with removable front panel for easy installation. Confirm the proper size duct cover needed by measuring the top width and depth of the hood and the height needed.

STOCK ITEM LIST Pinnacle Sales Group 16 2022 List Price Book
Model Dimensions Ceiling Height Retail WDCRND-30-SS 30”W X 12”D X 12”H 8’ $ 722 WDCRND-30/24-SS 30”Wx12”Dx24”H 9’ $ 1,015 WDCRND-36-SS 36”W X 12”D X 12”H 8’ $ 777 WDCRND-36/24-SS 36”W X 12”D X 24”H 9’ $ 1,139 WDCRND-42-SS 42”W X 12”D X 12”H 8’ $ 849 WDCRND-42/24-SS 42”W X 12”D X 24”H 9’ $ 1,264 WDCRND-42/36-SS 42”W X 12”D X 36”H 10’ $ 1,680 WDCRND-48-SS 48”W X 12”D X 12”H 8’ $ 903 WDCRND-48/24-SS 48”W X 12”D X 24”H 9’ $ 1,375 WDCRND-48/36-SS 48”W X 12”D X 36”H 10’ $ 1,848

Stock Item List - Euro-Style Hoods

PDH14 Euro-Style Wall Mount Range Hood - 21” Deep and 14” Tall

See Page 53

EPH18 Euro-Style Wall Mount Range Hood - 24” Deep and 18” Tall

See Duct Cover Options on Next Page

See Page 54

EPTH18 Euro-Style Wall Mount Range Hood - 24” Deep and 18” Tall

See Duct Cover Options on Page 53.

See Page 54

STOCK ITEM LIST 17 2022 List Price Book P: 800-292-8374 • F: 800-574-8805 www.pinnaclesalesgroup.com Model Width Color CFM Duct Retail PDH14-130-SS 30” SS 300 6” $ 2,484 PDH14-136-SS 36” SS 300 6” $ 2,527 PDH14-236-SS 36” SS 600 8” $ 2,984 PDH14-242-SS 42” SS 600 8” $ 3,189 Model Width Color CFM Duct Retail EPH18-236-SS 36” SS 600 8” $ 3,497 EPH18-242-SS 42” SS 600 8” $ 3,699
Duct Covers with Removable Panel: Model Dimensions Ceiling Height Retail WDCRND-10/10-SS 10”W X 10”D X 10”H 7’ $ 514 WDCRND-10/22-SS 10”W X 10”D X 22”H 8’ $ 612 WDCRND-10/34-SS 10”W X 10”D X 34”H 9’ $ 710
Model Width Color CFM Duct Retail EPTH18-348-SS* 48” SS 900 6” & 8” $ 5,189
*VP562 transition included in hood

Stock Item List - Euro-Style Hood

NEPH18 Euro-Style Wall Mount Range Hood - 24” Deep and 18” Tall

See Duct Cover Options Below

See Page 54

SEPH18 Euro-Style Wall Mount Range Hood - 24” Deep and 18” Tall

See Duct Cover Options Below

See Page 55

Duct Covers for EPH18, EPXH18, NEPH18, NEPTH18, NEPXH18, and SEPH18

WDCRND duct covers with removable front panel for easy installation. Confirm the proper size duct cover needed by measuring the top width and depth of the hood and the height needed.

STOCK ITEM LIST Pinnacle Sales Group 18 2022 List Price Book
Model Width Color CFM Duct Retail SEPH18-236-SS 36” SS 600 8” $ 3,913
Model Dimensions Ceiling Height Retail WDCRND-12/12-SS 12”W X 12”D X 12”H 8’ $ 542 WDCRND-12/24-SS 12”W X 12”D X 24”H 9’ $ 666 WDCRND-12/36-SS 12”W X 12”D X 36”H 10’ $ 777 Model Width Color CFM Duct Retail NEPH18-236-SS 36” SS 600 8” $ 3,995

Stock Item List - Euro-Style Hoods

EPXTH18 Euro-Style Wall Mount Range Hood - 27” Deep and 18” Tall

PYDH18 Euro-Style Island Range Hood - 27” Deep and 18” Tall

Duct Covers:

See Page 62

EPIH18 Euro-Style Island Range Hood - 30” Deep and 18” Tall

EPITH18 Euro-Style

Island Range Hood - 30” Deep and 18” Tall

*VP564 transition to 12” included

Duct Covers:

See Page 63

STOCK ITEM LIST 19 2022 List Price Book P: 800-292-8374 • F: 800-574-8805 www.pinnaclesalesgroup.com
Covers: Model Dimensions Ceiling Height Retail IDCRND-12/12-SS 12”W X 12”D X 12”H 8’ $ 567 IDCRND-12/24-SS 12”W X 12”D X 24”H 9’ $ 695 IDCRND-12/36-SS 12”W X 12”D X 36”H 10’ $ 835
Page 62
Page 54
Duct
See
See
       Duct Covers: For EPTH18, EPXTH18, NEPTH18 Model Dimensions Ceiling Height Retail WDCRND-26/12-SS 26”W X 14”D X 12”H 8’ $ 682 WDCRND-26/24-SS 26”W X 14”D X 24”H 9’ $ 943 WDCRND-26/36-SS 26”W X 14”D X 36”H 10’ $ 1,194
Model Dimensions Ceiling Height Retail IDCRND-12/12-SS 12”W X 12”D X 12”H 8’ $ 567 IDCRND-12/24-SS 12”W X 12”D X 24”H 9’ $ 695 IDCRND-12/36-SS 12”W X 12”D X 36”H 10’ $ 835 *VP565 transition
separately Model Width Color CFM Duct Retail EPXTH18-342-SS* 42” SS 900 6” & 8” $ 5,085 EPXTH18-348-SS* 48” SS 900 6” & 8” $ 5,189 *VP562 transition included in hood Model Width Color CFM Duct Retail EPIH18-236-SS* 36” SS 550 8” $ 4,968 EPIH18-242-SS* 42” SS 550 8” $ 5,149 *VP565 transition included separately Model Width Color CFM Duct Retail PYDH18-236-SS* 36” SS 550 8” $ 4,968 *VP565 transition included separately
included
      
Model Width Color CFM Duct Retail EPITH18-448-SS 48” SS 1100 12” $ 6,637 EPITH18-454-SS 54” SS 1100 12” $ 7,226
Model Dimensions Ceiling Height Retail IDCRND-15/24-SS 15”W X 15”D X 24”H 9’ $ 765 IDCRND-15/36-SS 15”W X 15”D X 36”H 10’ $ 935

Stock Item ListOutdoor Hoods and Accessories

PRH18 Wall Mount Range

Hood - 30” and 33” Deep

EPH18-M Wall Mount Range Hood

See Page 86

Blower Options for M-Series

*VP566 Transition Included

STOCK ITEM LIST Pinnacle Sales Group 20 2022 List Price Book
Outdoor
See Duct Cover Options on Page 25 *Use VP562 transition (optional) on 900 CFM model to combine outlets into a single 10” duct **Use VP563 transition (optional) on 1200 CFM model to combine outlets into a single 12” duct
and 18” Tall
Page 34 Model Depth Width Color CFM Duct Retail PRH18-342-30-SS* 30” 42” SS 900 6” & 8” $ 4,219 PRH18-342-33-SS* 33” 42” SS 900 6” & 8” $ 4,465 PRH18-448-30-SS** 30” 48” SS 1200 8” & 8” $ 4,896 Blower Sold Separately - Choose from Options Below Model Width Color # Filters Retail EPH18-M36-SS 36” SS 2 $ 1,848 EPH18-M42-SS 42” SS 2 $ 2,024 EPH18-M48-SS 48” SS 2 $ 2,151 EPH18-M36x32SS 36” SS 3 $ 2,714 EPH18-M42x32SS 42” SS 3 $ 2,962 EPH18-M48x32SS 48” SS 3 $ 3,157
See
BLOWER OPTIONS Model CFM AMPS Duct Retail M600 630 5.0 6” $ 487 M1200* 1035 10.0 10” $ 937
M600

Stock Item ListOutdoor Hoods and Accessories

PRXH18 Wall Mount Range Hood - 27” Deep and 18” Tall

See Page 34

BBQ Extension adds 6” to depth of the hood

*Use VP562 transition (optional) on 900 CFM model to combine outlets into a single 10” duct

**Use VP563 transition (optional) on 1200 CFM model to combine outlets into a single 12” duct

Duct Covers for use with BBQ Extension Kits Only

WDCRND duct covers with removable front panel for easy installation. Confirm the proper size duct cover needed by measuring the top width and depth of the hood and the height needed.

Duct Covers for PRXH18, PRH18 and XRH18 without BBQ Extension Kit

PRH18-M M-Series Wall Mount Range Hood - 30” Deep and 18” Tall

- Price Excludes M1200 Blower and VP566 Transition

See Page 85

STOCK ITEM LIST 21 2022 List Price Book P: 800-292-8374 • F: 800-574-8805 www.pinnaclesalesgroup.com
Model Dimensions Retail WDCRND-36-SS 36”W X 12”D X 12”H $ 777 WDCRND-42-SS 42”W X 12”D X 12”H $ 847 WDCRND-42/24-SS 42”W X 12”D X 24”H $ 1,264 WDCRND-42/36-SS 42”W X 12”D X 36”H $ 1,680 WDCRND-48-SS 48”W X 12”D X 12”H $ 903 WDCRND-48/24-SS 48”W X 12”D X 24”H $ 1,375 WDCRND-48/36-SS 48”W X 12”D X 36”H $ 1,848
Order with BBQ Extension Kit for Outdoor Use: Model Width Color CFM Duct Retail PRXH18-230-SS* 30” SS 600 8” $ 2,486 PRXH18-236-SS* 36” SS 600 8” $ 2,513 PRXH18-342-SS* 42” SS 900 6” & 8” $ 3,269 PRXH18-348-SS* 48” SS 900 6” & 8” $ 3,400 PRXH18-448-SS** 48” SS 1200 8” & 8” $ 3,875 PRXH18-460-SS** 60” SS 1200 8” & 8” $ 4,799 PRXH18-466-SS** 66” SS 1200 8” & 8” $ 4,899
Extension Kit (6” Deep) Width Price BBE-M30-SS 30” $ 539 BBE-M36-SS 36” $ 633 BBE-M42-SS 42” $ 694 BBE-M48-SS 48” $ 743 BBE-M54-SS 54” $ 796 BBE-M60-SS 60” $ 850 Model Width Color # Filters Retail PRH18-M36-30-SS 36” SS 2 $ 2,129 PRH18-M42-30-SS 42” SS 2 $ 2,342 PRH18-M48-30-SS 48” SS 3 $ 2,502 PRH18-M54-30-SS 54” SS 3 $ 2,948
Duct Cover
See
Options On Next Page
Extension Kit Width Depth Only for Use With Height Price CLG WDCRND-36/18/12-SS 36" 18" BBE-M36 12" $ 1,042 8' WDCRND-42/18/12-SS 42" 18" BBE-M42 12" $ 1,139 8' WDCRND-42/18/24-SS 42" 18" BBE-M42 24" $ 1,366 9' WDCRND-42/18/36-SS 42" 18" BBE-M42 36" $ 1,820 10' WDCRND-48/18/12-SS 48" 18" BBE-M48 12" $ 1,237 8' WDCRND-48/18/24-SS 48" 18" BBE-M48 24" $ 1,496 9' WDCRND-48/18/36-SS 48" 18" BBE-M48 36" $ 2,014 10' WDCRND-54/18/12-SS 54" 18" BBE-M54 12" $ 1,334 8'

Stock Item ListOutdoor Hoods and Accessories

PRXH18-M M-Series Wall Mount Range Hood - 27” Deep and 18” Tall

See Page 85

- Price Excludes M1200 Blower and VP566 Transition

Order with BBQ Extension Kit for Outdoor Use:

Blower Options for M-Series

*VP566 Transition Included

Duct Covers for PRH18-M, PRXH18-M and EPH-M without BBQ

Extension Kit

MPSLD M-Series Wall Mount Liner Inserts - 22 1/2” Deep and 12 1/2” Tall

See Page 87

STOCK ITEM LIST Pinnacle Sales Group 22 2022 List Price Book
Model Width Color # Filters Retail PRXH18-M30-SS 30” SS 2 $ 1,415 PRXH18-M36-SS 36” SS 2 $ 1,440 PRXH18-M42-SS 42” SS 2 $ 1,556 PRXH18-M48-SS 48” SS 3 $ 1,643 PRXH18-M54-SS 54” SS 3 $ 2,009 PRXH18-M60-SS 60” SS 4 $ 2,181
Model Dimensions Ceiling Height Retail WDCM-36 SS 36”W X 12”D X 12”H 8’ $ 596 WDCM-36/24 SS 36”W X 12”D X 24”H 9’ $ 871 WDCM-36/36 SS 36”W X 12”D X 36”H 10’ $ 1,143 WDCM-42 SS 42”W X 12”D X 12”H 8’ $ 644 WDCM-42/24 SS 42”W X 12”D X 24”H 9’ $ 964 WDCM-42/36 SS 42”W X 12”D X 36”H 10’ $ 1,281 WDCM-48 SS 48”W X 12”D X 12”H 8’ $ 688 WDCM-48/24 SS 48”W X 12”D X 24”H 9’ $ 1,054 WDCM-48/36 SS 48”W X 12”D X 36”H 10’ $ 1,418
Model Width Color # Filters Retail M40PSLD-SS 40 3/8" SS 2 $ 813 M46PSLD-SS 46 3/8" SS 3 $ 1,007
Price Excludes M1200 Blower and VP566 Transition (see above)
-
Extension Kit (6” Deep) Width Price BBE-M30-SS 30” $ 539 BBE-M36-SS 36” $ 633 BBE-M42-SS 42” $ 694 BBE-M48-SS 48” $ 743 BBE-M54-SS 54” $ 796 BBE-M60-SS 60” $ 850 BLOWER OPTIONS Model CFM AMPS Duct Retail M600 630 5.0 6” $ 487 M1200* 1035 10.0 10” $ 937
M600 M1200

Stock Item List - V-Line

V-Line Features:

• 250 CFM (375 Equivalent)

• Back Vent or Top Vent

• Efficient Open Canopy Design

• Easy cleaning

• LED Lighting with Dimming

• 50 watt halogen lights feature a dual switch for dimming to 25 watts

• Equipped with the Sensasource® heat sensor

• One year warranty

• Designed for light to moderate cooking

KHSLD Wall Mount Liner Inserts - 18” Deep and 6” Tall

See Page 78

PRH6-K Under Cabinet Range Hood- 19 1/2” Deep and 6” Tall

See Page 78

STOCK ITEM LIST 23 2022 List Price Book P: 800-292-8374 • F: 800-574-8805 www.pinnaclesalesgroup.com
Optional Trim Kits: Model Description Price TKK28SLD-SS Trim Kit for KH28SLD-SS $ 25.75 TKK34SLD-SS Trim Kit for KH34SLD-SS $ 25.75 TKK40SLD-SS Trim Kit for KH40SLD-SS $ 26.78
Model Width Color CFM Duct Retail KH28SLD-BL 28 3/8” Black 250 3¼” X 10” Top or Back Vent $ 580 KH28SLD-GS 28 3/8” Gunsmoke 250 $ 580 KH28SLD-SS 28 3/8” SS 250 $ 709 KH34SLD-BL 34 3/8” Black 250 $ 580 KH34SLD-GS 34 3/8” Gunsmoke 250 $ 580 KH34SLD-SS 34 3/8” SS 250 $ 709 KH40SLD-SS 40 3/8” SS 250 $ 830 Model Width Color CFM Duct Retail PRH6-K30-SS 30” SS 250 3¼” X 10” Top or Back Vent $ 771 PRH6-K36-SS 36” SS 250 $ 771

Stock Item List - V-Line

PDH14-K Under Cabinet Range Hood- 21” Deep and 14” Tall

See Page 80

SLH6-K Under Cabinet Range Hood- 19 1/2” Deep and 6” Tall

See Page 78

CWEAH6-K ARS/Duct-Free Range Hood

See Page 82

PDAH14-K ARS/DUCT-FREE RANGE HOOD

See Page 83

ARS Filters for CWEAH6-K

ARS Filters for PDAH14-K

STOCK ITEM LIST Pinnacle Sales Group 24 2022 List Price Book
Model Width Color CFM Duct Retail SLH6-K30-BL 30” Black 250 3 1/4” X 10 Top or Back Vent $ 642 SLH6-K30-SS 30” SS 250 $ 771 SLH6-K30-WH 30” White 250 $ 642 SLH6-K36-SS 36” SS 250 $ 771 SLH6-K36-WH 36” White 250 $ 642
Model Width Color CFM Duct Retail PDH14-K36-SS 36” SS 250 7” $ 1,797 Duct Covers: Model Dimensions Ceiling Height Retail WDCRND-10/10-SS 10”W x 10”D x 10”H 8” $ 514 WDCRND-10/22-SS 10”W x 10”D x 22”H 9” $ 612 WDCRND-10/34-SS 10”W x 10”D x 34”H 10” $ 710
Model Width Color Retail CWEAH6-K36-SS 36” SS $ 1,359 Model Dimensions Ceiling Height Retail WDCAND-12/18-SS 12”W x 12”D x 18”H 7’ $ 763 WDCAND-12/30-SS 12”W x 12”D x 30”H 8’ $ 874 WDCAND-12/42-SS 12”W x 12”D x 42”H 9’ $ 972 Duct Covers for CWEAH6-K Model Width Color Retail PDAH14-K30-SS 30” SS $ 1,857 PDAH14-K36-SS 36” SS $ 1,899 Model Dimensions Ceiling Height Retail WDCAND-10/22-SS 10”W x 10”D x 22”H 8’ $ 777 WDCAND-10/34-SS 10”W x 10”D x 34”H 9’ $ 861
Covers for PDAH14-K Model Description Retail ARS-12 ARS Filter Assembly for WDCA-12 $ 505 ARSLP-12 ARS Filter Assembly for Low Profile $ 317 ARSUC-12 ARS Filter Assembly for Under Cabinet $ 317 PARS-12 12”x12” Replacement H.E. Filter Assembly $ 240 PARS-C Replacement Activated Carbon Pellets - 1 Gallon $ 76 Model Description Retail ARS-10 ARS Filter Assembly for WDCA-10 $ 505 PARS-10 10”x10” Replacement H.E. Filter Assembly $ 240 PARS-C Replacement Activated Carbon Pellets - 1 Gallon $ 76
Duct

Stock Item List - M-Series

MSLD Wall Mount Liner Inserts - 19 1/4” Deep and 12 1/2” Tall

Blower Sold Separately - Choose from Options Below

See Page 87

MPSLD Wall Mount Liner Inserts - 22 1/2” Deep and 12 1/2” Tall

Blower Sold Separately - Choose from Options Below

See Page 87

Blower Options for MSLD and MPSLD

STOCK ITEM LIST 25 2022 List Price Book P: 800-292-8374 • F: 800-574-8805 www.pinnaclesalesgroup.com
Model Width Color #Filters Retail M28PSLD-SS 28 3/8" SS 2 $ 734 M34PSLD-SS 34 3/8" SS 2 $ 734 M40PSLD-SS 40 3/8" SS 2 $ 813 M46PSLD-SS 46 3/8" SS 3 $ 1,007
Model Width Color #Filters Retail M28SLD-SS 28 3/8" SS 2 $ 734 M34SLD-SS 34 3/8" SS 2 $ 734 M40SLD-SS 40 3/8" SS 2 $ 813 M46SLD-SS 46 3/8" SS 3 $ 1,007
BLOWER OPTIONS Model CFM AMPS Duct Retail M600 630 5.0 6” $ 487 M1200* 1035 10.0 10” $ 937
Transition Included
*VP566
M600 M1200

Stock Item List - M-Series

PRH18-M Wall Mount Range Hood - 24” Deep and 18” Tall

Blower Sold Separately - Choose from Options Below

See Page 85

PRXH18-M Wall Mount Range Hood - 27” Deep and 18” Tall

Blower Sold Separately - Choose from Options Below

See Page 85

EPH18-M Wall Mount Range Hood

See Page 86

Blower Sold Separately - Choose from Options Below

Blower Options and Duct Covers for PRH18-M, PRXH18-M and EPH18-M

Blower Options

*VP566 Transition Included

STOCK ITEM LIST Pinnacle Sales Group 26 2022 List Price Book
Model Width Color # Filters Retail PRH18-M36-SS 36” SS 2 $ 1,440 Model Width Color # Filters Retail PRXH18-M30-SS 30” SS 2 $ 1,415 PRXH18-M36-SS 36” SS 2 $ 1,440 PRXH18-M42-SS 42” SS 2 $ 1,556 PRXH18-M48-SS 48” SS 3 $ 1,643 PRXH18-M54 SS 54” SS 3 $ 2,009 PRXH18-M60 SS 60” SS 3 $ 2,181 Model Width Color # Filters Retail EPH18-M36-SS 36” SS 2 $ 1,848 EPH18-M42-SS 42” SS 2 $ 2,024 EPH18-M48-SS 48” SS 2 $ 2,151 EPH18-M36x32SS 36” SS 3 $ 2,714 EPH18-M42x32SS 42” SS 3 $ 2,962 EPH18-M48x32SS 48” SS 3 $ 3,157
Model CFM AMPS Duct Retail M600 630 5.0 6” $ 487 M1200* 1035 10.0 10” $ 937
Duct Covers: Model Dimensions Ceiling Height Retail WDCM-36-SS 36”W X 12”D X 12”H 8’ $ 596 WDCM-36/24-SS 36”W X 12”D X 24”H 9’ $ 871 WDCM-36/36-SS 36”W X 12”D X 36”H 10’ $ 1,143 WDCM-42-SS 42”W X 12”D X 12”H 8’ $ 644 WDCM-42/24-SS 42”W X 12”D X 24”H 9’ $ 964 WDCM-42/36-SS 42”W X 12”D X 36”H 10’ $ 1,281 WDCM-48-SS 48”W X 12”D X 12”H 8’ $ 688 WDCM-48/24-SS 48”W X 12”D X 24”H 9’ $ 1,054 WDCM-48/36-SS 48”W X 12”D X 36”H 10’ $ 1,418

Concierge Ventilation Service

Let us create the ventilation hood of your client's dreams and deliver the order right to your desk!

Pinnacle Sales Group has created a concierge service dedicated to helping our dealers specify customized ventilation for their clients with ease. We understand that working through the finest of details like identifying your client's needs, style and installation applications is a time-consuming process.

The process is simple, all you need to do is fill out the Data Collection Form located on our website and we take care of the rest!

This luxury service allows us to carefully work with the homeowner to determine which ventilation design and application piece best suits their needs while also providing turn-key concierge design services to our dealer partners with all information needed to complete the sale.

Go to pinnaclesalesgroup.com to start your next custom Vent-A-Hood quote!

Build-A-Hood Online Custom Design Tool

How to build a hood:

1. Select A Style: Designer hoods shown for reference, but select any hood style.

2. Select a Hood Width: 36”, 42”, 48”, 54”, 60” or 66”

3. Select a Ceiling Height

PRICES REFERENCED IN THE BUILD-A-HOOD CONFIGURATOR ARE ESTIMATES AND MAY VARY BY GEOGRAPHICAL REGIONS. WHILE WE MAKE EVERY EFFORT TO MAINTAIN ACCURATE INFORMATION, THIS WEBSITE MAY CONTAIN TYPOGRAPHICAL ERRORS OR INACCURACIES. PLEASE CONTACT PINNACLE SALES GROUP FOR FINAL PRICING.

4. Select a Blower System

5. Choose Finishes

6. Choose Optional Features:

27 List Price Book P: 800-292-8374 • F:
www.pinnaclesalesgroup.com
800-574-8805
BTU,
CFM Cooking Equipment: Heavy-Usage Professional Style 60,000
90,000 BTU, 36,000 watts
CFM Cooking Equipment: Heavy-Usage Professional Style 80,000 - 120,000 BTU, 48,000 watts
Ratings are for standard burners only and do not represent high output devices such as grills, griddles, woks, or fryers.
300 CFM Cooking Equipment: Standard Electric 20,000 - 30,000 BTU, 12,000 watts 600 CFM Cooking Equipment: Standard Gas or Professional Style 40,000 - 60,000
24,000 watts 900
-
1200
BTU
Corner Bands Canopy Lip Treatment Pot Rails Vertical Bands JCH/A1 WALL MOUNT/ ISLAND JCH/B1 WALL MOUNT/ ISLAND JCH/C1 WALL MOUNT/ ISLAND JCH/C2 WALL MOUNT JPH/C2 WALL MOUNT
www.buildahood.com to design and visualize your hood!
Corner Bands Vertical Bands Pot Rail Lip Treatment
Visit
JDH/C1 WALL MOUNT/ ISLAND JDH/C2 WALL MOUNT/ ISLAND JDH/C3 WALL MOUNT/ ISLAND JPH/C1 WALL MOUNT/ ISLAND

Turn static files into dynamic content formats.

Create a flipbook
Issuu converts static files into: digital portfolios, online yearbooks, online catalogs, digital photo albums and more. Sign up and create your flipbook.