Sales Comparables
Sale Price / Type: $150,000 / Sale / Rec Date: 07/09/2018 / 07/10/2018
Year Built / Eff:
Assessed Value: $529,900
Maricopa County Data as of: 07/24/2025
Baths (F / H): Land Use: Commercial Lot
Owner Name: Oertle John C JR / R TR / Dirt Por Investments LLC
Mailing Address: Po Box 50411, Phoenix, AZ 85076-411
County: Maricopa
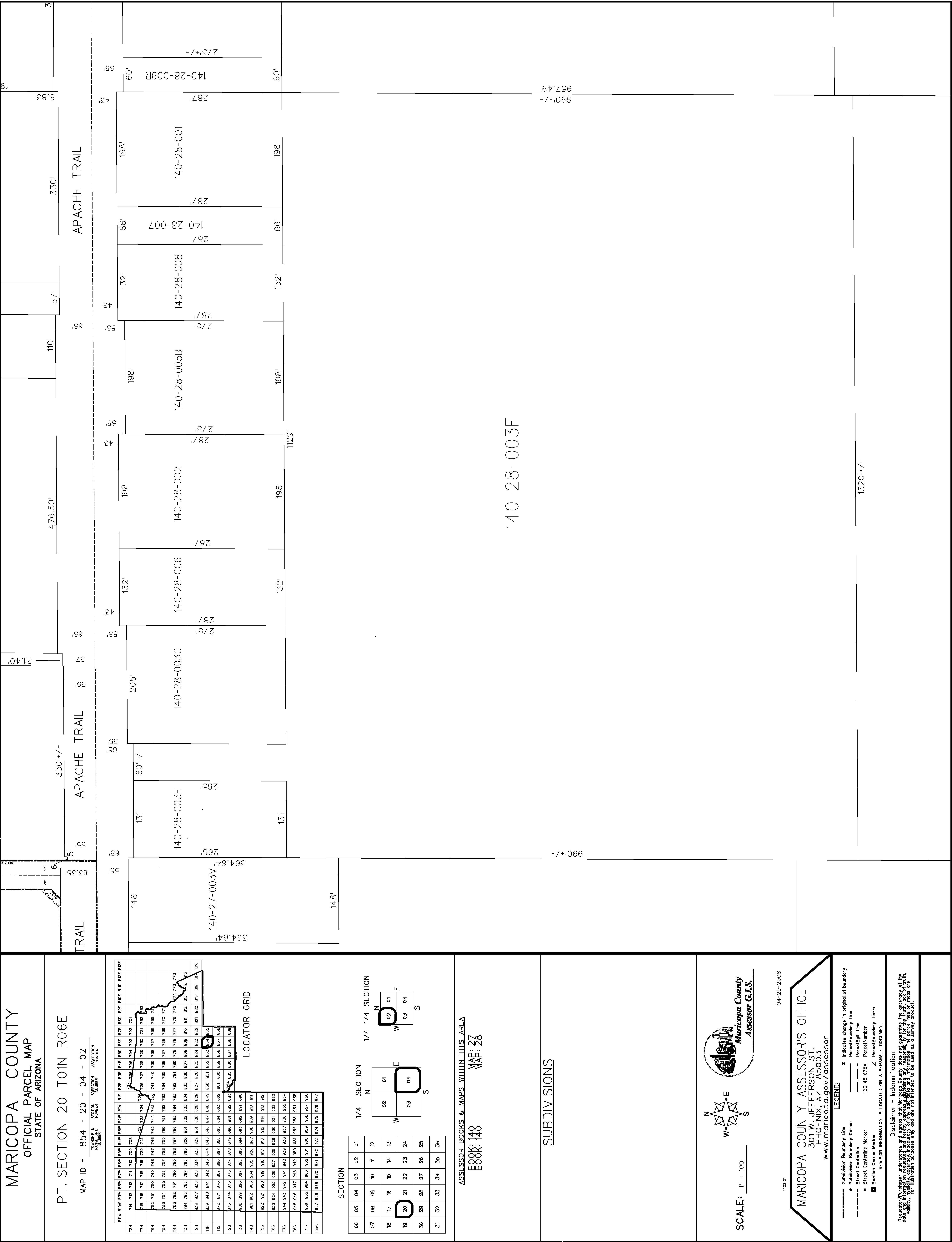
APN: 140-28-003-C
Subdivision:
Zoning: C-G
Acres: 1 29
$95,820 Census Tct / Blk: 420709 /
Comp #1 - 1.60 Miles From Subject 3705 E Southern Ave, Mesa, AZ 85206-2505
Sale Price / Type:
$10,000,000 / Sale / Rec Date: 05/05/2025 / 05/08/2025
Year Built / Eff:
Assessed Value: $374,900
16,227 Sq Ft
(F / H): Land Use: Commercial Lot
Owner Name: Vvcaz LLC
Mailing Address: 4539 N 22nd St #R, Phoenix, AZ 85016-4639
County: Maricopa
APN: 140-57-347
Zoning: C-G
Acres: 0 37
Subdivision: Val Vista Center 2 Cooling:
Census Tct / Blk: 422514 / 2000
1st Mtg / Type:
$7,100,000 /
Sale Price: $350,000
Prior Rec Date: 06/25/1998 Res / Comm Units:
Comp #2 - 2.55 Miles From Subject
Sale Price / Type:
$2,175,000 / Sale / Rec Date: 07/09/2024 / 07/10/2024
Year Built / Eff:
Assessed Value: $486,200
Land Use: Commercial Lot
Owner Name: Ronald L And Dorothy S Ledford Trust / Bruce E And Sandra L Ledford Trust
Mailing Address: 440 W 1st St #201, Tustin, CA 92780-3047
County: Maricopa
APN: 141-14-001-T
Subdivision:
Census Tct / Blk:
1st Mtg / Type:
Res / Comm Units:
Comp #3 - 2.59 Miles From Subject
Sale Price / Type: $1,100,000 / Sale / Rec Date: 04/30/2025 / 04/30/2025
Year Built / Eff:
Assessed Value: $507,700
1 00
Sq Ft
(F / H): Land Use: Commercial Lot
Owner Name: Mar-Mhp-X-B Ranch LLC
Mailing Address: 10115 E Bell Rd #107, Scottsdale, AZ 85260-2189
County: Maricopa
Zoning: C-C
APN: 141-76-014 Acres: 2 32
Subdivision:
Census Tct / Blk: 420214 /
1st Mtg / Type:
Res / Comm Units:
Prior Sale Price: $330,000
Sale Date: 05/03/2021
Prior Rec Date: 05/05/2021
X Prior Sale Doc #: 2021 505971
Comp #4 - 3.36 Miles From Subject
Sale Price / Type:
$11,250,000 / Sale / Rec Date: 11/12/2024 / 11/12/2024
Year Built / Eff:
Assessed Value: $3,627,800
Land Use: Commercial Lot
Owner Name: Artom Gilbert Apartments LLC
Mailing Address: 6508 E Bar Z Ln, Paradise Valley, AZ 85253-1873
County: Maricopa Zoning:
APN: 140-69-373 Acres: 8 36
Subdivision: Higley Apartments
Census Tct / Blk:
1st Mtg / Type:
Res / Comm Units:
$10,578,000 /
Comp #5 - 3.53 Miles From Subject 6051 E Main St, Mesa, AZ 85205-8932
Sale Price / Type: $287,000 / Sale / Rec Date: 01/10/2025 / 01/15/2025
Year Built / Eff:
Assessed Value: $274,800
Land Use: Commercial Lot
Owner Name: Vuton Family Trust / Ton Thuong
Mailing Address: 5309 E Helena Dr, Scottsdale, AZ 85254-7526
County: Maricopa
APN: 141-57-080-D
Subdivision: Broadview Center Lot 1-17
Census Tct / Blk: 422625 / 2001
1st Mtg / Type:
Sq Ft
(F / H):
48,533 Sq Ft
Zoning: C-G
1 11
Sale Price: $160,000
Comp #6 - 3.54 Miles From Subject
Sale Price / Type: $565,000 / Sale / Rec Date: 04/28/2025 / 04/28/2025
Year Built / Eff:
Assessed Value: $176,700
12,976 Sq Ft
(F / H): Land Use: Commercial Lot
Owner Name: Cleveland Enterprises North America LLC
Mailing Address: 8520 E Regina Cir, Mesa, AZ 85207-9127
County: Maricopa
APN: 141-15-068-K
Subdivision:
Zoning: C-O
0 30
Prior Sale Price: $175,000
Census Tct / Blk: 420303 / Fireplace: Prior Sale Date: 09/23/2004
1st Mtg / Type:
Prior Rec Date: 09/30/2004 Res / Comm Units:
X
Sale Doc #: 2004 1147262
Comp #7 - 3.54 Miles From Subject
Sale Price / Type: $565,000 / Sale / Rec Date: 04/28/2025 / 04/28/2025
Year Built / Eff:
Assessed Value: $513,500
Land Use: Commercial Lot
Owner Name: Cleveland Enterprises North America LLC
Mailing Address: 8520 E Regina Cir, Mesa, AZ 85207-9127
County: Maricopa Zoning: C-O
APN: 141-15-068-J
Subdivision:
Census Tct / Blk: 420303 /
1st Mtg / Type:
Comp #8 - 3.77 Miles From Subject 1240 N Recker Rd, Mesa, AZ 85205
Sale Price / Type: $625,000 / Sale / Rec Date: 02/04/2025 / 02/07/2025
Year Built / Eff:
Assessed Value: $636,500
Land Use: Commercial Lot
Owner Name: Cse Investments LLC
Mailing Address: 1076 W Chandler Blvd #113, Chandler, AZ 85224-5205
County: Maricopa
APN: 141-44-736
Subdivision: Nielson Commercial Plaza Unit 2
Census Tct / Blk: 420216 / 1009
1st Mtg / Type: $500,000 / Private Party
0 52
/
Comp #9 - 3.79 Miles From Subject
1258 N Recker Rd, Mesa, AZ 85205
Sale Price / Type: $625,000 / Sale / Rec Date: 01/09/2025 / 01/13/2025 Year Built / Eff:
(F / H): Land Use: Commercial Lot
Owner Name: Cse Investments LLC
Mailing Address: 1076 W Chandler Blvd #113, Chandler, AZ 85224-5205 County: Maricopa
Subdivision: Nielson Commercial Plaza Unit 2
Price: $21,500 Census Tct / Blk: 420216 / 1009
Date: 1st Mtg / Type:
Rec Date: 05/01/1998
/ Comm Units:
Comp #10 - 4.04 Miles From Subject 636 N Gilbert Rd, Gilbert, AZ 85234-4526
Sale Price / Type:
$1,200,000 / Sale / Rec Date: 07/03/2024 / 07/03/2024
Year Built / Eff:
Assessed Value: $724,200
(F / H): Land Use: Commercial Lot
Owner Name: Steele Curtain Lllp
Mailing Address: 2319 E Escondido Pl, Gilbert, AZ 85234-5065
County: Maricopa
APN: 302-14-906 Acres: 1 11
Subdivision: Horne 660 Llc Mld
Census Tct / Blk: 422401 / 1000
1st Mtg / Type:
$1,150,000
Rec Date: 03/29/2022 Res / Comm Units:
Comp #11 - 4.04 Miles From Subject 5821 E McKellips Rd, Mesa, AZ 85215-2741
Sale Price / Type: $425,000 / Sale / Rec Date: 06/09/2025 / 06/12/2025
Year Built / Eff:
Assessed Value: $557,400
Land Use: Commercial Lot
Owner Name: Aghtamar LLC
Mailing Address: 9015 E Paradise Dr, Scottsdale, AZ 85260-6888
County: Maricopa
C-G
APN: 141-45-987 Acres: 0 55
Subdivision: Falcon View Lot 1-11
Census Tct / Blk: 420216 / 2000
1st Mtg / Type:
Price: $1,220,000
Date: 02/07/2003 Res / Comm Units:
Comp #12 - 4.61 Miles From Subject 6901 E University Dr, Mesa, AZ 85207-6401
Sale Price / Type: $410,000 / Sale / Rec Date: 07/16/2024 / 07/19/2024
Year Built / Eff:
Assessed Value: $364,200
44,729 Sq Ft
(F / H): Land Use: Commercial Lot
Owner Name: Danadin LLC
Mailing Address: 789 W 27th St, Yuma, AZ 85364-7207
County: Maricopa Zoning:
APN: 218-10-003-C
Subdivision:
Census Tct / Blk: 420113 / 1001
1st Mtg / Type:
1 03
Res / Comm Units: Flood Zone Code: X Prior Sale Doc #:
Comp #13 - 4.67 Miles From Subject
Sale Price / Type: $475,000 / Sale / Rec Date: 12/26/2024 / 12/26/2024
Year Built / Eff:
Assessed Value: $364,600
Land Use: Commercial Lot
Owner Name: Nss Holding Real Estate LLC
Mailing Address: 20731 N Scottsdale Rd #103, Scottsdale, AZ 85255-7410
County: Maricopa Zoning: C-G
APN: 135-24-051-A
Subdivision: Findley Acres
Census Tct / Blk: 421102 /
Comp #14 - 4.67 Miles From Subject 676 N Country Club Dr, Mesa, AZ 85201
Sale Price / Type: $475,000 / Sale / Rec Date: 12/26/2024 / 12/26/2024
Year Built / Eff:
$346,500
Commercial Lot
Owner Name: Nss Holding Real Estate LLC Mailing Address: 20731 N Scottsdale Rd #103, Scottsdale, AZ 85255-7410
County: Maricopa
APN: 135-24-050-A
Subdivision: Findley Acres
Census Tct / Blk: 421102 / 3000
1st Mtg / Type:
11/14/2018 Res / Comm Units:
Sale Doc #: 2018 847212
Comp #15 - 5.00 Miles From Subject
Sale Price / Type: $209,000 / Sale / Rec Date: 12/23/2024 / 12/27/2024
Year Built / Eff:
Assessed Value: $149,800
Land Use: Commercial Lot
Owner Name: Molina Rodrigo
Mailing Address: 30 W June St, Mesa, AZ 85201-1715
19,777 Sq Ft
County: Maricopa Zoning: C-C
APN: 135-12-072-K
Subdivision: Mclellan Acres Blk 2
Census Tct / Blk: 421101 / Fireplace:
1st Mtg / Type: $208,038 /
Res / Comm Units:
(F / H):
$160,000
09/01/2021
Rec Date: 11/03/2021
Sale Doc #: 2021 1182010
Disclaimer:This report is not an insured product or service or a representation of the condition of title to real property. It is not an abstract, legal opinion,opinionoftitle,titleinsurance,commitmentorpreliminaryreport,oranyformoftitleinsuranceorguaranty.Estimatedpropertyvaluesare: (i) based on available data; (ii) are not guaranteed or warranted; (iii) do not constitute an appraisal; and (iv) should not be relied upon in lieu of an appraisal.This report is issued exclusively for the benefit of the applicant therefor, and may not be used or relied upon by any other person. This report may not be reproduced in any manner without the issuing party's prior written consent. The issuing party does not represent or warrant that the information herein is complete or free from error, and the information herein is provided without any warranties of any kind, as-is, and with all faults. As a material part of the consideration given in exchange for the issuance of this report, recipient agrees that the issuing party's sole liability for any loss or damage caused by an error or omission due to inaccurate information or negligence in preparing this report shall be limited to the fee charged for the report. Recipient accepts this report with this limitation and agrees that the issuing party would not have issued this report but forthelimitationofliability described above. Theissuingpartymakesnorepresentation orwarrantyastothelegality orpropriety ofrecipient's use oftheinformationherein.



Census Tract / block: Year: 2020
SEARCH PARAMETERS
PARCEL: 140-28-003C
PARCEL: 140-28-003C 1
OWNER: DIRT POR INVESTMENTS LLC
MAIL: 1115 W BROADWAY RD
TEMPE AZ 85282
SECTION: 20 TWP 1N RNG 6E
LEGAL: W 205F OF E 1129F OF N 330F NW4 SE4 EX N 55F RD
CURRENT TAXES
NO SALES
ADDITIONAL PROPERTY INFORMATION
STANDARD LAND USE: COMMERCIAL LOT
END SEARCH