WIRE FRAUD ALERT THINK DIFFERENTLY
Email-based, real estate fraud schemes are on the rise. One common scenario is altering wiring instructions with the intention of rerouting funds.
Keeping this in mind, First American Title is changing the way we receive payment information. It is imperative that we are familiar with the people in our transactions.
RELYING ON EMAIL ALONE IS NO LONGER AN OPTION.
Fraudsters often use email to send falsified wire instructions to unsuspecting victims. Please warn your buyers and sellers to only follow wire instructions they receive personally from First American Title.
Additionally, we will not accept disbursement instructions for seller or buyer funds via email OR from any third party (attorney, real estate agent, etc).
ALTERNATIVE INSTRUCTIONS?
If your buyer or seller receives alternative wiring instructions that appear to be from First American Title, make sure they contact their escrow officer at a trusted phone number for confirmation.
Know that our wiring instructions do not change so any communication is suspect. Our banking institution is First American Trust.
IN SHORT – wire instructions will not be accepted by email. New wire instructions must be hand-carried or uploaded to the First American Secure Portal.
Thank you for joining First American Title in fostering a secure real estate transaction process. Have questions or concerns? Please contact our office or your escrow officer.
LIMITATION OF LIABILITY FOR INFORMATIONAL REPORTS
IMPORTANT -- PLEASE READ CAREFULLY:
This report is not an insured product or service or a representation of the condition of title to real property. It is not an abstract, legal opinion, opinion of title, title insurance commitment or preliminary report, or any form of Title Insurance or Guaranty. This report is issued exclusively for the benefit of the Applicant therefor and may not be used or relied upon by any other person. This report may not be reproduced in any manner without First Americans prior written consent. First American does not represent or warrant that the information herein is complete or free from error, and the information herein is provided without any warranties of any kind, as-is, and with all faults. As a material part of the consideration given in exchange for the issuance of this report, recipient agrees that First Americans sole liability for any loss or damage caused by an error or omission due to inaccurate information or negligence in preparing this report shall be limited to the fee charged for the report. Recipient accepts this report with this limitation and agrees that First American would not have issued this report but for the limitation of liability described above. First American makes no representation or warranty as to the legality or propriety of recipient's use of the information herein.

Disclaimer
This REiSource report is provided "as is" without warranty of any kind, either express or implied, including without limitations any warrantees of merchantability or fitness for a particular purpose. There is no representation of warranty that this information is complete or free from error, and the provider does not assume, and expressly disclaims, any liability to any person or entity for loss or damage caused by errors or omissions in this REiSource report without a title insurance policy.
The information contained in the REiSource report is delivered from your Title Company, who reminds you that you have the right as a consumer to compare fees and serviced levels for Title, Escrow, and all other services associated with property ownership, and to select providers accordingly. Your home is the largest investment you will make in your lifetime and you should demand the very best.
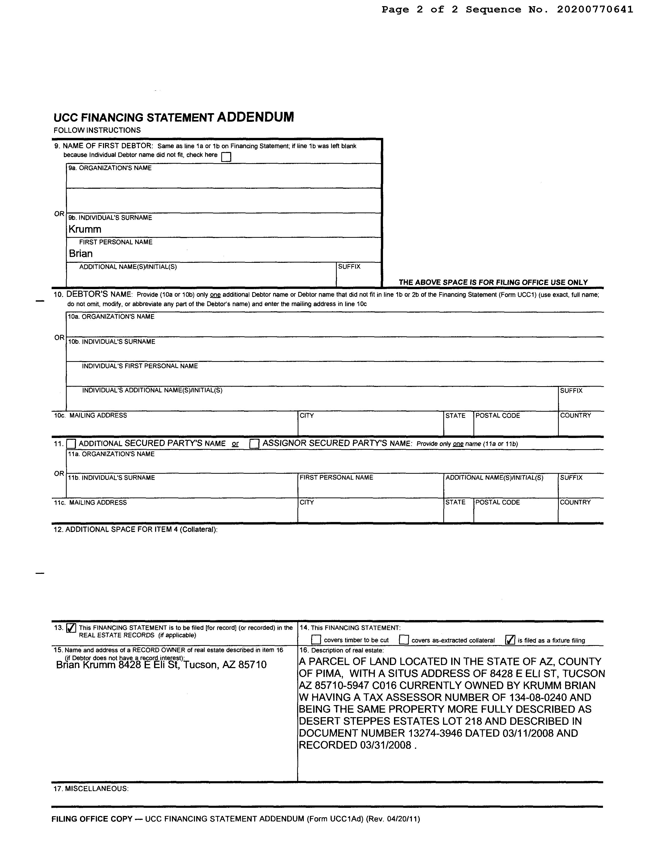
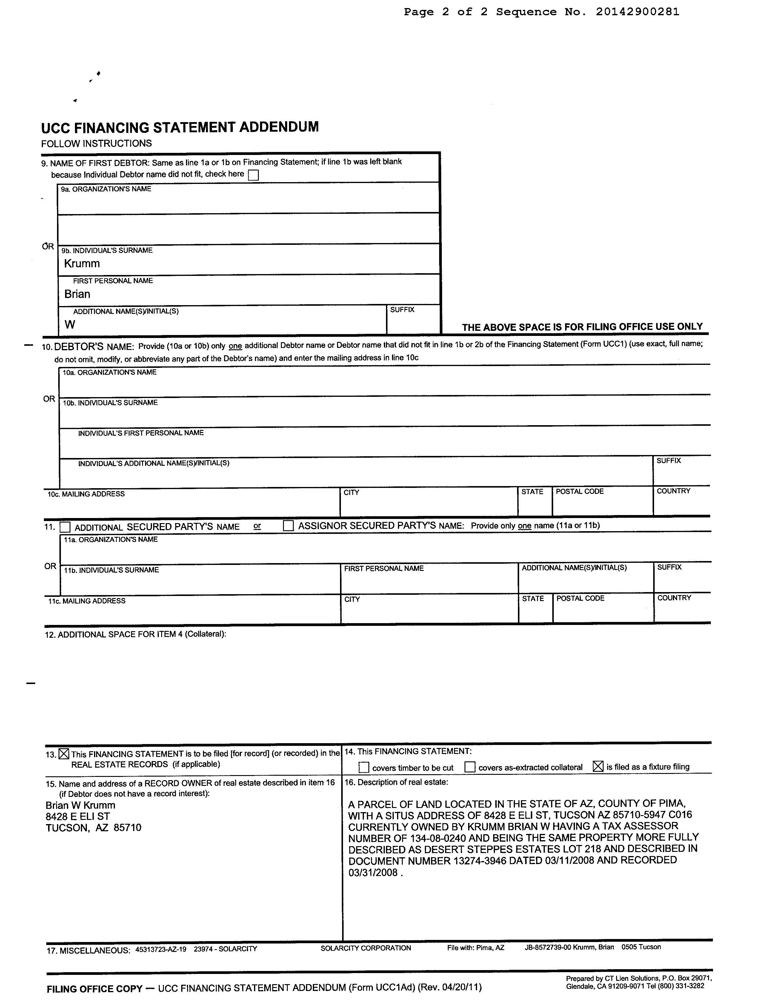
Subject Property : 8428 E Eli St Tucson AZ 85710
Owner Information
Owner Name : Krumm Brian W The Est Of Pb20230641
Mailing Address : 8428 E Elida St, Tucson AZ 85712-5632
Vesting Codes : Single Man / /
Location Information
Legal Description : Desert Steppes Estates Lot 218
County : Pima, Az
Census Tract / Block : 40.70 / 2
Township-Range- Sect : 14S-15E-16
Legal Book/Page : 16-1
Legal Lot : 218
Market Area : 91
Last Market Sale Information
Recording/Sale Date : 03/31/2008 / 03/11/2008
Sale Price : $161,000
Document # : 13274-3946
Deed Type : Special Warranty Deed
1st Mtg Amount/Type : $158,512 / Fha
Title Company : Fidelity National Title Co
Lender : Nova Fin'l & Inv Corp
Seller Name : Hsbc Mortgage Sevices Inc
Prior Sale Information
Prior Rec/Sale Date : 08/16/2006 / 08/10/2006
Prior Sale Price : $195,000
Prior Doc Number : 12869-3298
Prior Deed Type : Warranty Deed
APN : 134-08-0240
Subdivision : Desert Steppes Estates
Map Reference : 16-14S-15E
School District : Tucson Unified
Munic/Township : Tucson Unified
1st Mtg Int. Rate/Type : 6%
1st Mtg Document # : 13274-3947
1st Mtg Term : 30
Price Per SqFt : $94.54
Prior Lender : Decision One Mtg Co Llc
Prior 1st Mtg Amt/Type : $195,000 / Conv
Prior 1st Mtg Rate/Type : $10.59 / Adjustable Int Rate Loan
Property Characteristics
Gross Area : 1,703 Garage Capacity : 1
Living Area : 1,703
Total Rooms : 7
Year Built / Eff : 1963
# of Stories : 1
Parking Type : Carport
Property Information
Sfr
Roof Material : Built-up
Patio Type : Covered Patio
Air Cond : Evap Cooler
Heat Type : Forced Air Quality : Fair
Cooling Type : Forced Air
Condition : Average
Exterior wall : Adobe Bath Fixtures : 6
R-1
Information
Census Tract / block: 40.70 / 2 Year: 2020
Covenants, Conditions & Restrictions
Thank you for the opportunity to be of service.
Restrictions indicating a preference, limitation or discrimination based on race, color, religion, sex, handicap, familial status, or national origin are hereby deleted to the extent such restrictions violate 42 USC 3604(c).
This information is furnished without fee and without benefit of a complete title search. No liability is assumed by First American Title. If it is desired that liability be assumed, you may apply for a policy of title insurance with First American Title Insurance Company.