Subject Property
7720 E Rhiannon Dr Tucson AZ 85730 APN: 136-22-1210
Data Provided By: First American Title Ins Co
WIRE FRAUD ALERT THINK DIFFERENTLY
Email-based, real estate fraud schemes are on the rise. One common scenario is altering wiring instructions with the intention of rerouting funds.
Keeping this in mind, First American Title is changing the way we receive payment information. It is imperative that we are familiar with the people in our transactions.
RELYING ON EMAIL ALONE IS NO LONGER AN OPTION.
Fraudsters often use email to send falsified wire instructions to unsuspecting victims. Please warn your buyers and sellers to only follow wire instructions they receive personally from First American Title.
Additionally, we will not accept disbursement instructions for seller or buyer funds via email OR from any third party (attorney, real estate agent, etc).
ALTERNATIVE INSTRUCTIONS?
If your buyer or seller receives alternative wiring instructions that appear to be from First American Title, make sure they contact their escrow officer at a trusted phone number for confirmation.
Know that our wiring instructions do not change so any communication is suspect. Our banking institution is First American Trust.
IN SHORT – wire instructions will not be accepted by email. New wire instructions must be hand-carried or uploaded to the First American Secure Portal.
Thank you for joining First American Title in fostering a secure real estate transaction process. Have questions or concerns? Please contact our office or your escrow officer.
LIMITATION OF LIABILITY FOR INFORMATIONAL REPORTS
IMPORTANT -- PLEASE READ CAREFULLY:
This report is not an insured product or service or a representation of the condition of title to real property. It is not an abstract, legal opinion, opinion of title, title insurance commitment or preliminary report, or any form of Title Insurance or Guaranty. This report is issued exclusively for the benefit of the Applicant therefor and may not be used or relied upon by any other person. This report may not be reproduced in any manner without First Americans prior written consent. First American does not represent or warrant that the information herein is complete or free from error, and the information herein is provided without any warranties of any kind, as-is, and with all faults. As a material part of the consideration given in exchange for the issuance of this report, recipient agrees that First Americans sole liability for any loss or damage caused by an error or omission due to inaccurate information or negligence in preparing this report shall be limited to the fee charged for the report. Recipient accepts this report with this limitation and agrees that First American would not have issued this report but for the limitation of liability described above. First American makes no representation or warranty as to the legality or propriety of recipient's use of the information herein.

Disclaimer
This REiSource report is provided "as is" without warranty of any kind, either express or implied, including without limitations any warrantees of merchantability or fitness for a particular purpose. There is no representation of warranty that this information is complete or free from error, and the provider does not assume, and expressly disclaims, any liability to any person or entity for loss or damage caused by errors or omissions in this REiSource report without a title insurance policy.
The information contained in the REiSource report is delivered from your Title Company, who reminds you that you have the right as a consumer to compare fees and serviced levels for Title, Escrow, and all other services associated with property ownership, and to select providers accordingly. Your home is the largest investment you will make in your lifetime and you should demand the very best.
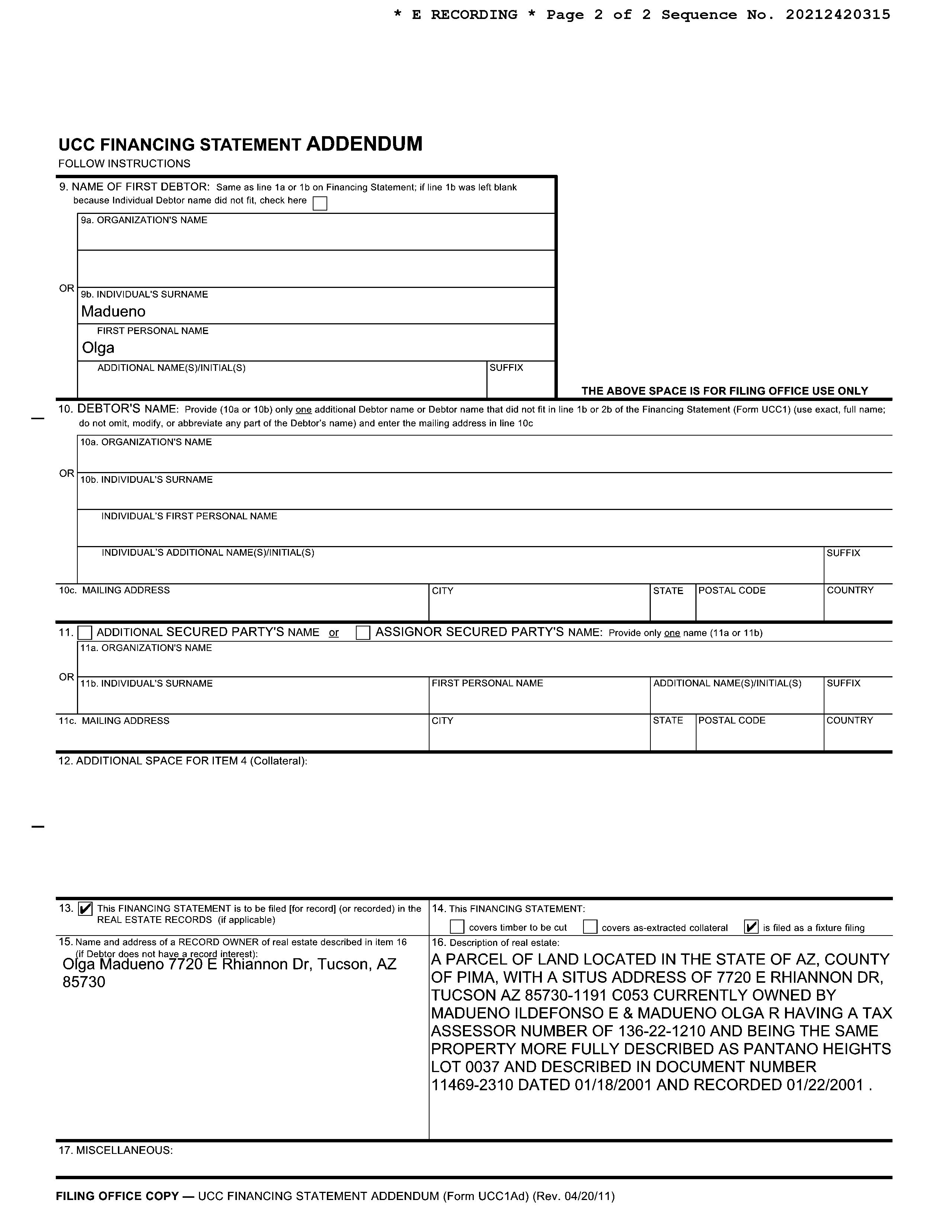
Subject Property : 7720 E Rhiannon Dr Tucson AZ 85730
Owner Information
Owner Name : Madueno Ildefonso E / Madueno Olga R
Mailing Address : 7720 E Rhiannon Dr, Tucson AZ 85730-1191 C063
Vesting Codes : / / Community Property
Owner Occupied Indicator : O
Location Information
Legal Description : Pantano Heights Lot 0037
County : Pima, Az
Census Tract / Block : 40.37 / 1
Township-Range- Sect : 14S-15E-29
Legal Book/Page : 51-83
Legal Lot : 37
APN : 136-22-1210
Subdivision : Pantano Heights
Map Reference : 29-14S-15E
School District : Tucson Unified
Munic/Township : Tucson Unified Market Area : 80
Last Market Sale Information
Recording/Sale Date : 01/22/2001 / 01/18/2001
Sale Price : $130,000
Document # : 11469-2310
Deed Type : Warranty Deed
1st Mtg Amount/Type : $104,000 / Cnv
Title Company : First American Title
Lender : Wells Fargo Hm Mtg Inc
Seller Name : Kbone Inc
Prior Sale Information
Prior Rec/Sale Date : 08/03/1999 / 07/30/1999
Prior Sale Price : $116,850
Prior Doc Number : 11102-2448
Prior Deed Type : Warranty Deed
1st Mtg Int. Rate/Type : / Fixed Rate Loan
1st Mtg Document # : 11469-2314
1st Mtg Term : 30
Price Per SqFt : $73.99
2nd Mtg Amount/Type : $26,000 / Conv
Prior Lender : Dynex Com'l Inc
Prior 1st Mtg Amt/Type : $104,550 / Conv
Prior 1st Mtg Rate/Type : / Adjustable Int Rate Loan
Property Characteristics
Gross Area : 1,757 Garage Capacity : 2
Living Area : 1,757
Total Rooms : 7
Year Built / Eff : 1999
# of Stories : 1
Parking Type : Garage
Property Information
Patio Type : Covered Patio
Roof Material : Asphalt Air Cond : Refrigeration
Heat Type : Forced Air Quality : Fair
Cooling Type : Forced Air Condition : Excellent
Exterior wall : Frame Wood Bath Fixtures : 6
Land Use : Sfr Zoning : R-2 Lot Size : 6,047
County Use : Single Fam Resurban Subd
Tax Information
$268,007
Assessed Year : 2024
Year : 2024
Use : Single Fam Resurban Subd
Census Tract / block: 40.37 / 1 Year: 2020
PIMA COUNTY
PARCEL: 110-10-1790
PARCEL: 110-10-1790
OWNER: PATEL IMRAN & SALMA
SEARCH PARAMETERS
SITUS: 4955 E PARADE GROUND LP TUC
MAIL: 4955 E PARADE GROUND LOOP
PLAT: LOT 00054 BLOCK
LEGAL: VALLEY RANCH LOT 54
CURRENT TAXES
2024 820151 03/22/2024
2024 820151 WD GISSING REVOCABLE TRUST 03/03/2008
13254 2560 WD WEICHERT RELOCATION RESOUR
12125 9430 D SAAVEDRA EDUARDO/VICKY P 12/13/2001 554,500 11695 3948 WD PARADE GROUND DEVELOPMENT 12/13/2001 485,000 11695 3947 SD CROMWELL PARTNERS LLC ADDITIONAL PROPERTY INFORMATION
STANDARD LAND USE: SFR
END SEARCH