3331 W Avenida De San Candido digital homebook

Page 1


WIRE FRAUD ALERT THINK DIFFERENTLY

Email-based, real estate fraud schemes are on the rise. One common scenario is altering wiring instructions with the intention of rerouting funds.

Keeping this in mind, First American Title is changing the way we receive payment information. It is imperative that we are familiar with the people in our transactions.

RELYING ON EMAIL ALONE IS NO LONGER AN OPTION.

Fraudsters often use email to send falsified wire instructions to unsuspecting victims. Please warn your buyers and sellers to only follow wire instructions they receive personally from First American Title.

Additionally, we will not accept disbursement instructions for seller or buyer funds via email OR from any third party (attorney, real estate agent, etc).

ALTERNATIVE INSTRUCTIONS?

If your buyer or seller receives alternative wiring instructions that appear to be from First American Title, make sure they contact their escrow officer at a trusted phone number for confirmation.

Know that our wiring instructions do not change so any communication is suspect. Our banking institution is First American Trust.

IN SHORT – wire instructions will not be accepted by email. New wire instructions must be hand-carried or uploaded to the First American Secure Portal.

Thank you for joining First American Title in fostering a secure real estate transaction process. Have questions or concerns? Please contact our office or your escrow officer.

LIMITATION OF LIABILITY FOR INFORMATIONAL REPORTS

IMPORTANT -- PLEASE READ CAREFULLY:

This report is not an insured product or service or a representation of the condition of title to real property. It is not an abstract, legal opinion, opinion of title, title insurance commitment or preliminary report, or any form of Title Insurance or Guaranty. This report is issued exclusively for the benefit of the Applicant therefor and may not be used or relied upon by any other person. This report may not be reproduced in any manner without First Americans prior written consent. First American does not represent or warrant that the information herein is complete or free from error, and the information herein is provided without any warranties of any kind, as-is, and with all faults. As a material part of the consideration given in exchange for the issuance of this report, recipient agrees that First Americans sole liability for any loss or damage caused by an error or omission due to inaccurate information or negligence in preparing this report shall be limited to the fee charged for the report. Recipient accepts this report with this limitation and agrees that First American would not have issued this report but for the limitation of liability described above. First American makes no representation or warranty as to the legality or propriety of recipient's use of the information herein.

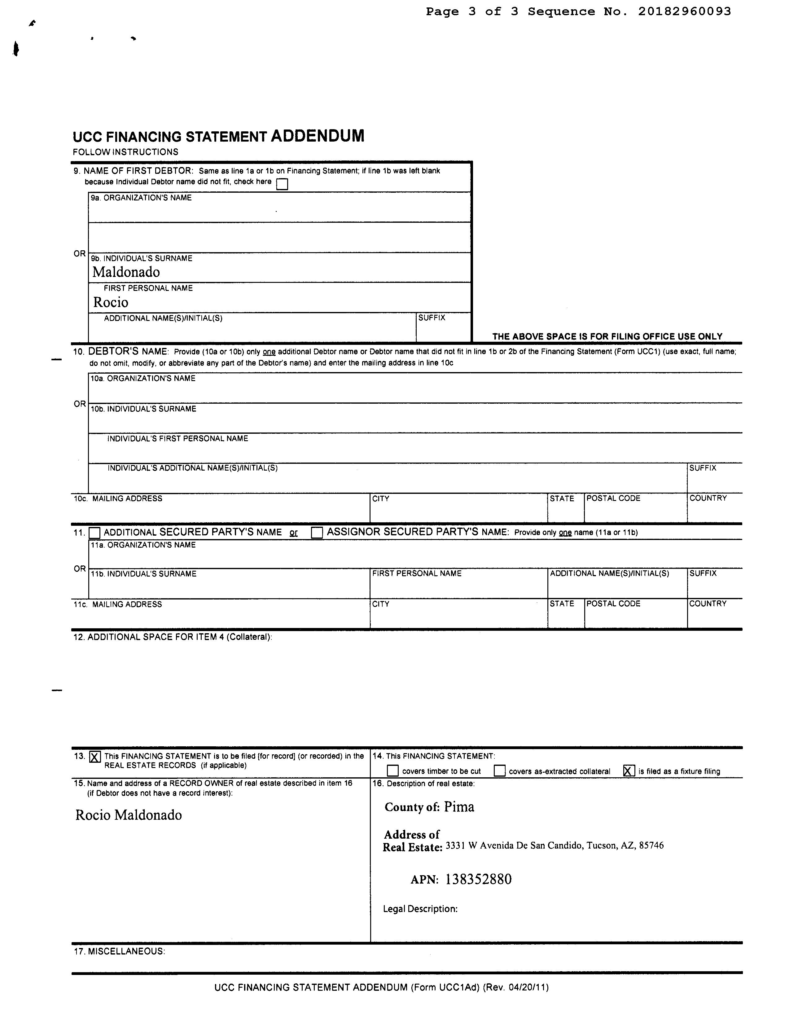
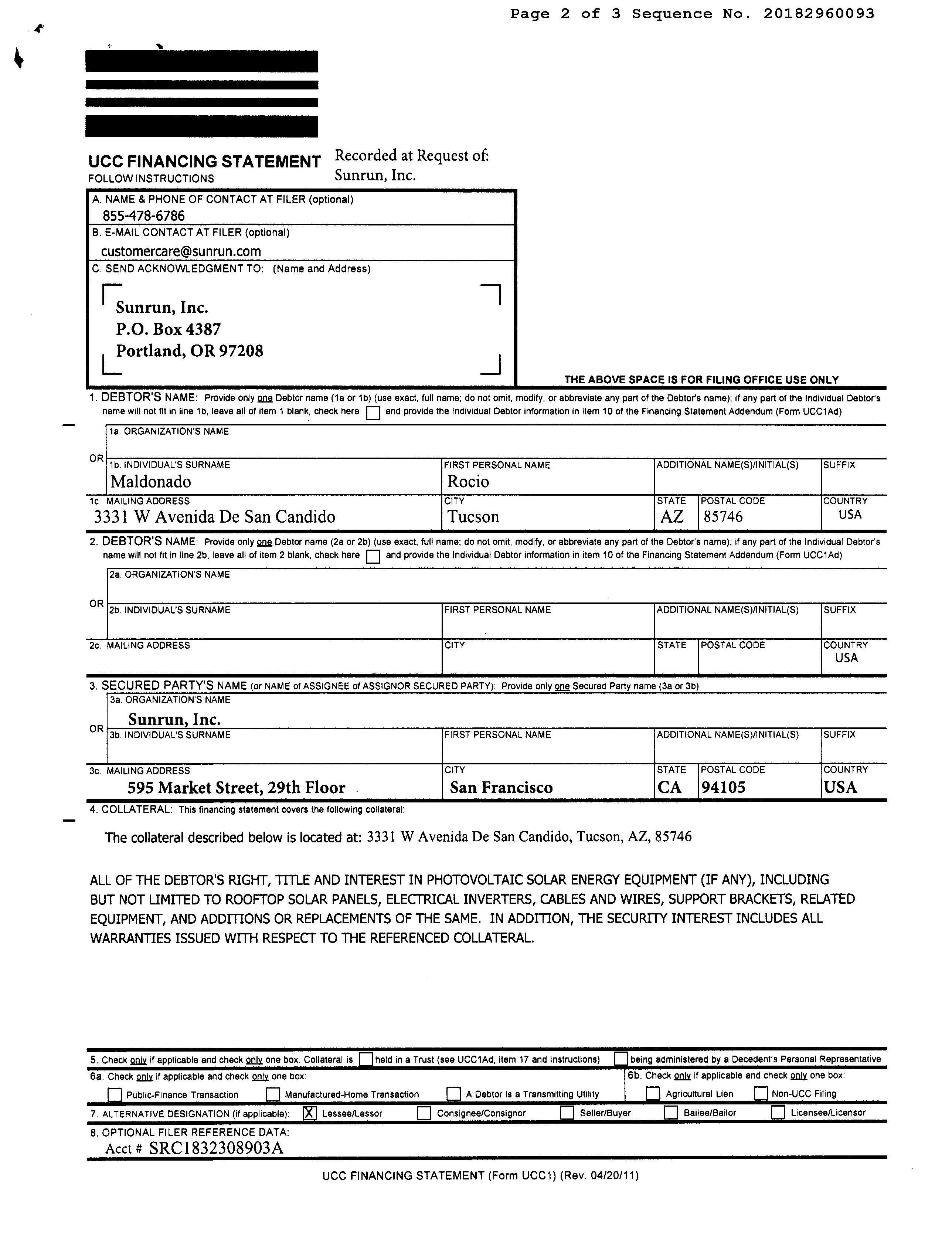
Subject Property

3331 W Avenida De San Candido Tucson AZ 85746 APN: 138-35-2880

Data Provided By: First American Title Ins Co

Disclaimer

This REiSource report is provided "as is" without warranty of any kind, either express or implied, including without limitations any warrantees of merchantability or fitness for a particular purpose. There is no representation of warranty that this information is complete or free from error, and the provider does not assume, and expressly disclaims, any liability to any person or entity for loss or damage caused by errors or omissions in this REiSource report without a title insurance policy.

The information contained in the REiSource report is delivered from your Title Company, who reminds you that you have the right as a consumer to compare fees and serviced levels for Title, Escrow, and all other services associated with property ownership, and to select providers accordingly. Your home is the largest investment you will make in your lifetime and you should demand the very best.

Subject Property :   3331 W Avenida De San Candido Tucson AZ 85746

Owner Information

Owner Name : Maldonado Homero / Maldonado Rocio A

Mailing Address : 3331 W Avenida De San Candido, Tucson AZ 85746-2574 C004

Vesting Codes : / / Community Property

Owner Occupied Indicator : O

Location Information

Legal Description : Mission West Ii Phase 2 Lot 214

County : Pima, Az

Census Tract / Block : 43.22 / 2

Township-Range- Sect : 15S-13E-20

Legal Book/Page : 41-80

Legal Lot : 214

Market Area : 311

Last Market Sale Information

Recording/Sale Date : 03/08/2018 / 03/07/2018

APN : 138-35-2880

Subdivision : Mission West 02 Ph 02

Map Reference : 20-15S-13E

School District : Tucson Unified

Munic/Township : Tucson Unified

1st Mtg Amount/Type : $140,000 / Cnv

Sale Price : $195,000 1st Mtg Document # : 670312

Document # : 670311 1st Mtg Term : 30

Deed Type : Warranty Deed

Title Company : Signature Title

Lender : Summit Fndg

Seller Name : Kms Ents Llc

Prior Sale Information

Prior Rec/Sale Date : 07/14/2006 / 07/11/2006

Prior Sale Price : $245,050

Prior Doc Number : 12846-5663

Price Per SqFt : $87.29

Prior Deed Type : Warranty Deed

Prior Lender : Westamerica Mtg Co

Prior 1st Mtg Amt/Type : $250,318 / Va

Name : Lisa Mrazek Customer Company Name : First American Title Insurance Company Prepared On : 08/06/2024

Property Characteristics

Gross Area : 2,234 Garage Capacity : 2

Living Area : 2,234

Total Rooms : 10

Year Built / Eff : 2003

# of Stories : 2

Parking Type : Garage

Property Information

Land Use : Sfr

Patio Type : Covered Patio

Roof Material : Asphalt Air Cond : Refrigeration

Heat Type : Forced Air Quality : Fair

Cooling Type : Forced Air Condition : Excellent

Exterior wall : Frame Wood Bath Fixtures : 9

Use : Single Fam Resurban Subd Tax Information

Details of Comparables

Subject Property: 3331 W Avenida De San Candido Tucson Az 85746

Owner Name: Maldonado Homero /Maldonado Rocio A

APN / Alternate APN: 138-35-2880 / Deed Type: Warranty Deed

Subdivision / Tract: Mission West 02 Ph 02 / Lot Size: 8,945

Rec. Date / Price: 03/08/2018 / $195,000 Living Area: 2,234

Document #: 670311

Total Tax Value: $211,442

Bedrooms:

Bath(F/H): /

#1   3261 W Calle De La Bajada Tucson Az 85746

Owner Name: Lsg Investments Llc / APN / Alternate APN: 138-29-3570 / Deed Type: Warranty Deed

Subdivision / Tract: Mission West / Lot Size: 12,530

Rec. Date / Price: 05/01/2024 / $200,000 Living Area: 2,053

Document #: 1220697

Total Tax Value: $198,805

Land Use: Sfr

Year Built / Eff: 2003 /

# of units:

Pool:

Land Use: Sfr

Year Built / Eff: 1986 /

# of units:

Bedrooms: Pool:

Bath(F/H): /

#2   3230 W Via Santa Dorotea Tucson Az 85746

Owner Name: Fuentes Mayra A /Covarrubias Jesus F

APN / Alternate APN: 138-29-0070 / Deed Type: Warranty Deed

Subdivision / Tract: San Xavier Estates / Lot Size: 59,045

Rec. Date / Price: 05/23/2024 / $419,900 Living Area: 2,217

Document #: 1440024

Total Tax Value: $273,943

#3   7600 S Calle Del Lago Tucson Az 85746

Bedrooms:

Bath(F/H): /

Owner Name: Padilla Yvonne / APN / Alternate APN: 138-29-2990 / Deed Type: Warranty Deed

Subdivision / Tract: Mission West / Lot Size: 11,184

Rec. Date / Price: 08/15/2023 / $355,000 Living Area: 2,012

Document #: 2270147

Total Tax Value: $204,976

#4   7631 S Calle Del Lago Tucson Az 85746

Bedrooms:

Bath(F/H): /

Owner Name: Barrera Lorenzo M Alvarado /Barrera Victoria

APN / Alternate APN: 138-29-2880 / Deed Type: Warranty Deed

Subdivision / Tract: Mission West / Lot Size: 8,948

Land Use: Sfr

Year Built / Eff: 1989 /

# of units:

Pool:

Land Use: Sfr

Year Built / Eff: 1984 /

# of units:

Pool:

Land Use: Sfr

Year Built / Eff: 1983 / Rec. Date / Price: 09/07/2023 / $340,000 Living Area: 2,012

Document #: 2500413

Total Tax Value: $196,979

Bedrooms:

Bath(F/H): /

# of units:

Pool:

Name : Lisa Mrazek

Company Name : First American Title Insurance Company Prepared On : 08/06/2024

#5   7410 S Via Del Promontorio Tucson Az 85746

Owner Name: Martinez Celia & Francine N /Martinez Francine N

APN / Alternate APN: 138-29-4570 / Deed Type: Warranty Deed

Subdivision / Tract: Mission West / Lot Size: 8,204

Rec. Date / Price: 05/01/2024 / $340,000 Living Area: 2,269

Document #: 1220510

Total Tax Value: $217,010

Bedrooms:

Bath(F/H): /

#6   7401 S Via Del Promontorio Tucson Az 85746

Owner Name: Loun Rachel A /

APN / Alternate APN: 138-29-4760 / Deed Type: Warranty Deed

Subdivision / Tract: Mission West / Lot Size: 8,377

Rec. Date / Price: 09/01/2023 / $345,000 Living Area: 2,269

Document #: 2440578

Total Tax Value: $215,542

#7   7381 S Vista Del Arroyo Tucson Az 85746

Land Use: Sfr

Year Built / Eff: 1994 /

# of units:

Pool:

Land Use: Sfr

Year Built / Eff: 1995 /

# of units:

Bedrooms: Pool:

Bath(F/H): /

Owner Name: Ortega Jesus & Trisha R M /Martinez-ortega Trisha R APN / Alternate APN: 138-29-4190 / Deed Type: Warranty Deed

Subdivision / Tract: Mission West / Lot Size: 9,664

Land Use: Sfr

Year Built / Eff: 1991 / Rec. Date / Price: 04/10/2024 / $335,000 Living Area: 2,269

Document #: 1010219

Total Tax Value: $211,693

#8   7370 S Via Hermosa Tucson Az 85746

Bedrooms:

Bath(F/H): /

Owner Name: Lo Electric Llc / APN / Alternate APN: 138-29-1860 / Deed Type: Warranty Deed

Subdivision / Tract: Mission West / Lot Size: 8,447

Rec. Date / Price: 06/25/2024 / $180,000 Living Area: 2,559

Document #: 1770256

Total Tax Value: $216,805

#9   3690 W Nevil Ct Tucson Az 85746

Bedrooms:

Bath(F/H): /

Owner Name: Cordova Francisco /Felix Dulce

APN / Alternate APN: 138-35-1320 / Deed Type: Warranty Deed

Subdivision / Tract: Mission West 02 Ph 01 / Lot Size: 6,358

Rec. Date / Price: 09/22/2023 / $319,000 Living Area: 2,010

Document #: 2650713

Total Tax Value: $197,782

#10   3755 W Exton Ln Tucson Az 85746

# of units:

Pool:

Land Use: Sfr

Year Built / Eff: 1981 /

# of units:

Pool:

Land Use: Sfr

Year Built / Eff: 2003 /

# of units:

Bedrooms:

Bath(F/H): /

Owner Name: Cbar Asset Co Llc / APN / Alternate APN: 138-35-4590 / Deed Type: Special Warranty Deed

Subdivision / Tract: Mission West 02 Ph 01 / Lot Size: 7,292

Rec. Date / Price: 05/14/2024 / $684,610 Living Area: 2,010

Document #: 1350253

Total Tax Value: $201,622

Land Use: Sfr

Year Built / Eff: 2002 /

# of units:

Bedrooms:

Bath(F/H): /

#11   7112 S Placita Del Campo Tucson Az 85746

Owner Name: Meyer Shane / APN / Alternate APN: 138-35-8590 / Deed Type: Warranty Deed

Subdivision / Tract: Presidio Vista / Lot Size: 8,513

Land Use: Sfr

Year Built / Eff: 2006 / Rec. Date / Price: 03/22/2024 / $339,000 Living Area: 1,912

Document #: 820554

Total Tax Value: $202,875

# of units:

Bedrooms:

Bath(F/H): /

#12   3490 W Avenida Bonita Tucson Az 85746

Owner Name: Gallego Carolina / APN / Alternate APN: 138-35-8190 / Deed Type: Warranty Deed

Subdivision / Tract: Presidio Vista / Lot Size: 7,624

Land Use: Sfr

Year Built / Eff: 2005 / Rec. Date / Price: 06/05/2024 / $339,900 Living Area: 1,912

Document #: 1570226

Total Tax Value: $201,752

Bedrooms:

Bath(F/H): /

#13   3611 W Avenida Vera Cruz Tucson Az 85746

Owner Name: Marmolejo Alexis / APN / Alternate APN: 138-35-881E / Deed Type: Warranty Deed

Subdivision / Tract: Presidio Vista / Lot Size: 6,570

Land Use: Sfr

Year Built / Eff: 2006 / Rec. Date / Price: 11/08/2023 / $333,000 Living Area: 1,912

Document #: 3120384

Total Tax Value: $202,875

Bedrooms:

Bath(F/H): /

#14   6999 S Camino Secreto Tucson Az 85746

Owner Name: Yamasa Co Ltd / APN / Alternate APN: 138-35-7380 / Deed Type: Warranty Deed

Subdivision / Tract: Presidio Rdg / Lot Size: 8,677

# of units:

Pool:

Land Use: Sfr

Year Built / Eff: 2007 / Rec. Date / Price: 01/03/2024 / $308,775 Living Area: 2,289

Document #: 30065

Total Tax Value: $208,998

Bedrooms:

Bath(F/H): /

# of units:

Pool:

Owner Name : Meza Aracely Subdivision : Mission West 02 Ph 02

Sale Date : 01/09/2003

Total Value : $201,855

Bed / Bath : / 3

Land Use : Sfr

Recording Date : 01/16/2003

Price  : $121,475

Tax : $1,912.01

0.22 Stories : 1

1,812

Owner Name : Bravo Frances

Sale Date : 09/00/2002

Total Value : $203,286

Bed / Bath : / 3

Land Use : Sfr

Sale Date : 01/08/2003

Total Value : $231,002

Bed / Bath : / 3

Land Use : Sfr

Mission West 02 Ph 02

Recording Date : 09/26/2002

Price  : $119,900

1,812

Recording Date : 01/17/2003

Price  : $144,364

Tax : $2,253.71

Acres : 0.27

Stories : 2 Living Area : 2,234 Yr Blt / Eff Yr Blt : 2003 / APN : 138-35-2850

3340 W AVENIDA DE SAN CANDIDO Distance 0.04 Miles

Owner Name : Reyes Carlos Martinez Subdivision : Mission West 02 Ph 02

Sale Date : 04/05/2019

Total Value : $225,011

Bed / Bath : / 3

Land Use : Sfr

Recording Date : 04/18/2019

Price  : $225,000

Tax : $2,534.29

Acres : 0.25

Stories : 2 Living Area : 2,028

Yr Blt / Eff Yr Blt : 2002 / APN : 138-35-4120

Name : Lisa Mrazek Customer Company Name : First American Title Insurance Company Prepared On : 08/06/2024

7615 S BRACKENBURY DR

Owner Name : Guevara Omar

Sale Date : 10/19/2018

Total Value : $213,952

Bed / Bath : / 3

Land Use : Sfr

Stories : 2

Blt / Eff Yr Blt : 2003 /

Subdivision : Mission West 02 Ph 01

Recording Date : 11/01/2018

Price  : $191,000

Tax : $2,072.40

Acres : 0.21

Area : 2,234

138-35-2840 3350 W AVENIDA DE SAN CANDIDO Distance 0.05 Miles

Owner Name : Almazan Roy Jr

Sale Date : 09/17/2002

Total Value : $183,614

Bed / Bath : / 3

Land Use : Sfr

Subdivision : Mission West 02 Ph 02

Recording Date : 09/17/2002

Price  : $130,543

Tax : $2,019.58

Acres : 0.22 Stories : 2

1,617

Blt / Eff Yr Blt : 2002 /

7607 S BRACKENBURY DR Distance 0.05 Miles

Owner Name : Mendez Ricardo

Sale Date : 10/00/2003

Recording Date : 10/31/2003

Total Value : $204,366 Sale Price  : $129,661

Bed / Bath : / 3

Land Use : Sfr

Tax : $1,880.44

Acres : 0.20

Stories : 1 Living Area : 1,812 Yr Blt / Eff Yr Blt : 2003 / APN : 138-35-2830

3360 W AVENIDA DE SAN CANDIDO Distance 0.06 Miles

Owner Name : Ayala Jesus

Sale Date : 12/10/2019

Subdivision : Mission West 02 Ph 02

Recording Date : 12/16/2019

Total Value : $190,316 Sale Price  : $184,000

Bed / Bath : / 3

Land Use : Sfr

Tax : $1,809.18

Acres : 0.20

Stories : 1 Living Area : 1,521

Yr Blt / Eff Yr Blt : 2002 / APN : 138-35-4100

Customer Name : Lisa Mrazek Customer Company Name : First American Title Insurance Company Prepared On : 08/06/2024

3341 W BRACKENBURY CT Distance 0.07 Miles

Owner Name : Baf Assets 6 Llc Subdivision : Mission West 02 Ph 02

Sale Date : 03/08/2023

Total Value : $201,699

Recording Date : 03/10/2023

Price  : $17,756,650 Bed / Bath : / 3

S BRACKENBURY DR Distance 0.07 Miles

Owner Name : Casillas Sandra A Subdivision : Mission West 02 Ph 01

Sale Date : 03/03/2020

Recording Date : 03/06/2020 Total Value : $204,366

Census Tract / block: 43.22 / 2     Year: 2020

Arizona Schools

PIMA COUNTY

SEARCH PARAMETERS

PARCEL:  138-35-2880

PARCEL: 138-35-2880

OWNER: MALDONADO HOMERO & ROCIO A  AFFIDAVIT    2018 670311 03/08/2018

SITUS: 3331 W AVENIDA DE SAN CANDIDO PC

MAIL: 3331 W AVENIDA DE SAN CANDIDO  TUCSON AZ 85746

PLAT: LOT 00214 BLOCK

LEGAL: MISSION WEST II PHASE 2 LOT 214

CURRENT TAXES

INFORMATION THROUGH 07/28/2024

12846 5663 WD BRAKEY MARISELA 01/31/2003

ADDITIONAL PROPERTY INFORMATION

STANDARD LAND USE: SFR

11978 5181 JD D R HORTON INC

END SEARCH

Covenants, Conditions & Restrictions

Thank you for the opportunity to be of service.

Restrictions indicating a preference, limitation or discrimination based on race, color, religion, sex, handicap, familial status, or national origin are hereby deleted to the extent such restrictions violate 42 USC 3604(c).

This information is furnished without fee and without benefit of a complete title search. No liability is assumed by First American Title. If it is desired that liability be assumed, you may apply for a policy of title insurance with First American Title Insurance Company.

Count on First American Title

Welcome to the home-selling process. Throughout this process, you can count on First American Title to guide you smoothly through your transaction and provide expert answers to your questions. We are happy to serve you.

Count On Us For Service

First American Title’s professionals are proud to provide the title insurance that assures people’s home ownership. Backed by First American Title Insurance Company, your transaction will be expertly completed in accordance with state-specific underwriting standards and state and federal regulatory requirements.

Count On Us For Stability

First American Title is the principal subsidiary of First American Financial Corporation, and one of the largest suppliers of title insurance services in the nation. With roots dating back to 1889, we’ve served families for generations.

Count On Us For Convenience

First American Title has a direct office or agent near you, offering convenient locations throughout Arizona. We also have an extensive network of offices and agents throughout the United States, and internationally.

Count On Us To Meet Your Needs

First American Financial Corporation offers more than title insurance and escrow services through its subsidiaries. Our subsidiaries also provide property data, title plant records and images, home warranties, property and casualty insurance, and banking, trust and advisory services.

Benefits of using a Professional REALTOR ®

Before you make the decision to try to sell your home alone, consider the benefits a REALTOR ® can provide that you may not be aware of.

A REALTOR ® :

› Understands market conditions and has access to information not available to the average homeowner.

› Can advertise effectively for the best results.

› Knows how to price your home realistically, to give you the highest price possible within your time frame.

› Is experienced in creating demand for homes and how to show them to advantage.

› Knows how to screen potential buyers and eliminate those who can’t qualify or are looking for bargain-basement prices.

› Knows how to go toe-to-toe in negotiations.

› Is always “on-call,” answering the phone at all hours, and showing homes evenings and weekends.

› Can remain objective when presenting offers and counter-offers on your behalf.

› Maintains errors-and-omissions insurance.

› Will listen to your needs, respect your opinions and allow you to make your own decisions.

› Can help protect your rights, particularly important with the increasingly complicated real estate laws and regulations.

› Is experienced with resolving problems to facilitate a successful closing on your home.

Only you can determine whether you should attempt to sell your home—probably your largest investment—all alone. Talk with a REALTOR® before you decide. You may find working with a professional is a lot less expensive and much more beneficial than you ever imagined!

FOR SALE BY OWNER

Many people believe they can save a considerable amount of money by selling their homes themselves. It may seem like a good idea at the time, but while you may be willing to take on the task, are you qualified? The following are some questions to help you realistically assess what’s involved.

Do you...

- have the knowledge, patience, and sales skills needed to sell your home?

- know how to determine your home’s current market value?

- know how to determine whether or not a buyer can qualify for a loan?

- understand the steps of an escrow and what’s required of you and the buyer?

- need to hire a real estate attorney? If so, do you know what the cost will be and how much liability they will assume in the transaction?

- know how to advertise effectively and what the costs will be?

- understand the various types of loans buyers may choose and the advantages and disadvantages for the seller?

- have arrangements with an escrow and title company, home warranty company, pest-control service and lender to assist you with the transaction?

Are you...

- aware of conditions in the marketplace today that affect value and length of time to sell?

- concerned about having strangers walking through your home?

- familiar enough with real estate regulations to prepare a binding sales contract? Counter-offers?

- aware that every time you leave your home, you are taking it off the market until you return?

- aware that prospective buyers and bargain hunters will expect you to lower your cost because there’s no REALTOR® involved?

- prepared to give up your evenings and weekends to show your home to potential buyers and “just-looking” time wasters?

Key Professionals Involved in Your Transaction

REALTOR ®

A REALTOR ® is a licensed real estate agent and a member of the National Association of REALTORS,® a real estate trade association. REALTORS ® also belong to their state and local Association of REALTORS.®

REAL ESTATE AGENT

A real estate agent is licensed by the state to represent parties in the transfer of property. Every REALTOR ® is a real estate agent, but not every real estate agent has the professional designation of a REALTOR.®

LISTING AGENT

A key role of the listing agent or broker is to form a legal relationship with the homeowner to sell the property and place the property in the Multiple Listing Service.

BUYER'S AGENT

A key role of the buyer’s agent or broker is to work with the buyer to locate a suitable property and negotiate a successful home purchase.

MULTIPLE LISTING SERVICE (MLS)

The MLS is a database of properties listed for sale by REALTORS ® who are members of the local Association of REALTORS.® Information on an MLS property is available to thousands of REALTORS ®

TITLE COMPANY

These are the people who carry out the title search and examination, work with you to eliminate the title exceptions you are not willing to take subject to, and provide the policy of title insurance regarding title to the real property.

ESCROW OFFICER

An escrow officer leads the facilitation of your escrow, including escrow instructions preparation, document preparation, funds disbursement, and more.

PREPARING FOR SALE YOUR HOME

First impressions have a major impact on potential buyers. Try to imagine what potential buyers will see when they approach your house for the first time and walk through each room. Ask your REALTOR ® for advice; they know the marketplace and what helps a home sell. Here are some tips to present your home in a positive manner:

Mow and edge the lawn regularly, and trim the shrubs.

Make your entry inviting: Paint your front door and buy a new front door mat.

Paint or replace the mailbox, if needed.

If screens or windows are damaged, replace or repair them.

Repair or replace worn shutters and other exterior trim.

Make sure the front steps are clear and hazard-free. Make sure the doorbell works properly and has a pleasant sound.

Ensure that all exterior lights are working.

Check stucco walls for cracks and discoloration.

Remove any oil and rust stains from the driveway and garage.

Clean and organize the garage, and ensure the door is in good working order.

Shampoo carpeting or replace if worn. Clean tile floors, particularly the caulking.

Brighten the appearance inside by painting walls, cleaning windows and window coverings, and removing sunscreens.

Repair leaky faucets and caulking in bathtubs and showers.

Repair or replace loose knobs on doors and cabinets. If doors stick or squeak, fix them.

Make sure toilet seats look new and are firmly attached.

Repair or replace loud ventilating fans.

Replace worn shower curtains.

Rearrange furniture to make rooms appear larger. If possible, remove and/or store excess furniture, and avoid extension cords in plain view.

Remove clutter throughout the house. Organize and clean out closets.

Clean household appliances and make sure they work properly.

Air conditioners/heaters, evaporative coolers, hot water heater should be clean, working and inspected if necessary. Replace filters.

Check the pool and/or spa equipment and pumps. Make sure all are working properly and that the pool and/or spa are kept clean.

Inspect fences, gates and latches. Repair or replace as needed.

Staging your home for Show

To make the best impression, keep your home clean, neat, uncluttered and in good repair. Please review this list prior to each showing:

Keep everything clean. A messy or dirty home will cause prospective buyers to notice every flaw.

Clear all clutter from counter tops.

Let the light in. Raise shades, open blinds, pull back the curtains and turn on the lights.

Get rid of odors such as tobacco, pets, cooking, etc., but don’t overdo air fresheners or potpourri. Fresh baked bread and cinnamon can make a positive impact.

Send pets away or secure them away from the house, and be sure to clean up after them.

Close the windows to eliminate street noise.

If possible you, your pets, and your children should be gone while your home is being shown.

Clean trash cans and put them out of sight.

If you must be present while your home is shown, keep noise down. Turn off the TV and radio. Soft, instrumental music is fine, but avoid vocals.

Keep the garage door closed and the driveway clear. Park autos and campers away from your home during showings

Hang clean attractive guest towels in the bathrooms.

Check that sink and tub are scrubbed and unstained.

Make beds with attractive spreads.

Stash or throw out newspapers, magazines, junk mail.

Terms You Should Know

Appraisal

An estimate of value of property resulting from analysis of facts about the property; an opinion of value.

Annual Percentage Rate (APR)

The borrower’s costs of the loan term expressed as a rate. This is not their interest rate.

Beneficiary

The recipient of benefits, often from a deed of trust; usually the lender.

Closing Disclosure (CD)

Closing Disclosure form designed to provide disclosures that will be helpful to borrowers in understanding all of the costs of the transaction. This form will be given to the consumer three (3) business days before closing.

Close of Escrow

Generally the date the buyer becomes the legal owner and title insurance becomes effective.

Comparable Sales

Sales that have similar characteristics as the subject real property, used for analysis in the appraisal. Commonly called “comps.”

Consummation

Occurs when the borrower becomes contractually obligated to the creditor on the loan, not, for example, when the borrower becomes contractually obligated to a seller on a real estate transaction. The point in time when a borrower becomes contractually obligated to the creditor on the loan depends on applicable State law. Consummation is not the same as close of escrow or settlement.

Deed of Trust

An instrument used in many states in place of a mortgage.

Deed Restrictions

Limitations in the deed to a parcel of real property that dictate certain uses that may or may not be made of the real property.

Disbursement Date

The date the amounts are to be disbursed to a buyer and seller in a purchase transaction or the date funds are to be paid to the borrower or a third party in a transaction that is not a purchase transaction.

Earnest Money Deposit

Down payment made by a purchaser of real property as evidence of good faith; a deposit or partial payment.

Easement

A right, privilege or interest limited to a specific purpose that one party has in the land of another.

Endorsement

As to a title insurance policy, a rider or attachment forming a part of the insurance policy expanding or limiting coverage.

Hazard Insurance

Real estate insurance protecting against fire, some natural causes, vandalism, etc., depending upon the policy. Buyer often adds liability insurance and extended coverage for personal property.

Impounds

A trust type of account established by lenders for the accumulation of borrower’s funds to meet periodic payments of taxes, mortgage insurance premiums and/or future insurance policy premiums, required to protect their security.

Legal Description

A description of land recognized by law, based on government surveys, spelling out the exact boundaries of the entire parcel of land. It should so thoroughly identify a parcel of land that it cannot be confused with any other.

Lien

A form of encumbrance that usually makes a specific parcel of real property the security for the payment of a debt or discharge of an obligation. For example, judgments, taxes, mortgages, deeds of trust.

Loan Estimate (LE)

Form designed to provide disclosures that will be helpful to borrowers in understanding the key features, costs and risks of the mortgage loan for which they are applying. Initial disclosure to be given to the borrower three (3) business days after application.

Mortgage

The instrument by which real property is pledged as security for repayment of a loan.

PITI

A payment that includes Principal, Interest, Taxes, and Insurance.

Power of Attorney

A written instrument whereby a principal gives authority to an agent. The agent acting under such a grant is sometimes called an “Attorney-in-Fact.”

Recording

Filing documents affecting real property with the appropriate government agency as a matter of public record.

Settlement statement

Provides a complete breakdown of costs involved in a real estate transaction.

TRID

TILA-RESPA Integrated Disclosures

The Life Of An Escrow

THE BUYER

Chooses a Real Estate Agent

Gets pre-approval letter from Lender and provides to Real Estate Agent.

Makes offer to purchase. Upon acceptance, opens escrow and deposits earnest money.

Finalizes loan application with Lender. Receives a Loan Estimate from Lender.

Completes and returns opening package from First American Title.

Schedules inspections and evaluates findings. Reviews title commitment/ preliminary report.

Provides all requested paperwork to Lender (bank statements, tax returns, etc.) All invoices and final approvals should be to the lender no later than 10 days prior to loan consummation.

Lender (or Escrow Officer) prepares CD and delivers to Buyer at least 3 days prior to loan consummation.

Escrow officer or real estate agent contacts the buyer to schedule signing appointment.

Buyer consummates loan, executes settlement documents, & deposits funds via wire transfer.

Documents are recorded and the keys are delivered!

THE SELLER

Chooses a Real Estate Agent

Accepts Buyer’s offer to purchase.

Completes and returns opening package from First American Title, including information such as forwarding address, payoff lender contact information and loan numbers.

Orders any work for inspections and/or repairs to be done as required by the purchase agreement.

Escrow officer or real estate agent contacts the seller to schedule signing appointment.

Documents are recorded and all proceeds from sale are received.

THE ESCROW OFFICER

Upon receipt of order and earnest money deposit, orders title examination.

Requests necessary information from buyers and sellers via opening packages.

Reviews title commitment / preliminary report.

Upon receipt of opening packages, orders demands for payoffs. Contacts buyer or seller when additional information is required for the title commitment/ preliminary report.

All demands, invoices, and fees must be collected and sent to lender at least 10 days prior to loan consummation.

Coordinates with lender on the preparation of the CD.

Reviews all documents, demands, and instructions and prepares settlement statements and any other required documents.

Schedules signing appointment and informs buyer of funds due at settlement.

Once loan is consummated, sends funding package to lender for review.

Prepares recording instructions and submits docs for recording.

Documents are recorded and funds are disbursed. Issues final settlement statement.

THE LENDER

Accepts Buyer’s application and begins the qualification process. Provides Buyer with Loan Estimate.

Orders and reviews title commitment / preliminary report, property appraisal, credit report, employment and funds verification.

Collects information such as title commitment / preliminary report, appraisal, credit report, employment and funds verification. Reviews and requests additional information for final loan approval.

Underwriting reviews loan package for approval.

Coordinates with Escrow Officer on the preparation of the Closing Disclosure, which is delivered to Buyer at least 3 days prior to loan consummation.

Delivers loan documents to escrow.

Upon review of signed loan documents, authorizes loan funding.

Closing Costs: Who Pays What

The Escrow Process

WHAT IS AN ESCROW?

The escrow is the process of having a neutral party manage the exchange of money for real property. The escrow holder is known as an escrow or settlement officer or agent. The buyer deposits funds and the seller deposits a deed with the escrow holder along with all of the other documents required to remove all "contingencies" (conditions and approvals) in the purchase agreement prior to closing.

HOW IS AN ESCROW OPENED?

Once a purchase agreement is signed by all necessary parties, the agent representing the party who will pay the fee selects an escrow holder and the buyer's earnest money deposit and contract are submitted to the escrow holder. From this point, the escrow holder will follow the mutual written instructions of the buyer and seller, maintaining a neutral stance to ensure that neither party has an unfair advantage over the other. The escrow holder also follows the instructions of the Buyer's new lender, the seller's existing lender, and both parties' agents. The escrow holder ensures the transparency of the transaction, while carefully maintaining the privacy of the consumers.

Your Escrow Professional May:

Open escrow and deposit good faith funds into an escrow account

Conduct a title search to determine the ownership and title status of the real property

Review the title commitment and begin the process of working with you and the title officer to eliminate the title exceptions the buyer and the buyer’s new lender are not willing to take subject to. This includes ordering a payoff demand from your existing lender.

Coordinate with the buyer’s lender on the preparation of the Closing Disclosure (CD)

Prorate fees, such as real property taxes, per the contract and prepare the settlement statement

Set separate appointments allowing the buyer and seller to sign documents and deposit funds

Review documents and ensure all conditions are fulfilled and certain legal requirements are met

Request funds from buyer and buyer’s new lender

When all funds are deposited and conditions met, record documents with the County Recorder to transfer the real property to the buyer

After recording is confirmed, close escrow and disburse funds, including proceeds, loan payoffs, tax payments, and more

Prepare and send final documents to all parties

Understanding Title Insurance

The Title Industry & Title Insurance in Brief

Prior to the development of the title industry in the late 1800s, a home-buyer received a grantor’s warranty, attorney’s title opinion, or abstractor’s certificate as assurance of home ownership. The buyer relied on the financial integrity of the grantor, attorney, or abstractor for protection. Today, home-buyers look primarily to title insurance to provide this protection. Title insurance companies are regulated by state statute. They are required to post financial guarantees to ensure that any claims will be paid in a timely fashion. They also must maintain their own “title plants” which house duplicates of recorded deeds, mortgages, plats, and other pertinent county property records.

WHAT IS TITLE INSURANCE?

Title insurance provides coverage for certain losses due to defects in the title that, for the most part, occurred prior to your ownership. Title insurance protects against defects such as prior fraud or forgery that might go undetected until after closing and possibly jeopardize your ownership and investment.

WHY IS TITLE INSURANCE NEEDED?

Title insurance insures buyers against the risk that they did not acquire marketable title from the seller. It is primarily designed to reduce risk or loss caused by defects in title from the past. A loan policy of title insurance protects the interest of the mortgage lender, while an owner’s policy protects the equity of you, the buyer, for as long as you or your heirs (in certain policies) own the real property.

WHEN IS THE PREMIUM DUE?

You pay for your owner’s title insurance policy only once, at the close of escrow. Who pays for the owner’s policy and loan policy varies depending on local customs.

a)

b)

Consider This

One escrow transaction could involve more than 20 individuals, including real estate agents, buyers, sellers, attorneys, escrow officer, escrow technician, title officer, loan officer, loan processor, loan underwriter, home inspector, termite inspector, insurance agent, home warranty representative, contractor, roofer, plumber, pool service, and so on. And often, one transaction depends on another.

When you consider the number of people involved, you can imagine the opportunities for delays and mishaps. Your experienced escrow team can’t prevent unforeseen problems from arising; however, they can help smooth out the process.

Closing Your Escrow

THE CLOSING DISCLOSURE

Once the loan is approved and all invoices and paperwork have been provided, the lender and escrow officer will collaborate on the preparation of the Closing Disclosure (CD). In order to close on time, all paperwork and invoices should be submitted at least 10 days prior to the expected close of escrow date. The borrower must receive the CD at least three days* prior to consummation of the loan (typically the signing date). The escrow officer will also prepare an estimated settlement statement and inform the buyer of the balance of the down payment and closing costs needed to close escrow. *For purposes of the Closing Disclosure“business day” is defined as every day except Sundays and Federal legal holidays.

THE CLOSING OR SIGNING APPOINTMENT

The escrow holder will contact you or your agent to schedule a closing or signing appointment. In some states, this is the "close of escrow." In some others, the close of escrow is either the day the documents record or that funds are disbursed. Ask your escrow holder if you would like clarification about your state's laws.

You will have a chance to review the settlement statement and supporting documentation. This is your opportunity to ask questions and clarify terms. You should review the settlement statement carefully and report discrepancies to the escrow officer. This includes any payments that may have been missed. You are responsible for all charges incurred even if overlooked by the escrow holder, so it's better to bring these to their attention before closing.

The escrow holder is obligated by law to have the designated amount of money before releasing any funds. If you have questions or foresee a problem, let your escrow holder know immediately.

DON'T FORGET YOUR IDENTIFICATION

You will need valid identification with your photo I.D. on it when you sign documents that need to be notarized (such as a deed). A driver's license is preferred. You will also be asked to provide your social security number for tax reporting purposes, and a forwarding address.

WHAT HAPPENS NEXT?

If the buyer is obtaining a new loan, the buyer’s signed loan documents will be returned to the lender for review. The escrow holder will ensure that all contract conditions have been met and will ask the lender to "fund the loan."

If the loan documents are satisfactory, the lender will send funds directly to the escrow holder. When the loan funds are received, the escrow holder will verify that all necessary funds are in. Escrow funds will be disbursed to the seller and other appropriate payees. Then, the REALTOR® will present the keys to the property to the buyer.

Planning your move

SIX WEEKS BEFORE:

Create an inventory sheet of items to move.

Research moving options You’ll need to decide if yours is a do-it-yourself move or if you’ll be using a moving company.

Request moving quotes Solicit moving quotes from as many moving companies and movers as possible. There can be a large difference between rates and services within moving companies.

Discard unnecessary items Moving is a great time for ridding yourself of unnecessary items. Have a yard sale or donate unnecessary items to charity.

Packing materials. Gather moving boxes and packing materials for your move.

Contact insurance companies. (Life, Health, Fire, Auto) You’ll need to contact your insurance agent to cancel/transfer your insurance policy. Do not cancel your insurance policy until you have and closed escrow on the sale.

Seek employer benefits. If your move is work-related, your employer may provide funding for moving expenses. Your human resources rep should have information on this policy.

Changing Schools. If changing schools, contact new school for registration process.

FOUR WEEKS BEFORE:

Contact utility companies Set utility turnoff date, seek refunds and deposits and notify them of your new address.

Obtain your medical records. Contact your doctors, physicians, dentists and other medical specialists who may currently be retaining any of your family’s medical records. obtain these records or make plans for them to be delivered to your new medical facilities.

Note food inventory levels Check your cupboards, refrigerator and freezer to use up as much of your perishable food as possible.

Service small engines for your move by extracting gas and oil from the machines. This will reduce the chance to catch fire during your move.

Protect jewelry and valuables. Transfer jewelry and valuables to safety deposit box so they can not be lost or stolen during your move.

Borrowed and rented items. Return items which you may have borrowed or rented. Collect items borrowed to others.

ONE WEEK BEFORE:

Plan your itinerary. Make plans to spend the entire day at the house or at least until the movers are on their way. Someone will need to be around to make decisions. Make plans for kids and pets to be at the sitters for the day.

Change of address. Visit USPS for change of address form.

Bank accounts Notify bank of address change. Make sure to have a money order for paying the moving company if you are transferring or closing accounts.

Service automobiles If automobiles will be driven long distances, you’ll want to have them serviced for a trouble-free drive.

Cancel services. Notify any remaining service providers (newspapers, lawn services, etc) of your move.

Start packing. Begin packing for your new location.

Travel items. Set aside items you’ll need while traveling and those needed until your new home is established. Make sure these are not packed in the moving truck!

Scan your furniture. Check furniture for scratches and dents before so you can compare notes with your mover on moving day.

Prepare Floor Plan. Prepare floor plan for your new home. This will help avoid confusion for you and your movers.

MOVING DAY:

Review the house. Once the house is empty, check the entire house (closets, the attic, basement, etc) to ensure no items are left or no home issues exist.

Sign the bill of lading. Once your satisfied with the mover’s packing your items into the truck, sign the bill of lading. If possible, accompany your mover while the moving truck is being weighed.

Double check with your mover. Make sure your mover has the new address and your contact information should they have any questions during your move.

Vacate your home. Make sure utilities are off, doors and windows are locked and notify your real estate agent you’ve left the property.

Your Notes:

Your Notes:

Your Notes:

1 SUN CITY WES T

623.299.3644

13940 W. Meeker Blvd, #119

Sun City West, AZ 85375

N of Meeker Blvd W of R.H. Johnson

2 THE LEGENDS

623.537.1608

20241 N. 67th Ave, #A-2 Glendale, AZ 85308

E side 67th Ave/N of 101

3 ANTHEM

623.551.3265

39508 N. Daisy Mountain Dr, #128 Anthem, AZ 85086 NE corner Daisy Mtn Dr/Gavilan Peak Pkwy

4 TATUM RIDGE

480.515 4369

11211 N Tatum Blvd, #A150 Phoenix, AZ 85028

N of Shea, E side of Tatum

5 CAREFREE

480.575.6609

7202 E. Carefree Dr, Bldg 1, #1 Carefree, AZ 85377

NE corner of Tom Darlington/Carefree Dr.

6 SCOTTSDALE FORUM

480.551.0480

6263 N. Scottsdale Rd, #110 Scottsdale, AZ 85250 E Side Scottsdale/S of Lincoln

7 DC CROSSING

480.563.9034

18291 N. Pima Rd, #145 Scottsdale, AZ 85255

SE corner of Pima/Legacy

8 CHANDLER PORTICO

480.777.0051

2121 W. Chandler Blvd., #215 Chandler, AZ 85224

SW Corner Chandler Blvd./Dobson Rd.

9 GILBERT SAN TAN

480.777.0614

1528 E. Williams Field Rd. #101 Gilbert, AZ 85295

NW corner of Williams Field Rd./Val Vista Rd.

10 MESA

480.401.3738

1630 S. Stapley Dr, #123 Mesa, AZ 85204 N of Baseline / W of Stapley

11 RED MOUNTAIN

480.534.3599

1135 N. Recker Rd, #103 Mesa, AZ 85205

SE corner of Recker & Brown

12 GOLD CANYON

480.288.0883

6877 South Kings Ranch Rd, #5 Gold Canyon, AZ 85118

E of 60/South Side Kings Ranch Rd.

Central Arizona

Turn static files into dynamic content formats.

Create a flipbook
Issuu converts static files into: digital portfolios, online yearbooks, online catalogs, digital photo albums and more. Sign up and create your flipbook.