WIRE FRAUD ALERT THINK DIFFERENTLY
Email-based, real estate fraud schemes are on the rise. One common scenario is altering wiring instructions with the intention of rerouting funds.
Keeping this in mind, First American Title is changing the way we receive payment information. It is imperative that we are familiar with the people in our transactions.
RELYING ON EMAIL ALONE IS NO LONGER AN OPTION.
Fraudsters often use email to send falsified wire instructions to unsuspecting victims. Please warn your buyers and sellers to only follow wire instructions they receive personally from First American Title.
Additionally, we will not accept disbursement instructions for seller or buyer funds via email OR from any third party (attorney, real estate agent, etc).
ALTERNATIVE INSTRUCTIONS?
If your buyer or seller receives alternative wiring instructions that appear to be from First American Title, make sure they contact their escrow officer at a trusted phone number for confirmation.
Know that our wiring instructions do not change so any communication is suspect. Our banking institution is First American Trust.
IN SHORT – wire instructions will not be accepted by email. New wire instructions must be hand-carried or uploaded to the First American Secure Portal.
Thank you for joining First American Title in fostering a secure real estate transaction process. Have questions or concerns? Please contact our office or your escrow officer.
LIMITATION OF LIABILITY FOR INFORMATIONAL REPORTS
IMPORTANT -- PLEASE READ CAREFULLY:
This report is not an insured product or service or a representation of the condition of title to real property. It is not an abstract, legal opinion, opinion of title, title insurance commitment or preliminary report, or any form of Title Insurance or Guaranty. This report is issued exclusively for the benefit of the Applicant therefor and may not be used or relied upon by any other person. This report may not be reproduced in any manner without First Americans prior written consent. First American does not represent or warrant that the information herein is complete or free from error, and the information herein is provided without any warranties of any kind, as-is, and with all faults. As a material part of the consideration given in exchange for the issuance of this report, recipient agrees that First Americans sole liability for any loss or damage caused by an error or omission due to inaccurate information or negligence in preparing this report shall be limited to the fee charged for the report. Recipient accepts this report with this limitation and agrees that First American would not have issued this report but for the limitation of liability described above. First American makes no representation or warranty as to the legality or propriety of recipient's use of the information herein.

Disclaimer
This REiSource report is provided "as is" without warranty of any kind, either express or implied, including without limitations any warrantees of merchantability or fitness for a particular purpose. There is no representation of warranty that this information is complete or free from error, and the provider does not assume, and expressly disclaims, any liability to any person or entity for loss or damage caused by errors or omissions in this REiSource report without a title insurance policy.
The information contained in the REiSource report is delivered from your Title Company, who reminds you that you have the right as a consumer to compare fees and serviced levels for Title, Escrow, and all other services associated with property ownership, and to select providers accordingly. Your home is the largest investment you will make in your lifetime and you should demand the very best.
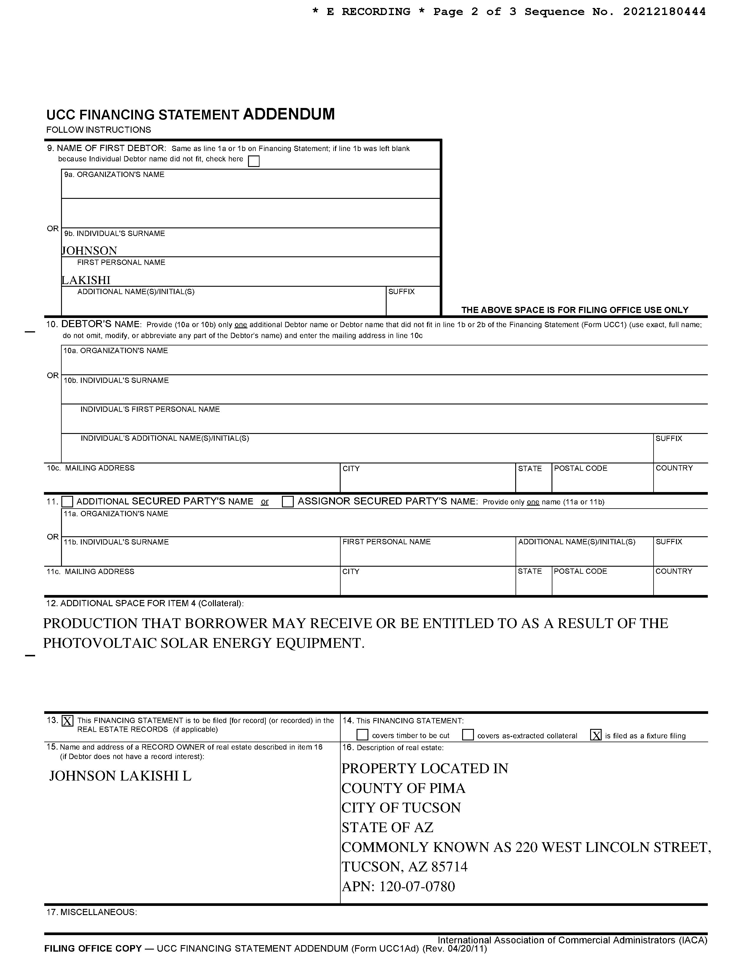
Subject Property : 220 W Lincoln St Tucson AZ 85714
Owner Information
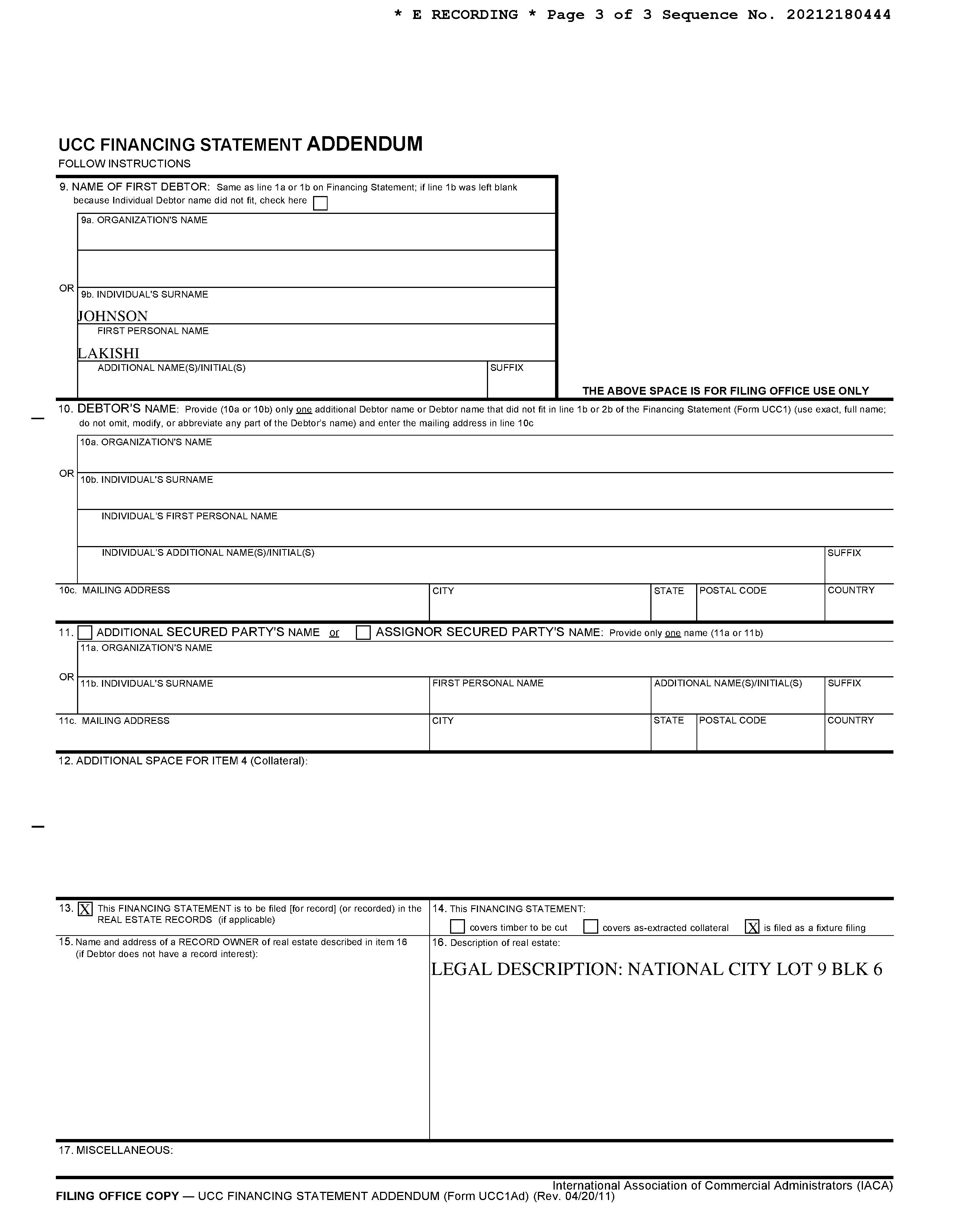
Owner Name : Johnson Lakishi L
Mailing Address : 220 W Lincoln St, Tucson AZ 85714 C038
Owner Occupied Indicator : O
Location Information
Legal Description : National City Lot 9 Blk 6
County : Pima, Az
Census Tract / Block : 38.01 / 2
Township-Range- Sect : 14S-13E-36
Legal Book/Page : 6-21
Legal Lot : 9
Legal Block : 6
Last Market Sale Information
Recording/Sale Date : 03/31/2016 / 03/29/2016
Sale Price : $119,900
Document # : 910502
Deed Type : Warranty Deed
Title Company : Signature Title Agcy/az Llc
Seller Name : Qc Properties Llc
Prior Sale Information
Prior Rec/Sale Date : 08/28/2015 / 08/18/2015
Prior Sale Price : $60,255
Property Characteristics
Gross Area : 1,859
Living Area : 1,859
Market Area : 100
APN : 120-07-0780
Subdivision : National City
Map Reference : 36-14S-13E
School District : Tucson Unified
Munic/Township : Tucson Unified
1st Mtg Amount/Type : $119,900 / Va
1st Mtg Document # : 910504
1st Mtg Term : 30
Price Per SqFt : $64.50
Prior Doc Number : 2400066
Prior Deed Type : Warranty Deed
Foundation : Concrete Exterior wall : Concrete Stucco
Roof Material : Roll Composition Air Cond : Evap Cooler
Year Built / Eff : 1938 / 1938 Construction : Steel/wood Floor Cover : Softwood
# of Stories : 1
Customer Name : Kariann Keomaka
Customer Company Name : First American Title Insurance Company Prepared On : 07/22/2024
Information
Details of Comparables
Subject Property: 220 W Lincoln St Tucson Az 85714
Owner Name: Johnson Lakishi L / APN / Alternate APN: 120-07-0780 / Deed Type: Warranty Deed
Subdivision / Tract: National City / Lot Size: 6,116
Rec. Date / Price: 03/31/2016 / $119,900 Living Area: 1,859
Document #: 910502
Total Tax Value: $114,514
#1 3662 S Bronson Ave # 1 Tucson Az 85713
Land Use: Mixed Complex
Year Built / Eff: 1938 /1938
# of units:
Bedrooms: Pool:
Bath(F/H): /
Owner Name: Perez Rocio /Perez Luis F APN / Alternate APN: 119-04-108A / Deed Type: Warranty Deed
Subdivision / Tract: White Stone / Lot Size: 6,375
Rec. Date / Price: 05/30/2024 / $375,000 Living Area: 1,997
Document #: 1510519
Total Tax Value: $154,574
Land Use: Mixed Complex
Year Built / Eff: 1948 /1948
# of units:
Bedrooms: Pool:
Bath(F/H): /
214 W
Owner Name : Carranza Robert C
Total Value : $21,965
Subdivision : National City
Recording Date : 06/01/1970
Land Use : Mobile Home Property Tax : $246.81
Stories : 1
Lot Acres : 0.14
Yr Blt / Eff Yr Blt : 2006 / 2006 APN : 120-07-0790 226 W
Owner Name : Enriquez Maria L
Sale Date : 11/02/2000
Total Value : $226,433
Bed / Bath : / 3
Land Use : Sfr
Subdivision : National City
Recording Date : 11/06/2000
Tax : $1,783.54
Lot Acres : 0.18
Area : 2,522
Stories : 1 APN : 120-07-077A
Yr Blt / Eff Yr Blt : 2001 /
208 W LINCOLN ST
Owner Name : Green Maria E
Total Value : $104,439
Bed / Bath : / 1
Land Use : Sfr
Stories : 1
Subdivision : National City
Recording Date : 08/08/2001
Property Tax : $591.21
Lot Acres : 0.13
Living Area : 785
Yr Blt / Eff Yr Blt : 1945 / APN : 120-07-0800
202 W LINCOLN ST
Owner Name : Green John G
Sale Date : 07/00/1986
Total Value : $127,082
Bed / Bath : / 1
Land Use : Sfr
Stories : 1
Subdivision : National City
Recording Date : 07/02/1986
Sale Price : $28,000
Property Tax : $590.41
Lot Acres : 0.15
Living Area : 672
Yr Blt / Eff Yr Blt : 1944 / APN : 120-07-0810
Name : Kariann Keomaka Customer Company Name : First American Title Insurance Company Prepared On : 07/22/2024
Owner Name : Valadez Ramon P
Total Value : $197,984
Bed / Bath : / 4
Land Use : Sfr
Stories : 1
Owner Name : Romero Rita L & Virginia S
Sale Date : 06/06/2024
Subdivision : National City
Recording Date : 06/03/1988
Tax : $1,180.34
Acres : 0.19
Area : 1,660
Subdivision : National City
Recording Date : 06/21/2024
Total Value : $88,041 Sale Price : $175,000
Bed / Bath : / 1
Land Use : Sfr
Stories : 1
Owner Name : Rico Daniel R
Sale Date : 10/18/2019
Total Value : $92,341
Bed / Bath : / 1
Tax : $526.80
Acres : 0.05
Area : 637
Subdivision : National City
Recording Date : 10/21/2019
Price : $126,900
Tax : $570.18
Land Use : Sfr Lot Acres : 0.06
Stories : 1 Living Area : 698
Yr Blt / Eff Yr Blt : 1939 / APN : 120-07-093B
161 W PRESIDENT ST Distance 0.06 Miles
Owner Name : Reyes Jim M
Sale Date : 08/27/2008
Subdivision : National City
Recording Date : 09/02/2008
Total Value : $107,800 Sale Price : $101,500
Bed / Bath : / 1
Tax : $547.68
Land Use : Sfr Lot Acres : 0.12
Stories : 1
Living Area : 871
Yr Blt / Eff Yr Blt : 1937 / APN : 120-07-093A
Name : Kariann Keomaka
On : 07/22/2024
156 W LINCOLN ST
Owner Name : Meraz Ernesto I
Sale Date : 05/30/2018
Subdivision : National City
Recording Date : 06/11/2018
Total Value : $127,877 Sale Price : $125,000
Bed / Bath : / 1 Property Tax : $541.10
Land Use : Sfr Lot Acres : 0.16
Stories : 1 Living Area : 962 Yr Blt / Eff Yr Blt : 1974 / APN : 120-07-0960
4001 S 9TH AVE
Owner Name : Campos
Total Value : $177,563
Bed / Bath : / 2
Subdivision : National City
Recording Date : 07/31/1995
Tax : $1,034.30 Land Use : Sfr
Acres : 0.19
Stories : 1 Living Area : 1,307 Yr Blt / Eff Yr Blt : 1967 / APN : 120-07-1400
Census Tract / block: 38.01 / 2 Year: 2020