2156 W Broadway Ave digital listing kit

Page 1


WIRE FRAUD ALERT THINK DIFFERENTLY

Email-based, real estate fraud schemes are on the rise. One common scenario is altering wiring instructions with the intention of rerouting funds.

Keeping this in mind, First American Title is changing the way we receive payment information. It is imperative that we are familiar with the people in our transactions.

RELYING ON EMAIL ALONE IS NO LONGER AN OPTION.

Fraudsters often use email to send falsified wire instructions to unsuspecting victims. Please warn your buyers and sellers to only follow wire instructions they receive personally from First American Title.

Additionally, we will not accept disbursement instructions for seller or buyer funds via email OR from any third party (attorney, real estate agent, etc).

ALTERNATIVE INSTRUCTIONS?

If your buyer or seller receives alternative wiring instructions that appear to be from First American Title, make sure they contact their escrow officer at a trusted phone number for confirmation.

Know that our wiring instructions do not change so any communication is suspect. Our banking institution is First American Trust.

IN SHORT – wire instructions will not be accepted by email. New wire instructions must be hand-carried or uploaded to the First American Secure Portal.

Thank you for joining First American Title in fostering a secure real estate transaction process. Have questions or concerns? Please contact our office or your escrow officer.

LIMITATION OF LIABILITY FOR INFORMATIONAL REPORTS

IMPORTANT -- PLEASE READ CAREFULLY:

This report is not an insured product or service or a representation of the condition of title to real property. It is not an abstract, legal opinion, opinion of title, title insurance commitment or preliminary report, or any form of Title Insurance or Guaranty. This report is issued exclusively for the benefit of the Applicant therefor and may not be used or relied upon by any other person. This report may not be reproduced in any manner without First Americans prior written consent. First American does not represent or warrant that the information herein is complete or free from error, and the information herein is provided without any warranties of any kind, as-is, and with all faults. As a material part of the consideration given in exchange for the issuance of this report, recipient agrees that First Americans sole liability for any loss or damage caused by an error or omission due to inaccurate information or negligence in preparing this report shall be limited to the fee charged for the report. Recipient accepts this report with this limitation and agrees that First American would not have issued this report but for the limitation of liability described above. First American makes no representation or warranty as to the legality or propriety of recipient's use of the information herein.

Disclaimer

This REiSource report is provided "as is" without warranty of any kind, either express or implied, including without limitations any warrantees of merchantability or fitness for a particular purpose. There is no representation of warranty that this information is complete or free from error, and the provider does not assume, and expressly disclaims, any liability to any person or entity for loss or damage caused by errors or omissions in this REiSource report without a title insurance policy.

The information contained in the REiSource report is delivered from your Title Company, who reminds you that you have the right as a consumer to compare fees and serviced levels for Title, Escrow, and all other services associated with property ownership, and to select providers accordingly. Your home is the largest investment you will make in your lifetime and you should demand the very best.

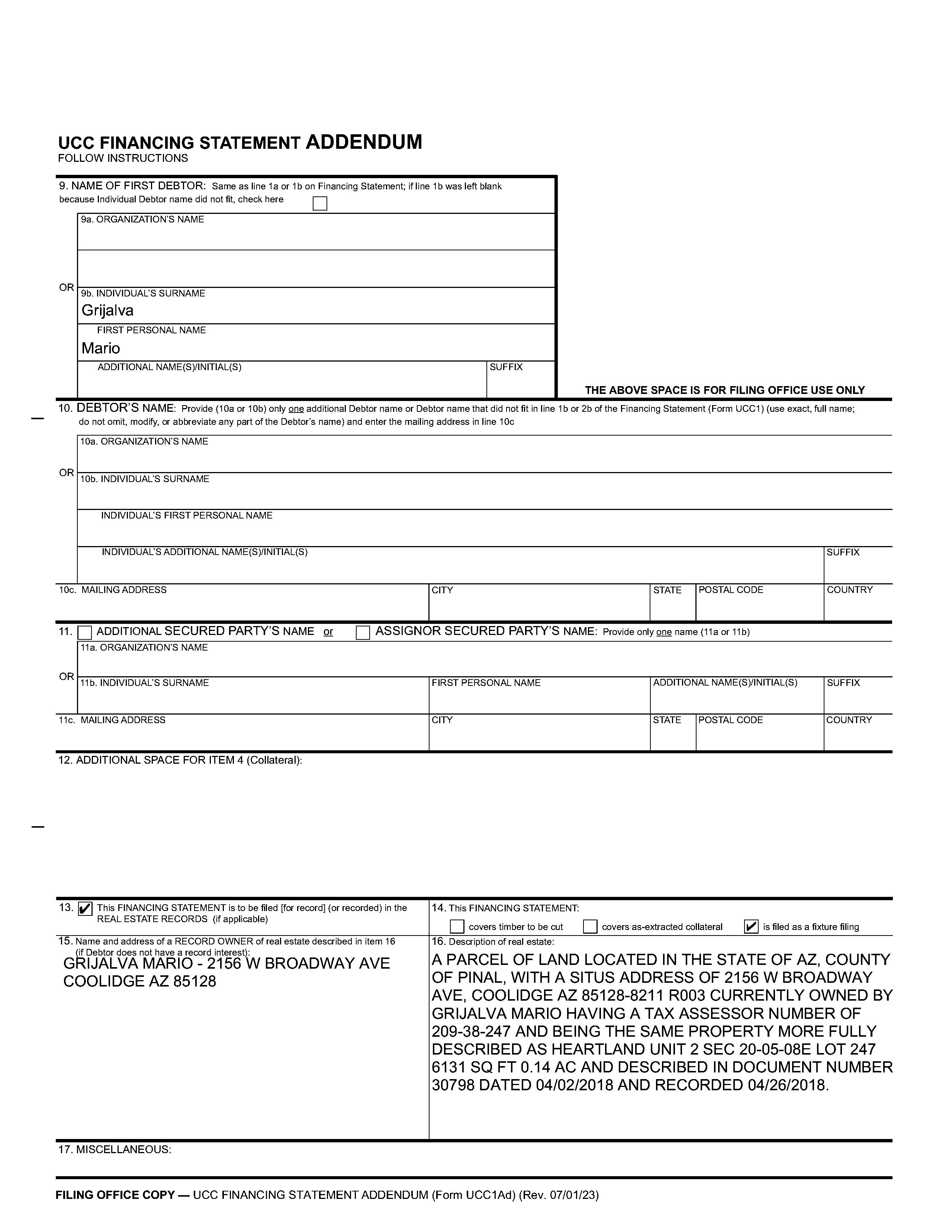
Subject Property :   2156 W Broadway Ave Coolidge AZ 85128

Owner Information

Owner Name : Grijalva Mario / Manzanarez Liliana

Mailing Address : 2156 W Broadway Ave, Coolidge AZ 85128-8211 R003

Owner Occupied Indicator : O

Location Information

Legal Description : Heartland Unit 2 Sec 20-05-08e Lot 247 6131 Sq Ft 0.14 Ac

County : Pinal, Az

Census Tract / Block : 11.00 / 4

Township-Range- Sect : 05S-08E-20

Legal Lot : 247

Owner Transfer Information

Recording/Sale Date : 11/15/2019 / 11/12/2019

Document # : 97497

Last Market Sale Information

Recording/Sale Date : 04/26/2018 / 04/02/2018

Sale Price : $154,900

APN : 209-38-247

Subdivision : Heartland 02

Map Reference : 2008E

Deed Type : Special Warranty Deed

1st Mtg Amount/Type : $158,230 / Va

1st Mtg Document # : 30799

Document # : 30798 1st Mtg Term : 30

Deed Type : Warranty Deed

Title Company : Empire W Title Agency

Seller Name : De Lisle Family Trust

Prior Sale Information

Prior Rec/Sale Date : 05/25/2012 / 05/24/2012

Prior Sale Price : $49,900

Price Per SqFt : $102.45

Prior Doc Number : 44468

Prior Deed Type : Special Warranty Deed

Property Characteristics

Gross Area : 1,912

Living Area : 1,512

Above Grade : 1512

Year Built / Eff : 2007

# of Stories : 1

Parking Type : Attached Garage

Property Information Land Use : Sfr

Acres : 0.14 Tax Information

Garage Area : 400

Roof Type : Truss-joist

Foundation : Concrete

Cooling Type : Central

Exterior wall : Plaster

Porch Type : Slab

Roof Material : Concrete Tile Air Cond : Central

Construction : Steel/wood

Quality : Average

Heat Type : Central Floor Cover : Carpet

Use : Single Fam Resurban Subd

Census Tract / block: 11.00 / 4     Year: 2020

Arizona Schools

PIMA COUNTY

SEARCH PARAMETERS

PARCEL:  209-38-2470

PARCEL: 209-38-2470 0

OWNER: DELISLE CHRYSTIE J  AFFIDAVIT    2012 44468 05/25/2012

SITUS: 2156 W BROADWAY AVE COOLIDGE

MAIL: 2156 W BROADWAY AVE  COOLIDGE, AZ 85128

LEGAL: HEARTLAND UNIT 2 SEC 20-05-08E LOT 247 6131 SQ FT 0.14 AC

CURRENT TAXES

INFORMATION THROUGH 02/14/2025

Turn static files into dynamic content formats.

Create a flipbook
Issuu converts static files into: digital portfolios, online yearbooks, online catalogs, digital photo albums and more. Sign up and create your flipbook.
2156 W Broadway Ave digital listing kit by PropertyResearchAZ - Issuu