1663 E Palo Verde Dr

Page 1


Subject Property

1663 E Palo Verde Dr Casa Grande AZ 85122

APN: 505-59-224

Data Provided By: First American Title Ins Co

WIRE FRAUD ALERT THINK DIFFERENTLY

Email-based, real estate fraud schemes are on the rise. One common scenario is altering wiring instructions with the intention of rerouting funds.

Keeping this in mind, First American Title is changing the way we receive payment information. It is imperative that we are familiar with the people in our transactions.

RELYING ON EMAIL ALONE IS NO LONGER AN OPTION.

Fraudsters often use email to send falsified wire instructions to unsuspecting victims. Please warn your buyers and sellers to only follow wire instructions they receive personally from First American Title.

Additionally, we will not accept disbursement instructions for seller or buyer funds via email OR from any third party (attorney, real estate agent, etc).

ALTERNATIVE INSTRUCTIONS?

If your buyer or seller receives alternative wiring instructions that appear to be from First American Title, make sure they contact their escrow officer at a trusted phone number for confirmation.

Know that our wiring instructions do not change so any communication is suspect. Our banking institution is First American Trust.

IN SHORT – wire instructions will not be accepted by email. New wire instructions must be hand-carried or uploaded to the First American Secure Portal.

Thank you for joining First American Title in fostering a secure real estate transaction process. Have questions or concerns? Please contact our office or your escrow officer.

LIMITATION OF LIABILITY FOR INFORMATIONAL REPORTS

IMPORTANT -- PLEASE READ CAREFULLY:

This report is not an insured product or service or a representation of the condition of title to real property. It is not an abstract, legal opinion, opinion of title, title insurance commitment or preliminary report, or any form of Title Insurance or Guaranty. This report is issued exclusively for the benefit of the Applicant therefor and may not be used or relied upon by any other person. This report may not be reproduced in any manner without First Americans prior written consent. First American does not represent or warrant that the information herein is complete or free from error, and the information herein is provided without any warranties of any kind, as-is, and with all faults. As a material part of the consideration given in exchange for the issuance of this report, recipient agrees that First Americans sole liability for any loss or damage caused by an error or omission due to inaccurate information or negligence in preparing this report shall be limited to the fee charged for the report. Recipient accepts this report with this limitation and agrees that First American would not have issued this report but for the limitation of liability described above. First American makes no representation or warranty as to the legality or propriety of recipient's use of the information herein.

Disclaimer

This REiSource report is provided "as is" without warranty of any kind, either express or implied, including without limitations any warrantees of merchantability or fitness for a particular purpose. There is no representation of warranty that this information is complete or free from error, and the provider does not assume, and expressly disclaims, any liability to any person or entity for loss or damage caused by errors or omissions in this REiSource report without a title insurance policy.

The information contained in the REiSource report is delivered from your Title Company, who reminds you that you have the right as a consumer to compare fees and serviced levels for Title, Escrow, and all other services associated with property ownership, and to select providers accordingly. Your home is the largest investment you will make in your lifetime and you should demand the very best.

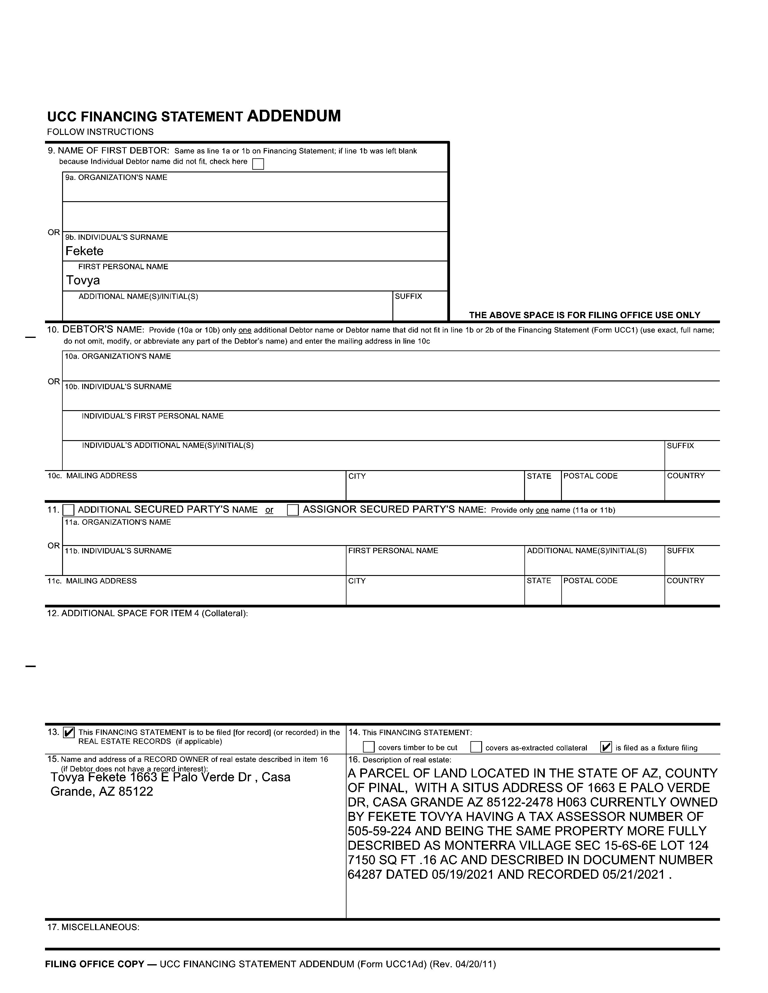
Subject Property :   1663 E Palo Verde Dr Casa Grande AZ 85122

Owner Information

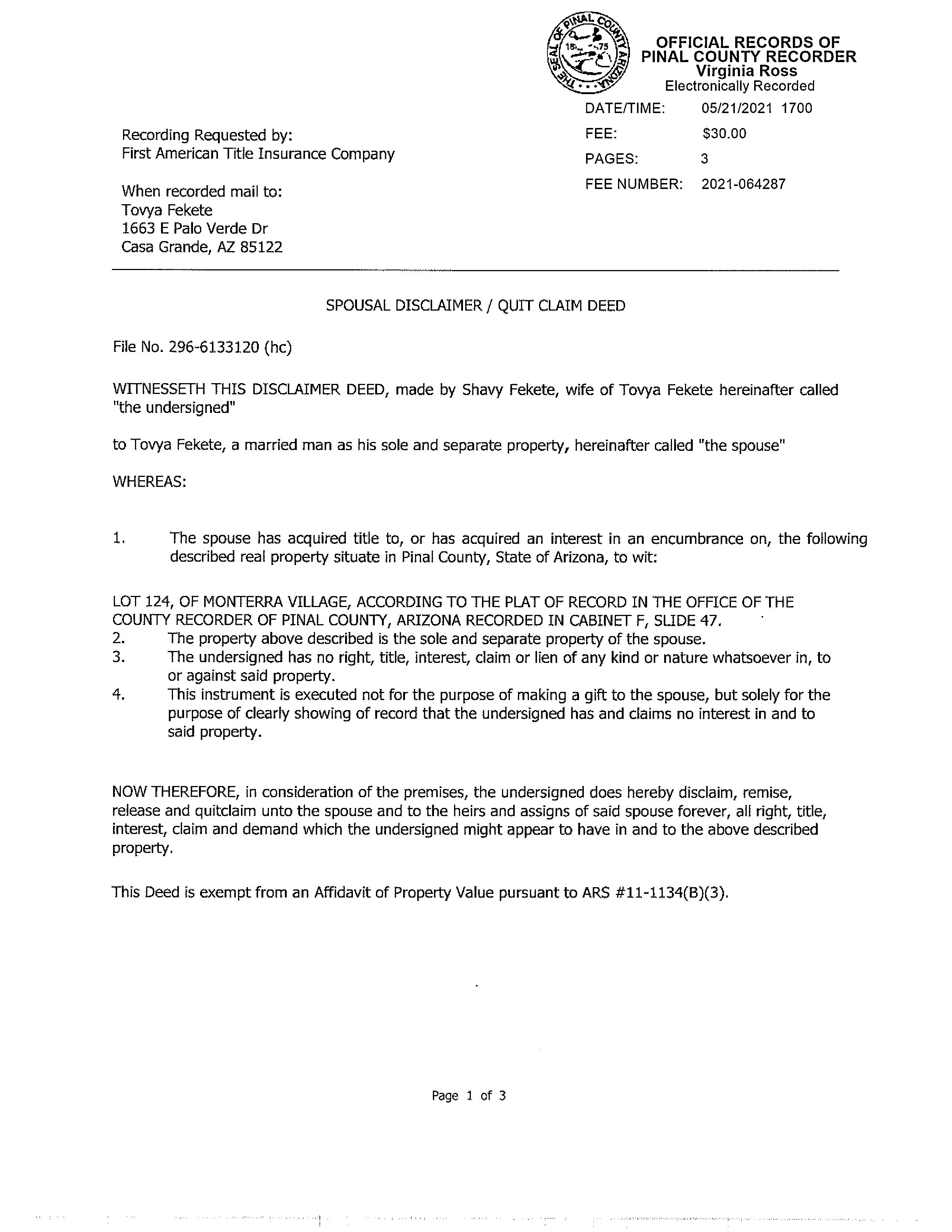
Owner Name : Fekete Tovya

Mailing Address : 1663 E Palo Verde Dr, Casa Grande AZ 85122-2478 H063

Owner Occupied Indicator : O

Location Information

Legal Description : Monterra Village Sec 15-6s-6e Lot 124 7150 Sq Ft .16 Ac

County : Pinal, Az

Census Tract / Block : 13.09 / 2

Township-Range- Sect : 06S-06E-15

Legal Lot : 124

Owner Transfer Information

Recording/Sale Date : 05/21/2021 / 05/19/2021

Document # : 64287

Last Market Sale Information

Recording/Sale Date : 05/21/2021 / 04/20/2021

Sale Price : $285,000

Document # : 64286

Deed Type : Warranty Deed

Title Company : First American Title

Seller Name : Offer Pad Spvborrowerl Llc

Prior Sale Information

Prior Rec/Sale Date : 04/09/2021 / 03/03/2021

Prior Sale Price : $247,000

APN : 505-59-224

Subdivision : Monterra Village

Map Reference : 1506S06E

Deed Type : Disclaimer Deed

1st Mtg Amount/Type : $271,600 / Cnv

1st Mtg Document # : 64288

1st Mtg Term : 30

Price Per SqFt : $173.25

Prior Doc Number : 44347

Prior Deed Type : Warranty Deed

Customer Name : Kariann Keomaka Customer Company Name : First American Title Insurance Company Prepared On : 08/16/2024

Property Characteristics

Gross Area : 2,065

Living Area : 1,645

Above Grade : 1645

Year Built / Eff : 2007

# of Stories : 2

Parking Type : Attached Garage

Garage Area : 420

Property Information Land Use : Sfr

Roof Type : Truss-joist

Exterior wall : Plaster

Foundation : Concrete Porch Type : Slab

Roof Material : Concrete Tile

Patio Type : Open Concrete/ masonry Patio

Construction : Steel/wood Air Cond : Central

Heat Type : Central Quality : Average

Cooling Type : Central Floor Cover : Carpet

Size : 7,150

Use : Single Fam Resurban Subd Lot Acres : 0.16

Tax Information

Year : 2023

Details of Comparables

Subject Property: 1663 E Palo Verde Dr Casa Grande Az 85122

Owner Name: Fekete Tovya / APN / Alternate APN: 505-59-224 / Deed Type: Warranty Deed

Subdivision / Tract: Monterra Village / Lot Size: 7,150

Land Use: Sfr

Year Built / Eff: 2007 / Rec. Date / Price: 05/21/2021 / $285,000 Living Area: 1,645

Document #: 64286

Total Tax Value: $195,643

#1   1656 E Judi St Casa Grande Az 85122

# of units:

Bedrooms: Pool:

Bath(F/H): /

Owner Name: Rottenberg Jacob / APN / Alternate APN: 505-15-359 / Deed Type: Warranty Deed

Subdivision / Tract: Tamaron Prcl A / Lot Size: 8,912

Rec. Date / Price: 03/26/2024 / $310,000 Living Area: 1,608

Document #: 21962

Total Tax Value: $245,565

#2   1680 E Judi St Casa Grande Az 85122

Land Use: Sfr

Year Built / Eff: 2019 /

# of units:

Bedrooms: Pool:

Bath(F/H): /

Owner Name: Gamarra Randy /Gamarra Claudia APN / Alternate APN: 505-15-505 / Deed Type: Warranty Deed

Subdivision / Tract: Tamaron Prcl B / Lot Size: 6,497

Land Use: Sfr

Year Built / Eff: 2020 / Rec. Date / Price: 10/02/2023 / $320,000 Living Area: 1,608

Document #: 73111

Total Tax Value: $236,475

#3   1616 E Judi St Casa Grande Az 85122

Bedrooms:

Bath(F/H): /

Owner Name: Padilla Mark / APN / Alternate APN: 505-15-368 / Deed Type: Warranty Deed

Subdivision / Tract: Tamaron Prcl A / Lot Size: 6,626

# of units:

Pool:

Land Use: Sfr

Year Built / Eff: 2019 / Rec. Date / Price: 07/26/2024 / $294,900 Living Area: 1,608

Document #: 56620

Total Tax Value: $235,425

#4   1640 E Jardin Pl Casa Grande Az 85122

Bedrooms:

Bath(F/H): /

Owner Name: Lopez Arturo J / APN / Alternate APN: 505-59-304 / Deed Type: Warranty Deed

Subdivision / Tract: Monterra Village / Lot Size: 8,444

# of units:

Pool:

Land Use: Sfr

Year Built / Eff: 2020 / Rec. Date / Price: 05/24/2024 / $305,000 Living Area: 1,410

Document #: 39138

Total Tax Value: $227,697

Bedrooms:

# of units:

Pool:

Bath(F/H): / Customer Name : Kariann Keomaka Customer Company Name : First American Title

#5   1674 E Jahns Dr Casa Grande Az 85122

Owner Name: Summit Living Spv I Llc / APN / Alternate APN: 505-15-482 / Deed Type: Warranty Deed

Subdivision / Tract: Tamaron Prcl 8 / Lot Size: 6,754

Land Use: Sfr

Year Built / Eff: 2006 / Rec. Date / Price: 02/14/2024 / $270,000 Living Area: 1,886

Document #: 10487

Total Tax Value: $216,121

Bedrooms:

Bath(F/H): /

#6   1630 E Kingman Pl Casa Grande Az 85122

Owner Name: Avalos Cristian H / APN / Alternate APN: 505-59-333 / Deed Type: Warranty Deed

Subdivision / Tract: Monterra Village / Lot Size: 8,450

Land Use: Sfr

Year Built / Eff: 2021 / Rec. Date / Price: 04/26/2024 / $318,000 Living Area: 1,410 # of

Document #: 31070

Total Tax Value: $228,375

Bedrooms:

Bath(F/H): /

#7   1653 E Cardinal Dr Casa Grande Az 85122

Owner Name: Bundy Elaine / APN / Alternate APN: 505-87-015 / Deed Type: Warranty Deed

Subdivision / Tract: Mission Vly Ph 01a / Lot Size: 7,040

Land Use: Sfr

Year Built / Eff: 2004 / Rec. Date / Price: 09/19/2023 / $284,000 Living Area: 1,520

# of units:

Document #: 69268

Total Tax Value: $180,864

#8   1540 E Racine Dr Casa Grande Az 85122

Bedrooms: Pool:

Bath(F/H): /

Owner Name: Short Kristi / APN / Alternate APN: 505-15-314 / Deed Type: Warranty Deed

Subdivision / Tract: Highland Manor 02 / Lot Size: 7,040

Land Use: Sfr

Year Built / Eff: 2006 / Rec. Date / Price: 07/17/2024 / $300,000 Living Area: 1,703

Document #: 53905

Total Tax Value: $210,376

Bedrooms:

Bath(F/H): /

#9   1628 E Cardinal Dr Casa Grande Az 85122

Owner Name: Zimmerman Aaron / APN / Alternate APN: 505-87-119 / Deed Type: Warranty Deed

Subdivision / Tract: Mission Vly Ph 01a / Lot Size: 7,616

# of units:

Pool:

Land Use: Sfr

Year Built / Eff: 2003 / Rec. Date / Price: 05/13/2024 / $337,500 Living Area: 1,687

Document #: 35654

Total Tax Value: $193,198

Bedrooms:

Bath(F/H): /

#10   1549 E Kingman Pl Casa Grande Az 85122

Owner Name: Marsh Jeffrey B / APN / Alternate APN: 505-59-179 / Deed Type: Special Warranty Deed

Subdivision / Tract: Monterra Village / Lot Size: 7,150

# of units:

Pool:

Land Use: Sfr

Year Built / Eff: 2020 / Rec. Date / Price: 05/15/2024 / $272,000 Living Area: 1,450

Document #: 36546

Total Tax Value: $223,077

Bedrooms:

Bath(F/H): /

# of units:

Pool:

Prepared On : 08/16/2024

#11   1659 E Bishop Dr Casa Grande Az 85122

Owner Name: Asirsan Joel /De Villiers Johanna

APN / Alternate APN: 505-87-085 / Deed Type: Warranty Deed

Subdivision / Tract: Mission Vly Ph 01a / Lot Size: 7,058

Rec. Date / Price: 09/28/2023 / $357,000 Living Area: 1,687

Document #: 72009

Total Tax Value: $212,941

#12   1679 E Irene Ct Casa Grande Az 85122

Bedrooms:

Bath(F/H): /

Owner Name: Micu Florin & Antoneta Trust / APN / Alternate APN: 505-15-542 / Deed Type: Warranty Deed

Subdivision / Tract: Tamaron Prcl C / Lot Size: 7,607

Rec. Date / Price: 02/09/2024 / $310,000 Living Area: 1,774

Document #: 9447

Total Tax Value: $228,368

Land Use: Sfr

Year Built / Eff: 2005 /

# of units:

Pool: Gunite

Land Use: Sfr

Year Built / Eff: 2008 /

# of units:

Bedrooms: Pool:

Bath(F/H): /

#13   2075 N St Francis Pl Casa Grande Az 85122

Owner Name: C & C Rascon Investments Inc / APN / Alternate APN: 505-87-036 / Deed Type: Special Warranty Deed

Subdivision / Tract: Mission Vly Ph 01a / Lot Size: 7,040

Land Use: Sfr

Year Built / Eff: 2002 / Rec. Date / Price: 12/14/2023 / $220,000 Living Area: 1,520

Document #: 90404

Total Tax Value: $175,916

#14   2080 N Pine Pl Casa Grande Az 85122

Bedrooms:

Bath(F/H): /

Owner Name: Grandinetti Laura / APN / Alternate APN: 505-87-275 / Deed Type: Warranty Deed

Subdivision / Tract: Mission Valley Ph 1b / Lot Size: 6,540

# of units:

Pool:

Land Use: Sfr

Year Built / Eff: 2003 / Rec. Date / Price: 09/06/2023 / $335,000 Living Area: 1,507

Document #: 66201

Total Tax Value: $176,325

Bedrooms:

Bath(F/H): /

#15   2026 N St Bonita Ct Casa Grande Az 85122

Owner Name: Enriquez Porfirio I Iii /Copeland Jamela D

APN / Alternate APN: 505-87-940 / Deed Type: Warranty Deed

Subdivision / Tract: Mission Valley Ph 6 / Lot Size: 8,276

Rec. Date / Price: 04/19/2024 / $305,000 Living Area: 1,568

Document #: 29161

Total Tax Value: $224,084

Bedrooms:

Bath(F/H): /

#16   2091 N Coronado Ct Casa Grande Az 85122

Owner Name: Neri Rodolfo Rocha /Reyes Angela Estafania Villega

APN / Alternate APN: 505-87-269 / Deed Type: Warranty Deed

Subdivision / Tract: Mission Valley Ph 1b / Lot Size: 5,797

Rec. Date / Price: 10/06/2023 / $298,000 Living Area: 1,507

Document #: 74466

Total Tax Value: $174,010

Bedrooms:

Bath(F/H): /

# of units:

Pool:

Land Use: Sfr

Year Built / Eff: 2016 /

# of units:

Pool:

Land Use: Sfr

Year Built / Eff: 2003 /

# of units:

Pool:

Customer Name : Kariann Keomaka

Customer Company Name : First American Title Insurance Company Prepared On : 08/16/2024

#17   1698 E George Ct Casa Grande Az 85122

Owner Name: Taylor Adam /Lira Raeanne

APN / Alternate APN: 505-15-563 / Deed Type: Warranty Deed

Subdivision / Tract: Tamaron Prcl C / Lot Size: 9,790

Land Use: Sfr

Year Built / Eff: 2020 / Rec. Date / Price: 09/14/2023 / $375,000 Living Area: 1,877

Document #: 68021

Total Tax Value: $281,049

# of units:

Bedrooms:

Bath(F/H): /

#18   1688 E George Ct Casa Grande Az 85122

Owner Name: Rounds Kari /

APN / Alternate APN: 505-15-561 / Deed Type: Warranty Deed

Subdivision / Tract: Tamaron Prcl C / Lot Size: 9,456

Land Use: Sfr

Year Built / Eff: 2020 / Rec. Date / Price: 04/01/2024 / $388,000 Living Area: 1,877

Document #: 23877

Total Tax Value: $279,713

# of units:

Bedrooms:

Bath(F/H): /

#19   1577 E Elaine Dr Casa Grande Az 85122

Owner Name: Lbarra Carlos /Reyes Maria

APN / Alternate APN: 505-15-058 / Deed Type: Warranty Deed

Subdivision / Tract: Highland Manor 01 Amd / Lot Size: 6,050

Rec. Date / Price: 12/15/2023 / $307,000 Living Area: 1,774

Document #: 90521

Total Tax Value: $198,795

Bedrooms:

Bath(F/H): /

#20   1620 E Thomas Dr Casa Grande Az 85122

Owner Name: Allen Walter /Kessay Nancy

APN / Alternate APN: 505-15-592 / Deed Type: Warranty Deed

Subdivision / Tract: Tamaron Prcl D / Lot Size: 7,018

Land Use: Sfr

Year Built / Eff: 2003 /

# of units:

Pool:

Land Use: Sfr

Year Built / Eff: 2022 / Rec. Date / Price: 09/26/2023 / $354,000 Living Area: 1,877

Document #: 71250

Total Tax Value: $28,072

Bedrooms:

Bath(F/H): /

# of units:

Pool:

Owner Name : Lopez Nicolette J

Sale Date : 07/26/2022

Total Value : $216,082

Land Use : Sfr

Stories : 2

Owner Name : Palmer Brian C

Sale Date : 04/13/2020

$248,676

Recording Date : 07/29/2022

Price  : $340,000

Tax : $1,564.74

Acres : 0.16

1,594

Recording Date : 04/15/2020

Price  : $195,990

Tax : $1,787.50 Land Use : Sfr

Stories : 2

Owner Name : Garcia Fernando

Sale Date : 07/09/2013

1,980

Recording Date : 07/18/2013

Price  : $142,000 Total Value : $254,752

Land Use : Sfr

$1,935.72

Acres : 0.16

Stories : 2 Living Area : 2,280 Yr Blt / Eff Yr Blt : 2007 / APN : 505-59-228

Subdivision  : Monterra Village

1661 E PRICKLY PEAR PL Distance 0.06 Miles

Owner Name : Martinez Christopher Recording Date : 03/17/2020

Sale Date : 03/11/2020

Total Value : $216,082

Land Use : Sfr

Price  : $185,000

$1,564.74

Acres : 0.16

Stories : 2 Living Area : 1,594

Yr Blt / Eff Yr Blt : 2019 / APN : 505-59-256

Subdivision  : Monterra Village

Owner Name : Shabandri Isam

Recording Date : 02/21/2020 Sale Date : 01/21/2020

Price  : $196,490 Total Value : $229,608

Land Use : Sfr

Owner Name : Garcia David J

Recording Date : 11/20/2019 Sale Date : 12/04/2018

Price  : $179,990

$224,355

Tax : $1,580.74 Land Use : Sfr

Owner Name : Pennington Ronald Shane

Recording Date : 04/02/2021

Sale Date : 03/29/2021 Sale Price  : $237,685

Total Value : $221,193

Land Use : Sfr

Stories : 1

$1,476.02

Acres : 0.16

Area : 1,410

Yr Blt / Eff Yr Blt : 2020 / APN : 505-59-278

Subdivision  : Monterra Village

1626 E PALO VERDE DR Distance 0.1 Miles

Owner Name : Plettenberg Andrew R

Sale Date : 01/27/2020

Total Value : $236,091

Recording Date : 02/10/2020

Price  : $188,990

Tax : $1,673.22

Land Use : Sfr Lot Acres : 0.19

Stories : 2 Living Area : 1,752

Yr Blt / Eff Yr Blt : 2019 / APN : 505-59-240

Subdivision  : Monterra Village

Name : Kariann Keomaka Customer Company Name : First American Title Insurance Company Prepared On : 08/16/2024

1629 E PRICKLY PEAR PL Distance 0.1 Miles

Owner Name : Garcia Jose Luis Jr

Sale Date : 06/05/2013

Total Value : $266,445

Land Use : Sfr

Stories : 1

Recording Date : 06/28/2013

Price  : $170,000

Tax : $1,754.32

Acres : 0.19

Area : 2,185 Yr Blt / Eff Yr Blt : 2007 /

Subdivision  : Monterra Village

1620 E PALO VERDE DR Distance 0.11 Miles

Owner Name : Pate Betty Yvonne

Sale Date : 07/09/2012

Recording Date : 07/13/2012

Price  : $133,000 Total Value : $233,064

Land Use : Sfr

Stories : 1

Tax : $1,773.32

Acres : 0.19

Area : 1,846

Blt / Eff Yr Blt : 2007 / APN : 505-59-239

Subdivision  : Monterra Village

Census Tract / block: 13.09 / 2     Year: 2020

Arizona Schools

SEARCH PARAMETERS

PARCEL:  505-59-2240

PARCEL: 505-59-2240 4

OWNER: FEKETE TOVYA  AFFIDAVIT    2021 64286 05/21/2021

SITUS: 1663 E PALO VERDE DR CASA GRANDE

MAIL: 1663 E PALO VERDE DR

LEGAL: MONTERRA VILLAGE SEC 15-6S-6E LOT 124 7150 SQ FT .16 AC

CURRENT TAXES INFORMATION THROUGH 08/15/2024

11900 14613 14900 15625 24001

Turn static files into dynamic content formats.

Create a flipbook
Issuu converts static files into: digital portfolios, online yearbooks, online catalogs, digital photo albums and more. Sign up and create your flipbook.