


![]()




















COVER SHEET FOR SUBMISSION 2023-2024
PROGRAM: Projective Cities, Taugh MPhil in Architecture and Urban Design
NAME: Arielle Lavine
SUBMISSION TITLE: Forest Children: How Educations of Indigenous and Settler Children Reinscribe the Colonial Order
COURSE TITLE: Dissertation
COURSE TUTOR: Platon Issaias, Hamed Khosravi
DECLARATION:
“I certify that this piece of work is entirely my own and that any quotation or paraphrase from the published or unpublished work of others is duly acknowledged.”
Signature of Student:

Date: April 22, 2024
1 Gilles Deleuze, Félix Guattari, and Brian Massumi, A Thousand Plateaus: Capitalism and Schizophrenia, Athlone Contemporary European Thinkers (London New York: Continuum, 1988).
2 Decolonial Questioning is a methodology that aims to mobilize intergenerational white settler responsibility in the cultural sector. The inward turn is the first step in decolonial questioning. Leah Decter and Carla Taunton, “An Ethic of Decolonial Questioning: Exercising the Quadruple Turn in the Arts and Culture Sector,” in The Routledge Companion to Indigenous Art Histories in the United States and Canada (Routledge, 2022).
Land, its ownership and use are at the core of conflict between Indigenous nations and colonial powers In Canada over the twentieth century, youth camps, appropriated in different forms as ‘transformative’ educational projects were a key method, used by Settlers to solidify colonial rights. White Settler children attended Summer Camps set typically on forested lakeshores to “play Indian” as they learned to canoe, swim, build fires and to camp away from settled urban environments. Indigenous children were torn from the families and communities who had inhabited those lands for millennia and relocated to brick-and-mortar Residential Schools designed explicitly to civilise them, Christianize them, and sever their relationships with their language, culture, and land. Taken together, the two programs form an exemplary case of two simultaneous, dependent processes of Settler Colonialism: Indigenous dispossession and Settler possession. The analysis of how children—both Settler and Indigenous—were indoctrinated into colonial ideas about land ownership, Indigeneity and nationhood is at the heart of my thesis. I focus on a landscape that I also learned to be my home, the Precambrian shield in Ontario, Canada—the unceded lands of the Anishinaabek.
The thesis frames the histories of two residential educational institution—the Indian Residential School and the Woodcraft Summer Camp—in parallel, proposing a method for studying these separate projects as an assemblage in order to deepen our understanding of education within a settler colonial context.1 These two programs have been rarely discussed together in the context of the impact of settler colonialism. In relation to the ongoing theorisation of the camp, this thesis highlights distinct architectural typologies of the organised youth camp. Through a critical reading into how both Settler and Indigenous education missions were conceptualised, how they were promoted, and how distinct learning environments were spatialised, the thesis reframes the institutions as complimentary colonial strategies for territorial control and cultural colonisation.
Though the camp has been co-opted for supporting the colonial agenda, as a spatial form, it has other roots. Necessitated by Indigenous calls for Land Back and to support a path of truth and reconciliation between Settlers and Indigenous peoples, the thesis uses typological design tests to propose a scenario to reframe the colonising operations of the Summer Camp. A design exercise focused on the land occupied by Camp Ahmek proposes a place for meaningful land acknowledgement and reviving education on Indigenous cultural practices. A future scenario for the disassembly, reuse and subversion of the material spaces that had contributed to the development of a colonial order operates to test the opportunities and limits of architecture for triggering change in the organisation and functioning of the camp. As an initial inward turn the thesis is concerned with the need for reconceptualising settler education in support of reasserting Indigenous sovereignty.2


3 Minton and Mckean, ‘We Must Not Forget What Happened to the World’s Indigenous Children | Aeon Essays’, 2023.
4 The “construction of Settler as an identity mirrors the construction of Indigenous in contemporary terms: “a broad collective of peoples with commonalities through particular connections to land and place”. Settler Canadian identities are reliant on the ongoing exercise of colonial power to provide attachment to and legitimacy on the land. Emma Battell Lowman and Adam J. Barker, Settler: Identity and Colonialism in 21st Century Canada (Winnipeg, Manitoba ; Black Point, Nova Scotia: Fernwood Publishing, 2015), 2, 16.
5 Leah Decter and Carla Taunton, “An Ethic of Decolonial Questioning: Exercising the Quadruple Turn in the Arts and Culture Sector,” in The Routledge Companion to Indigenous Art Histories in the United States and Canada (Routledge, 2022).
Canada has recently been torn by the uncovering of what was known to be hidden: the remains in unmarked graves, of Indigenous children who had been subjects of the horrors of the Indian Residential School System in Kamloops, British Columbia. Grave sites at other former Residential School sites were subsequently and continue to be investigated. The revelations in the spring of 2021 were followed by massive media attention and an outpouring of grief by Indigenous communities. The glaring, undeniable horror of the revelation pitched the country into an intense period of self-reflection on the tragic consequences of forced assimilation. As Steve Minton reminds us, “when frameworks for dispossession become entrenched through educational, social, and political systems, settler states can compel their citizenry to ‘forget’ the horrors of colonisation, to deny that these things ever happened, and to aggressively demand that others join them in this deliberate cultivated collective ‘amnesia’.”3
I’m conscious that my relationships with my urban Toronto home and wilderness family-cottage are not like the relationships Indigenous peoples have with their homes in the same geographical locations. This thesis comes from my attempts to untangle the meaning of belonging in different imagined communities as they are defined by nations and educational settings. I do this as a third-generation Settler, with the set of landscapes I have learned to relate to as home—in what can be a possessive, all-encompassing way of “settler homemaking” as encouraged by Canadian social and political structures.4
In relation to the ongoing struggle and injustices against Indigenous nations, this thesis strongly positions itself in support of the reassertion of Indigenous sovereignty, and in the need for healing, truth, and reconciliation. In particular, the thesis should be read as an initial inward turn, offering reflections on Settler education on this history of our complicity to devastation.5
Previous page:
Fig. 1 Elevation of Shingwauk Indian Residential School main hall, constructed 1935.
Fig. 2 Elevation of Camp Ahmek dining hall, constructed 1937.

To emphasise my point about the contested issues at stake, I’m going to reiterate: the land that the case studies of the thesis are situated are the unceded territory of the Anishinaabek peoples, who still occupy this land. The work was written mainly from the AA School, in London, England—a place I am privileged to study at on a visa as a Canadian citizen. This distance from my home in Canada, working in the UK and immersed in a school setting is itself not unlike a form of camp environment. The community at the AA and especially my classmates in Projective Cities formed my camp family over the last 18 months.
I am grateful and honoured by the opportunity to learn from and contribute to the body of work and legacy of Projective Cities. Thank you to my professors: Hamed for believing in my project and for encouraging me to aim high, and for your guidance and supervision the entire way through. Platon, for continuously challenging me and helping me to reframe my beliefs. Anna and Doreen, for profoundly changing my relationship with writing. Thank you for helping me to see writing as a form of design and working with me on the structure and clarity of the work. The Projective Cities course has reframed my past education and work in architecture and has motivated me to look at sites I’ve known my whole life differently. It has been incredibly rewarding to have the space and intellectual support in the programme to develop my research and design interests in a deeper and structured way.
Thank you to the archivists at Shingwauk Residential School Centre, Trent University, and Algonquin Park Archives for your assistance both in-person and over email. Thank you, Chelsie, for sharing the experiences of your family and community at the former Shingwauk Residential School. Your Truth Walk was extremely informative to this thesis and an inspiration to me to see the strength it takes to engage in the work of truth and reconciliation in the face of ongoing injustices.
Thank you to my family for your generosity in supporting me in pursuing postgraduate studies in London. A big thank you to my mother Sarah, who became my informal research assistant and editor on multiple occasions over the past year, accompanying me to Sault Ste. Marie and Peterborough, Ontario, and London, England. Thanks for encouraging me to see the positive impact possible from engaging in this work, and for engaging in conversation with others that have more knowledge and personal connection to the places I discuss. Thank you to my aunt Lissa for being a mentor to me, for your time, care, and investment in my thesis and in my personal growth through postgraduate studies. Thank you Arslan for your constant support, for keeping me motivated through difficult moments, and for your design input that gave this work strength.
6 Canadian Geographic & Google Earth Voyager, & National Centre for Truth and Reconciliation, 2017.
7 The Land Back Manifesto, https://landback.org/manifesto/
8 “Shingwauk Kinoomaage Gamig,” https://shingwauku.org/
Indian Affairs The Department of Indian Affairs was an arm of the federal government of Canada that historically managed IndigenousCanadian relations, and until the 1970s, implemented policies that explicitly aimed to segregate and assimilate Indigenous peoples. In 2011, it became Aboriginal Affairs and Northern Development, and is now known as Indigenous and Northern Affairs.
Indian Residential Schools (IRS) (1873 - 1996) Government-funded, church-run institutions, whose mandate was to strip Indigenous children of their culture and spiritual identity. By forcibly separating Indigenous children from their families, resi deprived students of their cultural heritage and community connections, leaving them isolated and vulnerable to abuse.6
Land Back Land Back is a decentralized campaign that seeks to re-establish Indigenous sovereignty and jurisdiction with political and economic control of their ancestral lands. It encompasses “the reclamation of everything stolen from the original people: land, language, ceremony, food, education, housing, healthcare, governance, medicines, and kinship.”7 The movement emerged in the late 2010s among Indigenous peoples in Australia, Canada and the United States.
Ontario Camping Association (OCA) Founded 1933. Interests encompassing the development and maintenance of high camping standards in the field of camping for children and an appreciation of the wider aspects of the camping movement. Responsible for the development and implementation of standards for Ontario’s children’s camps, and in 1941, with the Provincial Department of Health, made the licensing of all camps mandatory.
Shingwauk Kinoomaage Gamig (SKG) A Centre of Excellence in Anishinaabe Education, opened on the site of the former Shingwauk Indian Industrial School. This university’s mission is to preserve the integrity of Anishinaabe knowledge and understanding in cooperation with society to educate the present and future generations in a positive, cooperative, and respectful environment.8
Shingwauk Residential School Centre (SRSC) Shingwauk Residential School Centre, operating out of the previous Shingwauk Indian Industrial School, redeveloped as part of Algoma University. The SRSC is one of the leading research centres and archives focused on Indian Residential Schools.
The Truth and Reconciliation Commission of Canada (TRC) Established in 2008 to document the history and lasting impacts of the Canadian Indian Residential School System. In the commission’s final report from 2015, they concluded that forcible assimilation practices, targeting 150-thousand Indigenous children over almost 100 years amounted to cultural genocide. The final report also included a list of 94 actionable policy recommendations meant to aid the healing process in two ways: acknowledging the full, horrifying history of the residential school system, and creating systems to prevent these abuses from ever happening again in the future.
Woodcraft Indian Movement The Woodcraft Indian Movement was founded in 1902 by White Canadian Naturalist Ernest Thompson Seton (1860-1946). The program relied on the appropriation of Indigenous cultural practices and encouraged primarily white boys, followed a few years later by girls (The Camp Fire Girls, 1912) in collective, ritualized role-playing as the mythical Indian.
Key Figures
Ernest Thompson Seton (1860-1946) English, emigrated to British North America in 1866. Worked as an artist and naturalist. Founder of the Woodcraft Indian Movement. Published Two Little Savages; Being the Adventures of Two Boys Who Lived as Indians and What They Learned (1906) based on his childhood experience of “playing Indian.” Author of Wild Animals I Have Known (1898) and other animal stories. Seton’s movement also began the Indian Council Ring Tradition, including a structure that versions of can still be found at many Summer Camps.
Nickolas Flood Davin (1840-1901) Lawyer, journalist, and politician, born in Ireland (then part of the UK) and moved to North America. Considered one of the architects of the Canadian Indian Residential School System. Author of the 1879 Report on Industrial Schools for Indian and Half-Breeds, or The Davin Report, commissioned by the Canadian government in which he advised the federal government to institute residential schools for Indigenous children.
Reverend E. F. Wilson (1844-1915) English Missionary. Founder and first Principal of the Shingwauk Indian Industrial School. Wilson also acted as architect of multiple structures of the institution, including the initial design of the Bishop Fauquier Memorial Chapel.
Taylor Statten (1882-1956) Boer War veteran, an educator associated with the national YMCA, and the founder of Camp Ahmek (1921) on Canoe Lake, Algonquin Park, Ontario. Statten was also one of the founding members of the Ontario Camping Association (1933).
0.1 Research Questions
0.2 Aims and Objectives
0.3 Methodology
0.4 Structure of the Thesis
9 Irit Katz, The Common Camp: Architecture of Power and Resistance in Israel-Palestine, 2022.
10 1831 was the year that the Mohawk Institute opened—the first Indian Residential School in Canada, which was at the time under British Colonial rule. It was not until 1867 with the passing of the British North America Act that First Nations education becomes a federal responsibility.
11 Our Forest Children periodical was established in 1887, and was superseded by Canadian Indian October 1890. It was printed with the labour of Indigenous boys who were students at Shingwauk. These publications served to advertise the mission of the Residential Schools to the British and Settler Canadian public and solicit donations.
12 The last federally-funded Indian Residential School, Kivalliq Hall in Rankin Inlet, Nunavut, closed in 1997.
13 In 1879, Canada’s first Prime Minister Sir John public and engaged Nicholas Flood Davin to investigate boarding schools for Indigenous children in the United States as a possible model for assimilation in Canada. Davin advised that a federally funded system of Industrial schools should be established throughout the country. The strategy came to be called “aggressive civilisation”. (Davin, Nicholas Flood, 1879, “Report on Industrial Schools for Indians and Half- breeds,” Winnipeg, MB, p. 2, [http:// archive.org/ details/cihm_03651/]).
14 Government of Canada; Crown-Indigenous Relations and Northern Affairs Canada, “Truth and Reconciliation Commission of Canada,” December 14, 2015, https://www.rcaanc-cirnac.gc.ca/ eng/1450124405592/1529106060525
On Turtle Island (the Indigenous name for North America), people had been camping long before the arrival of Settlers. Only it was Settlers who labelled Indigenous semi-nomadic settlements as such, proceeding to imitate them in their own more permanent camps imposed onto these Indigenous lands. In European etymology, the camp at one point meant a training ground. But it has other roots. The focus of the thesis is on the camp as an instrument by which modern societies can be administered, negotiated, and reorganised.9
The thesis argues that two forms of the youth camp, organised as institutions of “education” under the settler state, can be reread as an exemplary case of complimentary colonial strategies for Indigenous dispossession and Settler possession. Both of these forms of the camp, I argue, acted in parallel to project a colonial hierarchy of inhabitants in Canada.
Arriving in Canada in 1831, the camp was appropriated by Catholic Missionaries in the name of progress, to indoctrinate Indigenous children into a Christian way of life.10 To begin this historical retelling, I refer to a periodical published in 1890 from the Shingwauk Indian Industrial School in Sault Ste. Marie, Ontario, from which the thesis borrows its title.
Reverend E. F. Wilson’s (1844-1915) Our Forest Children And What We Want To Do With Them stands as an explicit record of the institution’s mission.11 The Shingwauk School for Boys and the Wawanosh School for Girls were founded by Wilson in 1873 and stayed in operation until 1970. Wilson had come to Canada from London, England, belonging to the Society for Promoting Christian Knowledge.
This system of boarding schools, the first type of camp of focus in the thesis—known formally as the Indian Residential School System (IRS)—spread across Turtle Island with the political and financial backing of the Canadian and American governments. Policy behind the system in Canada began with the Ryerson Experiment in 1845, followed by the Gradual Civilization Act (1857), the Gradual Enfranchisement Act (1869), the Indian Act (1876), and the Davin Report (1879)—that passed along the responsibility for Indigenous education from British Colonial rule, to the Dominion of Canada, and then down to the Indian Affairs Department, a branch of Canada’s federal government until 1997.12 All the while operated by multiple denominations of the Christian church. ‘Work Camps’ more accurately describe these schools, which are estimated to have targeted more than 150,000 Indigenous children between 1883 and 1996. The system was set up with the intention of civilising and Christianizing Indigenous children. Attempting to sever their bonds with their communities, families, cultural identities, and lands. In 2015, the Truth and Reconciliation Commission of Canada concluded that this program of “aggressive civilization”13 was responsible for a cultural genocide.14

4 Illustration depicting Indigenous children labouring the fields in front of Shingwauk Home, in contrast with the “primitive ways” surrounding the central image. By Rev. E. F. Wilson in Wilson, Our Forest Children and what we want to do with them, 1890.
15 Though it may be unlikely Seton ever referred to his pupils as ‘forest children’, the flexibility of the title could suggest a second meaning in the context of White campers led in playing Indian.
16 Playing Indian extends well before and past these dates, though these are the years identified by Sharon Wall as being most widespread at summer camps in Ontario. Sharon Wall, The Nurture of Nature: Childhood, Antimodernism, and Ontario Summer Camps, 192055, Nature/History/Society (Vancouver: UBC Press, 2009).
17 Ibid.
At almost the same critical moment in time (a decade after the publication of Our Forest Children), Ernest Thompson Seton (18601946), an English born Canadian author, artist, and naturalist, founded the Woodcraft Indian Movement (1902). Seton along with the leadership of the Boy Scouts of America (1910) were appropriating the camp as another form of youth training ground. Except they were focused on the education of Settler children. Seton’s ‘forest children’ were White boys whom he introduced to the ways of Native Americans through appropriated chants and rituals around his Indian Council Ring structure in upstate New York.15 These properties in the “wilderness” became the places where the new middle class could escape the perils of the modern city to reclaim this now emptied territory and idealized landscape. As a formalised type, the Woodcraft Summer Camp, and the phenomenon of playing Indian proliferated in Ontario between 1920-1955.16 Not only popular at private, for-profit camps located in the Muskoka, Algonquin, and Temagami regions, catering for well-to-do, upwardly mobile, middle- and upper-class clientele, but also fresh-air camps run by churches, charities, and other non-profit organisations, catering to the poorest sector of Ontario’s working class.17 These camps allowed Settlers to strengthen community while learning a specifically designed set of skills oriented towards forming a bond with the landscape—fundamental to the process of Canadian nation building.
What I wish to emphasise here is the contrast, and the irony in these educational programs—both at a moment near the foundation of two movements—a period of aggressive assimilation policies aimed at Indigenous people, and at the same time, a conceptualisation of a method for indigenizing a Settler population—who were meant to replace the original inhabitants of the land.
The thesis rereads these simultaneous processes by which the original inhabitants were removed and then replaced by settlers in the process of building Canada. The newly conceptualised category of adolescents became the test subjects for experiments in the design of national culture.

How is the territory constructed and instrumentalized through the camp? How do the two types of camp together define and organise a shared territory of colonial expansion, prioritising the dominant culture?
How much was Settler society aware of the nature and mission of the IRS, and how did Settler society and the Summer Camp more specifically define itself in relation to the IRS and Indigenous peoples and nations?
How can the two types of camp be studied on the same plane of existence? How did the camps interact with each other?
How can distinct building and camp typologies be defined in terms of form and function? How can the types be distilled as a set of actions acting on the de-territorialised subjects they define (that is their forest children)? 18
How can land reclamation and respect of Indigenous sovereignty structure our thinking as spatial practitioners to transform these sites?


Through the analysis of two distinct typologies of the youth camp: the Indian Residential School for Indigenous children and the Woodcraft Summer Camp for Settler children—the thesis aims to understand the instrumentality of the camp as it has been utilised to forward the settler colonial agenda in Canada. The research attempts to redefine and connect the diagrams that each camp represent as related projects of indoctrination and as spatial conditions of the camp. By tracing politically charged flows of cultural capital (or the barbaric transmission of culture19) that make up much of the curriculums at each institution, I trace a pattern of cultural appropriation (simply, theft) that is established by Settlers justified by destructive ideologies. Through paralleling the operations of Indigenous dispossession and Settler possession as the architectures of these institutions are set up to perform, the thesis reflects on the agency of spatial design in affecting how belonging within a nation, as well as landscape is negotiated and controlled. The thesis argues across what are mostly separate bodies of research and material traces to argue on the tensions between their co-existence. I argue that the colonial tendencies of these programs can be defined in terms of their relationality as an assemblage, as they evolved over the twentieth century. The camps are read as a layer of the constructed territory of Canada.
By first nuancing our understanding of the camp diagram and its relation to the spatial delineation of wilderness, on the propositional level the thesis proposes a scenario for reclaiming the diagram as sites of truth and methods for reconciliation. Finally, the thesis strategises on the spatial possibilities opened up by Indigenous calls for Land Back, informing design tests related to on the land education and design that prioritises reestablishing Indigenous sovereignty.





20 Their founders—Taylor Statten (Ahmek) and Mary Edgar (Bernard)—were later founding members of the Ontario Camping Association (OCA). Their writings and pedagogies were very influential in Ontario’s camping movement and wider field of education.
The main body of the thesis follows material traces of six case studies: three summer camps active in Seton’s Woodcraft Indian Movement and three Indian Residential Schools.
The Residential Schools were chosen as case studies for this thesis based on the accessibility of archival materials and relevant scholarship, as well as their location in Southern Ontario. The Mohawk Institute (Anglican, 1831-1970) was Canada’s first IRS, in Brantford, Ontario. Second is the Shingwauk Indian Industrial School (Anglican, 1873-1970) in Sault Ste. Marie. The third case study is the Spanish Indian Residential School (Roman Catholic, 1913-1965), near the town of Spanish Ontario.
Three Summer Camps were chosen as case studies based on the availability of archival material and relevant scholarship. Camp Ahmek for Boys (1921 - present), in Algonquin Park, and Camp Glen Bernard for Girls (1922 - present), near Sundridge ON, are among the most well-known and researched summer camps in Ontario.20 The third summer camp case study is Camp Manitou (1925 - present), near Whitefish Falls, Ontario, chosen based on the availability of materials, and the camp’s proximity to Spanish Indian Residential School. In their early years, Ahmek and Glen Bernard were non-denominational religious camps, and slowly transitioned to fully secular programming. Camp Manitou is a Christian camp. The programming at all three also included an “Indian Program”.
All three summer camps are still in operation. Each were contacted by email to inform them of my research interests and to ask for architectural records of their property and buildings. Due to the difficulty of travelling to the summer camps, and because each are still operating as private businesses, site visits were not possible. Camp Ahmek declined my request to visit their property and directed me towards the Algonquin Park Archives for any publicly available information. Glen Bernard Camp did not respond to my request. Camp Manitou directed my questions on the history of different buildings to
their archives now held by the Diocese of Algoma, transferred to the Shingwauk Residential School Centre (SRSC) Archives at Algoma University.
Two of the chosen case studies of Residential Schools offered tours of their sites. I took a virtual tour of the Mohawk Institute in December 2023, organised by the Woodland Cultural Centre, and spent one week at the former site of the Shingwauk IRS (now Algoma University) in September 2023. This time was spent looking through the archives at SRSC and to go on a Truth Walk organised by the SRSC and led by a family member of survivors of the school.
To support the analysis of the case studies, archival materials were curated through the following criteria for collection:
Image of the Camp: How is camp space described, drawn, and organised? How are the individual components (spaces for sleeping, eating, and distinct learning spaces) of the camps’ purpose framed within the pedagogy of the institution? How are the camps’ missions promoted?
Typological Instrumentality of the Camp: What was the perceived “problem” with the children defined by their race and how were the “educations” framed as a corrective?
Camp as a Strategy: How is the site for the camp chosen, and what ideas about the territory was this choice based on?
Through an exercise of redrawing and cataloguing the architectures of each case study under different operations, an association unfolds between the IRS and the Woodcraft Summer Camp which have not been previously studied together. Curated into a self-made archive including promotional materials, education manuals, and policy documents, paralleling these materials reveals ideological tensions as well as similarities in the materials produced by each institution.
21 The collection includes plans of residential schools, on-reserve Day Schools, houses, churches, council houses, jails, hospitals, and farm buildings.
Magdalena Milosz, “Instruments as Evidence: An Archive of the Architecture of Assimilation,” Journal of the Society for the Study of Architecture in Canada 41, no. 2 (January 2016): 3–10.
22 The centre was founded in 1979 under the original vision of Ojibway Chief Shingwaukonse (1773-1854) who imagined a cross-cultural educational project committed to Indigenous rights, self-determination, and modern community development.
“The Shingwauk Project | Shingwauk Residential School Center,” 2023.
23 The Algonquin Park Archive is dedicated to the education, interpretation, and conservation of Algonquin park and its heritage. The museum collection started in 1946 with a tent set up at Cache Lake that housed a small group of natural history specimens.
Four physical archives were the key sources for this work:
The collections of Library and Archives Canada (LAC) in Canada’s capital city contains a substantial collection of plans generated by the Department of Indian Affairs.”21 Magdelena Milosz (2016) analysed this archival collection of plans as the major piece of evidence of the ways in which the government used architecture as a significant tool to enact its racist policies by constructing entire built worlds.
Second, the Shingwauk Residential School Centre (SRSC) at Algoma University in Sault Ste. Marie, operating out of the transformed Shingwauk Hall.22 Their archives contain documents and photographs chronicling the experiences at residential schools, records of the Anglican Diocese of Algoma which ran the schools at Shingwauk, journals of E. F. Wilson, transcripts of interviews with former students, annual reports of the Department of Indian Affairs among many other collections.
Third, the Trent University Archives (T.U.A.) in Peterborough, Ontario holds the Ontario Camping Association (OCA) fonds, a Camping Book Collection, as well as multiple fonds/collections of many prominent individuals in the private camping sector. Materials include organisational records of the OCA, promotional materials (brochures, photographs, newsletters from member camps). The camping book collection is a valuable resource highlighting trends in educational mission, strategy, and pedagogy of the camping movement.
Finally, the Algonquin Park Archives (APPAC) is the repository for “artifacts of significance to the natural and cultural history of Algonquin Park” and is owned by the Ontario government, with substantial operating assistance from a registered Canadian charity.23 The Archives holds some historical information on commercial recreational leases of summer camps in the wilderness park.
Together these four archives, owned by different Canadian institutions (Algoma University, Trent University, and the Provincial and Federal Governments) contain a great deal of information documenting instrumental movements in the history of Canada. This includes the Residential School System, policies aimed at segregating and
assimilating Indigenous peoples, the camping movement, history of playing Indian, education at the core of Canadian national identity, and Wilderness Preservation movements. Still, these archives tell very little of the entire story. The Truth and Reconciliation Commission of Canada (TRC) was founded to document the stories and experiences of survivors and family members with Indian Residential Schools across the country. These accounts reveal the true, terrible nature of the IRS system. These include many accounts of emotional, physical, and sexual abuse on the children by individuals who were meant to be educators, and representatives of the church. These experiences, which those of us unaffected can never fully fathom, are not present in the institutionally held archives focused on in this thesis. Most of the documents presented in the following chapters are materials produced by the institutions themselves, in the interest of their own promotion. This exercise therefore is focused on what Settlers did and are doing. By combining the materials from these four archives, the aim is to re-narrate these histories in a way that holds Settlers accountable for our intergenerational actions in Indigenous cultural genocide.

24 Sam Jacoby, Drawing Architecture and the Urban, 1st ed. (Chichester, West Susses, UK: John Wiley & Sons, 2016).
Over four chapters, the thesis analyses the Indian Residential School and the Woodcraft Summer Camp.
Chapter 1 sets up the theoretical framework of the thesis: the relationship between education, territorial policies, cultural colonisation, and the “camp as a type” as the essential device that was used to achieve these goals.
Chapter 2 and 3 form the main body of the thesis. They each form a multi-scalar argument about the objectives and operations of the case studies, as read through their image, typological instrumentality, and strategy. Chapter 2 focuses on the Indian Residential School, Chapter 3 on the Woodcraft Summer Camp. Analytical re-drawings support the discussion in each through a typological analysis.24 Archival materials support the discussions on the image of the camps.
Finally, Chapter 4 reflects on the history through the present moment, making an argument for the typological transformation of the Summer Camp, demonstrated through a design exercise at Camp Ahmek. As a Settler, I think the summer camp is the appropriate place for my design response to the learning through this process.
For the TRC, truth purposely comes before reconciliation. The first three chapters of my thesis are intended to further efforts to uncover more truths, multiply the hi(stories) told about these institutions. The fourth chapter shifts focus to reconciliation, returning to the present to think about the future.
1.1 A Hike to Spanish Indian Residential School, 1927 and Theoretical Associations




25 Amanda Shore, “Towards a Pedagogy of Solidarity: Uprooting Traditions of Racial Plagiarism and Cultural Appropriation at Camp Ahmek” (Montreal, Quebec, Concordia University, 2020.
26 “Constellation,” Oxford Reference, accessed April 4, 2024, https://doi.org/10.1093/ oi/authority.20110803095633862
27 Gilles Deleuze, Félix Guattari, and Brian Massumi, A Thousand Plateaus: Capitalism and Schizophrenia, Athlone Contemporary European Thinkers (London New York: Continuum, 1988).
28 Thomas Nail, “What is an Assemblage?”, Project MUSE, 2017.
In 1927, a group of young White boys with a counsellor travelled from Camp Manitou on a hike for around three days to see the Residential School near Spanish, Ontario. (Fig. 14)
The details of the hike, and the boys’ reactions are described in Camp Manitou’s 1927 brochure, only two years after the camp opened. This event is used to introduce some of the theoretical work that was considered to support the arguments in the thesis. It is relevant to note here that no significant scholarship has proven a direct relationship between White Settler Summer Camps and Indian Residential Schools. In her thesis in 2020, Amanda Shore suggested that the correlating narratives of the two education systems indicates that Summer Camps benefitted from legislated Indigenous erasure.25 My thesis cannot claim to prove a direct relationship between the two education systems, though it makes headway in collecting, contrasting, codifying, and finally re-exhibiting the existing material culture, representations, and physical architectural evidence of the two systems. The theories referenced in this chapter provide additional lenses to frame a discussion about a conditional relationship between the two.
The event of the hike can be described as a constellation. Constellations allow us to perceive relations between objects or ideas. It is at once subjective and objective, giving individual ideas their autonomy without isolating them.26 This hike looks different depending on the readers perspective. Today, with an awareness of the true nature of the Residential Schools, this description seems shocking. But this event evidences a connection between what are commonly discussed as separate territories—or separate wildernesses. The wilderness in which the Summer Camp reigns, and the wilderness where Residential Schools are located—meaning far from home, unfamiliar territory. Their histories intersect. Not only operating in the same physical territory, but at this moment in time, between these programs there was a pedagogical and ideological alignment.
Presenting these constellations allows for a discussion on the camps on a shared plane of co-existing parts. This could also be imagined as a constructed geological layer defined by the state’s territory of influence.27 The concept of assemblage is useful to connect this network of different education systems. Assemblage theory offers a different way of thinking about the relations between parts and wholes. The assemblage constructs or lays out a set of relations between self-subsisting fragments—what Deleuze calls “singularities”.28 Deleuze and Guattari (2003) insist that “every assemblage is basically territorial ...

29 Gilles Deleuze and Felix Guattari, A Thousand Plateaus, 503-504.
30 Contact zones are most often trading posts or border cities where the movement of people collide. Ian Buchanan, “Contact Zone,” in A Dictionary of Critical Theory (Oxford University Press, 2010), https://www.oxfordreference. com/display/10.1093/ acref/9780199532919.001.0001/ acref-9780199532919-e-145
31 The concept occupied an important place in the colonialism of 19th century North America, factoring into Canada’s efforts to push west and north, settling the Prairie Provinces and the Arctic. The solution to the threat of American expansionism proved to be Canadian expansionism. Amanda Robinson, “Manifest Destiny,” in The Canadian Encyclopedia, December 19, 2019, https://www. thecanadianencyclopedia.ca/en/ article/manifest-destiny
[and] the territory makes the assemblage.”29 This thesis brings together two youth camps – the network of Residential Schools and the network of Summer Camps, as an assemblage of heterogeneous elements which share certain features: conditions (the settler colonial state), elements (spaces for eating, sleeping, learning social behaviours and rituals, and other skills as defined by the camp), and agents (policies dictating the operation of these camps). This concept is also translated into a method for structuring the thesis. Bringing the two camps under the same method of analysis—and then arranging them into a parallel dialogue in two consecutive chapters.
Mary Louise Pratt’s term “contact zone” offers another reading of the boys hike to the Residential School. From Imperial Eyes: Travel Writing and Transculturation (1992) originally describing social places (understood geographically) and spaces (understood ethnographically) where disparate cultures meet and try to come to terms with each other. It is relevant to post-colonial studies as a general term for places where White western travellers have encountered their cultural, ethnic, or racial other and been transformed by the experience.30 The scenario described in this brochure of a contact zone is entirely artificially staged and mediated. Demonstrating an instance about the image of these camps, where in traversing from their own Summer Camp to the school for Indigenous children—their “other”, stopping along the way to view beautiful landscapes, a particular understanding of the nation—and their place within it—is formed. The same ideologies that justified the systemic violence in the Indian Residential School System saw White people as the rightful heirs to these cultures that they understood to be dying out. For example, the idea of Manifest Destiny represented the idea that it was America’s right—its destiny—to expand across all of North America.31






32 Giorgio Agamben and Daniel Heller-Roazen, Homo Sacer: Sovereign Power and Bare Life (Stanford, CA: Stanford University Press, 2020). Discussed by Irit Katz in, ‘“The Common Camp”: Temporary Settlements as a Spatio-Political Instrument in Israel-Palestine’, The Journal of Architecture 22, no. 1 (2 January 2017): 54–103, https:// doi.org/10.1080/13602365.2016.1 276095
33 “Bare Life,” Oxford Reference, accessed February 27, 2024, https://doi.org/10.1093/ oi/authority.20110803095446660
34 Geoffrey Paul Carr, “’House of No Spirit’ : An Architectural History of the Indian Residential School in British Columbia” (Text, 2011), https://open.library.ubc.ca/ collections/24/items/1.0071770, 153.
35 Irit Katz, “‘The Common Camp’: Temporary Settlements as a Spatio-Political Instrument in Israel-Palestine,” The Journal of Architecture 22, no. 1 (January 2, 2017): 54–103, https://doi.org/10.1080/13602365 .2016.1276095
36 Charlie Hailey, Camps: A Guide to 21st-Century Space (Cambridge, Mass: MIT Press, 2009), 3-4.
37 Irit Katz discusses many varieties, including tent camps were erected by ‘pioneer’ Zionist settlers in remote frontier areas in what was then Palestine. Coincidentally, it was during the British rule of Palestine (19171948) that detention camps were constructed by British authorities to prevent illegal Jewish immigrants/refugees from entering the country. Irit Katz, The Common Camp: Architecture of Power and Resistance in IsraelPalestine (Minneapolis, MN: University of Minnesota Press, 2022).
The term camp is employed with a multiplicity of meaning and associations in this thesis. To clarify, I refer to both the Indian Residential School (IRS) and the Woodcraft Summer Camp as two typologies of the camp. The focus is on how the common form of the camp was explicitly and implicitly co-opted by the settler colonial agenda. Giorgio Agamben’s theory of sovereign power and the state/space of exception presented in Homo Sacer – Sovereign Power and Bare Life (1995) brought the idea of the camp to the frontline of academic research, as it places the camp at the centre of modern biopolitics together with the figure of the homo sacer (a person stripped of any human and political existence, banned from society).32 As it relates to the youth camp, the concept of bare life reduces the prospects of the life of a particular child to their biology and takes no interest in or account of the actual circumstances of their life.33 Geoffrey Carr (2011) extends Agamben’s thought into the study of colonial history and place to argue that the IRS should be considered within this field of spaces of exception.34
In the more recent theorisations on the camp, Irit Katz (2022) describes the camp as a spatial instrument emerging in the 19th century and since proliferating globally, “being created by and for different populations under the modern state order. Camps are used as a versatile instrument for the rearrangement of people in space, whether employed by national and colonial powers, both by authoritarian regimes and democracies, as instruments of control, or constructed ad hoc by displaced populations as makeshift spaces of refuge.”35 Katz’ designation of the common camp then describes two main distinctions: organised as instruments of control (top-down) or constructed as makeshift spaces of refuge (bottom-up). Charlie Hailey (2009) extends the categorisation of spatial forms of the camp to three categories: camps of autonomy (of choice), control (strategic camping areas regulated by systems of power), or necessity (of relief and assistance).36 While Katz book more clearly defines camps that could fall under Hailey’s categories of control or necessity, his third category of autonomy could be covered by Katz descriptions of camps of resistance or refuge.
The camp’s association with the colonial frontier was present all over the world in the early 20th century.37 In its forms studied in this thesis, the camp is related to the construction of the idea and spatial delineation of wilderness and is discussed as a core example of social engineering and landscape alteration instrumental to the colonial agenda of cultural colonisation and territorial expansion in Canada. I focus on two types of youth educational camps as architectural instruments used to manipulate both land and population in order to pursue political interests. Like the objective of Katz’ study, my research on

16-17 Description of Camp Ahmek’s property. From the 1927-28 season brochure. Algonquin Park Archives, I-3-1d.

38 The camp sensibility is described by Susan Sontag in “Notes on Camp”.
39 Charlie Hailey, Preface, Queer as Camp
40 Sontag, “Notes on Camp”, Note 43.
41 For more on the dark side of “Camp”, see Astrid M. Fellner, ‘Camping Indigeneity: The Queer Politics of Kent Monkman’, in The Dark Side of Camp Aesthetics (Routledge, 2017).
educational projects reveals a crucial aspect of the way the territory is still constructed and negotiated by the state, Settlers, and Indigenous peoples inhabiting it.
The thesis also utilises “Camp”, as an adjective, describing a sensibility associated with the exaggerated, and artificial.”38 Kenneth B. Kidd and Derritt Mason’s anthology Queer as Camp (2019) is dedicated to the “Camp” and Summer Camp relation. Of relevance to this thesis is the anthology’s framing of “camp” as a method utilised by the Summer Camp in its narration of the imaginary Indian. For example, the Summer Camp’s totem pole is not an authentic totem pole, but a “totem pole”— its owned by a White settler as a piece of art. It is not nature in which the Summer Camp is located but “nature”—it’s part of a highly organised and regulated category of wilderness, protected land, maintained for temporary leisure camping. Hailey (2019) also concedes that ““Camp” is method,” even though its method can be instrumentalized towards very different means.39 According to Susan Sontag, the method of “Camp” “introduces a new standard: artifice as an ideal, theatricality.”40 This irony speaks to the dark side of “Camp” in its use towards building nationalism.41
Pierre Bourdieu explores how the social order is reproduced, and inequality persists across generations through education and cultural reproduction. State mandated education, in particular, is engaged to promote a particular ideological agenda. Considering my own public-school education in Canada, “history” only starts with the colonial encounter. In a settler colonial context, the primary interest in education by the dominant power is for the cultural reproduction of the dominant order. In the present when formal education is the primary means by
which an individual can achieve economic and social success and the ability to participate in intellectual life, this motive of education is more implicit.
Education was distinctly defined as character building by school promotors who were involved in both the Indian Residential School System as well as in promoting public education for immigrant Settlers.42 For French and English Settlers for whom the integrity of the family structures were respected, education came as a second priority to reproductive, economic, and labour prosperity (which were also the key aspects of settling the land). Among non-white immigrant families, cultural values were less respected, and school promoters viewed the cultural reproduction of these groups as a threat to the social order and unity of White society. When compulsory school laws were first implemented for Canadians in 1871, though parents believed that public schooling would improve their children’s academic prospects, school promoters were more interested in character formation, shaping values, inculcation of political and social attitudes, and proper behaviour. This was the context in which education for Indigenous children—first through on-reserve Indian Day Schools followed by the Indian Residential School System was conceptualised. Meanwhile the summer camp and their “Indian programs” were interested in seeking a balm for the non-Native experience of modernity. Sharon Wall (2009) suggests that “it reflected a modern desire to create a sense of belonging, community, and spiritual experience by modelling anti-modern images of Aboriginal life.”43
Seeing the relation between education, cultural colonisation, territorial control and expansion, and the ‘camp as a type’ as the means to achieve these goals, I now shift to the architectural scale and describe how these camps are designed to operate.
42 Children of immigrant families were also targeted for assimilation. Chad Gaffield, “History of Education in Canada,” in The Canadian Encyclopedia, ed. Dominique Millette, July 15, 2013, https://www. thecanadianencyclopedia.ca/en/ article/history-of-education
43 Sharon Wall, The Nurture of Nature: Childhood, Antimodernism, and Ontario Summer Camps, 1920-55, Nature/ History/Society (Vancouver: UBC Press, 2009).


2.1 1:1 Propaganda of the Indian Residential School
2.2 1:20 Markers of Civilisation
2.3 1:100 Spaces for Alienation
2.4 1:500 Sites for Isolating
2.5 1:500,000 The IRS and Place Thought
44 Bryanne Young, “‘Killing the Indian in the Child’: Death, Cruelty, and SubjectFormation in the Canadian Indian Residential School System,” Mosaic: An Interdisciplinary Critical Journal 48, no. 4 (2015): 63–76.
45 Joshua Whitehead, “Finding We’Wha”: Indigenous Idylls in Queer Young Adult Literature,” in Queer as Camp: Essays on Summer, Style, and Sexuality, ed. Kenneth B. Kidd and Derritt Mason, First edition (New York: Fordham University Press, 2019), 227.
46 Thomas King describes the social and historical configurations of the Indian: “North American popular culture is littered with savage, noble, and dying Indians, while in real life we have Dead Indians, Live Indians, and Legal Indians.” Thomas King, The Inconvenient Indian: A Curious Account of Native People in North America (Minneapolis, Minn: Univ. of Minnesota Press, 2013), 53.
At both the Indian Residential School and the Woodcraft Summer Camp, it is not just the buildings and the landscapes which were conceived and territorialized. The subjectivities of children were designed as well—to fit the imperative of unifying a Canadian nation. Together, and separately, the subjects (Indigenous and Settler) had to become forest children. At the scale of the body (1:1), the design of the forest child is the ultimate operation of both institutions.
In the founding phrase of the Canadian Indian Residential Schools, to kill the Indian in the child, the body politic of the IRS was made explicit. Bryanne Young (2015) argues that the objective described by this mandate, conditioned by the principles of liberal political thought and infected by settler-colonialism, “created the conditions under which child residents of the school lived and died.”44
Joshua Whitehead (2019) writing about the Summer Camp, points out “there is something paradoxical at play in the desire to capitalize on Indigeneity as a transformative space for white adolescents to enter and emerge from as civilized adults”.45 The point they are both making, is that entering into the nation-state as a full-fledged and civilised adult requires the death of the Indian, both the real (at the Residential Schools) and the inherited fake Indian (through role play at the Summer Camp).46 These camps are biopolitical projects concerned with not only deciding the future subjectivities of children as part of the nation, but whether Indigenous children lived or died.
The architectures of each institution play an important role. In their simplest function, as residential camps they encompass spaces for eating, sleeping, and learning. None of these spaces were this simple. The adjacent analysis of architectural forms and representations of the institutions that follows reveals not only simultaneous processes of indoctrination of children, but the carrying out of biopolitical projects based on catastrophic ideologies. Without forming a complete history, the selected materials curate and constellate a collection of frictions and associations in the images, architectures, and strategies of these two educational programmes.
Warning:
The following chapter may contain distressing details. At least 150,000 First Nations, Inuit and Métis children were forced to attend the government-funded residential schools from the 19th century to 1996, when the last one closed. They lived in substandard conditions and endured sexual, physical, and emotional abuse. A 24-hour national Indian Residential School Crisis Line is available at 1-866-925-4419 to support former students and others affected by a residential school experience.
47 Public testimonial praising Shingwauk Indian Residential School’s mission, printed in E. F. Wilson’s Our Forest Children and what we want to do with them, 1890. The periodical (one of many forms of propaganda) was thought to “bring the reader into direct contact with the red race” and earnestly solicit contributions to the cause.
48 Brady, Miranda J., and Emily Hiltz. ‘The Archaeology of an Image: The Persistent Persuasion of Thomas Moore Keesick’s Residential School Photographs’. TOPIA: Canadian Journal of Cultural Studies 37 (April 2017).
I believe the principles which you apply for the purpose of elevating the Indians as a race, morally and socially, are certainly about the only ones that promise success, as all endeavours to influence grownup people, to tear them from their old-accustomed associations, are almost sure to fail.47
(Public Testimonial, Our Forest Children Periodical, 1890).
A return home from Indian Residential Schools was a false notion. The objective of the Canadian institutions, as it was clearly outlined in its founding mandate to kill the Indian in the child, was aggressive assimilation, in which a child’s identity was taken from them. When children did return home after sometimes years away, they would be left unable to communicate with their parents because they would speak different languages, they had trouble bonding haven forgotten or never learned collective traditions like fishing and hunting. Many were abused, and many died as we are reminded through testimonies of the TRC and the ongoing investigations to locate unmarked graves on the sites of former Residential School sites across the country.
The first translation of the mandate of the IRS, to kill the Indian in the child, was as propaganda. All kinds of staged photographs—children in ‘civilised’ clothing replacing ‘traditional’ dress, attending church services or learning useful trades reported to the Canadian public the honorary work of the schools.
The before-after photos of Thomas Moore Keesick (Fig. 23) have become some of the most iconic and prolific images signifying Canada’s dark legacy of Indian Residential Schools. Taken in 1890s and appearing in an 1896 Department of Indian Affairs Annual Report, the photos were meant to demonstrate Keesick’s successful assimilation through the Regina Indian Industrial School. In one reading, these images may not be just brute expressions of a powerful colonising influence but desperate attempts by insecure institutions seeking legitimacy.48 But photos of children used to promote the system were not always as easily distinguishable as propaganda.
A similar publication to Wilson’s 1890 Our Forest Children is a 1939 church publication for parishioners, a pamphlet celebrating its work in “Indian and Eskimo Residential Schools”. This pamphlet solicited public funding in the way of help if they would adopt an Indian boy or






49 Sharon Wall, “‘To Train a Wild Bird’: E.F. Wilson, Hegemony, and Native Industrial Education at the Shingwauk and Wawanosh Residential Schools, 1873-1893,” Left History: An Interdisciplinary Journal of Historical Inquiry and Debate 9, no. 1 (December 1, 2003), https://doi.org/10.25071/19139632.5619
50 Transcript from Archives of the Canadian Broadcasting Corporation, “How Residential Schools Were Sold to the Canadian Public”. CBC. 25 June 2018. https:// www.cbc.ca/archives/cbc-tvvisits-a-residential-schoolin-1955-1.4667021
51 Concept from: Linda Tuhiwai Smith, Decolonizing Methodologies: Research and Indigenous Peoples, Second edition (London: Zed, 2012). Discussed in: Chris T. Cornelius : My House Has Feathers (February 8, 2023)
girl in one of the Indian Boarding Schools. $30 per child was required, and contributors would be sent the name, age, school, and a photo of the child.49 This example speaks to the institution’s mis-reliance and fetishization of the Indigenous body to generate pity (or empathy) from the public.
In 1955, the Canadian Broadcasting Corporation (CBC) broadcasted an educational video about the purpose of the IRS:
Orphans, convalescents and those who live too deep in the bush for day school: these are the students of the Residential School in remote Moose Factory, Ontario. For ten months a year, these native children start each day with a religious service before heading to classes. A CBC Television crew visits the school to salute Education Week— and here, the education is all about how to integrate into mainstream Canadian society. Principal Eric Barrington dispenses first aid among his many other duties. He heads one of Canada’s 69 Indian Residential Schools scattered in key locations as far north as the Arctic Circle. They have a total of 11,000 pupils, orphans and convalescents. Those who live too far in the wilderness to get a daily school. They learn not only games and traditions such as the celebration of St. Valentine’s Day but the mastery of words which will open to them the whole range of the ordinary Canadian curriculum.50
Not only were Canadians encouraged to see the system of Residential Schools in a positive way, but these materials were spatialising the field of state-run education in the landscape. Linda Smith (2012) describes the spatial vocabulary of colonialism that can be applied to this example. In three terms: the line (map/survey/territory), the centre (orientation to system of power), and the outside (territory/ people in oppositional relation to the centre).51 Remote education as the IRS is described in the video’s voice over, was put in strong contrast to education in urban centres which was associated with progress and intellectual life.
These examples respond to the image of the IRS—how the mission of the institution was translated into something Canadians could understand, and even support—through the projection of the mission—to kill the Indian in the child—onto the bodies of children. At the larger scale, the mission is translated into an architecture.
Fig. 26-30 Stills from C. B. C. Archives, 1955. “Residential school in remote Moose Factory, ON”. Note that the first shot locates the school on a map of Canada.
Fig. 31 (page 56-57) Children dressed in Sunday clothes outside of Bishop Fauquier Memorial Chapel, n.d., 1949-1977. SRSC, 2013-077/008/012.







52 Davin, Report on Industrial Schools, 11.
53 “Missionary Work among the Ojebway Indians, by Edward Wilson (1886)”. Chapter XL. Our Indian Homes.
54 Agreement between His Majesty the King and Rt. Rev. D. J. Schollard, D. D. Bishop of the Diocese of Sault Ste. Marie regarding the Wikwemikong Industrial School. Department of Indian Affairs, 1911. SRSC Archives. “
In the following two statements, Nicholas Flood Davin and E. F. Wilson lay out “problems” they see with Indigenous children, singling them out as a threat to the nation, and at the same time suggesting actions the schools must perform.
In Nicholas Flood Davin’s 1879 report on “Industrial Schools for Indians and Half-Breeds” (The Davin Report), Davin boldly declares: “The Indian, I repeat, is not a child, and he is the last person that should be dealt with in a childish way. He requires firm, bold, kindly handling and boundless patience.”52
In Wilson’s Missionary Work among the Ojibway Indians (1886), he speculates on the likelihood of success of the mission of the Indian Homes (Residential Schools). He references camping out:
“Will their love for a wild life ever be eradicated? Perhaps not. Why should it? Our boys, all of them, thoroughly enjoy a “camp out,” such as we have sometimes in the summer, but scarcely one of them would wish to go back and spend his whole life in this manner. … We don’t wish to un-Indianize them altogether, we would not overcurb their free spirit; … Let them hand down their noble and good qualities to their children. But in the matter of procuring a livelihood let us, for their own good, induce them to lay aside the bow and fish-spear, and, in lieu thereof, put their hand to the plough, or make them wield the tool of the mechanic.”53
Boys were meant to be instructed in gardening, farming, care of stock, and industries related to local requirements. Girls were meant to have instruction on cooking, laundry work, needlework, general housewifery, and dairy work. In a 1911 agreement between the Crown and the management of Wawanosh, (the partner school to the boys’ Shingwauk) in consideration of compensation from the Crown, the agreement stressed that the branches of the education were intended to show the children the duties privileges of British citizenship, the fundamentals of the Canadian government, and “training them in such knowledge and appreciation of Canada as will inspire them with respect and affection for the country and its laws.”54
As these views were given a physical form, the purpose was to assert Settler presence and domination through the design of built environments and the reframing of the territory.

55 Indian Day Schools, like the Residential Schools were intended to assimilate Indigenous children by eradicating their cultural practices, languages, and traditions.
56 René R. Gadacz, “Longhouse,” in The Canadian Encyclopedia, September 30, 2007, https://www. thecanadianencyclopedia.ca/en/ article/longhouse
57 David Fortin and Brian Porter interview, “Property Division at Six Nations of the Grand River: A Conversation with Brian Porter”, Fortin & Blackwell, Delineating Nation State Capitalism, 142-155.
The Davin Report includes a few architectural diagrams that can be interpreted as an explanation of how the strategy should be implemented on multiple scales. The first of them a diagram of a single-story schoolhouse (Fig. 34-35). It was used for on-reserve Indian Day Schools, which preceded the off-reserve Residential Schools.55 The enclosure shown in the diagram incorporates a heating and ventilation system designed to work invisibly, out of view under the floor and within the walls of the classroom. Any views or connection to the exterior are minimal. This architecture is designed to alienate the children, to purposely run counter to what Indigenous children would be familiar with. In their own settlements, the heat source would be central, and gatherings organised around it. For example, communication in longhouse structures (Fig. 33)—the house type of northern Iroquoian-speaking peoples—follows a non-hierarchical social structure.56 Rather than sitting in classrooms for reading, writing, and arithmetic, education for Indigenous children could be based on storytelling.57



58 Geoffrey Carr’s PhD goes into depth on the troubling typologies of the Indian Residential School, and also surveys several conflicting opinions on the topic of commemorating the institutional remnants of this history. Geoffrey Paul Carr, “’House of No Spirit’ : An Architectural History of the Indian Residential School in British Columbia” (Text, 2011), https://open.library.ubc.ca/ collections/24/items/1.0071770
59 This was also a tactic to prevent future fires. The first Shingwauk Home was burnt down (possibly deliberately by students) shortly after it opened.
60 Carr avoids the term “school” as this label suggests not only kinship with a broad spectrum of institutions, but also implies a place of salubrity and self-improvement. Carr, “’House of No Spirit’ : An Architectural History of the Indian Residential School in British Columbia.”, ii.
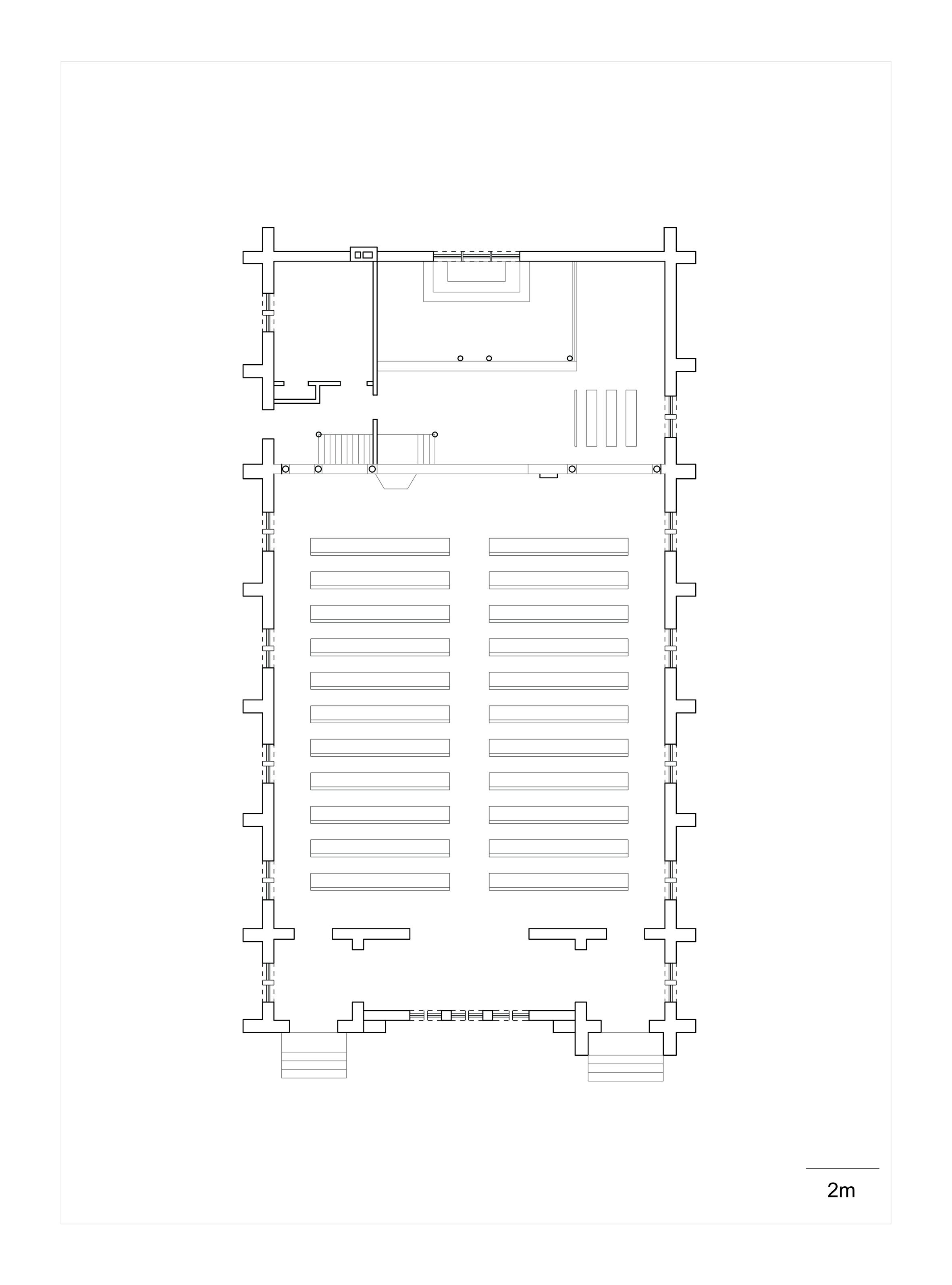
Also in Davin’s report is a parti diagram which distills the overall logic of the main hall. Without yet indicating any materiality or scale, it was in these initial sketches, likely inspired on Davin’s visit to American Indian Schools, that the Canadian IRS was given form. The diagram fits the programming of what would make up residential schooling into a crucifix plan. The three pillars of the education as defined in the diagram was a trades department in the left wing, school department in the right, and religious instruction at the top. A hallway connects each. These large structures would also contain dining rooms, classrooms, workshops, a chapel, and dormitories. Other functions were spread around the site in smaller purpose-built buildings. Any time outside these structures were heavily monitored and would usually be for farm work or other chores on the property. This massive structure represents the apex of civilised settler culture imposed on Indigenous life.58 Initially constructed in wood frame, the buildings were rebuilt of stone as to signal their permanence and indestructability.59 Geoffery Carr (2011) asserts that rather than schools, these structures represent coercive devices targeting colonised Indigenous subjects who were taught to no longer feel at home in their own societies.60


61 Carr defines two generations of schools for Indigenous children. The purpose of the first generation (day schools and industrial schools) was full assimilation into Euro-Canadian society and focused on training in occupations including homemaking for girls and trades and farming for boys. The second generation Indian Residential Schools built between 1910-1930s served a segregationist program. Carr, “House of No Spirit,”, 42.; Milosz, ‘Instruments as Evidence’.
62 These are just a few of the stories shared during the Woodland Cultural Centre’s Virtual Tour of the Mohawk Institute.
The Mohawk Institute’s second main hall (Fig. 46), standing from roughly 1879-1903 belonged to the first generation of schools for Indigenous children, designed to hasten full assimilation.61 These are followed by the Spanish IRS (built 1913, Fig. 50) and Shingwauk’s second main hall (built 1935, Fig. 54) which belong to the second generation of Indian schools.
Survivor testimonies relate specific parts of these structures to memories of harm. At the Mohawk Institute, the basement was a location of sexual abuse, noise disguised by the boiler room. The space under the staircase was used for solitary confinement. In other areas of the building, children found solidarity in each other’s company. In their playroom in the basement, children could secretly speak their own languages.62
The spaces shown in the following drawings are defined not to allow participation in White Settler society as equals, but rather to form a working class. Indigenous children are introduced to the machinery of Western civilisation to ultimately define them as savage. The children become Indians—as the identity is constructed in opposition to White civilised society.

Fig. 38 Old Holy Angels Residence Floor Plan drawn by Elsie Yanik, 2002. Student from 1938-1943. Algoma University Archives 2015-054/001/005/001.
Fig. 39 (right) Organisational Chart of the IRS.
British Consulate
Federal Gov.
Dept of Indian A airs
Provincial Gov.
maintenance sta physicians (exams, health, sanitation, hygiene, first aid)
kitchen sta cleaning sta
Oblates
Mennonites
Presbyterian Church
Anglican Church
United Church
Sisters of Saint Joseph Roman Catholic Church
Daughters of the Heart of Mary
ADMINISTRATION STAFF
SUPERINTENDENT OPERATIONS STANDARDS & POLICY FUNDING civilising removal of Indigenous people from lands
assimilation
“kill the Indian in the child” break familial bonds
EDUCATORS PROGRAMME LEADERS
CAMP OBJECTIVES CHILDREN
building a working class interrupt cultural transmission adjustment to Canadian Society christianising
religion home economics carpentry sewing farming organization / agency private church tax Society for the promotion of Christian Knowledge arithmetic english geography



Boys work. From top:
40
41
Fig. 42 Farming or building work on the grounds of Spanish IRS, 1925.


Girls work. From top:





5m Spanish Indian Industrial School




interior conditions.



63 Nickolas Flood Davin, Report on Industrial Schools for Indians and Half-Breeds, 1879, 12.
64 Fortin and Blackwell, “C\a\n\a\d\a Delineating Nation State Capitalism.”
65 Davin, 11.
66 Davin, 12.
67 Davin, 14-15.
68 Jennifer N. Harvey, “Landscapes of Conversion: The Evolution of the Residential School Sites at Wiikwemkoong and Spanish, Ontario” (Master of Arts in Humanities, Sudbury, Ontario, Canada, Laurentian University, 2019).
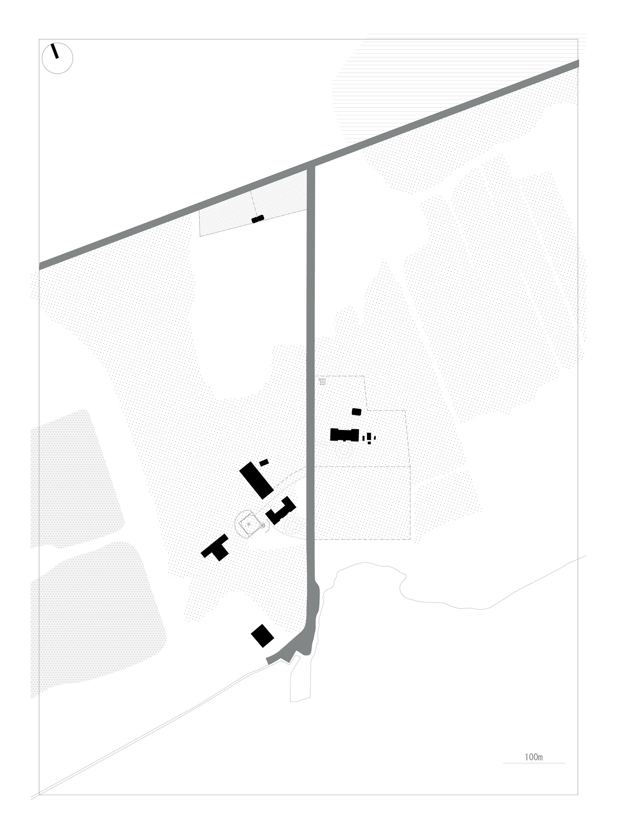
The properties of the Residential Schools often extended over a hundred acres. In the Davin Report, which included a rough sketch of the resources offered by a site (Fig. 58), Davin laid out his recommendations for site selection. Schooling was seen as imperative to the project of settling and keeping the children constantly “within the circle of civilized conditions”63. The IRS was a purposeful incision into the structure of the family, meant to disturb and reorganise Indigenous societies. Meanwhile through unfair and unjust treaties, Indigenous peoples were removed from large territories of “resource rich land” and onto small Reserves (as many have truthfully described as leftover land64).
Davin recommended that “the moment there exists a settlement which has any permanent character, then education in some form or another should be brought within reach of the children.”65 In his view, schools laid by missionaries scattered over the whole continent wherever Indigenous people exist were “monuments of religious zeal and heroic self-sacrifice”.66 For the establishment of new Industrial Schools, he recommended that schools be established on various sites near trading posts, natural resources, permanent settlements, and specific to different populations of Indigenous groups. The schools were to be of different denominations and levels of religiousness in order to demonstrate the fullness and variety of the European worldview.
67
The sites were clear cut, often fenced off, with the forests relegated to the boundaries of the property. Water was another natural barrier, further separating the schools from home communities. Jennifer Harvey (2019) describes that these greenspaces were on the fringes of the sites where children were not allowed to be. There was no access to land that was familiar to them. It was removed from the immediate surroundings by the demands for agriculture and surveillance.68
The architecture and its surrounding landscape function as an interface through which Indigenous children were re-taught to understand and relate to the land. The site organisation of the IRS followed the traditional urban thought of Christianity. In this tradition, urban movement was focused on two centres: the cathedral and the home. Most of the vocational skills taught at the schools were catered towards looking after the domestic home or homestead. Other weekly rituals centred on religious instruction at the chapel, usually on-site.
Fig. 57 Drawn Map of good location for a Residential School. Indian Affairs. (RG 10, Volume 3674, File 11,422) Public Archives Canada.







69 Written from Wilson to the Superintendent General of Indian Affairs regarding the education, civilization, and Christian training of the rising generation of "poor down trodden and yet intelligent people". Wilson had been inspecting some of the largest Institutions in the US, learning about their education plan and amount of state funding. Letter to the Superintendent General of Indian Affairs, Ottawa, from E. F. Wilson. SRSC Archives. Synod of the Diocese of Algoma Fonds, 2013-117/002/003, 27/01/1887.
70 Shingwauk’s Industrial era lasted 59 years (1875-1934). E. F. Wilson, Missionary Work among the Ojibway Indians, 1886, chapter XL
71 “Handbook for Boarding Parents”, Shingwauk Indian Residential School, n.d., likely 1954-64. SRSC.
72 Indigenous children were put in catalogues, newspapers, all part of effort to fracture families and communities and force assimilation, continue the genocide on indigenous people. From federally mandated Residential Schools to provincially controlled child welfare system. Many children went to families in the US or to Montreal, many worked on farms (as child labourers).

Wilson’s choice of location for Shingwauk followed Davin’s model. Sault Ste. Marie was at a crossing point of steamboat lines, soon to be near the site of railway lines, and visible to the public on a prominent spot on the river.69 90.5 acres of land was acquired for ‘Indian Education’.
During the industrial school era, the grounds witnessed many enterprises, industries, and programs. A working farm with livestock, dairy, a storehouse, barn, and stable, a hospital, the principal’s family residence, and a chapel with cemetery occupied the grounds. There were various other outbuildings where vocational skills such as carpentry, printing, tailoring, shoemaking, and weaving were taught. Towards the 1930s, the various trades and infrastructure that made up ‘industrial education’ were dismantled in favour of a new program of rudimentary formal education.70 In the 1940s and 1950s, Canada began to integrate the Indian Residential School system with the Public School system. These changes are reflected in materials produced by the Shingwauk School at the time. This “Handbook for Boarding Parents” (Fig. 64) was addressed to Canadian families who took in Indigenous pupils in Sault Ste. Marie so the children could attend the public schools.71 This preceded another damaging era for Indigenous Children through what is known as the 60s scoop.72
Fig. 64 Handbook for Students and Boarding Parents, Sault Ste. Marie. n.d. [likely 1954-1966] SRSC, Synod of the Diocese of Algoma Fonds, 2013117/002/005.



History: Inventory of Spanish Residential School Explored,” The Eastern Door (blog), June 27, 2016.
The Mohawk Institute was situated on 10 acres of land, surrounded by the Six Nations Indian Reserve No. 40. This land was returned to the reserve upon the closure of the IRS. The school also used made use of a 200-acre Manual Labour Farm, and the 220-acre Parsonage.
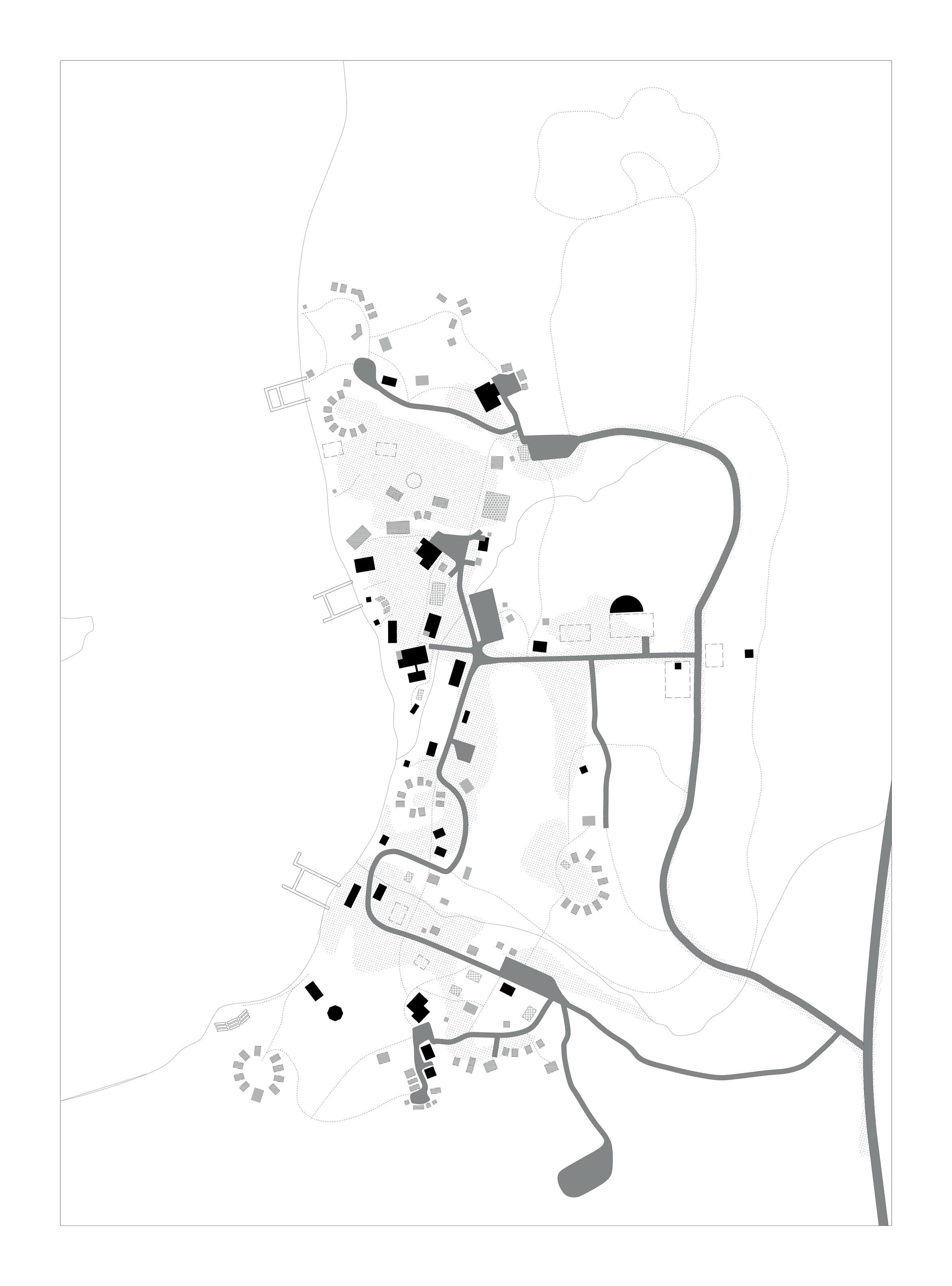
A sketch of the site plan of the Mohawk Institute (Fig. 68), scribed from memory by a survivor, shows to the extent of which the land was organised as a productive landscape. The drawing also marks the clear boundaries that were imposed onto the children’s freedom. Fences, roads, rail lines, and farmland that surround the main building on all sides.
The construction of the Indian Residential School at Spanish River again followed the same recommendations. This time, on the north shore of Lake Huron, half a mile south of the village of Spanish on the Canadian Pacific Railway branch line from Sudbury to Sault Ste. Marie on a 300-acre lot.
The main structures at Spanish were built of stone, with a full basement, containing dormitories, classrooms, dining rooms, a kitchen, laundry room, furnace room, and reception area. Barns, stables, a mill, and several annexed buildings used as storerooms were also used by the school (Fig. 71). The school produced eggs, chickens, beef, veal, potatoes, turnips, and carrots.73 73










2.5 1:500,000
74 Vanessa Watts, ‘Indigenous Place-Thought and Agency Amongst Humans and Non Humans (First Woman and Sky Woman Go On a European World Tour!)’, Decolonization: Indigeneity, Education & Society 2, no. 1 (4 May 2013), https://jps.library. utoronto.ca/index.php/des/ article/view/19145.
The sites of the Residential Schools were often described in terms of their availability of resources, and the positive changes of cultivation done to the land. This colonial view was also meant to set an example for how the children should relate to the land—as a site for extraction. Vanessa Watts discusses a problem with non-Indigenous ways of thinking about land and place, where we separate ontology and epistemology (the way of thinking about the land and the experience of being on the land). In Indigenous traditions, ontology and epistemology are inseparable. “Settler common sense”, weaves the way Settlers “think place” into every aspect of Canadian society.74




Fig. 74 Newspaper clipping from The Globe and Mail (1970) On one hand, Indigenous communities rallying for their rights to this site, and the need for Indigenous education led by Indigenous educators.
Fig. 75 On the other hand, the claiming of these buildings as important heritage by a local Architectural Conservation Advisory Committee. (The Sault Star (1979)).
Fig. 76 In reality, shortly after Shingwauk closed, the surrounding land was subdivided and consumed by the city as suburbs. SRSC.


3.1 1:500,000 Wilderness Nimbyism
3.2 1:500 Staging Utopia
3.3 1:100 Spaces for Collectivising
3.4 1:20 Markers of Wilderness
3.5 1:1 Becoming Leader
75 David Fortin and Adrian Blackwell, eds., ‘C\a\n\a\d\a Delineating Nation State Capitalism’, Scapegoat, no. 12–13 (2022).
76 J. Baird Callicott and Michael P. Nelson, The Great New Wilderness Debate (University of Georgia Press, 1998); Amanda Shore, “Towards a Pedagogy of Solidarity: Uprooting Traditions of Racial plagiarism and Cultural Appropriation at Camp Ahmek,” 1.
77 “Aldo Leopold (1887-1948) The Ethical Ecologist, , U.S. Fish and Wildlife Service,” accessed April 10, 2024, https://www.fws.gov/staffprofile/aldo-leopold-1887-1948ethical-ecologist
78 Tiffany Kaewen Dang discusses the example of the Stoney Nakoda people who were driven out of their territory onto an adjacent reserve for the development of a wilderness park. “Grids and Parks: Two Sides of an Extractive Worldview”, Tiffany Kaewen Dang, David Fortin and Adrian Blackwell, eds., “C\a\n\a\d\a Delineating Nation State Capitalism,” Scapegoat, no. 12–13 (2022). 62.
79 Ibid, 65.
80 Ibid, 67.
To uncover the spatial strategy of the Summer Camp, I begin at the territorial scale. The Summer Camp, rather than being primarily a biopolitical project, is a project of colonial expansion and settling. It is about placing Settlers in the landscape.
The lens of the wilderness movement in the late 19th century provides the entry point to the Summer Camp movement and the key to the colonial grammar of the settler state. It is a grammar projected onto the land in the form of mapping, land divisions and private property.75 The division of civilisation and wilderness was a key construction in this colonial grammar. The idea of wilderness refers to the Settler fantasy of untouched backwoods.76
Aldo Leopold (1887-1948) is widely considered to be the founder of wildlife management theory and his efforts helped open the field of environmental ethics.77 He promoted the combining of wilderness preservation with a more encompassing effort to foster substantial cultural change, promoting an ecological perception of the land, new aesthetic preferences linking beauty with wilderness, and a humbler understanding of the human place in the natural order—a society built on a durable scale of values. This value system was severely naïve, as the “preservation” of wilderness primarily through the creation of wilderness parks free from people corresponded with the dispossession and relocation of Indigenous people from these areas, as well as driving resource extraction industries.78 Since 1886, nearly fifty national parks have been established throughout Canada. Rather than the humble, ecological, and moderately scaled values behind the national parks movement that Leopold helped to promote, these land divisions are linked to a worldview that defines the contemporary global economy and are rooted in one principle: perpetual, unceasing, and infinite growth.79
The wilderness which the Summer Camp came to occupy was a different type of remote than where the Residential Schools were located. As Tiffany Kaewen Dang (2022) explains: “Under the political structure of settler-colonialism, the space of the metropole serves as the centre of settler society, where economic and state power are concentrated. All other regions act as resource hinterlands from which capital is extracted for the benefit of settler dominated metropoles; these spaces include national parks, as spaces of leisure and relaxation for tired urbanites, as well as resource extraction projects, which provide the raw materials needed to support urban life.”80 They also include the Summer Camp, where the Canadian Identity is extracted
Fig. 79 1976 advertisment in Toronto Life, Surveys and Mapping Branch of Energy, Mines, and Resources (federal agency). T.U.A.

81 Amanda Shore explains that “settler imaginaries took a primitivist turn. Idolizing a simpler life, which they equated with an idealized panIndigenous way of life.”Amanda Shore, “Towards a Pedagogy of Solidarity: Uprooting Traditions of Racial Plagiarism and Cultural Appropriation at Camp Ahmek” (Montreal, Quebec, Concordia University, 2020), 1.
82 Sharon Wall, “‘To Train a Wild Bird’: E.F. Wilson, Hegemony, and Native Industrial Education at the Shingwauk and Wawanosh Residential Schools, 1873-1893,” Left History: An Interdisciplinary Journal of Historical Inquiry and Debate 9, no. 1 (December 1, 2003), https://doi.org/10.25071/19139632.5619, 27.
83 James Morton Turner, “From Woodcraft to “Leave no Trace” consumerism in 20th century America”, The Wilderness Debate Rages On, … 140.
through appropriated rituals on stolen lands.
Behind the modern camping movement was an anxiety driven retreat from rapid modernization in the urban environment.81
The anti-modern tendencies of the wilderness movement and a nostalgia for the primitive were shared, ironically, by those running Indian Residential Schools. Sharon Wall (2003) discusses E. F. Wilson’s escape from England to North America:
The same young man who set out “to improve and civilized the Indians as a people” explained his own escape from England in terms of his desire for “a wild free life away from the restraints of civilization. The Algoma area—densely forested and largely untouched by technological advances of the day—in many ways presented him with the perfect opportunity to live out his antimodern fantasy. … Accompanying this rural idealization was a persistent cynicism regarding city life and technological change. On a visit to New York City in the 1880s, while praising the “excellent system” which lay behind the city’s growth, he also deplored the fact that “just as much noise as it is possible to make is made in New York.82
While Wilson put his ideas into action through Industrial schooling for Indigenous children, as we have seen, George Washington Sears, author of the first Woodcraft manual (1891), preached to a white audience—celebrating a working knowledge of nature, preoccupied with an independent masculine ideal rooted in the frontier, and having strong misgivings for the abundance of consumer goods available to the outdoors man.83

84 Ernest Thompson Seton, Manual of the Woodcraft Indians: The Fourteenth Birch-Bark Roll Containing Thier Constitution, Laws, and Deeds, and Much Additional Matter (Garden City, New York: Doubleday, Page & Company, 1915), 14.
85 Ernest Thompson Seton, Manual of the Woodcraft Indians: The Fourteenth Birch-Bark Roll Containing Thier Constitution, Laws, and Deeds, and Much Additional Matter (Garden City, New York: Doubleday, Page & Company, 1915), 21.
86 Mary Jane McCallum, “To Make Good Canadians: Girl Guiding in Indian Residential Schools” (Thesis, University of Winnipeg, 2002.
87 Bhabha 1994, referenced in Bruce Erickson, “‘fucking Close to Water’: Queering the Production of the Nation,” in Queer Ecologies: Sex, Nature, Politics, Desire (Bloomington, Ind.: Indiana University Press, 2010), 311.
Foundational camping manuals, such as Seton’s Manual of the Woodcraft Indians (1915), set out the principles of the Woodcraft Movement, founded 1902 announced as a “character-making movement with a blue-sky method, for all ages and both sexes.”84 Its nine principles are listed as recreation; outdoor life; self-rule; the campfire; woodcraft traditions; honours by standards; personal decoration for personal achievement; a heroic ideal; and picturesqueness in all things.85 Similarly, H. W. Gibson’s Camping for Boys (1913) covers topics including the purpose of camping, leadership, location and sanitation, organisation, administration and discipline, moral and religious life, the camp fire, hikes and overnight trips, nature study, educational activities, and more. The ideology behind the Guide and Scout philosophy of Lord Baden-Powell, the founder of the movement, was the scheme of building empire and the Canadian nation by fortifying its youth. This project was supported financially and ideologically by the Canadian state, churches, schools, and women’s clubs—which Mary Jane McCallum argues makes being a Girl Guide seem like a universal and natural part of growing up, and belonging as a Canadian citizen.86
The construction of nationalism, as Homi Bhabha (1994) reminds us, requires a narration of national identity that attempts to override the experience of the national citizens. The dissemination of nationalism occurs in the processes by which the gap between the ideal image of the nation and the performance of the nation in the lives of the subjects within it are negotiated.
87 The Settler Woodcraft Summer Camp, as a formalised type, landed on Turtle Island and evolved under the settler colonial agenda to fit the landscape and the needs of forming a national image to which settlers became attached.
The first wilderness camps were established in Ontario in 1900. In the next decade, there was much experimentation on the topic of ‘boys’ work’. Ernest Thompson Seton’s Woodcraft Indians was one of these experiments—which became widespread. Early camp founders would purchase 45–300-acre lakeshore properties just far enough out of the urban environment to set up more permanent camps. Though “civilised” railway stations and hotels were beginning to be built in the same areas, the camps as educational settings opted instead to cultivate a “primitive” appearance.
Fig. 81 Alice Marie Beard, The Camp Fire Girls Handbook, 1914.
Fig. 82 Ernest Thompson Seton, The Book of Woodcraft and Indian Lore, 1912. Fig. 83 H. W. Gibson, Camping for Boys, 1913.





88 The Dead Indian, Live Indian, and Legal Indian are three ideas described in detail in Thomas King, The Inconvenient Indian: A Curious Account of Native People in North America (Minneapolis, Minn: Univ. of Minnesota Press, 2013), Audiobook, Chapter 4, 0:49:30.
89 Susan Sontag, Notes on “Camp,” Penguin Modern 29 (London, UK: Penguin Books, 1964), 2.
At the scale of the site plan, the colonial operation of the Summer Camp was to remove the specificity of land and place as it is understood by Indigenous peoples. Settler possession of the properties of Summer Camps required clearing the land’s association to the Indigenous people who had inhabited it—giving the false impression that they had either given it up willingly or had either been killed off or assimilated.
Summer Camps, aided by various forms of government ideological support and a positive image in the minds of the public, were helped to secure exclusive access to coveted areas of land on the interconnected waterways and archipelago that were the livelihood of the Algonquin people. At the same time, Indigenous presence was being slowly removed from the same lands, By the 1930s the camp experience was being defined as the new authority on living in this “rugged” landscape. It didn’t seem to matter that behind their clever disguises, they were disingenuous and inauthentic—they only had the Fake Indian. 88
Illustrated maps of the Summer Camps were designed to reterritorialize the lands that had been occupied by Indigenous people for millennia. The new, revisionist representations were mechanisms for projecting utopian visions onto what was perceived as unused, empty, and sublime territory. Properties for the camps were chosen for being isolated, away from civilised places, as well as for their aesthetic potentials. As Susan Sontag suggests, “Camp” presents “one way of seeing the world as an aesthetic phenomenon”.89


The visual cues between Holbein’s woodcut of utopia and many summer camps’ site plans are striking. The reality of these camps existence on these lands is quite different than these depictions. Lands once inhabited were taken as posession, imposed with property divisions, and sold or rented to camps who project this false image.
86 Site Plan of Camp Keewaydin,
87
In 1938, Park and Recreation Structures by Albert H. Good, architectural consultant for the National Park Service, was published by the United States Department of the Interior. It was the first of larger, consolidated attempts to formalise and define the architecture within National Parks (including administration and basic service facilities, recreational and cultural facilities, and overnight and organised camp facilities) and used at Summer Camps under a common description and ordering. This was closely followed by the 1946 Layout, Building Designs, and Equipment for YMCA Camps developed by the National Camping Commission of the Association of Boys’ Work Secretaries and the Program Services Staff of the National Council. The YMCA manual described a site strategy and architectural planning and building system for an organised youth camp for 125 boys, demonstrating a camp layout on a generic site of 45 acres. These architectural manuals began to formalise and standardise what Summer Camps were already doing for 30 years at this point. The manuals put a language to these structures, defining it as a style.
The first large illustration in the YMCA manual (after a small perspective drawing of a log post gate (Fig. 88), marking the entrance to the privately owned wilderness property), is a site plan (Fig. 89). The problem is that the site on which that Summer Camp for 125 boys is organised is entirely fictional. Thinking back to The Davin Report’s recommendations for the selection of a site for setting up an Indian Residential School, it can be compared to the logic devised in this YMCA manual for choosing a site for a Summer Camp.
The site strategy can be discussed in relation to the following case studies. In each, access to the site is highly controlled through one or two roads. Children of different ages and genders sleep in small wood cabins or tents. Other activity specific structures and gathering spaces are scattered around the site. Supervision is well integrated and non-imposing. The largest building at each camp is the dining hall.










Founded 1918 and named after one of the original nations of the Haudenosaunee Confederacy. The camp respectfully acknowledges that they are on the traditional territory of the Michi
Fig. 92 Camp Onondaga maintains a line of sleeping tents along the water.








In 1912, while on a family







Sister camp to Camp Ahmek, located on an island on Canoe Lake.
Fig. 97 Camp Wapomeo Brochure n.d. (1942-45). T.U.A., Ebbs Papers, 80014_003_IF8
















Non-profit Christian camp founded 1946.
Fig. 102 Camp Mini Yo We, Youtube, “Camp Mini-Yo-We, A Legacy of Excellence”.
Fig. 103 Camp Mini-Yo-We Dining Hall with cut-out wood, painted totem poles. Still from “It Takes Two”, 1995.
90 1938-39—correspondence between the Ontario Camping Association (OCA) and the Provincial Planning and Development about the role of gov. in camping, requests for subsidies, securing the best land, purchasing equipment, and recruiting leading educators. Statement on Camping for Boys and Girls: the Department of Planning and Development of the Ontario Government. Trent University Archives. OCA. B-78006-25 (43). Folder 14 (Articles on Ontario Camps).
91 For more on Guides and Scouts at Indian Residential Schools, see Mary Jane McCallum, ‘To Make Good Canadians: Girl Guiding in Indian Residential Schools’ (Thesis, University of Winnipeg, 2002).
92 “Backwoods Varsity”, Varsity Graduate, May 1948. Trent University Archive, Ronald H. Perry Fonds, 82-016/003/006.
In the Summer Camps’ focus on aesthetic potential and their site exclusivity, the specificity of places are reduced to generic qualities to be reinjected with settler place markers. The camps are outpost emblems of a settler presence.
From my findings there was some initial government interest in the Summer Camp movement in the 1930s and during the Second World War. The OCA appealed to the Provincial Planning and Development Department for funding and help securing the most appropriate land for Summer Camps. During wartime, camping knowledge, especially woodcraft was seen by the Federal Government and by the Department of National Defence as important skills for the survival of the army and regular citizens alike. These skills were branded as characteristically Canadian, even though many of these skills were derived from Indigenous ways of life.90 Before this, within the field of camping there were efforts to consolidate efforts of manuals and educational resources and goals of youth wilderness camping.
In 1942, The Girl Guides of Canada were also active at the Shingwauk and Wawanosh IRS.91 In 1947, the Ontario Department of Education recognised the Summer Camp as a potent educational factor, its program elements supplementing the formal work of the school. In 1948, Canada’s “backwoods” became a classroom for Canadian youth. The University of Toronto developed a formal educational programme for training camp directors in “historic” skills which “now are almost forgotten”. This included how to get along among the forests and streams of the wilderness.92 By the 1960s, various institutions had developed to govern, standardise, or institutionalise the spread of skillsets, traditions, cultural practices, and crafts. The OCA developed new standards for camping and its programming. Accredited camps granted specialised types of diplomas and certifications.
Fig. 104 Diploma, Onondaga Camp, 1930s. Trent University Archives, B-78006/025/014 Folder Name: Articles on Ontario Camps.

93 Tuck and Yang (2012) describe how Settlers come with the intention of making a new home on the land, a homemaking that insists on Settler sovereignty over all things in their domain. Eve Tuck and K Wayne Yang, “Decolonization Is Not a Metaphor,” Decolonization: Indigeneity, Education, and Society 1, no. 1 (2012).
The architectural analysis of the Summer Camp and the IRS show the ways in which architecture is deployed as a measure of control. In the case of the Summer Camp, the architecture is clearly linked to the effort to define elements of Canadian national identity. This language is made clear in promotional materials and can then be read in the sub-types of particularly designed spaces. These materials describe how these institutions were conceptualised as a method for possessing territory. At the 1:100 scale, the buildings of the Summer Camp were functioning to collectivise settlers, help them to bond with the landscape, and ultimately emerge as civilised adults.
The promotion of both the IRS and Summer Camp movements assumed that White Settlers were the rightful heirs to the land and the ways of life tied to it. This provided the set-up of both missions: Indigenous children needed civilising and assimilating, and Settler youth needed character building, and indigenizing. Playing Indian served to strengthen the Settlers’ legitimacy in being on this land.93
YMCA, YWCA
Camp Director’s Assoc.
National Park Services
Canadian Camping Assoc.
National Health and Welfare
National Boys’ Work Board
Religious Education Council
Provincial Dept of Lands and Forests
Provincial Level Boys’ Work Boards
Ontario Camping Assoc.
kitchen sta cleaning sta maintenance sta physicians (exams, health, sanitation, hygiene, first aid)
ADMINISTRATION
DIRECTOR OPERATIONS STANDARDS & POLICY FUNDING
COUNSELLORS IN TRAINING
EDUCATORS
PROGRAMME LEADERS
INDIGENOUS EDUCATORS
CHILDREN
self reliance leadership training CAMP OBJECTIVES
character building
community strengthening respect for environment land-based skill buiding
health giving wholesome fun adjustment to Canadian Society
religious (YMCA) private (charities) organization/ agency tax tuitions (paid by families) navigation tripping arts & crafts music dramatics religion
swimming lifesaving water sport land sport woodcraft
94 Sharon Wall, The Nurture of Nature: Childhood, Antimodernism, and Ontario Summer Camps, 1920-55, Nature/ History/Society (Vancouver: UBC Press, 2009), 224.
95 Emma Battell Lowman and Adam J. Barker, Settler: Identity and Colonialism in 21st Century Canada (Winnipeg, Manitoba ; Black Point, Nova Scotia: Fernwood Publishing, 2015), 40.
96 Dating back to the Boston Tea Party in 1773. Philip Joseph Deloria, Playing Indian, Yale Historical Publications (New Haven: Yale University Press, 2022).
97 Slyck further discusses the summer camp’s conflation of the terms child, savage, and Indian. Abigail A. Van Slyck, A Manufactured Wilderness: Summer Camps and the Shaping
The Indian Council Ring and the learning diagram that it represents are perhaps the ultimate manifestations of the teaching model of the Summer Camp. In a circle, there are no outsiders, and there is no obvious hierarchy. Sharon Wall (2009) describes the rationale behind the physical layout of the council ring:
The area itself was treated as a semi-sacred space, and the rituals it facilitated were treated as quasi-religious. “The choice of a site for the Council Ring is important,” one handbook advised: “Select an area reasonably remote from any buildings. ... A flat space ... surrounded by trees will lend enchantment. Atmosphere is very important. ...
Find another site for the ordinary campfires and wiener roasts.” Without question, the backdrop of nature was deemed essential in creating the desired atmosphere. At Bolton, this was achieved by situating the ceremonies “in a most appropriate forest setting,” while, at Glen Bernard, Mary Edgar rejoiced in her discovery of “the glen, a perfect amphitheatre for a Council Ring.” To this way of thinking, trees became markers of the borders of intimacy, rocks became symbolic altars to be used by presiding chiefs, and the wide-open sky suggested the loftiness of the entire


As noted by Lowman and Barker (2015), “Almost everything we think about as being Canadian or associated with Canadian Identity is caught up in the process of building, expanding, or maintaining the invasive structures of Canada. … Appropriation in colonial contexts is the assertion that one has the right to take something, regardless of what the group being taken from might say, think, or feel.”95 Indigenous objects—clothing, technologies, vehicles shared by multiple nations with different meanings and used in traditions—are taken out of context and claimed by Canadians as part of a homogenising national culture.
Philip Deloria dates forms of “playing Indian” back to the 1773s.96 Later, Buffalo Bill Cody’s Wild West shows (1883-1906) and the stories they enacted contributed to the larger ideological project of naturalising the white conquest of North America. As Abigal Van Slyck suggests, they glorified Cody’s bravery while celebrating a government policy of genocide, and at the summer camp, they became seemingly naïve and pure—as enacted by a child.97
In a circle there are no outsiders and everyone has a voice. This is in strong opposition to the hierarchical classroom organisation. The other clear difference is the integration with the environment compared to the full separation between interior and exterior. Finally the fire is central to Seton’s council ring, whereas this commoning feature is removed from the
Sketch diagram of the campfire classroom diagram.
Sketch diagram of the Indian Day School classroom diagram.















98 Bruce Erickson, “‘fucking Close to Water’: Queering the Production of the Nation,” in Queer Ecologies: Sex, Nature, Politics, Desire (Bloomington, Ind.: Indiana University Press, 2010), 309–30.
Bruce Erickson (2010) examines the myth establishing canoeing under the banner of the nation as part of the biopolitical frame that relies upon both race and sexuality to establish a naturalised colonial nation-state. He analyses the claim of well-known Canadian author and broadcaster Pierre Berton (1920-2004) who once defined a Canadian as ‘someone who knows how to make love in a canoe’. The myth of the canoe in Canada celebrates an image of landscape as the justification for the establishment of the nation. Its ideology was based on the idea that “Canada existed in the land itself and it was up to European subjects, through the use of the canoe, an Indigenous cultural artifact made into a tool of colonization, to extract the nation from the landscape.”98
Finally, the canoe was claimed by national education schemes such as the Summer Camp to solidify the Settlers’ inheritance of this symbol. Canoeing is one of the key skills taught in Summer Camp. The camp’s seemingly innocent simple wood-frame canoe shed is yet another remnant of its colonial history.
What we should instead perhaps be remembering is another piece of the canoe’s history and symbolism. The Two Row Wampum Belt records the first non-paper agreement between Europeans and Indigenous peoples on Turtle Island. Considered a living treaty, its alternating rows of purple and white shell beads represent the two parties to the treaty moving forward together in parallel, but never merging, signifying respect for each other’s rights, leadership, government and ways of life. One row of purple represents a sailboat, and the other a canoe.






Fig. 123 Newspaper clipping: Celebration of Canada’s Centennial Anniversary by the retracing fur trade routes by private camps, Girl Guides, Boy Scouts, Sea Scouts, YMCA, YWCA, church camps and disabled camps. The Telegram, 1967.
Fig. 124 Newspaper clipping, Gerry Hall, 1967.
Fig. 125 (right) “Canoe Routes: Quetico Provincial Park.” Department of Lands and Forests. T.U.A. Camping Pamphlet Collection, 1-46.

99 Kent Monkman explores the symbolism of the Trading Post in his Iskonikan exhibition in Toronto (2023). A miniature trading post, functioning as a mobile gallery argues that treaty rights and Indigenous sovereignty should extend beyond the limits of the iskonikan Indian Reserve).
100 Camp Ahmek Brochure, n.d. Trent University Archives.
Trading posts were historically places where Indigenous people and Settlers across Turtle Island bought, sold, and traded furs and commodity items.99 Camp Ahmek’s Trading Post is a small wood frame building “fully equipped for outfitting ridding, sailing, and canoe outtrips. Each summer more than 150 trips adventure through the lakes and rivers and along the many miles of trails of Algonquin Park.”100 Attached to the roof is a totem pole. Totem poles, however, are sacred to Indigenous Nations of the Pacific coast and have no place in Algonquian cultures at all. Their presence at Camp Ahmek is a nod to the generic Indian.
At most wilderness summer camps, the canoe portage trip has been the ultimate test experience of all the skills developed at camp. At Ahmek, the ‘Trading Post’ structure ritualises the moment of departure of these trips. The docks at camp Ahmek are marked clearly today with signs that they are not public—they are private property to be used only by the camp. But from the perspective from within the camp, the dock is where campers pack their canoes with gear and set off into the surrounding wilderness on quests of self-discovery. For insiders, the edges of the camp look purposely blurred, giving children the impression that their freedom has no boundaries. Tree lines and the waters edge can be crossed with supervision—opposite to the cleared land and inaccessible forest and water to children at Residential Schools. For children at the top of the constructed colonial social hierarchy, territorial boundaries are designed to be permeable or fully invisible. They are meaningless.
Fig. 126 “Trading Post” (tripping shed and canoe launch), Camp Ahmek.



101 Kaewen Dang, ‘Grids and Parks: Two Sides of an Extractive Worldview’, 68.
102 The Log Theatre was built in 1927 through a gift from the Chrystler Corporation in Detroit, Michigan Liz Lundell, Fires of Friendship, 44.
103 Trent University Archives, B0007DZYKG): Plate 15 or 17
104 Liz Lundell, Fires of Friendship, 61.
Possessing Landscape: “The View” Building and Outdoors
Returning to the colonial grammar of the Summer Camp, consider ‘the view’ building typology. These buildings serve to construct and frame a landscape. Kaewen Dang’s (2022) discussion of settler territoriality supports the discussion.
“It is not enough to simply impose cardinal geometry on a territory, Settler territoriality must be generated through the ideological framing mechanism known as landscape— here understood as the field of theory and practice which interprets the world, reflecting a specific set of cultural values, ideological frameworks, and knowledge systems, read through representations of land—establishing colonial knowledge as a mode of territorial control.”101
Camp Ahmek’s log theatre is a prime example of the view typology, appearing as a fantastical child’s play castle (Fig. 130). As Liz Lundell notes, the structure was built almost directly on the water—its foundations spanning a stream facing the bay—the theatre was built of rough cut logs with the stage sitting between two towers (housing dressing rooms, storage, and staff accommodations) and framed Wigwam Bay as a natural backdrop to performances.102 Performances could happen in the round—the audience inside on bleacher seating for 500 persons or sitting in canoes on the water The flexible viewing area recreated Seton’s circular diagram again.
The design of the theatre was likely inspired the design of an Indigenous council house. The 1951 book of Camp Fire and Council Ring Programs have a similar form, without the central fire.103 Elements of the log theatre at Camp Ahmek were used by other camps, though a fully indoor space for a theatre was less common. The covered pavilion was a similar structure, with a focus on view framing. Camp Northway’s was used as a dining pavilion, likely built in the 1920s. Camp Manitou’s outdoor chapel was fitted with log benches, stone benches around the exterior, and a fireplace on the back partial wall. Camp Ahmek’s chapel-on-the-lake led non-denominational services for the children. They would sit on rocks facing the lake as they were led in singing.104
This architecture of the camp should be read as an interface through which Settler children are taught how to relate to the land. In the context of Indigenous cultural genocide at Residential Schools, the view structure appears quite literally to be giving Settler children the emptied landscape. However, the bonding over landscape encouraged by these buildings is limited to an appearance/aesthetics-based relationship. What remains absent in most cases is the deeper connection to land and place in Indigenous epistemologies.
Fig. 129 Outdoor Chapel. John A. Ledlie, ed., Layout, Building Designs, and Equipment for YMCA Camps (New York, NY: Association Press, 1946).
Fig. 130 (page 152-153) Performance at Camp Ahmek’s Log Theatre, 1920s. Camp Ahmek Online Archives.











The Summer Camp fits into the tradition of settler homemaking, making it necessarily about building a foundation for belonging.

The dining hall is the most prominent building on the sites of Summer Camps. It is within these celebratory wooden cathedrals, embellished with appropriated artwork and plaques celebrating the legacy of the camp, that the settler identity and belonging in the group is reaffirmed. Entrances usually front the water, and the kitchen is located at the back, with less visible access to produce brought from the city.
The large hall acted as an auditorium to address the collective at once.105 In pop culture, the camp dining hall is the setting of food fights—one more instance of ‘playing Indian’ allowed in the wild and not civilised home settings.






106 These instances of cultural appropriation must be read in the context of legislated banning of ceremonies, such as the potlach ban in 1884. Along with the outlawing of ceremonies, thousands of items, such as ceremonial regalia, were forcibly taken from Aboriginal peoples and sent to museums and private collectors throughout North America and Western Europe. This included totem poles. Much of this discriminatory legislation was not repealed until 1951, although the relocation and repatriation of stolen materials is ongoing. “Totem Poles,” accessed April 1, 2024, indigenousfoundations.arts.ubc. ca/totem_poles/
107 Anne Elizabeth Warner, ‘“To Grow in the Open Air and to Eat and Sleep with the Earth”: Cultivating Character at Private Ontario Youth Camps, 1920–1939’ (Ph.D., Canada -- Ontario, CA, The University of Western Ontario (Canada), 2010), proquest.com/docview/868675180/ abstract/731AA0B64F6E4C5BPQ/1 204.
At numerous summer camps not only across Ontario, totem-poles decorated the properties. They could be found in a clearing or quad, analogous to a flagpole, as a relief on top of a column, in a similar practice to renaissance architecture’s fake columns (non-structural) decorating façades. Some sit in the rafters inside the camp’s dining hall. Manitou’s totem is planted behind the entrance gate of the camp, made of a signature log post frame (Fig. 149). Some camp totems were entirely generic, others were prescribed symbolic meaning. These artifacts do not even originate from this region—they belong to First Nations of the Pacific Northwest.106

In 1925, Taylor Statten (1882-1956), the founder of Ahmek, gave a talk to the Camp Director’s Association at Columbia University. He spoke about the use of Indian symbols in the camp landscape, explaining that they marked the fact that the camp was distinct from a civilised At the architectural detail and construction assembly scale, Summer Camps developed a language to mark the wilderness. This cultivated ‘primitive’ appearance still marks the landscapes of Summer




5m

Fig. 152 Ernest Thompson Seton Centennial Library axonometric.
Fig. 153 Library interior. Camp Ahmek Online Archives.
Fig. 154 Totem Carving workbench. Camp Ahmek Online Archives.


108 From Abigail Van Slyck, Manufactured Wilderness, 104.
109 Joshua Whitehead, “Finding We’Wha”: Indigenous Idylls in Queer Young Adult Literature,” in Queer as Camp: Essays on Summer, Style, and Sexuality, ed. Kenneth B. Kidd and Derritt Mason, First edition (New York: Fordham University Press, 2019), 227.
In the Summer Camps’ promotional material, projecting their mission onto the bodies of children was common. In the central image, coming from Camp Mishawaka’s 1935 brochure (Fig. 157), before and after photographs show campers improvement in “muscular firmness, general posture, and mental attitude.”108
Role playing as the Indian furthers the dissociation between real Indigenous people whose lives were at stake and the Fake Indian being summoned in the constructed wild space of the Summer Camp. As Joshua Whitehead suggests, “camp places Indigeneity within quotation marks, marks its “Being-as-Playing-a-Role””.109
Looking in parallel at the methods deployed at the IRS against Indigenous children under the pretence of civilising, Christianising, and assimilating, any arguement of fostering an appreciation for Indigenous cultures at summer camps stand on faulty grounds. Instead, it was these “campy” rituals of cultural appropriation that continue to facilitate cultural theft, land dispossession, and the systemic oppression of Indigenous peoples.
Fig. 155-159 Mainly White children dressed in “Indian costume” at Summer Camps, participating in the Indian Council Ring tradition, or posed in before-after photos. All were meant to advertise the Summer Camp’s transformative potential.







4.1 Interactions with History at Former Residential School Sites
4.2 Preamble to the Design Problem: The Present State of Summer Camps
4.3 Design: Dismantling Colonial Architecture at Camp Ahmek
4.4 Design Limitations & Steps for Future Work
110 Statement from Elder and spiritual leader Tom Porter (Sakokweniónkwas) as reported in Interim ICMP Report: They Were Children, March 2024.
111 Informed by Indigenous epistemologies, McBain’s proposed interventions aim to reveal the true history, provide healing opportunities for Indigenous peoples while dually educating and subverting the settlers experience within territory. Catherine McBain, “De-Colonial Intersections of Conservation and Healing: The Indian Residential School System” (Master of Architecture, Ottawa, Ontario, Carleton University, 2021), 116.
112 Catherine McBain, “DeColonial Intersections of Conservation and Healing: The Indian Residential School System” (Master of Architecture, Ottawa, Ontario, Carleton University, 2021), 59.
113 Much of Shingwauk site was sold to Algoma University shortly after Shingwauk closed in 1970.
114 Professor Trina CooperBolam is an ongoing contributor to the exhibition. Her research focuses on ‘the museum as method’ and uncovers approaches, methods, and pedagogies for augmenting the affective force of history in the present.
Those children whose graves are not found yet are stuck there. Because it is tragic what happened to them. That’s why it’s important to find where they are. And then each Nation has to consult with their oldest Elders, the ones that still know the history and the original teachings of the Creator… to consult on how to handle that. … And that’s when our young will be free. And that’s when we can begin our work to make sure the next generations will never be lost again.110
(Tom Porter, Elder and Spiritual Leader, Statement to the International Commission on Missing Persons (ICMP), March 2024).
Investigations of unmarked gravesites at former Residential Schools continue and it will take many years for communities to consider how their children should be remembered. Catherine McBain (2021) researched the current state of IRS infrastructure in Canada. Of 145 school sites she surveyed, 123 have been demolished. The remaining 22 schools represent the last physical evidence of the Canada’s school-based colonial project to educate Indigenous children out of their traditional families, languages as well as their religious and cultural practices. McBain argues that the conservation of the system’s remaining infrastructure should be included in the TRC’s calls to action regarding their commemoration and recognition as part of Canada’s heritage as physical evidence of cultural genocide. 111
McBain identified 16 sites which include some sort of recognition of their histories, including monuments at Shingwauk and Spanish River.112 Today visitors to Algoma University (which occupies the original Shingwauk Hall) can participate in a Truth Walk where they learn about the history of the school, retracing survivor’s experiences around the site.113 Recalling the mediated contact zone between the Settler children’s nature hikes in the 1920s to see the residential school at Spanish, the Truth Walk is centred on correcting the narratives of these histories to facilitate truth and healing. In the tour I attended, the leader Chelsie Parayko passed on the stories of her family members and others who had attended Shingwauk. Included in the memorial and site transformation project she described, is the research and archival-oriented SRSC and the survivor-led exhibition in the main hall: Reclaiming Shingwauk Hall.114 The tour finishes with a “Fuck You” back towards the hall after exiting through the front doors, as a continuing practice of solidarity with the Indigenous children who weren’t allowed to use those doors freely.
The Spanish River Residential School closed in 1962. The ruins of one of the Jesuit residences and residential school dormitory has been partially reclaimed as a performance space.115 The Mohawk Institute has been restored as a testimonial artefact to educate visitors about the Residential School System and to provide opportunities for healing within the neighbouring Six Nations community.116
Other Indigenous spatial practitioners advocate on the power in speaking native languages on its land—languages that have been silenced for the last few hundred years.117 In 2020, Shingwauk Kinoomaage Gamig (SKG), an Indigenous-run postsecondary school teaching Anishinaabek language and culture moved into their new campus across the road from the retired Shingwauk designed by Brian Porter of Two Row Architect. Despite these few examples of site reclamation, there is no single ‘best practice’ or single opinion on heritage, or what is needed to support healing and create change.
115 Jennifer N. Harvey, “Landscapes of Conversion: The Evolution of the Residential School Sites at Wiikwemkoong and Spanish, Ontario” (Master of Arts in Humanities, Sudbury, Ontario, Canada, Laurentian University, 2019), 188.
116 Called the Woodland Cultural Centre, established in 1972 as a centre for the preservation, promotion, and strengthening of Indigenous language, culture, art, and history. Catherine McBain, “De-Colonial Intersections of Conservation and Healing: The Indian Residential School System” (Master of Architecture, Ottawa, Ontario, Carleton University, 2021), 61.
117 Chris T. Cornelius : My House Has Feathers (February 8, 2023), 2023, https://www. youtube.com/watch?v=768Os3oDgSs
118 Glen Bernard, “The Gold and Blue Glen Bernard Camp 86th [& 88th] Season Alumni Newsletter”, 2007. T.U.A., OCA Fonds Additions Brown Bag Program.
119 Camp Tanamakoon, in Algonquin Park worked with Christine Luckasavitch of Waaseyaa Consulting to teach the history of the camp’s name, to remove artworks that are works of cultural appropriation, and to explain the concerns with Seton’s council ring. Christine Luckasavitch, “A Necessary Movement: The Creation of Culturally Appropriate Summer Camp Traditions,” Pathways: The Ontario Journal of Outdoor Education Spring 2018, no. 30 (3) (n.d.): 13–15.
As Residential Schools and Summer Camps worked together to further colonial aims, reconciling both histories is important, and both sites should be the focus for decolonisation work. Commemoration, recognition, and healing at former Residential School sites are necessarily led by the Indigenous communities whose cultures were so disastrously impacted by them. As a design exercise to test the arguments developed in the thesis, a design response at the IRS would not be appropriate for me as a Settler given the focus of the thesis on the archives and the lack of appropriate means for consultation/collaboration. My design response is located in the Summer Camp—the component in the colonial attempt to educate Settler children into both their right to the land and to their love and mastery of the land. The Summer Camp remains a prevalent rite-of-passage in the construction of a Canadian national identity. For generations of Settler children, it was a formative part of their educations, a bonding experience marking their growth and personal development.
The camp as a spatial typology will continue to exist and evolve— and to this effect, my design response proposes a possible reorientation for the typology. There are a few Summer Camps that have taken initiatives to acknowledge and address their complicity in Canada’s colonial project, and there has been some work at an organisation level through the Ontario Camping Association. As Settlers we have a role to play in decolonisation. It is our responsibility first to re-educate ourselves and each other on the terrible legacy of the Residential School system and our participation in what happened there.
Many camps today retain their original mission to provide a caring experience, develop campers’ self-confidence, provide an environment to foster independence and group belonging. Increasing the diversity of the camp—to “have the camper population reflect the citizens of Canada”118 is a more recent focus of summer camps. But in terms of recognising their emeshment with colonial aims and taking the necessary steps to alter this path today, the summer camp and its traditions are tethered to the past, and doesn’t yet have a collective way forward. Regarding the harm of the camps’ Fake Indian, there are examples of individual camps working with Indigenous consultation to dismantle harmful traditions.119
Other recent efforts aim to rupture the narrative of White Settler dominance in outdoor education. Amanda Shore’s writing on camp culture highlights Indigenous canoeists, educators, and craftspeople who have worked at Camp Ahmek since its founding. These ‘bridge figures’ offered their traditions to the camp in times when Residential Schools and ceremonial bands sought to eradicate their traditions. With a focus on Camp Ahmek, but without their active participation
in her work, she proposed that complex traditions of racial plagiarism require equally complex, long-term approaches to decolonisation, directed by Indigenous educators. Shore argues that this fundamental Canadian social issue cannot be solved through minor, tokenizing interventions but requires a generational cultural shift to uproot these traditions. She has identified the camps’ use of a ‘fort pedagogy’, which can only be dismantled from within. In order to recast its relationship to difference, the camps educational structure must rely on solidarity and allyship.120
On an organisational level, the Ontario Camping Association claims that many camp professionals are engaged in the process of unlearning, reflection, seeking guidance, and re-evaluating their camp traditions.121
Some of the TRC’s 94 Calls to Action are about Indigenous healing and education. There are specific calls related to Indigenous Youth including the need for resources to provide safe spaces to learn their culture and language, and for land-based opportunities as integral to their well-being, emotionally and physically. 122 Land Back Camp, founded in 2020 is one such initiative for youth seeking safe space to be Indigenous and queer. 123 Land Back Camp, as well as other grassroots efforts to subvert, reclaim, and redefine the Summer Camp as an educational model hold immense value as a possible way forward.
120 Amanda Shore, “Towards a Pedagogy of Solidarity: Uprooting Traditions of Racial Plagiarism and Cultural Appropriation at Camp Ahmek” (Montreal, Quebec, Concordia University, 2020), https:// spectrum.library.concordia.ca/ id/eprint/986830/1/Shore_MA_ S2020.pdf
121 This includes recognising the hard truths that colonialism has deep roots in many camps across North America: In their original founding, camp programs have appropriated, homogenised, and stereotyped Indigenous cultures. ‘Land Acknowledgement « Ontario Camps Association’, accessed 16 April 2024, https:// ontariocampsassociation.ca/ about-landacknowledgement/
122 “A Roadmap to the Truth and Reconciliation Commission Call to Action #66 - Youth Research and Evaluation eXchange,” May 15, 2019, https://youthrex.com/ report/a-roadmap-to-the-truthand-reconciliation-commissioncall-to-action-66/, https:// youthrex.com/report/a-roadmapto-the-truth-and-reconciliationcommission-call-to-action-66/
123 The camp began as a small reclamation of space by Amy Smoke, Bangishimo and Terre Chartrand in Willow River Park in Kitchener, Ontario. After a three-year campaign Land Back Camp found permanent space in the Willow River Centre. “O:Se Kenhionhata:Tie (Land Back Camp),” Facebook, accessed April 13, 2024, https://www.facebook. com/osekenhionhatatie/
124 “LANDBACK Manifesto,” LANDBACK, accessed January 24, 2024, https://landback.org/ manifesto/
In the spatial dimension, other than the recommendation for the removal of works of cultural appropriation that cover camp properties, little has been proposed to alter this landscape and the organisation of the camp. To engage in further changes, I look to the concept of ‘Land Back’. Land Back is a decentralised movement calling for the reclamation of everything stolen from the original peoples, incorporating “land, language, ceremony, food, education, housing, healthcare, governance, medicine, and kinship”.124
The isolation in which the Summer Camp operates is facilitated by the colonial imposition of property, as well as the idea of ‘fort pedagogy’ as described by Amanda Shore. In addition to the TRC’s calls to action on the topic of education, the design proposal incorporates ‘Land Back’ as an additional call to action. As a design problem, the concept calls into question the isolation, or ‘fort pegagogy’ in which the summer camp now operates. Land Back requires the destabilising of this isolation. The thesis has engaged on the topic of boundaries— how physical markers including built (fences, totem poles, docks) or natural (waterlines, tree cover) create the camp’s state of exception. As an extension of the programmatic changes to the summer camp proposed by those discussed above, the following design exercises aim to challenge the extent of isolation in which the camp operates—both in relation to family oversight, and access to facilities and land by neighbouring communities. In addition, the proposals suggest potential ways of subverting the existing architecture of the summer camp—an undoing of the colonial operations of the camp. These proposals are meant as contributions to the discourse on colonial heritage. The proposal tests the possibilities and limitations of architecture in triggering ideological, operational, and organisational changes to the typology of the Summer Camp.

125 There are nine commercial leases in the Park. These private-sector enterprises include three lodges (Arowhon Pines, Barlett Lodge, Killarney Lodge)and six youth camps (Camp Tamakwa, Camp Ahmek and Camp Wapomeo, Camp Arowhon, Camp Pathfinder, Camp Tanamakoon, and Camp Northway and Camp Wendigo). Friends of Algonquin Park. “Cottage and Commercial Leases”.
126 Some current architectural ‘Land Back’ proposals work within the framework of property, slowly increasing Indigenous sovereignty through purchasing back plots of land. Other proposals focus on alternative models, including community land trusts.
127 David Fortin and Adrian Blackwell, eds., ‘C\a\n\a\d\a Delineating Nation State Capitalism’, Scapegoat, no. 12–13 (2022).
In order to reorient the ‘transformative potential’ of the camp diagram onto supporting healing for Indigenous communities, my design addresses truth and reconciliation relations between Settler and Indigenous peoples. A design intervention focused on Camp Ahmek aims to provides a place for meaningful land acknowledgements and creates spaces for the revival of education on Indigenous cultural practices (without reinscribing the camp’s historical Fake Indian practice), while simultaneously educating Settlers on the harm it causes.
Camp Ahmek as well as five other camps are situated in Algonquin Provincial Park are on leased land with leases set to expire in 2064.125 I test a proposal for some first steps towards the repurposing and adapting of this property and its built forms into a camp for Indigenous Youth—giving them a safe space they seek for healing and learning and for connecting to the land. The proposal for land back has some grounding. A large area stretching from Ottawa and including most of Algonquin Park is under ongoing land claim negotiations between the Algonquin Nations and the Canadian government. Upon the expiry of Camp Ahmek’s lease in 2064, its land and resources could be legally transferred to the local Algonquin First Nations.126
The proposals in my design focus on the shorter-term process to prepare for a possible future land transfer. They are also designed to address the automatic Settler response to Land Back: feelings of worry, fear, impossibility. But what if settlers were able to change their mindset about land back to be something that could benefit all of us? “Decolonization” as Fortin & Blackwell state, “multiplies our relationship to land”.127 If our Settler heritage on this land become in a sense more portable, the story of this heritage could change. Land Back is an opportunity to redefine a new relationship to territory—without our inherited systems of property and ownership. In support of this potential future, informed by Indigenous design principles as well as my own learning about Residential School experiences and my personal experience of the constructed wilderness of the Summer Camp, the organisation of the camp, symbols around the site, and relation to the land is transformed architecturally and site-wide.
163 Visualisation of reassembled design: “Skyviewing Place”, Algonquin Territory. Disassembled and reused fragment of Camp Ahmek’s Dining Hall as a public camping shelter. Spotted at night.


1 Hearth removed to allow extention to be added in future 2 Removed dormer windows introduces oblique lighting and additional entryways to the interior
3-5 Reclaimed library, trading post, and council ring as parasitic addons to the hall
One part of the transformation leading to Land Back remains situated—the meeting place. Focusing on the dining hall as the central point of the camp-site, I propose that the structure is partly disassembled, and the functions reordered.
The formality of the dining hall is disturbed through the introduction of a second axis. Instead of the kitchen hidden at back, and the dining hall fronting the water, a hearth is added to the middle, and food preparation is moved to one side of the original axis. Additional entrances are created through the removal of portions of the structure. Through the distortion of the structure and parasitic add-ons, the building and wider camp-site can play host to multiple groups at once. Rather than the dining hall continuing to define a single collective, the reorganised hall could accommodate both intended and incidental participants in its programming, inviting different types of members to use these shelters and facilities.
165
186-187)
Fig. 166 (page 188-189) Reconfigured structure.




The removed pieces of the structure take on another life abstracted from the site. Disassembled and portaged through the landscape, the fragments resist a hegemonic narrative of the camp and its structures of settler possession. Reconfigured across Algonquin territory in the area currently defined as a provincial park as collective equipment, the native materials of these structures of colonial domination can begin to be reconciled. Here the canoe (an Indigenous cultural artefact turned into a tool for colonisation and the core of camp pedagogy as a symbol of ‘Canadian’ identity) becomes a carrier for returning land that has been colonised by the camp.
The camps’ existence on Indigenous land should be approached in a fundamentally different way. If we were to redesign the dining hall as a site of encounter between types of participants—both intended and incidental, the original design function of the building changes and potentially reorients the camp-site from this new centre. The design introduces levels of control or mediation to the camp site, disturbing the formal and sacred ritual of entering camp-space.



128 Beery and Jonsson (2017) suggest that place attachment is enhanced by building a connection with the biosphere. Perception of place can change due to the amount of time spent there and the knowledge gained in direct relation to one’s setting.
Partly undone buildings back on the site of Camp Ahmek are left to be re-territorialized by future participants. The front gate of the camp is subsumed into a wider entrance with parking and new paths to the waterfront, suggesting more flexible participation and use. This would offer access to resources and built spaces (including accommodation, shelters, cooking and eating facilities) to groups that don’t own their own space. For reinstituting the ability of Indigenous peoples to bond with the land, situated education remains quite instrumental. 128


129 Andrew Herscher, “Designs on the Land: ”Decolonization“ and the History of Architecture to Come,” https://foraontheurban.net/, For A-on the Urban (blog), November 9, 2021, https://fora-ontheurban.net/ contributions/designs-on-theland-decolonisation-and-thehistory-of-architecture-to-comeandrew-herscher
The proposal is intended as a response to a real need for land and resources for Indigenous communities to practice and teach their culture on the land. It allows Indigenous culture to be experienced as living while simultaneously historicising our own settler history. The proposal is as much designed as a critique to the project of the archive than of what the archives hold in time. Relocated fragments and facades reinforces the idea that they exist in a fabricated wilderness (these buildings are not actually rooted on the land but as with residential schools, they are imposed on top of it). Relocating parts of these structures across what is now Algonquin Park would also increase the visibility and assist in the uncovering the truth in support of reconciliation, as these structures no longer serve their same function on privately leased land. They instead become visible and publicly recognised history.
Although inspired by Land Back, many of the design gestures fail to push past the symbolic level of intervention. There is nothing in this proposal as it is, that confirms that a change in ownership, management, or organisation has occurred. Instead it offers a potential way towards addressing Settler responsibilities towards reconciliation. My proposal is in keeping with other—not always successful—decolonisation practices being adopted by Settler institutions, just as government offices and universities. One of the most contentious is the “Land Acknowledgement” now preceding formal events. Though typically acknowledging the traditional Indigenous territories on which the institution is located, and the treaties governing the land, Land Acknowledgements are often critiqued as superficial and for not going far enough to disrupt the system.
I recognise that there are contradictions within my proposal and in this post-design reflection, I address the limitations of my project, and suggest other steps that could be taken within and beyond the practice of architecture to further trigger ideological, operational, and organisational change within the Summer Camp. I also speculate on how collaboration could begin to enter this process, and how the ideas introduced in the Land Back movement could be forwarded in further work.
Architectural context constitutes one of the contradictions. As Andrew Herscher (2011) notes, in the United States [and other settler colonial nations] architecture has had a long and continuing enmeshment with colonialism. He notes that this enmeshment is not only in the physical location of architecture on property derived from seized Indigenous land, but includes also the materials in the buildings, their financing, the design of architecture on the basis of a disciplinary expertise that separates people from the land, the discussion of architecture using a language that naturalises de-territorialized relationships to land, and the interpretation, valuation, and historicization of architecture that devalues knowledge held in relation to the land.129
All too well I realise how difficult it is to navigate the decolonisation of the Settler Summer Camp. An earlier design iteration proposed to move the removed pieces of the dining hall to the Algonquin Park Archives where they could serve to educate settlers on harm of the Summer Camp’s Fake Indian. It was meant to appropriate the European museum preservation practice of cultural artifacts. It was, after reading more about the Algonquin Park Archives, which—following the same tradition—contains taxidermized animal species from around the Park, pressed leaves and flower samples, were set alongside nativity resembling scenes meant to depict the Algonquin peoples and the way that they camped in these lands. Geoffrey Carr (2011) critiques and identifies the cluster of issues that trouble attempts to recognise and preserve what is designated as “difficult heritage”, in particular, as it relates to former sites of the Residential Schools. He breaks down the idea of heritage itself as a socially constructed, non-native practice. This work complicates my proposal for the re-use of artefacts of the Summer Camp. My designs should not be read as prescriptive or final proposals. They are meant to initiate a conversation about the physical and legal futures of these sites. The failure of the designs to trigger change perhaps demonstrates how the work is still entrenched in the working of settler colonialism. Despite working through the horrors of colonial history I nevertheless made the initial renderings (Fig. 163)—without even realising I was replicating the objectification/aestheticization of the land. I too recognise that decolonisation is a work-in-progress. I am working towards restoring the historical record of the harm caused by colonial expansion. The land itself remains, as Mary Louise Pratt says, the contact zone of contested space.130
130 Ian Buchanan, ‘Contact Zone’, in A Dictionary of Critical Theory (Oxford University Press, 2010), https://www.oxfordreference. com/display/10.1093/ acref/9780199532919.001.0001/ acref-9780199532919-e-145
Conclusion
Sources for Analytical Redrawing
Consulted Archival Material
List of Figures
Bibliography
The narrative arc of the thesis traces the ways in which the two educational institutions (Indian Residential Schools and Summer Camps) secure colonial dominance. By revisiting the camps’ image, their typological appropriations, and strategy in parallel, I attempt to counter settler moves to innocence. I speculate on spatial practices for returning the land that has been colonised through design by initiating a conversation on an alternative future for the Summer Camp.
These two distinct typologies differ from the commonly discussed nature of the camp as an ever-temporary space. In the settler colonial context, the camp as an educational instrument for different populations have been strongly positioned as permanent fixtures on the landscape. They are emblems of a settler presence. Recognising the artificial or “Camp” in these camps, allows us to reclaim this spatial form as a method for cultural survivance. My work begins to interrogate the origin and proliferation of symbols, systems of construction, architectural instruments, and territorial occupations that describe an assemblage of the instrumental landscapes of colonial Canada (Fig. 171).
The thesis has proposed a way of reexamining national education projects and reconceptualising the meaning of their co-existence. The theoretical framework of the camp as a common spatial instrument for the control of singled out minorities highlights the ways in which the IRS and the Summer Camp operated in parallel. My thesis also serves as reminder of something not talked about nearly enough: that Indigenous dispossession goes hand in hand with Settler possession. That an outward turn to support decolonial work begins first with a very deep and dedicated inward turn.
On the propositional level, Land Back becomes an essential framework to structure our thinking as designers. There is still more research on strategies for adopting land back and imagining systems of living that move away from the colonial idea of property. Equally, without consultation and partnership with Indigenous designers and communities, or architectural education that teaches a multiplicity of relationships to land, design proposals can fail to do enough, or fall into relying on the same aesthetics of landscape that contributed to the colonial instrumentality of wilderness. As part of coming to the truths, to multiple truths, rather than the calculated, collective amnesia, what we need is a strategic remembering.

Organized by Case Study
Summer Camps
Camp Manitou
• Site plan and buildings redrawn from data collected at SRSC Archives, Diocese of Algoma Camp Manitou (Whitefish Falls, ON) Fonds.
• Outdoor Chapel redrawn and modelled based on photographs.
• Canoe Shed redrawn from construction drawings sketched on A4 papers.
Camp Mini-Yo-We, Camp Onondaga
• site plans redrawn from published site plan.
Glen Bernard Camp (For Girls)
• site plans redrawn from published site plan.
Camp Ahmek and Wapomeo
• site plan redrawn from published site plan.
• Log Theatre redrawn from original blueprints held at the Algonquin Park Archives.
• Dining Hall redrawn and modelled entirely from photos sourced from the Taylor Statten Camps Online Archives, T.U.A., and Algonquin Park Archives.
• Ernest Thompson Seton Library redrawn and modelled from photos sourced from the Taylor Statten Camps Online Archive & camp brochures, T.U.A..
• Indian Council Ring & Totem poles redrawn from photographs and W. J. Eastaugh, “Indian Council Ring” manual, 1956, Taylor Statten Camps. Camping Pamphlet Collection, Box 68-88, C74, T.U.A..
Residential Schools
Mohawk Institute
• Site Plan redrawn from Magdalena Milosz, “Comparative (Post) Colonialisms: Residential School Architectures in Canada, USA, Australia, and New Zealand,” Quotation, Sahanz 2017, July 7, 2017, 16.
• Building Plans redrawn from Anglican Church of Canada Archives
• Building Elevation redrawn from photograph, a051882-v8, 1884, Collection 1974-001 NPC, Item ID 3309647. Library Archives Canada.
Shingwauk IRS
• Site plan and buildings redrawn from data collected at SRSC Archives.
• Shingwauk Hospital redrawn from photographs of exterior and partial floor plan in E. F. Wilson’s journal.
Spanish IRS
• redrawn from aerial photos, Google Maps (building still standing, roof demolished).
• demolished buildings on site plan locations and size approximated from historical photographs of the site and labelled photo by Jennifer N. Harvey, “Landscapes of Conversion: The Evolution of the Residential School Sites at Wiikwemkoong and Spanish, Ontario” (Master of Arts in Humanities, Sudbury, Ontario, Canada, Laurentian University, 2019).
Trent University Archives, Trent University, Peterborough ON
• Camping Book Collection
• Camping Pamphlet Collection
• OCA Fonds, 72-007
• OCA Fonds Additions, 98-019
• OCA Brown Bag Program 72-007
• Pauline Johnson Fonds, 89-013
• Ronald H. Perry Fonds, 82-016, Box 1-3
Shingwauk Residential School Centre Archives, Algoma University, Sault Ste. Marie ON
• Diocese of Algoma Camp Manitou (Whitefish Falls, ON) Fonds, Box 1, 12
• Diocese of Algoma Residential School Fonds, Box 1
• Diocesan Heritage Centre Photograph Collection, Box 8
• Grey Nuns of Montreal Collection, Box 1, 2
• Jesuits in English Canada collection, administrative record series, Box 2, 6
• Physical Plant department fonds, Box 2
• Office of the President, Box 12
• Synod of the Diocese of Algoma Fonds, Box 2
• Children of Shingwauk Alumni Association, Box 10
Algonquin Park Archives
Historical records on Camp Ahmek and Canoe Lake
Library Archives Canada
• Indian Residential School Records
• Maps and plans of residential schools
• Canada Land Survey Records
• Engineering and Architecture Branch Indian reserves throughout Canada
Fig. 1 By author.
Fig. 2 By author.
Fig. 3 Residential School victims memorial at Vancouver Art Gallery by Tamara Bell, May 2021. Photo by Ben Nelms for CBC.
Fig. 4 Illustration depicting Indigenous children labouring the fields in front of Shingwauk Home, in contrast with the “primitive ways” surrounding the central image. By Rev. E. F. Wilson in Wilson, Our Forest Children and what we want to do with them, 1890.
Fig. 5 Ernest Thompson Seton and Woodcraft Indians conducting a council and war dance at Wyndygoul, Cos Cob, Connecticut, 1908.
Fig. 6 Children praying from their beds at an Indian Residential School, footage used in Michelle Latimer’s The Inconvenient Indian, 2020.
Fig. 7 Chapel Service in ‘the glen’ oudoor chapel at Camp Glen Bernard. n.d.‘Virtual Tour | Glen Bernard Camp’, accessed 18 April 2024, https://gbcamp.com/virtual-tour/.
Fig. 8 Map of Summer Camps and Residential Schools across Ontario, By author. Survey of Residential Schools from Orlandini, (2019) “Residential Schools Locations”. Survey of Summer Camps compiled by author.
Fig. 9 Location of Archives. Google Earth.
Fig. 10 Excerpts from Camp Manitou’s 1927 Brochure. SRSC, Diocese of Algoma Camp Manitou (Whitefish Falls, Ont.) Fonds, 2018-041/001/001.
Fig. 11 Ibid.
Fig. 12 Ibid.
Fig. 13 Ibid.
Fig. 14 Ibid.
Fig. 15 Map of case studies on a shared plane. Drawn by author. Reserve and Wilderness Park boundaries compiled from Government of Canada; Crown-Indigenous Relations and Northern Affairs Canada. ‘Indigenous Peoples and Lands’, geospatial material, 19 November 2020, https://www.rcaanccirnac.gc.ca/eng/1605796533652/1605796625692.
Fig. 16 Description of Camp Ahmek’s property. From the summer camp’s 1927-28 season brochure. Algonquin Park Archives, I-3-1d.
Fig. 17 Ibid.
Fig. 18 Hospital at Shingwauk Indian Industrial School. Possibly designed by Rev. E. F. Wilson. 1886. SRSC, Edward F. Wilson Fonds, 2011-16_001_033.
Fig. 19 First Aid at Camp Mini-Yo-We, n.d.Youtube: “Camp Mini-Yo-We, A Legacy of Excellence”.
Fig. 20 Children at Shingwauk. SRSC.
Fig. 21 Confirmation group at the Mohawk chapel, 1918. Canada. Dept. of Interior, Library and Archives Canada, PA043609.
Fig. 22 Cub pack - St. Cyprians School Brocket Fonds 008 Missionary Society for the Church of England in Canada. Anglican Church Archive of Canada CanP75-103-S7-156.
Fig. 23 Thomas Moore Keesick, from Muscowpetung Saulteaux First Nation. First published in the 1897 the Department of Indian Affairs annual report for the year 1896. (Library and Archives Canada/Annual report of the Department of Indian Affairs 1896/OCLC 1771148).
Fig. 24 Girls in front of Bishop Fauquier Chapel, Shingwauk. SRSC.
Fig. 25 1926 Missonary Soceity for the Church of England in Canada. Anglican Church Archive of Canada fonds P7538904.
Fig. 26 Stills from C. B. C. Archives, 1955. “Residential school in remote Moose Factory, Ont.”
Fig. 27 Ibid.
Fig. 28 Ibid.
Fig. 29 Ibid.
Fig. 30 Ibid.
Fig. 31 (page 56-57) Children dressed in Sunday clothes outside of Bishop Fauquier Memorial Chapel, n.d., 1949-1977. SRSC, 2013-077/008/012.
Fig. 32 By author.
Fig. 33 L. H. Morgan, “League of the Iroquois” (1910). New York State Archives. New York (State). Education Dept. Division of Visual Instruction. Instructional lantern slides, ca. 1856-1939. Series A3045-78, No. 22.
Fig. 34 Drawing of a Single Room Schoolhouse with below floor heating system. Study of American Indian School and Subsequent Report by E. McColl. LAC, RG10 Volume number 3674 Microfilm reel number C-10118 File number 11422.
Fig. 35 Ibid.
Fig. 36 Diagrammatic Sketch of the ground floor for an Industrial School. Study of American Indian School and Subsequent Report by E. McColl. LAC, RG10 Volume number 3674 Microfilm reel number C-10118 File number 11422.
Fig. 37 By author.
Fig. 38 Old Holy Angels Residence Floor Plan drawn by Elsie Yanik, 2002. Student from 1938-1943. Algoma University Archives 2015-054/001/005/001.
Fig. 39 Organisational Chart of the IRS. By author.
Fig. 40 Furniture Building Shop, Carlisle Institute, 1901. Library of Congress, Frances Benjamin Johnson Collection.
Fig. 41 Mowing, Mohawk Institute, n,d. SRSC, P75103-S4-505.
Fig. 42 Boys Working, Spanish Indian Residential School, 1920s. SRSC, 2011-44_002_095_006.
Fig. 43 Home Economics Class, Carlisle Institute, 1901. Library of Congress, Frances Benjamin Johnson Collection.
Fig. 44 Rolling Dough, Spanish Indian Residential School, 1925.
Fig. 45 Elevation of The Mohawk Institute “Mush Hole”, 1879. The building and barns were destroyed in a fire set by students in 1903.
Fig. 46 By author.
Fig. 47 By author.
Fig. 48 By author.
Fig. 49 By author.
Fig. 50 By author.
Fig. 51 By author.
Fig. 52 By author.
Fig. 53 By author. Architect R.G. Orr, Department of Indian Affairs, 1934. Replaced the original hall because of poor interior conditions. Shingwauk Hall: A History, The Shingwauk Project (Robin Lesage, Madge Sanderson, Randy Small, Valerie Plain), 1980, 19. SRSC, Children of Shingwauk Alumni Association Fonds, 2010-004/010/019.
Fig. 54 By author.
Fig. 55 By author.
Fig. 56 By author.
Fig. 57 Drawn Map of good location for a Residential School. Indian Affairs. (RG 10, Volume 3674, File 11,422) Public Archives Canada.
Fig. 58 Initial design for the Bishop Fauquier Memorial Chapel at Shingwauk Indian Industrial School, Sault Ste. Marie, Ontario by E. F. Wilson, 1883.
Fig. 59 Bishop Fauquier Memorial Chapel Ground Floor plan. Redrawn by author from original hand drawn blueprints held at SRSC Archives.
Fig. 60 By author.
Fig. 61 By author.
Fig. 62 By author.
Fig. 63 By author.
Fig. 64 Handbook for Students and Boarding Parents, Sault Ste. Marie. n.d. [likely 1954-1966] SRSC, Synod of the Diocese of Algoma Fonds, 2013-117/002/005.
Fig. 65 Site Plan of Shingwauk by E. F. Wilson, published in Our Forest Children, 1890.
Fig. 66 By author.
Fig. 67 Shingwauk IRS, 1935 as the new main hall was constructed behind the old. SRSC.
Fig. 68 Mohawk Institute Site Plan Drawing, 1942-1947. (R. Moses, 1999).
Fig. 69 Site Plan of the Mohawk Institute. Redrawn by author from Google Earth and Magdalena Milosz, ‘Comparative (Post) Colonialisms: Residential School Architectures in Canada, USA, Australia, and New Zealand’, Quotation, Sahanz 2017, 7 July 2017, 16.
Fig. 70 Mohawk Institute, original hall and entrance road with farm property surrounding. LAC.
Fig. 71 By author.
Fig. 72 Spanish Residential School. The Archive of the Jesuits in Canada CDA, C 00003_Spanish.
Fig. 73 The Hospital on the Shingwauk site, 1886. By author. SRSC, ‘Autobiographical Journal of Rev. Edward F. Wilson’, 27 February 2019. https://ecampusontario.pressbooks.pub/srsc/ chapter/autobiographical-journal-of-rev-edward-f-wilson/.
Fig. 74 Newspaper clipping from The Globe and Mail (1970) On one hand, Indigenous communities rallying for their rights to this site, and the need for Indigenous education led by Indigenous educators.
Fig. 75 The Sault Star (1979).
Fig. 76 SRSC., Physical Plant Department Fonds.
Fig. 77 FH24269 - Library and Archives Canada, O.B. Buell PA-182246.
Fig. 78 Camp Ahmek’s Brochure, page 16. Algonquin Park Archives. I-3-1d.
Fig. 79 1976 advertisment in Toronto Life, Surveys and Mapping Branch of Energy, Mines, and Resources (federal agency). T.U.A.
Fig. 80 Advertisement for Eaton’s Store, Toronto, n.d. T.U.A. 82-016/002.
Fig. 81 Alice Marie Beard, The Camp Fire Girls Handbook, 1914.
Fig. 82 Ernest Thompson Seton, The Book of Woodcraft and Indian Lore, 1912.
Fig. 83 H. W. Gibson, Camping for Boys, 1913.
Fig. 84 Brochure. “Manitou “Spirit of Youth”: A Camp for Boys”, Papenguth, Richard (Director, Instructor); Phillips, Hermon (Owner, Operator) 1943. SRSC, Diocese of Algoma Camp Manitou (Whitefish Falls, Ont.) Fonds 2009-111/001.
Fig. 85 Ibid.
Fig. 86 Site Plan of Camp Keewaydin, Temagami Park, ON.
Fig. 87 Map of the island of Utopia, woodcut by Ambrosius Holbein, 1518; from the 1518 edition of Sir Thomas More’s Utopia.
Fig. 88 Main Gate to Camp. John A. Ledlie, ed., Layout, Building Designs, and Equipment for YMCA Camps (New York, NY: Association Press, 1946).
Fig. 89 “Proposed Layout for a Camp with a Capacity of 125 on a Property of 45 Acres”. John A. Ledlie, ed., Layout, Building Designs, and Equipment for YMCA Camps (New York, NY: Association Press, 1946).
Fig. 90 Albert H. Good, Park and Recreation Structures, Cabins, Plate III B-3, p. 23.
Fig. 91 By author.
Fig. 92 Camp Onondaga maintains a line of sleeping tents along the water. Goop.
Fig. 93 By author.
Fig. 94 Camp Ahmek Brochure n.d. (1942-45). T.U.A., Ebbs Papers, 80-014_003_IF8
Fig. 95 First Aid Building at Camp Ahmek.
Fig. 96 By author.
Fig. 97 Camp Wapomeo Brochure n.d. (1942-45). T.U.A., Ebbs Papers, 80-014_003_IF8
Fig. 98 By author.
Fig. 99 By author.
Fig. 100 Sleeping Cabins. Glen Bernard Camp Brochure, n.d. T.U.A., Camping Brochure Collection.
Fig. 101 Site plan of Camp Mini-Yo-We. By author.
Fig. 102 Camp Mini Yo We, Youtube, “Camp Mini-Yo-We, A Legacy of Excellence”.
Fig. 103 Camp Mini-Yo-We Dining Hall with cut-out wood, painted totem poles. Still from “It Takes Two”, 1995.
Fig. 104 Diploma, Onondaga Camp, 1930s. Trent University Archives, B-78-006/025/014 Folder Name: Articles on Ontario Camps.
Fig. 105 By author. Loosely based on H. W. Gibson’s 1923 organisational chart for Camp Beckett.
Fig. 106 By author
Fig. 107 By author.
Fig. 108 Indian Coucil Ring, Camp Ahmek, 1920s.
Fig. 109 Council Ring, Glen Bernard Camp. n.d. Camp Ahmek Online Archive.
Fig. 110 Camp Ahmek’s Indian Council Ring. Constructed with Ernest Thompson Seton in 1924-25.
Fig. 111 Indian Pageant at Camp Dudley, New York State, 1967.
Fig. 112 Camp Ahmek’s Indian Council Ring ceremony, 1970s. Camp Ahmek Online Archives.
Fig. 113 Glen Bernard Camp Brochure, Trent University Archives, OCA, 72-007/001/003
Fig. 114 Ibid.
Fig. 115 By author.
Fig. 116 By author.
Fig. 117 By author.
Fig. 118 Confirmation group at the Mohawk Chapel, 1918. Canada. Dept. of Interior, Library and Archives Canada, PA043609.
Fig. 119 Children in “costume” at Camp Wapomeo, 1920s. The Canoe Lake Camp Echoes, Vol. 4, No. 3. 1931. T.U.A. 82016/002/008.
Fig. 120 By author.
Fig. 121 By author.
Fig. 122 Promotion for Camp Ahmek’s canoeing course led by Bill Stoqua. The Canoe Lake Camp Echoes, Vol. 4, No. 3. 1931. T.U.A. 82-016/002/008.
Fig. 123 Newspaper clipping: Celebration of Canada’s Centennial Anniversary by the retracing fur trade routes by private camps, Girl Guides, Boy Scouts, Sea Scouts, YMCA, YWCA, church camps and disabled camps. The Telegram, 1967.
Fig. 124 Newspaper clipping, Gerry Hall, 1967.
Fig. 125 Department of Lands and Forests. T.U.A. Camping Pamphlet Collection, 1-46.
Fig. 126 By author.
Fig. 127 Brochure. “Manitou: “Spirit of Youth”, John Franklin Pruitt, 1932. SRSC, Diocese of Algoma Camp Manitou (Whitefish Falls, Ont.) Fonds, 2018-041/001/005.
Fig. 128 Ibid.
Fig. 129 By author.
Fig. 130 Performance at Camp Ahmek’s Log Theatre, 1920s. Camp Ahmek Online Archives.
Fig. 131 By author.
Fig. 132 By author.
Fig. 133 By author.
Fig. 134 Performance (top) and chapel service (bottom), Camp Ahmek’s Log Theatre, 1920s. Algonquin Park Archives, 1927 brochure.
Fig. 135 By author.
Fig. 136 View from pavilion. Painting sourced from Camp Manitou’s Facebook page.
Fig. 137 By author.
Fig. 138 By author.
Fig. 139 By author.
Fig. 140 By author.
Fig. 141 Still from “It Takes Two”, 1995.
Fig. 142 By author.
Fig. 143 Camp Ahmek Online Archives.
Fig. 144 Formal dinner at Glen Bernard Camp. Virtual Camp Tour.
Fig. 145 Camp Ahmek’s original Dining Hall with central stove and Ontario flag. T.U.A.
Fig. 146 By author.
Fig. 147 Totem Pole, Camp Ahmek, roof of Trading Post.
Fig. 148 Totem Pole attached to Dining Hall, Camp Manitou.
Fig. 149 Totem Pole at camp gate, Camp Manitou.
Fig. 150 Totem Pole, Camp Glen Bernard.
Fig. 151 Totem Pole, Camp Ahmek.
Fig. 152 By author.
Fig. 153 Library interior. Camp Ahmek Online Archives.
Fig. 154 Totem Carving workbench. Camp Ahmek Online Archives.
Fig. 155 Campers at Glen Bernard with Mary Edgar and Totem Pole n.d. likely 1930s.
Fig. 156 Ibid.
Fig. 157 Before after photos of campers at Camp Mishawaka. Reprinted in Abigail Van Slyck, Manufactured Wilderness (2006).
Fig. 158 Campers dressed up, Wapomeo 1920s. Camp Ahmek Online Archives.
Fig. 159 Ernest Thompson Seton and Woodcraft Indians.
Fig. 160 Home Economics Class at Carlisle Indian Industrial School, 1901.
Fig. 161 Basket Weaving at Camp Wapomeo. 1931. Canoe Lake Camp Echoes, T.U.A.
Fig. 162 Camp Ahmek Dining Hall, 2019. From Thoughtworks Canada Post.
Fig. 163 By author.
Fig. 164 By author.
Fig. 165 By author.
Fig. 166 By author.
Fig. 167 By author.
Fig. 168 By author.
Fig. 169 By author.
Fig. 170 By author.
Fig. 171 By author.
‘A Roadmap to the Truth and Reconciliation Commission Call to Action #66 - Youth Research and Evaluation eXchange’, 15 May 2019. https://youthrex.com/report/a-roadmap-tothe-truth-and-reconciliation-commission-call-to-action-66/, https://youthrex.com/report/a-roadmap-to-the-truth-andreconciliation-commission-call-to-action-66/.
‘A Structural Pandemic: On Statues, Colonial Violence, and the Importance of History (Part II)’, 3 December 2020. https:// activehistory.ca/2020/12/a-structural-pandemic-on-statues-colonial-violence-and-the-importance-of-history/
Agamben, Giorgio, and Daniel Heller-Roazen. Homo Sacer: Sovereign Power and Bare Life. Stanford, CA: Stanford University Press, 2020.
Amy. ‘The Departure of the Camp Bus’. Lulu and Lattes (blog), 29 June 2014. https://luluandlattes.com/2014/06/29/departure-camp-bus/
Archives ·, C. B. C. ‘How Residential Schools Were Sold to the Canadian Public’. CBC, 25 June 2018. https://www. cbc.ca/archives/cbc-tv-visits-a-residential-schoolin-1955-1.4667021.
Arendt, Hannah. ‘Eichmann in Jerusalem’. The New Yorker, 8 February 1963. https://www.newyorker.com/magazine/1963/02/16/eichmann-in-jerusalem-i
Arendt, Hannah, and Margaret Canovan. The Human Condition. 2. ed., [Nachdr.]. Chicago: Univ. of Chicago Press, 2010.
Arndt, Laura. ‘Searching the Grounds of the Mohawk Institute’. Survivors’ Secretariat, 12 January 2022. https://survivorssecretariat.ca/searching-the-grounds-of-the-mohawk-institute/
Art Currently. ‘Cree Artist Kent Monkman’s Vivid Narration of Indigenous Resilience’. Accessed 5 December 2023. https:// artcurrently.com/cree-artist-kent-monkmans-on-art-history-through-vivid-imagery-of-indigenous-resilience
Assu, Sonny. ‘Interventions On The Imaginary - Sonny Assu | Interdisciplinary Artist | Sonnyassu.Com’. Accessed 13 June 2023. https://www.sonnyassu.com/pages/interventions-on-the-imaginary
Auger, Donald J. Indian Residential Schools in Ontario Nishnawbe Aski Nation, 2005.
Avermaete, Tom, Serhat Karakayali, and Marion von Osten. Colonial Modern: Aesthetics of the Past, Rebellions for the Future. London: Black Dog publishing, 2010.
Ayed, Nahlah. ‘O Canada: Joyce Wieland and the Art of Nationhood’. Ideas with Nahlah Ayed, n.d. https://www.cbc.ca/ listen/live-radio/1-23-ideas/clip/15936020-o-canada-joycewieland-art-nationhood
Banting, Keith. ‘Multiculturalism Policy in Canada: Conflicted and Resilient’. In Policy Success in Canada: Cases, Lessons, Challenges, edited by Evert Lindquist, Michael Howlett, Grace Skogstad, Geneviève Tellier, and Paul t’ Hart, 0. Oxford University Press, 2022. https://doi.org/10.1093/ oso/9780192897046.003.0010.
Beiner, Ronald. Liberalism, Nationalism, Citizenship: Essays on the Problem of Political Community. Vancouver: UBC Press, 2003.
Benjamin, Walter, Walter Benjamin, and Walter Benjamin. The Arcades Project. Edited by Howard Eiland and Kevin MacLaughlin. First Harvard University Press paperback edition. Cambridge, Massachusetts London, England: The Belknap Press of Harvard University Press, 2002.
Bhabha, Homi K. The Location of Culture. 1. publ., Repr. Routledge Classics. London: Routledge, 2010.
Bhandar, Brenna. Colonial Lives of Property: Law, Land, and Racial Regimes of Ownership. Global and Insurgent Legalities. Durham: Duke University Press, 2018.
Bourdieu, Pierre. ‘The Forms of Capital’. In Readings in Economic Sociology, edited by Nicole Woolsey Biggart, 1st ed., 280–91. Wiley, 2002. https://doi.org/10.1002/9780470755679. ch15
Brady, Miranda J., and Emily Hiltz. ‘The Archaeology of an Image: The Persistent Persuasion of Thomas Moore Keesick’s Residential School Photographs’. TOPIA: Canadian Journal of Cultural Studies 37 (April 2017): 61–85. https://doi. org/10.3138/topia.37.61
Bruckner, Helen Moran. ‘Boys to Braves: Performing an Idealized Colonial State at Ontario Canoe-Tripping Camps’, n.d.
Buchanan, Ian. ‘Contact Zone’. In A Dictionary of Critical Theory. Oxford University Press, 2010. https://www.oxfordreference.com/display/10.1093/acref/9780199532919.001.0001/ acref-9780199532919-e-145.
Burke, Edmund, and David Womersley. A Philosophical Enquiry into the Origin of Our Ideas of the Sublime and Beautiful: And Other Pre-Revolutionary Writings. Penguin Classics. London ; New York: Penguin Books, 1998.
Camp Mini-Yo-We. ‘Camp Mini-Yo-We Name & Logo Listening Circles’. Accessed 30 October 2023. https://www.miniyowe. com/listening-circles/
Canada, Government of Canada; Crown-Indigenous Relations and Northern Affairs. ‘Truth and Reconciliation Commission of Canada’. Administrative page, 14 December 2015. https:// www.rcaanc-cirnac.gc.ca/eng/1450124405592/152910606 0525
Canada, Library and Archives. ‘Indian Residential School Records’, 23 August 2022. https://library-archives.canada.ca/ eng/collection/research-help/indigenous-heritage/Pages/ residential-schools.aspx
Carr, Geoffrey Paul. ‘’House of No Spirit’ : An Architectural History of the Indian Residential School in British Columbia’, 2011. https://open.library.ubc.ca/collections/24/ items/1.0071770
Centre, Shingwauk Residential Schools. ‘Autobiographical Journal of Rev. Edward F. Wilson’, 27 February 2019. https:// ecampusontario.pressbooks.pub/srsc/chapter/autobiographical-journal-of-rev-edward-f-wilson/
Chris T. Cornelius : My House Has Feathers (February 8, 2023), 2023. https://www.youtube.com/watch?v=768Os3oDgSs
Chudacoff, Howard P. ‘Review - Leslie Paris, Children’s Nature: The Rise of the American Summer Camp’, 753–55. New York: New York University Press, 2008.
Clarke, John, Kathleen Coll, Evelina Dagnino, and Catherine Neveu. ‘Imagining the “Communities” of Citizenship’. In Disputing Citizenship, 1st ed., 107–68. Bristol University Press, 2014. https://doi.org/10.2307/j.ctt9qgzqg.7
Coulthard, Glen Sean. Red Skin, White Masks: Rejecting the Colonial Politics of Recognition. Indigenous Americas. Minneapolis: University of Minnesota Press, 2014.
Crampton, Jeremy W., and Stuart Elden, eds. Space, Knowledge and Power: Foucault and Geography. Aldershot, England ; Burlington, VT: Ashgate, 2007.
DAAR (Decolonizing Architecture Art Residency). ‘Practices of Return’. In The Archive as a Productive Space of Conflict Sternberg Pr, n.d.
Davin, Flood. ‘Report on Industrial Schools for Indians and Half-Breeds’. Ottawa: Indian Affairs under Prime Minister and Minister of the Interior Macdonald, 1879.
Decter, Leah, and Carla Taunton. ‘An Ethic of Decolonial Questioning: Exercising the Quadruple Turn in the Arts and Culture Sector’. In The Routledge Companion to Indigenous Art Histories in the United States and Canada. Routledge, 2022.
Deleuze, Gilles, Félix Guattari, and Brian Massumi. A Thousand Plateaus: Capitalism and Schizophrenia. Athlone Contemporary European Thinkers. London New York: Continuum, 1988.
Deloria, Philip Joseph. Playing Indian. Yale Historical Publications. New Haven: Yale University Press, 2022.
Doak, Robert. ‘The Natural Sublime and American Nationalism: 1800-1850’. Studies in Popular Culture 25, no. 2 (2002): 13–22.
Dohmen, Renate. ‘The Artist as Postindian Warrior: Saviourism, Appropriation and Care in the Art of Kent Monkman’. Journal of Global Studies and Contemporary Art (REG|AC), Vol 7: Indigenous Epistemologies and Artistic Imagination, 1 January 2020. https://www.academia.edu/45568046/ The_Artist_as_Postindian_Warrior_Saviourism_Appropria-
tion_and_Care_in_the_Art_of_Kent_Monkman
Donzelot, Jacques, and Jacques Donzelot. The Policing of Families. Johns Hopkins paperbacks ed. Baltimore: Johns Hopkins Univ. Press, 1997.
Easterling, Keller. Extrastatecraft: The Power of Infrastructure Space. Paperback edition. London New York: Verso, 2016.
Education, Reconciliation. ‘What Are the Truth & Reconciliation Commission’s 94 Calls to Action & How Are We Working Toward Achieving Them Today?’ Accessed 11 February 2024. https://www.reconciliationeducation.ca/what-are-truthand-reconciliation-commission-94-calls-to-action
‘Edward F. Wilson’s Manual for Missionaries: Confronting Colonialism: Land, Literacies & Learning’. Accessed 22 July 2023. https://www.huronresearch.ca/confrontingcolonialism/edward-f-wilsons-manual-for-missionaries/
Edwards, C.A.M. Taylor Statten: A Biography. Toronto, Ontario: Ryerson Press, 1960.
Elden, Stuart. ‘Terrain, Politics, History’. Dialogues in Human Geography 11, no. 2 (July 2021): 170–89. https://doi. org/10.1177/2043820620951353
Erickson, Bruce. ‘“fucking Close to Water”: Queering the Production of the Nation’. In Queer Ecologies: Sex, Nature, Politics, Desire, 309–30. Bloomington, Ind.: Indiana University Press, 2010.
Facebook. ‘O:Se Kenhionhata:Tie (Land Back Camp)’. Accessed 13 April 2024. https://www.facebook.com/osekenhionhatatie/
Fellner, Astrid M. ‘Camping Indigeneity: The Queer Politics of Kent Monkman’. In The Dark Side of Camp Aesthetics Routledge, 2017.
Flad, Harvey K. ‘The Parlor in the Wilderness: Domesticating an Iconic American Landscape’. Geographical Review 99, no. 3 (2009): 356–76.
Fortin, David, and Adrian Blackwell, eds. ‘C\a\n\a\d\a Delineating Nation State Capitalism’. Scapegoat, no. 12–13 (2022).
Fota, Ana. ‘What’s Wrong With This Diorama? You Can Read All About It’. The New York Times, 20 March 2019, sec. Arts. https://www.nytimes.com/2019/03/20/arts/design/natural-history-museum-diorama.html
Foucault, Michel. Discipline and Punish: The Birth of the Prison 1st American ed. New York: Pantheon Books, 1977.
Foucault, Michel, and Michel Foucault. The Birth of Biopolitics: Lectures at the Collège de France, 1978-79. Edited by Michel Senellart. Paperback ed. Basingstoke: Palgrave Macmillan, 2010.
Four Feathers Nation. ‘Four Feathers Nation’. Accessed 29 July 2023. https://fourfeathersnation.com/
Francis, Daniel. The Imaginary Indian: The Image of the Indian in Canadian Culture. Vancouver, B.C: Arsenal Pulp Press, 1992.
Freire, Paulo, Donaldo P. Macedo, and Ira Shor. Pedagogy of the Oppressed. Translated by Myra Bergman Ramos. 50th anniversary edition. New York: Bloomsbury Academic, 2018.
Gadacz, René R. ‘Longhouse’. In The Canadian Encyclopedia, 30 September 2007. https://www.thecanadianencyclopedia. ca/en/article/longhouse.
Gaffield, Chad. ‘History of Education in Canada’. In The Canadian Encyclopedia, edited by Dominique Millette, 15 July 2013. https://www.thecanadianencyclopedia.ca/en/article/ history-of-education
Gibson, Henry W. Camp Management: A Manual for Camp Directors. Cambridge, Massachusetts: The Murray Printing Company, 1923. https://drb-qa.nypl.org/read/3054820.
Goldberg, David Theo, ed. Multiculturalism: A Critical Reader Cambridge, Mass: Blackwell Publishers, 1994.
Good, Albert H. Park and Recreation Structures: Parts I . II . III Washington, DC: Department of the Interior National Park Service, United States Government Printing Office, 1938. http://npshistory.com/publications/park_recreation_structures/foreword.htm.
‘Great Lakes Cultural Camps’. Accessed 11 February 2024. https://www.culturalcamps.com/Cultural_Camps/Great_ Lakes_Cultural_Camps.html
‘Homi Bhabha: “On Global Memory: Thoughts on the Barbaric Transmission of Culture” - YouTube’. Accessed 20 April 2024. https://www.youtube.com/watch?v=5Fp6j9Ozpn4.
Gutman, Marta, ed. Designing Modern Childhoods: History, Space, and the Material Culture of Children. The Rutgers Series in Childhood Studies. New Brunswick, NJ: Rutgers Univ. Press, 2008.
Hailey, Charlie. Camps: A Guide to 21st-Century Space. Cambridge, Mass: MIT Press, 2009.
———. Campsite: Architectures of Duration and Place. Baton Rouge: Louisiana State University Press, 2008.
Harvey, Jennifer N. ‘Landscapes of Conversion: The Evolution of the Residential School Sites at Wiikwemkoong and Spanish, Ontario’. Master of Arts in Humanities, Laurentian University, 2019.
HathiTrust. ‘Designing Education in Values; a Case Study in Institutional Change, by Roy Sorenson and Hedley S. Dimock’. Accessed 11 February 2024. https://hdl.handle.net/2027/ mdp.39015070382851?urlappend=%3Bseq=273
Herscher, Andrew. ‘Designs on the Land: ”Decolonization“ and the History of Architecture to Come’. Https:// fora-ontheurban.net/. For A-on the Urban (blog), 9 November 2021. https://fora-ontheurban.net/contributions/ designs-on-the-land-decolonisation-and-the-history-of-architecture-to-come-andrew-herscher
Huard, Adrienne. ‘An Indigenous Woman’s View of the National
Gallery of Canada’. Canadian Art. Accessed 14 June 2023. https://canadianart.ca/reviews/canadian-and-indigenous-galleries/
Huhndorf, Shari M. Going Native: Indians in the American Cultural Imagination. Ithaca: Cornell University Press, 2001.
Illich, Ivan. Deschooling Society. 1st ed. Harrow Books 7015. New York, NY: Harrow Books, 1972.
‘Indians of Ontario, An Historical Review’. Ottawa, Ontario: Department of Indian Affairs and Northern Development, January 1966. https://publications.gc.ca/site/eng/9.838500/ publication.html
‘Indigenous Peoples in Ontario: In the Spirit of Reconciliation: Ministry of Indigenous Relations and Reconciliation’s First 10 Years: Ontario.Ca’. Accessed 17 January 2024. http:// www.ontario.ca/document/spirit-reconciliation-ministry-indigenous-relations-and-reconciliation-first-10-years/indigenous-peoples-ontario
Institution, Smithsonian. ‘The Iconography of Landscape : Essays on the Symbolic Representation, Design, and Use of Past Environments / Edited by Denis Cosgrove and Stephen Daniels’. Smithsonian Institution. Accessed 30 June 2023. https://www.si.edu/object/siris_sil_393193
Jacoby, Sam. Drawing Architecture and the Urban. 1st ed. Chichester, West Susses, UK: John Wiley & Sons, 2016.
Kaewen Dang, Tiffany. ‘Grids and Parks: Two Sides of an Extractive Worldview’. In C\a\n\a\d\a Delineating Nation State Capitalism, edited by David Fortin and Adrian Blackwell, 65. Scapegoat, 2022.
Katz, Irit. The Common Camp: Architecture of Power and Resistance in Israel-Palestine. Minneapolis, MN: University of Minnesota Press, 2022.
———. ‘“The Common Camp”: Temporary Settlements as a Spatio-Political Instrument in Israel-Palestine’. The Journal of Architecture 22, no. 1 (2 January 2017): 54–103. https://doi. org/10.1080/13602365.2016.1276095
Kennedy, Jay, and Amanda Shore. ‘Transitioning Traditions Take Two: The Evolution of an Ontario Camp’s “Indian” Council Ring—Eight Years in the Making’. Edited by Taylor Wilkies. Pathways: The Ontario Journal of Outdoor Education Spring 2018, no. 30 (3) (n.d.): 4–12.
‘Kent Monkman’s Iskonikan On View At Art Toronto 2023 October 26 To 29 2023’, 19 October 2023. https://www. artandculturemaven.com/2023/10/kent-monkmans-iskonikan-on-view-at-art.html
Kidd, Kenneth B., and Derritt Mason, eds. Queer as Camp: Essays on Summer, Style, and Sexuality. First edition. New York: Fordham University Press, 2019.
King, Thomas. The Inconvenient Indian: A Curious Account of Native People in North America. Minneapolis, Minn: Univ. of Minnesota Press, 2013.
Lam, Elsa. ‘Settler-Colonial Modern’. Canadian Architect (blog), 1 September 2021. https://www.canadianarchitect.com/settler-colonial-modern/
LANDBACK. ‘LANDBACK Manifesto’. Accessed 24 January 2024. https://landback.org/manifesto/.
Ledlie, John A., ed. Layout, Building Designs, and Equipment for YMCA Camps. New York, NY: Association Press, 1946.
Linton, Marilyn. Children’s Camps in Canada. Scarborough, Ont.: New American Library of Canada, 1982.
Logan, Tricia. ‘Indian Residential Schools, Settler Colonialism and Their Narratives in Canadian History’. History PhD, Royal Holloway, University of London, 2016.
Lowman, Emma Battell, and Adam J. Barker. Settler: Identity and Colonialism in 21st Century Canada. Winnipeg, Manitoba ; Black Point, Nova Scotia: Fernwood Publishing, 2015.
Loyie, Oskiniko Larry, Wayne K. Spear, and Constance Brissenden. Residential Schools: With the Words and Images of Survivors. Brantford, ON: Indigenous Education Press, 2018.
Luckasavitch, Christine. ‘A Necessary Movement: The Creation of Culturally Appropriate Summer Camp Traditions’. Pathways: The Ontario Journal of Outdoor Education Spring 2018, no. 30 (3) (n.d.): 13–15.
Lutsky, Karen, and Sean Burkholder. Five Bay Landscapes: Curious Explorations in the Great Lakes Basin. Pittsburgh, Pa: University of Pittsburgh Press, 2022.
Mackey, Eva. ‘Becoming Indigenous: Land, Belonging, and the Appropriation of Aboriginality in Canadian Nationalist Narratives’. Social Analysis: The International Journal of Social and Cultural Practice 42, no. 2 (1998): 150–78.
McBain, Catherine. ‘De-Colonial Intersections of Conservation and Healing: The Indian Residential School System’. Master of Architecture, Carleton University, 2021. https://curve.carleton.ca/system/files/etd/b4e8f676-b87d-49bf-9a84-0e0d89dca075/etd_pdf/d849f11d75c6fb3776ae91ca44c94b3d/ mcbain-decolonialintersectionsofconservationandhealing. pdf
McCallum, Mary Jane. ‘To Make Good Canadians: Girl Guiding in Indian Residential Schools’. Thesis, University of Winnipeg, 2002. https://winnspace.uwinnipeg.ca/handle/10680/1745
McColl, Ebenezer, and Nicholas Flood Davin. Report on Industrial Schools for Indians and Half-Breeds. Ottawa? s.n., 1879. http://www.empire.amdigital.co.uk/contents/document-detail.aspx?sectionid=392
McIlwraith, Thomas, and Stephen Fine. ‘Decolonizing Strategies for Summer Camps: A “Backgrounder” and Bibliography’. University of Guelph and Canadian Camping Association, March 2019. chrome-extension://efaidnbmnnnibpcajpcglclefindmkaj/https://www.ccamping.org/ wp-content/uploads/2019/03/McIlwraith-and-Fine_Indigenous-Peoples-and-Camps-Briefing-Paper_Mar-2019_Final-002.pdf
McIntosh, David. ‘Kent Monkman’s Postindian Diva Warrior: From Simalacral Historian to Embodied Liberator’. Fuse Magazine, 2006.
McRae (Luckasavitch), Christine. ‘A Brief History of the
Madaoueskarini Algonquin People’. Algonquin Outfitters (blog), 5 December 2019. https://algonquinoutfitters.com/abrief-history-of-the-madaoueskarini-algonquin-people/ Mehta, Vasundhara, and Vikrant Sharma. ‘Cultural Genocide – Reconciliation Through Recognition? | OHRH’. Accessed 4 February 2024. https://ohrh.law.ox.ac.uk/cultural-genocide-reconciliation-through-recognition/
Meinig, D. W., and John Brinckerhoff Jackson, eds. ‘The Beholding Eye: Ten Versions of the Same Scene’. In The Interpretation of Ordinary Landscapes: Geographical Essays, 33–48. New York: Oxford University Press, 1979.
Merchant, Carolyn. Reinventing Eden: The Fate of Nature in Western Culture. 2nd ed. New York: Routledge/Taylor & Francis Group, 2013.
Miller, J. R. Shingwauk’s Vision: A History of Native Residential Schools. Toronto ; Buffalo: University of Toronto Press, 1996.
Milloy, John. ‘Indian Act Colonialism: A Century of Dishonour 1869-1969’. Research Paper for the National Centre for First Nations Governance, May 2008, 1–21.
Milosz, Magdalena. ‘Architectures of (De) Colonization’. The Community Edition, 5 August 2016. https://communityedition.ca/architectures-of-de-colonization/
———. ‘Comparative (Post)Colonialisms: Residential School Architectures in Canada, USA, Australia, and New Zealand’. Quotation, Sahanz 2017, 7 July 2017, 16.
———. ‘Instruments as Evidence: An Archive of the Architecture of Assimilation’. Journal of the Society for the Study of Architecture in Canada 41, no. 2 (January 2016): 3–10.
Miłosz, Magdalena. ‘Simulated Domesticities: Settings for Colonial Assimilation in Mid-Twentieth-Century Canada’. RACAR : Revue d’art Canadienne 45, no. 2 (10 December 2020): 81–96. https://doi.org/10.7202/1073940ar
Minton, Steve, and Cameron A. Mckean. ‘We Must Not Forget What Happened to the World’s Indigenous Children: Aeon Essays’. aeon, 21 July 2023. https://aeon.co/essays/wemust-not-forget-what-happened-to-the-worlds-indigenous-children
‘Missionary Work among the Ojebway Indians, by Edward Wilson (1886)’. Accessed 30 December 2023. http://anglicanhistory.org/indigenous/ojebway_wilson/40.html
Moore, Sylvia. Trickster Chases the Tale of Education. McGillQueen’s Native and Northern Series 89. Montreal ; Kingston: McGill-Queen’s University Press, 2017.
Moray, Gerta, and Emily Carr. Unsettling Encounters: First Nations Imagery in the Art of Emily Carr. Seattle: University of Washington Press, 2006.
‘Mount Elgin Residential School – The Children Remembered’. Accessed 19 June 2023. https://thechildrenremembered. ca/school-histories/mount-elgin/
Nail, Thomas. ‘What Is an Assemblage?’ SubStance 46, no. 1 (2017): 21–37.
Nash, Roderick, and Char Miller. Wilderness and the American Mind. Fifth edition. New Haven: Yale University Press, 2014.
Needham, G.H. ‘Living in the new houses’. Monograph. Translated by Harriet Ruston and Joanasie Salomonie. Ottawa: Education Division, Northern Administration Branch, Department of Indian Affairs and Northern Development, 1968. https://publications.gc.ca/site/eng/9.839771/publication. html
Nock, David. A Victorian Missionary and Canadian Indian Policy: Cultural Synthesis vs. Cultural Replacement. Editions SR, v. 9. Waterloo, Ont., Canada: Published for the Canadian Corporation for Studies in Religion by Wilfrid Laurier University Press, 1988.
Nosowitz, Dan. ‘The Evolving Ideologies of American Jewish Summer Camp’. Atlas Obscura, 9 August 2018. http://www. atlasobscura.com/articles/jewish-summer-camps
Noterman, Elsa, and Nicholas Blomley. ‘Children’s Legal Geographies, and the “Make-Believe” of Property’. Social & Legal Studies, 1 May 2023, 09646639231171674. https://doi. org/10.1177/09646639231171674
O’Connor, Joe. ‘From Refugee Camp to Summer Camp: Syrian Sisters Embark on Canadian Rite of Passage | National Post’. National Post, 21 July 2016. https://nationalpost.com/ news/canada/from-refugee-camp-to-summer-camp-syrian-sisters-embark-on-canadian-rite-of-passage
Oelschlaeger, Max. The Idea of Wilderness: From Prehistory to the Age of Ecology. Yale University Press, 1991. https://www. jstor.org/stable/j.ctt1cc2krg
Ormiston, Alice. ‘Educating “Indians”: Practices of Becoming Canadian’. The Canadian Journal of Native Studies XXII, no. 1 (2002): 1–22.
Osborne, Brian S. ‘The Iconography of Nationhood in Canadian Art’. In The Iconography of Landscape: Essays on the Symbolic Representation, Design and Use of Past Environments, edited by Denis E. Cosgrove and Stephen Daniels, Second ed., Repr. Cambridge Studies in Historical Geography 9. Cambridge: Cambridge University Press, 2013.
Oxford Reference. ‘Bare Life’. Accessed 27 February 2024. https://doi.org/10.1093/oi/authority.20110803095446660
Oxford Reference. ‘Constellation’. Accessed 4 April 2024. https://doi.org/10.1093/oi/authority.20110803095633862
Paris, Leslie. Children’s Nature: The Rise of the American Summer Camp. 1. publ. in pbk. American History and Culture. New York, NY: New York University Press, 2010.
‘Promenade through the Theatre of Illusion: Dioramas in Palais de Tokyo - NECSUS’, 6 December 2017. https://necsusejms.org/promenade-through-the-theatre-of-illusion-dioramas-in-palais-de-tokyo/
Rabin, Nathan. ‘The Importance of Being Ernest Part 1: Ernest Goes to Camp (1987)’. Substack newsletter. Nathan Rabin’s Bad Ideas (blog), 24 January 2023. https://nathanrabin. substack.com/p/the-importance-of-being-ernest-part
Ranger, Terence Osborn, and Eric John Hobsbawm. The
Invention of Tradition. Canto. Cambridge: Cambridge University Press, 1993.
Rev. Edward F. Wilson. Missionary Work Among The Ojebway Indians. London: Society for Promoting Christian Knowledge, 1886.
Robinson, Amanda. ‘Manifest Destiny’. In The Canadian Encyclopedia, 19 December 2019. https://www.thecanadianencyclopedia.ca/en/article/manifest-destiny
Rumford-Rodgers, Hope, Audrey R. Giles, and Willow Scobie. ‘Christian Summer Camps for Indigenous Youth in Canada: A Settler Colonial Analysis’. Leisure/Loisir, 24 March 2022. https://www.tandfonline.com/doi/full/10.1080/14927713.202 2.2054457
Ryan, Allan J. The Trickster Shift: Humour and Irony in Contemporary Native Art. Vancouver: UBC Press [u.a.], 1999.
Said, Edward W. Culture and Imperialism. 1st Vintage Books ed. New York: Vintage Books, 1994.
Schumacher, Haley. ‘An Architectural Response to Multi-Generational Housing Inspired by Haudenosaunee Culture’. M.Arch Thesis, Laurentian University, 2019.
Seton, Ernest Thompson. Manual of the Woodcraft Indians: The Fourteenth Birch-Bark Roll Containing Thier Constitution, Laws, and Deeds, and Much Additional Matter. Garden City, New York: Doubleday, Page & Company, 1915.
Shingwauk Kinoomaage Gamig. ‘Shingwauk Kinoomaage Gamig’. Accessed 26 March 2024. https://shingwauku.org/
Shohat, Ella, and Robert Stam. ‘Contested Histories: Eurocentrism, Multiculturalism, and the Media’. In Multiculturalism: A Critical Reader, 296–324. Blackwell, 1994.
Shore, Amanda. ‘Notes on Camp: A Decolonizing Strategy’. NSCAD University, n.d.
———. ‘Towards a Pedagogy of Solidarity: Uprooting Traditions of Racial Plagiarism and Cultural Appropriation at Camp Ahmek’. Concordia University, 2020. https://spectrum.library. concordia.ca/id/eprint/986830/1/Shore_MA_S2020.pdf
Siebert, Monika. Indians Playing Indian: Multiculturalism and Contemporary Indigenous Art in North America. Tuscaloosa: The University of Alabama Press, 2015.
Slyck, Abigail A. Van. A Manufactured Wilderness: Summer Camps and the Shaping of American Youth, 1890–1960 Minneapolis: University of Minnesota Press, 2006. https:// muse.jhu.edu/pub/23/monograph/book/32024
Smith, Derek G. ‘The “Policy of Aggressive Civilization” and Projects of Governance in Roman Catholic Industrial Schools for Native Peoples in Canada, 1870-95’. Anthropologica 43, no. 2 (2001): 253–71. https://doi.org/10.2307/25606039
Smith, Linda Tuhiwai. Decolonizing Methodologies: Research and Indigenous Peoples. Second edition. London: Zed, 2012.
Soja, Edward W. Postmodern Geographies: The Reassertion of Space in Critical Social Theory. Radical Thinkers. London
New York: Verso, 2011.
Sonny Assu. Interview by Crystal Baxley with Sonny AssuLaich-kwil-tach (Kwakwaka’wakw). Phone, 2011. https:// contemporarynativeartists.tumblr.com/post/6030123932/ sonny-assu-laich-kwil-tach-kwakwakawakw
Sontag, Susan. Notes on ‘Camp’. Penguin Modern 29. London, UK: Penguin Books, 1964.
Stewart, Patrick Robert Reid. ‘Indigenous Architecture through Indigenous Knowledge : Dim Sagalts’apkw Nisiḿ [Together We Will Build a Village]’. University of British Columbia, 2015. https://doi.org/10.14288/1.0167274
Tachine, Amanda. Native Presence and Sovereignty in College: Sustaining Indigenous Weapons to Defeat Systemic Monsters. Culturally Sustaining Pedagogies Series. New York: Teachers College Press, 2022.
‘The Shingwauk Project | Shingwauk Residential School Center’, 2023. http://www.shingwauk.org/srsc/node/7
The Society for the Study of Architecture in Canada. ‘From the Archives: Residential School Architecture’, 18 October 2021. https://canada-architecture.org/from-the-archives-residential-school-architecture/
‘The Taylor Statten Camps - The History and Legacy Behind It All’. Accessed 29 July 2023. https://taylorstattencamps. com/tsc-history/
Thoelke, Seth. ‘The Outer Wilds and Manufactured Wilderness’. Floodwall Magazine, Spring 2021.
Thoreau, Henry David, and Thomas Carew. Walden; or, Life in the Woods. Boston, Ticknor and Fields, 1854. http://archive. org/details/waldenorlifeinwo1854thor
‘Totem Poles’. Accessed 1 April 2024. https://indigenousfoundations.arts.ubc.ca/totem_poles/
‘Truth: Acknowledging Scouting History in Canada’. Accessed 27 July 2023. https://www.scouts.ca/about/diversity-equity-and-inclusion/acknowledging-scouting-history-in-canada.html
Tuck, Eve, and K Wayne Yang. ‘Decolonization Is Not a Metaphor’. Decolonizatoin: Indigeneity, Education, and Society 1, no. 1 (2012).
Turner, Frederick Jackson, and John Mack Faragher. Rereading Frederick Jackson Turner: ‘The Significance of the Frontier in American History’, and Other Essays. New Haven, Conn: Yale University Press, 1998.
‘UNION OF ONTARIO INDIANS – Youth Cultural Camps’, 14 February 2024. https://www.anishinabek.ca/youth-cultural-camps/
Voce, Antonio, Leyland Cecco, and Chris Michael. ‘“Cultural Genocide”: The Shameful History of Canada’s Residential Schools – Mapped’. the Guardian, 24 July 2022. http://www. theguardian.com/world/ng-interactive/2021/sep/06/canada-residential-schools-indigenous-children-cultural-genocide-map
Wahpasiw, Omeasoo 1981-. ‘TLA’AMIN HOUSING ARCHITECTURE AND HOME TERRITORIES IN THE TWENTIETH CENTURY: INVISIBLE SPACES SHAPING HISTORICAL INDIGENOUS EDUCATION’. Thesis, University of Saskatchewan, 2017. https://harvest.usask.ca/handle/10388/7678
Walker, Ryan, Ted Jojola, and David Natcher. Reclaiming Indigenous Planning. Montreal, CANADA: McGill-Queen’s University Press, 2013. http://ebookcentral.proquest.com/ lib/aaschool/detail.action?docID=3332617
Wall, Sharon. The Nurture of Nature: Childhood, Antimodernism, and Ontario Summer Camps, 1920-55. Nature/History/ Society. Vancouver: UBC Press, 2009.
———. ‘“To Train a Wild Bird”: E.F. Wilson, Hegemony, and Native Industrial Education at the Shingwauk and Wawanosh Residential Schools, 1873-1893’. Left History: An Interdisciplinary Journal of Historical Inquiry and Debate 9, no. 1 (1 December 2003). https://doi.org/10.25071/1913-9632.5619.
Warner, Anne Elizabeth. ‘“To Grow in the Open Air and to Eat and Sleep with the Earth”: Cultivating Character at Private Ontario Youth Camps, 1920–1939’. Ph.D., The University of Western Ontario (Canada), 2010. https://www.proquest. com/docview/868675180/abstract/731AA0B64F6E4C5BPQ/1
Watts, Vanessa. ‘Indigenous Place-Thought and Agency Amongst Humans and Non Humans (First Woman and Sky Woman Go On a European World Tour!)’. Decolonization: Indigeneity, Education & Society 2, no. 1 (4 May 2013). https:// jps.library.utoronto.ca/index.php/des/article/view/19145.
Welsford, Acacia. ‘Canoeing, Campfires, and Cultural Appropriation: Racism Against Native Americans in American Summer Camps 1880-2018’. History Undergraduate Publications and Presentations, 1 December 2018, 1–35.
Whitehead, Joshua. ‘Finding We’Wha”: Indigenous Idylls in Queer Young Adult Literature’. In Queer as Camp: Essays on Summer, Style, and Sexuality, edited by Kenneth B. Kidd and Derritt Mason, First edition., 223–40. New York: Fordham University Press, 2019.
Whitridge, Peter. ‘Landscapes, Houses, Bodies, Things: “Place” and the Archaeology of Inuit Imaginaries’. Journal of Archaeological Method and Theory 11, no. 2 (1 June 2004): 213–50. https://doi.org/10.1023/B:JARM.0000038067.06670.34
Young, Bryanne. ‘“Killing the Indian in the Child”: Death, Cruelty, and Subject-Formation in the Canadian Indian Residential School System’. Mosaic: An Interdisciplinary Critical Journal 48, no. 4 (2015): 63–76.
A Charting of Timeline
B An Alternative Archive
131
This timeline relates key dates of policies and events that relate to the IRS as well as the summer camp. It was assembled and added to throughout the research phase of the dissertation. This work could be a basis for future analysis focused on tracing more layers of ideological tensions and alignments. Each event is tagged with a relevant description, as it relates to colonial expansion, assimilation, policy and legislation, Canadian identity, Retrenchment, Truth, and Reconciliation.131
Note where you start to see a “retrenchment” in assimilation policies—for example the removal of the potlatch ban and the granting of voting rights. This seems to happen post World War II—when there is a suggestion that there is a public awareness of human rights and treatment of Indigenous peoples. You also start to see in the timeline acts of resistance by Indigenous people (from court challenges to protests) and apologies from the Churches. This suggests that institutions (governments, churches) perhaps starting to shift—but not Summer Camps. For example you see a new Totem Pole at Camp Glen Bernard. This example, like also quietly renewing Algonquin Park Leases, still evidences modern acts of Colonial Expansion and cultural theft.
‘About the Movement – Idlenomore.Ca’. Accessed 1 November 2023. https://idlenomore.ca/about-the-movement/
Auger, Donald J. Indian Residential Schools in Ontario. Nishnawbe Aski Nation, 2005.
Henderson, William B., 2015, “Indian Act,” in Davida Aronovich (ed.), The Canadian Encyclopedia, Historica Canada, n.p., http:// www.thecanadianencyclopedia.ca/en/m/ article/indian-act]
‘Indians of Ontario, An Historical Review’. Ottawa, Ontario: Department of Indian Affairs and Northern Development, January 1966. https://publications.gc.ca/site/ eng/9.838500/publication.html.
Kaewen Dang, Tiffany. “Grids and Parks: Two Sides of an Extractive Worldview.” In C\a\n\a\d\a Delineating Nation State Capitalism, edited by David Fortin and Adrian Blackwell, 65. Scapegoat, 2022.
Linton, Marilyn. Children’s Camps in Canada. Scarborough, Ont.: New American Library of Canada, 1982.
Lowman, Emma Battell, and Adam J. Barker. Settler: Identity and Colonialism in 21st Century Canada. Winnipeg, Manitoba; Black Point, Nova Scotia: Fernwood Publishing, 2015.
Loyie, Oskiniko Larry, Wayne K. Spear, and Constance Brissenden. Residential Schools: With the Words and Images of Survivors. Brantford, ON: Indigenous Education Press, 2018.
‘The Taylor Statten Camps - The History and Legacy Behind It All’. Accessed 29 July 2023. https://taylorstattencamps.com/tsc-history/.
The Canadian Encyclopedia’. Accessed 18 April 2024. https://www.thecanadianencyclopedia.ca/en


1830 Grand River Navigation Company (private enterprise backed by the gov) made Grand River more navigable from the ongoing works of the Welland Canal feeder at Dunnvile up to Brandford to Galt, and misused funds belonging to Six Nations to build it
1830 Construction of longest continously operating IRS, Mohawk Institute
1831 Establishment of the Mohawk Institute in Brantford, the oldest Residential School in Canada (British Colony, still known as Upper Canada)
Residential Schooling at this time was under British Colonial policy, and it laid the foundations for all that was to come
1845 Ryerson Experiment report to the Legislative Assembly recommending that industrial boarding schools be adopted for the education of Indian children Focus on religious and domestic education/skills
1857 Gradual Civilization Act promoted the elimination of First Nations through voluntary enfranchment the relinquishment of legal Indian status in exchange for land and the right to vote
1860 Indian Day Schools operated between the 1860s to 1990s
1867 Passing of the British North America Act John A MacDonald becomes first Prime Minister of Dominon of Canada
The main di erence between the IRSS was that kids would go home at the end of the day Kids often experienced similar treatment to what has been reported in the IRSS
The BNA Act provided the basic governing structures for the new country, including the ways in which the Crown was to interact with Indigenous peoples There would be no nationto-nation relation between Canada and Indigenous people, instead, they were to be absorbed into Canada First Nations education becomes federal responsibility, eventually under dept of Indian A airs Indian Day Schools begin Under MacDonald, a series of acts passed to facilitate westwards expansion , settlement, control, and assimilation of Indigenous people
1869 Gradual Enfranchisement Act aimed to replace traditional Indigenous governance structures with band councils, a form of non-traditional government imposed on First Nations, also gave Superintendant
1871 First of the numbered treaties negotiated
1873 Shingwauk Indian Industrial School opening
Education defined as 'skill transfer' becomes a feature of the treaties Industrial schools created to give Indigenous people new tools to adapt to a changing environment Assimilation not yet the goal
1830 Grand River Navigation Company
1875 Shingwauk Trust
1876 Indian Act
1830 Grand River Navigation Company (private enterprise backed by the gov) made Grand River more navigable from the ongoing works of the Welland Canal feeder at Dunnvile up to Brandford to Galt, and misused funds belonging to Six Nations to build it
1830 Grand River Navigation Company (private enterprise backed by the gov) made Grand River more navigable from the ongoing works of the Welland Canal feeder at Dunnvile up to Brandford to Galt, and misused funds belonging to Six Nations to build it
1830 Grand River Navigation Company (private enterprise backed by the gov) made Grand River more navigable from the ongoing works of the Welland Canal feeder at Dunnvile up to Brandford to Galt, and misused funds belonging to Six Nations to build it
(private enterprise backed by the gov) made Grand River more navigable from the ongoing of Welland Canal feeder at Dunnvile up to Brandford to Galt, and misused funds belonging to Nations to build it
1879 Davin Report
trust established the Shingwauk as a site for Indian education
The Act consolidated a number of earlier colonial laws that sought to control and assimilate Indigenous peoples into EuroCanadian culture
1830 Construction of longest continously operating IRS, Mohawk Institute
1830 Construction of longest continously operating IRS, Mohawk Institute
1830 Construction of longest continously operating IRS, Mohawk Institute
1830 Construction of longest continously operating IRS, Mohawk Institute
1831 Establishment of the Mohawk Institute in Brantford, the oldest Residential School in Canada (British Colony, known as Upper Canada)
1831 Establishment of the Mohawk Institute in Brantford, the oldest Residential School in Canada (British Colony, still known as Upper Canada)
1831 Establishment of the Mohawk Institute in Brantford, the oldest Residential School in Canada (British Colony, still known as Upper Canada)
1831 Establishment of the Mohawk Institute in Brantford, the oldest Residential School in Canada (British Colony, still known as Upper Canada)
Residential Schooling at this time was under British Colonial policy, and it laid the foundations for that was to come
Residential Schooling at this time was under British Colonial policy, and it laid the foundations for all that was to come
Prime Minister John A MacDonald commissioned a study of the internal workings of the industrial boarding schools in the United States and the Canadian West Nickolas Flood Davin argued for the necessity of residential school education to deal with the 'Indian Problem' "The influence of the wigwam is stronger than that of the [day] school "
Residential Schooling at this time was under British Colonial policy, and it laid the foundations for all that was to come
Residential Schooling at this time was under British Colonial policy, and it laid the foundations for all that was to come
1845 Ryerson Experiment to the Legislative Assembly that industrial boarding schools be adopted for the education of Indian children Focus on religious and domestic education/skills
1879 Carlisle Indian Industrial School established by Captain Richard Henry Pratt in Carlisle, Pennsylvania, USA Modelled after the Mohawk Institute
1845 Ryerson Experiment report to the Legislative Assembly recommending that industrial boarding schools be adopted for the education of Indian children Focus on religious and domestic education/skills
1845 Ryerson Experiment report to the Legislative Assembly recommending that industrial boarding schools be adopted for the education of Indian children Focus on religious and domestic education/skills
1845 Ryerson Experiment report to the Legislative Assembly recommending that industrial boarding schools be adopted for the education of Indian children Focus on religious and domestic education/skills
1880 Indian Act Amended and ban on Potlach included
1857 Gradual Civilization Act promoted elimination of through voluntary enfranchment the of legal Indian status in exchange for land and the right to
1857 Gradual Civilization Act promoted the elimination of First Nations through voluntary enfranchment the relinquishment of legal Indian status in exchange for land and the right to vote
1857 Gradual Civilization Act promoted the elimination of First Nations through voluntary enfranchment the relinquishment of legal Indian status in exchange for land and the right to vote
1857 Gradual Civilization Act promoted the elimination of First Nations through voluntary enfranchment the relinquishment of legal Indian status in exchange for land and the right to vote
Amendment attempted to abolish all cultural practices including speeches, gift-giving, dance, and ceremony, remaining in e ect until 1951
1860 Indian Day operated between the to 1990s
1860 Indian Day Schools operated between the 1860s to 1990s
1880 Fraser Marshall led group of 20 boys on 5 day YMCA camping trip Spencer's Point, Nova Scotia
1860 Indian Day Schools operated between the 1860s to 1990s
1860 Indian Day Schools operated between the 1860s to 1990s
1881 Formal camping idea started by Ernest Balch on Squam Lake Beginning of private camps for boys
1867 Passing of the British North America Act John A MacDonald becomes first Prime Minister of Dominon of Canada
1867 Passing of the British North America Act John A MacDonald becomes first Prime Minister of Dominon of Canada
The main di IRSS was kids would go home at the end of the day often experienced similar treatment to what has been reported in the IRSS
The main di erence between the IRSS was that kids would go home at the end of the day Kids often experienced similar treatment to what has been reported in the IRSS
1867 Passing of the British North America Act John A MacDonald becomes first Prime Minister of Dominon of Canada
1867 Passing of the British North America Act John A MacDonald becomes first Prime Minister of Dominon of Canada
1885 First boys camp under the YMCA organized by Sumner F Dudley: Camp Dudley, NY
1887 While undertaking early surveying and planning work at Ban , Superintendent Stewart remarked that "it is of great importance that if possible the Indians should be excluded from the Park"
1890 Summer "cottages" established by the YWCA (for girls and women) (Toronto Island, Ottawa area, & Port Stanley)
The main di erence between the IRSS was that kids would go home at the end of the day Kids often experienced similar treatment to what has been reported in the IRSS
The main di erence between the IRSS was that kids would go home at the end of the day Kids often experienced similar treatment to what has been reported in the IRSS
The BNA Act provided the basic governing structures for the new country, including the ways in the Crown was to interact with Indigenous peoples There would be no nationto-nation relation between Canada and Indigenous people, instead, they were to be absorbed education becomes federal responsibility, eventually under dept of Indian A airs Indian Day begin MacDonald, a of acts passed to facilitate westwards expansion settlement, control, and assimilation of Indigenous people
The BNA Act provided the basic governing structures for the new country, including the ways in which the Crown was to interact with Indigenous peoples There would be no nationto-nation relation between Canada and Indigenous people, instead, they were to be absorbed into Canada First Nations education becomes federal responsibility, eventually under dept of Indian A airs Indian Day Schools begin Under MacDonald, a series of acts passed to facilitate westwards expansion , settlement, control, and assimilation of Indigenous people
This was followed by discriminatory hunting laws and border controls resulting in the forced expulsion of the Stoney Nakoda people from the park, setting a precedent for the exclusionary nature of natural parks as spaces of settler control
The BNA Act provided the basic governing structures for the new country, including the ways in which the Crown was to interact with Indigenous peoples There would be no nationto-nation relation between Canada and Indigenous people, instead, they were to be absorbed into Canada First Nations education becomes federal responsibility, eventually under dept of Indian A airs Indian Day Schools begin Under MacDonald, a series of acts passed to facilitate westwards expansion , settlement, control, and assimilation of Indigenous people
The BNA Act provided the basic governing structures for the new country, including the ways in which the Crown was to interact with Indigenous peoples There would be no nationto-nation relation between Canada and Indigenous people, instead, they were be absorbed into Canada First Nations education becomes federal responsibility, eventually under dept of Indian A airs Indian Day Schools begin Under MacDonald, a series of acts passed to facilitate westwards expansion , settlement, control, and assimilation of Indigenous people
1869 Gradual Enfranchisement Act aimed to replace traditional Indigenous governance structures band councils, a form of non-traditional government imposed on First Nations, also gave Superintendant
1869 Gradual Enfranchisement Act aimed to replace traditional Indigenous governance structures with band councils, a form of non-traditional government imposed on First Nations, also gave Superintendant
1869 Gradual Enfranchisement Act aimed to replace traditional Indigenous governance structures with band councils, a form of non-traditional government imposed on First Nations, also gave Superintendant
1869 Gradual Enfranchisement Act aimed to replace traditional Indigenous governance structures with band councils, a form of non-traditional government imposed on First Nations, also gave Superintendant
1871 First of the numbered treaties negotiated
1871 First of the numbered treaties negotiated
1891 Fraser Marshall began the Annual Boys' Summer Encampment in Nova Scotia Montreal YMCA began camo for 30 boys Toronto's West-End YMCA had boys camping on shore of Lake Ontario
1871 First of the numbered treaties negotiated
1871 First of the numbered treaties negotiated
1892 Federal gov passes an Order-inCouncil to establish Indian Residential School System for purposes of "civilizing, Christianizing, and assimilating"
Education defined as transfer' becomes feature of the treaties Industrial schools created to give new tools to to a changing environment Assimilation not yet the goal
Education defined as 'skill transfer' becomes a feature of the treaties Industrial schools created to give Indigenous people new tools to adapt to a changing environment Assimilation not yet the goal
Education defined as 'skill transfer' becomes a feature of the treaties Industrial schools created to give Indigenous people new tools to adapt to a changing environment Assimilation not yet the goal
Education defined as 'skill transfer' becomes a feature of the treaties Industrial schools created to give Indigenous people new tools to adapt to a changing environment Assimilation not yet the goal
1873 Shingwauk Indian Industrial School opening
1873 Shingwauk Indian Industrial School opening
1873 Shingwauk Indian Industrial School opening
1873 Shingwauk Indian Industrial School opening
Indigenous peoples
expansion
expansion
identity retrenchment
identity retrenchment truth reconciliation resistance
reconciliation resistance
1892 Order-in-Council passed promulgating regulations governing the operation of residential (and industrial) schools The buildings were to be the joint responsibility of the government and the church management
Books and educational supplies were to be provided from appropriation whereas maintenance, salaries, and other operating expenses were to be paid by the management with assistance from the government by way of per capita grants Grant amounts were fixed for each school and the schools were to be free to the Indians The department of Indian A airs made regulations pertaining to standards of instructoin and domestic care and appointed inspectors to enforce these standards This order in council governed IRS financing until 1957
1893 Establishment of Algonquin Park by the Ontario Government
Algonquin Provincial Park dedicated to the people of Ontario, for their benefit, healthful enjoyment, inspiration, and education Preservation of watercourses in their natural condition, safe-buarding recreational use No lands to be disposed of for settlement, mining or other purposes Phasing out of vehicles and motor boats, control of hunting by park administration The Algonquin people were forced to leave the lakes thier families had inhabited for thousands of years
1893 Ottawa YMCA began boys camp on Ottawa River
1893 Camp Keewaydin first private boys camp in Canada established in Temagami by an American
1896 Department of Indian A airs published a curriculum ( Programme of Studies for Indian Schools ) in its annual report that year Curriculum was used until the 1930s when principals were expected to adopt their province's curriculum
1900 A L Cochrane established the first private camp in Ontario
1900 1900-1910 - much experimentation in ‘boys’ work’ Ernest Thompson Seton’s Woodcraft Indians was one of these experiments
1903 Cochrane's camp, Temagami, found its permanent site in the Temagami Forest Reserve
1903 First camping conference in Boston, US, attended by approx 100 men and a few women
1905 Ontario and Quebec had total of 13 Y camps Taylor Statten attempted to reorganize summer camps for the Y by taking 12 older boys and a bulldog from Toronto to Hamilton in a covered wagon on a 6 day Gypsy Trip
5 broad subjects: english, general knowledge, writing, arithmetic, and geography
Cochrane was a physical education teacher at UCC Camp took students on trips up the Ottawa River
Identity
Identity
1830 Grand River Navigation Company
1906 Camp Northway Lodge founded by Fannie L Case (one of North America's oldest girls camps)
1906 Northway Lodge, first privately owned girls' camp in Canada was founded in Algonquin Park by an American - Fannie Case
1830 Grand River Navigation Company (private enterprise backed by the gov) made Grand River more navigable from the ongoing works of the Welland Canal feeder at Dunnvile up to Brandford to Galt, and misused funds belonging to Six Nations to build it
1830 Grand River Navigation Company (private enterprise backed by the gov) made Grand River more navigable from the ongoing works of the Welland Canal feeder at Dunnvile up to Brandford to Galt, and misused funds belonging to Six Nations to build it
1830 Grand River Navigation Company (private enterprise backed by the gov) made Grand River more navigable from the ongoing works of the Welland Canal feeder at Dunnvile up to Brandford to Galt, and misused funds belonging to Six Nations to build it
(private enterprise backed by the gov) made Grand River more navigable from the ongoing of Welland Canal feeder at Dunnvile up to Brandford to Galt, and misused funds belonging to Nations to build it
upholds the ideal that camp life should be almost as simple as life on a canoe trip Canadian Identity
Identity
1830 Construction of longest continously operating IRS, Mohawk Institute
1830 Construction of longest continously operating IRS, Mohawk Institute
1907 Dr P H Bryce (chief medical inspector) reports epidemic of student deaths in the IRSS, characterizing the health conditions as a 'national crime'
1830 Construction of longest continously operating IRS, Mohawk Institute
1830 Construction of longest continously operating IRS, Mohawk Institute
1831 Establishment of the Mohawk Institute in Brantford, the oldest Residential School in Canada (British Colony, still known as Upper Canada)
1831 Establishment of the Mohawk Institute in Brantford, the oldest Residential School in Canada (British Colony, known as Upper Canada)
1831 Establishment of the Mohawk Institute in Brantford, the oldest Residential School in Canada (British Colony, still known as Upper Canada)
1831 Establishment of the Mohawk Institute in Brantford, the oldest Residential School in Canada (British Colony, still known as Upper Canada)
Residential Schooling at this time was under British Colonial policy, and it laid the foundations for that was to come
Residential Schooling at this time was under British Colonial policy, and it laid the foundations for all that was to come
Many of these deaths were due to tuberculosis and other common, treatable illnesses His report found that, including students sent home sick, an average of 42% of Indigenous children died in the schools, with some individual schools reporting much higher rates His report was ignored, he was dismissed, and Bryce spent the rest of his life campaigning publicly to expose this truth, but with little interest or engagement from others
Residential Schooling at this time was under British Colonial policy, and it laid the foundations for all that was to come
Residential Schooling at this time was under British Colonial policy, and it laid the foundations for all that was to come
1845 Ryerson Experiment to the Legislative Assembly that industrial boarding schools be adopted for the education of Indian children Focus on religious and domestic education/skills
1845 Ryerson Experiment report to the Legislative Assembly recommending that industrial boarding schools be adopted for the education of Indian children Focus on religious and domestic education/skills
1845 Ryerson Experiment report to the Legislative Assembly recommending that industrial boarding schools be adopted for the education of Indian children Focus on religious and domestic education/skills
1845 Ryerson Experiment report to the Legislative Assembly recommending that industrial boarding schools be adopted for the education of Indian children Focus on religious and domestic education/skills
1910 Dominion council of the YWCA established first organized Y schoolgirls' camp at Geneva Park on Lake Couchiching
1857 Gradual Civilization Act promoted the elimination of First Nations through voluntary enfranchment the relinquishment of legal Indian status in exchange for land and the right to vote
1857 Gradual Civilization Act promoted elimination of through voluntary enfranchment the of legal Indian status in exchange for land and the right to
1857 Gradual Civilization Act promoted the elimination of First Nations through voluntary enfranchment the relinquishment of legal Indian status in exchange for land and the right to vote
1857 Gradual Civilization Act promoted the elimination of First Nations through voluntary enfranchment the relinquishment of legal Indian status in exchange for land and the right to vote
1860 Indian Day Schools operated between the 1860s to 1990s
1911 Attention turned to developing Indian Day Schools Scholarships o ered to Indigenous students from the Ontario Agricultural College, Guelph
1860 Indian Day operated between the to 1990s
1860 Indian Day Schools operated between the 1860s to 1990s
1860 Indian Day Schools operated between the 1860s to 1990s
1911 Camp Directors Association of North America formed
1867 Passing of the British North America Act John A MacDonald becomes first Prime Minister of Dominon of Canada
1867 Passing of the British North America Act John A MacDonald becomes first Prime Minister of Dominon of Canada
1919 Geneva Park was transferred to the YMCA by philanthropist William Thomson with the purposes of the property to be used for training and outdoor recreation
The main di IRSS was kids would go home at the end of the day often experienced similar treatment to what has been reported in the IRSS
The main di erence between the IRSS was that kids would go home at the end of the day Kids often experienced similar treatment to what has been reported in the IRSS
1867 Passing of the British North America Act John A MacDonald becomes first Prime Minister of Dominon of Canada
1867 Passing of the British North America Act John A MacDonald becomes first Prime Minister of Dominon of Canada
1919 Mary Edgar founded the Montreal YWCA Camp Oolahwan
1920 IRS becomes mandatory for children 715 years of age, through amendment to Indian Act under direction of Dept Superintendent Duncan Campbell Scott
1920 Tuxis: boys' program similar to the Scouting movment promoted by Canadian Protestant churches
The main di erence between the IRSS was that kids would go home at the end of the day Kids often experienced similar treatment to what has been reported in the IRSS
The main di erence between the IRSS was that kids would go home at the end of the day Kids often experienced similar treatment to what has been reported in the IRSS
The BNA Act provided the basic governing structures for the new country, including the ways in which the Crown was to interact with Indigenous peoples There would be no nationto-nation relation between Canada and Indigenous people, instead, they were to be absorbed into Canada First Nations education becomes federal responsibility, eventually under dept of Indian A airs Indian Day Schools begin Under MacDonald, a series of acts passed to facilitate westwards expansion , settlement, control, and assimilation of Indigenous people
The BNA Act provided the basic governing structures for the new country, including the ways in the Crown was to interact with Indigenous peoples There would be no nationto-nation relation between Canada and Indigenous people, instead, they were to be absorbed education becomes federal responsibility, eventually under dept of Indian A airs Indian Day begin MacDonald, a of acts passed to facilitate westwards expansion settlement, control, and assimilation of Indigenous people
family camping community built cottages on the site in the 1920s Site approx 140 acres, zoned as "destination commercial (DC)"
The BNA Act provided the basic governing structures for the new country, including the ways in which the Crown was to interact with Indigenous peoples There would be no nationto-nation relation between Canada and Indigenous people, instead, they were to be absorbed into Canada First Nations education becomes federal responsibility, eventually under dept of Indian A airs Indian Day Schools begin Under MacDonald, a series of acts passed to facilitate westwards expansion , settlement, control, and assimilation of Indigenous people
The BNA Act provided the basic governing structures for the new country, including the ways in which the Crown was to interact with Indigenous peoples There would be no nationto-nation relation between Canada and Indigenous people, instead, they were be absorbed into Canada First Nations education becomes federal responsibility, eventually under dept of Indian A airs Indian Day Schools begin Under MacDonald, a series of acts passed to facilitate westwards expansion , settlement, control, and assimilation of Indigenous people
Programming included midweek activities of Sunday School classes, outdoor activities, community service, and camping, successful in the 20s and 30s
1869 Gradual Enfranchisement Act aimed to replace traditional Indigenous governance structures with band councils, a form of non-traditional government imposed on First Nations, also gave Superintendant
1869 Gradual Enfranchisement Act aimed to replace traditional Indigenous governance structures band councils, a form of non-traditional government imposed on First Nations, also gave Superintendant
1869 Gradual Enfranchisement Act aimed to replace traditional Indigenous governance structures with band councils, a form of non-traditional government imposed on First Nations, also gave Superintendant
1869 Gradual Enfranchisement Act aimed to replace traditional Indigenous governance structures with band councils, a form of non-traditional government imposed on First Nations, also gave Superintendant
1920 Group of Seven painted in Algonquin Park and eleswhere in Canada from 1920-1933
(dates formally as a group)
1871 First of the numbered treaties negotiated
1871 First of the numbered treaties negotiated
1871 First of the numbered treaties negotiated
1871 First of the numbered treaties negotiated
1921 Taylor Statten began camp Ahmek
1922 Mary S Edgar opens Glen Bernard Camp
1873 Shingwauk Indian Industrial School opening
1873 Shingwauk Indian Industrial School opening
1873 Shingwauk Indian Industrial School opening
1873 Shingwauk Indian Industrial School opening
Education defined as 'skill transfer' becomes a feature of the treaties Industrial schools created to give Indigenous people new tools to adapt to a changing environment Assimilation not yet the goal
Education defined as transfer' becomes feature of the treaties Industrial schools created to give new tools to to a changing environment Assimilation not yet the goal
Education defined as 'skill transfer' becomes a feature of the treaties Industrial schools created to give Indigenous people new tools to adapt to a changing environment Assimilation not yet the goal
Education defined as 'skill transfer' becomes a feature of the treaties Industrial schools created to give Indigenous people new tools to adapt to a changing environment Assimilation not yet the goal
assimilation
assimilation
assimilation
colonial expansion
colonial expansion
assimilation colonial expansion
colonial expansion
Canadian identity retrenchment
expansion
Canadian identity retrenchment truth reconciliation resistance
identity retrenchment
Canadian identity retrenchment truth reconciliation resistance
Canadian identity retrenchment truth reconciliation resistance
1922 Taylor Statten puts on a demonstration of Ahmek's Indian Council Ring in Toronto
1922 At Statten's request, Ernest Thompson Seton spends the summer at Canoe Lake, creating Ahmek's own Indian Lore program
1922 Mary Edgar founded Glen Bernard
1924 Mrs Taylor Statten founded Camp Wapomeo
1925 six or seven private camps in Ontario, mainly for boys over 13, no co-ed camps, YMCA camps opening across the province
1925 Camp Tanamakoon founded in Algonquin Park by Mary Hamilton
1927 Six Nations took the government to court over fraud associated with making the Grand River more navigatable
1930 1930s construction on the Algonquin Park highway begins making transportation/access to camps easier
1931 height of the IRS system 80 schools in operation across the country Enrollment around 7,831 children
1931 Camp directors in Ontario (A L Cochrane, Ernest Chapman, Mary Edgar, Mr & Mrs Taylor Statten, Ferna Halliday, and Mary Hamilton) got to gether and attended meetings of the Camp Director's Association in the US
1932 first Jewish co-ed camp in CanadaCamp Winnebagoe
1933 foundation of the Ontario Camping Association
Loew’s Uptown Theatre: full ceremony from opening Hopi War Call and the Pipe of Peace Ceremony, Indian dances including the symbolic Eagle Dance and the closing Omaha Tribal Prayer (at one point Statten was criticized for ending on a pagen note instead of singing “Praise God from Whom all blessings flow ”
Program included the Indian Council Ring and teaching the boys how to perform "traditional" dances, conduct sweat lodges and make Indian crafts
Used as both a summer camp and a training centre for the physical education students of the Margaret Eaton School
acres
Membership at this time consisted of A L Cochrane, H E Chapman, Mary Edgar, Mary Hamilton, Fern Halliday, and Taylor and Ethel Statten Taylor Statten was first Chairman Group was open to anyone engaged in any aspect of camping Intention was to discuss common camping policies and problems, and better camping OCA was responsible for the development and implementation of standards for Ontario children's camps
1830 Grand River Navigation Company
1934 Indigenous author and speaker
Bernice Winslow Loft (Dawendine) gives talk at Brandford to which Mary S Bernard was in attendance
1936 founding of the Canadian Camping Association, strong link with the American group
1830 Grand River Navigation Company (private enterprise backed by the gov) made Grand River more navigable from the ongoing works of the Welland Canal feeder at Dunnvile up to Brandford to Galt, and misused funds belonging to Six Nations to build it
1830 Grand River Navigation Company (private enterprise backed by the gov) made Grand River more navigable from the ongoing works of the Welland Canal feeder at Dunnvile up to Brandford to Galt, and misused funds belonging to Six Nations to build it
1830 Grand River Navigation Company (private enterprise backed by the gov) made Grand River more navigable from the ongoing works of the Welland Canal feeder at Dunnvile up to Brandford to Galt, and misused funds belonging to Six Nations to build it
(private enterprise backed by the gov) made Grand River more navigable from the ongoing of Welland Canal feeder at Dunnvile up to Brandford to Galt, and misused funds belonging to Nations to build it
1830 Construction of longest continously operating IRS, Mohawk Institute
1830 Construction of longest continously operating IRS, Mohawk Institute
1941 In conjunction with Ontario Dept of Health, licensing of all camps was made mandatory
1830 Construction of longest continously operating IRS, Mohawk Institute
1830 Construction of longest continously operating IRS, Mohawk Institute
1831 Establishment of the Mohawk Institute in Brantford, the oldest Residential School in Canada (British Colony, still known as Upper Canada)
1944 1944 onwards, children at IRSs were fed specifically prepared vitamin biscuits where the supply of vegetables is limited
1831 Establishment of the Mohawk Institute in Brantford, the oldest Residential School in Canada (British Colony, known as Upper Canada)
1831 Establishment of the Mohawk Institute in Brantford, the oldest Residential School in Canada (British Colony, still known as Upper Canada)
1831 Establishment of the Mohawk Institute in Brantford, the oldest Residential School in Canada (British Colony, still known as Upper Canada)
1947 Amendment to the Indian School Administration Constitution
Residential Schooling at this time was under British Colonial policy, and it laid the foundations for all that was to come
Residential Schooling at this time was under British Colonial policy, and it laid the foundations for that was to come
Residential Schooling at this time was under British Colonial policy, and it laid the foundations for all that was to come
Residential Schooling at this time was under British Colonial policy, and it laid the foundations for all that was to come
1845 Ryerson Experiment report to the Legislative Assembly recommending that industrial boarding schools be adopted for the education of Indian children Focus on religious and domestic education/skills
1845 Ryerson Experiment to the Legislative Assembly that industrial boarding schools be adopted for the education of Indian children Focus on religious and domestic education/skills
1845 Ryerson Experiment report to the Legislative Assembly recommending that industrial boarding schools be adopted for the education of Indian children Focus on religious and domestic education/skills
1845 Ryerson Experiment report to the Legislative Assembly recommending that industrial boarding schools be adopted for the education of Indian children Focus on religious and domestic education/skills
1857 Gradual Civilization Act promoted the elimination of First Nations through voluntary enfranchment the relinquishment of legal Indian status in exchange for land and the right to vote
1857 Gradual Civilization Act promoted elimination of through voluntary enfranchment the of legal Indian status in exchange for land and the right to
1857 Gradual Civilization Act promoted the elimination of First Nations through voluntary enfranchment the relinquishment of legal Indian status in exchange for land and the right to vote
1857 Gradual Civilization Act promoted the elimination of First Nations through voluntary enfranchment the relinquishment of legal Indian status in exchange for land and the right to vote
1860 Indian Day Schools operated between the 1860s to 1990s
1860 Indian Day operated between the to 1990s
1860 Indian Day Schools operated between the 1860s to 1990s
1860 Indian Day Schools operated between the 1860s to 1990s
1948 Policy adopted to educate Indigenous children in association with other children [settler children] Expenditure was highly scrutinized
Replacement of system of "half-day classes and half-day work" with the a full day of classes matching the public school system in Canada Replacement of idea that schools must be erected and operated "in the bush" [wilderness], with the practice of constructing RSs within or near organized communities, and often mixed with White children These changes came to help deal with the great cost and lack of resources of operating a school in an isolated area
The main di IRSS was kids would go home at the end of the day often experienced similar treatment to what has been reported in the IRSS
The main di erence between the IRSS was that kids would go home at the end of the day Kids often experienced similar treatment to what has been reported in the IRSS
The main di erence between the IRSS was that kids would go home at the end of the day Kids often experienced similar treatment to what has been reported in the IRSS
The main di erence between the IRSS was that kids would go home at the end of the day Kids often experienced similar treatment to what has been reported in the IRSS
1867 Passing of the British North America Act John A MacDonald becomes first Prime Minister of Dominon of Canada
1867 Passing of the British North America Act John A MacDonald becomes first Prime Minister of Dominon of Canada
1867 Passing of the British North America Act John A MacDonald becomes first Prime Minister of Dominon of Canada
1867 Passing of the British North America Act John A MacDonald becomes first Prime Minister of Dominon of Canada
1949 Canadian Senate report questions the IRS system and recommends that Indigenous children attend mainstream schools
1951 Amendment to Indian Act removing ban on key customs including potlatches and powwows
1951 Potlatch Ban was abolished
1954 Algonquin Park Leases
Abolished after World War II as the public became aware of appalling treatment of aboriginal peoples
The BNA Act provided the basic governing structures for the new country, including the ways in which the Crown was to interact with Indigenous peoples There would be no nationto-nation relation between Canada and Indigenous people, instead, they were to be absorbed into Canada First Nations education becomes federal responsibility, eventually under dept of Indian A airs Indian Day Schools begin Under MacDonald, a series of acts passed to facilitate westwards expansion , settlement, control, and assimilation of Indigenous people
The BNA Act provided the basic governing structures for the new country, including the ways in the Crown was to interact with Indigenous peoples There would be no nationto-nation relation between Canada and Indigenous people, instead, they were to be absorbed education becomes federal responsibility, eventually under dept of Indian A airs Indian Day begin MacDonald, a of acts passed to facilitate westwards expansion settlement, control, and assimilation of Indigenous people
The BNA Act provided the basic governing structures for the new country, including the ways in which the Crown was to interact with Indigenous peoples There would be no nationto-nation relation between Canada and Indigenous people, instead, they were be absorbed into Canada First Nations education becomes federal responsibility, eventually under dept of Indian A airs Indian Day Schools begin Under MacDonald, a series of acts passed to facilitate westwards expansion , settlement, control, and assimilation of Indigenous people
The BNA Act provided the basic governing structures for the new country, including the ways in which the Crown was to interact with Indigenous peoples There would be no nationto-nation relation between Canada and Indigenous people, instead, they were to be absorbed into Canada First Nations education becomes federal responsibility, eventually under dept of Indian A airs Indian Day Schools begin Under MacDonald, a series of acts passed to facilitate westwards expansion , settlement, control, and assimilation of Indigenous people
1869 Gradual Enfranchisement Act aimed to replace traditional Indigenous governance structures band councils, a form of non-traditional government imposed on First Nations, also gave Superintendant
1869 Gradual Enfranchisement Act aimed to replace traditional Indigenous governance structures with band councils, a form of non-traditional government imposed on First Nations, also gave Superintendant
1871 First of the numbered treaties negotiated
1954 policy whereby the Department of Lands and Forests would honour all existing leases, including all rights of renewal Many leases expired with no renewal in the 1980s and 1990s
1869 Gradual Enfranchisement Act aimed to replace traditional Indigenous governance structures with band councils, a form of non-traditional government imposed on First Nations, also gave Superintendant
1869 Gradual Enfranchisement Act aimed to replace traditional Indigenous governance structures with band councils, a form of non-traditional government imposed on First Nations, also gave Superintendant
1957 new financing system for Indian Residential Schools (controlled-cost basis, the Dept of Indian A airs would reinburse schools for expenditure within defined limitations)
1871 First of the numbered treaties negotiated
1871 First of the numbered treaties negotiated
1871 First of the numbered treaties negotiated Education defined as transfer' becomes feature of the treaties Industrial schools created to give new tools to to a changing environment Assimilation not yet the goal
1960 Status Indian gets right to vote
Education defined as 'skill transfer' becomes a feature of the treaties Industrial schools created to give Indigenous people new tools to adapt to a changing environment Assimilation not yet the goal
Education defined as 'skill transfer' becomes a feature of the treaties Industrial schools created to give Indigenous people new tools to adapt to a changing environment Assimilation not yet the goal
Education defined as 'skill transfer' becomes a feature of the treaties Industrial schools created to give Indigenous people new tools to adapt to a changing environment Assimilation not yet the goal
1873 Shingwauk Indian Industrial School opening
1873 Shingwauk Indian Industrial School opening
1873 Shingwauk Indian Industrial School opening
1873 Shingwauk Indian Industrial School opening
assimilation
assimilation
assimilation
colonial expansion
colonial expansion
colonial expansion
colonial expansion
Canadian identity retrenchment
Canadian identity retrenchment truth reconciliation resistance
Canadian identity retrenchment truth reconciliation resistance
Canadian identity retrenchment truth reconciliation resistance
1960 60s Scoop
1966 New Dining Hall at Glen Bernard
1968 Taylor Statten II founded the Outpost on Lake Maskinoge in Temagami
1969 Federal gov passes legislation to close IRSs
1969 White Paper': statement of intent by federal gov to legally terminate financial and legal obligations to "Indians"
1970 National Parks System Plan initiated, at the time there were nineteen established national parks in Canada
Children were put in catalogues, newspapers, all part of e ort to fracture families and communities and force assimilation, continue the genocide on indigenous people From Federally mandated Residential Schools to Provincially controlled child welfare system Many children went to families in the US, many worked on a farm (child labour), some to Jewish A uent families in Montreal
1970 closing of Shingwauk and Wawanosh Indian Industrial Schools
1972 New Totem Pole built for Camp Glen Bernard in honour of 50th anniversary
1979 Twelve residential schools remain open with 1899 enrolled
1980 highest record of camper enrollment at Taylor Statten Camps
1982 The Constitution Act recognizes and a rms "existing Aboriginal and treaty rights"
1986 United Church of Canada apologizes for its role in residential schools
1988 First two residential school civil claims are filed
1990 Oka Crisis (or stando )
1990 Phil Fontaine (Ojibway grand chief of the Assembly of Manitoba Chiefs) First public figure to come out saying he was sexually abused at a school
52 schools in operation, enrollment around 7,704
clear signal that Indig politics held little meaning or importance to Canadian political leaders
The plan outlines a national territorial expansion strategy to be implemented over a target period of time, confirming the parks as a systematic infrastructure for colonizing the nation's "remote" regions Serves to codify into o cial policy the colonizing agenda which has underscored parks development since the 1880s
1993 Anglican Church of Canada apologizes
1830 Grand River Company (private enterprise backed by the gov) Grand River more navigable from the ongoing of Welland Canal feeder at Dunnvile up to Brandford to Galt, and misused funds belonging to Six Nations to build it
1830 Grand River Navigation Company (private enterprise backed by the gov) made Grand River more navigable from the ongoing works of the Welland Canal feeder at Dunnvile up to Brandford to Galt, and misused funds belonging to Six Nations to build it
1830 Grand River Navigation Company (private enterprise backed by the gov) made Grand River more navigable from the ongoing works of the Welland Canal feeder at Dunnvile up to Brandford to Galt, and misused funds belonging to Six Nations to build it
1990 Garden River First Nation launched lawsuit against Anglican Diocese of Algoma and Algoma University college claiming that Shingwauk Trust had been violated Chief Darrell Boissoneau of the Garden River First Nation called for the establishment of "Shingwauk University"
1830 Grand River Navigation Company (private enterprise backed by the gov) made Grand River more navigable from the ongoing works of the Welland Canal feeder at Dunnvile up to Brandford to Galt, and misused funds belonging to Six Nations to build it
1830 Construction of longest continously operating IRS, Mohawk Institute
1830 Construction of longest continously operating IRS, Mohawk Institute
1994 Presbyterian Church of Canada apologizes
1830 Construction of longest continously operating IRS, Mohawk Institute
1830 Construction of longest continously operating IRS, Mohawk Institute
1831 Establishment of the Mohawk Institute in Brantford, the oldest Residential in Canada (British Colony, known as Upper Canada)
1831 Establishment of the Mohawk Institute in Brantford, the oldest Residential School in Canada (British Colony, still known as Upper Canada)
Royal Commission on Aboriginal Peoples Report is released recommending a public inquiry on the e ects of residential schools on generations of Indigenous people
1831 Establishment of the Mohawk Institute in Brantford, the oldest Residential School in Canada (British Colony, still known as Upper Canada)
1831 Establishment of the Mohawk Institute in Brantford, the oldest Residential School in Canada (British Colony, still known as Upper Canada)
Also recommends the creation of a national repository of records related to the schools
Residential Schooling at this time was under British Colonial policy, and it laid the foundations for that was to come
Residential Schooling at this time was under British Colonial policy, and it laid the foundations for all that was to come
Residential Schooling at this time was under British Colonial policy, and it laid the foundations for all that was to come
Residential Schooling at this time was under British Colonial policy, and it laid the foundations for all that was to come
1845 Ryerson Experiment to the Legislative Assembly that industrial boarding schools be adopted for the education of Indian children Focus on religious and domestic education/skills
1845 Ryerson Experiment report to the Legislative Assembly recommending that industrial boarding schools be adopted for the education of Indian children Focus on religious and domestic education/skills
1996 Gordon IRS in Saskachewan is the last federally operated RS to close Last band-run residential school "White Calf Collegiate in Lebret Saskachewan closes in 1998
1845 Ryerson Experiment report to the Legislative Assembly recommending that industrial boarding schools be adopted for the education of Indian children Focus on religious and domestic education/skills
1845 Ryerson Experiment report to the Legislative Assembly recommending that industrial boarding schools be adopted for the education of Indian children Focus on religious and domestic education/skills
1857 Gradual Civilization Act promoted the elimination of First Nations through voluntary enfranchment the relinquishment of legal Indian status in exchange for land and the right to vote
1857 Gradual Civilization Act promoted elimination of voluntary enfranchment the relinquishment of legal Indian status in exchange land and the right to
1857 Gradual Civilization Act promoted the elimination of First Nations through voluntary enfranchment the relinquishment of legal Indian status in exchange for land and the right to vote
1857 Gradual Civilization Act promoted the elimination of First Nations through voluntary enfranchment the relinquishment of legal Indian status in exchange for land and the right to vote
1860 Indian Day Schools operated between the 1860s to 1990s
1860 Indian Day operated between the 1860s to 1990s
1860 Indian Day Schools operated between the 1860s to 1990s
1860 Indian Day Schools operated between the 1860s to 1990s
The main di erence between the IRSS was that kids would go home at the end of the day Kids often experienced similar treatment to what has been reported in the IRSS
The main di erence IRSS was kids would go home at the end of the day Kids often experienced similar treatment to what has been reported in the IRSS
The main di erence between the IRSS was that kids would go home at the end of the day Kids often experienced similar treatment to what has been reported in the IRSS
The main di erence between the IRSS was that kids would go home at the end of the day Kids often experienced similar treatment to what has been reported in the IRSS
1867 Passing of the British North America Act John A MacDonald becomes first Prime Minister of Dominon of Canada
1867 Passing of the British North America Act John A MacDonald becomes first Prime Minister of Dominon of Canada
1997 Assembly of First Nations and its national chief Phil Fontaine negotiate Statement of Reconcilation with a Healing Fund of $350 mil for survivors of RSs Aboriginal Healing Foundation (AHF) is funded to support community based healing addressing intergenerational legacy of physical and sexual abuse in the RS system, ends operation in 2014
1867 Passing of the British North America Act John A MacDonald becomes first Prime Minister of Dominon of Canada
1867 Passing of the British North America Act John A MacDonald becomes first Prime Minister of Dominon of Canada
2002 After years of negotiations, Algonquin Park Superintendent John Winters quietly announced 60 year lease extensions for all Algonquin Park camps
The BNA Act provided the basic governing structures for the new country, including the ways in which the Crown was to interact with Indigenous peoples There would be no nationto-nation relation between Canada and Indigenous people, instead, they were to be absorbed into Canada First Nations education becomes federal responsibility, eventually under dept of Indian A airs Indian Day Schools begin Under MacDonald, a series of acts passed to facilitate westwards expansion , settlement, control, and assimilation of Indigenous people
The BNA Act provided the basic governing structures for the new country, including the ways in the Crown was to interact with Indigenous peoples There would be no nationto-nation relation between Canada and Indigenous people, instead, they were to be absorbed education becomes federal responsibility, eventually dept of A airs Indian Day MacDonald, a of acts passed to facilitate westwards expansion , control, and assimilation of Indigenous people
This lease renewal (originally leased from the Ontario Provincial Gov) was followed by repairs, and additions: barges, new lodge, theatre facility, triproom, central washroom with solar panels for hot water production, high ropes courses, expanded water activities, and a house in Toronto acting as main Winter o ce
The BNA Act provided the basic governing structures for the new country, including the ways in which the Crown was to interact with Indigenous peoples There would be no nationto-nation relation between Canada and Indigenous people, instead, they were to be absorbed into Canada First Nations education becomes federal responsibility, eventually under dept of Indian A airs Indian Day Schools begin Under MacDonald, a series of acts passed to facilitate westwards expansion , settlement, control, and assimilation of Indigenous people
The BNA Act provided the basic governing structures for the new country, including the ways in which the Crown was to interact with Indigenous peoples There would be no nationto-nation relation between Canada and Indigenous people, instead, they were to be absorbed into Canada First Nations education becomes federal responsibility, eventually under dept of Indian A airs Indian Day Schools begin Under MacDonald, a series of acts passed to facilitate westwards expansion , settlement, control, and assimilation of Indigenous people
1869 Gradual Enfranchisement Act aimed to replace traditional Indigenous governance structures with band councils, a form of non-traditional government imposed on First Nations, also gave Superintendant
1869 Gradual Enfranchisement Act to replace traditional governance structures band councils, a form of non-traditional government imposed on First Nations, also gave Superintendant
1869 Gradual Enfranchisement Act aimed to replace traditional Indigenous governance structures with band councils, a form of non-traditional government imposed on First Nations, also gave Superintendant
1869 Gradual Enfranchisement Act aimed to replace traditional Indigenous governance structures with band councils, a form of non-traditional government imposed on First Nations, also gave Superintendant
1871 First of the numbered treaties negotiated
1871 First of the numbered treaties negotiated
1871 First of the numbered treaties negotiated
1871 First of the numbered treaties negotiated
1873 Shingwauk Indian Industrial School opening
1873 Shingwauk Industrial School opening
1873 Shingwauk Indian Industrial School opening
1873 Shingwauk Indian Industrial School opening
Education defined as 'skill transfer' becomes a feature of the treaties Industrial schools created to give Indigenous people new tools to adapt to a changing environment Assimilation not yet the goal
Education defined as transfer' becomes a feature of the treaties Industrial schools created to give Indigenous people new tools to adapt to a changing environment Assimilation not yet the goal
Education defined as 'skill transfer' becomes a feature of the treaties Industrial schools created to give Indigenous people new tools to adapt to a changing environment Assimilation not yet the goal
Education defined as 'skill transfer' becomes a feature of the treaties Industrial schools created to give Indigenous people new tools to adapt to a changing environment Assimilation not yet the goal
assimilation
assimilation
assimilation
assimilation
colonial expansion
assimilation
colonial expansion
colonial expansion
colonial expansion
colonial expansion
Canadian identity retrenchment truth reconciliation resistance
Canadian identity retrenchment
Canadian identity retrenchment truth reconciliation resistance
Canadian identity retrenchment truth reconciliation resistance
Canadian identity retrenchment
2009 Camp Ahmek begins making changes to the Council Ring program under new directorship of Jay Kennedy and supervision of Jim Adams (storyteller and educator of Swampy Cree - Innu, Mohawk, and English ancestry) for a few years
2012 Indigenous led social movement "Idle No More" founded among Treaty People in Manitoba, Saskachewan, and Alberta protesting the Canadian government's dismantling of environmental protection laws, endagering First Nations who live on the land
2013 Greg Alisser - new director of Ahmek continued rewriting the Council Ring program - removing symbols of painted warriors and replacing them with tableaus of voyageaur and campcraft skill-building scenes, changing the Chief to a historic leader and outdoor educator - still able to bring the ceremony to a historic period but changing the narrative it was telling
2021 Opening of Shingwauk University (SKG)
An institution opened in the name of Chief Shingwauk, on the basis of equal partnership between Aboriginal and non-aboriginal [settler] Canadians in the tradition of the partnership of Chief Augustine Shingwauk and the Reverend E F Wilson would restore the integrity of the Shingwauk Trust and would fulfil the mandate of the site established in 1875
assimilation
colonial expansion
Canadian identity retrenchment truth reconciliation resistance
132 W. A. Milks, Director Camp On-Da-Da-Waks, “Camp On-Da-DaWaks Golden Lake Counssellor's Manual”, Ottawa YMCA Boys' Camp, 1908. Trent University Archives. Ronald H. Perry fonds, 82016/002/007.
This is a selection of entries detailing the archival research process. Materials were combined and sorted from both the Trent University Archives (OCA Collection) and the Shingwauk Residential School Centre. In the following chart, the materials are sorted by date and tagged with its relevance and the type of document (eg. education manual, promotional material, description of spaces). To highlight a few findings:
What are the perceived “problems” with the children, and how are the institutions framed to “solve” these problems? A very close example was found in the comparison of a 1908 Summer Camp Manual and then a 1911 description in a government document of the strategy of the IRS. We see very different perspectives on what White and Indian children need:
On-Da-Da-Waks Golden Lake Counsellor’s Manual (1908)
"The health-giving value of the summer camp alone would justify its existence. … Report promptly to the doctor or nurse the first signs of irregularity; watch for skin eruptions, sun burns, loss of appetite, headaches, pains, colds and constipation." … "Have constant concern for the social adjustment of each individual in your cabin; with extra thought for the homesick, shy, or awkward camper. Remember that you have 7 different kinds of boys to teach to live together as a happy family unit." … "The intimate, free and inter-dependent life, the necessity for a spirit of goodwill, mutual helpfulness and for sympathetic understanding, all combine to make social beings of your boys. Make good use of your opportunities."
132
Agreement between His Majesty the King and Rt. Rev. D.J. Schollard, D. D. Bishop of the Diocese of Sault Ste. Marie regarding the Wikwemikong Industrial School (1911)
"To provide at the said School teachers and officers qualified to give the pupils religious instruction at proper time; to instruct the male pupils of the said school in gardening, farming, and care of stock, or such other industries as are suitable to their local requirements; to instruct the female pupils in cooking, laundry work, needlework, general houswifery and dairy work, where such dairy work can be carried on; to teach all the pupils in the ordinary branches of an English education; to teach calisthenics, physical drill and fire drill; to teach the effects of alcoholic drinks and narcotics on the human system, and how to live in a healthy manner; to instruct the older advanced pupils in the duties and privileges of British citizenship, explaining to them the fundamental principles of the government of Canada, and training them in such knowledge and appreciation of
Canada as will inspire them with respect and affection for the country and its laws."133
In the next example, there is evidence of government role in Summer Camps, as in 1938, The Department of Planning and Development of the Provincial Government considers funding Summer Camps as they see potential in the education system to help build National Identity. This can be compared with the severely underfunded Residential School system. The following document also evidences the relation with the camp and land possession and colonial expansion.
Ontario Camping Association, Statement on Camping for Boys and Girls: The Department of Planning and Development of the Ontario Government (1938)
A document of the OCA responding to something from the Dept of Planning and Development of Ont Gov., expressing appreciation of the gov's interest in camping, and that the camping experience should be the heritage of every boy and girl. The OCA does not want camping to be the sole responsibility of the Gov. They are asking for additional support and subsidy to help them reach more children, to subsidize the cost of leadership, reduction of camp fees, cover or reduce transportation cost (to campers), subsidy or grant for the purchase of sites and equipment, and subsidy to meet municipal taxes on camp properties. Leadership should be "sufficient in number, capable, trained, of high moral character and religious faith". The OCA also requests the help of the government in securing the best sites for camps (as was authorized by the United States National Park Service of several million dollars). They suggest that RCAF and Army Camp sites may be turned over and used for this purpose when the war [WW2] is over. They also want more permanent buildings. Navy, Army, and RCAF equipment could be put to use in approved camps.134
133 Correspondence, Department of Indian Affairs, “Agreement between His Majesty the King and Rt. Rev. D.J. Schollard, D. D. Bishop of the Diocese of Sault Ste. Marie regarding the Wikwemikong Industrial School”, 1911. SRSC Archives.
134 Ontario Camping Association, “Statement on Camping for Boys and Girls”: The Department of Planning and Development of the Ontario Government, 1938. Trent University Archives. 72-007/001/012. Folder 14 –Articles on Ontario Camps.
empasis on the health benefits of camp which alone justify the camp's existence. Always about nurturing, positive reinforcement, suggesting rather than instructing, lax supervision rather than constant. Campers were always dressed properly for the weather, instructed to be hygenic and wash regularily. Study individual needs, fill out daily health reports,
"The health-giving value of the summer camp alone would justify its existence.
… Report promptly to the doctor or nurse the first signs of irregularity; watch for skin eruptions, sun burns, loss of appetite, headaches, pains, colds and constipation."
… "Have constant concern for the social adjustment of each individual in your cabin; with extra thought for the homesick, shy, or awkward camper. Remember that you have 7 different kinds of boys to teach to live together as a happy family unit."
… "The intimate, free and inter-dependent life, the necessity for a spirit of goodwill, mutual helpfulness and for sympathetic understanding, all combine to make social beings of your boys. Make good use of your oppurtunities."
This is an agreement between the Management of the school and the British crown in consideration of the compensation hereinafter
"9. To provide at the said School teachers and officers qualified to give the pupils religious instruction at proper time; to instruct the male pupils of the said school in gardening, farming, and care of stock, or such other industries as are suitable to their local requirements; to instruct the female pupils in cooking, laundry work, needlework, general houswifery and dairy work, where such dairy work can be carried on; to teach all the pupils in the ordinary branches of an English education; to teach calisthenics, physical drill and fire drill; to teach the effects of alcohollic drinks and narcotics on the human system, and how to live in a healty manner; to instruct the older advanced pupils in the duties and privileges of British citizenship, explaining to them the fundamental principles of the government of Canada, and training them in such knowledge and appreciation of Canada as will inspire them with respect and affection for the country and its laws."
Ronald H. Perry fonds
Ronald H. Perry fonds
82-01628
Quote on the importance of a change of environment offered by camp, which in the end is meant to reinforce the family unit and living in an urban setting.
82-01628
p. 9 a talk to parents on emotional weaning by taylor statten. References "American aborigines" custom of banishing girls upon arrival of reproductive maturity in a small hut for six months, then about primitive public ceremonies, conclusion about needing to get away from the family in order to reach emotional maturity.
Ottawa YMCA Boys' Camp
W. A. Milks, Director Camp On- Da-Da- Waks
Waks Golden Lake Counssellor's Manual
between His Majesty the King and Rt. Rev. D.J. Schollard, D. D. Bishop of the Diocese of Sault Ste. Marie regarding the Wikwemikong Industrial School Departme nt of Indian Affairs
TUA1930AhmekTestimonial
TUA1931AhmekTestimonial
quotes notes
Camp for Boys Camp Manitou "On America's Last Frontier" p. 1, "No frontier is authentic without the Indian. In this respect Camp Manitou does not fail. All about are reserves on which are found the Indian …" p. 14 seems to have native councellors teaching woodcraft and canoeing. 2018- 041/001
72- 007/1/12
on Camping for Boys and Girls: The Department of Planning and Development of the Ontario Government Ontario Camping Associat ion document of the OCA responding to something from the Dept of Planning and Development of Ont Gov., expressing appreciation of the gov's interest in camping, and that the camping experience should be the heritage of every boy and girl. The OCA does not want camping to be the sole responsibility of the Gov. They are asking for additional support and subsidy to help them reach more children, to subsidize the cost of leadership, reduction of camp fees, cover or reduce transportation cost (to campers), subsidy or grant for the purchase of sites and equipment, and subsidy to meet municipal taxes on camp properties. Leadership should be "sufficient in number, capable, trained, of high moral character and religious faith". The OCA also requests the help of the government in securing the best sites for camps (as was authorized by the United States National Park Service of several million dollars). They suggest that RCAF and Army Camp sites may be turned over and used for this purpose when the war [WW2] is over. They also want more
Ronald H. Perry fonds
Ronald H. Perry fonds
82-01624
during WW2, suggestion [?] of including a course in woodcraft in public [?] school for grade IX.
82-01624
Camping knowledge came in use in the federal gov. and Dept of National defense, including wartime. Woodcraft skills seen as important for survival of army and regular citizens. Characteristically Canadian.
C. S. of C. on Woodcraft: "Should concieve of this as being a characteristically Canadian[underlined] skill. Emphasize Page 4 (para. 3)War time needprotectionIf invade Canadians must be qualified to survive in own country. Negative attitudecanoes, drawings. Poor Drawings. What Woodcraft entailsTransportationTrails waterways; CampingFood, Clothing, Shelter; SafetyFirst Aid, Swimming, Life Saving; Fishing & Hunting; Forest Knowledge; Equipment; Organisation; Map Reading.
GSB:S Letter from Village of Forest Hill Schools,
from GSB:S to R. H. Perry
Ronald H. Perry fonds
82-01636
The Ontario dept of educaiton recognizes the summer camp as a potent educatoinal factor, its programme elements supplementing the formal work of the school. Subsidies (less than $1.50 per day), need to establish standards in camping activities, prioritizing health and safety of campers,
TUA1943Summer Camp
Colonel C. G. M. Grier Room 522, Canadian Building Ottawa, Canada
TUA1944Summer Camp INTERSEC TION Letter from Department of National Defense Army in Ottawa, Canada to R. H. Perry regarding the manual Ron was putting together on Canadian Trees
TUA1947Summer Camp ResearchStrategyUniversity of Toronto School of Social Work documents pertaining to the organizing of thC
look up UofT's involvment with camping becoming a formal education programmelaunching a training ground for camp directors. at YMCA Pinecrest near Gravenhurst. Also see more on Province of Ontario subsidies for camps (rates to campers are only $1.30 or less per day). Under cooperative sponsership of the Extension Department of the University of Toronto, the Camping Association, the Canadian Red Cross, and the Canadian Welfare Council. The Ontario Department of Education and the Department of Lands and Forests shared responsibilty for providing personnel qualified to act as instructors in a wide variety of fields.
Describes the program, focused on a 4-6 day canoe trip. Also fellowship and orientation, group planning and discussion, canoe and water sports and training, and a practice 1 day trip. Also swimming, water sports, campfire program, fishing during free periods, recreation hall with games and reading materials for indoors, worship services on Sundays along with short religious content during the week.
Also reported on the satisfaction of the campers, health (they have 4 beds in the infirmary, at one point all four beds were filledasthma, sunburn, over-tired, stomach upset, headache, slight fever. Most common were Athlete's foot, boils, foot infections, cuts, bruises, ear-ache. ….. Transportation of campers was by chartered bus. Takes 6.5-7 hours
"Canada's backwoods have become a classroom for Canadian youth. With the University of Toronto playing its part, a formal education programme has been launched to train camp directors in skills which ranked high in the historic past but now are almost forgotten; how to get along among the forests and streams of the wilderness." … ""Ahmek" is Indian for "beaver". It adequately symbolized the national aspect of the camp, for to Camp Ahmek came 200 people from all parts of the country.
e StrategyReport of The DirectorCamp KawabataYMCA Ralph H. Wagner Niagara Falls, NY
TUA1952Summer Camp
33/001
Letter correspondance describing changes and renovations and general upkeep of the schools or "homes" in Spanish, ON. A man named Mr. Phil Phelan helping with these changes and upkeep, talk of more toilets (in 1952 they had only 8 for almost 200 boys). The extensions were to be made with a cement floor, structure of wood and covered with insulated brick, heated from their main system. Also proposed changes to the location of the dining room and parlour, and the need for refinishing (painting, varnishing) these rooms of the "house". They have hay (delivered?) and a garden and potato crop. Lots of attention paid to keeping the buildings in an orderly state and upkept finishes. Also in permanent, planned structures echoing the design and materials of the existing building, no need for temporary structures of wood. Plan of current and proposed addition hand drafted in coloured crayon? (p. 10) Emphasis on building in solid, permanent materials and in a style which conforms in colour, material, and style to the rest of the building.
On the request for funding for an extension to the recreation hall, Reverend Father Provincial S.J., 2 Dale Avenue, Toronto 5, ON. August 31, 1952. "I do not understand why a temporary structure of wood is contemplated if the addition is to serve a permanent need." (p. 7)
e and floor plan, also penny bank page titled "Pennies to Aid Indian Boys School, Spanish ON Correspo ndance between G. E. Nunan S. J. and C. N. Rushman, S. J. Spanish ON, Toronto ON.
e A rchitectural Drawings
Info on feeding many children at camp, how to prepare and do this well, emphasis on nutrition and balanced diet, hygiene, menus,
"From the dawn of history to the present, organized societies, both public and private, have always relied on one form of activity: education, and one institution: the school, to train leaders for the future generations. Education has always been the key instrument to preserve and improve culture in general, and a special form of government, in particular." p. 2 "Realistic Indian Education", The Indian Missionary Record, Feb. 1953.
quotes
reread Indian Record, June 1967, p. 7, 10 from article "The Forgotten Peoples"evidence of native people being forgotten in the pastwritten into the past and unable to modernizethey would phase out.
"Education was and is one of the arms of the Church in the development of the Indigenous peoples. … the Catholic church is one of the institutions most preoccupied with the Indian problem.
… In the Diocese of Acapulco some twenty Indian dialects are spoken. Spanish is the official language of Mexico. This indicates a difficult problem for the governments of the southern developing countries: most of their Indian populations live on the margin of society politically, culturally and economically. These governments are, at the same time, trying to solve problems of industrailization and urbanization, which trends will bring them to full stature in the modern world. As a consequence the Indians are in many cases an unknown or forgotten people." p. 10, Indian Record "The Forgotten Peoples" June 1967.
"The Forgotten People", Indian Record
2012-033- 001 129 Grey Nuns of Montreal Collection TUA1969Ahmek
21 Synod of the Diocese of Algoma Fonds
80- 014/1/5
With nicknames for of the founders: Taylor Statten "Chief", Mrs. Taylor Statten "Tonakela", George Chubb "Chubby". Originally associated with the YMCA, established independent camps in 1921.
Ahmek for boys and Camp Wapomeo for Girls Taylor Statten Camps
The Taylor Statte n Camps Folder SRSC1997Shingwauk
2013- 117/002
"The main building, erected in 1875, measured one hundred and sixty feet by seventy-five feet and contained offices, dormitories, lavoratories, a bakery, kitchen, dining, play and staff rooms. In the two ajoining wings, on the south and north were the principal's residence and, since 1896, the Wawanosh School for Girls." (1) Failed to fulfuil their original promise due mainly to a shortage of both material and human resources. *this is one opinion among many evidences of much worse objectives of the schools. See Bishop Fauquier (bishop 1873-1882)
Ronald H. Perry fonds
82-01624
emphasis only on fishing as a Canadian skill, replacing "native" with "local inhabitants" to claim ownership.
"To the traveller in almost any portion of Canada the importance of some knowledge in fishing cannot be overemphasized. … The art of fishing has been a fabourite past-time of men, as well as a way of earning a living, since time immemorial. In every portion of the world the local people have local customs which time has proven the most effective way of fishing in that area. … The beginner would do well to pay attention to the advice given him by the natives [crossed out, replaced] local inhabitants. In any town in Canada there will be small boys and old men who will know far more about fishing in that section of the country than any person else and they will be pleased and flattered at having thier advice and opinions sought after.
Shingwauk and Wawanosh Schools data compiled by Alan Knight Alan Knight
TUAn.d. How to Catch Fish - Perhaps? H. B. Bell
Johnson, Pauline fonds
89-013112
discusses the state of the Indians, or red man in Canada today with thier former glory but present tragedy. Including a descripiton of day schools on the reserve in Alberta and what the Indians are learning there.
"We are told that the Indian in his primitive state was clean as to body —that he bathed frequently. Since he has been forced to wear white men's clothes, and live in white men's houses, no one would have the courage to suggest how often he bathes. In the schools on the reservations, however, the gentle art of cleanliness is being taught, and perhaps in the course of a generation or two our Indian brave will sterilize his clothing and faint at the sight of a germ. On the reserve mentioned, which consists of 69,120 acres of the finest land in Alberta, there are about 200 Indians. Of these twenty-six are of school age. These children are being given a practical education—the boys caring for the horses, cattle, garden, and wood supply of the institution, while the girls are taught household duties, sewing, and beadwork. It is discouraging work at the best, as only a few are industrious, and the school master, ministerm and matron must
The Canadian Magazine (p. 403407)
Nancy Rankin
The Tragedy of the Red Man