









Nas edições anteriores de Arquitetura & Aço, procuramos apre sentar os avanços que o sistema construtivo em aço tem alcan çado, demonstrando que esta tecnologia é uma grande aliada da construção civil. E se características como durabilidade, resistência e rapidez de montagem tornaram seu emprego indispensável às obras de infraestrutura, os mesmos fatores somados a sua estética contemporânea fazem do produto uma excelente solução para edi ficações comerciais.
Com linguagem característica e única, o aço possibilita criações arrojadas, como é o caso do showroom da Ferrari e Masserati, em São Paulo, onde o arquiteto recorreu a conceitos do ecodesign para a concepção de uma obra que une aço e concreto. Também impo nente e original é a loja da Suxxar, em São Paulo, cuja estrutura metálica colaborou não só com o design, mas com o prazo reduzido da construção. Ainda na área gourmet, o restaurante Zozô, no Rio de Janeiro, se abre para a paisagem com a combinação de aço e vidro. Também na capital paulista, showroom da Hyundai se destaca pela sóbria combinação do aço e do vidro. Dois outros estabeleci mentos que também se beneficiaram da rapidez e da limpeza da construção em aço são mostrados nesta edição: o Torra Torra, em São José do Rio Preto, e o supermercado Angeloni, que passou por projeto de reforma sem interrupção de suas atividades.
Na entrevista dessa edição, o arquiteto Luiz Fernando Rocco fala de sua afinidade com o aço e o uso de elementos metálicos aparen tes. Um exemplo é o restaurante Empório Baglioni, de sua autoria e apresentado aqui. Por fim, uma agência da Caixa Econômica Federal, em Posse (GO), em steel framing, que integra a proposta de novos projetos que buscam responder a questões de sustenta bilidade. Já no cenário internacional, apresentamos o The Cube, um insólito restaurante itinerante que, como uma instalação, percorre as capitais europeias. Boa leitura!
04. Na capital paulista, concessionária da Hyundai é construída em aço e vidro. 08. Restaurante Zozô é destaque em meio à paisagem natural do Rio de Janeiro. 12 Projeto da nova loja da Suxxar , em São Paulo, foi concebido com sistema estrutural que remete ao “duplo X” da marca. 16. Estrutura metálica viabiliza projeto de ampliação do supermercado Angeloni, em Santa Catarina. 20. No interior de São Paulo, filial da loja Torra Torra tem estrutura em aço aparente. 22. Ambiente intimista com ares de galpão industrial define a linguagem do restaurante Empório Baglioni, em São Paulo. 24. Em entrevista, arquiteto Luiz Fernando Rocco revela o porquê de sua afinidade com o aço. 26. Sistema steel framing possibilita cons trução de agência da Caixa Econômica Federal em apenas 60 dias. 28. Como uma instalação, restaurante itinerante The Cube percorre países da Europa. 32. Showroom da Ferrari e Masserati, em São Paulo, é projetado sob ideais de ecoeficiência.
Vigas metálicas dão horizon talidade ao edifício, marcando linhas de ponta a ponta e afastadas 70 cm dos pilares
Por meio de uma sobrePosição de transParências, o Pavilhão da Hyundai, localizado no bairro do Morumbi, em São Paulo, se destaca por permitir a visibilidade total da área interna da loja, ao mesmo tempo em que, de dentro do edifício, mantém a vista da cidade. Para uma concessionária, mais do que uma opção estética, ver e ser visto é uma estratégia importante para garantir a exposição e valorizar seus veículos.
O projeto foi desenvolvido para ser executado em três meses. “Isto implicou no uso de sistemas construtivos racionalizados, como as estruturas em aço, solução que favoreceu a expressão dos demais materiais empregados”, explica o arquiteto Tiago Andrade, coordenador técnico da Spadoni AA. “O aço ofereceu agilidade, simplicidade, luminosidade e leveza estrutural para o tipo de pro jeto que desejávamos”, complementa.
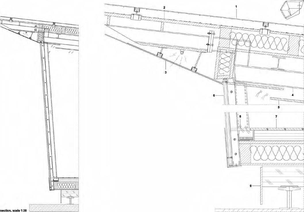
A composição da estrutura metálica levou em consideração o peso dos vidros, garantindo maior transparência por meio da uti lização de perfis esbeltos. Na fachada, é possível observar as vigas e as colunas em perfis laminados. Cruzando diagonalmente esta trama, os contraventamentos são em perfis tubulares.
Toda a edificação é fechada por painéis de vidro. Outro desta que é a fachada principal, que tem 45 m de comprimento e 9,60 m de altura, superando o pé-direito do showroom, que é de 7 m. A construção está elevada a 1,20 m do nível da rua, e apoiada sobre uma base de concreto. Desta maneira, é possível visualizar melhor o seu interior, mesmo quando há carros no estacionamento. A planta em L é composta, basicamente, por dois blocos; outra solu ção, que gerou leveza visual ao partido arquitetônico, foi a criação de um mezanino onde foram instalados o departamento admi nistrativo, os sanitários, bem como recepção e área de entrega de carros. Abaixo, ficam os veículos expostos e área de atendimento.
Por se tratar de uma “grande caixa de vidro”, o desafio foi encontrar uma solução construtiva que permitisse a supressão completa dos caixilhos, maximizando a transparência da construção ao aplicar as placas de vidro diretamente na estrutura principal. Segundo o arquiteto, as superfícies são formadas por painéis de vidro lamina do com espessura de 12 mm, com modulação horizontal de 1,25 m e vertical de 3,20 m. Posicionados à frente da estrutura metálica, os painéis estão fixados apenas nas estruturas horizontais, eliminan do os montantes verticais.
Para executar a fixação da primeira fileira horizontal de vidros na estrutura metálica, o projeto lançou mão de inserts de aço inoxidável, chumbados no piso do pavilhão. Desta maneira, não foram necessários caixilhos ou colunas demarcando cada uma das folhas de vidro. Uma viga metálica, formada por dois perfis, percorre todo o perímetro do edifício no nível intermediário do pavilhão e está afastada 70 cm dos apoios verticais acentuan do a horizontalidade da solução. Esta estrutura horizontal é for
> Projeto arquitetônico: Spadoni AA (responsável: Francisco Spadoni; coordenador: Tiago Andrade; equipe: Carolina Mina Fukumoto, Fabiana Benine, Ricardo Canton e Sabrina Chibani; coordenação Hyundai-CAOA: J.Pereira, e Priscila Sperandio)
> Área construída: 1.170 m²
> Aço empregado: ASTM A36, ASTM A572 e ASTM A500 (tubos)
> Projeto estrutural: Prodenge Engenharia
> Fornecimento da estrutura metálica: Açotec Indústria e Comércio
> Execução da obra: Lampur Engenharia
> Local: São Paulo, SP
> Data do projeto: 2009
> Conclusão da obra: 2009
À esquerda, a grande parede de vidro da Avenida Chucri Zaidan tem 45 m de compri mento e 9,60 m de altura, superando o pé -direito do showroom, que é de 7 m. Acima, à direita, observam-se, em detalhes, os painéis de vidro que formam o envelope de fechamento
mada por dois perfis de aço laminado, avançando 70 cm para o exterior da loja, e soldada à superestrutura da construção. A cada 10 m, no comprimento da travessa, foram soldadas cantoneiras em aço inox, contribuindo para o suporte dos vidros da parte superior, onde foi utilizado silicone estrutural para a sua fixação.
Devido ao tipo de fechamento com grandes panos de vidro, um sistema de cortina em rolo foi instalado na fachada principal, sendo acionado nos horários em que o sol é mais intenso, acentuando a sobreposição de superfícies e transparências do edifício. (e c.) M
Que a beleza natural é característica do rio de Janeiro, ninguém discute. Integrar e desfrutar desta beleza em meio a tantas construções típicas de uma grande cidade, porém, é um desafio que parece instigar os arquitetos, urbanistas e empresas do setor da construção. Exemplo disso é o restaurante Zozô, na zona sul da cidade.
Com 1.750 m2 de área construída, num terreno de 750 m2, e estrutura em aço, totalizando quatro pavimentos, o espaço é um complexo gastronômico e de entretenimento. O grande destaque é sua inserção na paisagem: está localizado ao lado da estação do “Bondinho”, em frente aos morros da Urca e do Pão de Açúcar, e de fundos para a encosta rochosa do Morro Cara de Cão.
O desafio inicial da obra foi destacar o Zozô e, ao mesmo tempo, “desintegrá-lo” no seu entorno imediato, um dos maiores ícones do Rio de Janeiro e do Brasil, segundo o arquiteto Vicente Giffoni, diretor do escritório responsável pelo projeto.
Tudo foi pensado a partir da criação das chamadas bay windows – retráteis, em estrutura metálica e vidro com controle solar –, responsáveis por potencializar as perspectivas visuais do entorno, e integrar os três pavimentos de uso público com a mangueira centenária que atravessa o restaurante. O pavimento dedicado às áreas de infraestrutura, fica em meio nível em relação ao terreno. Todas as janelas instaladas contam com esquadrias móveis em aço de maior resistência à corrosão, mesmo material dos perfis “I” da estrutura.
Ainda de acordo com o arquiteto Giffoni, o aço garantiu rapidez na fase construtiva, diminuição das sobrecargas, minimização de
desperdícios e perdas no canteiro. “Sem falar que no aspecto estéti co, deu um ar mais esbelto à construção.”
Pelas características multifuncionais e pela necessária flexibi lidade de uso, o partido desenvolveu-se de modo a maximizar as áreas de estar e atendimento, além de um núcleo de circulação vertical, alimentando o restaurante e o lounge no térreo. A cober tura e o terraço contam com uma casa de shows e área de eventos, respectivamente. A implantação escalonada permitiu maximizar a iluminação natural e a ventilação, aumentando a sensação de amplitude. Além disso, a transparência do fechamento em vidro garantiu o acesso ao cenário privilegiado. (c.e.) M
> Projeto arquitetônico: VG. Vicente Giffoni Arquitetura e Planejamento Ltda.
> Área construída: 1.750 m²
> Aço empregado: aço de maior resistência à corrosão
> Projeto estrutural: Projest Consultoria e Projetos
> Fornecimento da estrutura metálica: BR-Aço
> Execução da obra: Arte Engenharia
> Local: Rio de Janeiro, RJ
> Data do projeto: 2003
> Conclusão da obra: 2007
Acima, o espaço gastronômico e de entrete nimento tem quatro pavimentos e foi cons truído inteiramente com estrutura em aço. Dos fundos da construção se avista o Morro Cara de Cão. À esquerda, na imagem aérea é possível entender o conceito de implantação do restaurante
O prOjetO da nOva LOja Suxxar, em São Paulo, encomendado ao escri tório de arquitetura de Jayme Lago Mestieri pelo Grupo Santa Helena, apresentou o desafio de abrigar cerca de 10 mil acessórios e utensílios para o segmento gourmet. Inspirando-se no próprio nome da empresa, o arqui teto concebeu um sistema estrutural que remete ao duplo X da marca. A opção pela estrutura em aço, segundo
o arquiteto, além de colaborar com o design, também garantiu a redução do prazo de entrega da obra.
Em um terreno vazio de 400 m2, localizado na Avenida Faria Lima, em São Paulo, e há duas quadras do antigo endereço da loja, o gabarito permitia a construção de no máximo dois pavimentos, o que se tornou uma dificuldade, diante da necessidade de espaço para exibição dos inúmeros produtos e também para o estaciona mento de veículos.
A solução foi aproveitar a área ao máximo. Subdividida em dois blocos, interligados pelo acesso central, que acolhe o elevador e escadas, a loja abriga, no térreo, uma área de estacionamento para
A fachada marcante apresenta estrutura em aço e fechamento em vidro. Um rendilhado composto por letras "X", fabricado em aço, dá um toque de elegância ao projeto
Foto Ary Diesendruck17 veículos e uma grande vitrine, onde estão expostos os produ tos maiores da loja, os eletroportáteis e eletrodomésticos. Atrás da recepção, a área para funcionários conta com vestiários masculino e feminino, além de um refeitório. O piso superior comporta, além da exposição de todos os outros produtos, o estoque, dois banheiros e os caixas. A Suxxar segue um conceito diferenciado na exposição dos seus produtos. Eles são organizados não pelo tipo, mas pelo uso. Assim, a loja sugere diferentes momentos: Preparar, Cozinhar, Servir, Comemorar e Organizar.
O arquiteto Mestieri destaca que vários fatores acabaram favo recendo a utilização do aço na estrutura. Como ele se inspirou no nome da loja para projetar as paredes inclinadas e os pilares em “X”, necessitava de um material adequado para sua execução. “Se as
paredes inclinadas fossem executadas em alvenaria, aumentariam muito o peso da estrutura, ao contrário do aço, que deu leveza ao projeto.”
A estrutura em aço agregou transparência e leveza à fachada se adequando facilmente à caixilharia. Ainda na fachada, que tem vista para a Avenida Faria Lima, um brise cons tituído por uma chapa de aço estam pada e vazada, compondo letras "X", colabora para a proteção solar. Para a cobertura, foram utilizadas telhas
A edificação foi dividida em dois blocos liga dos entre si. Eles foram apoiados em pilares convencionais e nos quatro pilares em formato de "X", conforme pode ser visto na imagem acima e, abaixo, à esquerda. Na área interna, as instalações e a estrutura do telhado são aparentes, proporcionando uma linguagem contemporânea e elegante à loja
> Projeto arquitetônico: Jayme Lago Mestieri
> Área construída: 400 m2
> Aço empregado: ASTM A572 GR 50
> Volume de aço: 38 t
> Projeto estrutural: Trianon Engenharia de Projetos
> Fornecimento da estrutura metálica: Trimetal Estruturas Metálicas e Construção Civil
> Execução da obra: Souza Lima Construtora
> Local: São Paulo, SP
> Data do projeto: 2010
metálicas termoacústicas, além da própria estrutura em aço.
Na área interna, com o objetivo de propiciar um ambiente com visual contemporâneo, o arquiteto optou por deixar aparentes as instalações e os materiais utilizados.
O engenheiro Flávio Motta Júnior, da Trianon Engenharia de Projetos, res ponsável pela parte estrutural, explica que a edificação foi dividida em dois
> Conclusão da obra: 2011 blocos, ligados entre si. O primeiro se apoia sobre pilares convencionais e o segundo, sobre os quatro pilares em “X”, que, devido a sua geometria e às vigas em balanço nos seus contornos, tornaram-se um grande desafio. A estrutura do piso superior utiliza uma grelha reticulada em aço, revestida com material laminado melamínico, que acompanha o revestimento da empena lateral.
Toda a estrutura utiliza pilares metálicos com seção de 150 x 150 mm. Apenas os quatro pilares em “X” do térreo são diferencia dos e têm 250 mm na transversal. A edificação utiliza laje steel deck no segundo piso. Motta Júnior completa dizendo que o projeto do mobiliário foi pensado de forma a incorporar a estrutura, fazendo com que os pilares se confundissem com os móveis, uma ideia já aplicada em outras lojas da rede. (M.C.S.) M
Em EstabElEcimEntos comErciais, ampliar os espaços é sinal de que os negócios vão bem, mas uma reforma pode significar dias ou até meses de funcionamento paralisado. Para evitar prejuízos, no projeto de ampliação do supermercado Angeloni, localizado em Criciúma (SC), o arquiteto Douglas Piccolo investiu no conceito de obra limpa, baseado em estruturas pré-fabricadas em aço, entre outras soluções industrializadas. A tecnologia possibilitou a execu ção da obra em apenas seis meses, sem interrupção no funciona mento do supermercado.
“Além da rapidez, com o uso do sistema, a perda de materiais foi praticamente zero”, afirma o arquiteto. A construção preexistente, projetada pelo mesmo profissional em 1976, contava com 10.800 m2
de área construída, distribuída em dois andares. Durante a reforma, as ativida des do supermercado foram deslocadas, inicialmente, para o pavimento térreo, sendo depois transferidas para o andar superior. O térreo foi transformado em subsolo e, entre os dois andares foi construído mais um pavimento.
As novas estruturas foram execu tadas em perfis metálicos laminados e lajes steel deck, incluíram pilares mis tos, que combinaram aço e concreto.
Fluidez e transparência fazem parte do partido arquitetônico, que buscou a solução de uma nave central cerca da pelo centro comercial
“O fato de serem esbeltas, deu origem a uma construção, do ponto de vista visual, mais leve e elegante”, analisa Piccolo. Além disso, este tipo de concepção estrutural facilitou a ins talação dos demais componentes industrializados adotados na obra, como os painéis isotérmicos, entre outros sistemas. Já os tubos de seção circular compõem os apoios inclinados, além de toda a estrutura da cobertura e o sistema de suporte dos fecha mentos em vidro.
Nova configuração Ao todo, foram utilizadas 494 toneladas de aço, com a estrutura deixada aparente, tirando-se partido estético de seus elementos.
E strutura E m aço agiliza r E forma d E sup E rm E rcado E m s anta c atarinaAcima, praça de alimentação. Os tubos de seção circular que com põe a estrutura dão suporte aos fechamentos em vidro. Nas áreas internas, é possível observar a estrutura aparente na cobertura, que ainda recebeu sheds para a entrada de luz natural. A fachada é composta por painéis isotérmicos e vidros autolimpantes
“Elaboramos, cuidadosamente, cada detalhe da estrutura, principalmente da parte em que foi adotado o sistema metálico”, explica Piccolo.
Para reforçar a contemporaneida de do projeto, o arquiteto criou uma marquise, com formas geométricas inspiradas em elipse.
Instalado sobre uma estrutura em aço, o elemento arquitetônico chama a atenção de quem passa pela Avenida Centenário, principal via da cidade. A solução contrastou com os antigos arcos de concreto, conserva dos da obra original.
A nova configuração conta com uma nave central, que abriga o supermercado, e em torno dela ergueu-se um centro comercial, com praça de alimentação para 600 pessoas e diversas lojas complementares. O piso térreo foi destinado para serviços, como cabeleireiro e pet shop, enquanto o subsolo abriga uma academia de ginástica.
Questões ambientais também foram consideradas. Privilegiando a entrada de luz natural, o sistema de
> Projeto arquitetônico: Douglas Piccolo
> Área construída: 37.400 m²
> Aço empregado: aço de maior resistência à corrosão; ASTM A36; ASTM A572 GR 50 (estrutura); ZAR 280 (steel deck)
> Volume do aço: 494 t
> Projeto estrutural: HF Engenharia – Hercílio Ferrari
> Projeto estrutural da cobertura: João Pedro Kossmann - Engeaço
> Fornecedor de estrutura metálica: Engeaço
> Execução da obra: departamento de obras da rede Angeloni (engenheiro Leandro da Silva Mello)
> Local: Criciúma, SC
> Data do projeto: 2009/2010
> Conclusão da obra: 2011
fachada de vidro autolimpante e a instalação de sheds possibilitam a integração do ambiente com a área externa, tornando-se um agradável local de permanência ou encontro. Além disso, a água da chuva passou a ser armazenada em um grande reservatório, sendo utilizada para limpeza e manutenção das instalações. As fontes de calor também foram isoladas e a construção adequada ao aproveitamento de irradiação solar: coletores solares são usados para o aquecimento de água e placas fotovoltaicas para a geração de energia elétrica.
Com o resultado extremamente positivo do trabalho, o arquiteto foi convidado para assinar outros projetos para a mesma rede em diversas cidades no Sul do país. (c a.) M
A locAlizAção do terreno erA privilegiAdA: uma esquina de frente para uma praça. Ao conceber o projeto de uma das filiais da loja Torra Torra, em São José do Rio Preto (SP), o escritório Trikini Arquitetura e Design pensou em uma edificação com três pavi mentos, tirando partido da visibilidade.
De acordo com a arquiteta Paula Fagundes, da Trikini, o aço foi escolhido para compor as estruturas devido à facilidade de execu ção, uma vez que as peças chegam prontas ao canteiro, além da redução das seções estruturais. “O espaço físico para a construção era limitado a uma área de 1.734 m2, o que obrigou que a monta gem fosse realizada em uma sequência preestabelecida em proje to”, afirma a arquiteta.
A estrutura em aço é aparente desde a entrada principal do prédio, onde há um átrio com pé-direito de 15 m, coberto por uma pele de vidro, que ocupa a esquina onde está o edi fício. Como forma de realçar a facha da, foram utilizados painéis metálicos com acabamento em vermelho.
Para a estrutura foram utilizados perfis "H", de 300 mm, para as colu nas, e perfis "I", de 250 a 700 mm para as vigas. Para os casos com maior
> Projeto arquitetônico: Trikini Arquitetura e Design (Paula Fagundes)
> Área construída: 7.134 m²
> Aço empregado: ASTM A572 GR 50 e aço de maior resistência à corrosão
> Volume de aço: 420 t
> Projeto estrutural: Paulo Sergio de Souza Ribeiro (Ferenge Estruturas Metálicas)
> Fornecimento das estruturas metálicas: EMTEC Construções Metálicas
> Execução da obra: Salvatta Engenharia
> Local: São José do Rio Preto, SP
> Data do projeto: 2010
> Conclusão da obra: 2012
O aço compõe as estruturas básicas e se destaca visualmente na entrada princi pal da edificação, onde há um átrio com pé-direito de 15 m coberto por uma pele de vidro. Da garagem, é possível visualizar a laje steel deck conectada às vigas e pilares de aço
solicitação, a opção foi por perfis sol dados com aço de maior resistência mecânica e à corrosão.
A edificação utiliza sistema de laje forma metálica tipo steel deck. Com exceção da cobertura do estaciona mento, onde a laje steel deck foi deixada aparente, os tetos dos demais pavimentos foram rebaixados com painéis de gesso acartonado para embutir as instalações e a iluminação da loja.
Do ponto de vista estrutural, as vigas foram calculadas como mistas, uma vez que se ligam à laje por stud bolts, for mando um conjunto resistente.
“O conjunto da estrutura metáli ca com as lajes steel deck nos propor cionou a eliminação do escoramento, garantido rapidez em todo o processo construtivo, sobretudo durante a etapa
de fechamentos”, destaca Marco Aurélio Moraes, engenheiro da Salvatta Engenharia, responsável pela execução da obra. Entre os recursos para conferir maior sustentabilidade à cons trução, foi utilizado um sistema para a captação e reuso de águas pluviais, bem como a instalação de cobertura com telhas isotérmi cas, compostas por chapas galvanizadas preenchidas por EPS, a fim de garantir o conforto térmico da edificação e a redução do custo com sistemas de ventilação. (e c.) M
Situado no itaim, em São Paulo, o restaurante Empório Baglioni foi projetado pela RoccoVidal a partir de um conceito de integração entre os ambientes. A entrada funciona como continuidade do passeio, uma espécie de “praça de interligação” entre a área pública e a privada.
Contemporânea, a construção se destaca por linguagens distintas: de um lado, elementos comuns a projetos de galpões de fábrica, como pé-direito duplo, vigas e demais instalações apa rentes, além do uso de materiais rústi cos como a pedra. Do outro, a presen ça de soluções requintadas no projeto de interiores, reveladas na aplicação de filetes de madeira em composição com o vidro e a parede de espelho. Para complementar a ambiência, o efeito luminotécnico evidencia os materiais e a configuração dos ambientes, criando efeitos de luz e sombra.
> Projeto arquitetônico: Rocco Vidal P+W
> Área construída: 816 m²
> Aço empregado: ASTM A572 GR 50
> Volume de aço: 120 t
> Projeto estrutural: Pedro Paulo Maciel Engenharia Estrutural & Consultoria
> Fornecimento da estrutura metálica: Gradimetal Construções Metálicas
> Execução da obra: DMF Construtora e Incorporadora
> Local: São Paulo, SP
> Data do projeto: 2009
> Conclusão da obra: 2010
Mas, afinal, por que a adoção de conceitos tão antagônicos em um único espaço? No que se refere à linguagem arquitetônica, todas as escolhas foram feitas com base nas características do restaurante. Quanto à combinação dos sistemas construtivos – em aço e concreto –, o arquiteto Luiz Fernando Rocco, admirador confesso do aço, afir ma que a opção pelo material foi devido à praticidade e rapidez na montagem que este proporciona. Sem contar, é claro, a resistência e estética únicas.“Tínhamos um prazo muito reduzido para a exe cução do projeto, além de limitações no lote e no canteiro de obras”, justifica. O arquiteto explica que devido ao perfil da construção – projeto de tipologia comercial implantado em terreno locado –, o cliente tinha a máxima urgência em iniciar as atividades do estabe lecimento.
Com área de 816 m2, a edificação tem estrutura concebida a par tir de elementos em concreto armado e perfis laminados em aço. “Lajes pré-moldadas treliçadas se apoiam em vigas de concreto e em perfis de seção 'I'", explica o engenheiro Pedro Paulo Maciel, responsável pelo cálculo estrutural da obra.
O pé-direito elevado possibilitou a criação de um elegante mezanino, cujas seções dos perfis estruturais foram uniformizadas para perfis W 310 x 28.3, em função das vigas mais solicitadas e sujeitas a maiores deformações.
Já a opção por telhado em água conferiu amplitude aos espaços. Para explorar a plasticidade dos materiais, o arquiteto fez questão de manter as tesouras metálicas aparentes. A cobertura é composta por telhas metálicas termoacústicas apoiadas em terças metálicas tipo “U”, a cada 1,55 m. Pode-se dizer que o efeito inusitado dos materiais de acabamento junto ao uso de sistemas construtivos distintos potencia lizou a intenção do arquiteto em criar um ambiente intimista e sóbrio, porém, com ares de galpão de fábrica. Bem-sucedida, a ideia rendeu ao escritório RoccoVidal menção honrosa no Prêmio Asbea 2010. (n.F.) M
Formado pela FAU-Mackenzie, o arquiteto Luiz Fernando Rocco e seu sócio Fernando Vidal anunciaram, recentemente, a união com a Perkins+Will, escritório de arquitetura e design americano, com 24 unidades em todo o mundo. A empresa está inaugurando um novo modelo no mercado de arquitetura do Brasil, com projetos colaborativos que aproveitam, em tempo real, toda a estrutura dos mais de 1.400 profissionais locados em diversos países. “A Perkins+Will passa a ter acesso ao mercado sul-americano, enquanto a RoccoVidal faz a operação nacional de uma estrutura colaborativa global”, destaca. Com 32 anos de profissão, confessa ter grande afinidade com o aço. Observando-se seu portfólio, é fácil entender porquê. Rocco tem preferência pela estética aparente do material, além de considerar, é claro, a indiscutível resistência do aço. Para ele, os sistemas construtivos industrializados chegam para atender a diversos impasses urbanos.
“Em geral, construções comerciais são realizadas em regiões de grande adensamento, o que tem tornado quase obrigatória a adoção de sistemas construtivos industrializados.”
AA – Quando surgiu o interesse pelo uso do aço?
LFR – Desde a faculdade, me interesso pelo aço como elemento estrutural. O arrojo da estrutura é mais fácil de ser exe cutado em aço do que em outros mate riais. A pré-fabricação me atrai, sobretudo devido à falta de qualificação de mão de obra. Ainda que tenhamos deficiências nos serviços executados no canteiro, não atrapalha o resultado arquitetônico pelo fato das peças chegarem prontas ao local. Outro ponto que sempre me chamou a atenção foi a resistência do material e a leveza arquitetônica, do ponto de vista visual. Porém, o que me encanta mesmo é tirar partido da estética do aço. Gosto de deixá-lo aparente.
AA – Então, quer dizer, o aço sempre influencia a estética dos projetos, sobre tudo comerciais?
LFR – Sim, desde que o projeto tire parti do da estrutura. O aço propicia uma lin guagem característica e única. Mas exis tem projetos em que isso não acontece. Em Brasília, por exemplo, muitos prédios são em aço, apenas revestidos em con creto. Quem olha, nem imagina. A rapi dez da construção na época só foi pos sível graças ao aço; do contrário, levaria muito mais tempo para ser erguido. Em Nova York, 80% dos edifícios são em aço, mas o material não é visível, pois as estruturas são revestidas.
Eu, particularmente gosto de ousar no uso do material e mostrar porquê estou usando. Mas isso varia de arqui
teto para arquiteto. Um bom exemplo é Paulo Mendes da Rocha. Em seus projetos, “a estrutura canta”, pois ele aplica sem pre o material de acordo com o seu melhor desempenho.
AA – De que maneira o uso do aço pode contribuir com os projetos de instala ções comerciais?
LFR – As estruturas em aço trazem flexi bilidade e mais racionalidade ao projeto. Sem contar que, por serem mais leves, favorecem o menor gasto com fundações e aproveitamento de terrenos com baixa capacidade de carga. Uma característica importante do sistema metálico é que ele traz velocidade à execução da obra, pos sibilitando, com isso, ganhos adicionais pela ocupação antecipada do imóvel e pela rapidez no retorno do capital inves tido. Para o segmento comercial, estas questões são imprescindíveis, uma vez que o estabelecimento começa a operar em curto prazo de tempo. Neste tipo de construção, existem outros pontos impor tantes, como a falta de canteiro de obras. Em geral, construções comerciais são rea lizadas em regiões com grande ocupação, o que torna quase obrigatória a adoção de sistemas construtivos industrializados.
novos investimentos em infraestrutura, em obras esportivas, outras construções são desencadeadas. E se tudo não for muito bem plane jado, a cidade se tornará um verdadeiro caos. Não há tempo e nem espaço para construções in loco. A tendência é buscar melhorar cada vez mais as cidades, mas as coisas têm de acontecer rapidamente, para não causar grandes impactos à qualidade de vida das pessoas.
AA – Uma obra em aço é pensada de maneira diferente?
LFR – Um projeto não precisa, necessariamente, nascer em aço ou em concreto. Porém, tudo o que é previamente pensado, certamente tem melhor desempenho. Por outro lado, o aço pode solucionar muitas adaptações estruturais durante uma reforma, por exemplo. Um esta belecimento pode ser ampliado, sem que as atividades sejam parali sadas. Temos casos interessantes em que o material também resolve problemas diversos, sem o qual seria impossível modificar ou ampliar um imóvel, a exemplo de obras de retrofit muito bem resolvidas. Mas, quando um projeto nasce em aço, o resultado é muito mais satisfatório.
AA – Como você vê a participação do aço em relação a outros proces sos construtivos?
LFR – Em primeiro lugar, acho que de um modo geral, o mercado deve aumentar cada vez mais o uso dos sistemas construtivos industria lizados: banheiros prontos, placas pré-fabricadas de fechamento e revestimento etc. Se toda a cadeia evoluir para a adoção de sistemas inteligentes, não há como dispensar o uso de estruturas metálicas em um projeto. O sistema não peca em tecnologia para aumentar as opções de uso – a evolução, aliás, anda muito bem. Para a prote ção passiva, por exemplo, já existem diversos recursos de proteção ao fogo. Ao mesmo tempo, os próprios perfis evoluíram, adquirindo maior flexibilidade de aplicação, com novos desenhos e abas assimé tricas e maior resistência, o que garante maiores vãos.
AA – O aço pode ser uma solução cons trutiva para regiões com adensamento urbano, uma tendência para os próxi mos anos?
LFR – Os sistemas construtivos indus trializados chegam para atender a diver sos impasses urbanos. Em função dos
AA – Como os arquitetos podem auxiliar na expansão do aço no país?
LFR – Primeiro, pela troca de informações. A comunicação ajuda muito na divulgação. Além disso, quanto maior a produção, menor o custo. A estrutura em aço padronizada acaba tendo um custo menor. Para mim, não há como retroceder. A tendência é de aplicação cada vez maior desse tipo de tecnologia, em virtude das demandas do país. (N. F.) M
C aixa E C onômi C a F E d E ral inv E st E E m t EC nologia para a C riação d E agên C ias EC ologi C am E nt E C orr E tas
A pArtir de normAtivAs e diretrizes internAs, a Caixa Econômica Federal, responsável por 4.790 imóveis, entre agências e prédios administrativos, tem investido na sustentabilidade de seus projetos. Exemplo disto são as três agências inauguradas neste ano: uma no Distrito Federal, outra na cidade de Campos Belos (GO), e, a mais recente, no município de Posse (GO), localizado a 400 km de Brasília.
Com uma área útil de 640 m2, a obra de Posse foi iniciada em novembro de 2011 e levou apenas 60 dias para ficar pronta. A rapi dez na execução do projeto se deve ao sistema construtivo empre gado, o steel framing, cuja característica principal é a adoção de estrutura constituída por perfis leves conformados a frio, em aço galvanizado, utilizado para a composição de painéis estruturais.
A sustentabilidade também influenciou a escolha do steel fra ming por parte do departamento de obras da CEF, visto que o obje tivo é atuar na promoção do desenvolvimento sustentável do país. De acordo com o engenheiro civil Rivelino Andrighetti de Almeida e o gerente de padrões de engenharia e arquitetura Martiniano
Ribeiro Muniz Filho, que acompanha ram o projeto, a utilização de perfis leves de aço confeccionados sob medi da diminui os custos com transportes. “Além disso, neste tipo de construção, a geração de resíduos é extremamente baixa e todo o descarte, quando há, pode ser reciclado”, afirmam os profis sionais.
Outra preocupação, segundo eles, foi em relação ao conforto térmico da edificação, aspecto favorecido pelo sistema de fechamento por painéis contendo proteção térmica. Destaca-se, ainda, a redução no prazo da obra – que pode atingir até 40% devido ao caráter industrial do processo constru tivo, que possibilita rápida montagem
À esquerda, projeto da Caixa Econômica Federal de Posse. A estrutura pode ser resumida em um simples sistema de componentes apoiados, no qual estão as paredes estruturais que suportam o peso da cobertura, dispensando, assim, pilares e vigas
e fácil capacitação da mão de obra no canteiro –, além de maior precisão nos orçamentos e mesmo a possibilidade de execução de projetos com grandes vãos. “Estes aspectos são de grande valia para uma empresa pública como a CEF, que depende de licitações para construir agências com eventuais mudanças de layout”, acrescentam.
A estrutura da CEF de Posse pode ser resumida em um simples sistema de componentes apoiados, no qual pare des estruturais suportam o peso da cobertura, dispensando, assim, pila res e vigas – exceto quando não há paredes para apoiar a cobertura, o que ocorre apenas em uma pequena área da agência.
Junto a algumas paredes, foram ins taladas treliças verticais, a cada 6 m
para ajudar no contraventamento. Essas paredes e tesouras são for madas por perfis “U” enrijecidos, de aço com espessuras que variam entre 0,80, 0,95 e 1,25 mm. No total, são 12 m de vão livre para a estrutura das tesouras, com 85 kg de sobrecarga sobre elas, e paredes com 5 m de altura. A altura máxima da agência chega a 7 m de altura.
Toda a estrutura das paredes, laje e cobertura são constituídas com os mesmos tipos de perfis. O objetivo principal foi criar gran des espaços livres para o atendimento do público, além de garantir flexibilidade nas mudanças de layout, quando necessárias. A meta da Caixa é construir mais 200 agências com esse mesmo sistema, em todo país. (C.e.) M
> Projeto arquitetônico: Fox Engenharia
> Área construída: 640 m²
> Aço empregado: aço galvanizado zincado nas espessuras de 0,80, 0,95 e 1,25 mm
> Volume de aço: 9.592 t
> Projeto estrutural: Brasgips
> Fornecimento da estrutura metálica: Gypsteel
> Execução da obra: Shox do Brasil
> Local: Posse, GO
> Data do projeto: novembro/ 2011
> Conclusão da obra: janeiro/ 2012
Todos os dias, milhões de habiTanTes das cidades europeias circulam pelas ruas, acostumados com a paisagem e a sua bela arquitetura. Buscando quebrar este padrão, a Electrolux contratou um projeto inovador para promover seus produtos, denominado “The Cube”. Trata-se de uma construção itinerante, que abriga um restaurante para 18 pessoas, proporcionando aos convidados uma experiência gastronômica única, com os melhores chefs da região, e uma vista espetacular, já que sua estrutura é erguida sempre sobre marcos históricos famosos. O tour do restaurante pela Europa
se iniciou em 2011, em Bruxelas, sobre o arco do Parc du Cinquantenaire, passou por Milão, depois seguiu para Londres e Estocolmo.
A cidade de Milão foi o segundo endereço do Cubo, onde permaneceu entre dezembro de 2011 e abril de 2012, sobre a Piazza del Duomo, na região central. O projeto arquitetônico, de
Abaixo, The Cube sobre a Piazza del Duomo, em Milão. À direita: a instalação no Parc du Cinquantenaire, em Bruxelas. Em Londres, o Cubo esteve empoleirado no Royal Festival Hall, com vistas panorâmicas para o Rio Tamisa. O projeto também pousou no topo do Stockholm’s Nineteenth-century Royal Opera House, com vista para a linda cidade escandinava construída sobre 14 ilhas
1 - Sobrecobertura
Painéis metálicos de 5 mm, com recorte a laser
2 - Cobertura
Elementos pré-fabricados de aço são usados para a cobertura
3- Platibanda Composta por painéis metálicos recortados, painéis de acrílico colados e iluminação embutida
4 - Estrutura principal Perfis de aço de várias dimensões
5 - Forro
Painéis acústicos de madeira com microfuros e grelha linear para insuflamento de ar
6 - Fachada
Painéis metálicos recortados e vidros pré-montados em estrutura de aço
7 - Piso
Deque de madeira fixado com grampos metálicos sobre contrapiso de madeira com isolante térmico
8 - Fachada com cortina de ar Dutos instalados no piso para insuflamento de ar utilizando princípio de convecção natural
9 - Base
Estrutura de nivelamento principal: vigas de madeira com sistema de base metálica, ajustável a diferentes alturas e distribuição de cargas, com tapamento frontal em compensado de madeira
Na página ao lado, na foto, detalhe do Cubo, que pesa cerca de 30 t. Na parte externa, a “pele” metálica cortada a laser cria uma textura com desenho geométrico. Acima, à esquerda, mesa de jantar, que pode acomodar até 18 pessoas, um dos diferenciais do restaurante. À direita, imagem do restaurante também em Milão, cujo deque em balanço possibilita vista geral da cidade
autoria do escritório Park Associati, foi concebido como um módulo, facilmen te montado e desmontado. A estrutura demandou 6 toneladas de aço, sendo utilizados perfis "H" com 100 mm para as colunas e 120 mm para as vigas. Segundo os arquitetos, como havia a necessidade de criar uma caixa trans parente em vidro, o aço foi o elemento estrutural adequado para garantir a otimização do espaço e abrir o interior, tanto quanto possível, para abrigar a sala de jantar. Já na cozinha e área téc nica, que precisam de alto isolamento térmico, foram utilizados painéis com lã de rocha.
A construção é adequada a todas as condições climáticas, sempre pro porcionando conforto, com uma estética refinada e o uso de materiais de alta qualidade. O revestimento com “pele” metálica cortada a laser, criou uma textura com desenho geométri co, que trouxe movimento à estrutura.
Internamente, soluções tecnológicas avançadas foram utilizadas no sistema de iluminação, aquecimento e no equipamento de cozinha.
A área total construída de 140 m2 foi dividida entre o espaço inter no livre de 90 m2 e um terraço de 50 m2. O interior do cubo foi projetado para acomodar várias configurações: o pavilhão consiste em um grande espaço aberto com uma cozinha visível e uma mesa única de grande porte para o jantar, que pode desaparecer, sendo elevada ao teto, deixando espaço para uma sala de estar.
Segundo o arquiteto e designer Michele De Lucchi: “este é um daqueles projetos onde as possibilidades se abrem: muitas vezes temos soluções viáveis, mas não deixam espaço para a imaginação, para a inovação, para a evolução". Para De Lucchi, este ‘suposto cubo’, tem uma grande força e imediatamente se apresenta para o que é, desafiando a paralisia do pensamento e da imaginação. E continua: “Não só isso, ele também desafia a imobilidade produzida pelo crescimento contínuo da burocracia ao exigir o consentimento do governo, conselho etc. Se de fato padrões são necessários e úteis para assegurar uma melhor arquitetura, também é verdade que os padrões têm se espalhado em todas as opções de design, na medida em que os sistemas são cada vez mais frequentemente uma interpretação dos regulamentos atuais, em vez de um ato consciente criativo que dá continuidade na história da arquitetura”. (m.C.s) M
A estrutura foi fixada ao corpo central com a aplicação de chumbadores químicos. À direita, na perspectiva esquemática, detalhes do corpo central e da malha metálica
O prOgrama para O showroom da Ferrari e Masserati, na região dos Jardins, em São Paulo, determinava que o desenho do espaço fosse único e original – à altura dos veículos. A ideia era criar uma nova configuração para apresentar um veículo especial. Além disto, a edificação deveria atender a condições ideais de conforto ambien tal, aliadas à construção de fachadas transparentes e que dessem destaque à exposição dos automóveis.
Para atender à demanda e chegar ao desenho atual, o arquiteto José Wagner Garcia, do escritório Noosfera Projetos Especiais, recorreu aos con ceitos do ecodesign. O edifício com 1.500 m2 foi concebido em três par tes distintas quanto a função, forma, tratamento de materiais e setorização.
Uma exuberante estrutura em aço com fechamento em vidro, que abriga o salão de exposição, é o local de desta que e atração do público. Este espaço é atravessado por um “grande parale lepípedo” alongado de concreto sus penso, em que ficam salas de adminis tração e reunião. Deste corpo central partem duas asas estruturadas em aço.
O arquiteto explica que em fun ção do desenho atípico, vigas e pila res foram eliminados, dando origem a uma espécie de membrana metálica autoportante. “Rompemos com a ideia
de paredes e teto propriamente ditos. De uma asa a outra, as linhas têm continuidade, de maneira que fachadas e coberturas se trans formam em uma única pele, que ainda funciona como vedação”, destaca. Sob o nível do salão de exposições, existe um pavimento enterrado, com mais áreas de trabalho e demais funções de apoio, que se comunica com o ambiente externo por espaços abertos adja centes, visando principalmente a entrada de iluminação natural.
Para a execução da estrutura metálica da edificação, foram utiliza dos perfis dobrados com seção retangular de 300 x 170 mm. Além disso, as formas geométricas dos panos envidraçados auxiliaram no próprio contraventamento vertical. Devido à complexidade da obra, o arquiteto José Wagner Garcia destaca que a Construmet, empresa responsável pelo projeto e montagem da estrutura metá lica, precisou calcular minuciosamente a logística de trabalho. “Após a pré-montagem em fábrica, esta malha, ou membrana metálica, foi fixada nas bases com a aplicação de concreto. Já a união do aço com o corpo central da edificação foi feita com chum badores químicos”, enfatiza.
A malha metálica originou vãos de formas não ortogonais, preenchidos por vidro ou painéis de aço inox compostos por duas chapas de aço escovado, intermediadas por uma camada de poliu retano, a fim de garantir o isolamento termoacústico.
Quanto à cobertura, também recebeu um tratamento especial. Assim como as fachadas, a inclinação foi orientada para a face em
que a incidência solar é menor durante todo o ano. Para garantir qualidade estética e ambiental, como fechamento empregou-se vidro laminado leitoso branco, acrescidos por duas películas de polivinil butiral (PVB), sendo uma incolor e outra leitosa.
Essencialmente, a criação de um ambiente dentro de uma caixa de vidro com forma quadrilátera era um desafio do ponto de vista térmico, mesmo contando com a ação de um eficiente sistema de climatização artificial. O mesmo pode ser dito em relação à acústi ca. Tamanha diferenciação dos aspectos formais e construtivos do projeto exigiu da equipe de profissionais uma avaliação criterio sa do desempenho ambiental da obra. Para tanto, foi contratada a consultoria do Laboratório de Conforto Ambiental e Eficiência Energética da FAU/USP (Labaut) que, após diversas análises, definiu as soluções mais adequadas para essas questões.
“A forma final desta edificação é o resultado dos primeiros croquis que elaborei, acompanhados pelas diretrizes de conforto ambiental, desenvolvidas pelo Labaut e que deu origem a uma nova experiência espacial”, conclui José Wagner. (N.F.) M
> Projeto arquitetônico: José Wagner Garcia (Noosfera Projetos Especiais)
> Área construída: 1.500 m2
> Aço empregado: ASTM A570 Gr C
> Volume de aço: 58 t
> Projeto estrutural: Construmet
> Fornecimento da estrutura metálica: Construmet
> Execução da obra: WTorre
> Local: São Paulo, SP
> Data do projeto: 2007
> Conclusão da obra: 2008
> Escritórios dE ArquitEturA Douglas Piccolo Arquitetura e Planejamento Visual
End.: Rua Basílio Machado, nº 58, cj.29, São Bernardo do Campo (SP)
Tel.: (11) 4127-6122 www.douglaspiccolo.com.br
Fox Engenharia e Consultoria
End.: SIA Sul – Qd. 4C – Bl. D –loja 37, Brasília (DF) Tel.: (61) 2103-9555 E-mail: fox@foxengenharia.com.br www.foxengenharia.com.br
Jayme Lago Mestieri
End.: Alameda Casa Branca, nº 851, São Paulo (SP) Tel.: (11) 3085-3933
E-mail: contato@ jaymelagomestieri.arq.br www.jaymelagomestieri.arq.br
Park Associati
E-mail: info@parkassociati.com www.parkassociati.it
Noosfera Projetos Especiais
End.: Rua Conselheiro Cotegipe, nº 685, São Paulo (SP) Tel.: (11) 2737-4275 www.noosferaarquitetura.com.br
RoccoVidal P+W
End.: Rua Eugênio de Medeiros, nº 639, 1º and., São Paulo (SP) Tel.: (11) 3817-6963 www.roccovidal.com.br
Spadoni & Associados Arquitetura e Urbanismo
End.: Rua Capital Federal, nº 201, São Paulo (SP) Tel.: (11) 3673-2283 www.spadoni.com.br
Trikini Arquitetura e Design
Tel.: (11) 5051-6621, São Paulo (SP)
VG. Vicente Giffoni Arquitetura e Planejamento
End.: Rua Nascimento Silva, nº 66, cj. 205 Rio de Janeiro (RJ) Tel. (21) 2247-1962 www.vicentegiffoni.com.br
> ProJEto EstruturAL Brasgips
End.: Rua Vieira Ferreira, nº 254, Rio de Janeiro (RJ) Tel.: (21) 3525-5500 www.brasgips.com.br
Construmet Engenharia e Construções Metálicas Ltda.
End.: Rua Manuel Lajes do Chão, nº 434, Cotia (SP) Tel.: (11) 3842-5622 Email: wilson@construmet.com.br
Ferenge Soluções em Estruturas Metálicas
End.: Rua STrês, nº 759, sala 2, setor Bela Vista, Goiânia (GO) Tel.: (62) 3255-2777 www.ferenge.com.br
HF Engenharia
End.: Rua Nizo Jaime de Gusmão, nº 1.031, Rio Verde (GO) Tel.: (64) 3602-7900 www.hfengenharia.com.br
Pedro Paulo Maciel Engenharia
Estrutural & Consultoria Tel.: (11) 4402-3719 E-mail: contato@ ppmengenharia.com.br www.ppmengenharia.eng.br
Prodenge Engenharia e Projeto End.: Calçada das Papoulas, nº 74, 2º and., cj. 6, Barueri ( SP) Tel.: (11) 4689-1487
Projest Consultoria e Projetos End.: Av. Rio Branco, nº 18, 11º and., Rio de Janeiro (RJ) Tel.: (21) 2253-0083 Email: projest@projest.eng.br www.projest.com.br
Trianon Engenharia de Projetos End.: Rua Américo Brasiliense, nº 1.479, cj. 11, São Paulo (SP) Tel.: (11) 95181-4713
> EstruturA MEtÁLicA
Açotec Indústria e Comércio End.: Rua Frei Bruno, nº 305 E, Chapecó (SC) Tel.: (49) 3361-8700 www.acotecbr.com.br
BR-Aço Tel.: (11) 3859-6363 E-mail: braco@ bracoestruturas.com.br www.bracoestruturas.com.br
EMTEC Construções Metálicas
Tel.: (11) 5184-2454
Email: emtec@emtec.eng.br www.emtec.eng.br
Engeaço Estruturas Metálicas
End.: Rua Inocêncio de Souza Branco, nº 280 E, Chapecó (SC) Tel.: (49) 3323-5494 E-mail: engeaco@engeaco.ind.br www.engeaco.ind.br
Gypsteel
End.: Rodovia Amaral Peixoto, km 56, Saquarema (RJ) Tel.: (22) 2654-2361 E-mail: contato@gypsteel.com.br www.gypsteel.com.br
Gradimetal Construções Metálicas
End.: Rua Templários, nº 83, São Paulo (SP)
Tel.: (11) 2671-8599 E-mail: gradimetal@gradimetal. com.br www.gradimetal.com.br
Trimetal Estruturas Metálicas e Construção Civil
End.: Rua João Duva, nº 120, São José do Rio Pardo (SP) Tel.: (19) 3608-3757 www.trimetal.com.br
> coNstrutorAs Arte Engenharia End.: Dr. Rufino Gonçalves Ferreira, nº 577, sala 101, Nilópolis (RJ) Tel.: (11) 2564-2545
DMF Construtora e Incorporadora End.: Alameda Gabriel Monteiro da Silva, nº 2.878, São Paulo (SP) Tel.: (11) 3031-9799 www.dmfconstrutora.com.br
Lampur Engenharia End.: Av. Pavão, nº 955, cj. 125, São Paulo (SP) Tel.: (11) 5051.3873 www.lampur.com.br
Salvatta Engenharia
End.: Av. Ipiranga, nº 103, 5º and., cj. 52, São Paulo (SP) Tel.: (11) 3211-2118 www.salvatta.com.br
Shox do Brasil End.: SIA/SUL trecho 3, lote 625, bloco C, sala 126, Brasília (DF) Tel.: (61)3361-6411 www.shoxdobrasil.com.br
Souza Lima Construtora End.: Rua do Rócio, nº 313, 3º and., São Paulo (SP) Tel.: (11) 3723-2050 www.slconstrutora.com.br
WTorre S.A. End.: Rua George Eastman, nº 280, São Paulo (SP) Tel.: (11) 3759-3300 www.wtorre.com.br
Contribuições para as próximas edições podem ser enviadas para o CBCA e serão avaliadas pelo Conselho Editorial de Arquitetura & Aço. É desejável o envio das seguintes informações, em mídia digital: desenhos técnicos do projeto, fotos da obra, dados do projeto (local, cliente, data do projeto e da construção, autor do projeto, projetista estrutural e construtor) e referências do arquiteto (telefone, endereço e e-mail).
Os números anteriores da revista Arquitetura & Aço estão disponíveis para download na área de biblioteca do site: www.cbca-acobrasil.org.br
A&A nº 01 - Edifícios Educacionais
A&A nº 02 - Edifícios de Múltiplos Andares
A&A nº 03 - Terminais de Passageiros
A&A nº 04 - Shopping Centers e Centros Comerciais
A&A nº 05 - Pontes e Passarelas
A&A nº 06 - Residências
A&A nº 07 - Hospitais e Clínicas
A&A nº 08 - Indústrias
A&A nº 09 - Edificações para o Esporte
A&A nº 10 - Instalações Comerciais
A&A nº 11 - Retrofit e Outras Intervenções
A&A nº 12 - Lazer e Cultura
A&A nº 13 - Edifícios de Múltiplos Andares
A&A nº 14 - Equipamentos Urbanos
A&A nº 15 - Marquises e Escadas
A&A nº 16 - Coberturas
A&A nº 17 - Instituições de Ensino II
A&A nº 18 - Envelope
A&A nº 19 - Residências II
A&A nº 20 - Indústrias II
A&A Especial – Copa do Mundo 2014
A&A nº 21 - Aeroportos
A&A nº 22 - Copa 2010
A&A nº 23 - Habitações de Interesse Social
A&A nº 24 - Metrô
A&A nº 25 - Instituições de Ensino III
A&A nº 26 - Mobilidade Urbana
A&A nº 27 - Soluções Rápidas
A&A nº 28 - Edifícios Corporativos
A&A Especial – Estação Intermodal de Transporte Terrestre de Passageiros
A&A nº 29 - Lazer e Cultura
A&A nº 30 - Construção Sustentável
A&A nº 31 - Construções para Olimpíadas
próxiMaS ediçÕeS:
– Hotéis - Shopping Centers
- Hospitais e Edificações para Saúde - Pontes e Passarelas
Revista Arquitetura & Aço é uma publicação trimestral do CBCA (Centro Brasileiro da Construção em Aço) produzida pela Roma Editora. CBCA: Av. Rio Branco, 181 – 28º andar 20040-007 – Rio de Janeiro/RJ Tel.: (21) 3445-6332 cbca@acobrasil.org.br www.cbca-acobrasil.org.br
Conselho Editorial Catia Mac Cord Simões Coelho – Aço Brasil Roberto Inaba – Usiminas Ronaldo do Carmo Soares – Gerdau Açominas Silvia Scalzo – ArcelorMittal Tubarão
Supervisão Técnica Sidnei Palatnik
Publicidade Ricardo Werneck tel: (21) 3445-6332 cbca@acobrasil.org.br
Roma Editora Rua Lisboa, 493 – 05413-000 – São Paulo/SP Tel.: (11) 2808-6000 cbca@arcdesign.com.br
Direção Cristiano S. Barata Coordenação Editorial Nádia Fischer Redação Camila Escudero, Cely Andrade, Evelyn Carvalho, Maria Clara Souza e Nádia Fischer Revisão Deborah Peleias Editoração Cibele Cipola (edição de arte), Luiz Marques e Emílio Fim Neto (estagiários) Impressão Ibep Gráfica
Endereço para envio de material: Revista Arquitetura & Aço – CBCA Av. Rio Branco, 181 – 28º andar 20040-007 – Rio de Janeiro/RJ cbca@quadried.com.br
É permitida a reprodução total dos textos, desde que mencionada a fonte. É proibida a reprodução das fotos e desenhos, exceto mediante autoriza ção expressa do autor.
Perfis Estruturais Gerdau. Fundamentais para as melhores obras.
Da fundação à estrutura, os perfis estruturais Gerdau proporcionam racionalidade, eficiência e rapidez ao processo construtivo. Produzidos em aço de alta resistência, em ampla variedade de bitolas, oferecem flexibilidade aos projetos e permitem ganhos no custo geral da obra. Um compromisso da Gerdau com a qualidade e a rentabilidade na hora de construir.