portfolio 2025

Prerana Desai Architectural Designer
![]()

Prerana Desai Architectural Designer
Architectural Technologist with 6+ years of experience, specializing in the technical aspects of architectural design, particularly in Transit and Infrastructure projects. I am proficient in BIM tools to create accurate models, detailed drawings, and high-quality renders that turn design concepts into construction-ready documentation. I’ve contributed to large-scale projects across the US, UK, Middle East & India ensuring compliance with building codes and standards. I thrive in collaborative environments, improving coordination, working effectively as part of a team, and delivering sustainable, high-quality designs that meet project objectives.
AECOM (Jun’24 – Apr’25)
AtkinsRealis (Feb’22 – Jun’24)
Studio Goya (Jan’21 – Jan’22)
Zachariah Consultants (Aug’19 – Jan’21)







Strong exposure to Transportation and Infrastructure projects with good team management skills.




Proficient in advanced BIM tools, ensuring accurate models and efficient project workflows.











Strong ability to create detailed, construction ready designs and thorough project documentation.
Urban mobility design, Crowd Flow & Circulation Planning
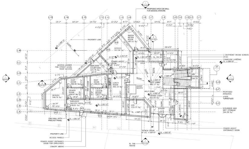
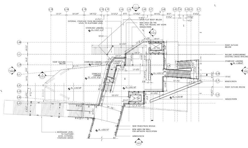
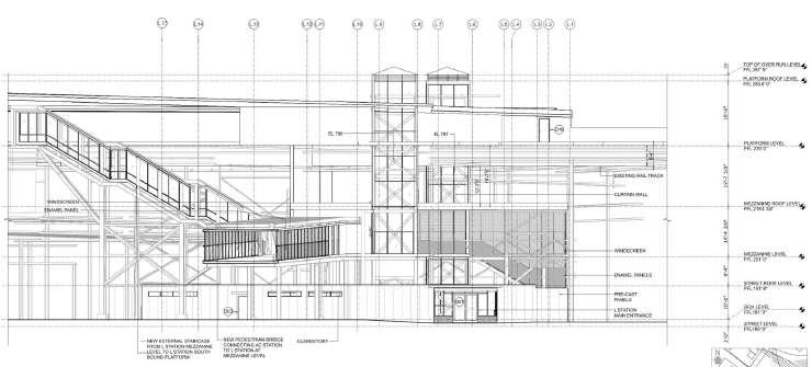
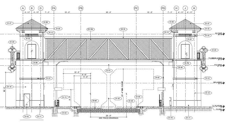
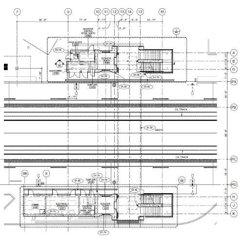
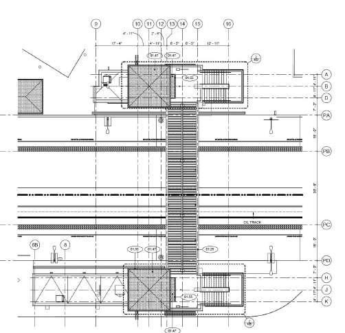
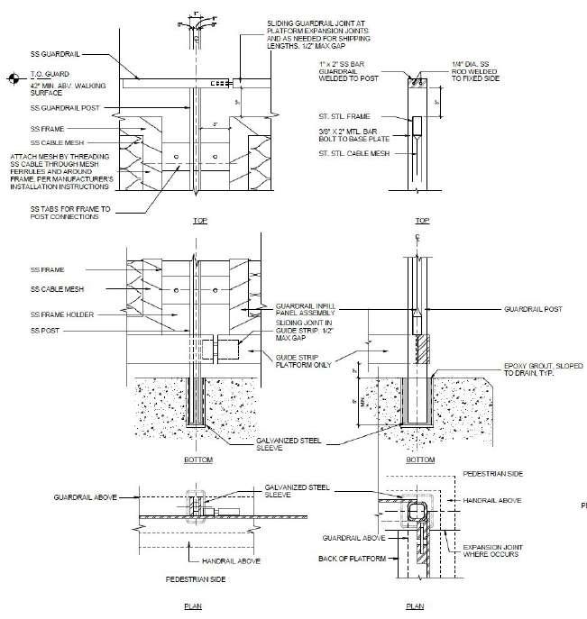
Worked on a project for AtkinsRéalis Group Inc., collaborating with ECCO III Enterprises Inc. to design and build disability access upgrades at the MTA Broadway Junction Complex. The project involved giving the station a facelift along with making the station ADA compliant, addition of elevators, replacing escalators, and implementing code compliant staircases and walkways, among other improvements.
Scope & Challenges:
The project involves retrofitting modern accessibility features into a 100-year-old, continuously operating station. Challenges include working around aging infrastructure, maintaining transit operations, and avoiding added loads on tunnels below. Precise BIM coordination and phased construction planning are essential to minimize disruptions and deliver a safe, efficient upgrade.
My contributions:
- Contributed to the project bid with the senior team prior to securing the contract.
- Led a team of five graduate architects, coordinating with the US lead team to ensure project alignment.
- Developed Existing and Proposed designs for Broadway Junction Railway Station using Open Building Designer, creating 120+ detailed construction drawings
- Applied ADAAG and NYC Building Code for full compliance and successful project delivery.
- Demonstrated leadership, technical expertise, and effective collaboration for high-quality outcomes



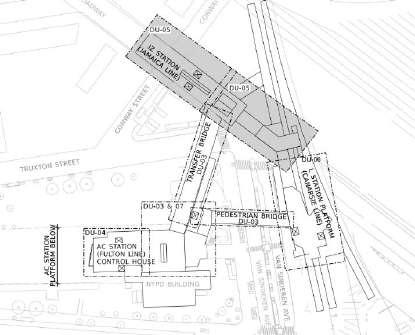
The station was divided into 7 Design units consisting of separate packages
DU1 & 2- Parking
DU3 & 7- Ped & Transfer Bridge
DU4- AC Station
DU5- JZ Station
DU6- L Station











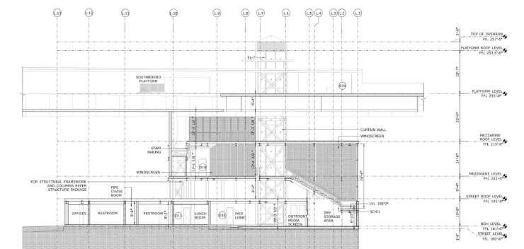
Worked on a project for AECOM to re-design and create detailed design drawings for 5 Valley Rail Natomas, North Lathrop, Modesto, Turlock and Madera. The project involved updating the Revit models & creating detailed design drawings for the stations

Scope & Challenges:
Maintaining design consistency and technical accuracy across multiple stations led by different teams. The role demands creating adaptable yet detailed guidelines that support BIM-based coordination, code compliance, and constructability across varied site conditions. Balancing standardized system functionality with local character requires thoughtful detailing, material selection, and integration—while ensuring accessibility, durability, and ease of implementation throughout the project lifecycle.
My contributions:
- Making updates to vertical transportation design for multiple stations, making sure the station met the ADA requirements.
- Updating drawings based on the comments received from the clients and the lead office.
- Working on Signage and Wayfinding drawings based on directive drawings
- Working on the detailed station & platform sections and detailed drawings of the bridge, throw barriers, security grills, etc.,
- Multi D Coordination along with the lead team


















I worked as an architect on the design of Nairobi's new Central Railway Station as part of the UK-Kenya Strategic Partnership. The project is a key part of the Nairobi Railway City redevelopment, which focuses on creating a climate-resilient, green transport hub. My role involved helping create the architectural design that supports Kenya's goals for sustainable infrastructure and urban regeneration.
Scope & Challenges:
The project required merging historic preservation with high-capacity transit design, accommodating over 30,000 passengers per hour. From an Architectural Technologist view, key challenges included coordinating the large Boma-inspired canopies through BIM, ensuring smooth circulation, and designing flexible, climate-responsive spaces. The result balanced technical precision with cultural identity and long-term adaptability.
My contributions:
- Led a team of five architects in India, delivering the RIBA-3 submission package, ensuring quality and timely design drawings.
- Managed Revit model revisions, incorporating design changes like alternate canopy proposals.
- Collaborated with UK Architecture and BIM teams to ensure project alignment and integration
- Used BIM360 for real-time collaboration, document management, and issue tracking, improving team coordination.
- Coordinated with cross-functional teams to ensure smooth execution and adherence to deadlines throughout the design development phase.












I contributed to AECOM’s role in designing the architectural, structural, and MEP systems for the car parking podium at the Peninsula Project. The podium connects the hospitality and residential plots and integrates a park across the site, playing a vital role in achieving the project’s vision.

Scope & Challenges:
Designing a multifunctional podium that seamlessly integrates with the landscape and diverse uses, while ensuring structural efficiency and MEP coordination.
Achieving cohesive connectivity across the site demanded detailed BIM collaboration to address complex interfaces between residential, hospitality, and public spaces.

My contributions:
- Collaborated with Indian and UAE teams to refine the design, progressing from 60% Schematic to 90% Detailed Design.
- Prepared 60+ Detailed design sheets and modified the model to meet all requirements.
- Managed tasks effectively, ensuring deadlines were met while working in a collaborative team environment.














Veda-II being the tallest residential tower in Vadodara, this property houses 365 residences.
Comprises of 3 towers G,H and J, The towers overlook the very cozy pool and clubhouse at the edge
Scope & Challenges:
The project demanded meticulous attention to detail to ensure accuracy across multiple towers and unit types, requiring thorough coordination of architectural elements and area calculations. Balancing aesthetic design with functional requirements for diverse spaces like balconies and kitchens called for precise technical detailing.
My contributions:
- Creation of good for construction drawings for multiple towers..
- Worked on 75+ Detailed design drawings for the overall plans, unit plans, area calculation and detail drawings for Toilets, Balconies and Kitchens
- Attended client meetings and site visits, providing design insights and assisting with material and paint selections to meet client expectations.











As an architect on the Soros Coffee project, I helped bring the client’s vision of a timeless, grounded cafe to life. Located in Bengaluru’s shopping hub, the 1,670 sq ft space features a minimalist design with a monochrome palette and chrome finishes. The result is a chic, luxe atmosphere that reflects the client's desire for a moody, swanky vibe, perfectly complementing their globally sourced coffee.
Project featured in Elle Decor, India
Scope & Challenges:
translating a strong client vision into a cohesive, functional design within a limited footprint while maintaining the desired luxe, moody aesthetic. Coordinating multiple vendors and ensuring timely delivery of diverse materials and finishes required detailed project management and close site supervision. Addressing design and implementation issues on site constantly with also a tight deadline.
My contributions:
- Led the design and execution of cafe, transforming client concepts into functional, inviting spaces that enhance customer experience.Creation of mood boards, Layout plans, 3D visualization and detailed good for construction drawings
- Collaborated with vendors and contractors to select materials, furniture, finishes, lighting, plumbing fittings, F&B consultants, ensuring timely project delivery and high-quality results.
- Managed project progress through regular site visits, addressing design issues and ensuring smooth implementation.








Located in Whitefield, Bangalore this 3000 sq ft Villa is a Midsummer Night Dream.
A very Chic French Style Home is inspired with Pastel tones across the home with Arch elements binding the space together.
Project featured in Architectural Digest.
Scope & Challenges:
translating a strong client vision into a cohesive, functional design within a limited footprint while maintaining the desired luxe, moody aesthetic. Coordinating multiple vendors and ensuring timely delivery of diverse materials and finishes required detailed project management and close site supervision. Addressing design and implementation issues on site constantly with also a tight deadline.
My contributions:
- Led interior design project from concept to completion, collaborating with clients to understand their needs and transforming their vision into functional and aesthetically pleasing spaces.
- Independently managed the design process, including creating mood boards, layout plans, and 3D visualizations, ensuring alignment with client specifications and created BOQs.
- Developed detailed design documentation, including construction drawings, technical specifications, and material schedules.
- Coordinated with contractors, vendors, and suppliers to source materials, furnishings, and finishes, ensuring high-quality execution and timely project delivery.










