PORTFOLIO
SELECTED WORKS 2023-2025
PRECIOUS ISRAEL-OVIRIH

![]()




Residential Development |Personal Development |2025 Lagos State, Nigeria

A natural dwelling place of an animal or organism.
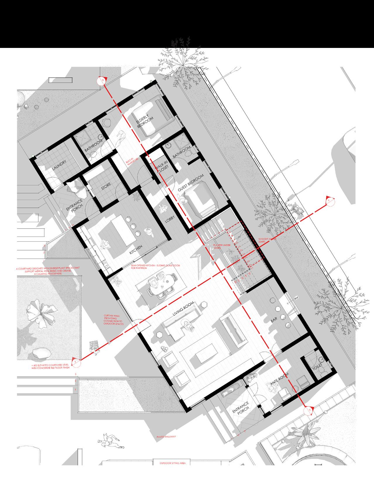
Gico Habitat is a five-bedroom family dwelling designed during a pandemic to support living, working, and well-being in conditions of prolonged isolation, while remaining adaptable for post-pandemic life.
The project was developed for a creative professional, his family of four, and an elderly parent, requiring a careful balance between privacy, focus, and communal living. The brief called for a home that supports remote work, personal space, and shared family life, while reflecting values of simplicity, nature, and intentional living.
Drawing inspiration from natural habitats, the house is designed for selfsufficiency through solar energy, rainwater harvesting, and passive ventilation strategies.


The Gico Habitat explores the balance between separation and connection. Living and working functions were organized into two distinct volumes to support focus and privacy, while a first-floor bridge reconnects them. The residential block was rotated 32 degrees in response to site conditions, informing the building’s orientation and spatial relationships.





The home is organized to balance openness and privacy, with public spaces positioned at the core and private areas layered deeper within the plan. A double-height living space acts as the social anchor of the home, enhancing daylight penetration and vertical connection.
In response to the client’s request for an open kitchen and dining area, sliding partitions were introduced to maintain visual openness while controlling the spread of cooking odors. The dining space opens directly onto the courtyard through sliding doors, strengthening the indoor–outdoor relationship.
An elderly bedroom is located on the ground floor to reduce physical strain, while the first floor accommodates a private family living room and en-suite bedrooms. A connecting bridge further reinforces spatial continuity between home and work zones.




The office space was designed in response to post-pandemic work patterns and the client’s profession as an architect. In line with the client’s brief, the office accommodates occasional collaborative work while maintaining privacy and functionality.
The ground floor includes workstations for four staff members, a visitor lounge, and a kitchenette, supporting both focused work and informal interaction. The first floor houses the client’s private office and a meeting room, providing a quieter environment for concentrated tasks and discussions.
Ample storage and restroom facilities are provided across both levels.
A connecting bridge links the first-floor office directly to the private residence, allowing seamless movement between work and home without re-entering the public zone.









The facade plays a critical role in the overall environmental performance of the building. To moderate solar exposure and reduce visual monotony, a concrete screen wall was introduced at the front elevation, where the bedroom is located and where solar intensity is highest due to the overhead sun.
The screen wall functions as a passive shading device while maintaining ventilation. Integrated air voids allow continuous airflow into the bedroom, promoting cross-ventilation. A recessed opening at the top of the screen enables hot air to escape through the stack effect, improving thermal comfort without mechanical systems. This facade strategy balances privacy, shading, and natural ventilation.





Commercial Development |Undergraduate|2023 Ogun State, Nigeria

The Ogun State Bus Terminal is a sustainable public transport facility designed to accommodate both interstate and intrastate travel.
The main goal of this project is to design a bus terminal driven by performance and functionality, prioritizing safety, pedestrian accessibility, and clear vehicular movement, while projecting a strong public image for the state.







The Ogun State Bus Terminal draws inspiration from the Afro-Brazilian heritage of the Ooghi people, expressed through wide eaves and terraces that provide natural shading for the modern curtain wall facade. The palm tree, a key local cash crop, inspired the slender rhythm of the terminal’s columns. Together, these elements create a functional, climate-responsive, and culturally rooted hub.





The bus terminal is a three-story building (ground plus two floors) organized to support seamless passenger movement, operational efficiency, and user comfort.
Ground Floor: The ground floor serves as the main arrival and departure hub, with an open-air waiting area that maximizes natural ventilation and daylight. Passengers have direct access to information desks, automated ticketing, parcel services, an ATM, and a first aid room, while stairs and ramps ensure inclusive access. The layout provides clear sightlines to the bus bays, allowing smooth circulation between waiting areas and vehicles.
First Floor: The first floor houses ticketing booths—four for interstate and four for intrastate travel—alongside a cafeteria with outdoor seating and a flexible retail kiosk area, providing passengers with spaces to dine, shop, and wait comfortably.
Second Floor: The second floor contains administrative offices (terminal manager, operations, accounting, and customer service), as well as CCTV and server rooms. A void above the waiting area enhances visual connection, spatial openness, and operational oversight.






Commercial Development |2025|Edo State, Nigeria

This project is a commercial development for Guaranty Trust Bank located in Benin City, Nigeria. Over the years, GTBank has been known for its dynamic and contemporary architectural identity, and this project seeks to reflect that character while remaining deeply rooted in place. The client requires a premium banking facility that is closely linked to the cultural identity of Benin, a city renowned for its rich heritage and global historical significance. The intention is for the building to resonate with the local community while enhancing the bank’s visual presence within its urban context.
The project site is relatively small, measuring approximately 718.13 m², presenting a key constraint in accommodating the required banking functions. The brief calls for a three-storey building housing the essential components of a modern bank, including a banking hall, customer service areas, teller points, offices, and support spaces, arranged efficiently within the limited site.


The design concept is derived from the rich cultural heritage of Benin City, Nigeria. The façade pattern draws inspiration from the interlocking links of Queen Idia’s chain, reinterpreted as a contemporary architectural motif. This pattern is integrated into the building’s shading devices and façade treatment, creating visual continuity and a strong cultural identity.
Steel fins support the shading system while also contributing to the overall rhythm and aesthetic of the façade











Commercial Development |2025|Lagos State, Nigeria
Professional Work | Collaborative Work
Firm name: Anetor Plus Limited
Collaborators: Arc. Anetor Eromosele and Arc. Esther Adeniji
My Role: Facade Development and Facade Modelling

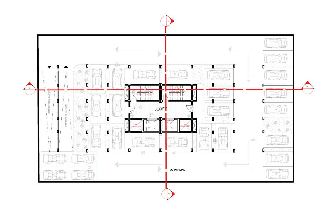
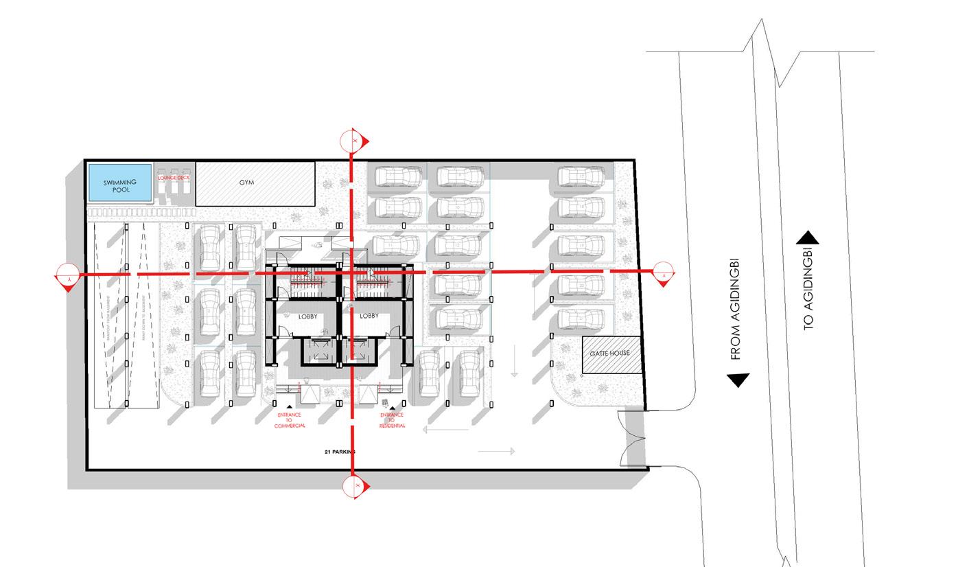
This project is a mixed-use development designed for Lagos State Development and Property Corporation (LSDPC), located in Ikeja, Lagos.
As a major commercial and administrative hub, Ikeja requires developments that support both business and residential functions. The design integrates commercial spaces with residential units, creating a functional live–work environment.








The building consists of a ground floor and a basement level. The basement provides additional parking, as the ground floor alone could not accommodate sufficient spaces for the development.
Access is possible from both levels, with the ground floor serving as the main entrance. Separate entrances for the residential and commercial areas ensure clear circulation and privacy between both functions.
A compact core containing lifts and staircases connects all floors from the basement to the top level, allowing efficient vertical circulation while maximising usable space. The site also includes a gym and swimming pool, primarily for residents but accessible to employees within the development.

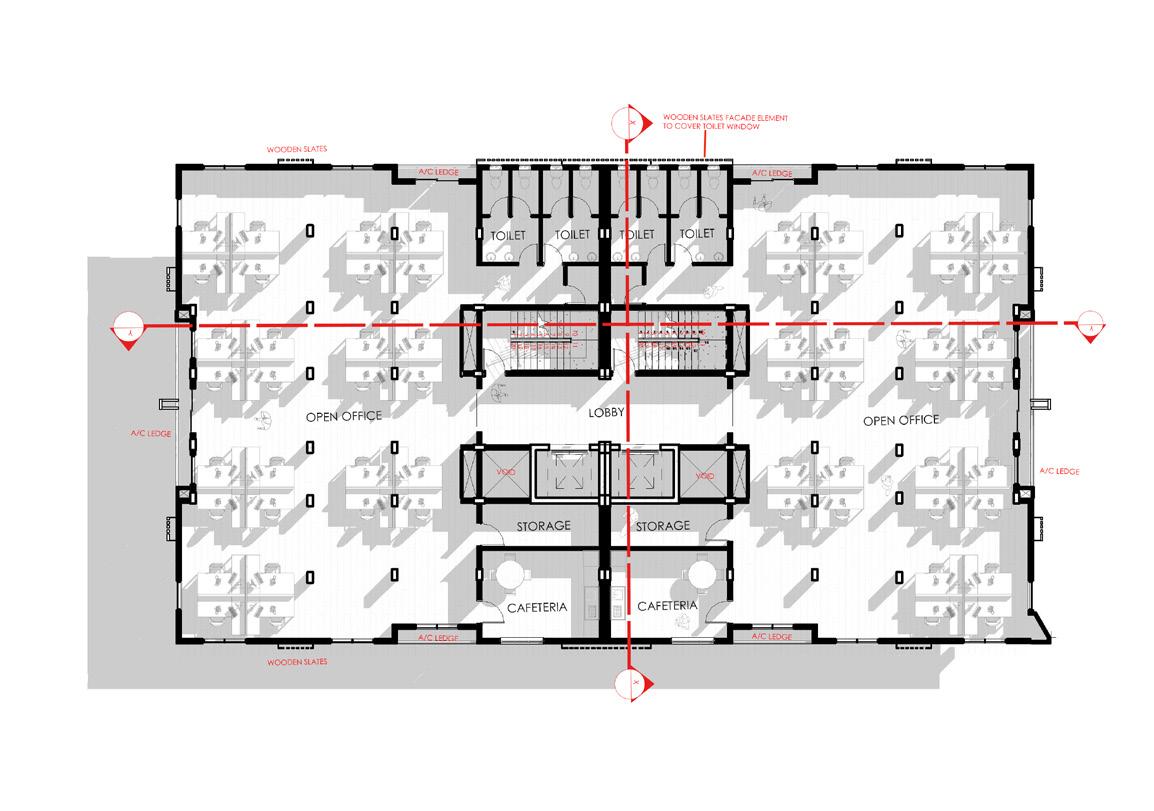
The first and second floors are dedicated to commercial use, each containing four open-plan offices with a kitchenette and storage.
The third to fifth floors are residential, positioned above the commercial levels for greater privacy. Lift access to these floors is controlled by a key-card system for residents. Each residential floor contains four two-bedroom and four one-bedroom apartments, all with en-suite bathrooms, kitchens, guest toilets, and balconies overlooking the surrounding streets.
The sixth floor continues the residential programme with loftstyle one-bedroom apartments featuring larger living areas and kitchens. This level also includes a terrace accessible to both residents and employees, providing a shared space for relaxation and social interaction.




