Architecture Portfolio (2011-2018) | Raden Prawira Agung Adhinegara

Page 1

ARCHITECTURE portfolio raden prawira agung adhinegara | 2011-2018 contextual buildable detailed IhavealwayslikedthehumansideofArchitecture andtosolveproblemswithsustainability. prawiraagungadhinegara@gmail.com +62 8111027337 https://linkedin.com/in /raden - prawiraagung - adhinegara - 872160159 /
:
2018
photo
japan trip,

COLLEGE ASSIGNMENTS

Everysemester(6months),Iwastaskedtodesignbased on TOR and ask assistance from lecturers and friends alongtheway. Productsinorder:

• Drafts/Sketches

• ConcepttoDetailedDrawings(digital&manual)

• MiniatureModel

• Presentation

• FinalReport

My interest in every assignment were exploring and discovering To come up with different themes for each designandtryingnewsystemsonstructure,form,along withthechangeoffunctions.

photo : japan trip, 2018

GEDEBAGE AUTOMOTIVE EXHIBITION CENTER

( college semester 5 )

Thisotomotiveexhibition centreenact asustainable, eco-friendly, community-building rentsystem for exhibition use, meeting use, and retails Implementation embodied an approach through dynamic and interactive designed spaces due to mezzanine floor levels, all the while being structuredbyconcreterigidframesystem

Two unit types were organised to accomodate otomotive exhibition commercial use, the first is indoor with 1000 m2 and the second one is outdoor with 500 m2 , all of which benefited from the basisgridof15metersquareofcarstand.

GARDEN FAMILY HOTEL ★★★★

( college semester 6 ) - AWARD

This hotel enact a sustainable, eco-friendly, four star rent system Implementation embodied an approachthroughluxuriousdesignedspaceswithgardeninfusedelementsforfaçadeandspacesin overall, all the while being structured by prefab concrete rigid frame system. Mass arrangement prioritizedtoBandungSquare(Alun-Alun) Threeunittypeswereorganisedtoaccommodate:

(1) Standard double bed 15 rooms (24 m2), standard twin bed 14 rooms (24 m2)➔ 6 family rooms 87totalrooms(3floors – typical4-6)

(2) Deluxe10rooms(30m2)(1floor – 7th)

(3) Suite(72&103m2)3totalrooms(8th)

Allofwhichbenefitedfromthebasisgridof24metersquare.

LOCATION : JL. SOEKARNO HATTA, KAWASAN TEKNOPOLIS, GEDEBAGE BANDUNG JAWA BARAT 40251

FUNCTION : COMMERCIAL – EXHIBITION

THEME : MOVEMENT / FLUIDITY + LEMAH CA’I SUNDA

MAIN EXHIBIT : 1500 m2

SITE AREA : 9326 m2

KLB / FAR : 6995 m2 (0,75)

KDB / BCR : 3730,6 m2 (<40%)

RTH / GREEN : 2800 m2 (30%)

LOCATION : JL. ASIA-AFRIKA & JL. DALEM KAUM, BANDUNG, JAWA BARAT 40251

FUNCTION : COMMERCIAL – ACCOMODATION

THEME : GARDEN HOTEL (SUNDA WIWITAN)

UNIT TOTAL : 100 unit

SITE AREA : 5150 m2

KLB / FAR : 10.856 m2 (<2,5)

KDB / BCR : 1950 m2 (<50%)

RTH / GREEN : 3250 m2 (>30%)

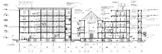
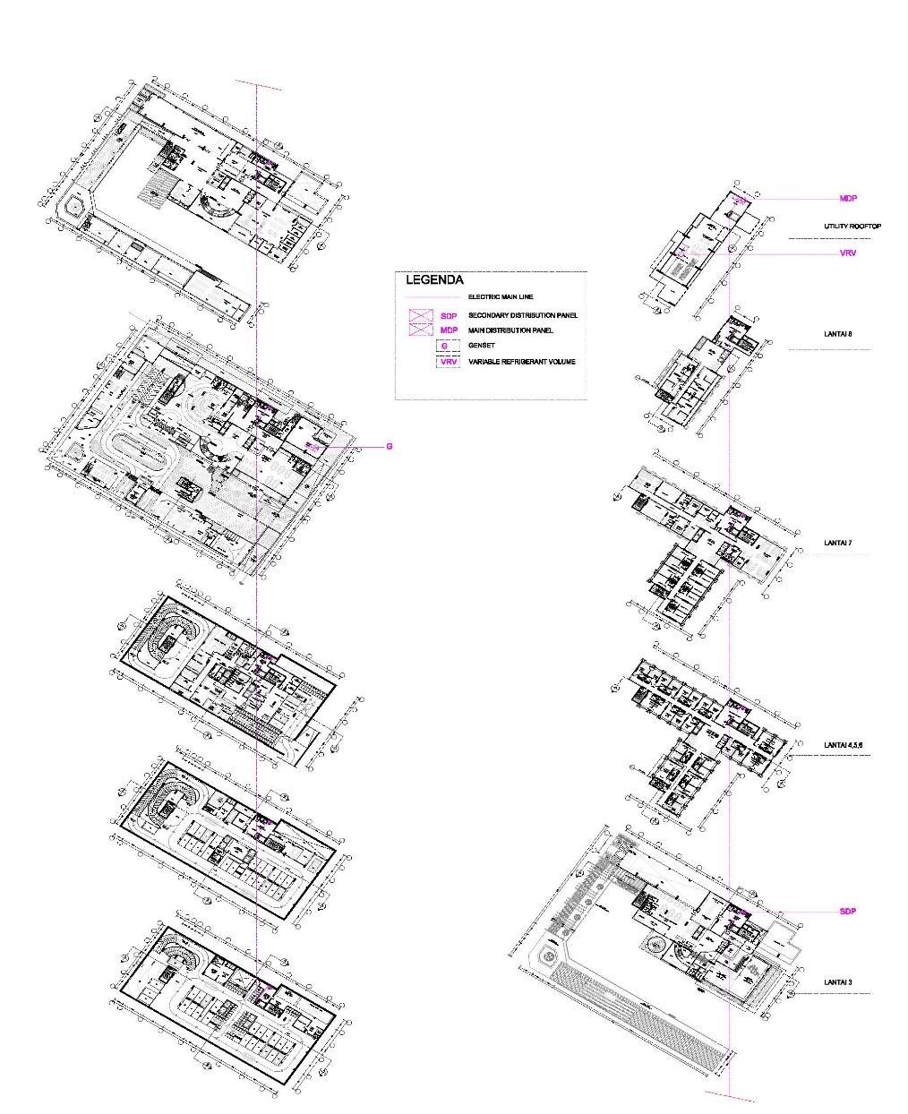
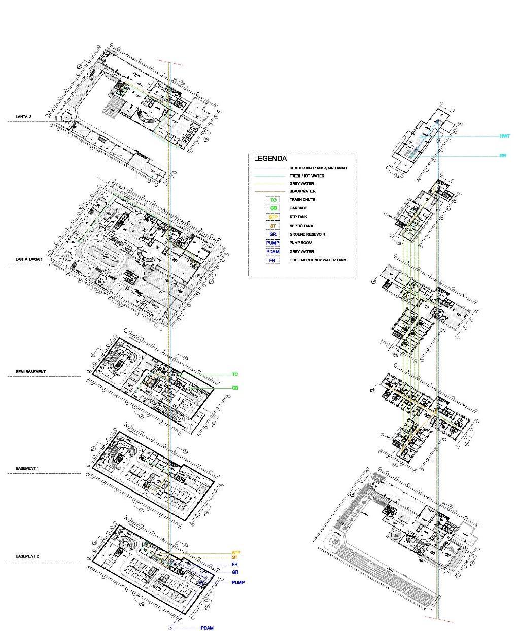
photo : japan trip, 2018 photo : japan trip, 2018 Sampleofutilitydrawingsforhospitalityprojectarchitecturestudiosemester6. Sample of utility drawings for hospitality project architecture studio semester 6

REGOL SOCIAL HOUSING

( college semester 7 ) - AWARD

This social housing enact a sustainable, eco-friendly, communitybuildingrentsystem Implementationembodiedanapproachthrough compact designed spaces due to flexible usage of furniture all the whilebeingstructuredbyprefabconcreterigidframesystem

Three unit types were organised to accomodate disabled, commercial use, and share use, all of which benefited from the basis grid of 18 meter square. The bathrooms will be communal and placed inbetweentheunits

While the middle mass is for secondary functions like offices, multi functionrooms,andhydroponicarea Massarrangementprioritizedto face Regol’s IconicFishStatuewithJulangNgapakroofform

LOCATION JL MOCH RAMDAN, REGOL, BANDUNG, JAWA BARAT 40252

FUNCTION RESIDENTIAL – VERTICAL HOUSING

THEME : COMPACT - ECO SOCIAL HOUSING

UNIT TOTAL 96 unit

SITE AREA 5968 m2

KLB / FAR 7225,75 m2 (>80%)

KDB / BCR 1442 m2 (<50%)

RTH / GREEN 2383,5 m2 (>30%)

KDH / HARD 247 m2

TYPICAL FLOOR A TYPICAL FLOOR B
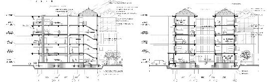
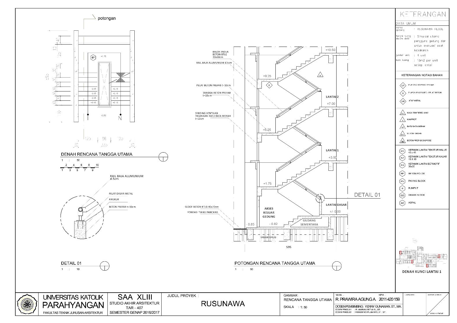
photo : japan trip, 2018 photo : japan trip, 2018 Sampleoftechnicaldrawingsforsocialhousingprojectarchitecturestudiosemester7. Sample of technical drawings for social housing project architecture studio semester 7

COMPETITION ENTRIES

I come up with sustainable and practical ideas. Discuss and make unified decisions. Help the team with renderanddetaileddrawings.

I always try to have different team members every competition in order to learn more about design and teamwork

photo : japan trip, 2018 Sampleofcompetitionpanelsaftergraduation. Sampleofcompetitionpanelsbeforegraduation.

WORKING EXPERIENCES

I get to do my part on the team/non teamprojectforthe

• 2Ddrawings

• 3Dmodelling

• Rendering

• Manage progress with Lead Architect, Owner, Suppliers, Contractors,Structure,etc

photo : japan trip, 2018
Sampleofdesignimagefromworkingwithminnaarchitectsandasafreelance. Sampleofdesignimagefromworkingwithlecturer
thank you
& look forward to the next update
photo : japan trip, 2018

Turn static files into dynamic content formats.

Create a flipbook
Issuu converts static files into: digital portfolios, online yearbooks, online catalogs, digital photo albums and more. Sign up and create your flipbook.