MASS HOUSING


• SITE
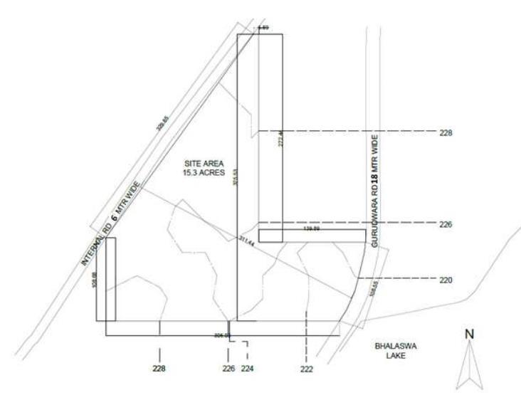
• BHALSWA,DELHI ,INDIA
• SITEAREA: 15.3ACRES


•
• LOCATION: BHALSWA,DELHI,INDIA
• NEIGHBOURHOOD CONTEXT
• BHALSWA LAKE NEARBY
• NH44
• BHALSWA LAND FILL AREA
• SQUARE PLANNING
• CONNECTING ROADS
• DIFFERENT CHOWKS NEARBY

ACCESIBLITY
• Bus stations near Bhalswa Horseshoe Lake in Delhi
• Bhalswa Xing,14 min walk,view
• Bhalaswa Crossing,14 min walk,view
• Bhalaswa Village Crossing,15 min walk,view
• Metro stations near Bhalswa Horseshoe Lake in Delhi
• Rohini Sector 18, 19-31 min walk,view
• Majlis Park-43 min walk,view
• Bhalswa is an urban village in Delhi, where a large proportion of the city’s urban poor resides.
• The site chosen for this project is located to the West of Bhalswa, adjacent to the Bhalswa Lake.
• The site is currently undeveloped and presents an opportunity to deliver affordable and sustainable housing to the area.

• Nearest delhi Airport -1hr 30 mins N

• Main attraction bhalswa lake
• Also provides cool breeze
• Provides great views to the site












































