Architectural and Urban Design - MSc

Page 1

SIBEI CHEN

ARCHITECTURAL AND URBAN DESIGN

2019-2024 SELECTED WORKS

PORTFOLIO PORTFOLIO

Sibei Chen

DoB:05/01/2001

Tel:+8613600097416

Email:sibei.chen000@outlook.com

Education Background

Zhuhai College of Jilin University

(Zhuhai City,China)

Major in Architecture

09/2019-06/2024

GPA:3.48/4.0

Skills&Interests

Software Skills:

Proficient:Adobe Photoshop,Adobe Illustrator,Adobe Indesign,SketchUp,Rhino,V ray,Enscape,Auto CAD,Blender,Grasshopper

Language Skills:

Mandarin/Cantonese/English

Interests:

Photographing/Painting/Guitar/Baritone Horn/Drum Kit/Swimming/Hand-writing/ Travel/Manual Work

Publication

09/2023

Yan, W., Bao, Z., Chen, S., Wu, Y., & Li, Z. (2023). Research on Spatial Pattern Design Strategy of Primary School Campus in High-density City. Urban Architecture Space, Volume 30, Issue 1. 2023, 176-177.

Experience Honors&Awards

07/2023 – 09/2023

Assistant Designer

S&J Design Consulting Co., Limited (Hong Kong)

10/2022 – 02/2023

Assistant Designer

YCT Design Consulting Company

07/2022 - 08/2022

Assistant Designer

Guangdong Urban & Rural Planning and Design Institute Co., Ltd.

07/2021 - 08/2021

Assistant Designer

American Country House Project

07/2021 - 08/2021

Graphic Designer

Miscellaneous Grains (Snack Brand)

11/2023

2nd Prize on the 6th GuangdongHong Kong-Macao Greater Bay Area School Design Work Exhibition and the 8th Biennale of the Academy Awards of Guangdong College Design Works

09/2023

Second-Class Scholarship

09/2022

Second-Class Scholarship

09/2021

Second-Class Scholarship

09/2020

Second-Class Scholarship

CONTENTS

I.Creativity Centre

Location:Zhuhai,China

Individual work

Key words:Campus,Architecture, Organisation 10/2022-12/2022

II.Right here,Write Here

Location:Guanghzou,China

Individual work

Key words:Material,Furniture,Exhibition 07/2021-08/2021

III.Fragmented Interpretation

Location:Guangzhou,China

Individual work

Key words:Film,Fragmented Information,Footbridge 05/2023-07/2023

IV.Pig Farm

Location:Somis,California,America

Individual work

Key words:AR Game,Farm Planning,Pig 09/2023-11/2023

Start Point

Creativity Centre

Location:Zhuhai,China

Individual work

Key words:Campus,Architecture, Organisation 10/2022-12/2022

Based on the rising unemployment rate of college students in China, we researched the employment pain points between students and enterprises, and set up a Creator Center at Zhuhai College of Jilin University in Zhuhai City, Guangdong Province, China, aiming to alleviate the problem of the difficulty of connecting university graduates with industry, academia, and research, and create the possibility of personalized careers for students.

Unemployment rate of Chinese college graduates is increasing year by year, and it is difficult to match employment, for this reason I researched the status quo pain points of the three parties: studentsenterprises - campuses.

Interviews at the School

I'm going to graduate school.

I've never worked in business before and I'm afraid I won't fit in.

We don't have time to teach new employees how to do anything! Don't they teach that in college?

I'm sorry, but there's just no way we can screen for exact matches.

I want to go to a position that is more personal to me.

I'd like to try another industry, but I don't know much about any of them.

NO INTEREST NO JOB!

Without competitive qualifications and experience, companies don't want me.

Keep fighting for the flexible Unemployed graduates intend to... 46.4% 24.1% 19% 17.6% 15.7% INTEREST The MOST IMPORTAN FACTOR in finding a job PROGRESS SALARY Interdisciplinary employment same profession change profession 2021 2022 2023 7% 13% Bachelor's degree graduate graduate school seek employment functionary business start-up study abroad others 1.12% 2.07% 4.25% 17.57% 34.21%
year Unemployment rate 2017 2018 2019 2020 2021 2022 2023 20.4% 19.3%19.6% 15.4% 10.6%10.3% 8.3%
REAL JOBS IDEAL JOBS VS REAL STAFF IDEAL STAFF VS HR
Manager
1.Distant Company 2.Inapplicable Knowledge 3.Inadequate Job Students School subjectivity interest benefit experience skill inapplicable GAP Company objectivity theory
Analysis Conclusion Company Recruitment Pain Point

Case Study Location Analysis

Hong Kong University of Science and Technology

Guangzhou

Campus Redbird Makerspace

CONCEPT SPATIAL FORM

Redbird Makerspace is the core vehicle for the cross-fertilisation of different engineering disciplines and the emphasis on the concept of shared creativity education.

W1 Labs

Maker Space

Reducing fixed partitions creates more flexible open planes; designing richer spatial partitions and creating conditions for activities with different levels of openness.

Diverse modules

2 3 Placement of public nodes in each layer

STEAMLINE

The long, narrow, continuous corridors are fragmented to achieve a visual link between different areas.

In recent years, China has been vigorously developing the construc tion of the Greater Bay Area, with diversified industries and a strong atmosphere of innovation; Zhuhai, which is located in the centre of the node, is connected to Hong Kong and Macao and has a high degree of openness to the outside world.

Zhaoqing

Dongguan

China

Guangdong

Foshan Jiangmen

Zhuhai Institute of Science and Technology is close to Zhuhai Airport, convenient to reach the port, suitable for enterprises to move in.

Zhongshan

Huizhou

Shenzhen HongKon

Position

Surrounding Resources

Cities connecting Guangzhou, Shenzhen, Hong Kong and MacaoInternational Innovation Resources Transit Centre

1.Centre of the living area

2.Convenient transportation

Policy

Innovation Highland Youth Innovation and Entrepreneurship Support

7,400m² on three floors
800m² on two floors
on two
2
High bay 950m²
floors 1 1
25km 100km 50km Guangzho u
Macau
45min 60 min 60min 60min
g
1h
Zhuhai
drive 45min drive Hengqin Port Gongbei Port
drive
Jinwan Airport
40min
SITE 10min
Zhuhai
N A B C D E F G H J 1 2 3 4 5 6 7 8 9 10 0 250 500 750 1000 1250 1500 1750 2000 2250 2500 2750m SITE Dormitory Dormitory C a n t een Lanscape P l a y g r ound Classroom
3.High traffic flow
University Clear categories of work 1.Poor perception 1.Flowability 2.Spatial organisation Enterprises in school 2.Single type of job Create personalized work 3.Industry-academiaresearch disconnect Applied teaching Efficient movement lines larvae eggs QUEEN laying eggs food storage food storage seed husking dining room rest area winter room trash room pupae main road individuals cooperation branch road + convert to space convert to space + ENTRANCE Company Company Company Company University University ? ? ? Company Company Company Company Company Company A B C D A B E F G H C D J K L N O P M + HYBRID No ant is idle! Observation Model Learning From Ants Strategy
Instinct+Job+Ability Rent the place that suits you! Your Career Report Roadshow Exhibition Identity(Student's major) Fill out a questionnaire to tap interest Interview to join 1.Art design 2.Workshop 3.Indor exhibition 4.Brainstorm ideas 5.Informal showcase 6.Collaboration loft 1.Research experiment 2.Group discussion 3.Multimedia classroom 4.Lecture theater Type A Type B Type C Type D Type E Type A Type B Type C Type D Type A Type B Type C Type D Research institute Creative works Work with students Enterprises related to the establishment of specialties INSTINCT Club Company JOB Faculty ABILITY Auditorium SHOW YOUR FLASH! select observe select observe = 1.Panel discussion 2.Office 3.Complex office 4.Private meeting 5.Departmental report 6.Landscape Atrium Club Faculty Company Machnism

Club

Faculty Company to manage efficiently to inspiration exchange

to research independently

Cluster

For easy contact

Plan & Function

Transition Courtyard

Sharing Platform

1 1 2 2 2 3 3 3 3 4 4 4 5 5 5 5 5 5 5 5 6 6 6 6 6 6 6 14 14 14 14 14 14 14 15 15 15 15 14 14 13 13 13 6 6 6 6 6 6 9 13 9 9 9 10 11 12 12 16 16 17 18 10 10 10 10 8 8 8 7 3
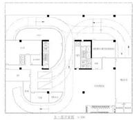
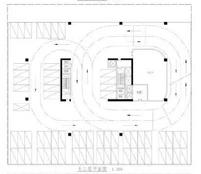
Layout Plan
Lecture hall with truss structure
N 0 2 4 6 1:500 8 10M
4.open
10.stairwell
1.lecture
7.transition
5.meeting
11.function
17.stage 2.research
8.relaxing
14.personal
6.private
12.control
3.multimedia
9.toilet
main road branch road
Function
office area
16.prop room
theatre
countryard 13.management office
room
room
laboratory
terrace
studio
chat room
room 18.auditorium
classroom
15.hybrid studio

Section & Perspective

Various Studios Talking Room Faculty Corridor

Auditorium Section Physical Model 1:50

Floor and wall construction Studio with double bleachers Truss structure inside the Auditorium

Auditorium Elevation With Interior Lighting

Details

Learning from Steven Holl Kalwall

Folding

door that opens and serves as a medium of communication

of Point glass curtain wall Elevation Perspective

Outdoor

Double glazing

Translucent elevations

Rubber band Rubber band Aluminium alloy pressure plate Stainless steel mechanism screws Stainless steel mechanism screws
Indoor
Weather-resistant adhesive with foam desert rod Aluminium alloy decorative buckles Aluminium alloy column Aluminium beam

The project started from my own love for paper media, which expresses the interplay of human emotions better than electronic media. Therefore, I designed an pop up exhibition about "writing" at Zini Sugar Factory in Guangzhou.

Right Here Write here Electronic Media vs Paper Media
Location:Guanghzou,China
Individual work
Key words:Material,Furniture,Exhibition 07/2021-08/2021
Conclusion Electronic media Paper media Transien Directed Emotive Untargeted
to be friends
a sentence in a book.
ephemeral information
stranger expressed his feeling.
1.Apply
1.Write
Sometime later... 2.Exchanging
2.A

Site Analysis

ZiNiTang is located in ZiNi Village (former ZiNi Sugar Factory), Shawan, Panyu, with the Shawan waterway encircling the whole island, covering an area of about 260,000 square metres, with innovative technology, traditional handicrafts, cultural creativity, art education, living and leisure businesses.

N Suburb

Site

Residential Area

Historical Evolution

Exsiting Programs

China Guangdong Guangzhou

ZiNiTang, Shawan, Panyu

Situation

Many projects were terminated and the plan of Living Art Island was also destroyed.

+
e + + + + + + + + + + + + + + + + +
+ +
Factory FoodPackinghous
SITE Cultural Park
Population
1953
Completed and put into production. The demand for sugar began to decline. The factory was forced to close down. The park was handed over by a private enterprise.
The park was positioned as the largest living art island in South China.
1978 1990 2015 2016 2019 Artistic People 28% Villager 15% Staff Member 12% Tourist 35% Gallery 40% Dining Room 20% 20% Office Building 40% Derelict Building
street
waterway platform culture
refining workshop SITE

Material Experiment

Purpose Necessary Process

1.For temporary construct

Tree Bark

Light-transmitting Dupont Paper

2.For better display of strokes

Contton Paper normal Printer Paper

1.Tear up the contton paper

4.Mix up

2.Cut up the tree bark

5.Fish and dry

3.Hammer the tree bark

6.Stick the DuPont on

spread easily normal

Washi Straw

Conclusion Side A:Dupont paper for water resistance

Tough Water-resistant rich texture Hard to write

Testing&Observation

Firmness Group

Deformation For better load bearing

Too much deformation can affect the assembly

Side B:mixture

Writing Performance barks contton paper straw

Thickness:2mm

Firmness:

Deformation:

Strokes and writing feelings

Thickness:3mm

Firmness:

Deformation:

Thickness:6mm

Firmness:

Deformation:

Thickness:8mm

Firmness:

Deformation:

Varied

Not attactive Varied

Mix barks/cotton paper/straw at different rates 80% 60% 40% 20% 20% 40% 60% 80% 0% 0% 10% 0% 1 2 3 4

Floor Plan and Analysis Assembly Processes

1.Reorientable exhibition stand 2.Transormable tables and chairs

360-degree rotation

the grooves jam the paper

3.Interactive Display

load-bearing

Clip up the used paper for display

39mm Surface-mount concealed hinge

Put the wheels on unfold

600mm

Exhibition

rest paper making exhibition writing

interactive zone

drying sharing

N

Main road

Minor road

Telescopic sliding rails, easy to set up different lengths for different venues when setting up the exhibition.

The frame can be rotated at any angle,and the paper will swing with it.

Perspective

The whole bazaar has different levels of openness, from the exhibition area, to the experience area and then to the sharing area, providing visitors with a variety of experiences in writing

The seating area is centred on the elevated floor, allowing one to find a piece of tranquillity in the midst of the hustle and bustle of the city.

Private Semi-private Open up

Physical Model(1:1)

I have tailor-made connecting members for the wooden poles that allow them to be extended indefinitely.

Here you can interact with people passing by, make paper together, or write on it!

hinges.

The chair unfolds by means of a hinge. The legs of the chair can also be stored during the day.

Swag logs according to the set size Drill holes in precise locations Making the base for the chair legs Sanding the woods Assembled and spliced Suitable acrylic base for table legs. Rotation at the joints by means of Display Furniture

Fragmented Interpretation

Location:Guangzhou,China

Individual work

Key words:Film,Fragmented Information,Footbridge

05/2023-07/2023

Wong Kar Wai, BBS, JP (English: Wong Kar Wai, 17 July 1958 - )

A contemporary Hong Kong film producer who specialises in shooting in montage and is the director of the film Chungking Express.

Design Strategy

A.Theatre Space——Performance Stage

1.4 Main Characters

4 Main Entrances

2.Different Plots

Transfer Method

Key Plots

Key Words Extraction:

Movement/Shots/Events

Spatial Transfer

3.Meeting of Characters

Route Crossing

B.Experience Space——A Footbridge

1.See Clip Information in Window

2.Generate New Interpretations

2D Sketches

Elemental Models

Regroup

Missleading plot (examples)

Through the window, pedestrians may see only fragments of the illusion, and the real story is often blurred

1.Main Entrances

3.Meeting of Characters

Experience

Route

2.Different Plots

Storyline Extract

Main Plot Shot Number

Blonde

A woman who is alert and good at disguises

Weaving through the corridors

Drug dealing

Pass by with Fei

Betrayed by the boss

Blonde

Key Shots NO. Elements Translation Imagination Sketch

Wu

A boy always fixates on his relationship

Catch the thief

Break up with girlfriend

Cure himself in a morbid way

Met at a bar

Spend a night at a hotel

Revenge of the Boss and release

Police 663

A man who hesitate to try new things

Buy fast food for his girlfriend

Miss his girlfriend

Depressed after a breakup

salvation salvation

Letting go and running to catharsis

Meet by accident

A casual and lively girl Fei

Wu

Police 663

Curious about 663

Openend 663's breakup letter

Infiltrate the 663 house

Fei discovered by 663

Change himself and look for Fei

Has butterflies in her stomach

Asking Fei for a date

Fei

Confirmation of the relationship after returning

freedom

Key words corridor dangerous vulnerable curable divert feel out embrassed

speed depression curious

free

neon confused miss

shaking fantasy depression fantasy

morbid lonely enter

awake

instable cold soft B W P F

puzzled puzzled

curable interchange interchange

release release confirm date confirm delighted

B-1 P-1 W-1 F-1 B-2 P-2 W-2 F-2 B-W B-W-1 P-F P-F-1 B-1 P-1 W-1 F-1 B-2 P-2 W-2 F-2 B-W B-W B-W-1 B-W-1 P-F P-F P-F-1 P-F-1
Boundary Tension Pipe Boundary&Density N 65000 +0.000 +0.000 -0.150 3.500 6.000 36000 1:500 Floor Plan Perspective
Entrance Blonde Wu Police 663 Fei Passer-by

Most

Load-bearing structure of the footbridge

China Guangdong Guangzhou Guangzhou CBD 1 2 3 4 1.Teemall Shopping Centre 2.ParcCentral Metro Station Shopping Office Work Dining Sport 3.Grandview Plaza 4.Tianhe Sports Center SITE A bridge crossing the road Population Children &Parents Age Range Description Proportion 32.2%
Section Physical
Model
Site Analysis
of the people who come to the site are young, and they're the main people who are manipulated by fragmented information. The Young Trendsetters, come here for shopping and entertainment To pass the time Bring the kids for a weekend of fun and relaxation 58.6% 9.2% The Old Section 1:200 Actor Passer-by -0.150 1.000 5.000 10.000 8.550 3.500 12.000 9.300 0.900 2.700 5.900 6.300 +0.000
Space
Theatre Space Experience
4500 2400 60 200 300 800 1600 7150 400 1120 1550 20 1100

Various Interpretation

Physical Model (Theatre Spcae)

VS PC Model (Experience Spcae)

She leaved me... Everything expires...

Catching the thief and missing his girlfriend.

Wandering in front of a convenience store.

Wow! There's a runner!

He must be mentally ill,and starving!

Why is that man talking to himself at the vending machine? That's so funny!

Taking care of the woman.

Will she leave me tomorrow?

I should take off her heels.

B-W Speed through.

Attacted the man who tried to kill her.

There's a bad woman over there.She killed an innocent...

What happen, dad?

W-1 B-1 B-2 W-2

P-2

Walking and standing alone.

Are they neighbours?

The girl is trying to get close to the man.

Not bad.

Hey~How are you doing today?

B-W

God!The man is so boring!

How are you tonight?Which color do you like most?

Sitting at the bar.

Why is he wandering around there all alone?

He might be out of a job!

Why is there a window here? Is that a garden up there?

God!I'm afraid she'll come out and rush to me!

F-1

P-F

What a beautiful world~

Enjoying the view from outside.

Oh come on. She can't get out.

Pig Farm

Pig Farm

Location:Somis,California,America

Location:Somis,California,America

Individual work

Individual work

Key words:AR Game,Farm Planning,Pig

Key words:AR Game,Farm Planning,Pig

09/2023-11/2023

09/2023-11/2023

This is a thanksgiving education themed manor game design that satirises human cruelty through virtual reality games. Visitors experi ence a pig's perspective through a remote-controlled mechanical pig, interacting with real humans and re-enacting the domestication of pigs. Despite the player's efforts, the mechanical pig will eventually be slaughtered. At the end of the game, players can use their points to savour different levels of pork dishes at the Manor Restaurant, focusing on the unequal relationship between humans and pigs and provoking reflection on species equality and animal welfare.

Starting Point:Man's Treatment of Animals

In the Anthropocene, there are some cold and selfish human beings who regard themselves as the masters of the world, putting their own selfish desires above the lives of other species and committing a series of atrocities against them.

Creatures are equal. Theory

<Animal Liberation>

We must consider the interests of all living beings capable of suffering.

Human=Controller?

This is a th a nksgiving education themed manor game desig n t h at s atiri s e s h u m a n cruelt y t h r o u gh virtual realit y g a m e s. V i s it o r s exper i ence a pig's perspective through a remote-controlle d mech a nic a l pig, inter a cting with re a l hum a ns a nd re-en a cting th e domestication of pigs. Despite the player's efforts, the mechanical pig will eventually be slaughtered. At the end of the game, players can use their points to savour different levels of pork dishes at the Manor Restaurant, focusing on the unequal relationship between humans and pigs and provoking reflection on species equality and animal welfare.

Singer Peter,Animal Liberation,Qingdao

MASSACRE

PRODUCT
ANIMAL

Film:<Pig Classroom>

This is a Japanese film on the theme of gratitude education, about a teacher who instructs primary school children to raise and eventually eat pigs, inspiring them to think deeply about life.

Teacher suggests raising a pig together.

Child playing with the pig.

Child got attached to the pig.

The pig grew up and was sent to meat factories.

Reality:pigs are born to be eaten.

Is that true?What can I do?

Acting as a pig character in the AR game and finally eat the pig!

1.Game View:You are the pig

Try to grow up

Baby pig

Entrance

2.Reality View:You eat the pig

Inevitable End

Fat pig

Pork

Location A Cottage Farms SITE

FOOD FOOD

Pig = Commodity?

According to research, pigs have the highest IQ and meat exchange rate of any common livestock, and are also the most consumed meat by humans.

Undomesticated ANCIENT TIME Ranch FARMING PERIOD

Analysis of pigs

Walled in 19-20CENTURY Caged NOWADAYS

Body Shape Change

2

curious clever adventurous lethargic tidy free

outdoor clear function crowd smelly dirty somber

WHAT
CAN’T STAND 1 NATURE 1.5-2 meters 1 meter Height Length BASIC DATA Life 1 year Weight 90-200 kg 2013 2014 2015 2016 2017 2018 2019 2020 25 20 15 10 5 0 19.8 20.0 20.1 19.6 20.1 19.8 20.3 18.2 10.4 10.8 11.2 11.4 11.5 11.4 13.6 13.9 2.3 1.2 1.2 1.2 1.0 0.9 1.3 1.3 1.5 2.2 2.0 1.9 1.8 1.6 1.5 1.5 3.5 60-70 8.8 60-70 20 70-80 8.3 50-70 Meat exchange rate IQ Per capita meat consumption/kg
WHAT THEY LIKE 3
THEY
HUMAN ANIMAL
Space Evolution
NEW BORN 1-1.5KG 3WEEKS 6-8KG 10WEEKS 20-30KG 6MONTHS 90-100KG 1YEAR 200KG 8-9MONTHS 110-130KG

Form Physical Model

Original Situation

Function Streamline Plane Sketch Entrance Resturant Ranch Cage

Landrace

3.PARADISE & HELL Better performance,better space. Every map has robot pigs ready to be activated. Congratulations! You are time to be eaten. <400 400~1000 Keep alive until...
Weight:300kg Height:78cm
Height:80cm
Duroc Weight:320kg
Berkshire Piggy
roles,different spaces.
raw score under the Berkshire is 450 and will be assigned to the NORMAL map. Untidy Attack Disobey humans Get ill Lethargy and laziness Be attacked 20 -20 40 -40 80 -80 Caress Performance Eating food scraps Actively foraging Clean up the farm Social Do exercise Players will receive bonus points when performing positive actions. Points will be deducted when players fail to successully complete certain actions or perform negative actions. lpea ehuman exercise ea leftovers till atack annoyed 1.CHOOSE CHARACTER Berkshire resistance EQ aggressivity physical power IQ 450 Weight:200kg Height:65cm Map Preview Start NORMAL Duroc Landrace Berkshire Piggy
you are allowed to catch the pig you like. Pleasing human, getting points. 2.SCORE RULE VR Room Score Weight:220kg Weight:250kg Weight:275kg Height:68cm Height:72cm Height:74cm 380 HELL 760 NORMAL 1180 PARADISE RESTURANT
Different
The
Now

AR Perspective

Real Perspective VS

Roof on the resturant:Visitors who have finished their meal will interact with the pig on the roof. The pigs in the Normal map are still trapped in the borders set by humans. Sitting-out areas on the estate for visitors Humans looking down on a pig located in a pigsty

OTHER WORKS

Yuyuan Garden,2022 Longkong SOHO,2022 Sketch in detail 2020-2021 Tempera Fountain Pen 2021 the 10th Architecture Festival 2021 Club Newspaper 2022 The Bund,2022

SPACE

珠海应届毕业大学生,通过校招进入横琴产业园就业,朝九晚六。 NOT JUST FOR LIFE 日常都市主义视角下城市空间设计 2

小陈——创业者

人物介绍: 年龄:24 性别:男 学历:本科 因为上大学而来到珠海,本科毕业后选择留下发展,因为喜欢自由 无拘无束的感觉所以选择独立创业,目前在创业初期,稍有成色。 性格外向,活泼开朗,爱结交好友,周末喜欢和三五朋友聚聚。

1.没有良好的创业环境,创业氛围不浓厚,创业路上单打独斗没有 2.租房生活品质不高,大单元一个人用不上,小单元方位采光较差, 很少有适合单身青年居住大小同时生活品质也过得去的套房

1.设置人才交流中心,提供开放的自由办公空间,灵活多变的办公 2.为年轻人们留出公寓居住组团,形成青年社区,居住组团结合空 3.在滨水打造景观长廊,生态绿色环境,让居民散步放松,也能露 资深中产,在行业涉足二十个年头,靠自己的双手打出了一片天, 在行业领域占有一席之地。平日里注重生活品质,消费理性。

THE PERSPECTIVE OF DAILY 成员: 11190107 吴依帆 11190111 陈思贝 11190113 李泽娴 班级:建筑一班 指导老师:周伟强 梁芳婷 居住教育组团 政务中心 商业办公中心 研发产业组团 滨水商业写字楼 创业孵化基地 活力文体中心 滨水休闲组团 商旅综合体 青年居住组团 文化博览中心 1、共享开放的新型居住模式 A new type of shared and open living model 2、生态绿化的高级住宅体验 Experience of Ecological Greening in Advanced Residential Buildings 3、配备完善的教育模块 Equipped with well-equipped educational modules 1、多用途的共享运动空间 Multipurpose shared sports space 2、可容纳万人的体育馆 A sports hall that can accommodate ten thousand people 3、街角社区口袋公园 Street corner community Pocket park 1、慢行生态绿道呼应生态宜居城市 Slow moving ecological greenways echo ecological livable cities 2、滨水平台提供更舒适的观景模式 Waterfront platform provides a more comfortable viewing mode 3、活力骑行道适应都市新风尚 Vibrant cycling trails adapt to new urban trends 1、产业研发中心 Industrial R&D Center 2、交互体验社区中心 Interactive Experience Community Center 3、创意展厅 Creative Exhibition Hall 1、开放共享的工作平台 Open and shared work platform 2、灵活多变的办公空间形式 Flexible and versatile workspace format 3、活跃的创业交流平台 An active entrepreneurial communication platform

1、满足青年居住的公寓住宅

Group work “Urban Space Design from the Perspective of Everyday Urbanism”,2023
box,2019
Acrylic Model of garden,2020
1.引入河道,并沿河设置绿地公园,与写字楼形成视线通廊 项目区位
Apartment housing that meets the needs of young people 2、结合工作室、健身房、活动室、绿色平台等功能块以满足青年生活社交需求 Combining functional blocks such as studios, gyms, activity rooms, and green platforms to meet the social needs of young people's daily lives 1、城市中心CBD标志物 City center CBD landmark 2、与空中活力枢纽相连营造空中交通网络 Connecting with Air Vitality Hub to Create an Air Traffic Network
URBAN
DESIGN FROM
Floor plan of the Academic Exchange Centre,2021
High-rise office design,2022

Turn static files into dynamic content formats.

Create a flipbook
Issuu converts static files into: digital portfolios, online yearbooks, online catalogs, digital photo albums and more. Sign up and create your flipbook.
Architectural and Urban Design - MSc by ppicooo - Issuu