Architecture portfolio

Page 1


Portfolio - 2025

Allan de Paula Possa

1. Invitation To Design

A New Museum of Architecture and Design in Makasiiniranta, Helsinki, Finland – Competition for Prize.

2. New Connections of an Old Place. Bachelor’s Final Project - Urban proposal to FEPASA’s area in Jundiai city. – Grade 10/10.

3. Green Again on Street.

Urban intervention proposal in the district of Mooca, São Paulo, Brazil. – Competition for Prize

4. DA Residence A

5.

INVITATION TO DESIGN

A NEW MUSEUM OF ARCHITECTURE AND DESIGN

Year: 2024

Site: 5,300 m2, Makasiiniranta, Helsinki, Finland.

Type: Architectonic Pavillion - museum

Category: Competition for prize - New Museum of Architecture and Design

Role: All

Makasiiniranta is a culturally significant area in Helsinki, carrying a strong symbolic historical value. Currently, it is primarily used for port terminal operations and car parking. To the west of Makasiiniranta lies Tähtitorninvuori Hill, a park area, while to the north are the Old Market Hall and the Market Square. The museum project has as objective to radically remake the site and secure for it a highly public location in the heart of Helsinki. The design of the museum is meant to offer visitors of all ages a new experience and an interactive location for Helsinki residents. A critical part of the project is maintaining the human scale in various parts throughout the design. The museum has been organised around three primary purposes: to deliver design tools for the public, open up spaces of dialogue between cultural institutions and industrial partners as well as educational entities; and provide grounds where people can understand how architecture and design impact society.

Perspective render

Strategies and uses

The project contemplates three main blocks: the northern block for technical areas, the southern block for commercial uses such as a shop and a restaurant, and the central block for a library. All blocks also include museum exhibition spaces. The building’s design aims to physically connect Tähtitorninvuori Hill Park with the Saaret urban renovation and to visually link Uspenski Cathedral and Helsinki Cathedral.

Additionally, the height of the project does not interfere with the city’s skyline, and the open ground level invites citizens to view the sea from the museum.

For sustainability, glass windows are strategically placed to permit air ventilation throughout the building. Moreover, solar panels on the southern block (the commercial one) are used to generate clean energy for the building.

Pedestrian crossing
Air passage and solar panels
Commercial path
Uses o the building

The programme

Axonometric programme view

Ground floor
First floor
Second floor
Third floor
Fourth floor
Fifth floor

Terrace floor

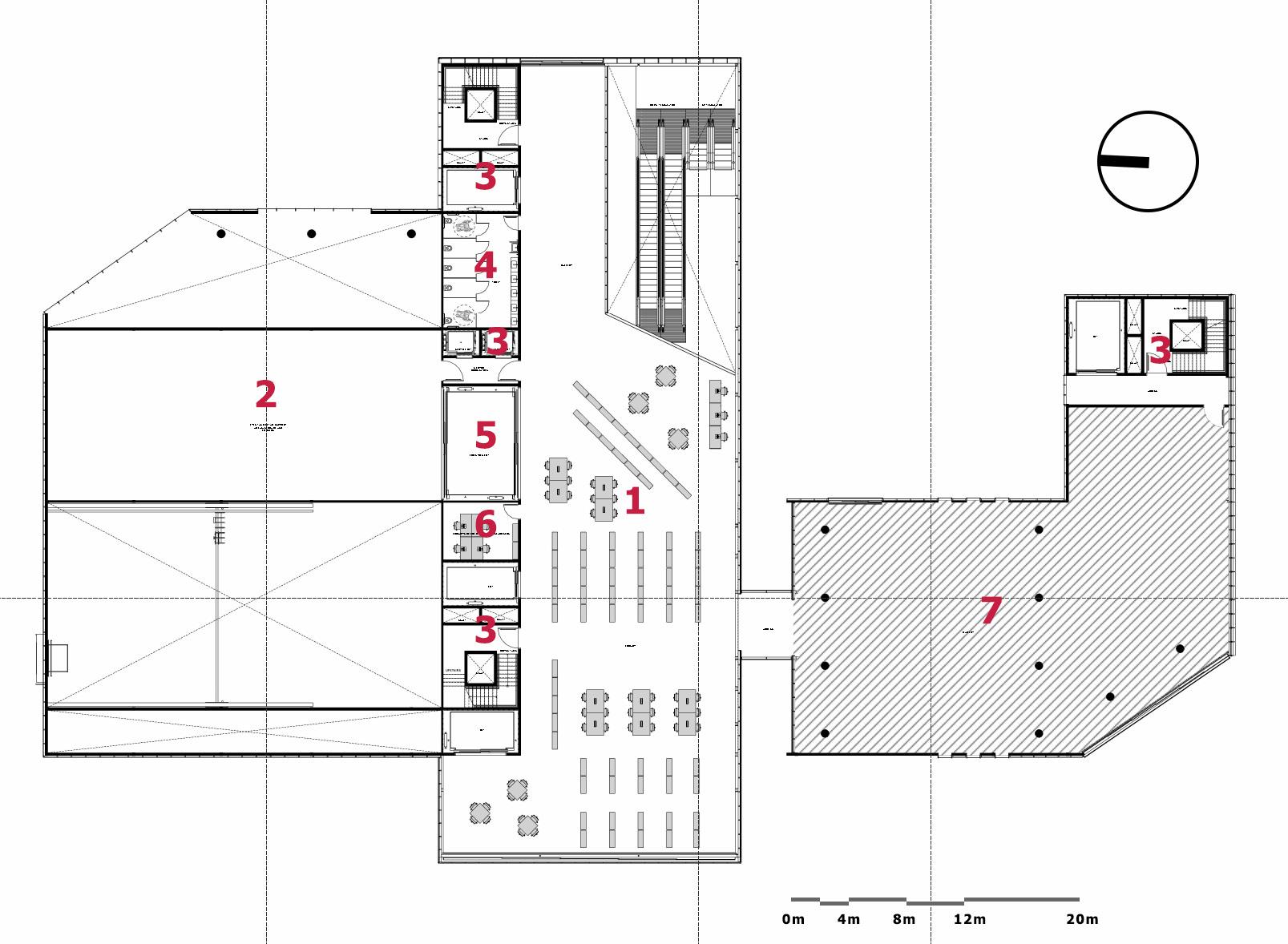
Ground floor

1. Temporary Expositions

2. Loading and crating area

3. Project and workshop

4. Vertical path

5. Restaurant

6. Kitchen

7. Shop

8. Logistic’s lift

9. Luggage store

First floor

Library

Event and retail

Vertical path

Toilet

Second floor

Third floor 1. Gallery 2. Vertical path 3. Toilet. 4. Logistic’s lift

5. Technical installations

6. Cleaning centre 7. Event and conference

Fourth floor 1. Lobby 2. Gallery 3. Vertical path 4. Toilet 5. Logistic’s lift 6. Event and conference Fifth floor

Gallery

Vertical path

Toilet

Logistic’s lift

Office and staff

Terrace floor

Terrace

Vertical path

Cafe 4. Logistic’s lift

Green roof 6. Solar panels and air conditioning equipment area

Longitudinal section

Perspective render Perspective render
Perspective render Perspective render

NEW CONNECTIONS OF AN OLD PLACE

BACHELOR’S FINAL PROJECT - URBAN PROPOSAL TO FEPASA’S AREA IN JUNDIAI CITY.

Year: 2019

Site: Jundiai, São Paulo, Brazil

Type: Architectonic implantation and urban design

Professor: M.Sc. Giovana Savietto Feres

Category: Bachelor’s final project - top mark achieved

Role: All

The project is an urban requalification of an area close to FEPASA (São Paulo’s Railway Joint-Stock Company). Four strategies were employed: legislation, mobility, remodelling of occupation, and connectivity. The objectives were: to create uses for the “urban voids,” to provide exquisite housing for underprivileged people, to establish urban links, and to resolve flood problems. In summary, the aim was to assist inhabitants from Jundiaí city to thrive.

For legislation, the master plan for construction from the city of Jundiaí was utilised, and certain aspects were changed in the project area: the occupancy rate, utilisation coefficient, and maximum height of the buildings.

Regarding mobility, the avenue had its route altered to increase the lowland areas of the river. This alteration enabled the implementation of Bus Rapid Transit (BRT) in some locations and cycle paths.

In terms of remodelling occupation, mixeduse buildings with ten floors were utilised alongside a park. The ground level was

allocated for commercial use, while other levels were designated for residents. This choice aimed to ensure independent uses regardless of the time and to create employment opportunities for the local population. Furthermore, the project included projects and institutional spaces to discourage gentrification.

Connectivity was achieved through elevated walkways between the buildings, with all routes chosen to improve physical and visual connections. However, these pedestrian bridges are also utilised for neighbourhood connections. In proximity to the new buildings lies a favela (São Camilo). To avoid segregation, a funicular railway was implemented next to the walkways. To enhance safety and create a human-scale environment, some streets were transformed into woonerfs (shared space streets). Within these spaces, the road is at the same level as the pavement and includes street furniture and colours. Only a limited number of cars are permitted on woonerfs.

Watercolor painting

Section BB

Section CC

Section DD

New buildings inphografic
Section AA
Woonerfs plan and section

GREEN AGAIN ON STREET

COMPETITION FOR PRIZE - URBAN DESIGN

Year: 2017

Site: Mooca district, São Paulo (city), São Paulo, Brazil

Type: Competition for prize - urban design - group project - participants: Adrielli Bortoletto, Allan de Paula Possa, Felipe Açolin, Flávia Baldam and Marília Miguel.

Professor: M.Sc. Giovana Savietto Feres

Category: Competition for prize - National University Urban Planning CompetitionUrban 21

Role: Data surveying, site visits, and map creation. The proposals were collaboratively developed by all students involved, with guidance from our advisor professor.

Urban map

The district of Mooca in São Paulo faces challenges such as a lack of public space, absence of forested areas, scarcity of human-scale developments, and limited mixed-use zones. In response, an urban intervention proposal was developed to address these issues while preserving the existing human connection and minimizing the impact on the lots. The proposal includes the creation of partial car-free blocks with forested spaces on local streets, aiming to reduce vehicle speed, increase green spaces,

and enhance street safety. If the streets are within mixed-use areas, they would incorporate light rail transit (LRT) paths, improving transportation options and accessibility.

To promote better connectivity and integration, the proposal suggests relocating train rail paths underground, reducing physical barriers. Additionally, a wide park is planned to mitigate flooding issues and provide additional recreational areas for the community.

Big barriers which will be removed
Tamanduateí river flood area
Vast permeable area with park for controlled flood for Tamanduateí river
Barriers removal

Proposal for streets

Proposal for streets with mixed uses

Current streets

DA RESIDENCE

A SINGLE-FAMILY RESIDENCE IN SÃO PAULO

Year: 2023.

Site: 682 m2, Itatiba, São Paulo, Brazil.

Type: Single-family residence.

Category: Residential project.

Role: All.

Set within a condominium in São Paulo’s countryside, this residence spans 417.68 square meters on a rectilinear, topographically unique terrain near a native rainforest. The home features a single volume divided into two main sections: the social and private areas.

The social zone is composed of four interconnected open blocks: a spacious living room, dining area, kitchen, and gourmet space, all of which are linked by an interior garden. In the private area, there are three bedrooms, each with its own bathroom, all connected by a corridor featuring a fixed window with a view to an exterior garden.

In addition to the main residence, a partially detached games room is situated at the back of the property. This space includes an extra bathroom and offers views of both the gourmet area and the pool. Completing the outdoor experience, a pergola and firepit create an inviting setting for relaxation and social gatherings.

Façade render

Landscape design

Two Wodyetia bifurcata palms grace the façade, creating an upper volumetric accent in front of a concrete wall. Along the sides of the property, Cenchrus setaceus (Burch grass) adds a textured element to the stone-clad walls. Near the pool, vases featuring Chrysalidocarpus lutescens palms

complement aluminium slats finished in a wood texture. At the rear, a fire pit and an uncovered pergola framed by agaves tequilanas form dynamic shapes amidst the landscape. Throughout the terrain, Zoysia japonica grass provides a low-maintenance, jade-green carpet.

Long section
Landscape design

1. Living room

2. Office

3. Toilet

4. Laundry

5. Kitchen

6. Dining room

7. Gourmet area

8. Corridor

9. Bedroom

10. Games room

11. External bathroom

12. Storage room

13. Pool

14. Garage

Strategies and interior design

To separate the social and private areas, the interior garden forms a natural intersection. The east wing is dedicated to the bedrooms, while the west wing houses the pool, with a connecting passage that provides access to the private areas. This design strategy facilitates the circulation for residents and visitors without compromising privacy. Additionally, the alignment of the

social path towards the west, near the dining room, frames a view of the interior garden.

In the living and dining rooms, a higher slab and metal beam intersect the single-slab roof, creating a tiered effect. Fixed windows positioned between these roof levels enhance natural light throughout the social space.

Paths

Throughout the residence, a minimalist interior design reinforces the overall architectural concept. Grey porcelain tiles grace the floors, while white porcelain tiles are used on the kitchen and bathroom countertops. Off-white walls provide a subtle backdrop that contrasts with the concrete feature on the right side of the front façade and the wood paneling lining the social

areas. This aesthetic continues into the private spaces with a smooth plaster finish.

The built-in furniture incorporates MDF panels in a wood tone, creating a contrast with the white walls and black metal beams. Additionally, the use of MDF panels on the walls adds a wood texture element that seamlessly ties the overall design together.

Office render

DA Residence

Location Itatiba, SP

Project date 2023

Completation date 2023

Site area 682.00 m2

Built area 417.68 m2

Architecture Allan de Paula Possa

Interior design Allan de Paula Possa

Structure engineer Felipe Lima

General contractor Aires Construções Ltda.

Residence render

GA RESIDENCE

A SINGLE-FAMILY RESIDENCE IN SÃO PAULO

Year: 2024.

Site: 640 m2, Itatiba, São Paulo, Brazil.

Type: Single-family residence.

Category: Residential project.

Role: All.

Located in a condominium in the interior of São Paulo, this residence was built in steep stone.

The building has 346.20 square metres, characterised by three floors. The third floor is inclined to the northwest to increase natural light and create movement in the façade.

The architecture was organised between three main uses - the ground floor is for garage and technical uses. The second flooris for social areas, a pool and a gourmet area, except for the master suite. The third floorww is for two suites, a private living room and an office.

In the façade there is a massive concrete wall, blocking part of the private living room and creating a double visual deepness. Finally, in the main suite, there is a retaining stone wall, and above that, two grass slopes, with a garden in between. Perspective render

Strategies and uses

A lift and stairs were used to connect the 3 floors of the building. Due to the great verticality of the terrain, on the second and third floors there are observation decks for the Atlantic Forest, a tropical rainforest biome native to Brazil. The first observation deck is besides the pool, next to the living room. The second one is next to the private living room, on the third floor, partially

blocked by a concrete wall. And the last observation deck is the garden above the stone wall, in the back of the residence. The main concept of the house was to divide the residence into three blocks, with each one having a different use, which was: technical, social and private, each one with a view to the countryside.

Long section
Uses Path and strategies

1. Garage

2. Technical area

3. Storage room

4. Hall

5. Lift

6. Living room

7. Kitchen

8. Pool

9. Gourmet area

10. Pantry

11. External bathroom

12. Laundry

13. Toilet 14. Master suite closet

15. Master suite 16. Master bathroom

17. Façade terrace

18. Private living room

19. Bathroom

20. Bedroom

21. Bedroom

22. Bathroom

23. Office

Ground floor
Second floor
Third floor

GA Residence

Location Itatiba, SP

Project date 2024

Completation date 2024

Site area 640.00 m2

Built area 346.20 m2

Architecture Allan de Paula Possa

Interior design Allan de Paula Possa

Structure engineer Felipe Lima

General contractor Aires Construções Ltda.

Turn static files into dynamic content formats.

Create a flipbook
Issuu converts static files into: digital portfolios, online yearbooks, online catalogs, digital photo albums and more. Sign up and create your flipbook.
Architecture portfolio by possaallan - Issuu