
PARAPET, SOLID RAILING OR BUILDING WALL GREATER (GFA) TOTAL AREA OF ALL FLOORS OF A BUILDING, AS MEASURED TO THE OUTSIDE SURFACES OF EXTERIOR WALLS PER LBMC 21.15.1070 NET
10,000SF
LEVEL 03 RESIDENTIAL 10,000SF
LEVEL 04 RESIDENTIAL 10,000SF
LEVEL 05 RESIDENTIAL 10,000SF
LEVEL 06 RESIDENTIAL 10,000SF GROSS FLOOR AREA (GFA) ___SF___SF
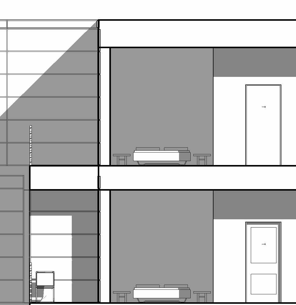
Synapse is a mixed-use housing project in Santa Ana designed to foster connection-both to the city and between people. The development includes 10 one-bedroom units, 10 studios, 5 two-bedroom units, and 5 live-work units, creating a flexible mix that supports a variety of lifestyles. The project is organized into two towers connected by bridges and a sequence of courtyards that serves social extensions of the home. At the core of Synapse's design is the belief that architecture can facilitate community. Rather than isolating residents, the building invites interaction through shared experiences and everyday encounters. The courtyards, framed by communal tables, seating, and native plantings, function like open-air living rooms spaces to gather, relax, eat, or simply cross paths. These courtyards are activated throughout the day by filtered natural light, thanks to the building's orientation to true north and a louver system that brings in soft, diffused light while maintaining comfort and privacy.
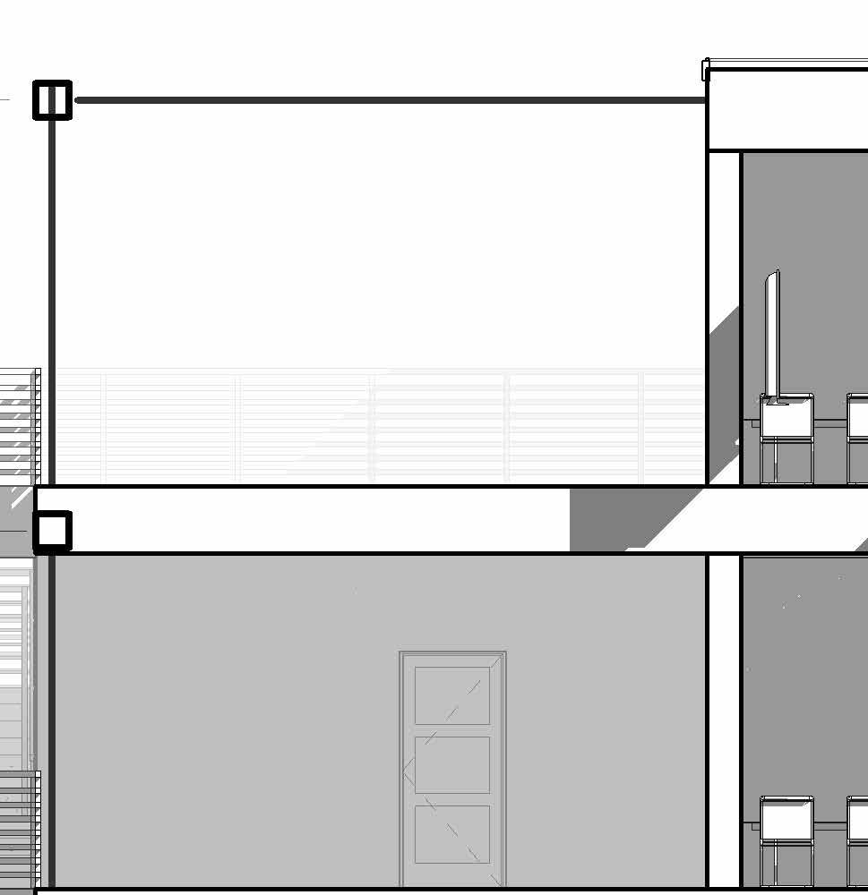
Each unit includes a private balcony that offers views of either the interior courtyards or the train station across the street, grounding the project in both private and urban life. From these balconies, residents stay visually connected-not only to one another but also to the energy of Santa Ana, blurring the boundary between home and city. Ground-level walkways connect the site to nearby retail and transit, reinforcing Synapse's seamless integration with its surroundings.
Circulation within the building is designed to be intuitive and social. Rather than long, static corridors, the layout encourages movement through open-air walkways and visual connections across the site.


REQUIRED USABLE OPEN SPACE SAMC §41-255 (R2 STANDARDS) PRIVATE OPEN SPACE SHALL BE PROVIDED FOR EACH UNIT AT A
SAMC
(OPEN
RESIDENTIAL UNIT BREAKDOWN




































































































































































































































































SHEET NOTES












































































































































































































































































































































































































































































SHEET NOTES






























































































































































































































































































































































































Curtian Wall Schedule
SHEET NOTES

D1
C1
C1
C1
C1
C1
B2
B2
B1
B1
B1 202 L2
NOTES

EF-1 Concrete See Elevations Exterior Wall Covi Concrete Construction coviconcrete.com (714)842-3185 Cement
EF-2 Stucco See Elevations Exterior Wall Foundation Building Materials fbmsales.com (714)380-3127 LaHabra Exterior Stucco
EF-3 Aluminum Composite Panel See Elevations Exterior Wall Alumanate alumanate.com (657)205-6820 Architectural ACM
EF-4 Singl-Ply Membrane See Elevations Exterior Wall Sanchez Single-Ply Roofing srsdistribution.com (714)549-2454 Single-Ply Roof Membrane
EF-5 Porcelain Pavers Unit Deck Floor Patagonia Building Supplies patagoniabuildingsupplies.com (714)619-6230 Argento Travertine Porcelain Paver





