Architectural Portfolio 2025_Wichapasana Chantaracharoen

Page 1


Wichapasana Chantaracharoen

East Architect

Internship

East Architect Internship

2024

- Created schematic and design development for a renovation project - Designed development, and produced 3D digital models for a Condominium project - Developed a facade design collaboration with team - Prepared design presentations for the project owner

May 2023 - August 2023

- Collaborated with the project team on facade design development - Produced detailed construction drawings - Prepared design presentations for the project owner

Activities

2023

2022

Education

Volunteer Rural Development Camp, Faculty of Architecture, 88th Session Vice President / Construction team

Volunteer Rural Development Camp, Faculty of Architecture, 87th Session Construction team

Tutor at Pre-Admission Camp

“One for Tect’s Road”

Chulalongkorn University

Bachelors of Architecture Program in Architecture (Graduated year 2025)

Satriwitthaya 2

Grade 7-12

Language

Thai (Native) English (Fluent)

AutoCad

Sketchup

Photoshop

Illustrator

Enscape

Indesign

Office

Excel

Interests & Hobbies

Details

Philosophy

Material

Collage

Photography

Music

01

Morgans Original Bangkok

Category : Hotel

Location : Pom Prap Sattru Phai, Bangkok, Thailand

15

Bangkok Art Center

Category : Museum

Location : Khlong Toei, Bangkok, Thailand

Category : Location :

Lumpini, Bangkok, Thailand

Bangkok Music Hall

29

Watthana District Office

Category : Office

Location : Watthana, Bangkok, Thailand

35

Wellness Resort

Category : Resort

Location : Nonthaburi, Thailand

Morgans Original Bangkok

Year : 2025

Category : City Hotel

Location : Pom Prap Sattru Phai, Bangkok, Thailand

City hotels are key hubs for tourism, offering comfort and a reflection of local culture. In Bangkok, the historic Rattanakosin district has seen a revival led by the Creative Class, especially in areas like Talad Noi and Song Wat. Aligned with this trend, the Morgans Original hotel chain, known for its cultural and entrepreneurial spirit, was chosen for a new project in Pom Prap Sattru Phai District. The development captures the area’s multicultural character and appeals to travelers through post-structuralism aspect in architecture that honors its traces, and historic urban fabric.

The Morgans Original Bangkok is conceived as a lifestyle oriented city hotel that reflects both business and cultural significance within Bangkok’s historic Rattanakosin area. Positioned across from Hua Lamphong Train Station, at the intersection of the old town and the emerging city, the project responds to the decline of traditional districts caused by urban expansion and the parallel rise of the creative class that has revitalized neighborhoods such as Talad Noi and SongWat through cultural and entrepreneurial energy.

Located in Pom Prap Sattru Phai, an area rich in historical and artistic heritage and now a hub for the creative economy, the site benefits from extensive connectivity, including MRT within 500 meters, boats, buses, trains, and proximity to vibrant districts like Yaowarat. In alignment with these dynamics.

The project partners with Morgans Originals, a lifestyle brand under Ennismore, known for its entrepreneurial, culturally rooted, and creative ethos. This makes the development resonate with the global trend in which over 60% of tourism is driven by authentic experiences with local people, culture, and communities.

Process

Design based on feasibility with maximum height of 37 m. from regulation

Connect to the city and open the court to the sky. Retails, recreation, and dining area scatter around

Recreation Courtyard, Ground Floor
Approach from Maitri Chit road

Hotel Type

Std. (42 keys)

Deluxe (63 keys)

Deluxe Supreme (44 keys)

Suites (41 keys)

Public

Recreation Food & Beverages

Circulation

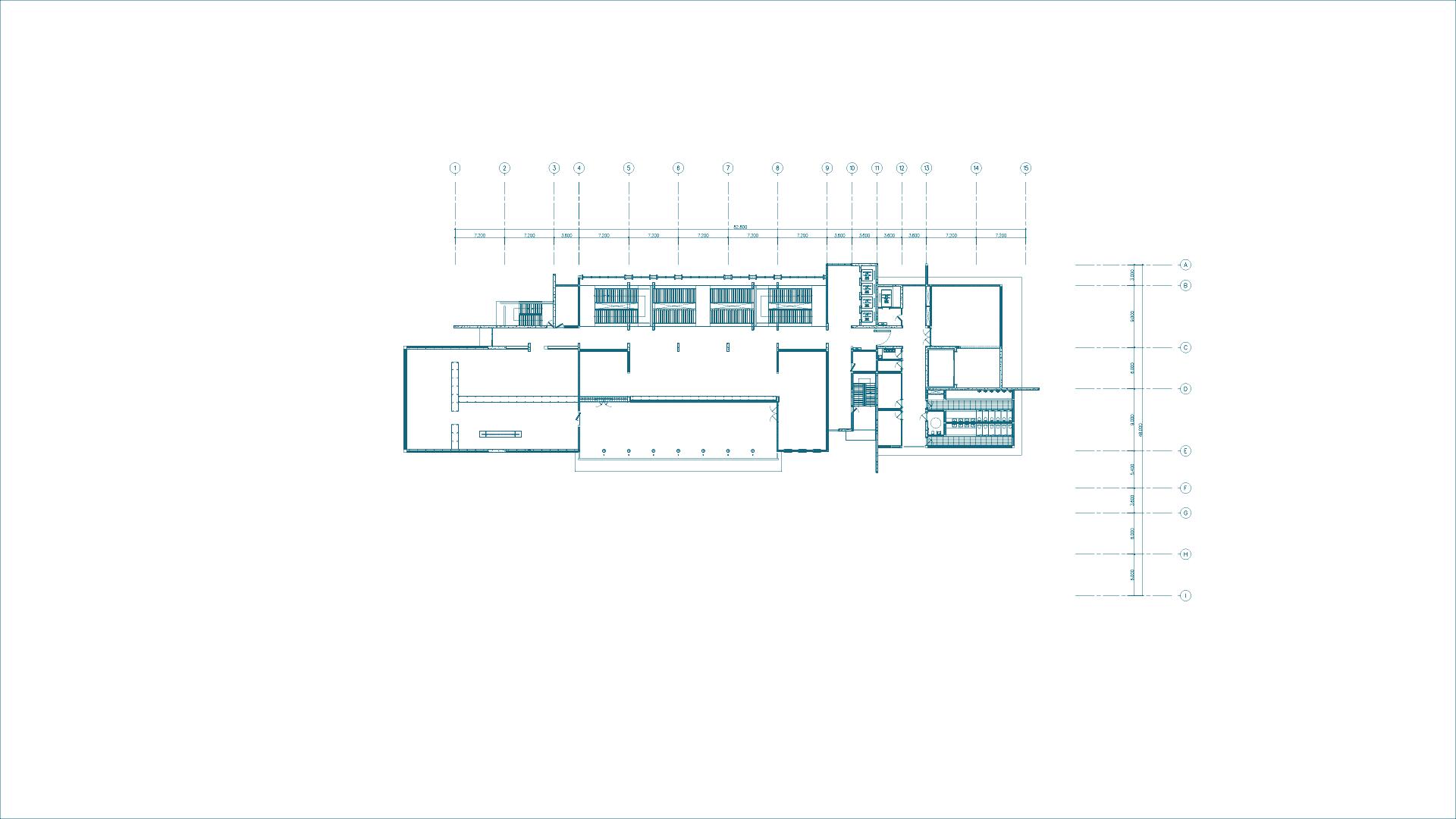
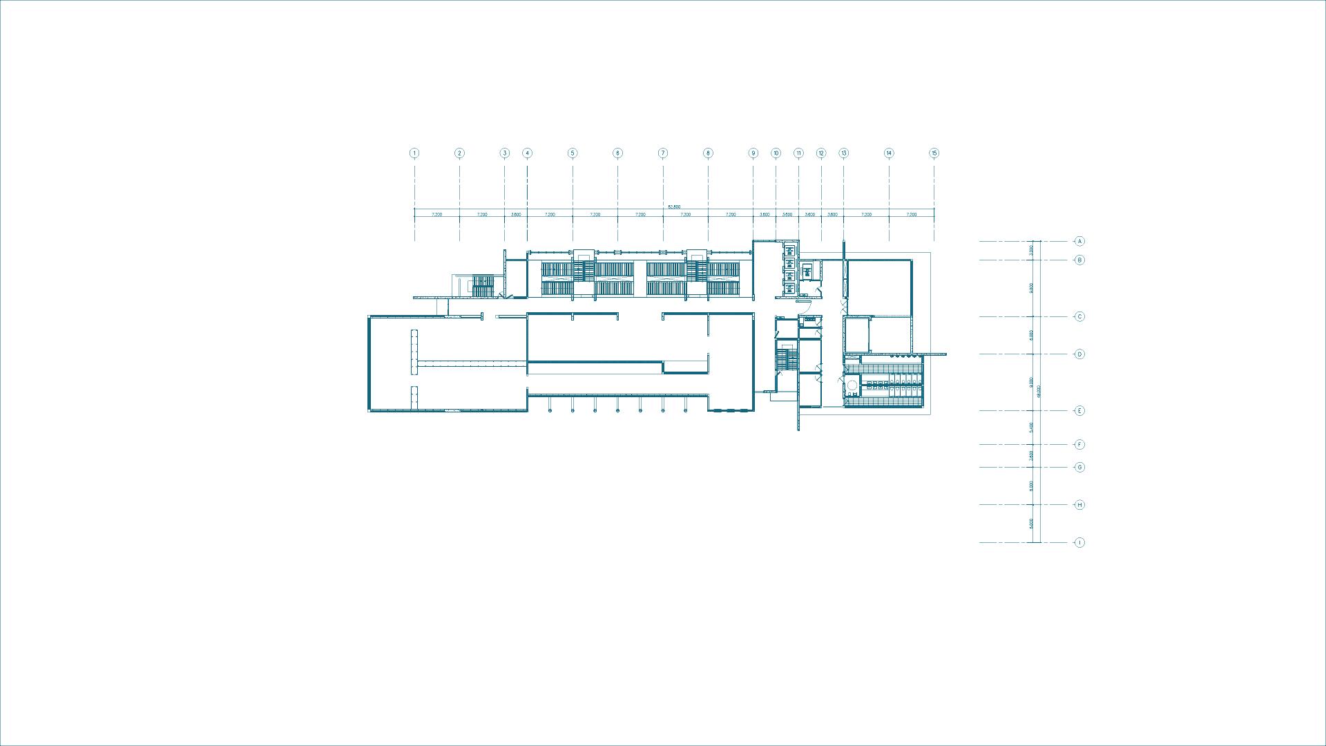
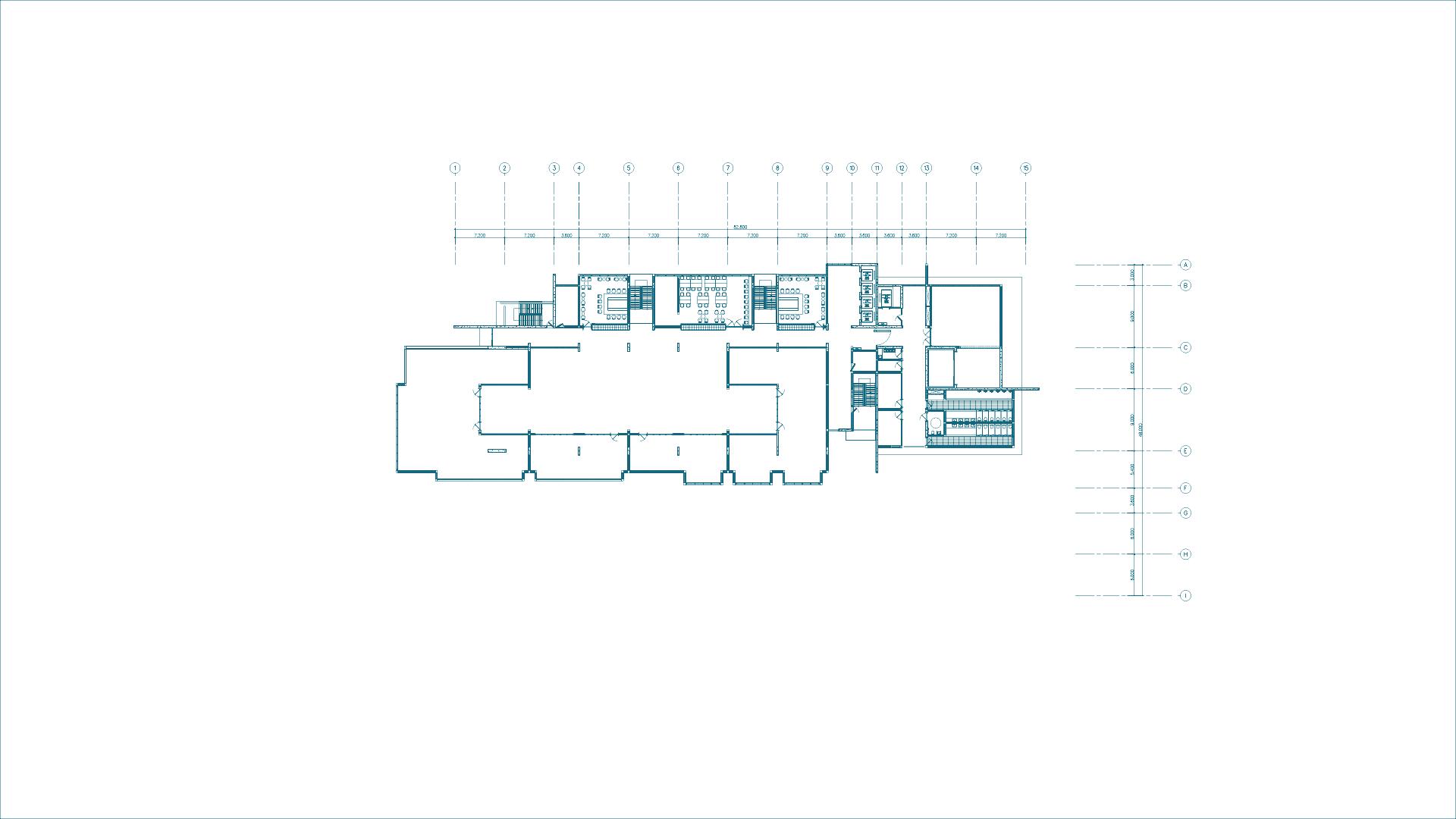
The project integrates a Commercial & Retail zone along Maitri Chit Road to connect with the surrounding neighborhood, while the second floor is dedicated to recreation with a swimming pool, fitness, co-working, and multi-purpose space

Dining is positioned as a key feature with three venues. All Day Dining, Café & Bar, and a Rooftop Bar overlooking Khlong Phadung Krung Kasem.

Guest rooms, located from levels 3 to 8, total of 190 keys include 42 Standard, 63 Deluxe, 44 Deluxe Supreme, and 41 corner Suite units. All goods are seamlessly connected through an efficient circulation system, ensuring both accessibility and cohesion throughout the development.

Section A-A

Elevation, Simultaneously

Maitri Chit Elevation
Empty plot Elevation
Krung Kasem Elevation
Phantha Chit Elevation Maitri Chit Elevation
Inner Courtyard Elevation
Public Access Sculptural Wall Pocket Common Area

3

The project offers four unit types: Standard, Deluxe, Deluxe Supreme, and Suite Each unit type is expressed through distinct facade variations, generating diverse living experiences that allow the interior to interact with the exterior through architecture. Inside the rooms, materials and colors are curated to express a language of juxtaposition, creating a dialogue between contrasting elements that enrich the spatial experience.

The design is also carefully adapted to the climate, with a double-skin facade on the south elevation and detailing inspired by the architectural language of the neighborhood. At the core of the concept is the idea of being modern in tradition

4

Common

Space Diagram

Between the accommodation and recreation zones, a pocket common space is introduced to encourage interaction and engagement among people. This in-between space acts as a contemporary reinterpretation of Piranesi’s modern spatial layering, while simultaneously mimicking the life and traces of the place, capturing the spirit of the neighborhood’s evolving social fabric.

Structural Plan Plan Detail Drawing

Details

Bangkok Art Center

Year : 2024

Category : Museum

Location : Khlong Toei, Bangkok, Thailand

What is a museum?

Traditionally, it was a sanctuary of knowledge reserved for the elite. For me, however, a museum is closer to Tom Marioni’s statement: “The act of drinking beer is the highest form of art.” Like beer as a social catalyst, a museum should invite everyone to engage, converse, and express themselves through art.

The site in Khlong Toei, below Benjakitti park, sits between Bangkok’s central business district and its largest informal settlement. It is a threshold of contradictions, prosperity and precarity, silence and chaos. The museum reflects this tension: at once a neutral canvas and a bold statement, a space both contemplative and urban.

The concept is to transform chaos into cosmos through modern spatial language, binary oppositions, and the phenomenology of light and shadow. The museum becomes a mediator, a place of belonging that not only contains culture but actively shapes the city and its future.

Site showing density and contradiction

contradiction

The building rises eleven levels with a roof deck, organized into three primary functions: public spaces (distributed across various floors), exhibition areas (both temporary and permanent), and circulation. Visitors are encouraged to ascend directly to the top floor via the passenger lift, before descending through the central double-helix stair. This circulation device embodies the concept of binary opposition, offering two intertwined yet distinct paths that frame the museum as both a spatial journey and an architectural statement.

2nd Floors 3rd Floors
10th Floors
9th Floors
8th Floors
7th Floors
st Floors
11th Floors
12th Floors

Worrariddh Riddhagi

Kitikong Tilokwattanathai

Jothaprasert

Ronarong Thanomtup

Pratuang Emjaroen

Udom Udomsrianan

Thawan Duchanee

The exhibition program consists of five halls: four permanent and one temporary. Each hall is conceived as a dedicated space for an individual artist, with architecture carefully tailored to amplify the character of their work. Paintings within the collection are classified by size and strategically placed to align with the spatial proportions of each hall, ensuring an optimum visual dimension. In this way, curation and architecture operate as a single gesture, creating a seamless dialogue between art, space, and perception.

Exterior of Exhibition Hall
Exhibition Hall

The architectural design in both spatial configuration and color is calibrated to complement each painting, while the tectonic design of each picture frame is developed specifically for individual works. Each frame functions as a precise architectural element, with materiality, proportions, and structural detailing carefully considered. Joints are articulated to express continuity and connection, using concealed fasteners or visible interlocking systems depending on the spatial context. Surfaces, finishes, and edge conditions are coordinated with the surrounding architecture to ensure a seamless integration of frame and space. In this way, the halls operate as spatial extensions of the paintings, where art and architecture converge into a unified tectonic expression.

Picture Frame Details

Bangkok Music Hall

Year : 2024

Category : Auditorium

Location : Lumpini, Bangkok, Thailand

At the heart of Bangkok’s green expanse, Lumpini Park becomes a stage where theatre questions its own boundaries. Once unconfined, played out in fields, gardens, and amphitheatres, it now seeks form as an urban monument, a space where memory, ritual, and encounter converge, echoing the ancient search for meaning in performance.

The design finds its inspiration in the 1920 silent film The Cabinet of Dr. Caligari, a work where narrative dissolves into a sequence of montages, and meaning lies not in words but in perception. As in architecture, beauty is never absolute, it exists only in the eye of the beholder, in the act of experiencing. The film proposes an unsettling vision of space and time: dreamlike, deconstructive, almost futuristic in its distortions, while its use of color marks temporal shifts within individual scenes.

In parallel, this design reimagines theatre as a spatial phenomenon shaped by light and shadow. Here, light does not merely illuminate, it orchestrates, fragments, and transforms. Space becomes deconstructed, unsettled, and yet, within this fragmentation, the theatre retains its status as monument: a place of celebration, of gathering, of encounter. It stands not in opposition to history, but in resonance with it, still bound to the idioms and rules of the ancient world, where performance, ritual, and architecture were inseparable.

B Floors
2nd Floors
3rd Floors
4th Floors
Isometric Section cut
Holding area circulation
Main Stairs
Second Floor Hall
Open Public space

Watthana District Office

Year : 2023

Category : Office

Location : Watthana, Bangkok, Thailand

The proposed design for the Wattana District Office, located on Sukhumvit an administrative hub and a civic landmark. By vertically stacking plaza that connects to the neighborhood and Wat That Thong temple. Interspersed urban corridor, creating a transparent, efficient, and community-oriented

Sukhumvit Road in front of Ekkamai BTS Station, reimagines the building as both stacking office functions, the ground level is opened for public use, forming a Interspersed terraces provide green communal spaces and visual links to the community-oriented institution that strengthens the area’s social fabric.

The Wattana District Office, on Sukhumvit Road opposite Ekkamai BTS, stacks four main functions, public retail and co-working, seminar spaces, an auditorium and conference rooms, and government offices, vertically to free the ground level for a plaza connecting to Wat That Thong temple. Interspersed terraces provide green, communal spaces, while transparent façades and efficient circulation create an open, civic landmark that integrates administration, culture, and community life.

1st Floors
B Floors
nd Floors
th Floors
th Floors
th Floors
th Floors
Typical Floors (13th -19th floors)
Sukhumvit
South West Entrance
North West Entrance
Section B-B
Office Lobby
North Elevation Perspective

Wellness Resort

Year : 2024

Category : Resort

Location : Nonthaburi, Thailand

A wellness resort and spa in Nonthaburi, Thailand, overlooking Designed as a retreat from the bustling chaos of Bangkok, it provides ing, where guests can reconnect with themselves amid peaceful

overlooking the serene Chaophraya River, offering a sanctuary of silence and tranquility. provides an immersive experience for relaxation, reflection, and holistic well-bepeaceful surroundings.

The design aims to create a place for activity and interaction, without precedent, rather than designing a traditional resort focused on taming nature and producing both natural and artificial landscapes. separated into three layers: nature, circulation (artificial landscape), and architecture

Hotel Type
Villa Type
Land Plot with contour
Terraforming, Vegetation, and Circulation
Buildings
Reception
Resort Entrance
Main Circulation with sculptural wall
Public space in front of hotel building
All Day Dining area
Villa Types

Turn static files into dynamic content formats.

Create a flipbook
Issuu converts static files into: digital portfolios, online yearbooks, online catalogs, digital photo albums and more. Sign up and create your flipbook.