Interior Design_Capstone Project 2023

Page 1

ZENGAGEMENT

TABLE OF CONTENT « Problem Statement...................................................................................................................... « Questions.................................................................................................................................... « Supporting Research................................................................................................................. « Project Statement....................................................................................................................... « Design Principles....................................................................................................................... « Case Studies................................................................................................................................ « Site & Building Analysis........................................................................................................... « Spatial Program/Adjacencies................................................................................................... « User Profile(s) & Journey Maps.............................................................................................. « Architectural Representation................................................................................................... « Materials & Furniture............................................................................................................... « Technical Component-Furniture Schedule and Specs......................................................... « Relevant Codes, Standards, or Frameworks.......................................................................... « Bibliography................................................................................................................................ » 01 » 02 » 03 » 07 » 08 » 09 » 13 » 19 » 21 » 25 » 37 » 40 » 48 » 50

problem statement

Most college students today face many challenges in staying motivated and inspired while studying for several hours. One of the critical issues is that there was a serious shortage of dedicated spaces and facilities for various needs such as individual spaces, collaborative spaces, and computer spaces that are available 24/7 to students. Even though there are public libraries where students can study, there are also rules and restrictions along with limited open hours that make it impossible for users to stay overnight to get work done.

Although students tend to choose a quiet library to accomplish their individual tasks, it is common that they still enjoy visiting coffee shops for long lengths of time because they enjoy the company of others as well as being around others and taking in the atmosphere seems to inspire them to work effectively. Today, more and more students prefer studying in the library cafe due to the fact that it is not only a place for socialization but also a place for them to learn more freely and creatively in a less intensive environment.

However, the effects of studying for long hours have a detrimental impact on the mental health of students, which is why it is not suggested to skip meals and sleep when studying for long periods of time. As school becomes more difficult, college students often neglect their well-being and the school-life balance. Therefore, practicing mindfulness with more calm and composure plays a key role in managing stress that will boost effectiveness in the long term and better concentration in the short run, which will foster productivity when studying and working for extended hours. In Los Angeles, the city with the most educational institutions, not all college students can find a place that is specifically designed to meet their needs and enable them to achieve their objectives while caring for their mental health.

Additionally, the COVID-19 pandemic has also had a remarkable impact on college students in terms of academic performance, social interaction, and effective communication. Technology is one of the important contributing factors to how people overcame this period. Although coffee shops are places students choose to be productive and socialize the most, its setting is not ideal when it comes to supporting technology needs. Today, there are various work types that require technology in order to be efficient in communication, working in groups, and researching.

1

questions

How can we create a dynamic and inclusive environment for college students to study efficiently?

How can the programs within the space allow for user adaptability based on various needs: study, socialize, and unwind?

How can we integrate ideas of workplace and coffee shop into a hospitality-infused and amenity-rich spaces where productivity, creativity, and connection are priorities?

How can we use design to evoke user consciousness for a more sustainable environment?

2

supporting research

3

‘third place’

Third places are known as a place where people spend time between home and work or study. They provide a place to connect wih the people in communities as well as a place to exchange ideas and news. There are diverse people coming to coffee shops for social interactions and to get a sense of productivity. Researchs show that students prefer studying in an informal learning environment like coffee shop thanks to its relaxed atmosphere and the ability to drink coffee, people-watch, take a break, have a conversation, listen to music, and avoid what they perceived as a sterile libriary atmosphere. Some people state that home is embedded in various distractions, while the office environment provides no privacy, and the library atmosphere is too intense.

According to Beattie, top students are more likely to study between 15 and 30 hours per week in order to achieve their academic goals. Just as college students primarily devote their time throughout the day to study, professionals work in their offices 8 or more hours per day. In an open environment like a coffee shop, people prefer to have a variety of seating options. As stated by the theory of ‘prospect and refuge’, people tend to find their preferred seats where they feel comfortable, secure, and productive, which can be a hidden corner, with low ceilings, few access points, and obstructed views. An environment with the capacity to observe without being seen provides a sense of safety and privacy.

Although people were content to sit alone, in coffee shop settings, despite the lack of verbal interaction, felt that they had a social outing which makes them feel energised and motivated. Having the food and drink amenities added to the learning and working environment facilitates individuals for being productive and recharging for energy.

• provide variety of seatings

• neutral color scheme

• transparency

• flexible circulation

4

As we all know, technology has always been a fundamental source that aids learning development. During and after Covid-19, there have been some changes that firms and educational institutions made to adapt to new circumstances when communication and social interaction shifted drastically. Some of the changes that businesses were forced to make during the COVID-19 pandemic were temporary, while others will be permanent, which challenges designers to think critically regarding technology needs in a hybrid collaborative environment. Research shows that the difference between synchronous or asynchronous interaction for distributed groups and collocated groups is varied. Groups whose members occupy different physical locations tend to use personal technology such as laptops and headphones in a dedicated space where they can communicate without interrupting surrounding people. Collocated groups use technology to moderate interactions through online catalogs and databases in order to access and share information with each other. Their desired space request multiple workstations with dual monitors displaying the same image to all viewers. When it comes to technology, designers can think of integrating ideas from innovative design at the workplace, learning common space in the library, and relaxed atmosphere in the coffee shop into an open collaborative space for everyone’s needs.

• multiple workstations with dual monitors

• space allows open discussion

• reserve & ‘claim space’

• acoustic consideration

• huddle room

5
technology

well-being

Well-being plays an important role in everyone’s daily lives as it impacts personal development. In educational settings, students tend to study under pressure with various courses while having financial burdens. In workplace environment, people work in a crowded environment and have to interact socially constantly, which leads to an increased need for private space and physical activity after hours of sitting in front of a computer.

A good design consideration that encourages a healthy lifestyle, provides comfort, and connects people with nature will help users find the balance between work-study and life and achieve their set goals.

• using curtains, architectural elements, movable partitions ro delineate spaces

• provides fitness room, meditation room, rest and nap room

• indoor slide encourages body movement and fun activity

• biophilic design - using indoor plants

• optimize natural light

• implement proper artifical lighting fixture

6

project statement

The design intention is to develop a focus/collab/socialize model that provides college students with all they need to feel motivated and inspired to study efficiently for 24 hours. The idea is to create a dynamic and inclusive environment with multiple programs such as focus rooms, individual workspaces, reader’s room, recording studio, and collaborative studio. Although it could be challenging to remain working for extended hours, we as designers can address this by providing incredible supplemental amenities such as a lounge area, nap room, yoga/meditation room, and kitchenette. The aim is to raise awareness among the young generation regarding their mental health and balance in academic environments. This space will immerse the user into an environment with the balance of having a personal workstation but an atmosphere of collaboration and studying together. Additionally, it is important that users have an ultimate experience with innovative designs and advanced technology that will promote their productivity, creativity, and a sense of community with considerable interior elements such as natural light, acoustical and sustainable material, as well as reconfigured furniture to fit their needs.

7

Hospitality-infused

design principles

< hospitality-infused environment

< well-being

< sustainability

< dynamic

< innovation

« Primary Incorporate biophilic design

« Secondary Promote physical activity

« Primary Use recycled materials

« Secondary Use Eco-friendly furniture

« Primary Integrate cafe into learning space

« Secondary Provide domestic ambience

« Primary Provide variety of programs

« Secondary Promote freedom of movement

« Primary Incorporate inclusive design

« Secondary Incorporate immersive design

8
Environment Sustainability
Dynamic Innovation
Well-being

case studies

9

Victorian Academy of Teaching and Leaadership

Educational Institution | Australia | DesignInc | 29,000 sq ft

« Variety of Programs

« Transparency

« Flexibility

« Biophilic Design

Indoor Plants High Ceiling

Ceiling

Key Legend Focus

Supportive Learning Tools

Flexibility/Collaboration

Flexibility/Collaboration

10
Collaborate Unwind Low
Curtain
Flexible Partitions Materiality Natural Light
Dim Lighting Comfort Transparency Open Space Focus Unwind + + + + + + + + = = = =

3 mystical objects

« Volume

« Innovation

« Human Interaction

« Sense of Community

Within an open floor plan, the three mystical objects provide an environment that promotes creativity and free movement. The three mystical objects’ composition stimulates flexibility that allows users to interact with each other and to use the space effectively in different ways.

11
Beast Office | The Netherlands | Studioninedots | 8,072 sq ft
Wet
+ Spontaneity
Experimentation + Interaction
=
12 Adiuvat Coffee Roaster Quinhon Coffee Shop | Vietnam | A+H Architect | 1,184 sq ft « Homogeneous Materiality « Volume « Domestic Ambience « Transparency Bright Socialize Dark Focus Low Low High

site and building analysis

13

site analysis

The building is a new ground-up development in an up-and-coming neighborhood of West Adams District. Additionally, with surrounded by other districts such as Mid City and Culver City where young professionals and college students live the most, so the building is an ideal destination for a productivity hub. It also offers the most convenient commute for college students and young professionals to the proposed site because of its equivalent distance from UCLA and USC as well as the nearby businesses.

5788 West Adams Boulevard, Los Angeles, CA

14

proximity between UCLA and USC

15
6.1 miles
minutes - 5.7 miles
5.3 miles
minutes - bus/tram + walk
minutes - 6.5 miles
- tram + bus + walk
18 minutes -
15
29 minutes -
29
36
46 minutes

West Adam District is known for an easy accessibility due to the walkable score of 81, transit score of 62, and bike score of 77. Public transit in West Adams is provided by Metro - Los Angeles with tram and LADOT with bus system. With the numerous number oftram stops and bus stops in close proximity to the building, users can easily access the amenities in the neighborhood. From the site to nearby neighborhood, it only takes 10 minutes to walk from and to Metro’s Expo Line La Cienega/Jefferson Station. This is also the fastest and the most convenient option for commuting between UCLA and USC.

16 site tram station bus station tram route bus route site car bike
site circulation

building circulation

The proposed site location is on the edge of West Adams neighborhood in Los Angeles, CA, adjacent to Culver City which is one of the best neighborhoods for young professionals. The building is placed on the corner of W Adam Blvd and S Genesee Ave, halfway between UCLA and USC. The building can be accessed by various ways. In addition to the parking entrance from the South of the building, users can access the building from the front entrance on W Adam Blvd or from the east outdoor patio of the building.

keys:

building access point

parking access point

Site Building

17 W Adam Blvd S Genesee Ave S Genesee Ave S Spau lding Ave S Spau lding Ave
Fairfax Ave
S

• interior staircase = primary circulation (standard)

• elevator = primary circulation (ADA)

• exterior staircases = secondary and tertiary circulation

• open interior environment

• exterior primarily on level 2 and 4

• various entries from interior to exterior

existing structure

• interior columns + interior baring walls

• exterior curtain walls

grid

• align with interior columns

• mimic the exterior building boundary

18
circulation
interior & exterior U N N DN D N D UP D U D P D P N DN N N N D N D N UP D N N U DN N D UP D U D P D P N DN N N N D N D N UP D U N N DN D N D UP D U D P D P N DN N N N D N D N UP D N N U DN N D UP D U D P D P N DN N N N D N D N UP D

program adjacency spatial program

The bubble diagram depicts what programs will exist in the space, their estimated corresponding sizes, and how I start considering the adjacencies based on function.There are three types of adjacencies that need to be considered, including:

COFFEE SHOP

• Area: 4,000 sf

• Function: make, serve coffee, tea; prep, make, serve food; socialize

• Amenities: food prep zone, storage area, barista workstation, order station, pick-up station, food display area, common area

• Primary Adjacency

• Secondary Adjacency

• Undesired Adjacency

According to the function being sought, these links correspond to how a person will transition through the space most efficiently. Four types of spaces are also called out in this diagram, including:

• Coffee Shop

• Study/Work Space

• Relaxation Zone

UNWIND ZONE

• Area: 3,500 sf

• Function: entertain, relax, nap, exercise, eat snack

• Amenities: quiet/tech-free zone, rest/nap room, meditation room, fitness studio, kitchenette, coffee self station

• Others

STUDY SPACE

• Area: 12,000 sf

• Function: study, work

• Amenities: individual workspace, conference room, recording room, presentation space, readers’ room, focus room, communal space

OTHERS

• Area: 1,500 sf

• Function: varied purposes

• Amenities: restrooms, lockers, lobby, check-in/ out area

19
Collaborative space Collaborative space Individual workstation Individual workstation Focus room Outdoor space Outdoor space Reader’s room Recording room Presentation room Bar Storage Common area Food Prep Zone (Kichen) Kitchenette Rest/Nap space Fitness studio Meditation space Check-in/ Check-out Restrooms Restrooms Restrooms Restrooms Lockers + Showers Primary Adjacency Secondary Adjacency Undesired Adjacency Coffee Shop Study Space Others Unwind Zone

UNWIND

Kitchenette Rest/Nap space Fitness studio

• 1, 000 sq ft

• Physical activities for users

• Fitness machine

• Mirrors

• 500 sq ft

• Quiet space

• Comfortable furniture

• Prioritize privacy

• 350 sq ft

• Coffee maker

• Microwave, mini-fridge

• Kichenware

• Dish washer

• Small dining table

Meditation space

• 750 sq ft

• Natural light

• Comfortable seating

FOCUS Individual workstation Focus room Reader’s room Phone booth

• 3,000 sq ft

• Comfortable furniture

• Variety of seatings

• Computer station

• Desk + chair

• Adjustable light

COLLAB

• 2,000 sq ft

• Quiet zone

• Wall dividers

• Acoustical ceiling and walls

• 750 sq ft

• Comfortable seatings

• Bookshelf

• Tech-free zone

Open workstation Discussion/ Technology room Huddle room

• 4,000 sq ft

• Moveable furniture

• White board/surfaces

• Open space

• Adjustable light

SOCIAL

• 1,000 sq ft

• Accessible

• Outdoor furniture

• 300 sq ft

• Projector

• Communal/Conference table

• 100 sq ft

• Personal booths

• Acoustical ceiling and walls

Bar Common area Green space Lounge area

• 3,000 sq ft

• Open space

• For people not staying long

• Natural light

• 1,500 sq ft

• Greenhouse

• Zen garden

• Natural light

• Comfortable seating

• 200 sq ft

• Open space

• Prioritize comfort

• 100 sq ft

• Order and pick-up zone

20

user profile(s) & journey maps

21

user profiles

user group: undergraduate student user group: graduate student

description:

age: 17-26

age: 24-29

user group: student intern

age: 21-27

Students who live on/off campus and usually commute by bike or public transportation. As easygoing individuals who love meeting new people, they prefer going to places where they can socialize and create a connection with people.

needs:

a facility that has a variety of amenities to reduce time-consuming commuting

description:

A young adult, who studies in grad school, has a busy life yet is passionate about their future career. They usually devote their time to studying and going to the gym to maintain their health and well-being.

description:

A person who is about to graduate loves traveling and experiencing new places. They come to LA to intern during the summer. As their working hours are flexible, they prefer to go to a coffee shop to relax and work as desired.

needs: a facility that offers programs for physical activities that support user’s wellbeing

needs: a facility that is open 24/7 so they can study anytime and stay for extended hours.

22

ritual journey map

23

Within this dynamic and inclusive environment, users enable to choose their own adventure. Though the programs are diverse and vary, the user’s journeys will end up intersecting with one another, which encourages collaboration, promotes individual productivity, and nurtures a strong community. Aiming to promote physical movement, support mental health and well-being, and foster inclusion, this project guarantees that there is never only one experience. As several paths emerge, a welcoming and supportive community is established.

24
Meditate
Shower Fitness Hanging out Eating Drinking Socialize
pragmatic journey map
Nap/Sleep
Group study Individual study
25
architectural representation

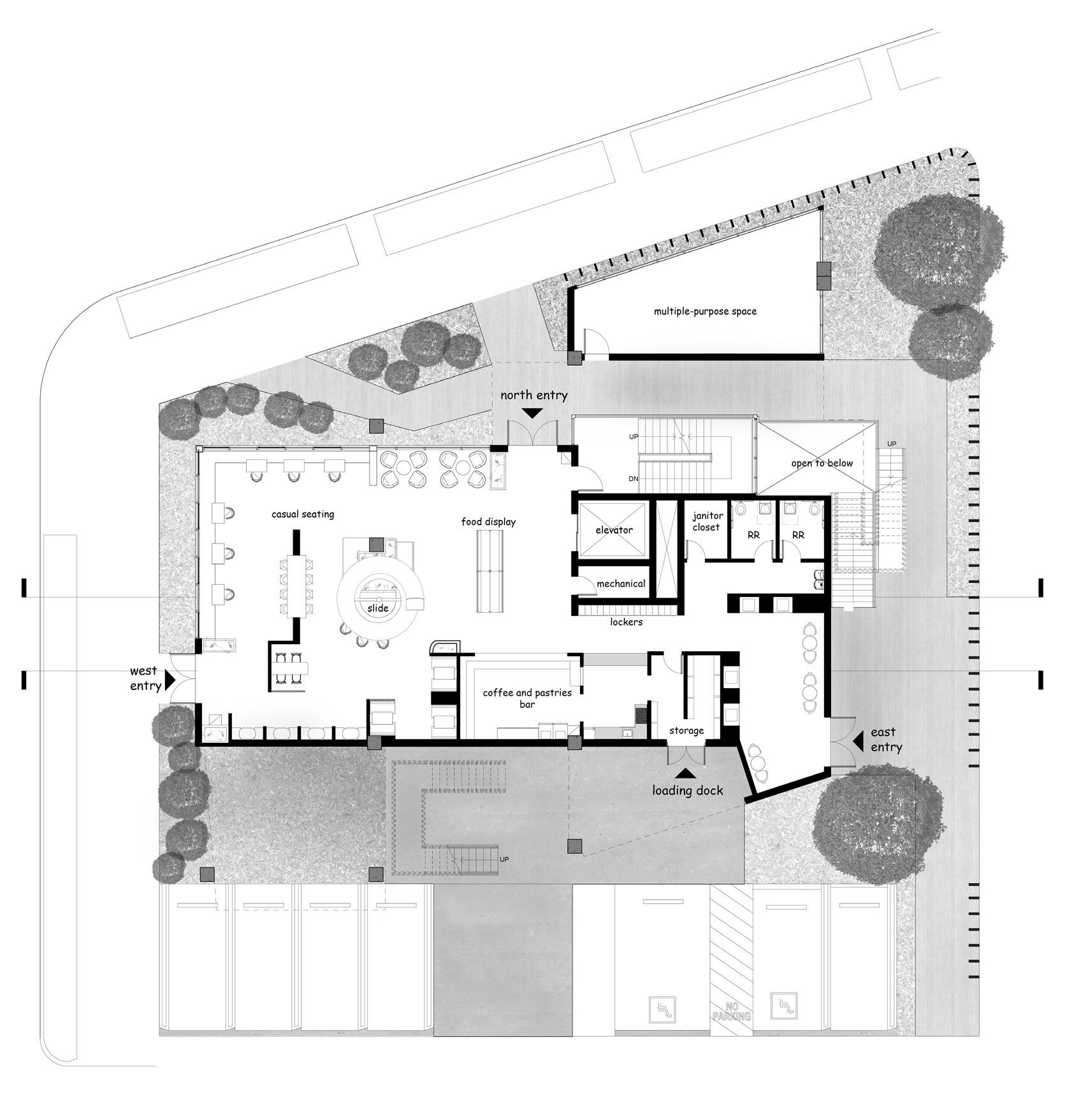
Level 1

Not to scale

26 B B A A

Level 2

Not to scale

27
B B A A

Level 3

Not to scale

28
B
A
B
A

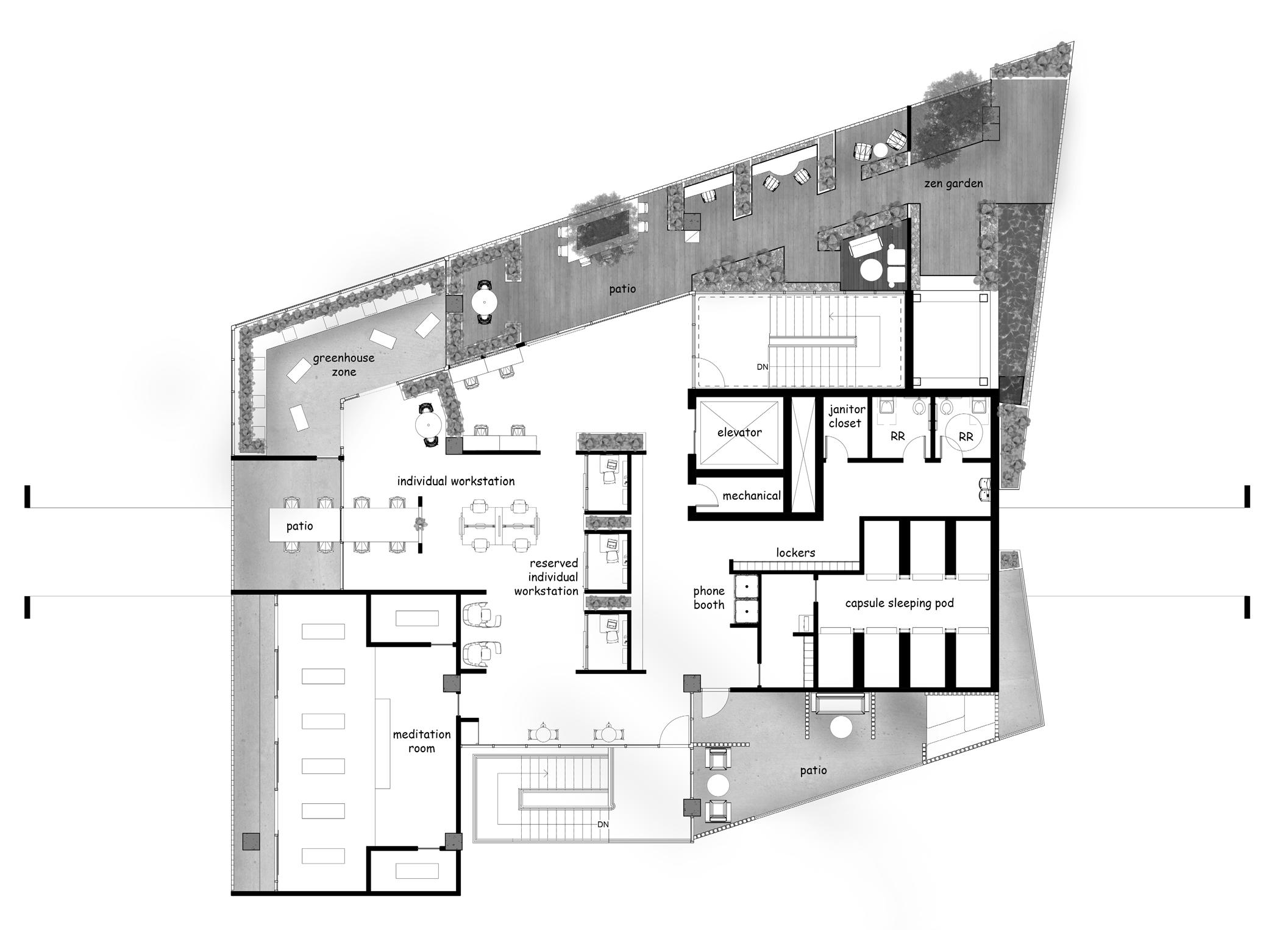
Level 4 Not to scale

29 B B A A

Not to scale Section A

Not to scale Section B

Decorative Ceiling

Reflected Ceiling Plan_Level 3

Scale: 1/8” = 1’-0”

Not to scale RCP Level 3

Gypsum Board Ceiling

Acoustic Ceiling

Soffit

32
33
1 -
Level
View to casual seating and coffee bar
34
Level 2 - View to Collaborative Space and Yoga Studio
35 Level 3 - View to Kitchen, Dining
and
Space,
Open Collaborative Space

Level 4 - View to (Reserved) Individual Workstation and Greenhouse Zone

36

Materials & Furniture

37

camargue concrete

material board

wood: paneling & flooring

river rock and plaster textured wall stone wall

textured glass panel

stone flooring

edelweiss, marguerites, colorful flower petals and fragrant alpine hay (textured and scented) self-adhesive wall

black concrete flooring

terrazzo tile

concrete block

delicate skeletonized rubber tree leaves self-adhesive wall

Fragrant Alpine hay with colourful petals and marguerites (textured & scented) wallpaper

38

furniture selection

39

technical component - furniture schedule and specs

40
41 Zengagement Bid Summary Sheet Furniture Package ITEM NO. MANUFACTURER AND MODEL SPEC FINISH FABRIC QTY.UNIT X UNIT PRICE = EXTENDED PRICE CH-01 Davis Furniture Kayo Chair Series KO-20-CB-WW-PC-SBL-(COM) PC-01 Matte White-WAL-20 Clear Walnut COM: Maharam Levity 466518-005 Strobe 9 EACH X $1,288.00 = $11,592.00 CH-02 Davis Furniture Muse Barstool Series MU-250-WW-MU-UPHS-1-(COM) WAL-20 Clear Walnut COM: Maharam Milestone 403901-022 Pewter 8 EACH X $1,432.20 = $11,457.60 TB-01 Davis Furniture Q6 Lounge Series Q6-350-WW Metal Finish: 01 Matte White; Top: WAL 20 Clear Walnut N/A 6 EACH X $1,320.20 = $7,921.20 TB-02 Davis Furniture Tosca Table Series TO-2000-WW Base: TO-Light Grey; Top: WAL 22 Classic Walnut N/A 2 EACH X $870.80 = $1,741.60 CH-03 Hightower Flote Lounge Chair with Welt HTFTLC200 Base: Black Camira Quest Barnacle QUE03 8 EACH X $2,706.00 = $21,648.00 CH-04 Bernhardt Design Matinee matinee 1201 M75 Smoke Bernhardt Texttiles Array 3521-000 String 3 EACH X $718.80 = $2,156.40 CH-05 Blu Dot SideBySide Chair SD1-DNCHWL-PD Walnut Maharam Meld 466387-002 Panda 8 EACH X $262.50 = $2,100.00 TB-03 Boss Design Agent Tables AGE/DT/1800/600/OAK/HPL Underframe:OAK; Top: HPL Designer White N/A 2 EACH X $3,179.40 = $6,358.80 CH-06 Andreu World Oru Chair BQ2274 BQ2274 Base: Ash 306; Glide: Plastic (PE) Standard TS0410 Camira Blazer CUZ1K Camphill 7 EACH X $1,337.00 = $9,359.00 CH-07 Blu Dot Offline Outdoor Chair OF1-DINCHR-WH Frame: White; Back and Seat: Teak Wood N/A 5 EACH X $332.50 = $1,662.50 CH-08 Blu Dot Offline Outdoor Lounge Chair OF1-LNGCHR-WH Frame: White; Back and Seat: Teak Wood N/A 2 EACH X $626.50 = $1,253.00 TB-04 Blu Dot Circula Low Side Table CI1-LOWDIS-PT Putty N/A 1 EACH X $486.50 = $486.50 CH-09 Blu Dot Ridge Outdoor Lounge Chair RI1-LNGCHR-IY Frame: Teak Wood Sunbrella Ivy 2 EACH X $1,746.50 = $3,493.00 SF-01 Blu Dot Ridge Outdoor Sofa RI1-92SOFA-IY Frame: Teak Wood Sunbrella Ivy 1 EACH X $2,796.50 = $2,796.50 TB-05 Blu Dot Circula Small Coffee Table CI1-SMCOFF-PT Putty N/A 1 EACH X $626.50 = $626.50 CH-10 Grand Rapids Chair Opla Opla Barstool 840BS Metal Finish: Grey White N/A 7 EACH X $492.10 = $3,444.70 N/A DELIVERY, INSTALLATION, & FREIGHT 1 EACH X N/A = TAX GRAND TOTAL FOR THIS PACKAGE = $88,097.30 May 13, 2023
42 CH-01 CH-01 CH-01 CH-03 CH-03 CH-03 CH-01 CH-01 CH-01 CH-01 CH-01 TB-01 TB-01 TB-02 TB-02 TB-01 TB-01 TB-01 TB-01 CH-02 CH-02 CH-02 CH-02 CH-01 LEVEL 1

CH-01

TB-01

CH-03

CH-01

Davis Furniture

Kayo Chair Series

Finish: Matte White, Clear Walnut; Fabric: 466518-005 Strobe

QTY: 9

19 1/2”W x 21 3/4”D x 29 3/4”H (17 3/4”SH)

CH-02

Davis Furniture

Muso Barstool Series

Finish: Clear Walnut; Fabric: 403901-022 Pewter

QTY: 8

19”W x 18 1/2”D x 34 1/4”H (29 1/2”SH)

TB-01

Davis Furniture

Q6 Table Series

Finish: Matte White; Top: Clear Walnut

QTY:6

36”W x 24”D x 29”H

TB-02

Davis Furniture

Tosca Table Series

Base: Light Grey; Top: Classic Walnut

QTY: 2

26 1/2”W x 23 5/8”D x 15 1/4”H

CH-03

Hightower

Flote Lounge Chair with Welt

Base: Black; Fabric: 466387-002 Panda

QTY: 8

32 3/4”W x 31 1/2”D x 31”H

43
CH-02
[ZENGAGEMENT] FURNITURE INDEX [05/14/2023]
FURNITURE
TB-02
44 CH-05 TB-03 TB-03 CH-04 CH-06 CH-06 CH-06 CH-05 CH-05 CH-05 LEVEL 3

CH-04

Bernhardt Desgin Matinee

FURNITURE

CH-04

CH-05

CH-06

Base: Black; Upholstery: Barnacle QUE03

QTY: 3

CH-05

21 3/4”W x 21 3/4”D x 31 1/2”H (18 1/4”SH) Blu Dot

SideBySide Chair

Finish: Walnut; Upholstery: 466387-002 Panda

QTY: 8

19”W x 20”D x 31”H (18”SH)

TB-03

Boss Design

Agent 4 Leg Dining Table

Underframe: Oak; Top: HPL Designer White

QTY:2

71”L x 23 1/4”W x 29 1/4”H

CH-06

Andreu World Oru Chair

Base: Ash 306; Top: Classic Walnut

Upholstery: CUZ1K Camphill

QTY: 7

21 3/4”W x 21 3/4”D x 38”H (30”SH)

45
[ZENGAGEMENT]
INDEX [05/14/2023]
FURNITURE
TB-03
46 CH-07 CH-08 TB-04 TB-05 CH-09 SF-01 CH-08 CH-07 CH-10 CH-10 CH-10 CH-07 CH-07 LEVEL 4

CH-08

CH-07

Blu Dot

Offline Outdoor Dining Chair

Frame: White; Back and Seat: Teak Wood

QTY: 5

23”W x 22”D x 30”H (18”SH)

CH-08

Blu Dot

Offline Outdoor Lounge Chair

Frame: White; Back and Seat: Teak Wood

QTY: 2

29”W x 28”D x 28”H (15”SH)

TB-04

Blu Dot

Circula Low Side Table

Finish: Putyy

QTY:1

24”DI x 16”H

CH-09

Blu Dot

Ridge Outdoor Lounge Chair

Frame: Teak Wood; Upholstery: Sunbrella Ivy

QTY: 2

41”W x36”D x 31”H (17”SH)

SF-01

Blu Dot Ridge Outdoor Sofa

Frame: Teak Wood; Upholstery: Sunbrella Ivy

QTY: 1

92”W x36”D x 31”H (17”SH)

CH-10

Grand Rapids Chair

Opla Outdoor Stool

Frame: Grey White

QTY: 7 20 1/2”W x 22 1/2”D x 45”H (30”SH)

TB-05

Blu Dot

Circula Small Coffee Table

Finish: Putyy

QTY:1

36”DI x 15”H

47
FURNITURE
TB-04 TB-05 SF-01 CH-07 [ZENGAGEMENT]
FURNITURE INDEX [05/14/2023]
CH-09 CH-10

Building Class: A, B, C

Number of stories: 4

relevant codes & standards

48
49 AIR 0 POINTS MOVEMENT 0 POINTS MIND 0 POINTS Y?N Weight ID Part Name Y?N Weight ID Part Name Y?N Weight ID Part Name Y Required A01.1 Meet Thresholds for Particulate Matter Y Required V01.1 Design Active Buildings and Communities 0 Y Required M01.1 Promote Mental Health and Well-being Y Required A01.2 Meet Thresholds for Organic Gases Y Required V02.1 Support Visual Ergonomics 0 Y Required M02.1 Provide Connection to Nature Y Required A01.3 Meet Thresholds for Inorganic Gases Y Required V02.2 Provide Height-Adjustable Work Surfaces 0 Y Required M02.2 Provide Connection to Place Y Required A01.4 Meet Thresholds for Radon Y Required V02.3 Provide Chair Adjustability 0 1 point M03.1 Offer Mental Health Screening Y Required A01.5 Measure Air Parameters Y Required V02.4 Provide Support at Standing Workstations 0 1 point M03.2 Offer Mental Health Services Y Required A02.1 Prohibit Indoor Smoking Y Required V02.5 Provide Workstation Orientation 0 1 point M03.3 Offer Employee Mental Health Support Y Required A02.2 Prohibit Outdoor Smoking 1 point V03.1 Design Aesthetic Staircases 0 1 point M03.4 β Support Mental Health Recovery Y Required A03.1 Ensure Adequate Ventilation 1 point V03.2 Integrate Point-of-Decision Signage 0 1 point M04.1 Offer Mental Health Education Y Required A04.1 Mitigate Construction Pollution 1 point V03.3 Promote Visible Stairs 0 1 point M04.2 Offer Mental Health Education for Managers points A05.1 Meet Enhanced Thresholds for Particulate Matter 2 points V04.1 Provide Cycling Infrastructure 0 2 points M05.1 Develop Stress Management Plan 1 point A05.2 Meet Enhanced Thresholds for Organic Gases 1 point V04.2 Provide Showers, Lockers and Changing Facilities 0 1 point M06.1 Support Healthy Working Hours 1 point A05.3 Meet Enhanced Thresholds for Inorganic Gases 2 points V05.1 Select Sites with Pedestrian-friendly Streets 0 1 point M06.2 Provide Nap Policy and Space points A06.1 Increase Outdoor Air Supply 2 points V05.2 Select Sites with Access to Mass Transit 0 1 point M07.1 Provide Restorative Space 1 point A06.2 Improve Ventilation Effectiveness 2 points V06.1 Offer Physical Activity Opportunities 1 1 point M08.1 Provide Restorative Programming 1 point A07.1 Provide Operable Windows 2 points V07.1 Provide Active Workstations 1 1 point M09.1 Provide Nature Access Indoors 1 point A07.2 Manage Window Use 1 point V08.1 Provide Indoor Activity Spaces 0 1 point M09.2 Provide Nature Access Outdoors 1 point A08.1 Install Indoor Air Monitors 1 point V08.2 Provide Outdoor Physical Activity Space 0 2 points M10.1 Provide Tobacco Cessation Resources 1 point A08.2 Promote Air Quality Awareness 1 point V09.1 Offer Physical Activity Incentives 0 1 point M10.2 Limit Tobacco Availability 1 point A09.1 Design Healthy Entryways 1 point V10.1 Provide Self-Monitoring Tools 0 1 point M11.1 Offer Substance Use Education 1 point A09.2 Perform Envelope Commissioning 1 point V11ß.1 Implement an Ergonomics Program 0 1 point M11.2 Provide Substance Use and Addiction Services 1 point A10.1 Manage Combustion 1 point V11ß.2 Commit to Ergonomic Improvements 0 1 point A11.1 Manage Pollution and Exhaust 1 point V11ß.3 Support Remote Work Ergonomics 0 COMMUNITY 0 POINTS 1 point A12.1 Implement Particle Filtration Y?N Weight ID Part Name 1 point A13.1 Improve Supply Air THERMAL COMFORT 0 POINTS Y Required C01.1 Provide WELL Feature Guide 1 point A14.1 Implement Ultraviolet Treatment for HVAC Surfaces Y?N Weight ID Part Name Y Required C02.1 Facilitate Stakeholder Charrette Y Required T01.1 Provide Acceptable Thermal Environment 0 Y Required C02.2 Promote Health-Oriented Mission Y Required T01.2 Measure Thermal Parameters 0 Y Required C03.1 Develop Emergency Preparedness Plan WATER 0 POINTS 3 points T02.1 Survey for Thermal Comfort 2 Y Required C04.1 Select Project Survey Y?N Weight ID Part Name 2 points T03.1 Provide Thermostat Control 1 Y Required C04.2 Administer Annual Survey and Report Results Y Required W01.1 Verify Water Quality Indicators 1 point T04.1 Provide Personal Cooling Options 0 1 point C05.1 Utilize Enhanced Survey Y Required W02.1 Meet Chemical Thresholds 1 point T04.2 Provide Personal Heating Options 0 1 point C05.2 Utilize Pre- and Post-Occupancy Survey Y Required W02.2 Meet Thresholds for Organics and Pesticides 1 point T04.3 Allow Flexible Dress Code 0 1 point C05.3 Implement Action Plan Y Required W03.1 Monitor Chemical and Biological Water Quality 1 point T05.1 Implement Radiant Heating 0 1 point C05.4 Facilitate Interviews, Focus Groups and/or Observations Y Required W03.2 Implement Legionella Management Plan 1 point T05.2 Implement Radiant Cooling 0 1 point C06.1 Promote Health Benefits 1 point W04.1 Meet Thresholds for Drinking Water Taste 1 point T06.1 Monitor Thermal Environment 0 1 point C06.2 Offer On-Demand Health Services points W05.1 Assess and Maintain Drinking Water Quality 1 point T07.1 Manage Relative Humidity 2 1 point C06.3 Offer Sick Leave 1 point W05.2 Promote Drinking Water Transparency 1 point T08ß.1 Provide Windows with Multiple Opening Modes 0 1 point C06.4 Support Community Immunity 1 point W06.1 Ensure Drinking Water Access 1 point T09ß.1 Manage Outdoor Heat 0 1 point C06.5 β Provide Enhanced Health Benefits 1 point W07.1 Design Envelope for Moisture Protection 1 point T09ß.2 Avoid Excessive Wind 0 1 point C07.1 Promote Culture of Health 1 point W07.2 Design Interiors for Moisture Management 1 point T09ß.3 Support Outdoor Nature Access 0 1 point C07.2 Establish Health Promotion Leader 1 point W07.3 Implement Mold and Moisture Management Plan 3 points C08.1 Offer New Parent Leave 1 point W08.1 Provide Bathroom Accommodations SOUND 0 POINTS 1 point C09.1 Offer Workplace Breastfeeding Support 1 point W08.2 Ensure Bathroom Accommodations Y?N Weight ID Part Name 2 points C09.2 Design Lactation Room 1 point W08.3 Support Effective Handwashing Y Required S01.1 Label Acoustic Zones 0 1 point C10.1 Offer Childcare Support 1 point W08.4 Provide Handwashing Supplies and Signage Y Required S01.2 Provide Acoustic Design Plan 0 1 point C10.2 Offer Family Leave points W09ß.1 Implement Safety Plan for Non-Potable Water Capture and Reuse 3 points S02.1 Limit Background Noise Levels 1 1 point C10.3 Offer Bereavement Support 1 point S03.1 Design for Sound Isolation at Walls and Doors 0 1 point C11.1 Promote Community Engagement 2 points S03.2 Achieve Sound Isolation at Walls 0 1 point C11.2 Provide Community Space NOURISHMENT 0 POINTS 2 points S04.1 Achieve Reverberation Time Thresholds 0 1 point C12.1 Create DEI Assessment and Action Plan Y?N Weight ID Part Name 2 points S05.1 Implement Sound Reducing Surfaces 1 1 point C12.2 Implement DEI Support Systems Y Required N01.1 Provide Fruits and Vegetables 1 point S06.1 Provide Minimum Background Sound 0 1 point C12.3 Implement DEI Hiring Practices and Wage Equity Y Required N01.2 Promote Fruit and Vegetable Visibility 1 point S06.2 Provide Enhanced Speech Reduction 0 2 points C13.1 Integrate Universal Design Y Required N02.1 Provide Nutritional Information 1 point S07ß.1 Specify Impact Noise Reducing Flooring 0 1 point C14.1 Promote Emergency Resources Y Required N02.2 Address Food Allergens 2 points S07ß.2 Meet Thresholds for Impact Noise Rating 1 1 point C14.2 Provide Opioid Response Kit and Training Y Required N02.3 Label Sugar Content 1 point S08ß.1 Provide Enhanced Speech Intelligibility 0 1 point C15ß.1 Promote Business Continuity 1 point N03.1 Limit Total Sugars 1 point S08ß.2 Prioritize Audio Devices and Policies 0 1 point C15ß.2 Support Emergency Resilience 1 point N03.2 Promote Whole Grains 1 point S09ß.1 Implement a Hearing Health Conservation Program 0 1 point C15ß.3 Facilitate Healthy Re-entry 1 point N04.1 Optimize Food Advertising 1 point C15ß.4 Establish Health Entry Requirements 1 point N05.1 Limit Artificial Ingredients 2 points C16ß.1 Allocate Affordable Units 1 point N06.1 Promote Healthy Portions MATERIALS 0 POINTS 1 point C17ß.1 Disclose Labor Practices 1 point N07.1 Provide Nutrition Education Y?N Weight ID Part Name 2 points C17ß.2 Implement Responsible Labor Practices points N08.1 Support Mindful Eating Y Required X01.1 Restrict Asbestos 0 2 points C18ß.1 Support Victims of Domestic Violence 1 point N09.1 Accommodate Special Diets Y Required X01.2 Restrict Mercury 0 1 point C19ß.1 Establish Education and Support 1 point N09.2 Label Food Allergens and Intolerances Y Required X01.3 Restrict Lead 0 1 point C20ß.1 Historical Acknowledgement 1 point N10.1 Provide Meal Support Y Required X02.1 Manage Asbestos Hazards 0 1 point N11.1 Implement Responsible Sourcing Y Required X02.2 Manage Lead Paint Hazards 0 points N12.1 Provide Gardening Space Y Required X02.3 Manage Polychlorinated Biphenyl (PCB) Hazards 0 1 point N13.1 Ensure Local Food Access Y Required X03.1 Manage Exterior CCA Hazards 0 INNOVATION 0 POINTS 1 point N14ß.1 Limit Red and Processed Meats Y Required X03.2 Manage Lead Hazards 0 Y?N Weight ID Part Name 1 point X04.1 Assess and Mitigate Site Hazards 0 1 point I01.1 Propose Innovation 1 point X05.1 Select Compliant Interior Furnishings 0 1 point I02.1 Achieve WELL AP LIGHT 0 POINTS 1 point X05.2 Select Compliant Architectural and Interior Products 0 1 point I03.1 Offer WELL Educational Tours Y?? Weight ID Part Name 2 points X06.1 Limit VOCs from Wet-Applied Products 0 1 point I04.1 Complete Health and Well-Being Programs Y Required L01.1 Provide Indoor Light 2 points X06.2 Restrict VOC Emissions from Furniture, Architectural a 1 5 points I05.1 Achieve Green Building Certification Y Required L02.1 Provide Visual Acuity 1 point X07.1 Select Products with Disclosed Ingredients 0 2 points I06ß.1 Carbon Inventory points L03.1 Meet Lighting for Day-Active People 1 point X07.2 Select Products with Enhanced Ingredient Disclosure 0 3 points I06ß.2 Carbon Reduction Goal points L04.1 Manage Glare from Electric Lighting 1 point X07.3 Select Products with Third-Party Verified Ingredients 0 3 points I06ß.3 Carbon Reduction points L05.1 Implement Daylight Plan 1 point X08.1 Select Materials with Enhanced Chemical Restrictions 0 2 points I06ß.4 Carbon Neutral points L05.2 Integrate Solar Shading 1 point X08.2 Select Optimized Products 0 points L06.1 Conduct Daylight Simulation 1 point X09.1 Implement a Waste Management Plan 0 1 point L07.1 Balance Visual Lighting 1 point X10.1 Manage Pests 0 PRECONDITIONS 1 point L08.1 Enhance Color Rendering Quality 1 point X11.1 Improve Cleaning Practices 0 48 YES points L08.2 Manage Flicker 1 point X11.2 Select Preferred Cleaning Products 0 0 MAYBE 100% points L09.1 Enhance Occupant Controllability 1 point X12ß.1 Reduce Respiratory Particle Exposure 0 0 NO 1 point L09.2 Provide Supplemental Lighting 1 point X12ß.2 Address Surface Hand Touch 0 OPTIMIZATION POINTS 0 YES
TM LEED v4 for ID+C: Commercial Interiors Project Checklist Date: Y?N Credit 2 000 18 000 Indoor Environmental Quality 17 Credit 18 Y Prereq Required Credit 8 Y Prereq Required Credit 7 Credit 2 Credit 1 Credit 3 Credit 2 Credit 1 Credit 2 000 Water Efficiency 12 Credit 1 Y Prereq Required Credit 2 Credit 12 Credit 3 Credit 1 000 Energy and Atmosphere 38 Credit 2 Y Prereq Required Y Prereq Required 000 Innovation 6 Y Prereq Required Credit 5 Credit 5 Credit 1 Credit 25 Credit 2 000 Regional Priority 4 Credit 3 Credit Regional Priority: Specific Credit 1 Credit 1 Credit Regional Priority: Specific Credit 1 Credit 2 Credit Regional Priority: Specific Credit 1 Credit Regional Priority: Specific Credit 1 000 Materials and Resources 13 Y Prereq Required 0 0 0 TOTALS Possible Points: 110 Y Prereq Required Credit 1 Credit 4 Credit 2 Credit 2 Credit Building Product Disclosure and Optimization Material Ingredients 2 Credit 2 Certified: 40 to 49 points, Silver: 50 to 59 points, Gold: 60 to 79 points, Platinum: 80+ Innovation LEED Accredited Professional Storage and Collection of Recyclables Acoustic Performance Renewable Energy Production Thermal Comfort Interior Lighting Daylight Quality Views Construction Indoor Air Quality Management Plan Indoor Air Quality Assessment Construction and Demolition Waste Management Enhanced Indoor Air Quality Strategies Low-Emitting Materials Minimum Indoor Air Quality Performance Environmental Tobacco Smoke Control Interiors Life-Cycle Impact Reduction Long-Term Commitment Enhanced Refrigerant Management Enhanced Commissioning Advanced Energy Metering Building Product Disclosure and Optimization Environmental Product Declarations Building Product Disclosure and Optimization Sourcing of Raw Materials Reduced Parking Footprint Minimum Energy Performance Fundamental Refrigerant Management Optimize Energy Performance Project Name: Location and Transportation Access to Quality Transit LEED for Neighborhood Development Location Integrative Process Surrounding Density and Diverse Uses Bicycle Facilities Construction and Demolition Waste Management Planning Indoor Water Use Reduction Indoor Water Use Reduction Fundamental Commissioning and Verification Green Power and Carbon Offsets
THE WELL BUILDING STANDARD

Aldrich, Alan W. “Creating Collaborative Workstations for Reference and Public Use in Academic Libraries.” College & Undergraduate Libraries 15, no. 3 (August 11, 2008): 364–77. https://doi. org/10.1080/10691310802258265.

ArchDaily. “Victorian Academy of Teaching and Leadership / DesignInc,” November 8, 2022. https://www. archdaily.com/991866/victorian-academy-of-teaching-and-leadership-designinc.

ArchDaily. “Hayden Library / Kennedy & Violich Architecture,” August 29, 2022. https://www.archdaily. com/988056/hayden-library-kennedy-and-violich-architecture

Beattie, Graham, Jean-William Laliberté, Catherine M Leclerc, and Philip Oreopoulos. “What Sets College Thrivers and Divers Apart? A Contrast in Study Habits, Attitudes, and Mental Health.” NBER Working Paper w23588 (2017).

Cassar, Lea, Mira Fischer, and Vanessa Valero. “Keep Calm and Carry On: The Short- vs. Long-Run Effects of Mind fulness Meditation on (Academic) Performance,” 2022.

Gensler. “U.S. Workplace Survey 2022.” Accessed February 28, 2023. https://www.gensler.com/gri/us-workplacesurvey-2022.

Hunter, Jonathan, and Andrew Cox. “Learning over Tea! Studying in Informal Learning Spaces.” New Library World 115, no. 1/2 (January 7, 2014): 34–50. https://doi.org/10.1108/NLW- 08-2013-0063.

“How Your Office Space Impacts Employee Well-Being.” Accessed February 28, 2023. https://www.forbes.com/ sites/alankohll/2019/01/24/how-your-office-space-impacts-employee-wellbeing/?sh=34e916b64f31.

Huang, Yueng-Hsiang, Michelle M. Robertson, and Kuo-I Chang. “The Role of Environmental Control on Environmental Satisfaction, Communication, and Psychological Stress: Effects of Office Ergonomics Training.”

Environment and Behavior 36, no. 5 (September 1, 2004): 617–37. https://doi. org/10.1177/0013916503262543.

Lewis, Samantha, Shelby Burnett, and Kelly Waters. “The Hospitality-Driven Workplace.” Gensler. Accessed February 28, 2023. https://www.gensler.com/blog/the-hospitality-driven-workplace.

“September Cafe / Red5studio + Ben Decor | ArchDaily.” Accessed February 28, 2023. https://www.archdaily. com/962869/september-cafe-red5studio-plus-ben-decor?ad_source=search&ad_medium=projects_tab.

“The Benefits of Biophilic Design in the Workplace | Truspace.” Accessed February 28, 2023. https://www. truspace.ca/blog/biophilic-design-the-benefits-of-nature-in-office-design/.

Waxman, Lisa. “The Coffee Shop: Social and Physical Factors Influencing Place Attachment.” Journal of Interior Design 31, no. 3 (May 1, 2006): 35–53. https://doi.org/10.1111/j.1939-1668.2006.tb00530.x.

“Wet Beast Office / Studioninedots | ArchDaily.” Accessed February 28, 2023. https://www.archdaily. com/995094/wet-beast-office-studioninedots?ad_source=search&ad_medium=projects_tab.

Zhou, Jiafeng, Ernest Lam, Cheuk Hang Au, Patrick Lo, and Dickson K.W. Chiu. “Library Café or Elsewhere: Usage of Study Space by Different Majors under Contemporary Technological Environment.” Library Hi Tech 40, no. 6 (December 8, 2022): 1567–81. https://doi.org/10.1108/LHT-03-2021-0103.

50
bibliography
47

Turn static files into dynamic content formats.

Create a flipbook
Issuu converts static files into: digital portfolios, online yearbooks, online catalogs, digital photo albums and more. Sign up and create your flipbook.