LWYB Draft Document

Page 1


Love Where You Build

Neighborhood Conservation Overlay & Development Standards

This page was intentionally left blank.

Background

Reinvesting in the Heart of Temple

The City of Temple is implementing new planning tools to support reinvestment in established neighborhoods. This initiative focuses on context-sensitive development that respects the architectural patterns and walkable character found in many of Temple’s more established communities. This overlay zoning district is being introduced as a way to better accommodate infill development and redevelopment in areas where traditional zoning standards may no longer align with existing conditions. This approach is designed to encourage long-term neighborhood vitality while ensuring compatibility between new and existing structures.

Balancing Flexibility with Neighborhood Character

Base zoning districts in Temple were originally created for newer subdivisions and often include standards—such as large setbacks, low lot coverage, and wide building separation—that do not reflect the development patterns of historic neighborhoods. The overlay zoning districts provides an additional layer of standards that adapt zoning requirements to better fit the unique form and character of mature neighborhoods. This overlay aims to simplify the development process for small-scale projects and support reinvestment that enhances the surrounding environment.

Aligning with the "Love Where You Build" Program

The Love Where You Build program serves as an extension of Temple’s ongoing neighborhood planning efforts. It is focused on guiding new development in a way that complements the existing architectural character of established areas, while also expanding the range of available housing types. Key priorities of the program include encouraging human-scale design, maintaining walkability, and promoting reinvestment that aligns with each neighborhood’s original form. By doing so, the program helps provide more housing options for current and future Temple residents.

Revitalization and the Urban Core

Several neighborhood planning areas are located adjacent to Downtown Temple, offering opportunities for coordinated revitalization. Investment in both Downtown and its surrounding neighborhoods is mutually beneficial. Improvements in the Downtown area can increase the desirability of nearby residential neighborhoods, while neighborhood reinvestment helps support a growing population in and around Downtown. This synergy contributes to a more vibrant, active, and sustainable urban core.

This page was intentionally left blank.

Section 1: Love Where You Build Process

This section provides an overview of how the City of Temple Love Where You Build program is intended to function.

Intent

The Love Where You Build program supports the development of high-quality housing that is both architecturally compatible with surrounding neighborhoods and guided by context-sensitive site design. The program also promotes neighborhood connectivity by encouraging active street-facing designs that enhance pedestrian engagement.

A central goal of this initiative is to reduce development time and costs in order to stimulate infill housing within Temple’s established neighborhoods. To support this, the City offers a selection of City Approved Plan Sets (CAPS)—pre-designed housing plans that comply with the standards of the applicable Neighborhood Conservation Overlay. Each plan has been specifically evaluated by Temple, taking into account the existing built environment, typical lot dimensions, local construction practices, and market conditions. These plans have been reviewed and approved by City of Temple Building Inspectors to allow for expedited permitting.

The following section outlines the step-by-step process for using CAPS to streamline the approval of pre-approved residential designs.

Identify the Property

01

Identify the Neighborhood and Lot

Identify the Property

Deed Restrictions

There are several neighborhoods in Temple that can participate in the Love Where You Build Program, as identified in the map on page 3. Examine the Love Where You Live Neighborhood Plans to determine the best fit. After a property is selected within an approved neighborhood, discussions with the City regarding the specifics of the selected property can begin.

Research

Review any applicable deed restrictions related to the desired building type to determine whether the property can meet those requirements. It is important to note that while the City does not enforce deed restrictions, they may still pose challenges or limitations for the property owner and should be carefully considered during the planning process.

Property Research

Overlay

03

Begin the process by identifying a property. Several resources are available to assist with this step, including the following:

City of Temple GIS

City of Temple Planning and Development

Bell County Appraisal District

Love Where You Live Plans

Survey

Identify the overlay district that subject property is located in and ensure that desired housing type is allowed. Review limitations for desired building type (if applicable) and determine if the property will be able to meet the necessary considerations. Review base zoning information for the property as well to ensure compliance. Base zoning for non-residential properties applies to the uses, the overlay will dictate design.

While not required for submission, obtaining a property survey from a licensed local land surveyor can be beneficial. If you are in the process of purchasing the property, it may be wise to ensure that an updated survey is included as a condition of closing. The survey will be used to establish the property’s boundaries and will serve as a foundational element in developing the site plan.

Select City Approved Plan Set (CAPS)

Plan Set

Choose a City Approved Plan Set (CAPS) that fits your property and select any desired design options. Use the property survey and development standards to ensure the home fits and complies with all requirements.

Contractor Selection

Select a general contractor and necessary subcontractors, such as an electrician, plumber, and HVAC specialist.

Site Plan

Material/Element

Review the materials guide and choose your desired finishes. If preferred materials are not listed, coordinate with your architect or contractor to modify the plan and submit updated drawings with your application.

Site Plans 04 Application

Cost Estimates

Work with your contractor to confirm estimated costs for materials, labor, and site preparation.

Create a site plan using the CAPS building footprint, incorporating site design elements and applicable Neighborhood Conservation Overlay District lot development standards. Additional required documents include a Foundation Plan, RES Check, and Drainage Plan.

Permit Process

Fee

Submit the completed Building Permit Application, along with the drainage plan, RES Check, foundation plan, and site plan, as discussed with the City Representative.

Review

Temple’s Planning and Development Department will review the application through the expedited process. Please note that pre-approval of the architectural plan does not exempt the project from meeting site development requirements.

Pay the permit application fee and receive the CAPS.

Process

Once the application is approved, a permit will be issued, and construction can begin. Inspections are required at various stages of the process, and the Permit staff can assist in guiding the applicant through these steps.

Section 2: Neighborhood Conservation Overlay Districts and Housing Types

This section defines the Neighborhood Conservation Overlay Districts and housing types used as part of Temple’s Love Where You Build program.

Neighborhood Conservation Overlay

A Neighborhood Conservation Overlay District is a planning tool aimed at encouraging reinvestment that aligns with and preserves the neighborhood’s existing character. It builds upon established zoning principles by applying specific standards for elements such as lot size, setbacks, and unit density. These standards promote compatibility between new and existing development, offering predictability for both residents and developers. The lot dimension standards outlined in this document apply when creating new lots, such as through subdivision or redevelopment. Existing lots that do not meet these dimensions are not considered noncompliant; however, they may not be further subdivided into lots that fail to meet the overlay’s requirements.

The overlay allows for both residential and nonresidential (including commercial) uses.

Desired Outcomes of a Neighborhood Conservation Overlay District:

• Promote high quality of life and livability standards

• Protect and enhance unique physical features and aesthetic values

• Stabilize and revitalize neighborhood economic conditions

• Reduce conflicts from new development by providing regulatory certainty

• Foster a sense of place and neighborhood pride

• Facilitate orderly redevelopment within the City

Neighborhood Conservation 1 Neighborhood Conservation 2 Neighborhood Conservation 3

The Neighborhood Conservation 1 District is used to promote traditional detached single-family development. These areas make up the core of the Neighborhood Planning Districts. Alternative housing types may be considered, but they are still intended to further the single-family detached and owner occupied characteristics of the neighborhood. Non-residential uses may be permitted along collector and arterial roadways if appropriate screening has been met.

Housing Types Include:

• Detached Single-Family

• Cottage Court

• Duplex (Side by Side and Stacked)

• All Accessory Structures

The Neighborhood Conservation 2 District is intended to promote a mix of single-family and smaller scaled multi-unit rental structures. This includes accommodating smaller lots, which are often enabled by alleys, single lane driveways, and shared access considerations to allow for parking to occur in the back of property. Non-residential uses may be permitted along collector and arterial roadways if appropriate screening has been met.

Housing Types Include:

• Detached Single-Family

• Cottage Court

• Duplex (Side by Side and Stacked)

• Townhouse

• Multiplex

• Courtyard

• Live/Work

• All Accessory Structures

The Neighborhood Conservation 3 district focuses on accommodating housing on active street corridors where the mix of housing is to include neighborhood scaled apartments, townhouses, and live/ work buildings. Increased housing concentration and improved street engagement in this district is important as it provides that correct context for walkable shopping, dining, and service industries.

Housing Types Include:

• Detached Single-Family

• Cottage Court

• Duplex (Side by Side and Stacked)

• Townhouse

• Multiplex

• Courtyard

• Live/Work

• Neighborhood Apartment

• Carriage House

• Garage

• Carport

*All development must meet IRC standards and be on a permanent foundation. Only stick-built, onsite construction is allowed—no modular or manufactured units.

Housing Types

Development within the Neighborhood Conservation Overlay District is primarily infill development. New residential projects are permitted in all NC overlay districts regardless of base zoning. The housing types selected should be context-sensitive, respecting the existing neighborhood character while adding more housing options. This approach draws on design principles from successful mature neighborhoods across the nation, including front porch engagement, showcasing architectural details, and providing screened, secure off-street parking. These principles should guide all infill projects, regardless of building size or ownership type. The next page outlines the housing types available for infill projects and the respective Neighborhood

Detached single-family is considered a traditional housing type with one primary living structure per lot.

The stacked version of the duplex has the two units separated by floors, but both having separate ground floor entrances.

Conservation Overlay Districts where they are permitted. Each housing type must adhere to the district’s development standards, use limitations, and site-specific design requirements, which are detailed in the lot development standards section. CAPS in NCs are highly encouraged, but not required, as they already meet criteria for the area.

Accessory Structures

In addition to the primary housing structure, accessory buildings such as Accessory Dwelling Units (ADUs), storage units, and parking structures (e.g., detached garages or carports) are encouraged to allow for things such as maximizing property use and generation living.

PT Permitted with Thresholds

The cottage court housing type is a small detached single-family structure. Cottage court units are clustered on one lot that is held in common, with shared elements such as driveways and parking.

The townhouse housing type is a single-family attached structure. The shared walls create a zero-lot setback, with each unit located on its own parcel.

The duplex housing type is a twofamily structure located on one property. The side by side version of the duplex has the two units separated by a vertical partition wall.

The Multiplex housing type is multiunit dwelling in one encompassing structure on a single lot. Each unit would have its own separate exterior entrance. The units may be separated by a floor or vertical partition wall.

Detached Single-Family
Cottage Court (Lot Development) Duplex (side by side)
Duplex (Stacked)
Townhouse
Multiplex

The courtyard house housing type is a series of detached or attached housing units oriented around a shared green or open space. Other common areas may include parking or storage buildings.

The live/work housing type is a single-family structure with an office or storefront space found on the ground floor and living area above. The building fronts a street which has on-street parking to accommodate visitors.

Accessory Structures

The detached garage is an enclosed structure for parking a vehicle and storage.

An Accessory Dwelling Unit (ADU) is a secondary structure to the primary residence. These are either one bedroom or efficiency units that are limited in size. Accessory Dwelling Unit (ADU)’s may be up to 1,300 square feet or 50% of the primary structure’s square footage (excluding garage space), whichever is smaller.

A carport is a covered permanent structure used to provide cover for parked vehicles.

A carriage house is an accessory dwelling unit that is located directly above a detached garage structure.

The neighborhood apartment is an interior accessed multi-unit dwelling with no more than 12 Units. The scale, building height, and architectural style are complementary to the walkable and human scaled nature of the neighborhood.

A porte cochère is a covered structure over a driveway attached to a primary structure.

Courtyard House (Lot Development)
Apartment
Accessory Dwelling Unit (ADU)
Garage
Carriage House
Carport
Porte Cochère

Unique Situations

Adaptive Reuse

Adaptive reuse means rehabilitating or reusing an existing building for a purpose other than what it was originally built or designed for, that can conform to the neighborhood. This approach promotes economic prosperity, street engagement, and neighborhood services. In these areas, adaptive reuse should focus primarily on retail, food service, offices, and personal services, while complying with the Unified Development Code (UDC) and Site Organization Standards.

Adaptive reuse is allowed in all neighborhood overlay districts, provided the following lot design requirements are met and the project integrates well with the surrounding area:

Existing Non-Residential Uses

The intent of this overlay is not to displace existing businesses but to enhance their conditions. Any existing non-residential use may continue operating regardless of the overlay classification. However, it’s important to note that the base zoning within the overlay will prevail. In certain situations, the building must conform to the overlay standards outlined in this document. These situations include:

• Remodels that trigger updates in accordance with nonconformity regulations in the Unified Development Code.

• Site reconfigurations (e.g., parking, lighting) that require a site development permit from the City of Temple.

• Changes in use or business classification.

Non-Conforming Lots

Many older neighborhoods have non-conforming lots—smaller lots that don’t meet current zoning rules. Standard residential lots are usually at least 45 feet wide and 100 feet deep, but non-conforming lots are often smaller and may not meet setback requirements. If a set of plans can meet fire code on the lot, they may still be permitted. In some cases, lots may also qualify for subdivision and must then follow overlay district standards. Contact the City to find out if City-Approved Plans are an option for your property.

• Operations must occur during hours that do not disrupt nearby residential uses.

• On-site parking is required.

• Deliveries should take place during non-peak hours.

• Signage should not obstruct sight lines or hinder walkability.

• Residential lots transitioning to commercial uses should be located on collector and arterial roadways, preferably at intersections. Lots not at intersections must apply for a Conditional Use Permit.

• At the time of reclassification and during site development, standards based on the district must be followed.

New Non-Residential Uses

While new non-residential uses are permitted in every NC district, there are considerations for their location and scale as explained in Section 3. Some general guidance includes:

• In NC1 non-residential uses are permitted only at the intersections of collector and arterial roadways and if the lot design standards can be met.

• In NC2 and N3 non-residential uses are permitted anywhere along collector and arterial roadways as long as lot design standards are met.

• Use must be in conformance with the UDC and be conducive to the neighborhood.

• Buffering and screening between the nonresidential and residential will be required.

As a general consideration:

• The International Fire Code may affect the viability of certain plans on non-conforming lots.

• Larger-than-minimum lots may allow for subdivision to increase density where appropriate.

For specific guidance and options, please contact City staff.

Thresholds

Primary Structures

Cottage Court

Cottage units may have up to 1,300 square feet of livable space, with a maximum density of 12 units per acre. Garages must be detached, unless part of a carriage house. Detached garages are the only secondary structures allowed. Storage structures are permitted as secondary structures; however, if a storage area is attached to a cottage unit, it is not counted as a separate secondary structure, as long as it remains part of the primary building.

Cottage units may have up to 1,300 square feet of livable space, with a maximum density of 14 units per acre. Garages must be detached, unless part of a carriage house. Detached garages are the only secondary structures allowed. Storage structures are permitted as secondary structures; however, if a storage area is attached to a cottage unit, it is not counted as a separate secondary structure, as long as it remains part of the primary building.

Cottage units may have up to 1,300 square feet of livable space, with a maximum density of 12 units per acre. Garages must be detached, unless part of a carriage house. Detached garages are the only secondary structures allowed. Storage structures are permitted as secondary structures; however, if a storage area is attached to a cottage unit, it is not counted as a separate secondary structure, as long as it remains part of the primary building.

Duplex (side by side)

Duplex (Stacked)

Multiplex

Courtyard House

Live/Work

Duplexes are not permitted on lots with a base zoning of SF-1, SF-2, or SF-3. Duplexes with side by side units are only allowed on 60 ft. in width or greater, unless there is an alley. Duplexes with side by side units on lots containing driveway access to an alley are allowed on lots no less than 45ft in width.

Duplexes are not permitted on lots with a base zoning of SF-1, SF-2, or SF-3.. Duplexes with stacked units are allowed on lots less than 60 ft. provided they can provide 4 parking spaces behind the front build wall.

A multiplex unit is permitted only on corner lots.

Courtyard house units are permitted provided there is a dedicated 200 sq. ft. central lawn per unit that is no less than 30 ft. in width.

Live/Work units must be located at intersections of collector level roads or higher.

Secondary Structures

Accessory Dwelling Unit

NC1

Allowed as a secondary use to a detached single-family house. Allowed as a twostory next to a single story structure with 2:1 height looming from primary structures. (see page 41 for reference). Accessory Dwelling Units (ADUs) may be up to 1,300 square feet or 50% of the primary structure’s square footage (excluding garage space), whichever is smaller.

NC2

Allowed as a secondary use to a detached single-family house. Allowed as a twostory next to a single story structure with 2:1 height looming from primary structures. (see page 41 for reference). Accessory Dwelling Units (ADUs) may be up to 1,300 square feet or 50% of the primary structure’s square footage (excluding garage space), whichever is smaller.

Courtyard house units are permitted provided there is a dedicated 200 sq. ft. central lawn per unit that is no less than 30 ft. in width.

NC3

Carriage House

Allowed as a secondary use to a detached single-family house. Additionally, the carriage house is allowed in cottage developments. Allowed as a two-story next to a single story structure with 2:1 height looming from primary structures (see page 41 for reference). The size may be up to 1,300 square feet or 50% of the primary structure’s square footage, whichever is less.

Allowed as a secondary use to a detached single-family house. Additionally, the carriage house is allowed in both cottage developments and courtyard houses as an individual unit. Allowed as a two-story next to a single story structure with 2:1 height looming from primary structures (see page 41 for reference). The size may be up to 1,300 square feet or 50% of the primary structure’s square footage, whichever is less.

Allowed as a secondary use to a detached single-family house. Additionally, the carriage house is allowed in both cottage developments and courtyard houses as an individual unit. Allowed as a two-story next to a single story structure with 2:1 height looming from primary structures (see page 41 for reference). The size may be up to 1,300 square feet or 50% of the primary structure’s square footage, whichever is less.

Section 3: Lot Development Standards

The following are the development standards for the Neighborhood Conservation Overlay Districts. This includes site specific requirements for the different housing types. Additionally, the presence and use of alleys should be considered as enabling infrastructure that enables a more efficient use of the lot resulting in lessened site standards, such as the front building setbacks.

NEIGHBORHOOD CONSERVATION 1 (NC1)

The Neighborhood Conservation 1 District is used to promote traditional detached singlefamily development. These areas make up the core of the Neighborhood Planning Districts. Alternative housing types may be considered, but they are still intended to further the single-family detached and owner occupied characteristics of the neighborhood. Non-residential uses may be permitted at intersections of collector and arterial roadways if lot design standards have been met.

Lot Area, Front-loaded Lot (min sq. ft.)

Area, Rear-loaded Lot (min sq. ft.)

1 Lot Width, Front-loaded Lot (min ft.) 45

Lot Width, Rear-loaded Lot (min ft.) 38

2 Lot Width, Front-loaded Corner Lot (min ft.) 55

Lot Width, Rear-loaded Corner Lot (min ft.) 45

3 Lot Depth, Front-loaded Lot (min ft.) 100

Lot Depth, Rear-loaded Lot (min ft.) 90 Lot Coverage All structures and impervious surfaces

* Front Setback can be reduced to 15 ft. provided the garage is detached and located in the rear yard of the house.

**In the instance where a single-family home will be abutting a two-story single-family attached, Accessory Dwelling Unit (ADU), or a two story commercial infill project, the 2:1 height looming slope will be implemented. See page 41 for additional reference.

*** Alternative paving allows better drainage and either ribbon driveway or permeable pavers are considered acceptable alternatives.

In cases where a large lot will be subdivided, it is important to note that dimensional standards for the lot will be applicable.

Accessory Building (Max) Garage

A. Site Organization

1. For lots that meet the minimum width, rear loaded lot development standards must be used including access off an alley.

2. Front-access garages shall not exceed 50% of the front-facing building façade.

3. Detached garages and secondary structures may orient in any direction.

4. Garages should be setback at least 10 ft. behind the front building wall of the primary structure. If the garage faces the side street, it must be setback a minimum of 20 ft. from the side street property line.

5. Porte cochères are allowed on lots without alleys and may encroach up to 4 ft. into the side yard setback, provided there is no habitable space above and they are spaced 6 ft. away from any structure on a neighboring property. Eaves may not extend past the 4 ft. encroachment. Porte cochères are not allowed in the side street yard setback and are not permitted where the primary structure is a duplex.

6. Front-access driveways on lots less than 60 ft. in width shall not exceed 10 ft. in width. On lots 60 ft. or wider, the driveway width shall not exceed 18 ft.. This requirement does not apply to alley-access driveways.

7. Porches may extend 5 ft. into the front setback or side street setback, as long as the space remains open and unconditioned. Enclosed porches are not permitted to encroach into either setback.

8. Porch encroachments are not allowed in side yard setbacks. Eaves are allowed to encroach 2 ft. into side and rear setbacks and an additional 1 ft. beyond the 5 ft. front porch encroachment, provided the eave encroachment remains at least 6 ft. from any neighboring structure.

9. Detached and non-habitable secondary structures may encroach up to 2 ft. into side and rear setbacks.

10. A garage shall not exceed 600 sq. ft. in size. Secondary structures shall not exceed a combined footprint of 1,000 sq. ft.

11. ADU's will be required to meet the following standards:

• Addresses must be visible from the street, or the unit will fail inspection.

• Gate access must be provided for emergency personnel.

• ADU address must be posted on the fence.

• ADU itself must be visible from the street.

B. Yards

1. No secondary structure is allowed between any building wall of the primary structure and the street.

2. Front and side street yards shall not exceed 25% coverage by paved surfaces.

3. When calculating lot coverage, at least 20% of the lot must remain pervious surface, excluding parking requirements. No more than 50% of the required pervious area may be located in the front and side street yards. For example, if a lot is 5,000 sq. ft., the required pervious cover is 1,000 sq. ft. In that case, no more than 500 sq. ft. of pervious surface may be located in the front or side yards; the remainder must be located in the

rear yard.

C. Access

1. The primary entrance to single-family detached primary structures shall be located on the front of the building.

2. Front and side street driveways are not permitted if an alley is present on lots 50 ft. or less in width.

3. Lots without an alley are permitted only one driveway. Corner lots may have driveway access from the side street if there is no alley present, but are still limited to one driveway.

4. Circular or horseshoe driveways are not permitted.

5. Detached garages that face an alley must have at least and 8’ setback.

D. Parking

1. A minimum of 2 parking spaces are required behind the front building wall, except where explicitly identified in this section. Each space shall be at least 9 ft.x18 ft.

2. For units with more than 3 bedrooms an additional .5 parking spaces per bedroom is required behind the front building wall (parking requirements should be rounded up to the nearest whole number).

3. Accessory Dwelling Units (ADU’s) shall require an additional .5 parking spaces behind the front building wall (parking requirements should be rounded up to the nearest whole number).

4. For cottage court development houses with 2 or less bedrooms, only one parking space is required behind the front building wall, provided the 2nd parking space can be accommodated with an on-street parking space directly adjacent to the lot.

5. Parking not accounted for within a garage shall occur on a hardscape surface of concrete, pavers, asphalt, or other comparable surface approved by the Planning & Development Department.

E. Alleys

1. Alleys will be evaluated on a case-by-case basis but must, at a minimum, be accessible and traversable. An alley will be considered traversable if it is cleared, graded, and able to be traveled by a standard motor vehicle without undue wear to the vehicle.

2. Alleys serving an ADU must be lit, with lighting shining into the alley. Fixtures may also shine onto the ADU parcel but must illuminate the alley.

F. For non-conforming or non-residential lots please refer to page 26.

NEIGHBORHOOD CONSERVATION 2 (NC2)

The Neighborhood Conservation 2 District is intended to promote a mix of single-family and smaller scaled multi-unit structures. This includes accommodating smaller lots, which are often enabled by alleys, single lane driveways, and shared access considerations to allow for parking to occur in the back of property. Non-residential uses may be permitted along collector and arterial roadways if lot design standards have been met.

***In the instance where a single-family home will be abutting a two-story single-family attached, Accessory Dwelling Unit (ADU), or a two story commercial infill project, the 2:1 height looming slope will be implemented. See page 41 for additional reference. ****Alternative paving allows better drainage and either ribbon driveway or permeable pavers are considered acceptable alternatives.

ft. per

housing unit All other structures 400 sq. ft. or 10% of total lot size, which ever is less * Front Setback can be reduced to 10 ft. provided the garage is detached and located in the rear yard of the house. **For townhouse units, end units shall follow minimum 5 ft. side yard setback, while attached units interior lots shall have 0’ sideyard setback.

In cases where a large lot will be subdivided, it is important to note that dimensional standards for the lot will be applicable.

A. Site Organization

1. For lots that meet the minimum width, rear loaded lot development standards must be used including access off an alley.

2. Front access garages shall not exceed 50% of the front facing building facade.

3. Garages should be at least 10 ft. behind the front building wall of the primary structure. If garage faces the side street, garage is to be setback a minimum of 20 ft. from the side street property line.

4. Front access driveways on lots less than 60 ft. in width shall not exceed 10 ft. in width. On lots 60 ft. or larger, the driveway width shall be no larger than 18 ft. This requirement is not applicable to alley access driveways.

5. Porte cochères are allowed on lots without alleys and may encroach up to 4 ft. into the side yard setback provided there is no habitable space above and are spaced 6 ft. away from any structure on a neighboring property. Eaves may not extend past the 4 ft. encroachment. Porte cochères are not allowed in the side street yard setback. Porte cochères are not permitted where the primary structure is a duplex.

6. Porches may extend 5 ft. into the front setback or side street setback, so long as the space remains open and unconditioned. Enclosed porches are not permitted to encroach into either setback. Side yard setbacks do not allow porch encroachments.

7. Eaves are allowed to encroach 2 ft. into side and rear setbacks and an additional 1 ft. past the front porch 5 ft. encroachment, provided eave encroachment remains 6 ft. from any neighboring structure.

8. Detached and non-habitable secondary structures can encroach up to 2 ft. in side and rear setbacks.

9. Townhouse units are limited to groups of 6.

10. Secondary structures are not to exceed 1,000 sq. ft. in combined building footprint for detached single-family uses.

11. For multi-unit properties, secondary structures are not to exceed the combined 400 sq. ft. of garage per unit plus 10% of the lot size. For example, a stacked duplex unit on a 4,000 sq. ft lot would be allowed up to a combined 1,200 sq. ft. of secondary structures, provided the combined hardscape and building sq. ft. does not exceed the maximum lot coverage.

12. ADU's will be required to meet the following standards:

• Addresses must be visible from the street, or the unit will fail inspection.

• Gate access must be provided for emergency personnel.

• ADU address must be posted on the fence.

• ADU itself must be visible from the street.

B. Yards

1. No secondary structure is allowed between any building wall of the primary structure and the street.

2. Front and side street yards are not to exceed 35% of coverage by paved surfaces.

3. When calculating lot coverage, 20% of the lot must be left as pervious surface, excluding parking requirements. When calculating the amount of pervious surface no more than 50% of the total 20% is allowed to be on the front and side street

yards. For Instance, if a lot is 5,000 sq. ft., the pervious cover is at least 1,000 sq. ft.. This means only 500 sq. ft. of yard can be on the front or side yard and the remainder would need to be in the rear yard.

C. Access

1. For multi-unit/attached residential structures, at least 50% of front doors shall be forward facing, i.e. facing the front yard.

2. A circle or horseshoe driveway is not permitted.

3. Detached garages which face the alley should be setback 8’.

4. For multiplex and courtyard house lot developments that are 120 ft. in width or greater, a continuous loop driveway that provides access to rear yard parking is allowed.

5. On Townhouses and Multiplex Units the need for alleyways is present. Access should be rear loading from alleyways when possible. Reference page 38 for further design information.

D. Parking

1. A minimum of 2 parking spaces are required behind the front building wall except where explicitly identified in this section. Each space shall be at least 9 ft.x18 ft.

2. For single-family detached with 3 or more bedrooms an additional .5 parking spaces per bedroom is required behind front building wall. After the first 2 parking spaces are met, 1 of the additional parking spaces can be accommodated with an on-street parking space directly adjacent to the lot (parking requirements should be rounded up to the nearest whole number).

3. For cottage court and courtyard house development with 2 or less bedrooms, only one parking space is required behind the front building wall provided the 2nd parking space can be accommodated with an on-street parking space directly adjacent to the lot. For units with 3 or more bedrooms 2 parking spaces are to be required behind the front and side street building walls.

4. For townhouses and multiplexes with 2 or more bedrooms, only 2 parking spaces behind the front building wall are required per unit. A multiplex 1 bedroom unit will require 1 parking space behind front building wall, provided an onstreet parking space is directly adjacent to the lot to account for a second space.

5. Parking not accounted for within a garage shall occur on a hardscape surface of concrete, pavers, asphalt, or other comparable surface approved by the Planning & Development Department.

E. Alleys

1. Alleys will be evaluated on a case-by-case basis but must, at a minimum, be accessible and traversable. An alley will be considered traversable if it is cleared, graded, and able to be traveled by a standard motor vehicle without undue wear to the vehicle.

2. Alleys serving an ADU must be lit, with lighting shining into the alley. Fixtures may also shine onto the ADU parcel but must illuminate the alley.

F. For non-conforming or non-residential lots please refer to page 26.

NEIGHBORHOOD CONSERVATION 3 (NC3)

The Neighborhood Conservation 3 district focuses on accommodating housing on active street corridors where the mix of housing is to include neighborhood scaled apartments, townhouses, and live/work buildings. Increased housing concentration and improved street engagement in this district is important as it provides that correct context for walkable shopping, dining, and service industries. Non-residential uses may be permitted along collector and arterial roadways if lot design standards have been met.

Non-residential/ Live Work Unit

Lot Width, Front-loaded Lot (min ft.) 34

1 Lot Width, Rear-loaded Lot (min ft.) 24 Lot Width, Front-loaded Corner Lot (min ft.) 40 Lot Width, Rear-loaded Corner Lot (min ft.) 34

2 Lot Width, Corner Lot Maximum (ft.) 150^

Lot Depth, Front-loaded Lot* (min ft.) 110

3 Lot Depth, Rear-loaded Lot* (min ft.) 90

Lot Coverage

All structures and impervious surfaces

Pervious paving bonus

^There are no lot area, lot width, or lot depth maximums for grocery store use, provided site development maintains the established block spacing.

****In the instance where a single-family home will be abutting a two-story single-family attached, Accessory Dwelling Unit (ADU), or a two story commercial infill project, the 2:1 height looming slope will be implemented. See page 41 for additional reference.

*****Alternative paving allows better drainage and either ribbon driveway or permeable pavers are considered acceptable alternatives. In cases where a large lot will be subdivided, it is important to note that dimensional standards for the lot will be applicable.

Accesory Buildng Garage

All other structures (residential only)

600 sq. ft. or

sq. ft. per multi-family housing unit

400 sq. ft.

*Grocery stores are allowed 1 parking bay within a max setback of 80’.

**For townhouse and live work units, end units shall follow minimum 5 ft. side yard setback, while attached units interior lots shall have 0’ sideyard setback.

***A 5 ft. side yard setback is required adjacent to residential housing, excluding live work. Residential Unit

Live/work units may follow either non-residential or residential site standards.

A. Site Organization

1. For lots that use minimum width rear-loaded lot development standards, driveways must be accessed off alley when possible.

2. Detached garages and secondary structures may orient in any direction.

3. Detached garages should be at least 10 ft. behind the front building wall of the primary structure. If garage faces the side street, garage is to be setback a minimum of 20 ft. from the side street property line.

4. Porches may extend 5 ft. into the front setback or side street setback, so long as the space remains open and unconditioned. Side yard setbacks do not allow porch encroachments.

5. Eaves are allowed to encroach 2 ft. into side and rear setbacks and an additional 1 ft. past the front porch 5 ft. encroachment. Provided eave encroachment remains 6 ft. from any neighboring structure.

6. Detached and non-habitable secondary structures can encroach up to 2 ft. in side and rear setbacks.

7. Townhouse units are limited to groups of 8.

8. Parking lots (grouped parking of greater than 6 parking spaces) shall be screened by a 6 ft. tall opaque fence when directly adjacent to a lot containing single-family detached, duplex, or cottage residential housing units.

9. Front access driveways on lots less than 60 ft. in width shall not exceed 12 ft. in width. On lots 60 ft. or larger, the driveway width shall be no larger than 26 ft. This requirement is not applicable to alley access driveways.

10. A 5 ft. planting buffer to be comprised of no less than 6 formal plantings per 18 ft. is required between parking lots and public R.O.W.

11. ADU's will be required to meet the following standards:

• Addresses must be visible from the street, or the unit will fail inspection.

• Gate access must be provided for emergency personnel.

• ADU address must be posted on the fence.

• ADU itself must be visible from the street.

B. Yards

1. When calculating lot coverage, 20% of the lot must be left as pervious surface, excluding parking requirements. When calculating the amount of pervious surface no more than 50% of the total 20% is allowed to be on the front and side street yards. For Instance, if a lot is 5,000 sq. ft., the pervious cover is at least 1,000 sq. ft.. This means only 500 sq. ft. of yard can be on the front or side yard and the remainder would need to be in the rear yard.

C. Access

1. For multi-unit/attached residential structures at least 50% of front doors shall be forward facing, i.e. facing the front yard.

2. Shared driveways between two lots are permitted.

3. A circle or horseshoe driveway is not permitted.

4. For neighborhood apartment, multiplex, and courtyard

house lot developments that are 120 ft. in width or greater, a continuous loop driveway that provides access to rear yard parking is allowed.

5. On townhouses and multiplex units the need for alleyways is present. Access should be rear loading from alleyways when possible. Reference page 38 for further design information.

D. Parking

1. Parking on lots shall occur behind the front building wall and outside of side street yard.

2. In multi-family, a 1 bedroom unit will require 1 parking space behind the front building wall; for units with 2 or more bedrooms, 2 parking spaces behind the front building wall will be required for each unit. For multi-family housing units, 15% of parking may be on-street provided each housing unit has at least one dedicated off-street parking space and there are spaces directly adjacent to accommodate those vehicles. Visitor parking spaces can be accommodated by on street parking.

3. For single-family, duplex, townhouses, or live/work units a minimum of 2 parking spaces per unit are required behind the front building wall; each space shall be at least 9 ft.x18 ft..

4. For cottage court development houses one parking space is required behind the front building wall, provided the 2nd parking space can be accommodated with an on-street parking space directly adjacent to the lot.

E. Alleys

1. Alleys will be evaluated on a case-by-case basis but must, at a minimum, be accessible and traversable. An alley will be considered traversable if it is cleared, graded, and able to be traveled by a standard motor vehicle without undue wear to the vehicle.

2. Alleys serving an ADU must be lit, with lighting shining into the alley. Fixtures may also shine onto the ADU parcel but must illuminate the alley.

F. For non-conforming or non-residential lots please refer to page 26.

Accessory Dwelling Unit (ADU) and Carriage Houses

Accessory Dwelling Units

1. One accessory dwelling unit is allowed per lot.

2. Accessory Dwelling Units (ADU’s) may be attached, detached, or part of the secondary structure like a garage.

3. Accessory Dwelling Units (ADU’s) are not to be larger than 1300 sq. ft. or 50% of the primary structure square footage excluding the garage’s square footage, whichever is most restrictive.

4. Addresses must be visible from the street, or the unit will fail inspection.

5. Gate access must be provided for emergency personnel.

6. ADU address must be posted on the fence.

7. ADU itself must be visible from the street.

Carriage House Units

1. Only one carriage house is allowed on a lot with a single-family detached housing unit. No other accessory dwelling units are allowed if a carriage house is present.

2. The carriage house structure must be located above the garage.

3. The carriage house shall not exceed the square footage of the garage structure. In the case of cottage and courtyard house development, carriage houses shall not exceed 50% of the primary structure or 1300 sq. ft.

The landscape requirements for the Neighborhood Conservation Overlay are important to maintaining the desired character, beautification and placemaking impacts. The standards have been developed to account for a simple application of planting requirements across all NC Districts and housing types. For recommended plantings see Appendix C Plant List.

A. Plant Standards

1. Trees

a. Trees provide vertical relief for the built environment. These plants are important for their aesthetic contributions and provision of shade, which improves pedestrian comfort. The following are the minimum plant standards at time of planting for each tree type:

i. Shade trees shall have a 1.5” minimum diameter breast height and 40 gallon container size. Shade trees shall be 8 ft. in height and have a 4 ft. canopy spread.

ii. Ornamental trees should be a minimum of 6 ft. in height and 20 gallon container size.

2. Formal Plantings

a. Formal plantings include shrubs, ornamental grasses, succulents, and perennials. These plants are intended to provide the ground level vegetation necessary to soften the built environment. Formal plants that are used for screening shall be evergreen, providing year round foliage to accomplish screening. The following are the minimum plant standards at time of planting for each plant type:

i. Shrubs and perennials shall have a minimum 3 gallon container size and be 1.5 ft. in height at time of planting.

ii. Ornamental grasses and succulents shall have a minimum 3 gallon container size and be 1 ft. in height at time of planting.

3. Turfgrass

a. Turfgrass is a perennial ground cover for lawns and often the primary composition of yards and R.O.W. plantings. The following standard is required for turfgrass establishment:

i. Turfgrass planted adjacent to public sidewalks shall be a minimum 2 ft. strip of sodded turfgrass.

B. Trees Requirements

1. For residential development 1 shade tree or 2 ornamental trees per 40 ft. of street frontage are required. Shade trees are required, unless encumbered by utilities, on front yards 15 ft. or larger in depth measured from front building wall or porch to street R.O.W. Ornamental trees may be used as an alternative to shade trees where utility conflicts exist.

2. For non-residential development 1 shade tree or 1 ornamental tree per 50 ft. of street frontage are required. Additionally, for non residential development that is adjacent to existing residential, 1 ornamental tree or shade tree is required for 40 ft. of the shared property line and shall be planted within the 5 ft. landscape buffer.

3. For corner lots only half of the side street frontage shall be counted.

4. Where tree requirement numbers end with .5 or less trees, 1

ornamental shall suffice; where tree requirement numbers end above .5 one shade tree or two ornamentals shall suffice.

5. The preservation of existing qualifying trees can be counted towards requirement.

C. Formal Plantings Requirements

1. For both residential and non-residential development there shall be 9 formal plantings per 40 ft. of street frontage, of which no less than 3 different plant species are required. For smaller lots with 5 or less required formal plantings, 2 different plant species are required. Where shrub calculations end in a fraction, round up to the next whole number. For non-residential development built to the property line formal planting requirements are eliminated for that portion of the site.

2. Required plantings need to be between the R.O.W and primary structure, plantings in R.O.W. will not count towards landscaping requirements.

3. Required formal plantings shall be placed between the front building wall or side building and R.O.W. Plants shall be placed in the respective yard or side yard where street frontage initiates planting requirements. Plants placed in R.O.W are not to be counted.

D. Lawns, Planting Beds, or Landscape Rock Bed Requirements

1. All disturbed areas should be re-established with grass, planting beds, or landscape rock beds.

2. Grass alternatives within the front and side yards shall be planting beds with mulch covering or ornamental landscape rock beds, so that no bare soil is exposed. These will be considered an acceptable alternative provided they have a minimum of 30% plant coverage. To meet this requirement formal plantings coverage should be based on 3/4 of mature plant size (width/depth) and ground cover areas should be planted no less than 1.5 ft. on center.

Planting Areas Diagram

The above diagram shows the location of street frontages and front & side street yards. This graphic is intended to illustrate where required plantings must be located within the respective yard.

The below listed situations will typically not apply. When one of these situations is triggered, general guidance has been provided below. Situations falling outside of general guidance, the Development Review Committee (DRC) can issue administrative exceptions where deemed appropriate.

A. Non-Conforming Lots

1. On non-conforming lots, considerations can be made for setbacks based on the proposed City Approved Plan Set (CAPS) to be built. Lots that are under 34 ft. in width are not considered appropriate for Single-Family Detached in most cases.

2. Impervious Cover:

On non-conforming and non-residental uses, when impervious cover limits cannot be obtained due to the nature of the lot and not by means caused by the owner, substitution from an approved list of methods can be used to off-set drainage. These include:

• Rain collection barrels

• Increased pervious paving

• French drain placement

• Shed roof pitch

• Gutter Systems

3. Driveways, Street Engagement, Landscaping:

On non-conforming lots, when setbacks cannot be met with rear parking, front parking is allowed if the driveway is expansive enough for two cars to be parked without interfering with sidewalks or roadways. No driveways are permitted adjacent to collector and arterial roadways.

B. Adaptive Reuse

1. Operations during hours that do not interfere with the residential uses surrounding it.

2. Parking On-Site

3. No signage should impede sightlines or walkability.

4. In all districts, the property should be located on collector level or arterial roadways. Within NC1 property should be located at intersections, and if not in the four corners of the intersection application for a Conditional Use Permit should be submitted.

5. Additional landscaping and buffering between residential and non-residential uses may be required as part of redevelopment.

6. A site plan that includes but is not limited to landscaping, ingress, egress, parking, and deliveries will be required at time of permitting.

C. Non-Residential

1. Live/work units may follow either non-residential or residential site standards. Lot dimension standards are only applicable on newly subdivided lots. However, any new development will still be required to meet the applicable setbacks from existing lot lines.

Site Organization

1. Detached garages and secondary structures may orient in any direction.

2. There is no limit on secondary structure size, provided combined primary and secondary structures do not exceed lot coverage maximum.

3. Sites with combined residential parking should be accessed from an alley or accommodated through a shared parking lot access within the parcel.

4. Awnings may extend 3 ft. into the right-of-way, provided that encroachment is over sidewalk or landscape area and does

not interfere with access to utilities.

5. Driveways shall be no larger than 26 ft. in width.

6. If non-residential development is located adjacent to residential, a 6 ft. tall opaque fence with a 5 ft. landscape buffer is required. If a public alley separates non-residential and residential properties no screening fence or landscape bed is required.

7. A 5 ft. planting buffer to be comprised of no less than 6 formal plantings per 18 ft. is required between parking lots and public R.O.W.

Yards

1. Front and side street yards are not to exceed 80% of coverage by paved surfaces.

Access

1. Shared driveways between two lots are permitted.

2. Cross access is required for rear parking lots, unless an alley is present and provides access.

Parking

1. Parking should be located to the side or rear of the primary building.

2. Off-street parking spaces shall be at least 9 ft.x18 ft..

3. Parking lots (grouped parking of greater than 6 parking spaces) shall be screened by a 6 ft. tall opaque fence when directly adjacent to a lot containing single-family detached, duplex, or cottage court housing units.

4. Parking islands are required where applicable, fewer than 10 parking spaces do not require parking islands. Parking spaces with more than 10 spaces will need a landscaped parking island.

5. Parking lots that combine commercial and residential parking should be accessed from an alley or accommodated through a shared parking lot within the parcel.

Landscaping

1. For both residential and non-residential development there shall be 9 formal plantings per 40 ft. of street frontage, of which no less than 3 different plant species are required. For smaller lots with 5 or less required formal plantings, 2 different plant species are required. Where shrub calculations end in a fraction, round up to the next whole number. For non-residential development built to the property line formal planting requirement are eliminated for that portion of the site.

2. Required formal plantings shall be placed between the front building wall or side building and R.O.W. Plants shall be place in the respective yard or side yard where street frontage initiates planting requirements. Plants placed in R.O.W are not to be counted.

Non-Conforming Lot Diagram

Section 4: Applied Lot Development Standards

The following are diagrams that expand upon the previous section’s lot development standards with graphic representation and additional direction.

Garage Door/ Front

A Primary Structure:

The main building that is associated with the primary use of the property.

B Setbacks:

The building setbacks are used to define the buildable area. The habitable portion of any structure is not allowed to be placed in building setbacks. Roof eaves are allowed to encroach 2 ft. into the setbacks. Porte cochères are allow to encroach 4 ft. into side yard setbacks provided they are at least 6 ft. in distance from any neighboring structure, both on the lot in which they are constructed or those structures found an a neighboring property.

C Detached garages, carports

Detached garages shall be setback 10 ft. from front building wall. Attached garages shall not exceed 50% of front build wall. Not to exceed 600 sq. ft.

Detached and non-habitable structures can encroach up to 2 ft. into the side and rear setbacks. If one hour fire wall is provided, setback can be 0 ft. Building eaves shall not cross property lines.

D Porch Encroachment

A porch can encroach 5 ft. into front yard setback and 3 ft. into a side street setback, provided it remains open and an unconditioned space.

E Driveways

Only one driveway is permitted per lot.

For lots under 60 ft. in width, driveways shall be no wider than 10 ft. in width. Lots 60 ft. in width or larger, driveway can be up to 18 ft. in width.

Circle or horseshoe driveways are prohibited.

Parking

2 parking spaces shall be located behind front building wall. Parking spaces shall be measured 9 ft.x18 ft.. An additional .5 space is required for units with over 3 bedrooms, including the Accessory Dwelling Unit (ADU).

Example: A 4 bedroom would require 3 parking spaces behind the front building wall. A 3 bedroom house with an Accessory Dwelling Unit (ADU) would require 3 parking spaces behind the front build wall. Whereas a 3 bedroom house with no Accessory Dwelling Unit (ADU) would require 2 parking spaces behind front wall.

Detached Single-Family Lot Layout: Alley Access

A Primary Structure:

The main building that is associated with the primary use of the property.

B Setbacks:

The building setbacks are used to define the buildable area. The habitable portion of any structure is not allowed to be placed in building setbacks. Eaves are allowed to encroach 2 ft. into side and rear setbacks and an additional 1 ft. past the front porch 5 ft. encroachment.

C Detached garage, carports

Detached and non-habitable structures can encroach up to 2 ft. into a side and rear setbacks.

D Porch Encroachment

A porch can encroach 5 ft. into front yard setback and 3 ft. into a side street setback, provided it remains open and an unconditioned space.

E Driveways

Lots under 50 ft. in width are only allowed with alley access to back of lot.

Driveways with a lot width 51 ft. or larger may run the length of the property. For 50 ft. to 60 ft. width lots, side driveways shall be no wider than 10 ft. in width. For lots 60 ft. in width or larger driveways can be up to 18 ft. in width.

Circle or horseshoe driveways are prohibited.

Parking

2 parking spaces shall be located behind front building wall. Parking spaces shall be measured 9 ft.x18 ft. An additional .5 space is required for units with over 3 bedrooms, including the Accessory Dwelling Unit (ADU).

Example: A 4 bedroom would require 3 parking spaces behind the front building wall. A 3 bedroom house with an Accessory Dwelling Unit (ADU) would require 3 parking spaces behind the front build wall. Whereas, a 3 bedroom house with no Accessory Dwelling Unit (ADU) would require 2 parking spaces behind front wall.

A Primary Structure:

The main building that is associated with the primary use of the property.

B Setbacks:

The building setbacks are used to define the buildable area. The habitable portion of any structure is not allowed to be placed in building setbacks. Roof eaves are allowed to encroach 2 ft. into the setbacks. Porte cochères are allow to encroach 4 ft. into side yard setbacks provided they are at least 6 ft. in distance from any neighboring structure, both on the lot in which they are constructed or those structures found an a neighboring property.

C Detached garages, carports

Detached garages shall be setback 10 ft. from front building wall. Attached garages shall not exceed 50% of front build wall. Not to exceed 600 sq. ft.

Detached and non-habitable structures can encroach up to 2 ft. into the side and rear setbacks. If one hour fire wall is provided, setback can be 0 ft. Building eaves shall not cross property lines.

D Porch Encroachment

A porch can encroach 5 ft. into front yard setback and 3 ft. into a side street setback, provided it remains open and an unconditioned space.

E Driveways

Only one driveway is permitted per lot.

For lots under 60 ft. in width, driveways shall be no wider than 10 ft. in width. Lots 60 ft. in width or larger, driveway can be up to 18 ft. in width.

Circle or horseshoe driveways are prohibited.

Parking

2 parking spaces shall be located behind front building wall. Parking spaces shall be measured 9 ft.x18 ft.. An additional .5 space is required for units with over 3 bedrooms, including the Accessory Dwelling Unit (ADU).

Example: A 4 bedroom would require 3 parking spaces behind the front building wall. A 3 bedroom house with an Accessory Dwelling Unit (ADU) would require 3 parking spaces behind the front build wall. Whereas a 3 bedroom house with no Accessory Dwelling Unit (ADU) would require 2 parking spaces behind front wall.

Front Door

Side facing alley accessed carriage house.

A Primary Structure:

The main building that is associated with the primary use of the property.

B Setbacks:

The building setbacks are used to define the buildable area. The habitable portion of any structure is not allowed to be placed in building setbacks. Eaves are allowed to encroach 2 ft. into side and rear setbacks and an additional 1 ft. past the front porch 5 ft. encroachment.

C Detached garage, carports

Detached and non-habitable structures can encroach up to 2 ft. into a side and rear setbacks.

D Porch Encroachment

A porch can encroach 5 ft. into front yard setback and 3 ft. into a side street setback, provided it remains open and an unconditioned space.

E Driveways

Lots under 50 ft. in width are only allowed with alley access to back of lot.

Driveways with a lot width 51 ft. or larger may run the length of the property. For 50 ft. to 60 ft. width lots, side driveways shall be no wider than 10 ft. in width. For lots 60 ft. in width or larger driveways can be up to 18 ft. in width.

Circle or horseshoe driveways are prohibited.

Parking

2 parking spaces shall be located behind front building wall. Parking spaces shall be measured 9 ft.x18 ft. An additional .5 space is required for units with over 3 bedrooms, including the Accessory Dwelling Unit (ADU).

Example: A 4 bedroom would require 3 parking spaces behind the front building wall. A 3 bedroom house with an Accessory Dwelling Unit (ADU) would require 3 parking spaces behind the front build wall. Whereas, a 3 bedroom house with no Accessory Dwelling Unit (ADU) would require 2 parking spaces behind front wall.

Unit 1 Unit 2

A Primary Structure:

The main building that is associated with the primary use of the property. For a duplex it shall contain 2 attached living units.

B Setbacks:

The building setbacks are used to define the buildable area. The habitable portion of any structure is not allowed to be placed in building setbacks. Roof eaves are allowed to encroach 2 ft. into the setbacks.

C Detached garage, carports

Detached garages shall be 10 ft. behind the front building wall. Attached garages shall not exceed 50% of the front build wall. A carport may be used to provide cover for parking, provided the combined footprints of the accessory buildings does not exceed 1,300 sq. ft. In all other district 400 sq. ft. of garage is allowed per unit.

D Porch Encroachment

A porch can encroach 5 ft. into the front yard setback and 3 ft. into a side street setback, provided it remains open and an unconditioned space.

E Driveways

Only one driveway is permitted per lot.

In NC1 Duplex lots without an alley are not permitted on lots under 60 ft. in width. Lots 60 ft. in width or larger may accommodate driveway up to 18 ft. in width.

Circle or horseshoe driveways are prohibited.

Parking

2 parking spaces shall be located behind the front building wall. Parking spaces shall be measured 9 ft.x18 ft.. In NC1 an additional .5 space is required for each bedroom over 3.

In NC2, on-street parking may account for 1 required parking spaces from the increase in additional bedrooms.

In NC3, only two parking spaces behind the front building wall are required.

Duplex Lot Layout: Alley Access

A Primary Structure:

The main building that is associated with the primary use of the property. For a duplex it shall contain 2 attached living units.

B Setbacks:

The building setbacks are used to define the buildable area. The habitable portion of any structure is not allowed to be placed in building setbacks. Roof eaves are allowed to encroach 2 ft. into the setbacks.

C Detached garage, carports

Detached and non-habitable structures can encroach up to 2 ft. into side and rear setbacks. If one hour fire wall is provided, the setback can be 0 ft. Building eaves shall not cross property line.

D Porch Encroachment

A porch can encroach 5 ft. into the front yard setback and 3 ft. into a side street setback, provided it remains open and an unconditioned space.

E Driveways

In NC1 lots under 50 ft. in width are only allowed when alley access from back of lot is present.

Driveways for lots 50 ft. in width or larger may run the length of the property on the side. For 50 ft. to 60 ft. width lots, driveways shall be no wider than 10 ft. in width. Lots 60 ft. in width or larger may accommodate driveway up to 18 ft. in width.

Parking

2 parking spaces shall be located behind the front building wall. Parking spaces shall measured 9 ft.x18 ft..

In NC1, an additional .5 space is required for each bedroom over 3.

In NC2, on-street parking may account for 1 required parking space from the increase in additional bedrooms.

In NC3, only two parking spaces behind the front building wall are required.

A Primary Structure:

The main building that is associated with the primary use of the property. Cottage structure size is limited to units between 600 sq. ft. and 1,300 sq. ft.

Cottages placed closer than 10 ft. apart are required to meet more stringent building code for increased fire ratings.

Cottage developments are not to exceed 1 unit per 3,630 sq. ft of lot in NC1 and 1 unit per 3,110 sq. ft. of lot in NC2 and NC3.

B Setbacks:

The building setbacks are used to define the buildable area. While cottage units are smaller, no habitable portion of any structure is allowed to occur in building setbacks. Roof eaves are allowed to encroach 2 ft. into the setbacks.

Detached garage, carports

Attached garages are not permitted.

A carport may be used to provide cover for parking, provided the combined footprints of the accessory buildings do not exceed 1,300 sq. ft. In all other districts, 460 sq. ft. of garage is allowed per unit.

Detached and non-habitable structures can encroach up to 2 ft. into side and rear setbacks.

C Porch Encroachment

A porch can encroach 5 ft. into the front yard setback and a side street setback, provided the porch remains open and an unconditioned space.

D Driveways

Only one driveway is permitted per lot. A continuous driveway to the alley is allowed in all districts. Driveways should be spaced no closer than 50 ft. to intersection of public streets on a corner lot. Lots with alley access may have direct access from the alley with no spacing requirements for driveways from public streets.

Circle or horseshoe driveways are prohibited.

Parking

2 parking spaces shall be required per cottage unit and there shall be no parking in the front or side street setback. 1 of the 2 parking spaces can be accounted for through on-street parking provided there is available on-street parking directly adjacent to the property to account for the parking space(s).

A Primary Structure:

The main building that is associated with the primary use of the property.

B Setbacks:

The building setbacks are used to define the buildable area. The habitable portion of any structure is not allowed to be placed in the building setbacks.

C Detached garage, carports

Detached and non-habitable secondary structures can encroach up to 2 ft. in side and rear setbacks. If one hour fire wall is provided, the setback can be 0 ft. Detached garages and carports facing or gaining access from a alley shall be setback at least 8’ from the rear property line. Building eaves shall not cross the property line.

D Porch Encroachment

A porch can encroach 5 ft. into the front yard setback and a side street setback, provided it remains open and an unconditioned space.

E Driveways

Driveways are allowed to be up to the full width of the lot when accessed from the alley.

Front yard driveways are prohibited on lots less than 34 ft. in width. See Townhouse Lotting Diagram in Section 6: Design Alternatives for more details.

Parking

2 parking spaces shall be located behind front building wall. Parking spaces shall be measured 9 ft.x18 ft.

A Primary Structure:

The main building that is associated with the primary use of the property.

B Setbacks:

The building setbacks are used to define the buildable area. The habitable portion of any structure is not allowed to be placed in building setbacks. Roof eaves are allowed to encroach 2 ft. into the setbacks.

Detached garages, carports

In every district, a garage up to 460 sq. ft. per unit is allowed as long as other site development standards can be met.

C Porch Encroachment

A porch can encroach 5 ft. into the front yard setback and a side street setback, provided the porch remains open and an unconditioned space.

D Driveways

Driveways are allowed to be up to the full width of the lot when accessed from the alley.

Parking

For townhouses and multiplexes with 2 or more bedrooms, only 2 parking spaces behind the front building wall are required per unit. A multiplex 1 bedroom unit will require 1 parking space behind the front building wall, provided an on-street parking space is directly adjacent to the lot to account for a second space.

A Primary Structure:

The main building that is associated with the primary use of the property.

B Setbacks:

The building setbacks are used to define the buildable area. The habitable portion of any structure is not allowed to be placed in the building setbacks.

Detached garages, carports

460 sq. ft. of garage is allowed per unit.

C Porch Encroachment

Porches may extend 5 ft. into the front setback or side street setback, so long as the space remains open and unconditioned.

D Driveways

Front access driveways on lots less than 60 ft. in width shall not exceed 12 ft. in width. On lots 60 ft. or larger, the driveway width shall be no larger than 26 ft.. This requirement is not applicable to alley access driveways.

Parking

In multi-family, a 1 bedroom unit will require 1 parking space behind the front building wall; for units with 2 or more bedrooms, 2 parking spaces will be required for each unit. For multi-family housing units, 15% of parking may be on-street provided each housing unit has at least one dedicated off-street parking space and there are spaces directly adjacent to accommodate those vehicles. Visitor parking spaces can be accommodated by on street parking.

Landscape Buffer

A 5 ft. planting buffer to be comprised of no less than 6 formal plantings per 18 ft. is required between parking lots and public R.O.W.

Parking lots (grouped parking of greater than 6 parking spaces) shall be screened by a 6 ft. tall opaque screen when directly adjacent to a lot containing single-family detached, duplex, or cottage residential housing units.

This page was intentionally left blank.

Section 5: Additional Design Considerations

The following are additional site design elements to be considered when conducting the site design.

Alley Access

Rear Driveway Parking

Rear driveway parking, if desired, shall be accommodated by a 9 ft.x18 ft. parking space outside of the alley right-of-way. If a 9 ft.x18 ft. space is not available between the alley and a garage structure, parking is not to be allowed. An 8’x18 ft. parallel parking space adjacent to the alley in front of a garage facing the alley is allowed, provided the garage is setback at least 8’ from the alley abutting property line.

Shared Driveway

A Sideyard Setback:

The side interior lot setback shall be a minimum of 5 ft. when not part of a continuous row of townhouses. This 5 ft. minimum side yard interior lot setback is still applicable when the adjoining lot is another row of townhouse structures.

Shared Driveway

Shared private driveways are necessary to enable groups of townhouse of larger than two units. A cross or shared access agreement will be necessary to accommodate this configuration. For lots with shared access establishing a rear drive consider fire lane regulations, if applicable. For neighborhood apartment, multiplex, and courtyard house lot developments that are 120 ft. in width or greater, a continuous loop driveway that provides access to rear yard parking is allowed.

A Front Drive:

Front drives require a lot that is at least 34 ft. in width allowing for access to the rear of the property to accommodate 2 parking spaces behind the front build wall.

Ribbon Driveway Alternative

Ribbon Driveway: A ribbon driveway can be used as an alternative to a fully paved driveway section. Most applicable for single-family, duplex, cottage lot, townhouse, and multiplex site development. The ribbon driveway may be constructed out of concrete, vehicular rated pavers, or other materials approved for vehicular traffic. Area between ribbons may be gravel, decorative rock, grass, or other landscape material suitable for these conditions.

A The ribbons are located only on the driveway. The ribbons are at least 2 ft. wide, but not more than 3 ft. feet wide; and the median between ribbons are 3 ft. feet apart, measured from their nearest edges.

B Driveway apron is paved with concrete across its entire width. Driveway aprons shall follow City of Temple requirements, driveway width shall not impact apron width requirements.

Drainage Plan

For new construction, a drainage plan is required as part of the permit. Drainage plans should show that pre-development surface water patterns are not being changed or altered to direct off-site surface water travel in a different direction.

Predevelopment:

Surface water travel from back to front of lot

Post development:

Construction and grading maintain existing surface water travel from back to front of lot

Height Looming

In order to preserve the privacy of single-family residential homes, a 2:1 height looming slope for any new construction above a single story will be implemented. During setback calculations, for every 2 feet in a height past one story, the side setback shall be increased by 1 foot. This includes the rear and side setback in both residential and non-residential development’s, with the exception for the rear setback in cases where an alley is present.

Residential Uses:

In the instance where a singlefamily home will be abutting a two-story single-family attached or Accessory Dwelling Unit (ADU) infill project, the 2:1 height looming slope will be implemented for the rear and side setback. In the case where the lot abuts an alley, the rear setback will remain the standard of the district.

A 2:1 Height Looming Slope

B Landscaping Buffer

C Property Line

D Single-Story

E Two-Story ADU

Non-Residential Uses:

In the instance where a singlefamily home will be abutting a two story commercial infill project, the 2:1 height looming slope will be implemented. The parking should be used as an additional buffer where possible.

A 2:1 Height Looming Slope

B Landscaping Buffer

C Property Line

D Single-Story Residential

E Non-Residential Use

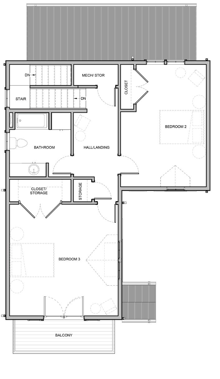
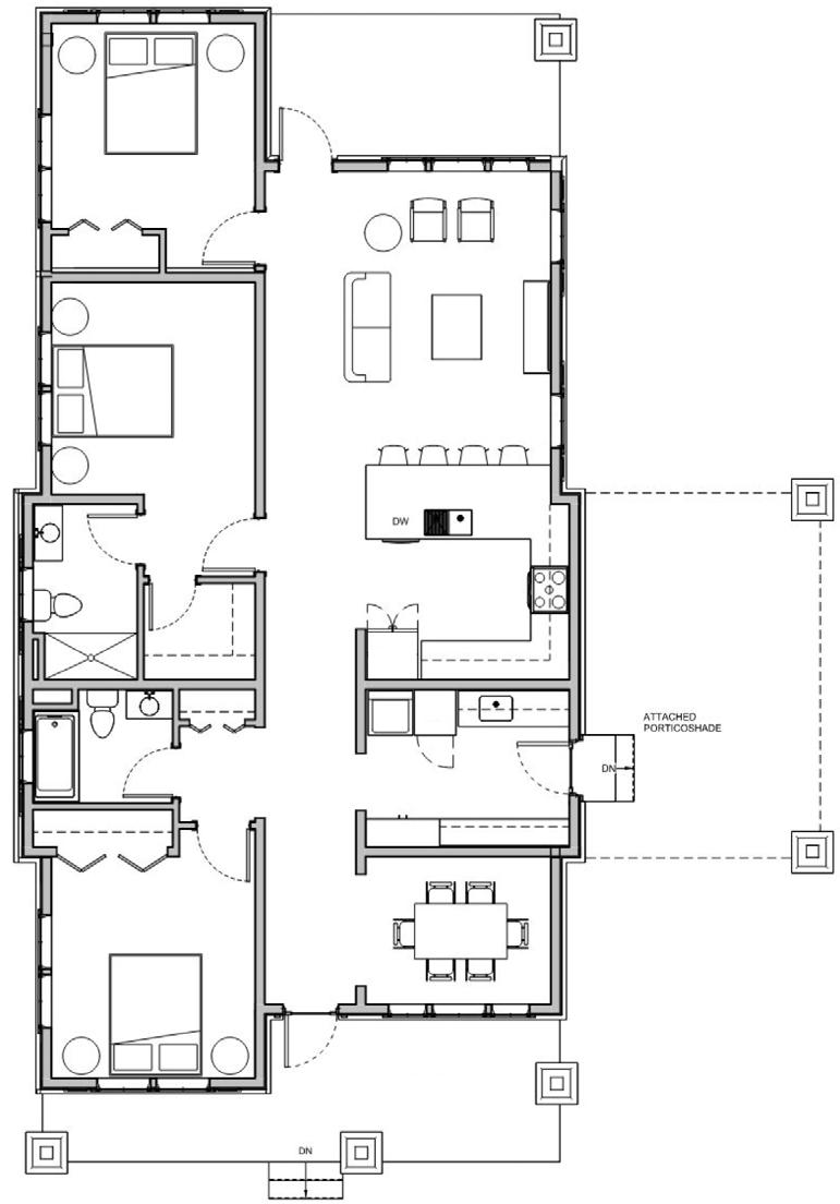
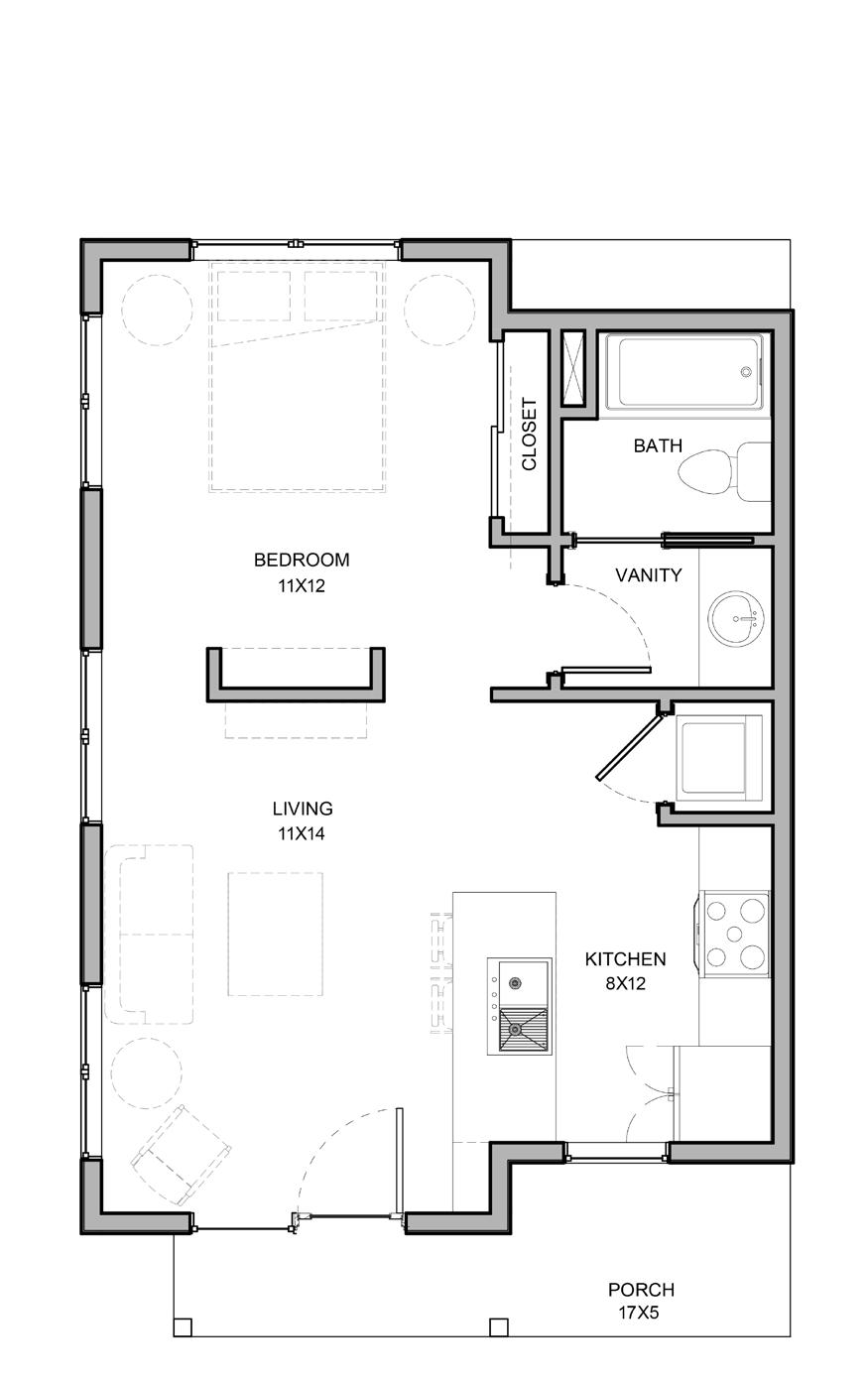
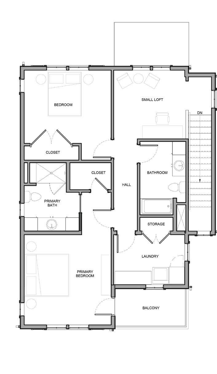
Section 6: City Approved Plan Sets

The following are a series of housing plans that the City of Temple has commissioned. They are preapproved to comply with Temple’s Love Where You Build program.

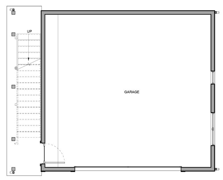
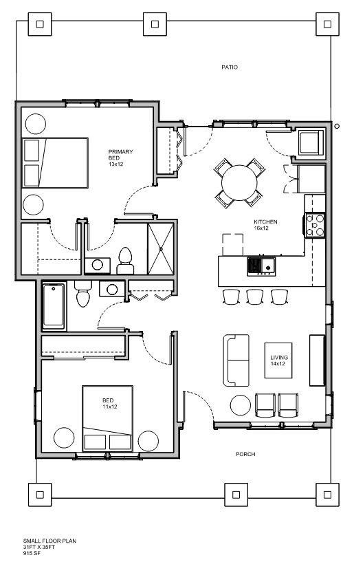
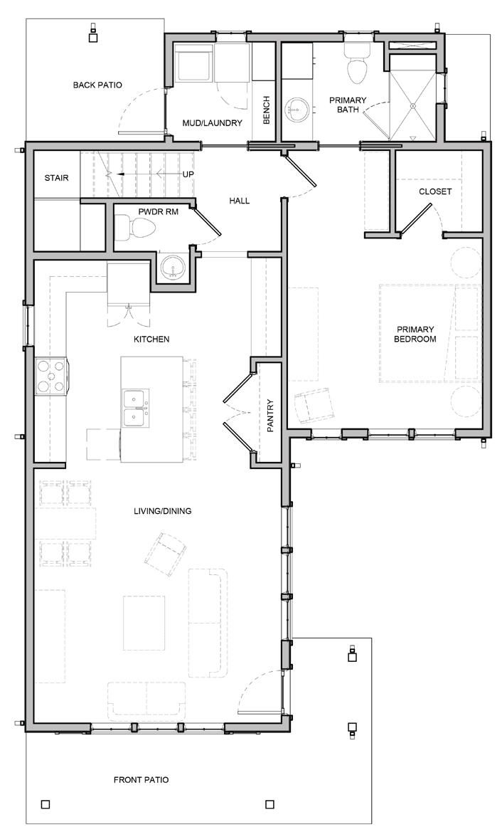
The Esperanza is a single-story, twobedroom home that offers a traditional layout with a separate dining room off the main entrance. Large patios flank the front and back of the home along with an open kitchen and living space that promotes seamless connection and circulation. This layout provides a side entry through a generous mud room/laundry space designed to the side driveway. This floor plan is also available with an optional portecochere, third-bedroom, and detached garage unit, and has two exterior design styles to choose from.

Housing Type:

Detached-Single Family

Overlay District Allowed:

NC 1 NC 2 NC 3

Overview

Option 2: Includes Porte-cochère

Option 3: Includes 3rd Bedroom

Design Name:

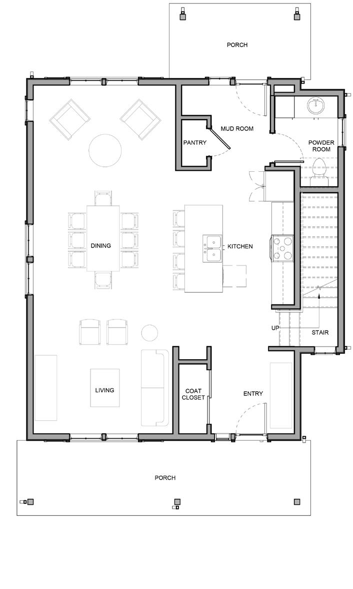
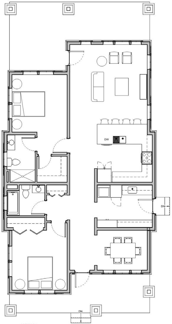
The Verbena is a single-story, two-bedroom open concept home complete with a spacious kitchen island, open living and dining spaces, and a generous laundry room. A porch in the front and large patio in the back of the home to promote outdoor living and entertainment. This floor plan is also available with an optional portecochere with side entry, third-bedroom, and detached garage unit, and has two exterior design styles to choose from.

Housing Type:

Detached-Single Family

Overlay District Allowed:

NC 1 NC 2 NC 3

Building Overview

2

Bathrooms 2 Garage Detached Additional Options

Option 2: Includes Porte-cochère

Option 3: Includes 3rd Bedroom

Farmhouse Style Floorplan

The Wisteria is a two-story, three-bedroom single-family home in a neutral style with generous outdoor areas, featuring a front porch with an overhead balcony. This layout offers an open living, dining, and kitchen area with a spacious primary bedroom on the first floor. Two additional bedrooms are located on the second floor. This unit was designed to fit on lots that are narrow in width.

Housing Type:

Detached Single-Family

Overlay District Allowed:

Building Overview

The Rosemary is a contemporary twostory, two-bedroom single family home in a spacious footprint. The first floor provides an open, well-lit kitchen, dining, and living area looking out to a large front porch. The second floor contains two bedrooms, including the primary bedroom with a front balcony, open office/loft area, and a full-size laundry room.

Housing Type:

Detached Single-Family

Overlay District Allowed:

The Bluebonnet is a stylish two-story, twobedroom house offering a unique, modern living experience with a small footprint. This home design incorporates large windows, open kitchen and living room layouts with double-height vaulted ceilings, and ample patio space to promote connection to the outdoors. The second story features an artist’s loft open to the floor below along with a second bedroom.

The Lantana is a single-story, two-bedroom floor plan utilizing a small, yet efficient layout that incorporates an open kitchen and living space into a compact footprint. A porch in the front and large patio in the back of the home promote outdoor living and entertainment. This floor plan is also available with a detached garage unit and has two exterior design styles to choose from.

Detached Single-family or Cottage

Overlay District Allowed:

The Yaupon is a stylish single-story, onebedroom cottage home offering a unique, modern living experience with a small-scale footprint. This home design incorporates large windows, open kitchen, and living room layouts with high vaulted ceilings and ample patio space to promote connection to the outdoors. Design Name: Yaupon

Housing Type:

Cottage

Overlay District Allowed:

porch) 750 SF

Room Type Key

Cottage Plan

The Crossvine is a two-bedroom, side-byside duplex designed to feel like a singlefamily detached home. Each unit maintains separate facing entries, staggered patios, and individual exterior features to promote distinct living spaces. The open kitchen and living areas along with a connected semiprivate dining room enhances the sense of living in a standalone home.

Housing Type:

Duplex (Side by Side)

Overlay District Allowed:

FLOOR PLANS

Roof

Floor Plan

Side-by-Side Duplex

Modern Style, Wood and Stucco

The Juniper is a unique, stacked duplex designed to feel flexible and modern. Each unit maintains open kitchen, dining, and living spaces along with spacious front and back patios. The second-floor unit incorporates a separate side entry to promote privacy. Each unit contains three bedrooms, two bathrooms, and a primary bedroom with walk-in closet with laundry room.

Housing Type:

Modern Style, Lap Siding and Stone Veneer

Stacked Duplex

Second Floor Plan

The Sweetwood is a two-story townhouse offering a refined living experience with a small-scale footprint. This living space provides an open, spacious ground floor plan with large windows looking out to a generous front porch. The second story includes a balcony off the primary bedroom towards the front and two bedrooms in the rear. This floor plan includes a rear patio with storage that may be replaced with a garage option.

Sweetwood,

Corner Layout Additional Features

– Wrap around corner porch

– Additional side facing windows

Design Name: Laurel

The Laurel is a two-story townhouse offering a refined living experience with a smallscale footprint. This living space provides an open ground floor plan with large windows looking out towards a spacious front porch. The second story offers two bedrooms with multiple configuration options including two loft types and an open double-height space. This floor plan includes a rear patio with storage that may be replaced with a garage option.

Housing Type: Townhouse

Overlay District Allowed:

*Option 2 does not have second floor balcony

First Floor Plan

Building Overview

Second Floor Plan

Option 1: Front Loft

Large front loft with bedrooms in rear

Option 2: Double-Height Living

Double-height living space open to floor below

*Option 2 does not have balcony

Option 3: Rear Loft

Larger primary bedroom in front with rear loft

First Floor Plan Laurel, Continued

Corner Layout Additional Features

Wrap around corner patio

Additional side facing windows

Second Floor Plan

Option 1: Front Loft

Large front loft with bedrooms in rear

Option 2:

Double-Height Living

Double-height living space open to floor below

*Option 2 does not have balcony

Option 3: Rear Loft

Larger primary bedroom in front with rear loft

Design Name: Townhouse Garages

Attached 1 Car Garage and Detached 2 Car Garage

The 1 and 2 car garage layouts are available as additional options replacing the townhome rear patio and storage.

The One Car Garage is a single car garage unit with direct access to a mud room and a side entry door.

The Detached Two Car Garage includes a covered breezeway connecting to the rear entrance with a privacy screen attached.

Patio + Storage
Attached 1 Car Garage
Detached 2 Car Garage

Design Name:

Crepe Myrtle

The Crepe Myrtle Multiplex consists of four total units in either a two-bedroom or onebedroom offering each with a half bath tucked under the stairs and a full bathroom upstairs. The units are equal widths and offers recessed or covered front and rear entry. Laundry rooms are located on the second floor for close proximity to bedrooms.

The one-bedroom layout includes an open concept first floor design, covered back patio, an integrated exterior storage space, and an open loft on the second floor.

The two-bedroom layout offers a centrally located kitchen separating living and dining spaces on the first floor, with bedrooms on either end at the second floor, including a rear-facing balcony.

Housing Type: Multiplex

Overlay District Allowed:

None

The Live Oak Mutiplex consists of four total units with one, two, or three bedrooms. Each unit has its own covered front porch and rear patio. To complement the bedrooms, the laundry room was placed on the second story.

The one-bedroom corner layout features an open-concept first floor, a mudroom with an adjacent half bath, and a second floor full bath with a double vanity.

The two-bedroom units include private dining/ office off the recessed entry, a spacious living room opening to the kitchen, and secondstory bedrooms with en-suite bathrooms.

Housing Type: Multiplex

Overlay District Allowed:

The three-bedroom corner unit includes a generous recessed entry area, central kitchen separating dining and living spaces, second floor open loft, primary bedroom with en-suite bathroom, and a double vanity full bathroom. First Floor Plan Second Floor Plan

The Hawthorn is a one bedroom accessory dwelling unit offering a spacious, modern living experience in a compact footprint. A front stoop at the entrance opens up to a continuous living and kitchen area, surrounded by windows providing abundant natural light and openness. In the rear of the unit, the open bedroom is concealed behind a privacy wall.

Housing Type:

Accessory Dwelling Unit (ADU)

Overlay District Allowed:

Craftsman Style

The Palmetto is a carriage house with internal stair access to a two-bedroom living space above the garage. This layout features an open kitchen and living room area leading to a second story balcony, along with a spacious primary bedroom with walk-in closet and second bedroom.

Housing Type:

Carriage House

Overlay District Allowed:

Design Name:

The Abelia is a carriage house with an open living space above the garage/storage area. The unit is accessed by a covered exterior staircase. The kitchen and living room share an open plan layout on the second floor, with a large primary bedroom and walk-in closet. This floor plan includes an option for a covered carport for a third car that can double as a large balcony.

Housing Type:

Carriage House

Overlay District Allowed:

Building Overview

Abelia

The One Car Garage is a detached single car garage unit available in two exterior design styles. It features a rear entry along with side exterior windows.

Accessory Structure Type:

Farmhouse Style

The Primrose is a single story, threebedroom single family home with an open concept living and kitchen area containing a fireplace feature. A recessed, arched front patio entry leads into the home, with living areas in the front, and bedrooms grouped in the rear for privacy. This design provides an en-suite bedroom with a walk-in closet in the primary bedroom, a large covered back patio, and spacious mudroom and laundry room pass through.

Housing Type:

Single Family Detached

Overlay District Allowed:

NC 1 NC 2 NC 3

The Primrose is a single story, two-bedroom single family home with an open concept living and kitchen area featuring a central fireplace. Two bedrooms flank either side for privacy, with an en-suite double vanity bathroom and large walk-in closet for the primary bedroom. The front entry includes a covered patio leading to integrated bench seating/storage with attached laundry room, while the rear entry opens to a spacious covered patio.

Housing Type:

Single Family Detached

Overlay District Allowed:

Building Overview Dimensions

Bedrooms 2

Bathrooms 2

Garage Attached

Additional Options

None

The Marigold is a single story, threebedroom single family home with an open concept living and kitchen area with a fireplace feature. A recessed, arched front patio entry leads into the home, with secondary bedrooms in the front, and primary bedroom suite in the rear for privacy. This design provides a powder bathroom for guests, an en-suite bedroom with walk-in closet in the primary bedroom, a large covered back patio, and laundry room pass through.

Housing Type:

Single Family Detached

Overlay District Allowed:

NC 1 NC 2 NC 3

Building Overview

Bedrooms 3

Bathrooms 2

Garage Attached

Additional Options

None

The Sugarberry Live/Work Multiplex consists of four total units, with commercial shell units on the ground floor with two bedroom units above.

The ground floor commercial units provide tenant finish out flexibility with exposed studs and slab leave out. The exterior facade at the ground level provides a mainstreet feel with shop fronts and awning above.

The two-bedroom units feature open living/ kitchen areas facing the front and two bedrooms at the rear, including a primary bedroom with en-suite bathroom and walk-in closet and laundry room. Access is provided from the ground level, with a separate residential vestibule located off the commercial entrance.

Housing Type: Multiplex

Overlay District Allowed:

1 NC 2 NC 3

Building Overview

First Floor Plan

Height 1 story 1 story

Width 24 ft. 24 ft.

Depth 60 ft. 60 ft.

Unit Area 1215 sq. ft. 1281 sq. ft.

Elements

Bedrooms - 2

Bathrooms - 2

Garage None

Additional Options

None

Second Floor Plan

Turn static files into dynamic content formats.

Create a flipbook
Issuu converts static files into: digital portfolios, online yearbooks, online catalogs, digital photo albums and more. Sign up and create your flipbook.