PINZHEN LI
Architecture Portfolio
Selected Works 2018-2025

University of California at Berkeley, College of Environmental Design Master of Architecture (M.ARCH 3-year) 2020 Candidate
![]()
Architecture Portfolio
Selected Works 2018-2025

University of California at Berkeley, College of Environmental Design Master of Architecture (M.ARCH 3-year) 2020 Candidate
pinzhenli@berkeley.edu +1 5103250596
333 Harrison St, Apt 337, San Francisco, CA 94105
EDUCATION
08/2020 - 05/2024
09/2015 - 06/2019
WORK EXPERIENCE
06/2022 - present
09/2022 - 03/2023
06/2021 - 08/2021
01/2020 - 06/2020
ACADEMIC HONORS
06/2024
UC Berkeley, College of Environmental Design
Master of Architecture
Jinan University, Guangzhou, College of Economics
Bachelor of Economics
04/2024
03/2022
SKILL
Anderson Anderson Architecture, San Francisco
Junior Designer
Atelier Deshaus, Shanghai
Intern Designer
Atelier Xuk, Shanghai
Intern Designer
ROBOTICPLUS.AI, Shanghai
Digital Engineering Designer
PROFESSIONAL WORK
Mass timber single family house on a hilly site
poetic blend of
ACADEMIC WORK WENZHOU MUSEUM
SISTER NO SISTER FOX ISLAND RESIDENCE
and landscape
Awarded by UC Berkeley, College of Environmental Design, selected by thesis faculty to receive the Chester Miller Fellowship in recognition of outstanding work.
Chester Miller Fellowship Ray Watson Prize
Awarded by UC Berkeley, College of Environmental Design, nominated by Architecture faculty as one of the recipients of the 2024 Raymond Watson Prize.
Sooky Lee Prize for Housing & Social Architecture
Awarded by UC Berkeley, College of Environmental Design, nominated by architecture faculty as one of four recipients of the 2022 Sooky Lee Prize for Housing & Social Architecture.
Revit, AutoCAD, Rhinoceros, Grasshopper, SketchUp, Maya Modeling
Rendering
Graphic Design Vray, Enscape, D5
PhotoShop, Illustrator, InDesign, Premiere
Between body skin and queer spatial surface
MIRAGE IN THE MIRROR
FISHING HOUSE MASS OF GLOW
Murder the freedom of the press Experiment of rural locality Lighting as spatial division
Form weaving and material experiment
Reciprocity of the San Giovanni

MASS TIMBER SINGLE FAMILY HOUSE ON A HILLY SITE
2024 Anderson Anderson Architecture
Project Team: Mark Anderson, Peter Anderson, Yafei Li, Ziang Ao, Pinzhen
My work: schematic design, design development including construction drawings for permit applications
This unique single family house sits on a hilly site on Fox Island, Washington. The design features a highly adaptive mass timber post-and-beam structure paired with NLT enclosure panels, creating a warm, inviting atmosphere. The L-shaped layout is carefully crafted to harmonize with the towering fir trees on site. One arm of the L houses the living and dining areas, along with a cantilevered covered deck that offers breathtaking views of the Puget Sound bay.
A south-facing clerestory extends from the post-and-beam system, welcoming abundant natural light into the home. On the other arm of the L, two engawa-style decks nestle among the trees, offering an immersive experience for both the homeowners and their guests.

The form of the breakfast nook echoing the natural geometry of the building. Clerestory windows flood the space with soft, diffused light, enhancing the connection to the outdoors. This space is designed for quiet contemplation, with every element—from furniture to lighting—aligned with the surrounding environment.

In the kitchen, a sculptural island with a curved edge indicates the organic circulation in this great room, contrasting to the rhythm of the post-and-beam system. The floor-to-ceiling windows frame views of the rolling meadow. The design prioritizes functionality while maintaining a strong visual link to the exterior, where sunlight filters through the trees.

The corridor features exposed post-and-beam construction, with NLT panels lining the walls to create a warm, natural aesthetic. Sliding doors connect the engawa-style deck to exterior, further blurring the line between indoors and outdoors.

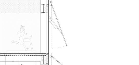
1/2"
6" RIGID INSULATION TAPERED W/ MIN 1/4" PER FOOT SLOPE TO DRAIN, SEE PLAN FOR DETAILS VAPORSHIELD SLOPESHIELD PLUS SA OR APPROVED SIMILAR, MEMBRANE APPLIED IMMEDIATELY
(OPTION 1) 1/2" PLYWOOD SHEATHING + 2X4 NLT WITH VISUAL GRADE SIDE FACING INTERIOR (SHOWN HERE) (SEE STRUCTURAL FOR DETAILS) (OPTION 2) PLYWOOD SHEATHING + TJI
The 1/8" scale model features three separable sections – the ICF foundation, mass timber post-and-beam framework, and clerestory roof – delivering tangible representations of material systems. Complementing this, a 1/32" scale model demonstrates how the house nests on its site.


A POETIC BLEND OF ART AND LANDSCAPE
2022
Intern Project in Atelier Deshaus
Project Team: Longhai Wang, Yun Tang, Yuwei Chen, Pinzhen
My work: construction documents including plan drawings, detail development and detail drawings All renderings are collaborated with ATCHAIN
Wenzhou Art Museum is a landmark project designed to blend art with the city's natural landscape. Situated along the Ou River and facing the Yandang Mountain range, it serves as a cultural hub, connecting urban life with scenic beauty. The museum features a unique architectural design with a rooftop plaza, offering panoramic views and hosting public activities.
It includes flexible exhibition spaces, public service areas, and an open cultural zone. The project aims to create a harmonious environment that integrates art, nature, and urban living, becoming a symbol of Wenzhou's rich cultural heritage.
It is designed to be a "viewing and being viewed" frame, creating a poetic architectural image that symbolizes Wenzhou's cultural identity. The cantilevered form was developed for its natural and fluid integration with the environment. The form is structurally sound and aesthetically pleasing, creating a unique architectural identity for the site. It is designed to be a park-like environment, integrating natural elements and ecological considerations. The design includes green spaces, water features, and outdoor exhibition areas, creating a harmonious blend of art and nature.

The museum houses a range of exhibition spaces, from large halls to smaller galleries, designed to host diverse art forms. These spaces are flexible and adaptable, allowing for various exhibition layouts and configurations, ensuring a unique experience for each exhibit.

The design incorporates multiple public spaces, including a central hall, activity platforms, and outdoor areas. These spaces provide a rich and engaging environment for visitors, offering areas for relaxation, socializing, and cultural activities, enhancing the overall museum experience.


MEMORIAL SPACE FOR MEDIA FREEDOM
2019 Summer
Location: Istanbul
Instructors: Jianing Zhang, Xinyu Cao and Kun Zhang
Collaborator: Zhang Yicheng
My work: Concept research and design, concept model, all drawings in this work
Khashoggi is a Saudi-born journalist at the Washington Post, who opposes the country's current crown prince, insists on a free press and writes regularly about the state of affairs.
On October 2, 2018, Khashoggi entered the Saudi consulate in Istanbul and was immediately controlled and dismembered by Saudi agents while he was on conscious.
The disappearance of Khashoggi is not only the disappearance of a media reporter but also the reduction of the diversity of media information under the unequal power. From this, we aim to commemorate the disappearing journalist and his voice.
Consulate of the Kingdom of Saudi Arabia in istanbul, the Scene of the Murder of Khashoggi.

Typological Prototype
After reading about the typology of Rafael Moneo, we attempted to find shared features of the historical pyramid. Based on it, we established a new relationship to fit with the case of Khashoggi.
The Tomb of Pharaoh Seti I
The elements of the pyramid: tomb passages, tombs and pyramid itself are abstracted. The relationship between these three elements is internal nesting in the case.




Original Elements and OrganizationReorganization the Relationship Intensify the Relationship
The essential elements of the pyramid are tombs and tomb passages. However, the symbolic pyramid itself could also be regarded as one of the elements.
Visibility and Continuity
Considering its intensive strong intimation and ceremonial spatial form, the pyramid was transferred from a symbol to a central memorial space. Its relationship with tombs and passages was inversed.
Under the main organization rule, the tombs and passages intersected with the pyramid, forming the relationship between the monitor and the monitored.
Partial Visibility from SurroundingsPartial visibility between Layers Partial visibility from Inside
Inside a layered nest structure, the main body is partially visible through glass walls. Therefore, a memorial space was naturally hidden in the urban environment.
The continuity of the main body was split by layers. When roaming between layers, the space state between was squeezed.
At the bottom of the central space, the intersecting volumes are partially perceived but isolated still. Therefore the eye contact is not allowed.





After the reorganization, the relationship turns into hierarchical nesting outside the pyramid form, making it a symbolic space. After a the reorganization, the pyramid serves as a symbolic geometry, as well as a kind of spatial experience. Form Reorganization
The tombs and tomb passage throughout the pyramid and layers break the boundary and blur the visibility among them. Therefore, the transparency of the space has tree states: visible, invisible and in-between, serving the function of both tomb and library.


The biographic information of the dead is offered to the visitors. It is the beginning of the circulation.
The personal effects of him are displayed, reminding people that he used to exist as a living individual. The news reported by and about him is stored at the archive. The information was buried with him, so was the information freedom. The main tomb is isolated from the circulation. It is a hidden space.


The building’s interior juxtaposes transparency and secrecy. A biographic timeline in a glass gallery introduces Khashoggi’s life, while personal artifacts in a dim chamber humanize him. The archive, a labyrinth of screens, stores his censored work. Below, the isolated tomb—a raw, lightless crypt—symbolizes erased truth. Contrasting open spaces and hidden realms evoke the struggle between information and suppression, urging reflection on media freedom’s fragility.





" The architectural object can no longer be considered as a single, isolated event because it is bounded by the world that surrounds it as well as its history. "


Between body skin and queer spatial surface
2024 Spring UC Berkeley, CED Arch 204, Arch239, Theater 179
Instructors: Mark Anderson, Arnel Sancianco, C. Greig Crysler Individual Work
This work examines how the built environment and normalized spatial configurations constrain the human body, critiquing the patriarchal rigidity embedded in spatial design. It proposes integrating anatomical and psychological dimensions of the body into spatial discourse, challenging the erasure of bodily subjectivity in architectural norms.
Through performance, the project confronts societal normalization of bodies, particularly in debates over reproductive rights and gender roles. By employing bodily metaphors and dramatizing body politics, the performance functions as both reflection and experimentation, urging a reevaluation of how bodies are positioned within societal and spatial hierarchies.
The work contrasts China’s transition from the one-child to three-child policy, which perpetuates stereotypical female roles, with the fragmented U.S. abortion policies— some ostensibly liberating women’s reproductive autonomy while simultaneously regulating it. Both contexts illustrate how modern society reduces “people” to “population,” instrumentalizing individual sexuality and reproductive capacity.
Regardless of whether policies are framed as progressive or regressive, they uniformly restrict women to reproductive utility, reinforcing their role as societal tools. This instrumentalization underscores the interplay between spatial design, policy, and gendered power dynamics, revealing how bodies are both shaped by and resistant to systemic control.

You are my twin sister, when am you, I aspire to be born, Yet voices decree, To induce, to miscarry, I am denied to be born. Inhumane instruments intrude, Separating me from you, from mother, Mother pleads with voice low and keen, The nurse’s long eyelashes remain unmoved, Turning a blind eye to the murder, But my dear sister, Please forgive my grimness, Within you lies an eternal trait, To my relief, you were never born.
I am your mother, when you are me, yet you attempt to escape, How distant, how suspicious the light that impregnated you, When the judge declares you cannot reject childbirth, Across borders of Ohio you flee, Into the secret clinic hidden in the alley, I was once a part of you, now taken away, My dear mother, what you bear was not me, But the shackles of modernity.
My mother, my sister, Your eyes are like two wounds, Only when curl up in pain in your eyes, Can I see your ankles, your breasts, Your slightly swollen belly And the umbilical cord wrapped around your neck.
Named woman, in expectations we're confined, The orange-red light stares down upon us, Manipulated by invisible puppet strings, Mortal flesh is constantly replaced, Everything is disappearing, everything assimilating, Every mother born from a mother Will eventually perish from birth.

The work began with an inquiry into the rigidity and regularity of the living boundary, composed of all orthogonal, even surfaces. The existing built environment imposes upon my body the requirement to remain still, or to move straight, denying the body's mutable fluidity. Le Corbusier's perception of space as "a machine to live in" reduces the body to a modular component, constrained by rigid rules. The majority of architecture, shaped predominantly by male architects throughout history, perpetuates a godlike perspective. Therefore, the space we take for granted is the product of arbitrary patriarchy and binary gender. The primal impulses w ithin the body, desires for sexuality, and the ambiguous recognition of gender are not taken into consideration under the existing frameworks.



The performance starts from the internal and external body movement as a reconsideration of the relationship between body and social environment. The proposal is planned to probe into feminism and biopolitics. Given the political background of the Chinese one-child policy in the 1980s and the United States’ Roe V. Wade since 1973, the work focuses on the imposed and prohibited abortions, which relates to the abnormal body movement under spatial, architectural, and urban scales. With installations and drawings as the stage background, it aims to broach the reciprocity between body and social environment.





My living body emancipates the primitive natural urges of infancy and desires an intimate interlace with every corner and boundary of space. Space is expected to be a living creature, wherein the body and space nestle together, skin to skin, flesh to bone. The body is integrated into the fabric of space, and space manifests as the skin of the body.
The proposal to challenge normalized spatial forms begins with visualizing the trajectory and anatomy of the body, addressing the boundary between body and space through plan and section projections. Errant body movements and shifting relationships between body parts represent flexible forms appropriated by space. Space ceases to be merely space; it becomes the pelvis and the uterus containing the body. terior boundaries is conveyed to the posterior, forming a tooth-like facade.
A survey of my own body figure is conducted to reconstruct rigid space. Inhabitation within a canvas is mapped, and movement is metaphorized as a measurable motion of the machine. Each limb is influenced by internal and external tropisms. Visualized tension may serve as evidence of the bodily border between myself and the exterior.
The proposal serves as a reflection and experimentation, combining bodily metaphors and challenging inherent spatial forms. It prompts a reevaluation of the spatial role as the container of the body. The theory externalizes the internal characteristics, such as anatomy and psychology of the body, and incorporates them into considerations of space and form.
Normalization extends beyond spatial forms; it exists deeply within the social environment. Under intangible social factors, our bodies are normalized. Paul Preciado argues that we exist within a society regulated by binary norms and standards. We endure pressures from psychiatry, confinement by modern systems, resistance against laws, history, traditional family ideals, and the power of multinational pharmaceutical companies.



In Testo Junkie, these controls originating from modern society are further explained, representing societal, political, and economic control over life and body, corresponding to Michel Foucault's concepts of biopolitics and body politics. Our organs are defined, behaviors governed, and cognition paralyzed.
In response to normalized regulations, a performance is proposed. It begins with internal and external body movements as a reconsideration of the relationship between the body and the social environment. It aims to probe into biopolitics and body politics. Given the political background of China's one-child policy in the 1980s and the United States’ Roe v. Wade since 1973, the work focuses on imposed and prohibited abortions, which relate to abnormal body movements under spatial, architectural, and urban scales. Through installations and drawings as stage backgrounds, it aims to critique the standardized female characters of the two countries.
With inherent biological differences and established gender roles, individuals with uteruses are defined as female, expected by society to contribute to fertility. Personal sexual and reproductive rights are stripped away and attributed to society. Sexual organs serve populations, society, religion, and the economy. Modern society transforms "people" into "population," necessitating control over sexuality because sexual activity is a productivity mechanism. The birth of the population concept in economics occurs when people become means of production; population represents wealth, labor force, the smallest input for the fastest economic growth.
Furthermore, modern society shapes definitions of "normal" and "abnormal" (deviant) to control individual sexual behavior. The distinction between normal and abnormal lies in whether the behavior is controllable and contributes to labor force production. Other institutions emerge: monogamy, the adult distinction, gender-segregated spaces, and strict parenting guidelines. Modern society also construct the types of modern individuals: neurotic women (those who are not well-tamed, unable to fulfill reproductive duties), eugenic couples (model citizens), and individuals with deviant sexual preferences (irredeemable, hindering social progress).
Even in two different social systems of China and US, the so-called rights and obligations of reproduction and the role of standard women are diametrically opposed due to differing social demands. Pregnancy, childbirth, or abortion are determined by society, and the value of women is determined by their fertility. The child's father is an anonymous social collective, motherhood is both the bond of life and a suffocating weapon, the infants and mothers are born into or die from politics.
1. Diller, Elizabeth., Ricardo. Scofidio, and Georges Teyssot. Flesh: Architectural Probes / Elizabeth Diller and Ricardo Scofidio. The Mutant Body of Architecture / Georges Teyssot. New York: Princeton Architectural Press, 1994. Print.
2. Cruz, Marcos. The Inhabitable Flesh of Architecture / Marcos Cruz. Farnham, Surrey: Ashgate Publishing Limited, 2013. Print.
3. Goldberg, RoseLee, and RoseLee. Goldberg. Performance Art: From Futurism to the Present / RoseLee Goldberg. Revised and expanded edition. New York, New York: Thames & Hudson, 2001. Print.
4. Smith, Kiki, and Margot. Norton. Kiki Smith / Editor: Karen Marta; Text: Margot Norton. Athens, Greece: DESTE Foundation for Contemporary Art, 2018. Print.
5. L’homme, mesures de toutes choses / Thomas Carpentier, 2012.
6. Toward a Critical Ergonomics: Beatriz Colomina and Mark Wigley’s Are We Human? / Joy Knoblauch, ” in the Avery Review 23 , April 2017.
7. Preciado, Beatriz, and Bruce Benderson. Testo Junkie. The Feminist Press, 2012. Print.
8. Foucault, Michel, Michel Foucault, and Michel Foucault. The History of Sexuality / by Michel Foucault; Translated from the French by Robert Hurley. Ed. Frédéric Gros. Trans. Robert Hurley. First American edition. New York: Pantheon Books, 1978. Print.
9. Osborne, John, and Henrik Ibsen. Hedda Gabler / by Henrik Ibsen Adapted by John Osborne. London: Faber and Faber, 1972. Print.
10. Woolf, Virginia. Orlando / Virginia Woolf. Richmond: Alma Classics, 2014. Print.
11. Yongming, Zhai. Mother / “Confessional Poetics of Abjection in Women Poetry:A Comparative Analysis of Sylvia Plath’s"Daddy"and Zhai Yongming’s"Mother". 11 (2019): 201–206. Print.



URBAN DAILY LIFE AS A PERFORMANCE
2023 Fall UC Berkeley, CED Arch 203
Instructor: Elizabeth Bishop
Collaborator: Jeremy Chen
My work: schematic design, design development, concept model , detail model, project management, all drawings in this work
This project aims to redefine urban structures by implementing operable facades that seamlessly integrate with the dynamic street activity while reflecting the ever-changing sky into the building, and vice versa.
the design concept underscores transparency, openness, and street performance as central elements, creating a symbiotic relationship between the built environment and the vibrant life of the city.
The proposed performance center situated at 1789 Mission Street is conceived as a deliberate response to the vibrant and dynamic street life characteristic of its urban context. Embracing the ethos of urban vitality, the design endeavors to establish a cohesive visual dialogue between the bustling street environment and the diverse cultural performances housed within. Central to the parti is a deliberate emphasis on enhancing visibility and fostering openness, thereby facilitating a seamless integration of multi-cultural expressions with the urban fabric.




Utilizing operable specular facades, the performance center ingeniously incorporates the kinetic energy of the street life, projecting it as a dynamic backdrop within the interior spaces. This juxtaposition creates a compelling interplay between the fluid movements of pedestrians in plan view and the elevated performances captured in elevation.
Residents and visitors are welcomed from multiple street entrances, including the primary access point on Mission Street, secondary access on 4th Street, or through the underground parking facility. Upon entry, various circulation paths, such as side egresses, exterior corridors, or interior atriums, guide them into the heart of the performance spaces. Notably, the transparency of these pathways allows for the visibility of audience activities, fostering a sense of openness and accessibility.
Moreover, the accessibility of performances extends beyond the confines of the building. Passersby can engage with the performances not only from within the center but also from upper-floor corridors or even at street level. This inclusivity is further enhanced by operable secondary facades made of aluminum panels, featuring a matte exterior finish and a specular inner surface. These facades enable the performances to be glimpsed by pedestrians, enriching the urban experience and blurring the boundaries between the built environment and artistic expression.

boundaries are solid walls and void skylights; in project 2, they are












EXPERIMENT OF RURAL LOCALITY
2023
Hepu Island, Zhejiang, China
Status: Construction Documents
Collaborator: Yicheng Zhang
My work: schematic design, design development, project management, all drawings in this work
Situated on a rural island in South China, the project contends with unique challenges posed by the coastal climate, stringent county appearance regulations, a restricted client budget, and the isolated construction environment. These constraints serve as both barriers and catalysts, driving the development of a distinctly localized form and intricate detailing.
At every scale, from structural elements to furniture and even the skirting line, each design decision is meticulously crafted to honor the traditional fishing lifestyle of the local community while also envisioning the future living needs and aspirations of the clients.
Informed by the existing neighborhood façade, characterized by asphalt shingles and stucco, and the local architectural typology featuring a combination of concrete frames and timber cross-hipped roofs, the design is inherently bound by these contextual conditions.
Seeking to integrate local techniques while prioritizing affordability and thoughtful form, the proposal combines the existing concrete frame with traditional timber roof structures, incorporating adjustable threaded rods as trusses to achieve a nuanced and responsive architectural solution.

Furniture serves dual roles as interior dividers and extensions of the structure, influencing both movement and visual guidance within the space.
Despite the constraints of the concrete frame, the strategic layout of furniture delineates spatial divisions effectively, particularly accentuated by the thickened boundaries across the four floors.


LIGHTING AS SPATIAL DIVISION
2020 Fall UC Berkeley, CED Arch 200A, 269
Instructor: Rudabeh Pakravan, Lisa M.Iwamoto Individual Work
Besides a solid wall, what else can be the boundary?
The boundaries inside the round residence are made of an orthometric system. And all the single boundary is thickened beyond a wall, into the functional elements.
The thickened boundaries are divided into void boundaries and solid boundaries.
The void boundaries divide the space through lighting effects; The solid boundaries are the lightwells that provide both physical division and lighting effect, which are furthered developed and proved to be attainable.
The residence is composed of photophilous public ground space and a photophobic private space. The upside-down position demands the upper thickened boundaries to introduce the lighting.

Circular space is a special space, whose integrality is very strong. Therefore, the division of a circular space is typical and special. The orthogonal dividing system breaks the circular unity space into an alternant spacial complex. It also gnaws the facade but still keeps its continuity. As a result, the orthogonal dividing system is projected from interior spatial order to exterior form.


The continuous vertical elements form the jagged planar boundaries; the penetrating horizontal voids bring out the alternant sectional spacial experiment. Finally, the continuity of the spatial boundaries is projected into the tooth-like facade.

After taking the practical material, detail construction, relationship between components, depth, and thickness into consideration, the lightwell (which also works like the wall on the upper floor) attains a special form and function. Different from a normal form, this light well is special in its form, material, and lighting.
It goes through the whole floor and attains to the ground floor to provide lighting. It has a sandwich glass panel, with rice paper in between, to transfer the natural light. It is applied with a concise connection, fixing both the glass panel and the LED lighting. It is flexible for both installation and maintenance. Despite its particularity, it is constructed with standard components, which attains accessibility at the same time.



The boundaries are extended beyond the wall, into architectural elements like a skylight, lightwell, staircase, and even a secret room. To furtherly explore the feasibility of the elements like a wall, a lightwell, which also works like the wall on the upper floor, is took as an example to be detailedly developed.

FABRICATED URBAN FURNITURE
2019 Summer
Collaborator: Zilin Zhou,Yicheng Zhang
Instructor: Tim Lai and Yen-cheng Lu from University Stuttgart, ITECH Carbon-fibre Weaving Assistant: Nanjia Jiang
My work: Conceptual Design, Grasshopper Programing, Carbon-fibre Weaving, Furniture Detail Modeling, Diagram Drawing
In this research, we made rules.
Within the rule, the whole state got influenced though changing parameters. In the phase of form-finding, there was a rule to generate boundaries from geometry. In the phase of pattern-finding, there was a rule to weave divided points on boundaries in sequence.
Based on the inherent material properties of fibers, this research explored the flexibility of form-finding, specific syntax pattern and application potential provided by the new materials.
This layer focuses on strengthing the corners of the pattern.


The bottom pattern is adjusted to the top, while the top pattern is adjusted to the bottom. Therefore, all the layeres assemble at the approximately the same layer. As aresult, the 2D pattern develops into 3D pattern.

Based on the glass-fiber weaving. Carbon fibers are used to reinforce the structure of the minial surface.


Through winding syntax design, the pattern synax is divided into 10 groups. Each group contains 20 fiber curves in sequence.


Using the 1:2 acryl model to analyze the pattern.


According to the density demand, the patterns distributed evenly were applied to assembly weaving as a body surface to support others. According to the bearing capacity demand, the patterns with several aggregation points were applied to assembly weaving as a local reinforcement.

The



III. Grounding Detail
Use special-designed
Soft and flexible as fiber, it could be strengthened into an independent structure with resin. It possesses form and bearing structural identity.
Compared to traditional material, fiber has two different periods of material properties, contributing to its form and bearing capacity within a short time. Therefore, it has the potential for replication and scalability.
I. Exterior Support
II.Metal Sleeves It was convenient for mold detachment and reinforce with steel bracket.
After the mold detachment, metal sleeves remained as a component to connect other units.
The complicated form derives from the construction of a rule. New material brings out a new rule. When interacts with the Genius Loci in urban space, delicate heritage could communicate with the fabrication through different languages, striking a chord of forming.


At the moment, the San Giovanni in Val di Lago is represented as an octagonal enclosed structure of walls without a roof covering. A new life of the chapel can be brought by connecting with new structure to accommodate programs of a pilgrim center. The proposal suggests the new structure that both corresponds to the existing structure and reflects a contemporary instance of historic reuse by the operations of reversal and connection. The new structure serves as a stop on their route to the Holy See for the pilgrims to relate their journey today to the historic pilgrimage and the religious life of the inhabitants of the old settlements of San Lorenzo.
The form of the auditorium is informed by the historic chapel. Through a repetition and mirroring of the existing form, the proposal honors and respects the historic religious structure. At the same time, metal mesh and panels are used to state the notion of contrast between the heavy and the lightweight, the historic and the contemporary.
2022 Spring
Collaborator: Tianchen Xu, Paul Wang
My work: Conceptual research and design, all drawings in this work
Reversal and Connection




The auditorium, while echoing the historic chapel, also provides a contrasting spatial experience by enclosing the space with lightweight materials, two layers of metal mesh with a layer of glass panels in between. A passing on of the culture and religious heritage is implied through the extension of the roof from the historic chapel to the new auditorium. By embracing the existing and the new structure under one roof, one side of the chapel’s exterior walls is reversed as the interior walls of the newly added structure.
The reversal allows seeing the historic chapel at the one end of the newly added spaces, which further enhances the spiritual experience of connecting the past and the present.
Approaching from the path that leads to the pilgrim center, pilgrims first get to look closely at the historic chapel, and then experience a transition of materials as walking to the east of the structure.
