PORTFOLIO
DETAIL DECIDES....

![]()

I am not just passionate about design; I thrive on finding practical solutions to bring seemingly fantastical design concepts to life.
My interest lies not solely in art but in striking a balance between artistic aesthetics and real-world conditions.
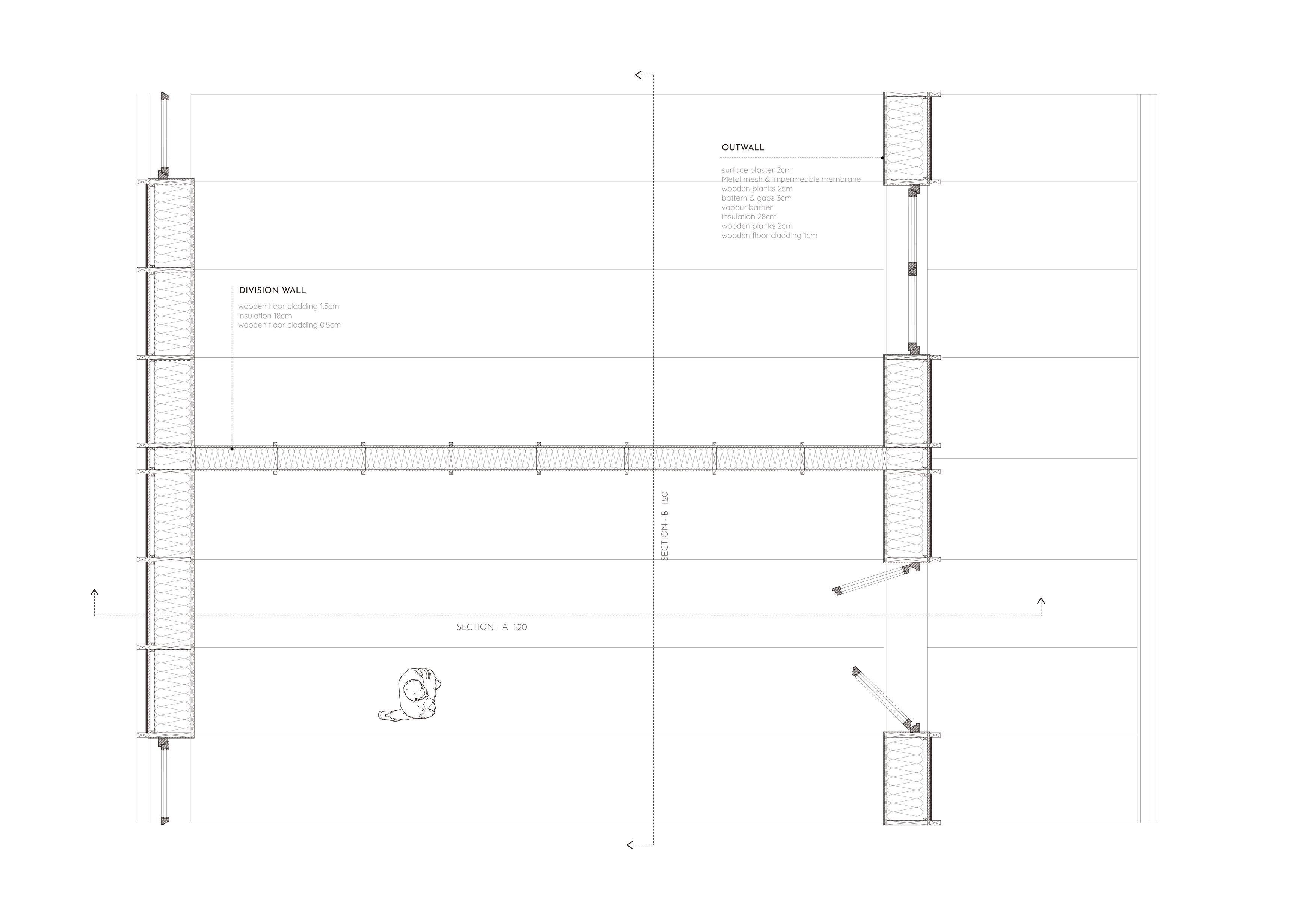
POLIMI - Master Year 1 - Sustainable Construction and structure studio 2022 - 4month, Group of 2, Leader








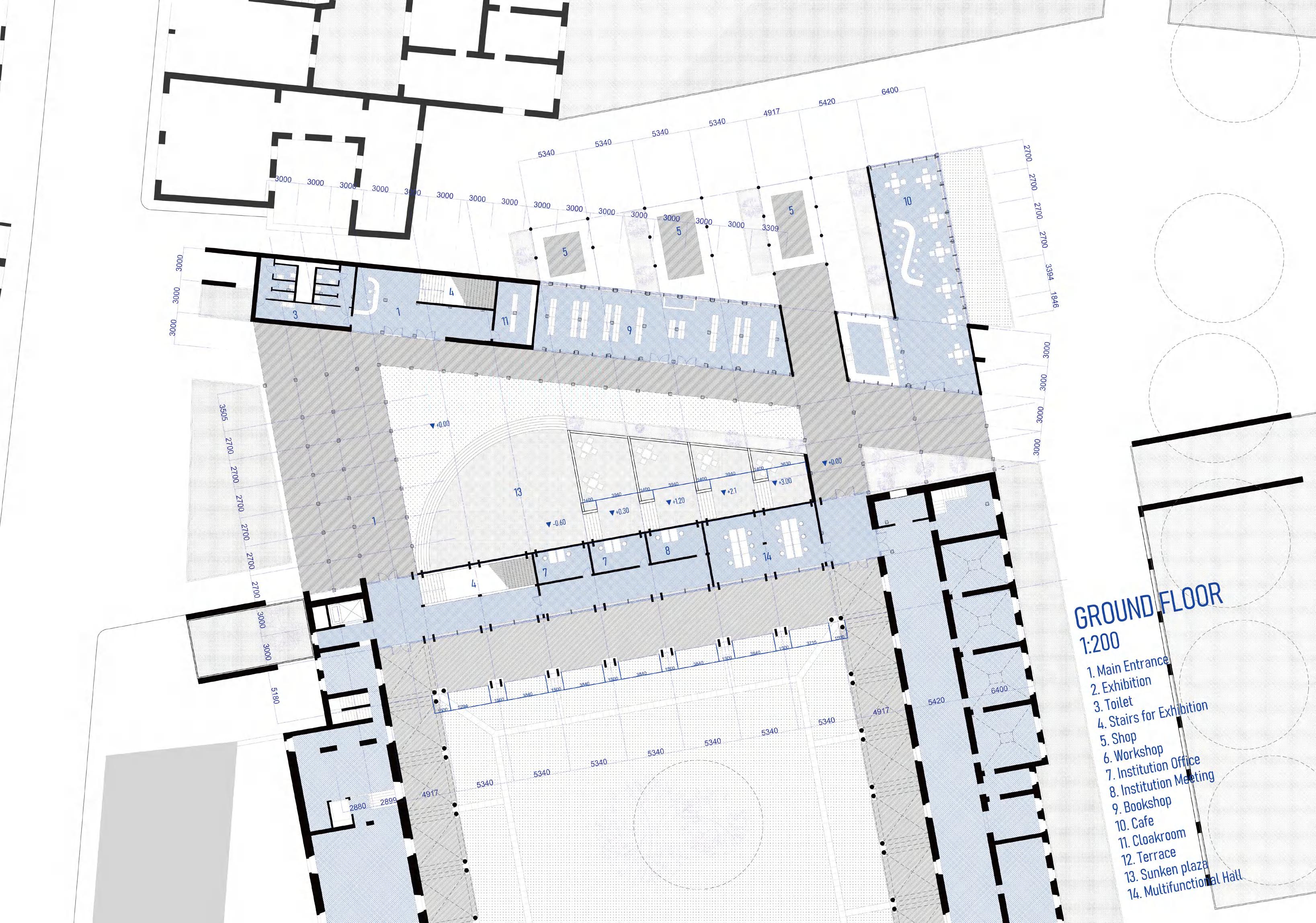
POLIMI - Master Year 2 - Architecture and Renovation studio 2024 - 8month, Group of 3, Leader









XJTLU - Bachlor Year 4 - Final year project - ARC304 Brief A - Biophilic Aesthetics 2022 - 4month, Individual










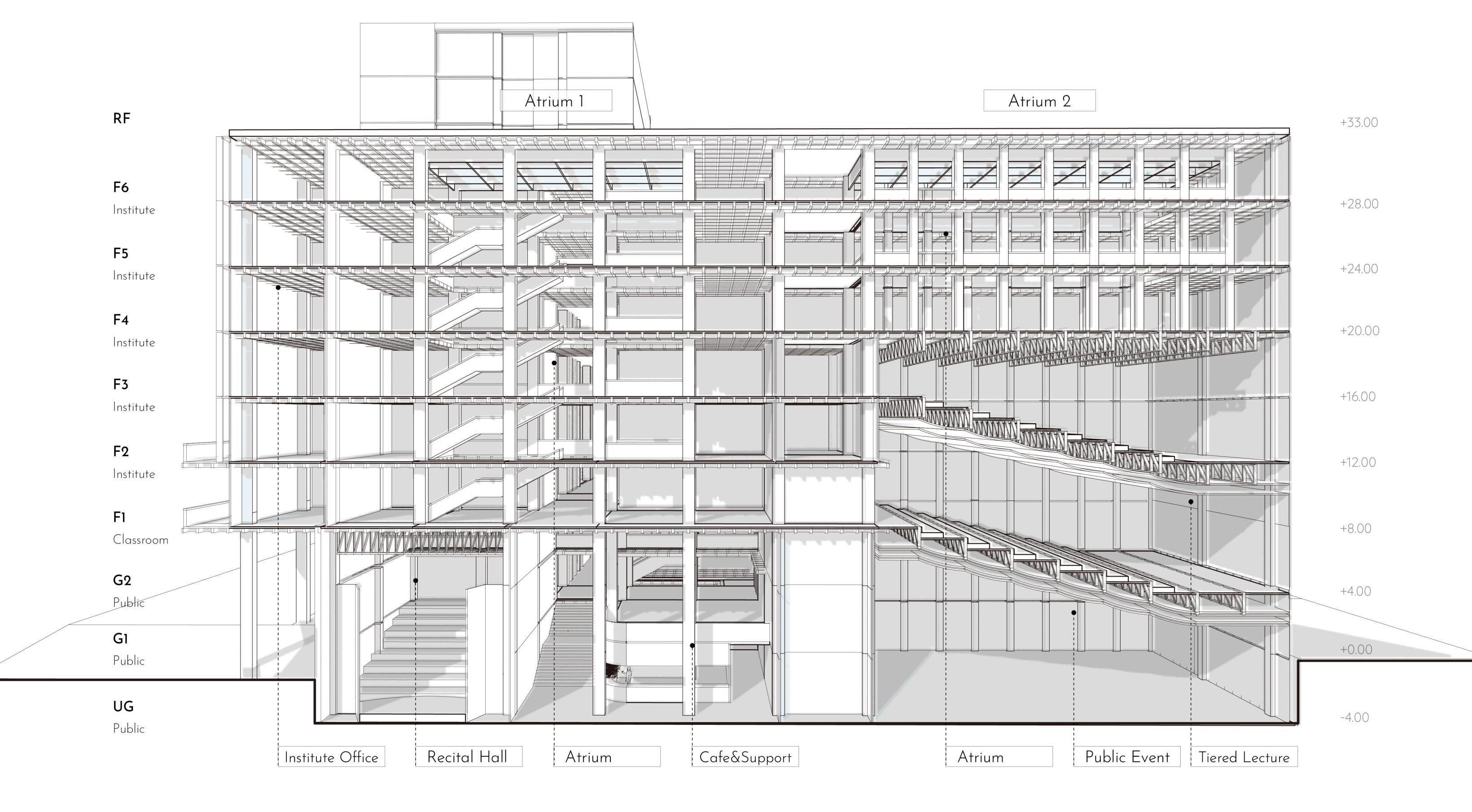
POLIMI - Master Year 1 - Complex design studio
2023 - 4month, Group of 3, Leader










XJTLU - Year 3 - ARC205 - Futural High Technical Studio 2020 - 4month, Individual







XJTLU - Year 3 - Summer Workshop - Yipu Historical Research 2021 - 1month, Group of 6


XJTLU - Year 4 - ARC301
2021 - 1month, Group of 6, Leader




XJTLU - Year 3 - ARC202
2021 - 1week, Group of 7, Leader

