Requiem pour une église

Page 1

Patrimoine à brader ?

Date : 15 avril 2019

Lieu : Saint Jean Baptiste (Québec)

Matériel : Canon 7D

Ouverture : f/4.5

Vitesse : 1/40

ISO : 800

Distance focale : 18mm

Pierre Fraser sociologue

Octobre 2021

Ce numéro a été rendu possible grâce à une contribution financière des historiens Luc Noppen et Marc Grignon (Subvention Savoir du CRSH).

ISBN 978 2921475105

Ce numéro

VISUALISATION 9

Afin de saisir au mieux possible le destin du patrimoine religieux bâti du Québec, différents intervenants expliquent la place qu’occupaient et occupent peut être encore aujourd’hui toutes ces églises érigées sur le territoire du Québec. Après avoir structuré la vie de tout un peuple pendant plus de trois cent cinquante ans, il est légitime de se demander en quoi leur disparation est la fois perte de mémoire collective et dissolution de repères visuels liés à la foi catholique.

MOBILISATION 23

L’historien Marc Grignon analyse comment le rôle social des églises, dans le roman Bonheur d’occasion de Gabrielle Roy, a été au cœur de la vie collective et individuelle. Pour leur part, des citoyens particulièrement impliqués dans leur communauté Dominique Drolet, Louis René Dumoulin, Rémi Tremblay , exposent l’asymétrie qui existe entre leur capacité à se mobiliser par rapport aux Fabriques, aux diocèses et aux différentes instances politiques.

REQUALIFICATION 63

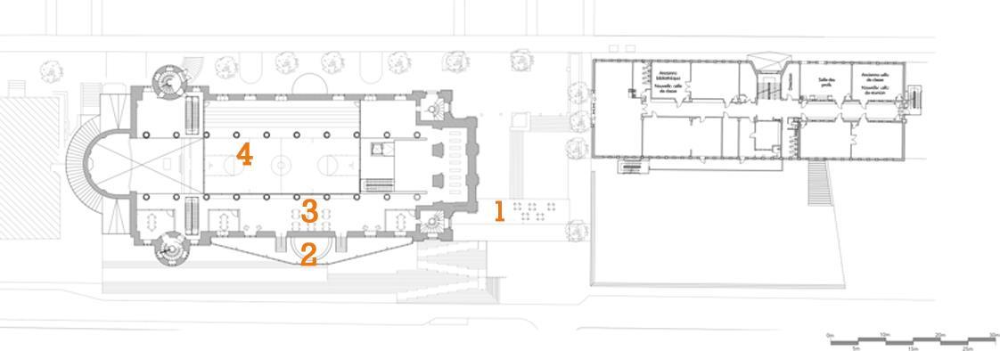
L’historien Luc Noppen fait le bilan de la démolition de l’église Saint Cœur de Marie de Québec, et montre, malgré son statut de bâtiment patrimonial, qu’il est tout de même possible de démolir ce genre d’édifice. Dans un second temps, l’architecte Véronique Lemieux propose un projet de requalification de l’église Saint Jean Baptiste réaliste et ancré dans son milieu.

COURTS-MÉTRAGES ILLUSTRANT LE SORT DES ÉGLISES 119

Comment est il possible, par le court métrage, de rendre compte de la situation du patrimoinereligieuxbâti duQuébec ?C’estàcettequestionquelesociologuePierre Fraser tente de répondre en proposant différentes pistes d’analyse

Comité de rédaction

PIERRE FRASER cofondateur de la revue Docteur en sociologie, diplômé de l’Université Laval. Sociocinéaste et photographe, à la retraite de l’enseignement depuis 2020, son principal champ de recherche est celui de la sociologie visuelle, incluant la sociologie photographique et la sociologie filmique, qu’il articule autour del’utilisationdel’imagepour représenterles réalitéssociales.

GEORGES VIGNAUX cofondateur de la revue Docteur d’État de l’Université Paris 7. Philosophe, linguiste et logicien,son principalchamp derechercheporte surles phénomènes d’argumentation et de linguistique du discours, ainsi que sur la portée sociale et sémiotique de l’image.

LYDIA ARSENAULT coéditrice Sociologue, diplômée de l’Université Laval. Son principal champ de recherche porte tout particulièrement sur les phénomènes de discrimination et de stigmatisation sociales. Elle utilise également l’image comme outil d’illustration de la stratification sociale.

OLIVIER BERNARD coéditeur Docteur en sociologie, diplômé de l’Université Laval. Le corps en action et le corps en mouvement ainsi que ses représentations iconiques dans lasphèrepubliqueoriententses recherches qui mettentenlumière ce qui norme le corps. Il est également directeur de la collection « Arts martiaux » aux Presses de l’Université Laval.

Ont collaboré à ce numéro

LUC NOPPEN

Professeur au Département d’études urbaines et touristiques de l’UQAM, il est aussi directeur des partenariats à la Chaire de recherche du Canada en patrimoine urbain (ESG UQAM). Il a, durant sa carrière, amorcée à l’Université Laval en 1972, publié plus de trois cents livres, articles et rapports sur le patrimoine, notamment sur le patrimoine ecclésial. Il a obtenu des dizaines de prix et médailles, dont le prix Gérard Morisset et le Prix du Québec en patrimoine. Il est aussi docteur honoris causa de l’Université Jean Monnet/Lyon.

MARC GRIGNON

Professeur titulaire d’histoire de l’art à l’Université Laval, membre du CÉLAT (Centre de recherches Cultures Arts Sociétés) et de l’IPAC (Institut du patrimoine culturel), Marc Grignon développe son enseignement et sa recherche dans le champ de l’histoire de l’architecture du XVIIe au XXe siècle.

VÉRONIQUE LEMIEUX

Diplômée d’une maîtrise en architecture, son intérêt pour le patrimoine religieux l’a amenée à aborder le sujet particulier de la revitalisation et de la transformation des églises au Québec. Cette démarche est nécessaire à ses yeux afin de comprendre l’importance de la revitalisation des églises.

LOUIS-RENÉ DUMOULIN

Particulièrement impliqué dans l’action citoyenne de son quartier, il a participé au projet de réaménagement du parvis de l’église Saint Jean Baptiste de 1986 à 2001, est membre du Comité du patrimoine de Saint Jean Baptiste depuis 2004, et a cofondé, en 2008, le regroupement Espace solidaire lié à l’avenir de l’église Saint Jean Baptiste.

DOMINIQUE DROLET

Diplômée en ethnologie, passionnée par le quotidien de ceux qui nous ont précédés, elle s’est particulièrement impliquée dans la sauvegarde d’une église, symbole parfait de la vie communautaire et sociale. Ses diverses expériences professionnelles sont d’ailleurs en appui à son implication sociale.

Ont collaboré à ce numéro

RÉMI TREMBLAY

Correspondant canadien du quotidien « Présent », il est passionné par les questions liées à l’histoire, la religion et le patrimoine. Son dernier ouvrage en date retrace les débuts de la Nouvelle France, en prenant comme point d’appui l’explorateur Jacques Cartier.

YVES COULOMBE

Créateur de contenus multimédias, son projet Sur la route de nos églises lui a permis d’explorer son côté artistique tout en produisant des images qui pourraient être transmises aux générations à venir. Après avoir étudié dans le domaine des arts, il a touché à plusieurs médiums et a fait de la photo et de la vidéo une véritable passion.

▼Voûtes d’église comme repère visuel d’une architecture liée au culte catholique © Pierre Fraser, 2019

VISUALISATION

[l’érosion de la foi catholique, au Québec, ne signifie pas pour autant perte de mémoire différents groupes de citoyens se mobilisent désormais pour requalifier le patrimoine religieux bâti, afin qu’il ne disparaisse pas totalement du paysage et du territoire]

Une église est plus qu’un lieu de culte

Lieux de rassemblement de la communauté, lieux sanctifiés par la prière et la célébration de l’eucharistie, les églises, au Québec, ont été des bâtiments particulièrement visibles qui ont exprimé haut et fort les valeurs du christianisme. Leurindéniable présence anonseulement étéun enjeuimportant du développement de la foi catholique, mais aussi et surtout un puissant marqueur de l’identité canadienne française après la conquête britannique. En oblitérant du paysage ces lieux de culte, on retire aussi du visible les signes d’une culture et d’un peuple.

Recueillement

Date : 7 juillet 2019

Lieu : église Saint Charles Borromée (Québec)

Matériel : Canon T5i

Ouverture : f/5

Vitesse : 1/60

ISO : 400

Distance focale : 22m

Pierre Fraser

Trois églises, trois destins

e numéro explore les cas particuliers de trois églises représentatives de ce qui se trame présentement concernant le patrimoine religieux bâti du Québec. L’église Saint Jean Baptiste, située dans la ville de Québec, classée monument patrimonial, est fermée au culte depuis 2015 et n’a fait, jusqu’à ce jour (automne 2021), l’objet d’aucun véritable projet de requalification. L’église Saint Cœur de Marie, également située à Québec, classée monument patrimonial, fermée au culte depuis 1997, a finalement été démolie en 2021 par un promoteur immobilier. L’église Saint Gabriel, située dans la MRCde Bellechasse (25km à l’est de Québec), a été requalifiée à la fois en mode communautaire et en mode cultuel. Afin de saisir au mieux possible le destin du patrimoine religieux bâti du Québec, nous avons demandé à différents intervenants de nous entretenir de la place qu’occupait et occupe peut-être encore aujourd’hui la présence de ces églises qui ont structuré la vie de tout un peuple pendant plus de trois cent cinquante ans, et en quoi leur disparation est aussi perte de mémoire et de dissolution de l’ensemble des repères visuels liés à la foi catholique.

L’historien Marc Grignon, aux fins de ce numéro, fait particulièrement référence au rôle de l’église dans les romans de Gabrielle Roy et montre comment celle ci structurait la vie sociale et la vie individuelle, c’est à dire que l’église établissait un territoire visuel qui se positionnait par rapport à l’espace territorial global sous forme de filtres superposés spécifiques et généraux, inclusifs et exclusifs. En d’autres termes, dans les romans de Gabrielle Roy, le territoire visuel que constituait l’église était socialement identifiable et déchiffrable par ceux qui habitaient un quartier spécifique.

Si l’église, comme le souligne Marc Grignon, a structuré la vie sociale au Québec, il va sans dire que le destin de ces bâtiments peut mobiliser des groupes de citoyens particulièrement impliqués dans leur communauté. Ce que des citoyens comme Dominique Drolet,Louis RenéDumoulin,et RémiTremblaysoulignentdanscenuméro,c’estbienl’asymétrie qui existe entre leur capacité à infléchir les décisions gouvernementales et les réalités politiques.

Pour sa part, l’historien Luc Noppen, spécialiste du patrimoine religieux, insiste non seulement sur la démolition de l’église Saint Cœur de Marie de Québec, mais parvient aussi à montrer comment les repères visuels liés à l’église ne veulent plus rien dire pour

11
Pierre Fraser, sociologue

certaines personnes ou instances gouvernementales ; une égliseclassée bâtimentpatrimonial ne garantit en rien sa pérennité.

Une fois les constats posés, une fois les démarches entreprises, une fois la mobilisation organisée, il faut bien parvenir à proposer des projets. Et c’est là où intervient l’architecte Véronique Lemieux, qui montre comment il est possible de conserver la dimension communautaire d’une église tout en évacuant l’ensemble de ses repères visuels liés au culte catholique. Dans un cas comme dans l’autre, qu’il s’agisse d’une démolition ou d’une requalification sans dimension cultuelle, c’est un ensemble de repères visuels qui ont forgé toute une société qui disparaît.

Le vidéaste Yves Coulombe, impliqué dans le projet « Sur la route de nos églises », s’est donné comme mission de préserver le patrimoine religieux du Québec en filmant le plus grand nombre possible de ces églises catholiques qui ont été implantées partout sur le territoire québécois au fil du temps. Certains segments de ces tournages ont été insérés dans un court métrage réalisé par Pierre Fraser, et qui résume fort bien la dimension patrimoniale de ces églises dont Yves Coulombe a voulu rendre compte.

Le sociologue Pierre Fraser, quant à lui, à travers un article sur la dissolution des repères visuelsliésàlafoicatholique,etunautrerecensant troiscourts métragestraitantdudestin des églises, propose une analyse du phénomène de disparition des églises au Québec. Il revient tout d’abord sur le processus d’une fermeture d’église à travers les différents intervenants impliqués dans ce type de dossier, et explore, par la suite, à la fois les problèmes soulevés par la disparition des églises et les différentes solutions proposées. Il présente finalement un projet de requalification réussi d’une église dans la MRC de Bellechasse au Québec.

12

Destins d’églises, analyses visuelles

on collègue Pierre Fraser évite d’utiliser la notion de sociologie filmique au profit de la notion de sociologie par l’image. Quelle différence fait il entre ces deux notions ? À première vue, pour le néophyte, il pourrait bien sembler que la sociologie se décline en autant de champs d’étude qu’il existe de thèmes à caractère social à explorer. Sociologie de la santé, sociologie de l’innovation technologique, sociologie de la culture, sociologie des religions, et bien d’autres encore, semblent peupler un univers intellectuel qui n’a de cesse de se spécialiser. Toutes ces déclinaisons relèvent de la discipline sociologique, c’est-à-dire un ensemble de méthodes d’observation et de cadres d’analyse qui s’applique à l’étude des relations, des actions et des représentations sociales dont sont constituées les sociétés, afin de comprendre comment celles-ci fonctionnent et se transforment. Il en va de même pour la sociologie visuelle et la sociologie filmique, à l’exception près que l’appareil photo et le caméscope deviennent les outils de saisie des données plutôt que le sondage, les analyses statistiques, les questionnaires, les récits de vie, les entretiens, les études de cas, les études de besoin, et les groupes de discussion.

Un réel exercice de sociologie filmique n’a strictement rien à voir avec les courts métrages dont il sera question dans ce numéro. En fait, dans sa forme, un documentaire ou court-métrage se réclamant de la sociologie filmique n’est pas qu’une suite d’entretiens, c’est-à-dire une enfilade de « têtes parlantes » qui tiennent des propos sur un quelconque phénomène de société, ce que sont les courts-métrages présentés dans ce numéro, même s’ils font appel à l’image, fixe ou animée, pour soutenir les propos des différents intervenants. En fait, la sociologie par l’image ne se fait pas que par l’image fixe, mais aussi par l’image animée. Il s’agit bien d’une recherche photographique et filmique sur le terrain, fondée sur l’observation participante, où le chercheur prend avec lui son caméscope ou son appareilphotoplutôt qu’undictaphone. Commedans l’observation participante, deux phases en régissent la pratique : prendre des photos ou des séquences vidéo du lieu et des objets d’analyse et confronter les hypothèses avec les images ou vidéos obtenues. La vidéo, à la différence de l’image fixe, amorce une communication visuelle comme un échange communicatif, c’est à dire qu’elle met en commun une relation dans une forme de communication verbale et non verbale, ce que la photo ne permet pas tout à fait de faire.

13
Georges Vignaux, linguiste

La sociologie par l’image est avant tout une restitution de résultats qui consiste en la production et la visualisation des résultats obtenus. Il s’agit ici de traiter l’image, fixe ou animée, comme un modèle d’expression, de communication, de monstration et de démonstration. Cette démarche, avant tout scientifique et qualitative, rassemble les trois principes fondamentaux d’une analyse sociologique, à savoir la description, la recherche de contextes, l’interprétation. Le tout peut prendre, soit la forme d’un article scientifique oùletexteaccompagnelesphotos etnonl’inverse ,soitlaformed’undocumentaire, d’un court métrage, d’une entrevue ou d’une capsule vidéo où l’image se veut une identification des significations symboliques des images produites dans l’activité sociale. Autrement, ce qui intervient ici, c’est bien l’explication du processus d’identification et d’analyse des significations symboliques produites dans le but de raconter une histoire. En ce sens, cette édition de la revue Sociologie Visuelle ne fait pas dans la sociologie filmique, mais bien dans la sociologie par l’image, ce dont ce numéro rend particulièrement compte.

14
▼Tournage du court métrage « Requiem pour une église » à l’église Saint Jean Baptiste de Québec © Carole Jacques Savaria, 2019

Démolition

d’églises et dissolution de repères visuels

e phénomène de délitement du patrimoine religieux bâti au Québec doit être considéré à travers quatre critères : (i) l’analyse du processus d’une église laisser à l’abandon pendant des années et vendue à un promoteur immobilier ; (ii) la portée, dans l’imaginaire collectif québécois, de la présence architecturale de ses églises qui ont longtemps habité le paysage rural et urbain ; (iii) une proposition concrète de reconversion d’un bâtiment religieux ; (iv) la mobilisation citoyenne et sa capacité à infléchir ou non, ou en partie, les décisions politiques. Avant d’aller plus loin dans ce numéro, et pour mieux comprendre la portée de ces critères, il importe de revenir sur certaines notions de base, afin de bien saisir comment s’articule la dissolution des repères visuels liés au catholicisme.

Repère visuel

1. Le repère visuel possède quatre propriétés distinctives : la visibilité (physique, historique, morphologique), la pertinence pour l’action (gare routière, carrefour,centrecommercial,etc.),ladistinctivité(impossibledeleconfondre avec un autre), la disponibilité (stabilité relativement pérenne dans son environnement). 2. Le repère visuel possède quatre fonctions précises : signaler en vue de l’accomplissement d’actions ou suggérant l’opportunité d’actions ; localiser d’autres repères visuels qui doivent déclencher une action (le repère visuel est élément de réseau) ; confirmer qu’un individu est au bon endroit (positionnementprécissurunterritoire) ; comblercertaines attentes (art,commerce, divertissement, finance, spiritualité, etc.). 3. Le repère visuel s’inscrit à l’intérieur de deux dimensions précises : le fonctionnel, c’est à dire comment les réseaux travaillent le territoire et réciproquement et comment le territoire sollicite un ou des réseaux, voire hypothétiques ; le cognitif, c’est à dire les ancrages (repères) dans la ville, les systèmes de repérage pour le déplacement (parcours), schémas mentaux pour le parcours à pied, en voiture, etc., et qui constituent effectivement des réseaux d’appropriation locale ou globale de l’espace (territoire). 4. Le repère visuel participe à la normalisation des comportements, conduites, jugements, attitudes, opinions, croyances, et différencie ce qu’il convient de faire par rapport à la norme dominante.

15
Pierre Fraser, sociologue

Parcours visuel

1. Un parcours visuel est constitué de repères visuels propres à certains espaces clairementdélimités (l’espaceetleterritoire,letangible)2. Unparcours visuel forme des parcours de déplacements orientés dans telle ou telle direction en fonction de l’espace dans lequel il s’inscrit (les lieux où se concentre les dimensions physiques perceptibles).

Réseau visuel

1. Un réseau visuel est constitué de repères visuels propres à certains réseaux sociaux (le social et le sociétal, l’intangible) permettant leur identification et leur localisation dans le but de déclencher une action ou une opportunité d’actions. 2. Un réseau visuel forme des parcours sociaux pour certaines classes sociales ou communautés, etdétermined’autant certaines attitudes et comportements (les lieux où se concentre les dimensions symboliques perceptibles).

Frontière visuelle

Une frontière visuelle est avant tout une limite physique. Elle circonscrit et délimite un territoire visuel, généralement représentée par un bâtiment, une voie de chemin de fer, une autoroute, un boisé, une falaise, une muraille, etc. Les frontières visuelles articulent les micros territoires de la ville. Ici, Les délimitations physiques se donnant comme repères visuels deviennent supports de faisceaux de lectures sociales et par suite de frontières immatérielles symboliques.

Frange visuelle

Une frange visuelle prend généralement la forme d’un terrain en friche ou d’un bâtiment à l’abandon. Ses limites sont à la fois précises et imprécises. Précises, dans le sens où elles sont géographiquement circonscrites. Imprécises, dans le sens où elles ne sont pas tout à fait socialement circonscrites, c’est-à-dire dont la fonction sociale n’est pas clairement déterminée.

Lieu-mouvements

Un lieu mouvements est un espace au sens fort de la plénitude sociale et se constitue comme lieu de connectivités concrètes et symboliques. Ces connectivités résident autant dans les pratiques de cet espace que dans les différents plans de lectures cognitives et symboliques que cet espace favorisera à travers ses repères, ses parcours et des réseaux. Cela prend formed’ancrages concrets dans l’espace social : types de publics et d’habitants, stratégies d’adaptation et d’appropriation, interactions entre commerces, services et opportunités variées, flux de circulation.

16

Territoire visuel

1. Un territoire visuel est avant tout géographiquement délimité : il correspond généralement à un quartier ou à des aires aux propriétés et caractéristiques visuelles similaires. 2. Un territoire visuel se positionne par rapport à l’espace territorial global sous forme de filtres superposés spécifiques ou généraux, inclusifs ou exclusifs. 3. Un territoire visuel est essentiellement composé de réseaux visuels (le social et le sociétal, l’intangible) et de parcours visuels (l’espace et le territoire, le tangible) que construisent certains types de repères visuels 4. Un territoire visuel est socialement identifiable et interprétable par ceux qui l’habitent.

L’Église catholique, au Québec, a quadrillé le territoire de repères visuels distinctifs : les églises, les presbytères et les cimetières en témoignent, car ils représentent des aires aux propriétés et caractéristiques similaires que chaque Canadien français pouvait reconnaître, peu importe là où il se situait sur le territoire. La flèche de l’église, repère visuel par excellence, a toujours signalé non seulement le cœur du village ou d’un quartier (l’espace et le territoire ; le tangible), mais aussi une foi et un culte partagés, tout comme une certainevisiondumondeorganisantetstructurantlavieensociété(lesocialetlesociétal ; l’intangible). Le schéma de la page suivante permettra de mieux comprendre comment une église est susceptible de passer de statut de repère visuel structurant et de lieu mouvements à celui de banale frange visuelle.

L’église a toujours été un lieu-mouvements, c’est-à-dire un espace au sens fort de la plénitude sociale, qui se constitue comme lieu de connectivités concrètes (le tangible) et symboliques (l’intangible). Ces connectivités résident autant dans les pratiques de cet espace que dans les différents plans de lectures cognitives et symboliques que cet espace favorisera à travers ses repères visuels, ses parcours visuels et ses réseaux visuels. Une église est aussi une frontière visuelle, c’est à dire qu’elle est avant tout une limite physique, car elle circonscrit un territoire visuel dont les repères visuels relèvent de la foi catholique.

En ce sens, entrer dans une église, c’est aussi entrer dans un réseau visuel riche et dense composé d’une multitude de repères visuels d’ordre architectural abside, chapelle, chœur, clocher, clocher porche, crypte, déambulatoire, flèche, nef, parvis, transept, vitraux, voûtes , de l’ordre du mobilier autel, ambon, balustres, cathèdre, chaire, crédence, croix, confessionnaux, jubé, lutrin, prie Dieu, stalles , de l’ordre du culte calice, ciboire, chemin de croix, cierges, crucifix, fonts baptismaux, hostie, patène, tabernacle, statues, vêtements sacerdotaux, vin. Ce réseau visuel, constitué de repères visuels propres au culte et à la dimension culturelle, permet leur identification et leur localisation dans le but de déclencher une action liée à la dimension religieuse. L’église est

17

aussi parcours visuel, c’est à dire qu’elle est un espace circonscrit composé d’une multitude de repères visuels constitués en réseau visuel dans lequel évolue un individu dans le but d’accomplir une action ou un ensemble d’actions liées au culte, formant ainsi des parcours sociaux normalisant des attitudes et comportements spécifiques.

Si l’église est essentiellement dédiée à la dimension cultuelle, son sous sol, pour sa part, estgénéralementdédiéàladimensionculturelleet communautaire.Passer dulieudeculte de l’église à son sous sol, c’est aussi passer dans un tout autre type de lieu mouvements dont le réseau visuel est composé de repères visuels qui renvoient, non pas au culte, mais bien au profane, celle de la vie en société. Longtemps constitué en lieu de rassemblement et de services dédiés à la communauté, le sous sol de l’église a aussi façonné et structuré la vie sociale. Autrement dit, dimension liée au culte et dimension liée au communautaire ont longtemps été les deux dimensions visuelles de base de l’église. Tous les Canadiens français, sans exception, savaient décoder l’ensemble des repères visuels liés aux églises et les articuler en conséquence. D’un strict point de vue épistémologique, tous ces repères visuels sont constitués d’un ensemble de caractéristiques visuelles qui les différencient de tous les autres repères visuels. La combinaison de tous ces repères visuels, qui se retrouvent dans une seule et même église, a pour fonction de normaliser nos comportements, nos conduites, nos jugements, nos attitudes, nos opinions et nos croyances en matière de foi catholique. Ils différencient ce qu’il convient de faire par rapport à la norme édictée par l’Église catholique. Et c’est bien ce à quoi ces deux dimensions visuelles ont contribué depuis les débuts de la Nouvelle France jusqu’au Québec moderne des années 1960, à savoir le cultuel et le communautaire. Ce qu’il y a d’intéressant avec l’entrée du Québec dans la modernité au début des années 1960, c’est que tous les repères visuels de l’église fonctionnent encore et toujours tout comme ils fonctionnaient depuis trois cent cinquante ans. Au Québec, on a même construit des églises aux caractéristiques architecturales totalement renouvelées par rapport à l’architecture classique et inspirées du modernisme, du brutalisme et de l’expressionnisme formel, tout en les implantant l’ancien le modèle du diocèse dans les nouvelles banlieues, alors que la fréquentation religieuse commençait discrètement à s’effriter et que les valeurs sociales s’alignaient de plus vers une société de consommation. Avec Vatican II, le repère visuel qu’est l’autel où le prêtre officiait face au tabernacle et dos au public a été totalement inversé ; le prêtre se retrouva dès lors dos au tabernacle et face à la foule, devenu en quelque sorte animateur de foule. Cette transformation du repère visuel que constitue le prêtre officiant n’a rien de banal, car changer les caractéristiques d’un repère visuel c’est aussi changer en partie sa fonction. Dans le même ordre d’idées, après Vatican II et jusqu’au milieu des années 1970, le repère visuel du grand orgue célébrant avec grandiloquence la gloire de Dieu a graduellement été remplacé par la « messe à gogo » où l’on retrouvait, certes l’orgue électronique de plus petite

18

dimension et moins puissant, mais également la guitare et la batterie ; ce fut l’entrée du culte catholique dans le profane. D’un strict point visuel, le grand orgue se distingue tout particulièrement du petit orgue électronique :

• le grand orgue possède des caractéristiques morphologiques (visibilité) qui font en sorte qu’on ne peut le confondre avec un orgue électronique (particularité) ;

• le grand orgue est destiné, soit à la musique religieuse, soit à la musique du répertoire classique (pertinence), alors que l’orgue électronique peut autant jouer sur le répertoire religieux que profane ;

• le grand orgue est stable dans son environnement (disponibilité), car on ne peut le déplacer comme on déplace un orgue électronique.

On retrouve donc là les quatre caractéristiques d’un repère visuel, à savoir visibilité par ses propriétés morphologiques, particularité, pertinence et stabilité. Cette impossibilitéde confusion des genres visuels est liée au fait que chaque objet lié à l’église possède ses propres repèresvisuels quisont eux mêmes liés à des codes visuels déterminés. Ses codes visuels, morphologiques par essence, sont enchâssés dans la fonction à laquelle ils sont affectés. Par exemple, l’hostie, qui symbolise le corps du Christ, ne peut être confondue avec le pain acheté à l’épicerie la particularité. Le calice, pour sa part, qui contient du vin de messe rouge, a essentiellement comme fonction, et uniquement comme fonction, de symboliser le sang du Christ la pertinence. Finalement, un lieu de culte catholique ne saurait être un lieu de culte catholique s’il n’y avait pas minimalement un autel et un tabernacle, c’est à dire que l’on doit impérativement retrouver certains objets servant à la dispensation du culte la disponibilité. En somme, la visibilité d’un repère visuel tient par sa morphologie, sa particularité, sa pertinence et sa disponibilité. Autrement, entrer dans une église de grande dimension, c’est aussi se sentir happé par une vague impression de transcendance, de quelque chose de plus grand que soi. Certes, même si le dispositif architectural a pour fonction de créer cette ambiance, il n’en reste pas moins que l’ensemble de ce dispositif se constitue comme repère visuel en tant que tel où quatre fonctions spécifiques, dont est porteur chaque repère visuel, permettent de parvenir à ce résultat :

• signaler en vue de l’accomplissement d’actions ou suggérant la possibilité de certaines actions ;

• localiser d’autres repères qui doivent déclencher une action (le repère est élément de réseau) ;

• confirmer qu’un individu est au bon endroit et/ou qu’il adopte les comportements appropriés ;

• combler certaines attentes.

19

Si chaque repère visuel signale l’accomplissement d’actions ou suggérant la possibilité de certaines actions, fréquenter l’église (lieu de culte) et sa salle communautaire située au sous sol sont forcément deux expériences fort différentes même si la finalité relève de la même logique : créer du lien social. On comprendra dès lors que les actions posées dans le lieu de culte par rapport à sa salle communautaire sont particulièrement différenciées. Dans une église, s’agenouiller correspond au culte et signale le respect envers Dieu, alors que personne n’oserait s’agenouiller dans une salle communautaire pour une quelconque raison devant l’un de ses coreligionnaires. Dans une église, certains repères visuels incitent au recueillement et à la réflexion, alors qu’on retrouvera plutôt dans la salle communautairedes repères visuels qui incitent au contact social.Qu’un individu se retrouvedans l’église ou dans sa salle communautaire attenante, ce dernier s’attend à recevoir une prestation spécifique de services qui lui permettra de combler certaines attentes. Comme je l’ai mentionné précédemment, au Québec, l’Église catholique a quadrillé le territoire de ses propres repères visuels qui se sont finalement constitués en territoires visuels. Avec la disparition accélérée de ces bâtiments destinés au culte catholique, ce sont aussi des repères visuels qui disparaissent et qui s’effacent graduellement de la mémoire collective. Si les églises ont élaboré des réseaux visuels qui ont travaillé le tangible (l’espace et le territoire), ainsi que des parcours visuels qui ont travaillé l’intangible (le social et le sociétal), en ce sens, chaque église retirée du paysage et de son territoire élimine ou transforme en profondeur les réseaux visuels (le tangible) qu’elle avait élaborés au fil du temps, tout comme elle élimine ou transforme en profondeur les multiples parcours visuels (l’intangible) qu’elle avait mis en place au fil du temps. Au même titre, la requalification d’une église pour d’autres fonctions peut conduire aux mêmes résultats si lesdites fonctions n’ont plus aucun lien avec le cultuel, alors qu’une requalification où cohabitent le cultuel et le communautaire peuvent contribuer à perpétuer ce que constituent les quatre fonctions d’un repère visuel (signaler, localiser, confirmer, combler certaines attentes).

Et c’est là où le passage du statut de l’église comme repère visuel expressif et révélateur à celui de frange visuelle intervient. Pour rappel, une frange visuelle prend généralement la forme d’un terrain en friche ou d’un bâtiment à l’abandon dont les limites sont à la fois précises etimprécises.Précises,danslesensoù ellessont géographiquement circonscrites et imprécises, dans le sens où elles ne sont pas tout à fait socialement circonscrites, c’est à dire dont la fonction sociale du terrain ou du bâtiment n’est pas ou n’est plus clairement déterminée. Commele souligneGeorges Vignaux,on pourrait baptiser aussi ces espaces : « les marges » au sens de l’abandon, du sans destination, du non affecté, de la « zone », « à ban » comme on disait autrefois pour désigner l’espace des bannis et qui a donné « la banlieue ». Cela rejoint la notion de frange visuelle.

20

© Pierre Fraser, 2019

Il suffit de voir comment une église à l’abandon peut devenir une frange visuelle, un espace en quelque sorte dans les marges et à ban. L’exemple que présente l’historien Luc Noppen, dans son article intitulé Requiem pour l’église Saint Cœur de Marie, est plus qu’éloquent à ce sujet : « Au début de 2018, le promoteur [à qui l’église avait été vendue] entreprend une campagne de diffamation du monument : il ouvre les portes au public avec un marché aux puces qui, littéralement « squatte » les lieux, en mettant en évidence l’état d’abandon de l’ancienneéglise. Puis,en juin 2019,on apprendquela Villea accepté une demande de démolition, avec des conditions : « La Commission d’urbanisme recommande la déconstruction de l’église afin d’en conserver les pierres de revêtement de la façade, de même que les ferblanteries. […] C’est que la Commission indique qu’elle « exigera la reconstruction à l’identique de la portion avant du bâtiment1 . »

En fait, du moment où une église passe du statut de lieu-mouvements à celui de devient frange visuelle, les chances pour cette dernière de retrouver en partie son statut de repère

1 Bernard J (2019, 5 juin), L’église Saint Cœur de Marie pourrait être démolie dès cet été, FM 93, URL : https://tinyurl.com/37j9b9pw

21
▼ Fenêtres cassées, panneaux de bois sur les fenêtres, lieux laissés à l’abandon, témoins d’une frange visuelle

visuel révélateur s’amenuisent d’autant. Par exemple, l’église Saint Joachim située à Saguenay, au destin similaire à celui évoqué par Luc Noppen, fermée au culte le 30 juin 20072 , « était devenue le refuge de plusieurs jeunes et de squatteurs. Plusieurs actes de vandalisme [avaient] été rapportés au cours des dernières années et plusieurs débuts d’incendie [avaient] occupé les pompiers3 . » En somme, il se pourrait bien que le destin de tout bâtiment religieux désaffecté depuis un certain temps soit celui de la frange visuelle. Autrement, avec la disparition de plusieurs églises au Québec, la capacité à interpréter les repères visuels de la foi catholique s’évanouit graduellement. Par exemple, les nouvelles générations, qui n’ont pas ou peu fréquenté une église, ne sont pas en mesure de savoir en quoi consistent les fonts baptismaux, à quelles fins sont destinés les confessionnaux, ni la symbolique derrière le chemin de croix, encore moins les symboles que sont l’hostie dans le ciboire et le vin rouge dans le calice. Dans un cas comme dans l’autre, qu’il s’agisse d’une démolition ou d’une requalification sans lien avec le culte catholique, c’est un ensemble de repères visuels qui ont forgé toute une société pendant plus de trois cent cinquante ans qui disparaissent.

▼ Repères visuels de la foi catholique en dissolution (fermeture au culte, église Saint Jean Baptiste)

2 Diocèse de Chicoutimi, Les églises Saint Joachim et Saint Paul ont été désaffectées au culte le 30 juin 2007, URL : https://tinyurl.com/26ba273w.

3 Côté M. (2020, 26 février), L’église Saint Joachim sera démolie, Le Quotidien, URL : https://tinyurl.com/u6khkd34.

22
© Claude Forrest, 2015

MOBILISATION

[les clochers ont toujours été, au cœur des villages québécois, les bâtiments les plus importants autour de l’église s’agglutinaient les maisons des notables et des marchands alors que le cœur du village s’érigeait non seulement autour de l’église, mais signalait à toute la communauté qu’elle y trouverait des services temporels et spirituels ; en somme, l’église structurait la vie sociale, et il y a aujourd’hui mobilisation pour retrouver ce lien social]

LES CLOCHERS COMME SIGNE DE LIEN SOCIAL

Clochers déclassés

Date : 7 juillet 2019

Lieu : Saint Charles, quartier Limoilou (Québec)

Matériel : Canon EOS 7D

Ouverture : f/9

Vitesse : 1/200

ISO : 100

Distance focale : 18m

Pierre Fraser

Les églises dans le roman Bonheur d’occasion

« Le regard du jeune homme effleura le campanile de Saint-Thomas d’Aquin, la tourelle à colonnade du couvent, la flèche de Saint Henri, et monta directement aux flancs de la montagne » [Gabrielle Roy, Bonheur d’occasion, Montréal, Boréal, 2009, p. 39].

a notion de « patrimoine religieux »1, selon les définitions les plus courantes, englobe l’ensemble des objets patrimoniaux mobiliers, immobiliers et immatériels qui renvoient à l’expériencereligieused’unecommunautédecroyants2.Cettenotionmet ainsi à l’avant-plan une fonction particulière des objets concernés une fonction parmi d’autres, même si elle est censée êtreprédominante , alors que ces mêmes objets peuvent aussi appartenir à d’autres types de patrimoine. Afin d’éviter les ambiguïtés de sens, certains historiens de l’artpréfèrentdoncemployerletermede « patrimoineecclésial » pourréféreraux œuvres d’architecture à valeur patrimoniale appartenant au type « église »3. Comme l’écrivent Luc Noppen et Lucie K. Morisset, « […] nous croyons qu’il est essentiel de discriminer au sein de l’hétéroclite corpus du ‘patrimoine religieux’ ce qui est de l’ordre du religieux et ce qui est de l’ordre du patrimoine4 . » Car, pour aborder les églises sous l’angle de leur architecture, le terme de « patrimoine religieux » implique un raccourci trompeur qui a en outre le défaut confondre les prémisses de la recherche et les conclusions possibles : en quoi ce patrimoine architectural est il davantage religieux que culturel, artistique, national, etc., reste ici une question à élucider.

1 Cet article a été réalisé dans le cadre d’un programme de recherche subventionné par le Conseil de recherches en sciences humaines (CRSH) intitulé « L’affirmation d’une identité architecturale dans les diocèses catholiques romains du Québec : la ‘bataille des styles’ et le renouveau des pratiques architecturales, 1850 1900 » (Luc Noppen, responsable). Il s’inscrit dans un volet qui vise à étudier plus largement la représentation des églises dans la littérature québécoise.

2 Voir par exemple : Chaire religion, culture, société, « C’est quoi le patrimoine religieux », Université de Montréal, 2012, en ligne : https://tinyurl.com/ffmazk (page consultée le 15 juillet 2021).

3 Dans le sens classique donné à la notion de type architectural dans Nikolaus Pevsner, A History of Building Types, Princeton, NJ, Princeton University Press, 1976.

4 Noppen L., Morisset L. K. (2005), « Cap sur 2010 » (mémoire présenté à la Commission de la culture de l’Assemblée nationale du Québec dans le cadre de la consultation sur le patrimoine religieux du Québec), Montréal, p. vii. Disponible en PDF sur le site de la Bibliothèque de l’Assemblée nationale : http://www.bibliotheque.assnat.qc.ca

25
Marc Grignon, historien

Dans cet article, je souhaite donc explorer la signification des églises québécoises sans présumer de l’importance de cette dimension religieuse relativement à d’autres aspects pouvant servir à apprécier leur statut patrimonial. Mais comme il peut être assez difficile derecueillirdes témoignages historiques ennombresuffisant,énoncés dans des situations comparables par contraste à une étude qui serait conduite selon les méthodes d’enquêtes sociologiques bien normées avec le public d’aujourd’hui , j’aimerais aborder la question à partir d’un texte littéraire unique, le roman Bonheur d’occasion de Gabrielle Roy (1945), dont la valeur de témoignage historique doit évidemment tenir compte du fait qu’il s’agit d’une œuvre de fiction. En m’inspirant du « néo historicisme » des études littéraires, je peux proposer que, si les églises du roman en question n’ont qu’une relation médiate avec la réalité des quartiers montréalais au début de la Seconde Guerre mondiale, et plus particulièrement avec celui de Saint Henri, les représentations véhiculées par le texte ont quant à elles une pertinence historique indéniable lorsqu’il s’agit de comprendre le rôle des églises dans la vie quotidienne de leurs usagers et les significations que ceux ci leur attribuaient.5 Il ne s’agit donc pas de lire Bonheur d’occasion comme un document historique « ordinaire » pour tenter d’y trouver d’éventuelles informations factuelles sur telle ou telle église ce qui serait méprendre sur la nature du texte mais bien d’en comprendre la représentationdes édifices religieux comme une réflexion à leursujet, produite à l’intérieur de leur contexte historique. Outre le fait que le roman contient de nombreuses références aux églises et à leur architecture, je retiens donc Bonheur d’occasion parce qu’il s’agit, selon ce qu’en dit Gabrielle Roy elle même, d’un « roman d’actualité »6, c’est à dire une œuvre qui est ancrée dans le présent de l’auteure. Je propose ainsi d’examiner comment les églises fréquentées par Florentine Lacasse, Rose Anna Lacasse, Emmanuel Létourneau et quelques autres personnages participent à la construction de l’univers du roman, sachant que cet univers est conçu comme une représentation fictionnelle de la vie urbaine contemporaine.

Cloches et clochers

L’un des premiers éléments d’architecture écclésiale à apparaître dans Bonheur d’ occasion est le clocher de l’église Saint Henri, présenté comme un point de repère important dans la ville. Dans le texte, en effet, le clocher symbolise non pas l’église elle même, mais plutôt l’ensemble de la paroisse ou du quartier où réside la famille Lacasse. Ainsi, Jean Lévesque, errant dans la nuit en pensant à Florentine, observe comment le paysage

5 Cette dimension méthodologique est davantage développée dans : Marc Grignon, « ‘Une atmosphère prodigieuse de miracle’ : L'église paroissiale canadienne française et son image romanesque », Journal de la Société pour l’étude de l’architecture au Canada, vol. 46, no. 1 (2021), p. 62 74.

6 Entrevue de Gabrielle Roy avec Judith Jasmin, « Premier plan », émission de Radio Canada, 30 janvier 1961, disponible en ligne sur Radio Canada Contenus éducatifs/CBC Learning, « Curio.ca » : https://tinyurl.com/s65p576y (page consultée le 22 juillet 2021).

26

urbain se transforme devant lui après le passage d’un train qui laisse « une odeur âcre de charbon » :

« La suie commençant à descendre, le clocher Saint Henri se dessina d’abord, sans base, comme une flèche fantôme dans les nuages. L’horloge apparût ; son cadran illuminé fit une trouée dans les traînées de vapeur ; puis, peu à peu, l’église entière se dégagea, haute architecture de style jésuite. Au centre du parterre, un Sacré Cœur, les bras ouverts, recevait les dernières parcelles de charbon. La paroisse surgissait. Elle se recomposait dans sa tranquillité et sa puissance de durée. École, église, couvent : bloc séculaire fortement noué au cœur de la jungle citadine comme au creux des vallons laurentiens7 . »

▼ Le clocher comme trope d’une ville ou d’un quartier : cathédrale de Trois Rivières dans son milieu urbain.

Ce rapport entre une paroisse et le clocher de son église est donc un véritable trope architectural, qui trouve son écho dans une lecture plus étendue de la ville : « Ici, le luxe et la

7

27
BAnQ, photo Neuville Bazin, 1949. BAnQ, Fonds Ministère de la Culture et des Communications, E6,S7,SS1,P73122. CC BY NC ND. Roy G (2009 [1945]), Bonheur d’occasion, Montréal : Boréal, p. 38.

9

pauvreté se regardent inlassablement, depuis qu’il y a Westmount, depuis qu’en bas, à ses pieds, il y a Saint Henri. Entre eux s’élèvent des clochers8 »

Il est par ailleurs intéressant de remarquer que le rapport symbolique unissant un clocher et un quartier urbain fasse partie des souvenirs d’enfance que l’auteure relate dans La détresse et l’enchantement,l’autobiographierédigéeverslafindesavie.Dans unpassage racontant une « expédition » dans les grands magasins de Winnipeg avec sa mère, c’est au retour vers Saint Boniface que la vue des clochers familiers réconforte la jeune fille qu’elle était alors :

« Bientôt, au-delàdupont,nous devenaientvisibleslesclochers de la cathédrale, puis le dôme du collège des Jésuites, puis des flèches, d’autres clochers. Inscrite sur l’ardent ciel manitobain, la ligne familière de notre petite ville, bien plus adonnée à la prière et à l’éducation qu’aux affaires, nous consolait […]9 . » On rencontre là, sans aucun doute, un de ces motifs appartenant à « l’insaisissable essentiel » que la romancière tente de représenter dans ses œuvres de fiction, plutôt que les dimensions plus immédiatesde la réalitédont elle s’inspire10. Et par contraste à cette forte présencevisuelledesclochers dans l’espace du roman, leson des cloches seconfond avec la rumeur générale de la ville : « Au dessus des échoppes de cordonniers, des fruiteries et des petits débits, les fenêtres s’ouvraient sur des intérieurs qui mêlaient au flot roulant de la rue la rumeur de leur vie intime et qui, lorsqu’un train, un lourd camion, un tramway avaient passé, aspiraient des sons de cloche venus de loin11 . » Dans tout ce tintamarre il est utile de le souligner , on ne distingue pas uniquement des cloches d’églises : « À intervalles fréquents, une cloche éraillée sonnait en haut de la rue Notre Dame et un tram passait12 . » Ainsi, entre la vue des clochers et le tintement des cloches, on comprend que c’est la dimension visuelle qui suscite les associations les plus chargées d’identité13

8 Idem., p. 39.

Roy G. (1996 [1984]), La détresse et l’enchantement, Montréal : Boréal, p. 16.

10 Idem., p. 121.

11 Roy G. (2009 [1945]), op. cit., p. 283.

12 Idem , p. 86.

13 Ce qui constitue une différence marquée avec le monde rural, car le jour des noces de Rose Anna et d’Azarius, on entendait « des sons de cloche qui voyageaient par le village et les champs », Idem., p. 401.

28

l

intérieur de l’église

Une fois à l’intérieur de l’église, on peut correctement s’attendre à ce que les significations religieuses passent au premier plan, mais elles sont loin d’être les seules. Par l’entremise de ses personnages, Gabrielle Roy montre bien que ces significations sont encore très variées,entremêlantlereligieuxaveclesuperstitieux, les soucis d’amoureux et les préoccupations de représentation sociale, et suscitant toutes sortes de rêveries portées par l’ambiance du moment. Ainsi, àla fin d’une fête chezlesLétourneau, Florentine, Emmanuel et quelques autres quiavaient dansétoutelanuit, décidèrent d’aller à la messe, puisque c’était le dimanche matin, avant de rentrer dormir. Consciente de la signification que pourrait avoir sa présence à l’église aux côtés d’Emmanuel, Florentine se disait : « Pourquoi n’est ce pas Jean qui est là, tout près de moi ?14 » Et c’est à ce moment, sur un banc de l’église Saint Zotique, que Florentine « …comprit l’amour : ce tourment à la vue d’un être, et ce tourment plus grand encore quand il a disparu, ce tourment qui n’en finit plus15 . » C’est ainsi que, ce matin là, ses prières adoptèrent le caractère étrange d’une incantation magique : « Haletante, elle murmura, du bout des lèvres, avec le secret désir d’infliger à Jean, si c’était possible, cette soif aride, plutôt que d’en être elle-même guérie : ‘Je me ferais aimer de lui si j’en avais la chance’. Et par cela, elle entendait : ‘Je le ferai souffrir comme je souffre à cause de lui’16 . »

L’ambiance d’un intérieur d’église pendant une cérémonie religieuse : la messe de minuit du 24 décembre 1946 à l’église Notre Dame, Montréal. Photo Conrad Poirier, 1946, BAnQ, Fonds Conrad Poirier, 06M_P48S1P14133, domaine public.

14 Idem., p. 160.

15 Idem. p. 161.

16 Idem

29
À

Un peu plus tard dans le roman, accablée par son malheur dont elle venait de prendre conscience, réfugiée chez son amie Marguerite L’Estienne, Florentine se remémore cette matinée et associe l’église à une ambiance quasi magique où se confond le religieux et le bonheur insouciant d’alors :

« [L]orsqu’elle pensait à ces choses, à cette confidence restée dans son souvenir comme une flèche empoisonnée, une vision surgissait tout à côté, une vision toute différente, où l’église, les images saintes et même les cierges allumés de ce matin où elle avait assisté à la messe avec Emmanuel, les images, les cierges, l’église s’emmêlaient. Des journées de joie pure et naïve lui revenaient à l’esprit17 »

C’est à ce moment qu’Emmanuel, cherchant à revoir Florentine pendant une permission de deux semaines il était volontaire dans l’armée, comme les lecteurs du roman s’en souviendront , va réussir en allant assister à la messe dans sa propre paroisse. C’est ainsiqu’avaitcommencécettejournéepleine d’émotions, et qui s’était terminée par un accord de mariage précipité : « Le matin, il avait assisté à la grand-messe à l’église de Saint Henri, espérant y apercevoir Florentine, car, repris de sa timidité, il avait préféré larencontrercommeparhasardplutôtquede risquer une autre visite peut être inutile chez elle18 . » Pour Emmanuel, l’église est doncun lieu propice aux rencontres imprévues une caractéristique qu’il a utilisée afin de retrouver celle dont il s’était épris lors de la soirée amicale chez ses parents.

17 Idem, p. 310.

18 Idem., p. 374 375.

30
L’arrivée de quelques fidèles à l’église Notre Dame des Victoires. Photo HerménégildeLavoie, 1941. BAnQ,FondsMinistère delaCultureet desCommunications, E6,S7,SS1,P10186. CCBY NC ND.

La suite de cette rencontre met aussi parfaitement en évidence la fonction de l’église, et plus particulièrement le perron du bâtiment comme lieu de représentation sociale : « Ils descendaient ensemble les marches de l’église. Lui près d’elle au soleil, et sachant maintenanttouslesdétailsdesatoiletteneuve !Etcettejoieàsedire :‘Noussortonsdel’église ensemble ; nous avons l’air de vrais amoureux’19 . »

Mais par ailleurs, et sur un tout autre registre, l’intérieur d’une église pouvait aussi répondre à des usages plus personnels et privés, en dehors des offices religieux comme à cette époque l’accès aux églises était possible à toute heure de la journée. Ainsi, Rose-Anna, la mère de Florentine, recherchait plutôt un havre de paix, un endroit où entrer, se reposer et se recueillir au moment où cela lui convenait. Un jour de printemps, cherchant un nouveau logis pour sa famille, elle arpentait la ville jusqu’au moment où, « [à] sa droite, se dressait l’église Saint Thomas d’Aquin. Parce qu’elle étaitfatiguéeetqu’elleéprouvaitlebesoin de s’asseoir, de réfléchir, [Rose Anna] y entra et, à l’arrière de la nef, se laissa choir sur le premier banc20 . » Si, pendant ce temps d’arrêt qui ponctuait unejournéeremplied’inquiétude, Rose Anna a senti l’obligation de prier, ses pensées allaient dans tous les sens et ses prières étaient surtout l’occasion de prendre du recul face à sa propre situation et à celle de sa famille.

Une personne seule à l’intérieur de l’église Saint Sauveur, Québec, 1922. © Archives de la Ville de Québec, Fonds Raymond Villeneuve, N016862, domaine public.

Ici encore, un souvenir d’enfance relaté dans La détresse et l’enchantement permet un parallèle significatif entre réalité et fiction. Au retour d’une visite chez le médecin, la mère a suggéré à sa fille d’entrer dans la cathédrale de Saint-Boniface afin de solliciter une aide surnaturelle pour faire face la chirurgie une appendicectomie qui s’avérait urgente : « Maman m’entraîna presque aux premiers bancs, tout près du chœur. C’est là

19 Idem., p. 375.

20 Idem., p. 112 113.

31

que nous allions prier quand nous avions désespérément besoin d’aide, comme si nous avions ici plus de chances d’être vues et entendues21 » L’église quasi déserte et paisible, pouvant accueillir les âmes troublées à toute heure de la journée, fait donc partie du vécu de l’auteure autant que de celui de Rose-Anna.

L’église comme totalité architecturale

Le roman comprend aussi quelques références plus génériques à l’église comme lieu sacré, sans nécessairement renvoyer à aucune en particulier, comme lorsque Rose Anna observesa filledévote Yvonne quitterla maison pour aller voir le petit Daniel àl’hôpital : « Courbée à la fenêtre, Rose-Anna voyait partir un autre des siens. Ce voyage à la montagne lui paraissait grave pour une enfant qui n’était jamais allée seule plus loin que l’église22 . » Mais c’est dans le fier discours qu’Azarius, le père de Florentine et de ses onze frères et sœurs, tenait dans les tabacs du quartier, que le sens de l’église comme bâtiment complet apparaît le mieux :

« En ce temps là [Azarius] était devenu hâbleur, grand discoureur, fréquentant les débits de tabac, les petits restaurants du quartier, et il avait développé son talent inné de beau parleur. C’est alors qu’il avait commencé à se vanter des couvents, des églises, des presbytères qu’il avait bâtis et d’autres, à l’entendre, qu’il bâtirait bientôt. En vérité il n’avait bâti que des petits cottages pour nouveaux mariés, mais à force de parler d’églises, de presbytères, de couvents, il avait fini par se persuader qu’il en avait construit des centaines23 . » Azarius Lacasse est un personnage rêveur, maçon de métier, mais incapable de trouver un emploi satisfaisant à ce point dans sa vie. Son estime de soi étant ébranlée par de multiples échecs, il se vantait d’avoir été un grand bâtisseur d’édifices religieux dans sa jeunesse chose qui, à ses yeux, constituait clairement le plus haut sommet auquel un homme de métier pouvait aspirer. La construction d’une église, s’il faut le rappeler, était un projet architectural fondamental dans la pratique traditionnelle au Québec, et il n’est pas étonnant que la participation à ces chantiers ait été signe de réussite pour un homme de métier. Les églises étaient non seulement des bâtiments prestigieux par leur fonction, elles étaient aussi des projets collectifs, financés par les paroissiens, et elles présentaient souvent des défis de construction importants, étant donné la complexité de leur structure.

21 Roy G. (1996 [1984]), op. cit., p. 31 32.

22 Roy G. (2009 [1945]), op. cit., p. 408.

23 Idem., p. 181. Église, presbytère, couvent : il s’agit clairement du « trio » mentionné dans La détresse et l’enchantement, en parlant du village de Saint Léon au Manitoba : « Par ailleurs, si prédominants qu’on ne voyait à la fin que leur trio, s’élevaient : le presbytère, plutôt à la mesure d’une ville que de cette campagne isolée, le couvent, l’église », op. cit., p. 56.

32

Gabrielle Roy met ainsi en évidence, à travers les mots d’Azarius, la signification quasi mythique du statut de bâtisseur d’églises au Québec.24

Conclusion : l’église, patrimoine architectural multidimensionnel

L’église, telle que représentée dans Bonheur d’occasion, est donc un édifice dont la signification pour la société canadienne française de l’époque dépasse largement sa dimension religieuse. Les clochers des églises Saint-Henri, Saint-Thomas-d’Aquin et Saint-Zotique sont autant de points de repère qui articulent l’espace fictionnel à la manière de ceux des quartiers urbains que l’auteure a connus à Montréalet àSaint Boniface.Cesont,par exemple, des signes d’appartenance qui renvoient les personnages à leur origine, comme lorsqu’Emmanuel, sortant de la gare de Saint Henri, aperçoit « les flèches de la paroisse percer les tourbillons de fumée25 . »

Une église, en tant que bâtiment-phare au cœur d’un quartier, c’est beaucoup d’autres choses encore. L’église possède d’abord un rôle fondamental dans la représentation sociale : pour des jeunes gens comme ceux du roman, se montrer en couple à l’église est un geste qui peutannoncer des fiançailles et un mariage à venir. On prend donc garde avec qui on est aperçu sur le parvis de l’église, tout comme à l’intérieur. En effet, comme elle constitue un des principaux lieux de rencontre de toute la communauté, l’église permet non seulement de voir et d’être vu, mais exige aussi de faire attention à la manière selon laquelle on s’y présente.

La reconstruction de l’église de La Nativité de Notre Dame à Beauport, 1900. Archives de la Ville de Québec, fonds Michel Bédard, N083242.

24 Noppen L. (2020), « Thomas Baillairgé et Victor Bourgeau : Deux ‘architectes’ issus de la pratique architecturale instiguée au Québec par l’Église canadienne française au XIXe siècle », Le Carnet de l’ÉRHAQ (Équipe de recherche en histoire de l’art au Québec), no 4, p. 107 127, URL : https://tinyurl.com/3c49abrt

25 Roy G. (2009 [1945]), op. cit., p. 328.

33

Une église évoque aussi une variété d’ambiances dont certaines, enrichies du parfum des fleurs et du murmure des prières collectives, portent à la rêverie. La présence à l’église peutalorsdevenirl’occasiondenégocierunmarchésurnaturel,commelorsqueFlorentine tente de « gagner l’intercession de la Vierge »26 pour lui ramener Jean Lévesque. Et par ailleurs, en dehors des cérémonies religieuses, l’église est un lieu d’apaisement et de méditation, notamment pour Rose-Anna. Enfin, l’église, c’est le grand projet architectural qui, au Canada français, établit le prestige des artisans qui y participent.

Dans toute cette variété de significations, l’église, telle que représentée dans Bonheur d’occasion, est bien plus que du « patrimoine religieux ». Si, pour le clergé, une église est avant tout un lieu de culte, Gabrielle Roy montre qu’elle est déjà autre chose pour ses bâtisseurs, et encore autre chose pour les paroissiens eux mêmes, sans parler des différences de perception entre ceux ci. D’ailleurs, dans le roman, la dimension religieuse en tant que telle est étrangement reléguée au second plan sauf lorsqu’il est question d’Yvonne, dont la dévotion maladive inquiète la mère plus qu’elle ne la rassure. Une simple recherche d’occurrence du vocabulaire27 montre aussi que le mot « curé » est employé à peine deux fois dans le roman, et dans un sens générique, sans référer à aucun personnage spécifique, comme lorsqu’Emmanuel dit : « Je peux aller voir monsieur le curé de ta paroisse tout de suite demain. On arrangerait tout pour mercredi, peut être mardi…28 » Le mot « prêtre », quant à lui, n’apparaît pas du tout. Et le mot « sœur » (au sens de religieuse) n’apparaît qu’en relation aux projets d’Yvonne : « Je me ferai sœur, dit elle29 »

Ainsi, en prenant appuisur Bonheur d’occasion,il est possiblede proposer queles églises paroissiales, jusque dans les années 1960, étaient ancrées dans la vie quotidienne canadienne françaiseselon de multiplesdimensions, parmi lesquelles lecaractèresacrén’était pas nécessairement au premier plan pour tous leurs usagers. De sorte qu’aujourd’hui, lorsqu’il est question de la valeur patrimoniale de ces églises, il est essentiel de prendre en compte la variété de ces significations, en évitant donc de les enfermer dans une compréhension étroite de leur dimension religieuse.

26 Roy G. (2009 [1945]), op. cit., p. 162.

27 Pour cette recherche statistique, j’ai utilisé la même édition, celle de 2009, numérisée en 2017 et disponible sur Internet Archive : https://tinyurl.com/4run9um4.

28 Roy G. (2009 [1945]), op. cit., p. 391.

29 Idem., p. 407.

34

Bien entendu, la démonstration que je propose ici ne s’appuie que sur un seul roman, et il est évident que l’étude de textes d’autres auteurs pourrait révéler des visions assez différentes30 . Mais je peux néanmoins avancer l’hypothèse selon laquelle les églises, en tant que monuments architecturaux, devraient être comprises comme des lieux de convergence de la communauté canadienne-française dans toute sa complexité et dans toute l’ambiguïté de son rapport à la religion, et qu’elles étaient très rarement perçues comme symboles unidimensionnels d’un clergé omnipotent.

30 Un projet qui est esquissé dans l’article déjà cité : Grignon, « ‘Une atmosphère prodigieuse de miracle’ », loc. cit.

35
▼ Crypte de l’Oratoire Saint Joseph bondée lors d’une messe pour les malades en 1945 Photo du domaine public, Claude Poirier photographe ▼ Saint François d’Assise de Québec, érigée en 1918, démolie en 2020 pour faire place à une tour d’habitations © Pierre Fraser, 2019

Est-il possible de mobiliser les citoyens ?

uiconque a déjà parcouru en voiture ou à vélo les campagnes québécoises sait fort bien que pour s’orienter à l’approche d’un village inconnu et trouver son centre, nul besoin de Google Maps ou de satellites : il suffit de lever les yeux au ciel, non pas pour s’orienter grâce aux étoiles, mais pour repérer le clocher de l’église qui, immanquablement, indiquera le centre du village, ou le centre ville pour les agglomérations de plus grande importance. Traditionnellement, les églises ont toujours été, au cœur des villages québécois, les bâtiments les plus hauts, si l’on fait abstraction des récentes tours à bureaux ou d’habitations. Autour de l’église s’agglutinaient les maisons des notables ou marchands, alors que la grande majorité des Canadiens français vivaient, à l’époque de l’établissement des premiers villages, sur leurs propres terres agricoles. Le cœur du village s’érigeait donc autour de l’église.

▼ Déjà, en 1870, les clochers organisaient le social (Église Saint Jean Baptiste au premier plan)

37
Rémi Tremblay, journaliste

Comme le soulignait l’historien Gilles Dandurand, en s’inspirant des travaux de l’anthropologue américain Horace Miner, comparant, au début du siècle dernier, les villes américaines et canadiennes françaises, la différence n’était pas que superficielle : « Quelle est la plus haute forme de civilisation ? Celle où les hommes s’agglutinent en villages autourdesusines,afindepouvoirvivre ;oubiencelleoùleshommesserassemblentautour du lieu.

Il faut dire que les cloches marquaient le quotidien du peuple, comme l’ont bien souligné les auteurs des romans dits du terroir.Avant l’arrivée des téléphones intelligents, c’est bien le sacristain qui, en faisant sonner les cloches, ponctuait le temps. Les cérémonies religieuses rythmaient quant à elles les saisons. Le parvis de l’église, loin d’être banal perron, représentait l’agora du peuple, là où l’on brisait la solitude, où l’on se racontait les dernières nouvelles, où l’on parlait du temps passé et à venir. L’église, avec et sans majuscule, représentait le centre de la vie canadienne française. Aujourd’hui, ces mêmes églises sont pour la plupart désertées, ou occupées bien en dessous de leur capacité maximale de fréquentation. Ces monuments à la gloire de Dieu, mais aussi en hommage à l’esprit de communauté, car ils furent érigés par les paysans et travailleurs à la sueur de leur front dans les quelques temps libres que la vie paysanne leur allouait, sont devenus lourds à porter. Qu’on s’en attriste ou s’en réjouisse ne change rien au fait que le Québec n’est plus aussi pratiquant qu’il le fut. Des 2 746 églises que la province comptait en 2013, 612 ont déjà été fermées, démolies ou reconverties, et de nombreuses autres risquent le même sort à court et moyen terme.Il nes’agitdoncpas d’un problèmelocal, mais bien d’ordrenational. Pour la plupart des petites communautés, que l’on parle des paroissiens ou des habitants des petites municipalités québécoises, ces grands bâtiments représentent un défi financier constant pour les Fabriques. Ces bâtiments, construits pour la durée à partir de robustes matériaux, doivent être entretenus, et cela, à des coûts prohibitifs. Le problème du chauffage sur cette terre qui « n’est pas un pays, mais l’hiver34 », ramène constamment la dimension pécuniaire. Et s’il y a une constante incontournable au Québec, c’est bien cet hiver toujours aussi rude qui se ramène chaque année. Ces problèmes financiers et ces dépenses lourdes et récurrentes, alors que les entrées d’argent se font de plus en plus rares, sont l’épée de Damoclès pendue au dessus des conseils de Fabrique qui tentent, tant bien que mal, en faisant des prouesses et en invoquant le Saint Esprit, de boucler, mois après mois, leur budget. Pour la plupart, ce n’est qu’une question de temps avant qu’une décision ne s’impose d’elle même, alors que la vente d’objets religieux, de terrains ou de bâtisses connexes ne fait que repousser un peu plus le délai de leur inévitable fermeture.

38
34 Référence à la chanson Mon pays, écrite en 1964 par Gilles Vigneault.

Plusieurs de ces édifices, particulièrement ceux construits dans les banlieues dans les années 1950, dotés d’une architecture qui se voulait avant-gardiste, représentent un intérêt limité. Brisant volontairement avec la tradition, à l’image des idées émanant du concile Vatican II, ces temples ne furent pas érigés pour la durée. À l’inverse, les églises et les chapelles, que l’on retrouve au cœur des villages ou des centres-villes, font partie du patrimoine historique du Québec ; c’est là un héritage patrimonial majeur. Nous n’avons point de châteaux, de palais, ou de ruines millénaires, comme le soulignait par ailleurs l’historien Luc Noppen, mais uniquement des maisons ancestrales et des églises où l’on soulignait les événements marquants de la vie, depuis le baptême jusqu’au dernier au revoir.

▼ Église Notre Dame de Fatima, située à Jonquière, érigée en 1962, démolie en 2017

© Claude Forrest, 2019 Malheureusement, autant chez certains dirigeants que chez une bonne partie des citoyens, c’est la logique utilitaire, faussement pragmatique, qui l’emporte. À quoi bon rénover ces temples ? Combien cela coûtera t il ? Ne serait il pas préférable d’ériger une bâtisse plus moderne ? Ces interrogations sont légitimes dans un monde où, malgré l’abondance, plusieurs peinent à boucler leurs fins de mois. Seulement, faut il encore justement se détacher de la pensée à court terme et prendre un recul. Toutefois, un constat s’impose : on ne brade pas un héritage culturel pour payer une facture mensuelle. Un héritage familial se transmet de génération en génération, restant dans la famille comme un trésor non monnayable. Ce qui est vrai au niveau de la famille l’est également sur le plan national.

39

Les problèmes financiers sont une constante de l’histoire en matière de patrimoine et on ne peut sacrifier un héritage d’une telle valeur historique et spirituelle pour un impératif financier temporaire. La France, qui a connu des crises financières tout au cours de son histoire, a su mettre en place des mesures pour conserver et mettre en valeur nombre de ses cathédrales et châteaux. Si les Québécois d’aujourd’hui ne savent plus profiter de ce patrimoine et n’yvoient aucunintérêt immédiat, les générations futures, peut-être inspirées par la devise ornant nos plaques d’immatriculation, « Je me souviens », sauront possiblement le faire mieux que nous. Il est de notre devoir de laisser intact cet héritage ou lui redonner un souffle nouveau, comme certains surent le faire en redonnant une vocation communautaire à ces lieux chargés d’histoire et de symboles. Hormis la logique utilitaire qui prévaut actuellement, une autre menace réside dans l’anticléricalisme qui reste prévalant dans certaines couches de la population. Cette Église, qui fut un jour triomphante, se retrouve désormais accusée de tous les maux. Elle serait synonyme de censure, restrictions, voire de noirceur. Le peuple québécois n’aurait pu s’émanciper, non pas à cause de la domination étrangère, mais bien à cause de la mainmise de l’Église catholique sur l’éducation, la culture et la santé. Il y a là une vision réductrice, manichéenneetsurtouterronéedel’histoire.AlexisdeTocquevilleexpliquaitquelepeuple préfère une histoire simple et en partie fausse à une histoire complexe et en bonne partie vraie.

L’Église a commis des fautes, tous en conviennent. Elle est composée d’hommes nécessairement imparfaits, mais enAmérique française, c’est l’Église et ses missionnaires qui ont jeté les bases de notre société. Les universités, les hôpitaux, les services sociaux et les écoles ne sont pas sortis ex nihilo de la Révolution tranquille ; ils furent fondés par des hommes et des femmes dévoués, dénués pour la plupart de tout intérêt personnel. Sans les Jeanne Mance, Marguerite Bourgeoys, Marguerite D’Youville, Marie Guyart, et Monseigneur François de Laval, que serait aujourd’hui le Québec amputé de leur apport ? Ceux qui les conspuentpourraient ils le faire en français s’il n’y avaitpas eu le clergé,cette institution ayant permis la survie d’une société parallèle, alors que les Britanniques dominaient le politique et l’économique ? La foi gardienne de la langue, proposition qui se lit aussi bien dans un sens que dans l’autre, n’était pas qu’une figure de style.

L’ancien chroniqueur de la Presse, Daniel Laprès, résumait bien la question lorsqu’il écrivait, le 17 février 2021 : « On peut certes critiquer notre clergé catholique, qui était, on l’oublie souvent, constitué des membres de nos familles, mais, quelles que soient nos convictions religieuses ou philosophiques, cela ne peut ni ne doit nous dispenser du devoir de rendre justice à la vérité, voire de ne pas commettre d’injustice mémorielle à l’égard de compatriotes qui sesontdévoués en faveurdu mieux êtredenotre peupleet desapérennité

40

historique.35 » Sepourrait-ilquelagratitudeet lamémoirenefassent pas partiedes qualités communes aux Québécois ?

Il est inutile ici de tergiverser sur les conséquences morales de l’abandon de la religion, ce qui déborde largement le cadre de ce texte. Mais à un niveau plus terre à terre, le dénigrement de l’Église, pourtant institution historique capitale pour la survivance de notre peuple, relève t il de la mauvaise foi, ou au mieux, de la paresse intellectuelle ou de l’ignorance ? L’auteur et animateur Gilles Proulx écrivait à raison qu’« en essayant de s’expurger de tout ce qui reste du Canada français, le Québec s’éviscère.36 » Cette amnésie est « pourtant l’œuvre des Québécois eux mêmes37 ». Nous ne pouvons chercher le blâme ailleurs qu’en nous mêmes. À cet égard, l’abandon des cours d’histoire dans les écoles du Québec ne réglera malheureusement en rien le problème. Mais ce constat, une fois posé, il est clair que la seule bonne volonté et les meilleures intentions du monde ne fourniront ni le chauffage nécessaire ni les matériaux pour réparer, rénover et entretenir nos églises. Le gouvernement, qui représente le peuple, a son rôle à jouer. Il le jouerait d’ailleurs mieux s’il sentait une mobilisation pour toutes ces églises en attente de projets, s’il percevait un réel désir de les préserver. Par définition, les gouvernements réélus tous les quatre ans ont une vision à court terme qui se conjugue bien mal avec les enjeux de longue haleine ; c’est là le drame du patrimoine bâti et culturel du Québec. Le dévoilement d’une nouvelle statue est toujours plus intéressant que l’entretien de celles d’hier. La coupe du ruban est plus photogénique et payante, politiquement parlant, que l’octroi d’un contrat de réfection. Il revient donc, non pas d’attendre un geste du gouvernement québécois, mais de le devancer et de se mobiliser en tant que citoyen dans la préservation de notre patrimoine historiqueetreligieux.Danslesvillagescomme LaDurantaye,dontleprojetdesauvegarde fut mis en lumière par la caméra du sociologue Pierre Fraser38, ce sont les paroissiens et les citoyens qui se sont mobilisés pour transformer leur église en conservant sa vocation communautaire tout en permettant la célébration de la liturgie. Des sommes furent octroyéespardifférentsministèresqui appuyèrentl’initiative.Mais tout commençaparune mobilisation populaire, clé de la réussite du projet. En fait, ce sont quelques individus qui rallièrent autour d’eux une équipe qui sut porter le projet durant plusieurs années pour permettre la survie à long terme de leur église patrimoniale. Leur modèle est intéressant et peut être adapté et émulé, mais le principal exemple qu’ils nous donnent, c’est leur mobilisation qui fut l’élément décisif. Les observateurs se sont intéressés à la reconversion de leur église, au financement du projet, et aux détails architecturaux, mais l’essentiel était

35 Laprès D. (2018), « Un jeune vicaire victime de son dévouement », Glanures historiques québécoises, URL : https://tinyurl.com/2jkr3vu3.

36 Proulx G. (2019), La mémoire qu’on nous a volée, Montréal : Les éditions du Journal, p. 113.

37 Idem

38 Fraser P. (2020), Requiem pour une église, la requalification du patrimoine religieux, URL : https://youtu.be/vtUfOdrYriM

41

ailleurs : la mobilisation de quelques personnes que rien ne prédestinait à une telle entreprise.

▼ Travaux de réfection de l’église Saint Gabriel, La Durantaye

© Marc Roy, 2015

▼ L’église Saint Gabriel a désormais une triple vocation : cultuelle, culturelle et communautaire

© Pierre Fraser, 2019, https://youtu.be/vtUfOdrYriM

42

Il revient donc à chacun, en tant que maillon d’une chaîne interrompue qui s’appelle l’histoire, de se faire récipiendaire, mais aussi légataire de notre héritage collectif face à ce patrimoine religieux bâti. Les démarches auprès d’élus, afin de les inciter à participer à la sauvegarde ou à la reconversion des églises, sont certes nécessaires, mais ce qu’il faut, avant tout, ce sont des actions concrètes. Il faut que quelqu’un se lève et dise : « Nous sauverons notre église. Rassemblons-nous et discutons maintenant du comment. » En somme, il ne faut pas attendre d’être à la traîne des événements, il ne faut pas attendre qu’il soit trop tard ; il est toujours plus facile d’agir quand il reste une marge de manœuvre.

43
© Pierre Fraser, 2021 ▼ Face à la pérennité du patrimoine religieux bâti (église Saint Rodrigue, Québec)

Ce

qui

est

réalisable

et ce qui ne l’est pas epuis le début des années 1970, le Québec a été confronté à un rejet en règle de l’Église catholique et de ses institutions, et cela, sans discernement Pourtant, il est impossible de dissocier notre histoire de cette omniprésence de la religion catholique romaine dans toutes les sphères de la société, ne serait-ce que par l’ensemble de ces églises, couvents, monastères, écoles, hôpitaux et hospices qui caractérisent le territoire et le paysage québécois. Elles ont chacune leur identité et leur importance dans leur communauté, et font maintenant l’objet d’efforts de sauvegarde de plusieurs groupes locaux de citoyens. Pour nous, l’église Saint-Jean Baptiste de Québec est cependant l’un des symboles forts de cette implication citoyenne, car elle dépasse les limites du quartier et interpelle toute une région, et ce, depuis plus de trente ans.

44
Louis René Dumoulin, citoyen engagé Pierre Fraser, 2021 ▼ Église Saint Jean Baptiste de Québec

Les motivations à travailler pour la sauvegarde d’un patrimoine religieux, quel qu’il soit, sont fondées sur deux critères particuliers : (i) l’appartenance à une communauté religieuse tissée serrée on part d’un intérêt pour un édifice religieux, symbolisant la cohésion sociale, auquel on est émotivement lié, et à partir de cet attachement, souvent on s’intéressera aux environs immédiats, voire même à tout le quartier, développant ainsi une approche communautaire élargie ; (ii) une sensibilisation particulière au patrimoine bâti de son quartier (initiation, exemple, éducation, mobilisation, etc.), dont le patrimoine religieux devient ainsi le fer de lance il s’agit alors d’une approche culturelle. Ces deux visions impliquent des moyens d’action qui leur sont propres et qui peuvent parfois sembler contradictoires. Elles demandent aussi un travail auprès de hiérarchies différentes : la religieuse versus la laïco socio politique, qui ne sont pas pour autant incompatibles, moyennant certains compromis.

L’implication citoyenne est généralement bénévole, une richesse certes, mais pleine de limites. En effet, tout ce que l’on peut faire en mode bénévolat, se résume au fait de tenter de convaincre. Nous ne disposons pas de tous les outils et leviers nécessaires pour arriver ànosfins :reconnaissanceséculaire,propriété,règlements,lois,financement,contacts,etc. Il nous faut donc trouver, au fur et à mesure, les appuis qui aideront à faire avancer le projet. Toutes ces démarches font penser au jeu Serpents et échelles où les échelles permettent de franchir les différentes étapes (que l’on découvre progressivement), et convaincre ainsi les différents paliers de décideurs qui pourraient faire avancer les choses. Toutes les occasions sont à saisir, aucune ne peut être rejetée : rencontres avec des journalistes (entrevues, articles) consultations publiques (au niveau municipal ou provincial avec dépôt de mémoires), rencontres communautaires, participations à des fêtes de rue ou à des colloques, etc. Toutefois, certains événements imprévus peuvent rapidement mettre à risque la réalisation d’un projet qui semblait déjà bien amorcé. Et voilà les serpents : crise économique, crise sanitaire, changement de gouvernement, etc. Et tout est à recommencer. Le défi, en ce qui concerne la mobilisation citoyenne, consiste essentiellement à conserver l’équipe intacte, peu importe les aléas, afin de se remettre éventuellement au travail et de talonner les différentes instances politiques.

La réalité de notre quartier

Le faubourg Saint Jean Baptiste, désormais reconnu comme quartier, faisait partie de ces premières banlieues qui ont ceinturé la Ville de Québec. Il a gardé une forte tradition de quartier populaire, même si une certaine élite locale y a toujours été présente. En effet, travailleurs de passage, étudiants et résidents de plus ou moins longue date lui confèrent une certaine couleur locale, qui se remarque non seulement dans l’animation de ses rues, mais aussi dans un engagement notable dans plusieurs enjeux de la vie urbaine.

45
▼ Parvis de l’église Saint Jean Baptiste en 1985
© Archives de la Ville de Québec, Q C5 IC N029254)

Cette implication à long terme des citoyens a permis de mener à bien certains projets d’envergure, dont l’agrandissement et la réfection du parvis de l’église Saint Jean Baptiste il y a plus de vingt ans après quinze ans de travail et de suivis. En 1986, alors que la paroisse Saint Jean Baptiste s’apprêtait à fêter le centième anniversaire de son érection canonique, le professeur de l’École d’architecture de l’université Laval, Benoît Bernier, lançait l’idée d’une Place de l’église Saint Jean Baptiste lancée dans le cadre d’un atelier de design architectural. En fait, le but de l’atelier était d’établir un lien entre la rue Saint Jean et la rue Lockwell, soit par la côte Claire Fontaine (projet de design urbain), soit par un lot transversal libéré par suite d’un incendie (projet d’architecture). L’idée de mettre en valeur l’église (le thème du projet ayant évolué et s’étant recentré) a été reprise par deux résidents, Guy Bélanger et moi même.

Nous voulions travailler concrètement sur l’aménagement de la Place de l’église Saint Jean Baptiste, qui s’est transformée, au fil du temps, en un projet de parvis agrandi doublé d’un escalier monumental reliant la rue Saint Jean aux rues Saint Gabriel/Lockwell. Notre

47
▼ Escaliers menant au parvis de l’église Saint Jean Baptiste © Pierre Fraser, 2021

objectif était de recréer une vraie place publique la première église construite vers 1847 ayant brûlé le 8 juin 1881, le parvis original avait été diminué de moitié lors de la reconstruction de l’église , augmentant ainsi l’espace piéton, ce qui permettait dès lors des activités culturelles et communautaires, afin de mettre non seulement en valeur la façade de l’église, mais aussi d’accroître la zone de sécurité pour les enfants de l’école primaire mitoyenne. Faut-il ici préciser que nous n’avions pas appréhendé la complexité des démarches à venir, ne serait-ce que par la localisation du projet dans un quartier densément construit, à proximité de deux équipements communautaires faisant office de cœur du village, et aux deux grands propriétaires des lieux : la Ville de Québec pour les deux sections de rues, Deligny et Claire Fontaine (et tous ses services), et la Fabrique de Saint Jean Baptiste(aveclediocèsecatholiquedeQuébec)pourleparvis.Maiscommeleditledicton, un éléphant ne se mange que bouchée par bouchée.

Convaincus que nous étions de la justesse de notre proposition, nous avons décidé d’en faire la promotion auprès du quartier, des politiciens et des fonctionnaires municipaux. A posteriori, force est de constater qu’aucune démarche n’avait été entreprise de notre part auprès de la paroisse, comme s’il s’agissait d’un autre réseau de communications. Notre attitude était elle liée à la laïcisation croissante de la société québécoise, ou s’agissait il d’un choix strictement pragmatique, sachant pertinemment que les possibilités techniques et financières relevaientdelaVillepour la réalisationd’untelprojet et non de la Fabrique ? La question reste ouverte. En 1993, le Conseil de Quartier de Saint Jean Baptiste a pris le relais dans le dossier et l’a mené à sa réalisation complète en 2001. La Place a officiellement été inaugurée le 24 août 2002 lors d’une grande fête populaire de plus de douze heures : discours, coupe de ruban, danses, musique, spectacles, encan d’œuvre d’art, jeux de lumière, etc.

Toutes les forces impliquées dans le quartier sont parvenues à un consensus, non pas seulement en ce qui concerne la fonction même du lieu, mais aussi en ce qui concerne son design : Fabrique de Saint Jean Baptiste, Ville de Québec, résidents, École d’architecture de l’université Laval ont tous participé à son élaboration. Certes, le projet de départ est quelque peu différent de celui initialement conçu, mais nous parlons ici d’aménagements raisonnables et faisables, et non pas d’utopie, ce qui fait que nous n’avons obtenu que la moitié du projet espéré. Il a donc fallu attendre treize ans avant de voir se réaliser d’importants travaux d’infrastructures pourobtenirune amélioration de la portion de la côte Claire Fontaine : des trottoirs/escaliers mieux calibrés (c. à d. plus agréables à monter et à descendre) dotés de garde corps de qualité, avec un éclairage urbain adapté, et doublé sur un seul côté d’une cascade de bacs fleuris.

48

Finalement, après entente entre la Fabrique de la paroisse Saint Jean Baptiste (parvis) et la Ville de Québec (rue Deligny), la Ville prenait à sa charge l’aménagement (incluant la végétalisation) et l’entretien de la future place publique, tout en s’engageant à consulter et obtenir l’accord de la Fabrique pour toute utilisation temporaire ou saisonnière de ce nouvel équipement urbain : spectacles, projection de films, installations expérimentales, marché public, etc. Tant que l’église Saint-Jean-Baptiste serait ouverte au culte, le respect de cette entente restait essentiel.

Même après la cérémonie de fermeture au culte le 24 mai 2015 de l’église Saint Jean Baptiste,ilestdevenuimpératifquececanaldecommunicationresteouvertpourconserver un accès à l’église, que ce soit pour de quelconques travaux ou pour répondre à certaines urgences. Parallèlement, en février 2002, un comité de coordination a été créé pour l’utilisation de la place de l’église Saint Jean Baptiste, regroupant à la fois des représentants de la Ville de Québec (Service des loisirs et de la vie communautaire), de la Fabrique de la paroisse Saint Jean Baptiste, du Comité du patrimoine de Saint Jean Baptiste, du CPP, de l’Association des gens d’affaires du faubourg, des Loisirs communautaires Saint Jean

49
▼ Parvis et escaliers réaménagés en 2001 © Pierre Fraser, 2021

Baptiste, de l’Organisme d’entraide et d’intervention locale (sécurité urbaine), du Comité populaire Saint Jean Baptiste (comitéde citoyens), etilvasansdire, du Conseil dequartier de Saint Jean Baptiste.

▼ Place de l’église

Forts de ce succès et de quelques autres, les citoyens du quartier Saint Jean Baptiste n’ont pas hésité à s’impliquer dans le dossier de leur église dès qu’ils ont appris que sa fermeture au culte était imminente. Cependant, la sauvegarde d’une église patrimoniale de cette envergure dépasse les simples moyens dont disposent certains groupes de citoyens, furent ils bien organisés, mobilisés et grandement motivés. Et c’est là où le réel se manifeste, dans la capacité citoyenne à agir face au devenir du patrimoine religieux bâti, qui est, faut il l’avouer, fort limitée. Si l’implication citoyenne est avant tout une histoire d’amour et de cœur, elle devrait être soutenue et non pas constamment questionnée et rejetée peu d’échelles et beaucoup de serpents. Il y a eu suffisamment d’implication de la part de groupes d’intérêts et de citoyens pour que les différents paliers gouvernementaux constatent que les habitants d’un quartier ont à cœur la préservation de leur patrimoine religieux,

50

non seulement comme témoin de leur histoire, mais aussi comme lieu de cohésion sociale. L’heure n’est plus aux consultations, mais bien aux actions concrètes de la part des instances concernées avant que ne disparaisse un patrimoine religieux témoin du passé collectif de l’histoire du Québec.

▼ Parvis de l’église Saint Jean Baptiste, Fête Dieu (1930 1940)

51
© Collection Yves Beauregard

Des projets, que des projets…

église Saint-Jean- Baptiste de Québec, chef d’œuvre de l’architecte Joseph Ferdinand Peachy, occupe une place dominante dans le paysage urbain. Plus qu’un bâtiment de culte, elle est aussi un centre important de la vie communautaire et économique du quartier.Lasauvegardedel’égliseSaint JeanBaptisteestunequête qui a commencé bien avant2008. Répertoriée commebâtiment historique en 1991, priorisée dans la liste des églises à préserver sur le territoire de la ville de Québec, sa beauté remarquable et son importance architecturale lui assurent une certaine visibilité, mais sa survie demeure toujours incertaine. Études, plan de relance, nouveaux concepts, il va sans dire que beaucoup de travail a été investi pour la pérennité de ce bâtiment. Nous nous intéresserons donc ici aux projets développés de 2010 à 2019 par Espace Solidaire, un groupe de citoyens de la grande région de Québec.

2008 : naissance d’un premier projet

Les quatre cents ans de la fondation de la ville de Québec ont été célébrés en grande pompe en 2008. Plusieurs activités ont viséle grand public en général, mais une programmationparticulièreavaitétémisesurpied,notammentunbrunchhommageauxbénévoles de la région. Le responsable du déroulement de cette activité, Jacques Dussault, constatant l’ampleur de l’action bénévole, a élaboré un concept d’espace voué à la reconnaissance de cette implication citoyenne. Grand admirateur de l’église Saint Jean Baptiste, et bien au fait des préoccupations de sauvegarde de ce bâtiment, il a vu là une occasion plus qu’intéressante d’y implanter ce lieu de mémoire. Le concept, envisagé à l’époque, comportait trois dimensions : un lieu d’éducation et de reconnaissance de l’engagement social ; un centre d’histoire et de commémoration de l’action communautaire ; un espace muséal et un espace « hommage et reconnaissance ».

Ce projet initial était en parfaite cohérence avec le quartier. En effet, le faubourg SaintJean- Baptiste, reconnupour avoir, au fil de son histoire, développé la solidarité et l’esprit d’entraide, a connu son lot de catastrophes, notamment plusieurs incendies et épidémies, menantàl’installation deplusieursorganismesdebienfaisance. Conséquemment,l’église serait alors transformée en musée de « traditions vivantes », et les expositions auraient pour thèmes les citoyens et leurs œuvres, une façon de mettre en lumière ce travail trop souvent anonyme. De plus, afin d’assurer la rentabilité du lieu, une salle

52
Dominique Drolet, ethnologue

multifonctionnelle serait aménagée et deviendrait le lieu d’accueil de toutes les activités de reconnaissance de la région. Le sous sol resterait ouvert aux organismes communautaires et de bienfaisance.

2010 : Ekklesia

Seul au départ pour présenter ceprojet auxdifférentes associations du quartier, ministères et entreprises, Jacques Dussault a mobilisé des gens désireux comme lui d’assurer la pérennitéetla viabilitédubâtiment.Ainsiseretrouveront,dans letoutpremierconseild’administration d’Espace Solidaire1, incorporé en 2010, des représentants du Conseil de quartier de Saint-Jean Baptiste, de l’association des gens d’affaires, de Centraide, de la Fabrique de Saint-Jean Baptiste, du Diocèse catholique de Québec, du Comité du patrimoine de Saint-Jean-Baptiste, de la compagnie d’assurances Industrielle Alliance, dont la mission étaiton nepeut plus claire : la sauvegarde et la mise en valeurde l’église SaintJean Baptiste de Québec.

Une étude préalable visant à mieux définir ce concept sera donc réalisée. Le projet prendra forme et sera véhiculé sous le vocable Ekklesia. Les administrateurs devront désormais convaincre les diverses autorités concernées tels que le ministère de la Culture et des Communications, la Ville de Québec, et le diocèse du sérieux de leur démarche, afin de trouver les fonds nécessaires pour financer des études plus poussées. En revanche, malgré les compétences et le CV tout de même impressionnant de certains des membres du Conseil d’administration, ces bénévoles souffraient indéniablement d’un manque de notoriété auprès des instances concernées.

24 mai 2015 : fermeture

Le 24 mai 2015, l’église Saint-Jean Baptiste a été fermée au culte, provoquant une onde de choc dans la communauté et la région. Cette éventualité, maintes fois évoquée, est survenue beaucoup plus rapidement que prévu. Les organismes communautaires installés au sous sol ont dû déménager, et la vie s’est soudainement arrêtée pour ce bâtiment. Un sentiment d’urgence s’est installé et le conseil d’administration d’Espace Solidaire a multiplié ses rencontres avec la ville de Québec, le ministère de la Culture, et les différents groupes de citoyens. Au fil des rencontres et des présentations, un certain intérêt s’est manifesté qui mènera éventuellement à une étude plus poussée concernant le devenir de l’église.

1 Espace Solidaire, URL : https://tinyurl.com/vfzjs9bs.

53

Problème de propriété

Les membres du Conseil d’administration d’Espace solidaire ont aussi rencontré la Fabrique afin d’obtenir un mandat clair pour cette recherche de nouveaux usages au bâtiment. En effet,lafermeturedel’église asurpristous les intervenants, d’autant plus qu’aucun d’entre eux n’avait été consulté, mais seulement informé de la décision. En officialisant ce mandat, les administrateurs obtenaient ainsi la légitimité de poursuivre leurs démarches. Cependant, le problème du transfert de propriété du bâtiment demeure un obstacle majeur, qui n’a toujours pas été réglé, mettant un frein à toutes initiatives futures. Des pourparlers ont été entrepris entre la Fabrique, le Diocèse et Espace Solidaire, mais les démarches ont été interrompues, les règles du protocole d’entente soumis par le Diocèse étant irrecevables pour un groupe de huit bénévoles.

L’annéequisuivraporterauncoupduràl’engagementdecesadministrateurs,etplusieurs quitteront le navire. L’étude de faisabilité démontrera un potentiel certain du projet Ekklesia, mais celui ci ne rencontrera pas l’assentiment des décideurs. Malgré l’originalité du concept, le fort potentiel touristique et l’absence de salles multifonctionnelles de ce gabarit dans la région, et malgré l’appui du Centre des congrès de Québec, les différents gouvernements n’ont démontré aucun intérêt à soutenir Ekklesia. De plus, l’incendie, en 2008, du manège militaire, et sa reconversion en salle de spectacle, appuyée par un financement du gouvernement fédéral, a nui de façon majeure à l’avancée de notre dossier. Dans un tel contexte, difficile de conserver l’enthousiasme, sans compter que le conseil d’administration s’est étiolé et que l’organisme est quasi en phase terminale Mais l’étincelle demeure pour certains, et une équipe a été mise en place pour un tout nouveau projet : le Carrefour de généalogie de l’Amérique francophone2 . À ce titre, la compositiondunouveauconseild’administrationreflètebiencenouveaupositionnement, alors que se sont joints aux administrateurs déjà en poste, le président de la Société de généalogie et le président de l’Association des familles souches. Plusieurs présentations, activités et conférences ont été réalisées autour de l’arrivée de ce futur carrefour, et ont reçu un accueil des plus favorables des différents publics. Imaginé et proposé par Marc Chamberland, ce concept original, particulièrement innovant et aux multiples facettes, répondrait à tous les besoins : espace communautaire dans le vaste sous-sol, attraits touristiques dans la nef et animation de rue grâce à son spectacle. Études, plans et devis, consultations populaires, nous ont permis de peaufiner ce projet d’envergure. Le point fort du concept est certes sa thématique, car étant donné que le tourisme généalogique est une démarche touristique qui prend de plus en plus d’ampleur, le Carrefour de généalogie de l’Amérique francophone promet donc une expérience unique grâce à l’utilisation des

2 Ville de Québec (2010), Entente entre la Ville de Québec et Espace solidaire concernant le financement du Carrefour de généalogie de l'Amérique francophone, URL: https://tinyurl.com/49mwx2kt.

54

nouvellestechnologies :unparcoursimmersifmultimédiadanslechœurdel’égliseSaint Jean Baptiste racontant les histoires remarquables de ces hommes et femmes qui ont bâti l’Amérique ; un spectacle d’envergure internationale sous le thème de la généalogie, dont l’idéation et la faisabilité ont été confirmées par une firme importante, chef de file de ce type de divertissement.

Fortdeceprojet, EspaceSolidaireaapproché leCentredelafrancophoniedesAmériques pour un éventuel partenariat qui s’annonce sur la bonne voie. La généalogie étant un élément majeur du prochain plan stratégique du Centre de la francophonie des Amériques, ce projet aura des retombées touristiques potentielles importantes, et deviendrait éventuellement un levier important, sachant que la ville de Québec constitue le berceau des francophones d’Amérique.Puisquenos racines sesontétenduespartouten Amérique,des milliers de futurs clients potentiels pour notre Carrefour et notre région seraient potentiellement à l’avenant.

Tant de travail pour si peu de résultats

Il va sans dire que l’enthousiasme et l’engagement ne sont malheureusement pas un gage de succès, peu importe le dossier à traiter. L’échec à réaliser l’un ou l’autre de ces projets pourtant porteurs nous a démontré que, sans l’appui du politique, les équipes essentiellement formées de bénévoles ne font pas du tout le poids. De là, simultanément au travail sur le contenu du Carrefour de généalogie, le groupe Espace solidaire propose la création d’unefiduciequi deviendraitpropriétaired’une oudes églises priorisées tout en disposant d’une équipe permanente pour gérer lesdits bâtiments. Cette proposition de fiducie est actuellement défendue par un comité mandaté par la Ville de Québec pour trouver des façons créatives d’assurer la pérennité de huit églises précises, soit le comité Porter3. Le travail sera long… Espace solidaire s’est mis en pause pour finalement se dissoudre en 2019, mais un groupe s’est reformé sous l’égide du Conseil de quartier de Saint-Jean-Baptiste. Une collaboration avec l’école Saint-Jean-Baptiste, sise en face de l’église, se dessine, des projets se discutent. L’église Saint-Jean-Baptiste, nous l’espérons, reprendra sa place dans la vie communautaire du quartier et redeviendra ce lieu identitaire et de cohésion sociale.

3 Ville de Québec (2018), Préservation du patrimoine culturel à caractère religieux de la Ville de Québec, Rapport de travail présidé par M. John R. Porter, URL: https://tinyurl.com/yw75anvw.

55

Mobilisation par le court-métrage

e Québec contemporain oblitère t il son patrimoine religieux bâti ? À voir la vitesse à laquelle les églises tombent sous le pic des démolisseurs,onseraitportéàlecroire,maislaréalitéestpluscomplexe qu’il ne le semble. En 2014, comme je l’ai mentionné en ouverture de ce numéro, j’apprends, par la voix des médias, que l’égliseSaint Jean BaptistedeQuébecseraferméeauculteàcompter du 25 mai 2015. Que voilà une belle occasion de procéder à un exercice de sociologie visuelle par l’image. Si mon premier documentaire, Requiem pour une église (2015)42, a montré comment se prépare la fermeture au culte d’une église, et si le second documentaire, Au-delà du sacré, le défi du patrimoine religieux (2018)43, a montré comment différents palierspublics et religieux serenvoientlaballepourpréserver ce patrimoine sans vraiment se commettre, on voit bien là la démarche sociologique, à savoir celle de communautés qui se voient privées de ce qui a constitué pendant plusieurs décennies ce qui organisait et structurait toute la vie de leur quartier. Par exemple, la fermeture de l’église Saint Jean Baptiste, à elle seule, a évacué de son sous sol une banque alimentaire, un groupe d’achats regroupés pour gens défavorisés, un groupe d’entraide citoyenne, une troupe de théâtre, des activités communautaires, un salon des Arts, le Conseil de quartier de Saint Jean Baptiste, etc. Comme le souligne le curé Pierre Gingras dans le premier documentaire44, « La flèche de l’église signalait à tous qu’ils recevraient ici des services dont ils auraient besoin » ; même si la flèche existe toujours physiquement, elle ne renvoie désormais plus à rien pour la communauté. En 2004, l’évêque du Diocèse de Chicoutimi, monseigneur André Rivest, avait eu ce commentaire à propos de la fermeture de certaines églises lors du déjeuner du Cercle de presse du Saguenay : « Je ne veux pas ce se soit mal interprété, mais on a une mentalité de “B.S.”45 à cet égard. Les gens ont été habitués à penser que tout ce qui vient de l’Église ne doit rien coûter, alors qu’aux États Unis, les catholiques s’impliquent davantage46 ». Etpourtant,c’estbeletbiendanscetespritquedesgénérationsdecatholiques,auQuébec,

42 Vidéo : Fraser P. (2015), Requiem pour une église, les impacts d’une fermeture, URL : https://tinyurl.com/nhjxjmtc.

43 Vidéo : Fraser P (2018), Requiem pour une église, le défi du patrimoine religieux, URL : https://tinyurl.com/u96b42bw

44 Vidéo : Fraser Pierre (2019), Requiem pour une église, la requalification du patrimoine religieux, URL : https://tinyurl.com/nhjxjmtc

45 Au Québec, l’expression « B.S. » (bien être social), péjorative et stigmatisante, renvoie à une personne paresseuse qui est sans emploi, qui ne cherche pas forcément à retourner sur le marché du travail, qui se la coule douce tout en bénéficiant des services et des subsides de l’État pour ses besoins quotidiens.

46 Côté D (2004, 4 novembre), Mgr. Rivest souhaite changer les mentalités, Le Quotidien, Archives de la BaNQ, URL : https://tinyurl.com/566kt8dm.

56
Pierre Fraser, sociologue

ont perçu les services offerts par l’Église, et le curé Pierre Gingras confirme la chose dans mon premier documentaire : « On venait à l’église pour recevoir toutes sortes de services, etc’étaitgratuit.Onn’attendaitpas…47 »MonseigneurRivestsoulignequ’« Ilfautpenser à l’avenir. Si on veut garder un temple parce que c’est là qu’a eu lieu notre mariage ou le baptême de nos enfants, ça ne marche pas [et] on ne doit pas se laisser handicaper par le mortier et les pierres. […] Dans cinq ans, que restera-t-il? Sûrement moins de bâtisses. » Ce dernier commentaire de l’évêque est particulièrement éclairant sur la nouvelle mission que se donne l’Église catholique au Québec : se recentrer sur sa vocation première, celle de sa mission pastorale qui ne serait pas forcément liée aux bâtiments qu’elle occupait jusqu’à tout récemment. À ce titre, on constatera que certains paroissiens, toujours attachés à leurs églises, ne l’entendent pas tout à fait de la même façon, alors que s’apprête à êtreferméel’égliseSaint Laurentdel’arrondissementdeJonquière,touten voulant « manifester » leur opposition lors de la dernière célébration.

Pour sa part, l’éditorialiste Carol Néron, du journal Le Quotidien, a posé en ces termes le défi auquel sont confrontés les diocèses du Québec : « L’obligation de mettre la clé sur la porte de plusieurs temples suit de quelques années à peine l’accroissement de la tâche des curés. Depuis le milieu de la décennie 80, ceux-ci doivent partager leur temps entre deux, voire trois paroisses.Dans un contexte aussi révélateurd’unedésaffection quasi exponentielle des catholiques envers leur foi, il fallait bien s’attendre à des fermetures d’églises. Lorsque la clientèle manifeste son indifférence face à un produit jadis fort apprécié et que la faillite menace, la seule alternative à laquelle peuvent souscrire les gestionnaires soucieux de passer à travers la tempête, avec quelques chances de succès, réside dans une incontournable opération de rationalisation48 . » Toutefois, il n’en reste pas moins que certains paroissiens ont vu, dans ce désengagement de la part de leur clergé, un genre de trahison. Lors de la cérémonie de fermeture de l’église Saint Laurent, le prêtre célébrant a affirmé qu’« en matière d’évangélisation, on ne peut plus s’appuyer uniquement sur le passé. Revenons à l’essentiel. Ça nous redonnera du souffle49 », alors que le co célébrant y est allé de la remarque suivante : « Prions pour toutes les personnes qui souffrent de la fermeture de leur église, afin qu’elles puissent constater qu’elles font toujours partie de la communauté chrétienne50 . »

47 Vidéo : Fraser P (2019), op. cit., URL : https://tinyurl.com/nhjxjmtc

48 Néron C. (2004, 5 novembre), L’Église diocésaine face aux défis du XXIe siècle, Le Quotidien, Archives de la BaNQ, p. 8, URL : https://tinyurl.com/f25cmehu.

49 Côté D. (2004, 8 novembre), Église St Laurent : dernière messe mouvementée, Le Quotidien, archives de la BaNQ, p. 4, URL : https://tinyurl.com/ns2fnss6.

50 Idem

57
58
▼ Des citoyens se mobilisent, mais leurs efforts, la plupart du temps, restent lettre morte

Le journaliste Daniel Côté, qui rapporte l’événement, signale que « La messe dite d’Action de grâce a commencé sur les chapeaux de roues. L’église était si pleine qu’on se serait cru à Noël, la crèche en moins. Ce fut l’occasion d’apprécier une dernière fois l’acoustique du bâtiment, mise en relief par la chorale et l’orgue51 . »

Même si ces événements peuvent sembler à première vue anecdotiques, ils ne le sont pas pourautant.Toutd’abord,l’ÉglisecatholiqueduQuébecnepeutqueconstaterlasituation dans laquelle elle se trouve, c’est à dire une désaffectation majeure envers la pratique religieuse, d’où l’idée, qui a fait son chemin depuis la décennie 1980, de se recentrer sur sa mission initiale, celle d’une pastorale qui unit tous les chrétiens sans pour autant être attachée à un lieu de culte en particulier terminée, donc, l’époque de l’Église triomphante pour reprendre l’analyse du sociologue Simon Langlois52. Autrement dit, une pratique religieuse désincarnée d’un lieu physique, qui a pourtant incarné, pendant plus de trois siècles, cette même pratique religieuse53. Autrement, ce qui se répète chaque fois qu’une fermeture d’église est annoncée, c’est la participation massive des paroissiens qui, en temps normal, en sont pour la plupart absents, et qui constatent, parfois avec surprise, à quel point l’acoustique du bâtiment est à la fois exceptionnelle et unique. Dans mon premierdocumentaire,onconstateraégalement lemêmephénomène,àsavoirquel’église Saint Jean Baptiste avait réuni une foule impressionnante d’au moins 2 000 personnes. Il y aurait là une étude sociologique à mener qui pourrait révéler les ressorts qui incitent les gens à se rendre massivement à la messe de fermeture tout comme en inciter certains d’entre eux à s’investir dans la requalification de ce patrimoine religieux bâti.

Les trois documentaires que j’ai réalisés avaient cette claire intention de plonger dans le social pour comprendre ce qui anime l’ensemble des intervenants impliqués dans la fermeture au culte d’une église. En fait, même si la pratique religieuse catholique s’est grandement effritée depuis les débuts de la Révolution tranquille au Québec au cours des années 1960, et même si Vatican II a voulu se rapprocher de ses fidèles avec ses réformes, rienn’apuendiguerl’abandondelapratiquereligieuse.Conséquemment,au fil dutemps, les églises se sont graduellement vidées, les baby boomers ont délaissé la foi catholique, la famille nucléaire est devenue la norme, les religieux ont quitté à la fois le monde de l’éducation et de la santé, autrefois leurs chasses gardées, les mœurs politiques se sont assainies, le boom économique d’après guerre a propulsé toute une génération dans la prospérité économique, et les banlieues à l’américaine se sont développées tout autour des vieux centres villes. Résultat, au Québec, les églises sont parfois devenues des bâtiments patrimoniaux par décret gouvernemental, d’autres ont été laissées à l’abandon, certaines sont tombées sous le pic des démolisseurs, au plus grand bonheur des promoteurs

Vidéo : Fraser P. (2017), L’église triomphante et son déclin, URL : https://tinyurl.com/5sr3uyys

Vidéo : Fraser P (2018), L’impact social des diocèses au Québec, URL : https://tinyurl.com/4bns98vx

59
51 Idem. 52
53

immobiliers. Cette Révolution tranquille, qui s’est inscrite dans la modernité, a toutefois eu un effet pervers : elle a conduit tout un peuple à banaliser son propre passé, à oblitérer en quelque sorte ce qui l’a constitué. Il ne faut pas oublier que chaque église qui disparaît du paysage signale aussi une disparition visible de l’histoire. Dans un Canada multiculturaliste à souhait, où le peuple québécois devient une minorité ethnique et linguistique au même titre que toutes les autres, où la reconnaissance de son statut de peuple fondateur est désormais reléguée au folklore, produire et réaliser des documentaires ou des courtsmétrages concernant la disparition du patrimoine religieux bâti devient non seulement un impératif, mais surtout un travail sur la mémoire historique. Il y a là un travail sociologique de fond à effectuer.

Pour mieux comprendre en quoi la fermeture et la disparition des églises au Québec n’est pas anodine, j’ai demandé au sociologue Simon Langlois54 d’expliquer ce phénomène lié àlaRévolutiontranquille, quirenvoieàcettepériodedesannées1960oùl’Étatquébécois se modernise, devient laïc, renforce ses compétences sociales et économiques, met en place un système d’éducation public à travers les écoles secondaires polyvalentes et les Collèges d’enseignement professionnel (Cégep), crée le réseau de l’Université du Québec,quipermettraàdeplusenplusdeQuébécoisd’accéderauxétudessupérieures,étatise la production d’électricité à travers sa société d’État, Hydro Québec, met en place un système de santé gratuit, fonde la Caisse de dépôt et placement du Québec et la Société générale de financement afin de se donner les outils de sa propre autonomie financière, crée le ministère des Affaires culturelles, établit des représentations diplomatiques dans différents pays, procède à une vaste réforme de ses propres institutions politiques. En somme, la Révolution tranquille a été un moment de rupture avec un passé sous le signe de la colonisation et de l’Église catholique qu’elle n’a pas elle-même su voir, car tout au cours des années 1950 et 1960, au Québec, elle a non seulement voulu conserver le modèle de la paroisse, mais s’est aussi mise à construire des églises de plus en plus en phase avec l’implantation, en architecture, du modernisme, du brutalisme et de l’expressionnismeformel55 .C’estdoncàcetteépoqueque,danslarégionduSaguenay Lac Saint Jean, on assistera à la naissance d’un courant architectural dit « églises blanches », qui fera la belle part aux églises aux lignes élancées, en rupture totale avec l’architecture classique des églises monumentales d’antan. Ces églises seront également au cœur de la réforme annoncée par Vatican II, qui renversera le rôle du prêtre, faisant désormais de ce dernier un animateur de foule plutôt qu’un pasteur. De 1945 jusqu’au début des années 1970, l’Église catholique du Québec s’est convaincue, malgré une tendance soutenue à la baisse de la pratique religieuse, que le baby boom d’après guerreallait suppléer les pertes essuyées, d’autant plus que les mouvements de jeunesse parrainés par l’Église

54

Vidéo : Fraser P. (2016), La fin des paroisses au Québec dès 1960, URL : https://tinyurl.com/6wx6maz4

55 Vidéo : Fraser P. (2018), Le diocèse et la société canadienne française, URL : https://tinyurl.com/yzecxjx4

60

louveteaux, scouts, guides, Jeannettes, 4H allaient non seulement connaître un âge d’or, mais occuperaient aussi massivement les bancs d’église le dimanche venu. En fait, l’Église catholique du Québec n’a pas su lire les signes qui tissaient déjà une trame de désaffection envers la pratique religieuse face à une modernité qui ne s’en pouvaitplusd’arriver. En fait,les années 1960ont toutsimplement accéléré à lavitesse grand V le déclin de l’Église triomphante. Cette fournée de jeunes issus du baby boom que l’Église a voulu conscrire s’est globalement retournée contre elle. L’entrée en masse de toute une génération dans les écoles primaires, secondaires, Cegeps et universités, conjuguée à l’arrivée de la pilule contraceptive, de la montée du féminisme, du développement des banlieues, de l’économie, de la sécularisation de la politique, de la santé et de l’éducation, et de bien plus encore, aura tout simplement scellé le sort, à soixante ans de distance, de toutes ces églises qui sont actuellement dans le collimateur des promoteurs de toutes sortes. Pour le dire autrement, Vatican II, en voulant s’aligner sur l’air du temps, a tout simplement été absorbé par l’air du temps. On comprendra mieux dès lors pourquoi, dans le second court-métrage, le directeur des Fabriques du Diocèse de Québec, Rémy Gagnon, souligne que l’Église retourne désormais à sa mission initiale pastorale et communautaire qui n’a plus besoin de tous ces grands bâtiments dont elle est pourtant encore et toujours propriétaire et dont elle cherche également à se départir56. Au même titre, on saisira mieux pourquoi le curé Pierre Gingras, dans les deux premiers courts métrages, nousrenvoieànotrepropreaveuglementfaceàcepatrimoinereligieux bâti qui astructuré la société canadienne française et se demande fort à propos si le Québec n’en serait pas arrivé à se fabriquer une haine du christianisme57. Quand des citoyens, après avoir visionné les deux premiers courts métrages, disent que le gouvernement doit préserver ces bâtiments, sans participer eux mêmes aux célébrations religieuses, à la dîme et à la capitation de leur propre paroisse depuis des décennies, et qu’ils renvoient constamment le défaut de responsabilité à une quelconque autorité gouvernementale qui aurait, elle, les moyens financiers de préserver ce patrimoine religieux, sans se rappeler que l’argent dont dispose les gouvernements provient des impôts qu’ils paient eux mêmes, il faut peut être se dire que la situation n’ira pas en s’améliorant. Et c’est là où le troisième court-métrage, intitulé « Requiem pour une église La requalification du patrimoine religieux58 », devient essentiel à cette démarche de sociologie par l’image, car il montre que certaines communautés, comme celle de La Durantaye, peuvent saisir à bras le corps ce problème et en faire quelque chose qui profite à tous.

56 Vidéo : Fraser P. (2018), Requiem pour une église, le défi du patrimoine religieux, URL : https://tinyurl.com/nry4s2tk

57 Vidéo : Fraser P. (2015), Le Québec s’est il fabriqué une haine du christianisme ?, URL : https://tinyurl.com/8ahsxsjt.

58

Vidéo : Fraser Pierre (2019), Requiem pour une église, la requalification du patrimoine religieux, URL : https://tinyurl.com/ynmc4wdy

61
▼ Fermer une église, c’est aussi oblitérer un patrimoine artistique de valeur
© Pierre Fraser, 2019

REQUALIFICATION

[dansl’opinion publique,la question de la valeurd’usageéconomique du patrimoine et de son utilité immédiate est désormais cruciale : que fera-t-on de ce nombre sans cesse grandissant de sites et de bâtiments que nous voulons conserver, qui défraiera le coût de leur conservation et de leur mise en valeur toutes ces questions se posent à ceux qui militent pour conserver un paysage construit de qualité qui possède une valeur identitaire certaine]

DESTIN D’ÉGLISE

© Pierre Lahoud, 2015

« Le cas de l’église Saint Cœur de Marie montre de manière éloquentecommentunedéclarationd’intérêtpatrimonial,voire un classement, ne sont pas des garanties de sauvegarde d’un monument de premier plan » [Luc Noppen].

Requiem pour l’église Saint-Cœur-de-Marie

epuis que l’église Saint-Cœur-de-Marie, qui se dressait sur les hauteurs de la Grande Allée à Québec, a été démolie sauvagement à la fin de l’été 2019, je m’interroge sur ce cas. Qu’est ce qui n’a pas marché ? Comment se peut-il qu’un édifice aussi précieux puisse disparaître dans une indifférence quasiment généralisée, sans pénalité pour les « malfaisants » ? J’ai donc reconstitué la séquence des événements pour mieux comprendre. Ayant vécu de prèscertainsmomentsdela « saga » deSaint-Cœur-de-Marie,j’ai penséqueletraitement de mon étude de cas devait aussi emprunter la voie d’une égo histoire. La voici donc. J’ai connu l’église Saint Cœur de Marie peu après mon arrivée à Québec en 1964 À l’époque ce n’est pas tant sa forme ou la figure de son clocher qui m’intriguait. C’est plutôt son nom, un ami de ma classe m’ayant indiqué que cette église étrangère portait comme nom « Five O’Clock of Mary », comme le lui avait indiqué un caléchier de la ville. Puis, lorsque j’entrepris desétudesàl’universitéLaval(en1965),jen’appris pas grand chose sur Québec, le Québec ou le Canada. Tout cela n’était que « du pipi de chat »,commenousl’annonçaitfièrementleprofesseur Jean Noël Tremblay (1926 2020), qui deviendra pourtant Ministre des Affaires culturelles, peu après nous avoir dit ces bêtises. Oui, « Je mesouviens… ». Lors de mes études en histoire de l’art, j’ai tout appris sur la peinture espagnole, sur les fresques rupestres de Cappadoce, sur les cathédrales gothiques et sur l’architecture d’Alberti et de Bramante. Sur l’art du Québec, peu de choses : un cours offert par Jean Trudel, qui agissait comme chargé de cours, brossait un portrait rapide de l’art traditionnel au Québec, selon les problématiques développées par Gérard Morisset depuis les années 1930.

L’église Saint Cœur de Marie (© Luc Noppen).

65
Luc Noppen, historien d’architecture ▼ Le clocher de l’église Saint Cœur de Marie © Luc Noppen

Mais il en parlait avec cœur, conviction et compétence… C’est mon intérêt pour l’art et l’architecture du Québec qui me valut d’être embauché comme professeur à l’université Lavalenjuin1972,aveccommemandatdedévelopperlesétudessurl’artetl’architecture du Québec. Il m’apparut alors important d’explorer le corpus des églises, monuments qui m’apparaissaient véritablement définitoires de l’identité paysagère de nos villes, villages etcampagnes.J’aidoncentreprisdevisitertoutes les églises du Québec(en incluant,dans mes expéditions, maisons, manoirs, moulins, villes et villages) pour alimenter mes enseignements en images et connaissances nouvelles, pour notamment aller au delà des ouvrages classiques de Ramsay Traquair, Gérard Morisset et Alan Gowans.

La recherche et la construction de la notoriété de l’église Saint Cœur de Marie

Pendant toutes ces années, l’église Saint Cœur de Marie est demeurée une énigme à mes yeux. Mal aimée, au cœur d’un quartier dévasté par l’expansion de la colline parlementaire, elle était peu à peu abandonnée par ses paroissiens qui déménageaient volontiers à Sillery, cité jardin de l’avenir. Puis, une rumeur diffamante voulait que cette église, forcément étrangère à son lieu, avait adopté la figure d’une mosquée : comme preuve, on montrait son « minaret » qui dominait la Grande Allée. Tout cela ne paraissait pas très catholique… Pourtant, des recherches rapides m’avaient indiqué que cette église avait été construite en 1918 par un curé entreprenant, l’eudiste Pierre Marie Dagnaud1 (1858-1930) (prononcé Dagnot). Un texte très détaillé du curé m’apprit que : « […] le plan de l’église a été inspiré par un plan mis obligeamment à notre disposition par M. Regnault, architecte de grand talent, de Rennes, France »2. Bon, deux « maudits français », rien pour aider à la notoriété d’un monument en ce début des années 1970, marquées par la détestation de mon ami Roger Taillibert (1926 2019). En même temps, quelques familles du coin évoquaient que

1 Dagnaud P M (1928), La paroisse Saint Cœur de Marie. Du berceau à ses dix ans. Souvenir du jubilé décennal, Québec : Librairie Laflamme, 279 p.

2 Idem., note en p. 96.

67
Le père Pierre Marie Dagnaud (1858 1930), prêtre Eudiste, curé de Saint Cœur de Marie de 1918 à 1928, dans son bureau au presbytère (© Archives des Eudistes, Charlesbourg).

l’architecte serait plutôt un paroissien : Ludger Amédée Robitaille (1885 1946)3. Mais le livre consacré par le curé Dagnaud aux premières années de la paroisse incluait un long textesurl’architecturedel’égliseSaint Cœur de Mariequiavaitétéécritparl’abbéJean Thomas Nadeau (1883-1934), théoricien de l’architecture et rédacteur de l’Almanach de l’Action sociale4. Nadeau était un ardent promoteur à Québec d’un renouveau rationaliste et d’un régionalisme moderne en architecture ecclésiale dans les années d’après-guerre. En quelques lignes, J.-T. Nadeau esquissait une filiation de l’église Saint-Cœur-de-Marie avec « le style roman byzantin du sud ouest de la France », style qui, disait il « caractérise un système de construction né en Orient mais transformé et perfectionné savamment en Occident, dans le Sud Ouest et l’Ouest de la France particulièrement. »5 À l’appui, quelques monuments célèbres dont Saint Marc de Venise et Saint Front de Périgueux. Rien de moins !

Une première enquête détaillée sur l’histoire et de l’architecture de l’église SaintCœur-de-Marie a été menée durant l’été 1980 parÉric Dumas,alors étudiant dans un cours d’été offert par Jacques Robert qui, lui, menait une recherche sur la carrière de l’abbé Jean Thomas Nadeau.Letravailétait bien documenté et proposait une analyse précise du monument ; l’auteur mentionnait aussi avoir trouvé dans les archives dela paroisse une correspondance précieuse entre le père Pierre Marie Dagnaud et l’architecte Arthur Regnault, de Rennes6. J’ai eu l’occasion d’approfondir mes recherches sur l’église Saint Cœur de Marie en 1993

3 Robitaille L. A. (1885 1946) est l’héritier de la lignée du célèbre Joseph Ferdinand Peachy (1830 1903). Il est diplômé en 1912 de l’École d’architecturede l’École Polytechnique de Montréal et embauché en 1922 comme professeur de construction dans la section architecture de l’École des beaux arts de Québec.

4 Sur Jean Thomas Nadeau, on pourra lire : Robert J (2020), « Jean Thomas Nadeau, Le rationalisme au service du renouveaudel’architecturereligieuseàQuébecau débutduXXe siècle »,dansLucieK.Morisset (dir.), L’architecture de l’identité. Arts et patrimoines en hommage au professeur Luc Noppen, Montréal : Del Busso p.243 272, URL : https://tinyurl.com/5x42kyvp.

5 Dagnaud P. M. (1928), op. cit., p. 84.

6 Copie de ce travail a été conservé dans les dossiers remis par Luc Noppen à la Division du design urbain à la Ville de Québec, mais la correspondance, produite en annexe, a été dérobée. Mieux, cette correspondance, qui démontrait la paternité de l’architecte rennais, est aussi disparue des archives de la paroisse. Comme quoi certains ne tenaient pas à mettre en valeur la paternité d’un Français sur cette église.

68
Vue de la nef de l’église Saint Cœur de Marie, en 1996 (© Michel Bourassa).

19947 lors de la préparation, avec Lucie K. Morisset, de l’étude sur les Lieux de culte situés sur le territoire de la Ville de Québec, préparée pour la Ville de Québec. Ce rapport comporte notamment un premier texte historique et analytique détaillé du monument8. Ce texte a connu une large diffusion, notamment via notre ouvrage Foi et patrie. Art et architecture des églises de la ville de Québec9 , paru en 1996. Notre rapport sur Les lieux de culte… a aussi eu des suites immédiates, dont la tenue, à Québec, du 5 au 7 juin 1997, du Premier colloque international sur l’avenir des églises dans les villes-centre, et parrainé par la Ville10 .

Église à vendre, en juin 1997 (© Luc Noppen).

À cette occasion, l’église Saint Cœur de Marie avait été à l’honneur, ayant fait l’objet d’une charrette (un atelier d’idéation et de projet) d’architectes et d’étudiants en architecture. Une équipe s’était ainsi installé dans l’église pour, pendant trois jours et devant public, mettre au point un projet de conversion de l’église qui, à l’époque, était déjà mise en

7 Noppen L , Morisset L K. (1994), Lieux de culte situés sur le territoire de la Ville de Québec, Ville de Québec : Service de l’urbanisme, Division du design urbain et du patrimoine, 3 tomes.

8 Idem , Tome 1, p. 97 104

9 Noppen L., Morisset L. K. (1996), Foi et Patrie. Art et architecture des églises à Québec. Québec : Les Publications du Québec, 180 p. [le texte sur l’église Saint Cœur de Marie se trouve aux pages 121 123]

10 Les actes du colloque et les résultats des diverses « charrettes » (ateliers) menées dans des églises ont été publiés dans : Noppen L , Morisset L. K., Caron Robert (1997), La conservation des églises dans les villes centres, Québec : Septentrion, 204 p.

69
Modélisation de l’église Saint Cœur de Marie (© Équipe d’étudiants de l’École d’Architecture de l’Université Laval).

vente11 En même temps, les équipes mobilisées par le professeur Pierre Côté, de l’École d’architecture de l’Université Laval, ont préparé les relevés dessinés et numériques de toutes les églises de la Ville de Québec, dont bien sûr Saint Cœur de Marie. L’objectif de cette campagne était de rendre accessible les informations sur les bâtiments en vue de leur éventuelle conversion vers un nouvel usage. Tout ce travail, accompagné de nos textes, a été mis en valeur par un site internet : « La Foi en 3D. Des étudiants de l’École d’architecture proposent une visite virtuelle passionnante des églises de la ville de Québec12 . » En septembre 2001, ce site a été consacré le portail canadien le plus visité au pays.

C’est en 2005, à l’occasion des manifestation reliées au centenaire de la Loi de séparation de l’Église et de l’État (loi française de 1905), qu’il m’a été donné d’approfondir mes connaissances sur l’œuvre architectural d’Arthur Regnault. Cette loi a eu un impact important au Canada, puisque de nombreuses congrégations religieuses, dont les Eudistes, ont adopté ce pays comme « terre promise de la catholicité francophone », après le désistement (ou la trahison, comme l’affirmaient certains) de la France, jusqu’alors identifiée comme « la fille aînée de l’Église catholique romaine ». En Bretagne, cette loi a été vécue péniblement (manifestations, émeutes, etc.) et a donné lieu à plusieurs événements commémoratifs, dont des colloques et conférences académiques. Comme plusieurs membres du clergé français s’étaient exilés au Canada, j’avais déjà observé qu’ils avaient continué à entretenir des relations cordiales avec leurs architectes français, et que celles-ci avaient eu un impact considérable sur le renouveau de l’architecture ecclésiale et conventuelle au Québec13. C’est ainsi que j’ai découvert qu’Arthur Regnault, ami de longue date et confrère de classe de Pierre-Marie Dagnaud, à qui il avait envoyé en 1918 des plans pour inspirer la construction de l’église Saint-Cœur-de-Marie, avait aussi eu

11 Morisset L. K. (1997), « La Charrette sur l’Avenir des biens d’Église. Cinq projets pour cinq hauts lieux », dans La conservation des églises…, p. 186 197 [sur les cinq églises mises en valeur par cet exercice, seule l’église Saint Roch n’a pas été démolie depuis].

12 URL : https://tinyurl.com/3yw73acf.

13 Noppen L (2015), « French Architects in Early Twentieth Century French Canadian Church Architecture ». The Journal of the Society for the Study of Architecture in Canada, vol xl, no 1, p. 59 73.

70
Arthur Regnault, architecte à Rennes (© Archives départementales d’Ille et Vilaine

une« carrièrecanadienne »,menéeparcorrespondance,puisqu’iln’ajamaismis lespieds en Amérique. La première et plus importante œuvre canadienne de Regnault date de 1903 : c’est la vaste église Sainte Marie de la Pointe de l’Église en Acadie (Nouvelle Écosse). C’est donc via ce cas que j’ai présenté, en Bretagne, les effets de la Loi de séparation… française sur l’histoire de l’architecture ecclésiale au Canada français14. Bien évidemment, j’ai utilisé l’exemple de Saint-Cœur-de-Marie, avec des exemples acadiens pour bien illustrer l’ensemble de la carrière canadienne de l’architecte Regnault, entre 1903 et 1918.

▼ Pointe de l’Église (Nouvelle Écosse)

L’église Sainte Marie, érigée de 1903 à 1905 d’après des plans envoyés par l’architecte breton Arthur Regnault.

Il m’a été donné, en 2006, d’aller présenter le résultat de mes recherches à la Pointe de l’Église, lors d’une conférence dans l’église Sainte Marie et dans une publication qui en a suivi15. J’ai alors eu l’occasion de faire valoir que l’apport de l’architecte Regnault avait induit au Canada, et notamment à Québec, une architecture néo bretonne. Mon

14« Les effets de la Séparation sur l’architecture ecclésiale au Canada français : l’avènement d’une église bretonne en Acadie » (Luc Noppen). Colloque du Centenaire de la séparation de l’Église et de l’État, Tréguier (France), 17 septembre 2005. Cette communication a été publiée en 2006 : « Les effets de la Séparation sur l’architecture ecclésiale au Canada français : l’avènement d’une église bretonne en Acadie » (Luc Noppen), dans Les Bretons et la Séparation, 1795 2005, sous la dir. de Jean Balcou, Georges Provost et Yvon Tranvouez, Rennes, Presses universitaires de Rennes, 2006, p. 201 213.

15 « L’église Sainte Marie et son modèle breton : l’avènement d’un style néo breton au Québec et en Nouvelle Écosse » (Luc Noppen). Colloque Le patrimoine religieux en Nouvelle Écosse. Signes et paradoxes en Acadie, Université Sainte Anne, Pointe de l’Église (N.É.),19 20 juin2006; « L’église Sainte Marie, monumentdumétissage de modèles bretons et desavoir faire acadiens » (Luc Noppen), dans Le patrimoine religieux de la Nouvelle Écosse. Signes et paradoxes en Acadie, sous la dir. de Jean Pierre Pichette, [Cahier de] Port Acadie Revue interdisciplinaire en études acadiennes. Université Sainte Anne. Pointe de l’Église, nos 10 11 12), 2006 2007, p. 117 128.

71
© Luc Noppen © Luc Noppen

exploration de la carrière de Regnault et la visite de ses nombreuses églises construites dans le Diocèse de Rennes me permettait dès lors de conclure à sa contribution précoce à une architecture néo régionaliste, inspirée à la fois par les XVIIe et XVIIIe siècles bretons et la popularité du style romano-byzantin, valorisé comme symbole authentique et initial de l’Église chrétienne avant qu’elle ne soit secouée par des schismes et divisions.

Durant toutes ces années, avec le regain d’intérêt pour le patrimoine et l’identité architecturale régionale, Arthur Regnault acquiert une formidable notoriété en Bretagne16 ; son rôle d’architecte diocésain de Rennes est mis en évidence dans le Schéma départemental du patrimoine bâti et mobilier d’Ille et Vilaine qui signale qu’il est l’auteur de quelque 72 églises et qui le crédite de l’invention d’une architecture chrétienne moderne dans le Diocèse de Rennes. Ses plans étant conservés aux Archives départementales, ce service

16 Un premier ouvrage l’avait fait connaître comme l’un des architectes les plus importants de la fin du XIXe siècle : Guéné Hélène, Loyer François (1995), L’Église, l’État et les architectes : Rennes 1870 1940, Paris : Éditions Norma, 368 p.

72
▼ Églises de style romano byzantin Corps Nuds (Bretagne). Clocher de l’église Saint Pierre, érigée de 1881 à 1890 d’après les plans de l’architecte Arthur Regnault (© Luc Noppen). Saint Senoux (Bretagne). Clocher de l’église Saint Abdon et Saint Sennen, érigée en 1896 1897 d’après les plans de l’architecte Arthur Regnault (© Luc Noppen).

Lithographie de la façade projetée pour l’église Saint Jeanne d’Arc de Rennes. Arthur Regnault, 1914 (Archives départementales d’Ille et Vilaine).

décide de lui consacrer une grande exposition en septembre 2011, et de publier à cette occasion un somptueux ouvrage, contenant des études et un catalogue détaillé de son œuvre. J’ai été invité à contribuer à cet ouvrage avec un texte titré « Présence d’Arthur Regnault au Canada », qui fait une belle place à l’église Saint Cœur de Marie17. J’ai aussi eu l’honneur de présenter une conférence lors de l’inauguration de cette exposition18 . À cette occasion, la famille de l’architecte a fait don d’une série de documents pour compléter et enrichir son fonds, dont une lithographie du projet pour l’église Sainte Jeanne d’Arc de Rennes, identique à celle qui avait été envoyée avec les plans détaillés au curé Dagnaud19. Aux maires et paroissiens français qui me disaient avec fierté « avoir un Regnault », j’ai dû expliquer avec gêne que l’existence de l’église québécoise de l’architecte breton était menacée, ce qui avait soulevé indignation et incrédulité. Aujourd’hui il me reste l’espoir qu’avec l’aide du gouvernement fédéral, on réussisse au moinsàsauverl’égliseSainte-MariedelaPointe-de-l’Églisequiest,incidemment,laplus vaste église en bois d’Amérique du Nord.

La valeur architecturale et patrimoniale exceptionnelle de l’église Saint-Cœur-de-Marie

En1994,dansnotrerapportsur Les lieux de culte de la Ville de Québec, LucieK.Morisset et moi avions évalué l’intérêt architectural et la valeur patrimoniale de l’église Saint Cœur-de-Marie. Nous disions alors : « En conséquence de notre évaluation, et sur la base des analyses effectuées, nous recommandons à la ville de Québec de citer comme monuments les lieux de culte érigés sur son territoire avant 1930 et qui ne bénéficient pas encore d’une protection légale définie sur le plan national20 . » Il s’agissait alors avant les

17 Noppen L (2011), « Présence d’Arthur Regnault au Canada », La quintessence de l’art sacré. Arthur Regnault, architecte (1839 1932), sous la dir. de Jean Yves Andrieux, Rennes : Presses universitaires de Rennes, p. 172 185.

18 Noppen L (2011, 18 juin), « L’influence d’Arthur Regnault au Canada français », Conférence publique organisée par les Archives départementales d’Ille et Villaine (espace Ouest France) dans le cadre de l’exposition Arthur Regnault, quintessence de l’art sacré, à Rennes, France.

19 À Rennes, l’église Sainte Jeanne d’Arc a été mise en chantier en 1914 d’après les plans d’Arthur Regnault. Le chantier a été arrêté par la guerre et n’a repris qu’en 1953 sous la direction de l’architecte Hyacinthe Perrin qui a modifié le projet initial.

20 Lieux de culte…, Rapport de synthèse, p. 83

73

fusions municipales de l’an 2000 de16 lieux de cultequenousavionsclassés par ordre d’importance décroissant. Selon notre évaluation, l’église Saint Cœur de Marie était classée huitième sur seize et devait donc impérativement être conservée. La Ville de Québec accepta notre liste et mit en œuvre une stratégie de conservation et de mise en valeur pour les églises identifiées, en concertation avec les autorités du Diocèse de Québec. En 1994 donc, rien ne laissait croire que l’église pourrait un jour disparaître…

D111, PR 62 1).

74
Église Saint Cœur de Marie. Plans préparés par l’architecte Ludger Robitaille en 1918 (BAnQ, fonds Ludger Robitaille, P742 L église Saint Cœur de Marie, en construction, en 1919 (Photo extraite de : Pierre Marie Dagnaud. La paroisse Saint Cœur de Marie. Du berceau à ses dix ans, 1928, p. 36). ▼ Voûtes Gustavino de l’église Saint-Cœur-de-Marie Église Saint Cœur de Marie. Les deux coupoles de la nef, « voûtes catalanes » faites de trois rangées de briques posées en chevrons (© Michel Bourassa). La voûte Gustavino, dont la structure a été révélée lors de la démolition de l église Saint Cœur de Marie en septembre 2019 (© Claude Thibault).

Le brevet des voûtes Gustavino (United States Patent Office, 18 janvier 1910, no 947,177).

Monumentconçuparunarchitectederenometdotéd’unefigurearchitecturaleétonnante, l’église Saint Cœur de Marie avait aussi été mise en œuvre grâce à des procédés constructifs nouveaux et innovants. Ne pouvant utiliser de l’acier pour édifier sa structure, du fait de la guerre, l’architecte Ludger Robitaille (1885-1946), qui a adapté les plans de Regnault avait utilisé une structure traditionnelle de murs porteurs (granit de Rivière-àPierre à l’extérieur et blocs de terra cotta à l’intérieur), avec une « voûte catalane » faite de trois rangées de briques posées en chevrons.À Québec, cette voûte incombustible, établie sur trois coupoles, avait été mise en place par la firme que Rafaël Gustavino Moreno (1842 1908),immigrantespagnol,avaitétabliedès 1881àNewYork21.C’étaituneœuvre d’art en soi : tous les bâtiments dotés de voûtes de la Gustavino Fireproof Construction Company sont protégés, à New York, Boston et Chicago, pour leur valeur patrimoniale. L’église Saint Cœur de Marie se retrouvait donc dans une catégorie de patrimoine international à côté notamment du Immigration Hall de Ellis Island et de la cathédrale Saint John the Divine de New York, et de la bibliothèque publique de Boston.

Unestructuretraditionnelleavecmursporteursavaitaussiétéutiliséedefaçonaudacieuse pour ériger le haut clocher en pierre de l’église de la Grande Allée. Cela ne s’était encore jamais vu au Québec, où les clochers et leurs flèches ou coupoles sont toujours des ouvrages de charpente. Le clocher emblématique de la Grande Allée répliquait en fait la

76
▼ Structure traditionnelle avec murs porteurs pour le clocher Vue de l’intérieur de la tour de l’église Saint Cœur de Marie : une structure de maçonnerie (© Luc Noppen, 2005). Le clocher de l’église de Saint Thégonnec (Bretagne), érigé au XVIIe siècle (© François Quiniou, 1909). 21 Ochsendorf J , Freeman J , Freeman M (2010), Gustavino Vaulting : the Art of Structural Tile, Princeton : Princeton Architectural Press.

figure de clochers anciens de la Bretagne, dont celui de l’église Notre Dame de Saint Thégonnec, datant du XVIIe siècle.

L’architecte Regnault avait réussi à en reprendre les formes la tour de style Renaissance y est couronnée par un dôme à lanternon flanqué de clochetons d’angles , et ainsi faire de l’architecture romano byzantine du XIXe siècle un style néo breton, très prisé dans le Diocèse de Rennes. Au début du XXe siècle, alors que le Canada français entreprend de valoriser ses origines normandes et bretonnes, notamment en architecture, la transposition de ce vocabulaire faisait sens, surtout dans la paroisse la plus aisée de la ville dont le premier ministre Louis Alexandre Taschereau (1857 1952), ardent supporteur de la refrancisation de la « Vieille Capitale », était paroissien et marguillier. Au sommet de la Grande Allée, le haut clocher de Saint Cœur de Marie se voulait le signal d’une renaissance francophone à l’entrée de la cité historique. Le curé Dagnaud aurait aussi vouluquela figure guerrièredesainteJeanne-d’Arcorneleparvis deson églisepour faire contrepoids, in situ, à la défaite de la bataille des Plaines d’Abraham22. L’église SaintCœur-de-Marie devait aussi, aux yeux de ses promoteurs, faire contrepoids à Saint-Patrick, lieu de culte des catholiques anglophones installé sur Grande Allée en 1914. Dès lors, il paraissait évident, en 1918 que la démolition d’une dizaine de bâtiments se justifiait ; il fallait créer une place pour le culte des francophones dans une nouvelle église qui serait une icône de ce haut lieu de la capitale nationale.

Une solution à l’horizon

C’est en avril 1995 que la Fabrique de la paroisse Saint-Cœur-de-Marie met l’église en vente. Toutes les tentatives de relancer le culte et de redresser la situation financière de la paroisse ayant échoué23, les marguilliers lancent la serviette. Surtout que, à la suite de notre étude sur Les Lieux de culte…, des évaluations faites par le Diocèse et établies en vue du nouveau Programme des infrastructures Québec, il ressortait que l’église Saint Cœur de Marienécessitaitdes réparationsde plus d’un million de dollars, dont 650 000 $ de façon urgente pour stabiliser le clocher. L’image brutale du panneau « À vendre » du courtier immobilier qui a obtenu le mandat de procéder a fait la manchette24 . Mais, ainsi hypothéquée par un impressionnant devis de travaux urgents, la mise en vente était plutôt un cri de désespoir qu’une solution réaliste.

22 Ce projet, provocateur aux yeux de la bourgeoisie anglophone, échoua et une statue équestre de la sainte guerrière, épée levée au combat, a finalement été installée dans le parc qui porte son nom, dans le Parc des Champs de Bataille, dans les années 1930.

23 Une initiative qui a attiré l’attention était celle de la « messe en grégorien » : un chœur de chant accompagnait les services religieux de chant grégorien au grand plaisir des mélomanes de la ville. L’assistance accrue n’a cependant guère contribué au redressement financier espéré.

24 Le Soleil (1995, 25), « Église à vendre ». Cet article mentionne que le conseiller municipal Réjean Lemoine a proposé la citation de l’église, sur avis de Luc Noppen, tel que proposé dans le rapport Les lieux de culte…. de 1994.

77

L’appel à l’aide a néanmoins été entendu ! Deux ans après l’apparition de la pancarte, la Ville de Québec annonce par communiqué de presse « Un sauvetage considérable pour l’église Saint Cœur de Marie »25. Le texte est long et très précis quant aux intentions des autorités publiques :

« Un important partenariat entre le Conseil de Fabrique de la paroisse Saint Cœur-de-Marie, propriétaire de l’église, la Commission de la capitale nationale du Québec, la Ville de Québec et le Gouvernement du Québec permettra, par la restauration du clocher de l’église Saint Cœur de Marie, de conserver l’intégrité de ce bâtiment.

Des travaux de consolidation et de restauration du clocher sont nécessaires afin d’assurer la sécurité publique, vu le danger qu’il représente pour les passants, notamment en ce début de période de dégel.

Le clocher constitue une composante unique du patrimoine architectural de la ville, en plus d’être un élément signalétique. C’est une solution de préservation permanente qui a été retenue parmi les options envisagées qui incluaient même la démolition de la partie supérieure du clocher. Les travaux de restauration prévus consistent, entre autres, au renforcement du clocher par la pose d’une structure d’acier à l’intérieur, à la réfection ou au remplacement des briques de la paroi intérieure ainsi qu’à la réparation ou au remplacement des pierres de la paroi extérieure.

Le coût de ces travaux, qui devraient débuter sous peu, sont évalués à 650 000 $. Le Conseil de Fabrique Saint Cœur de Marie versera 304 250 $, incluant une somme de 144 500 $ provenant du programme d’infrastructures Québec du ministère des Affaires municipales du Québec. La Commission de la capitale nationale du Québec versera 172 875 $ tandis que la Ville de Québec et le Ministère de la Culture et des Communications du Québec assumeront le même montant, divisé à parts égales, pris à même l’Entente sur le développement culturel, 1995-2000.

Si la Fabrique vend l’immeuble après la rénovation du clocher, celle-ci n’aura pas à rembourser le Programme d’infrastructures Québec. Par contre, la Commission de la capitale nationale du Québec, la Ville de Québec et le Ministère de la Culture et des communications du Québec pourront recouvrer leur mise de fonds en fonction du prix de vente de l’église. »

Le communiqué conclut par une puissante affirmation : « Pour chacun des partenaires, il ne fait aucun doute qu’il faut conserver cet élément caractéristique [i.e., le clocher] de la Grande Allée. » Cette entente, qui avait pour but de sauver l’église en la rendant plus

25 Communiqué de presse du Service des communications et des relations extérieures de la Ville de Québec, 26 mars 1997. Cité par Luc Noppen et Lucie K. Morisset. Les églises du Québec : un patrimoine à réinventer. Québec, PUQ, 2005, p. 405.

78

attractive pour un nouvel usage par un nouveau propriétaire, avait fait l’objet d’intenses tractations dans les mois précédents. Je me souviens d’une rencontre du 8 mars 1997 convoquée par le maire Jean Paul L’Allier, dans son bureau, à laquelle assistaient notamment Pierre Boucher, président de la Commission de la capitale nationale, et Serge Viau, alors directeur-général adjoint au Développement durable de la Ville. Ces deux grands défenseurs du patrimoine de la ville avaient créé un consensus autour de l’importance de sauver de façon immédiate le clocher de l’église Saint-Cœur-de-Marie, ce qui, de l’avis majoritaire des acteurs présents, assurerait la survie à long terme de l’édifice de la Grande Allée.

▼ Les 4 options d’intervention sur le clocher de l’église Saint Cœur de Marie présentées le 8 mars 1997

L’architecte mandaté par la paroisse, Gilles Duchesneau, avait esquissé quatre options : deux temporaires (option 1 et option 2) et deux permanentes (option 3 et 4). Au terme de larencontre,l’option3aétéretenue,avecdeuxphasesd’exécution.EnphaseA :structure de renforcement en acier dans le clocher, remplacement de briques à l’intérieur et consolidation de la paroi de granit extérieure, au coût de 650 000 $. Puis, en phase B : consolidation de la tour, au coût de 215 000 $. A ceux qui, comme moi, trouvaient étrange de consolider un clocher avant de consolider la tour qui le supportait, on a répondu que, de

79
© Gilles Duchesneau, architecte

toute façon, l’ensemble de l’église avait besoin de travaux et que le chantier du bas de la tour serait rapidement inclus dans cette phase B.

Je persiste à croire encore aujourd’hui, que si l’on avait démonté le clocher fragile pour en entreposer les pierres, l’église serait encore là aujourd’hui. Un architecte talentueux aurait pu, plus tard, remonter ce clocher, ou mieux le rétablir sous forme d’un volume expressif moderne, évoquant à la fois la figure originale mais, surtout, signalant au loin le renouveau du lieu, investi par un nouvel usage. Mais cette solution de « démontage » avait été sommairement évaluée à 500 000 $, visiblement pour ne pas être attrayante ; pour150 000 $ deplus, on réglaitleproblème une foispourtoutes, disait on… S’agissant de l’église Saint Cœur de Marie, tous étaient ainsi fixés sur ce clocher, proclamé « élément signalétique indispensable du paysage de la Grande Allée ».

Les travaux sur le clocher ont aussitôt débuté et se sont déroulés rondement, au printemps et à l’été 1997. C’est donc une église avec un clocher consolidé grâce à des fonds publics qui devint la propriété du Diocèse de Québec, après la suppression de la paroisse26 et la célébration d’une dernière messe, le 22 décembre 199727 .

Pendant ce temps, Yves Boulet, un administrateur bien connu de Québec, avait proposé à la Commission de la Capitale nationale (CCN) un projet pour occuper l’église Saint Cœur de Marie28 : un Panthéon des grandes figures du Québec. Sans s’engager officiellement dans le projet, la CCN s’est associée à des universitaires qui, sous la direction de Jean Hamelin, historien, ce sont mis à l’ouvrage pour élaborer le concept. À l’École d’architecture,j’avaisproposédemobiliseruneéquipequipourraitmettreenimagesleprojet. Avec mon collègue Pierre Côté et un groupe d’étudiants, nous avons ainsi produit des images illustrant le concept défini par l’équipe d’historiens ; il a suffi de donner forme au programme et de l’incruster dans la maquette électronique de l’église qui avait été antérieurement produite. En janvier 1998, nous étions plusieurs à être convaincus que l’église serait ainsi sauvée et que la Commission de la capitale nationale allait l’acquérir pour en faire le pavillon d’entrée de la colline parlementaire. Rien de tel n’arriva, la torpeur qui avait envahi la capitale après la défaite des troupes souverainistes au referendum de 1995 a eu raison de ce projet et de bien d’autres, dont celui du Théâtre La Bordée qui, en 1999, avait songé à s’installer dans l’église29. Mais la Ville et le Ministère de la Culture

26 Décret de Mgr Maurice Couture, 14 octobre 1997.

27 Le Soleil (1997, 24 octobre), À peine retapée, déjà fermée. À Saint Cœur de Marie, la dernière messe sera célébrée le 21 décembre. Aussi : Le Journal de Québec (1997, 22 décembre), La dernière messe [La dernière messe a été célébrée le 21 décembre 1997].

28 Bernier M. F. (1998, 27 janvier), Un Panthéon sur Grande Allée, Le Journal de Québec, p. 2. « Promoteurs : professeurs d’histoire Jacques Mathieu et Jean Hamelin, ainsi que le professeur d’architecture Luc Noppen, tous de l’Université Laval. Il y a aussi, Yves Beauregard, de la revue Cap aux Diamants, Denis Angers, de la Commission de la Capitale nationale (à titre personnel) et Yves Boulet, un administrateur, en quelque sorte l’initiateur du projet ».

29 Bourque F (1999, 21 mai), Une église et une chapelle dans la mire de la Bordée, Le Soleil.

80

clamaient toujours bien fort que l’église Saint Cœur de Marie « avait une valeur patrimoniale élevée »30

Las d’attendre, le 4 avril 2001, le Diocèse vend l’église Saint Cœur de Marie à la Fabrique de la paroisse Saint-Dominique31 , qui avait accueilli les derniers paroissiens du lieu de culte fermé. En fait, plusieurs acheteurs privés s’étaient manifestés et le Diocèse était peuintéresséàtransigeravecdes«marchands du temple». Toutefois, unmarguillier affairiste de la Fabrique de paroisse Saint-Dominique avait détecté une bonne affaire, semble-t-il. C’est ainsi que le 4 mars 2002, après de longues tractations, la paroisse SaintDominiquevendl’égliseSaint-Cœur-de-Marieau PalaisdesArts,unorganismeàbutnon lucratif (OBNL), qui propose d’exploiter le bâtiment à des fins culturelles (expositions et spectacles). Le prix de vente est alors de 300 000 $.

30 Le Soleil, 9 mai 2001.

31 2001, 4 avril : vente de la Corporation de l’archevêque catholique romain de Québec (Maurice Couture) à la Fabrique de la paroisse Saint Dominique de Québec (Jacques Marcotte, curé).

81
▼ Le chantier sur le clocher de l’église Saint Cœur de Marie, printemps 1997 ©

Le contrat de vente de 2002 stipule que le vendeur « will immediately obtain discharge of all its obligations arising from the protocol agreement signed by La Ville de Québec, la Ministre de la culture et des communications and la Commission de la Capitale nationale et La Fabrique Saint-Cœur-de-Marie, le 20 Mai 199732 ». C’est-à-dire que l’acquéreur est absous de rembourser les fonds publics investis lors de la consolidation du clocher, comme le prévoyait l’entente de mars 1997. En contrepartie l’acquéreur prend des engagements importants :

« Special obligations of the Purchaser: The Purchaser is and shall remain a non profit corporation and shall only occupy and operate the building and property on a non profit basis. The observance of these conditions shall be secured by inspection, audit or other control measures applied by the interested governmental authorities.

32 Registre des immeubles. No 1782817. 4 mars 2002. Vente de la paroisse Saint Dominique au Palais des Arts (Claude Beaumont, secrétaire) du lot 1 212 894 avec dessus construite une église, 530 Grande Allée Est, Québec.

82
▼ Projet de Mémorial dans l’église Saint Cœur de Marie (Maquettes réalisées à l’École d’architecture de l’Université Laval)

To use the property as a spiritual, social and cultural center and to provide a facility for a variety of private and public functions catering to all persons and organisations.

To restore and preserve the building in its architectural integrity, both interior and exterior, and to protect its heritage and historical significance.

To undertake the complete restoration of the building within delays of six (6) months following the date hereof. »

En bref, le Palais des Arts devra demeurer un OBNL et agir sur le site sans recherche de profits, sous réserve d’inspections et de mesure de contrôle par les autorités gouvernementales. L’usage est restreint à des activités spirituelles, sociales et culturelles en offrant seulement des services de restauration requis par ces activités. Mais, surtout, l’acquéreur s’engage à préserver l’intégrité architecturale, tant extérieure qu’intérieure du bâtiment, et d’en protéger le patrimoine et la signification historique ; il s’engage aussi à entreprendre la restauration complète du bâtiment dans un délai de six mois après la prise de possession.

En soi, ces conditions de vente paraissent optimales. Mais, le seul recours des vendeurs en cas de non respect des clauses est d’exiger la rétrocession du bien vendu. Or, on comprend que ni la paroisse Saint Dominique, qui a encaissé le prix de vente de 300 000 $, ni le Diocèse, pas plus que la Ville ou le Ministère, ne veuillent récupérer cette patate chaude (i.e. une église en mauvais état et sans usage). Le gérant du Palais des Arts savait cela, puisque à peine un an après l’acquisition, déclarait il : « Si nous voulons rénover à fond, il est possible qu’on ait à devenir une entreprise à profit33 . »

La vente suscita une polémique à Québec. C’est que l’acquéreur sous le couvert d’un OBNL est Alex Daryoush Rahmi, homme d’affaires de la Virginie Occidentale (en fait vendeur de voitures usagées), d’origine iranienne et de foi Bahá’í. Plusieurs lui prêtent l’intention d’installer un temple Bahá’í dans l’ancienne église catholique, ce qui leur paraît hérétique. En fait le projet de l’homme d’affaires est tout autre. Il l’a fait connaître à plusieurs reprises :

« M. Rahmi a l’intention de transformer l’église en Palais des Arts où se côtoieront artistes, peintres, musiciens, chanteurs, danseurs et où on tiendra des expositions de toutes sortes. Les travaux sont estimés à 4 millions $ et pourraient commencer cet été si la Ville de Québec et les gouvernements provincial et fédéral accordent des subventions. M. Beaumont [le gérant] : ‘Nous souhaitons implanter un centre multiculturel et multifonctionnel qui servira de vitrine des arts à Québec, en complémentarité avec ce qui se fait déjà. Le sous sol ferait place à un incubateur d’artistes. Le jour ils donneraient des cours de peinture, de 33 Croteau M (2003, 29 juillet), Le Soleil, p. A9

83

chant, de danse et de musique. En soirée le public serait invité à écouter des chants gospels et des musiques sacrées’. Des projets sont en cours pour mettre en valeur la devanture de l’église avec des jeux de lumière et d’eau, des mosaïques et d’autres effets visuels… »

Pour donner du poids au projet, les responsables du Palais des Arts organisent plusieurs activités dans la nef de l’église Saint Cœur de Marie : des fêtes, activités corporatives, colloques, enregistrements d’émissions télévisuelles, etc. Tout cela dans des décors grandioses avec des éclairages impressionnants,voiredes spectacles audio-visuels et des tournages de films dont les images circulent largement. Les promoteurs évoquent le nom de partenaires prestigieux : le Cirque du Soleil, Robert Lepage, Luc Plamondon, par exemple. Tout se passe comme si une salle de fêtes était apparue sur la Grande Allée et que la magie opérait…

▼ Scènes d’activités organisées par le Palais des Arts

©

Mais les observateurs avertis et les autorités constatèrent rapidement que le projet était improvisé et tablait surtout sur l’abandon des clauses restrictives du contrat de vente, l’injection majeure de fonds publics, et surtout, d’importants compromis quant à la réglementation municipale. En même temps, nul n’avait pris soin de vérifier les antécédents et la solvabilité de ce promoteur cowboy et quérulent qui, en Virginie, se débattait dans des poursuites relatives à plusieurs faillites frauduleuses34 .

34 Aux dernières nouvelles, en septembre 2021, selon le site InmateAid, Alex Daryoush Rahmi était encore détenu aux États Unis à la suite de ses faillites frauduleuses. URL : https://tinyurl.com/caxvkb53.

84
© Palais des Arts Palais des Arts

Un an à peine après la vente de l’église au Palais des Arts, le quotidien Le Soleil titre donc : L’église des promesses non tenues : « Alors que, au delà de 700 000 $ en fonds publics ont été injectés dans l’église Saint Cœur de Marie, sur Grande Allée, à Québec, son propriétaire, le Palais des Arts, contrevient régulièrement aux règlements de zonage municipaux, en plus de violer les conditions d’achat de la bâtisse35 . »

Il faut comprendre qu’au lendemain de la fermeture du lieu de culte, le zonage du site, « Institutionnel/lieu de culte », a dû être modifié. LaVille a donc accordé un zonage commercial léger36, ce qui exclut l’habitation et surtout les permis d’alcool. En fait, les résidents du quartier se sont vigoureusement opposés à la conversion de l’église en salle de spectacles37. Le secteur est en effet soumis, depuis les années 1980, à un moratoire sur les nouveaux bars et restaurants à l’ouest de la rue de Senezergues (ancienne rue Scott), ce qui a favorisé, au fil des ans, le développement résidentiel, notamment dans les anciens immeubles de la paroisse Saint-Cœur-de-Marie (presbytère et Patro) et autour du site de l’ancien couvent du Bon-Pasteur. Donc, après avoir tenu dans l’église une série d’événements dérogatoires, arrosés d’alcool, le promoteur revient à la charge en 2009 : « Après avoir essuyé deux échecs en sept ans, le propriétaire de l’église Saint-Cœur-de-Marie [le Palais des Arts] présente à la Ville de Québec une nouvelle demande de modification au règlement de zonage pour obtenir un permis d’y tenir des réceptions, des concerts, des bals et des vernissages avec service de restauration et de bar. Le parolier et metteur en scène Luc Plamondon s’intéresse au projet […]38 . »

Le projet initial, soumis en 2002, fut rejeté en 2004 en raison d’un imbroglio causé par les mentions « discothèque et restaurant » dans le projet de modification mis de l’avant. Il a été rejeté une nouvelle fois en 2009. Les choses s’enveniment en 2010, quand la Cour municipale de Québec condamne le Palais des Arts et son gérant à acquitter les arrérages de taxes municipales. Puis, les commerçants de la Grande Allée, avec à leur tête André Verreault, directeur d’Action Promotion Grande Allée, commencent à mettre sérieusement en doute les intentions philanthropiques des gestionnaires du Palais des Arts. Ils montent au créneau pour s’opposer à la demande d’octroi d’un permis d’alcool, au nom d’une concurrence déloyale :

« Nous sommes pour l’installation de commerçants dynamiques, des investisseurs, des gens passionnés et travailleurs (…) ils élaborent un concept, ils achètent ou louent un bâtiment ou un local, ils investissent temps et argent, ils demandent et obtiennent tous les permis nécessaires, se retroussent les manches et

35 Croteau M (2003, 29 juillet), L’église aux promesses non tenues, Le Soleil, p. A 1.

36 Administration, 11036Mc sur le Plan de zonage. Zonage identique à celui de l’édifice de la Laurentienne

37 Normandin P A (2004, 21 novembre), Église Saint Cœur de Marie. Pétition contre la conversion en salle de spectacles, Le Soleil, p. A 9.

38 Caron R (2009, 11 février), Projet de restauration. D’église à Palais des Arts

85

travaillent. Les gens du Palais des Arts font semblant d’être un organisme philanthropique dédié aux artistes, mais au fond leur but c’est de faire de cette salle une salle de réception de prestige ; ils veulent vendre de l’alcool ? Qu’ils le fassent légalement comme tous les commerçants de la Grande Allée, estime M. Verreault. »

Indiquant être pour la venue d’une telle salle de réception qui attirerait une clientèle plus importante, M. Verreault ne croit pas qu’Alex Rahmi et Yvan Cloutier [son gérant] représentent la solution : « Les administrateurs et propriétaires de l’église Saint Cœur de Marie ne semblent pas en mesure de financer un tel projet. Alors, peut être serait il temps pour eux de vendre à des gens d’affaires sérieux39 . »

Au printemps 2010, le Palais des Arts est dans une impasse. L’organisme est criblé de dettes ; son président s’est évaporé depuis quelque temps, aux prises avec la justice de son pays. Dans l’une de ses déclarations de faillite, il indique néanmoins parmi ses actifs, le Palais des Arts ! C’est dans ce contexte que survient la vente de l’église, le 8 décembre 2010, à la société 9204 4809Québec Inc.40. Leprix deventede1,2 millions couvre toutes les hypothèques légales et les dettes garanties, dont les taxes municipales et scolaires dues, et une somme de 350 000 $,« conformément àune ententesousseing privé ». C’est probablement là qu’Alex Daryoush Rahmi a retrouvé le comptant investi lors de l’achat en 2002.

Il faut néanmoins souligner que toutes les conditions imposées par le vendeur en 2002 (la paroisse Saint-Dominique, mais en fait le Diocèse de Québec), sont ignorées et non transférées au nouvel acquéreur, en 2010, ce qui est en soi illégal. Le maintien d’un OBNL, l’obligation de conserver et de mettre en valeur le patrimoine et l’obligation de restaurer l’église, tout cela disparaît. Pour faire respecter ces clauses restrictives, il aurait fallu que le Diocèse ou la ville requièrent la rétrocession de l’église pour non respect du contrat de vente. C’est beaucoup demander au Diocèse qui ne cherche pas vraiment récupérer une église négligée. Du côté de la ville de Québec, Jean Paul L’Allier, le visionnaire, a cédé la place, en 2005, à un nouveau maire. Il avait pourtant le sentiment d’avoir œuvré à la sauvegarde de l’église de la Grande Allée. En effet, en 1998, il avait déclaré : « nous avons trouvé les moyens d’investir près de 800 000 $ dans la restauration du clocher de l’église Saint Cœur de Marie, élément significatif majeur du patrimoine urbain de la Haute Ville. […] Une chose est certaine, lorsque les intérêts de l’Église, de la Ville et de l’État se rencontrent, la sauvegarde est assurée41 . » Mais il avait aussi lancé un avertissement, voyant poindre à l’horizon des temps plus difficiles : « À moins que l’indifférence

39 Martel T (2010, 10 février), Palais des arts : nouvel échec et grogne sur la Grande Allée, Québec Hebdo

40 Registre foncier du Québec. No 17776662. Vente du Palais des Arts (Dany Bussières) à 9204 4809 Québec Inc. (Marie Line Bolduc).

41 L’Allier J P (1998 1999), « Des églises en quête de miracles », Continuité, no 79, p. 24 25.

86

d’aujourd’hui ne soit remplacée par un minimum de clairvoyance et de décisions à caractèrepolitique,nousverronss’effacerenmoinsd’unegénérationlepatrimoinequirappelle ce que nous avons été et sans lequel nous n’aurions pu naviguer jusqu’à l’aube du troisième millénaire42 . »

▼ Vue de l’intérieur de la magnifique chapelle du monastère des Sœurs franciscaines missionnaires de Marie de la Grande Allée, démolie en 2008. Œuvre magistrale de l’architecte René P. Lemay. La Ville l’avait reconnue comme ayant « une valeur patrimoniale exceptionnelle »

Lorsqu’il quitte la mairie en 2005, Jean Paul L’Allier ne s’imaginait pas qu’un élu démolisseur prendrait sa place après le court intérim plutôt positif en matière de gestion du patrimoine bâti de la mairesse Andrée Boucher (décédée subitement en 2007), et que

87
© Michel Bourassa
42 Idem

celui ci se dévouerait corps et âme à propulser les promoteurs immobiliers dans le paysage construit de la ville historique, et ce, au point de se mériter le surnom de « fossoyeur du patrimoine »43 .

Pour Régis Labeaume, le patrimoine ecclésial de la Capitale nationale, tout comme l’ensemble du patrimoine bâti d’ailleurs, est un frein au développement de la ville, à la fois par le coût élevé du maintien de ces figures symboliques, mais surtout par leur « prime location ». Et, par développement, il entend surtout la densification du territoire. Son règne, à Québec, de 2007 à 2021, a été marqué par une série de démolitions de bâtiments patrimoniaux remarquables44 qui ont souvent fait place à des constructions en hauteur. Je me souviens avoir assisté à une rencontre sur l’avenir de l’arrondissement historique de Sillery au cours de laquelle le nouveau maire, qui arrivait d’un voyage à Vancouver, avait exprimé son admiration pour les filiformes gratte ciel de cette ville ; il voyait la falaise de Sillery peuplée de telles « chandelles »…

La montée en puissance du promoteur

Dès l’acquisition de l’église Saint Cœur de Marie en décembre 2010, le promoteur Louis Lessard ne fait pas mystère de sa volonté de remplacer le monument par une tour d’habitation.Ilentreprend lapréparationdeprojetsen cesens,mais reçoit un accueil plutôttiède dans les services concernés de la Ville de Québec ; on lui fait valoir le poids signalétique et patrimonial du clocher de l’église qu’il faudrait donc conserver, quitte à l’insérer dans un projet de développement.

Les armesdont disposelaville :le règlementdezonagequi, enl’état, proscritl’habitation et limite les hauteurs. Ayant obtenu quelques vagues promesses qui l’avaient encouragé à préparer projet après projet, le promoteur, impatient, se rebiffe en septembre 2016, dénonçant ce qu’il qualifie de « volte face » de la Ville sur l’avenir de son terrain [sic]. Il annonce vouloir « démolir l’édifice de style byzantin et le remplacer par une tour d’habitation de 18 étages45 . »

Faut il ici rappeler que la Ville avait annoncé souhaiter rouvrir le Plan particulier d’urbanisme (PPU) de la colline parlementaire pour y rajouter cinq sites d’intérêt à préserver, dont celui de l’église Saint Cœur de Marie. Le promoteur, lui, « plaide que son projet de tour à condo, qu’il qualifie de ‘sublime’, s’intègre parfaitement dans le développement

43 Leroy P H. (2012, 9 mai), César, Régis et le patrimoine, Le Soleil, URL : https://tinyurl.com/mk9wwejy.

44 Quelques démolitions qui ont fait du bruit : chapelle et monastère des Franciscaines (2009) ; l’église Saint Vincent de Paul (2010) ; Palais central de l’Exposition provinciale, (2012) ; monument de Jean Pierre Raynaud (2015) ; centre Durocher (2015).

45 Radio Canada (2016, 28 septembre [mis à jour le 18 juin 2019]), Le propriétaire de l'église Saint Cœur de Marie s'estime largué par la Ville, URL : https://tinyurl.com/y5sf3v8h

88

actuel de la Grande Allée46 » Son projet ferait partie de l’allée des arts qui part du nouveau musée qui a requis la démolition du couvent des Dominicains et qui arrive jusqu’au Château Frontenac. Rien de moins…

▼Mosaïques de projets proposés par le promoteur

Mosaïque d’une série de projets proposés par le promoteur Louis Lessard pour le site de l’église Saint Cœur de Marie (Gérald Gobeil, « Église Saint Cœur de Marie : les 9 travaux ». Québec urbain, 16 mars 2017. URL : https://tinyurl.com/btxjxyfm.

En mars 2017, le débat se déplace alors dans des assemblées de consultation sur les modifications à apporter au PPU dela Collineparlementaire. Lepromoteur continue à vanter son projet comme en témoigne cette déclaration :

« Le promoteur et propriétaire du 530, Grande Allée Est (Société́ immobilière Lessard) souhaite le retrait de son site du programme d’acquisition d’immeubles de la Ville. Il mentionne que depuis sept ans, il a déposé́ plus de 9 versions différentes de plans avec plus de 5 firmes d’architectes, en collaboration avec la Ville, avec des tentatives de conservation du bâtiment. Les coûts sont importants et il n’y a pas de soutien financier de la municipalité́ ni du gouvernement. Il rappelle que le bâtiment est fermé au culte depuis 23 ans et que sa détérioration a commencé́ au delà̀ des sept dernières années. Le dernier projet intègre une œuvre d’art et un rappel architectural des arches de l’église, et a recueilli l’appui de 400 personnes via Facebook. Il déposé également un mémoire

89
46 Idem

et des lettres d’appui de commerçants et de promoteurs. Il demande à la Ville de considérer à nouveau son projet47 . »

Les citoyens consultés sont partagés sur l’à propos d’inscrire l’église Saint Cœur de Marie au Programme d’acquisition d’immeubles de la Ville, ce qui préserverait l’église menacée. Le promoteur et ses représentants mettent alors en doute la valeur patrimoniale de l’église et la qualité des études qui ont consacré ce statut. À l’été 2017, la Ville adopte les modifications proposées au PPU et entame des démarches d’expropriation qui visent la maison Pollack, sur la Grande Allée, tout aussi mal en point que l’église. Pour l’église Saint Cœur de Marie, rien, sinon la promesse d’un vague concours d’idées pour sa requalification. Dès ce moment, le dossier de l’église Saint Cœur de Marie est géré par le cabinet du maire Labaume.

47 Rapport de l’Assemblée publique de consultation. Modifications au Plan directeur d’aménagement et de développement relativement au Programme particulier d’urbanisme pour la colline Parlementaire (R.V.Q. 2436). Fiche 8 : Ancienne église Saint Cœur de Marie, 530 Grande Allée Est, URL : https://tinyurl.com/58fb83a4

90
▼ L’église Saint Cœur de Marie « squattée » par un marché aux puces © Marc Grignon

Pendant ce temps là, au début de 2018, le promoteur entreprend une campagne de diffamation du monument : il ouvre les portes au public avec un marché aux puces qui, littéralement « squatte » les lieux, en mettant en évidence l’état d’abandon de l’ancienne église. Puis, en juin 2019, on apprend que la Ville a accepté une demande de démolition, avec des conditions : « La Commission d’urbanisme recommande la déconstruction de l’église afin d’en conserver les pierres de revêtement de la façade, de même que les ferblanteries. […] C’est que la Commission indique qu’elle « exigera la reconstruction à l’identique de la portion avant du bâtiment48 »

Le promoteur s’oppose à cette décision « déraisonnable » à ces yeux ; il estime que la conservation de la façade (démontage et remontage devant le nouvel immeuble) coûterait à elle seule entre 8 et 10 millions de dollars et menace la Ville de poursuites. Mais, sans attendre, il annonce qu’il va démolir l’église, invoquant une situation d’urgence. En fait, Louis Lessard avait commandé un rapport d’ingénieur à la firme Douglas Consultants Inc., ingénieurs-conseils en structure, concluant que le bâtiment était fragile au point que

48 Bernard J (2019, 5 juin), L’église Saint Cœur de Marie pourrait être démolie dès cet été, FM 93, URL : https://tinyurl.com/37j9b9pw

91
▼ Cette façon irrévérencieuse d’occuper les lieux est un exercice de diffamation

des morceaux de pierre pourraient se détacher du clocher (pourtant restauré à grands frais en 1997…).

▼ La démolition de la section haute du clocher s’est d’abord faite avec soin, comme si on prévoyait devoir con server la tour. Ce travail terminé, la structure de consolidation installée en 1997 est apparue, bien solide

Avec ce rapport, il obtient, le 20 juin 2019, un jugement de la Cour supérieure l’enjoignant de procéder à la démolition pour des raisons de sécurité publique. Pour mettre de la pression, lepromoteur bloque une partie de la Grande Allée, ce qui suscite évidemment un tollé général et des appels à la démolition rapide. Le 21 juin, sous pression, la Ville émet le permis de démolir, bien que celle ci soit toujours liée à la conservation du clocher et de la façade.

92
© Pierre Lahoud

La Ville l’a dit, « le promoteur peut démolir », la Cour supérieure a renchéri, « le promoteur doit démolir », tout ceci malgré l’avis du Service de protection contre l’incendie de Québec qui, sur place, constate qu’il n’y a pas de réel danger. Mais le promoteur ne veut toujourspasconserveretmettreenvaleurlafaçadedel’ancienneéglisedevantsonnouvel immeuble. Son projet inavoué : démolir rapidement49 et de façon irrémédiable la partie haute du clocher la figure emblématique , ce qui, selon lui, permettrait de réduire rapidement le périmètre de sécurité. En fait, une fois disparu ce clocher encombrant, il sait que sa cause est gagnée, le volume de l’église « byzantine » n’ayant jamais suscité beaucoup d’intérêt en soi.

https://tinyurl.com/3seywks3

93
▼ Le travail de démolition s’est enchaîné, avec rage, à partir du 17 septembre 2019 © Pierre Lahoud 49 Tremblay D (2019, 27 juin), Église Saint Cœur de Marie : la démolition va s’accélérer, Le journal de Québec, URL :

Les travaux de démolition sont entrepris le 26 juin 201950. Sur ces entrefaites, la ministre de la Culture avait refusé une demande de classement, déposée in extremis par la Fédération Histoire Québec51. De son côté, le maire Labeaume se défile en affirmant, assez curieusement, que « la Ville n’est pas dans le business des églises52 ». Point final.

50 Néron J F (2019, 25 juin), La démolition de l’église Saint Cœur de Marie débute mercredi, Le Soleil, URL : https://tinyurl.com/58yvxv3d.

51 Gagné L (2019, 25 juin), Demande de classement patrimonial pour sauver l’église Saint Cœur de Marie, Radio Canada, URL : https://tinyurl.com/97756vw

52 Moalla T (2021, 1e septembre), Église Saint Cœur de Marie : Labeaume refuse de porter le blâme, Le Journal de Québec, URL : https://tinyurl.com/3h9p2nx5.

94
▼L’église en cours de démolition, en septembre 2019
© Claude Thibault
La fin des travaux de démolition © Marc Boutin © Claude Thibault ▼ Le site « vert » de l’église Saint Cœur de Marie) © Claude Thibault, 2021

Souvenons-nous de ce cas

Le cas de l’église Saint Cœur de Marie montre de manière éloquente comment une déclaration d’intérêt patrimonial, voire un classement, ne sont pas des garanties de sauvegarde d’un monument de premier plan. La connaissance et la notoriété de notre patrimoine bâti notre « vouloir patrimonial » sont et seront perpétuellement à construire et reconstruire. J’ai vraiment l’impression que les efforts qui ont été déployés pour faire valoir et conserver l’église Saint Cœur de Marie depuis le début des années 1990 ont été oubliés, voire ignorés. C’est que, dans l’opinion publique, celle qui mobilise les élus comme jamais, la question de la valeur d’usage économique du patrimoine, de son utilité immédiate, est désormais cruciale. Que fera t on de ce nombre sans cesse grandissant de sites et de bâtiments que nous voulons conserver ? Qui défraiera le coût de leur conservation et de leur mise en valeur ? En même temps, nous pourrions occuper ces sites avec des édifices qui répondent mieux aux besoins d’aujourd’hui

Toutes ces questions se posent à ceux qui militent pour conserver un paysage construit de qualité, et qui possède une valeur identitaire certaine. Le cas de l’église Saint Cœur de Marie est, de ce point de vue, un échec cuisant. En revanche, il démontre aux promoteurs sans scrupules qu’ils peuvent mettre la main sur des sites précieux et les rentabiliser à leur guise. La recette : fréquenter, entretenir et promouvoir des élus complaisants (des gens qui ont réussi en affaires, par exemple), et laisser le temps s’écouler et faire son œuvre, à l’abri de sanctions. Ainsi, on constate que, s’il y a des gens qui, au fils des ans, ont construit la notoriété patrimoniale de Québec, d’autres, de plus en plus nombreux, sont aujourd’hui très actifs à la défaire, très souvent par ignorance. Tout se passe comme si, tout autour de l’écrin qu’est le Vieux Québec, les marchands du temple avaient désormais droit de cité. La Grande Allée, jadis artère prestigieuse, a perdu l’un après l’autre ses monuments les plus signifiants. C’est aujourd’hui une grande buvette, en pleine décadence, sertie d’immeubles de rapport, sans véritable qualité architecturale. Au terme de tout cela, il restera l’Hôtel du Parlement et le Manège militaire, deux propriétés publiques restaurées à grands frais.

On doit tirer des leçons de cette « saga ». On ne peut laisser le soin de notre patrimoine le plus précieux entre les mains d’entrepreneurs véreux, même s’ils se présentent sous le couvert d’un OBNLhasardeux. Les « propriétaires » du Palais des Arts n’ont jamais vraiment voulu conserver et mettre en valeur l’église Saint Cœur de Marie ; tous s’en doutaient.LepromoteurLessardn’ajamaisvraiment eul’intention,luinonplus,deconserver l’église, à moins que les pouvoirs publics ne paient le coût de cette conservation. Peut-on le lui reprocher ? Non, l’entreprise privée n’a pas pour vocation de sauver le patrimoine, elle vise d’abord et essentiellement la recherche de profits.

95

On doit cependant blâmer les autorités publiques, la Ville de Québec, d’abord, puis le ministère de la Culture et des Communications du Québec, ensuite. La Ville a, quoique certains prétendent aujourd’hui, les moyens de protéger son patrimoine. Jean Paul L’Allier, maire, et Serge Viau, à l’époque directeur-général adjoint, ont littéralement sauvé l’église une première fois, en 1997. Il y a eu un manque de continuité, de volonté après cela, un changement de personnel et de cap. Sous le règne du maire Labeaume, tout s’est passé, à Québec, comme si le temps était venu pour que des promoteurs privés encaissent les bénéfices des investissements colossaux qui ont été faits depuis 1970 pour sauver et mettre en valeur le patrimoine collectif53. Les quartiers centraux qu’on abandonnait il n’ y a pas si longtemps, sont aujourd’hui devenus des lieux de vie désirables, recherchés, notamment à cause de la qualité de leur paysage construit. Pourquoi alors les mutiler ? Les églises Saint Sauveur et Saint Jean Baptiste, deux monuments mal en point, mais situés dans des quartiers vibrants, seront elles les prochaines victimes de ce phénomène d’embourgeoisement ?

Quant au ministère de la Culture et des Communications, on chercherait en vain une stratégie, une cohérence. Refus de considérer le dossier de l’église Saint-Cœur-de-Marie, mais classement du piteux Cyclorama de Jérusalem de Sainte Anne de Beaupré, qui n’impressionnepersonne(onauraitplutôtdûclasserlepèlerinageà Sainte Anne).Etcela, alors qu’il y a près de 200 églises dites « protégées » au Québec, qui, à terme, sont toutes en péril. Que faire avec « ces grandes nefs historiques », sinon que d’accompagner les municipalités à les prendre en charge ? Pourquoi donc vouloir classer l’église Saint Sacrement, quela Villen’a pas priorisée… etlaisser allerl’église Saint Jean Baptiste, pourtant classée patrimoniale ? Où est le plan ?

La disparition de l’église Saint-Cœur-de-Marie de la Grande Allée est une perte, inestimable, irréparable. Il faut en tirer des leçons, l’utiliser pour faire œuvre de pédagogie. Et en sauver d’autres. 53 Morisset L K. (2016), op. cit., p. 26 28.

96
97
▼ Saint François d’Assise de Québec, érigée en 1918, démolie en 2020 pour faire place à une tour d’habitations © Pierre Fraser, 2019

DU QUARTIER

« Au Québec, les projets de revitalisation des églises proposent, pour la majorité, soit un centre communautaire, soit un théâtre, soit la transformation en condominiums. Dans certaines circonstances, le contexte urbain qui entoure l’église est rarement pris en considération, puisque les projets de revitalisation sont parfois conçus de façon précipitée. De plus, plusieurs églises laissées à l’abandon depuis trop longtemps finissent par être démolies. Cet article tente donc une nouvelle approche par la mise en relation entre le contexte urbain et la requalification des églises, en plaçant au centre de celles ci, les préoccupations de la communauté » [Véronique Lemieux].

CONSERVER L’ÉGLISE COMME REPÈRE VISUEL

Requalifier une église en la réintégrant dans son milieu

e nos jours, « sur le terrain, [les architectes et les urbanistes] sont presque systématiquement confrontés à la problématique de la patrimonialisation1 . » D’ailleurs, ils doivent « considérer que la question patrimoniale croise la question du développement et de la transformation des villes2 . » Cela signifie donc que le contexte urbain, c’est à dire tous les éléments externes qui entourent l’église équipements, logements, parcs, les rues, etc. , ont une importance certaine. Aussi, est il important de saisir que la réutilisation du patrimoine religieux bâtin’estpasuneentraveàcelui ci,maisplutôtunefaçonde« patrimonialiser »3 .Comme l’a bien démontré Laura H. Hollengreen, dans son texte From medieval sacred place to modern secular space : Changing perspective on the cathedral and town of Chartres, le contexte urbain autour d’une cathédrale ou d’une église a un impact important sur ses fonctions et sa fréquentation4. Cet article, qui se penche sur le recyclage des églises au Québec, traite plus particulièrement de l’église Saint-Jean-Baptiste de Québec et de sa relation avec l’école primaire Saint-Jean-Baptiste adjacente et son quartier. Dans cette optique, cet article propose l’arrimage de l’église Saint Jean Baptiste et son parvis avec l’école primaire Saint Jean Baptiste afin de répondre à son besoin en matière d’espace. Tout d’abord, en ce qui concerne l’école primaire, le local du service de garde est trop petit puisqu’il ne peut accueillir tous les élèves, sans compter que le gymnase, assez bas et restreint, ne peut accueillir plus d’un groupe à la fois, ni de spectateurs. Autrement, une bibliothèque plus grande serait plus qu’appropriée, puisqu’elle ne peut pas actuellement accueillir plus qu’une dizaine d’élèves. Ces besoins se présentent non seulement comme une occasion pour l’église Saint-Jean-Baptiste et un réel besoin pour la collectivité, mais également parce que le fait d’aménager une palestre et une bibliothèque dans l’église, entre autres, permettrait d’obtenir des subventions autres que celles du ministère de la Culture et des Communications du Québec. Vu sous cet angle, le projet

1 de Sant Pierre Caroline (2014), La ville Patrimoine : Forme logique, Enjeux et Stratégies. Harpe : Presses Universitaires de Rennes, p. 7.

2 Idem, p. 10.

3 Actes du colloque régional (2015, 15 16 septembre 2014), Rénover, réutiliser, reconvertir le patrimoine. Paris : Somogy éditions d’art, p. 24.

4 Hollengreen Laura H. (2004), « From medieval place to modern secular space : Changing perspectives on the cathedral and town of Chartres Dans Arnold, Dana, Ballantyne », Andrew, eds., Architecture as experience: radical change in practice, pp. 81 108, New York, London : Routledge [Livre électronique].

99
Véronique Lemieux, architecte

permettrait ainsi l’occupation du bâtiment sur de longues périodes tout au cours de l’année, ce qui augmenterait d’autant la possibilité d’obtenir des subventions.

Le respect des fonctions ancestrales de l’église

Au Québec, les projets de revitalisation des églises proposent, pour la majorité, soit un centre communautaire, soit un théâtre, soit la transformation en condominiums. Dans certaines circonstances, le contexte urbain qui entoure l’église est rarement pris en considération, puisque les projets de revitalisation sont parfois conçus de façon précipitée. De plus, plusieurs églises laissées à l’abandon depuis trop longtemps finissent par être démolies. Cet article tente donc une nouvelle approche par la mise en relation entre le contexte urbain et la requalification des églises, en plaçant au centre de celles ci, les préoccupations de la communauté.

Plus précisément, quelles requalifications permettraient de redonner les églises aux communautés,afinqu’ellesredeviennentdeslieuxderencontreetdespécialisationimportants dans les villes ? Comment les églises peuvent-elles redevenir un lieu communautaire ? Est-il possible de « recentraliser » les activités autour de l’église ? Je tenterai donc de répondre à ces questions en me penchant sur les trois fonctions ancestrales de l’église institutionnelle, identitaire, communautaire dans le but de développer des principes de base, autorisant ainsi à proposer des interventions appropriées sur le patrimoine religieux au Québec, comme celui de l’église Saint Jean Baptiste. En plus de la compréhension approfondie de ces concepts, il s’agira de comprendre et de répondre aux besoins de la collectivité du quartier Saint Jean Baptiste. En somme, l’objectif général est de redonner un lieu de culte à la communauté afinqu’il redevienne non seulement un lieu de rencontre important dans son quartier, mais aussi un lieu appropriable par la communauté. La mission de requalification de l’église Saint Jean Baptiste est donc de proposer des interventions architecturales structurant l’espace intérieur de l’église, ainsi que son parvis, dans le but de faire cohabiter des fonctions institutionnelle, communautaire, et culturelle, d’intervenir sur le bâtiment existant en respectant sa valeur patrimoniale et identitaire, et finalement de faire en sorte que les interventions proposées permettent de générer un revenu pour la paroisse Saint-Jean-Baptiste. Considérant que l’église Saint-Jean-Baptiste n’est toujours pas désacralisée, l’idée consiste donc à faire cohabiter les fonctions sacrées et profanes. Cette stratégie de revitalisation sera donc forcément de nature usuelle, puisqu’elle permettrait à l’église de rester ouverte au culte en plus d’offrir de nouveaux espaces à la communauté du quartier, tout comme de rester également accessible la plupart du temps.

100

Stratégie de la recherche : la communauté au centre

Dans l’optique que ce projet d’architecture vise à redonner une église à sa communauté, la stratégie de recherche comporte deux volets.Tout d’abord, il s’agit debien comprendre les fonctions ancestrales de l’église, afin de les réinterpréter et trouver dès lors une fonction plus appropriée, à la fois pour la communauté, mais aussi dans le respect de ce patrimoineetdecequ’ilreprésente.Ensuite,ledesignparticipatifservirad’outilafin demieux comprendre les besoins de l’école primaire Saint-Jean-Baptiste et de la communauté du quartier Saint-Jean-Baptiste par des activités auprès des élèves de l’école primaire et des consultations actives auprès des intervenants concernés.

Dans le cadre de cette recherche, quatre groupes de la communauté ont été consultés. D’une part, une rencontre avec le curé Pierre Gingras de la paroisse Saint Jean Baptiste a permis de mieux comprendre les enjeux liés à l’église et la paroisse manque de fonds pour la rénovation et l’entretien de l’église , qui a entraîné sa fermeture en 2015, ainsi que les activités qui se déroulaient dans l’église avant sa fermeture. Ensuite, mes entretiens avec Mme Pascale Guéricolas, membre du comité des Parents Marteleaux de l’école primaire Saint-Jean-Baptiste, m’ont permis de mieux saisir l’appréciation des activités communautaires qui se déroulaient auparavant dans l’église ex. cuisines collectives. De plus, cette rencontre m’a donné l’occasion de prendre contact avec Mme Catherine Gélineau, directrice de l’école primaire Saint-Jean-Baptiste. Les discussions avec cette dernière ont facilité ma compréhension des besoins d’espaces de l’école. Cela m’a permis de visualiser des solutions afin de répartir les espaces entre l’école et l’église, afin que ceux ci soient utilisés à la fois par l’école et par la communauté du quartier Saint Jean Baptiste. Enfin, avec la collaboration de Mme Gélineau, j’ai été en mesure d’organiser une activité de design participatif auprès des élèves de l’école primaire en leur demandant de dessiner ce qu’ils désiraient voir commeactivités dansleur église. Plusieurs désirs sont ressortis de la compilation des dessins, tels que celui d’avoir un espace sportif, un espace reliéàlacultureetàl’art,toutcommeun espacepourdîneràl’intérieurdel’église ;toutes des données qui ont contribué à l’élaboration d’un programme architectural pour l’église Saint-Jean-Baptiste.

Pour rappel, ce processus de design participatif est soutenu par les concepts liés aux trois fonctions ancestrales de l’église, soit l’intentionnel, l’identitaireet le communautaire.Ces concepts permettront de renforcer le choix de programme établi, entre autres, à l’aide du design participatif.

101

Il convient d’abord de se demander si les trois fonctions ancestrales de l’église, soit institutionnelle, identitaire et communautaire sont encore d’actualité, et de quelle manière est il possible de les réinterpréter et de les actualiser, afin que les églises redeviennent des lieux de rencontre importants dans leur communauté.

La fonction institutionnelle

Historiquement, la fonction institutionnelle de l’église a modelé un contexte urbain tout à fait particulier, puisqu’elle se retrouvait au centre de la communauté. En effet, le cadre bâtis’estorganiséautourdel’église,qu’ils’agissedes écoles,terres,commerces,banques et autres. Étant donné que la religion occupait une grande importance dans la vie de la communauté, et que ses fonctions institutionnelles occupaient une place centrale, l’urbaniste émérite Gérard Beaudet avait émis l’idée que, puisque l’église avait une fonction structurante en raison de sa centralité, sa nouvelle fonction, lors de son recyclage, devrait être choisie dans le but de permettre une requalification de l’espace urbain5. Il devient donc important, dans ce cas, « d’interroger l’impact de l’église sur la (re)structuration de l’espace et de l’identité urbaine6 » En effet, autant que le contexte urbain détermine un nouveau projet, autant un nouveau projet ou le changement d’une fonction première peut remodeler celui-ci7. La fonction institutionnelle permet ainsi de comprendre que, par le passé, celle-ci a modelé le contexte urbain, et quele choixde la nouvelle fonction pourrait avoir un impact sur la circulation ou sur la fréquentation du bâtiment, par exemple son parvis. En raison de sa centralité, il devient impératif de prendre en considération le contexte urbain autour de l’église, afin de déterminer ce que nous voulons ou ne voulons pas changer afin de prendre une décision qui répondra adéquatement à la position particulière de l’église. Dans cette optique, si on considère que l’église a une fonction structurante en raison de sa centralité, la nouvelle fonction, lors de la requalification, devra être choisie afin de permettre aussi une requalification de l’espace urbain et de son parvis. Considérant que l’église Saint-Jean-Baptiste se situe encore aujourd’hui au centre de son quartier, la fonction institutionnelle est encore et toujours d’actualité. Le choix de sa nouvelle fonction servant, entre autres, à combler le manque d’espace de l’école Saint-JeanBaptiste, répond dès lors à la fonction institutionnelle. D’une part, parce que ce duo institutionnel se situe au cœur du quartier, et d’autre part, parce qu’intégrer des fonctions éducationnelles, redonne à l’église son pouvoir éducatif qu’elle avait autrefois. On s’en

5 Beaudet Gérard (2006), « Redécouvrir l’urbanité des églises », Coomans, Thomas, Noppen, Luc, Morisset, Lucie K. éditeurs, Quel avenir pour quelles églises ?/ What future for which churches ?, Québec : Presses de l’Université du Québec, p. 316.

6 Idem, p. 316.

7 Childs Mark C. (2012), Urban composition : Developing Community throught Design, New York : Princeton Architectural Press, p. 24.

102

rend bien compte, si l’église a une fonction institutionnelle qu’il faut respecter, elle possède également un aspect identitaire tout aussi important.

La fonction identitaire

Encore aujourd’hui, la fonction identitaire de l’église est très importante pour la communauté dans laquelle elle est implantée : une communauté s’identifie à son église, car elle représente une fierté pour le quartier et qu’elle fait partie de l’identité urbaine d’un quartier comme Saint Jean Baptiste. Ce que montrent ces deux définitions identitaires, c’est que l’église « marque significativement le paysage et s’avère, dans un environnement où les rapports de proximité restent dominants, un repère [physique] presque quotidien. S’ajoutant à la première fonction identitaire [de repère], celle ci contribue à l’élargissement du sentiment d’appartenance puisqu’elle ne rejoint pas les seuls croyants.8 » Ceci montre bien que l’église a une fonction de repère visuel dans la ville ou le village pour la population, et donc une fonction typo morphologique, c’est à dire qui a une qualité importante dans son milieu urbain. Autrement, le sentiment d’appartenance est plus qu’important, car il perpétue l’identification à cette église. La fonction de repère visuel de l’église n’appartient pas seulement au bâtiment, mais aussi à son identité urbaine. Il est donc important de prendre cela en considération lors de la requalification, puisqu’il ne faut pas perdre, idéalement, cette fonction de repère. Lors d’une requalification, comme le mentionne Lucie K. Morisset, « le contenant y précède le contenu, la fonction doit suivre la ‘forme’ à la fois chronologiquement et techniquement9 . » Cela montre que la nouvelle fonction qui est intégrée à l’intérieur doit être aménagée de manière à garder l’intégrité du lieu. Cette manière de procéder,lorsdelarequalificationetduchoixdelanouvellefonctiond’uneéglise,permet ainsi de garder le caractère identitaire extérieur de l’église. La nouvelle fonction changera peut-être l’identité intérieure de l’église, mais en conservant sa fonction de repère visuel, elle permettra toujours à la communauté de s’identifier à elle tout en conservant ainsi son identité urbaine. La nouvelle fonction de l’église pourrait aussi augmenter le sentiment d’appartenance de la communauté, pourvu que ce choix soit socialement pertinent. Dans le cas de l’église Saint Jean Baptiste, la fonction identitaire est encore présente, puisqu’il est possible de voir son pignon de plusieurs points de vue dans le quartier Saint Jean Baptiste, tout comme de la voir depuis la rue Claire Fontaine ou depuis les Plaines d’Abraham. La requalification, autant que faire se peut, doit conserver l’intégrité de la façade de l’église, afin que la communautécontinue à s’identifierà elle et se repérer grâce

8 Beaudet Gérard (2006), op. cit , p. 381.

9 Morisset Lucie K. (2009), De la ville au patrimoine urbain : Histoires de forme et de sens, Québec : Presses de l'Université du Québec, p. 271.

103

à elle. Toutefois, certaines interventions, comme celle de l’implantation d’un belvédère, peuvent montrer que l’église remplit désormais une nouvelle fonction à découvrir à l’intérieur. Donc, si la nouvelle vocation doit à la fois respecter la fonction institutionnelle et la fonctionidentitairedel’église, elledoit également respecterlafonctioncommunautaire un impératif.

La fonction communautaire

La fonction communautaire est vraisemblablement la plus importante à conserver. L’église a, en fait, une valeur communautaire qu’il faut respecter. Thomas Coomans, Luc Noppen et Lucie K Morisset affirment que, historiquement, les services communautaires étaient « presque exclusivement assumés par les multiples congrégations, par le biais des espacesecclésiaux10 . »L’égliseestdonciciconsidéréecommeunespacecommunautaire, d’abord par son parvis où les villageois échangent des nouvelles, et par son sous sol où l’on retrouvera, entre autres, des groupes communautaires soutenus par le clergé. En ce sens, l’église doit être considérée dans l’optique où « churches belong to the community11 », c’est à dire que l’église est un bien de la communauté et non pas d’une seule personne. Comme mentionné par Lucie K. Morisset, « la solution idéale de ce problème suppose aussi le recensement des équipements et des services qu’une rue, un quartier, une ville, voir une région nécessite12 . » Le recensement des équipements permettra alors de développer un programme comportant des usages sociétaux et communautaires qui s’appuient sur les besoins de la communauté dont il est question et d’y répondre le plus adéquatement possible à l’aide d’une nouvelle fonction. En fait, le « projet patrimonial, par la nature de son objet, repose sur des fondations sociétales (celles, d’abord de proximité) et, par conséquent, appelle une vocation communautaire, à cette intersection du sacré, du sacral et du patrimoine de proximité13 . » Celadémontre qu’une cohabitation entre le sacré et le profane, la nouvelle fonction, serait souhaitable afin que le bâtiment devienne utile et utilisable par tous. Un endroit et une fonction qui permettent, comme auparavant, des rassemblements favorisant les échanges entre les habitants de ce quartier, de cette ville ou de ce village seraient, à tout le moins, idéals. Cela fera alors sentir à la communauté que l’église lui appartient toujours et soutiendra par le fait même le sentiment d’appartenance et la fonction identitaire de celle ci dans son environnement.

Dans le cas de l’église Saint Jean Baptiste, la fonction communautaire était déjà fort bien remplie avant sa fermeture en 2015, soit par des activités telles que les cuisines

10 Coomans, Thomas, Noppen, Luc, Morisset, Lucie K. (2006), op. cit. p. 316.

11 Idem., p. 317.

12 Morisset Lucie K. (2009), De la ville au patrimoine urbain : Histoires de forme et de sens, Québec : Presses de l'Université du Québec, p. 272.

13 Noppen Luc, Morisset Lucie K. (2005), Les Églises Du Québec : Un Patrimoine À Réinventer Québec : Presses de l'Université du Québec, p. 345.

104

communautaires,soitparladistributionalimentaire,desconcertsetmêmedesexpositions sur différents sujets comme l’histoire du quartier. Réintroduire ces activités à l’intérieur de l’église, en sus de nouvelles fonctions scolaires, permettrait à la fonction communautaire de continuer à exister. Le projet mettra alors la communauté au centre des préoccupations.Deplus,ilestappropriéd’utiliserl’égliseafind’offrirdel’espacesupplémentaire pour l’école primaire puisque, selon Luc Noppen, il faut « amener le patrimoine, non pas pour le présent, mais pour le futur14 . » Donc, en offrant les espaces de l’église, entre autres, aux générations futures, l’église se projette également dans le futur. Finalement, une manière de respecter les trois fonctions de l’église l’institutionnel, l’identitaire, le communautaire , est d’appliquer le principe que Tania Martin a développé et qui stipule : « C’est en réinsérant l’église dans son propre cadre au lieu de son cadre propre qu’on arrivera à trouver des solutions appropriées, autant pour la sauvegarde du bâti que pour le bien-être des collectivités, des gens du milieu15 . » En d’autres termes, c’est en laissant l’église dans son contexte urbain et de prendre celui-ci en considération qu’il sera possible de procéder à une requalification efficace. De plus, considérant qu’« [a]u fil des ans l’église Saint-Jean-Baptiste a […] influencé son environnement à tel point que celui ci a fini par lui ressembler, rien d’étonnant donc à ce qu’aujourd’hui il soit difficile de dissocier le monument de cet environnement qu’il a puissamment contribué à façonner16 . » D’ailleurs, le style architectural de l’église Saint Jean Baptiste a singulièrement influencél’architecturedes bâtimentsduquartier,ettoutparticulièrementsur la rue Saint Jean. Cela montre que le contexte urbain du quartier Saint Jean Baptiste est important à prendre en considération dans la poursuite de ce projet d’architecture.

14 Idem., p. 345.

15 MartinTania(2006),« Lescadresduculte :Lenoyau paroissialet l’église »,dans Coomans Thomas, Noppen Luc, Morisset Lucie K., op. cit p. 370

16 Noppen Luc, Morisset Lucie K. (1994), Lieux de Culte situés sur le territoire de la Ville de Québec, Québec: Ville de Québec, Service de l'urbanisme, p. 146.

105

Contexte de l’église Saint-Jean-Baptiste et de son quartier

Historique de l’îlot

Lequartier Saint Jean Baptiste de Québec, délimité par l’avenue Honoré Mercier, le boulevard René Lévesque Est, les rues de la Chevrotière, Jaques-Parizeau, Claire-Fontaine, Grande-Allée Est, l’Avenue de Salaberry et le flancdefalaise,asubitroisgrands incendies illustrés sur la carte de gauche. Le premier incendie de 1845 a rasé presque la totalité du faubourg. La paroisse acquiert alors le lot encadré par les rues Saint Jean, Deligny, d’Aiguillon et Sainte Claire construit en 1847 1849 selon les plans de l’architecte Charles Baillairgé, la première église desserte de la Cathédrale Notre Dame de Québec. La fondation de l’école Saint Jean Baptiste ira de pair en 1849. En 1862, Les Frères des Écoles chrétiennes, qui enseignent aux garçons du Québec depuis 1843, s’installent dans un bâtiment au coin de Deligny et Saint Jean (figure 2). L’église et l’école n’ont pas encore été touchées par le deuxième incendie survenu en 1876.

▼ Figure 2 : Ville de Québec, Plan d’assurance incendie, dessin, 1875, BaNQ

106

▼ Figure 3 :

Ville de Québec, Plan d’assurance incendie, dessin, 1898, BaNQ

▼ Figure 4

Ville de Québec, Plan d’assurance incendie, dessin, 1910, BaNQ

▼ Figure 5

Ville de Québec, Plan d’assurance incendie, des sin, 1957, BaNQ

Toutefois, le troisième incendie dévastateur de 1881 touchera la première église et l’école en ne laissant que des murs calcinés, en plus de détruire 662 maisons. L’actuelle église Saint-Jean-Baptiste sera donc érigée entre 1881-1884 sur les décombres par l’architecte Joseph-Ferdinand Peachy et bénite en 1884. L’aménagement intérieur se poursuivra sur plusieursannéesaprèssonouverture.L’écoleestégalementreconstruiteaumêmeendroit, soit au coin de Deligny et Saint-Jean, avec toutefois des proportions légèrement plus grandes (figure 3). En 1908, l’école est agrandie jusqu’à la rue d’Aiguillon (figure 4) et c’est en 1988 que la cour d’école sera aménagée au dessus du gymnase (figure 5). Enfin, en 1991, l’actuelle église Saint Jean Baptiste sera classée immeuble patrimonial au Répertoire du patrimoine culturel du Québec. Par la suite, jusqu’en 2009, plusieurs restaurations seront effectuées sur le bâtiment, mais en mai 2015, la Fabrique paroissiale et le Diocèse de Québec en fermeront ses portes en raison d’un manque de budget pour des rénovations évaluées à plus de 12 $ millions17 .

107
17 Pierre Gingras (abbé de la paroisse Saint Jean Baptiste), en discussion avec l’auteur,18 décembre 2019.

Situation actuelle

L’église Saint Jean Baptiste représente indubitablement un élément important du paysage urbain de la ville de Québec, sans compter que son clocher reste un point de repère important pour la communauté. Avant sa fermeture, le sous sol était occupé par des organismes communautaires, ainsi que des groupes de différentes natures. La nef et le jubé, à eux seuls, représentent une capacité de 2 500 places même en situation de sous-utilisation. En fait, selon l’abbé Pierre Gingras, le seul moment où l’église a été remplie au maximum de sa capacité, c’est lors de sa fermeture au culte en mai 201518 . On peut donc avancer l’idée que ce monument devient dès lors propice à une future requalification, puisqu’il est à la fois un symbole identitaire pour le quartier et même pour la ville de Québec. C’est donc de cette proposition que s’inspire cet article. En fait, selon l’ouvrage Regard sur le patrimoine de François Icher, qui offre un nouveau regard sur la définition du patrimoine, « Le patrimoine est un objet de savoir en lui même et peut être une fin en soi. Maisil est aussi un moyen de développer des apprentissages fondamentaux chez l’enfant. Regarder, toucher, écouter, sentir, mesurer, prendre la dimension du temps et de l’espace, produisant une protection émotionnelle du patrimoine19 . »

De cette citation, on peut comprendre que le patrimoine est un outil d’apprentissage pour les enfants qui sont en phase d’exploration de tous leurs sens. Réhabilité l’église SaintJean-Baptiste à des fins éducatives, arrimées aux objectifs de l’école primaire Saint-JeanBaptiste, est peut être une voie prometteuse, puisqu’amener les élèves à côtoyer ce lieu plus souvent leur permettrait ainsi d’en apprendre davantage sur l’histoire, peut être de s’y attacher, et par le fait même d’assurer à ce monument une certaine pérennité.

Le duo institutionnel

Ce projet d’architecture, la requalification de l’église Saint-Jean-Baptiste, son parvis et leur arrimage avec l’école primaire Saint-Jean-Baptiste, se veut donc une synthèse des thèmes et concepts abordés dans les paragraphes précédents. Il s’agit donc de redonner l’église au quartier en fonction des objectifs énumérés et des différents enjeux, tout en proposant une analyse du site, suivi du concept et du programme, pour terminer avec la présentation de la proposition d’intervention.

Mission, enjeux, objectifs

Le but de ce projet est de tisser un lien entre l’église Saint-Jean-Baptiste et l’école primaire adjacente, afin que ce duo devienne un nouveau cœur institutionnel et culturel du

18

19

108
Selon l’abbé Pierre Gingras de la paroisse Saint Jean Baptiste. Entrevue réalisée le 18 décembre 2019. Icher François, Limouzin Jacques (2008), Regards Sur Le Patrimoine, Montpellier : CRDP du Languedoc Roussillon, p. 138.

quartier Saint Jean Baptiste à Québec, par la réinterprétation des fonctions ancestrales de l’église. Le projet tient compte de plusieurs enjeux dont :

ENJEUX OBJECTIFS

La durabilité et au recyclage de l’église existant.

Réutiliser la structure existante et les espaces dans l’optique de les rendre utiles.

MATÉRIALISATION

Renflouer les estrades existantes et l’utilisation d’une partie pour des spectateurs.

Nouveau plancher du studio de danse/yoga s’accroche à la structure existante.

Le réaménagement du parvis. Rendre cet espace agréable et appropriable par la communauté.

Que le parvis devienne un passage et un lieu de choix dans le quartier.

Agrandissement de l’espace dédié au parvis.

Aménagement d’un espace d’exposition, d’un café et d’un toit terrasse.

L’approche patrimoniale et aux valeurs attribuées au lieu par la communauté

Concept et programme

Porter une attention particulaire aux besoins et désirs de la communauté

Aménagement d’espaces pouvant servir à la communauté et à l’école comme une palestre.

D’une part, le concept du projet d’architecture, Le duo institutionnel, intègre les trois concepts principaux illustrés ci dessous. Par connectivité, le but est de renforcir la perméabilité entre la rue Saint Jean et d’Aiguillon par l’intérieur et par la nouvelle place entre l’école et un passage intérieur avec l’école primaire adjacente. D’autre part, le principe de la boîte dans la boîte permet de diviser certaines des nouvelles fonctions dans l’église en conservant le plus possible l’intégrité du lieu. Enfin, le concept de verticalité vise à souligner, par les circulations verticales, la verticalité grandiose de cet espace unique.

Le duo institutionnel

Figure 6 : schéma conceptuel, connectivité

Figure 7 : schéma conceptuel, la boîte dans la boîte

Figure 8 : schéma conceptuel, verticalité

Figure 9 : schéma des besoins et des désirs des utilisateurs

109

Le programme de ce projet a été établi en fonction des besoins et des désirs de ses futurs utilisateurs (figure 9), et à l’aide de l’activité de design participative réalisée auprès des élèves de l’école primaire et des consultations actives auprès des intervenants concernés. Étant donné que l’école primaire Saint Jean Baptiste manque d’espaces pour les activités du service de garde, du gymnase et de la bibliothèque, le projet offre, entre autres, plus d’espace à l’école, mais également à la communauté. Si on part de l’idée que l’école n’est ouverte qu’une partie de la journée, de la semaine et même de l’année, maximiser l’utilisation du lieu par l’intégration d’espaces pour la communauté et pour les résidents du quartier permet dès lors d’assurer l’utilisation du lieu à tout moment de la semaine, tout comme sa pérennité dans le temps.

▼ Figure 10 : coupe schématique.

Comme l’illustre la coupe schématique (figure 10), les fonctions sont distribuées dans l’église afin de créer différentes ambiances intérieures et extérieures. Des voûtes de la nef au chœur, de la bibliothèque double hauteur et du studio de danse, sont ainsi offertes des expériences variées.

L’église accueillera donc une nouvelle salle polyvalente où pourront se tenir des événements tels que des banquets, des réceptions et plus. Cette salle, en prolongation du chœur, continuera également à accueillir des cérémonies liées au culte. Au dessus, se trouve une palestre, et au dessus encore, un studio de danse/yoga. Afin de ne pas rentrer en compétition avec la bibliothèque Claire Martin située plus à l’est sur la rue Saint Jean, une nouvelle bibliothèque, avec vue sur la palestre, rend accessible une collection jeunesse. Un

110

belvédère, accessible depuis la bibliothèque, donne du côté de la rue d’Aiguillon. Au sous sol, on y retrouve les habituelles activités sociocommunautaires et culturelles cuisine communautaire et petit théâtre.

Proposition d’intervention

L’intérieur de l’église est organisé autour d’une boîte de verre centrale, la palestre, qui structure les espaces qui, pour certains, s’empile les uns sur les autres, soient le théâtre, la salle polyvalente, la palestre et le studio de danse/yoga (figure 12). Ce cœur d’activité vitré permet des connexions visuelles entre les différents espaces en plus de souligner la verticalité impressionnante de l’intérieur de l’église.

▼ Figure 11 : plan du sous sol Légende : 1 Passage. 2 Espaces d’accueil pour des groupes. 3 Cuisines communautaires. 4 Petit théâtre.

▼ Figure 12 : coupe longitudinale de l’église Saint Jean Baptiste

111

salle polyvalente

Le positionnement des arches de la salle polyvalente au rez de chaussée, inspiré de ce projet, qui pourrait sembler aléatoire, a en fait été pensé de manière à créer à la fois des sous espaces plus intimes et moins intimes pour répondre à de futurs événements qui pourraient s’y dérouler, en plus de briser la symétrie existante (figure 14). Ces arches se poursuivent au sous sol (figure 12) où elles se présentent comme de nouvelles colonnes. Elles donnent l’occasion de créer une séparation vitrée dynamique entre la cuisine collective et la salle de théâtre. Les colonnes sur la scène, quant à elles, pourraient être exploitées pour de futurs décors et mises en scène. Chacun des percements dans le plancher,

112
Légende : 4 Petit théâtre. 5 Salle polyvalente. 6 Palestre. 7 Studio de danse/yoga. 8 Chœur. ▼ Figure 13 :

créé par les arches lors de leur construction sont vitrés, ce qui donne une connexion visuelle avec le théâtre. De plus, à certains endroits, ces percements se transforment en assises. À l’inverse des fausses voûtes suspendues de la charpente du toit, les arches de la salle polyvalente soutiennent ainsi le plancher de la palestre. Dans le même ordre d’idées, la salle polyvalente offre une connexion visuelle entre l’espace central et les bas-côtés occupés au nord par une cafétéria pour l’école primaire Saint-Jean-Baptiste, ainsi qu’un café situé dans la partie sud, puisqu’ils sont séparés de l’espace central par des pans de verre. Ces nouvelles arches créent ainsi différentes ambiances en dessous, au sous sol, à côté, dans les bas côtés et au dessus, sans compter qu’elles contribuent à l’organisation du programme.

▼ Figure 14 : plan du rez de chaussée.

Légende : 1 Parvis agrandi. 2 Café. 3 Salle Polyvalente. 4 Cafétéria. 5 Chœur.

▼ Figure 15 : plan du premier étage. Légende : 1 Toit terrasse. 2 Belvédère. 3 Bibliothèque. 4 Palestre.

▼ Figure 16 : vue de la palestre de la bibliothèque

113

La palestre et la bibliothèque offrent des espaces supplémentaires pour l’école primaire et utilisables par les gens du quartier presque 24/7. La palestre est située à l’intérieur d’une boîte de verre qui renferme également le studio de danse/yoga (figure 21). D’une part, au premier étage, une partie des estrades existantes sont conservées afin d’accueillir les spectateurs à l’intérieur de la palestre où la paroi de verre sépare les espaces bruyants des espaces de tranquillité comme le chœur et la bibliothèque ; la palestre a été placée afin de profiter de la lumière du sud. D’autre part, la bibliothèque a été placée côté nord afin de profiter d’une lumière indirecte dans une optique de protection des livres et d’offrir une vue sur les montagnes au loin ; de ce côté, les anciennes estrades du jubé sont renflouées afin d’égaliser le plancher de la bibliothèque. La surélévation du plancher de la bibliothèque offre donc une vue plus en hauteur sur la palestre, alors que le rayonnage sert de garde-corps afin de donner un sentiment de sécurité tout en permettant de s’y accoter pour observer les activités de la palestre (figure 16). Dans la bibliothèque, on retrouve à la fois des espaces calmes pour s’adonner à la lecture, tout comme des espaces de travail copartagés vitrés dans le but de conserver une connexion visuelle et silencieuse nécessaire à la fonction des lieux. Enfin, la bibliothèque donne accès, par les ouvertures de ses fenêtres existantes, à un belvédère offrant une vue splendide sur le nord du quartier Saint Jean Baptiste, soient la rivière Saint Charles et les Laurentides. Le belvédère offre également une proximité avec la façade nord de l’église à une hauteur peu habituelle.

▼ Figure 17 : coupe transversale vers le chœur

114

Légende : 1 Cuisines communautaires. 2 Petit théâtre. 3 Cafétéria. 4 Salle polyvalente. 5 Café. 6 Belvédère. 7 Bibliothèque. 8 Palestre. 9 Estrades. 10 Studio de danse/yoga.

▼ Figure 18 : vue du belvédère.

Le studio de danse/yoga (figure 21) se trouve également dans la boîte de verre au dessus

115

de la palestre. À chaque bout de la pièce, il devient dès lors possible d’apprécier toute la verticalité du chœur. L’espace dédié au studio permet également d’apprécier les fausses voûtes d’une proximité inusitée. Le réaménagement du parvis pour fournir un passage intérieur aux écoliers au niveau de la rue d’Aiguillon entre l’école Saint-Jean-Baptiste et l’église présente un défi de perméabilité. Ce passage, vitré au nord, sert également de foyer au petit théâtre situé dans la pièce centrale du sous-sol et d’une salle d’exposition ouverte à tous pour les artistes du quartier Saint-Jean-Baptiste.

▼ Figure 19 : vue extérieure depuis la rue D’Aiguillon.

La toiture du passage, quant à elle, augmente l’espace entre l’église et l’école où un café et un toit terrasse permettent de profiter de futurs spectacles de rues qui pourraient s’y dérouler. Tout comme le belvédère, le passage fait appel au principe de prolongation en se distinguant de l’ancien par sa matérialité et sa blancheur. Toujours à l’extérieur, des estrades de béton aménagées du côté de la rue d’Aiguillon jusqu’au niveau du sous sol pour donner une entrée au nord pour les organismes communautaires et également jusqu’au dessus du passage pour connecter les rues Saint Jean et d’Aiguillon. Les interventions à l’extérieur sur le parvis et le belvédère servent donc à signaler la nouvelle fonction de l’église en plus de servir d’espace culturel pour le quartier, et ce, dans l’optique que l’église et son parvis redeviennent des lieux de rencontre de choix au cœur du quartier.

▼ Figure 20 : Coupe longitudinale D’Aiguillon.

116

La présente proposition de requalification de l’église Saint Jean Baptiste s’intègre donc à travers des parcours différenciés en fonction des utilisateurs et visiteurs, et ce, dans le but de redécouvrir les qualités spéciales qu’offre l’église.Autrement, le parcours type des élèves durant les heures de cours, alors que ces derniers emprunteraient le passage qui part de l’ancien gymnase, deviendrait le nouveau service de garde, maximisant les espaces de l’école, tout en se prolongeant au sous sol de l’église (figure 20). Quelques murs non porteurs de l’église auraient été démolis à cet endroit afin d’offrir un plus grand espace d’accueil pour certains groupes d’élèves (figure 11). De là, on accéderait à un escalier pour monter au rez de chaussée et à un deuxième escalier pour se rendre à la palestre et à la bibliothèque situées au premier étage. Le premier étage, qui est desservi par trois escaliers architecturaux et deux autres qui desservent le studio de danse/yoga au deuxième étage, sans compter le monte-personne qui dessert tous les étages, feraient en sorte qu’un utilisateur venant assister à une cérémonie cultuelle passerait par l’entrée principaledel’égliseàl’ouest,empruntantainsilanouvellesallepolyvalenteetsesarches de béton (figure 20). En somme, le projet conserve presque l’intégralité de l’enveloppe extérieure, ainsi que le clocher, afin de ne pas perdre sa fonction de repère visuel dans le quartier. À l’intérieur, le projet tire avantage de l’espace global afin de mettre en valeur

117
Légende : 1 Passage. 2 Espaces d’accueil pour des groupes. 3 Cuisines communautaires. 4 Salle polyvalente. 5 Palestre. 6 Studio de danse/yoga. 7 Chœur.

les éléments caractéristiques du lieu structure innovante de bois recouvert de cylindre de tôles créant ainsi des piliers massifs20 qui structurent l’espace, les fausses voûtes ainsi que les vitraux colorés. Le projet se veut donc, avant tout, un espace épuré tout en gardant la dorure caractéristique du lieu. ▼ Figure 21 : studio de danse/yoga

Conclusion

Ce projet d’architecture, Le Duo institutionnel, dont le but est de tisser un lien institutionnel et culturel entre l’église Saint Jean Baptiste et l’école primaire adjacente, tout en respectant les fonctions ancestrales de l’église, a permis de mettre en lumière que les objectifs principaux consistent avant tout à optimiser la répartition des espaces entre l’école et l’église, de porter une attention particulière aux besoins de la communauté, de rendre l’espace du parvis et les espaces intérieurs de l’église agréables, tout en cherchant à créer des ambiances variées et stimulantes dans le but de favoriser la cohabitation du sacré et duprofane. En somme, je pense que le projet ici proposé a atteint les objectifsd’actualiser le patrimoine religieux selon les fonctions ancestrales de l’église l’institutionnel, l’identitaire,lecommunautaire enplaçantlesbesoinsdelacommunautéaucœurmême des préoccupations. Ce faisant, je pense être parvenue à démontrer que l’actualisation des fonctions premières de l’église, associées aux besoins réels d’une communauté, est plus qu’importante si on veut que le bâtiment se projette dans le futur et continue à assumer sa fonction sociale et sociétale. 20 Noppen Luc, Morisset Lucie K. (1994), op. cit., p. 148.

118

Chaque église fermée voit disparaître avec elle les repères visuels de la foi canadienne française

119

AUCUNE ÉGLISE NE PEUT DÉSORMAIS PRÉTENDRE À LAPÉRENNITÉ, FUT ELLE CLASSÉE BÂTIMENT PATRIMONIAL

Pérennité en attente

Date : 8 juillet 2019

Lieu : église Saint Charles Borromée, (Charlesbourg, Québec)

Matériel : Canon EOS 7D

Ouverture : f/8

Vitesse : 1/200

ISO : 100

Distance focale : 32m

120
Pierre Fraser

Courts-métrages et destin d’églises

arc narratif, dans un documentaire ou court métrage à portée sociologique, s’articule en trois temps : les constats en ce qui concerne la situation sociale à analyser ; les impacts sur les individus, les communautés, les institutions ; les actions à prendre, soit pour corriger la situation, où à tout le moins, en atténuer les différents impacts. Concrètement, l’arc narratif, ou scénaristique, décrit la progression complète de la démarche que l’on désire proposer à un éventuel auditeur : il fait évoluer un propos tout en fournissant une vision globale de ce qu’il faut « raconter ». À ce titre, l’ensemble de chaque scène de chacune des étapes de l’arc narratif constats-impacts-actions constitue un moment précis de ce qui doit être dit et montré. Par exemple, comme le lecteur le constatera à partir de l’arc narratif des trois courts-métrages dont il est ici question (voir pages suivantes), chaque courtmétrage a son propre arc narratif qui vise une finalité particulière. Autre considération, le lecteur remarquera que la proportion des constats et des impacts, entre le premier et le second court métrage, s’inverse totalement. En fait, il n’existe aucune règle fixe quant au nombre de scènes que doit comporter la portion des constats et des impacts, car chaque sujet traité possède des particularités qui lui sont propres.

À ce titre, dans le premier court métrage, au niveau des constats, il suffit de souligner qu’il y aura fermeture d’église, tandis que dans le second court-métrage, les constats sont multiples, puisqu’il faut bien mettre en évidence les enjeux et les protagonistes qui participent au destin des églises du Québec. Au niveau des impacts, encore là, la tendance s’inverse entre les deux premiers courts-métrages, car dans le premier, les impacts sur la communauté sont inéluctables dès qu’il y a fermeture d’église, tandis que dans le second, les impacts se résument rapidement à trois problèmes : qui a la responsabilité du patrimoine religieux, qui paye la facture, dans quelle fourchette de temps doit se situer un projet de requalification. Autrement, au niveau des actions à entreprendre pour résoudre le problème, encore là, le premier et le second court métrage se différencient tout particulièrement, car dans le cas d’une fermeture d’église, la communauté ne se sent pas la seule interpellée, et cherche conséquemment à interpeller tous ceux qui peuvent être interpellés. En ce qui concerne le second court métrage, dont le propos central est celui de la responsabilité envers le patrimoine religieux bâti, les actions ne peuvent passer que par trois types d’interventions : la mobilisation d’une communauté, une concertation

121
Pierre Fraser, sociologue

impliquant tous les intervenants, et surtout, la capacité d’aplanir les tensions qui pourraient éventuellement survenir entre eux

Le troisième court métrage, pour sa part, se différencie significativement des deux premiers : il s’agit ici d’exposer comment une communauté, dans la MRC de Bellechasse, est parvenue à mobiliser sa population pour requalifier ses bâtiments religieux. Certes, nous nous retrouvons en milieu rural, ce qui pourrait sembler, à première vue, différent en matière de dynamique par rapport au milieu urbain qu’est celui de la ville de Québec. À ce sujet, l’historien John Porter, dans le second court métrage, souligne que cette différence ne se situe que dans le nombre d’églises à requalifier, et que les enjeux resteront toujours les mêmes, à savoir qu’on ne peut transformer à l’infini les églises en bibliothèque, en centre d’art, ou en musée.En somme, si, en milieuurbain, les églises, neserait ce que par leur proximité, ne peuvent toutes être transformées sous le même modèle, il n’en reste pas moins que la dimension communautaire reste, pour sa part, un élément central.

Encore là, reste à savoir dans quelle mesure la dimension communautaire est demeurée ou non importante dans une paroisse donnée. Quand un petit groupe de citoyens de Québec estimequeles cloches del’église Saint Fidèle dérangent,qued’autres églisesdeQuébec sont trop bruyantes, qu’ils jugent inacceptable que celles ci carillonnent, « considérant que la neutralité religieuse prévaut dans notre société », qu’elles sont une « nuisance auditive1 », qu’il s’agit d’une « tradition désuète », et qu’il faudrait « faire place à une plus grande liberté de conscience individuelle », il est évident que l’intérêt pour ce qui a constitué l’identité de cette communauté ne prévaut plus. Quand le porte-parole du Diocèse de Québec, René Tessier, souligne que, « Dans Limoilou, il reste Saint-Fidèle et Saint-Pascal, alors qu’il y en avait 13 ou 14 avant, donc il y a une concentration des mariages et des funérailles au même endroit », lorsque ce dernier revendique une conception de la laïcité qui respecte « toutes les formes de croyance et de non croyance », qu’il fustige ces citoyens qui veulent interdire « totalement toute manifestation religieuse », et qu’il suggère « Peut être qu’on peut s’inviter mutuellement à une certaine tolérance », on comprend encore mieux le fossé qui existe entre les tenants de la laïcité à tout prix et les pratiquants catholiques qui sont restés fidèles à leur foi. Et même si le règlement municipal stipule que « le présent article ne s’applique pas aux cloches ou aux carillons utilisés par une église, une institution religieuse », Jessie Lebel, citoyenne du quartier, dénonce ledit règlement : « Nous demandons, par la présente, que le son des cloches soit ajouté à laréglementationmunicipalesurlebruitet,qu’ainsi,lavillepuisselégiférerafinquenous ayons un environnement sonore adéquat. » Il y a là un phénomène de société fort intéressant à analyser, dans le sens où certains qui se réclament d’une certaine conception de la

1 Lelièvre D. (2019, 16 août), Des citoyens de Limoilou irrités par les cloches de l’église, Journal de Québec, URL : https://tinyurl.com/yj25bfd8

122

laïcité désirent plus que tout uniformiser leur environnement en fonction de leur propre idéologie. Et cette attitude a aussi à voir avec tout le courant qui tente de « déblanchir » l’Occident, de lui faire expier tous ses péchés passés, de le « décolonialiser », de reléguer aux oubliettes de l’histoire cette civilisation fondée sur le christianisme. Comme le souligne le curé Pierre Gingras dans le second court-métrage, « On regrettera d’avoir posé ces gestes… » (00:53 à 00:56), tout comme le précise l’historien et sociologue Fernand Harvey, « Il faudrait se demander si, dans certains cas, on ne risque pas de commettre des gestes irréparables » (00:57 à 01:06). Que faut il tirer comme conclusion de ces trois courts métrages ?

Quand on visionne et qu’on décortique les arcs narratifs de chacun des trois courts métrages, on est aussi en droit de se demander si leur réalisation était pertinente. Je m’explique. Tout au début du second court métrage, le curé Pierre Gingras pose un pénible un constat : « Quatre ans après la fermeture de l’église Saint-Jean-Baptiste, je dirais qu’on n’est pas plus avancé qu’on l’était, il y a quatre ans… ». En fait, cette idée m’est venue lorsque le Comité de quartier Saint-Jean-Baptiste organisa, en septembre 2019, un événement « portes ouvertes »2 en invitant tous les citoyens du quartier à s’y présenter. L’événement fut un succès, l’église fut remplie. Lors de cette journée, deux activités ont particulièrement attiré la foule : la présentation sur grand écran de mes deux courts métrages initiaux en première partie, et un concert offert par l’ancien organiste de l’église, Dany Bélisle, en seconde partie. Alors que j’étais en retrait derrière les gens qui visionnaient mes deux courts métrages, j’ai saisi où se situaient mes erreurs dans les deux trames narratives de ces deux documentaires : dans le superflu narratif.

Lorsque le curé de la paroisse, Pierre Gingras, y est allé de cette réflexion bien sentie en s’adressant aux médias lors de cette journée, « Vous savez, quand on vit un deuil, on a besoin de temps et bien souvent, un peu comme on le fait avec les personnes, on a besoin de revenir sur les lieux où on a laissé la vie s’arrêter. Les gens avaient ce goût là… [...] C’est une perte pour le quartier, c’est une grande perte…3 », et lorsque le président du Conseil de quartier, Louis René Dumoulin, a rappelé l’importance du patrimoine religieux dans le quartier, tout en précisant que « Jadis, toute la vie communautaire, depuis plus de 100 ans, s’est faite ici ou aux alentours. En fermant cette église là, une grande partie de la vie communautaire a été détruite…4 », j’étais désormais convaincu qu’il me fallait reprendre le travail.

2 Le Bourdon du Faubourg (2019 [25 septembre]), Portes ouvertes à l’église Saint Jean Baptiste, URL : https://tinyurl.com/3hwknrz5

3 Radio Canada (2019 [29 septembre]), L'église Saint Jean Baptiste ouvre pour une première fois en plus de 4 ans, URL : https://tinyurl.com/x2xxuuww

4 Idem

123
124 ▼ Les impacts d’une fermeture
https://youtu.be/m0O1m90FXa4

https://youtu.be/MMnF oMh9XQ

125
▼À qui la responsabilité du patrimoine religieux ?

Lorsqu’on rédige une thèse de doctorat, tout ce qui est pertinent et qui peut permettre de cerner un problème doit se retrouver dans l’argumentation développée. Toutefois, lorsqu’on réalise un documentaire ou un court métrage, il ne s’agit plus de faire le tour de la question, mais bien d’aller droit au but, c’est à dire décrire une situation en posant les bons constats, identifier les impacts sur la communauté à travers les protagonistes impliqués,énumérerles actionsentreprisespourcorrigerounon lasituation.Et lepremier documentaire, tout comme le second, échappait en bonne partie à cette règle, parce que

126 ▼Une requalification réussie
https://youtu.be/vtUfOdrYriM

la méthode de démonstration de la sociologie visuelle par et avec l’image est en bonne partie différente de celle de la sociologie avec les mots et les statistiques, sans pour autant sacrifier à la rigueur de la discipline sociologique.

Au terme de cet exercice de réflexion et d’analyse mené tout au long de ce numéro, que faut il en retirer ? Tout d’abord, que le patrimoine religieux bâti du Québec est indéniablement sous respirateur artificiel. Et comme le souligne l’historien Luc Noppen : « Le cas de l’église Saint Cœur de Marie montre de manière éloquente comment une déclaration d’intérêt patrimonial, voire un classement, ne sont pas des garanties de sauvegarde d’un monument de premier plan. La connaissance et la notoriété de notre patrimoine bâti notre « vouloir patrimonial » sont et seront perpétuellement à construire et reconstruire. […] Que fera t on de ce nombre sans cesse grandissant de sites et de bâtiments que nous voulons conserver ? Qui défraiera le coût de leur conservation et de leur mise en valeur ? »

Ce qu’il faut également retenir de cet exercice de réflexion, c’est que le rapport de force entre, d’une part, des groupes de citoyens mobilisés pour éviter la disparition pure et simple de leurs églises, et d’autre part, les structures d’autorité en mesure d’agir municipalités, Diocèses et Fabriques, différentes instances gouvernementales , est nettement disproportionné. Plus concrètement, ce que montrent les efforts et les initiatives citoyennes menées par Louis René Dumoulin et Dominique Drolet (voir leurs articles respectifs aux pages 36 et 43 de ce numéro), c’est qu’il est possible d’agir sur certaines décisions pourvu que celles ci ne franchissent pas un certain seuil financier au delà duquel des sommes publiques importantes devraient être investies. Pire encore, « Le cas de l’église Saint-Cœur-de-Marie est, de ce point de vue, un échec cuisant5 », car malgré tous les efforts déployés depuis 1990 pour sauvegarder cette église, et ils ne sont pas parmi les moindres, et malgré les sommes importantes d’argent public investies dans ce processus de requalification, il n’en reste pas moins que le bâtiment a finalement passé sous le pic des démolisseurs. Cela augure t il pour autant du futur du patrimoine religieux bâti du Québec ? Si le passé est garant de l’avenir, le constat a au moins le mérite d’être consternant.

En tout dernier ressort, peut-on poser la question si le fait d’avoir produit et réalisé ces trois courts-métrages concernant l’avenir du patrimoine religieux du Québec a permis d’influencer le cours des décisions politiques à venir ? Difficile de répondre à cette question, mais une chose est certaine : le fait d’avoir laissé une trace visuelle, et le fait d’avoir publié ce numéro dédié à un large public, obligent les citoyens à se poser des questions sur l’avenir de ce patrimoine et si ce but, et seulement ce but, est ou sera atteint, tous ceux qui ont contribué aux trois courts métrages et à ce numéro auront au moins instillé

5 Noppen L (2021), dans ce numéro à la page 82.

127

une réflexion qui se veut essentielle. Si le maire de la ville de Québec a été qualifié de « fossoyeur du patrimoine », combien sont ils à vouloir enterrer ce patrimoine ? Et c’est ici qu’intervient le maire Éric Tessier de la petite municipalité de Saint Michel de Bellechasse, située à environ 25 kilomètres à l’est de Québec, à propos du presbytère érigé il y a plus de 270 ans :

« C’est un beau bâtiment, un beau décor et c’est historique. Nous sommes tous d’accord avec ça. […] Actuellement, c’est tendance de parler de patrimoine, mais dans 20 ans, on ne se posera plus la question parce que les tenants de ce discours ne seront plus là ou auront perdu la mémoire. On ne peut pas tout faire et il y a de la frustration chez certains, parce que je les brasse dans leurs habitudes et leur conception. Le conseil aura à faire des choix à faire en vertu des besoins municipaux et de la capacité de payer des gens, mais sur des idées qui seront valables. […] On veut sauver le presbytère, mais on continue de jeter nos eaux usées dans le fleuve. Il y a des choix à faire. On va négocier avec le grand patron et non plus avec les hommes de main. On sait où ils s’en vont. Dans trois ou quatre ans, ils vont nous demander d’acheter l’église et un jour d’avoir la dîme sur le compte de taxes municipales6 . »

À première vue, on pourrait penser que le maire Tessier n’a strictement aucun intérêt envers le patrimoine bâti, mais il pose tout de même une question plus que pertinente : « Quel est notre pouvoir ? L’argent, nous n’en avons pas. Le fédéral et le provincial n’en ont pas, encore moins le municipal. Le meilleur pouvoir que nous avons comme municipalité est réglementaire, et à cet effet, le presbytère est ultra-protégé. On peut avoir un certain pouvoir d’influence pour accompagner tous les groupes qui le souhaitent, ou jouer les facilitateurs à quelqu’un qui voudrait le protéger. »

Ce questionnement posé par le maire Tessier renvoie à toutes les réflexions et analyses proposées dans ce numéro, tout comme à la trame narrative de mes trois courts métrages : àqui revientlaresponsabilité,dansunpremiertemps,depréserverlepatrimoinereligieux bâti, et à qui revient, dans un deuxième temps, la capacité de financer la requalification de tous ces bâtiments ? Tant qu’on n’aura pas adéquatement répondu à ces questions, il sera difficile de savoir comment procéder et se projeter dans l’avenir.

128
6 Lamontagne S (2021), Saint Michel : climat toujours tendu autour du presbytère, La Voix du Sud, URL : https://tinyurl.com/hpmf928d

Octobre 2021

Ce numéro a été rendu possible grâce à une contribution financière des historiens Luc Noppen et Marc Grignon (Subvention Savoir du CRSH).

ISBN 978-2921475105

Turn static files into dynamic content formats.

Create a flipbook
Issuu converts static files into: digital portfolios, online yearbooks, online catalogs, digital photo albums and more. Sign up and create your flipbook.