Bauausschuss-Sitzung am 12.12.2024 I Öffentlicher Teil


Bauausschuss-Sitzung am 12.12.2024 I Öffentlicher Teil

![]()
Bauausschuss-Sitzung am 12.12.2024 I Öffentlicher Teil


Bauausschuss-Sitzung am 12.12.2024 I Öffentlicher Teil

1. Genehmigung der Niederschrift über die öffentliche Sitzung des Planungs-, Bau- und Umweltausschusses vom 14.11.2024
2. Vollzug des BauGB;
2.1 12. Änderung des städtischen Bebauungsplans Nr. 92 „Gewerbegebiet Sandkrippenfeld“ – Billigungsbeschluss –
2.2 Aufstellung des städtischen vorhabenbezogenen Bebauungsplans Nr. 169 „Sondergebiet FreiflächenPhotovoltaikanlage Riederbergleiten in Affalterbach“ – Satzungsbeschluss –
3. Bauanträge und Bauvoranfragen;
3.1 Antrag auf Vorbescheid zur Errichtung eines Zweifamilienhauses in Tegernbach, Oberhofstr. 30, Fl.-Nr. 156, Gem. Tegernbach
3.2 Antrag auf Baugenehmigung zum Neubau eines Mehrfamilienhauses mit neun Wohnungen, Garagen und Stellplätzen im Kirschbaumweg 1, Fl.-Nr. 1048/23, Gem. Pfaffenhofen
4. Bekanntgaben
5. Wünsche und Anfragen

Bauausschuss-Sitzung am 12.12.2024 I Öffentlicher Teil

Top 1 Genehmigung der Niederschrift über die öffentliche Sitzung des Planungs-, Bau- und Umweltausschusses vom 12.12.2024
Die Niederschrift der öffentlichen Sitzung des Planungs-, Bau- und Umweltausschusses vom 14.11.2024 wird genehmigt.
Bauausschuss-Sitzung am 12.12.2024 I Öffentlicher Teil


„Gewerbegebiet Sandkrippenfeld“ – Billigungsbeschluss –


Bauausschuss-Sitzung am 12.12.2024 I Öffentlicher Teil

„Gewerbegebiet Sandkrippenfeld“ – Billigungsbeschluss –


Bauausschuss-Sitzung am 12.12.2024 I Öffentlicher Teil

Top 2.1 12. Änderung des städtischen Bebauungsplans Nr. 92 „Gewerbegebiet Sandkrippenfeld“ – Billigungsbeschluss –
Der Ausschuss beschließt über die Stellungnahmen der Behörden und sonstigen Träger öffentlicher Belange sowie der Öffentlichkeit gemäß der vorliegenden Zusammenstellung. Die Verwaltung wird beauftragt, Öffentlichkeit sowie Behörden und sonstigen Träger öffentlicher Belange, die Stellungnahmen eingereicht haben, von diesem Ergebnis unter Angabe der Gründe in Kenntnis zu setzen.
Der Ausschuss billigt den Entwurf der 12. Änderung des Bebauungsplanes Nr. 92 „Gewerbegebiet Sandkrippenfeld“ mit Begründung einschließlich Umweltbericht und beauftragt die Verwaltung, ihn mit Begründung und den wesentlichen, bereits vorliegenden umweltbezogenen Stellungnahmen öffentlich auszulegen und die Stellungnahmen der Behörden und sonstigen Träger öffentlicher Belange nach § 4 II BauGB einzuholen. Ein wichtiger Grund für eine Verlängerung der Auslegungsfrist nach § 3 II 1 BauGB oder der Beteiligungsfrist nach § 4 II 2 BauGB aufgrund besonderer Komplexität, besonders umfänglicher Unterlagen oder ähnlichem liegt nicht vor.

Bauausschuss-Sitzung am 12.12.2024 I Öffentlicher Teil

Top 2.2 Aufstellung vorhabenb. BPl. #169 „Sondergebiet Freiflächen-Pho-
tovoltaikanlage Riederbergleiten in Affalterbach“ – Satzungsbeschluss –


Bauausschuss-Sitzung am 12.12.2024 I Öffentlicher Teil

Top 2.2 Aufstellung vorhabenb. BPl. #169 „Sondergebiet Freiflächen-Pho-
tovoltaikanlage Riederbergleiten in Affalterbach“ – Satzungsbeschluss –


Bauausschuss-Sitzung am 12.12.2024 I Öffentlicher Teil

Top 2.2 Aufstellung vorhabenb. BPl. #169 „Sondergebiet Freiflächen-Photovoltaikanlage Riederbergleiten in Affalterbach“ – Satzungsbeschluss –
Der Ausschuss beschließt abschließend über die Stellungnahmen der Behörden und sonstigen Träger öffentlicher Belange sowie der Öffentlichkeit gemäß § 3 II BauGB. Die Beschlüsse des Planungs-, Bau- und Umweltausschusses über die Stellungnahmen der Behörden und sonstigen Träger öffentlicher Belange sowie der Öffentlichkeit vom 12.12.2019 (Nr. 2.10) und vom 10.10.2024 (Nr. 2.3) werden gebilligt. Die Verwaltung wird beauftragt, Öffentlichkeit sowie Behörden und sonstigen Träger öffentlicher Belange, die Stellungnahmen eingereicht haben, von diesem Ergebnis unter Angabe der Gründe in Kenntnis zu setzen. Der Ausschuss beschließt den vorhabenbezogenen Bebauungsplan Nr. 169 „Sondergebiet Freiflächen-Photovoltaikanlage Riederbergleiten in Affalterbach“ idF. vom 10.10.2024 als Satzung. Begründung, Vorhaben- und Erschließungsplan sowie Umweltbericht werden gebilligt. Die Verwaltung wird beauftragt, den Satzungsbeschluss gemäß § 10 III BauGB nach Billigung des Durchführungsvertrages durch den Ausschuss und dessen Unterzeichnung ortsüblich bekanntzumachen. Dabei ist anzugeben wo der Bebauungsplan während der Dienststunden eingesehen und über den Inhalt Auskunft verlangt werden kann.

Bauausschuss-Sitzung am 12.12.2024 I Öffentlicher Teil

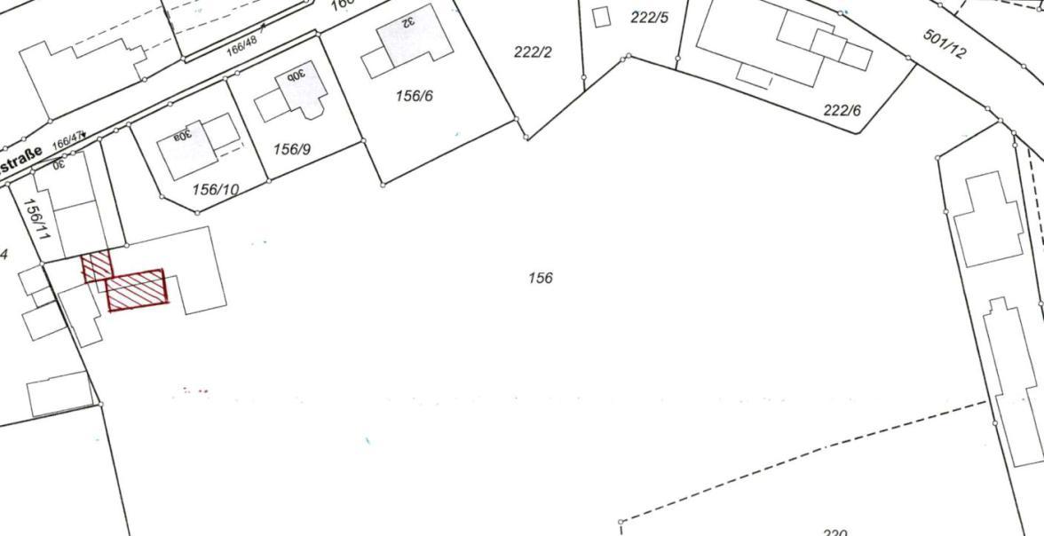
Top 3.1 Antrag auf Vorbescheid zur Errichtung eines Zweifamilienhauses
in Tegernbach, Oberhofstr. 30, Fl.-Nr. 156, Gem. Tegernbach



Bauausschuss-Sitzung am 12.12.2024 I Öffentlicher Teil

Top 3.1 Antrag auf Vorbescheid zur Errichtung eines Zweifamilienhauses in Tegernbach, Oberhofstr. 30, Fl.-Nr. 156, Gem. Tegernbach
Der Ausschuss beschließt, zum Antrag auf Vorbescheid zur Errichtung eines Zweifamilienhauses in Tegernbach, Oberhofstr. 30, Fl.-Nr. 156, Gem. Tegernbach das gemeindliche Einvernehmen nicht zu erteilen.
Bauausschuss-Sitzung am 12.12.2024 I Öffentlicher Teil


Top 3.2 Neubau eines Mehrfamilienhauses mit neun Wohnungen, Garagen und Stellplätzen im Kirschbaumweg 1, Fl.-Nr. 1048/23, Gem. PAF



Bauausschuss-Sitzung am 12.12.2024 I Öffentlicher Teil

Top 3.2 Neubau eines Mehrfamilienhauses mit neun Wohnungen, Garagen und Stellplätzen im Kirschbaumweg 1, Fl.-Nr. 1048/23, Gem. PAF



Bauausschuss-Sitzung am 12.12.2024 I Öffentlicher Teil


Top 3.2 Neubau eines Mehrfamilienhauses mit neun Wohnungen, Garagen und Stellplätzen im Kirschbaumweg 1, Fl.-Nr. 1048/23, Gem. PAF
Der Ausschuss beschließt, zum Antrag auf Baugenehmigung zum Neubau eines Mehrfamilienhauses mit neun Wohnungen, Garagen und Stellplätzen im Kirschbaumweg 1, Fl.-Nr. 1048/23, Gem. Pfaffenhofen das gemeindliche Einvernehmen nicht zu erteilen.
Bauausschuss-Sitzung am 12.12.2024 I Öffentlicher Teil


Bauausschuss-Sitzung am 12.12.2024 I Öffentlicher Teil


Bauausschuss-Sitzung am 12.12.2024 I Öffentlicher Teil

