Bauausschuss-Sitzung am 25.07.2024 I Öffentlicher Teil


Bauausschuss-Sitzung am 25.07.2024 I Öffentlicher Teil

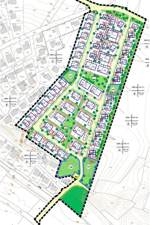
![]()
Bauausschuss-Sitzung am 25.07.2024 I Öffentlicher Teil


Bauausschuss-Sitzung am 25.07.2024 I Öffentlicher Teil

1. Genehmigung der Niederschrift über die öffentliche Sitzung des Ausschusses vom 20.06.2024
2. Vollzug des BauGB;
2.1 Stellungnahme zur Aufstellung des Bebauungsplans Nr. 25 „Nähe Sonnenstraße“ der Gemeinde Pörnbach
2.2 Stellungnahme zur Aufstellungen der vorhabenbezogenen Bebauungspläne Nr. 58 bis 61 „Sondergebiet Freiflächenphotovoltaikanlage Solarpark Hohenwart“ Nr. I bis IV sowie der parallelen zweiten bis fünften Flächennutzungsplan-Änderung &
2.3 Stellungnahme zur Ersten Änderung des Bebauungsplans Nr. 54 „Industriegebiet Ziegelstadeläcker III“ mit Teiländerung des Bebauungsplans Nr. 39 „Industriegebiet Ziegelstadeläcker II“ jeweils des Marktes Hohenwart
2.4 Aufstellung des städtischen Bebauungsplans Nr. 206 „Gewerbegebiet an der Raiffeisenstraße“ und Teilaufhebung des städtischen Bebauungsplans Nr. 29 „Industriegebiet“ – Aufstellungsbeschluss –
2.5 Erlass einer Veränderungssperre für den Geltungsbereich des in Aufstellung befindlichen städtischen Bebauungsplans Nr. 206 „Gewerbegebiet an der Raiffeisenstraße“ – Veränderungssperre –
3. Bauanträge und Bauvoranfragen;VorbescheidsanträgezumNeubaua)von2Mehrfamilienhäusernundb)zumNeubau einesMehrfamilienhausesjew.mitGaragenundStellplätzen,jeweilsaufFl.-Nr.190Teilfläche,Gem.Eberstetten
4. Bekanntgaben
5. Wünsche und Anfragen

Bauausschuss-Sitzung am 25.07.2024 I Öffentlicher Teil

Top 1 Genehmigung der Niederschrift über die öffentliche Sitzung des Planungs-, Bau- und Umweltausschusses vom 20.06.2024
Die Niederschrift der öffentlichen Sitzung des Planungs-, Bau- und Umweltausschusses vom 20.06.2024 wird genehmigt.
Bauausschuss-Sitzung am 25.07.2024 I Öffentlicher Teil


Top 2.1 Städtische Stellungnahme zur Aufstellung des Bebauungsplans
Nr. 25 „Nähe Sonnenstraße“ der Gemeinde Pörnbach



Bauausschuss-Sitzung am 25.07.2024 I Öffentlicher Teil

Top 2.1 Städtische Stellungnahme zur Aufstellung des Bebauungsplans Nr. 25 „Nähe Sonnenstraße“ der Gemeinde Pörnbach
Da Belange der Stadt nicht berührt sind, wird keine Stellungnahme zur Aufstellung des Bebauungsplans Nr. 25 „Nähe Sonnenstraße“ der Gemeinde Pörnbach abgegeben.
Bauausschuss-Sitzung am 25.07.2024 I Öffentlicher Teil


Top 2.2 Stellungnahme vorhabenbezog. BPl. Nr. 58 bis 61 „Sondergebiet
Freiflächen-PV-Anlage Solarpark Hohenwart“ Nr. I bis IV & 2. bis 5. FNPÄnderung, Markt Hohenwart


Bauausschuss-Sitzung am 25.07.2024 I Öffentlicher Teil

Top 2.2 Stellungnahme vorhabenbezog. BPl. Nr. 58 bis 61 „Sondergebiet
Freiflächen-PV-Anlage Solarpark Hohenwart“ Nr. I bis IV & 2. bis 5. FNPÄnderung, Markt Hohenwart


Bauausschuss-Sitzung am 25.07.2024 I Öffentlicher Teil

Top 2.2 Stellungnahme vorhabenbezog. BPl. Nr. 58 bis 61 „Sondergebiet
Freiflächen-PV-Anlage Solarpark Hohenwart“ Nr. I bis IV & 2. bis 5. FNPÄnderung, Markt Hohenwart


Bauausschuss-Sitzung am 25.07.2024 I Öffentlicher Teil

Top 2.2 Stellungnahme vorhabenbezog. BPl. Nr. 58 bis 61 „Sondergebiet
Freiflächen-PV-Anlage Solarpark Hohenwart“ Nr. I bis IV & 2. bis 5. FNPÄnderung, Markt Hohenwart


Bauausschuss-Sitzung am 25.07.2024 I Öffentlicher Teil

Top 2.2 Stellungnahme vorhabenbezog. BPl. Nr. 58 bis 61 „Sondergebiet
Freiflächen-PV-Anlage Solarpark Hohenwart“ Nr. I bis IV & 2. bis 5. FNPÄnderung, Markt Hohenwart
Da Belange der Stadt nicht berührt sind, wird keine Stellungnahme zur Aufstellung der vorhabenbezogenen Bebauungspläne Nr. 58 – Koppenbach „Sondergebiet
Freiflächenphotovoltaikanlage Solarpark Hohenwart I“, Nr. 59 – Schlott „Sondergebiet
Freiflächenphotovoltaikanlage Solarpark Hohenwart II“, Nr. 60 – Seibersdorf
„Sondergebiet Freiflächenphotovoltaikanlage Solarpark Hohenwart III“ und Nr. 61 –
Freinhausen „Sondergebiet Freiflächenphotovoltaikanlage Solar-park Hohenwart IV“, sowie der parallelen zweiten, dritten, vierten und fünften Änderung des Flächennutzungsplans des Marktes Hohenwart abgegeben.

Bauausschuss-Sitzung am 25.07.2024 I Öffentlicher Teil

Top 2.3 Stellungnahme 1. Änd. von BPl. Nr. 54 „IG Ziegelstadeläcker III“
mit Teiländerung BPl. Nr. 39 „IG Ziegelstadeläcker II“, Markt Hohenwart


Bauausschuss-Sitzung am 25.07.2024 I Öffentlicher Teil

Top 2.3 Stellungnahme 1. Änd. von BPl. Nr. 54 „IG Ziegelstadeläcker III“ mit Teiländerung BPl. Nr. 39 „IG Ziegelstadeläcker II“, Markt Hohenwart
Da Belange der Stadt nicht berührt sind, wird keine Stellungnahme zur Ersten Änderung des Bebauungsplans Nr. 54 „Industriegebiet Ziegelstadeläcker III“ mit Teiländerung des Bebauungsplans Nr. 39 „Industriegebiet Ziegelstadeläcker II“ des Marktes Hohenwart abgegeben.
Bauausschuss-Sitzung am 25.07.2024 I Öffentlicher Teil


Top 2.4 Aufstellung BPl. Nr. 206 „Gewerbegebiet an der Raiffeisenstraße“ & Teilaufhebung von BPl. Nr. 29 „Industriegebiet“ – Aufstellungsbeschluß


Bauausschuss-Sitzung am 25.07.2024 I Öffentlicher Teil

Top 2.4 Aufstellung BPl. Nr. 206 „Gewerbegebiet an der Raiffeisenstraße“ & Teilaufhebung von BPl. Nr. 29 „Industriegebiet“ – Aufstellungsbeschluß
Der Ausschuss beschließt die Einleitung der Bauleitplanung zur Aufstellung des städtischen Bebauungsplans Nr. 206 „Gewerbegebiet an der Raiffeisenstraße“ und Teilaufhebung des städtischen Bebauungsplans Nr. 29 „Industriegebiet“ im Regelverfahren.
Bauausschuss-Sitzung am 25.07.2024 I Öffentlicher Teil


Top 2.5 Erlass einer Veränderungssperre für den Geltungsbereich von Bebauungsplan Nr. 206 „Gewerbegebiet an der Raiffeisenstraße“
Der Ausschuss beschließt den Erlass der Veränderungssperre für den Bereich des in Aufstellung befindlichen Bebauungsplans Nr. 206 „Gewerbegebiet an der Raiffeisenstraße“ der Stadt Pfaffenhofen a. d. Ilm
Bauausschuss-Sitzung am 25.07.2024 I Öffentlicher Teil


Top 3.1 Vorbescheidsantrag Neubau a) von zwei MFH und b) eines MFH
jew. mit Garagen & Stellplätzen, jew. Fl.-Nr. 190 Teilfl., Gem. Eberstetten
[Anträge wurden am 25.7.2024 zurückgenommen.]
Bauausschuss-Sitzung am 25.07.2024 I Öffentlicher Teil


Bauausschuss-Sitzung am 25.07.2024 I Öffentlicher Teil


4 Bekanntgaben; Neubau Wohnanlage St. Franziskus, Baustelle an Türltor- und Spitalstraße



Bauausschuss-Sitzung am 25.07.2024 I Öffentlicher Teil

4 Bekanntgaben; Neubau Wohnanlage St. Franziskus, Baustelle an Türltor- und Spitalstraße



Bauausschuss-Sitzung am 25.07.2024 I Öffentlicher Teil

4 Bekanntgaben; Neubau Wohnanlage St. Franziskus, Baustelle an Türltor- und Spitalstraße


Bauausschuss-Sitzung am 25.07.2024 I Öffentlicher Teil

Bauausschuss-Sitzung am 25.07.2024 I Öffentlicher Teil

