Portfolio: Petchrada Prompanit

Page 1

PORTFOLIO

Petchrada Prompanit ARCHITECTURE

66+964514532

petchrada.p@cuinda.com

267/32, Soi. Sathupradit 15 yak 12, Chongnonsri, Yannawa, Bangkok, 10120

Bachelor of Science in Architectural Design

Faculty of Architecture (INDA) - Chulalongkorn University

2020-2024

GPAX (7 Semesters): 3.51

Adobe: Illustrator, Photoshop, Indesign Premiere Pro, Adobe Xd

Experience with: Rhino, Blender, Procreate, lumion, Twinmotion, ZBrush

Microsoft: Word, PowerPoint, Excel

Print: Branding Campaigns Identity Systems, Informational design

Digital: Video Editing, Web Design

Motion Graphics

Fine Arts: Drawing, Painting

Internship at SOHO Community (2024) Graphic Designer

Renovation of A school canteen for Trimitwitthaya School (2023-Present)

DESIGN AND CONSTRUCTION PROJECTS FOR COMMUNITY with Vlado Danailov and Pakphum Youttananukorn

Role: Site Analyst, Material Selector, Architectural Model

Builder, Construction Estimator

Weekend Studio (2023)

Tutoring Studio

Role: Tutor assistant in Rhino Class and Privat Tutor in Portfolio Class

Bangkok Design Week (2022 - 2023)

NEWVIEW Food LAB with Kalaya Kovidvisith

Role: Food Designer

Temptation to be Together (2022)

Design Build with Vlado Danailov

Role: Site Analyst, Material Selector

C O N T
T P R O F I C I E N C Y
E D U C A T I O N W O R K E X P E R I E N C E
A C
D E S I G N S T U D Y
A N G U A G E S English Thai P E T C H R A D A P R O M P A N I T A R C H I T E C T U R E S T U D E N T
L

TABLE OF CONTENTS

MODELING AND RENDERING

01 02 05 03 04

WEB DESIGN AND POSTERS SOHO INTERNSHIP

PROJECT 01

Auto & Moto Club

PROJECT 02

Pro-player Housing

PRODUCT DESIGN

PROJECT 03

PROJECT 04 Farm to Fresh

ARCHITECTURAL DRAWING

เชอมพฒนา

MODELING AND RENDERING

AUTO & MOTO CLUB

Architectural project centered around a community of automobile enthusiasts. I initiated this project due to the absence of a suitable location where car enthusiasts can come together and socialize with others who share their automotive interests.

01 01 02 03

SPACESHIP FROM MIDJOURNEY GENERATED

Creating a concept architectural design for a Star Wars movie involving a "Mid-Journey Bot" that generates forms within the Star Wars universe can be an intriguing and unique concept.

The starting point is to generate a picture of a spaceship inspired by the Star Wars film and extract the form and shape that is intriguing from the model.

CATALOGUE OF INITIAL MODELLING

SITE SELECTION

PTT Rest Area, 2nd State Expressway, Wong Sawang, Bang Sue, Bangkok

GATHERING PLACE FOR PEOPLE WHO LOVE CARS

NEARBY EXPRESSWAY

MOSTLY PEOPLE COME THIS PLACE BEFORE ATTENDING ILLEGAL RACING

moed a d p c a d a g d 01 04 02 05 03 06 07 08 09 10

PRO-PLAYER HOUSING

Architectural project centered around a community of automobile enthusiasts. I initiated this project due to the absence of a suitable location where car enthusiasts can come together and socialize with others who share their automotive interests.

02 01 02 03

FARM TO FRESH

This market operates on a self-management model, ranging from large-scale construction to smaller-scale activities within the market. It integrates each activity and facility using eco-friendly materials, creating a cohesive and sustainable environment.

03

The "เชอมพฒนา" project aims to seamlessly integrate and encourage the use of public transportation while promoting pedestrian-friendly environments in Thailand.

เชอมพฒนา
04
UrbanPlacemaking

Thiszone sthefurthest distancebetweenthemain roadandtheriverp er NearbyMRTandPier Nolandmark

Varioussenseofcoummunity

9 0 Rv r 1 60– 99 “Gr und Trnpo a on Pr en y B /Mr Transportation 1988 2003 Agr ulue Wte Uban Fors Mse aneou 199 2008 995 20
unusedwall separatedpubic space publcareasfenced deadend inaccessblerver vew AREACONNECTAREA ACTIVITYCONNECTACTIVITY noparkng nomotorbikestand chaotictraffc TRANSPORTATIONCONNECTTRANSPORTATION
PopulationDensity
BangPhlat

HISTORICAL LAND

HISTORICAL SETTLEMENT

OLD CONSIDERATION FOR SETTLEMENT

NORENOVATION

CLOSETO MAINROAD

NEW CONSIDERATION FORSETTLE DOWN

RESIDENTI AL MIX-USED MRT/MANROAD

DENSE COMMUNITY

RetailShop/ ShopHouse
AVERAGE PRICE LAND FIELD HIGH PRICE LAND F ELD HIGH PRICE LAND FIELD AVERAGE PRICE LAND FIELD PIER S M L TRANSPORTATIONHUBS
BusStop + RoadsideShop BusStop + Cafe BusStop + Restaurant BusStop + MotorcycleHub
TRANSPORTATION
Bus Stop Waiting Area Ads Poster Hanging Stuffs Selling Area Lottery Grass Broom Flower Garland
Hub
+ BusStop
HUBS
Motorcycle
MotorcycleHub

SharedGardenSpace

Different Height Serves Different Plant types

320
600
Drainage of Watering
mm.
mm.

Parking lots

Flea Market

Public Restroom

Size L Transportation Hub

(Bus stop + Motorcycle hub + Public Restroom)

Park

Thai Ball Court

Hub

TRANSPORTATION HUBS

FleaMarket

Parking Lots

Food
Truck

Public Park A Thai Ball Game Court

Pet Friendly Able to Exercise Picnic (Family time) Greenery Vibe สนามเซปกตะกรอ

WEB DESIGN AND POSTERS

P O S T E R S

P O S T E R S

POSTCARD

PRODUCT DESIGN

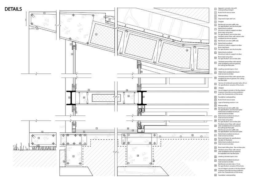
ARCHITECTURAL DRAWING

Turn static files into dynamic content formats.

Create a flipbook
Issuu converts static files into: digital portfolios, online yearbooks, online catalogs, digital photo albums and more. Sign up and create your flipbook.
Portfolio: Petchrada Prompanit by Petchrada Prompanit - Issuu