Wetscher MAX - Büro Exposé

Page 1

Exposé Max Office Erweiterung

Wetscher Immobilien GmbH Kontakt

Zillertalstraße 30 Lisa Mair

6263 Fügen l.mair@wetscher.com

Austria Tel +43 (0) 5288/600 668

1

Außenansicht Greif Center

2

Vogelperspektive Greif Center

3

Das Max Office bietet bereits 10 Büros mit einer Flächevonjeca.25m²imOGdesGreifCentersin der Andechsstraße 85 in Innsbruck. Es gibt einen Besprechungsraum, der für insgesamt 10 PersonenPlatzbietetundeineKüche,dievonallen Büromieterngenutztwerdenkann

Mit Sommer/Herbst 2024 ist eine Büroerweiterung geplant. Nähere Infos zu diesen Einheiten können diesem Exposé entnommen werden.

Die Büros sind 24/7 zugänglich. Jedes Büro ist mit höhenverstellbaren Schreibtischen, komfortablen Vitra Bürostühlen und edlen schwarzen Kästen sowie Vitra Rollcontainernausgestattet.

4
Max Office Konzept

Bilder Bestand

5

Bilder Bestand

6

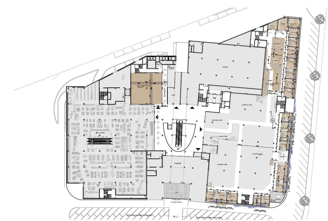
Grundriss Greif Center

7

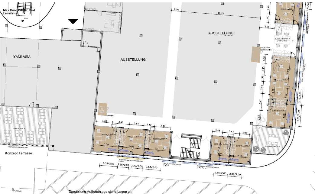
Grundriss Markierung Büros

8

Grundriss Markierung Büros

9

Grundriss Markierung Büros

10

Raumdaten Büroerweiterung

11
Raumbezeichnung Fläche EH Umfang EH Ausstattung Büro 11 23,60 m² 19,75 lm 3 Arbeitsplätze Einbauschrank 3 Elemente Büro 12 23,80 m² 20,62 lm 3 Arbeitsplätze Einbauschrank 3 Elemente Büro 13 24,00 m² 19,62 lm 3 Arbeitsplätze Einbauschrank 3 Elemente Büro 14 22,65 m² 19,83 lm 3 Arbeitsplätze Einbauschrank 3 Elemente Co-Working 31,66 m² - lm 4 Arbeitsplätze Einbauschrank 6 Elemente Büro 15 46,07 m² 29,51 lm 6 Arbeitsplätze Einbauschrank 6 Elemente Büro 16 24,10 m² 19,75 lm 3 Arbeitsplätze Einbauschrank 3 Elemente Büro 17 20,98 m² 18,52 lm 2 Arbeitsplätze Einbauschrank 3 Elemente Büro 18 18,92 m² 17,62 lm 2 Arbeitsplätze Einbauschrank 3 Elemente Büro 19 25,97 m² 20,39 lm 3 Arbeitsplätze Einbauschrank 3 Elemente Büro 20 25,58 m² 21,33 lm 3 Arbeitsplätze Einbauschrank 3 Elemente Büro 21 26,40 m² 20,58 lm 3 Arbeitsplätze Einbauschrank 3 Elemente

Vermietung

Preis netto p.m. inkl. 1 Parkplatz: miniOffice (<20 m2): € 700

mediumOffice (ca. 20-26m2): € 800

bigOffice (ca. 78m2): € 2.200

Mietdauer: 3 Jahre mit 2-monatiger Kündigungsmöglichkeit zum Monatsletzten für Mieter und Vermieter

INKLUDIERTE SERVICES & AUSSTATTUNG

• 24/7 Zugang

• abschließbares Büro

• 2x Schreibtisch, 2x Schreibtischsessel, großzügiger Büroschrank, 2x Rollcontainer, Garderobe, ausreichend Steckdosen

• Meetingraum kostenlos buchbar

• Mitbenutzung der Max Office Küche

• Beschilderung des Büros

• Stromversorgung

• 1x wöchentliche Reinigung

SONSTIGE SERVICES GEGEN AUFPREIS

• zusätzliche Parkplätze jeweils 100€

netto monatlich

12

© Copyright/Urheberrechte bei Wetscher Immobilien GmbH

Alle Rechte vorbehalten. Die in dieser Mappe verwendeten Inhalte, Bilder, Grafiken, unterliegen den jeweilseinschlägigennationalenUrheberrechtsgesetzen und anderen Gesetzen zum Schutz des geistigen Eigentums. Insbesondere die dauerhafte Speicherung, Weitergabe, Bearbeitung oder Veränderung sowie die Nutzung oder Verwendung geschützter Inhalte für andere Medien werden nicht gestattet.

WetscherImmobilienGmbH

Zillertalstraße 30

6263 Fügen

Austria

l.mair@wetscher.com

Tel +43 (0) 5288/600 668

13

Turn static files into dynamic content formats.

Create a flipbook
Issuu converts static files into: digital portfolios, online yearbooks, online catalogs, digital photo albums and more. Sign up and create your flipbook.
Wetscher MAX - Büro Exposé by Perspektive Werbeagentur - Issuu